A VISUA l DICTIO N ARY OF
ARCHITECTURE
fIlAN( U O. K . ( H INC;
i
i
I-
f
J
A
VISUAL DICTIONARY
OF
ARCH ITECTURE
J I I
I I I
I I I
FRANCIS D.K. CHING
A VNR BOOK
JOHN WILEY & SONS, INC
NEW YORK CHICHESTER WEINHEIM BRISBANE SINGAPORE TORONTO
f
{
r
I
! I
I
.-"
-
It... _.-l-
f
I
. I
- ~
;
, ,
1 ~
l... ~
t-
)
l .
;
~ I
! I
l l.
i.. -
A VISUAL DICT-IONARY OF
ARCH·ITECTURE
r
I.
AlZ~H)
FRANCIS D.K. CHING
fER~ANr7~l
(
This book is printed on acid·free paper. 8
CopYright @1995 'ry John Wiley &Sons, Inc. All rights reserved.
Published simultaneou5~ in Canada.
No part of this publication may be reproduced, stored in a retrieval system or transmitted in arry
form or by arTy means, electronic, mechanical, photocop-yinq, recording, scanning or otherwise,
except as ~rmitteJ under Sectionsl(J7 or 108 of the 1976 United States CoPJlight Act, without
either the prior written pemission ofthe Publisher, or authorization through payment ofthe
appropr~ per-copyfee to the CopyrightClearance Cenw, 222 Rosewood Drive, Danvere, MA
01923, (978) 750-8400, fax (978) 750-4744. RequesUi to the Publisha for pennisslon should
be add~ to the f'enni55loos Department, John M.~ &Sons, Inc.. 605 Third Avenue, New
York, NY1015U012, (212) 850-6011, fax (212) 850-6008, E-Mail: PERMREQ@W1lEY.COM.
This publication is designed to proMe accurate and authoritative information in regard to the
subject matter covered. It is sold with the underetanding that the publisher is not enqaged In
rende:ing professiot131 servius. Ifprofessional adviCt or other expert assist...anu is required, the
services of acompetent professional person should be oought.
U~ralj' of Congre% Cataloging-irH'uuncatlon Data:
ISBN 0-471-28451-3
Printed in ~e United S~ ofAmerica.
20191817 16 15 1413 12
L·:
L
L
(ONTENTS
PREFACE 7
ARCHITECTURE 9 FORCE 96 PLASTIC 192
ARCH 12 FORTIFICATION 98 PLATE 194
BEAM 15 FOUNDATION 100 PLUMBING 196
BRICI< 18 FRAME 104 REINFORCED CONCRETE 202
BUILDING 21 GEOMETRY 108 ROOF 208
CABLE STRUcnJRE 28 GLASS 112 ROOM 216
CEILING 30 HARDWARE 114 SHEll 219
CERAMIC 32 HEAT 117 . SITEWORK 221
CHURCH 35 HISTORY 128 SOIL 224
COLOR 38 HOUSE 136 SOLAR ENERGY 226
COLUMN 40 JOINERY 140 SOUND 228
CONCRETE 42 LIGHT 142 STAIR 233
CONSTRUCTION 48 LOAD 151 STONE 236
DESIGN 52 MASONRY 155 - 'STRUCTURE 238
~
DOME 60 MATERIAL 161 SURVEY 246
DOOR 62 MEASURE 166 TEMPLE 248
DRAWING 66 MEMBRANE 168 THEATER 256
ELECTRICITY 74 METAL 16? TRUSS 259
ELEVATOR 80 MOISTURE CONTROL 176 VAULT 262.
FASTENING 82 ORDER 179 VISION 264
FIREPLACE 87 ORNAMENT 182 WAll 266
FIRE SAFETY 88 PAINT 187 WINDOW 271
flOOR 92 PLASTER 188 WOOD 276
INDEX 285
"')I
i
i
r~
I,
~
I
I
~
J
One picture is
worth athousand
words
PREFACE
Just as a single image can be worth a
thousand words, a single word can
conjure up in the mind's eye a
thousand images. Regardless oft.he
power ofasolitary word or image,
however, each communicates meaning
more effectively when brought
together into a sfngle preserrtatlon,
The symbiotic relationship between
graphic and verbal communication is
the basis for this visual dictionary of
architecture.
Instead of an alphabeticallistil19 of
entries as found in most dictionaries,
the information is clustered around
basic aspects of architecture as
outlined in the table ofcontents.
Within each section, words are placed
in a visual context which further
explains, clarifies, and completes
their meaning.
'.. ' -', . "'" f--'
ill
','
tjC~/~_._
. r~'r
m
, /~'
=1.= 0_.____
~
'
,
;...>+-,- "
"'. : . :...-
- .. -;r- . . -4- .
The reader may use this dctionary in a
number ofw3'js.lf one trows the exact
term and wants to find CiJt rts
meaning, then one can 1001: it up in the
index. Looki~ up one term will always
present related terms arTa:1ged
around one or more illust<ations.
If one does not Know the precise teim,
then one can lOOK up the ~eneral
subject either in the table of contents
or the Index, One can then refer to the
appropriate section, brOn-5e the
illustrations. and scan fer the terms,
While browsing, if one encounters an
entry or aword used in adefinrtion
that is unfamiliar. one C3', look rt up in
the index.
Included are fundamental terms
relating to architectural deSign,
history, and technology. Since
architectcre is avisual art, most of
the entries naturallylend.themselves
to graphic representation. Some are
more abstract but are included to
help clarify related terms or to
complete the treatment ofasubject.
Others are inserted simply because
they are of historical Interest,
This is abook for the curious to
browse as well as adesktop reference
for the student ofarchltectuJe. The'
compilation of words and definitions
is not intended to be exhaustive.
RAther, the selection is designed to
be comprehensive enough to reflect
the rich, complex. and
multidimensional nature of
architecture,
7
Archftut.ure Is an 1rt for aU to !earn because an are concerned with It. -John Ruskin· Archltect1Jre depends on
Order. Arran~ Eur:;thmy, Symmetry, Propriety, and Economy. All of these must Pc built with d~ reference to
dUl'3billty, convtn1enu, and beauty. ~urabll;ty will lie assured when foundations are carrleJdown to the solId ground
and ~Is wl~ and liberally selected; convenience, when the amngement of the apartments Is faultless and
presents no hindrance touse, and when eachclass ofbuildingIs assigned toItssultal1le anaapproprlateexposure; and
pe~uty. when the appeal'3nce of the work Is pleasing and In good taste. and when Its members are In due proportion
accordtng tocorrect principlesofsymmetry.-Vltruvlus • Architecture Isthemasterly. correctand magniflcentplay
ofmaS6eSproughttDgetherln light. -leCorpusler· Anyoneenteringon the studyofarchitecture must understand
that even though aplan may have abstract peauty on paper. the four facades may seem weU,palanced and the total
I'Olume wen-p~. the pulldlng Itseffmay turn out to Pe poorarchitecture. Internalspace, thAt Sp3ce which
cannot ~ completefy rtpresent:ed In any fonn, which can De grasped and felt only through direct expmence.ls the
p"*,gonlstof.archttecture.Tograsp space, to know howtoseeIt. Isthe ~eytothe understandingoflnJikllng. -Bruno
levi- Arch~re,palntlng,and sculpturearecallecl the flnearts. Theyappeal totheeyeas musicdoes to thet3r.
Butarchitut-ure Is notjudged Pyvlsual appealalone. BUildings affect all of the human senses- sound, smell, touch,
taste. and vision. -Forrest Wilson· It became apparent to us that architecture Is generally assumed to be ah~hly
specialized system with aset ofprescribed technicalgoals rather than asensual soci31 art responsive to real human
desiresandfeel1ngs. This nmltatlon Is mostfrlghtenlngly manifested In the renanceontwo-dimenslonaldi34rams that
laymorestress on the'luanttflablefeatures ofbuJldlng organ1z3tion than on the polychromatlc and thr~-dlmensI011al
IualJtlesofthewholearchltecturalexperience. -Kent Btoomer&Ch3r!es Moore • Theonly I'4'Jj'OU C3n 1nJ1ld. the only
ny you can get the ~u!ldtng Into being. Is through the me3sura~le. You must follow tr.e laws of nature and use
Iuantltlesof~rk;l::. methods ofconstruction,and engineering.But In theend. when the lnJildlng Pecomesp3rt of living.
It evokes unmea5'Jral11e qualities, and the spirit of Its existence takes (J·m. -l.ools Kahn • Built environments have
varioltS purposes: to shdter people and their activities ana possessions from the elements. from human and anImal
enemies, and from supernatural powers; to esta~nsh place: to create a hum.in!z.ed, safe area In a profane and
potentsallydangerous!York.:; tostress socialidentityand Indicate status;.indsoon.Thustheoriginsofarchi~re
are ~ understood Ifone ta~es awider view ana considers sociocultural factors, In the broadest sense. to Pc more
Im~"t than chrnate, ~hnology, materials. and economy. In any sltuatlon,lt Is the Interplay ofall th~ factors
th4t Pcstexpblnsthefonnof ~ulldlngs. No single explanation wfllsufflu. ~use InJlldlngs - even appart11tly humPle
dwcUl"4S-areI'IOrCthan materlalo~ects orstructures.TheyarelnstlMlons, baslccultlJ;.iIphcnomen..Pecplethlnk
environments Veforc they ~lk:I them. Thought orders space. time, actlvIty: status, roles, and ~ehavlor. But gr.-Jng
physlcalexpreS$lon tokleasIsvaluable. Encodinglaeas makesthem usefulmnemonics; Ideas helpPenaviorDyremInding
peopleofhow to ~ howto !leh3ve.ana what Isexpec1'...edofthem. ItIsImportanttostressUutalllnJlJtenvlronments
-~,~, and landscapes - are one W<rJ oforJerlng the world by making ordering systems vlsMe. The
esstntIal step. therefore, Is the ordering or organizing ofthe environment.-Amos Rapaport • Ruskin said: 'Great
natlonswrlte their allto~raphles In thrumanuscrlpts,the rookofthelrt!eeds, the bookoftheirwords andthe ~ook
of ~Ir art. Not one of these ~ooks can I1e understood unless we rt3d the two others, but of the three the only
trust~or.e Is the last.'On the whole I think this Is true.lfl had to saywhich W3S telling the truth arout society.
aspll('JChbya ministerof'housing orthe actual~ulldlngs put upIn his time.Ishoukl"elievethe InJlldfngs. -Kenneth Cla~
• We requ/reofarry rulldlng. that It act well. anddo the thingsIt was Intended todo In the Pest way;that Its~k well,
and S3y the things It was Intenaed to S3y In the Pest words; that It look well. and please us by Its presence. whatever
It has to do or ~. -John Ruskin • Archltuture also exists without necessary assistance from an architect; and
architects sometlmescreate buildings which are not architecture. -Noryal White· Archfttcture Is proJuud ;y
ordinary people. for ordinary people; therefore It should pe easily comprehensib~ to all. -Steen Eiler R3slT'ussen
8
l, ;
t,
I
l j
I
J
l
.-
l-
l.
L
L
L
L
r
I
I
I
r
r'
I
I
r
r
ARCHITEC
The ART
architecture The product or result of archit tural work: ~u~ldlngs. collectively.
and SCIENCE
architecture
of DESIGNING
architecture The profession ofdesigning Duildlngs and other ha~1 ~le environments.
and CONSTRUCTING
architecture
BUILDINGS
9
ARCHITECTURE
art
The consclenu use of skill craft. and
creative lm.1glnatk>n In the production of
what Is beautiful appeallng. or of more than
ordil'l3l)' slgnlflcanu.
environmental design
The ordering of the physical environment by
me3ns of archlt.xture. e~lnurlng.
construction. landscape architecture.
urban design. andcity planning.
10
aesthetics
The branch of philosophy that deals with
the nature ofart. beauty. anatJste. with a
view to estabhshlng the meaning and
valiatty ofclitlcalJudgments conceming
wori::s ofart. Also. esthetics.
beauty
The aggregate of qualities In a person or
thing that gives Intense pleasure to the
senses or deep satlsfactlon to ~ mind or
spirit. whether arising from harmony of
fonn or color. excellence ofcraft.
trutirfulness. originality. or other. often
unspeGlfIal7!e property.
taste
CriticalJudgment. discernment. or
appreciatlon of what Is fitting. harmonious.
or beautiful prevailing in aculture or
personal to an Il1<.Ilvldual
url1an design
The 3spectof architecture and city
planning that de3ls with the design of
urban structures and spaces.
city planning
The actMtyor profession ofdetermining the future
physical arrangementand condition of 3 community.
involving an appraisalof the current conditions. 3
forecast offuture requirements. aplan for the
fulflllment of these reqUirements, and proposals for
legal. financial. and constructional programs to
Implement the plan. Also called town planning.
urean planning.
inUrior design
The art.l7tJslness. or profession of
p13nnlng the design and supervising tr.e
~utlon ofarchttecturallntulors.
includlng theircolor schemes.
fumishi~s. fittings. finishes. and
sometimes architectural features.
delight
Ahigh degree of pleasure or
enjoyment.
space pIa nnjng
The 3Spect of archItecture and Interior
desIgn that deals with the planning. layout.
design. and furnishing of spaces within a
proposed Of' exIstIng building.
i J
u
L
L
L
,
L.
J
I
L
r
L
-a
i
firmness
The state or quality of Delng solidly
canstructed.
technology
Applied science: the branch of knowledge
that deals with the creation and use of
technIcal methods and materials. and their
Interrelation with life. society. and the
envIronment.
technics
The science of an art or of the arts In
general.
tectonics
The science or art of shapIng. omamentlng.
or assembling materials In construction.
architectonics
The unifying structure or concept of an
artlstlc work.
engineering
The art and science ofapplying scientific
principles to practical ends in the design
and construction of structures. equIpment.
and systems.
l1ehavioral science
ARCHITECTURE
science
A branch of knowledge dealing with a body
of facts or truths olrtalnea!1y direct
observation. experimental Investigation.
and methodical study. systemat1cally
arranged and showIng the operatIon of
generallal'ls.
Any ofthe Sciences. as salology and
anthropology. that sed: to discover generaI
truths from theoDservation of hum..n
behavior In society.
~cio(ogy
The science ofhUlT13n social Institutions
and relationships: sped. the study of the
o~ln. development. structure. funeticnlng.
and collective behavior oforganized groups
ofhuman befngs.
anthropology
The scIence of human beings: speclf. the
study of the origins. physlc3l and cultural
development. and environmental and $OCtal
relations of hUlt13nklnd.
__L-________________~ ~~--
0.-,; _ _
-....-
......
~~-,--....--
.----------:7'..::--------------c:=.:~~;~~~~~
landsc;ape architecture
The art. business. or profession of
deSigning. arranging. or modifying the ~ .
features ofa lanJscape for aesthetic -~rf/
or practical reasons. _,J)i1fr"';';..~
- L.,".. ;"·
r:-'- ~~/:~~:-:: t .'-''''-'-''-''-''''""~
~__I~~~'cfitl,.'
-: .-~'N~..:r~J:~~~.j< '..:),
-'-"-?~---
11
I
j
I·
I.
I:
.:;
1;
j
L
I
,-
I
!
tARCHf
AcUrYed structure for spanning
an opening. des~ned to support a
vertlcal103d primar~y :7y axial
compression.
N50ntyM-ch ~
An arch constructea of Individual stone or
prick VOlJ ssolrs.
~voU$$Oir __________---..
Anyof ~he wedge-sh2ped units In a
ITI3sonl)' arch orvault. havl~ sidecuts
converging ,,' one of the arch centers.
~ keystone -
The wedge-shaped. often embellished
voussolrat the crown of an arch. serving to
lock the other voussolrs In place.
H--~_
• extrados
The exterior curve. surface. or ;;.:'..:11d31')' of
the visible face of an arch. Alsv :3i!ed barr
~--_ archivolt
Adecorat1ve molding or ba nd ,;;", "he fau cf
an arch follOWing the curve of t.!-~ ;ntraclos_
r
l
.. ~_e.h'e~htof~na_hfrom",-,.-.-.r-->n---:intrados-.
Ill(; .. ", Thelnnercurveorsurfaceof":1J~h
t5pn'ftM!f!--------- formln~~Leco _J 11 •
.~- the sprlMIMtI line to the ..., VII ncave uUClersouc_
The first v'oussoir resting on theImpost ..., ...,
M='=a=na=rch==_==================~===±~______ . _____ .~h,_s_t~
__
I~_of_~h_e_In_Ua_d_OS_'~~~~==========================
~croWn -"--------------------,
-The-highestJ'"Ir1orpoint ofa
cormxccnst:ructlon. as anarcn.
vault.or~_
t-~-~~------------~-
ofan arch curving down
from thecrown to the Impost.
~----~-E:1
Tr.e uppermost partof an
4IPutrnent. often In the form of a
!7Iock.capfbl. or molding. from
which OIn arch springs.
I
5pring
The point at which an arch. VJu~. or dome
rises from Its support. Also CJi!ed
1springl~.
.----------.------..:..' spandrel
or~~l------------------~
ArrJ several concentric ringsof
forming an arch. esp. when e3ch Dro1·~.~'~~[~, ',-U-l.J"'-
pCjond the o:'.e pelcw.
The triangular-shaped. sometin-.es
ornamented area 17etween the ~.ndos of
two adjoining arches. or ~ ~~ left
or right extrados of an arch .rJ t.:...t
rect3ngular fra mewon: surroundirI.,1 It.
Also~Sp2ndril. i
r.g
Acrosspleu connectlng the I".l>s in 3
centering. Also called folster. f
'>.~. -.···rlJUVUrt;h I
- .~ An archway having sides orJam~s not at
.. - :~ right angles with the face of Its abutments_
~enur!ng
AtemForal)' fl7lmework for supportln~ a
masonI)' arch or vault during construction
until the work can suppo~ Itself.
camber piece
Aroard used as centulng for aflat arch. ~      ( IIffilllI{
slightly crowned ~allow for settling of j /
the arch. Also calle4C.1l)1per 51ip. _ _
12
I ,
l;
t J
I
I
!
LJ
I
u
L
L
l
L
L
L
L
L
l
r
I
l
r
f"
I
f
f
r
r
,
I
Junic~lar .1rc_hI
An .rch shapeJ to develop only axial
compression und~r agiven loading. This
sh3p<: may ~ found by Inverting the
funicular sh.:;pe for ac.:;ble carrying a similar
Ioadlng pattern. As with any funlcu13r
structure. afunicular arch Is subject to
Pendlng ~ the loading pattern changes.
An tr.oerW~ry is t~ funlcul.r 5hape for
;In arch C3tTjlng avtrtlC3lload uniformly
JI5triMdi1hng the lenqth ofthearch axis.
TIlep2r3rol1l$ the funicular sh3~ for an arch
C2rT)fng ao;r:rticz{ loaduniformlydi5trW.d
C'ltritS horlzw...afprojection
i
.-.--;-.-.~----.-4-
tigid arch--·i
An ;m::hed structure of timber. steel. or
relrrforc;ul concrete. constructed as arigid
body capable of carrying bending stresses.
fu:ed arch
Afhed frart'~ structure having an arched
form.
two-hing~ arch -------~
Atwo-hlngeJ frame structure havir.gan
archeJ form.
thru-hinged arch
Athru·hlng~ frame structure h3vlng an
arched form.
~ Su fr3rt1~ 5trvcture
ARCH
,...--------------+-'archaction I
The manner In whlcn an arch transforms the
vertlcaIforces of asupported load Into
Inclined components aria transmits them to
abutments on either side of the archway.
r--~-------+- ~rchaxis
the median line of an arched structure.
.---------J-..~ line ofthrust; .
, The setof·resultantsbf thrust and weight
each part of an arch Imposes 0'1 the next
lowerone. For bending to be eliminated
throughout an arch. the line ofthrust must -
coincide with the arch axis.
Ithru5t. !
The outward force or pressure rertea I7y
one part of astructure against another.
--...:liI~~·::it-"Jrlft" I
.i The thrust of an arched structure on Its
~~-#-r-------------t-I.L-.~.~ abutments. proportional to the total load
anaspan, and Inversely proportional tcthe
rise.
~Mment ~
The part of astructure receiving and
supporting the thrust of an arch. vault. or
strut.
tie rOd
An Iron or steel rod serving as astructural
tie. esp. one keeping the lower ends of an
arch or frame from spreading.
13
ARCH
<::<:.....~~
..... .'..':.:.~
":-:;~
fUt.nch; ~t
An arch having ahorizontal
Intrados with voussolrs r.:Idiating
from ~ center~w. often puilt
with aslight camPer to allow for
settnng. Also C31~1c ai-aI:',I
round arch'
An arch having acontinuously
cuc;'ed Intrados. esp. a
semicircular one.
polll'ted arch'
An arch ~vlng a pointedcrown.
14
~ French arch .
Aflat arch having voussolrs inclined to the
same angle on each side of the center.
• RolTL1n arch
An arch having a semicircular i~tr.:ldos.
~~~Iarc~··.i
An arch strock from one or more
centers ~Igw the springing line.
• skewPact _'--,-_____-.l
Astone orcourseof masonry having a
sloping f.Jceagainst which the: end ofa
segmental arch rests.
• ettuli~r3rarc&' Z r ='
Apointed arch havIng two centers and r.:Idll
equal to the span.
G~thl~'~Rh; I r..
ApoInted arch, esp. one havIng two centers
and equal r.:Idn.
~ triangular arch'
AprimiUve form ofarch consisting of t ....o
stones laid diagonally to support each
other over an opening.
corbel arch
Afalse arc~ cc:~s~ructed by corbeling
courses from each slde of an opening until
they meet at 3 midpoint where acapstone
Is laid to comp!eU the won:. The stepped
reveals may be smoothed, but no arch
action Is effe.c:.ed.
~. i rampant.1rch .
fL··J·~ An arch having onc Impost higher than the
1 other.
........;-..------~ stilted arch
~
An arch restir~ on imposts treated as
: . downward ccn,i~uations of the arctr0lt.
. .-t-.. !PeUarch
. 'A round arch rest'lng 011 two large corbels
with cUrYed taus.
fi)
'"
'to>
. .-L.~..,.'_______
hor$eSMe arch
'i.~
". ..J/ .....
·~·t··7-·,
 .... /."'.... /
"---~_+ '---' _l
la~arcltt
Apointed ~rch having two unters and
radII greater than the span.
An.rch having an Intracios that Mdens
aPove the spri~lng Pefore 1I3rrowing to;jJ
rounded crown. Also cal1e£fMoorIsh arch.!
,'trefol1arch
An .1rch having 3cusped Intrados with three
round or pointed foils.
; basket-handle .1rch
Athree-centered 3rch having a crown with a
radlus mUGh gre3ter than that of the outer
pairofcurYes. Alsocallefn~ de panic!
, drop al'C"
A pointed arcll haying two centers arid
r.:IdJl tess than the spar!.
: 'lU'pasedarch
An arcn havIng ari~ of tess than half the
span.
.-3.. o¥earch
Apointed arch, e3Cn hJunch of which Is a
double curve with t~ c.cncave side
uppermost
{j
I
I
l.J
I
I
tJ
I
lJ
L
i
L
I
L
l~
!
I
L
r-
I
i
!
I
r
i
i
r
f
L
r
.- -
i
l
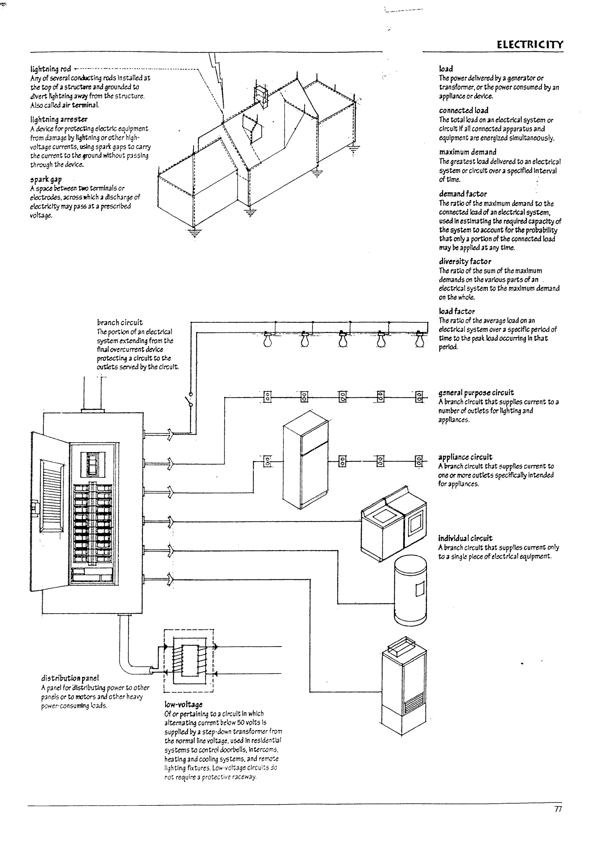
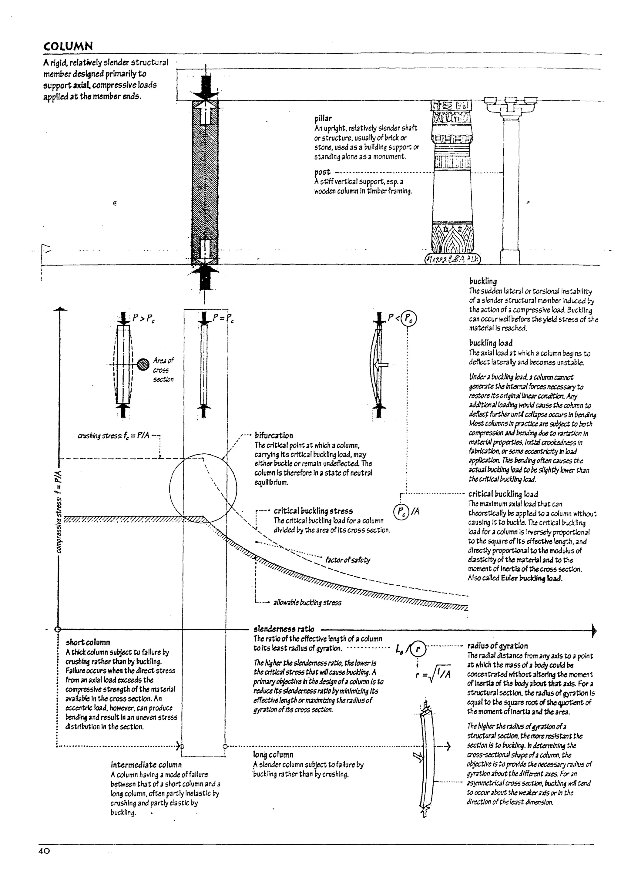
BEAM
Arigidstructural member
designed W C3rry and transfer
~1I1I~~It~i!~IIIIIIIIII;;!!!lliliiiiiill!!lIIII~~ii~Ii~~tiriainISViel~e,oadsacrossspaceto
~ ____ supporting elements.
M--"-'_h __ 1span '
The extent of space l7etween two supports of astructure.
L,.----L.L.....---.-l- - Also. the strocture so supported.
; rcearspa~'-:..,,:-"------------~
The dIstance b-etween the inner faces of the supports of a
span.
-r.=i~=!r~~lerdistance l7etween the supports of a
! span.
f=+ t f ±[f -+ -t +
-===------------------~Iii
[
 Ptnd~mcment -<,--'_ _ _ _ _ _ _--":yz:...~:.;:zc....---'X:.?'-_,.
An exta1tl1 monierrt~ndlng to C3'J5e fi3rt
of astructJJre to rotJte or ~end. ea031 to
the al¢'r31c sum of the moments amt
the neutnl axIs of the section U~&!­
~14
COnsk:lerJtIon.
1 ~~ moment t------------------~---,
• An fnt:er.ul mOmerrt'ec{U31 and opposr-..e to a
~~ roment_ generated by a fcru
couple to Nlntaln equilibrium of t<~.e
._~'.~ ------- --------- -------~---. a;mpresslon
''--------- ---- -----------~ Un5lon
sectbn Deing considered.
 ~ft.!--------'
1 ~-~ulard1stance a spanr.i~
If'.em~ ~tes from ;1 true W1.J~
under ?4nsverse loadlng.lncre3sing
with Ioad;lM span. and aecre3Slrlq ·...-f';h
3fl1ncre:ase In the morr.ent ofInertl3 of
the sectloo or tM modulus of ei3~..ctty
of the ruteri3L
~-~
~sngfit' convex curvature Intentlot1311y
~nt Intoal>tam. gIrder. or truss to
compellS.1te for an anticipated
~-
~--~--
..~~'-
- - -__-=:::~~..::....J;,~---------- _;neut-i-alaxis ,
An ImagInary line passing through the
I cel!troid of the cross section of abeam or
, otMr rneml7er su~ject to !lendIng. alonq
y which no ~ending stresses occur.
C bending-5tre55 ,
~ ... Acoml7inatlon of compressive and tension
~ stresses developed at. cross section ofa
r structural mem~ to resist atransv~
~ force. having a maximum yalue at the
~ surface furthest from the neutral axIs.
, ~~h~~ ____________----1
-Anextern.alshearforu at across section
of abeam or other member subj~ to
Pendl~. fl1U31 to tM a~ebralc sum of
tnnsverse forces on Ofle side of the
section.
I
.---:vertical shearing stress;
: The shearing stress developed along a
~
. : cross section of a~eam to resist
___---- _: transverse shear. havIng ama"xtmum value
___ ---:------ - : at the neutral axIs and decreasIng
::::::::::::::::::::::::~-=---=---=--=------------ --- ~ nonlinearly toward the outer faces.
------r------J----~-------- :
The snearlng stressdevetOped t.J prevent 1-~ :
slippage alang Iong!tudlnal planes of a~m' :
ur.oer transverse loading. ~ual at any point '-"-. ~. -- - -:- - -------- ---- - ----:- ---~
to the vertlcal~h~~r:l~_~ *e:;;;at that point ~
AIso calIec90ngftudinaf s~rfn4 s~s;
15
BEAM
Whk ~3 ~ spanreduces th~ bending
~ ry3 tJacre{z.JouPling th~ depth
reduces t;!!ebending 5tres5eS by3 factor of4.
16
fp =MC{!)_______ mamentoflnertia
The sumOfthe products of each element of
2n 2rea 2nd the square of Its dlstance from
acoplanaraxis ofrotation. Moment of
Inertia Is ageometric property that
Indicates how the cross-sectional area of a
structural mem~er Is dlstrl~ted and does
not reflect the Intrinsic physical properties
ofa material.
where
f. = extmn~ firerstressIn ~ndjng
M = bending n10mttTt
C = distJnc~ from neutnl/axis to th~
outermost surfJC~ in b~ndin9
If
Yc=®~-------- section modulu,
'A~~r6pMy ofacross secuon.
deflned as the moment of Inertia of the
section divided l1y the dlstanee from the
neutral axis to the most remote surface.
then
fp =MIS
Thetfflcfetlcycf3 Pe3m15 lnCT'e3seJby
CQnflgurlng the CT'OS5 section toprovfde the
requireJmomentcfInmb orsection modulus
with the 5maOe$tpos5M~ 3rea. usua!1yby
mating the section kep with mostofthe
m3teri;(at the ~mitles where th~
maximum bending ~ occur.
_1-
J
- 5hearceo'Ur
T~~p~-~nal~Ia_~9f.a
s~l~~gIfWfiICfi'i'?· -,- ,
transverselOad';r'-ustpa'55InorJe~ to
prevent torsion or twlstlng.of the mem~er
a~out.a Iongltudlnal axis.
33.25inz = Area ofsection
25OIn4 = I aPoutx-xaxis
52.61n' "" S
,tresstrajectories
lines depictIng the direction put not the
magnitude of the principal stresses In a
~eam.
I
I
I:
11.20 in2 = Area of5Xtion
3861n4 = iaboutx-xaxis
54.7in3 = 5
principal stresses
The tensile and compresslv~ stresses '
resulting from the Interaction of ~na1nf!
and shearstresses at across section ofa
beam.
At the txtreme surfaces ofabam. only
!>ending 5tr~ses &:xl5tand theprlnclp;1l
stres:.e-s3rt equivalent to the tensiJe and
a;mpr-c5slvc str~5e5 resulting from l>alJ1nq.
At th~ nelltra/axlsofthe section. only shar
stresses exist and these can ~ rcscI~eJ InW
ta7sJ1~ ;milcompre55l¥e ~ses xtJn~ at45"
mgfe.s to the neutnl1Xl5,
For217 lrrU:rrnedim element sut;ecttobotb
be:nJlng x.J she3r5tre55eS. theprlnctp.al
stressesh3re3n InclinztJcn ktemI/neJbythe
rd3t1r~ magnitudes ofth~ 5tre55e5.
~- tension
I =
"
I
1 i
L
L
L
J
L
r
I
L
r
l
f
t
r
i
r
r
fF
i
-.-t." f L tlU 1 +J.1J.Lt
. I . : ;
: t :
BEAM
5imple beam
A~m restlC3 0.1i sim~~~u.ff£ljs at Dot.~
ends, which are free tc rota~ and have no
moment reslst4nce. As with any st.otlwfly
aetennlnate structure, the v-alues of an
reactions, shears. and moments for a
simple beam are Independent of Its Crc5S'
sectional shape and ma~31.
,heard.g..m 111.11111111' ). '~
.•. !:; I, II.·~'
ii'l:1
Agraphic representation of the variation In ~:.. IIIr ( III I! ,'I!
magnitude of the external shears present In ... !!.... I
astructure for agiven set of transverse -' - cantilever beam
loads anel support con.:fitlons. Concentratedloadsproducee~ma(she~ UniformlydistribtJudloadsproduce(ine3ri) :.": X'pro~rij veat:ns,upPPfted.a~ only.one
momentdi.1gram ______~~~~~.~!~CQn-'~m.'g.wJ'-~ ~~~:
:.,,'''''. r , ;;';~~' " " ' , ' ' ,
A¥3EIC:~torrott~~nJn: . : : :
:-~:~~!-W,f~~jj,!!e.: . :; I :
Concentr.ltedloadsproducebendingmom~ts
which varyhne;;rfybetweenloads.
cantilever
UniformlydistribrMdloadsproduce
panbciJc311yvar:lr.~ moments.
louis and support conditions. The overall
tkf1ected shape ofa structure subject to
Pendlng can often lie Inferred from the
shape of its moment diagram.
';~~~~~~~~'~=:~~~~~~~~~~~=t
~i
6' positive shear - . .
. .P,,~~
...t
... ,.res~l?nt. of.shearforceSth3tacts
r vertIca~ upW1rd'~n the left partofthe
J structure !:>errig consldered.
'rnegativeshear ----------------~
~
~ A~."r:esutta
.. nt. of.5
.. hearforcesthatact5
. "ertIC3l!:t~~rapn the left part of the
I structUrl: ~elrig'c·onsldered. ~---:",""r-T--,.-,-.,."-l...1fJ-l-L-L...LL.....w.-l...L.L....w..::...
positive moment ·.c.,....~.~.~._ _ _ _ _ _ _ _ _ _ _ _ _- " -_ _- '
A !:>ending m<Jrrtent ~ proaUcesa concave
ClHYaturl: at a section of a structure.
overhanging peam
A slmple Deam extending beyond one its
supports. The overhang reduces the
posltlve moment at mldspan while
developing an~3t!ve moment at the Inse
of the cantlieverover the support.
Assuming3 lJI1/formlydTstrWvW(03d, tJ;e
projection for wltfch themorrr~ OY~ the
5I.:pportIseqwfindopposlU ta themorr.t:rt
3tmidspan is approxlmMy% ofthe Sf!41
1 J. 1 $J, J, J. J, J. J. J. 1 J.i .L4t-
I As5l.ifT1ir., 3 uniformlydistriWW l:::;;J.
; . theprojections for .,.,nlch themommts
5u'pended-span
AsImple ~m supporW by the
cantlievers of two adjolnln~ spans with
pInneJ constructlonJolnts at polnts of·
zero moment. Also calW hu~-span.
: ' : OYerthe5Upport53~eq~/md
: 'oppos,'u to themomer.t3tmidsp71
h3unch - - - - - - - - - -
Thepartofalleamthat!Sthlcl:e~OCi' ~ ~'
~~Th~~f~~t;~~aM~~ " ~J J ~,.< J 1 ~ ~~'
inc~e;jS@iiY shaping Itslertgth In respon..~
to the moment and shear values whk;h
typically vary along Its Iongttudlnalaxls. ~ ~
[Y 1J_
effective length
The dist3~ce Det.....een Inflection points In
the sp3~;f aflxed'end or continuous beJ~.
quiIl3ie.-: in nature to the actualleng~h ~
3 simp!] s~pported 'eam.
;;re approximately'/, IJfthe sp:m.
fuea-:.eM~r.t- "
~'~~~;.~~~~
tr..nsfer !:>ending 's~s,lncre-ase the
rlgldlty of the ~m. and ~uu Its
maxlmum defIect1on.
ccrttinuou5 pe4m _
~ be3m extettding~~t~~ih",,~J~,..
~~§Jn ordu to aevelOp greater
rlgfdttyaiid smaller moments than a ser~s
of simple lleams having similar spans and
loading. Both fIXed-end and contJnuous
!:>eams are Inktamlnate structures for
which the values of all reactions. shears.
and mo~nts are dependent not only or.
span and Ioaalng but also on cross-
sectlonal Sh3F~ 3'1d material.
17
,lJJ.Sl.(W
Am3SOf1f)'unitofclay, formed into
• rectar.gwr prism while plastic
and lurdenea Py drying in the sun or
firi~inaUn.
'ccmmott~~
Brict made for general Pulkllng purposes
and :let s~1a11y treated for color and
te~~re. Also C311ea building brick; _.. ' -- ....... - .. - -
mingl1rict'
!3rlcl: maJeofspec~1 clays for facing a wall.
often treate4 to produce the ~sJ~~.~glg~
and 5Jrfau text.ure. Also calrea faciIn-Ick. :.--. --:
~~~~ ! scft-mud process
. The process of forming prick l:>y molding
relatively wet clay havlng~re C$!:Vwt- Jt
~.....
j5.1ndstruck brick
Bricl: formed In the soft·mud process wlt.,~ 3
mold lined with sand to prevent stlckln9.
producing3 matte-textured surf~
1prick_type!
Ades~ll3t1on Indicating the pennlssll7le
~rtatlon In size. color. chIppage. a"d
dJst.ortk)n albwed In afacing I7rick unit.
rex
F.ang I1ricl:: suitable for use where a
!ninlmum ~rlatlon In size. narrow color
fA ng~. and high degree of l.T1ech3nlc31
pafectlon are rea.ulred.
1~~!llllllllllilll~1r waterstruckhick
Bricl: formed In the soft-mud process with 3
mold lulnicated with water to prevent stlci:!~.
producing 3 smooth. dense surface.
"trrt-mud pro~ !
The process of fonnlng prick and structur.il tile
~ extruding stiff Put plastic clay having a
moisturecontent ofl2t to 151 through 3 !~
anacuttlng the extrusion to length with w'res
FB5
F,cln~ kick sultaple for use where a wider
color ~,nd greater variation In size 3re
~rmitted than for type FBX.
FDA
F.a~ I1ricl:: sulta7te for use where
p,rtlcubr effects are desired resultlng
from lIOIIurJformlty In size. color. and
texture ofthe Individual units.
, lorici~'
Adr!s~tUtIon indicating the dura!7i11ty of a
m:t unit wfIen exposea to weathering. The
u.s.Is drtW In~ three weathering
~ - serer!. moderate. and negllgll7le -
.3cc,~·dIng to,nnual winter rainfall and the
6n~1 number offreezing-cycle days. Brick
is pJd for use In each I'C9lon according to
~ strength. maximum water
, a~.andm3XlmumSJturatlon
coefl'.clent.
t MW~
. AImCk grade suitable for exposure to--
,moder'3te weatherl~ as when used ~e
grade on surfaces unlikely to l7e penneated
liiltn Wlltel Iii subfreezing temperatures.
j5W ~
,II !nick grade suita~1e for exposure to
severe weatheri~,;as when In contact with ---~-----=:::
the ground or uSMon surfar.es Ukely to ve- ~
permeated with water In subfreezl~
temperatures. .
l:>efore firing.
1drrpress process i
The process of fanning prick ~ motdlng
relatively dry clay having amoisture co~
•.e:q; of
51 W under high pressure. resulting in sbrp-
edged. smooth-surfaced pricks.
1b1n)
f.. fumau oroven for Pumll1g. I:1aklng. or dryi~
~I~. esp. one for firing pottery.17a:ir-3
, m=ks. ordryl~ tlml:>er.
j~~hin~'f
, - - - - - -__--.: Plfing luiCk un~lterTl4tely with too much or
too httle air to vary their face COlOr.
!cull "
. 1
A!nicI: or tlmb~ rejected as being ~ Infer':£r
quality.
~.
The ~ofW3ter a~ Py. claL
I"'.lSOlllj' unit when Immersed In either cold
or boIIIn4 I'I7terfor ast3ted length of time.
~'5 apercent3ge of the weight of
~l.,edryl/l1lt.
t1~­
~-~~
NW ...... -..... -.... -... ,.. ...... .... ........ Jfi!e·l7ridcr·-···:
Abrick grade sulta~1e for ~posure to AGT{£mUle of fire clay ana used for IInln~
~iI coefficient
The rnlooft~ weight of water absorbed
~5bhiy Dille hi!mtlrsta In cotr
IIt7terto the weight a~sorPed when
~ In rolh~ water. Indicating the
~ resistanceof the brick to the
#etlan offreezl~ and thawing.
~.
3 weight of water absorbed ~._'
iTl3S011f'y unit when partially Immersed for
croe minute. expressed I~ grams orounces
p minute. AlsocalleJ mlt/al rau of
iI~
18
jl!e9~n~~~ ~~as when useaas a amaGtts and flreplaces.
113Gb,,.orin Itfterlormasonry.-
-.; . ,-;;>:'!f',-!J
. ,~ ;_ .t.t~ ~:'l ~. - - i
:' .:!{ :: ~.~.. .~ ~
"'- -.;.;" .- ... -- ......~~
I ~. . ":~~;" ~ ,,;:;. ~. ~q
.
.., ;( .." ,-i· ~-:-;;~~·.:.~I':~
~,
"V.' ~~ h.·.'j~) S
dflo~res;e:;~~:~~
Awhite. powdery deposit that fonns on an
exposed masonry or concrete'surface.
caused Vy the leaching and crystallization
of 50luple salts from within the material.
t.~_c~
AWct¢ryclay useaIn the making of
~rucl&t;S. aria otHer objects exposed
to high tempentlJres.
~!y_,
Amaterial having the avlllty to ~taln Its
physical shape ana cliemlCal WnE§' w~
suPjected to high temperatures.
l.
u
u
I
l.i
I
U
r
r
r
r
f
r
i
r
r
rnoml,,' dim",.Ion ~
I
Abrlc~ dline~S'o()f1 Lvgerthan the l
actual dJ~s:cn toaccount for the
. thicl:ness rf 3 :nortarJoint.
-·r---· ·'h
jumbo urick .
Any of "'3 r100J5 C'1erslzed 17ricks h3vlng
nomlnJl di~~S:Ons establJshed Dy the
m3nubct~~e-.
seal' I -'i
Abrd or tl.e i-.3Ying normal face "
dlmensloos ~Jt 2 nominal thickness of
2In.(51I11m~
ht-J
A!mel:: cut t... rsversely so as to leave
onetr1dw~
~:..,
TaChipar rJC> stones or 1nicks to a
certain s~ c-r sl1ape.
.3 courses =8 in. (20.3 mm)
5 COU."'5ts = 16In. (406 mm) ~=:::ib=:::o:;f=:.d,-,-~~£..
4 coursts = 8 In. (20.3 mm)
•See mJSOnry for types ofmortJrpr.:s
BRICK
moduL-lr brick
A 17rld: h.wing nominal dimensions of
4 x21,.'3 x3 in. (102 x68 x203 111m).
NormJn brick
APricl: h.wing nominal dimensions at
4 x21,'3 x12 in. (102 x68 x305 mm)...
SCRurick
Briel:: h3';119 nominal dimensions of
6 x2113 x12 In. (102 x68 x305 mm).
engineered brick
AInicl: h.wlng nominal dimensions of
4x3~/s.5In. (I02x81x203mm).
Norwegian I1rick
A17M h3Vi~ nominal dimensions of
4 x 3'/s x12 in. (102 x81 x305 mm).
Roman brick
Brick ha'ling nominal dimensions of
4x2x 12 in. (102x5! x305 mm).
ecanomy Prick
Amodu~r vrick having nominal dimensIons
of 4x 4 x5 in. (102 x102 x203 mm).
stret:.cMr
Al?rlcl: or other m3sonry untt laid
hortzoot..fIy In awall with the lo~er
eage~ or parallel to tne$lJri:ou.
'·'·' ..''~r.,
A 17rld: or other m3sonry u,nlt /;lid
horlzontaily 1(1 awall with the shorter
end ~ or parallel to the surface.
-.,..,~~J
A I7rld: lakl horizontally on the longer
edge with the shorterend exposed.
AI$O.~J
fc.~~}
A I7rld: laid vertically with the longer
face edge ~pqsed.
. itorl
r~k lakl vertically with the I1read
faceex~.
,... '.' 7shineri
'A brIck i3J h<:Jrizontally on the longer
wge with the broad face exposed A!S]
called pull str~her.!
'! 1
19
BRI(K
fbrickwcrij
erfck~Ion, esp. tM art of bondin9
Prld:s effealvely,
'~ndt
Anyofmblsamngements of masonry
units ~.iI regular, recognluble, usually
OYerbp~ pattern to Increase the
strength and enhance the appear3 nce of
the conskuctlon.
j ",n~~/-..........-.--··-··....
Alni:iwort or masonry bond composed of
OY~ stretchers. Also called
's~ron(U
pa.otllond 1
Alni:iwort bond having acourse of headers
~ ~flveor slxCQu~ P-f
stretchers.AlsocalW .f'rieffi.1nl1~, f
clesa' ..........-.......... .
ANSOnry unit specially formed orcut
to fDsh " COU~ orcomplete the bond
at ~ co,cner ofawall. Also, closure.
~~~l
Alni:illlOrk laond having altemate courses
of hakrs ~lidstretchers In whleh the
~n untered on stretcMrs and the
joints ~ stretchers nne up vertically
lnaiCOlll'StS.
~ ~=~h::~.I.~.t~:-:~~- 00.- -
forroa"1~ng" course or for spacIng
reglbr!nicks. Also;Cuun closure.
fJem~~~1
A~ bon(i having alternatIng
headtrsand StretcMrsIn e3Ch cou~,
~ ~ ~ng centered arore and Pelow
.iI~.
~da~ ----------....... --- .. ~'='==_::::!±:=::!
A~uarter Imci: fodlnlShlng a
cor..eorfor spacing regiliarlmcks,t
Also. ki". cfO$Ure.
!F~~
'A fonn~~nd In which the
c.ourst:Sn offset to form adtamona
pattera.
20
.... soldlerccur5e,
Acontinuous ecurse of soldiers In
brickwork.
.~tack~ond
'). br1ckwori: or masonry bond havin9
=::>==:;;::- successive courses of stretchers with all
headJoints al1gned vertlea Ily. Also.
~acked I1ond.!
~~~~~~~~~::=:K :Englishcros5 Pond-
ODD DCJDDD .ArnodJfJed EnglJsh bond In which the heaa
DD~D~~~ Jolnts!n the stretching courses are offSP,t
~~C=::J( .by half the length ofastretcher. Also called
ODDDDDDDDC ,-Dutdt~1
Dc::=Jt=Jt=JDT
ODDDDDDDDC
c=Jc:::Ic::Jc:=Jf
ODDDDDDDDC
Dc=Jr==Jr==:JO(
ODDDDDDDDC
c=Jr::=:JDDc==J[
Flemish CtO~5 Pond
A mod1f1ed flemish bona having courses of
altel'Tl3te headers aM stretchers
"ftem3tI~ with stretching cou~.
-..- flare header
Abrick h3vlng adamr end exposed as
a heac.ier In pattemed brlcl:won:.
~)~~~~~~~Ill: larden-wall Ponel
F ~prlclilYOrHond for lightly loaded
~~~~~i~~~g: rounaary walls, having aseq~ence of a
po header and thru stretchers In each course,
~~~~~i~~~~= with each heac.ier ilelng centered over a
t= header In alternate courses.
I i
I j
J
J
I i
6
L
L
L
L
J
f
L
A~ Is A sheltb' from r3in, SUn, and wind.
This mpIksa~and Waifs wsupportIt. If
the ~ emtmym;Jose th~ 5pau WIthin,
~ xt ~ for access. 3I1dWlndCW$
for ¥t- Ro:7fs and waDs, door5 and WIndows
a~ ~ ~ fe3tures (J(buffdl"95.
Roof5 T/U'j b.: f!.it:. sloping. orcurved. Aroof
with~ slopeIs C3iWaLan-to. When two
~ roofs ~ upa!p3r.l1ldw;Jn5 andle.in
a~ns:r;ne ~ theymeetIn ahor/zorrt.31
rlJge.lt ~ ~,XIII form aG3t>1eatt.3ch~.
Iftwo rQ/Js m;;;i~aprojectingang~ their
rwfs ~1n3n It1cIiMJlint calledafip.
Ifthe rr;;aIl:; me&t;,areentulngangl~, the
ItIcfJr,dile ofIrrtersectSon Is calfeda Valley.
Orcul.r JlQIJsC3rrfca1Idordcmlc31roofs..
IfthaeIs m«e dwItX7e 5tcry, the fL1t; roof
qfthe ~ stcryb.:comes the Floor(J( the
stQry~.lfthe fYX!fextenJs b.:yond the
wall tJrztsuppa-tsIt, the projection15 called
the &;es. Ifthe W31al5oproj~cts to suppon
the ~ (J(the roof. the projection is
calJtJ;/ComJce. Theprincipalmember(J(a
ccmice. JIIhJchproject5llf:~ a5heJfandcrO'Nr15
the IQI, is c;tIIeJ;/Corona.
Wans 3rC ger.er;HiyI1I3de Wfd~r}U5tat the
bottom5<);15 togetabetter b.:.arlngon the
ground T1r5projectItXrIs the Ba5e. Asimilar
~ atthe tq7IscalJed;/ CiIp or.IfIt
project6 nJCh.aCcrrke, ;15 h35 been said. A
low".,IsakJA r~ Ashortpiece rJf
"an.iIboIrt.25 bng.25/tIs thIct15 calida
rcs:..3IIrIlflt~5<JfT1ethI"9.a
,~theprt~ It6 capanJb~15
thaT theOle. AtalpestIs canedaPIer, IfIt Is
5qlI3~;ndaCdumn IfIt Is round. Wp5 (J(
pierSxtIcdumnsxt c.alledwpftals. and the
p-t~ theC3p andthe ba~, the 5h3ft.
The M ~ marIber(J(3 C3pitaJIs c.al/ed
the~.
Abam tit3t 5p311'5 the spxe Pmrun two
pIerS orccJumns orb.:twetn;lpierorc.dumn
MJJa tIr.1ils aJIJedJill ArchJtrav~, or EpiStyk.
Abc¥~ fC. ~ thearchitraveand the
CCJmIa. tha'eIsgeneralfya11tti~ strip ofwall
(.;J/f~ the ~ ArchItr;ve, frieze, and
&ornJce~the~A~
cfcolumns Is C4i1eJa CcIontude. The 5p3US
~pierS orcoVnns ~ sometimes
5p3m.e4Py.Jvcks,A ~s (J( which Is c.alled
3f1~
The spx:e~ ~paralfd wansl5
~ ~bya sa-trJfc.?r1Unuou5
3rdI c.;fIeJ;/ Y.at~ In5tt.3drJfbyafloor or
reef.
The Wa( the PIer, and the Cdumn, WIth or
irlt:hovt the pede5t.aI. COr7'StItute th~ chief
~memb.:rs.· the Frle:ztandCornice,
fIrltIr therooftit.7trestsupon them,
~ thechidptofthe load they
urry, The ~ the keres, and ~
Spandrds fcmI partcfthe 1caJrel3tJy~ to
WtIs ~ tMrJ. Mar~ SUpporting
members~i3tJVe to wh.1tIs a/Joy~ them.
f3e5kks ~ valu.1b1e35;1 sh~IUr, abuilding
ff!3y be In It6df;/ noble mddelightful obJ~t.
:Jndarchitects ~ bvilder5 who, bygMnq a
Pvd&ng p:JproportJcnsand flroe details. and
bytm~ ""~tJfulIfl3tma15,11I3i~ It
rafU3&1e onl'tSl7Wnacccl(Int..ln«pendentJyof
ft5~.
-William Robert Ware
(he American Vignol;
The vertical extension of al7ulldlng orother
construction aDove the foundation.
BUILDING
Arelatively permanent enclosed
structure constructed over a plot
of land for habitable use.
~
uperstrLICture
! ,.------,c::z;~~~
l
•munJation
~ubstructure ,
The underlying structurefor~g the
foundation ofaDuildlng or other.,
construction. . .
system
Agroup of Interacting. Interrelated, or
Interdependent things or parts forming a
complex or unlfted whole, esp. to serve a
common purpose.
)1
BUILDING
(
I
!
I
.

i
~
high-rise
Descrll1lng aIrolldlng having a
comparatively large numl1er of stories
and equipped with elevators. r->..
-' __..i ____----,~
fFTI::.--___L--f-
..._--1':t;~------____f
story f 1 ~ yF? i /
Acomp~ koriz.o~ arvision of a I ! /~ ".
I1uildi~.~"4 acontlnuous or nearly :
continuous floor ana comprising the . :
spa~ l>et;.leen two 1acent levels. ··i
:l
1111 1111111 !Ill I!
( .....7'
- - - - - ' -
II
[HI-! IHH
n~ n :iTt ,m ni iii nf nr nr nr rtf' m nr nr Mn
; )J lh. I I I + f+ rt- II' f f J I I' I 1/ TI i 1
low-rise:
DescrlUiog ,;a I1ullding having one. two. or
three stones and usually 110 elevator.
One of the upper floors of awarehouse or
fa~. typlcal~ unpartltloned ana
sometJmes converted oradapted to other
uses. asl!vlng a.uarters, artists' studios. or
exhi!:>felon gal!eries.
loft ~ikiing
A?tJ:!dlng haVing several floors with large
areas of unobstructed space. originally
rerrtea out for ~ht Industrial purposes and
r.aw fre'.uently converted to residential
OCCt;p3r.cy.
o 1
-
-
-
-
f---c.
f---c.
f---c.
f---c.
I---
-
I j
I
j
1 j
I
i
L1
J
I
LJ
I
[]
I
J
J
, I
U
I
I
I
;
I
1
_..J
L
t. _
f
L
L
,
L
r
I
k
·crawl space ,...,.,."
An area In abuildIn!! hJvl"9 aclearance
less than human height. M accessible
I1y crawhng. esp. such a space below the
flrst floor that Is enclosed by
foundation walls.
cellar __J
Aroom or set of rooms. for the storage
of food. fuel. or the like. wholly or partly
underground and usually be'neath a
bulk/ing.
cyclone cellar
Acellarorother underground place for
shelter during violent storms. as
cyclones. torna.ms. or hurricanes. Alsa
called stann cell.1r.
l1ulkhe3d -.__......__•.•........-..._-'/
/
.rttic
Aroom or space directly under the roofofa
Pullding. tsp. ahouse.
luffeltory _._.. _
..._
.....-._ .........'..
Ausal7le living space within a sloping roof. ",
usually hav~ng dormer windows for lighting.
:" floor
BUILDING
Acontlnuous supportl"9 surface
[ f Ahorizontal or InclIned door overa
~ .~l__________~____st_a_/~
__
aY_g_M_n_g_~_c_~_s_to__
a_ce_"a_r_.____=-__________________~
. extending horizontally throughout a
: bulkllng. havl"9 a numberofrooms and
; const~utl"9 one level In the strocture.
-$--
l
;-.- mezzanine
! Alow or partial story Wtween two main
: stories ofabUllalng. ~p. one that projects
i as ablcony and forms acomposltion with
, the story beneath It.
-B---
r-fi~tfloor
! The gl"O'Jnd floor ofabu!k:flng. In 8rltaln and
: elsewhere. the first floor IStilefloor
I Immediately above the ground floor.
--;-.. ground floor
: The floor ofabu/ldlng at or nearestto
ground level
;'" pasement
: Astoryof abuilding that Is wholly or part~·
A below ground level.
..;.+:--l-_ _ _ _ _ _ _ _ _~_I___ _ _ _ _ _ _ _.... _ _ _ -v-
areaway
Asunken area affording access.
air. and light to a!1asement door
or window.
I
subbasement
Arry story or floor below the maIn basement
of abuifding
BUILDING
~~~~~~~~~~~~~-..-.......- ....--.------.----
J="
I
The front ofa ~ulk:llng orany ofIts skies
facl~ apu~hc wtrj or space. esp. one
dlsUngulshui by Its architectural
"',:reatment.
""
","""""
~ ==
I
I·
:
I
""""""",.,
""'"
~"~~~==::S
r- pavilion
~ Acerrtr31 orfIar.l:i:-..g ?ro}xt~ su~alvlslon
: ofaf:3C3de. us~i!J ~tea by more
elabor3t.e decon<;:cn or gre3W hel9ht a~.d
distinction of ~~r,e.
~~~=~~~~~~~~~~H stcr"f
tf I !Amajor ho"';.zontal archlt.ectur31
fenestration
The design.
proportioning. and
alsposltlon of
windows anaother
exterioropenings
of a ~ulldlng.
. dlvlslon.•5of 3 fac3de or the w.ii
~~.Q,d~~~!",g.-'b'l=F~A9~n~1 ofa n.ve..
~~==~~~~~~
pay
Ar'rJ of. 1~mper of prlr.clpal
alvlso(l5 of • wall roof. orother
part of;; ~Ji1d1~ rnarl:~ offby
vertical or tr;;nsve~ supports.
bll~r"f
Aft'Ia]or horizontal dMslon ofaw;; il
havl~ no m.erlor windows.
I7lind
DescrIbi:'~;; recess In awall havi~
the appe4r3nee ofawlndow (~l1rJ
wlMcw) or Joer (Plln4 door).
Inserted to c.omp~ aserles of
wlnOows or r.o provide symme-try of
Je~n.
nnnn
24
,Ii
fronUspiece
Aprinc!p31 fac3de. or a part orfeature of a
facade. often t~ as aseparate
elerTl!rTt of tl-.e des~n 3nd highlighted by
OrT1a~ntation.
nlsefront
A~ falstfyl~ the size
or lmp:lrtance of a ~Ildlng.
~alccny
An eb7ted platfonn
projectl~ from the wall ofa
~~ and enclosea by a
ram~ Of p3rapet.
!
1
1j
d
u
U
I
l~
i
l..w
I
L
L
r-
I
l
,-
#lfJ
Ar.a~ p~tfunn. appro;;;;heJ by steps
$Oft1etl~ having a nxrf. at the
ofahou~.
 ~n usualti roof;J~~d
pt1yenclosed. 25 by araUir:g. often
~1"4 across the front and sldes of
a ~. A!so.;erandab. i
t~,;1.esp.afully fuml:shd 0 e
used 4IS a livI~rOOm.
t~A
An open. unrociea porch or ~tform
~ng fl"Ol1 a hou~ or ~r
BUILDING
l
~~~
~ ~ ~ ~
. f== I- r=
r-
~ ~ I::::
:p6~1?:1
An ~r appendage to ai1ulldlng.
forml"4 Ii covered approach or
vestlpule to adoorway.
r-~I1i£g,J
Aporch having a roofsupported by
. columns. often leading ta the entrance of a
~ulldlng.
~ IcnrWer/
rseriesOf re~u13."'Yspaced columns
supportIng an er:tJNture and usually one
sIde of a roof structure.
lf05te~tq
-A prfvateorside entrance. as 011(: for
.'.< peaestrians next ta a porte-cochere.
::~:;:.; r--- ---. ------ -.- ,-_._._ ... _
..........2"fO~hert: •
-/.~ : ' " A porch roof proJdtlng over a driveway
.~>;: at the entranceta a lnJlldlng and
!-" I shelterjA!tfho~ gettlng In or out of
ve.bIcles·;A1Socalleatarrt.ue porch.
fJ L") f· ..~. . . .
1 I
I :
i ;
(#:;::::::r::::.:::::::~)
~ng. --.-------.--~
portal, .
Adoorway. ga):e. or entrance. esp. an
ImposIng one emphasIzed by size and
stately archltp;tural treatment.
25
BUILDING
•••1. : •
rotunda
ArC1Jnd. domed pullding. or alarge and
b~h clrcularspau In such apuJldlng. esp.
or..! surmounted l'Ya dome.
~
AP-.lltalng orstructure hIgh In
proportlon to Its lateraldImensions. .
~ standing alone orformir.g part of
a lorgtr I7ulldlng.
Ploc1:
II ~rge buildIng divided Into anumberof
~me a~rtments. offices. or shops.
~~ - ....................... .
AcOOnnakd orarcaded space within the
body of a~ng !lut open to the air on one
~?ften at'an upper story overlooking an
~ccurt.
rUM no17i1e _...-................00 • • _ · · · _ · · • • • • • J
The prir.clpafstory ofa large ~ulldlng. as a
pal3ce or villa. wtth formal reception and
din~ rooms. u5~1ly one fltqht a!love the
~floor.
corU!e •.---- ...... -- ..-- --... - -----. --.
A br~ or principal courtyard of an Italian
palma.
26
sL;b
I_l
,!'
piloti _:._..i
---- Anyof aserIes of
columns supportIng a
pulldl~ arove an open
ground level
ell
AwIng at right angles to the length of a
pUllding. Also. ef.
wing
Apart of a buildIng projectl~ from a"4
sul10rdlnate to or main part.
A~..anqu"r ~Ji!dlng h3V!r-qlittle width
~
..., respect to its length 3na hetqht.
patuza
Alarge. Imposing puplic ~JM'~ ~ priV3':.e
residence. esp. In It31y'
[.,
.: ,
:. . court
., An area open to the sky and mostly or
_~entlrely surrounclea by walls or I7ulldlngs.
atrium
Askiit. central court In a
buil.::li~~. esp. afarge Interiorone
bavl~ aglass roof and
surrc~ -Jed by sevml Stories of
galb'es.
atrium
"
L.fi
An open. skylit court around
which ahouse or bultdlng Is ~ullt.
D
courtyard
Acourt adjacent to or wlthfn a building. esp.
one enclosed on all four sIdes.
patio
Acourtyard, esp. ofa house. enclosed by
low I1Ulldlngs. arcades. or walls.
I ~
I
I ~
L
y
L
i
L
I
l _
r
t
e._
.-
f
L
i-_
L
r
i
L
]
L
r
f
iL
[
I
L
r-
I
cbim
To assert Of' demand re~nitlon or
possesstcn.
merge
To comlnr.e. !knd. orunite ~radU311y by
stages so 3S to I1luridentity or
distinctions.
pL1Z3
Apul7llc 5qUJre or open space In a
city or town.
'luadrangfe .•- ........-....-..............
Asquar~ or'tU3aranguiar spaceor court
surrounded ;,y3 bui!dll19 Or I1ulldlngs. as on
a college CJmpus. Also called quad.
941llem
Aspaclo!JS promenade. CCIIrt. orIndoor
maR. usuar1y navl"9 aV3ulted roof and lined
with comrr.erci;;ll establishments.
pro~fUde
An aro;I use.dfora stroH or.wall:.esp.~n
3 .•'
pul7Hc p!xe.lS for p!easu~ or dlsp!ay. .
Jllee ~
French tern for a broad
walk planteJ ",itn trees.. /" ~ I i
.' p ~"
front
To face In a specific direction or look out
upon.
Jri?or _ ....- ............_-- ......-..... _.... -..
Ashelta c.f shruPs ana17r.lllches orof
bWcewor1: Irrtmwlned with cl1mlnl19 v1n_~~ .
d flowers. . ~" ~ .
uellis
Afume supportlng open iattlcewon:. used
as a screen Of' 3 supportfor ~rowlng vines
or plants
I.3ttice
AStructure of crossulstrlps arranged to
form a rt:.3JiJ r p3ttem of open spaces.
pergola .
Astructure of parallel colonnades
supporting an open roof of Peams and
CrOSSl119 raftus or treillswon:. over wHich
cllml1lng plants are trained to grow.
orientation
The position of aDuilding on 3 site In
relation to true north. to pOints on the
compass. to aspeclfiG placeor feature. or
to localconditions of sunlight. wln:~and
BUILDING
folly
Awhimsical or extravagant structure built
to serve as aconversation piece. lend
Interest to aview, or com memoratea
person orevent.
pavilion
Asmall, often ont3mental bUilding In a
garden.
gazebo
Afreestanding roofed structure, usually
open on the sides, affordll19 shade and rest
In agarden or pari:.
r ~Ivedere
I[J[ If aS0Rf-H....... Al7ulldln!J, orarchitectural feature ofa
11ullJlng. des19ned and situated to look aut
upon 3 pleasln!J scene.
topi3ry
Clipped or trimmed Into ornamental arlO
fantastic shapes. or the won: or art of such
clipping.
27
r
j
~
r-
!
t
r
i
r
r
i
r
r
I '
f
i
'-I
r
r
i
I
(
i:
~
f
I
[
f
t
I
..;
I,
I
I
I
CABLE STRUCTURE
sU5penslo~ structure
Astructure ofcal7ies suspended and
prestressed !letween compression
meml7ers to directly support applied loads.
suspension 17ridge
AImdge having ad,e.c.I: suspended from
cables raised on towers and securely
anchored to abutments at the ends.
~ ~
single-curvature structure
Asuspension structure utlllzl~ aparallel
... ' . ' . ' series ofca17les to support surface-forming
.. _ l7eams orpl3tes. Asi~le-cul'V3ture
structure Is susuptlule to flutter Induced
. by the aerodynamic effects of wind. This
~ ~ lia17i1itycan l7e reduced by Increasing the
~ ~ dead load on the structure oranchoring the
primary ca17les to the ground with
~.
...
.. ~., transve~guyca17les.
.. ;-=~~~
.~ r it~ ·
~;~~!~a~~~~~~~~;;I---------~'" ~..~
component of thrust In asuspension or ~ ------~- n~
cal:>le-stayed structure and..n. v ,-_.......,;:;~
transferring the force to aground
foundation.
Avertical orinclined compression
rneml7er In asuspenslon or cable-
stayed structure. supportlng the sum
of ~ vert.ical forcecomponents In the
primary aMgfl'JcaPles. Incnning the
mast enal:ks It to pIcl: up some of the
hortzootal cal:>le thrust and reduces
the foru In ~ guyca!rles.
double-cable structure - .--.- - -..
Asuspension s~re having upper
and lower sets of cables of different
curvattlres, pm.ensloned by tles or
compresslon struts to make the
system more rlgk:l2nd reslst3nt to
flutter.
I
I
primary cable
One of the pretenslooed
cables directly supportlng
the load on 3 suspension
structure.
i--------------.-.-...- secondary cable
L .. bound2rycable
011e of the pretensloned
cables used for stal:rillzln
a5uspenslof'l5tructlire
against flutter, uS1J311y
having acumture
oppo$fte to tha t of the
primary cables.
Acablefor ~nchorlng aset of secondJr)'
cables In asuspenslon S""
....JCture.
C3ule-stayed structure
Astructure h3Vln~ vertical or Inclined
masts from which cables extend to suppcrt
horizontally spannIng members arranged irI
aparallel or radial pattern.'
---------
douule-curvature
structure
Asuspension structure
composed of a field of
crossed C41l>leS ofdifferent
and often reverse
curvatureS. Each set of
caufes h3s adifferent
natu:"31 ~rIod ofvlur3tlon,
thus formlog aself-
dam~nln~ system that Is
more resistant to flutter.
29
., (ElLING
The overhead interior surface or
Iini"4 of.1 room. often concealing the
underside ofthe floor or roof above.
~ CQVe Ut1~ ; -
~ Ace!ling hMng;l cove. Also. caved 71"-'1
ullifli· /,/ ;
C()Ve _ •........•.•...•.••.•.•................. ~/'.
A CO~ surfue fonnln!! part of•
celh"i at Its ~ so as to eI1mlnat.e the
usuallnt:enor angle ~etween the wall and
the celnng.
30
o
plafona ,
!?eam ceiling
The unac:rslde ofaftoor showIng ~
supporting I1eams arid finished to form a
ceiling.
jcoffer 1
One ofa number of recessed. USu.iily square
oroctagonal panels in ;I ceiling. ~. or
vault. Also called c.alsscn.i.1curur.
'; bcunar/
. Aceiling. soffit. orvault adorred Mt-h a
pattern of recessed p:onel5.
Aflat or v3ulW ceiling ofdecorative
character.
iU
I
i
!
!
I
1u
}
i
I
l
(ABLE STRUCTURE
Astructural system utilizing the caHe
as the principal means ofsupport..
cap~
AflexIple structural meml1er. as wire rope
or ~'chaln, having high tensile strength /
IxItoffering no reslstanee to compresslon
Or~g.
i
!
funicularslupe ...j ~
The shape assumed Vi afruly cleformlng
C3Pe In directresponse to the magnitude ,••".".".".,
and location ofexternal forces. Acaple
alw-ays adapts Its sh3pe so that It 15 In pure
tension undertheaction ofan applled load.
funicular polygon· .,._....................../
The wpe assumed Viafreely cleformlng 0-----------,-,0
~ In direct I'tSf'On5e to a set of ~, ........, ,-'
concentrated loads. ' .......... ",' ,~t
l '" -,' '"
-+-.' , '------,,' /'
~":~:::;ed;;~·i~~:ki;~·I~~······-···1<'",.... . /<~;J
C3uelndlrectresponsetoa uniformly ~~"" ,".,' / 11-
J"tStrIbuteaload. . ",,- ,---" ,./ Ii
~r;.;;~~.~-;;;i.;~.~~~.-----.-._--;~:--.-;:iLl
uniform cal7lesuspendeafreely from two r.m~'"
polnt6 not In the same vertlcall1ne. For a
load that Isuniformlydistrluutea In a
~I prqectlon. thecUrr'e approaches .
~ ofap3r.1rola - .•-.-•.-..... --.- •.•.•..--- .,-.•.-.---. - •..•-.••---..........- ....... -.... "._" ..•..._.....,;
8uttresses. -.-......•...-...--...
~5tnJts. -- ..-.•--•.••-.--.-.-..•'"
orsnbrelements~re rtflufret/ ~ contJfn~nJ ".;
~thehOitz0nt3IC1)mponentsqfthe~/lIe "'"
thrusts. """
~~mbl...uum~r-.""""'-
28
Alens·shaped structure having the
outward thrusts of an arch ualanced by the
Inward pulls ofacaple. resulting In no net
lateral forces at the supports.
.' sag
Theyert~31 distance from the supports to
the lowest point of 3 cable structure.
As the 5Jg of3 CJb{e incre35t:S. the Inte.maJ
forces dtvtloped in the uble dXre3se.
funicuL1r structure
,.. structure shapea to carry or
support agiven Ioadlng Vieitheraxial
tension or compression. For arry
!liven loading condit;1on. there Is only
~ general funicular shape. If the
L:ndlng pattern ella nges. bendl~ Is
iruJuud In the structure.
I
!
Ii
!
j i
u
LJ
I
I
I
L
f-
i
!
~
~--
r
I
j
r

i
r
r
j
r
r
r
r
I
1
f
i
,-
i
1
i
c'
dropceili~
A ~ry cel~ formed to provlde space
fer plpln.g orduC1Jl!ori. or to ~tter the
proportions of ~ room. Also. dropp~
uili"i- --------_.
, CEILING
suspended ceiling
Aceill~ suspended from an overhead floor
or roof structure to provide space for
pipes. ductwork. lighting fixtures. or other
service eqUipment.
. '. :' ;":';.~:........' ~•.;.... :.; ~:.:~. :,;,.., .":.' .:.~: ~ ~:,'.:~':;~~ ~'.:.7,:':=;::;,',,1 ~~! ~:'.:<;.)~::!'::':, ..'.•··.l·-~ ~.;: ',:) ..:
..:':...·.2.:..·_~,~l
~========:::;:========::::::::.::::::::;::z:~:ti:::::o::::::q:±:::::::::::::~:;:j:;;:i:::~~~~::iz.:~i:::c:b~2:z:c~~~=:±:~-T"- plenum /
accu5wltik
Tl~ made In v.rlous sius anJ textiJres from
asoft. 5OOnd-~!?sorVlng matertll. 35 corl
mlnenf f1w. or ~bss f1l>~.
metal pan --------------------.-----------
An~stlcaltl~cons~ofasteelor 
aluminum p3n having aperfonted fau and
cont3lning a5epante l3yer of sound-
al1sortl119 material
---- cross tee
Asecand3ry memberof the grid supportln~
asuspended ceiling system. usu.ally a
sheet-lretal tee carried by t~ main
runn.ers.
-----.- m3in rtJnnu
AprlllClp31 rnemDerof ~ grid supportlng a
suspended ceinng system. usually a sheet-
metal char.nel or tee suspended by hall9er
wires from the O'>'erhead structure.
. -.- spline
Athin metal str:p Inserted InCO the edges
of two acoo5~31 t;ile= to ma~ a lrottJolnt
between them.
11I1i!!i;IIIIIIIIIIIIIIIIWrr- ------.--.- kerf /
"
lumina us ceiling
A sus~nded ceiling of t~,~slucent PJr.els
for diffUSing the light frc-r, !umlnaires
mount.ed above it.
Agroo.-e cut In c.o the edges of an acoustlcal
tlle to rteelve aspline orT-shaped m~~r
~rt1~qrid.
(j~r mebl uiling
Asuspended ce:1I~ system of narrow
metal strips.usually Incorpornl~ rnodul3r
I19htl/l4 .nd alr-nanJnll9 components.
;II
~'5...;
JJ
:)
~ .;)
~~
A'S;.. ~ .;I.
#
~ 4. ~~
..;
A
~
,<~~
louvered ceiling
AsusperJed ceiling of multlceUular louvers
for shle!d11l9 the nght sources mounted
above ft.
1 The space petween a suspenaed celilng ana
_! the floor structure apave. esp. one that
serves as a recelvlll9 cham!1erfor
conaltloned air to pe dlstrl!1uted to
Inhaplted spaces odor return air to pe
conveyed pack to acentral pl3nt for
processln~.
acoustical ceiling
Aceilln!! ofacoustical tile or other sound-
absorbing material.
texposed grid 1
Ametal grid of Inverted tees suppartin~
the acoustical tiles ofasuspenaed ceiling.
, recmtigrui' -.1
Ametal grid for supporting a suspenaed
celhng ofacoustical tiles haVing rapl:>eted
J?~~. -----
~ .
pconccal&:J grid ~
Ametal grid suppOrting the acolJstl~1 tiles
of ~ suspended ceiling. hldcfen within kerfs
cut Into the edges of the tiles.
Integrated ceiling
Asuspended cell1~ system Incorporating
~~§~~ 1igh_~n.9•..~11<;f alr-l13ndling_
£QmponentsJnto.a.unlf1ed whole...
linear diffunr ~
Along. narrow dlffuserdeslgned to
disperse air through slots l>etween the
panels of an Integrated ceiling system. Also
called slot diffuser.
31
(EMMIC
Any ofVArious hard.lnittle. noncorrosive.
and ~UGtlve II'I4ttrbls formed by the
k?nlc rondng ofametal and 3 nonmetaf. as
In"!d:.~. and rl4tul'3lstone.
cu..micware
Arty ofnrlous products made by firing clay
or similar NttrI3ls In akiln. as !nick.tile.
andpc«cy.
flri"i
The process of hardening or glazing ceramic
W;i re by hating In • kiln to aspeclfled
temperWJreo
earthenware
low·flred. opaque. nonvitreous ceramic
ware.
stoneware
Hlgh.flred. opaque. vitrified cel'3mlc ware.
vitrify
To make aclay body vitreous Pyflrlng ata
specifled temperature.
D
b
lurd·hrnea _........... ...... ............ vftreo~
Ared ~. high temperature to near Reseml1llng glass. as In tl'3nsparency.
Yltrtflr..atlon and having relatively low hardness. l1rlttleness. luster. or having low
apsorptlon and high compressive strength. or no porosity. b
6·
5Oft·l7umed _................_..........-: semlvftreous
Fired ~ • low ttmperature and having Having arnodel'3te wattr al1sorptlon of
relatively h~h 3Vsorptlon and low shghtly under 61.
compressNe strength.
nonvitreous
Having awater al1sorptlon greater than 71..
32
porcelain
Ahard. vitreous. translucent cel'3mlc
material consisting essentially ofKaolln.
fek:lspar. and quartz.fired at avery high
temperature.
china
Atranslucent ceramic material, I1lsque·
fired at ahigh temperature and glaze·flred
atalowertemperature.
kaolin
Afine white clay used In the manufacture of
porcelain and white portland cement. Also
called china clay.
enamel
Avitreous. usually opaque. decoratlve or
protective coating appl1ea Py fusk)n to the
surface of metal. glass, or pottery.
porcelain enamel
An opaque. grassy coating ponded to ~~
....I
by fusing at ahigh temperature. Also wiled
vitreous enamel.
ceramic bond
------ - -------....
,/ " A thermochemical rond I1etwun I!13w...ls
/ '" resulting from exposure to tempetAt~
/ , .' "',, '-. '" . approaching the fusion point of the mtx-'"...I,;re.
" .: }~,,~.~,'"..': 
~
.,~~A~.~:~... -...~...- body
'. <- ;:":,~:' , ) The structural portion of aceramic ar--..<t:
, .....•.,,_... / ~!~~aymaterlalormlxturefrom ~,,~ it
"'''''I!I!II--••~~
/ ·l1l~ue..fired
Fired to harden aclay Poay.
bi,,ue
Earthenware or porcelain that h;;s p~
flred once put not glazed. Also called
W&allt.
glaze-fired
Afused or partially fused material that ts
ground to Introduce asolulile or unsta~.e
Ingredients Intcglazes or enamels.
I
l~
I '
t .i
,
I
t
l i
I
U
I
I
J
o
I
L'
I
t
t
L
trimmer
Any of various specially shaped ceramic
tiles foe "'5hi" '""",,'""'"1 9
.~.#."
.... ; ..., ~ ............... I ......·····
....~ .......-
--," -N-O /"
..n~~~a~ "-"~"~I'=~~~~~
Aco.'ed tk setat the meeting of afloor Any of tM ceramic or nonceramlc articles
and wall to prevent 3CCumuf4tlon of dlrt designed to Pe affixed to or Insmed In
and to facll1t3te cleaning. tllewar+;. as tower I7ars. saap holders. and
the like.
t;'Nk~"~":~
thlck-~et process
Atllese'ttlng proussln which ceramic tile
Is apphed OVer' aportland cement mortar
Pea ¥..to 1Vzln. (19 to:3a mm) thlel:. which
allowsfor murate slopes aruf planes In the
finished war+;.
portland ument mortar
Afield mix of portland cement. sand. water.
and sometimes hydrated lime. used for
leveling or setting ceramic tlle In the thlc~·
set process.
U ~ndcorl
Athin coat of mortarfor rondlng ceramic
tile to aI7ading.
t- ,..-
I-- -
I-- ,..-
.-_.
1
1-----;
_'~
_........
c--;
I-- -'
: I I I I I :
I I J J I
I--~
I--t--
f--~
I
..
f--~
r--~
r-t-
f-- t-t-
~ r-t-
I I I i I j
.LI.J.J !
thln-l7ed prou~
Atllesettlng process In which ceramic tile
Is bonded to acontinuous. stable I7acklng
with athin coatofdlj'-set mortar. latex·
portlandcement mortar. tp<JY:i mortar. or
an arg3nlc adhesive. '132 to '/aln. (008 to
32 mm) thlel:.
tile grout
Acementltlous orresinous mix for filling
CERAMIC
/ uramic tile
Anyofvarlcus fired clay tiles used for
surfacing walls. floors. ana cauntertops.
/ glazed wall tHe
Ceramic tHe h3ving 3 rfonvltreous Pody and
aI1rlght. matte. orceystailine glaze. used
for surfacin~ Interior walls and IIght·duty
floors.
/ ceramic mosaic tile
Small ceramic tile haVing a porcelain or
naturalclay Dody. glazed far surfacIng walls
or unglaztd for use on roth floors and walls.
and usually face- or Pack'mounted on
sheets to fac~rtatc: handling and speed
Installation.
qU3rrytile
Unglazed ceramic floor tile having a I13tural
c14y body. Alsa called promenade tile.
pavertile
Unglazed ceramic floor Ule slmlf4r In
composition to ceramic mosaic tlkl M
thicker and Llr~c:r In surface area.
JOints In ceramic tllework. ---------r
33
(ERAMIC
,t.Mlctur.a1 clay tile
AI-clIow tl~ offtreJ clay having parallel
cells or ceres. used In lnJitdlng walls ana
~s.
,(.B
l..o3J-~ring structural clay tile sult3l1le
for m.asonry walls not exposed to frost
xtbn. or In exposecJ masonry where
protected by afacing of31n_ (76.2 mm) or
mo~ of stone. prick. terra cotta. or other
mJsonry.
" LeX
l.o3d-~rlng structural cf3y tile sultal1le
for IT13sonry waMs exposed to weathering or
frost
~ terr.1~o;
An.ra. fired cby. reddlsh-prown In color
whell unglaztJ. used for architectural
~s and ornaments. tl~ units. and
potttry.
~ ~rJlterr~ cotta·,
n.rJ-~rned. glneJ orunglazed terra
ccu.. hand-molded or machine-extruded to
or~ as.a cer2m1cveneer-for wans orfor
~ntatlon.
"'";:':-;-:-._:~:p";,:,,,T:~:-:·~­
r- • ~';:t~!::,:-!-;:"Ii:C~ - -"","
"J
.~
~
IIP.-J..
,adck'"'J
Sun-dried urick made of clay and straw.
~Iy ustd In countrieS with little
,.Infan. .
structuraIfacing tile
Structural clay tile having aglazed surface.
used for facing walls ana partitions. esp.ln
areas subject to heavy wear. moisture
problems. and strict sanitation
requlrements.
frS
Structural facing tile suitable for e:xposecl
exteriorand InterIor masonry walls ana
partitions where moderate absorption.
slight va~~f~~dlroenslaJJs~ mlnor_
3efects In surface flnlsh..3nd medlum color·
,!ng~~re~~~a~ie,
FTX
Smooth structural facing tile suitable for
exposed exterior and Interior masonry W3l1s
and partitions where low aJ??9.rp1Io.n ana
stain resistance are required. and where a
high degree of mechanical perfection.
minimum variation In fau dimensions. and
narrow color range are desired.
rammea~rth
Astiffmixture of cf3y. sand or other
aggr~ate. and water compressed ana dried
within forms as II wall construction. Also
calleJ plse. plsay. plse de terre.
~- . . --,.~
- ;
l j
I
u
I
I
u
i
~
L
I
1
1
r
!
L,
I
L
I
I
L..
L
L
L
I
I
L
I
I
I
L
l
!
L
I
Ch~nity
The~. rounded on the teachings
ofJesa:sChrist,lncluding theCatholic.
Pro~t. 3nJ ~tern Orthodox
chu~ •
P3SiJka ---:......- ....................
An e~Chri5tlan church.
ch.arackrtzea by along. rectangular
ptan. J ~h coIonnad~ nave lit I1y a
cferestofy andcoverea I1yatimbered
gable n:lOf. tMJ or four lower side aisles.
asemlci"cul3r~ at theend. a
113~3tIJ often otherfeatures. as
an atrtlln,,, ~. and small
semlca'cutar3pse5 terminating the
aIsles.
~..~.'it..- ...-.........--......--.-----..--...--..---.--
Tliefmurtofan early Christian church.
flankedorSumllJnde& by.ffrtiCOes:f
b'~.fifJ·--..-·-.-·---....--........-----......
The ~d w3~ofan 3trlum or cloister.
!i~~-:;i-.-.-- ...........-.-.-.--.--.....--.-.-----
/..~asit~tor ~ rttU31 cleansing wIth waterIn
the atrltJm of3n early Christian basilica.
-I· __ l
• .j !
j :
• • 4 _ _ •
baptl5ttry
A partofachurch or 3 separate
~ In which I7aptlsm Is
administered. Also. ~aptistfy.
i13,rJ:5m
A ~ntofinltbtlon Inta
Christianity. symroncof splrituaI
~ner.Jtlon.llUrUd by aceremonial
immersion or"Ppl1c4t1on of water.
, ~~;j---...--.---.-...............
The partied .1efore the nave of an early
Chrlstl3n orfyz3rrt1ne church.
appropriated ta ~nftents.
eson.arthex .,' t~.. ' t. "
An InMr narthex when two are present.
exonarthex /' C~'.~~{
Acoverea walk orouter narthex
situated before an Inner narthex.
font H
A Pasin. usu.allyof5WIe. holding the I
water IISed In VaptlSm. .
Iccn
A representation of3sacred Christian
Person.l¥. as Christ or asaint or
angel. ~lcally palntea on awood
$(J rf.ace31Id Itself vener3ted asDe1
ng
sacred. esp. In the tradition of the
Eastern Church.
iconostas(, --
ASCrutl or partr.lon on which Icons are
placed. separating the bema from
1
the nave
of an E.astern church. Also, Iconostas.
I-CHURCH·
Al?uiUling for public
Christian worship.
r*'~f
I' Ase-ll1lclrcutarorpolygonal projection ofa
~ulkllng. uSU311y vaultedand used esp. at
the sanctuaryoreast end ofachurch. Alsa.
apSis.
...~ .,t.- ... /
..... •.trivUMY
.'-' • -The bls~p's throne. occuPYing arecess or
apseIn an e3r1yChristian church.
·.....·-..1I7emJ'
Atransverse open space separating.the
naveand U!e3pseofan e.rlyChrlsti3n
church. develcpi"4ln1;() the transept of
latercruciform churches.
t;jnct@ .~
Asac:ti-¥r~1yplace, as that part of a
church In which the princlp31 altarls placed.
_., ~lU'~j
Theta~leln aChristlan church upon which
the Eucharist, the sacrament celeUr.itlr,!!
Chrl5t's Last Supper. Is ce!eUr.itea. Also
cal~it'tal7~P5
~~ij
The princlp31 orcentral part of a
church. extending from the
narthex to the choIrorchancel
and uSU3llyflanl:ed by aIsles.
tisfe=-4
I'.nYC::of~tk longitudinal divisions
ofachurch. separa~ from the
nave by 3rowofcolumns or
piers.
baldachin / .
An omamet!1:41 caner.; of steneor marbl,e
permanently placed (Ntr the altarIn a
church. Also. baldachino. ~akla'luln. Also
called ciporium. _ .......:
i
1#~ l-............................~.
EltherOf two raised mnds
from i'rhlchtheGospels or
Epistles wer~ read or ch3nted 1n
3n earlyChrlstl3l1 church.
Also. am1?on.
euara - ..:
.~ .....- ~nu
••,/ The sanctuary sp3ce surroondlng the altJr
,/ of an ~stem churcn.
dbconIcon
Asacristy In an e;JrfyChrlstlan or E..aste:m
church. usuafrj on the solIth side of the
!Jenu.
5Uristy
Aroom In achurch where the sacrea
vessels anavestments are kept. Also C3 lied
vestry.
prothesis . '
Achapel In an E..astem Church where the
Eucharistic e~ts are prepared. u5l.:a!1y
on the north side of the bema.
Alarge apslaal extension of the Interior
volume of achurch. Also. exhedra.
35
Aanoped r~s for a
~ IIn3¥orICon.
arcak ---.-----.---~.-- ..... __.....i
A serles ofarches supporte« Oil plus or
cofumns.
arcU.1U
Curved orarched hke aPow: a t"~rm used In
descr1P~ the arched orv3u1i;,;cJ st·l1.lcture
of 41 Romanesque church or Cothlc
C3tnear3l:lis distlngulsht<;,om the
tr"aPe3ted archltectur~of "" Egyptian
hypost~ hall or Greek Doric /:emple. Also.
arcuauo.
36
--- ....."'itra~~
Th~ maJortklnSVer5e p3rtcfacruciform
church, crossln~ the main axis at a~ ht
:lingle lletweenthe n3Ve and choir.
r~pond ___._...••••._
•.••.•__••.__•.••..........1
A pieror pilaster projtctl"9 from awan as a
support foran arch or lintel. esp. at the
tenTIlnatlon ofan arcade or coIonna~.
~pjiu1c:'i-··--··-----·-·-·---·--------J
A Pel! tower, usually one near put not
attached to th~ rody ofa
onTondOlffil
APuI17ous, cbrr.elike roof te1~ating
sharp point. used esp.ln 1(~r;:,.::II~ OrtbAM'J{
church arch~ure to CIJoI.~n?Upola ~y
tower.
:..~~tterY1
. II roofea promenade. esp.
one ~tendlng Inslae or
outside ;;Iong the exterior
wallofaPulldlng.
IIoft·t
, Ag2'11e1)' or upper
level In achurch or
han.
15plr~--·-····
Atall. acutely
tapering pY1'3mldal
structure
SUnTlountlng a
steeple or tower.
lneepltj
II tan omamentaIstructure. usually
enalng In a spire and surmounting the
tower of a church orother pupllc
uulldlng.
t 5~ve churchl
An Ina~noo5 ~ndlnavl3n church of
the 12th ana 13th Unturies, havl"i a
tlmllerfrarne, pf4lnk walls. a~Iered.
stupty pitched roof, ana few windows.
Interlacing arcade
An arcade, esp. aI1Iindone. composed of
arches resting on 31tema~ supports ana
overlapping In series where they CI"05S. Also
called InUrsecth!g arcade.
I7lindarcade
Aseries of arc~s superimposed on 3 waH
for decoration. AI50 ailed arc3UIl'e.
I
!
I.
lJ
p
~
f
I
6
L
I
r
I
f
!
[
f
L
f
'0 - i
i
1
f
I.
t
t
I
f
t
r
t
I
I
i
chancel
lHURCH
~cathedral f
The principal church of ad~, contalnlny
the l1ishop's throne called thl catf1eJra> :
~-. chapel
 Aseparately dedicated part of achurch for
 private prayer, meditation, or small
",religious services.
The space al10utthe altarof achurch
for theclergyand choir, often elevated
aDovethe nave and separated from It _____ ·__ ··_4 chevet
t~~~lycarvedftqureofahurrun or
anlrrul esp. OM wtth lin open mouth that
serves 3S A spout 3M projects from a
gutter to throw rainwater clear of a
~uilJif!. ~--"----T
~win.dow~ - ..-------..-.---.-- ..-.....
Acfrcub;-Wfr,Jow. usu311y of stained glass "
and dae.cor.ltecl ~ trn;ery symmetricaI
•taoot t}.e center.
~~~.
lGt.s5'c..~or~ired by h:avlng
p~.ents !r.lWontolts surface or by
Iuvlr.g V;1rious ~1I1c oxldes fused Into It 'I !:.-
whik: lt1 J Il'1Often statL
~ ;--..-....-----:·-·-..-..----1'j
An;l~stmylnachurch,~ the
nHe arches anJ ~ and
correspondlng to the 5f3U between the ,
V3U ttir.,pr.a the roofof an aisle. I
by aralhng orscrt:en. • '~'~""
chantry
Achapel enclowed for the saying of
Masses and prayers for the souls of
the founders or of persons named by
them. • ------------~..
lapyrinth ------
Am3zel~ pattern
the pavtmentofa IIIC;""C;Y,"-=~.
church.
~7r~;;';;;;;;;;';;;;~;~~.;,;-,~-;----~~~;:~p""h ,~;,;
lnJrl.;! pbce. esp. one beneath the main floor chapel for penitents at the
of. cntJrCh. west end of sorne medieval
E.n9l1sh churches. Also.
o g3l1lee porch.
rood - ..----.......-.-..---- --" --..-·------------·-,"--------7 .
Acrucrfb: symbolizing the cross on whlcn i
Christ .,...3S cruclflea. esp. alarge one set . +
Oirove ~ entrance to the choir or chancel
of ;) rreJ~vJI church.
rood~un ~ .... -... - ..- .... -.. ---
ASCru::1. ~n etlborllteiy adorned and
pr~rlJ' S-Urn1ounted by Ii rood. separating
the cha ~alor choir from the nave of a #[;f~~~~Jff;fL_..J±::tlt=:::d±=:tl
meaie-;31 church.
The rounded east end ofaGothic cathedral.
Including the apse and ambulatory.
.-~ am~ulatory
An aisle enCircling the end of the choir or
chancel of achurch. Also called
deambul3tory.
-..-....... choir
The part ofachurch occupied by the slnqers
of achoir. usually part of the chancel
retrochoir
Aseparate alvlslon behlna the cholror high
altar of alarge church.
:--. lady chapel
; Achapel dedicated to the Virgin Mary.
: usually located behind the high altarof 3
. cathedral atthe extremity of the apse.
high atbr
The main altar of a church.
....-- p~Pyury
The part ofachurch reserved for the
offlci3tl~ clergy.
c~
An enclose& place. esp. the laM
surrouMI~ or beside a~ral
.-------- 51ype
Acovered passage. esp. onektween
the transept and ctIJpter house X a
cathedral. Also. slip.
ch4p'Ur hou5e
The place where the ch.1pterof OJ
cathedral or !Monastery meets, usually
a !?ufldl~g attached to orahall forming
part of the cathedra! orrnon2stery.
ch4pter
An assembly of the !I1On(s In a
!I1Ol13ste1y. or the rnemDers of a
"-,,_ religious house ororder.
'.~"--paradise
garth _
Acourtyard or quadrangle
enclosed by acloister. Also
called cloister garth.
alure
A walk or passage. as along a
cloister or behind the parapets
of acastle. Also. allure.
An atrium orcloister Dc:skJe achurch.
~ ...• cloi,ter
Acovered walk having ;;n arcade or
colonnade on one side opening onto a
courtyard.
37
COLOR ..
,
A phenomenon of light and visu.al
perctptlon that m.ay ~e described in
turns of an indivldU.arS perctption of
hue, satur;ation, and ~htness for
objects, and hut, s.aturation, and
In-ightness for light sources.
~;:-~;,"
.~f':
'r.~;:~t,'
spectrum
The distribution of energy emitted by 3
r3dlant source, arT3~ed In order of
wavelengths, esp. the pand ofcolors
produced when sunlight Is refracted and
dispersed Py aprism, comprising red,
orange, yellow, green,plue,lndlga, and
violet.
,"---. r~color
pale
Deslgnatir..g acolor
having h~h ~htnts5
and low sa';;Jratlon.
I
d.ark .J
Dt5Ignatl~..g • color
h.ivfng low i<qhtlless arJ
law satura~n, and
rtfIectlng~!:i asmafl
fr3ctlon of i.-.ciknt
tIght.
.. :. The perceived color ofan oPJect, k ...mnlrled
I1y the wavelengths of the light ~~ted
from Its surface after selective a~tIon
ofotMr wavelengths ofthe lne~ light.
~eJ~rption -:.
Thea~ofcerbln wavelengths of
t..'e 5ght tIc1dent on acoIore<I surbce. the
retr..alnlng portion pelng ~ or
transmitted..
~uVtractlve color
Acclor produced by mixing cyan.yeflow. 2nd
rnagent.a pigments. each ofwhich a~rbs
cer'bln wavelengths. APafaneed mlxture of
these coIora~ or su~e primaries
theomlcallyyields I1IacI: ~ !t2~
2n wav~~~<?f~Sl~ !Jg.1!:t.<-
~itNecolor
Acolor produced Pycombining lights of ~,_
green, and Irlue wavelengths. These light or
addltlve primaries contain all the
wavelengths necessary to produce a
~ss or~!te light:
38
~rllli.ant
Designating acolor
having high lightness
and strong saturation.
.:IeepJ
Des~natlng acolor
having low lightness and
strong saturation.
r~
I I
,LJ
Munsell System
Asystem for specifying colors arr.l nged Inf
three orderly scales of uniform vlsual steps
according to hue, chroma, and value,
developed In 189817:7 Alpert H. MunselL Hue
extends In a rotary dlrectlon about a
central axis through a spectrum of flve
major and five secondary hues. Value
extends vertically direction from black at
the ~ottom through a series of gr?ys to
white at the top. Chroma extends r3dla fly
from the central axis at which saturatIon Is
zero, out to the strongest saturation
attalnaple for edcn color's hue andV3lue.
hue
One of the three dimensions of color. the
propertyof light Pywhlch the color of an
apJect Is classlfled as pelng rea,yellow,
":.: green, or blue, or an Intermedl3te /;>etween
any contlguous paIrof these colors.
j s.aturation
One of the three dimensions of color. tne
I purity or vividness of a hue. Also called
Inunsity.
~ chroma
The degree Py which a color differs from a
gray of the same l~htne'5S orlnightness,
corresponding to saturation ofthe
perceived color.
ligh~!S
The dimension of color Py which an ol:>,Jut
appears to rt&ct more or less of the
~ Inck:!tnt light. V3rylng from Vlack to white
f' . "j for surface colors and from plack to
~. '. 1 colorless for transparent volume colors.
~-------------- .~:".~'.::-- value
l ,:,~~...~~::~ The degree l1y which acolor appears to
gray SQle ~.t·t{'?1 reflect more or less of the Incident ~ht,
.... sc.1e of achrornatk; C'j.'y.;·'i,' :" ':j corresponding to lightness ofthe perulved
colors h.ivfng several. ra-. color.
usua~ ten, equal: brightness
graa..'"tlons ranging ~.., The dimenSion of acolor which Is correiated
from ..mite to pl.1ck. with luminance ana by which visual stimuli
yellow
are ordered continuously from 'Iery dim to
very plight. Pure white has the maxlmum
Prlghtness. and pure I1!acl: the mlnlmum
Lnightness.
optIcal mixing
The merging ofJuxt3posed dots or strokes
of pure colors when sun from adlst.ince to
produce ahue cften more luminous than
that avallaple from apremixed plg~nt.
II
11
I
I
f •
J
I
U
! !
u
j
U
L
L
J
L
f
L
I
L
L
l
Lr
~-Ir
II
l
,
L
COLOR
color wheel
w.rm
D~s~natlng acalorInclined toward or
dominated by red.orange. oryello::,?'
,  .. r:Jlow /
yellow-green . ___~. yeHow-O~3f1ge
Acircular scale of the colors of the
spectrum. showing complementary colors
opposite each other, Also called color
circle.
,.~ ---/------------------ ~~~m~;~~co!ors.as red. yellow. and
cool •. _._j f _
Des~nJtlng 3 GOOrlnclined toward or
dominated by green.l7lue. or violet.
advancing color •_______ . __ •. __
A warm color that appears to move
toward an obserter. giving an illusion
of space.
rece.dingcplor .--_. __ .__ .___ ••_.
Acool color that appears to move
3WTj from an o~er. gMng an
ftluslan of space.
coler scheme
An 3rra~ement or pattem of
colors conceived of as forming an
Integrated whole.
cowr triJngle
tint .-.- - ---. -- -.--.". ---.. -••- .- ---~
Arelatively I~ht value ofa colqr,
produced by adding white to It.
A triangular dl~ram developed by Faber
6~ to describe the relationship between
a pure h~. white. and PUck, which combine
to y1etd second31)tints, tones, shades, and
9rays. All colors IUY be su:1jectlvely
ccnulved as a mixture of the PSJ'Chologlcal
prirrurles - red. yellow. green. and plue-
plus the achronutic pair of white and blacK.
shade
Arela tlvely dark va lue of acolor.
produud by adding black to it.
plue. r~arded as generating all other
colors.
--- - --••.~-.------- secondary color
----- Acolor. as Ol"ange. green, or violet. produced
by mixing two primary colors.
>f.i.-~--,_ .- •• _'1 tertiary color
Acolor. as prown. produced by mlx!ng two
secondary colors. or asecondary color with
one of Its constituent primaries.
/~----- comptementarycolor
/ One of apair ofopposing colors on acolor
wheel, perceived as completl"9 or enhanclng
each other.
r .analogous color
; One of two or three closely related colors
~_...._._.__.,_._.___.-'-___.__________________1on acolor whee!.
,-------.... triad
Acombination of three colors forming an
equilateral trol19le on acolor wheeL
r 'plit compleme~ry
: J. combination ofonecoloranathe pair of
i colors adJolnlng Its complementary color on
 ... __ •______•_________________________...J acolor wheel.
------~ doul7lecompiementary
Acoml7lnatloo oftwo analogous colors and
theircompementary cokJrs on acolor
wheel.
r moncchroma~
: Having only one coler or exhll7ltlng varying
: Intensities and values of asingle hue.
___ ~ • __ .... __...... ____ .. _____ ...... ____ • __________ .J
r polychromrt.lc
i Having or exhlpltlng avariety ofcolors.
---~ tone
An IntermedIate value of acolor
between atint ana ashade.
• gray
An achromatic color between
white and black.
achromatic
Having no saturation ana
therefore no hue. as white. placl:.
or gray.
39
COLUMN
Arigid. reL1tNely slender structural
memperdesigned primarilyto
supportaxial compressiveloads
applied at the memper ends.
avshlng5tress:f~=P/A -1
_____________L__
pillar
An upright. relatively slender sh3ft
or structure. uS1J311y of prick or
stone, used as a l7ulldlng support Or
standing alone as amonument.
post -----------------.-----------
Astiff vertical support, esp. a
wooden column In tlml7erframlng.
I
r- -. J,ifurc.rt.lon
,/ The critical point at which acolumn.
, carrying Its critical ~cl:lJng load. may
either !?uckleor remaIn undeflected. The
column Is therefore In astate of neutral
equffi!?rlum.
7uckling
The sudden lateral ortorslon3llnstJbillty
of aslender structl.Jral metnPer induced;y
the action ofacompressive load. Bucknng
can occur well pefore the yield stress of U1e
material Is reached_
l7uckling load
The axial load at which acolumn ~ins to
deflect laterally ana becomes un5t4ble.
Underabuct/ing 103d. acdumnC31lIICt
gentriiU theInt:enu{ forces ~ to
resto~ Its orlgln3llJr.arcontIJtIon. My
addltJonaJloading f+'O!Jid C3U5e the c.?lvmn to
kflect furtheruntJcdapseoca;rs In kntifll
MostcolumnsInp7ctJa 3~ ~ to both
com~ andbe:nJir'1due to rnt;tIon in
materlaIpropcrtJe5.lnitbICl'OIXtJr.,zs In
"brlC3~ orsenseeccentricityif 10M
;ppllatJorL ThIs benJln§qfterr ca~ tile
3Ctu41bucl:IlngItnJ to~ slightlybwa- tIt.ln
tirecriticalbudJlng 104d.
r-:-·----·------·--·--- critic.al 7uckllng load
. The maxImum 3xlalloul th"t cart
@IA theorttlC3lly~app~toa column without
causIng It to puckIe. The critical b-.rlllng
Io3d for acolumn Is Jrwerse/y proportk?nal
to the 5qU3re of Its effective length. ana
dIrectly proportIOruIl tothe modulus of
elasticityofthe ~I anJ to the
moment of Inertia ofthecro:ss sectlon.
Also C3ltea Euler ~ &cW.
~----------+----i--- ~Iende~~ ratSo
40
i 5fIort",lumn
Athlcl: column su~ to failure P-y
j crush~ rather than l!y ~uckllng.
: F;illureoccurs when the direct stress
• from an axial load exceeds the
compressive strength ofthe material
ml!;it,.!e In the cross sectk?n. An
ecc-entnc load. however. can produce
knJl~ and result In an uneven stress
distrlWtlon In the section.
!-.._
......_._._--_._._.._._._..._--_._....
intermedlau ",Iumn
Acolumn having amode of failure
between that of ashort column and a
lOng column. often partly Inelastic by
crushIng and partly ei3stlc by
buckling.
The mloofthe effective length ofacolumn
to Its te.st radius of gyration. .• --•. ---... -
The higherthe sJenJemessmto. thelowerIs
thecrltJcilf5tres5 that1+111causeINckllng. A
prlTTl3fj'objectiveIn-thedesignofi cdurnn15 to
reduaIts slendernessmtobyminimizingIts
effectJvelength orTTl3ximlzing theradiusof
gyration ofIts cross 5tCtIon.
long column
f. slender column sul7ject to failure Vy
buckHng rather than P-y crushing.
L 1f7--------.-.-.~ radiu5cfgyrmon
, I ~ The radlal dlst<lnce from any axls to apoint
• {f;; at which the mass ofa ~ cculd ~
r =-.; 1/A concentrated without altering the moment
of Inertia of the bodyabcM that axis. Fora
structural section, theradius ofgyratlon Is
equal to the SoqU3re I'OO't ofthe~t of
the moment oflnertb and the are4_
The highertheradius of~ of3
stnJcturalsection, the~resJst.;nt the
--~ ~on 15 to buckling. ;, Jeta-mlnlng tk
(rO$s-sectlon41sil;pe of3 column, the
objective15 toprovide the ~ry radius gf
gyr;tIon aboutthedfffermt iIXes. For ;n
--...----. J5}mmetrlC31crosssectIOn, buclJln§ w:11 Cend
to occurabout the ~31/5 orIn the
dlrutlon gf the1~5t dimension.
I'
I
i~
b
!
I
...J
ri
I
I
~ -I
1
1·_·1
}
L
f
I
·1
I
i
-l
"
 /
9---+
 ~,
I If)
I c:i
I III
1-'
1 I
~
fixed
[~
eccentricity
=
=
~ .mount t>y which an axis
deviatesfrom a~er pml!el
axis-
p·delta effect __...•_.....___ ...__.._
......._
An aJdltlol13l moment ~ In a ~
stroctural mem~as Its ~ltudll13l axis !
dev13tes from *~ nneofactlon of a
compresslv~ fOf"'"~. equal to the product of i
the load and tr.~ rr.emPer dtfl.ectlon at any .
point.
~.~___ m~·thirc:l MJle ______.____......
The proposition th3t acompressiv~ load '. "~
COLUMN
. .
[~-
~
: . .
• I
: :
I !
'--t-
~nstonl.l ~I:
~
moment = load(P) xeccentricity(e) coml1i~c:l5tresses
Asetoftensile ana compressive stresses
resulting from the superpos1t!on ofaxlal
and benalng stresses at across section of
astructural metT1uer, acting In the same
direction and equal it arry point to their
3lgel7ralc sum.
shc1Jta ~ locaW wlthln th~ middle third of
a horizontal sec':1o!1 ofacofumn orwall to
prevent tensile stres~ from developing In
t,1e section.
··"'·ir=--------T- ~;:'''tr.ll''''of'"Yho",,,,,,I,octlo,
.! i' / of acalumn or wall within which the
-----~---..i'~ .~...-(:' resufta~ ofall compressive loads must
~ ; : ,/ P3SS If only compressive stresses are to be
r--@-.---- effectlye ~gth
: The dlstance re-t~n Irtflectlon points In.
, column su17ject to l?uci:Ill14- The effective
kmgth ofacolumn detennir.es Its crttlc31
~d!Jng load. 'rV'~~ this port!oo of acolumn
~.cides. the~~coIumnfJl1s.




-oJ -l 
C c 
....: Ci 
II 1
..J 
I
fixed fixtJ l
I
: t / present In the section. Acompressive load
I / applied beyond this area will cause tensile
~
. / stresses to develop In the section. Also
d /
. : called kern area.
lamaet' 4 i . 1/
...- ....- kern point
Apointon eithersideof the untroldal axis
---..t !..- of ahorizontal column or wall section
1 • i defining the limits of the kern area.
J
k=O.5 .....~ k= 0.7 -....;
pinned
k=I.0 l=2.0
p~)( 4-
i
1
effective length DcU:lr
Acufflclent ~ modifying t~ actual
~ ofacolumn acccrdlr.g to Its end
ccMtlons In order to determine Its
effxtive Iengt!1. Fixing rot., enasof a1of1~
column reduces Its effe<:tN~ length t>y h.;:f
J.,d increases rts load-carT)ing capacity by
3 8ctor of 4.
P&14
I'
/1
/1
11
II
11
II
I I
I I
I I
I I
I I
I I
./
laurall7racing __.__..___I'·
The uraclng of acolumn or other
compression rr.emPer to reduce Its
effective Iength.13teral uraclng Is most
effective when the braCing pattern occurs
In more than c~e plane.
unl1racea length
The distance uetween the points at which 3
structural memper Is!n-aud against
uudling In adirection normal to Its length
41
CONCRETE
Art 2rtffici2lstcnelike building material
nude l7y mixlrl~ cementana various
mineral ~tts with sufficient
water tc cause the cement to set ana
pinel the entire ITI3SS.
·
rutural cement
Anaturally occurring clayey nmesUlne
which. when calclnea and ftnely pulverized.
produces ahydraulic cement.
pczzoL-in
A sll1ceous material. as fly ash. that reacts
chemically with slaked lime In the presence
of moisture to form a slow-hardening
cement. named after a natural cement frcm
Pozzuoll. an ancient Roman tawn near
Vesuvius. Also. pozzoIona. pcnuol3na.
siliceous
Containing sillc. or oil silicate..
fly ash
Flne particles of ash recovered from the
waste gases of.3 sollcHuel furnace.
t.a-----................. .... ~~..a .•.• ___ ........... ......... e.........-« ..... , t._._.. ~ eo. e.1 ... Le- •• ..a... • • J._ .... , It A.AiL ..... II 0 A. IlLm II G it.9 Q It 0 ..
M
AcalcJne.d II'1lxture ofclay ana i
I~ filely pulverized and used as i
an Ing~ In concrete and mortar. 1
The term Is rnquently used Incorrectly !
forco~ .
!
i
tnc.lcium sirute ---.-.--...-----1
ACO~constltutlng3rout half j
the voilr.eofpa1tindc:eme1Tt and ;
~for;he h.rdenlng or early
pin ill ~th ofthe cemelTt.
I
J"glcwnuOic& •.............-.·······t
A~ WlStltutlng aDoift one- l
quarter of~ volume of ~ nd :
cement anartSpOMSl7Ie for the aging .
or long.tM g3ln in s~th of the
U'II1erIt.
tricJlcium ,lumffUt.e.-.--....-...l
A~ constituting arout one-
tenth of t¥volume of;x>rtland
~ ana responslUle for the Initial
settl~ r:J die cement.
portland cement ------~
Ahydraulic cement /I13de f;ly ~urnlng a
mixture ofclay and limestone In a
rotary kiln and pulverizing the resulting
clinker Intoaveryfine powdef. named
for Its resem~lance to alimestone
quarried on the Isle of Portland.
England.
hydraulic cement
Cement capa~1e ofsettlng and
hardening f;ly areac'tlon with water.
't~~~,
" :,.," . ..;:.~..
?:~~::' ~..
.,~-" -.~ R.3wm2terla/s ccn5l~ ofcoml1inationsof
~._.-;~.::./ ~ne. clay. 5hz/e. oyster-sheDs. sHlca
~ ... S3IIJ. ¥JJlronore.
~ ," I?3wmzUrl;/s""IfWI'JtopowJ"""
:/ blended. .
1
r 8urnlng In ~ rot~ki1nchAnges r;lWmixture
jlnto cemerrt dlnket-.
clinker
Qlcine
To hea~a SGPstance to ahigh
temperatare M without melting or
fusl/14 r.o«iveoffvolatile matteror to
cause~ ~ reduction.
4l
Afused mass of Incomlnlstll7le /I13tttr
resultIng from heating In akiln orthe
InImlng ofcoal.
Gypsum Is added to cflnk~ to
---?
,
C/lnkerlsgroundlnto ."" .;i'
port/3ndcement. •.--". ,.f.:'
L<_...
TyPe I: narm.1
Aportland cemelTt used for general
construction. h3v1n~ none ofthe
distinguishing qualJt.les of the other types. _ ...
TyPe II: moQerrt.e
Aportland cement having areduced
contelTtof trlc3lcium aluminate. makln~ It
more resistant to su~ and causing It
to ~ less ~ ofhydl4itlon: usea In
geMer.il1 constructlon where reslstanr...e to
rnode~ sulfite action Is ~ulred or
where heat l?ulk:lup can ~ damaging. as In
theconstroctlon of brge piers ana ht4"7i
retaining walls.
T~1I1: hlghe.atiystrength ~.....".
Avery-flnelyground portland cement n..vIng
an Incl"e35eJ content of trlc3lclum sl~.
causing Itto cure mterand gain strength
earlier than nonnal portland cement: uS&i
when the early reI!1O'r'3/ offonnworl: Is
tksIrtd, orIn coId-~therconstruction to
redL'Ce the time rea.uired for protection
from low t.empmtiJres.
TyPe IV: low ht3t
Aportland cement having. reduced
content of triGalclum sltlc::ate.nd an
Increasedcontentof d1calclum Silicate.
catl$lll! it togenmte less ht-.at of
hydmlon than normal portbndcement:
used In;he construction of massive
~ structures. as gl?iltydams.
where alarge lnIildup In heat can ~
damaging.
TyPe V: 5ulfate ~5ting
Aportland cement having areduced
content of trlcalclum alumInate. lessening
the need for gypsum. asulfate normally
addea to cement to retard its setting t!lr~
used where reslst4nce to severesulfate
action Is ~ulred.
air-entraining pcrtl.1nd cement
AType l Type It orType III portlandceme.rrt
to which asman qU3ntltyofan air-
entr.llnlng agent has ~een Intergrouna
during manufacture: deslgnat.ed Py the
suffix A. as Type IA. Type IIA.orType lilA.
white portland cement
Aportbnd cement produced from raw
.mat.eria15 low In Iron oxJae and mangan~
oxide. the su~stances that give concrete
Its gl4iy color: uS&i In precast concrete
work and In the 1T1J1:1~g of temzzo. stur..co.
and tile grout.
5uIbUactlon
An expanslve rt3CtIon occurri/14 when the
cement IItJtrIx ofconcrete or ~r CO!T1eS
In contact wtth sutf~ dissolved In grouna
water or In soli.
~ ... & .......
entrained air
Microscopic. Spherlc31 air lnI!1V!es. tYF11y
0.0Q.4 to 0.04 In. (0.1 to 1.0 mrrT) In ~metcr.
Intentionally ~ In aconcrete or .. '
mortar mix ~ an.~I~T!ral.nln:g ag.e~t~ :~.-:'
I i
, !
j i
f
r
I~
t
f
r
I
I
r
.c_JL&~;(JlfJllf1I~d.'t}§O • •
mixing W4ter
The W3~r used In aconcrete or
rnortJr mix. exclusive of any
abs~ Dy the aggregate and
free of such h3rmfulsubstances
as O1"~pnic materol cl3y. and
salts. W3Wfrt for drinking Is
genenHy 3CCepta~1e.
cemertt p~5~
AmlxtlJre ofcement and water
forCC3~ setting. and ~1nd1ng
t:he~pm!cles
~1er!n a concrete or mortar
fix.
I~ htweiglrt COncrete
ConcrC"'"~ m.ade wt?I ~regJte
of low $p'X!& gr.Mty and
~hlng less th3n nonTIJl
conc~ which !us aunit weight
of about t:o pcf (2.400 Ko/ m3).
~'* A_. , • « •.• .• .1 , . . . . . . . , ,
agg~ate
Any of various hard. Inert. minerai
materials, as sand and gravel. added to
acement paste to make concrete or
mortar. Since agg~ate represents
from 601 to50% of the concrete
volume. its properties are Important to
the strength. weight. and fire·
reslstaneeofthe hardened conerete.
Agg~te shoukI ~ hard.
dimensionally stable. and fru ofclay,
srlt. ana organic matter which can
prevent thecementlng matrix from
binding the particles together. --
structur41lllghtweiglttconcrete
Concrete II13de with strong lightweight
aggrt43te. as expanded shaleor slate,
having aunit weight from 85 to 115 pcf
(1.362 to 1,840 k~1 m3) and compressive
strength comparable to that of normal
concrete.
insu13tin9 concrete
lightweight concrete h3vlng aunit
weight of less than 60 pef (960 kg! m3)
and low thermal conductivity, made
with lightweight aggregate. as perlite,
or with afoaming agent or gas·formlng
chemical that Infuses the mix with a
homogeneous cellular structure.
fine aggregate
Aggregate consisting ofsand haVing a
particle size smallerthan 1f41n. (6.4
mm): sptclf. the portion ofaggregate
that 1'1111 pass through a3/& In. (9.5 mm)
sieve, almost entirely through aNo.4
(4.8 mm) sieve, and be predominantly
retained on aNo. 200 (74~ sieve.
coarse aggregate
Aggregate consisting ofcrushed
stone. gravel. or I1last-fumace slag
having a particle size larger than 1f4In.
(6.4 mm): speclf. the portion of
aggregate th3t Is retained on aNo. 4
(4.8 mm) sieve. The maximum size of
coarseaggrl:9ate In reinforced
concrete Is limited by the size ofthe
section ana the spacing of the
reinforcing ~ars.
graded aggregate .
Aggrl:93te having apartlcle-slze
distribution ch3raGterized by uniform
grading. Graded aggregate requires the
least amount ofcement paste to fill
the voids and surround the particles.
particle-sizedistribution
The range of particle sizes In a granular
material. expressed eitheras the
cumulative percentage by weight of
particles smalleror larger than a
speGlfled sieveopening. oras the
percentage by weight ofthe partlcles
that range between speclfled sieve
openings.
uniform grading
,.. particle-size distribution In which
aggregate particles vary uniformly
from fine to coarse wtthout a
preponkrance ofanyone size or group
of sizes.
expankd shale
Astron~ lightweight aggregate
oUtalned by the exfoliation of clayor
shale. Also called expanded clay.
expanded 51a~
Astrong lightweight aggregate
oUtalned by the exfoliation of slate.
exfolLrtion
The sphttlng or swel/lng ofcertain
minerals into ascaly aggregate wnen
heated.
perlite
Avolcanic glass expanded by heat to
form lightweight, spherical particles.
used as nonstructural lightweight
aggregate and as loose-flll thermal
Insulation. Also, pearlite.
vermiculite
Mica expanded by heat Into very light,
wormlike threads, used as
nonstructural lightweight aggregate
and as loose·ftll thermal Insulation.
(ONCRETE
o air-entraining agent
An admixture that dlsperses entrained
air In aconcrete or mortar mix to
Increase workability, Improve
resistance of the cured proa'_ct to the
cracking Induced byfree-tha 1'1 c)ldes or
the scaling caused by deicing
chemicals. and In larger amcu~~5, tc
produce lightweight Insulatln9
concrete.
o~ acceleratcr
An admixture that h3stens the sectlng
ana strength development of •
concrete. mortar, or plaste:' r.-rx.
o retarder
An admixture that slows the setting of
aconcrete, mortar. or plasttr ~i;( In
order to allow more time for pl3c:ng and
working the mix. -
o surface-active agent
An admixture for reducing the surface
tension of the mixing water m~
concrete mix. thereby facilitating the
wetting and penetratlng actlc" of the
wate. or aiding-In the emulsifying and
dispersion of otheradditives in the mix.
Also called surfactant.
o water-reducing ~ent
An admixture for reducing the amount
ofmixing water required for the desired
workabmty of aconcrete or m~.3 r mix.
lowering the water-cement rat~ In
this manner generally results In
Increased strength. Also called
superplastlclur.
o coloring agent
Apigment or dye added to aconere te
mix to alter or control its color.
43
tCONCRETi!
mix~lgn
The n10St economlcalselecUon and
proportIOningofcement. water. and
~te to p~concrete or mortar
NviI1g the required properties of
worbl7lllty. strength.durability. and
W'~htness.
Aham'5law
r[cement
: water
water-ce~entr3tio _.._..•._...~
The ratio of mlxl"!! water to cement In aunit
volume of concrete or mort3r mix. air
preferal7ly expressed ITy weight as adecimal
fraction l7ut often stated In gallons of
water per 94-117. sack ofcement. The water-
cement railieantrots the strength.
7% -15%·· .- cement cefTtent
The quantity ofcement per unit volume cf
concrete or mortar mix. preferably
expressed In pounds per cubic yard put
often st3ted In saus of cement per cubic
yard of mix.
16% - 21%"-' water content
The quantity ofwater per unit volume of
concrete or mortar mix. preferably
1% -.3% expressed In pounds per cubic yard but
often stated In gallons per cubic ya rd of
mix.
A ~w postulatl~ that, with given concrete
/n4teri3ts. curing. and testlng conditions.
W compressive strength ofconcreteIs
UTrerseIy propot1lo1ul to the ratio of water
to ument: developeJ (,y DA Al7rams In 1919
from experiments at lewis Institute In
Chlca~. dural7illty, and watertightness of hardened fine aggregate .' . :'..' 25% -.30%
concrete.
i
o ---~----~--~--~I
4 5 6 7 IJ
gallonsofW3terper53ck ofcement
.. - ."
.: ....... .
::... "."..... : ::
sack
Ameasure of portland
cement: 94 117. In the ---"...........A
87.5 1!7. In Canada. 112 117. ~~~.!.t4-
8ritaln. and 50 kg In
countres using the metric
system.....Iso cal~J 139.
.31%-5/%
consis~rn;y
The relative a!7ltlty of freshly mixed
concrete or mortar toflow. usually
measureJ bythe~p~~forconcre:U
and ITy the~.te:st.fpr i..rqu.~r m~E.
Consisttncy deperulslargely on the
proportion of~nt pasteto.gg~ate In
amix.
~Iump~~ ------------------------------------1
Amc-..hod for determining the consistency slump
workability
and wortabilityoffreshly mixed concrete ~ Ameasure ofthe conslstency and
me.$lJ~ tke slumpof. test speclmell. wori::a~lIlty of freshly mixed concrete.
tlXpres~ 35the vertical setthng.ln Inches.
of aspecimen after It has I7een placed In a
slur!1p cone. tamped In aprescrl!7ed manner,
and the cone Is lifted. --------
slumpcone - ...........--..-.- -- .....- ----.•..-----
An open·~nJncated cone of
Sr.~metal.t2J=:(
mm}hlgh. with
.lr.i5"tiameter In 203 mm) and
• topdiameter 41n. mm}. used
to maYaspeclrnenorfreshly mlxeJ
concrttefor the slump test.
~ mpreS510ntest
Atest for ~lnlng the compressIve
5~ ofaco~ "atch. using a
hyd,..ut1c press to mc:asurethe maximum
load 3 testcylindercan support In axial
compression ~ore fracturl~.
u5tcyUnder •... -""-""-" _............ -
Acynnderofconcrete
6 In_ (152 mm) In diameter and
12 In. (~mm) high. cast from a
representative I7atch and cured In
alaPof'atoryor In the field under
controlled cond.1tlons.
···-'i~
The relatlve e35e with which freshly mixed
concrete or mortarcan !7e handle4. placed
In fOr1T1W9rk. comp~ and finished.
Worb~ility depends partly on the water·
cement ratio and partly on the grading of
the aggregate In a mix.
/plastJc mix
Aconcrete or mortar mix that flows
sluggishly without segregating and Is
readlly mokle.d.
v dry mix
Aconcrete or mortar mix containing little
wateror too moch ~g~ In relation to
the othercomponents and having little or
no slump. Also C411ed stHfmix.
wet mix
Aconcrete or mort3r mix having arelatlvely
high watercontent and runny consisten0'.
yJeld1~ aproduct that Is low In strength.
duralnlity. and watertightness.
..:::.:.~";- '.':.::( .:.
-'=~-:---+----!.-'~"'-t-t--'-- cere test
Acompression test of acylinder cut from a
hardened concrete structure. usually ~
means of acore drlii.
J ;
1
,
Ij
I
Jj
I
11
I I
lJ
6
j
~I
~I
CONCRETE
form Uner --.-.-....-......... -.............---"'- .-- . ,- spreader formwork
Mata-blfor Iln~ the Inside face of a
form. sped;;1!y selecttd to Impa rt a
slTlOOth orp«ernedfinish to the
concretesur-fJu.
re~$eagent
Arty of Y.IrIous lI1.3.terlJls. as ollar
sillcoot. fa- preventl~ the bonding of
concretetc asurf3ce. Also called
partlni awnpound.
bulkhead ------....-.-....-...-.--......- .
Apartltbl closJng the end of aform or
pr~en~ the passage of newly place
concretert aconstructlooJoint.
'K.eyw"3'f ------.-----.._. -.---,
Ao11gltucin.11 ~roove or channel ....
fonnea IaacoocretefOOUng or ather ';
metT1rer~ has~. proMlng a 
s~r-resistlng key for newly placed
conc~
yoke
A cl4m~ device for keeping column
fDm1s or the tops of wall forms from
spre3di~ Ilf1kr the fluid pressure of
newly pbce&concrete. ~ .:
Sonawbe ...:
TraJernart for a~nd of cyllndrlc3l column form
ITt3M ofccm~. resln'lmpregna~d paper.
cfuir
Adevice fur supporting and holding steel
reinfOfUllleTTt In proper posrtion before and
duri~ the: pladng of concrete.
high ciuir > - - - - - -
A ~n cgrorsupportlng top ~rs In a
conc~beamorsb!7.
bolsur --------------
A ~ chairforsupportlng and spacing
rottom!r.rs in aconcrete beam or slab.
clim~"ifurm
A form that can ~ r31-sed vertically for
succee.d~ liftsofconcrete during the
constructlon ofamultistory bulk/lng.
lift ~.-- -. -....-...-.-...-. -.-- -'" -.
The M~htof aqU3ntlty ofconcrete
placed In aform .t one tlme.
slipform •.................. -'- ...
Aform th4t can be moved slowly and
contlnuously as concrete Is being placed
during the construction of aconcrete
pavement Of" DuJtdlng.
ru~tian strip
Astrip of wood or other material attached
to the Inside face of aform to produce a
groove In the surface of aconcrete member.
. Abrau. usually of wooJ. for spacing
and k~plng wall or footing forms
apart. Also called spacer.
.-'.- wale
A horizontal timber or steel beam for
relnfon:;ing various vertical members.
as In formwori: or she--<>t piling. or for
retaining earth at the edge of an
emlr.lr.l::nent. Also called In-east
timper. ran9er. waler.
/"
"';trongmk
Avertlc31 support for aligning and
relnfon:;lng wales. Also called
I stlffitack.
The kmpor.ilry structure ~ulreJ to
support newly pl4ced concrete. Including
th~ forms and an necessary supportl~
members. 7raclng. and hardware.
form
Boarding or sheeting of wood, meta I.
pi3st1c. or ftberglass for ccntalning and
giving adesired shape to newly placed
concrete until it sets and gains sufficient
strength to be self·supportlng.
form tie
A metal t!e for I:eep:ng wall forms from
spreading underthefluicl pressure of newly
pi3ced concrete.
:'--": -.-.- ..... ~ snaptie
i: i Aform tie having notches or crimps which
II allow its end5 to ~ snapped off below the
:l=====;r=={~i.~ concrete surface after stripping ofthe
: ii forms.
: i ' -
L __. 'I ....!..-.--- COI'.ePott
II I' Aform tie ha,1ng cones at each end Insicle
ii the forms which allow it to also serve as a
I:, II spreader.
to
r:::~~~~~~-I~'~;;;;;~~~~" ..'-" -'-.' .-' !. i Ji~:~'~'~~"lli ''--T-'--.~ ~S:lltrul1C3tea cone of wood, steel. or
form to Indicate the top of accncrete lift. .' • ". ..•. : . plastlG attached to aform tie to sp2ce and
-.uo,./A• • _______ • _____•• __ ._ • _____ ._.' . . • Ii spread w.1I forms. leaving a neatly finished
"~ ~~=H~~~~3Wl!I· depressloo In tM concrete surface to ~
Anyof. varetyofslotted d...ovlces for ;~. filled or!rlt exposed.
tightening formwori: ana transferring the : ;! I
f01Ulnaform~tothew3les_ :....-. ~ "--r""" ~'::~conslStir9 of waler rods which
'~'
.... '. "'_" ~, are ir.serted through the form and threaded
~ i ontotheendsofan inner rod. After
. .:."?.: II Ji stripping. the water rods are remcved while
~ . __ the Inner rod remains In the concrete.
flying form
A lar¥ form that can be moved by 3 Cr3ne.
used In constructing the concre~ floors
and roofs of multiStcry Duildings.
45
C:ONCRETE
~st-jn-pbce concrete
Ccncrete &eposItcd, fonr.ed. cured. and
flnlshed In Itsflnal position as part of a
structure. Also called ~st-fn-sltu
concr'eU.
." ...... ~. .....-
!
piaument :
The process of deposltl~ and consolidatIng •
fi-eshly mixed concreteInaform or In the •
final position where It Is to harden.
i
./ time of haul
The period from first contact Petwun
mixing waterand cement to completlon of
dischargeof the freshly mixed concrete
from a.truck mixer.
agitator iruclc
Atruck eqUipped with arotating drum to
prevent 5egrt9t1on or loss of plasticityof
the ready·mlxed concrete !icIng delivered to
aconstruction site.
tn.Jclcmiur
Atruck eqUipped with arotating drum and
aseparate water tank for mlxl"!! concrete
en route to aconstruction site.
. ~
concrete mixer
direct pl3cement
Thea'rsch3rglng-offreshly mixed concrete
dIrectly Into afann from aconcrete mixer.
~uggy. or crane l1ucl:et.
free fait
Thedescent offreshly mixed concrete Into
afor:n ~t the aidofadrop chute.
drop chuu: .......-..--..-........ -....-.-
A chute for co~lnlng and dlrectlri~ a
falling stream offreshly mixed concrete SO
3S not to cause segr~tIon.
chute
An IncSned trough or tube for conveying
free·fIowing materials to alower level !1y
~ravity.
consolwt1on
The processofeIImlna~ voids otherthan
entralne.d air within newfyplaced concrete
andensurinfcloseconbct of theconcrete
with fonn surfaces and eml1edded
relnf~.
Amachine havl"!! arevolving drum.
often motor-drIven. for mixIng cement.
aggregate. and water to produce
concrete.
,-~... buggy
.... Acart. often motor-driven. for
• transportlng heavy materials. 415
freshly mixed concrete. for snort
distances at aconstruction site.
:.::'~ .::"'S;;'ll.l~·t·~~:;~'.:;~
~:...~ • A · 0
t ~ • ~ -4'.1 I ~'-:'::
•..;.. ', ~
•. 'V'"Q • 0 ill I!. •~"t...
•••0.4
0 1'1 f':~ .....~••
-,., • ::'''''.:: ••0, ••
~~ - "4 ilL 1:1 b.~.-"
:....o..~ 0t1 ,:r 1" ••
: : . '0 • "'l. :~--!;: ,::.~.
..~... • -, 4 -i.~
'padi~ ~..---.------.------..---..--- ',,.-'!r'" ..... 4 : 0 ....
"--:J '-II ..
qf·: .........
Consorldatlon ofnewly placed concrete!1y ;4.·:/1".. ~.
d I ..... , .• 0. 0" :/1;.°.1>':110._
the repeated Insertionsand with rawa sof '.... 4' .. 4.: .<l :.
;::'i~3detIke tool. ~'.,~. :: ~_~._~'... .....!.~ .~.:'.~
Consolidation of newly placed concrete!1y vibration ----.-.j
the repe3ted Insertion's and Withdrawals of Consolidation of newly placed concrete by
a rod. the moderately hIgh·frequency oscillations
of avlprator.
46
vi~rator
An electric or pneumatic oscillating tool for
agitating and consolidating newly placed
concrete.
ready-mixed concrete
Concrete mixed at alr.ltch plant for delivery
by an ~Itatortruck to aconstruction site.
shrink-mixed concrete
Concrete partially mfxea at a lr.lteh plant
and then mixed more completely In a truck
mixer en rouu to aconstruction sl~.
transit-mixed concrete
Concrete dry !latched at .Pateh plant and
mIxed In atrud mIxer en route to a
constructlon site.
pneunutic placement
The ddlvery ofconcrete. slurry. or plaster
by apIpeline or hose to the point of
placernerrton 3 COMstnJct1on site. etther In
aplastic state for depositing In place orfor
spraying. or Inadry state wtth wak< aaaed
at the nozzle from which It 15 sprayed.
GuniU:
AI~ntwelght concrete construction
consIsting of amixture ofcement. sand or
crushed slag. and water. pumped thro~h 3
noseand sprayed at high velocIty OV~
reinforcement until the desired thIdness Is
reached. Also called shotcrete.
stl9regation
The separation ofcoarseaggregate from
the mortaror of water from the other
I"!!red1ents offreshly mixed conere-te.
resuftlrlg from excessive horlzont31
movement or free fall of the mix. orfrcm
evervlmtlon after placement.
5tr.ttlfication
The separation ofan excessively wet or
evervl!lrated concrete mix Into horizontal
layers with Incre3slngly lighter material
migrating toward the top. 9
Illuding
The emergenceof excess mixing water on
the surface of newly placed concrete.
caused Dy settlement ofsolids within the
mass. Also calleJ waUr' g.1ln.
laitance
Amilky depOSit containing cement ;lrd
aggregate flnes on the surface of new
concrete. caused?j the !lleedlng of exuss
mIxing water. oVenYon:lng of the mix. or
Improper flnishln1.
J
I
I
,"'*
I ;
,.$
I ,.
~
I
II
!
t1
.~
L
I
~
L
L
I
''-I.
lI
finl,hlng .~--- dar+J
The process of leveling. smoothing.
compacting. and tre3tlng anewly placed
concrete surface to produce the desired
texture and appe3r3nce.
.:' Along wooden or metalstraightedqe
for smoothing .a fresh concrete surface
.lmmedlatelyafter screealng.
screed ----------------------------- --
Awooaen or metalstr3lghtedge drawn a
over <I newly placed concrete sl3bto bring it
to proper level.
5GreeJ .----.. ------------ ----------------
Afirmly esta!7lished grade strip or edge
form serving as aguide for making 3 true
eve/surface on anewly placed concrete
slab.
flc.at ~----- -"" -------- ---- ---- ----- --- ----- --v:.-"/"""'-• .%"",,-,
Afu~ tool for spreadlng and smoothing a
fresh concrete. stucco. orplaster surface.
l7ullflo.at
Afloat havll1{1 alarge. flat blade attached
to along handle. L_. _____ ----
trowel -----.---.. --------.--------------,
Arry of v.arlous fut-bWed hand tools for .
appJ:t!ng. Spreadl"9. won:lng. or smoothing ....
plaStlc material. as concrete. mortar. and '
pl3ster.
powertrowd
A port.aPle machine having steel trowels
float finish .--- ---- ---- ---
Aflne'~ured flnlsh obtained by
smoothir.q 3 fresh CO!1crete. p13s:er.
or stucco surfau with awood fl..,"'3".
moun~ on radlalarm5 that rot.1te about a ,
vert1c41 shaft to smooth. compact. and • ~
;;:~;c:::~;,~f~---<~ _
roondlngthe~sofafreshconcreteslaD trowdfinlsh· ---------
3Slt ~Ins to set. Adense. smooth finish obtained 7j
wor(l~ • fresh concrete or plaster
p7f'ement,.aw surface /lith 3 steel trowel.
Awhe.el-mounted, rotary power saw
eqUipped with.a slllc.on-carbiJe or diamond
!n.1Je for cutting acontrolJOint In a
hardened concrete SIaD. .-- -- -- -- -- -- .. ---
&et ~- ..------------ ---------------------,
The assumption of ~ ~ld or hard state by i
concrete, mortar. pasw. or glue due to a !
phys1c41 orchemical ch~nge. I
£JDDDDCJO-
cure ---------- ---- ----. --- ---- ---0.. ---.--..--............---- ....--.... "-' ....»
To maintain ntwly plaua concrete or
rnortJr at the required temperature and
humidity fur the first seven days following
placement. castlng. or finishing to ensure
satisfactory hyaratlon of the cementltious
materials ana proper hardening.
hut of hydr.atlon
The heat ~enerateJ by the process of
hydr3tlon. as during the setting and curing
of a concrete ml)(.
hydration
The process In whk;h asubstance combines
chemlGally with water. as that occurring
when cement Is mixtd rllth water.
dry-shake finish
Acolored finish produced by sprinkling a
dry mixture ofcement. sand. and a
pyment on afresh concrete surface
follcwir.g screedlng and after any free
water has evaporated, and then won:lng
the mixture Into the surface with afloat.
j
1
l:[.lITPf
,Pf.W.':':T::I.:':.
. il·ill:I!::::!;!!il:::'i;:}:.
. : :11·illlll:I·!!,:,·iil'i'i'
II'" "I', ,., . '
I,ll:" ill.i;j""'I.j'I.'"
I
til "':;' :11. 1 1..
"I r'i:·~l:iill!:".'1;..,:'.:
. 1:lid:il!d!i1il/. :.,
II:i:j! jl,'klii)
c ,1I':'I':I.:l:dl'"I...",
proom finish --.-------..!
Astriated flnlsh obtained by stroking a
Dr~"'m or strff ttrJsh overafreshly troweled
co~cr~..e surface.
......
~ .>.~~>~., .
~wirl finish
Atextured fini$-' given to afresh plaster
or ccr~rete surface by troweling with a
clrcui3~. overlappi~ matlon.
- -
l~~'-':{';:t;i.'~&±;-~'~1
CONCRETE
architectural concrete
Ex~ concrete won: requiring special
care In the selection of materials. forming.
placing. and flnlshlng to acquire the desired
appearance.
peten brut
Concrete left In Its natural state after
formwork Is removed. esp. when the
concrete surface refleGts the texture.
joints. ana fasteners ofa !?oard form.
exposed agg~ finish
Adeccr3tlve finish produced ry
sand!:T!astlng. etching with an acid. or
scrul7t:>lng aCOllGrete surface after the
Inrtl:al set In order to remove the outer
layer of cement paste ana expose the
aggregate.
bu~hhammered finish
Acoarse·textured finish o17talned by
fr3cturlng aconcrete or stone surface
wtth a power·drlven hammer having a
rectangular head with a colTIJgated.
serrated. or toothed face.
honeycom17
Vvlas on aformed concrete surface,
caused ry segregaUon during placement
Of' Dy Insufflclerrt consolidation.
~pa!ling
The chlppl"9 or scaling of ahardened
CC11crete or masonry surface caused ry
freeze·thaw cycles or the applk;atlon of
de'.cI"9 salts. Also called 5(;3l/ng.
crazing
Numerous hairlinecracks occurring In the
surface of a newly hardened COllcrete -
slab as aresult of rapid drying shrinkage.
drying shrinkage
Areduction In volume of concrete.
mortar, or plaster caused by aloss of
moisture.
~etting shrink3ge
Areduction In volume of concrete prior to
Its final set. caused by hydration of the
cement paste.
47
CONSTRUCTION
The art. science. or l1usiness
ofbu~ai~, -
ownu
A person ororg:anlutlon twlr.g
the ~al right or title to a piece of fL-
~,Il5~thearchlt.xt's f'/ .. -
c!lent and pa~ to the owner-
arch~t agrmnent.
I
I
r~p~--~---------l
1
1 Apersooor0f9nlz2t1onM I
Inves~ In and develops the I
t pot.enttalltles ofreal esta~ esp. :
I by Wtlatlng anaImplementl~ I
I ~~ projectsforoWMership, :
I ma~ent, or res.J1e. I
L- _________________ ..! '--t
Iendil19 institution
T~ institution, usually a
ccmll"erclal !1.ni:, providing the
~-tefm fI~I~.for a
constroctlon project.
I
I
I
I
I
I
I
r _________L _________ ,
I speculnwe ~ui1kr I
~ A~ ororganlz3tlon that :
I kv~ and constructs Dui!di~gs :
I for suPsequent S31e or lease. I
L ____________________ J
48
~---------.----- .. -- ----- -- ---- -- --- ----- -~---.- --. --. -- --.------ Iicen5ea
r-------l:------t I L~allycerUflecl bya governmental
architect e~ineer ~ or other constItuted authority to
Aperson who engages In the Aperson traIned. skilled, or engage In a!rosIness or professIon.
profession ofarchitecture, usually l-L...J professlo!1311y enga~ed In any of Also, registered.
trained and experienced in the rr-- various ~ranches of engineering. as ! Ii
desIgn and construction of structural mechanIcal. or
vulldlngs. e!e.ctrlcal engineerIng.
T
I ,--------------------1
I I consultant I
: I Aperson or organlutlon hIred to :
r----------1 glveprofesslonalorexpertadvlce l
I I rtgJrdlng aspeclflc aspect of a :
I I p~Ject, as acoustics or IIghtlng. I
I ______________________..J
..J,.
contractor ! libcontractor
Aperson ororganlz2tlon that Aperson ororganlutlon that
contracts wfth ageneral
contractor to provide aportion of
the won: on aconstructIon
project.
contracts to provlde the materials ~
and perform the wort for a
construction project at aspeclfled
time and rate.
generalcontraGtor
Insurance
The Insurl~ of property. life, or one's
person against loss or harm arising In
speclfed contlngencles In consIderation of
apayment proportionate to the rlsI::
Involved.
contracts directly with an owner H3v1ng amonetary commitment set
Aperson ororganization that I" ,.. -- .. :.-. ,--~..--.-. bonded
to manage and supervIse a aside to ensure that ail o~llgatlons
construction project. Including the 1 set forth In acontract are fulfllled.
won: performed I7y
sul>contractors.
construction manager
Aperson ororganlutlon that
contracts with anowner to advise
on and coordinate all pha~ ofa
ltuik:ll~ prqect, from evaluatIng
the constructlon cost and
feasl~lity ofdesign decisions to
managing the ~ng. award, and
construction phases of the
project.
design-l1uiIJ
Of orpertaInIng to an amngement
under which aperson or
organlutlon contracts dIrectly
with an ownerto design and
constnJGt a~lldIng or project.
turn-leey
Of or pertaining to an amngement
under which aperson or
organlz3tlon designs and
constructs alnJlldlng for sale or
lease when ready for occupancy.
Architect
Subcontractor
Subcontractor
Subcontractor


I
 )'

~~U~ /
--~--
, ;
I :
j
l 10
.J
I)
!
II
I
n
1
I
U
~
I
t
b
L~I
L./
~I
fe.1swility study
AdetalfeJ InvestIgAtion and analysis
conalJCf'.ed todetermlnt thefil13nclal.
technical orotheradvIs3Dlilty of a
proposed constructk)n project.
top out
To Install the highest structural member In
. aconstruction or complete the uppermost
course In amasonry wall.
falsework
The temporary framewon: for
supporting astructure under
construction that Is natyet capable
of supporting ttseff.
scaffold
Atemporary structure or platform for
supporting workers and materials at a
height aDove the floor or ground during the
construction or repair of abuilding. Also
called staging.
I~I
CONSTRUCTION
The process of puilding,
from site preparation through
erection, assembly,
and finishing operations.
..........i>......................~ ......................~..........
i1iddin9
1'he compt:Utlve process of offering tv
perform the wan: described In ;;1 contract
fOf' aspecH'ied sum.
award
A formal auevtance of a Did or a
negotlated prof1QS.ll
ccntnct
A~ally enforceable agtUment. usually In
written form. between ~ or more partIes
to do or not to do something specified.
notice to procee;l
Awritten communication Issued by an
owner authorizing 3contractor to proceed
with the won: and establishing the date of
commencement of the work.
puilding permit
Awritten author!zatlan to p.-oceeJ wtth
construction of 2 ~Ik:llng projectIn
accordance with 2pproved dr.lwlngs and
speclflcawns.lssued by the local.
government agency havlngJurisdiGtlon after
p!;:ns have been flied and reviewed.
buildi"9 offICial
Aperson des4lnatea by agovernmental
authorlty to admInlsterand enforce the
provisions ofa building code.
erect
To construct boy the raising, positioning.
fittlng together, and fastening of materials
or parts.
----- ----_._------,
certificate ofoccupanq
Adocument Issued by aj;,uJld1~ official
certffylng that all or 2designated portion
ofa building compiles wtth the provisions of
the bUilding code. and permttung occupancy
for Its designated ~.
p05U1ccupancy tnluation
The process ofd~noslng the technical.
functional and l1eh2v1onl2spects ofa
completed building In or~er to accumulate
Informatlon for future programming and
design activities.
Q ~ Design ~ . ~ ~
fast-track ......................................................... ;....................j ..............-.+.....-..-..-..--..-~ ..---...... Occupancy.....·)
Of or pertaining to project scheduling In : : : :
which the des4ln anaconstructk)n phases I I I Ar-----------,
ob ~ttdlng proJectoverl3ptocompress ' : Constructlonphase 4- Ull....-_______--'
the total time required for completion. I :
I Constr~tionphase 3 OC--========_________..J
CPM
Critical Path Method; amethod for
punning. scheduling. ana managing a
project, comblnlng all relevant Information
Into aflow chart, Including the optimum
sequence and duration ofactivities, the
relative significance of each event, and the
coordination required for timely completion
cf the prOject
I I
I I
Construction phase 2 6c=-----------t
I
I
Construction phase 1 0II....________--l
49
(ONSTRUcnON
The manner in whIch IUterials are
ordered. assemlkd. 3M united into
J whole. 3S fr.am~ construction.
,ysttm, Pui1di~
Aconstnsctlon prcuss U5ln9 a high d~ree
of pref.l!nic4tlon In t1Ie nunufacture of
standardlztd units or components to speed
a-s~m171y and /:rectlon of alnJlldlng. Also
called Industrialized Puitding.
panel
A pref.ll7riciW sectlon ~ afloor. wall.
cein"40 or roof. h4nkJ as asingle unit In
the assem~ and erectlon ofa pullding.
prefal1ricm
r0 fabricate or manufacture 17eforehand.
esp.ln standardized units or components
for qUid assem171y and erection.
fabricate
r0 construct l7y assembling diverse and
usually standardized parts.
,.,n.:iwich p~ ----------'
A stnsctural p3nel CQ1S!stlng of acore of
rebUvei)' ~ mterial ent;osed Petween
two sheru ~ ah~h-st~ material.
~rally re5lIltlng In a high stlffness'to-
weight ratio.
we,5ed-5kin pand --------II~__
Astructural p3nel cooslstlng of plyw~
facings gl~ to lum!ler stringers. used as
~.oor. roof. or WAil memw$.IbJect to
Dendlng. The plywood bclngs and stringers
act as a~rb ofI·beams with the plywood
resisting ~~ all ofthe M1dlng stresses.
Cross l7r3c~ rruy ~pUc.edto support the
edges of the skin and to Idp distribute
ccnc.entrne.d loads.
.......
···-1
'.
",
"
modul;r~n
f'lwr.mng al'lJ design at!~1Zing prefalnic3teJ
Il"()(lyles or rroaubrcoordlnatlon for ea~
of ~ flexJbleam"¥f11ent. orvarie
~U:Se.
module _.-..•..- ........- ..-... "".'.-
Arty In a ~ of standard1zea, frequently
i1Tterchange.il~ components used In
ass.e:n~ untts of.tff~ size.
~Y. orfunalon.
modular coordiutfyn -.......- .--.-
Cornbtl~ the dimensions of astructure
and PIe unit sizes ~ Its cocnponents,
~ with ~ alJ ofaplanning grid l7ased
on a+Jnch or1OO-lI'II1cu~1 module.
lift·,Llb co~ion
A technlq~ of constr~lng multiStory
!7ulldings In ...mich aA horizontal stabs are
C3St ,t ground b-efand. wnen cured. are
raised Into position Vy hydraullcJacks.
50
tilt-up construction
Amethod ofcastlng relnforua concrete
-wall panels on site In ahorizontal position.
then tilting them up Into their final position.
...<..~~'.'-'"
".
--"-:.
.---
..-=:-..r:;..............
",
-',
contract documents
The Ieq;I documents comprising a
construction contr;lct.lncludlng the owner'
contractor agreement. conditions of the
contr3ct. and the construction drawings
and s~iflcatlons for the proJect. Including
all addenda. modifications, and any ather
Items stipulated as being specifically
Included.
construction documents
The ccnstructlon drawings and
speciflcatlons setting forth in detail the
I't<uirements for the constroctlonof a
project.
'peciflCaticn,
The partof the contract documents
consisting of a ~11ed description of the
technical nature of the materl4ls.
standards, anaquality ofexecution of the
. work to ~e pbced ul'lJer contract.
uniform ~y~um
Afo/'lT13t developed Py the Constructlon
Specifications Institute for coordinating
spectficatlons. flllng of technical data and
product literature. and const<uction cost
accounting. organized Into 16 divisions
l7ased on an Interrelationship of materiJl,
trade. or function. Also called
Masterionnat.
Oivision 1 Gene,./ Req,uirement5
Otl'f51on2 ~
OIrlslon 3 ~
OIrlsJon4 ~ry
OirlsJotl5 Met...1s
Oirlslon G Wooa'& P135tJcs
Olvlslon 7 ThmTLl/ &Moisture ProUctJ:;n
OIrislOf'l~ Doors &Windows
Otl'f51on9 Finishes
Oirls/on 10 Speci3/tJes
D/rI5lon 11 EqUipment
Oil'f5ion 12 Furnishings
D/risJon 13 5ped31ConstroctJon
{)(YisJon 14 Ccrweyfn, 5ysU~
{)(rlsJon 15 1kcJunJaf
Otrlslon 16 Bectnc41
perlormanu 'pecification
Aspeclflcatlon that Stipulates how a
particular component or system must
perform without gMng the means to be
employed to achieve the results.
c:f~rjptlve 'pecification
Aspectftcatlon that Stipulates the ex3ct
CU3nt/tles and Cuahttes of rroterlals to be
fumlshed anahow they are to De asseml">led
In aconstruction.
reference ~pecification
Aspecification that refers to astandard
spectfic.atlon to Indicate the properties
desired In <I ~terlal or component and the
methods oftesting required to
substantl3te the performance of products.
proprietary 'pecification
Aspecification that stlpul3tes the use of
specific products. systems. or processes
without prOVision for substitution.
Ii
!
I
I:
j
I
lj
I
I ;
i
1j
i
1i
I
b
.
U
~
I
L
,
L
•
t
I.
L
,
f
!
l~
I
r
l./
:. !
f
l-I
,
- r
t.I
r...1
!
r

~ui1dmg code
Acode regubtln~ the design.
constructlon.alteratlon••nd repair of
l>u~. ~ and enforced by a local
go;emnent~ncyto protect the pu17llc
mety.hea~ .nd welfare.
AbuilJ~ UJJegenerally~5t3b1ishes
mfrrirrtUlf stmbrds for materials and
methcJs ofCMStroction. specifications for
s~anJfirtszfety. and other
~!mftentsWstdon the trpe0 f
const:ructJonadtheoccupancy0 fa
budJ~oftm rsIng st3nJards ~blisheJ
bytheklerbISocletyfqr T~ and
M~ (AS1M). ~ American Ni1tIonal
St3nJzJs ~ (ANSI). and various
tecJrnJca/societiesand trade3550cbtlons.
nwdefcc&e
A17u~ cod!: developeJ I1y an
organlutlon of states. professlonaI
socletSes. andtr.laeassociations for
adoytlCC'll1y local communities.
BOCA N.rtiottal Building Code
Al7uIdlng coJedeveloped .nd published
by the 6u11dl~Offlclals andCode
Administrators Intematlon31.lnc.
(BOCAl and ~ prlm3rily In the
n~US.
Unifonn Buiidi"9 Code
AIru~ coJedeveloped and published
by the lIrte~al Conference of
6~ OffIcbIs (ICSO~ and use.d
prlmrt,- In t&ecentr.rl and western us.
Standard 5ut1ding Code
A!ruMng caJe developeJ and published
bytheSouthem Building Code
Corrfereru (s6cc). and used primarily In
the ~heastern u.s.
ener~code
Alrull.:Ang coJethat sets minimum
sbndards forenergy conservation and
the ercgy-efficlent design of Dulldlngs.
~n' 'With D~auilitie-s Act
AIl ~ of Con¥ess that Decame 13w In
1992., estaDlisllln~ design stand3rds and
reqt.'ltel1ent.sforalll7ulidlngs except
sl~mlly residences to ensure their
~Ilty by the physlC311y J1s.ab!ed.
zoning ordinance
An orcllgnce regulaUn~ the dMslon of
13nd llTto zones. 2S to restrict the height.
l?ul.~. J:Id use ofDulkllngs. and
the prorisIcnof.ny2nciliary faeilities. as
pari;~a prlncip2llnstrument In the
Im~ ofamaster plan. Also
called zonln§ co,U.
r~ecoven.nt
ACO'r'eItInt IriUI acl3use that restricts
the ~ ofWi party to It. as an
agreement.lIOflg property owners
s~ the use to which aproperty
can l7e put: raGbl and religious
restrictions are legally unenforceable.
noncmrfONR~
Of or pertaln~ to amaterial. type of
constrllCt100.or occupancy or use not
comp~ with the requirements set
forth il'l a l7uKdlnq code.
V41rUllCe
An offlctll pemt to do somethlnq
nornt;lllyfo~n by rt:9ulatlons. esp.by
Dulld1~ In a'InY or for apurpose normally
forbidden by abuilding code or zoning
ordinance.
nonccmbustiUle construction
Construction haVing astructure of
steel concrete or masonrj'. and walls.
floors and aroofof noncom17ustl17!e
materials.
.. ; •.
) ....'.:
;. '....:
comuustible construction
Any construction th3t does not fuffill
the requirements for noncombustible
constrJctlan.
protected noncombustIble
construction
)
Noncombustible construction having a
structure ana major components with fire·
resistance ratings at ieastequal to those
speclfled by the appropriate authorities.
unprotected noncomuustiule
construction
Nancombusti17le construction havln~ no
f1re·reslstance requirements except far
f1re walls and enclosures offtre exits and
ordinary construction
ACO!1structlon type having noncombustible
roenor walls and an Interior structure
wholly or partly of light wood framln~.
protected ordinary construction -'" .--~
Ordln2rj' construction h;wlng astructure
and major components with ftre-reslstance
ratings at !east e<tual to those specified by
tM appropriate authorities.
unpl'Otected ordinaryconstruction
Ordlnarj' construction h;wlng no fire-
resistance requirementsfor the Interior
structure except for fire walls and
er.closures offlre exits ana vertIcal shafts.
~ V)'-timlrer construction
ACO!1structlon type havl~ noncombustible
e-..:terior walls and an Interior structure of
tlmPers.nd decking of specified minimum
sizes. Also called mill construction.
I
light wood frame construction
Aconstruction type having aframework
of wood rnert1!1ers not meeting the
requirementsfor he3vy-timi:>er
constructlon.
CONSTRUCT. ON
construction type
Aclasstflcatlon of alrul!dln~'s construction
accordln~ to the ftre resistance of Its major
components: structural frame. exterior
Pearlng and nonrearlng walls. Interior
Pearlng walls. floors and cellin~s. roofs. and
enclosures of ftre exits and vertical shafts.
While each ofthe model codes differs In the
detailed requirements for each
construction type. they all limit the area
and height of a17ullJ1n~ according to
construction. type and Intended occupancy.
Also called construction cl3ss.
~,-~
protected light wood frame 
construction ........00- . _ . . . . . - . - -.~
light wood frame construction having a
structure and m3Jorcomponents with flre-
resistance raUn~ at leastequal to those
speclfted I1y the appropriate au.thorlt~S.
unprotected 1i9htwood frame
construction
LIght wood frame construction having no
flre'reslstance requirements except for fire
walls and enclosures of fire exits and
vertical shafts.
51
DESIGN
The cre3tWn and organization of
formal elements in a won: ofart.
.I fOriit-i
The ~pe and structure ofsomething as
dlstlngulsWfrom Its Silbstaru or
materl3l .
:, ~~~
Oforpertalnlrlg to shapes and forms having
1~l3r contcurs wflic;h appear to
resem!?let:f-~of~ plants oranimals.
!~.~
Oforpertaining to shapes and forms not
~ng natural oractual oujects.
AIso.~~naI;··:;
,shape'
The outline or surface conflgurauon of •
partlcularform or figure. While form wsU311y
refers to the principle that gives uni~y to 3
whole. and often Inclllks asense of :rt355
orvolume, shape suggests an outnne w.h
some emphasis onttle ellclased are3 ~
mass.
<1~~:'~" .:'..
~'~::::-'.> ". -:-".::: .
·;:;:<::~~~~~.:.s
!textiirt " .' .
. The visual and esp. tactile 'uality of a
surface, apart from its.color or form.
@
.#Iine
The edge or wntdllr of a shape.
 /' 
, L_'--¥-_-->-
'7 visualttXture
The;;pparent texture of;; surface resulting
from the comuinatloo and interrelation of
colors and tonal values.
i tactile texture.
The phY$lc3l dlmenslonal structure of 3
surface, apart from Its color or form..
cc-.--:;;>
~!
~ ...........-.............. -....-..........
.....~
-+ [!]
~[]]
Oforperblnlng to shapes and forms which
resem!?le oremplcythe simple rectilinear or
cu~r dements ofgeometry.
'?a~··-·'"·''''·'·'''·'''''''
Ofor perblnlng to shapes and forms having
an Intellectual and affective content
~ solely on their Intrinsic lines.
cofors.and relatlonshlp to one another.
 ~~f!1f::d
Aunified compostlon oftwo-dimensional
shapes or Rtru-dlrnenslonal volumes. esp.
one 1:hat ftls or sffithe Impression of
w~ht. dcnsfty. and Pul.
52
i~j~
syntPot----',
t addi1::i~e 7....··....·_.. ·· ........ .
Characterized or produced byaddtUOn.
accumulation. or uniting, often resuftinq in
a new Identity.
5ulrtractive ~ ..- .................
Characterized or produced by remmi cf.
part or portion without destroying ;; ~se
of the whole.
~----------------------.
--+X •
•
Something th3t st;a nds for or represents
sornethlr.g e~ Dy 3ssoclatlon.
resemPbnce. or~n. derivl~ Its
I
meaning chiefly from the structure In which
ltappe3rs.
I'~~~~flgu:-t h3v!r.g .. ~nvenUof13!
I . meaning and used In puce ofaword or
~_____---:"--~______---.JI _ph~se to exprtss 3 complex notion.
.J
artJcubtion
I Ametf1CJOflhanr.erofjointing that mJtes
the united parts cIQr, distinct. and pr~ise
In relation to e3Ch other, ...
~."~~'I
'~.:' "'---.' ..-. --, '-'.'CIJ-'>,
;,
f~~~~~~:~ /
'''~~:%~~~:l', ..,...
"
,.
~i
I
I
~I
-
An InaiV1dual. minute, or subordinate
p3rt of ~ whole.
.11
•
" ".II
i ... I( III l1li • • II •
----------------------~
j tature
The c~ractaistlc structure given to
;a surfJCe or 5u~tance ~ the stze,
s!up~, ~rranqement, and prcportlons
a' the parts.
. f4l>Mc .
pattern '
An ~rtlstlc or decorative design, esp.
cne h<lYing ;I cruracterlstlc
arran~ement and considered as aunit,
of whkh an Ide3 can be given by a
fragrr.ent.
'L_____ _ ___________ _
!
~DESIGN
form:
Themanner of arm-.3in~ and coorana tlng
the parts of acomposition so 3S as kJ
produce acoherent im~e.
II ; orga~~tiorJ
, 1l1isystem3tlc arranqing of
I Interdependent or coordinated parts Into a
coherent unity or functioning who~
structure <
Th~a-;:g3;;iffikJn of e~ments or p3-;S In a
complex system as dominated ~ tee
general eharaeter of the whole,
01
:parti: :j
The lias1c scheme Or ccncept for an
architectural design, represented b] a
dlagram.
diagr.wm :
Adrawl~, nat neceS5.'lrlly
representational, that outlines. eXf-'ins, or
clartftes the arrangement and relatlci1s of
the parts of awhole.
, COrn'
,~rBrl.fr~t Ie
eJlrrang n~ VI parts Or e me'lts fr.:.o
proper proportion or relation SO as t.J form
aunified whole.
53
~ ~~ft prfncfvle:
Afundarrental and CDtnprehenslve concept
of visual ~ptIon for structuring an
aesthetic CDmposltlon.
unity'
The state or quanty of Peing combined into
one.astheorJerl~ofelements In an
arUstle lI'OIi: tIut coostItutes a
harmonious whole or promotes a singleness
of effect..
DOD
DDD
DDD
'j 1I~_,".ity;",~
The stateOrquantyof being Identical.
hOlT'lOgtl1tlOUS. or regular.
';. homogeneeu '
Unlfonn In strtJcRlrethroughout or
composedofparts that are all of the
same ~ture orkIM.
~~~::l
Uniformlyorevenlyformed or arranged.
~ motOtony
The state or~U411ity of lacKing variety.
~-
The stJte or 'l.U41nty of having varied or
alV~ forms. types.or eharaeterlsties.
,~.
Stress or prominence given to an
elcma1t ofaCO«1posltlon by means of
contrast. anomaly. orcoonterpolnt.
l~~:~i
opposttIon orJuxtapos{tlon of
dlssinlbr ~ In awon: ofart to
intensifyeach eb1ent's properties and
proGuceamoredynamic
expres5iveness.
brder turmony
ACDnditlon of ~ic3l harmonious. or
comprehensible ma~ement In which each
element of agroup Is properly disposed with
reference to otherelements and toIts
purpose.
The orderly. pleasing. or CO!1gruent
arrangement of the elements or p3~S ill an
arUstle wnoIe.
1'epCS6 :
~rmony In the arrangement of parts IX'
colors that Is restful to the t:ye.
I[
Ii
I
'caherent
lc.:3ic311y or 3esthet~311y ordered or
lnU.grated to afford comprehension cr
recognition.
~====~==~~====~==~~I========~
1---~.--..:proximity
: . ' I Ne3rT1es~ln place. order. or relatIOn
I  : I
~~~~~====~I I
campJexity
The state or quality of reing awhole
composed ofcomp'bted,lntricate,
or Interconnected prts.
,., caJlage
canUnuity ;
The state or quality of belnq contlnuoi.!S. as
a nne. ~e. or dlrectlon.
ai~~
Amngement In or adjustment acccrdi,,~ to
astialqht nne.
~ An artistic ccmpositlon of often
dlverse ele:na1ts In ~n ti1:tly or
unexpectedJuxtapositbn.
r-------..;-=-::..;;.=
...=
..;.;.;.
..""'
..~
.....!. kmrchy l
I ! . Asyst.e'mofeiements r.lnKea. elasslf.e.d.
I I and organfud one 3DOYt: another. acwrdin~
to importance or s~nlfcanu.
rl~lR ··m II
~~~~ I~==::=;:,;:::::::==_-=---=·-=--~-/~~~;~":'=d
~======~ r corresponJlng posltlons from an
......
[>f
I! -/.--' ntervenlngspaceor<*ject.
.
_ ....... - . . . 11[, '<t>'
" '. ' ..
II. ju$~
I
The stateor poSm,n of Delng placed close
~>/ I,
~r()('s~byskk.so.stopermtt
·...0 comparlsonorcontnst.
L.__ -------. t ~iDric~
Atenuous Valance malntalneJ In an artistic
m retween opposl~ forces orele~t5.
often causing anxiety or excttement.
A~Ion from the normal or
1
0 ODD
inoNIy' §DDODD
expected form, order. or arrangement. -..~ 0 DOD
54
'nt DDITTIDD
~I!14Jor idea, essential pa rt. or DDDDDDO
satlent feature ofa narrative or D_ i OUOD
concept.
,.alient
Prominent or conspicuous.
~QnUrpolnt .:........-.................:
A parallel M contrasting element
or theme in anarT3tlve orconcept.
, wo,
A5~3te Of utw disorder or CDnfUSlon. •
, cantndlctlon
The state orcoodltlon of beln~ opposed.
Inconsistent. or lc.:Jically Inwngruous.
L.
L
u
I
tJ
I
U
I
U
U
i
!
P
~
I
P
J
~
I
~
r~
I
I·
L
I
r
!
-.I
-I
11 ~~ri4m
A5tJ~cfrestor!:ra!ance
Pa.....
~ contr.lstlng
~~,,:;s cr opposing forces.
i., equipoise ;
An e<lUJI distribution of
weig;:. rdJUonshlp. or
fcxus.
~cc~~-$
ACO.Jn~lanclng weIght
o li
-I orfw~
'-I
"'-I
I
L..,
i
'--I
i
:-/
tI
"-,
j
'~ilf
The au ~k:>r-3 which
rr.ovi~~~or~c
ref~tothe
It ts direcu.d.:;"
¥~~
AprOcessor change ta~lng place by
kgm:s orthroogh <I series of gradual
successive stJges.
o
)PESIGN-'
tt==:tC:~::Jt==n:~w.ulllilW liabnce'1
.the-pleaSing or harmonious arrangement or
proportion of parts or elements In adesIgn
or composItIon_
41..c:S;::::::::~! ,r r3(1bl5ymmetryj~..-----.-.-.---------
U Symmetry resultIng from the
arrangemen ~ of similar.
radiatIng parts a~ut acenter ....,......---"--1.~......--
I point or central axis.
,~~ ..y.i50h~metryi;
AstraIght hne to WhIch I' An 1'"391I13ry hne al>Out which a
elements In <I compositlon ~ure. body. or composltlon Is
are referred for symmetrical.
measurement or symmetry.
·_-----_·_--t ~~!/j
Theact or prOcess of repeating formal
elements or motifs In adesIgn_
concmnatioll
Aseries of linked or Interconnected things
or events.
55
. PE$I~N :
; fro~,
The COlny.,._e. proper,or h3rmonlous
rel3tlon ofDI" partto another or to the
whole ",1Ut respea to In'gnltuae. quantity.
oraegree.
%=9
,proportlca. : 
The equality retwun two ratios In '
which the first of the four terms
divldea Py ~ second equals the third
divideJ Py tilefOIlrth.
, golden~llj
AprO~~n the two dimensions
of apl3ne figure or the two divisions of a
nne, In which the ratio ofthe smaller to the
I.lrger Is the same as the ratio of the larger
to the wholc:J ratio of approximately 0.618
to 1.000. Also c.lbf gpklerJ ~~{~
~ .,;.. .;. '
A B
B
~Ie '.L.......................................
II certain prof'OftIonatesize, extent. or
degree, uSlQlyl~ed In relation to some
St3ndardorpointof reference.
1tutIu"~ale
The sizeor proportion of aI7ullding
ec:r.c:ntor space, or an article of
flnlture. rel.ltlve to the structural or
fllllCtlonal dimensions ofthe human
~.----~,
...................
. eurythml ;
Harmony ofproportlOiformOvement.
.r
",
-- -- --- - -.---------.--=-':Io..---~--------- ....-._'t_-;"--_>"<::-•• -
'"
56
1, 1, 2, 3, 5, 8, 13. 21...
VI, V2, 2;" 3/
5, 5/
8, 8113 ...
Fibonacci se~ .
The unending sequence of numbers where
the first two terms are 1and 1. and each
succeeding term Is the sum of the.two
l.mm~lately preceding. Also called
~cd ~uance. I
harmonCC~' ~.
Aseries In which the terms are In harmonic
progression.
1, '1.3.~. ~, ~
harmonic'progres5 !on
Asequence of numbers the reciprocals of
",hich form an arithmetic progression.
-I"-'''''-H~''--O
mechanical scale
The size or proportion of something relative
to an accepted standardof measurement.
visUJI scale
The size or proportton a ~ulfdlng element
appears to have relative to other elements
orcomponents of ~nown orassumed sIze,
,
j I
..I
I 1
!
I j
I
LJ
I
1J
.' -
I
r-
r
l
f'
!
j
It
f
r
i
~5tructul4ll ~sion
ArTy Ofthe-dimenslO;,softhe tiuman body
and It5 p-art5.
I
I
I
I
I
ffunctioM&imell5ion "-...----,-.·-.----.-.-i~
Arryofthe dlrnenslonsdetermlnea by bodily l
posltlon ana movement, 35 reach, stride, or !I:'-
clearanu.. f :
!,~fiti
The correspondence petween the size and
postureof 3human body aM alnJi!dlng
e!emcnt ~ artlcle of fuml~re.
jVa~
Of or ~Inl~ tospaces. Ptllk:Il~s. and
facntt:es fully accessIpIe and usap!e by ali
~1e.1nclud1~ the physically
h:mdlc3ppd
,i, J
11 ....)
~".",.
territoriality
~."
'The i1bltfty~frudom. or
permission to approach.
enter. or use.
fl·········...............
The pattern of ~havlor associated with
defining and defer1ding aterritory or
domain
"""
pe~11315pace ~
fDESJGN
~gonomiG5
Art applledsclei1ce concerned with the
cllaruterlstlcs of people that netd to Pc:
consIdered In the design ofdevices 3 nJ
systems In order that people an.:! things will
Interact effectlvely and safely. Also called
~uman engCnurin4.·
"'-"""1" a~r~~I11~
. The measur'embTt and study of t~ size and
proportions of the human rody.
Ra~ropoll10,rp~~ .f
To asc'rlbil humin furm orchmcterlstlcs
to nonhuman things or I1elngs.
~~ia.<
tThesenSoYy~f>erienceof Podlly position,
presence, or mo."etrent k.-Ived chieflyfrom
stlmu/.atlon of nerve endl~s In muscles,
tendons, aMJolnts.Also, k1na~$laii
,.~esi5..'
~)13ptJc i .
Relatrng to or lr3sed on the sense of touch.
t olfutory'
ReI.aClng to or &3sed on the sense of smelL
f!~}
f>'~~~
i' :;i~~i?'~
i: f
" j
'~
P~r.!J~;! -
The Sfuay-bfthe symtJol1c and
communicatlve role of the spatlal
separation Individuals malntJJn In varlous
soc13Iand Interpersonal sltuat.,ns, ana
how the n3ture anakgru of this spattal
arrangement re!Jtes toenvlronrnental ana
cultural factors.
I
r
]r;-' .
>
-,
The Vlr!a!7le and su~lectlve dl5t.ance at
which ooe person feels comfortable tal1:lng
to 3~~her. Also called~! distance. :
r,--,-
57
1 DESIGN
. ~igll"
f0 conulve, coof.rio.'e, or devise th~ form and
structure ofabulldlng orother
constru~
, Jesfgn f~";
Apurposefllactlvtty aimed at devising a
plan for chafl!lng an exlstlng situation Into
afuture preferrea state, esp. th~ cycncal.
IteraUv~ process comprising the following
contrive-
foform In an artistic or Ingenious manner.
,~.:
Tofonn'ln themlna ~ newcomplnatlons or
applications of existing Ideas or principles.
phases................................ lr-in
-n;-J3-'-tlO-'n--'=""="",---., ~~itp;e~~~-:---I
PfO~S . fJ~tifying ; problem ;nJIts.socia/'
II systemailcseresof actions or economic. andphysical~xt.
operatlons le;ading or directed to a
partlcu~rc:ti
iph.i$e;· ~ .
•Apartlcubrsta¥ In aprocess ofchange or
deve~
}~~"lforso.'Ilng aprol7lem, as a /
statement~ forth the context,
conditions, requirements, and .) ~in~ €
o~Ject!ves forac:Its~n project. The pattern of change, growth, or
~
/ _' ;;:;:::~:::~::M~OO'
~ r des~n project wtthln aspeclfJea
•..,,_.._ ,/ tlme.Also.tharttte.
~!
~icwttd30 impIem~ solution
In use ~ tk5p«ifieJgozlsand
CI'iterU.
~P~~I
To en~~ fulflnmentof ~ means
of adefinite pbn or procedur~.
~
g
o
n
! feeduack
, EVaIu3tlveInformation a~out an action or
process promptIng areturn to;1
precealng phase for alteration or
correction.
~l&iitJon
.analysis
5~parattng ofa whole Into its constl:uent
parts or elements. esp. as a method of
studying the natur~ of the whole ana
determining Its essentl3l features ana their
relations.
~~yn,1;h~ls J
" Comulnirig of separate, often dlve~ parts
.:~5~f~'~
develop;:
To wolt but, expand. or realIZe the
capaPilittes or posslpl!itles of so 3S to pring
gradually to afuller or mor~ advancea or
effective state.
,tnodifyl
fochange the form, character. or
quant1esof In oraer to glve a new
orientation to or to serve anew end.
J refine;
, f 0 Improv~ or elaborate In order ~
make more fln~ orprecise.
.~ inflection '
. A~nd.angle,orslmll;1rchang/::n the
shape ofa configuration. ~ meons of
which achangeofrelatlor.sI1lp to some
context or condItion Is Indlc:ate.:i
traMformatlcn·'
Slmulztlng. testing, ~ndmod;{y(ng
~bIe :lternnlves~CCCIf'Jlrig ~
specIffeJgoals ~ndcriteria.
I CO"""~; ·----·-·-·--·---·------t~#----..·-..-·~:---'------..----;~!
~ process Oftha~9Jng In form or
structure through aseries of dlscw~
permutatlons and manlpubtlons In
~ponse to aspecificcontextor set of
condltlons withoutaloss of identity or
concept.
~[gJ @@
To expre5S.canvey. or Interchange Ideas, fo chooSe from anuml?er of alternatives ~ fo asceruln or a55eSS the slgnlflcance.
Infonnatloll. or~ lli:e by writing. speaking. fitness orpref~rence. worth. orqu.lltyof, usuarly bycareful
or t$!~acommon system of signs or ~ judgment~ appraisal and study.
symrols.esp, Ina way that Is cleariyand :, ..;,,,,~~,.i
readily understood. T'lie mental a~!Iity to perceivedistinctIons,
.. comprehend relationships, ordistinguIsh
, f"OPO''' alternatlves.
The off~ ofapianfor consideration,
function:
acceptance, oraction.
58
• The natural or properactIon for which
somethln~ Is Mslgnea, used, or exIsts.
~purpo~
• The reason for which something ~xlsts
or Is done. maM, or used.
~
J~meniFY;
Arty featui'~ that provides or IlJ.Cr~ases
I comfort. convenience. or pleasure.
, ''-? i economy ._
',..f . ~refut. t~rifty. and efficient use and
m3nagement of resources.
~~n'
Astandard, 1'111:, or prinCiple on wh!ch a
Judgment ordecision may ~e ~ased.
J dmlm-i
, An .ss~~.given. or otherwIse
c:fetennlndd bct or proposition from
which conclusions may I?edrawn or
decisions mac:fe.
elnt~:
fiicri3td li:enes5 or model of somethlog
anticIpated for testing and evaluatbn.
~ model :
. A';rifnfiture represent3tlon, USIJ.3 ny
built to scali:. to show the appearance
or construction ofsomething.
jmoclc~up: . '
AfuH-s!ziJ modelof 3 Uulkllng or
structure. bullt accurately to scale for
study, testing. or teaching.
.U5t
;rasu!1jtct asystem or process to such
conditions or operations as will lead to
acritical evaluatlon of a!71IIt!e5 01'
p~rform3nce .ind subsequent
acceptance or rejection.
/,
I, ,
I
LJ
L
L
L
L
L
L
L
L
L
L
L
._,
 I
r
1
~ I
j
:;'l ,
fI
rI
rI
f'
t
I
!
~..!
The f#culty or power of
compre~ Inferring. or thinking
In ,norderiy.l'ltlonJl way.
o }.0 ) o-----~)
fa~
The pTay of the mind through which 'il$cns
are summoned. esp. mentallnventC1s that
are whimsical. playful. ana
characteristically removed from re4nty.
---
iDESIGN
I crutivity
, The aPillty'tO transcend traditional
Ideas. patterns. or relationships and to
Initiate meaningful new lkas. forms. or
Interpretations.
 ,,/
-e-nv-I-slc-n:-'-------~  irrt.l4~"
To rorintmental plctvre of a. >>A rr.en61 representation of
,origiral~i
The creative ability to Imagine or
express In an Independent and
Individual manner.
future possibility. • - '-, / sorr.ethlng previously perceived In the
3b~nce of the 0~lnalstlmulu5.
i . irrt3~in3ticn :
The faculty of fontilng mental Images
The powerof recombining former '. : or concepts of wh3t Is not present to
experiences In the creation of nell' '. - ,: the senses or perceived In reality.
IITt3ge5 directed at aspeclf1c g031  .   IJ
--.-•••- ~~Inthesolutlonofa' ..., ""'_'_______~~•.•••-~Q/,~:
_
..~_.._
~..._._....,..-.........4-...--.-................-...-...... Kthoughtor notion resulting from
.' mentalaW3reness. understanding. or
.:t yro~;:;8
.~ ~~
'" 'Toreg3fd'an Ide3 orconupt 3S
h~~ somefmn ofo~tlve
~Irty outside ofthe mind.
~~~}
10 ~nlmate orper-rneate with a
~rtk:ular fom. sul;>stance.
qUJl1ty. or distinction.
~a.dd~;
, To a'ir~theefforts or attention
of.
he~: "."
" To rttrut anahold fast Py
Influeta or powu.
The act or powerof antlcipatl~
that which will or may come to be.
I ~~~
Th'e faculty-ofsetllng things In their
tnJe relations orofevaluating
their relative significance.
vieW~t
Apart'lcular manner or mode
of Iocl:lng at or regardin~
something.
, asp~)
Away In which athll19 may ~
viewed or re<jarded.
~pnctU ;---~Efl------- ~r)',
.A.c-tu3r~nu or application of A~tr3ct thought or 5pecula~cr.
principles. asd1stll19ulshed from theory. resultIng In asystem of a5sumF~~5
! or principles used in analyzing.
; 1'e<11 ,~ explaining, or predicting phenorr~.a.
~vfn9 ot>~e. ve;rtfuple. and Independent arid prc~ orfollowed 3S the b-a%
ros~. 3S op~ to ~1"i1 arttflclal or of2Ctlon.
Hlusory. I
I
!
-~I
• Anu.ofthings r'e!JardeJ as forming a
grotJp ry ~ of common attrll:rutes or
char.lCterls1lc.s.
, ap~~
: ~hl~.wtthout rdereru to
concrete re3l1ty or ap;irtlcuur
Instance.
Rri~neJP~
Aftirld3'mental anacomprehensr.e ;,.,..
tnJth. orassumption gc"Yernlng x-;~.
procedure. or amngement.
arc~-·····--·-·-····..·-····-·-····· ..~..
. e
;,V;n cW~~or pattem on which all ~
thl~s oftM ~me kinJ are copied or ~ased.
~.~i
.' AreproJ'uctlooof3nofiginai. ~
~ prototype : ~
An ~rly and typical example that exhl~tts
the esse~J fe3tures of aclass or group t model
anJ on which bter st3qes are ~ased or '
eJ. An rumple serving 3S 3 patte~~
Jlld.; for Imitation or emulation In tr.e
creation of something,
, ~~pt
A'ri1entallmage or formulation of what
somethIng Is orought to be. esp. an
Idea generalized from partlcula r
characteristIcs or Instances.
des~n conceyt
Aconcept for tl1eform. structure. and
fe3tures ofaI1Ulldlng orotr.er
construction. represented graphically
Py diagrams. plans. orother drawings.
~~
An un.::lerlylng org3nlzatlonal pattern
orstructurefor ades41n.
--'~(_-l-.. proia,
The original scheme for adeslgn
presented In the form ofa sketch
outlining Its spectflc char.1cter. to pe
developed In detail In later studies.
~ph!J.r;
M object;acUvtty. orIdea used In place
ci another to s~gest alikeness
~rWeen them.
as appl1ed to tile stating and solution
of proPierns that Involves free use of
T
=~cr
,eatlve processes. esp.
~phor and anJ10gy In Informal
a-nltogy ( . Interchange within asmall group of
Asimilarity In some particulars diverse Individuals.
~ween things otherwise dissimilar.
~tf...1I0glcal Inference !rased on the ~ - '-
~mptlon that If two things are /lY'~ ..:' ._
[lIOWT'Itoi1ealiktlnsomeres::uts. .,-../ / / .. '
~LP::=~f3CUItYofknoWlng
w1thoot evident ratlonal thought and
Inference.
tBDJ]wf5~~,
~tIon orreftectlon on a subject
or idea. resultln~ In aconclusion
Inferred from Incomplete or
Inconclusive evidence.
. am~uity
The state 0'7quality of pelng
susceptlble to uncerta!nty of meaning
or multiple Interpretation.
~renJiFity
An 3pt!tudeforma[1119 deslrable and
unexpu-tecl discoveries I1y accident.
~klent,
AfortUitous circumstance. qU3!ity. or
characteristic
59
DOME
AvaufW structure having a
circular plan and usually the form
ofaportion of. spnere, so
constnJcW 2S to exert an equal
thrust in all directWns.
~ucerdcme
Adome ~ the form ofasegment of a
~,lI'ftlIItS,cent.er I'd PeIcw the
springing 11M Asaucerdome Is partlcularIy
salsItlve tc budhng uI'Jer3n ~.emaIloaa.
radl.aldome
A dome l1uilt with stu! or tlmPer trusses
amn¥d In 3 raalalll".Jnner 3na connected
Coy polygon..Irings at various heights.
60
._~.....-.......- meridiana! line
."" ACUllleJ hM aescrli:1lng avertical
,/ section cut thro~h the axis of a
rotatlort31 surface.
roo................... hoop nne
I AcirculAr line aescrl17lng ahOrizontal
, section cut perpendIcular to the axis
of arotational surface.
.-semicircular dome
Adome havlng theform ofa
hemlsp~re.
./... rr;ll$ItIon from merldiofl3l to hoop
.-' forces 0CCIJr5 atanangleoffrom 45"to
6Q' from the verticalaxis for mostload
conditJons.
/
hoop forc.e .~..-.----- ......- ..-.---.---~~'
Aforce acting along a hoop line of a
dome structure, perpendlcular to
meridlon3Iforces. Hoop forces, whIch
rtstraln the out-of-plane movement
of the meridional strips In the shell of
adome, 3rtcompressive In the upper
zone ana~sife In the lower zone.
meridianal force ~........---........
Aforce acting along ameridional line
of adome structure, always
compressive underfull vertical
loadIng.
! conb!n the outward components of
; the rr.eridIonai forces. In 3 concrete
.: dome, thIs ring Is thickened and
.IT"
i ;.e~~io~~~ngthe l7aseofil acme tc
! rtlnforuJ tc ~ndle the ~ndlng
----lJ':.:>..----<">----'7"lIr+- stresses C3usea by the differing
elastic deformations of the ring and
5chwedler dome
Asteel dome having memPers which follow
the lines of 1atit<Jdeand longitude, and a
third set ofdla~nals completing the
triangulation,
shell
~ttiudome
. Astul dome structure havIng meml1ers
which follow thecircles of latltuae. and two
sets of diagonals replaCIng the lines of
longitude and formIng a series of Isosceles
triangles.
11 11 11
great circle
The cIrcle ofgreatest
d13meter that can ~e
drawn on a sphere.
geodesic dome
Astul dome havIng members which follow
thrte principal sets of9rtat cIrcles
Intersecting at ~ subdlvldlr.g the acme
surface Into;l series of ~uil3teral spherical
trlanqles.
t, !
'I
~l
l
'l
l
1
:.------------------------ -- - ..----------
r·-tb.~cl
: A'superstructure crownIng aroof or dome
: havIng open or windowed walls to let In ltght
andalr.
,cupou
AI1ght structure on adome or roof. serving
35 al:>elfry.1antern. or belvedere.
It.lml1our·
'The vertiCal part of acupola.
..··~---llrrterdome .
,/ The space betJeen the Inner and outer
~ shells of adome.
'
}-1~3rne 1
" Adormer window In a roof or spire.


~)
L,
'.- .----. Whispering gallei'y
J. space or gallerJ ueneath " dome or
i;1 vault In wh1ch low sounds produced
I at any ofcertain points are clearly
band.age .:..
audible at certain other dIstant
olnts.
Astrap. rIng. orchaln placed around a
structure to secure and hold Its parts
together. as around the springIng of a
aome,
DOME
..-------.-..-..-...~ oculu't
.{ AdlrC~iaropenlng. esp. one at the crown of
adame.
semiaome,
H3ff adome formed by avertical section.
as (Nllr asem1clrcular apse.
cul-de-four ~
Asemldome or:quarter-sphere vault. as
O'IU anapse or nlche.
pendentive ~
AspherlC.l1 triangle formIng the transition
from the cIrcular plan of a dome to the
poly~onal pLon ofIts supportIng structure.
----···--------'Iunette i
An area In the plane of awall framed by
an arch or vault. containing awindow.
painting. or sculpture.
 pe~tttive dome ~
. Aspher1ca1 dome formed by removfng four
~gments SO that It merges with Its
perJentlves and sIts on " square pLon.
~'L
/' , ~Ulrn;rt~)
, An arch or cOrl:>el1ng pullt acroSs the upper
Inside comer of asquare tower to support
the side ofasuperimposed octagonal
structure,
61
DOOR
Ahinged, sliding. or folding Darner
ofwooa, ~l orglass for opening
.nd closing an tntranu to a
building. room, or c.1binet.
sw~ing door
A000r ~ tunis on hinges or pivots aPout
avertical ~ wncn pushed or pulled.
_ i_ _ _ . _ _ _ .
pivoteQ door
AXcr ~rT1e4 on and 5Wln~ln~ about on a
un~roroff~ plvot, asdlstln~ulshed
from one hung on hinges.
foWtngdoor
Adoor IritJI hI~ ~ns that can be
~ fbt ~"Inst one another when
~
51iJin9 door
Adoor ~ opentes or moves Vy st1dlng
on. tnGt. usu4I1Iy p3n~1 to. wall.
rolling door
A ~ge doorconslstlng of horizontal,
~~ metal sbts gUided Vy atnd
on eitherslcfe.~lng Vycolllng about4In
~ Ihm ~ the head ofthe door
~
DOD
DDD
DDD
DOD
62
. .~ .: ~' .
:' ;::~'. f' ...;.~ ,""':,'.: .:_: :.:. :":'::':." ••• ' • . •
. '.'
.., l1alanced door
Ap~oW door that Is partially
courT"...erir.Ilancea foreasier opening and
c1051rtg.
allU)m.rt:ic door
Adoor that opens automaticallyat the
approach of aperson or automobile.
door opener
Amech3nism that automatically opens a
door ....hen actuated Vy aradio
tr3nsmltter, electric eye, or other device.
J-~..................._
...,-~i:;g:~~~i~;~::sthat permit It to
. swing In one direction only.
I
......... double-acting door
Adoor hung on hinges that permit It to
swing In either direction from aclosed
position.
double doors
I, Apair of doors hung In the same doorframe.
"
"
~
:'-""-Ieaf
!i . Ahinged or sliding section of adOOr or
shutter.
r-----ir----=.......j- .,'''- active leaf
,/
,.
,-' The leafofapair of"oulne doors to which
the latching or locking mechanism Is
attached. Also called openIng leaf.
...... ........ ....... Inactive leaf
The leafof apair of double doors to which
the strike prate Is fastened to receive the
latch or bolt ofthe active 1e3f, usuallyflxed
In aclosed position by bolts at the top and
bottom of the door. Also called standing
leaf.
/ .... astragal
./ Amolding attached to one or boUl meeting
stiles of apairof double doors to prevent
drafts or the passage of light, nolse, or
smoke.
mullion
-f-l··-,H+···_....I- l:rifolddoor
Aslendervertical memPer dlvidlng the
opening for ap.lrofdouble doors.
sometimes removal7le to permit the
passage oflarge oVjects••.-:;
r
I
i
I
I
Afolding door that divides Into two parts.
the Inner leafofeach part Pelng hung from
an overhead tr3ck and the outer '~af
ir ~ ucordlon door
, jill j pl.oted ~tthejam".
1--_.......I.J,...LJu.u.=ii.w' Amultileafed door that Is hung from an
overhead track andopens by folding back In
the mannerof an accordion.
rt-'-"Tl
I : I
I : I
I ('f"'-"'"
I : I
- pocket door
Adoorthat slides Intoand outofa
recess In adoorway wall
I ' I
I 1 I
I : I
1 : I
~ I
__.J i
/
,/
,-
/
/
,
/
/
/
,/
,-
....
.....
~'
.' ....
"
.'
,/ ' ................,
.
.
--.~- revolving door
An entr3nce aoorfor excluding dr.oft.s from
the Interiorof ai7ulldlng. COfI$lstlng offour
leaves set In the form ofacross and
rotatlng aboutacentral vertbl pivot
within acylindrically shapedvestl~k:,
Some revolvingdoors automatlc3llyfold
I:r.Ick In the direction of~ress when
pressure Is applied. providing a'eg41
passageway on roth sides of.Ihe door pivot.
......-~ wIng
One of the leaves of adouble or revolving
door.
r ...........~ sweep
overhead door
Alarge door constructed of one or sever31
!eaves. opening Vy swinging or roiling up to a
horizontal position above the aooropenlng.
i The flexible weatherstripping along the
eages of a revolving door.
air curtain
Astream ofcompressta air dlrec~
downward across" doorway 50 as ~ form a
shield t;{l exclude drafts.
I
I
I
!
1!
I
i
II
(
,

Y
:1,
1 I
r
j
r
r
I
r
1
I
r
711
r
.J
I
,.I
i
I
• •1
rough opening ---------..,
An opening In awall Into which a
doorframe or window frame 15 fitted.
pmb
Either of the vertlcaIsides of an
archway. doorway, or window opening.
~---+-+-- cased opening
.K.doorles.s opening finished with
trlmworl:.
'~------------~.~-----W~------------------
casing ________.___L __<.
The finished, often decorative
mmewori: around adoor or window
openIng, esp. the portion parallel to the
surroundIng surface and at ~ht
angles to theJaml>s.
subca,i/19
Arough casing for adoorway or wlndol'!
opening.
buc~ ----.---..-....-.
Asubframe of wood or metal set In a
partltlon to support the finish frame of
a door or window. Also called door
1ud, rough puck.
doorcle4r311U ------.-.--.~.
Thecle3ral1Ce required to prevent  __I~
DOOR
r:·~·:~~~~~y .-,-c-~-7:'.c~--:-7::::7:~ doorframe
" . '..- ",i Theframe ofa aoo11Y3Y, consisting of
i
I.
I
i
I
I·
t·
">;':1 twoJambs and ahead or lintel
':J- head
:0.1 The uppermost mem~erofadoorframe
.::.::1 or window frame.
.'.~-' doorjamb
..: Eitherof the two sidepieces of a
<j doorframe.
"l-
'::1 stop
I
:.~j The proj~lng part of adoorframe
'. ':1 agaInst which adoor closes. AlSo callej
:':: doorstop.
r-"--"",,--,-..u..."~-4
pianted 5tcP
AstopfOf'lT'led by attaching amolding
to adoorframe or window frame.
rauueteJ stop
A stop formed Integrally by ara bbetln
adoorframe or window frame.
blankpmb
Adoorjamb having no stops. nor
prepared to receive hardware.
'-~- sill
The horizontal member beneath a door
or wIndow opening.
--.--.-.....-...- th~hold
Inndlng Detween 2 doorand its II
~~~?i;::=,~;-;.. ~:
!--'-------------
the fau of the loci: stile, usually an ...
Inchnatlan of 'fa In. (32 mm) for each 2
In. (51rnm) of door thickness, allowing
the door to swing free of the door
The sill ofa o.oorH'3y, covering thejoint
between twa flooring m3Url31s or
provldlr.g weather protection at an
exterior door.
.~ ..--.- saddle
.,/ Araised piece offtoorlng between the
.... Jaml1s of adool1Yay. to which adoor fits
closely SO as to prevent its binding
when oper.ed.
frame.
~e:=~~·I·~I~~~,~~~;~-,·~···....-···..·..·..··..--· Maml
sectlan of woodwori: directly above a
do<xway.
ua"~m ----------.---.-----------
Acrosspiece separating adoorway
from awindow orfanllght above it.
uan~cmwindow -----.----.-.-~/
A window aDove the transom of a
doorway. Also calW transom,
tr~n50m Il~ht.
reYe411 ------------------- .. ---
The part ofaJamb ofa window or door
opening that Is vIsIpk: pet-ween the
outer wall surface and the Window or
aoor frame.
5wncheon
The reveal of a window or door open:ng
from the frame to the Innerface of the
wall. Also. esconson. scunch~n
.-- ------.---- fanlight
I~
;1 '
-=U'===
Veneti3n door
Adoorway having aform similar to that of a
Palladian window.
Asem!clrcular or semleillptical window
over adoorway or another window.
. -- ~kleli9ht
Awindow at the side of adoor or
another Window. Also calle.::! wfnglight
splay
Asurface that makes an oVique angle
with another, as where awindow or
dooropening widens from the frame
toward the face of the waI.
•' .__ .. __ . __ ... ,' ,.'
~ ,~ -. ~_t~~
 ~~;
::' . --------_... _--- '."---.
63
DOOR
paneledDoor .. --- .- ..• p3nel
AdoorhJvlng aframework of sUIes. rails.
ana ~ lI1untlns. filled with panels
of a;hInlla' 1113teriJt
Adistinc;t ~~ or dlvlskln of a
wall c.elll~. or door. recessed
below or raised 3bove the general
level orenclosea by aframe.
r3a ~ --- stile
64
Arryof various horizontal memDers
framing panels. as in a system of .'
panenng. apaneb:l door. window ,.-' IU
::~~c~~~~~~~:_~__________//
The uppermost r3il connectJng the j
stlk:sc:iap3~ door or winaow I.
sa$It. ico..=~~=Zx=-==d
IocIcrail ---------------------------- 1-------
The ,...ofadoo-that meets the
shutt1n4 stile n the level of the
~
i1ottom rail -------------- -----.-----
The lowest rail connecting the --D
stiles ofapa~ door or wiRdow
sa$lt.
french door
Adoor having rectangular gl3ss
panes extenang throughout its
length. and often hung In pairs.
AlsoCJlled ca~mentdoOl".
gra~"ocr
Adoor of heat-strengthened or
~pered glass. 'tlth or without
ralis exsUits. used primarlly a5 an
erTtrance door_
i
o
louvered door
Adoor having alouvered opening
for the passage or circulation of
air. Also C4l1ed Pllnd £1001"_
D
Dutchaoor
Adoordivided horizontally 50 that
the upper or lower part can De
opened or closed separately.
Ar,y of various:: ?right memDers
fr;;ming panels.;;5 In asystem of
paneling. apane!ed door. window
sash. or aches~ vf drawers.
hi"¥stile
The stile of acloer Dy which it Is
hung. Alsccalltd hangIng stile.
locI: stile
The stile of adoor that closes
against thefrar.-.e ofthe opening.
Also callea shlltting stile.
muting stile ~_J
Or~ ofthe a!nJtt.l~'-3 stiles In;; pair
of douDie doors.
vision light
Asmallli.aht In the upper
portlon cf;; door glazed with
clear g1355 for vlew~,~g.
louver --------~ ccmf,i~n door
An ope-nlng fltW 'r'lith sl.'lnting. An exterior door having aframe
fixed or rncvaD!e slats to admit air into which arfferent types of
Dut exclude r3ln ana snow or to panels can Doe in~rtea. 35 ascreen
pro0Je prlvacy. Also. louvre. for SlJmmer or st.onn sash for
winter.
f,.tun door
Adoor const~.ed of vertical
l7oard5 hekl to~her Dy
horizo:1cal lr.itter.s and
diagonal Dracing.
Jip door
Adoor hinged ~ be flush with the
wall on either skk and treat.eJ sa
35 to Doe Indisu;-niL>te when cbsed.
Also. gl1:7 door.
storm door
AI1 outer or supplemeir'..3'j
door. usua!1y glazed. for
protecting an erTtr;;lnce :XNr
from dr;;lfts. driving /din, or
severe we3tr.er.
screen door
A.1 exterior door havingr-ooJ
or ..Iuminum sU!es ana r.lils
that hold a wire or pI3S';l::
:nesh to ..dmit air I7Ut ~!ude
in~s.
I .
1 .:
i
u
I
Li
L
l.
L
L
,
L
i
L
1
i
I
l _.
iI .
: !
i.-'
t
'i
DOOR
aajll5table doorframe
Adoorfr4me h3vl~ asplit had andJ:Jmbs
for InstJl13tlo11In various WJU thld::nesses.
prehung docr
Adoor hu~ In adoorfume More
Ittstall3tlon In awall sometllr.es preflnishecJ
and prefltted wtth all neces5Jr)' hardware
aM casl~ ~m.
acoustical door
Adoor hJving • sound-&e3dening
cor-e. ~sketed ~ .lang ~
t....t' an.::! sides. and an autolTutic
drop ~I along the bo«om. Also
ca11ed SOOnd-iIl5ULrti~ doer.
.' ----- krIockdownfume
sclkJ-ccre door
Awood flush door having a
solid core of staved
lum!1er. partlck: Doard. or a
minerai composition.
k3~mein door
AdoorhJving astructural
wood core cl3d with
galvanized sheet metal.
~
~
Amet3! doorirame
composed ofthree ormore
.._.- we!de.dfnme cutQff:,-top
flush door
Adoor havl~ smooth-surfaced faces.
1
IIIIIt--core
Awooden construction. as In adoor.
forming alIacklng for face veneers.
cr05s(,anding
The plywood or hard!loard veneer
Immediately ~eath the face veneers of a
flush door. Also. crossl1and.
docrskin
Asurface veneer ofplywood. hardboard.
p13stlc 13mll13te.ormedium densityoverlay.
bonded to the crossbandlng or core of a
flush door.
hollow-ccre door
Awood flush door having aframework of
stiles and ralls encasing an expanded
honeycom!l core of corrugated fI!1erl1oard
or agrid of Interlocking horlzontal a
vertical wood strips.
hollow m~1 door
Adoor luving face sheets of light-gauge
steei PorJed to a steel channel frame,
reinforced wtth channels.• kraft
hontj'COm!1 structure. or3 rigid p~stIc­
foam core.
r-----
L- ____ _
throat
rhe opening between
the Dackbends of a
metal doorframe.
backbend/....
The fa~ atthe oUter
edge of ametal
doorframe that returns
to the wall surface.
hollowmetalfr;,ame
Adoorframe having a head andJamDs
formed from asl~le piece of metal.
flu5hfraIM
Ama.1 c:Ioormnneks~ ned to be
Installed durl~ the construCtion ofa
masonry or stud wan.
drywall frame
~
~~sforassem!llylnthe
Amet31 doorframe th3tls
completely set up and
welded at t~ factory.
Astop having aclosed end that
terminates above th~ floor line
a45°or90°angle. Alsacalled
hospital stop. sanitary
stop.
Aknockdown frame having adcullle-return
backbend for Installation after adrywall
partition Is finished.
anchor
Ar.y of var'.:,..s :netal devices for
~r.a'l~ orc P3rt of astruckJre to
arccher.
pase anchor
Ametal clip or device for
securing t~ !;rase of a
doorframe to the f.oor.
"""
i
!lpat ~ ..;
Aprotect!ve lining,
usually of stainless
scul. at the !13~ of a
doorfrarT1(:.
groute.:f frame
A metal doorframe completely fll~ with'
plastel' or mortar for structural rigidity
and Increased fire resistance.
double egre!ltS frame
Ametal cIoorframe prepared to receive a
pall' of single-acting doors that swing In
opposite directionS.
65
DRAWING
The art, process, or technique of
representi/19 an ol1ject, scene, or
ide3 b:t me3ns of lines on a surface.
technique
A method or procedure for
accompl1shl~ adeslrea aim or tas~. as
that c:mpbyed Py an artist showing a
high ~ru of skill or command of
fundament3ls.
centour drawing
The technique of drawing lines to represent
the contours of asubject, without shading
or 1T1Oddi~ of form.
centour
The outnne ofatwo-dimensional shape or
PoundIng edges ofII three-dlmenslonal
form.
modeling
The technique of rendtrlng the illUSion
of volume. depth. or solidity on atwo-
dlmensloni/ S<Jrface Uy shading.
66
freehana drawing
The art. process. or technique of drawing
~ hand WIthout the aidofdraftlng
Instruments or mechanical devices. esp.
for the representatlon of perceptions or
the visualization of ideas.
grisaille
MonoehrolT'.3tic painting In shades of
gray to produce 3 three·dlmenslonal
effect.
F'EKCEIYlNG
lMAGlNIHG
-t..
I
I
I
DRAWING _.:..('
~----"--lZ..' ,{'
line  ~ .. .
Athin, continuous 1TI3r: made on ~ -
surfau with apencil, Pe:'!. or ~rush;'?s
distinguished from shadi~ or eolor:
outline .
Aline describing the outer boundary ofa.
fjure or object. '.
profile
An outline ofaform or structure seen or
represerrted from the side.
c~,-cont.our ar3wi~
The technique ofdraw1114 hoes to
represent a~ of cuts across the
surface ofII fonn rather than,tts edges.
~. f /
gesture drawing
The technique of drawing asingle or multlple
lines freely and quldly as asubject Is
scanneJ and percepUoos ofvolume. rn.oss.
movement. and significant details are
projecW onto the drawing surface. In
contrast to contour drawing, gesture
drawing generally p~s from the whole
to the p3rts.
"g~
A1r'CI'em...~ ofthe b na.arm. had. f.Ice. or
?t~=:F==i~="':::;:- body th3t expresses an Idea. opinion. or
.,'c:motlon.
movement
The effect or Illusion of motlon conveyed by
the relationship of structural elements In a
(l~:::::::~:;::-;:;=;:=:~~~-deslgn or compositIon.
reg ulating line -
A o~ drawn to measure or-express
a~.gnrrent. SC3le. or proportlon.
trace
Aline I~htly drawn to record ali~nment
or Irasurerr.ent.
siuaifl9
The r:ndering of Ilght.nd dark V4lluesln ~
drll~ to Cre3te the Uluslon of three-
dimensionality. represent light arJ s-ha.1ow.
orgive the effect of color..
h.ttching
Sh3dlng composed of flne "ncs drawn In
close proxlmlty.
~,h.ttchin9
ShadlI14 composed of two or more series of
Intersecting parallel noes.
I
Il ~
~~~ng L
Shadlng by means of anetworl: of random.
multldlrectlonallines. ..
high-key
Havir":l chiefly l1~ht tones with little
ccntr.;st.
stippling ,
Sh3dlng by means ofdots, small spots. or
short stroKes.
key
The dominant tonal value of adrawIng or
palntlng.
low-key
Having eniefty dart tones with
nttle contrast.
r
t
I '
r
I
I
•
r
r
L
I
I
,ketch
Asimply Of hJsUyexecuted drawing or
palrrtll1g rep~ the essential
ftatures of an ~ Of scene without the
detJils. often I1Ude as aprellmlna ry study.
sway
Adrawing executed as an educational
e~rcise, productd as aprelimina ry to a
final wor1:. Of made to record ol7servatlons.
ScmetImes referreJ to 35 3 referential
dr.1wing.
conception
Ad~wing of so~lng Chat dees not yet
exist.
drm
Aprelimlna!), s1:~ of adeslgnOf pian.
esp. one subject to revision.
es-quis5e
A $l:etch showl~ the general feJtures of a
design or plan.
epure
AflJrt-SQIe, ~ drawing done 0f1 3 wall.
fbao.orother~sumce. from which are
~ the patterns forvarlous Dulidlng
elar.ent5.
cartoon
AflJ~-sca~dra~ of it motif(X'des~n. to
~ :.toInsfmed In preparation f.x afresco.
lI1OS.Oic. ort3~try.
renderi~
A.:Inwing. r:sp. apers~ive. of a ~Iiding
Of'" intuol" spau.artlstlcalfy deHneatln~
1T'.oI ~rl3Is. shades 3nJ shadows: USU3 Ify
done for tM pu~ of presentatlon and
~U3Sort
tfom~roeil
mass
Aunlf'.ed area of Ilght. shade. or color
that deflnes shape orform In general
outhne rather than In detail.
passage
An area. section. or detail of awork. esp.
with respect to Its qualities of
executcf1.
Adrawl~ Cf' painting In which objects are
rendered In extremely fine detail to
emph3slze the Hiusior c' tactile 3-j sp3tlal
qU3rtt ies
DRAWING
design drawing
Any ofthe drawings made to aid In the
vlsuaflzatlon. exploration. and evaluation of
aconcept In the design process.
presentation drawing
Any ofasetofdesign drawings made to
artlculate and communicateadesign
concept or proposal. as for exhibition.
review. or puDllcatlon.
+.
.', )?)~
. $I:} ,6 ~~ 'I/?
,( r; ..~ ~~~. • :P
~', ~~~~~~~ / V'
'. J . . 1-..-- /Ah_
"', M~I ,//~
?fE..~
vignette
Adrawing that Is shaded off gradually Into
the surrounding paper so as to leave no
definite line at the border.
analyti~ue
An elevato!l drawing of afacade. surrounded by
adewratlve arrangement of drawings of
Important details 3 nel somei:lmes apl3nor
section of the fac3ae.
67
DRAWING
drafting
Drawing done with the aid of such
Instruments as T-squares.triangles.
compasses. ana scales. esp. for the
sys~tIc representation and
dlmenslonal specification ofarchItectural
and e~lneerlng structures. Also called
muhanlcaf drawing.
o17jectline
Asolid line representing acontour of an
oi>ject.
tUshed line --------~=---+---+-!
AIn-oken nne conslstl~ ofshort. closely
spaced strokes. used esp. to represent
object nnes that are hidden or removed
from view.
dotUd line ---------H+-trH==--~1___l
AIn-oken line conslstln!) ofaseries of
closefy spaced Oots. sometimes used In
place of adashed line.
unUrline
AIm*en nne consIstlng ofrelatIVely long
segments separated by sIngle dashes or
dots. used to represent the axis ofa
symmetrlcaIelementor composition.
68
'. crowfoot
AV-shaped mark.the apex ofwhich Is a
reference point.
leader
Ashort line leading the r;ye from anote or
dlmenslon to areference point. nne. or area.
17reakline
AI1roi:en line consisting of relatIVely long
segmentsJoined by shortzlgZ3g strokes.
. used to cut offaportion ofadrawing.
o
grid
Arectangular system of lines and
coordInates serving as a reference for
locating ana re1uiJtlng the elements of a
plan.
co",truction drawings
The portlon of the contract documents
snowl~ in ucurate graphic or pictorial
fonn the ~lgn.lccatlon. dlmenslon5. and
relatlonshlps ofthe elements ofaprojxt.
Also C311edCOfTt.nct drawings. wori:fng
I dr.iwi"4s.
~I
An emrosslng stamp used l1y a licensed
architect. engineer. orotherdesign
professlol13t on Wltract drawings ana
spectftcatlons to show evidence of
~Istratlan In the: state wMre the work Is
to ~ perfonTltJ.
/~~
( ~-'. .
exten~ion line
Ahne e:xtendI~ from an edge or fe3ture of
an o~. to which adlmenslon hne Is
drawn.
dime~lon line j
Aline terminated by arrows. snort sl3shes.
or dots. lnalcatlng the extent or magnltude
ofapart or the: whole. and along which
measurements are scaled and Indicated.
'l
I
.....
!
L.
r
I
.,
1 I
~'"'
!"I
~I
l
1
!
1
~r1ptive teCmetry
The theory of ","*Ing project1ons of three-
dlmtl'l.Slonal o~ on ap~ne surface In
order to deduce their geometric properties
and relatlonshys.
<~I~
11===fF
".
···••.~1in9
~dpl.1a ----~
ApI.;nofaroom as seen from aw,re hit
having its celhllf Sijrf3ces arld elements
proj«ted dowr.ard upon It so that what
would appear to1he right whc1 seen from
~ appears 011 the plan to the left. Also
calbi ~ cef1l~ plln.
mmi~pUn
ApUn showing the pattern, elements, and
CO!UIeCt1ons of die: structur.llframe for a
fu.;lr or roofof~ butldJrtg, usl~;; system of
symrols and draftIng nnewon.
XI
1~1====l1
·...I~===ll
.....
c.ontcurline --------~P"TJ_+--:"'"'T! !
~:::::~;~~:p:::c r(/,//('
c.ontc~'~------------~~~~~~~~II~~~f
The d!fferenu I.e!MtIon represented by
t3Ch COI1tour l1neon 3 top::graphlc plan or
map.
gradi~ p~n
A~ nshowing ~ proposeJ ftnlsh
contours arld emtlons cf the ground
surface of aconWuctlon sI~
narth arrow
Agraphic symbd ~ on plans and maps to
Indlcate the dlrectloo of north.
~a!e
Aproportloo determining the relationship
of 3 represtntatlCn to that ~lch It
represents.
graphic ecale - - - - - - - - - - f
A graduated hnearPar Indlcatlnq the
proportion ~ a representation and
that which It represents
' . .
.~._ _
'. __ ~'~. __'l.. _
DRAWING
projection
The process or technique of representlng 3
thru-d1menslonal o~ by projectlng an
its points by str3lgh-e nnes. eitherparallel
or converging. to apicture plane.
orthcgraphic projection
Amethod of projection In whlch a-ehree-
dimCf1slonal '*.!ect Is represented by
projecting lines perpel1dlcul.3r to aplcture
pl.3ne. Also called orthogonal proJection.
plan
An orthographic projection of the top or
sectlon of an o~ect or 5truct<Jre on 3
horlzoa"t31 plane. usually drawn to scale.
Also calle.d plan view.
floor ptan
Aplan of 3 rOOm. suite. or entlre floor of a
puildin~ as sun from above after a
horlz0n"t31 sectlon ls cut and the upper
portion remOr'ea. typlc.:ifly shewing the for:n
and arrangement of interlor spaces and
their enclosing walls. windows. and doors.
poche
The walls. columns. and other sof41s of a
l:tulldl~ that 3re cut !n 3floor pl3n or
sectlon drawlng. tnd1caw.J USl!3fly In plack
orby hatching.
rocfpL1n
Aplan showing the top view of apulkllng.
esp. the form of Its roof.
~iU pL1n
Aplan showing the form.iocatlon..and
orientation of 3 l:tultding or group of
17ulldlngs on 3 site. uSU311y Includlng the
dImensions. contours. IandSC3plng and
other s19ntf1cant features of the plot. AI50
called plot plan.
area plan
Aplan showing the principal elements ofa
design proj~t In the wider context of Its
surrounding en"lron~er.t.
69
DRAWING
&tCtio1t
An orthographic proJectlon of an object or
structure ;lSft woold appear if cut through
by an Intu~ plane to show Its
In~1 configuration, usually drawn to
5Q~
eros, S<':ction
An ort~raphlc projection of asectIon
rruk ~ cuttl~ transversely, esp. at right
angles to the ~ axis of an object. Also
cai1ea mns.,.erse section.
e:b7tWn
An ort.hogr#phlc projection Of an object or
struct<Jre 00 avertical picture plane
p3ratld to one of its sides, usually drawn to
SC3~
70
.shades ana shaaows
The casting and rendering ofshades ;Ind
shadows, esp. In orthographic views, to
conv~ li9ht, surface, form, and depth.
shade _ ...... _......_.......................
The parts ofasolid that receive no li9ht
~u~ they are tangent to or wmeJ
away from a theoretical light SOIIrGe.
shadow
AdarHlgure cast upon asurface Dy an
opaque body Intercepting the rlIYs from
atheoretical light source.
Iongftudin415Ution
An ortkoqraphlc projectIon of;l sectlon
made Dy cuttl"1 through the ::Ingest ax!s of
an ol1ject.
section line)
Acerrterllne termInating In aperpenalCular
~rnent with an arrow, used to indIcate
where ;I sectlon Is cut In aplan or elevaticn
view and the direction In which the sectlon
Is to be viewea.
opliCiue $eCtion
An orth~raphlc projection ofa section
made Dy cutting with a plane that Is neither
paraIlei nor perpend1
cular to the long axls of
an object.
~oo
~~relief
An apparent projection from aflat
bacl:ground due to contrast, crt3tlng t~.e
Illusion of three dimensions.
r-·lceal color
. The naturlll colorof a part~ular09ject .s it
. would a~r In white tlght.
I
It
I
It
"
L.
III
lu
Ii i
, ~
U
!
Lj
I:
r1
il
r
r
r
r
J
r
1
f-
p.1r.1line drawi~
Arry ofv.ri:les slnglc-vk:wdrawings
,hm~ by pml1ellnes
rtmaln~ pml1el to e3Cb other
rather tn.311 converging ~ In linear
perspective.
ph.1ntcm
A part of" dr3wlng that Is made
tn!1S~renttv permlt
reprtSelTt~ ofdetJlis otherwise
hidden fromrlew.
c~~
A dr;l~ or,"ode! havi~ an
ouw StCtlon relnO'leQ to
dispby tM ~ior.
exploded new
A drawlng ~ shows eM Individual
parts of awoctureor coostructlon
separ.rt:dy M Ind~ their proper
re1.atlonships to each other and to
the whole. Also calW ~naed
view.
phantcm line
A brol:en anc wnslstlr.~ of rela tively
10"9 ~rno'Its separa~ by two
short dJs~or dots. used to
represent aproperty IIne,;in
alternative posltlcn of apart of an
object. or the relativ~ po9t!on of J n
•~ntPJrt.
dimetric projection
An axonometrlc projectlon ofathree-
dimensional object incnnea to the picture
plane In such a way that twoofIts principal
axes a~ t'qual1y foreshortened and the
third appears longer orshorter than the
other two.
trimetric projection
An axonometric projection ofa
three-d1mension31 object Inclined to
the picture plane In such away that
all th clpal axes 're
fo ata d'- en
cavalier drawing
A parallne drawing of an oblique prOJection.
having the receding lines perpendicular to
the picture plane drawn to the same scale
as the lines parallel to the picture plane.
isametric
Apar.lMne draw',~ cf an Isometric
prdp:;tlon. h1vi~4 .!llInes pml!el to the
princIpal axes .;l,":lt'ln to true leryth at the
sa;r,e scale.
c3Pinet drawing
Aparanne dra.... :~:f an oblique proJection.
h3Ylng 311 lines pra'iel to the picture plaM
drawn to exact scale, and the recedlng I1nes
perperdicular tc j,e picture pl3re reduced
to h3:f sc3le.
DRAWING
.1xonometrlc projecticn
The orthographic projection ofathree-
dimensional object Inclined to the picture
pllne In such a WilY that its three principal
axes are foreshortened.
3xonometric
Aparaline drawing of an axonome~ric
projection. haVing all lines parallel to the
thru principal axes drawn to scale Dut
diagonal and curved lines distorted.
is-ometrk: projection
An axcnametrlc projection of athru-
dimensional object having its princlp31
faces equally IncUned to the picture pI.ne
so thatIts three principal axes are equally
foreshortened_
opli'tue projection
Amethod of projectlon In which athree-
dimensional oOJect. having one princlPJI face
parallel to the picture pf3M.ls.cepre5e1'lW
D:i projecting parallel nnes at some angle
other th3n 90°to the picture plane.
oPliqLle
Aparaline drawing of an oDlique projectlc;1.
having all nnes and faces parallel to the
picture pllne drawn to exact scale. and all
reced1n~ nnes perpend1cullrto the picture
plane sMWT13t any convenient angle othl!1"
th3n 90~ sometlrT'es at areduced scale to
offset the appearance of distortion.
71
DRAWING
perspective
Ivry afV2.nouS ~hnlques for representlng
th.ree-dlmenslonal objects ana spatlal
rtutlonshlpson atwo-dlmenslonalsurfact
as they might appear to the eye.
liij
~I perspective
A~hnlque for rendering depth ordlstance
!Iy muting ~ hue, tone. ana dlstlnctness
ofobjects perceived as receding from the
plcture·plane. Also called atmospheric
perspective.
linear perspective
Amathem3tlcalsystem for representlng
three-dlmenslonal oDjects and spatlal
relationshipson atwo-almenslonalsurface
loy means ofperspective projectlon_
~pectJve proFtion
Amhoc:Iofprojection In which a three·
dlrnenslonalobject Is rtp~nte.d !rt
projectinganIts points to ap!cture plane
!Iy straight linesconverging at an
~rlly flxed point representJng the eye
of the vlewer_
The illusion of sp3U or ~pth deplcW on a
means. as aerial perspective. contlnuity of
continuityof outline
Af.Xhnlque for representIng depth or
d1stance by emp/13stzlng the contlnulty of
the contour of a shape perceived as "clng In
front ana conceaNng a part of another
Pehlnd It.
pictorial space ~
two-dimensional sumce by various graphic X
rn.o",,,,,,al~tIc~, _
i, - -- - ----->--
. _' 1--.... - ... -_..., ~patUl edge
___ An edge of an object or surface separated
from Its bacl::ground by dn InU:r;a1 of space.
denne3tea by a thlder fine or by asharI ~
contrast In value or texture. ;::r '
vertlc~llocn:lon
A~hnlque for representlng depth or
distance !rtplacing dlst.ntobjects h~her
In the picture plane than otjects ~ed
;;as being closer.
~ize perspective
... ~hnlque for representlng depth or
dist;;ance !rtreducing the size ofobjects
pcruIvedas receding from the picture
plane.
""':.:'<"f.:- t:;:
:;;;
hi
Uxture p~pectlve
A~hnlque for representlng depth or
distance by graaU311y IncreaslM4 the
density ofthe texture of a sumce
perceived as receding from the plctore
pl4ne.
r- picture pl4ne
j An Imaginary transparent plane. coexlstent
I wft:h the drawing surface. on whk;h the
I lma~ ofathree-dimensional o!7je.ct Is
~;:~~I~·th~·I~-~~·~-·-·~~~~~~~~~
the centl'2laxis ofvision and the plcture I
! projected. In Nnear persp-ectlve. arty line or
pl4ne colnck:ltnt with the picture planec;an
Ve drawn to exact scale.
pbne In hnearperspectlve. ~~II~~llli,~Jlllii~~§~~=J'''''--vanishing point
!5'btionpoint ..-- •.•.••••••••••.-.... ,/ Ap?lnttowardwhlchnualngpmllellines
Aflxt.d point III spare representlng a / appe3rtoconver~ In llnedr perspective.
slC'lg~eye dthe viewerIn hnear :' 1oc3teaat the point where aslghtllr.e
perspectlve. / parallel to the set of lines Intersects the
ccne ofvi~lon
The field ofvision I'2dlatlng outward from
the eyeof theviewer In nnear perspectlve.
deflnedby slghtllnes forming alS°to:30°
angle wft~ the central axis ofvlslon. The
cone ofvision serves as aguJae In
tkt.ermlnlng what ~n ~ drawn In hne;lr
perspective wfthout the appearance of
distortion.
72
• picture plane.
-4
central.1xf~ ofvf~ion
Theslghtllne InalcatlM4 the direction In
which the viewer Is looking In linear
.perspectlve. perpendicular to the picture
p!a~e.
horizon line
Ahn.e representlng th., intersection of the
picture planeanda horizontal plane through
the eye of the viewer In n~r perspective.
ground line
Ahorizontal line representlng the
Irrtersectlon of the ground pbne;;ana the
picture plane In linear perspect~e. Also
called "'&aline.
.- ground pl~n6
Ahorizontal plane of reference from which
vertlc31 measurements can ~ taken In
linear perspectlve. usually the ~ar.e .
supporting the object depicted or on which
the viewer stands.
I
~
i
P
I
~
· "I
r
"'If
f
I
l.o.l
...
I
1
1
;'1
I
t.~!
ccnvtrgence
The apparent movemertt of parallel lines
towara "cammon v.nlshlng polrtt 3S they
reude. usea In linear ~lYe to convey
an HkJsloo of space anadepth.
diagonal vanishing point
AV3nfshlrtg polnt for aset of horizontal
hnes receding at a45°~1e to the picture
plane In hne"r pe~ Also called
diagonal point. distance pOint. ---.--
..' Par;lUellines rising upw3rdas they
/ ~WiH3ppe3rt<JCOtTVerge'
/ sornewhert ~ the horizon line.
.... ,. V3n~hlng trace
P"rallellinesperpenJicul.1rt<J the
picturepune tt{lIappe3r t<J ~nverge at
the centerofvision. ~-------1
horizon line
Pmllellinesp;u-allel t<J thepicturt
pl.1neret31n theirorientatlon and Will
netappeart<J con~ge.
I
DRAWING
peNpectJve
A arawlng of the perspective projectlon of
an aDject or scene. characterlzed chlefty l1y
convergence ana foreshortenIn!!.
.- --~-.-.- j-"- - .......• foreshortening
wapparentcontractlon ordlstortlan ofa
represented line or shape that 15 not
parallel to the picture plane. conveying an
iIIuslon ofexte~slon or projection In space.
one-point per5pective
Ahnear perspectiveof arectangular ODJect
orvolume having aprinCipal face parallel
with the picture plane. so that vertlc3lllnes
parallel to the p1cture plane remain vertlc3l,
horizontal lines parallel to the picture p13ne
remain horizontal. and horizontal lines
perpendicular to the picture plane appe3r
AIlne along which all sets of receding
p-JI'3/1ell1nes Iyfng In the same or parallel
planes will appear to converge In linear
perspective.
.,.c..--,-~~-~--I--+--1---=~-'~+-~~-:>"'---':"~J . to canverge at the center ofvision.
fd.d IMs sloping dol+f1W1rdas
theyrmJe wfflappex tc~nverge
~ere Pelow th~ horizon fine.
an.3 morpho,ls
Adlston:eJ 11r139t: that
appe3r5 In n3tural fOl1l1 only
wh~n '(IeweJ at a~~I 3"!!Ie
or reflected from acUr.'W
mirror.
graphiC
mea,uring point
AV3nlshlng point for aset of parallel lines
used In transferring scaled measurements
the picture plane to lines recedlM!J In
linear Ive. '----'
me3,urlng line ...---..--.~
Any nne colncldent with or parallel to
the picture pl3ne. as the ground line... '
which can Pc used to take ...
measurements In "nea.~,~rs~~.
horizon line
Of or relating to pictorial
representation, esp. that which
depfcts In aclear and effective
1T13nnu.
View 3t" shallow
angle from thispoint
Parallellines which art hCriz0nt31M not
pe~dicul3r t<J thep~ plane WiUappear
to ~rrYf:rge somewh~ en t.~~ horizon /in~.
isocephalic
Having the heads ofall fi9ures at
approximately the same level Also.
~phalor
lOt-~
two-point per5peaive
A"near perspective of arectangular aDject
or volume havll14 twoprincipal faces oblique
;.0 the picture pl3M. 50 th3t vertical nn~
parallel to the picture pl3ne remain 'r'rnc31
and two horIzo1TtaI sets ofparallel lines
ol7ilque to the p1cture plane appear to
C011'r'erge at two vanishing points. 0I1~ to
the left and the other to the right.
diJg<'naf •.- ..-...-...--.--..-.----....
Astraight line connectlng two .
IlOrI3dpcen't angl.es of arectangle. used ....
111 S1JpdMdlng a whole Into .
propor..lonate parts or multiplying"
'. ··~~Ic unit of measurement or space..
three-point ptr5pectlve
Alinear perspective of arectangular object
or volume having all prinCipal faces o~nqu~
to the picture p13M. so th3t the thr~
principal sets ofparallel nnes appear to
converge at three different I'3nlshir,~
points.
73
ELECTRICITY
The sciena dealing with the physical
pheno~ arising from the
existence and interaction of electric
charges.
electric wrge
The lntrinsW; property of lNtter giving rise
to an electr1; phenomena, occurring in two
forms arl1itnn1y given posttlve and negative
alge~ralc ~ns and rr.easured in coulom~s.
Opposite ~rges attract while li~e charges
repel each oU1er.
coulomp
The 51 unitofelectric cfmge, t:qual to the
quantltyofelectricity transferred across a
woauctorloy :a current ofone ampere In one
second. Abk.: C
Ii
'. ~agt!ioftwo or more cells connected
together to produce electric current.
electromotive force I cell
Adevice for converting chemical into
The energy per unIt chargeavalla~1e for erectric energy, usually consisting of a
conversion from achemical, mechanical, or receptacle with electrodes in an
other form of energy lllto electrical energy, I ' electrolyte. Also called electric cell,
or vice versa, In aconversion device as a I galvanic cell,voltaic cell.
~attery, generator, or motor. A~h.: emf •.... "'.'.
potential difference ! electrolyte
The voltage difference Petween two points I Anonmetallic conducting medium In which
E~~::~~:::~r~:~::w Y :":~::5:,~:::t:~~::::t"~~"'
potential / j ::::~:vesanunmetallic medium.
(}:=~ ~) ~;;;~?f':~~:~' ( r_m--u~u .--..... ~,,:~~"~""r~rof'Pri~~,err~
i-----.o---t-----<).o-,~-~-..... llll.11 +-".'." ...., ~~~:Iveterminal ofaprimal)' celf or
I
f.ow: curnnt
j
w= VxA
----r-
power ....l
The proaua of potential difference and
CUi1"el1t Itt J direct-currentcircuit. In an
atternatln§ current circuit. power 15 t:qUJI
to t1le ~ of the effe:ctlve voltage, the
effectlve Cll!'Tent. ana the cosine of the
p~se 2f141eretwetn current 2na voltage.
wrtt
The 51 unitofpo-""er, eqUJI to oneJoule per
~ortothe power ~ by a
currentof0IIe ;Impere flowing across a
potential ctfference ofone volt. APlir.: W
~e
An amountof power, esp. the power
required to oper.rte an electrical device or
applial1Ce, expressed in watts.
kilowatt
A tIf1itofpower, equal to 1.000 watts. A~!7r.:
leW
lei!ow;rtt--Jour
A unit ofene-rgy, equal to the energy
transferredor expenkd by one kilowatt in
one hoUr:;I common unit ofelectric power
GOnSIJmptlon. A~.: kWh
74
voltage L
..• circuit .__./
./
f'otentl31 difference or electromotive force The complete path of an electric
expresStd In volts: analogous to pressure In current, including the SOurce of electriC
water flow. energy.
volt
The 5/ unit of potential difference and
eIecWmotlve force, defined as the
dlfferenu ofeb=tric potentlall1etween two
points of2 conductorcarrying acon~i1t
curren't ofone :ampere, when the power
dlsslp2ted Pe'tween the points Is t:qua! to
one W3tt. A~r.: V
current •...•. ~
The rate of flow ofelectric charge In a
circuit per unit time, measured in amperes.
More therrmngfeJectrlcttyw.l5 fuDy
~,It ~S3SsumeJ th3t3 JlrtCt
aJrmrt fJoweJ fi-onI; positivepoint ~3
neg3tlveone. ThIsconvention Isstiffusedtren
though electrons flowin the oppositedfrectlcn,
from n~tiY~ r;,positive.
am~e
series •............................_
..' ..
An .rrangementofcomponents 1n;;:1
electric circuit In which the same
currentflows through each component
In tum without pranchlng.
parallel •.•......•..•.-. - .....-..........•.
An arrangement ofcomponents In an
electric circuit In which all positive
terminals are connected to one
conductor and a/l negative terminals
areconnected to oil second conductor,
the same voltage Dtlng applied to each
component.
resist.1nce ~ .... ..j
Theopposition of aconductor to the
flow ofcurrent. causing some of the
electric ener~ to ~ transformed Into
he4t 2nd usUi11y measure4ln ohms.
A~Pr.:R
ohm
The Sf unit ofelectrical resistance.
t:qual to the resistance ofaconductor
In which apatentl31 difference ofone
volt produces acurrent ofone ampere.
Syml7ol:0
storage ~ttery.
resistivity
The resistance per unit length of a
sul>stan~ with aunit cr05s·sectlon.a1 area.
Also called spec;i& reslst.an~.
ccnductMty
AIT1e3sure of the auliltyofasul>stance to
conduct electric current, equal to the
neclprocal of the resistivity of the
sul>stance. Also called specific
conductance.
The ~asic 51 unit ofelectric current,
t:quivalent to aflow ofone couloml1 per
second or to the steady current producea
!Iyone volt applied across aresistance of
one ohm. A~!n'.: A
Ohm's law •....- ........-...-................- I =VIR
The law that for any circuit the electric
amperage
The strength ofan electric current
measured or expressed In amperes:
analogous to the rate of water flow.
current Is directly proportional to the
voltage and Inverselyproportional to
the resistance.
Joule's law
The principle that the rate of
production of heat by adirect Current
is dlnectly proportional to the
resistance of the circuit and to the
square of the current.
~ j
I
U
I
P
I
r
i
¥Mra-tcr
A mJChlM that converts mechanical
e~rgy Into electrblenertr:J.
alttrtutor
Ageneratorfor producing alternating
current.
ELECTRICITY
~di_wm~
~ An electric currentflowing In onedIrection
~ . only and having amagnitude that does not
~ . time vary or varies only slightly. Abbr.: DC
r--------------------l
electric motor ---------:'i~ - :
.. alternating current
An electric current that reverses directio~
at regularly recurring Intervals, having 3
magnitude that varies In asinusoidal
manner. Al:rbr.: AC
A macnine that converts electric power I I
Into muhanlcal energy. I :
I ,
arl113ture ----_.______._. __.____ .l.. ..___ ----- _. - I
The main cum:nt-canyfng winding of a 1_ " I vott-ampere
;=:::~7nhd~~d. L~___~~,~·~~-----------J r------------------- i
.,~' I I
Aunit ofelectric measurement, equal t<J
the product ofonevolt and one ampere,
equivalent to one watt for dlrect·current
systems and a unit ofapparent power fer
alternating·current systems. Abbr.: VA
l1r~h •.-...____~._..__.._-...........
A~ orcarronconductor serving
ta maintain electric contact !?etween
fixed and mOvIng elelnents In amotor or
generat.?r.
ill
~rviu
The supplyi~ of uUlitles, as water, gas, and
~~Ity. ~ulred ordemanded by the
pu~c..
line drop
The decre3S<lln voltage between two
polnts 011 a power!Ine, usually cause.:!
by res!st3T1ce or leabge alone the line.
5e"";~ entranuconductor _........._
.. _...._
The portlon of 3 servuconducr.or
~ng~3~~~or~~u
Ia~ral to the serke equipment of a
buikflng.
'tIf<iItt-hour meter -.....--.
Ameter for rne;lS~ and
recording the 'iuartmj' of
eleGtric powerconsumed with
respect to Clrne. rr-=-=::::----=---
---------------~-
r- -I r-
! tr.InsfonMfvault l I
I Aflre-:rated I'0OI1 housing a I I
I I I
I ~nsfor1f1erandauxlharyequlpment I I
: for aI3rge building. usually located on '-rl'J..
~raJe orPelow~round and ventilated V1
: dlrectly to the outside air. : i
L ___________________ -1 I
standby genaatcr
Agenerator for providing emergency
power during 3 power outage. Also
c:J11ed emergency generator.
uninterruptil1le power supply
An emergency system designed to
provide power automatically and
Instantaneously upon failure of the
nomul power supply.
I
I
I
I
I
,
""1..-1__1
- 1--'
I
I
I
I
I
I
I
I
I
I
I
I
I
core ----.------.----.-.-..--...- ..-t-.... l
Amass of Iron or otherferrous I I
materIal In an electromagnet. Induction l
co!1. ortransformer, 5erVlng to k- transformer
concentrate and Intensify the l An e!ectrlG device consIsting of two or more
magnetlc ftekl resulting from acurrent _J J ..L _ L
I I whlLllngs wounCA on "fiCO same core, wldch
In asurrounding coil. I employs the prinCiple of mutual Inductton to
coil _________....._...__..._
..._ ·······r convert vari3tlons ofalternating current in
A conductor wound In aspiral form to : I aprimary circuit Into vari3tlons cfvoltage
Introduce Inductance Into acircuit. L---------_________J and current In asecondary circuit.
high-voltage r- 5u!lstation
Operated on, powered by, or / An auxiliary power station where
transmitting high voltage. electrical current Is converted. as
/
from DC to AC, or where voltage Is
s"'...epped up or down.
(/~1
step-uptransformer
Atransformer having fewer turns in the
primary winding than In the secondary.
senlng to transform low voltage to high
voltage.
step-down transformer
Atransformer havln~ agreater numl7er of
turns In the primary wlnJ1ng than In the
secondary. serving to transform high
voltaqe to low voltage.
line volt.1ge
The voltage supplied b:t apower Mne,
measured at the point of use.
5erviceCOnductor
Arry of several conductors extending from 3
main power line or transformer to the
--.J service equIpment ofa building.
}--....... 5el"lice drop
__ :=:-=-=::,;:-_------:!.l The overhead portion of servIce conductors
, __ -::. -::.-=..-::.:oo===:-=:-=-=-{""--=--- extending from the nearest utility pole to a
- ==--- , bulkllng.
....... ~rviu l.rteral
The un.de~~nd portJon of service
condUC"tars extendlltjJ from amain power
line or ~rtsformer to. bulkllng.
--------------------l
I5wft(;hg~r room
Aroom corTtalnlng tM service
equipment for alarge bulkllng.
~l"Ilce equipment
The equipment r.ecessary for
controlling. metering. and protecting
the electric power supply to abulid1ng.
located near the entrance of the
service conr:!uctors and usually
consisting of amain dlsconnect switch
and secondary switches, fuses. and
circuit breakers.
switch!?-oard
One or agroup of panels on which are
mounted switches. ovucurrent
devices, metering Instruments. and
buses for controlling anr:! protecting a ~===::C
numl7er of electric circuits. Also called
swiUhgear.
unit substation
f~der
A'nyofthe conductors extending
from the service equipment to
various dlStributlon points In a
l7ulkllng.
Afreestanding enclosure housing a
disconnect SWitch, astq1-down
transformer, and SWitchgear for a
num!lu of electric circuits.
I I
L ______________________ ~
75
ElECTRICllY
:-~ live
i Electrically connected to a
pluse
Thefr3ctlonaIpart ofaper10d or cycle
through which tlme hasadv;i nced.
measured from aspecified reference
point and often expressed 3S an angle.
.--------------------------------,+- souru ofvo/t.age. or
electrlc~11y chJrged SO;/S to
hJve.3 potential different from
thJt of ~rth. Also. hot.
dead
Not electrically conr,ected to
;J source of voltage.
ground --- ..•...._...•.....-_...,..• _. ~- neutral
Aconducting connectlon ~tween an . i. Not electrically char~ed.
etectrlc circuit or device and the earth t-------'-"'"'----'"t---.---t--"t-"'--~..:.--'---'-"-t'_-+_-_+_--+~
orotherpointofwopotentlaL 9 120V 208V 208V fauft
• A1oc31 failure In the Insulatlon
one Ie 1C.:)V 120V or continuity ofa conductor.
120Y 2::'; 120V 120V or In the functlonlng of an
electrical system.
single-phase ____._...._.L_....._.......... J three-phase _..1 short circuit
Ofor pertainIng to a circuit energized
by an alternating current with one
phaseor with phases differing ~ 180°.
two-phase
Ofor pertaining to acircuit energized
Ofor pertainIng to acoml?lnatlon
ofthree circuits energized !1y
alternatlng currentS or voltages
differing In phase I1y one third of a
cycleorl20~
An abnDrm3I. usually
accidental condition of ~w
resistance Detween two
points In an electric circuit.
resuit1ng In aflow of excess
current. Alsa called short.
bytwo alternatlng currents or
voltages differing In phase ~ OM
quarter of a cycle or 9O~
t! /
/
_r-- -- -- -----1---1
~!witch -----....---.-----. .... I
Themalndlsconr.ectforU!e I -'" .-•.J -1:' I
: : / r
entlre ~al system ofa I ; ;! I
ruildlng.exceptfor.3ny : i· : .: I
emergency power systems. I L.._ .__ 1/ I
I r- -'- -! I
I i : !
r'" f.;~
:' ;. device ccntainlng 3 strip
C'" I'Iire of fusible metal
;-.7; melts under the heat
r Auced P:texuss
c='t~ ~
lr-
.cTUptlng the cIrcuit. . I
rnwlem~1
"".')'ofvarious metal
p;;:rt ~eIow :3000F ~"
(:'7C). used as soldu ~
;;-j in various safety "
~4'~.Alsccaned ...._
plug~
shock
The muscular spasms causta
P:t an electric current passing
through the body.
Afuse hooslng " fuSl'c!e fink In aporcelain
cupfltt.ed wfth a threadeJ metal base.
cartrWge fu5e
Afuse havlng aont-Ume or renewable
fuslv/e I1nl: enclo$ed man lnsuratlng fiber
tuDe.
I l ; ;
I i : I
I ;. i I
i!...')'s havIng 41 rrodtlng ,
f~si~e alloy. :___ knife·!1lak fuse
I :.. --l - I ./ A C3~ fuse having ;l nletal ~!ade at
I I i each end for makIng ccntact with the
-- --...;.- -- .....;.------~
~a=rdon which are mounted the F= -.=--=-. =.-::: :-"-='====-'="""""'l
swftches. fuses. and circuit ,: i
Pre3~ersforcontrolflng4lnd Ii ~~
protectlng anum~erofslmllJr: 'I
~ncltcircuits. Installed 'n a l! ~ ;1
: - - : r - .
caPlnetand ACCeSslP!e from the I; . 11 .• ...
front only. Aisocalled Ii ~ ,-.:r----~ CIl"'Cuitm.ker-~
pandl7~rd. -=========4=~ll ~~ A$fofitch that 4Iutomatlcally Inttml~ an
I! --:,- ~.rlc cIrcuIt to prevent excess current
"us .....--.._. '-'" .......... _...... "--'Ir" :1 fr..-, damaging apparaws In the cIrcuit or
Aheao.'Y conductor. usuaIly In the Ii ~_._"_ ~ causing ~ fire. Acircuit In'eaker I13Y Pc
form ofasoIkIcopper b3r. used I~ :' rec'~ and reused witl10ut ~t
for collecting. carrying. and n "..-..----+- of i"Y components. Also called ~Ur.
dIstc1ht1ng brgeeltctric /l :1
'""'"'t~Also "lied...s~". '.... Ii.!.... :=:--;t~':I:--------------
grounded conductor -............ - -- t -- :j
Any ccnductcrofan electrical Jl ,---....------:0'1--------------
fusl~le fink withIn.
time-deL1y~
Afuse that klays opening to allow;i short·
term ovedc3d to pass. 35 when starting a
motor.
ground fault
Arnoment<iry. usually accldental. grounding
ofaconauctlng wire. .
ground·fault intempter
Acircuit ~ker M 5C1SeS currents
caused by groond fa ults ana
Instantaneously shuts off ~r Pefure
damage or InJury c.n occur.Al7!:>r.: §til
system IlTUntlanally connected I: :1
to a ground ccnnectlon. :1 .~.:..____:,~~-_------..__-----_-----
grounding electrode
Accnductor. as ametal ground
rod. ground plate. orcold·water
pl~. flrmly embedded In the earth
to est3l7lish aground connectlon.
76
L~:==:~~~=~~~~~:~-:j-----r-------------1
ground wire ~.--; !
Aconductor ccnneck.J electrlc : er3
eqUipment or aclrcu:t ioaground L____J
connec~.Alsocarlid ~f'oundlng
conductor.
I;
u
u
u
l
I
L...
~.
. , I
-/
~--I
~-I
I
Li
1
!
L
l
'-I
lightnj~ rod .-----.--.----..---.-......-...-----.--------"
Arry of several conductl~ rods InstJl!eQ at .
the top of ;i struct;re;inJ grounded to 
dlvert Ightl1l~ aWirJ from the structure. ....
Also called ;ilr Unnin3L .
lightning 3mster
Adevice fO!" p~ng electnc equipment
from damage I1y lightning or other hlgh-
voltage currents. using span: gaps to carry
the current to the ¥Ound wtthout f73sslng
throogh the device..
5pari: gap
Aspace Petween two termllt3ls or
t1.ectrodes. dCrosS whlch;i discharge of
electrlctty may pass at a prescrlbeJ
voltage.
Dr3nch circuit
The portlof1 ofan electrical
system extend1ng from the
ftn.ol overcurrent device
protectl~ acircuit to the
outlets savea I1y the circuit.
[9]1
distriMlon panel I
t I
I I
L-. ______ ...I
law-voltage

Apand for als;rlbutJ~ power to other
panels or to rrctor-s and other heavy
pc-wer-consumlnqlcads.
Of or pertaIning to acircuit In which
alternating current ~elcw 50 volts Is
supplied I1y astep-dewn transformer from
the normal nne voltage. used In resIdential
systems to CO!'Itro1 doom:lls. Intercoms.
heating and cooling systems. and rerr.o'..e
lighting fixtures. Low·vcttage clrcui:S do
not reqUire aprotect,ve raceway.
ELECTRICITY
load
The powerdelivered I1y agenel'3tor or
tr'3nsformer. or the power consumed by an
appll3nce ordevice.
ccnnecUd load
The total load on an etearicaIsystem or
circuit If all connected apparatus and
eqUipment are energized simultaneously.
maximum demand
The greatest load deliverea to an electrical
system or circuit overaspectfled Interval
of time. .
c:femanafKtor
The I'3tlo of the maximum demand to the
connected loadof an electrical system.
used In estlmatlng the reqUired capacityof
the system to account for the prolr.Jlrility
that only aportion of the connected load
may be applled at any time.
c:fiversityfactor
The I'3tlo of the sum of the maximum
demands on the various parts of an
electrical system to the maximum demand
on the whole.
Io.ac:fflctor
The I'3tlo of the average load on an
electrical system over aspeclflc perloclof
tlrne to the pe3k load occurring In that
period.
g!ner.al purpo:se circuit
Amnch circuit that supplies current to a
number of outlets for IlghUng and
appll3nces.
appliance circuit
Amnch circuit that supplies current to
one or IT'IOT'e outlets specifically intended
for appl13nces.
Indlvk:hul cirr,uit
Amnch circuit that supplies currerrt Oflly
to a slng~ piece ofelxtrlcal equipment.
Tl
ELECTRICITY
~l7!e
Asingle Insulated conauctoror a Paund or
sheathed coml7lnaUon ofconductors
Insulated from one another.
..rmored caple
Electric calk consisting of two or more
Insulated conductors protected by a
flexible. helically wound metal wrapping.
Also called 6X caiJle.
mineral-insulated caple
Electric caule consisting ofatul7ular
copper she3th con'blnlng one or more
cond~rs em~ In ahighly
compressed.lnsulatlng refractory mineral
nonmebllk; 5~ caple
Electric caPle conslstlng oftwo or more
Insulatedconduct«s enclosed In a
nonmebilic. moisture-resistant.flame-
retardant she3th. Alsocalled Romex
c;.a£,{e,
coawlcaple
Acaulefortransmlttlng h~h-frequency
telephone. digital. or television signals.
conslstlng ofan Insulated conducting tul7e
enclosing an Insulated conducting core.
shielded caple
An electric ca!Jle enclosed within a metaIIIc
sheath In orderto reduce the effects of
extern.1 electric or magnetic ftelds.
conduit
A~Pe. pipe. or ductfor enclosln~ and
protecting ~Iectrlc wires or cal7le.
C'-'-T-_ _-=-l!{()
ri9id metal conduit ~-........-.--.......-.,..
He3'fj'-wafled. tul7Ular steel conduitJoined
by 5C;ew!ng directly Into <l threaded huu
with loci:nuts ana l7ushln3s.
=~.:Ia~~:::d~l~j~i~d~··1"'-_____--_--Jt
compression or setscrew coop/lngs. Al7k:
EMf
~!~~!I~;:~m~~'I'~~~-I~:"'-"~
used for connections ta motvrs or other
vlln7tlng equipment. Also called Grunfleld
conduit.
racewJy
~;:~~~SwlSlydeS~:edLtol hold and .•.•.•/
r'V~."~W-"" res a'lQ calles. ......
&urface raceway _...._....._.../
Ara~ t:lesIgnedfor exposed
installation In dry. nonhazardous. /
noncorrosN~ locations.
multi-outlet assemply _.......- ....,-'/
Asurface-mounted r.tteeway designed to
house the electrical wires for acircuit and a
series of receptacles.
78
underfloor raceway
Araceway suitable for Installation under a
floor. often used In offlu I1ulldings to allow
for the flexlule placement of power. signal.
and telephone ou~!ets. .
wire
Apnable metallic strand or atwisted or
woven assembly of such strands. often
Insulated with adlelectrlc material and
used as aconductor ofelectricity..~
conduct.?r
Asubstance. !:>ody. or device that Cv"nduct5
heat. sound. or electricIty.
.' insulator
. Amaterial that Is apoor conductor cf
electricity. used for separating or
supporting conductors to prevent tr.e
undesired flow of current.
~reakdown voltage
The minimum applied voltage at which a
given Insulator I1reaKS down and permits
current to pass.
dielectric strength
The maximum voltage trut can be applled to
agiven materi31 without ca using It to !;>red!;
down. usually expressed in volts or I::iiovor-..s
per unit of thlcl:ness.
dielectric
Anonconducting substance.
junction box
An enclosure for housing and protect1ng
electric wires or cables that arejoined
together In connecting or branchin~ ~Iectr'c
circuits.
......_- Knockout
.,' Apanel In acasing or box that can readily
be removed. as by punching. hammerir~. ex
cutting. to provide an opening Into the
Interior.
grommet
Arul7ber or plastic washer Inserted in ;I hole
In ametal part to prevent grounding cf"
wire passing through the hole.
. Vushing
f An Insulating and protective Ilning for one
Q)"COoJOC"'" pm'"! th"",!h' ho<.
An enclosed runway for housing conductors
orcal7les.
Pu~duct
Arigid metal housing for agroup of ~ses
Insulated from each other and the
eflclosure. Also called Pu5way.
cable tray
An open metal framewon: for supportln~
Insulated electrical conductors.
1
l~
lJ
u
11
I
u
L
I.
l ...
r
I
J
r
f
r=
Jir switch
II switch 111 whlch tM Interruption
of acircuit occurs In air.
knife switch ....-- ----- ------------.
II form of air swftch In which a ""
hl~~ copper PI3~ Is placed "
betwxh two co~tact cnps.
float switch
A switch controlled by aconductor
fuatl~ In aliquid
mercury switch
An es~lally 't1Iiet Sl'fttch that
opens ,maclcses anelectric
circuit by shifting asealed !:,Iass
t.u~ of mercury soas to u"coyer
or CClVtr the conUcts.
key,wftch
II switch opel"3W O!lly by
~;~i~~i~::~;-····-··-··-··~ 0 ~
electric Ilght without appreciably i U I
affe.ctin.; spatl31 dlstributlon. Also I I
called dimmer switch.
rheostat
Aresistor for ~ulatlnq acurrent
by me:ans of vartal>e resistances.
kncl7-.1nd-tu~ wiring
An obsolete wiring system conslstll11 of
5ln.g~.ln$u!ated conductors 5eCur~ to and
suppor'..ed on porcd;lln knobs ana tubes.
Iccm
A flexible. nonmetallic. fire-resistant tubing
for conductors In I:nob·and·tube wiring.
leu!
Aflexlble.ln~ted conductor for
ekctr.c4l1ycon~ an app3ratus to
another or to:.l circuit.
p~n
Ashort. /'bIble cOMuctor used In
CO'tnecun~:.I statlor.ery termln31 with a
termlr41 havl~ 3 n~d range of
motlon.
urmil13l
A condxtlve dement or device for
estabr,sning an electric connection to
an aFp3r:ltuS.
':--' bceplate
. Aprotective plate 5urrOJrtdin~ 3n electric
, outlet or light swi"~h.
ElECTRI(ITY
swiU:h
A device for making. Drcaklng. or dlrectlng
an electric current.
taggle switch
A switch In which alever or knob. moving
through a snnallarc. causes the contacts to
open or close an electric circuit.
--.i:;:'-~-'- three-way switch
~i:~! ! ASingle-pole. doulne-throw swttch used In
: ~ 'I conjunction with another to control lights
""&-+------------H: ! I from two locations.
d
r----..........-+·...J I
-"___..____._.l.... four-wayswiU:h
./ : A swItch used In conjunction with two
/ three-way SWitches to controlllqhts from
~
. ,:i, ----:-:1>-,:_____-+!,)+--Fe--l three locations.
~_~J_______~!~:>~ :
:; :!: !
outlet
A paInton awiring system at which
current ls taken to supply an electric
device orapparatus.
----- ...- outletl1ox
AJunctlon box designed U, facIlitate
connectlng an electric device or
receptacle to a wiring system.
---. convenience outlet
An outlet usually mourrted on awall ana
housIng one or more receptacles for
0
1
(] _~ porta!nelampsorappllances.
A snna~l. flexl!ne. insilited ca~ie fitted
with a plu:l to conroxt a port.#~ !amp
orap(:3nce to areap-tacle.
wire nIt
Aplas>J.c connec"
.....
'Vcontainln~ 3
threaud metal ftWr.q for 5C~""ing
onto the Intertwl~ ~ds of t ..Oor
more CCflductors.
connector
Any cfmlous de/a's forjoini~~ tllO or
more conductors ',,;:hout 3 pe~3~ent
splice
"''--' __'--.--_.---. receptacle
Afemale fitting connected to a power
supply and eqUipped to receive aplug.
Also called socket.
grounding outlet
An outlet havlng an acldltlonal contact
for aground conne.ctlon.
'.~--..- .. plug
Amale fitting for making an electrical
connection to acircuit by Insertion In a
receptacle.
grounding plug
@
A plug haVIng aDlade for aground
connection. J,
, .  -~ polarized
I!Jl Designed so that aplug and receptacle
can fit together In only one way.
79
ELEVATOR
Am~ pLotfonn or cage for
c..rryir.g passengers or freight from
~ levei of a uui14ing to anothu.
pulkhe3d
Aroxllke structure on aroof providing
access to a stalrwen oran elevatorshaft_
rift penthou~ ~~~~~~~~~~~~~__ control panel
6ritIsh tern1 for elevator.
p;l'~r elct'rlor
An emtor exclusively fer tne use of
pas5el'l¥f'S.
fre~ht elct'ator
An elevJtorfor carT)'ing r.e3Y)'cargo.
011 whleh t.~ operator ;arJ the perso~s
neu5S4ry for unloading aM loading
the freight are permftttJ to ride.
duml>w;after
AsnuU eb7tor for COI1veying food,
dishes, or other m~ Is Detween
tM floors of ;a UullJlng.
pan~
Arowofeb7tcrs In ahk3h-~
Uul1dln~ controlled by;a common
operating S'jSt.em and responding to 3
slng~ ~~ Putton.
Astructure housing elevator machinery on
the roof of.. hulk/lng.
top car cle..1rance
The vertical alstance from the top ofan
el.evator c..r to the nearest overhead
obstructlon when the car platform Is
with the top landing.
hof,tw;ay ----------- ---------------- --- -----------~-+----li-~__HI~
Avertical enclose<lspace for the travel of
cne or moreelevators. Also called elevatcr
shaft.
....----- -- I4Inding ....------- -------- ----- ------,
~ .----------.--_.--------.-------
The v~1 aiStance tnr~ by ;an
~tar Qr from the bwest to the
h~kest larJings oft'" holstway. AI~
Q/bltnvd-
e!ectl'1ceIevrtcr
~.n ebr3tor systemconslstlng of a
Qr ~ Is InOUnWon gulde ralls,
supporteJ by hoisting ~l1les. and
Mven byeb;tric hoisting m-.::hlnery.
Also called t.r3ctJon elevrtcr.
80
1
The portion of~ floor adjacent to ~n i
eIemor holstway, usea for the receJvlng !
;and discharge of passengers orfreight.
~r~rsafety .-----__________________
Amechanical Mvlce for slowing aown and
stopping an elevator ~r In the event of
ousslve ~ orfree t.n.actuated by a
governorand clamping the guide 1'3115 by a
wedging action.
hoi$tW~ door ---------------------- ------------------
Adoor ~ween ~ holstway;and an elevator
landing. no1"11141fly closedexcept when an
elMtorcar Is stoppea;atthe landing.
elevator pit ---- ---- ----.-._-----------------.-----.----------
The portlon of~ holstway extending from
the levelof the lowest landing to the floor
of the holstway_
L~ l>ottom carck.1r~nce
The vertical distance from the floor of an
elMtor pit to the lowest part ofan
elevatar car pl~tform when the car rests on
fully compressed buffers.
Apanel contain1"4 SWitches, huttons, and
other equipment for regulating electrical
devices.
hoisting machinery
The machinery for raising and lowering an
elevator car, consisting of a motor-
generator set, traction machine, speed
governor, hrake. drive shaft. driving sheave.
• ana gears, If used.
.1 driving ,heave
Awheel ordis!: with agroovecJ rim. used as a
pulley for hoisting.
.... idle 5heave
Apulleyfor tightening and guiding the
hoistIng cahles ofan elevator system. Also
called deflector she3ve_
- machine beam
One ohhe heavy steel Deams supporting
the hoisting machinery for an elevator.
.~ hof5ting cable
One of the wire caPles or ropes used for
raising and 10werlng an elevator car.
guider..il
One of the vertlcal steel tracks centroiling
thetravel ofan elevatorcar or
counterwel!Jht.
- traveling caple
One of the electric cables connecting an
elevator carto .. flxecf electrical outlet In
the holstway.
counterweight
Aweight halancl"9 ,mother weight. as the
rectangular cast-Iron ulocks mounted In a
steel frame to courtt.eri1alance the load
placea on the holstlng machine by an
elevatorWI r.
• limit5witch
Aswitch that automaticallycuts off
current to an electric motor when an object
moved I1yIt. as an elevatorcar. has passed
agiven point.
buffer
Apiston or spring device for a!lsorulng the
Impact of adescending elevator car or
counterweight at the extreme lower limit of
travel.
lu
I~
IL.
I'
I~
IlA
L ..
r
!
L
;~ --
J
machine room
Aroom housl"9 the hoisting
machlne1j'. control equlpmcmt.
and $haves for ..ising ana
Ioweri"'3 an ~car.
inclined lift
Achair or plJtform mounkd on asteel
gulde rail and driven by an electric motor.
used for raising or lowering., person or
goods along astairway. Alsocal!ed stair
lift.
c
hydraulic elevator
An elevatorsystem conslstlrtg ofacar
supported by ., piston that Is moved by or
moves against afluid under pressure_
[.
ELEVATOR
elevatercar
The foacl-carrylng unit of an e!e-{3~'Y.
consisting of acar frame. platform. M~ht
cnetal enclosure. and door or g3 te. •
---- carframe
The structural steel frame of an e!evAtcr
car to which are attached the pIJtfor.n,
gulde shoes. elevatorcar safety, hoisting
cables. and contrcl eqUipment.
-
--.----.~-~·~~·,:·::~-r-
-
-,~~~:':suallyover the entranu to an
-- ! elevator on each floor ofa multistory
, building. that slgl13ls the apprcJcn of:.'1e
elevator,
i
__ i._-.--- annunciator
Asignaling apparatus in an elev:l t:r W' cr
at alanding that displays a VlsU31 nd1catlo11
of floor landings.
--. c.311 17uttcn
~ Apush l7utton for requesting a,i el~.1;.c-r.
~. door inter'Uk
Asaf~ Ibicefor preventing the
operatlon of an ele/ator car unle:s$ the
hclstway doorls Icd::ed In the clostJ
posltlon_
door cont.1ct
Asaf~ device for prevenUng t~.e
oper;ltlon ofan elevate., car unless its a.x1'
or gate Is fully cl~, Also cal!ed gJ~
contact.
,- newel
.
1'4
f'~ [Thehor!zontalsectionofraJlingJtt~e
J1 k'-- ,upp~orlowerendofanescaiJte.,..
~.---4--
L .• .J
."com17plate
/ The tootneJ portion of the threshold plate
: at roth enas ofan e5CJlator ormGVIng war::.
" des19ned to mesh with the grooved surface
 of the movl~ steps ortreadway,
~~t.tor
A power-driven stairway conslst!ng of
steps attached to acontinuously
Circulating belt. u$tJ for JTOIII~
passengers up and dcr'ln between flars.
Also calfed moving staircase. mOYi"'3
stairway.
moving sidewalk
Apower-driven. continuously moving
surf3Ctl. slmllJr to aconve:yor belt. usd ;:;r
carrying pedestrians horizontally or akJq
low Inclines.
people mover
Any of various forms cf mass tr3nsi~. 3S
movlng sk:lewal~s Or automaud drtv~5
vehicles. used for shuttling people 3rc"~
airports or In congesW urban 3reas
H~dingtogether or unitl~ two or
mere parts or members. as by
d.tm~ with a mechaniC31 fastener.
ry ronding with an adhesive. or Dy
welding or 5OIderi~.
r.Jn
;, 5tr.Ii!ht. slender piece of metal having
~ enapointed ana the other enlarged and
f~ for hammerl~ Into wood orother
b<Jildl~ I13terlals 35 afastener. '
cllt nait
A ~d Ur1~ atapering rectangular shank
witIt aWunt point mac:le I1y cuttlng from a
rcl1eJ sheet of Iron or steel
wire un
A~rt maeI1y cuttl~ and shaping a piece
of round orelnptlcal wire.
ccmmonnan
ArtlQIgvtn~ a slender shank. a flat hea.d.
anJ a~monJ point.
~uiI
Artad having afult heaJ ana ashank more
~th4n acommon nail of the same
~
~~lUa
Arta'luvIng asmall ccnJcaIheadan.:! a
s!gnt~ ~ than acommon nail of
Q-.e Si1I1e le:n§th. used In finish won: In whlGh
thehead mzy remain vlslb1e.
fictshing nan
Al13.bvill4 asleMershank and a s:nall,
~pea head that1$ driven slightly
~the surf3ce and CCf~ with putty or
thelk
Pnd
A ~flnlshlng rui!.
doub(c-~ded naiI
A113.used In ~I1dIng te-mpcr3 ry
~res. as scaffolding and formworc.
~ a~ on Its shari to prevent it
fran ~~ driven In anthe way a-nd to1e<Ive
the he3d free for pumng. Also called form
n.1I1. suffold nan.
cc~lUii
A~ naM ~ng afliMd or
~ shank anaadbrnond point for
halWleli~ Into concrete or masonry.1<Jso
QlbInuSON')' IUiI.
flooring nan
AoUorfllstenlng floor roards. havl~ a
s.naI con~1 ~a. amechanically defOl111ed
shant. and a !Iluntdbmond point.
~hankrun
A0'hav1~ aseries ofconcentric gl'OOl'es
on ~ s~nk for Increased holding power.
roofing nan
A~ having a1rari1ed. thre3ded. orcement-
coated shank and a ~ro3d. f'lJt head for
osterling shlng~ or the like.
drW$Crt;W
AM4I fast.ener h3vi~ ahdlGally threaJeJ
shac thatcan be driven with a hammer and
relI"OIea with 3 screw driver. ~Iso called
saewnai1.
82
4J 6J 8d 10J 12d 16d 20J - ....• penny
IV2' 2' 2V2' 3' 4'
The deslqnateJ length of a nail, from
twopenny to slxtypenny. Symbol: d
3{Jmm 51mm 64mm 76mm 83mm 102mm
D==========:=:::::::l
n::::::::==========::bf>
O-llIl~I'~I!~I~'----------------~~
il p
" r II
C'"1'1I
O"II!!!
c
RUllI!!!
~'I!'!i#TC!jil~
~
~
,,- ... '
J . .
.,
lUIll
·· .·
... i
.. ~ .".
. ,
I •
~~:-"-----'-'--_____
...~J;;>
~ll;;o'.:'""""':.:
••~
•..••~.,;;;;,,;;;.~~~
~...-..... '~'.. ~..;;3
shank
The straight. narrow part of anail or bolt.
between the head 3nd the pOint.
eightpenny nail
Ana1l21f2 Inches (64 mm) long.
six1:unpenny nail
Anail 31f21nches (89 mm) long.
spike
A heavy nail for fastening together heavy
tlm!7er5.4to Min. (102 to 356 mm) long a~.d
proportionally thicker than a COmmon nail
driftl10lt
Aspike having a round shanl:. driven into
predrilled holes to fasten heavy timbas
together. Also called driftpin.
st.1ple
AU·shaped piece of metal or heavy wire
with pointed ends. driven Into a surface to
secure sheet material or to hold ahasp. pin.
or bolt.
currug.rted fastener
Afastener ccnslstlng of apiece of
corrugated sheet stu! with one wavy eaqe
sharpeneJ. for unltlng two pieces of wood.
3S In a miterJolnt. Also carted wiggle nail
round point
An acute, conical point on a nail or Spi(e
diamond point
An acute. pyramidal point on a nail or 5pil:e.
chi~lpoint
Apolnt on a nail or spike formed I1y two rut
lnclin--"A slaes meeting at a sharp angk:.
'I 11111'~I~'~~'r«! _............... face-nail
To fas-:.en I7y nailing perpendicular to thP.
face of the wo~.
roo0 0 _ . . . . . . ' , - toen.1i1 .
To secure bY nalll~ o:1~uely to the
surfaces ~eingJolned. Alternate nails mil)'
be driven at opposite angles to prcl't'lde
IncreaseJ holdIng power.
1
....................................... end-nait
To fasten I7y ruJll~ into the end of aboard.
~~
~~ parallel to the grain of the wood. End-na lling
~____________._____________.~::~"'.S,.""tcWlthdra..1.
To $.Xure I7y nallJ~ In such away that
nailheads are not vlsl!71e on the face of the
worl::. • .
:~ii=i~.~---~:;I.'k'..U."d sl.l.,h" "tow'h,"ri,,,
~~--====== with a naUset.
~ ~ - ............... ~!i:urea nail or screw In position I7y
namng strip hammerln~ down the protrudlng point.
Astrip of wood or other partlyyielding
material attached to a hard surface. as of
steel or concrete. so that oUJects may be
fastened to the surface.
l.
!
l ;;;
,.)I
I
U
,
L
I
l.
I
b
I
P
L
I
L
I
L
I
f
I
~ I
i I
1 '
I
rI
r
thread ----- --- ------ ----------- ---,-
The helleal or spiral ridge of a
screw. nut. or ~t_
pitch ,--------- --- ---- --------- -- ----1
The dlstance I:>etween two _
corresponcl~ points on adjacent ~~---~a
threads of ascrew. nut. or bolt_ i
countersink .-----------------------~~ - -...:
To enlarge the upper part of a ~~
drilled hole so that the head of ~~
screw orbolt will lie flush with or ~~',~"
below the surface. :::-."-
'"
.-,,.,...,-,"-,-"
pitothole ~--------------------­
Aguldlng hole for anail or screw. or
for drllll~ abrger-slze hole.
tap
To cut screw threads Into an
opening.
strip
To te3ror darruge the threads on
3 bottorscrewbyapplylng too
much foru.
"---
~~
~~
futl~ad -.-------------
A screw head having aflat upper surface
and aconical bearing surf3ce_
e
OV31 head .----------
Ascrew head ha"llng 3 Sh3l1ow. spneric31
shape with aconlcall1earing surf3ce.
panhead .-. -----. --- -- -. ------.--.
A screw or rivet head having acylindrical
shape with Oil rounded shoulder.
nllisterhead ----.-
Acylindrical screw head having aslightly
domed upper surface and aflat bearing
surface.
p~lehead . -------------
A screw head having aflat uppe~
surbce and an underside shaped Ii".e
the bdl of a bugle.
','---------
~
~
~
KIIII e
JFASTENING,
screw
Ametal fastener having atapered. helically
threaded shank and aslotted had.
designed to I:>e driven Into wood or the like
by turning. as with a screwdriver.
wood screw
Ascrew having a slotted head and a
threaded point that permits It to form its
own mating threads when driven into wood
with ascrewdriver.
self-tapping screw
Acoarse-threaded screw designed to tap
Its corresponding female thread as it Is
driven. Also called tapping screw.
lag screw
Aheavy. coarse-threaded screw havlng a
square or hexagonal head driven by a
wrench. used In are3S Inaccessible to the
placement of anut or where an
exceptlcnally long bolt would be needed to
penetrate ajoint fully. Also c311ed coach
screw. lag "oIt.
machine screw
Ametal fastener used with anut or driven
Into atapped hole. having a straight.
threaded shank and aslotted or Phillips
head for tumlng with ;I screwdriver.
cap screw
Ametal fastener for machine p3~. having
astraight. threaded shank held ry threads
tapped In the hole Into which It is screwed.
sheet-metal screw
Acoarse-threaded screw for fastening
sheet metal and other thin material.
setscrew
Ascrew. often without ahead. threaded
through ahole In one part tlght~ upon or
Intoanother part to prevent relative
movement.
thum:1screw
Ascrew having 3flattened. knur.ed head
designed to be tumed by the thumb and
foreflnger.
screweye
Ascrew having aring-shaped head.
o
slotted he3d
Ascrew head having 3single slot. driven by
afiat-tipped screwdriver.
Phillips head
Ascrew head having two partial slots
crossIng at ~ht angles. driven by~a Phillips
screwdriver.
Allen head
Ascrew head having an axial hexagonal
recess. driven by an Allen wrench,
security head
Ascrew head designed to resist remOTaI
with aflat-tipped or Phillips screwdriver.
83
FASTENING"
~It
Athre3ded metal pin or rod. usually
h3vlng ;1 head at one end. des~ned to
be Inserted through holes In assempled
parts and secured fly alTt3tlng nut.
carriage poIt
Abolt having arounded head. aflat beJring
surface. and asquare shoukJer for
preventing rotation, used where the head
/Tt3j' ~ Inaccessibleduring tlghtenlng.
machine 170ft
Abolt having aflat ~ring surface and a
squareorhexagonal head for tumlng with a
wrtnCh.
exp.an,lon 170It
An anchor bolt havl~ aspnt casing that
expands mechanically to engage the sides
square head
Abolt or screw head having 3 5quare shape
designed to !?e tumed with awrench.
~-. neck
~
. >_. nut
,.: Asqum~orr.eX310nJlrre:"'lbloc.l:
,,~,: pm'or.lted wr.:h athreadd r.ole to f-:
... '" around arJ secure abort cr screw
i Thepartontheshankofaboltnextto ~~ locl:nut
: the head. esp. when It has aspeGlal fOI1!1-'" ~ Anut speci3l~ constructed to prO'Y"je
© ~~~ ~.. :t<~:::WU'M,"d,~re<o,
Anut having r3d1J1 slits onl1;s outer fJCe to
Olilowa locking pin or wire to!?e Inser-..ea in
O
Fi--I ~ 'both the nut and a hole in lts bolt. Ats-J
~UI+-,1l-_----"=.:..-JC!E~~'m~~~~~,~"
_ db :~:stlenut.
hex head
. l:J/ Anut i1Jvlng ahexa90nal base <lnd ,dcmed
Abolt or screw head having ahexagonal
shape designed to ~e tumea with awrench.
" tcp to co<er the threaded tr,d of 3 screw.
-', Also called ac..om nut.
"'""""""'" ,jJ ~:~t~:;~two flat P"'J«tl'g pl=s t"-'t
~ provide agrip for tightening wtth the thumb
and forefinger. Also called thumlmut..
0---.~~~teddis( of metal rubt>er, or
~ piJstlc. used ur'krthe he3d ofa nut or bort
or at aJoint to c!stribute p-ressure. prevent
"fi) m? IeJI:"':le. or rerle1e friction.
&W lockwashu
@~
~.
Awasher speciJlly constructed to p~ent
anut from sh4klng loose.
103J·lndicm~ washer
AW3Sher havlng small proJect1ons which are'
~ressfvely futtened as aDolt 15
~htened. the,ap !?etwe.en tr.e he3d or nut
ana the washer Indicating the te;lslori ill the
Dott.
ccun+...erPore
To locraSoe the d~meter of 3 portion cf the
~gth of adrilled hole to receive the he;;id
or nut cf aDolt or screw.
row spacing -$- __ • __ +
The center-tc-centerdistance I I I I
~tween two or more rows of bolts, ~__ .. ~ +
..... end distanu
;" ".
of. hole drilled In-nusonry or concrete. .
Melly ..__..____________....__n . . . . _ • • _ . . . . . . _~
The dlstance ~een tneend of• ~
"oJ the center of the ~rest bolt !IoIe.
:............._..-.. edge d15tan.ce
rraaeman: for.a Pr.lndofexpansion bolt
h2v1~ ;I spilt. sleeveltl:e sheath threadeJ so
th.t wmlng the boltdraws the ends of the
s~th togetherand spreads the sides to
enga¥;I hole drltblln masonry or the Inner
sumceof ahollow wall.
exp.an,lon 'hiekf -.-.-----.-'--' ---- ...-.- -- -"'-'-- '--'
AIt3d or pbstlc sme Inserted Into a
predrliled ho~ and expancled ~ driving a
bolt orscrtW Into It. Also cal~d expansion
sleeve.
togglel1olt··..··-····· __··-···- ..-····- ..···· -~
An anchor ~olt havlng two hinged wings
that close against aspring when passing
through;l prearilled hole and open as th0'
emerge to engage the Inner surface of ..
hollow wan.
The dlstance from the ~e of atlmbeT •rod
the center of the ne3rest bolt ho~
Iewi5 ~It
An anchor bolt i1Jvlng a~-shapea end
~round which coocrete or Ie3d Is poured ';0
hola It.
fox~lt
An anchor bolt i1Jvlng asplit tnd to re:c.e:ve
afoxtail wedge as It Is scrtwed Into aHind
hole.
11
Ii
IL.
I
I
~ i
!
I
I
r
I
,
!
r
r
l c
l..
r
I
tull¥'
A,~ of varous lHhaped II1etaI mckets for
Soi..r~I"'§ ~ endofabeam,Jolst. purlin.
or tl'uS5 Jt 2 §IrderorwaII. The supported
~ tnnsfers Its re3CUon to the
~~r t:hrough ~ring.l>ut load transfer
t.:; ,:!-,e s~ member Is through shear
b ';:'e ~ rtilils securing the hanger.
~j .--------------_._-----------
AC)tmJr'd pm fttUng snugly Irrto holes
b tlooO ~ piecesto prevent their
s1.prUlg or to a.them. Also called
dcwdpirt.
~pbte
A$-~-rret.'li pbte punched to produce ,.
• cCsdy ~ §lid of protrodlng teeth.
t::d ~s 3 sp&ce pbte In the IT13nufacture
C"p.;frtwood~
~piU grlJ
AfIr. or ~ CtlrYed grid of spikes for
~~ havytwt~. held III piau Py a
:;;''"''!l~ Pdt. ~ re-5lJ~joInt Is
~
...rrt :0 Iocsenlng due to vlbratlon.
Ir.pct. uid ~ lateral Ioods.
FASTENING
.---- .-.----.----- ---------- --- :- --. framin9 anchor
/' i Any of various sheet-metal connectors for
/ joining light wood framing members. using
/ special nails which are loaded laterally
rather than In withdrawal.
:_ ..-' .....---- --.-----.. hurricane anchor
Aframing anchor for tying arafter or truss
to awall plate and securing It against
lateral and uplifting wind and seismic
forces. Also called hurricane tle.
.---------------- jolstanchor
Ametal tie strap for securing thejoists of
afloor or roof dlaphragmto aconcrete or
masonry wall In order to transmit lateral
wind or seismic forces.
--- floor anchor
A metal tie strap for restraining afloor of a
fight wood frame structure against
uplifting wind or seismic forces_
~illanchor
Aframing anchor for securing asill plate to
aconcrete slab or fouMatlon wall.
haWown
A metal devtce for restraining awood frame
structure against upllftlng wind or seismic
forces, consisting of asttffened steel angle
I10ftea to awall stud and secured Py a
threaded rod to aconcretefounJatlon.
tim7er connector
Ametal ring. plate, or grid for transferring
shear l1etween the faces of two timrer
meml:oess, used with asingle 110ft that
serves to restrain and clamp the assemDly
to¥ther. llml:oerconnectors are more
efficient than I10Its or lag screws useJ
alone since they enlarge the area of wood
overwhich aloaJ Is dlstrlputed.
'1 5~rp~te ", ~plit'rln9
Atlm~r connectorconsisting ofa round Atlml:oer connectorconsisting of ametal
plate of malleaule iron inserted Into a ring Inserted Into corresponding grooves
corresponding groove, flush with the face cut Into the faces of theJoining members
of atlm!1er, and he'd In place Py 3 single and held In place Py aslngte Dolt. The
I1olt. Shear plates are used In bac~-to- tongue-anel-groove spht In the ring pennIts
~ck pairs to develop shear resistance In It to deform slightly under loading and
demounta171e wood·to-wood connections, malnt3ln !learing at all surfaces. white the
or sl"91y in a wood-to-metal connection. ~eled cross section eases Insutlon and
ensures atlght-flttlngJoint after the ring
Is fully seated In the grooves.
FASTENING
$O'kr
To unite two pleus of ~I !1y
applylng any of various nonferrous
solders, USU311y a~In-~ .Iloy, at a
tempmture "'low MO'f (427't).
solder
Any ofvarious fus/VIe albys applied In
amolten state to thejollTt l:>etween
two metal parts to unite them
without he3ting the pa~ to the
melting poIn~ TheJI10Iten sokler flows
Into aJoint !1ycaplttary mtactton.
fillet we14
Awek:f with atriangularcross
sectionjoining t~ surf3ces that
meet In an Interior right angle. - -----
o
braze
To unite two pieces of metal ~
applying anyof various nonferrous
solders. usually acopper-zInc alloy. at
atemperature a!love 800'f (427't).
filler metal
weld
To unite or fuse two pieces of metal by
heating aM allowing t.~e met3ls to few
together. sometimes y,;th pressure .n.:.! the
addition of an Interme-diate orfllb- rr.et31.
l
The metal that Is added during a
welding. Imzing. or soldering
process, haVing amelting point
either approximatelythe same as or
~:17Jhatofth'motaI, Ucl~ "c~+fiJ~{!r~~:;
1ase metal ,~J
The principal met31 to lie welded,
Dl'3Zed. soldered. orcut, as
distinguished from ftller metal.
.--------- toe
"'bead
Acontinuous deposit of fused
metal. Also called wela ~d.
welding rod
Awire or rod of filler Iretal used
.,/ Thejunctton Detween the
In gas-welding and mzing
processes. and In these arc-
wekllng processes In i'l'hleh the
electrode does not rJmish the JI
ftller metal
,/ I7ase metal and the face of a
// wekl.
--, root
gas wetaing
Any of;l group of welding pr~sses
utilIZing the heat produced by the
comDustlon of aoxygen and afuel gas. as
acetyel1e.
.arc welding
Any ofa9roup of welJ1ng processes
utinzlng the heat of an arc between an
electrode 3nd ~he b3se metal.
---'--- arc
Asustained luminous discharge of
electricity across agap Iii;; c!rcuit or
between two electrodes_ Also called
electric arc.
---.---. shielJed metal arc weldi~
Amethod of ~rc welding usi~ a
consumable metal electrode that
.' relases an Inert g4S to form. shield
around the arc. This shield protects
the wela area from oxygen anJ nitrogen
In the iilr that woula cause ra pia
oxidatlon of the flquld metal
-. inert-gas shielded .arc welding
Amethod of arc wekilng In I'Ih~n the
wekl.rea Is shielded !Iy~ corrtlnuOlls
flow of an inert gas from an external
source. the filler metal being SlJpprled
l7y aconsumalne metal electrode or by
.. sep-ara te weIJingrod.
The pointat which the Pad:
lap weld or rottom of.. weld !nUts
Aweld made along the seams of the Ir.ise metal.
two overlapplng pleu:s of metal
--~~-.:...-----~~~-""-~""--'.>.....>.>-"'>-/- throat
-'-" The dlstance from the root of
-', .-/" 3 weIGl to the f3ce of the Pase
flux 1--.--flLlX-cc~ arc welding
Asulistance, as rosin. 3pplled to. Amethod of arc welding using a tutruiar
remove oxldesfrom •rJ prevent stu! electrode contaInlng acore of
further cx!datlon of 1T'.et.a1 vaporlzJn~ flux that forms ag4~s
surfaces to I7ejoined ~ wek:Ilng, shlelJ around the wela area
!lrazlng. or soldering. _
submergea arc welding
~,....... "i M'1e"t3l
Wttweld
A weld between two p~s of
/I'1eb1 ~u.ea~.
PJrtial-pen~atlon weld
APutt weld h~ adepth less
than ~ thickness ofthe smalIu
of ~ two meriet's being.JoIned.
full-penetrationweld
A~tt I~d having adepth
equal to the thickness ofth~
smaller of the two memDers
Delng joined.
f -----.--:---..--- ----,
I5lngHevei weL:f
A~roove weld 1ft which the
ed¥ofoneal7utt~ IneIT1rer
Is ~ from one side.
rmt
Ametal pin having a ht4d at one
end, used for uniting two or more
plates!ly passlng the sham:
thro~h aholeIn exh piece and
hamrrering down the plain eM to
form a~d head.
drift
I .~-.
double-bevel weld
Agroove weWln which the
eclge ofone abutting memller
Is !?eveled from both sides.
ArourJ, tapering piece of metal for
enlarging or angnlng holes to receive
rivets or Dolts. Also called drlftp!n.
86
aligning punch
Adrift for Drlnging holes In line to
receive arivet or bolt.
,
l..
puddle weld --·-·-----·------I-'-)
Aweld made Py truml~ ahole In h~~5~~~~__.,.:__J
a piece ofsheet metal arJ filling
with asmall poolof molten
rretal.
l5ingle-vu weld
Agroove weld In which the edge
ofeach abutting meml1er Is
!?eveled from the same side.
douule--;u weld
Agroove wela In whk;h P-.e edge
ofeach ab-vttlng memwIs
!leveled from Doth sk:ks.
.-... pneumatic riveter
dolly
Apneumztlc hammer used
with ariret setto form the
second head ofarivet.
rivet~
Atool for shaping the
second head ofarivet.
Atool for receiving and holding the
head ofarivet while the other end is
I7elng headed.
A method of arc wekilng In which the
welclarea Is shielded by a !7!an~et of
fusi~. granular metal that n-.elts to
form.1 ~ of protectloesla~ Tl~
filler:netal may I7e suppl1ed !1y a
consum3ble dectrode or by aseparate
l'Ieldl~ rod.
rtSi,t.1 nee welding
Any of,jJ group of welding processes
uttrlziT'9 the heat generated by resist4nce
to tbe pass~e of .. e!ectnc current_
-groove weld
Aweld made In apreformed Indentation
retween two alMtlng pleces of met..tl.
explosive rivet
Arivet for ..joint 3CCtsslble from or.e
side only. having an explosive·filleJ
shank th;lt is detonated ~ striking the
head with ahammer to expand tr.e
sh3n~ on the far side of the hole.
L1
I
Y
I
lj1
'I'
i
I
r
f
i
i
!
l
b
Ponnet
Acorer for ~n open flrepl3ce, or J
cowL hood, or wind cap to Increase
~~~ii;~;~~s;;;········~-
velitliJtor. .
5park arrester _.. -- ----- -----
Adevice, ccnslstlng of wire netting
or ~ lixe, used to step or deflect
sparts or emDers thrown from an
op~ flreplace or chlmney_
prefa~ricrted flue .----------- --------
A me~1 vetTt forfuel-flrtd
equipment, assemUlea from factory-
ITt3de parts.
smoke aome .----------------------
The smol::e chamber coverinq of Ii
prefabricated metal fireplace unt!o
hood ---- ------------------------.
chimney
Avertl<:al. Incom~stlb!e structure
containing aflue through which the
smoke and gase5 of afire or
fumace are carried offto the
out51de and by means of which a
draft Is created. esp. the part of
such astructure that rises above
aroof_
smoke5ta<:k
Apipe for the e5Cape of the smoke
or gases ofcombustion.
draft;
AcurretTt ofair In any enclosed
space. as In aroom, chimney. or
stove. caused by the dlfference In
temperature or pressure.
downdraft
Adownward current ofair In a
chimneyor flue, often carrying
smoke with It.
A metal cover or canopy for a
stoTe. fireplace, chimney, or
ventiLJtcr.
K"''''r'''-.-..;"",,"- fire screen
1Tt4nt.e1
A~stnJCtlon fr.Imin4 the
opening of3flrepbce and usually
coverlnq part of the chimney
b-re~st In a<kcor3tlve ITt3nner.
Also called m.1nUIplece.
m;mteltree
Astor.e orwooden lintel(Ner a
fireplace opening, or a
m3sonry arch used in place of
such alintel.
screen placed In front ofa
fireplace to prevent sparks Or
_ embers from enterll'g the room.
chimney mast
Apartofachimney orflrepl3ce
that projects out from awall,
usually Inside a~Ikl!ng.
chimney arch
An arch overafireplace opening,
supporting the breast.
-===============+==++==============::::;Jchimneypar
I
I
I
I
I ,
/r- -- --------"'.
/1 
~ ~
"
i~lenook
A comer or rwoI: nar 3 lJ rge, open
flr~pIJce_ 1J5U311y provlded ....lth
se3ting ",Iso called chimney corner
Asteel lintel for carrying the
masonry aDove tM firepl3Cc
opening. Also c311ea camper P3r,
tumlng par. ----.....----..,
./ chimney cheek "-....
. The sides of aflrepl;;ce opening
supportlng the mantel.
pack hearth
The part of the hearth tis ---""'-""
contained within the flreplace
Itself. Also called Inner hearth.
front hearth
The part of the hearth that
projects Into the room. Also called
outuhearth.
flue
FIREPLACE
A framed opening made in a
chimney to hold an open fire.
~chimneycap
/ Araised covufor achimney, usually
/ In the form of 3 slabor cornice.
/'/....,'('X--chi.rnney pot .
./ / "_" AcyHndricalpipeofearthenwareor
/ ../tmetal, fitted on top of achimney to
I , / / j Increase draft and disperse smoke.
./ /(
,< I
..r; I
'---~~OA"~'II I I
~ ! ;
, i
....-----r--.flue lining
fPiiiiiiiii~hl Asmooth-surfaced unit of heat-
reslstalit fire clJy or nghtwelght
concrete, having 3 ~uare,
rectangulJr, or oval sectlon, used for
lining the flue of 3 chimney.
pargeting
An Incombustible passage or Asmooth ~ning of mortar or pia5 ter
for achimney flue. Alsc, parget.
d,CtfOC,mOkA''''·
dr-rt
Adevrce for regul3tlng the current of
3irln a stov~ orflrepllce_
damper
Amovable plate for regulating the
draft in afirep13ce, stove, Or furnace.
sm(ike champer
An enl3rged area Petween the throat
of afireplace 3nd the flue of a
chimney.
smoke shelf
Aledge at the bottom of 3 smoke
chamPer, so made as to deflect or
break the downdrafts from the
chimne:i-
throzt
The narrow optnll19 ~ a
flreplace anJ Its flue orsmoke
chamPer, often closed wtr.h ad3mper.
firepox
The chamrercontalnlng the fire of a
flreplace.
trimmer arch
An arch, usually of bricl: anQln the-
form of haft of 3 segmental arch,
!1etween achimney and 3 header in a
floor structure to support ahearth.
ashpit
Areceptacle In the bottom of a
fireplace or flreDax for the collection
and remOV31 ofashes_
ashpit aoor
Acast-I/"()(l door providing access to
an ashpit for removing ashes. or to;l
chimney fer removing SCOG.
87
FIRE SAFElY
The measures taken to prevent
fire or minimiu the loss of life or
property resutting from a fire.
including limiting fire loads and
hazards. confining the spread of
fire with fire-resIstant
constructlon. the use of fire
deuction and extinguishing
systems. the establishment of
adequate firefighting services.
ana the training of building
occupants in fire safety and
evacuation procedures.
fire-rated
Notmg or pe~lnlng toa material.
assemL>!y. 01'construction having aflre-
reslstanu rating required by Its use.Also.
fire-nslstlve.
flre-reslsunce rating
The time In hours amaterial orassem~1y can
be ~ Ul withstand exposure Ul fire
without collapsing. developing any openings
whlch ~nnlt the passage offIame or hot
~ases. 01' exceed1ng a specified temperature
on the slde aw;ayfrom the fire. determined
by Slbjectl~ J full-size specimen to
~res according to J standard
tlme-temperature curve. -_._-_.._. _.__.....-"--
.-
fire hazard
Any condition that Increases the
likelihood of afire. o~structs access
to ftreflghtlng equipment. or del3ys
the egress of occupants In the event
of fire.
fire load
The amount of com~ustlble material In
a~ulldlng. measured In pounds per
square foot of floor area.
combustil1le
Of or pertaining to amaterial capable
of igniting and bumlng.
1200 j
Q.................................................................._....._.....}
time
~nition point
The lowest temperature at which a
substanu will undergo spontaneous
comtoustJan and continue to!:oum without
additloM31 appl1c3tIonofixterrull heat.
flash point
The lowest temperature at which a
combustll:ne Ilqukl will give off suffic~~
vapor to ignite momentarily when ex~
to flame.
tunnelu5t
1000 ~!--i---+::;;~....;.--...;--.:........----;---7--..;
Atest measuring the time It takes for"
controlled fIa me to spread across the bee
ofa test specimen. the amount offuel the
material contributes to the fire. and t.f:e
denslty'of the smoke developed by the fire.
Also called 5Ulnertunnel test.
flame-spread rating
~ 800 1
~ .
d !
~ 600 (:J!+---;--i----;.---i---'----i---........;---i
~ i
Arating of how qUickly afire can spre:ad
along the surface ofan Interiorflnlsh
material Reel oak flOOring has aflame-
spre3d ratlng of 100 white acement-
asbestos roard has a rating ofO.
~~;~-T--7-~--~--~--7--+---; fud-GcntriPutlan rating
Aratlng of the altlOtllTt of com!:oustl~
sUUstances an Interior finish mater!3i c.sn
contrl!nIte to afire.
200~;--~--~~--~--r--7--~~
smoke-developed rati~
o
o 2
f:?·~+~:·
". ,.
.:~ .•.~ -.~..: .•:....,..:...'.'
[LJ
.
: .-
' .. '.- .
metallath andplaster
r-------:
-~.. I,-,':'·I
U~;hou" 6 8 ~'~i:l
Arating of the amount of sm'*e an InW.or
finish IT'.aterial can produce when It 1nJrns.
Materials having a srnol:e-clevelo~ rat:ng
aDOI"e450 are not permitted to De ~
Inside lnJilalngs.
~
. fumeret3rd.ant
A compound used to raise the Ignitlon p0,nt
r ' . of aflammable material. thus makln~ It
: . . more resistant to ftre.
r "
[]I"
..'..
' f "':~,-
~ ..
D
.. : I
::.
.... -.-
[ZI
'..:
...~....'..:.:. J
.]c.
:~ ......>:~ .::....:.....
" .'
~" . ~.': .... - ..:
: .... "'"".i:' ••: .
: -
fireproofing
Any of various materials. as concrete.
gypsum. 01' minerai flber. used In making a
structlJral memveror system resistant to
dam~e or destruction by fire.
88
'pray-on fireproofing
Amixture of minerai fll>ers and'an Inorganic
~Inder. applied by air pressure with aspray
gun to provide athermal varrler Ul the he3t
ofa ftre.
intumescent paint
Acoating that. when exposed to the heat of
afire. swells to form athICK Insulating layer
of Inertgas ~utoDles that retards flame
spread ana comvustlon.
IJ
l~ukJ-filled column
Ahollow structural-steel column filled
with water to Increase Its fire resistance.
IfexposeJ Ul flame. the water al?sorVs
heat. rises by convection to remove the
heat. and Is replaced with cooler water
from astcrage tank or acity watu main.
r
i
I
t.
I
L.
,
I
u
I
I
U
I
~
J
~
I
L
I
I
~
I
~
I
I
r
L
I
~ -
-~
I
'.'
l..
[.
L
l
l
- I
I
firezofl('! fire separation
Arryfloor. wall. or roof-ceiling construction
having the required flre'reslstance ratlng
to confine the spread offire.
fire area
An _rea of aDuildlng ~nc!osed by fire·
rated constructloi1 capal1le of confining
the spread of fire.
Azone of~cttywlthln which cutaln
construction ~ ~re prohl~lted
~useofflrelm3rds present In the
zone.
fire~reak
occupancyseparation _._.._.._--".--_._-..;.. I ':::========~
Avertical or horizontal construction Ll
An open sp.uestabllsned to prevent
the spread of fire from aDulidlng. a
9roup of 7uiIdJ~. ex anarea of a city
to another.
drntstop
Aflre-ratea parlltlon dlvklll19 an
enclc5ed attle spaceof comDustl~le
construction, orthe concealed space
l?etween a~d Ceiling and awood·
fr3 mefloor arove.
having the required flre-reslstance rating
to prevent the spread of ftre from one
occupancy to anotherln amixed·
occupancy Dulldlng.
distance separatlon
1M separation required Petween an
exterior wall of apulidlng and aproperty
nne. the center hne of an adjacent street
or public space, or the exterior wall of an
adjacent I1Ulldlng. all measured at right
angles to the exteriorwall. -1
fire assembly ~ ..-..-- ..................... protected opening _.....• '··-0'" ..__ ..
The assemDly of3 fire door. fire window. An opening In awall. floor. or roof-
or fire damper.lndudil19 all required ceiling construction that Is fitted
Mardware. anchorage. frames. and 51115. with aflre assemlily having the
~1f-c1o,11W fire a'~m'-lu ___•. _•.•, reqUired flre'reslstance rating for
''";lI ."J "Its location and use.
Aftrt asseaWly ~t 15 normallykept In "',
aclos&:! posltIoII and 15 equlppeJ with ....--,-----.. ".'~
an '?~ device to Insure closll19 ~
;arJ latchl~ a&r having Peen opened irl·
for use. ~
,1L[t()m.rtk-cIo'i~ fi~ a~~mbly _...
Afire assemlnythat may remaIn In an
~ posltlon and wiU close
~ utomatlcally IfsuPjected to an
~se In temperature oractuated by
4Smo(e~.
~
-.-.~..-
~
~
" ~
" II
,,----.--~,
UL laPel _..-..- ......_..........- ................,
AlaDeI affixed to 1I11Ulkling maUrlal. -.
component,ordevlce with the
authorization of Underwriters'
LaPora-torles. Inc.. Ind'.catlng that the
FIRE SAFETY
firewaU
Awall luvfng the reqUired fire·
resistance ratlng to prevent the
spread of fire from one partof a
D<Jltaing to "nother, extending from the
found3ticx1 u> aparapet above the roof
and having anopenings restricted to a
certain percentage of the wall length
and protected Py aself·closlng or
autcrr.atlc·closlng fire assemDIy. Exh
portlon of abUlkling separated Dy one
or mere flre walls rruy ~ C<>Ilsklered .iI
~p3rate pulidlng when calculating the
floor area and height allowed by a
I1UIla'lr~ code'l
fire door
Adoor ~l>ly.lnclud1ng all requ~
hardw3re.lInchorage, frames and sills.
havfl19 the reqUired flre-reslstance
ratln~ for Its 1oc1tlon and use.
fire wiI'Idcw
product (a) has 1I ratlng vased on
performance tests of such product.s; (l1)
Is from aproductlon lotfotmd I1y
exJmlttrtlon to ~ maaefrom materials
and Py ~ses essentially taerrtlcal to
those of representative products which
have ~ subjected toappropriate flre.
electrlcal hazard.oroth~ tests for
safety; lind (c) 15 suPj«t to the
reexamination $ervlce of UL
~~.
~. ~:1':~to ,!"""tom"''''1y
:)~.jf/.>' ~!"~~:;:';~dd':::"·"
Awindow ~~Iy.Inc"ldlng all
required hardware. anchorag~ frarntS
and sl!ls. havi"4 the reqUired fire·
reslst;ru mtng for Its location an.:!
u~.
labeled
Ofor pertaining to avulkllng materfal or
as~mply having aflre·reslstance ratlng
certtfW by Underwriters'Laroratorles.
Inc. or other recognized testing
13~aratory.
~ _ " firetUmpu W
=========.,' Adamp!rt),atc!osesanalrduct
autorrut!cJIIy In the event of ftre to
restrict the passage offire and smo(e.
required whae aduct penetrates afire
wan. ftre·rJt.ec/ shaft. orother fire
$ep3rJ~n.
/ fu,ilk finK
II hr,k rr3~ of afusible metal. When
exposed ~ the heat of afire. the nn~
mel:s ,"" cau~s afire door. ftr!!
d3rnpe~. cr the Ii~e to close.
89
FIRE SAFElY
flre-2L1rm system
An electrical system Installed In a
l?uildln4 to automatically sound an
alarm when actumaI7yafire-
tkttctlon system.
fire-~n symm
Asystem of thermostats orother
approved sensorsfor detectlnq the
preStllce of flre and automatlcally
5~nall~ an abrm.
5mokedeUctor
An ek:ctronlc fire alarm that Is
actlv3ted l7ythe presence of smoke.
5tandpi~ .
A w;lter pipe extending vertlcally
thl'OU:9h a~lkfIng to supplyflre hoses
at every floor.
wets~ndpipe ----...-----.--.-------- -- ....---
"'1
I
r
I
I
I
A stantJplpecontaining water under
pressurt:a~ fmed with fire hoses for
emergency useI7yI1ulldlng occupants_
dry5tlndpfpe --------------.----
AstandpipeCOITt2lnlng nowater a~
used v.tthe flre tJepart~ to connect
flre hoses toaflre hydr.llrt orpumper
truct:.
90
" I
~
---.----- .-.--1
I
I
I
" I
''1
I
I
r
I
I
r
, I
'i
I
I
,
,
,
I
I
I
,
,.... __.J
siamese
/-'fire pump i
Apump th3t provides theI
rea.ulred W3Ur pressure In
a standpipe orsprinkler I
system when the pre55u~e
In W system drops ~Iow.
3 preselectM I'3lue.
Aplpe fitting Insblled c~ to the
ground on theexteriorofabuilding.
providing two or more connections
through which the flre department
can pump waterto astandpipe or
sprinkler system.
waUrmafrl j
fire extinguisher
AportaDie apparatus for putting out a
small fin I1y ejecting pressurized water or
special chemicals. classifled according to
the type of fire It fs able to extinguish.
sprinkler ,ystem
Apparatus for autornatlcally extlngulshing
fires In abuilding. conslstlng ofasystem of
pipes In or l1e1ow the ulllngs. connected to
asuitable water supply. and supptJed with
valves or sprinkler heaas maae to open
automatically at acertain temperature.
sprinklered
Of or pertaining to. building or building
area that has or Is protected by aproperly
maintained sprinkler system.
stlrinkler head
A'nozzle In 3 Sprinkler system for dispersing
3 stream or spray of water. usu311y
controllea I1y 3 fusible linl: that rr.elts at a
predetermined temperature.
automatic fire-extingui'hing 5ystem
Asystem of devices and equipment which
3utomatlcally detects afire and disch3rges
an approved flre-extlngulshlng agent onto
or In the area ofafire.
wet·plpesystem
Asprinkler system containing water at
sufficient pressure to provide an
Immediate. contlnuous disch3rge throuqh
sprinkler heads that opet1 automatically In
the event of fire.
dry-pipe system
Asprinkler system ccnt3lnl"!'l pressurized
air th3t Is rele3scJ whtn aSprinkler head
opens In theevent offire, allowfng water to
flow throu~h the piping a~ out the opened
nozzle. Dry-pipe systern5 are used wh~
tM piping Is sulject to freezing.
preactlon system
Adry-pipe sprinkler system through which
water flow Is controlled I1yaI'3lve operated
I1yfIre-detection devices mor~ serl$ltlve
than those In th~ sprlnlltr heads. Preactlon
systems are usea when an accidental
discharge would damage Vdluable M'13UriaIs.
delu~ ')"tem
Asprinkler system having sprinkler heads
open ata!! times. through which ~flow
Is controlled by avalve operated D:i 3 heat-.
smoke-. orflame-senslng devlce.
cbs, Afire
Aflre Involving ordinary wmbustll>lt
materials. as wood. pa~ :md cloth. on
which the quenching or cooling effect of
water Is ofprimary Importance.
ca,,6fire
Afire Involving flammape liquids. 35
gasoline. 011 and grease. whlch.must ~e
extinguished by txeludill9 air and Inh1!:>Iting
the release ofcombusUI7Ie vapors.
cla55 Cflre
Aflre Involving live electrk:31 equipment,
which requires anOflconductlng
extinguishing medium.
cb" Dfire
Aflre Involving certain combustible rr.etals.
as magneSium or sodium. which rt<tulres a
nonreactive, heat·al:>sortnng extinguishing
medium.
L
L
f
I
I
L
·
i
t
L
r
exitacce55
That portlOn of a means of egress that
k:ads to an exit. Bulkllng codes spectfy
tne maximum distance of travel to an
exit and the minimum distance between
exits when two or more are required. ~_"
well
Ashaft for dlir, ngh t, stairs. or an
elevator. extendlng vertically
the floors of a ~uilding.
exit light
,1.1 nlumlnatea slg:1ldenttfylng a
required exit.
emerger.cy lighting
Ahghti"9 s~ designed to
SlJpply the alumlnatlon required for
SJfe egres5 from a building In the
event of.. pcwer failure.
occupant load
The wu! numberof persons that may
occupy aI1vikllng or portion thereof at
anyone tltne. Mtermlned by dividing
the floor area ass4)ned to aparticular
use I7y the square feet per occupant
permitted In that use. Bulkllng codes
use occupant load to establish the
required number arid width of exits for
:1 pAJ!ng.
exit ~rrUlor ..-'
Aj13ssageway serving as arequired &..
enclosed by walts offire-resistive
constroctlon. 8ulldlng codes hmlt the
length of dead-end corridors.
exit door
Adoor providing access to ameans of
egress, swing1"9 In the direction of~
travel and usually e<:tulppea wtth apanic
Par.
exit passageway
Ameans ofegress cor.neetlng al'e<ulreJ
exit Of' exit court with apubl1c way, having
no openIngs other than required exits ;ilrJ
enclosed by fire-resistive constnlctlon "s
~ulred for the walls, fuors. and ceiling of
the !nJlkilng served..........
her1ulntaIexit
Apassage through or around awall
ccnstructed as re<:tulred fer an
occupancy separation, protected by an
~utomatic-closing fire door, and leadin~
tv an area of refuge In the same puildin~
01C1l approxilT13tely the same level In
aapcerT't pUltdIng. -':
FIRE SAFETY
me3ns of~ress
Acontlnuous path of travel from any point
In" pulkllng to the outside at ground level.
exit
An enclosed and protected path ofescape
for the occupants of apulkllng In the event
of fire, leading from an exit access to an
exit discharge.
.- smokeproofenclosure
The enc1osl"9 of anexit staIrway I1y walis of
flre-~Istlve construction, accessl~ by ii
vestl!7tJ1e or by an open exterior balcony. ana
venul3ted I7y natural or mechanical means
to nmlt the penetration of smoke and he3t.
Bulkli~ codes usually reqUire one or more
of the exit stalr;v;;ys for ahigh-rise buildIng
~ protected I1y a smo~proof enclosure.
-. exit stairway
AstJlrway leading toan exit passageway,
an extt court, or pupllc way, enclosed by
fire-reslstive construction with self-closing
flre doors th3t swing In the dlrectlon of exit
travel
1
exterior exit balcony
Alanding or porch projectlng from the wall
, of a!7tJi1d1ng and serving as are<:tulred
means of egress.
fjre~pe
An exit stairway dewn an ootslde wall of a
building.'constructed to the same
sta:ubrds as an interior exit stairway.
..' exterior exft
An extt door opening directly to an exIt
court or pu!;llc way.
91
FLOOR
The level. (,ase surface ofa room or
hall upon which one stands or walks.
F~.~~~~~,-,-:'~'_~~~~"':=~~'...:.=~'.~:'~=-::,·,~~.:/..:7
I r;f:::,:·~~.:::-:~:.::.:::=~·t:':':':=·T~:::·:C_-_7'"l
~ i ! : ;
i ~ . :
: j
flni5h floor
The wearing SUmc.e of.. floor. USU.HIy bid
(Net .. sulrlloor. Also. fWshtd &01".
~U~~~"';':;~-fu;~~~~u;~---------[~===j!llillll;!~
~3rds. plywood. orother structural
she3thln~ bid over and ftxe.d to the floor
joists. Asulrl:lorIs often used as awo~ln~
platform ~ ~n and may also
act as II struc'tUraldlaph~m to transfer
bUralloaas to ~rwalls. Also called
~Jnc:I fWor./'OUfh flM-.
floor framil9
The act. proc:ess. or manna-ofconstructing
the structural frame eX.. floor.
jo~t ----------.---------------.-________ _
Atrj of.. ser¢S eX 5m3" parallel ~ams for -
supportlni floors. cetnngs. orflat roofs.
header •.- I
Afram~ member~andsupportlng !
the eMs ofjoists. studs. or rafters. so as ,:
totr2nsfert:kew~httc paralleljolsts.•/
studs. or 17fters. / /
trimmer ~----------
A~m.joIst. or raftersupporting one end
ofa heakr lit the edge of an opening In a
floor or roof mme.
-,'
~ilpiece --.----
Arela-tlle!y short i1eam.jolst. or rafter
supported by awall at one end and by 3
hea~r lit the other. Also called stringer.
-.----------.::>- rimJolst
'-...-'-----......""'- ../ AJolst set on wpofthe sill and forming the
.' perimeter ofawood-framed fuor, Also
c;illled he3aer.
"-'-Imdglng
An arrangement of IH-aces orPIoctlng
l7etweenjoists Or rafters to prevent their
rotation or lateral dlsplacement. esp. when
theirdepth-to-wktth ratio exceeds 6.
Bridging may not ~ requll'tJ when ~ ends
of the meml1ers are flxed against rotation
and their eJges are held In line by
suWlooring orshe:athlng.
solid I1rtaglng
Bridging consisting of short roarasfixed
vertically I1etwun floor or roofJoists.
cro"l7rldging
Bridging composed of dlagonallmlces set In
pairs Pe'tween floor or roofJoists.
I l
I., i
I
1
l, .:
y
y
LA
I
I .
i1e31T1 fig
Mattrbl as m3S011ry orconcrete. for flIllng
the sp~ t;.awtenJolsts or Peams In or on
top ofam3S011ry wall. stiffening the
memrers. and provldl~ Increased fire
reslst4ra:. AIso.l:>e3m filling. ~ ________ _
beam pccket---.------------- ______
An opening In the vertical face of a -'-
structunl !T1aT1rer to receive abeam.
..._--
An angul3rcut at the end of aJolst or beam
whe~ It enters amasonry wall. allowing the
mem!1er to fan without damaging the wall h'
It /roms through somewhere along Its
Ie~th.
form duking
~I dectlng servl~ as permanent
fonnworl: for.a reinforced concrete sla b
und ~ stlb C3n support Itself.
.1cou~tk duking
Metal ~Ing ccntainlng glass fiber
~n the perf0!'3tea wel1s of ribbed
kcl::lng Of" In the perforated cells of cellular
tkci:lng. used as asound-al1sorblng ceIling.
--------
FlOOR
deck
The structural surface to whleh flooring or
roofing Is applied.
_.----. decking
Self-supporting units of wood. metal. or
concrete capable of spanning beams.JOists.
rafters. or purllns and serving as abase for
flooring or roofing.
~-------~..".,..,..,==--"7--c:-'."-
..--.-_,--..,..---- - -- .-.- metal decking
Sheet steel strengthened for use as floor
or roofaecklng bycoW-roiling aseries of
rips orflutes Into It. and usually galvanized
forcorroslon ~Istance. The spanning
capaPillty ofmetal decking depends on the
thlclness of the steel sheet and the depth
of the corrugations.
-'.
I
composiU decking .,./
Metal deckl~ servlng.as permanent
fOrM1worX and tensile reinforcement for a
concrete slap 11on<kd to It by adeformed or
dovetail rib pattern.
-'" shear stud
I, steel pin welded to t.he topftange of a
steel ream or girder.and em~ In a
concrete slab so liS to cause the beam and
the concrete to act as a structural unit.
-------------------,
,/
cellular decking .....--/.•
Metal decking 1113nufactured by welding a
corrugated steel sheet toaflat steel
$hut. forming aseries ofraceways fo!,
electrical wires andc.bles. • .
floor panels supported on adjustable
pedestals or stringers to allow free access
to the space beneath. Also called raised
floOf"lng sysUm.
93
FLOOR
fin~h floori~
M4ter13/ u~ for the ~ring surface of a
flOOr. as ~ rdwood. temz:zo. orfloor We.
woodfloori~
Anl$h ~ in the fonn of wood strips.
ptlnks. or ~s.
strip floorin9 .-....-_..---.-.-- -..-._.....
flooring composed of~. narrow wood
s~'ips. usu~lti side· and end·matched.
~~~;~cl-~r~·~~;·-·····"·"'·~.
'" ,
thanstripftoorl~usu~lyslde-and ~
~J·m3tched.
!B'lI
i
. pal"luet
Afloor composed ofshort strips or 17!ocks
of wood forming 3 pa~m. sometimes with
, . Inlays of other woods orother materials.
par'luetly
Mosaic won: of wood used for floors and
~
WJ
wainscoting.
IIIIJ
P-Iock floorirog
FWing composed of square units
r'.4ssem~ at the mill and usually
mst.311ed w!th n-gstlc (]Ier awood
$;; bf'.::or orcor.crete sbP.
unit bfc.ck
Aflooring ~Iod made ;!yJoining short
len~ths ofstrip flooring edgewise.
usually ~ued on two adjoining sides
and grooved on the other two to ensure
proper aIlgnmertt In setting.
hollow-uackea
afer pertaining to a wood or stone
piece h3vlng apack face hollowed
out so that Itcanfit more tlghtly
against an irregular surface.
sleeper .----.------------
---
Anyofa numberofwooaen strips laid
upon aconcrete slap to provlde ameans
of attaching asulrl'loor orflooring.
solid plockflooring ------.. -..-----------
long-wearing flooring composed of sond
wood I7locks setIn adhesive with their
grain oriented vertlcally.
laminated plock
Aflooring U10ck made ;!y ronding three or
more wood venxrs with amolsture-
resistant adhesive. usually tongued on two
opposing sides and groovea on the other
two to ensure properaltgnment In setting.
slatl7lock
Aflooring plod m~e ;!y assembltn!l
narrow slats orflngers of hardwood Into
larger units.
='''''"p",,,rompos<dol Ij~~iii :!~::~';;;-;;'~~h;p;~;;;u--_ _ _ ~;:';·'~I::=="PPI'.dl=tly
:narbleor otr.erstone chips. set In a :t~~':'~4f!l~ umentltlousor resinous matrix overasound wood. mrul. or concrete
cen-.tntltlous or resinous matrix and ;~~..
'~~ thatproduus aterrazzo surface. sulrl'loor.
~~ndwhendty. ~~~~11.~. bondingagent ~-------------__ . - monollthicternz:zo-
;:~ .~... ~;c -....~~~~~~~~~,;;.;~
o ~:..~ ~~........... 1" Achemical sul1stance appnea to a Aterrazzo toppln!llnstalled dlrect~ over a
st.awrd terrazzo -_....-. -- -----...!i.~ ~••~~ substrate to create aPond rough-flnlshed concreteslaD. Achemical
Aground and ~ temzzo flnlsh ~. ~~~
....... '. ~een Itand asucceeding layer. Pondlng agent Is used Ifthe concrete
consisting lItlinlyof~vely slT13l1 i:~~' ~...t.l.' as between aterrazzo topping . . - • 4 surface Is too smooth fora mechanical
stone chlps. !..'~:il' D .!/f).. and asubfloor. rondo
Veneti..1n temzzo ..-- ..------ underbed ----- ------.... • bondedterrazzo
Agl"OlJnd and fdshe4terrazzo finish The mortar Ir.ise on which a •••.-.,••••••/:•.:,-;.;,/.:-;r·"I:.:-:·.••~ !.~'.;... ; ': Aterrazzo topping Installed over amortar
cooslstln~ ~~ofbrge stone chips. terrazzo topping Is applied. " • " <.' ... '.' undert;.eQ that Is bonded to arough-flnlshed
wfth 5lT13f1er chips flfflng tilt spaces resInous matrix . .' concrete stab.
Pe-tween. Alatex. polyester. or epoxy Pinder ';: ='" .'~ .~ :.. :Ii,:..:.;6 ".: .4-' .
rustic terrazzo comPined with stone chips to
Aur.iformly textured terrazzo finish from aterrazzo topping
proJucea by l't'3shln!l the matrix prior especially resistant to chemicals
to ~Ing so as toexpose the chips. and apr3slon.
I'<-hich are not ground.
Palladi..1n.1
II rrosalc terrazzo finish consisting of
cut ~ frac~rtd marVle slal:1s set ;!y
h3 d in the desircJ pattern. with
smiluchips Mlng the spaus
~t ....een.
94
~~~5.~~I~~;i- eand-cu5hion urrazzo
~ Aterrazzo system for cantrolling crackln~
when structural movement Is expected.
consisting of aterr.lZZO topping Installed
over a reinforced mortar unaeroed that Is
. separated from the subfloor ;!y an lsolatk>n
~~~~~~~~~~~ '. memDrane and athin layer of sand.
l ~
i
L
I
L
J
(
r
I
;
1,
t I
!
~ I
I
rI
I
r1
r
ill
I.
linoltum
A resl1lent floor covering formed ry
roaUn4 1?urbpor canvas wtth heated
lInseeJ oil powdered con:. ana rosln.
and addln4 pigmalts to achieve the
desired colorsand patterns. linoleum
shook! Pe used only on asuUfloor
suspended al:oove grade.
vinyl sheet
Aresilient floor covering composed
prlnclp.iy ofpoIytlnyt chloride In
comblnatlon wtth mineral fillers.
p~ment.s. and afiber. fett. or foam
!:rackIng.
vinylt&
Aresilient floor tHe ccmposed
prfnclp3~ ofpoIyvlnyt ch10ride In
combltUtlon wtth mIneral fillers and
p4Jments.
corku'le
Aresilient floor tile composed of
granulated cor: and synthetic resIn
blnclers. finished wttha protective coat
of wax or afilm ofclear polyvinyl
chloride. can: Uk: should Pe used only
on asuWloor 5lJspended above grade.
ru1?1?erti1e
Aresilient floor tile composed of
natural or synthetic rubber with
mineral fillers.
FLOOR
resilientflooring
Any ofvarious floor coverlnqs capable of
springIng bac~ to the original fonn after
Pelng Pent or compressed. available In
either tHe orsheetform and set In mastic
CNer asuttable underlayment.
floor covering
Material. esp. anonfabric material as v!nyl
or ceramlc tile. used to cover afleer.
Any ofvarious pasty substances used as a
sealant. adhesive. or protective coating.
underl3yment
Amaterial. as plywood or hardboard. laid
CNer asuUfloor to provide asmooth. even
base for resilient flooring. carpet. or other
nonstructural flooring.
carpet
Aheavy WCNen. ~nlttec.f. needle-tufted. or
l!~~r!~!!t!~~!!~~!!~!!~~~!!!!!!!~!J~~~~!!!!~~!!!!!!!!!!!!~!!!!! felted fabric forccverlng afloor.
pi~w~ht
~ avera9/: weight of pile yam In a
~rpet. st3ted In oonus per
5qU3t"e yard.
p~~ity
The welght ofpile yam per unit
volumeof carpet. stated In ounces
percubic yard.
§it~i~~~(6~liliiiii~
gauge --..--..__.._______._____._____..~ ~
The 5p3C1n~ of~s across the
width of. tufted orknitted
~rpet. expressed In fr3ctlons of
an Inch..
~;~~~~~s~~·~~~~~·~~~-----rll~'!~mW---·· f~upright tufts ofyarn forming the
Interweaving the backing ana pile ~ surface of acarpet or fabric.
yarnsonaloont . -.---.--------. 10 '1
_----... - op pi e
tufUa carpet •..-. -- .------- ---- -~ Acarpet texture created by weaving.
Carpet made by mechanically -... tufting. orknlttlng the pileyarn Into
stitching pile yam thrwgh a ". loops.
primary faPrIc backing and bonded . '; .
with latex to asecondary backing. cut pile
Acarpet texture created rycutting
knit~C3rpet ·········--..-------IrmiWl··
... '. each loop of pileyam. producing arange
~rpet made by looping the . of textures from Infomt31 shags to
backing. stitching. and pile yarns short. dense velvets.
with three sets of needles. -=.-.A<->OL'__~'--":L-....:=--.IO
fuslon-uondedcarpet ·--..--.----.gDB~
 -
Carpet made ryheat-fuslng face
yarns to avinyl pac~lng supporteJ .
by other materials. . ---. uacklng
Thefounaatlon material securing the
f1uW carpet --····-.. ---·-·--·~H1Jlmqn~mnlT[Illijnlnnn= plley'amsofa carpet and providing It
Carpet m3de by propelling short .ru!llI.l!lll!!.lUL_.BHill~ with stiffness. strength, anJ
stranJs of pile fiber dimensional stability.
electrostatically against an ~~.
3dheslve-coatedbacklng. --__ --- carpetpad
Apad ofcellular rubberorfelted animal
neealepunched carpet .--.-- ..--~
-~ . hair.CNer which carpet Is Installed to
Carpet I113ck by punching carpet ~ Increase resilience, Improve dltr3blltty.
flPers back and forth through a ;;::-------= ana reduce Impact sound transmission.
WCNen polypropylene sheet with ~ Also called carpet cushion.
Darbed needles to form afelted
flPermat.
iiiit-·-carpet tile
Aflooring tile made of carpeting
material.
95
FORCE
An influence on a body producing or
tending to produce achange In shape
ormovem~.
vector
~, ~
, ..-..
~. . ......... - ",m"""f,,",,,
"'. ~ '-. ' Concul1"e1'Ttforcesn~lngth~sameh~of
A'luantlty possessing both magnitude and
dlrectlon. ~ ~ anarrow whose ._
length Is proportlon4l to the magnitude ~ •.- ....,
and whose orientation In space represents
the direction..
line ofactio1I .-......- .....................
Aline ofIndeflnlte length of which aforce
vector Is a~lnent. Aforce acting on a
rigid body rruy ~ I"e9rdeJ as actlng
anywhere aloatt Its line of~Ion without
altering ther;mmal effectofthefo~;.•.••···• .--. ---.
component6ofJ force •.._.-....•.......... 0E==:b=======i>.
Two orII'IOre COII(;Urrtnt forces Into which a
sln91eforc:e NiI1c resolved and having a
net effecton arigkJ bodyt:lulvalent to that
of the Initialforce. For convenfenu In
structuralanafysls. these are usually the
rect3ngular orCarUslan components of
the Initial fOfU.
~.
moment ---...-.-.-.---
The tendencyofafurc.e to produce rotation
ofabody a~.a poIrrtornne. equalin
magnitude to the productof the force and
the momentann .and acting In a clockwIse
orcounterclockwisealrectlol!.
mornentcenter -.-..-......----....•--.
The poInt .twhlch the axis ofamoment
~ the riane of th:: forces causing
the moment.
moment'Mft ~.-----.-.-.-.- ...-----.....--.
'The perpendiculardistance from the hne of
action ofaforce to the point orn~ .arout
wnlch aInOme<It OCClJrs. Aiso calleJ force
arm.
couple -.--..--........-.......-- .......... -;
Aforce SYSt.21 of'twO equal. paralief forces :
~1n9 In ~ directions 2nJ tending to :
produce rota1lon Put not translation. The
momentof acouple Is equal I" IT12gnltudeto
the productofone of the forces and the
perpenarculardisbnu ~etween the two
forctS. ---.
---~
-
{11111l ~J --~-- '-:
__ m " " parallelforc~s ~..j
Nonconcurrentforces having parallel lines
ofaction.
noncancurrentforce,
Forces "3".1ng lines of action that do not
Intersect at acommon point. the vector
,~. actbn. ~ vectorsum of which Is the
" '~ algcPralc sum of the IT13gnltudes of the
" . forus. ~ctlng ak:lr.q the same Nne of actlon.
........
")I wpl.1nar forus
Forces ..hat o~ In aSingle plane.
..... wncurrent forces
Forces h.av1ng nnes of action Intersect~ at
acommoo polnt. tM vector sum of wnlch
can bt found Dy applyIng the para"lleIogram
law.
- p;malle!.ogram Ltw
The profOSltlon that the vector sum of two
concumnt forces Cdn~e de5C1'ibed by the
dlagor131 ofaparallelogram having adjacent
slJes which represent th~ two force
vectors ~I~ addea.
'--. vector ,um
Aslngle vector equ~lent to and produCing
the sa~ meeton abody as the
application oftwo or more given vectors.
Also caf1ed resultant.
...• tri.1"9Ie method
A9raphk: technique forflndtng the vect«
sum of t1'I'O concurrentforces ~ dls~ng
one force YeCtor p;araJleI to Itself until Its
taU coincides l't'It:k the he3a of the other
and completJ~ the tnangle with 2 vect.?r
that represents the result3nt force.
•. polygon method
Agraphic technique for flndlng the vector
sum ofacoplarl4r system of several
concurrent fOfUS Py dnwlng to scale each
force vector In 5ucusslon. with the tall of
each at the head of the one preced1ng It.
and comp!etJng ~ polygon with avector
that ~nt5 the result3nt force.
extendIng from ~ ~tl of the flrst to the
head of ,;h~ last yector.
r ' unter of gravity
The point ~ which the entire welght ofa
Pody may ~ c.:J~ wnuntratea so
M.1f SlJ~ ai; ~Is point. the body
would /'tIN1" In equilibrium In arry posltIon:
coInclknt l't'lth the unt.erof mass In a
uniform gnvftJtlondll field. Aforce whose
nneofaction p;a5SeS ~~h the centerof
gravity ofaboJy aff~ only Its
translational equl!lDrium; the l>ody remains
In rot.ltlonJl equJllDrlum.
....,~ -.,..... center of rtU"
•••- Th~ point at which the entln?mass Of 3
Pody mzy ~ conslJered concentratea such
that the II"IOmtnt aroutany line through the
point Is zero.
untrold
The cem:a-of. or.:. or two-dlmenslonal
flgure. aDout which the sum of the
sum of which Is asl~1e force that would 1--_ _ _ _ _ ... _ _ _ _ _ _--1
displacements of.1I polnts In the Agure Is
zero.
cause the same translation and rotation of
a rody as the set of original forces.
96
I
u
1
u
L
L
L
F)
! r-···-
r
I·
r
~ I
.~ I
I
tnn5Lrt.icn
~ tmiforin motion ofaPocly In astraight line,
wttnaut rotatlon orangular dlsplaument.
. fIj ~ Lh..
roUtion Q
The c!rcuLY rnotlon of aDody aL>out an axis.
lever •.-------.- ...-... -'-'" ----.----
Ari..;iJ element that pivots about a
fulcn;m to e:xert;l pressure Of sustain
a~ht at asecond polnt by aforce
appr~ at a third.
fulcrum •._.-_.-..
The point Of" support aDout wnIeha
b'ert<Jrns.
~lunic31 advantage
The mlo of output force to the Input
force applltd to a~hanlsm.
I
•
FORCE
1 Newto~'s first law atmoticn
The physlcallaw that abody remains at
rest or In motion with aconstant
ve!oclty unless an external force acts
on the I1odY.AI50calleJlawoflnertia.
~
inertia
.. • .• The tendency of arody at rost to
rort13ln at rost or of abody In motion to
statically equivalent rotaln Its velocity along astraight line
Haying the same translatlooal unless acted upon by an external force.
aM rotational effect on aL>ocly. "" I ~ujlil1rant
··tsl
.._
......-
.......-.... ! Theforcerequlreatobrl~asetof.
: f concurrent forces Into equl!lllrlun'1,
1 f equal In magnitude l7ut opposite In
1 . ! dlreGtlon to the resultant of the
; .' ,.! concurrent force system and actlng
i ~ along the same line ofaction.
,~
"'''''-,,-,
'p
...--.-........-.•........- equilil1rium
LM.lwtc =pxQ
- (7:t3) +(Ix 0) - (Ix 0) = 0
Astate of l7alanu or rest resulting
from the equal action of opposing
forces. For a rigid Poay to I7e In
equlhlnium, two conditions are
necessaij.
First. the vector sum of all forces
acting on It must equal zero. ensuring
. translational equflllnium:
LFx= O;LF)'= 0; LFz=O.
Second. the a/ge17ra1c sum ofall
moments of thefortes arout any polnt
or line must ~ual zero, ensuring
rotatlonal ~ullllnium:
LM=o.
llllllllll+ F
1 ~wton's,~orullawatmotion
The physle31law that the sum of the
forces actlng on a 7ody15equ31 to the
product of the mass ofthe 7ody and
the acce"'ratlon produced Py the force.
with motion In the dlrectlon of the
resultantof theforces.
mechanics
The !:>r.iInch of physics that d&lls
WIth ~ effects offorces on Dodles
or rrt4terbl systems, comprised of
st.1tlcs ;Ind dyn3mIcs.
StlUc5
The ~n,h of mechanics that deals
with ';~ rei3tlons offorces
prcJvdn.g equilibrium among bodies
or m...~1 systems.
~mics
The h~.ch of mech;uuc5 that deals
'Nlth :~~ motlcn and equlllDrlum of
bod:es or m3tertll systems under
the ~C':'<J<I of fcrus.
m
force (F) = /TI3SS (m) )( lcceJ~tlon (l)
m;lSs (m) =F/~ =weight('11)1plt4tJonllforce (I)
3 ~wton', third law of motion
The pnysicallaw that for everyforce
actlng on 3Poay, the I70dy exerts a
force having equal m3gnltude 3na the
opposite direction along the same hne
ofaction as the original force. AI50
C3neJ the law of..etlan and r!actlon.
applied force
An external foru actlng directly on a
Pody.
reactive force
An external force generated Py the
action of one lIody on another.
97
FORTIFICATION
Adefensive military work
coostructed for the purpose of
strengthening aposition.
circumvallate
Surrounded ry or as If ry a rampart.
.'~- ~ally port
.... Agateway In aforUf1catlon permrttln~ 4
14rge number of tmJps to move npla'1y from
the besieged position and attacl:: the
Deslegers.
C.1 5em.rt.e
Avault or ch3 mber In arampart. i13vlng
embrasures for artllkry.
....--. --------------.. curtain
 j
bastion --··-·-·-..-·---·-......---...---.aa.,...tII~~=::;:!;:~
Aprojectlll4 partofarampartorother
fort!fbtlon. typically forming an Irregular
pentagon attached at the Ir.lse to the maIn
L
An enclosing wall connutlng two lr.istlons
or towers.
wort.
l'2Velin
AV-5ha~ outwork outside the maIn
dltch of afortress. covering the
wort5 ~ two bastions.
outwork
AII'Iinorkfenslve position
esb~sr.ed ~nd a main fort~
~
~bc~
Aslo~ ex-"..en.:i1ng downward In front
of afortlfbtkln In such a way that It
PM"9S ad-m~clng enemy soldler5 Into
the most "rectline offire. ,...
motte and pailey
ANorman ~stle of the 10th through 12th
Ul'IWrics. consIstIng of amotte pl3ced
withIn aDailey.
98
/---.---....... gorge
.."" The rear ~ss.1geW3y Into a bastloo or
/., slmllarotItwon.
./ --.• terreplein
/ The top platform or horizontal surf3ce of 3
rampart where guns are mounted.
-_..---- funic
The part ofa D3Stlon that extends from the
curtain to theface.
......--... shculder
The angle be-tween the face 3nd the fun: of I
eSClrp
T'~ Innerslopeor wallof the ditch
SlJl"I"olJnding a rampart. Also
C4i1ed scarp. -...............~:,.
~untet'5WIrp
n-~ exterior slopeor wall of the
d'r-..ch surrounding arampart. _..:::
i
/
,'...---..• motU
"
;' Asteep mound ofearth Slrrounde.d ryaditch
and sunnounted byat:lmboer stocbJe and
tower.
aIr.lstlon.
·-.f;au
EItherof*'e two outer s!des th3t form tM
sallent angle of a pastlol'l
......., parapet
-.-.-- - Adefenslle W4l11 or elevauan ofearU1 or
stone prot.ectlng sota1ers from enemy flre.
cardon
AproJecUng course of stones pelcw the
parapetofa rampart.
- ...- ....-- Perm
1 A~ ~n the exterior slope of;J
.....- .• ~:J:~~ln,*mentof ~rth ~as 3
J
:r:=~ moat of aforth'c;Jtlol'l
L--_____ fortlflcatlon around a~ and usaa/ly
surmounted by apal"3pet.
.. l1alley
Theouter wall ofacastle or the caurtyard
enclosed by It.
..._..-.-.. palfsade
-_.... Afence ofpales set firmly in th~ ground for
enclosure or defense.
pale
ApoInted stlck or stJl:~.
r
r
I
r
~
•
·~
:.
I
.
'"
."
turret --------------------
AslTl3n towa-forming part of a
~rger stroctu'e, frequently
~Innlng ~alstance above the
ground. Also CJf1eJ tourdk.
l7artrun
Asm.all o.'~ll9lng turret on a
wan or tower. often at acomer ar
IeJ ra gl te',qy.
Power
Alady's pM~ chamPer In 3
l!1ed1en1 CJstle.
~um ---..-----..--
AslTl3I1 re.or dooror glte to afart
arcast~.
necessarium .-----......---.
The privy of;l medieval castle/
or 1TI()1I;b~. Also called /
gardero::'e, ,
przttU _._._____ .__1..______."
A temponry l'OOden fartif'.c3tlon '
In med'tevalardrltecture. erected
at the top of a lfJlI during:. siege.
chemin-de-ronde
Acootlnoous 9"!lW3Y prov!dl~ a
Jne3n5 ofcomnmlCJtlon Denina
the: rampart ofa forUfled l'follL ---:
dungeon
Ad..rt, ~..en undergrour.a prison
or cell, as In. ineJIev-31 castle.
oubliette -----.------
A ~~ ;Ln¥OO having an
opallr":J CJr1"; !n theuiOng. through
..,htch pri5Cf'trS were drOFPed
keep
The Innermost and strongest
structure or towerof amedieval
cast~, used as aplace of residence,
esp. In times of siege. Also called
donjen. ~....---..-:
'.
chapel
Asubordinate or private place of
worship or prayer within alarger
complex.
FORTI FICATI ON
castle
Afortified group of Uulkflngs usually
domlnatlng the surrounding country and
held Pyaprince or nol:>le In feudal times.
citadel
Afortress In acommanding posltlon In or
neara city, used In the control ofthe
Inhabitants and In defense during attack ar
siege.
:::tVf"(-'-1::-::z:::::::::':::==~' --. ward
'~. machicolatWn
Apro~ng gallery or par.lpet at
the top ofaCJstle wall,
supported bycorVeled arches
and having openings In tht: floor I
throU9h which stones, molten
Ie3d, or rolhng oU could De cast
upon 3n enemy Deneath.
portculli~
IT
+
Astrong gr.ltlng ofIron ortlmPer
hung (Nt:( the gateway ofa
fortH'led place In such away ~3t
it could De lowered quickly to
prevent passage.
An open space within or
betweenthe walls ofa castle.
----.--- ...- barbican
An outwork on the approach to acastle
or towil. esp. a watchtower at the gate
or drawbridge. Also. l1arilacan.
-. enceinte
Afortified wall enclrchng a
CJstle ortown, or the place so
enclosed.
battlement
Aparapet haVing a regular alterr13t1on
of merlo/ls and crenels, originally for
defense Irot later used as adecorative
motif, Also called eml1attlement.
,---...-----. merlen
,/ Ont: of tht: solia parts between the
... crenels ofa ~attlt:merrt.
,------- cl'eMI
. of the opt:n spaces alternating
with the merfons of abattlement.
~mbr~~ure
An opening, 3S;;l loophole orcrenel,
throU9h whlGh missIles may De
dlscharged.
-. loophole
Asmall or lI3rrow openl~ In ;;I wall of
;;I fortification for the d1scharge of
mlsslles.
eyelet
Asmall aperture In the wall ofa
medieval castle used as awindow or
Ioophoie. Also, omet, aye/te.
dr~~ridge
Alnidge that can De raised, let down,
drawn ask:lc toprevent access or to
passage Dene3th it.
moat '
ADroad. deep dItch, usually filled with
water, surrounding the rampart of a
fortified town, fortress, or castle as
protection against assault.
99
FOUNDATION
The lowest dMsion ofa building or
other coostruct1on. partly or wholly
~efow the surbu of the ground.
designed to support and anchorthe
superstructure and transmit its
loads directlyU:l the earth.
shallow fourubtlon
Afound1t:k:m system placed directly Pelow
the lowest pa~ of.iI su~tructure and
tnnsfming building loads directly to the
supportJn~ solllly v~1 pressure.
DDDDD
~ ------------------------------;
The gr.od-.I3l Su~lJ1ng of.il structure as the i
soli ~ Its founa.atlon consolldates r __L - - - - - - - - - - - - -t
urJerlo.adin~
ccnsoIWtion
The graau:;;l reauctlon In the volume ofa soli
mass ~1tJ1If from the .application of a
~t.;I~ Io4d and 3n Increase In
~5ttess.
pf'im3ry c.ol15OlldrtIon
AreJuctlon In vvlurne of.iI soli mass under
the .action ~.a sust.;lned load. due chiefly
to.a squeal~ out of wawfrom the voids
I't'ftIIln the IlUSS.and.a tr.nsferofthe load
from the soli wafer ~ the soli salkis. Also
caib:l ~ry compression.
5eCCrWry~n
A reauctlon In volume of;.l soli mass under
the actlon of.a ~Ined load. due chiefly
to;.It!ustr.etTtd the Internal structureof
the soIlln355 after~t of the load has
Peen tr3nsfemJfrom the soli water to the
soIlsotld:s.
diffuenti.1I5ett!ement
The relitlve lI10Vement ofdifferent parts of
;I structure caused IIy uneven settlement
or failure ofIts fou.wt01.
~
!
!
_1
i
I l I'
I I
f---····-----·-··-···J"~'
::::::::.~~
'... ~~"". ...t_._nonuniform 9J{/pressure
~.. passive e..1rth pressure
The horizontJl component of
resistance developed by asoli mass
against the horizontal movement of a
vertlc.alstruct.Jre through the solL
utive e..1rtn pressure
The horlzontJl component of pressure
th.at asoli ~S5 exerts on 3 vertical
rrolnlng stroct.ure.
soU pressure
The actual pressure t:leveloped between
;.I footlng and the supporting soli mass.
equal t~ the quotient ofthe magnitude
of the forces t<.l nsmftted and the area
CjUsM byUtml forces
'.. 5he3rr~$W1cc provided
by friction Utwun footings
;ndsot1
;.IlIowa~1e be.-aring pressure
The maximum unit pressure afoundation Is
permitted to Im~ vertically or I3ter.;1ly
on asupportl~ soillT13ss. Allowal7le ~ring
pressures for va roOlJ5 solI claS5if1c3tlons
are conservative v;llues permitted ~
PuIId1~ codes In the absence of
~hnlcallnvestlg3tlon and testing of
the sot!. AISIJ C3IW .1llowal7le l1ealing
capacft)'. allc.....abk $C/l pressure.
-A=ccnt:3ct Jre3 off~
~1~(q}=P/A
r" frost.line
1 The maximum depth at which soli Is frozen
i~rost per.etntes the ground.
frost he,we
An upltft In scl C3used tr.Y the freezl~ of
Internal molsturt.
fro$t ~on
7r ~
softenlng of soU resulting from the
.
f '~thaWlng of frozen groundwater.
0.5'1 )
2rching
n..""nsf..of",," f<om' y"r,n"" P'" ~,~
of;.l soil mass to adjoining. less y!ekilng or 02'1 /
restrained parts of the mass. .
/
100
r;
!
I
rI'
r I
I I
I
rI
r l
r
!
r"
~;:t.!':;~.;;;,;;,;ik;;;:~;~;t ~U"" I·
grak. des~ to support and anchor the "". L.- - - - - - -
superstro<:1:lrre. "" .••.=<::.~~~=-_____
ground sl#
Aconcrete sbl:> placed CNer' adense or
compacted 73se and supported directly l7y
th~ ground. iI:SlJally reinforced with welded
wire fJ~ en grid of relnforclng lrars to ~~~
control anya'3Cklng caused I1ydrying I~~ ~
s-hrlnbge orlhermal str~~.~~parate or ',; ~ --
Integral f~s artrequired for heavy or ~ ",@
concentrated leads. Over prol1lem soils. the ~~
slaI:> must t;.c, designed as a nut or raft ~
foonaatloo. N:so called slab on grade. ~.._.. -'S/'o.l'''~==__. ___....__ :.:
l:r41~COUrse
AbytrofCOiiJrStgranul3r m2terbls placed !
and compactedon undisturbed soil or
prepared flO ~ prevent th~ capil!3ry rise of
FOUNDATION
sp~d footing
Aconcrete footing extended I.teraIly to
dlstrf~ the foun,13tlon load CNer' a wtde
enough area that the allow3!71e ~arlng
capacity ofthe supportl~ soil Is not
exceeded.
•-- critJc.;J{ 5tCtJon assumed for she3r
- ~{p.inchlng she3r
--.. ~
moisture toa concrete ground stal:>. _._.__ ...... _._. _"______.._
..._________:
5 Ub-str3tucn
r ....- ..·· --.--- - ----------. ------ ... - ~ifo()tig:
,/ Th;~~~~~s~pread footing of a
. foundation wall
Something thoIt underlies or serves as 3
!:rase or four'4btlon. Also c.alled su!lstrate.
:'..:.t )F.
. U '.1 I I'nii
flcatlng founJ.1tion
Afoundation ~ In y!eldln~ soil. having for
tts footIng 3 r1ft placed dup enough that
the weLjht of ~ excavated soli Is equal to
or grea ~r th.M tM wdght of the
construction s-upported
raft
~~~.W~.~,·.,
ArefnforUa COncrete footing connected
!:>y atie beam to .mother fOOUn~ In order
to !7a!3ncean asymmetrlGallylmpJsed
load.as at the perimeterof a~Ildlng s~.
Also called strap foothtg.
Arr.at providing afooting onyielding soil
u5IJally for an entire ~ulkllng. placed so that
the we~htofthe displaced soli mews the
weight of the construction.
grillage
Aframewon: of crossIng ~eams for
spreadIng heavy loads over large areas.
Also called grid.
.,./r~- ~~;:;r"~'
.----...-- tonti~uotijf~;v'
--- ArelrTfoffiJiOncretefooting extended to
./ support arowofcolumns.
r - 9~~~1'
./ Arefrrf~'Col1Grete ream SlJP~1I9 3
.' superstructure at or neargrouna leYel.nJ
tnnsfem~ the Io3a ~Jsa~~ footl~s,
pic:rs. or piles. Also C3ltld~~~o;
-.. -~.' :r~'
'~-'-"Co~f~ng~~::
.' AreWoiujconc~ footing for a
perln-etercolumn or foundation wan
o;Undea to support 3n Intercr cclumn
k::3J.
To ;widrot'4tion ordifferential ~
COfTtJnuoIJs 1(4/ C3nt1lever~ n
p-oportJoneJ t<1 ge:n~ uniform >:J~
~SIn
m.1t
Ath~. sla!:>fi:e footing of relnfOf'Ce.d
concrete supporting 3 num~r of co/umflS or
3n entire !:>u11d1~.
np17ta mat
AITI3t foundation reinforced l7y. gfJ of .
ribs abc>.'e or below the sial:>.
ullularmat
Acomposl~ structure of relnforceJ
coocre~ slal:>s and lra51ment W3i1S SlT">'.,~
35 3 mat foundation.
101
FOUNDATION
dupfouncUtlcn
Afou~sy.;tem t:hJt extends do.w11 _
th~h un~17Ie soli to transfer uullalng
k:laJs to annappropriate l7earing
stratum ~ kIow ~ superstructure.
pi1efourWtion
Asystem ofpks, pile C3pS, and tie ueams
fer transferrfftg uulidlng loads dewn to a
sult.a~ ~ st,.t;Jm, used esp. when
the soil rNSS directly ~Iow the
c.on~ Is not sultaule for the direct
Pe3~of~s.
~ring stntum
A~mof50norrockon which a
footll14 ~ or to wIllch aIrolldlng
load Is tn~ I7yapile or caisson.
pile
A~ sitna:rcolumn of wood, steel. or
reinforced QlftCrete, driven or
hammered~ical1y Into the earth to
form partofafoundation system.
batterpile
Apile driven at aspecified angle
to the vertlc3lln order to
provlJe resistance against
lateral forces.
drive band
Asteel ~and enGlrcling
the head of3 tlml7er pile
to prevent Itfrom
splitting when driven.
Also called plfe ring.
anvil
The component of apile hammer,
locatedjust relow the ra m, that
transfers the driving force to the pile
head.
cushion
Acap for protectlng apile head as
well as the pile hammer durl"1 a
driving operation. Also caned
cushion 17loGk. cushion head.
pile driver
Amachine for driving piles, usually
composed of ataIIfra meworl:
supporting machinery for Ilftlng 3 pile
In position !7efo", drM~, 3 drM~
hammer, and vertical ralls or Ie2ds
for guiding the hammer.
end-~e.a"-9 pile ----------fto:'!!I
Ap~ ~g prinCipally on the
timber pile
~"!1 reslsbnu of soli or rock
~neath ~s b:it for support. The
SUITlXl~ soil rruss ?rovides a
~ree ofbCa-alsta~lityforthe long
~ l1eml>er. Also called
point-!>~ pile.
~!low3LoIe pt'1e Io~d
The II3XlnII'I axb! and bteralloads
pennfU.eJon apile, as c:feterrnl~ by a
~all1lc plefonnub,a static load ~
test,:;r a,m.echnlcaIInvestigation of ,/
the fourW1lon soil .'
pile ~ity _._-_..-.,
The ~t:IoI of;1 pile from Its pian
wUooarmthe vertQl, ~sultll1g
In" reductkrl of Its aJlowable load.
piletolmrIce
froe p'rrnlUed devl3tlon of a pile frcm
the v~ fOf' which a reduction In
3~PIe klad Is net ~ulred.
e!'
V
pipe p~ ...-..:-.-----------
Ahavy steel pipe driven with the lowerend
ettheropen orclosed bya heavy steel plate
orpoint and filled with concrete.An open-
eMed pipe pile ~ul~s Inspection and
excavatlon !1efo", i7elng fliled with concrete.
~wn~ ----------------~
Apllt depOloing principally 011 the
frictlon31 resl:stanu of 5urroundln9
t3rth for SIip'f'<rt
,liftfrictiHI
The frY;t1ol JevelopeJ ~tween the
~ of~ pfe and the son Into which
the pile Is;;"en, .m!ted !?ythe
~Ion d soM to the pile sides and
the snarstrength of the surrounding
SOIIlI1ass.
~frictSon
An ~I badon apile resulting
from ~ of fln, which tends to
d~ thepie down~rd Into the soil.
i......_ i,obar
H
.,"
H-pile -...
A log driven usually as a friction pite, often
fttted with a steel shoe and adrive !nnd to
prevent Itfrom spllWng or shattering.
'--.• shoe
The hard, polrUd or rounded foot of a
pile orcaisson for piercing underlyIng
soli. Also called drive &hoe.
~~. preca,t cOncrete pile
Aprecast, often prestressed concrete
cclumn, havIng a round. s-tuare, or polygonal
section and sa~tlmt.5 an open core, drivpl
Into the earth by3 pIle driver until it meets
the requIred resistance.
ccmpo,1U pj~
Asteel H-sect!on driven as apile,
sometimes encased In concrete to apoint
l:>elow the water tal71e to prevent corrosion.
H'sectIons can be welded ~ether In the
drivln9 process to form afT'j length ofpile.
Apile constructed oftwo rruterlaIs, as a
tlmuer pile havl~ aconcrete upper SC1Ctlon
to prevent the portion of the pile auove the
water taule from deterloratl~.
:'IN ~:!.~=~~by.h"h th'
"-, ~ allowable ax!4llload on apile can be
:.:.-.;.~.'.'.'.II ~~;;:::~~:
load on asingle pIle, usually a fraction ofthe
~::.: i load requlr~to reach aylelJ poInt, apoint
;::... 1 of reslstanu, ora pointof refusal
.:;:;: .~: ..1
....point ofre,~nu .
.::::.: ?~.. . The pointat which apile loadcauses a
'..J. specified netSt"tttement after Delng applied
: f'·.... I continuously for aspeclfled period of time.
t ~ ""l..
~ I'~ point of rem,ai
 I The point at which no additional settlement
, I takes place afterapile has Peen loaded
_______'~," continuously for aspecified period of time.
 yield point
Alineconnectln~ points of equal pressure.
The point at wn!ch an Incre35e In pile load
prod~ adlsproportlonate Increase In
settlement.
102
IJ
f
J
f .
/-
1-
I.
I.
f I
L
I
~
I
L
r
i
I
f
J
I
,1
~I
- pile cap -------.....-.-.--......'...
-~
.. o
In
o °
ex3mplts ofpile13Y0utS
c~5t·ln·place co~rete pile
Apl!e constructed !Iy placing concrete
Inta ashaft In the ground.
cas.ed pile -.....-...- .........--....--.+..
Aconcrete pile coostl"UCUd by driving
asteel pipe orcasl~ Into the ground
un-tll It meets the required resistance
;inathen ftlnng It with concrete.
c..~I"9 -.........-....._...- ........- .... --: ....
Acyl1ndrlc31 steel section. sometimes .
~ or taperea for Incre:asea
s~s. driven or dropped In place ta
$eI')'(: as aform for acast·ln·p!Jce
coocme pile.
m~n.drel ..-----_ .._--_.- //'
Aha-Iy stu! tul>e orcore th3t Is
Inserted Into athln-wal1ed casing to
~t It from coll3pslng In tM driving
process. and then withdrawn Priore
concrete Is pl3ced In the casing.
pier - ....-.-....--.-...-.....-..-...-.....
Acast·ln·place concl'eU foundation
formed!ly Poring with a larg~ 3uguor
~vatlng !Iy hand a shaft In the earth
to a suitable Paring stratum and filling
the shaft with concrete.
~I~~n
A pler. esp. when the roring Is 2ft. (610
mm) or larger In atameter to permit
Inspection of the rottom.
~II - ....--............--........--....-'....
The ;1ase of 3 caisson enl3rged Ul '
lnuease Its bearing area.
bdl17ucket
An attachment to an earth auger
having expanding I1lades for D:c3vatlng
aPell at the rottom of acaisson shaft.
Areinforced concrete slab Of mat
Jalnl~ the heads of acluster of plies to; 1<:
distribute the load from ;I cclumn or ;.-
grade Pe<im equally am01l4 tr.e piles.
t::3
0
oli}O
o 0
Unc.3~ pile
Aconcrete ~ CO!1struc'..t.d ~ driving 3
c;on.cme pl~ Ir.'.o the gro'.J-nd along wit.' •
~ casli1g unullt meets ~~ reqUired
~nce. and then r.;:r.tr'lir.g cancw~ L.,..-..o
p~ as the casJng Is wtU-.:hwn.
~(;~Cai5~n , ...........1 rocl:~i5~n
FOUNDATION·
tiep~m
Areinforced concrete pe3m dlstrlputlng
the harizont.1 forces from an eccentric311y
khided pile cap or spread footlngto other
pile caps orfootlngs.
.;•.• ped~1 pile
i
Acast·ln-place concrete pile having an
enl3rged foot to Increase Its Pe<irlng area
and strengthen the l1earlng stratum by
compression, formed !Iyforclng concrete
out at the Pottom of the casing Into the
surrounding soil
...!.-.• pulP
f : Abu~e C<lst u formed at the l10ttam of a
j i cast·ln·piau concrete pile to enl3rge Its
! 1 Pearl~ area ar.a strengthen the rearing
I stratum !Iy ccmpression.
Acaisson that Is drilled InUl astr3tum
of solld rod rather than belled.
As.x~tted cat=scn having 3 steel H'sectlon
c-=~ ",Ithln 3 c.:n:.-ete·fll'eJ pipe casing
103
FRAME
A skeletalstrocture ofrelatively
slender memf,~ designea to give
shape and support to a ~uilding or
otJ1er construction.
"raced frame
A·structuralfume whose resistance to
lateralforces Is pf't1Vlded bydiagonal or
other typeofk-ac1t4
-
rigidmme
Astructural frame of linear memrers ~ldly
conr.ectea at theirjoints. Appllea loads
produr.e axial ~ and shear forces In
all meml>ers ofthe frame since the ~Id
joints restrain the eMs of the meml7ers
from rotatl~ freely. In aaaltion. vertlcal
waSC4use arigid fr;1me to develop
~I thnIsts at Its lr.Ise. Arigid
fr.ame Is st3Uca/1yindeterminate and rigid
onlyIn Its plane. AlsoColIlea moment-
~"4 fr.1me.
hinged frame
A rigid fr3me connected to Its supports
with pinjoints.The pinJoints prevent high
!lCndin4stresses from developlnBby
a~ u",frame to rotate as a unit when
stnlned Loy SlIpport settlements. and to
flex ~htly when stressed bychanges In
temperature.
L1
three-hi~ fume
A structul'llfas5ell1!11y oftwo rlgta sections
connectea toeacfl otherand to Its
supports wltfl pi"joints. While more
sensltlve to~n than either thefixed
or hl"¥d frame. the thru-hlngea frame Is
Ie.ostrlfect&i by support settlements and
thtnl'tllstresses. The three pinJoints also
permit the frame to lJe analyzed as a
stat:lcally de1ermlnate structure.
104
pL1stic hinge
Avlrtu.ol hillg/l that develops when an fJ,ers
are fully yielded at across section Of a
stroct<Jral member. ~'1
....... fixed frame
Arigid frame connected to Its supports
with fixedjoints. Aflxed frame Is more
reslstant to deflection thanahinged frame
put also more sensitive to support
settlements and thermal expansion aM
contractlon.
sIdesway
The later.lf dlsplacement produced In ar'.3k:1
fralT16l7y lateral loads Or asymmetrbl
v~31Ioadlr~
A-frame
A!nJlldlng constructed with asteep
triangular frame resting directly on ..
foundation.
I..1
I-1
r •
f1
I.
J.
•
~' r;r'
""'!
f'"
1
j
r
1
r
I'
I
knee
Thejur.ctlcn of the tap ana
either of tne uprights of abent.
10000000-0
0101010101001011
,un IO]DID]ODlDiDiol
V-terenJ~1 ~5
Aframed ~ stroctore h~l~ vertlc31
web mem!1ers ~idIy connecte.d to parallel
top and ~ chords. A'{:trendeel truss
~ not a true ,",SS slnu Its members are
subject to I'lOII2xtal ~ forces. Also
called V1~ ~lrder,
p<lrt.1I~
A method for a~lyzlng amutt...tstory frame
.15 aC3l1t11ew:r ~te.d ~ shear rackIng.
1M portal methcJ assumes tn3t apoint of
InfIectloIt occurs it the mkl~ of all
rnemDer$ In the frame. and that the mme
acts :.lS2 ~ of~ portals to
which the tobl t.ter.ll shar:.lt each level Is
distribuW 1ft propoI'tlon to the floor:.ilre3
~h wlumn ~s. ~!M4 ry pin.lolrrts
C2n ~ lnsute.d 3t e;;ch point of Inflectlon.
Nkl~ ~ ~:.l st4t:b11:i dekrmlnate
stnlCture.
~rrt&ver~
A Ir1ethod for J!t:.llyzlng alT1uttlstory frame
~ 2 C3ntllever $U~t to Pe:1dl~. The
C3rTtllever method :.l5Surnes th.-t:.il point of
Inflection OC~ it the 1l'1!d~ngth of an
II"alPers In ~ fralre. and wt tM axidl
fOf"Ce In ~h WuIM of ast.:ry ~
proportlonal;o ~ tIortz:ontal distance from
the centroid oI3a the columns 0f1 tn3t level.
Imaginary pinjoints c.1n ~ Inserted at each
point of ~ Iftlk~ the frame a
statlcally ~1n:.iIt.e WJ<-'"tUI"e.
moment ~trip1ltlcn methcd
A method for mlyzl~ an IrJetermlnate
str'uCt1Jre ~h :.iIo'1Iter:.ltN/: pr-ouss of
fixing ar19kijo!rTt In splU. ~termlnl~ the
fIxed·enJ I1'OII'1CTt.s at theJolnt. then
~sI~ thejoint to allow It to rotate. and
studyln4 the ~nsftrence of moments and
rot3tlons to £Merjoints

1
~
I
t ~
I
InkUrmil';1'U
Of or pertaInIr.q to astructure havl~
more than the minimum number of
members. corm~tlons. or supports
needed for staDil1ty. resulUng In more
unknown forces than there are static
equ.aUons for solution.
d~ru of iru:!eUrmlnacy
~ dlfferenu petween the number of
unknown forces In an Indeterminate
structure and w number of static
equ3tions 3'.'ah,le for solur:cn,
I
i
pent
Abraced or ~Id frame deslgnea to carry
vertlcal and lateral loads transverse to the
length of aframed structure:.
FRAME
portal
A rigid frame of two co{umns and a.ream
defining aSingle bay. Also called slngte-l1ay
frame.
~-. multi.toryf""",
Avertical series of superimposed r1~ld
, frames.
deUrmllJrte
Of orpertaining to astructure able
to ~ analyzed completely by means
of the principles of statics. ./
redund.Jncy •..,.......,..
Astrvctural member. connection. or
support not required for astatically
Wb!T1lnate structure.
degree of reduMancy
The number of members Deyond that
re.:lulred for the statrillty of a
st;:cally determinate structure.
transfer column
Adiscontinuous column In amultiStory
frame. supported at some Intermealate
level where Its load Is transferred to
aajacent columns. - ,
DOt]
DODD
DDDD
DDDD
tran,-fergiraer ~-.-..--:
A girder supportl~ atnlnsfer c;clumn.
degreeoffr~m •....
The numberof members l"e<ulred to
stabilize 3 collapse mech3nlsm.
105
FRAME
froilmlng
Theut. proceS5. or manneroffittlng and
joining together relatively slender members
to give shape and support to astructure.
froilmeworic
Askeletal structure of parts fitted and
joined to¥therIn order to support. define.
or enclose.
skeleton construction
Asystem ofconstruction utilizing a
framewort ofcolumns and !leams to
transmit !lullding loads down to the
foundation.
plank-oiInd-l:Ieam constructlon -.-..-- .--....,...............-
Flooror roofconstructlon utilizing a
framewort oftlml1cr ;Ieams to
support wood planks ordecking.
poie construction
A sys~mofconstructlon employIng a
vertical structure ofpressure-treateJ
wood poles whlch are firmly emPedded
In the ground 3sa pierfoundation.
106
lightframe constructlcn
Asystem of construction utlllzlng closely
spa~ and sheathed memPers of
dimension lumreror lIght-gauge metal to
fonn the structural elements ofa11ulldlng.
.~ balloon fr;;me
fIoorfr3minq
platform fr3me
roof fr3minq
,r_.... principal ueam
.... Any large !leam In astructur.ll frame that
./ supports secondal)' beams orJOists. Also
...
.../ called primal)' ~m.
r"'"'' secondary ue.am
/ Any beam that transmits Its load to a

principal ~eam.
terttary ueam
Any beam that transmits Its load to a
seconml)' ~eam.
 ..- girder
Alarge principal beam designed to
support concentrated Io;Ids at IsoI;rte.d
points along its length.
arc~te
Ofor pert3lnlng to a 5yStern of
constructlon employing arches or
arched fonns. AIso. arcu.tt&i
pole MUse
Ahou~ of pole construction.
pole
Along. cylindrical. often s~nder p~ of
wood or metal. ..
stilt
One of seve-ral p!~ or posts for
supporUng astnx:ture arove the
surface of land or water.
i
I
l
I
L
J
J
,
I
!
j
I
1
1
,1
J
principal~fter _..-.--.-_.---.........._
........__.
str3ining plect _...._._-._ ..... __ ..._.. ___.._.
queen post -....--.-.----.-....-..-.~...,..
summer - ..........-- --------- .. -. -...------.--..",
AheJ;)' Umber serving as a """
principal beam or girder. Also '
C3 Hed summer-tru.
Ineast5ummer _ ..._
...._ ...__..i
Asum,'T1er supporting awan o,rer an
ope~:ng. Also called Ureast beam.
tr3Ye _.....- ..._--..- .....---".--.-.-._- .......i
Acrossbeam or al73y formed ~
crossbeams.
17ifder ---.----.--............-...-.-
AprllIclpai ream supportlng the ends
of t:io-o sets offloorjolsts_ Also Cd lied
t>indin~ P-e.1m.
Iol./'r'i:r .---........--..---.. -- ....
At:. ntern or turret on the roofofa ~~~~~~~~~
rnealCal building having slatted
a~..;Jres for the escape of smoke and _
admission ofair.
thJtch _...--.....--....--...........-.-._....-.....
Amr..eml foreaverlng aroof. as straw.
rv~. or palm leaves. fastened
to..3~her so as to shed water and
5O~~s to provide thertT131
Insut..t1on. Also. ~hrn9.
~
~.j
' - . . . _ - - - - - - ' -
wattle and aaul1
Aform of wall construction. consisting of
wattles covered and plastered with clay or
mud. Also. wattle and dau.
wattle
Aframework of rods or poles Interwo,ren
with thin ~ranches. twigs. and reeas. used
In the construction of walls and fences.
FRAME
praced fra me
A~ulldlng frame employl~ ahe3Yj1.ln-acea
framework of solid girts mortised Into soltd
posts the full h~1Tt of theframe. WIth
studs one story high filling the interstices.
Also called full frame.
-post
.- girt
A horizontal timber connecting the posts of
aIn-aceJ frame at an Intennealate level
abo,re the ground floor.
"-_.. _...• 5tiJd
"'--- raiseagirt
Agirt parallel to and level with the floor
joists. Also called flush girt.
--.-..-~ dropped girt
i Agirt set lielow the floorJoists It supports.
no~ '-
One ofanumber of short wooden pieces
Inserted between the principal members of
ahaff·tlmbered wall to 5tr~gthen the
frame and retain the brick Inflli. Also.
half-timl1er
H3v1ng a ~mber framework with the spaces
fliled wtth masonry 01" plaster. Also. half-
tlml1ered.
open-timl1ered
pan
Amajor vertical division ofawall, esp.
anoggedpanel of haff-tlm~er
construction. .- -..- ..'f"- - - - - - i
;;;~:,~~~;;f;;r;~;~;;,,~- --11111
~etween the members of atimber frame.
107
GEOMETRY
A branch ofmathematics that deals
with the properties, measurement,
and relationships ofpoints,lines,
angles, and solids,deduud from
tneirdefining a>nditions Dy means of
urt.1in assumed properties of
spau.
point
Adimensionless geometric element
that h3s no propertY!lut Ioc3tlon. as
the rn~rsectIon oftwo hnes.
line
y-axis - ......._._..._...............-
The 3x1s along which o;d1nates or y.
V3lues are ~sured In aCartesian
coordln4U system. Also called axis
ofordfuUs.
z-coordinate
Acoordlnzte determl
!1y ~surlng parallel to
thez·axls.
z-axis _........-..---..
The axis 310ng whk:h z-V3lues are
measurea In athree-dimensiOnal
Ca~ian coordinate sys~m.
rutangu~r coordilU'te system
AC4rtesbn coordinate system In
which the axes orcoordinzte planes
are perpendlculdr.
A ~ elementgenerated !1ya
moving point 3nel ~vlng extension
wlthOllt breadth or thickness.
o 0
a~le
The space l1etween two lines
dlvergl~ from acom.mon point. or
within two planes diverging from a
common hne: the figure so fonnea.
108
/
_.' a17scissa
Acoordlna~ detennlnea !1y
measuring parallel to the x-axis.
Also called x-coordlnau. .
/1
1/
l;
Euclidean geometry
Geometly based upon the
postulates of Eucnd, esp. the
postulJte that only one Mne may
pe drawn throu~h agiven point
parallel to agiven line.
caordinate '/: 
AIry ofasetofnumms that serve to !
s~1fy the location ofa point on a
.", radius vector
Astraight line segment that
JOins 3 V3rla~ point to ~he fixed
origin of apolarcoordinate
system.
i i i : I .I I
Itn-! il I
nnt, 5Umce. orIn space !1y referenct
to aftxed figure orsystemof hnes.
c.aJ1:.es~n caordinate
AIry ofthe coordlnates for locatIng a
point on aplane PyIts dlstana from
each of two Intersectln~ hnes, orIn
~ !1yIts distancefrom each of
three planes Intersecting at apoint.
l"'4....-.j..--: ....- ordinate
.........-"-'.-"'-c-..l.'-;--;.:..,..--f----H-+--+ Acoordinateaetennlnea !1y
x-axis --_.'
~rlng pal.i~1 to they-axis.
A!:so calle<l y-coordlnm.
T}.e axis aloog which abscls53s orx-values
are I!1e3$Ure.:I In 3 C3rtesian coor&nate
system. Also calLed axis of.1~ssas.
ver"..ical
f~~iartot:he
p!3neof~ horizon.
horizonbl
faraneltoorope,..tlr~ Ina plane
paraIleit.o the horizon.
--.- vertex
The point at which the sides of
an lIng!e 1nterseG't.
.--+----- right angle
l Anang1eofWf~!1ythe
. perpena1cularIntersection of
two straight lines.
"--. 3Cute JnSIe
An angle less than OO~
'.-.-.-" -----.-.-.-. o~u!Je Jngle
An angle grea~r than 9O~ Uut
less than 100°.
pobr angle
The angle fortned !1y the polar
axis and a radius vector In a
polarcoordinate system.
polar axis
The reference axis from which
the polJr angle Is measured In a
polar coordinate system. '
.__ .___f __
pobr coordinau system
Asystem for locating apoint on aplane
!1yIts radius vector and polarangie.
paralld
Extending In the same
direction. eq!Jldlstant at alf
pOints. and neverconverging
or diverging.
skew lines
Any lines In space that are
neither parallel nor
Intersecting.
angle
The amount ofrot3tIon neeaea
to lning one nne or plane Into
coincidence with another.
measured in radlans or In
degrees. minutes. and seconas.
radiln
Aunit ofangular measure equal
to the central3ngle subtendlng
an arc equal In length to the
radius: ~/21t orapprox. 57:3°.
degree
Aunit ofangular measure. equal
to'J~th of3 complete angle or
tum. orof the circUMferenCe ofa
circle.
minute
The 60th Dart of a aearee of
angular ~asure. -
~ccnd
The 60th part of a minute of
angular measure.
I
I
J
, i
1 _
·'"t.
..
he~ht
Extent ex distance
upward from • glven level
to;; fIxtd point.
past!: - ...- ..-...................,
The nneor surface forming the
part of a¥Ometric ~ure that
Is most ~rly oorlzo11tal or on
whlGh ~ Is supposed to stand.
from which ;an altitude ~n pe
C011Str1.C.e.d.
:...... vertex
, The point opposite to and farthest
, from the Pase of aplane figure.
."" altitude
./ The perpendicular distance
./ from the pase of ageometric
,. figure to the opposite vertex.
parallel side. or parallel surface.
reentrant
Reentering or pointing Inward.
as an Interiorangle ofa
polygon that Is greater than
150~ --'•.••
". ~
~~
triangle
Havl"!l t1000 sides of equal length.
acuU -.-..........-.............
Composed only of acute angles.
Apolygon having three
sides and three angles.
obtuse --...................- ..-
Havlng.n:;1;rtuse angle. I
~1eM -.---...-......- .1-....
Having ~ite unequalsk:les. I
Lsalient
An outward projecting angle or
I part.
.......j---- exteriorangle
I The angle form&! petween any
I side ofa polygon and an
! extendea adjacent side.
coincideJTt 1
Occu~ tM same place In
... interior a"9le
----"'~~ The angle form&! Inside a
GEOMETRY
plane geometry
The pranch ofgeometry th.tde3ls WIth
pl3ne~ures.
plane
Asurface generated l1y. straight line
moving at aconstant velocity with
resp~t to aflxed point. such that.
straight lineJoining any two of Its
points lies wholly In the surface.
figure
Acomplnation ofgeometric elements
disposed In a partlcularform o~ shape.
.~--------l,.- ....-.... polygon
q,uadribteral
Apolygon having four sides and
four angles.
Aclosed plane figure havlngthru or
more straight sides.
rectilinear
Forming. formed l1y. or characterized
l1y stralght lines.
"-.. 1:..... rectangular
'-., Having edges. surfaces. or
"'-....."'-..... faces that meet at right
"'-... angles.
"'-... r- aspect ratlc .
'-t:-.. In any rectangularconflguratlon.
~_______...:._.'-...,--= the ratio ofthe longer dimension
to the shorter.
rectangle . . .
Apmllelogral1ihavlngfour --...• dIagonal
spaceort:~,
CO"9/"tlCft _ •..- ..-_...-..
CoInc~ 3t all points when
polygon!:>etween arty two
adjacent sides.
right angles. esp. one with sides Ahne connecting two nonadjacent
r-:;:r....of unequaller!gths. angles orvertlces of.3 polygon or
v polyhedron.
$U~rI~
~jmibr - ..-----...- ........--
H.3ving ccrrespondlng sides
~.41 and cor.espondlng
cant - ..............-......---..:'.-
An ol7l1que hne or surface. as
one formed l1y cutting off the
corner ofasquareorcuPe.
angles e:q-.:.JL II--_ _ _ _ _ _ _ _........o¥.
u-Ig~etry
The I7nrci of l713thematlcs that deals
with t~ ~les of kiangles and
trI9O~..rlc functions, and of their
.3ppfk7'..cf!$.
u-~funcUon
A fuoctb1 of3n 3rl9Ie, as sine or
coslM. ~ 35 the ratio of tr.e
ri9httriangIe
Atriangle having aright angle.
'::'" hypoUnuse
... The side ofaright tri3ngle that
;'. Is opposIte the right an~le.
........ square
Aregular polygon having four equal
sides and four right angles.
/ I···· n. ~~:~~~7h"J""roth p" ..aI
/ . ~~lteS~~~to~~~
...-.~ trapezoid
Q Aquadrilateral having only two sides
parallel.
_.' _-....,- Aquadrilateral having no two $Ides
s~ of a~ht triangle.
&iN!
G _.'-.'trapezium
~-+--:""~+----t' parallel
The ~rr.etrlc function deflned 3S
the 1'3~ of the side oppostui agiven
angle to ~ hypotenu~.
c05ine
The ~~ functlon deftn&! as
the ra~ of the side adjacent to agiven
angle to the hypotenuse.
tangent
The tro9""'O~trIG functlon deftned as
the rat:o of the side opposite agiven
angle to ~ side adjacent to the angle.
~carrt
The ~rlc functlon defln&! as
ratio of ~ hypotenuse to the side
adj3Ce:1> to 3 given angle.
C05eCarrt
The ~"""lOmetrlc function deflned as
the 1'3~ of the hypotenuse to the side
opposr-~ ~ ~Iven angl.e.
cot.J~
T~ tr'..,r.."<'CJT1etr!c functlon deflned as
the 1'3".: :;i the sIde opposite agiven
angle:.: :.'---: side adj3cent to the angie
Pythagorean theorem
The theorem that the sqU.3re ofthe
length of the hypotenuse ofaright
triangle equals the sum of the
squares of the lengths of the other
two sides. C' Ci 2 I b-:
regular ...........-..:........
Having all sides equal (equllJttral)
and an angles equal (equlangulJr)
"---... pentagon
Apolygon having flve sides and flve
angles.
- ...-...-.--.. hexagon
Apolygon having six sides and six·
angles.
. octagon
./
Apolygon having elght sides and eight
angles.
~ apothem
- Apc:rpend1cular from the center cf
aregular polygon to one of Its
sides.
109
GEOMETRY
circle
.'----.-.-- arc
Aclosed pl3necurve everypoint of
which 15eq~1Tt from aflxed
point within the curve. .../: Any,P3rt of the clrcumferenu of acircle.
:' r-'''--''-' raalus
.... / Astra~ht hne extendl~ from the center:f
1
111r: ill circle or sphere to the circumference or
Poundmg surface.
....-.. sector
Aptar.t figure rounded by tliO radii and t~.!
Includ.e.d arc of a Circle.
------ ..- --- di3meter
circumference __J
The roundary hne ofaclosed curvilinear
'flgure, esp. the perimeter-ofacircle.
pi
The sym~ol Jt aef'(Jtlng tM ratio retween
the circumference of 3 circle and Its
diameter, accnstolrrt equ~ to 3.14159+,
Astraight line extending through the
cen~ of acircle or sphere.na meetlng ~
circumference or Poundl~ surface at eacb
end.
'.~..-- - cenUr
The pcint within acircle or sphere equally
d1staITt from 311 ~nts of the clrcumferer.::t
or surf.ice. or the point within 3 regular
polygon tqU311y dlstant from the vertices..
cherd -------- ....------------.-,
The straight nne segment ~~ 
"
two points on • ~lven curve.
; ./ I "'>'"
,',/ . ..,......"
-..g-.---+----r.~-
i ,
~. ..~------ ---------~?'~~:slngthrough the tn'ofocl ofan
__----'--I__
-.-- eUl~
e{Jj~ I , -,-------- minor axis
Aclosed pbne curve generated by apoint
~ In such aW7"j th.t the sums of Its
dlst.nces from tl'lC flxed points, the fOCi. Is
a constant.
hyper~ol.
Apl.ne curve 9tnerated by3 point so
~ th~ the difference ofthe distances
(rom two flx&f points In the pl3ne remains
constant.
110
The axis ofan ellipse that Is perpendicular
to the :T".3jaraxis ata point eq~!dlstant
from the foci.
!
I
i
i
spiral.··--..-.... -.....------- I
Aplane curve ~t3tea by..
point moving around afixed
.,---- asymptote
point while const4ntly recea:."oJ
from or appl'03chl11g It.
Astralglr; One nmiting acurve such that
the perpenalCular d1s~nce from the curve
to the n~ approaches zero.s the curve Is
extenkd to Inflnlty_
-..... eccentric
Not having the same center Or center
line.
off-center
Not centered orat the center point.
_----------.., concentric
Having acommon center. as clrc~s or
spheres.
._-- centerline ,
An Imaginary line that plsects. plane
figure.
___________. q,~rant
An arc of 9O~ or any of the four
a,uarterslnto which aplane figure Is
dM:Jed by two perpendlcutar lines,
numrered counterclockwise from the
upper right.
(t ~UC:,,"o,,1yb"J,",""".wlth",t
angles.
~---________.._____..--.-------. concave
~ Curved Inward like the Interior of a
circular arc or hollow sphere.
----------- inflection
..------. evolute
fhe locus of the centers of curvature
of. orthe envelope of the nortTUts to.
anothercurve.
..-.-..---- Involute
Acurve traced by a point on;a string as
It Is l:ept taut and unwound from a
stationary cylinder.
.....--------.-..-----.--. helix
Athree'dimensional curve tr3Ced on a
cylinderor cone Py the rota'tlon of-a
point crossing Its right ~tlo"S at a
constanto!:>llque angle.
cycloId
Acurve generated by a pOint on the
circumference of acircle 3S It rolls
along a straight line.
&pherokf
Asolid geomttrlc3l ~ure similAr In
shape to;a sphere. 3S an ellipsoid.
ellipsoid
A solkl f1qure all plJne
sections of.mth are
ell1pses.
prolate sphuoid
Aspheroid generated by
rot3tlng an ellipse about Its
major axis.
prolate
Eklngated along the po~r
diameter.
cyiinkr -_...._
.._...............-.........
A solid I10unded by two parallel
plJnes and asurface generated
by astra~ht hne moving
parallel to <1 ftxe.::Istra~ht line
and Intersectlng ac!oseJ plane
curve In oneof the planes.
~ht circuL1r cyiinaer _....
Acylindergenerated by a
rectangle aboot one of Its
skies.
cone ......_......_...- .........
oblate spheroid
Aspheroid gener.rted by rotating
an e!l1pseabout Its mlnoraxls.
oblate
Flattened at the poles.
selid
Ageometric f1qure having the three
dimensions ofIength.l:Ireadth. and
thickness. Also called l7ody.
volume
The extent ofathree-dimensional
object or the amount of space that It
occupies. measured In cubic units.
surface
Arry figure having only two dimensions.
as aplane orcurved two-dimensional
l<Jcus of points deftning the boundary of
asolid.
generator
An element th:lt generates a
gtOlT'.etrlc fi9ure. esp.astraight I1ne
that generates asurface by movln9
In asPeGffl~ fasnlon. Also called
generatrlx.
Asalk! whose surfau Is
!lener<lt.ed by astraight line.
the gentra0". passing through
a ftxtd pclnt. the vertex. and
moving a~ the Intersectlon
wtth acloseJ plAne curve. the
directnx.
/ ...- directrix
. Afixed fine used In the descrlptlQn of
acurve Of'surfau.
right circuur cone --
A cooe ¥nerated by rotating a
right tria"9Iearout one of Its
legs.
uuncmJ ,'- fru,tum
Havl"9 the apex. vertex. or end . The portion of accn1calsolld
cut off by arane. esp. by one ':. left aftercuttlng offtM top
parallel to the base. _.. :. with. pl3ne parallel to the
ellip~
A conic sectlon formed by the
Intersectlcn of a~htclrcul3r
cone with ;I pbne that cuts
through both the a)(ls and the
surface of t~ cone.
:,base.
paraPob
Aconic section formed by the
Intersection ofaright circular
cone with aplJne parallel to a
generator of the cone.
center ..'
Th~ point within aregulJr polygon
equally dls~nt from thevertlces.
ed.g.e ..........._......_ ......._ ..._...._.-_...-_...
Anne at which asurface termlnaus or
at which two surfaces ofasolkl meet.
vuux ...---....-----_..-.. --
Apoint In ageometric solid common to
thr~ Of' more sides.
conic 5eCtion
Aplane curve formed by the
Intersection of ari9htCircular
con~ with apl3ne. •·..··..1
hyperbob .
Aconic section formed by the
Intersectk)O of arl:Jht Circular
cone with apl3ne that makes a
greater an9te with the base than
dc-es the generator of the cone.
GEOMETRY
selid geerMtry
The branen ofgX'!l'.etry that dais with
sofld figures and three-dimensional spau.
sphere
Asoild ger.erated by ~ revolution
of a:-emic:rc1e about Its diameter.
whose ~rface Is at all points ~.
equidistant from the center..
poly41ron
AsoIkI ge.cmetrlc fl9ure bounded by
p13nd3ces.
r~ular
H.'lvir.g all faus congruent regular
poly~ and all solid angles congr~
prramid
Apo~t.edrcn havln9 apolygonallr.lse
and t,";';;:"-3'JlJrfaces mutlng at a
common pelnt or ver-..ex.
',,-_.- -~ tet.nhearon
Aregubr polyhedron ~nded by four
pbnef3us.
cuP-e
Asor.d rot:~ded by SiX equal square
slks. t1-~ angk: ~ween lrry two
adJac..,--r.t fates being 3 ri9ht angle.
-- hex.hUron
Arequbr pclyhedron having sIx f3us.
pri~m
Apo~hearcn havlng ends that are
para~el. congruent polygor;s <lna sides
that are parallelograms.
Pl.iU1nic so~
One of t.1e flve re.gul3r polyhedrons:
te;raheaml. hex3hedron. octahedr:;n.
dodec3hearon. Of' Ic054heelron.
---.. --~ oct.a~rcn
Aregular polyheJron h2v!~ ~~ht
faces.
- ~ do<b;a~ron
Aregu br p<llyheJron having 12 faces.
',_.- ..~ ico~a~dron
Are~hr pclyhedron having 20 faus.
111
GLASS
Alurd.lniWe. usually transparent
or tranSlucent suf1stance. produced
Pi' fusing sita together with a flux
and ~ sbl1t11urInto a mass th3t
cools to arigkJ condItion without
c!,),staIJizJtion.
crown glass
An old fonn ofwfndow glass formed Dy
plowl"1 and wftlr!l~ a hollow sphere of
g13ss Into~ fbt. Circular dis£: with a
centerIuI1p left Vy the wori:er's rod.
shutgbss
Aft3t, scda-Ibnc-~ glass faprlcaW
Dy drawing the InOIten gbssfrom a
fum~ «<aMIglass). or Dyfonnlng a
cylinder.tJIvIdIng It lengthwise. and
futtenl"! It (cyffnder,lass). The flre-
polished~ are not perfe.ctly
pmllc:l resultln41n some dlstcrtlon of
vision.
plate 5laS5
Aflat. soda-ltme-sl1lca glass formed Dy
roinng molten glass Into apla~ (rotled
glass) that IssuDse'luently ground and
pons,W ~coonng.
float glass .----.--.-.•.....
Afut. soda-h~sll1cJ glass that Is ........
ewemc:ly smooth and nearlydlstcrtlon· ....
free. NllIbctured by pouring mol~n ",
glass ooto asurface of molten tin
and a~ Itto cool slowly, Float glass
Is the successor to plate glas5 and
accounts for the 1113jorIty of flat-g lass
proJuctlon.
·.;u&~!l~~:
Aglass unltconststlngof two or
more s-heetsofglass sepal'3ted by
henretblly-seaied alrspaus.
hermetlc --.._-.-._.............
~ airtlght by fusing or Staling.
'"~t.~~:
Glass ~ achem~1 admixture tc
~VsorV aportion ofthe rad~nt heat ~nd
vIs~ Ight t1ut strike It. Iron oxide gives
the!lass ~ pale ~-~~_~t; ££~It
~~ IInf'3I'ts a~h.~Il;;
sdenkm Infuses a~ tlnt Also called
hUt-~Rf ,lass.
~~""'~--"---"""'--"h_""_""'"
Glassbiiig'a thin. translucent met.:;IIIc
~ toondeJto,he exterior or Interor
sllf'bce kI refleaJ portion of the IIght
",lid radiant heatth3t strike It.
:~~~Wt~:; ---.--...-.....-.
Glass ~i-tnftSinitS~117Ie light while -. I "'-'"
~re&a!ng the longer 1"--...........
~sofradlant heat. produced Dy ""'-,
~alow-emlsslvftycoatlng •...--J._._..__.._...__
either~ the glass Itseffor over a !
transparent plastic film suspended In the i summer
~~~~~~nSUla~ng glass. Also I'
em~
The ~ alIdlty ofasurface tc emit ,
radi3nt ~t.lI1easured 3galnst a placl: I
~at the same temperature. I
I
sh~di~~lent ~
The r.iI~ of solar heat tr.insmlssion
thro~h:l partJcubr glass to the solar h~3t ==
tranS«1lsslon thf"'OUgh dool7le-strength
c!earguss. __.-.:..!_ _
112
si~~strength gla55
5~ glass h3Y1ng athickness of
3/YlIn. (2.4 mm).
dcuble-st.ren¢l glas5
5f-at glass l!3yjng athickness of
'/~ In. (32 mm).
-t- !
i
-r1
I I
LL
1 T
1 1 .~
I
II
-
anne.a1ed g1a5~
Glass t~3tTs cwtea slowly to reHeve
Internalstres5es.
.ht3t~enqthenedglas$
Annealed glass that Is partl3lly ~mpered
Dy aproctss of reheating ana sudden
cooling. Heat·strengthened glass has
apout twice the strength of annealed glass
of the same thlc~ness.
~tempered gtas, I'
Annealed glass that Is reheated tojust
l>elow the softening point 3 nathen 1'3pldly
cootea tc Induce compressive streS~ In
the SUrf3~S and edges of the glass and
tensile stresses In the Interior. TempereJ
glass has three toflve times the reslstance
ofannealed glass to Impact and thennal
stresses Put cannot De a~red after-
faPrlcatlon. When fracturtd,1t In-e3ks Intc
relatively h3rmless particles.
-'·~~·-::~~=ll-j ~;~"::!~~ftrt9IaSSDoncWUnder
heat and pressure to Interlayers of
.:':~
i
I
i
T
1
ill
J 1
IL
1
I polyvinyl Dutyral resin that retains the
I .fr39~.nts Ifthe g135s is Drcten. Also called
I rsat~!!,~~;;
I ,i'~~g~~~
13mlnated glass havlng exceptional tensile
and Impact strength. consIsting of multIple
piles ofglass Ponded under he3t ~nd
pressure to InWlayers of polyvlnyf I:>utyral
resin.
r~u~lgb"
13mlnated or InsiJktlng glass used for
sound control
Wire9ra,~
Flat or pattemed gtass having a so,uare or
diamond wl~ mesh eml7edded within It to
prevent shattering In the event of ~bge
or excesslv~ heat. Wire glass Is wnsldered
a safety glazing IT!3terl4l
+A·····~=~~:~ularslJ/face pattern
: formed In the rontng process tc obscure
vision or tc diffuse fight, AIS<? called
fl§ured I~SS.
;?o~~j~
Glass ~lng one orroth sides acld-etched
orsand!llas~ to wscurevlslon.
~'~~~$j
An o~~ glass'f~c.onceanng the
structural elements In curtain wan
construction. produced by fusing aceramic
frit to the Interiorsurface of"temperedor
heat-strengthened glass.
~~j~~~~~I~ ~j.~!~l~~·
. Atf.lnstucent. hoilow bfoc~ of glass wIth
clear. textured. Of' patterned faces. made
Vy fUSing two h3lves together with a parUal
vacuum Inslk and used for glazing
openings.
;5~.5.;~k
~son,l.lmpaci-reslstant glass plock unit,
sometimes haVing an Insert or coated to
reduce solar heat transmission.
< I
I
J
I
,
i
, i
! I
~.
J
r~
,
I
1.
.,
II
•
t.Jcegl.uing
The seWng of aglass paM In arabbeted
frame, hakllng It In pbce with glnler's
points, and seaang ItIIIlth abeveled bead
of putty or glazing compound.
fAce putty .------------------- ------.--.----.----- -,
The putty or glazll1 compound formed on . I:
=~rio~:~01'_,1,,5F
:"'_____, 111
Athin layerof putty or glazing compound . I'li
lata In eM rabl>e-tofa window sash to give 
II paM of glass an mn I7acklng. • I
glazier's point ---------.--.-..-.-'...
ASm3n. pointed pieceof sheet metal for -
hol.dlng aglass P"~ In awood sash until
the tau putty has hardened. Also called
gl..azJng Urad. s~.
putty
Acompound of whltlng and linseed oil. of
doughfl:e consistency when fresh. used In
secur!l1g windowpare5 or.patching
woodwork defects.
glazir~ compound
An adh~sNe compound used as putty.
formuiJted so as not to become brittle
with age.
~~~~a;lass~~~·~~;~~~d·f~;----· .. ....--.--.
gLnlng 3n opening. allowing for adequate
eJ¥ce:aranus. Also called gl.a:zrng size.
unit'.eJ inches
The sum of one ~ and one width of a
recta~ular glass pM or unit. measured In
tnches..
~e p~ck --..--.-....-- .. -...-----.-----'.•
One of the SlT13n l7locks of synthetc ",
rJb~ pl3ced l7etween the side ~es of a
glJss f13~ or unit and i.1 frame to unter ....~
It. malntJln a uniform width of Sailant.
arJnmft13ttral~t~usea~ sating block ..-: ..-..~-.,'
~Itdlry 'Ilt>ratlons ortherlT13l expansion One of the Sm311 Uiocl::s of lead or
or contraction. Also calIea centerrng synthetic rul711er placed unaer the
shim. spaur. lower eJge ofaglass pane or unit to
support It within aframe.
f.lce c!elr~n.ce _..---.-_.------ -.. -----~._,
TheotStanul>e-t~thef3Uofaglass r"'::- - .--.-- ii'
pa~orun!tandthenearcs-tfaceoflts "'- !I
fra me" stop. ~surea n~31 to th~ '.'. :
plane eft the glass. ~.. !ll
l:Jite ~.- ...-.---.----.---------..--..
The .mount of OYeNp between the edge
of, glass p:lMe or unit and a window
fra me. stop. cr Icd-strip gasket.
edgeck.1rance --------------..-------
... The dlst.anu bet~ the edge ofaglass
p-ane or unit and. wi11dowframe.
IT1e3surtd In the plane of the glass.
~X~t~if~~~~~~·~----··-·-··-
tempertd glass are suspended from
speclJl clamps. stJbll1zed by
pe~ndlcular stiffeners of tempered
glass. anclJoined by;l structlJral silicone
~larrt and sometimes l7y ~I patch
plates
doul:Jle gl3zing
The Installation oftwo parallel panes of
glass with asealed aIr space between to
reduce the transmission ofheat and sound.
GLASS
gl.~zing
The panes or sheets of glass or other
transparent material made to De set In
frames. as In windows. doars. or mirrors.
wet glazing
The setting ofglass In awindow frame with
glazing tape or aliqUid sealant.
-----------.--.---.----- ,-.--. glazing tape .
: Aprefonned ribDon of synthetlc rubber
hull:Je3d .....--..:
haVing adhesive properties and use.4 In
glazing to form awatertlght seall7etween
glass and frame.
--- ..-.- cap stalant
An adhesive liqUid ofsynthetic rubDer
Injected Into thejoint between aglass pane
or unit and awindow frame. curing to fonn a
watertight seal. Alsocalled cap l:>ead.
'-,,----_ glazing ~d
An adhesive liquid of synthetlc rubber
Injected between aglass pane or unit and a
glazing Dead. curing to form anaIrtlght seaI.
Awood molding or metal section secured
against the edge ofaglass pane or unit to
hold It In place. Also catted glazing stop.
dry glazing
The setting ofglass In ~ window frame with
;I compression gasket Instead of glazing
t3peor ahquld sealant.
C<lmpression ga~ket
Aprefonned strip ofsynthetic rubber or
plastic compressed bawe.en aglJss pane or
unit and aWindow frame to fonn a
watertJght Sail and cushion for the glass.
--_..--.... Iockstrip gasket
Aprefonned gaske-t ofsynthetlc ru;ber for
securing 3 glass pa~ or unit In awindow
frame or opening. held In compression by
forcing akeyed lockI11 strip Into agroove In
the gasket.
flush glazing
Aglazlr.g system In which the framIng
members art: set entlrely behind the glaS5
panes or units to form aflush exterIo!'
. surfau, the glJss ~ng to the framing
'.-"" Iwith astructural silicone sealant.
'.~ .-.- structural Se3l.ant
Ahigh-strength sl1k:oM Sailant capable of
;ldherln~ glass to asupporting frame.
... l:Jutt-joint glazif19
Aglazing system In which the glass panes
or units are supported at the head and sill
In aconventional manner. with their vertical
edges beingJoined with a structural silicone
sealant without mullions.
113
HARDWARE
The metal tools, fastenings, and
fittings usea in construction.
~h hardware .
Bor"...s. screws. nails. and other metal
fI~s that are COI1ct3led In aflnlshed
c.onstructlon.
finish hardware
Ex~ hardware serving adecorative
as;;eilas autilitarian purpose. as the
lod:s. hinges. anaotheraccessories for
doers. windows. 01 ndC4lnnetwOrl:. Also
C31~ architectural hardware.
door h.1rdware
The fu1ish hardware requlrea for
ha~ing and operating adoor.
doorclo~r
Ahydraulic or pneumatic device for
controlling the closing ofadoorand
preventlng Itfrom slamming. Also called
doo.ch«;k. _._/
push plate - ---- .---.------------.--- --- - -
A protective pl3te of metal or plastic
···········,·········:fI.·,
. .~
mcu~...ea vertlcally on the lock stile ofa __...-'
door. . _.---.-.•.--.- ./..
door pull ~....-.-...
A~~!e for opening adoor.
pun par _......- ..-.............../
A Ir.lrflxed acl"O$s aglazed cIoor, used
for ~lng orclosl~ the doorand
prov1dl~ p~ for the glass.
kick pL:rte ---.--.-...-..- ........•.
A~lve metal pImfastened to
the XttaTn of3 door to resist I110ws
anJ scrnches.
hand
The position of the hinges of a door, In
terms of right OIna left, when seen from
the ~~rlor ofthe l1ulldlng or room to
which t.ie doorwIIY leads.
114
floor closer --:.
Adoorcloser Instat~ in arecess In the
floor.
--.--- automatic door Pottom
AhorlzontaIIr.li-at the rottom of3 door
that dropsautomatically when thedoor Is
closed In order to seal the threshold and
reduce noise transmission.
left-hand
Having the hinges on the left ofan
Inward opening door when seen from the
exteriorof the Irolldlng or room to which
the doorway leads.
Fl~) I
I L/ I
L_________ ._. ___ -.-..1
left-hand reverse
Having the hinges on the left ofan
outward opening door when seen from
the exteriorof the ~ulldlng or room to
which the doorway leads.
overhead conce.3ttdcfcser
AcIocrcloserconu;;!eJ In the he3d of
adoorfra me.
~ac~~ck
AtlevIu In ahydra!;!"" door closer for
sloWing the speed i'o~i which adoor may be
opened.
.'
knocl:er -.--.. ---......--....-/.
Ahlngej ring. Dar. cr I::nol1 on adoor for use
In knccl:ir-3.
DfI
doorptrt.e ....-'
Asm~Q identifying plate on the outside
door of ;J house or room, !?earing the
OCCuF3nt'S name, the house Orapartment
num~. or the IlI::e.
............_...- ...... judas
~- .........
.'~ .
~ ..-.---:::--.-....
--
'
Apt:t:Fho!e. as In an entr.i11C6 dooror the
I door cf 3 prison cell. Also calledJudas hole.
.... door cluin
Ashort chain with a remov:;!?Ie slide fitting
that C3n be attached between the InAA of
;; door and the doo~amb to preventthe
door from I1eIng opened more th.n afew
Inches wfthaut the chain l7elng removed.
"-·1-- mails!ot
Asmail ~Ing In an exterlordoor or war..
often i'fith ahinged closer, through which
mail Is denve,ed. Also called letter slo1:..
-.--.. doo~p
Adevice for hotdlng • door open, as a
wedge ex- small weight.
.". l1umper
A~~ rim, gU3rd. pad, or diS«: for
al1sor71r~ shock or preventing damage
from t>vmplng.
right-luna
Having ~ hinges on the right ofan
Inward C¥nlng door when seen from the
exterior of the Irol!dlng or room to which
the door"ay leads.
right-hand reverse
Having t-he hinges on the right ofan
outward Cf'?llng door when seen from
the exterior of the building or room to
which t!--e doorway leads.
I
J
Ii
L
L
L
I
~l
mortise hi~ ~----------------------­
APun hinge I10rtLsed Into the
aMtln~ sur-f.las ofadoor and
doojam!7_
~ah~;~~:oh~"6t;';;I~;d~~~-----I:---'.
th~ tdge of the door anathe other : ...
5urf~-moofTk.d on the doorfra me. .L---,='==-t~~
half-suriacdinge ..---------- --
Ahin..3~ hJvi~ one!af mortised Into
the doorfrarneana the other surface-
moul1won the face of the door.
flap billge ------------------,
Ah~ 1uvI~ mo le3ves surface- ".
mounteJ to tile adpcent faces of a
dooranado<rlrarne. Also called
l7acl:fup hl,,¥, fun-surface hinge.
templ1te hinge ~-- ________.___ ,.
Amortise hlr'¥ rnanufa<;turea to fit
the rea:5S and match the arrangement
of hck5 of hc&w metal doors and
fran-.es.
17afl-P~Jring hinge ~----- -. --- -.- ---
A hir-¥ eqUipped with!r.lll loearlngs
bet~n the klltJdles to reduce friction
and ensure e:35e of ~ratlon.
b:rt-pin hi"¥
II hl~e having a nonremovaule pin.
_.--- (£5
Iocs-e-pin hinge -------------------.--...
A h~e bvlng;l reroovable pin so thilt
a door can be unhuf11 P:isepar.ltlng the
t.¥o~;l"es_
Iocs-e-joint hinge ------- -- -- -------'.
Ahinge hJving 3 knudle formecl from
half of e3ch bf, wlth the upper haff
remon ~ from the pin. Also called
liftcff nl~e.
pintle --.---- ------- ---- ---- -- - --.
Apin CW' rolt on which something turns, --.-.
as tI-~ gudqeon of ahingt.
gudge.on
II socl:et for the pintle of ahinge.
tlpring hinge ~.---..-------- ..--------- -~-
Ahinge co~ a coiled spring In Its 10
VarTel for closing adoor automatically.
aou17te-acti"!'l hinge
A hinge pumlttlng 3 door to swing In
either direction. uSUJIly fitted with
sprlngs to mngthe doof to acIosea
poslt1cn after opening.
piano hinge
II long. narrow hinge that runs the full
length of the two surfaces to which Its
~aves ~repnd Also called
con ti rHiOtJ 5 hin¥
HARDWARE
hinge
Ajointed device. uSUJl1y conslstlng of two
leavesJolnea together lJy 3 pin. on which a
door. ga~. or shutter swings. turns, Or
moves.
leaf
Ahinged. sliding. or otherwise mevable
part of adoor. hinge, or tabletop.
-. gain
Anotch cut Into 3 surface to reuive a leaf
of a hln~. Also called sInkIng.
-.------- ---- knuckle
.~ . The cylindrical. proJecting jointof ahinge
through whIch the pin passes. .
-'" htthinge
Ahinge composed of two pf3tes secured
to the auuttlng surfaces ofadoor and
aoo1amu. Also called Putt.
.r----. strap hinge
o Ahinge having two long !eaves for
securing to the adpeent faces of 3 door
and doorjamu.
.'----. -- --'" cross-garnet
.' Ar-shaped strap hinge with the
crosspiece as the stationary 1!1emPa-and
the long stem loeing the mava!7!e rat. Also
called T-h1"9/!:.
.- .-------- dovetail hl~e
" Astrap hinge having ~es which are
, • narrowerat theirJunctlon than it ~ei;-
~ ather extremities.
~
.------ -- ------- .-- "--'" parliament hinge
invi,/lIle hinge
------.j
·Y·~
~
:!)
r·····
Ahinge consisting of3 num!7er
of flat plates rotating arout a
central pin, with shouklers
mortised Into the door edge
and doorframe so as to
concealed when cloSed. Also
called conualeJ hlf14e.
,......---,
0
®
0
®
D
®
0
®
0
' - - - -
An H·shaped hinge h4vfng aprotrua'1ng
knuckle so tllata door~n stand ..~
from the wall when My opened.
--- pau~lIe
I"r--
..1
Ahinge having .. single, plvatl~joi.rTt.
olive knuckle hinge
Apaumelle having an MI-shaped knuckle.
Also called olive hinge.
gravity hinge
A hinge that closes automatically by
means of gravity.
rI'lng hinge
Agravity hinge causing adoor to riSt
slightly when ope~d.
115
HARDWARE
lock Imh cylindu
Acylindrical device for retaining
the polt of a locI:: unUI the tumDlers
have been pushed out of Its way.
An asseml:ily of parts lT13Klng up ..
complete locking system.lncfuair<;l
~nc;.s. plates and alocking
mect3nlsm.
A~ for securing adoor. drawer. or
lid il posftloll whenclosed. consisting of
abc4 fX com~atlon of ro!ts propelled
and wtthJrawn l1yakey- fX comDlnatlon-
opern:ed ~h3nisin.
MnrM:·-----------..---..----.--. ~.-~.I
Ade..'a for hoiding 3 door
c~, ccnsistlng essent13l~
of .. b:;~ that falls or $ilks
Intc A~roove or hole.
//",·.u..mM
An o~tructlng part In a Iod: that
A'kdf3~~ tothe f3a of I
a door. as opposedU> one
l7Uilt ilto Its edge.
~~wtUtiltwo ~Ies
specL;:!y c~ tc fit Intc alad
and :r"",'e its ~.
prevents apolt from relng
propelled or wIthdrawn unUilt 15
movea by the action of aKey.
(eyer'til.mbJer,..
Afut meta! tUmpler having a
pivoting motion actuated Dy the
turning ofa~ey.
roreJ at right angles to euh other.
one t&tough ~ face of adoor and
the adler In the dooredg~ ----______
_pit::--·--·---···---····--··/
One cf *~ projecUn~ bl.3~
cut to; ~.gage with ana actuate
elt.he·r::f roth the Pelt aM the
tumr:~ of a lock.
.~.- cam·
&mit~~'
jA ~.t,i~ within a
~ "(fOcdiUilt -------.---'.
-. Thef.~b:;h..peahandle .
~~ular notch cut Into the
ry which .. door 15
o~orc~eJ ~
~~ ~---:.~--:-:.,.-::::::~ ,.'t)
edgeofadoor. ..-___
A1IOtefrta loci: case
or escutcheon for
Inser-..;ng a~ey.
.~Jdtt"~
J l ~nj&&7withfn arnortJse c~ Into
adoer~ so ~ the led mech..nlsm
Is ~ on ~oth5~""_
i~~"
A~~eor
onu:r.e:rtal plate. as
arO'J rJ a ~eyhole.
___ doortoob. dr.lwer pulL
'_ or r'9ht swluh. Also.
-'sc~ecn'1
'. ;:
&p~-~-·----·l <~:~) Ii
Theliaror shaft •• :,
that C3nie5 the ;  - ::
Koman" ; ::
actuates the latch
orl1oltofa Iocl:.
~'-t~.---..~__l
An onurrental plate
surrourJ1ng the sh..f;
of a doori:nol1 at the
face of adoor.
~;f~~,h
The'!iOrlZont.-I dlstar.u frem the
face of~ Oc~ through ,.';',ich the
Pelt passes to the ~dJM of
the ~nob stem. keyhc~. Of locI:
cylinder.
~.
....
Adlsk or cylinder having an
IrreguI.ar form that rotates or
stJdes U> Impart motion toa roller
moving against Its edge or to apln
free to move In a groove on ltsface.
'...-_._.._} 'i.GjW-;y~
"',
~~:.~.
The ~e plate or surface
throogh which the Pelt of alock
pas~. Alsocall&t~f!1~
~~~
A~I !r.;r or rod In the
mechanism ofa lock that 15
propelled or withdrawn. as Dy
turning aknob or ~ey.
~}t;~
II K:>&~ having a~uare heat.l that
Is rrcreainto posltlon !r,; the turning
of 3 knob or key rather than Dy spring
3Ct1.on. Also called~;
;'".:1omB~ ·>,-'_7'.'.":;::-,,,.:f
Th~ cplique end of a latchbolt
th;;t hits astrl~ plate.
AslOt In a lock for receiving and
guk:llng akey. .
war-If:;
:Aproj~lng ridge of metal In a
lad or :eyhole that prevents
the Insert10n of any key that
does not have a corresponding
notch.
revel'5i!11e lock
Aled having .. latchpolt th3t can
be rev~rse.d for Installation In
either a ~ht·h3nd or Ieft·hznd
door.
pevel
The side ofa lock facing In the
same direction as the !level at the
tTld of the I3tchrolt.
•.---- .---- ---..-.• regu~r b>evd
.' The l1evel ofa ronor lock on adoor
openl~ 1nU> ~ L>ultdlng or room
to which the &oorw;ry leads.
.., .. -- ..... reverse bevel
"~
The Devtl of., Dolt or loci: on adoor
openl"g outward from the pulidlng
or room to which the doorw3'j
leads.
pani;br
A horiz""tar~ar that spans the
Intero-of;ln emer~ricy exit door at
waist ~ht and M opens the I3teh
when pressure 15 applied. Also called
panic bolt. paniC h3rdW3re_
116
V~~~.'
 ."-~6riiDi1tatliandle for
operaUng the Pelt ofa
Ioc~.
~. ~.--"'.•,'~-=--==:-",.~---.--' --~--.
Ametal plate 0.. a doorjaml1
havfng ahole for receMng the end
of alock l101t when the door Is
closed, Also called stn~ piaU:.
lip ,~ ... "':'.--"'--"-----"- .-.-
The prC¥Ctlng edg~ or rim of a
strl~e.
pox striKe
Ametal Pox recessed into a
doorJarrb to receive the end of a
lod bo!: ...hen the door is closed.
-y....~lnga !leveled head
that Is moveaInto position Dya
spring except when retracted ry
a&oorI:noI7, or when pushed
agaInst the lip of the strike plate
as the &oor 15 closed,
';i"f.I.with the face or edge of
aaoor.
.'~iQift;.o~,;·--'·--"-··-'·-·-'···"-~·
, .(fl~sh'boit&ieilnto a mortise In a
aoor.sliding Into asocket In the head or
th~ silL
; cOQJ~i~!C_~,-:;
~dtVfCefor'ens'uring that th~ Inactive
leaf ofapair ofdoors 15permitted to
close before the active leaf.
~
1
1
.J
1-
,-
L
L
L
L
L
f
I
L
.......i
,..
1
'r<A
1
j
.--
calorie ..-'
Aunit of heat ~U31 to the
quantity of heat r~ulrea to raise
the um~tureofoM gram of
water l°e at a pressure of one
atmosp~. ~ulv3tent to 4.186
joIJtes. AQl,r.: c.al. Also caW gram
~.alorle. snt311 C3lcrle.
ki10cJlerie
A unitofheat~U3ltothe
qU3n".lty of heat required to raise
the temperature ofone kl~ ramof
W3ter 1"(; at a pressure of one
aUr.ospnere. equlv3tent to 1000
SfT14IIf calorles. Abw.: ~l Also
calW kilogram calo~,lArge
c.a!ork:.
hatC3pacity ----------.------~
The ql!3ntlty of ~.eat required to ;
r;alse the temperature of a .
suustance by one degree.
Fahrenh~itSC3le
Atemperature SC3le In
which :32°F represents the
freezing poInt and 212°Fthe
roiling pointofwater under
standard atmospheric
pressure.
When you knowdeqrees
Fahm:heit. fft$ subcnct 32
and t!-~ multiplyby ~9 to find
deg~Cdslus.
125lI
I
Celslu5~le
Atemperature scale divided
Into 100degrees, In whIch O°C
represents thefreezIng point
and 1000
ethe boiling point of
water understandard
atmospherlc pressure. Also
called ~ntlgrade scale.
Whenyou knowdegrees
Celsius, first multiplyby9f5
and then add32to find
tkgrus Fahrenheit.
Kelvin $C3~
An absolute scale of
temperature havlng azero point
of -273.16°e.
~!7s0lute ~are
Atemperature scale !1ased on
absolute zero with scale units
equalln m3gnltuae to centigrade
degrees.
.al?solute zero
The hypothetlC3llowest limit of
phystcal temperature
characterized by complete
absence of heat. equal to
-27.3.16°C or -459.67"F.
.al?solute temperature
Tempe~ture as measured on a
absolute scale.
HEAT
Aform of energy a550C~ with ~
random motlOfl of atoms 01'
morecules. capaine of i:Jei"'3
transmitted ~ convection,
conduction, Of' radiation and causi"'3
substances to rise in temperature,
ruse, expand: or evaporate.
kelvin
The b:ase Sl unit of temperature equal to
Vm.l6 of the tr:ple point of v.7ter.
5ym~oI: I(
triple point
The particular te:nperature a:'J pressure at
which the hqliid. g3seous. a~J sola pha~
of asubstance can exist In l4,;iijbrlum.
epecific heat
IC<J r------r-------------'
"'*~~_=;.~---__I1--~""r_--------___;------I1 ..- latent hut
~ 75 tl '----·-----L-----~·-..- The'tUJrrtlty of hat 3bsorred or rdeasea
Heat C3p3City per unit mass of
a su!:>stance: the num~r of Btu
~ulred to raise the
temperature of one pouiJa of 3
sul:rst3nce 1°F, orthe numberof
C310ries pergram perdegr-o.-e
untlgr'3M.
"- ._. _. 1 : by asU~5t3nce during achJi"L¥ in phase at
~ -.-....----.-.- : I const;"ttem~tureaMpressure.
}:--r---,r·-----..-·· ;:;~:~I~hata!lSOrredorreleasea
: by asubstJnu during achJr¥ In
I I temperature wttlo,c1Jt 3 char¥!n phase.
l I
tlm~
~
}j)J

f ;/.
117
HEAT
convection ..~-----.--- -------------
The transferof heat Py the clrcuL-.tory
:r.otlon of the ~tea parts of ~ lk1ulcl or
~3S owl"9 to ~ varbtlon In density 3na
u,eactlon of gmlty.
thetm.1lcc~ .--- ------------. -----------1
The t:lIM I'3te ofheatflow th~h .;!Unit :
~ofa ~Iven mterlaf of unit thlci:ness '
~ the temperature difference across
the thIcl:ness IsOM unIt oftemperatureo
tnerm.a'ccMucbnce
TheUme rate ofhat flow through a unit
~ ofJ given rgtertal when the
~tlIre difference across a speclflecl
dllctness of the materl311s or.e unitof
t.empmtllre. "'~:.= ----------------.....·~~~E(
I
, f
tnermall7r~k __.___...L_....---(---..-..--'-.-.
Art e!ementoflow thermal .
conductMty pbce<l In..nassem~ tao
reduce the flow ofheat ~etween highly.
conductlve In3tulaIs. Also callecl
tMrmal pamer.
118
conducti;,n
The ti.lnsferof heat from the warmer to
the cooltr partlcles of a medium orof
two !ladles In direct contact, occurring
without perceptiDle displacement of the
prtlcles themselves. - --
radbtion _J
The process In which energy In the form of
l'I3ves or particles Is emitted by one body,
p~~ through an Intervening mecllum or
space,and a~sorrea by another roay.
..• thermal re~i5tance
The reclpl'OC3l ofthermal conauctanee,
expressed as the temperature difference
required to C3use heat to flow through a
unit area ofa material ofgiven thldness at
the i.l~ of one ~eat unit per unit time.
R-value
o
thermal tr.ansmittance
The time i.lte of ~ flow through .. unit
area of a l7ulldlng componentorassem~1y
when the difference lIetween the air
temperatures on the two sides of the
component oraSS<:m bly Is one unitof
temperature. Also called coefflcJent of
heat transfer.
;-··U-value
Ameasure of thermal reslstance of agiven
materl3/. used esp. to specify the
performanceof thennallnsulatlon. The
~I R-value for a ~ullcl1ng component or
assem~ Is the sum of the R-values for
eaGh layer In the componentor assem~ly.
•
I/R(t0t3I) =U
, Ameasure of the thermal transmittance of
a l7ulldlng component orassembly, equal ta
the reciprocal ofthe total R-value ofthe
component orassembly.
- - -  = - -
--~--~-----
Infiltration ....~
Theflow of outside air Inta an Interior space
through cracks around windows and doors
orotheropenings In the envelope of a
building.
we3ther strip - .....
Astrip of metal. felt. vinyl. orfoam rubber.
placed l:>etween adooror window 535" and
Its frame to provlJe a seal against
wlna~lown rain anaair infiltration. Also,
weather strippIng.
1
[
1
I
lJ
J
I
~
j~
I
j
I
oM
I
-
1-
.,
mineral woel
Arry of YJrlous ~htwelght.1norg3nlG.
fi,rous :n.;3~1s used esp. for thermal
.aM sound Insolatlon. 3S glass wool and
roct 1¥OC4.
gllss wool
Spun ~lJss fibers resembling weal and
useJ f:x thenrul :n5<JL.tlon and air
ftlws.
fi~ergll55
AI'r.3 ta;l1 cons!stln.g of extremely fine
ftl3marts of gbss. WGVen Intofabrlc.
ITUssed for use 35 athermal ;11'1.1
.awJ5tlcallnsubt.or. orem~ to
reirTforce 1fJn?us lTtlterlals.
fi;ltrgL1s
TradcTtul: for.a ~na of fibergl3ss.
rock wool
MIMr.l1 wool ~ by blowing steam or
aIr th~h I1"oOI-ta1 slaq or rod:. --.J
f03med pllstic
fus:c, 3S po~r~hJM or
poiy5~T"eM. ~ rl.jht and cellular by
tl-..e lrrtroductlo!l of pockets of g3 s or
atr and used 2$ thmT13llnsulatlon. Also
~rw expanded pUstlc. pUstJc
fo<1m.
polyilrrlhal1e fo.am
Ar.gtJ expanJed ~mh<lM havlnq a
closed-ull stru;ture 3na used ..s
the~l:nsu~
mckW polystyrene
A;-g'J polys~ f04m hJVIng an
open-cdl stnJcture .ina used 3S
~llnsu~
~~tyrene
A~<J po~ foam h3Ving J
closc:J-u1l structure ana used as
the~.;;;1 ir.su!4u.,
Styrofo<1m
T~r: for 1I brarJ of foamed
pl4~~ rr.ao.e from polystyrene.
rc.am gL1ss
Ulubrglass Irt<Ide b:ifoa~
~
.....
~ gLJss 3rJ moIdlnq It Into
Po.J ras or blccis for ~ 3S thermal
insuLit.lon.
wood wool
~ lOOOd shavlf'.,Js. u5U311y of pine or
chem~11y ~tea wood fl~. used as an
Insu1a';j11.3 materIJl. 3S aUinder In plaster.
41M f:x FJdl~ Al:so called exulslcr.
....~ airway
The pasS3geway required fer the
clrculatlon of air petween ~tt
lnsul3tlon and roof sheat.~lng.
lIatt in~uLrtion -.... .
Flexi~I.e. fibrous thermallnsulatlon of
gbss or m!r.eralwool. made In YJrIous
thlc~r~ ana lengths and In 16·!n.
(406111111) or 24-1n. (610 mm) widths to
flt ~WI studs.Joists. ana rafters!n
flght wood frame constructlon.
scmetlrr.es faced with avapor marder
ofkr7ft p3per. metal fall. or pl3stlc
sheet. 8mInsulation Is also as a
compooent In souna-lnsul3tlng
constructlan. Also C31'ed I1tanket
In$uLrticn..
kraft paper _..........
Astrong. usualti ~rown
paper. processed from wood
pulp and sized with resin.
rigid ~:ua insul.rtion _.......-._......._-_..
Ap-refor.r-.ea. nonstnJCturallnsulatlng
board of roamed plastic or cellular
glass.Utular gl3sslnsulatlon Is fire·
resl$t4lTt. Impervious to mc!sture. ana
dlrnenslcr;ally sta~. M tt.s alower
the-r.r.al-reslstance value than foamed
plast~ ir6uatlons. whleh .are
fummatr~ and must 1e protecteJ by a
the~l ~rrIer when used on the
Inter'.x 5'Jrfaus ofat>ulldl~. ~Id
In5U~ fuvl~ closed-cell
stf'.JCi-IJl"!S, as extnJata roIystyr!:r.e
and cenl.itJr glass. are moisture'
resl5'"~rrt arJ may ~e used In contact
with the earth.
foamea-in-pL1u ~ul;tion
The~1 ir.sul3tlon in the formofa
f03rr~ p-I3stlc. as polyurethane. th3t
Is $j7¥ or Injected Irrtc acavtty
wh~ It adheres to the SUITOllnd1ng
surfaces.
Ioc~fitt insulrtlon -_...........__........ .
The~f lnsul3tlon In the form of
mlnml 'I'rOOI fJ1ers. granular vermlcuhte
or ~r!ite. or t:"eatea cellubslc fibers.
poured ~ fund or Plown through a
nozzle irrto ac.avtty or r:Ner a
suppcrtlr.g memPT"aM.
r~ye insul.ation .-...........
Ther.r..llnsul3tlon In the form of a
materi;;lof high rt&ctlvlty and low
emlss.v1ty. 41S paper-lr.lcked aluminum
fOil IX fo~·b3Cked gypsum Poord. used
In corj"J~~lon with 3 dead'air space to
reauu tr.e transfer of heat by
rad;3:cn
dead-.air 'pace ~.,..
.....:
An unvet1tiLJted air space In which
the air ~s not circulate.
H~AT
thermal insulation
A ITUterI3l providing high resistance to
heat flow. as mineraI wool. vermlcullte. Or
foamed plastic. fallrlc3ted In the form of
l1atts. lIlanKets. Poards. or loose flll
weatherize
To make ahouse or ~ulk:l1ng secure
against cold or stormy weather. as by
adding thermallnsul3tlon or storm
windows. or by sealingJOints.
.... fil7erl7oard
An Insulating l70ard made ofwood orcane
fJ~ers compressed and cemented Into
rIfIld sheets. used as an Inexpensive watt
finish oras celllng tiles.
fil7erboard sheathing
Insulating fiPerVoara treat:ea or
Impregnated with asphalt for w.t.er
resistance and used primarilyfor
she3thlngllght wood frame walls.
emissivity
The alltllty ofasurface to emit heat
by radiation. equal to the ratlo of the
radiant energy emitted to that •
emltt:ea by alIlack Podyat the S3me
temperature.
119
HEAT
tWnul comfort'
HUlTI3n ccmfort as ~lned Py the
3PUlty of the rody to dlsslpate the
he3t and moisture It produces Py
metaroncaction.
effective temperature
Atemptr3ture representlng the comvined
meetof 3m~nt temperature, relative
hu,,,ldlty, and air movement on the
5ef1satlon of warmth or cold felt Py the
human !my. equivalent to the dry-vulp
temperature ofstill air at 50~ relative
humidity which Induces an identical
sensation. _ ----- --.------- -----------'"
wet-pulp temperature --~-..
The temperature rec.orded Py tM '-,-
wet-!:>ull7 thermometer In a ....."



" 
psychrometer. ~
dew point ~--- ---- --------------- -'y-'- - -- - ---- --------70
--t:--r--+---t 120
.
---~'-'- humidityratio
The temperature at which air . 
vecomes saturated with water ... .r--+-->,-~po..,o=-i~-,.4--+---+---+
The ratio of the /1'1355 ofwater
vapor to the mass ofdry air In a
mlxture ofairand water vapar.
Also called mixing l7tJo.
vapor. Also called tkw-polnt .
temperature. '
~~--~~~~~~~~--~~~--~
comfortzane ~--.---.-----------. -------_. ____________ --- ------.------------ -- ,,--
The range of dry-!:>ull7 
temprature. re!aUve humldity. .r--.I'---.,,,..-4--+--+-~F---'1'"=---'~~~
mean radiant temperature. 
and air movementjudged to be
comfortalXe by a/l'l3Jority of
Americ3ns and ~nadlans
tesu.d. This comfort zone
varies wtth cIllTI3te, the
~SO!1 of theyear, the ~ of
clothing worn, and the activity
leve! ofthe lMvidU3llJso
called ~ envdope.
psychrometli<: ciurt
Achart ~t!.'Ig ~he we'Hull:> and dry-PtiII7
readIngs from apsychrcrroe:ter to relative
humk:l1ty. ai1solute humla'"r;y. and dew point_
~n radilnt te1t1perrture
The sum ofthe temperatures of the
surrounding W311s. floor. and ceiling of a
room. ~hted aoo>rdlng to the solid angle
su/7tende.d by each at the point of
measurement. Mean radiant temperature Is
Important to thermal comfort since the
hU/l'l3i1 body receives radiant heat from or
loses heat by radiation to the surrounding
surfaces if their mean radlant temperature
Is s~n1flcantly higher or lower than the air
temperature.
120
50
.'
~
.l
ary-l7ull1umperature -""'~-~--- -------
The tempe:-ature recorded by the dry-
Duf17 thermometer In apsychrometer.
~ychrometer
An instrument for measuring
at~herlc humidity. cor.slStlrog of
two thermometers. the Pulp of one
I7elng dry and the-j,ulll of the other
belr.g ~pt moist and ventllaW so that
the cooling that results from
Ciaporatlon ITI3KeS Itregister a lower
temperature than the dry one, with the
difference Petween tM I'C3dlngs I7elng a
me3sure ofi'tll'1c5pher1c humldlty.
radiant ht.at -------------- ---,
He3t ener~ transmitted Py the radiation
, of ~tromagnetlc waves In contrast to
heat transmitted I7yconductton or
convection.
70 90
relatNe humidity ---------j
The ratlo of the alTlount of watervapor
actually present In the airto the maximlim
amount that the aIr could hold at the same
temperature. expressed as apercentaqe_
AUl7r.:m
.1b-50lutehumidity
Themass ofwater vapar present In a unIt
volume ofair.
'pecific humidity
The ratloofthe ITI3SS ofW3ter vapor In air
tothetcbl masscfthe mlxtureofalrand
watervapor.
hygrometer
Any ofvariouslnstrurnents for measuring
the humidity of the atmosphere.
:--enthalpy
: Ameasure of the total he;;t
co~lned In asu7st3~ eqtl4l/
to the 1nterTt31 en~~ of the
suDsi:.ance plus the product of Its
volume and pressure. The
enthaIpy ofair Is equal to the
sensible he3toftM ak and the
water vapor present In the air
plus the latent ke3tofthe W3ter
va par. expressea In Btu pe:r pound
('t:ilojoules perkilogram) of dry alr_
Alsocai!e.::l hutccnUnt.
adL1Ua~~
A~ to temper.ture occuni04 wtthout the
3ddltlon or removal of heat. as when excess
W3~V;lpor In the air condenses arid the
I3t.ent heat of vaporizatlon of the W3"ter
vapot" Is COI1Y~ to senslDie he3t In the
31r,
0~---~
; :
evaporative ~ling
Adrop in kmpenture occurrlng wtthaut
the addltlon or re:t1OV3l of heat. as when
W3ta eva por.itcs and the senslple heat of
the t1quld Is converted to latent heat In the
vapor, Alsa called adlapatic caoll"9.
)
r
I
J
I
!
,.
thbsWle ----------------_,.
Aprotective slee.'e of shec:t
mebI passing throu~h the wall
of.a chlm~. for holding the
endof a stovepipe.
stovepipe ----------..-.---
Apipe. usually of sheet metal.
seMng as asteve chimney or
connecting a stove with a
chlmeyflue.
..-
--
III t-
r
- f-'''---'''
-i
D <1-
Franklin stove
Acast,iron stove resembling an open
flreplace but having enclosed sides. back.
top. and I1ottom and afront completely
-'''' ~?:;:;:~~~to bec/o;&! with doo<'$
I
I
I
r---
I
I
I
I
I
vent --- ---.-.------- ---- -- ------- .. ---.... --. -.- .--.--....-. -.. --
Apipe by which prodLJaS of
combustion are carried from a
fumact or otherappl13nce to the
outside.
compu!ltion .air
The air ~Ired for
coml>ustion of fuel In a
fumace_
hcriUlrtbl funuce
A fumxe designed for InstalIatlon
In alowattlc or cral'li space.
w311furruce
A furnace recessed In or mounted on "
wall and supplyf~ heated air dlrectty
to aspace wltnout the use of ducts
furnace ~--. ----~
An apparatus In which heat Is
produceJ. as for heating ahouse Or
prodUCI/19 steam.
electric furnace
AfurTIJU In which the heat required Is
prodtUd throu~h electricity.
ga5furnace
Afurnace using gas as afuel.
oil purnu
Afurnace or boiler that bums fuel 011.
conve~ion burner
Aburner des4Jrted for Installation In a
fumace that originally used another
fuel.
hertl"9lo.1d
/
I
I
I
I
I
/
I
The hourly rate of net heat loss In an
enclosed space. expressed In Btu per
hourand used as the basis for
seIectlng aheating unit or system.
heJtl"9 d~ree day
Adegree-day below the standard
temperature of 65°f (l~C). used In
estimating fuel or power
consumption by aheating system.
~ree day
Aunit that represents one degree of
departure In the mean dally outdoor
temperature from aglven standard
temperature.
HEAT
mechanical5ysum
Arty ofthe systems that provide essential
sertlces to 2 bulldln~. as watersupply.
sewage disposal. electric power. heating.
ventilation. air-conditionIng. vertIcal
tnnsportatlon. or flre fighting.
space heating
The heating of alimIted area. as aroom.
esp. by means of aheat source located
within the space.
central heating
Amechanical system that supplies heat to
an entIre building from asingle source
through anetwon: ofducts or pipes.
heating medium
Afluid su~tance. as warm air. hot water.
or steam. capable of convc:ylng heatfrom 3
source to the space being heated.
thermost3t
Adevice that automatically responds
to changes In temperature anel
activates switches controlling such
equipment as fumaces. refrlqerators.
and air conditioners.
thermocouple
Adevice for measuring tem~rature In
which <I palrof d1sslmilar metals. as
copperand Iron. areJolnea so that a
potentl31 difference generatea between
the poInts of contact Is ameasure of
the temperature difference betwetn
tMpolnts.
Pimebllic element
Amaterial made by roncl1ng two
metallic strips h3't'lng different
coefflclents of expansion. used In
temperature-Indicating and
temperayore-controiling devices. ~7
121
HEAT
foruJ w.rm·. ir hutlng
A¥ttmforhe3U~:. bulldlng Dy
rralIS of alrheattd In:. ful"l13U and
dlstriNtea by af.ln through
dlJCtlo;on: ~ fe4lsWS ordiffusers.
exta1ded plenum system
Aperimeter he3tlng system In
whick amain duct COrr-lr:ys warm
air to.3 numl1er of Pral1(;h ducts.
each ~rvi~ asingle floor
~Ist.er.
~vnnet ~.-- ...- ....---- ..
Ach4rnbet' j¢ the top ofa hot·
air furn:au from wM:;h the
laders e~ Nso calW
plenum.
le3der ~ .--..- .-.---.--.-.
Aduct for conveying wann air
from .3 furnace to astack or.
mrICk duct. Alsa c.3lled maIn.
trunK.
manifola
Ap~ or duaf1ttlng
having several out~s for
maki~ multiple
conr.tCtlons.
gathering
J]8&~-
,.....~ r~m grille
J.. ~r'l1e through which return
;;.~::; withdrawn from an air·
c..;~Jjtloned sp3ce.
__ .-... -.'-' cotJ-airretum
Ad~ct for C011veylng cool ;illr
~..a to afurnace for re~ng.
Atapered section ofaduct or
flue forming atransition
1:>etween two sections, one of
which fw a greaterarea than
the other.
..... ~oot
••-.- Aduct fittlng formir~ .3
tr.tnsttlon ~tween ~ sections
which vary In cross-:.ectlonal
shape.
duct
Apipe or c.ondult of shut mct.;J/ or
flkrgl3ss for conducting heated or
conditioned air. Also called aIr duct.
ductwork
AsysUm of ducts, connectors, ana
dampers for conveying air In aheating.
ventilating. or alr-condltlonlng system.
Also called ductln~.
stack
Avertical duct for conveyfng
warm aIr from aleader to ;;I
register on an upper floor.
chase
AC011t1nuous space 01' recess
~ullt Into a waII or througha floor
for pipes orducts.
grille
Agrating or perforated screen for
coverl~. C011Ce3 11ng. or p~ng a
wall. floor. or ceil1ng openIng.
~~RRj~ - ~i,ur
Adevice for contronlng the flow of
warm orconditJonea aIr from an outlet•
composed of a gr!U with a num~er of
par.tltel ~tades th4it rruy I1e adJuste<l sa
as to overlap ana close the opening.
--. flexil;k duct.
Apl~~. alrtl9ht ffttlng Installed
~etwten two ducts. or between afan
and aduct, to prt't'Cl1t the
transmIsslon of noIs.!: and vlmtlons
along the duct~rt.
perimaet huting ,....... perimeter loop e)'Sum perimaet r.dbl5)"!tem duCt lIr.er
Af1i;.erglassl7brte't for hnlng tM Inside
ofaduct to reduce noise and serve as
thermallnsu!atton. -.- --1
A~ sysUm that dlstrIP~ Aperimeter heatl~ system In which a Aperimeter heatlng system In
which a~derfrom acentrally
:OCat.ea fumacc carrlts wann air
directly t.o each floor ~Ist.er.
warm *to ~Isters plact.::J III Of' loop of ductwork, usually eml1edaed In
near tr.eflooralong ~ walls. aconcw~ ground s!a~, dlstrl~utes
warm air to each floor register.
diffu~ .._...__._...1
AdM::;e ~ slats at different
angles for ~npl.3rm or
con~ air from an outlet In
various dircctlons.
122
throw . Urmin.al velocity
The dlstance;il proJected.::-stream tnvels The a~ velocity of aprojected
from an outlet ~a point "".Ut Its v~toclty ;illrstream aUIle endof the throw.
~
Is reduced to aspeclfled dOt. ~ "-:1: .... drop
_ ___ :' The vertical distance ahorizontally
. -- - - __ . p~alrstreamfallsfromthe
~ _...... --.. _ ele¥atlon of its outlet, measured at the
'" ~ ........... .-'.' end of the throw.
"" -'....... .........-...... ,/ L.··· 5p~d
" ............ : The emntto which aprojected
"'" ........,"-., __ : airstream diffuses at the end of the
'" "'" ............. "•.j_'_-'" ........! throw.
"'"", ') ~
" :
'" .
"'-:
~ _.-,-
o
, [
.1
I
l
L
L
L
~ I
r
,
~ )
i I
r
!
venturi tee
Aspecial fitting used In aone-pipe system
to Induce the flow ofwaterfrom ar~ m
HEAT
h~w;rter he3ting.
Asystem for heating auuilJi~ I7:t means of
water heated In a~Iler anJ circubted I7:t a
pump through plpes to radl3tors or
convectors. Also called hydroclc ~tin~.
uranch Into the supply main. ~
;'------ vuckettrap ~ ~~~
; Avalveforellmlnatlng air and ~-~.. ....
steam he3ting
Asystem for heating aUullJing ~ means of
steam generated In aroller ~nJ clrcul3W
through pipes to radiators.
raai3tor
Aheating devlctconsisting of a
sates or coU ofpipes through
which hot wateror steam passes.
1;,~-~./
.~ .
conaensed mOisture from aradiator ~
without allowing steam to escape.
Also called suamtrap. . '. .~ ~
vluder ~
Avalve for draining apipe. radiator. ~
or tank. Also called Pluaer valve.
one-pipe system
Ahat-water heating system In wnlch a
slng~ pipe suppl1es hot water from 3DoI~r
to each radiatoror convectcr in sea;uenu.
reverseretum -------------------...-...--.--. I t¥.to-pipesystem
Atwo-pipe hot-water system In -.......... A, hot-water heating system in W~ich OM
which the lengths of the supply and . tfk··,.~ >.rGl.. pipe supplies hot water from ~ boiler to the
""m pll"SI""ch",d1,t«o' c:::~'-';;~ ",dO"", ...",",,,,,,,,, '" "",,,'" pll"
?;~::::::;:--.~~~:~?~~>,J'---~~th'.,WW'h,rol~.
which the return pipe from each ~. ~_~"'.•_._ '~""-.1 ~
raalator orconvector takes the .. -_/~ ......<i." ............
shortest route I7acl to the uoiler_ _~~,,_. ~'1
~;~:;~eIn asteam-heating rfl: ~~~~~;~~ i
system that carrIes both air and ,. -- ' I '
water ofcondensation. :
t....'
CCf1v~ctor El ~...- fin tu~ 5afety va1ve ---------_.-
Aheatlng unit In which air heated
~ COfTt3Ct with araJlator or fin
tu~ clrculaus I1:iconvectlon.
P3~;oIrd huter
A Icrtg. narrow hydronlc or electrlc
convector des~ned for InstallJtlon
alOf1~ the lr.lse of awall.
unrt heater
; Atype of radiator having horizontal
: tuDes with closely spaced vertical
: flns to max!mlz.e heat transfer to
I
Aseff-cont3lnea electrlc or gas-fired space
hea ter. consls~ of aMating element. fan.
arJ adirectional OtJtlet.
space heaUr
Adevice for heatlng the space In which It Is
Ioc3ted. esp. aunit that has no external
heating ducts orconnect1on to achimney.
qU.irtz heater
An elutrlc spau heater having heating
ek:ments sealeJ III quartz-gbss tubes that
produce Infrared r:uliJ tlon In frOl1t of a
rd!b:;Cive badl"9.
Areliefvalve that opens when actuated
I7:t agJs or vapor pressure al10vea
predetermined level allowing the!J3s or
vapo!' to escape U!Ttl! Its pressure Is
reduced to a safe or acceptable level.
relief valve
Avalve that opens when actuated I1:i
stJtlc pressure aDove a predetermined
!evd in order to reduce the pressure to it.
p~ck ----------------------.-..--.---~
Asman faucet or v.lve for draining or
re1e3slnq compression In pipes. radiators,
and boi~rs.
raa~rTt htati"9
Asystem for Mating by radiation from a
surface. esp. one that Is heated by meanS
of electrlc reSistance or hot water.
~ilu L---------.----~
Aclosed vessd or arrangcmm of ~
anatuboes In which waterIs haU.d or
SU3m Is ~nerated to sUFl'1y r~t Cf'
power.
elect.-ic hat
He3t genmte.d by the reslstJnu of.
conauctor to tM flaw of elect.n:: cum:rTt.
P4nel huting
The raJ1ant he-atlng of aroom or Pu~ ~
me3ns of wan. floor. Pii.semra. orceill~
panels COITtalnlng electrlcJl conaUC"..us.
hot-wattr pipes. or hot-air d~s.
123
HEAT
~Ir ~ naitionlng
Asystem orprocess for simultaneously
CCI1tro1llng the temperature, humidity.
purity. dlstriPutlon, and motlon of the air
111 an Interior space. esp. one capable of
coon~.
campressive refrigerrtion ~
A~lon pr0ces51n which cooling
Is ~ecW by the vaponuuon ana
expansion ofa"!uld refrigerant. .
air conditioner
Arry device or apparatus for controlling.
esp. lowering. the temperature and
huml&ty of aspace.
pack.age'hIirconditioner - ..................."
Afactory-3ssembl&:! air conditioner having ".
afan. fllters. compressor. condenser. ana
evaporator colis for cooling. For heating.
the unit may operate as aheat pump or
contdln auxiliary heating elements.
expansion valve
Av.alve that reduces the pressure and
rnporatlon temperature ofarefrlgmnt
as It flows to the evaporator'..~.7
rmigerant ....
Aliquid capal7le of v.aporlzlng at a
low temperature. as ammon13.
usealn tne{;hanlcal refrigeration.
comp~~r _.____..J conde~_·i
lead
The aem3nd pl3ced on a heating. ventl13ting.
or 3lr-wndltlonlng system In oraer to
maintain the desired conditions of thermal
comfort: In al7ui!dlr~.
cooling lead
The hourly rAte of heat gain In an enclosed
space. expressed In Btu per hour3nd used
as the pasls for selecting an air'
conditioning unit or system.
cooli~ dC9ree-day
Adegree·day aDore the st3naard .
tempmture of 75·F (24°C). usealn
estlmatlng energy ~ulrements far air'
condltlonln~ and refrigerAtlon.
cooling meaium
Afluid suDst3nce. as chilled water or cool
air. for removln~ heat. as from the Interior
spaces of abulld1ng.
henrele3Std to ten of refrigeration
.
........~ +The caollog off",,"""eO """0lie" ofIc,
. at 3Z0F (o·C) melts to waterat the same
- temperature In 24 hours. ~ufvalent ta
. . ... 12,000 Btulhr. (3.5 tW)o
energy efficiency rating
An Index of the efficiency of arefrlgmtlng
unit. expressln~ the Btu remcvea per watt
of electric31 energy input.
coolant
er.Ipor;rtor - .....
1Mcomponentofa refrlgeratlon
SjIStem In which the refrlgerarrt
aPsork heat from acooling medium
ana changes from aliquid to agas.
Apump orother machine for
reducing the volume and
Increasing the pressure ofagas.
Adevice for reducing avapor
or gas to Ilqula or solid form.
Afluid agent for reducing the temper.atllre
of a5y'StaT1 belowaspectfled value by
conductlng away the heat produced In the
operation of the system.
hat pump
A~ that uses acompressible
~ to transfer he.lt from one
reservoir to another. with the process
~ reversi~ so that Itcan be used for
~ ~ ana cooling apulldlng. - - - I )
a~rpWn refrigeration
A ~ processthat uses a
~ and an apsorberInstead of a
compressor to transfer he<it.
hatextrKte4byme3n5 of..
Indoors
winterhe3tin
hatexchangertQproJl.JCe;:~~~lllg;
chiDedw;ta- forcoolIng
keatexch.1nger ................................. _../
Akv1ce for transferring the heatof a
fluid fuwl~ on one side ofaI7anier to
afluid ftowlng on the other.
condenser •.•.
124
W35te heat ~CW from
stam3S It C()ndenses Wore
rrlumfng to evaporator
C?,,
indoors
,,

he.1t sink
Amedlu mor environment for the
aDSOrption or dlsslpatlon of unwanted I'
heat.
wtdoors
.,
D=«o~ i
summercoolin
;-- a~o~r
.I The component of an aDsorption'
. :' refrigeration system M ~ asaOne
: solution to araw W3ter VlIpor from the
evaporator. cooling the rtm3lnlng W3ter In
the process.
: ....... generatar
.: The component of an aDsorption·
! refrigeration system that uses aheat
source to remove excess water vapor
from asahne solution.
! :
i
~ ..
I
j.
l.
f
;1
;
j
. I~:~
-:.:'''.
5upplyajr --------.-- .--
The condltlonea ,ir delivered
by an air-conditlor.iM~ system
to tM served sp~
I
~~:~";PP~~~-,;;;,;--I
rnodente ~sSlJ~ ,s to
supply forced d~5 ir1 a
hatln!j oralr-corJ:tlcnlrJ4
system.
humklifier --- --------
Adevice for rnJIntJh11~ or
IncreJsln4 thI: arT101.ltlt of
W3tervaPor In tM 3tr of;1
room orPulldlng.
pump ------- ---_._-
A machine th3t n~.
tnrtSfers. or ccm~
fluids or!3SeS ~ ti-.e suctlon
Of' ~ssure prcJl.'Ud ~ a
piston. plunger. or ~ of
rotating vanes.
chilk:a water punt ------1-·1--~~
A room contJlnl~ cr.e or more
chillers 3nd pumrs fof alr-
conJltlonln~ a~"!dir";l.
chillu
Adevice empk;ylr.3 the
compressive ~~n
cycle to chili the W1ta" used In
coon~ aPuIfJIr19-
t'OI1er forproducing hoC
wmror$Cam
cooling tower
Astructure. usually on the roof of a
l1ulialng.ln which heat is extracted from
water th3t has peen used for cooling.
I
I
I
I
I
I
I
__+ ______..l
prthe3ter .------------:
Acoil for heaUng air that Is below
3Z·F (O·C) to atemperature
slightly above freezing. In advance
of other processing.
HEAT
central air conditioning
An air-conditioning system that treats air
at acentral location ana dl5tril1utes the
wndltloned alrto an entire ~ulld1~ Dy
means of fans and ductwork.
HVAC
Ai1brevlatlon for heating. ventll3tlng. and
air conditioning. •
_._____________ ~ return air
The air conveyed from an air-
conditioned space pack to the
central plant for processing 3nd
recIrculatlon.
t-------- damper
! A movable plate for re~ulatl~g the
: draft In an air vutlet. air duct. or
/ the throat of aflreplace.
!
,----- exhaust air
.--h..... The air exhausted from an Interior
f.--I space to the outslde.
r --. fresh :air
:' Outdoorairdrawn In for treatment
JLL In an alr-conditlcnlng system. Also
--l callea outside air.
___• air-handling unit
An alr-condi~nlng asseml7ly containing the fans.
fllters. and othercomponents nece5saryto treat
and dlstriWte conditioned air to an entire 17ulldlng
or to specrf'oC zones within the liulldtng.
--- filter
A porous su?stance or mass. as
cloth or a l.1yer of charcoal. through
which a gas orhqula is passed to
remove suspended impurities or to
recover sol"tds.
mechanical_equipment room
Any room contalnl~ permanently
Installed machinery and eqUipment for
the mechanical systems of abuilding.
125
HEAT
,"-water system
An alr-condlt.lonl~ system In which eIther
hotorchilled water Is ~ to fan·coll
units In the 5eNedspaces, where aIr Is
circulated locally.
two-pi~ sy5tem •..........'" .......
An an-W3ter system In whIch one
pIpe supplies the hot or chilled
water tof;in·coil units, and the
other pipe returns It to the boiler
or chilled water plant.
four-pipe system - ..................
An ;ill-water system In whIch
separ3te hot-water and chliled-
water pIping cIrcuIts provIde for
simultaneous heating and coolJng
as needed In various zones of a
~lld1ng.
all-air system
An aIr-conditionIng system In which central
fans Q1striUute conaltloned aIr to the
served spaces by means ofductwon:.
5ingle-duct system •. _.............
An ail-air system In which a
single duct conveys conditioned
air to the served spaces.
constant-air-volume
s~tem
An an-air system In which a
master thermostat
automatlc3lly regulates the
quantity ofconditioned air
suppI1edto each zone.
varial7le-air-volume 5)'stem
An an-airsystem In which a
thermostatically controlled
varlaPte-volume Pox regulates
the ~ntlty ofcondItioned aIr
supplied to tach zone.
dual·duct system _.._..............
An an-air system In which separate
cold-airand warm-aIr supply ducts
meet at a mixing box where the air
Is ~ baore d1strll1ut1on to
eachZOM
termlrul rebut !System _e.........
An aQ-alrsystem In which areheat
coil ~ubtes the temperature of
theair being furnished to each
IndMdU211ycontrolledzone.
air-water system .-..••...•.•....•..•............
An ar-(;OndItIon~ system In which hIgh-
velocityducts supp/ycondltloned airfrom a
centr.ll plant to ~h zone where It mIxes
with room aIrand Is further heated or
cooled In an induction or fan·coll unit.
126
~
--"----"1J"
......-.........j
U
't- _.-
r-'
I'"
I~ I·
.
t::::::> L. -l!:l
!--
T
..~ supply pipe
Apl~ fiX" conveying hot or chilled
water from the boiler or chilled·
water piJnt to;; fan·coll unit.
..._
.....- .. ~ return pipe
.' Apipe for conveying water from a
fan-coil unit to the boiler or chilled-
water pllnt.
termirl41 unit
Any of mlous devlces for delivering ;;
heating orcooling medium to;; spa~.
.-.--- ..---- fan-con unit
Atermln31 unit containing an "Ir filter.
heating or cooOng coils, and acent~!
fan for drawing In A mixture ofroom "Ir "nd
outskk.lr.
can
AconnecteJ series ofpipes or tuplng In
rows or layers, often having fins attached
to Q1sslpa~ heat.
muttizoM sysum
Ace"tn! air-handling unit capaple of
5eTVIng up to eight zones Simultaneously.
zone
Aspace or group of spaces In a ~Ildl~
whose temperature and alrquanty Is
regulaW ~ asingle control
-' .-- mixill9!?ex
Achamkr for proportioning and P~
cold and warm air underthermostatlc
control to reach the desired temper.stm:.
_-_.-- rehutccn
------- An ~ or hot·watucoU for ralslll{! ~
tempen~re ofthe air In the supply duct of
an alr-cond1tlonlng system.
r-"-"-' induction unit
./ A~rmlnal unit In which prImary "Ir draws In
/ room alrtnrough afilterand the mixture
passes (Ner coils that are either he3ted or
chilled ~ secondary water from aroller or
chilled water pl.;nt.
_. -..-" -. hlgh-velocity duct
Asmall duct capa~1e of conveying
primary air At aveloctty of 2.400 ft.
(730 m) per minute or h'9her.
primary air
The conaltloned air supplle4 at ah41h
pressure and high velocity l>y a
antral.lr handling unit. .
·1
f
. :
I
• I
I
... i
_I
_J
I
;_1
""""~----------------
airch.1"¥
The replacement tithe volume of air
contJlned wtthln aroom with an equivalent
volume offresh air within agiven period of
time. The term air cha"~es-per-hcur Is
often used to specify ventll3tlon
stanaarcls.
venti~r
A Ioovered o~'lng or motor-driven fan
for rtpUcmg swgnant alrwtth fresh air.
HEAT
vent ventilate
An opening. as In awall. serving as an To provide aroom with fresh air to
replace air that has ~n used or
contaminated.
outletfor air. smoke. fumes. or the ll~e. ~_
attic ventilator
Awlnd- or motor-driven fan for
asslstlng the natural air flow
through an attic space.
natural ventilation
The process of ventilating 3 space by
the natural movement ofair rather
than by mechanical means.
o
chimney effect
The tendencyof air or gas In a
shaft Or other vertical space to
rise when heated. creating a
draft that draws In coolerair or
gas from I1elow.
~~J
<j:====l Y== ~
J
~ ~ cross ventilation
The circulation offresh air thro.U9h
- - - - - - - - - - - - - - open wlnaows, doors. orot-her
openings on opposite sides ofaroom.
~.whole-hou..v.ntilator
,. Amotor-driven fan for pulling stale air
from the living areas of ahouse and
exhausting It through attlG vents_
-:~f;---;~~-~-~-~iJ r!:~;----·~~·
) I I.
L ____________________________ .l~ ..
plenum ventil1ticn
A system of mechanical ventilation In
whkh fresh air Is forced Into the space to
DC ventil3ted from achamPer (plenum
chamber) at a pressure Slightly higher
than 3 t.m05 pherlc pressure. so as to
ex~lstale air.
fan
Adevice that rotates an array of blades
orvanes about an axis In order to produce
acurrent ofair.
exhaust fan
A fun for ventilating an Interior space by ~~ """I'/f'r Iii __ :11
drawrng air from the Interiorand expelling > LJ
It outside.
~~:~~;~~~~es:~~~-~~-I~~-~~;~--·---- --------- ..--------./ ~
and discharges It radially. ~
o
mechanical ventilation
The process of supplying fresh air to a .
Irolkflng or removIng stale airfrom It by
mechanical means, as with fans.
127
HISTORY
Asystem3tic. often chrOMlogical
narrative ofs~njficant events as
relating toa particular people.
country. or period. often including
an expIJnation of their causes.
civitiution
An advanceJ state of human society
man:ed by arelatively high lev~ of cuttural.
technlc3l and political development.
society
An endurin4 and cooper3t1n~ !ar~-scaIe
communityof pecple havln~ comlr.on
t.raJltb1s, Insmutlons, ..nd identity,
whose It'IeI1Pers h3ve developed collective
Interests and Pellefs throu~h In-<-..eractlon
wtth ~ another.
culture
The~~ofhuman
know~ beliefs. ..nd Dehavlors ~uilt up Dy
.. group ofhuman reJngs and tr.alSmltted
from OM ~tIon to the next.
style
Apartlcubrordistinctive form of artIstic
expression characteristic of aperson.
p~ple. or period.
expression
The manna-In which meaning, spirtt. or
character Is 5yIT1bottZed orcommunlcated in
the ~ ofan artistic wort
preh~
Of, ~"'lng to. or exlstlng IF! t.I',c time
priorto U1e recordln~ of hl!man ~ents.
kncw~ ofwhich Is gained mainly
through arclueologlcal d1scover'.es.
SUldy, and research.
Stcne~.
The e41~ known period of hufro n
Wture. ~ the Bronze A¥ ana
the Iron ~ and cluracteriz.eJ by the
lise of stone Implements and weapons.
HeolitJric
Of or re~"9 tc the !ast phase of tne
5to1e~~~ Pythe
cu/;lvatJon ofgraIn crops,
domestbtlon ofa01lmals, settle:Ment
of vlfiages.ln3nuf~re ofpottery and
textiles. aM useof poI1sheJ sto~
imp!emelrt.s: thought to h3v~ begun
C$OOO-&OOO B.c.
u~aux~e
A~ve In ~aux. France. containing
wan paln~ and engravings thought to
d3U from c13.000-6500 B.C.
128
Mescpotamia
An ancient r~1oo In western Asia
l:>etwU1I the Tlgrls ..nd Euphrates rivers,
comprising the lands of 5umer and Akkad
and occupled successively ~ the
Sumerl3ns. Ba~nlans..Assyrlans. and
~ns: nowpari-ofIraq. .-...
Fertile Crescent
An agricultural regIon arching from the
eastern shores ofthe Mediterranean Sea
In the west to Ir;;qIn the east: the
locatlol1 ofhumanklnd's earliest cu~ures.
Catal HiiyOk
ANeolJthlc settlementIn Anatolla. Jated
6500-5000 B.c.One ofthe walia's earliest
cities. It had mud·1nici: fortlflcatlons and
houses. frescoed shrines. afullydeveloped
~riclJtture. and extensive tradIng In
. o~sldlan. the chief materi31for tool-making.
Anrt.olia
Avast plateau Petwe..."11 the Black.
MedlUrranean. and ~an Seas.
synonymous with the peninsula ofAsia
Minor: today comprises mostofTun:t:y.
Bronze~e
Aperiod of humanhlstc!)rth3t !:>egan
c.;ooo-.3000 B.c.. followIng the Stene
Age ana preceding t:he Iron A¥.
characterized Py the use of ~
Implements.
Yang-'luo
ANeolithic culture In China cenUreJ
around the fertile piaInsofthe Yellow
River. cluracterlzed ~ pitdwelhngs and
flne pottery painted In geomttrlc
designs.
Sumerton architecture
The architecttire ~eloped ~ the
5umer.ans who dominated southern
Mesopotamia from u,e 4th to the end of
the 3rd millennium S.c., characterized ~
monu:r~ntal temples of sun-drlea ~rIck
faced with ~rnt or glazed Prlcl:. often
pultt upon U,e ruins of their
predecessors.
Sumer
An ancient region in southern
Mesopot.1mia. where anumf:.erof
Independent cities anacity-states were
esta~!lshed as ear.y as 5000 B.C. A
numPerof rts cltles. 3S Erldu. Uruk.ana
~. are major archeck;.giC3TSites:'
tell
An artlflclal mound a.ccumulatea from the
remains of one or rMre ancient
settlements: often Use4 In the Mldale
East 35 part of apiau name.
f9yptL1n Architecture
The architecture of the ancient clvliizatlon
that flourished along the Nile RIver In
northwest Africa from Vetore:3000 B.C. to
Its annexation by Rome In :30 B.C.•
characterized esp. by the axial plannIng of
massive masonry tom17s and temples. the
use of tra~eated construction with precise
stonework. and the decoration pf lrattered
walls with pIctographic carvings In relief. A
preoccupation with eternity and the
afterlifedominated the uUlldlng of these
funerary monuments ana Umples.,which
reprod~ the features ofdomestic
architecture but on a massive scale usIng
stone for permanence. :
Minoan architecture
The architecture ofthe Bronze Age
cIvilization that flourished on Crete from
a~Out 3000 to 1100 B.c.. named after the
legendary King Minos of Knossos and
characterized by the elarorate palaces at
Knossus and Phaetus.
3000BC ••••••••••• e ••••••••••••••
Harappa
Xia
A~endary dyl14sty tn China. 2205-
1766 B.c. AlsO. HslJ.
5h.1l:g
AChinese dynasty. c1000 B.C.-l030 B.c.•
man:ed ~ tne Introduct!on of writing. the
development of an mn clvlllutlon...nd a
master)' of In-onze ~ stlng. Also, Yin.
ABronze ~e cultUrtl tltrt flourished In the
Indus valleyc;2300-1500 B.C.
1~~IU'r..-'.101f
.~~ >
r.l;~~
Chinese archituture
The Indigenousarchitecture ofavast
country In eastern Asia whose clvlnz.tlon
has continualfyevolvcQ and survived longer
than anyothernatbt In the world. Despite
the man:ed diversity In the archftecture of
various regklns ~used by differences In
geographic andclimatic conditions, aunique
system of wood fralM construction
graaually tooIc sh2peOIer several millennia
of Innovation and synthesis and exerted a
profounti Influeruoverthe an;hftecture of
Korea. Japan. and Southeast Asia.
Preclassic
Oforpertaining to Mesoamerican culture
from 2200 B.C.to AD. 100.
. J.
I
-.-
..--
I
I
i
i
~
Hittite archfteau-re
The architectured the HIWte Empire
which dominatedAsb Minor aM northem
5yN from aoout2O(X) to 1200 B.C..
characterized byfortlflc3tlons of cyclopean
stont masonry;and gateways with portal
sculptures.
Code ofHamrmaraln
ABalrjlonL1n ~codelnst!tuted by
Hammura!7lln the ml&-laU! century B.c,
lr.IseJ on prlncJyles a~ from
5u.merl3n culture:
Myceruean architecture
.The architecture d U1eAegean clvlllzatlon
that sprt3d Itsnfluencefrom Mycenae In
southern Greece to manyparts of the
Ikdlterranean region from al10ut 1600 to
noo 6.C. ch3racter!zed by shaft graves.
monumental beelWe Wnl1-s. and palaces
fortffied with cyclope3n walls.
A5syriJn ~rchftuture
The Mesopctamlan archlte<;ture developed
under the Assyrl3n king-emperors of the
9th to7th centuries B.c. Within city walls
strengthened by towers with crenelated
~ts. palaces tool: pre~nce (Ncr
religlouslnJi1d1ngs. Vaulting played a
greater role th3n In southem Mesopotami3
and polychrcme glazed brlckwork showed
the Influenu of Egyptian decoration.
.A
J~ .~
Greek architecture
The architecture of thecMIlz3tlon that
fuurlshed 00 the Greek peninsula. In Asia
Minor, on tr.enorth coastofAfrica. and in
the western Mediterranean until the
est3tnlshrfte:Tt of Roman domln!Q.ll..ln.A!2....
.!1§..character!ud byasystem of
constrtJctlc,tl1ased on rules ofform and
proportion. Temples of post-and-hntel
COl1Stn.Jctlcl1 were continually reflned In a
questfor ~ectlon and their ~slgn
lrrf1uenetd awide range ofsecular. civic
l7ul1dlngs.
Neo-6a!7yloniJn archftuture
The f,~esopotami4n architecture that
de-,dcpe.d after the de<;lIne of the Assyrian
Err.pire. deriving much from AssyrL1n
archiu.cture arJ enhanced by figured
des.l.3ns of hera!d'~ animals In glazed
br'.cl:.....ork.
Hanging Garddns of Ba!7ylon
Ase~.es of 1rrlg.4:eJornamental gardens
HISTORY
Persi.1n archiUcture
The architecture developed under ~
Achaemenld dynasty of kings who ruled
..nclent Persl3 from 550 6.C. untiltts
conquest by Alexander the GreatIn 3:31B.c..
characterized by asynthesis of -
architectural elements ofsurroundIng
C<?untrles. as Assyria. Egypt. and lonon
Greece.
pta~
~ on the terra~s of the Cttadel. the ./ PersL1n
pa~ complex in ancient Babylon: regarded / Atelamon portrayed In Pers13n dress_
as ~ of the Se-..~ Wonders ofthe World. !
Heltenic
Of IX ~Inlng ro ancient Greek history.
culture. and art. e-sp. Pefore the time of
Alex.:Jnder the G:-e:at.
Hellenistic
Of IX ptalnlr.g r.o Greek history. culture•
arid 3rt from the Ume ofAlexander the
G~,;'s death!.; 323 S.C. through the l6t
~;,JJry 6.c, dur.~ which Greek dynasties
were estal7llshd ill Egypt, Syrl,J"; and
Per-sbl. ~nd G~ culture was modified by
f~n elements.
Parthi.1n architecture
The archItectUre developed under Part.l1i3n
rule In Iran ana westem Mesopotamia. from
the:3rd century 6.C. to the 3r.l century A.D,
comulnlng classlcal with Indigenous
features.
Etru"anarchitecture
The..rchlt.eaure of the Etruscan pecp1e In
west-centraIItalyfrom the 8U! to :3rd
centuries B.c, before the rise of Ro~ Its
construction methods. esp. that of ~
~~ ~~r.e ;uch,lnfluerud later Roml!
architecture.
••••••••••••••••••••••••••••••••••••• ~ •••••••••••••••• •• •••••• 48(
Zhou
AChinese dynasty. c1000 ~.c.-256 B.C.•
marked by the dMslon ofChln2'nto
separate feudal states and the emergence
ofConfuclanlsm and Taalsm. which gave
thrust to all su!.>seq:Jent Chinese culture.
Also. Chou.
ConfuciJnl~m
Aphilosophy th~ c:Iomin3ted China untll
the early 20th U'TtIJry: an ethical system
lr.Ised on the teachings of the Chinese
phl~er. Confucius. c55l-473 6.C.
emphasizing love for humanity, harmony In
thought and conduct. ckvotlon to family.
and reverence for parents. Including the
spirits of ooe's ancestors.
Olmec archituture )
The architecture of the MeS03merican
cMllutlon which flourished c1200-500 B.C.
In the troplcalloWnds of the Mexican GuIf
Coast. charactertz.ed by ~mple~PJ"'imlds
Indian architecture Maurya
The architecture of the Indian A rr.en1Per of 3n ancient Indi3n people who
stlllcontl~. from the Indus valleyculture united n~ India and es"taphshe.d an
of the Harap?a to the Mauryan e:ra, and empire c:320 B.C.: architecture from ~:5
later to ~r'cJs offarelgn domination and period shows the culturallrrfluence of
indigenous n:ie. chal'3Cterized esp. by Hindu Ach.aemenld P
ersla and ~rs~u~
3nd Buddhist monuments, sometlmes dressed 5tor.e.
sharing the S3mt site, and rhythmic. - - --
straUfleJ rr.ul-tlpllcatlcn of motifs and
profuse car.'ed ornamentation, often
com!7lnlng tJ-.e rellglous and the sensuous.
racl,m
Chinese philosophy and religion considered
next to Conf.xbnlsm In Importanu. Based
on the ~I~s ofthe Chinese
phllosopher,lao-tiu. c604-5316.c., It
emph3slzes ~ lifeofslmpl1ctty ana
noninterference with the course of natural
events In or~ to ~taln ahappy existence
In h3rmony wtth the Tao. As areligion. It
dates from AD. 143, ~Ing popular
during the dox"ne of the Han djnastyand
the Introd~.1an of Buddhism to China.
rao
The Way: the creative prinCiple th3t orders
the universe.
Gr-ut Wall of Chin.a
Afu,......lfled waH CC'1T1mencea unkr the Zhau
dY1".;Jsty to ~ Chl~ ~alnst nomads
froe1 the north 3~d seNe as ameans of
corr::nunfcatJon. y.rous sectlons were pullt
arJ connected 1:1Ttlf, during the Mlng
dy~sty. t36a-1i-44,1t extended for 1..500
mi~ (2.415 kin). from southern Kansu
prOr~r.ce to the ~ east ofPeking.
~;-At and rmcea repeatedly, It Is the
oroi)' nurnan-/n3Je construction vlslule from
W~space.
Ch..1vin
Gin
Adjnasty 1:'1 Chlt13. 221- 206 6.c.. marteJ by
the emergence ofa centr311:zed go.'ermr~
ana the constroctlon of much ofthe C~t
Wall of CfiT..u. Also. Ch'fn... -~ -. _.-
Mochica
~Cge c~:~mon~cente_~. _____
--,,~~/:~~. -----,
APe;"'Jvf3n Culk~! 13stlng from cl000 6.C.
to c200 B.C, !rased on the worship of the
J~~~ god and cbracterlzed by excellent
sUr,e sculptur!. ,13porate gold work, and
re.'1"!3rt3ble cera~:cs: named after the town
of ';~Jt name In untral Peru. where a
corr:pfex of m3ss'.e stone InJlldlngs With
su~..elT3nean ~3·'~rles surround formal
cC".-:J3rds.
.J... pre-Inca" culture that flourished on :.".e
northern coast of Peru from c200 B.c. to
A.D. 700. ncted for Its flne potteryard th~
colossal Temple of the Sun. aterrace.:l
pyramid nude entirely of adobe pricks. .'.Iso
called Moche
~_-
_~~7//._____
'''-_·'_~'''-'
129
HISTORY
~~I~rch~re
Thean;hftecture ofanc!erttGruce and
~ ~ which theItaf14n RtI12Iss.nce and
~t styles,as the ~~and ~e
~ ~~ IT.ase4 tI1drdevelopment.
RDiun ~rchitecture
The~hlttcture of the ancient Roman
~ charactertua Dy massive ~ and
~..e COf1stroctlon employing such
~ as the semlclrcubrarch. the
~ and groin V3uItS, and the dome, a
~and granJeurofmassing often
~withelabor.lteMtalhng. the
~ of the Gred: orders as purely
~ motifs for the amrnentof
~ 3IId Interiors, and the useof marPle
~ I105alcs, and molkd stucco In
~
RDee
Aat:'1ft ~ central part ofItaly wI1lch.
~ to tradition, was founded l1y
Rc:In:Ius and Remus In 756 6.c~ ancient
~l of~ Roman Empire and s~ of
V~ nCIty, the sea t ofauthority of the
Roroon c.thollc Church.
Sassanlan architecture
The architecture prevalent In Persia under
the Sassanlan dynastytlut rvl.ed A.D. 2:26-
651. forming ahnk l1etween the older
Mesopotamian traditions arid the
Byzantine, and character!ztd ~ palaces
with ~lll~~~r.vau.ltsa~dA~rr.es set on
.?<lllnchesanE.~kuCCOl;(~'?c~i)'lYllI?
.art1cu~~ by pilasters and c.xnices..
Early Christian architecture
The final phase of Roman architecture,
following the adoption ofChristianity as
the state re~1on by Constantine In A.D. :31:3
and lasting until the coronation of
Charemagne In A.D. 000 as emperor of the
Holy Roman Empire. characterized Py
churchts planned forcongregational
worship. esp. the basilica: coincident with
and related to the rise of 6yz3ntlne
archIte:ctureo
6yzantSne,rchitecture
The architecture ofthe e3stern sphere of
the later Roman Empire. tfeveloplng from
late Roman and earlyChristian
anteceaents In the 5th century and
Influencing church Irolldlng In Greece. Italy.
and elsewhere for more than athousand
years: characterized by masonry
construction. round arches. shallowdomes
carried on ~ndentlves. andthe extensive
use of rich !rescoe~. colored glass mosaics,
and marPle revetments to (,(Ner whole
Interiors.
Medieval architecture
The architecture of the Euro~n Middle
~es, comprising the architecture of the
Byzantine, pre-Romanesque, Romanesque,
and Gothic periods.
Middle~e5
The time In European hiStory between
classical antiquity and the Renaissance,
often dated from AD. 476 when Romulus
Augustulu~.the last Roman emperoroiihe
Vestem Roman Emplre, was ~. to
aDout~
Dark~es
The early part ofthe Middle!<.¥s.
from a!1out A.D. £~!:<?~1.100.
AD100 ••••••••••••••••••••••••••••••••••••••••••••••••• •••••••••••
Pre-Ccl1Im~n
OfCK ~Ining 1:0 the Amerlc3s
befi:lre ~ vr:JP¥s of~mll.us.
~1Mric.a
Thearea extendI"!:J from central
t.4c::dc:o 2td;fIeY~n Peninsula to
~ and Nlc3ra~ In which pre-
~ cJvIlimbtsflourished.
~ ~rcs excelled In astronomy
aM~ Ile3SU~ of"me, ana
sIIare.a ~ple-pyram:ds and a
~ ofdeities Incfudlng sun.
lriad. ar.& rain gods.
~
Of or~Inlng to IkSQ;lmerican
cufture from AD. 100 to 900.
130
Gupta ,[O~·~:';' Pall.v3 S{.·.'~ D~vid~n .::~...:.
The dynastyofthe Mauryan empire In AHindu st."teestal7llshea In southern India Astyle of Indian architecture In the fal1.?n
northern India. AD. 320-540, ",-hose court auout AD.:550: contrluuted to the period, named ~ the langUJ¥ spoken In
~!l.s ~hc center.Q{~~~lj;.allna:3 n..artana expansion ofIndian cultllre Into Southeast southern India.
~~~~.the earliest suUstaiotial AsI3.
architectural remains are from this period.
Mayan architej;ture
The architectureofthe Mesoamerican
civilization oftheYucatan Penlnsub.
Guatemala.and part of Horldur35, from the
1stcentury AD. toIts peak In the 9th
century. characterized l1y magniflcent
ceremonial centers with temple·pj'T'3mlds.
ritual ball courts. spacious pfa~s, and
palaces with sculpturea facades.
.-----~......--..-"---- ..---
--.....,.,-......-.
r,)
Zapotu~rchltuture ~j .
The eclectic architecture oftillAmerindian
civilization which flourished e500 B.C.-
A.D. 1000 In the highland valleyofOaxaca In
southern Mexlw, assimilating Influences
from the OImecs ana fromreotlh~3n
during the Classic period.
Tiahuanaco
Apre-Incan culture existing from about
:300 B.C. to A.D. 900, chiefly In Peru ana
Bollvl3, characterlud Dy monolithic stone
c"lrvlng. polychrome pottery. and Dronze
artifacts
i
'I
J
.. t
1-.·
I
.1
.1
.1
• 1
.t
.I
RolTUne~at architecture
Astyle of arcnltecture emer~ln~ In Italy
ana western Europein ~ 9th century
and bstl/19 urrtJl the advent of Gothic
architecture In ~ 12th century.
wnprlslng. varietyof rebted ~Ional
styks and ch.aractmzed by h~vy.
•rtlculated ~50nl1 construction ~Ith
narrow o~ni"9s. the use of the round arch
.nd 7arrel VOIUtt.. the development of the
vauItIM_ptand~••nd the
introduction ofcetTtr.ll.nd wes~m
towers for churches.
~l.amic architectl.lre
~ architecture of~ Muslim peoples
from the 7th centuryon. developl~ 10 the
wake of Mu~mmaa.n colUluests of diverse
tenitorles from S~1n In the west to Indl3
In the east and a7sorV1ng elements of art
and arch/"tectUre from each ~Ion:
ch3ractertzed by tr,., devclopme1tt of the
lI'1OS<ue a~ adistinct lnJlki1ng ~. masonry
domes4Ind tunnel VOIults. roond and
horseshoe arches. and rich surface
decorations Incorporating C3Jngraphy and
foral maUfs In agametrc fra mework
~use of the Ian on human and 3nlmal
represent3tlons. Also refemJ to as
Mu$llm JIIrchit.ecture_
£:.1rolinglan archiUcture
The e3My Romanesque architecture of the
Frankish dynastytnat reigned In France
AD. 751-987and In Germany until ASJ.911.
chmcterlztd I1ya~laf.the.focms.oL
classlc~l.intkyl1Q' modlfled ~
ecclesiastical requlremem.
Lomuard architecture
The e3rly Romanesque architecture of
~ ltaiyAyr.lnll the 7th and 8th
~tJLri§. characterized 7y the use of
fatty Christian and Roman forms and the
~velo.Jm1~_tof~ult and
vaultlnash~. ~~T,
:; j: :i
Anglo-Saxon archftecture
The early Romanesque archttecture of
England lefore the Norman Conquest In
1066. characterized by the translation of
timber prototypes Into stone.
HISTORY
Ottonian architecture
The early Romanesque archlteGture of the
(?erman ~~kY that ruleJ as em~rors of
the Holy Roman Empire from~2.=.IClOb
~~h ~t.kY.elop_rnent offpfit!S
~dy~.!rom~roHnglan_and ByzantlJ'!tL
~~,~pt.~.
Norman archftuturt
The Romanesque architecture
Introduced from Normandy Into
England !lefore the Norman Ccnquest
and flourishing until the rise ofGothic
architecture c12OO, characteriuJ gy
the 7ulIalng of great Benedictine
abl1eys. the two-tower facade
supplementing acentraItower over the
c~slng. and the use of geometric
ornamentation.
Norman ColUlJest .
The conquest of England I1y the
Normans under WllIl3m the CclUlueror.
101066.
••••••••••••••••••••••••••••••••••••••••••••••••••••••••••••• 1000
l~m Moorish archiUcture Moural1ic style
~ religious tilthof Mushms. based on The islamic architecture of North Africa Astyle of Spanish architecture produced
~ texhtngs of tile prop~ Mulummad. and esp_ ofthe reglonsof Spain under from the 9th to 15th centuries by Chrlstl3ns
tJ..e central themes of which are De!lef In Moorish domination. characterlze.d by under Moorish Influence. characterized by
the on~ God. AlI3h. the existence of the lulldlng of large mosques and the horseshoe arch and other Moorish
Par;;rdlse and Hell. and tr,., universal ela7orate fortress-palaces. features.
J~ment [),ytoCGlme. Also. the
cM11z.atlon !71dtt on islamic faith. Also Moor
C41b1 t.Wlumm.l<:bnl:>m. Amemrerofthe Muslim people of
Muhamnu4
Arab prop~ and founder of Islam. AD.
570-632. Also. MoIumrnecl.
Nar.;!l
A period In Jap;ine~hlstory. All. 710-794.
ch3ractuIzeJ by ~ adoptlon of Chinese
cultu~ and form of§OVt:mment: named
~ ~ first permanentcapital and chief
Buddhist cen~ In ancient Japan.
northwest Afrb who Invaded Spain In
the eth century and«eupled It until
1492.
Japane~ architecture
The architecture of the civilization that
emerged on the Japanese archlpel3go off
the eastcoast ofASI3. characterized I1ya
synthesis of seminal Ideas from China and
native conditions producing adistinctive
style ch3racterlzed I1yhghtness. delicacy.
and reflnement. .a±::::::!===~~~~~~;;::::!:~:=!::lt::l:.....
Mixtu archituture l~
The architecture of the Amerindl3n culture
cen~reJ In the 0aX3C3 Valley of Mexico
from about AD. 000 to the Spanish
conquest, charac~rlzed by great stone
masses, the use of Interior stone columns.
and the highly detailed fretwork of Interior
and exterior/rle:zes.
Toltec archituture
The architecture of the Amerindian people
who settled In central Mexico around A.D.
900 ana who are traditionally credited with
laying the foundation of Aztec culture:
characterlzed by colossal 73saIt telemones
ofToItec warriors. colonnades several ranks
deep. and stone panels carved wlth,human-
headedJaguars and sym70ls of
Quetutlc6atl. set In plain wall surfaces.
Quetzatlc6atl
Priest-ruler of the Tottec people. who was
deified as the feJtherea-serpent god called
by that name
I
He~n _
Ofor pertaining to the period In Japan.
A.D. 78S-1185. char3cter1z.ed by the
modlf1caUon arid naturallz.atlon of1de3s
and Institutions that were e3rl1er
Introduced from Chlr1'a During this t1me
Indigenous feudansm superseded
Chlnese-lasea soc13Iorder ~d
Japanese architecture developed In
Isolation from China.
131
HISTORY
Gothic architecture Renaissance
The style ofarchitecture ~lnatlng In France In the 12th
centulj';lnd exl:stlng In the western ~If of Europe throu~h
the rnWIe ofthe 16th~.chamterized l7y the 17uiki:~~
ofgreat cathedrals. a~lve lightening ana
The actlvlty. spirit, or time of the
numanlstlc revival ofclassical art,
nterature. ;lnd learning originating In Italy In
the 14th centuryanaextendln9 u, the 17th
century. mari:J"9 the transltlon from the
medleval tc the modern world.
helghtenln9 ofstnscture.;lnd the useof the pointed arch.
ri17l7ea vault. and a~ ofrichly decoratea fenestr;;tion. :
E.1rly French style
The flrst ofthe three phases of
Freneh Gothic archIt.ectureo
ch2~ 7y the pOinted
arch ana~rlc tracery.
E.1rfy EngUsh style
The first oftheth~ phases
of ~1Ish Gothic architecture
from the 1&12th through the
15thcenturies. characterized
j..7ythe lanatwindow and plate
/'
// r " .
R3yon/'3rrt style Flamboyant style
The rr,W~ pnase of French Gothic The flll3l phase of French Gothic architecture
archltect;,:(e from tM end of the 13tI1 from ~ bt814th through the middle ofthe
tnrough the bt814~ c.entlJrIes. 16th centuries. charntenua I1y flamellke
cha~.dJ by clrcubr windows traCt1j'.lnt.rkaCy of aetaillng. ana frequent
with r;;.i3tJ~ tk1es of tracery. compnc.tlon oflntaior space.
Deca~ s~ Perpendicul.1r 5tyle
.The secorJ of the thru plt;ses of The flrI4/ phase of Engllsh Gothic
Engnsh Gothic architecture from archftectijre prMm~ from the late
the l3te eth tnr'0U4h ~ iat814th 14th through the ~rly 16th centuries.
centuries. ~~ P-tIth charact.erizta I1y perpendlcubrtr;;·celj'.
tracery. ~PoI7te ornamental flne Intrbt8 sto~. anaelarorate
vaultln.g. a:".a reflnementof fan vaults. Also cafled RectIlinear
stontC~ techniques. sty/e.
Geometric 5tyie
The e3 rly ~e!op:nem: oft.~
Deco~.&:l style in the 1at81.'3th and
early14t:!1 centuries. charact.erized
I1y the use ofgtometric tr3cerJ'.
Curvilil'leJr style
minstu
Renaissance architecture
The various adaptations of ttaflan
Renaissance architecture that occurred
throughout Euro~ until the advent of
Mannerism ana the Baroque In th816th and
17th centuries, ch3racterfu.d 7y the u~ of
Itall3n Renaissance fonns and motifs In
more or less tradltlonall?urldln~s.
itJlian Renaissance architecture
The group of architectural styles t~t
originated In Italy In the 15th and 16th
~turies. cnmcterizea I1y an emph4isls on
symmetry. eX3Ct mathematlc.1
relatlonshlps l1etween parts, ana anoverall
effect of simplicity and repose.
E.1rly Renaissance
A style of tta113n Renalssa1lCe art and
architecture developed aurlng the 15th
century. cllaracterlzed ":ithe development
of Onear perspective.chiaroscuro, and In
l?u1l:iJng. by the free and Inventive esc:: of
ct..ssica/ details.
duomo
./ta/l3n ciesl~natlon for a
true cathedral
The lr..e:- de¥elopr.-.e:1t of the
Deco~..ed style In the ~a half
of the 14~ cem:ury. cha~rtz.ed
I1y use cf c;.w'V1Il1le3rmCt:!j'.
Originally. a monastery
church: bw. any large
or Importantchurch, as
acathedral or the
prlnclpal church of3
town. I I ~1W
II •
1100 •••••••••••••••••••••••••••••••••••••••••••
Muatpr .archit.ec1:vre SeUuk archittcture n
Astyle ofSpanl$h ~ltecture The Isla::"llearchitecture eX sev~1 .L.
produced from the Cd! to 16th run:lsh ~~ ~t ruled over "P
unturies Py Mudejars and ClIristlans centnl.I"J ~tern Asta from the t1th 8
~ within the Musllrr. tr3dltlon. to ~th cen';;Jrie-s. much lnfh:enua boy 6
cholracterized Pyafuslon of Persl3n adite.cture.~-I
Rocrunesque anaGothic witJllslamlc
eIe1nents.
Mudej~r
AMuslim permitted ta re~1n In Spain
3f"eer the Christtan reconq~. esp.
during the 8th to Gth centuries.
Chimu
Otu,rna narchit.ecture
The Islar.1iC ~rchttectlre of the Ottom3n
Empire frcm the )4t:!1 ce!1tuf)' on. much
Irrfluenua ';y &yz;orrUM architecture.
An Amerindian people Inha17t;;:-.g the
northem coast of Peru and h~ng • highly
developea urban culture that ~sted from
al10ut "'.D.loooto Its destr~lOn I1y the
Incas c1470.
P~tcl.1"ic
OfOf' pertaining ta tksoamerican
culture from AD. 900 ta the Spanish
conquest In 1519.
132
InC.1 architecture
The arcn~re of ~ Quxnuan
people who migrated lntc theCuzco
area aroutAJ).l100;lrd ruled Peru
urrtll the S,anl5h corl<'luest In the 16th
untury. chmct.enua esp. P-t strong
simple forms of smooth ashlaror
polygonal mJ sonrj which was cut.
flnlshed. ana Atted~.h great
precision withclJt the use ofIron
chisels.
"
:~ • • • • • • • • • • • • • 48 • •
Quattrocento architecture
The ttall3n Renaissance archltecture of the
15ti1 century.
~~" -
The archItecture ofthe Amerindian people
who settled near the shore of uke Texcoco
In central Mexico cl352 and who rose to
dominance c145O: charaet8rIuJchiefly Py
the PJT3mld supportln9 twin t8mples on a
common platform. approached 7y paratle/
stairways. The destruction of AzteG
archtte.cture I1y the Spanish conquistadors
have left few remains.
1
I
. ,I
I ~
.-
, '
I
.......
L
L
L
I
L
L
~
k
f.
ii
I
j.
r
-"
High ~i5sance
Astyle oflt3llan Renaissance art ana
.architecture ~eloped In the late 15th and
e4rly 16tt!centuries. characterized by an
emphasis 011 draftsmanshIp. the IllusIon of
sculptur;11 volume In paintlng. anain
!7ulidlng. by the Imitative usc of whole
orders aM composltlonal amin~mentsln
the class~lstyle. wtth great attentIon to
the formuUtlon of com~ltlonal rules
~r tM precepts of Vltrovius and the
preceaents of existing ruins.
Tudor archiUcture
Atransitlonalsty!e ofEngnsh architecture
that cWIe10pedduring the reign ofthe royal
house ofTUdor in the second halfofthe 16tt!
centu!),. cha.racterlzed by the Tudorarch
ana the appl1catlon ofRenaissance details
to uulldlngs OtherwIse late Perpendicular In
style.
zwinger
Aprotectlve-fortressln or adjoining a
German city: byextenslon•.a term for
several German palaces or parts of
palaces. 3sln Dresden.
~2.p~ile.~~~.~~~
Astyfe oO-rchlteCt'ure'Oi'lgln3ting in Italy
In the early 17th century and variously
prevalent In Europe.ana the NewWorld
for acentury and ahalf.characterized by
free and sculptural useoftheclassical
ordersand ornament. dyn.am1c OppOSitIon
and Interpenetration ofspaces. and the
dramatic com!llned effects of
architecture. sculpture. painting. and the
decorative arts.
Ro~
Astyle ofdecorative art that evolved
from the Baroque. originating in France
about moanadistlngulshed byfanctful.
curved spatial forms and el3l>orate.
profuse designsofshe/1m and foliage
IntenJed for adellc3te overall effect.
HISTORY
cl.~ssicism
The principles or styles ch3racteristlc of
the culture. art. and literature ofancient
Greece arid Rome.
Classic Revival
Art ana archItecture In the style of the
ancient Greeks and Romans. as that of the
Italian RenaIssance and the neOclaSSical
movements In England and the Unltea
States In the late 13th and early 19th
centuries. Also. Classical RevIval.
Neocl155icism
The claSSicism prevailing In the archttecture
of Europe. America. and various Euro~n
colonies during the late latt! anaearly 19t:h
centuries. characterized by the Introduction
and wIdespread use ofGreek and Roman
orders arid decorative motifs. the
surordlnatlon of det311 to slmp~. strongly
geometric com~ltlans. aM the frequent
shallowness of renef In ornamental
treatment offacades.
••••••••••••••••••••••••••••••••••••••••••••• 1700 ••••••••••••••••
Cil'kluecento ,rchftecUlre M.anner~m chinci~rie Colonial architecture
~ tt..l1;;in Ren3lssance architecture of Atr3nsitlonalstyle In European Astyle of ornamentprevalent chiefly In Thestye of archltecture. decoration. arJ
tM 16th century. archtucturt: In the late 16th ~ntury. 15ti1-GenturyEurope.characterized by iumlshln9sof the Brttlsh colonies In
Mogul ~rchit.ecture
The Indo-islamic .archltecttJre of
~ Mo.3ul dylusty. 1526-1557.
typlfled by lI'1OIlummtal palaces t
an.d mos.q~ with ~hly debI
kcoraUie work.
particularly In Italy. charactertz~ by Intricate patterns and extensIve use of Amerlc.a In the 17th ana lathcenturies.
the unconventional uscofclaSSIcal motffsldentlfted as Chinese. mainly adapkJ to local materials 3na
elements. In the fine arts. M.1nnerlsm demands from prevailing English 5ty1es.
W3S chieflycharacterized by .a
distortion of perspective. elongated Georgian architecture Fedtl'3l'tyie
forms. and Intense. often strklent c~lor. The prevailing style ofarchitecture. The Classic Rc;ival style of the dec.or3tN~
furniture. and cr.afts current in England arts ana architecture current In the U.s.
and the North ,'.l!1erlcan colonies. esp. from c1780 to c133O.
from 1714 to la11. derived from classlc31.
Rtn.alssance. ana Baroque forms: named
.afterthe four kings n.amedGeorge who
reigned successively during this period.
DirecWire &tyte
Astyle of French furnishings ana
decoration preceding the EmpIre style.
characterized by an increasIng use of
Greco-Roman forms along with an
IntroductIon. toward the end. of EgyptIan
motifs: n.amed after the Directory. the
.rody of ftve directors forming the
executive power of France from 1795-99.
~ency~t~
The neoclassic style of architecture.
furnlshln9s. aM decor.ltion durln~ ~
period In British history. lal1-20. during
which George. Fr1n~ of Wales ( I3ter
Geor~ rf) was regent: slmllJr to the
Dlrutolre arid Empire styles and
characterized ~ close Imtt..tlon of anclelTt
Greek forms as ~B as ~ less freqW1t arJ
looseradaptations of ancient Ronun.
Gothic. Chinese. and ancient Egyptl3n
forms.
Empire 'tyie
Tht neoclassic style of archltectu~.
furnIshIngs. aM decoration prevaJn1l9 1n
Fraru arid Imltakd in various other
countries during the first French Empire.
c1800-3O. characterized by the u~ of
delICate put elaDorate ornamentation
ImItated from Greek and Roman romples
and I1y the occasIonal use of mIntary ar.a
Egyptian moth's.
133
HISTORY
Gothic Revival
A movement aimed 1treviving the spirit
and forms ofGothic architectl.Jre,
origlnatlng In the late lath century put
flourishing mainlyIn the 19th century In
France. ~ny. Engbndand to alesser
~nt In the U.S. Gothic remalnea the
accepted style for churches wdllnto the
2Ot11 century.
SUamboat Gothic
Aflorld al'Chltectur.illsty!e used for
homes l1u1lt In the middleofthe 19th
century In the OhioaM Mississippi
riverVll~, suggestlng the
gln~d-~ construction
ofriverroa'ts ofthe ~n period.
gingerhead
~vlly, gaUdily, and superfluously
ornamented, esp.ln architecture.
collegiau Gothic
Asecularversion ofGothic archrtecture,
as In the alaer colleges ofCam?ridge and
Oxford.
Victorian architecture
The revival ~nd eclectic architecture, decor.
and furnishings popularIn English-spe3l:lng
countries during the reign ofQueen Y1ctoeia
of England, la:37-1901. characterized ~
rapid ch3r1¥s of style as aconsequence of
3esthetk: controv~rsy and technolo<;llcal
Innovations. Dy the frequent presence of
ostentatious ornament, and ?y an overall
trend from classicism at the start to
romantlclsm and eclecticism at the middle
of the per.od and thenceto classlclsm
again.
wrpenter Gothic
Astyle of VICtorian Gothic architecture
In the 19tII century adapted ~ artlsan-
Dullders to the resources of
contemporary woodworking tools and
machinery.
BeJwc-Arts architecture
Astyle of architecture favored ?y the Ecole
des Beaux-Arts In late 19th-centuryFrance
and adoptM In the us. and elsewhere
c1s()O, characterized ?y symmetrical plans
and the ~fe.ctlc useofarchitectural
features comlnnea so as to give a massive,
efa!1orate, and often ostentatious effect.
The term Is often used In a pejorative sense
to deskjnate excessive formalism
dlsreg3rdlng considerations of structural
truth, aav.nce.aaesthetic theory, rational
planning. or economy.
eclect!cism
AtenJency In architecture and the
decoratlve arts to freely mix V;;JrJous
hlstorlc3lstyles with the aim ofcombining
the virtues of diverse sources. or of
Increaslng anusive content. particularly
dueing ~ second halfof the 19thcentury In
Euro~ ar.d the US.
ec!ectlc
Ofor pertaining to wo~s of archlttctu~
and the decorative arts that aerivt! from a
wtk ra ~e of hIstoric styles. the style In
each Instance PeJng chosen for Its aeemeJ
appropruteness to local tradltlon,
geography,orcutture.
1800 ...................................,At=~~61~~~
Mis,ion Styfe
Astyle ofarch~re associated with
that of early Spanish colonial missions In
Mexico and the southwestern U.s.• maInly
In the 15th century.
134
R.1tional~m
Acleslgn lI"C1'ement of ~ mld-l9ti1
century that emphasizea the decorative
use of lTt3terials and!extures ar.d the
development ofornament as an ~ral
part of3 structure r3therthan as
appl1ed adornment.
Arts and Craft5 Movement
.Amovement th4t origln.ote.:l in Eng~nd
cle60 as a ~ctIon against poor-qua!Jty
mass-produuJ goods, ccXtivl~ ofcrnt
and decoratbfl as asl~le tntlty In the
handcraftl~ of roth uttti~rl3n and
tIecoratlve cPjects.
R1chard~nJan Romane~ue
The revival of the Rom3nesque s~ In the
U.S. Py Henry Ho~ R1ch3rdson,"'~e6,
and his followers. chamterlzed Py htavy
arches. rustlc3ted masonry walls. ana
aramatlc asymmetrical effects.
Rundbogen~1I
Astyle ofarchitecture In the mid-19th
century. esp. In Germany. ch3racterizea
~ the use of the round-arch motlf;and
complnlng In varJous~rees elerr~
from the EarlyChristlan. 6yz3ntlM.
RolTt3n~ue, and Early Renaissance
styles: from the Germjln term for round-
arched style.
Shi~le style
5tickstyte
An eckctlc style ofAmerican
archltecw~ In the second half of the
19th c.cntuljI. char.aeterized esp. by the
use ofvertlcJl Po3rd siding with ?attens
or grids of ~rds over horizontal siding
to express the frame construction
Peneath.
An American style ofdomestic
architecture during the second haft of
the 19th century. characterlzed by the
extensive use of wood shingles as
exterior claddlng Oier aUmlier fr3rne
andfrequently asymmetrical and fluid
plan arrangements.
Art NcU't'eau
Astyle offine and applied art current In
the late 19th and early 20th centuries.
cha~ Pyfluid. unduf3tln~ motifs.
often derived from natural forms.
~1eliPerty
The ltallan version ofArt Nouveau. namea
afterthe flrm oflJPerty and Co. In
t.cndon.
Seu'5ion .
The Austrian version of Art Nouveau. so
named rec.ause Its adherents seceded
from the official Academy of Art In
Vlenna.
Moderni5mo
The Spanish. particularly CataIan. version
of Art Nouveau.
Ju¥nd,ul
Art Nouveau as practiced In German-
s~aklng countries: from the German
term fo' youth style.
J
~ I
'. J
I
.~
!
J
~ ..
I .
r
I '
) !
r
I
t
I·
HISTORY
deStlil. .
II schOO of m that was founded In the
NetherlandsIn 1917, embracing painting,
sculpture, architecture, fumlttJre, and the
decorative arts, mar:ed esp. by the use of
plack and white wtth the primary colors,
rectangular forms. and asymmetry. From
'the style', the name of amagazine
published bypartlclpants In the movement.
cul:rism
5auhJus
Aschool of design established In Weimar,
Germ.3ny.ln 1919 by WalterGroplus, meved
to Dessau k11926. and closea In 1933 as a
result of Nazi hostility. The concepts and
Ideas deyelopeJ at the Bauhaus were
characterized cblef1y by the synthesis of
technology. craft. and design aesthetics,
with an emphasIs on functional design In
architecture and the applied arts.
a17stract expressionism _
Interl13tional5t~
modernism
Adeliberate philosoph1c4land pr3ctlc31
estrangement from thepast In the arts
and hterature occurring!n the ccurse of tne
20ti1 century aM taking ferm In any of
v3rious Innovative movements and styles.
Afunctional architecture devoid of reglonaI
characteristics. devetopea In the 1920'5 and
19:30'5 In Western Europe and the us. and
post-modernism
appiled throughout the world:
charactertzed by simple geometric forms.
large untextured, often white surfaces.
large areas of glass. and general useof
steel or relnforced concrete construction.
Inutalism
Amovement In architecture and the
decoratlve arts that developed In the
1970's In reaction to the prinCiples and
practlces of modernism. esp. the
Influence of the Intemat1onaI5ty!e.
encouraging the use ofeleme~5 from
historical vernacutar styles and often
playful illusion, decoration. and
complextty.
deccrated shu!
II style of painting and sculpture
developed In :he e3rly 20th cen~ry,
characbized by an emphasis on formal
structure. the reduction ofnatural
forms to thei"!JeC)metrical eqUivalents,
and the organlzatlon of the planes of a
represenUd OOject Independently of
represent.rtlonal rtttulrements.
AmovementIn.experlmentaI.
nonrepresentatlonal paintIng originating
In the U.s. In the1940's. embracing many
Individual styles mar:ea In common by
freedom of techn'que. apreference for
dramatically large canvases, and adesire
to give spontaneous expression to the
unconscloJs.
AmovementIn ;irchltecture in the 1950's.
emphasizing the aesthetic use of Irasic
building processes, esp. of cast-In-place
ccr.crete. with no apparent concern for
vlsu31 amenity. Adesign concept ch<iracterlzed ~
buildings of utilltariandesign but having
fronts Intended to &.evate their
Importance or to anr.ouncetheir functions.
1900 •••••• ~ ••••••••••••••••••••••••••••••••••••••••••• •••••••••••
Ch~5c~1
A 9rot1P of US. architects ~ve
clMO-lS10 ~ known for major
Ifll1O'f.itlo!1s ill h41h-rlseconstructlon
.nd for the Jevelopmcntof modem
commercial bvltalng des~n.
Constructivism
A movementwhich orlgln;iW In Moscow'
after1917. priln3rfly In sculpturt but with
vroad appbtbn to architecture. The
expression ofconstructlon W3 s to De the
Pasls for atllMkilng design. with emphasls
on functional machine parts.
OrgJnic architecture
Aphilosophy of architectural des~n that
emerged In the early 20th century.
asserting that abuilding shouId have.3
structure and plan that fuffiliits functional
requlrtrnents, harmonize ....ith Its natural
~ronrnent. and form an Inter1ectually
lucld,l~~ratea whole. The sh3pes or forms
In such 3WOO are often of irregular cor.tour
" and seem to resemble or s~~st forms
found In nature.
ArtOeco
Astyle of dew-atlve art deve!aped
originally In the 1920'5 with ;I revival In
the 196{)'s. mar:ed chiefly lry geometriC
motifs, st.reamh!'lea and curvlhne3r
forms, sharply deflrid outlines. often
roid colors. and the use of synthetlc
materials, 3S plastlcs: shor'.ened from
functicn.1li5m Exposition Internatlonale Des Arts
Adeslgn ~ that evolved from g Dkor.1t1fs et Industrlel:s Modernes, an
several prevfous movemerrts In Europe In ~ expos!tlon of modern and d¢;oratlve
the early 2Otltcentury, advocating the c-.u:u.!JL.u..c.J1J.AJ.L~ arts held In Paris, France, In 1925. Also
design of bvlldlngs, furnishings, or the like " . called 5tyl~ Modt:mt:.
as directfulfilment of functlcnal .
reqUirements, with the ronstructlon,
materials, and purpose c~rIy expressed,
and with aestl1etlc effect krived chiefly
from proportions and ftnlsh to the
exclusion orsubordination of purely
decorative effects.
vernJcular ;archMcture
Astyle of architecture exemplrfylng
the commonest building technIques
b3~ on the forms and materials of a
p3rtlcular hlstotical period, region. or
group of people.
.avant-garde
_, The 30vance group in anyfield. esp.ln
-....... the vi5Ual, bterary, or musical arts,
~~_.
~WhoseWor:sareCharacterlzeclchlefly
~~'-_.n~Dy unorthodox ana experimental
~~.
~
thodS'
.. ~
"- ,-~
high-tech
Astyle ofdesign incorporating IndUStrial.
commercial, and InstlUltlonal fixtures.
equipment. materials, or other elements
having the utllttari3n appe3rance
characteristic of Industrial &es~n.
decon5truction
Aphilosophical and critical movement tIut
started In the 1%O's, esp. In the s~dy of
literature, questioning traditional
assumptions about the ability of langu~e
to repreSt:nt re3llty and emphaslzlng that a
text has no stable reference because words
essentially refer only to other woras. A
re3aer must therefore approach atext Dy
eliminating any a~stract reasoning or
ethnocentric assumptions through an
active role of defining me3nlng. sometimes
by areliance on etymology and new word
construction.
135
HOUSE
A~M~ in which ptople live.
,hetur
~~~rna.orwithin
.. whicll~~Is~from
stoms orother ~ condltlons.
hut
Asrull. slInple dwd~~ orshelter. esp.
one ~of n.;tural ::13ter13ls..
pit~
A~ funn of shelterconsisting ofa
pit ~ In the earth and roofed over.
AlsoC3JWpft~
!.kedweUing
A~ esp. of prehistoric times. Dulft on
pilesOf' oQler supports CNer the waterof a
b~
~
A~ dwe!n'"'4 ~~racterlstlc of ",.ny
early~rt:S. esp. ~ of the Ircquolsand
V3Ax1s cmet ~ ~n Indlan
peoples. WIsisti'"'4 ofaJIIIOOden. Dark-
cotere4frJmewori: ~ as much as 100 ft.
(30.5 m) In ~ngth.
~
yurt _..j
Acircular, tentJJkedwelling of
the Mongol nomadsofuntral
Asia, consisting ofacylindrical
wall ofpoles In alattice
arrangement with aconical
roofof poles. Doth covered l7y
felt oranimal sl:lns.
~.
~Ioo
An Eskin;) house. U$ually Pullt of D!ocks of
harJ sr.?W or U In p-,e sh3pe of adome. or
wne. ~r.ent. of s.:d, 1'I'OOd. or stone.
Alsa,~1v.
pueVlo
ACOIn~ dweIIl~ .nd defensive
stnlc;ture of the PuePlo Indians of the
southwestern U.5~ I:>untofufot,~ orstane.
~ runy-stoned. and ter1"3Ced. with
enby tllroogh the fiat roofs oftile
ch3Jnb.ers l7y ladder. PLdIIo structures were
Pullt on t:I-e ~ fbor.ln val~s. or In the
more easfydefenkA crrff w-alls of mesas.
~
Anaturalfiat-topped *ntlon with one or
ll'1Of'e cl!ffll:e sldes. common In arid and
sembrtd parts of th~ $OtJthi'l~stun U.S.
,ina Mexico. •
136
klVJ
Alarge underground or partly und~rground
chamuer In 3 PuePio Indian viRage. used l7y
the men for religiouS ceremonies or
councils.
tepee
Atent of the American Indians. made
uSl:!lllyfrom animal skins laid on aconical
frame of long poles and having an opening at
the top for ventilation ancla flap door. Also.
tupee.
...-'~ wigwam
... An American Ind13n dwelling. usuallyof
round or oval shape. formed of poles
overlaid with Dark. rush mats. oranimal
skins.
.r-~ hogan
./ ANavaho Indian dwelling constructed
. usuallyofearth and logs and covered with
mud and sod.
,oahouse
Ahouse !roUt of strips of sod. laid nke
Drlckwork. and used esp.11y settlers on the
Great Plains when tlmuer was scarce.
-_........._........ totem pole
Apole or post carved and paInted with
totaJlc fl!Jures. erected I1y Indians of t.N
northwestcoast of North America. esp. In
front of their houses.
totem
An animal. plant. or natural aDject serving
as an emDlem of a famIly or clan l7y virtue of
an ancestral relationship.
plJnkhou~
Alarge. usually rectallgular house
constructed oftlmDeI' planks. l7ulltan&
used l7y Indians aMd. less frequently. Py
Eskimos.
trulla
Acircular stone shelter.of the Ap-i'ha region
ofsouthtrn Italy. roofed with conical
constructions ofcori7e1ed dry masonry.
usually whitewashed and painted wIth
fl!Jures or symrols. Many trulll are aver
1.000 years ok:! and stili In use today.
usually located amo~ vineyards to serve
as storage structures or as temporary
living quarters durIng the harvest.
.~ !
'1.
I,
L
L
I
~I
I·
t5hain
compluvium
Aroof openlll9ln an ancient RomJn oouse.
through which raInwaterdlsch3rged Into a
cistern In the atrium beneath it. - ..----.....--
displuviate
Having roofs sklplng
downward toward the
compluvlum.
impluvium
Acistern set In the atrium of an
ancient Roman house to rueive
rainwater from the campluvlum.
An ~ 17ay or proje:cW
wl~ with a raised sill serving as a
desk for wrlUng or reading. usually ~
plueJ at a right angle to the
tokonomJln the reception room of a
sholn-zukurlstyiereskknce. ---.. "-.. T..·.. --
bkemono J,--·------·....--..--·....---
AYert1c41 h.1oglng scroll COI1t3lnlng
either tt:xt orapalntl"9.lnt~
to Pe ~ on awall ana rolled
when not In use.
~----.. --
I
, tokonolU-r----....j
r;,-,...ftA-.,-W2,-;-_-
..-...-..-__......_-_-
..-._-.-
__,-:-j---..z- Mure recess: ashallow. sl~htly raised
r'7 1 alcovefor the display ofakakemono or
'An exttnslon of the floor on one or mare flower arrangement. One slOe ofthe
sides of II Japanese-style house. usually recess rorders the outside W311 of the
facing. garden ana servlng as a room through which light enters. while
pass.;geway or sitting space. the !nter'.or side adjoins the t3n3. As
the splrttuJIcenterof atndttlon31
Japanese house. the tokonoma Is
located In Its mast formal roam.
HOUSE
....... perlsty~
-atrium
The main orU1tlallnnerhail ofan ancient
Raman house. open to the sky at the center
and usually haylng apool for the collection
of rainwater. Also called cavaedlum.
: .
Acolonrude sUlTOIJnalng abUIk:!1r1fl
oracourtyard.
 5~i~:iu~lJri. i
Aceremonial style ofJapanese residential
archltectureIn tM Kamakura period.
deriving Jt.s n3me from ~ eh2mterlst/c
sooln or stu~ and marUd by a
hierarchical arr.lrlflement ofpub-!ic and
private rooms.i
~hikl ~
bptlonroom: the rn;aln room In a
traditional Ja~r~ hause. used for
receiving anaentertaining guest:;." Its
Importance Is ~t In the presence
ofatokonolTt1. t3n3. and shoin.
-4 bl12,t
In Ja'panese reslkrrtbl arch~re. a
recess wfth burtt-In shelving, uSlJally
adjoining 3 tokOllOfTU.
:tJwjl ,
ane'ofase.rlcs of ~ tnnslucent panels
usea InJJpa~a~re ~ the
exterorana the 1tTtaior.or~ two
Interior spues. can~ ofalight
wooden frarnewcrl COr'ereQ on one side w!th
rlu paptr: the ~ sectlon Is ~slonatly
fliled by a t}ln ~ pJnel
L . ~
...... ~~~a:a~~thefror.tofthe ....._...-•• Ath~bWm.at.COi~wIth smooth.
partltlon b-etween the tokonoma and flnely WOYtn ree.&s ar.d round wtth plain or
the boa. sometimes ofexquisite wood decorated banJsofsIl.cotton.or hemp.
ofparticular grain and shape. serving as 3 f'ooo~ and a~nd3rd
for designating room sb:e In 3tradItIcl13l
Japanese house.Ta-bml rneasu~ .
approxlrrt3~3x6 ft.,tO.9~t~ II). M
varied In actualdrmenst6ns accorJlng to
region and method fordaermlnlng column
spacing.
I
I
I
:""",,---1
,_.
I I
I
..·,l,ken
IA linear unit for ~ulJtlng column
spacing In tladltblal J;;ipanese
canstroctlon.lnltl3lly setat 6ft. or 113
m. but latu varying according to room
width as determIr.eJ by tataml unIts.
137
HOUSE
detJcheJ dweRing
A ~.~ h;Mn~ no wallin common with
3Mt.~.tr reuse.
~peeca
AstJ~of~eaevelopea malnlyon
C~ Ccd. MasS3chusetts. In the 15th
anJ w+yt9UI centuries. typlcally a
~l3ubr. one- orOM-artJ-a-half-
St.orj.l¥OCd-fnlU house wtth white
cb~rde.d or shl~1e w;llis. ag3l7ie roof
wit.~ ~ aves:iinJ usually no dormer. a
13r3~ ~I chimney. arul afront door
00~ ~ one of the long sides.
nmM
A~..ory ~ with alow'pruhed roof.
e5p. ~ lNift i1 the suDurbs.
~miktached dwelling
Aho-_~ joined 1y aparty wan to
anct..~ house or row of hOllSt5.
138
saltbox
Atype of wood-frarnea house found esp.ln New England.
generally twofull stories h~h In front andone story high In
Dad. the roof having al?OtJt the same pitch In both directions
so th.it the ridge Is we~ toward the front of the house.
Prairie SGhool
Agroupofearly 2Oth-centUtj' archttects.
I'IO"t4D1y Fmk Lloyd Wright. who tkslgned
houses and otherUulld1ngs with emph.islztd
horizontal hIleS responding to the flatness
ofthe Midwestern prairie.
~-
tr;1cthouS6
Ahouse forming part of areal-estate
development. usually h3v1ng aplan and
a~ranu common to some or all of the
houses In the dcm:lopment.
duplex house
.-. ..-_...-
Ahoose having separateapartments
for two families. esp. atwo-story
hoose havl~ acomplete apartment on
each floor ilnd two separau
entrances. Also called duplex.
tripltx
Allulldlng having thru apartments.
an apartment having thru floors. or
amultiplex of three theaters.
DutGh Coloni..11
Of or pertaining to the domestic
architecture of Duuh settlers In New Yon:
ana New Jersey In the 17d! centu ry. often
characurlzed 1y gamDrel roofs ha~1ng
curved eaves over porches on the ~ng
sIJes.
bungalow
Aderlvat/veof the Indl3n Dungalow.
popular esp.ln the flrst quarterof the
20th century. usually having one or one-
and-a-halfstorles.a widely ~rac(eteJ
gJDle roof, alarge porch. and often Pulft
of rustic ITI3terl31s.
bungalow court
Agroup of three or more detached, one-
story. single-family dwellings. arr.lngeJ
with common utmtles and acces5Ol'ies
under acommon ownershIp.
split-level
Ahouse having aroom or rooms
somewhat al:love or ~w adjacent
rooms. with thefloor levels usually
dIffering byapproximately halfastory.
bi-level
Atwo-star; house having the lower level
sunken relow gradeaM an ent/)' at
grade halfway ~ the twofloor
levels.
~i~]IIill" =~!:~'~~II~.
dogtrot _._.......;
ADreezeway linking two parts of a
house.
breezeway
A porch or roofed pass~eway open
on the Sides. for connecting two
Dulldlngs or parts of aDulldlng.
J
J
I !
~
i I
'rI
I
I
r
LI
I
l'r
:--.. !
I
r-!
1"'"'
I
,.....
I
,.~
I 1
,....
I
J ,.
I
I
i
r~
"""
,j
J'.
I'
I
condominium
An apartme."~ house. office ~lIdlng. or
other multiple-unit C4lIT1plex. the units of
which art: InJ1vIduallyowned. each owner
receiving arecordalne deed to the
Indlvlaual unit purchased. Including the
~ht to sell or ~ that unit. and
sharing In thejoint ownership of arty
common elemen~. as hallways. elevators,
mechanlc3land plum~ systems. or the
n~e.
cooperative
AIrolldlng owned and Ironaged by a
nonprofl~ corporatlonIn which shares are
sold. enUtllng the sh2reholders to occupy
units In ~he Irolldlng. Also called co-op.
cooperativelpartment.
r;!~~'r'!~fl)· .~
;. 111! I ! I! ., •.
.1(/, r! 'I'
Iii Iii .'
~ : ..'
~ruce .
A row of houses orreslknUJl :
street on or IlQr the top of a
slope.
urracehou~
One of arow of hou;;es sh;uatea
on a terraced sfte.
clu~ur hous(19
A group of Irolldlngs and esp. houses Dultt
close together to form relatively compact
units on aSizaDIe tra~ In order to preserve
open spaces larger than the Inelll/idualyard
for common recreation.
commons
A tr3ct of land owned orusedjointly by the
~kknts of OJ community. usually acentral
square or pari: In acity Of town,
townhouse
Oneofarow of houses In acityjolned
by comlt1Oll sldewalis.
In-ownsto~
Al7ulldlng. esp. arow kouse. fronted
with areddlsh-l7rown sandstone.
I
mew _...1
Astr~t havlr.q small apartments
ccflverted from stables. Also. mews.
HOUSE
multifamily
Designed or sutta!7le for use by several or
martyfamliles.
housing unit
Ahouse, apartment. suite of rooms. or a
single room. occupied or Intended for
~cupancy as separate flvlng quarters.
row house
One ofarow of houses having at least one
sidewall In common with ane~hl:>orfng
dwelling. and usually uniform or nearly
uniform plans. fenestration. and
archh;ectural treatment.
.-.' penthouse
An apartment or resIdence on the top
flooror roofof aIrolldlng. often set 17a,*
from theouterwalls anaopening 01Tto a
Uli3ce.
....-..__ ... duplex apartment
M i
~ i
apart'...ment house
Abuilding containing anumPer r:;f
4ipartment units. Also called
apa~ l7ulldfng,
An apartment with rooms on two
connected floors. Also callea duplex.
.'-' flat
An apartment or suite of rooms on one
fioorformlng aresidence.
walk-up
An apartment above the ground floor In 41
building that has no elevator,
.. garden apartment
An apartll1C1t on the ground floorofan
ap3rtme~ bulldlng havlng access to a
Dackyard or garden.
studio apartment
An apartment consisting of asingle.
multtfunctlonal room, akitchen or
kitchenette. and al7athroom. Also callea
effiGfency apartment.
139
JOINERY
The art or craft of f.?nnin~
joints. esp.ln woodwork.
eMJofnt
Artyjointforrnea by uniting two
membersend toend 50.s to
Increasetheir1engtk.1Jso
called ~1"4jo1nt.
edgejoint
Anyjointfonnea by uniting two
members~ to edge 50 as to
Increasetheirwidth.
~nglejolnt
AnyjoImfOl'1l'led by unltl~
two lntIn(,ers at acorner SO as
to WrIfedirection.
miterjoint
AJoint ~ two mem(,ers
meetlnf2t anangle. made by
cut'tlnfeach ofthe Imtlng
~ toan angle equalto
. half tMangle ofJunctlon.
woodwork
The work producea ~ the carpenter's and
Joiner's art. !Jenera11yapphed to objects or
parts of awooden structure, as stairways,
fumlture,or moIdlngs.
sc.1rijoint
Alengtheningjoint mak I1yovtrlapp'lng
the tapered. notcnea. orh3lved ends of
two members anahoIdlnfthem In place
with 1101ts.straps.keys. orfishplates,
to resist tension or compres5lon.
tongue and groove
Ajolnt mak I1yfutlng. ralseJ area or
tongue on the edgeof one mem!ler Into
acorresponding groov= In theedge of
another mem!1er to pro.::luce aflush
surface. AvPr.:T&G
d4do •.........._........•.......•....••
Arectangular grOOfe cut In amttr1!1er
to receive the en.:l ofanother.
~
&topped dado -'....'
Adado that Is not cut .cross the full
width ofa memrer.
sq,uare 'plice
Ahalved scarfjoint used esp. to
resisttension. having athickerand
athinnersection foreach niemrer.
the thickerone ~elng on the end.
,./'
spline
...".,/
Athin strip of material Inserted Into
the grooved edges oftwo memrers
to makea~ttJoint ~een them.
Also C311ed ~ther.
fishjoirtt
AlengtheningJoint In which the al1utUng
memkrs are held In alJgnment and
strengthenea Dy flshplates.
'" fi"hPI.rt.e
fingerjoint
Ametal pateDotted to each of two
abuttlng meml;>ers.
Alengthenlngjolnt formed Dy
Interlacing f1nger-llke proje.ctlons on
the ends ofthejolnea members.
~utterffywed~ 'j
~uttjoirtt
Anyofvariousjointsfonned by
3~uttlng the surt.aces oftwo
mempers squarelytogether
withoutoverlapping.
flushjofnt
Anyjointfinished even or levcl
with the surroundlng surfaces.
Afastener In the form ofadooJ~
dovetanfurjoining two mem~ at their
~. Also called lnrtUrfly.
ra~bet
Achannel. gl"OC'l'e. or notch cut
.Iong or nearone cageofa
memberso that something else
can ~ fitted Into ft. Also.
rel1au.
rout
To groove or hollow out with a
gouge or machine.
dadojoint rab~etjoint
AJoint made by Inserting the end oredge AJOint Pc:tween rabbeted parts.
ofone memrer Into acorresponding dado
In theother. Also callea hou~JoInt.
miter
An o~lJque sumcefonneJ so.s
to ~tt againstanotheroVI1que
surface to bejoined with It.
shoulder miter tongued miter q,ulrk ......... ~pedjolnt
Amiterjointhaving. raised
surbceto limit motion
~n theJoined parts.
Amiterjoint that
Incorporates atongue
and groove.
An acute angle or gl"OOr'e separating
one element from another.
Ajolnt retween two molJlngs made I7y
undercuttlng the end ofone of them to the
profile of the other. AI50 called scrf1;,ed
joint.
e45ernent ..................... --" _..... ........... stop ch~mfer ...... ......... joggle
Acurveajolntfonnlng a
smooth tr3nsttlon retwun
S1Jrfa~ that woulJ
otherwise In~t at an
angle.
ea~edge -···..·..·· ..·..·~l@;_
Asl1ghttj rounded edge. ftjj,:;;;Z
140
Achamfer that narrows
gradually to merge with asharp
arrls. AI50. stopp~ chamfer.
chamfer
A~eveled surface. usually
formed orcut at a45°angle to
the adjacent principal faces.
.' " --- Aprojection ononeof two
'. .... ...../ .JoIning members fitting Into a
. ..t. r correspondlng recess In the
other to prevent shpplng.
.' tUp
Anotch cut In a timPer to
receive atlm~er connectoror
part of another timber.
~
I
u
I
.~ ~
r
Iulvedjo~
A~pjoIrrtfunned bycuttlng away
half ofe3clI r.emPer 1t the piau of
Jdnl~ so tbt aflush surface
results. Also called half-lapJoint.
end-upjoint
An anglejoIa'tformed by halving
exh ~for 3 length equal to
tM width r:I tM other.
cross-bpjoint
An,I'r'edjointfonM:l by two
crossing memM-s.
I
mitered hllving
An end·lapjoint Incorporrtlng
amltel'on oneface.
pbln 12p
AfaP
.JoIntformed by
O't'erl3pplng two memPers
without anychange In form.
dovetail
. Afan-shaped tenon In-oader
JOINERY
bpjolnt ,
AnyofvariousJointsformed by
overlapping the endsor edges of
two members.
~~~~
dovetail halving
Ah.olvedjdITtmade ~ ftttlng a
do't'etJll ;;~ end of one memPer
Into 3 cornspond1ng mortise In the
second 1IeI1~.
biindmo~
A1I".artise ~ does not pa55
completefythrough 3 member. Also
eJP.eJ st.opped mortise. "
~
stu~ tenoo ~/
A$hart tacn for fitting
I,"'.o~ ~ndll'1Crtl~
~unche4 tenon
A ~r.cn M Is narrower1t
Its Up th2l1 rt tts root.
r
I
I '
I ~
I .
L - - - i":--------"
drawbort! >
A ~oJc in 3 ~ bored eccentric
wi~h t~ corn:spondlr.g holes In the
1r.crt:S<! 50 t!ut the two pieces
be:~q Join~ win be forud tightly
to3e:her ",~n the dr3...roore pin
is ~3~r"'.er'd into plJu
5eCret dovetail
Acornerdovet4lJoint showing
only the hne of all'1iter. Also called
mft.erdovetail.
Ch3st mortise
A~ru mortise !tav1ng oneInc0r.ea
na"...."w side so tl..xt atenon canbe
slid ilto It slkwiys. .
13p dovetJiI
Acomer dC'vetaUjoint vlsil1le on one
face only. Also QIIe.d half-91lnd
dOYetan.
openrr.o~
Amortise q:>enon three sides.
Also calW slfp mort/st. slot
morti~ _"
common dovetail
Acomerdo.-etallJoint visible
on both faces.
mortise
Anotch or hole. usually
rect3ngular. cut Into! piece to
reulve atenon of the same
..........
. dimensions. •.•....
dovetailjolnt
AJointfanned by oneormore
dO't'etal1s fitting tightly within
corresponding mortises.
:.:j .hoU~> '.  r-L"u
Tke end surface from I .
mort[,ejoint
Arty of variousjoints between two
members h'13ae by housing a t::tnon
In amortise: Also called mortist-
~nd-tencnJolnt.
which aWoOn project .
pevel
Anne ex surface thrt meets
another at arty 3~1t other
than ar'0e3r:t .~~
... tusk
A~eveteJ $houklerfor
stre~t.'~~.a ~non.
root
Ike wJ.der.eJ portlon of 3 tenon In
;
through tenon tenon .
Atenon that extends A~ formed on the end ofa
cornpletely through or l>eyond memPer for insertion Into a
the piece Into which Its mortise of the same~dlmensIonS'
corresponding mortise Is cut.
key -_·__·_·······_· ..··················_-_···_···1 ;
Apiece of wood or meta! used as ~:
a wedge to tlghten ajoint or to
prevent motion between parts.
~0.. 'ho p"'"01the ,ho,ld<cs.
/fil''"~~~::;:M/
/' ..; ''''''''''P'rt. ~
.;tJ
keyedJoint
Ajolntfastened or secured by a
key.
brL:lt~Joint
Ajoi~t formed by !l>;;ting the end of
OM rr.ember. notched to form two
parai~ tenons, lr-.o two gains cut
Int<J t~e edge cf a $eCOnd member,
foxt.1i1 weJge
Asmall ",ed¥ in t.he split end of a
stu~ tenon for spre3dl~ aM
securlnq tt when driven Into ablind
mortise. ,A,ISO cal!ed fox wedge
artlcul~
To unite Ity means of aJoIntor
JOints. esp. SO as to make dIstinct
or reveal how the parts fit Into a
systematic whole.
141
LIGHT
EJectro~netic radiation that the
u~lded hunun eye can perceive. having a
wavef~th in the range from a~out 370
tc 000 nm ana propagating at a speed of
130.281 mUsec (299.972 kmlsec).
n3nometer
Aunitof1e~th equal toone vlllionth of a
meter. used esp. to express the wavelengths
of light In or near the vlsltne spectrum.
Av~~"m
angstrom
Aunit of length equal to one ten'vllflonth of
a meter. used esp. to express the
wavelengths of raalatlon. Syml1ol: A
ultraviofet infnred microwaves radio waves
Ofor pertainIng to deWomagnetlc
radiation having wavelengths from
al>out 370 nm.lmmeJiately ~ond the
violet In the vlsl~le spectrum. to 10 nm,
on the rorderof the x-ray regIon.
----
""';»- --. "--. ~-----
--....
->--._------
.-........
'---...........................
Ofor pertaIning toelectrolT13gnetlc
ra~tIon having wavelengths from
aroutaoo nm. contiguous to the red
end ofthe vlsll7le spectrum. to 1mm, on
the Ilorderofthe microwave region.
..---------
--' .-------
lumil1Cm intensity ~ ...... .-.--.--.' luminous flux --./ ~.-. inve~ Siuare law
The luminousflyx emitted per unit
solid angle ~ atight source.
expressed In candelas.
C2ndlepower
luminous Intensityexpressed In
Wlncfebs.
candle
Aunitofluminous Intensity used
priorto1948. equal to the
lumlnousln~slty ofawax candle
of sbndard ~!&atlons_
C2ndeb
The Ir.IsIc;Slunlt of luminous
Intensity. equal to the luminous
Intensityof ;! source thatemits
monochrom;~Uc radiation of
frequency SM) X1012 hertz and that
h2s a radIafit lnttnsltyof '/683
watt per stenldLln. Also c.lled
st.ancbrd c.1ndle. AbVr':Cd
saiki angle
An angle formed l>y three or more
planes Intersectl~ at acommon
point.
ster3dlan . '" .......... -...........
Asolid angle at the center of a
sphere subtencllng an area on the
surfaceequal to the square of the
radius of the sphere. AbVr.: sr
142
The rate of flow of vislvle light per U'11t
time. expressed In lumens.
lumen
The 51 unit ofluminous flux. equal to
the light emitted In asolid angle of
one ster3dQn byauniform poInt
5OI.IIU havll19 an Intensityofone
candela. AI7br.: 1m
cosinel.1w
The law that the illumination
produced on asurface I1y apoint
One of~erallaws relatlng two quantltles
such that one quantity varies Inversely as the
so,uare of the other. as the law that the
IlIumlnatlon produced on asurface l>y apoint
source varies Inversely as the square of the
alstance of the surface from the source.
source Is proportional to the I
cosine ofthe angleofIncidence. ----1''-":
Also called Lambert's law. j /
)
.•• j~'
17rtght~5
The sensation !1y which an oeserver
15 able to distinguish between
differences In luminance.
iIIumi~t!on
The Intensity of light failing atarry
gJven piauon a ~hteJ surface. equal
to the luminous flux Incident per unit
area and expressed In lumens per unit
ofarea. Also calied llIumlnanu.
lux
The 51 unit of Iflumlnatlon. equal to one
lumen ~r square meter. AIM.: Ix
... foot-candre .
Aunit of f1lumlnatlon on a surface that
Is everywhere ~ foot from a "ntform
point source of o~ c.nkIa an.d equal
to one lumen Inclknt per 5qWlre foot.
A~In-.:FC
lumin311Ce
TheCuantlt3tlve measure of
~rlglrtneS5 ofaI1ght sourceor an
illuminatedsurface. equal to the
luminous Intensity per unit projected
area ofthe source or surface viewed,
from agJven dlrectlon.
lambert
Aunit of lumlnanu or bri9htness
equal to 0.:32 candela per square
centimeter. AWn-~ L
foot-I~mbert
Aunit of lumlnanu or Imghtness
equal to 0..32 cankLo per square
foot. Abbr.: fL
II
II
I I
U
I
o
L
L
L
L
r
j
I
1
r
il1Ciknc~ reflection
The str!(l~ of aray of Il<3ht The return of light.
or sound wave on asurface, sound. or raalant heat
~
~, after. .strlklnga
, , surface.
~ fq..
'i ~...
'i.~
~~
.. :
~.
refraction
The change of dIrection of;1 ray of
light as It passes obliquelyfrom one
medIum Into another In which Its
velocity Is different.
~~
-----....----
diffraction --}
The modulation of lightor sound
waves as they ?end around the edges
of an obstacle In their path.
opa,ue
Impenetrable to light.
angle of incidence
The angle that astraight
line. as aray of l41ht failing
on asurface. makes with a
normal to the surface at
the point of incidence.
[
r angle of reflection
f The angle that areflected
! ray makes wIth anormal to
i areflecting surface at the
I .~7
! ///
I ..•
!///
.}., .
angl~ of refraction ''K
The angle th3t ardracted ".1 ". •
ray makes with anormal to I' ,,'~
~
the Interface I:>etween two I"..
~~:~~~~~~.~ __............__U· """~
translucent
TransmittIng and diffusing light
50 that bodIes on the opposite
sIde are not clea~ vIsIble.
I ~,,~~
.I
transparent
Capable of transmItting light 50
that bodies situated Deyond or
l>ehlnd can be distinctly seen.
LIGHT
law of reflection
The principle that when 14htor sound
Is reflected from a smooth surface. the
angle of Incidence Is ~ual to the an.,Jle
of reflection. and the Incldent r3'J. the
reflected ray. and the I'IOrmal ta the
surface all 1113 In the same p13ne.
specular
DIrected from asmooth. polished
surface.
diffusion
Ascattered reflection of 14ht from
an Irregular surface oran erratic
dispersion throughatranslucent
mater1al.
reflectance
The ratio of the radiatlon ref1ect.eJ P:i a
surface to the totallnclderrt on the
surface.
aUscrptance
The I'3tlo of the radiation absorkd P:i a
surface tothl total Incident on the
surface. -
transmittance.
The I'3tlo of the radiation transmitted
through and emerging from arod)' to
the tot.IIncidenton It. equivalent to
one mInus the absorpt.iinct.
143
LIGHT
~mp ..... pulp
Anyof mious devktsfor producing
light or ht.It. as Py eIearIcItyor gas.
Incandescent bmp ---.--....-...- .... ~.- ................:
Alamp In which .ll filament g.lves off 1
~ht when he3W to Inca~ence ~
:~~-~~~:~~~I~_-J . l-
U U
'
L,
The threadlike conductorof an
electric lamp that Is heated to
Incandescence Py the passage of
an ee(;1;ric current.
111Cl~
The emission ofvlsll1le light
Py a rodywhen heated to a
h".3h temperature.
exUnded-servlce lamp
A13mp dcslgnea for reduced ener~
COflsumption anO alife longerthan the
conventlonally set value for Its genml
class. AlsocalleJ Iong-Ufe lamp.
effic~
A m.e;lsure of the effectiveness with which a
lamp converts electric powerInto luminous
flux. ~ual to the ratlo of flux emitted to
power Inputand expressed In lumens per
W3tt.
nUdlife
~ average life In hours ofagiven type of
bmp.~on IaPoratorytestsofa
~tlve ~roup under-controlled
cona'ttlons.
thru-w.ay 13mp
AlllllC4~t lamp havlr'4 two fl13men ts
so ~t Itcan !le switched to three
sucusslve ~~ oflIIumlnatfort.
~"i'ten lamp
All IncandescentI3mp having atungsten
filament.
. !
I3mp!Ja5e
The pa~of;;lamp that
connects to a13mp holder.
lamphoider
Adevice for mechanically
supporting and making
electrical contact with a13mp.
Alsa called lamp sccket.
+
!
'-~
t
~"9mn-h4logen lamp - ..•---...-.......... ..
Atungsten lamp having aquartz l?ulb
containing a$/TUQ amountofa halogen
that vaporizes on ~tIng ana redeposits
any M~ ~ partlcles Ir.Jct
onto the filament. Alsocalled /1alogen
bmp.lurtzlimp.
fRump
At.ungsten-halogen lamp having an
Infrareddichroic coating for reflecting
lnfr.ired ener~ l>act to the filament.
ralslM4lamp efficiency. and reducing
~rTt he3tIn the emitted ttght 1mm.
infrared lamp
An In~t lamp havl"4 ahigher
percenta¥ofits radiant powerIn
the Infrared region Qun:a standard
Incal1<kscerTt lamp. often having a
rea gla 55 l?u117 to reauee the radiated
visible light.
144
TB l7ulb _..'
Aquartz l>ulb for tungsten-halogen
Lomps. similar In shape to the Al7ull7
but having an angu13r profile.
Theg!ass housing ofan Incandescent 13mp. fliled
with an Inert gas mixture, usuaIly of argon and
nitrogen, to retara evaporatlon ofthefllament.
Its shape 15 designated I7y aletter. followed Py a
numl7er t11.t Indicates the 13mp diameter.
n
I
lamp diameter
The maxlmum diameterofa
lamp pulp. measured In
eighths of an Inch.
In3ximum overall length
The dimension In Inches from the
liaseof alamp to the point on the
PuII7 farthest awzy. or tne l7ase-
to-lr.Jse dimension of;; 13mp
havln~ alnse at e.ch end.
lightcenter length
The dlstanee In Inches from
the centerofthe ft13ment of
alamp and areference plane
on the ~mp Ir.Jse.
Auulb _.--j
O
The stJnd3rd rounded shape for the
l7ul!:>s of gener.;l-service II'oWl~nt
lamps.
~.- Bburb
.
Aflarr.e·shaped bulb for 1ow·W;ltt~e.
decorn:Ve Incandescent lamps.
c
·
....··CI1urb
Acone-shaped pulp for Iow·W;lttage.
decorn:ve Incarldescent !amps.
_........_...... CA 17urj,
Acandie-shaped bufb for low-watt,age.
decoratlve Incandescent Iamps.
._--..-..._--......- ... _.... Ruulu
.--
A reflector Pulp of InoWTI glass for
Incandescent and ~n-I~1ty­
dlscha~ lamps. having an In~a'
reflective CC4tlng and etther ac!e;;ar or
frosted 9lass front to prov~ tile
deslred ;.eam spread.
.........- PARIrJI},
Aparabol1c .Iumlntud reflector !1u!l?of
C3st g14ss for Il'QrJescent ana nJ.gh-
Intensity-discharge 13mps.l'I3vlng a
precisely fonned Interna' rtfl.xt.or and
a Iensea front to prcvi.de the desireJ
l?amspreaa.
. ERpull7
An eln~1 reflector blJlb for
Incandescent bmps. havl~ apreclsdy
formed internal re&c"...or thrt coIIect:s
IIgMt ana red1reas It into 3 dispersed
pattern rt some dlstara In front of
the light SOUIU.
...,....---...,....J-........... - .............. .. .~ AlSB burl7
",
MRl1utl1 ~.J
AmultlbceteJ reflector l7ull7 for
tungsten-halogen lamps. having
hlghly.pollshed reflectors arrangea
In discrete segments to provide the
desired pe3m spre3d.
An A!1ufl, havl~ ahemispherical,
reflective silver row! opposite the bmp
~se to aecre3se gLore..
.... GI1ull7
Aglcge-shaped l>ufl, for Incandescent
lamps. having a101'1 tmghtr.ess for
exposeJ use..
.-~ ............. P5 pufP
Q
tn:=13~~~crt.rge
- .. 511ulb
A straight-sided l7ulb for low-wattage.
decorative IncaMeSU1Tt lamps.
II
II.
II I
I
lJ
.~
I
I
I
I
t
-,
~
11
•
LIGHT
17arta~ discharge lamp
AdevU for ~Inlng the current Alamp In which light Is produced by the
thrw~h .. ~ or HID I3mp at dischargeofelectricity I1etween electrodes
the ~ COItSbnt VOllue. 3M In .. gas-flltea 913s5 enclosure.
~ ..Iso~~therequlred .Jl h-
st3rtl~ 'r'Ott3~anJ current. <=t,-,--
'.--_______________________-J..<l..i" - fluore5Unt lamp
. A tubul3r d1scharge lamp In which light Is
5ta rter produced by the fluorescence of phosphors
Akila used"c;h 3 ballast to prO'llde coating the Inside of the tube.
the st.artln.g vdU.le for apreheat
fluorescent 13n"f- phosphor fluorescence
Arry ofanumber of substances that The emission of radiation. esp. of visible
TI;IurP -------- ---...----.-. --....-- -- ..---.. - emit light when excited by radiation. I1ght. by asubstance during exposure Ul
external radiation.
AtubtiI3r IxlIP b-~ndescent.
fIuore:scent. aM lrigh-Intenslty-
dlsch3rge btnps.
clrcliMlamp ----.----..----- -.---.--..--.--
A~hn~ fluorescent lamp
triphosphor
Aphosphor having peaks In three
specific color regions, red. blue, and
green. used UllmprO'le the color
rendering ofafluorescent 13mp.
~:::~=~~:~---- ..-. ---'--W l '
~~====~[
efficiency fluorescent lamps having a
sl~~ doub~ orU-Shaped tube. and
ofWlanaaaftet"wdtttlngan ltil M (--::(~~~~~~e
InC3~t ~holkr. Ll .0 -== _
color Umpenture
~ ~pern.u~ atwhich a
~rocJy emIt6 ~ht ofa
spedf'eds~
Jlst.ritM1on. USO:I t.:J speclfy
tM color of a ¥tSOIJrce.
'"
~
~
a.
~
~
~
400 5(X) 600
neon Lamp
700
Acotd-catl-lok ~p emitting aglow when a
h41h volt3¥ Is appka across two
electrodts In a~-ftlled glass tube.
cold-uthade Lw1p
AdtschJrge !oJmp ItNlng c3thodes that
emit e1.ectroll5 widIout havIng to be he3t.ed
spectral distribution curve
Acur;~ plotting the raalant
energy In e3ch wavd.ei3th of a
particular light SOIJr"U. --~
L /.,
BTbuib .'
Abulged tubular bulb for
hIgh-Intenslty-discharge
lamps
color renderil19 Index
Ameasureofthe ability ofan electric
I3mp to rendercoloraccurately when
compared with areference Ilght source
ofslmll3r colortemperature. Atungsten
I3mpoperating at acolor temperature
of3200"F:, noon sunlight haVing .. color
temperature of~0F:, and average
daylight having acolortemperature of
7000°1:. ..11 have an Index of tOO and are
considered to render color perfectly.
~
..'
,#.'
...100 f!OOn sunlIght
E ~ulb •....J
An ellIpsoidal bulb for high,
IntenSity-discharge lamps.
preheat lamp .
Afluorescent lamp that reqUires a
separate starterUl preheat the cathodes
beforeopening the circuit to the starting
voltage.
rapid-5brt ~mp
Afluorescent lamp designed Ul operate
with aballast having alow-voltage winding
for continuous heating ofthe cathodes.
which allows the I3mpUl restarted more
rapidly than aprefte3t lamp.
Instant-start lamp
Afluorescent lamp designed to operate
with aball3st having ahigh-voltage
transformer to Initiate the arc dlrectty
without any preheating of the cathodes.
hi9h-output lamp
A rapid-start fluorescent I3mp designed Ul
operate on acurrent of aoo milliamperes.
resulting In acorresponding Increase In
luminous flux per unit length of I3mp.
very-hi9h-output I.1mp .
Arapid-start fluorescent I3mp designed to
operate on acurrent of 1500 milliamperes.
providing acorresponding Increase Ir:
luminous flux per unit length of lamp.
high-inU~y discharge lamp
Adlscharge lamp In which a s41nlflcJnt
amount of light Is produced by the
dischargeof electricity through a metaflc
vapor In .. 5e3b:f glass enclosure. Also, HID
~mp.
mercury lamp
Ahigh-Intensitydischarge I3mp producing
light by means of lin e1et."tric dlsch2rge In
mercul)' vapor. Also calle!:l mercury-vapor
~mp.
&OdIum lamp
A hl9h-lntenslty discharge I3mp producing
light by means of an electric dlsch3rge In
sodium vapor. Also caltea sodlum-vapor
lamp.
Iow-pres,ure 5Cdlum lamp
Asodium lamp producing ayellow, glareless
lightand used esp. to illuminate roadways.
Also.lPS bmp.
hlgh-pre5!lure 5Cdium 13mp
Asodium I3mp producing a broader-
spectrum. golden-white light than aIow-
pressure sodium lamp. Also. HP51amp.
metal hallk I.1mp
Ahigh-IntenSity discharge lamp similar In
construction to amercury lamp. but h~ng
an arc tu~ to which various metal hal1des
are added to produce more 1i9ht and
Improve color rendering.
145
LIGHT
luminaire
Alightlng unit wnslstln9 ofone or more
electric lamps with alofthe necesS3ry
parts and wIrln9 for positJonln~ and
protecting the lamps.connecting the
I3mps to apowersul¥i. and dlstrlUutlng
the light. Also callea ¥tlng fixture.
reflector --_.....--....--.............. .
Asurfucefor reflec~ ~ht. heat. or
sound. esp. the devuon a lumlnalrc
hrnn4 suchasurfacefor controlling the
dIstrIIM;Ion of light entted I1y a Iamp.
!eM
Ap~ of tr.Inspar~ II14Iterial. as gl3ss
orplastic. having twoopposite surfaces
eitheror !loth ofwhicll are curved, used In
lumlnalrtS to focus, disperse. orcollimate
 ",,-
"~/"
 .// ':.
.   I /. ...
 ... / .
~'!/ ;
'/7.' !
.
/. ,

I i
.'" p'ira~olic refiectcr
Areflector havi~ apmPoI1c sumce
t.C) coWlTI3te. spread. or focus the ~
from a~ht s...,"Uf'Ce. depenJing on ~
rotlon of the source.
theemltt&:llight. ----.....................,
+
I
1
i I
1
· ~·t-·..t'....- collimate
i.. .J, Te ::1ate r.;y5 cf liyht pmlleL
~
~~ ~  litK.
, ~1~~=:dnptlCal
, '" , sumcetafocus the rays from a
.. 0.' tL3htsource.
iii iii i j' /~.  .- ridged ~affle  ' I/ / .
t it t i' , / ;f .~  . ~~:~~~I~the  ' i/'//
F~nellen' -----.-.-~ ~rlghtnessofallght, '
Alens having concentric, prismatic grooves sourceat an aperture.    1/'/'
to c;onctntr;rte lightfrom asrna" sou1'Ce. • ' '..
r Ir-~"---------,
~:~~lea":,ul~~~~;~········-·~·i.'·...
+ + ..... 1,""" V
with parallel prisms to redirect the : .... . '..
/4¥ from a light source. :.... . '. .
./ I - - - .' .' :'--...
/ i ji i  i  i i  . ~~J'l'~~'~~
! / j  I i I   _
Arry of.3 V. riet)' of translocent m;lte.rlaIs
fodilterl~ gl;arefroma fight source ~
dlst:ibut1~ ~ fig ht om an ~rJeJ
louver
Aflnned or vaned devU for
controlling the nalatlon from a light
-. -.~ c:.trJlepowt:r d~tripution curve
A~r plot of a-c, luminous ItTtenstty
emIttdtJya bmp. lumlrulrt. or w/ndoIIr In
agJ.ten dIreG1lon from the centerci ~
light SOUIU. ~sured In a single plat't
for. symrr.e-tncal flght source. and i.1l
~r, ~rallel aM sometl~ a
45'ptaMe for il nasym~1 source.
source. .o.fi
eggcrate -...........................-...~
Alouvered consPuct/oll divided Into
ull-I:ke aredls and use.lfor redirecting
the1Ig/rtemltted!:ryall overhead source.
l13ffle ~
Alouvered ckvlceforshleldlng a light .
source from view atcertain angles. -.... - '
shielding angle
The angle !Ie1ow which alight source
can !Ie seen. ~"-"""'"
146
"l///1
."
/~,../
I I
isocturt
Agraphic plot of the pattern of
lIIu:rJnatlon produced on asurface bY ..
tamp or lumhulre.
...-++-+-+-++I-+....j....-"~. ....• 1~lux line
lumlrulre efficiency
The ratlo of luminous flux
emlttedbya lumlnalretothe
total flux emitted !:rythe
lamps In the luminaIre.
Anr~ through 3"points on asurface
where the level of I/lumlnatlon Is the
5a:r~. Calted lsofootcandle line if
liIurrinatlon Is expressed In
fw.-Cand!es.
L
I
I
~!
j
-,
I
I
~i
.... 1
i
~j
~I
i
,.t
j
_I
.1
W.1l1washer
A down~h t rr.owted close to the plane of a
wan and equlp~ with a ref1ector.l7affle. or
lens to lIIumll14te PIe vertical surface.
track I~hti~
L~htlng provIde4 by adjustable
spotl~hts mounted along a narrow.
celling- or wall-lI1OUntea metal track
through which current Is conducted.
cove I~hting .----
Indirect ~htl~ ~ upward
from an InteMor c;ornIce at the edge
ofa ceill"1.
floodlight
Alamp designed to project or diffuse a
compmtlvely uniform level of illumination
over a large area. Also called fleod. flood
lamp..
downlight
AluminaIre consisting of alamp set In a
metal cylinder. recessed Into or mounted on
aceiling to direct abeam of light downward.
----''''- spotlight
.~.
Alamp designed to project astrong.
focused beam of light on an object or
area. Also called spat.
.~ spill
Superfluous or useless I~ht rays. as
from aspotl~htorotherfocused Itght
source. Also called spill light.
light strip .. Q Q
Arigid or fiexll1le tape with exposed Iow-
voltage light sources of1 to 10 watts.
troffer
Alumll13lre having atrough-shaped
reflector holding one or more fluorescent
lamps.
val4lnce nghtl~ ./'
Indirect ~htl~ directed upward or ...-/"
downward from alight source ~
concealed by 3 horizontal Iioard or
I7and.
cornice I~hti"'!
Indirect I~htl~ cArected downward
from an I~rlor c;ornlce at the edge of
aceiling.
pri~elamp
A floor I3mp hayj~ the light source on a
hinged. norr...ont.11y adjustable arm.
goo~neck L1mp
Adesk I3mp h3V1~ aflexible shaft
resembling the I'krl of II go~.
torchlere
Afloor I3mp having Its light source within
areflecting bowl that directs the light
upward. Also. tcrchere. tcrchler'.
droplight
Ahghtlng fixture suspended
from:l cemng or wall b:t a
flexible cord. by whIch It can
be raised or Iowerecl.
pendlnt
AIlghtlng fixture suspended
from acemng.
chandeliu
Adecorative llghtlng fixture suspended
from aceiling. usually having branched
supports for anumber of lamps.
LIGHT
point 5Curce
AI~ht source having ;I maximum dlmenslcn
less than one fifth the distance from the
source to the surface lIIumll13ted.
o o o
linear source
AI~ht source having one dlmens1cn
Significantly greater than Its other
dimensions, as afluorescent lamp.
area :;Guru
Alight source having significant dimensions
In two directions. as a large window or a
luminous ceiling.
sconce
Adecorative wall bradet for
candles or other lights.
147
LIGHT
lighting
The science, theory, or method of
provldl~ lIIumlnatlon thro~h the use
of eIec'trlc lamps.
gener~lltghting
llghtl~ designed ta pf"C¥lde a
uniform level ofilumlr!3tion
throughout an area.
lecal lighting
Lighting des~neJ to provide a relatively
high level of Illumination OV~ asmall area,
with asurrounding area of lower Intensity
from spill light.
accent lighting
LIghting that calls
attention to aparticular
o~Ject orfeature In the
visual field. or that forms a
decorative pattern on a
surface.
i task lighting
.r-----. ~htlng deslgneJ to provtae strong
illumination for avtsually demanding
activity, as reading ordraftlng.
lo'---------.----- ...---- ---
direa lighting
lighting In which luminaires
dIstri~ute 9O'L to 1001 of the
emItted lightdownward on the
SlJrfaceorare<i to ~ illuminated.
&emtdirect lighting
lighting III which lu~lres
c:ltstribute SOl to 901 of the
mltted nght downward.
general dtffu~ lighting
lighting from lumln3ires that emit
an approximately equal ~trl~tIon
of light upward and downward.
direct-indirect lighting
General dlffuse ~htln4ln which
little light Is emitted In the
horizontal plane eX tU lumInaires.
,eml-Indirect lighting
lighting In which lumInaires
d1stri~ute 601to 001 of t.ie
emitted light upw;lrd.
indirect lighting
lighting In which luminaires
dlstri~ute 9O'L to 1001 ofthe
emItted light upward. esp. to avoId
glare or prevent shadows.
148
.. - -----"'-<~.
gL1re
The sensatlon produced by any ~rlghtness
within the vIsual field that Is sufficiently
greater than the luminance to which the
~s areadapted to cause anncyance,
dIscomfort, or1055 of vtslPIIlty.
a<:Uptation
The regulating by the pupil of the
qU3nutyofllg~ enterl"9 theeye,
resu!tl~ In achange In the sensitivity
of the eye's photoreceptors to light.
visual comfort prol1a!1i1ity
Arating of the likelihood that aIIghtlng
sys~ wHi not cause direct glare,
expressed as the percentage of people
who may ~e expected to experience
vlsU31 comfort when seated In the least
. fa,ora~1e visual position.
brightness ratio
~ ratio !1etween the luminance of an
object ana that of Its Uacl:ground. Also
oiled ~rrtr3st rrtlo.
..• highlight
To emphasize ~ illuminating
with astrong light.
....., vacklight
To Illuminate something from
~ehlnd In order to enhance depth
or to separate the suDject from
Its Uadground.
.. _...-. sidelight
Llg~ coming or produced from
thesk:le.
..........- ...•.........-.- .. -..- soft light
Diffuse Ilqht that produces little
contrast ana poorly defined
shadows on the su~Ject.
...• hard light
Direct light that produces high
contrast and distinct shadows
on the suDject.
17linding glare
Glare so Intense that. for an
apprecla~!e length of time after It has
~een remOv'ed, vlsll7illty Is lost.
di5al7~ity gbre
Glare that reduces vlsll7inty or
Impairs visual performanu. often
accompanleJ by discomfort.
discomfort gfa re
Glare that produces discomfort Put
does not necessarily Interfere wfth
vlSI~ility or visual performance.
. I -. .......---------r
':AST
1,1!1
;11
.....--. direct glare
Glare resulting from ahigh brightness
ratio or an Insufficiently shIelded light
sourceIn the visual fleld.
.....' reflected glare
Glare resultlng from the specular
reflection of alight source within the
visual fuM Also called Indirect glare.
veiling reflectance
Reflected glare on atasi: surface that
reduces the contrast necessalj' for
seeing details.
[
f--;
I
j
t-J
I
,.J
J
f
!.
-j
/
- ,~'
"'.
-'
r'"
I I
r
~ I
t .-
~am spread
The angle of ahght ream that Intersects
the c3ndtepowerdlStfiDutlon cum at
points wkere tke luminous Intensity
equ.ls astatea percent of a maxfmum
rd'erenu Intenslty.
sp;u;ing criteria
Aformula for determining how far apart
luminaires mayDe Installed for uniform
lighting of asurface or are3. Dasea on
mounting heIght.
,. spacing crlUrl3 (5{;) = spacing (s)/mourrtlng helg!rt(mh) ----;----------1
! '. i 4 l
i
/ ../ ----- 5C =0.5
....•....•.---- 5C = 1.0
am
Agroup of nearly parallel rays of light.
throw
The effectlve length of aDeam of light.
ces1ing cavity ----------------------
The cavityformed DytM celnng. aplane
of suspende.d lumlll3lres. and the wall
surf3u-s Pctween~.,e two p!3nes.
room cmy -------------------.
The cavity fol'!l'led !7yaplane of
Iumln3lres. the won:pl3ne. ana the wall
surfaces Mween these two pones.
floor C<1vTty -----.-..---------..-----
The C3Vfty fanned !7y the won piane.
the ftoor. and the 1¥3" surfaces
~n these twa planes.
'''-.<
/' '"
room c~v!ty ratio
Asingle numper derived from the
dimensions ofaroom cavity for useIn
Jetermlnlng the coefficient of utilization.
coefficient of utHiution
The I'3tlo of the luminous flux reaching a
specified won: ptar.e to the total lumen
outptrt of aluminaIre. taking Into account
the proportions ofaroom ana the
refIectances of Its surfaces. -----..-·1
1
__.:!IL.
li9ht~,h~r
Arry of se-t'ml factors used In
calcuta",r~ the tffe....'"tive illumination
provldeJ b)o a IIghtlll.3 system after a
given ~ of Ume arJ under given
condttk;l'.5. Formerly called
mal~nance factor.
recoveraLne light 10" factor -----------
A~ht bss factorth3t mayPe recovered
by retampillg or main~ance. as IJmp
lumen deprecl3tIon.lumlnalre dIrt
deprecl3tlon. and room surface alrt
deprecl3t-ion.
LIGHT
fX'int methad
AproceJure for c.alculJtl~ the ~Iumlnaticn
produced on • surface Dy a point souru
from any arl.jlt. Dased on the Inverse square
lIna cosine b·,.,s.
lumen method
Aproc&lure fur determining the numrer
and types of bmps. luminaires, or windows
reqUired to prcvIde auniform ~eI of
fRuminztlon on J work plJne. takIng into
account ~ .f.rect ana refI.ected lumlr'o?'.J:S
flux. Also cai1:ed zonal cavity method.
woN: plane
The ha:izo~I pbne at which won: Is dar.e
ana Of1l'r'hlch il1umlnatlon Is speGtfled aM
measured. lISU311y assumed to De:30 In.
(762 mm) abo,;~ tke floor.
Lamp lumen depreciation
A~ht loss fxtar representl~ the
decre3se in luminous outputof3IJmp
durlrog It,; opmtlrog 11ft. expressedas ..
peru'1t3¥ of inltUl13mp lumens.
lumiruire dirt depreciatlon
A~ht loss f-,c,q represen~ the
decre4se In klminous output ofa lumlna!re
resultlng frc:m the accumulJtla11 of dirt ~
Its surfaus. expressed as aperc.enta~ of
the mUIl1I~..cn from the luminalre whe:l
new or claln..
room 'u~ dirt deprecUtion
A~ht Io5s ~ represerrtlng the
decre3se In rtfl.xted li9ht resultIng from
the ucumu;J1'..lon ofdirt ~ aroom's
surfaus. exrressed as a~rrtage of ~
~ht refect.td from the surfaces when .
cle3n.
. . . , initiJllamplumens xCUxRLLFxNRLLF ~.....-......__ n ____ . . - - - - - - • • - . . - - . nonrecOVefa 171e light los, hctor
average mamtalned"luminance = Any of se'ler:ll permanent light Io5s factors
work area that take ir;~ 3ccount the effectsof
initiallamp lumens = lumens perlamp x lamps per luminaire
temp~UJ~. ,·oItage drops or surges.
!:rallast vari3-::Cns. and partltlon heights.
149
LIGHT
d3y!~~
The sclenU, theay, Of method of providing
Ulu!TIinJUon ;h~b the use of ~ht ofby.
d.1y1~ht
r0 ~ an Interior space with daylight
from roth direct 3nd Indirut source5.
skyrlght
The !!ght from the sky, refItcted
and diffused by air molecules.
sunlight
The direct hght ofthe sun.
ground light
Sunlight or skylight reflected Dy
surfaces Pelow the plane ofthe horizon.
.• clear sky
Asky having less than 301 cloud COt'er
with the sol3r dis: un~truCted. Also,
the CIE standard for arefereru
cloudless sky condition, having the
greatest luminance near the sun and
least luminance 90°from the sun.
zenith - ......-.-...-.-.- ....-....-...........- ....~
..__!!r---L..
ctI urrtci~ht
Light o.-'~ Il13tJng from sources
t.cl~ ach other. as from
wlrJo;..s in opposite W3l1s.
cro~t.ght
lI~ht or'~IMlng from sources
not~ ~ other, 3S from
~1n~W3l1s.
d4yfight ~ctor method
A~r.:d forcalcufating the
~orn'~:U of 3 dayllgr.ting
systan. ~~ on the daylight
betar.
tUyr'9&tbct.or •.-..-........-.-.
AI!1a~of~ht
lI1umllUrGe, expressed as the
ratlo of~ht IIIIImlnatlon at
a point OIIl !iven plane to the
slmu~ II'Ie4sured
nlumlll4rGe on aborizontal
pbne frcm;ll uno!:>structed sky
ofassu~ Of known luminance
dlsttilr.rt.lcn.
150
The point on the celestial
sphere vertically above agiven
position or ol1server.
~(-~O_---1-
external rtfk:cte.d ctlmponent •.'
Acompc,.~t of the d3y1~ht factor, equal to
the rat:O of the dayl~ht i1Jumll13tlon at apolnt
on aglv~:'1 piane recelvea directly from exterior
reffect!r-3 s~rfaces to the sImultaneously
measur~ iDumlnance on ahorizontal plane
from an ~~·c;.structed sl:)- of assumed or ~nown
. _lurnln3r=~ Jstributlon
i
..• overcast sky
Asky havln~ lOOl cloud cover. Also, the
CIE standard for areference sky h3v1ng
aluminance d1strtlrotlon three times
~rlghter neartho zenith than at the
horizon.
elE
Commission Internatlonale de
rEcl3lrage, an Internatlol13lcommlsslon
developing definitions, standards. and
procedures for the art. sctence, and
technology of lighting.
IES
/IIumll13tlng Engl~rlng Society, a
professIonal society In North Americ.a
devoted to the development ana
dissemination ofstandards;lnd
procedures relatIng to the art. science.
and technology of li9hUng.
L._____.___.. artffic~15ky
inUrnal r~ component '
Ahemlspherlcallhme or slmll4lr
enclosurelIIumll3'Ud by concealed JIg"",
sourUs that slmul3te the luminance
dlstrlllUtlon of a clear or overcast sky.
used for studying and testJng
dayllghtlng techniques on archltecUJral
models placed near Its center.
hellodon
Adevice for orienting an architectural
model to alight source representing
the sun, c:a1l~rateJ with respect to
latitude, time ofby, and 5e3son of the
year and used for studying dayhghtJng
techniques and shadows cast Dy the
sun. •
/~
Acomponent ofthe dayhght Detar, equal to " ..
the ratio of the daylight Hlumlnatlon at apoint . /",
.. from Interior reflecting surfaces to the ./
on ;I given plane received directly or Indirectly 1?,
.....' ,,/
simultaneously measured illuminance on a . /.'
horizontal plane from an un~tructed sky of ,/
assumed or known luminance dlstrl~utlon. .
t.....,i
J
J
J
I
r
.-
;
f
!
i
I
r
1
.,
/.
I
LOAD
Any of the forces to which a
structureis subjected.
static load
Aload appl1ed slowly tc astructure
until It reaches Its peak V4lue without
fluctuating rapidly In magnitude or
position. Underastatic load. a
structure responds slowly and Its
deformation reaches apeak when the
static force Is maxlm.um.
r---------------------------40 live load
occupancy load - ..- ....- ....
The llYe load on Oil structure resulting
from the weight of people. furniture.
stored IT13terbland other similar
Items In a buI1dl~. 6ul1dlng codes
specify minimum live loads for
various uses anaoccupancies.
snowloaJ ........................... _..'
The live load resulting from the
we41ht of snow accumulatl"'J on a
roof. Snow loads vary with
geographic loc3tlof1. site exposure.
wlna cond1t1ons. ana roof geometry.
water load - .....-..........--.....
The Uve load of water thAt may
accumulate on aroof l10ecause of Its
form, def1ectloo. or the clogging of
Its draln31e system.
~uiYa!ent load
Aload substituted by abuilding coJe for
an actu3lloaJ, derived on the ;.Isis of
st3t1st!cJi evidence for given types of
h;il.:l;rys. For mety.the equivalent load
Is ~~.uty.J T.ultlp1e of the load that
""';" 'J ~'-c.j~ce failure or unacceptable
C~:;'<,:;~..J~.
Iald wm~!lUtlon
The ~Jd (]:;d .3natwo or more live loads
iSsumed to occur simultaneously on a
structure when their combined effect can
Pe reasonably expected to be less than
the sum of their 5ep3l'3te actions.
1.00 (dad + live + snow(oaJ5)
(.75 (dead +five +snow +wfndorsdsmfc 103d5)
load reduction
Areduction In design loading allowed by
I7ulldlng codes for certain load
combinations.l7ased on the assumption
that root all live loads will act
simultaneously on a structure at their
full v31~e. Afur all possible load
combinations are considered, a structure
Is designed to carry the most severe but
reans~'G distribution. concentration. and
con-b ~3tlon of toads
Arry moving or mcvable load on 3
structure result!ng from occup;lncy.
collected snow arid water. or moving
equipment. AIlve !aa.d typlGally ;lcts
vertcally downward. but may ut
horizontally as well to reflect the
c:!ynamlc nature of a moving load.
.-,,.,_ _ ..L. dt.ad load
The statlc load acUng vertlGally
downward on Oil str'.JCture. comprising
the self·w~ht of the structure ana
the we~ht of ~u:laing elements.
fOCtures. ana equipment permanently
attached to It.
waur pressure
The upllftlng fo~ awater tabl.e
exerts on afour.d3t1on system.
e.rth pressure
The horizontal folU asoli mass
exerts on ave~.al retaining
structure.
5ettkment Ic3d ~ ...... _.
Aload Imposed C1'I astructure by
sul7sldence ofa portion of the
supportl~ seiland the resulting
cliffe:rentI3l sett!ement
ofIts foundator1.
o
<;rind load »
1-~.~d~~~5uJJ.nftto••'_"e.
<
.~rthc{uake loAd often with rapid ch3nges In IIt3gnltuk
.,-___L-______ ana IocJtlon. Under adyNmlc 1oad. a
......- mcvingload
structur-e develops Ine~1 forces In
relatlon to Its mass and ttslT13xlm:Jm
defOrTT13t1on does not necessarily
erection stress
The stress Induced on a~ui!ding
unit orcomponent by loads
appl1ed during the erection
process.
erection I1racing
The temporary bracing required
to secure the units or
components of abuilding until
perm3nently fastened In pbce.
Akinetic load of short duration due
to If1C.ilng vehicles. equipment. ana
machinery. 6uild1ng codes trtat this
load as astatic load. compens.atlng
for tts dyn.mlc I13ture by amplifylng
tl-.e stat1c load. Also called Impact I
Io~.
impact factor J
Afactor by which the effect of a
5t4tlG load Is multlplled to
approximate tM effect ofapplying
tJ-o.e same load dynamically.
corre5rood to the maximum m31nltuae
of the applied force.
constructlon load
Atemporary load on astructure
occurring during Its erectlon.;;Is
from wind or the Weight of
constn.:ctlon equipment and stored
ma';e"als
151
LOAD
I3teI'2IJoaa
AIo3J ~ ~tally on a structure,
as awlndorearthqua~e load.
e.1rthqw Io.td
ThefOlUS exerteaon a structure!1y an
ea~~
e.1rthqute
Aseries of10119ltudlnaIand transverse
vl/1rnlons Induced In the earth's crust !1y
the almlp'lI1OVement of plates along fautt
hnes. The sIIocis ofan earthquaKe
propagate~ the earth's surface In the
form of ~ and attenuate
Iogarft:hmbllyMth distance from Its
source.
seismic
Of, pertaining to, or caused by an
earthqua:eorvluratlon of the earth.
seismic force
Any of t~ forus C3u$td ~ U1c vrmtcry
grO'Jrla motlo1'1s of 3n e;; rtru.U.'l(e. Whi~
these :r.otlons are th~d'~slona/ln
i r..;t;Jt"!, their horizD1Tt41 c:orr:po~nts at"!
con$Ider!d to be t M most 1mportant in
epicenta' - ..-~ ..........., .......~ .........~.- ..
Apoint dIrt:ctIy.rovethe hypocenter, from
S"
..n.c~~ml des~n; the vert.bllaad-
carT)ir~ dements of a structure usua~
h3Y~ C...?!1skknb!e reserve for resisting
6<i:!it]cn;J1 vertlc3lloads. Duri~ an
eartnQ:J3te, the m.;ss of .. s-t-rJcture
develof,s ~n Inertl;J1 force ~s It tries to
reslstgrouna acceleration. From Ne~'s
secorJ 14w, this force ls e.q~1 to the
prodoct of mass and accelentlori. For
design purposes, astat:lc3rty e.qclv;ii!em
13ter;;1 force, base shear, Is computed by
formula.
which the shod:: waves of an earthquaI:e - ..
apparen~emanate.
hypocenter ~ .......- ..-.....,--.......
The pointoforigin ofan earthquake, Also
callea focus,
fault ...--.........................- .........
AUrt3k In the earth's crust accompanled!1y
aJlslocatbn in tile plane of the fracture.
plate •- ....- ...............................
Anyofthe huge lI'IOV3ule segments Into
which the e4rth's crust Is divided.
viln-aticft
The osclllatlng. reclprocatlng, or
other periodic motion ofan elastic
roJtor medium when forcecl from a
posltlonorstateofequlill.?rlum.
anteroff1t255 --. +
totalJeMPtdght - - ..{!..
0-- ~
grouna accefent.lon
The r.1teofcha~ In the velocIty of
ground rooremetlt wtth respect to tlme.
High acceferatlons are the most
damaging to astructure, which must try
to follow the rapid changes In ground
movementJuring an earth'lua~e.
152
periodic motion
Arty motlon that recurs In the sarr.e
form ..t equallntemls oftIme.
harmonic motion
Periodic motion consIsting ofone or
more vlmtory motions that are
symmetric aUout aregion ofeqUilibrium,
as the motion ofavll7ratlng string of a
muslc3llnstrument.
period
Thetime reqUIred for onecomplete
cycleofaW3ve orosctnatlon. -'1
0.3 < t <1.0 SoX.
I
IUtunI~riod ofyjPrn.lcn
The tl!re requIred for a ~ SI.i~p;t to 3
vlmt.cry forc.e to ~ throughOM
oscHl1tla1ln t:ke direction ~
con~n. Astl"Jeture's nT.ur31
peMod of t'ibrnton V:llies 6CC01"&ntj to its
helght;i P:.-vC the base and Its dirnenslon
paraliel to tM dlrectlon of the apptied
forces. Are14Uve~ 5Uffstruc1.<Jre tends
to oscfll:r...e r.lpklly dM h.1s. short pM:.d
of ~!:rr.itlon while a IT1OI"e fbJ~1e
-stl"Jei'...ure tends to oscillate sJcwly and
Msa ~ period. Alsc C3~
fu~ment..ll pa-iod of ~rrtJoo.
_.- amplitude
The I!14XllTlum dlsplJc.ement from the
mean poslt«Jn during one percJof an
oscln.tlon.
drift 1'<------4--.-- ~RImo"
The lateral deflection or 'T"1--""'-'-1 Asln~le S1'ring of 3" oscJllatlt3 body
movementofastructured~ ~ I  I fromone~e~llmlttoanot.".er.
to wind, e<lrthquake, or  11 I
asymmetrical vertical loading. _.................  t--  ! ~113te
I I To swing 00 and forth 1J1:e. pendulum
 I ~ .It.enutlng ~
I
I I
I I
I I
I I
h*-l
I ',_...-- L .... lnertlalforcueslstlng
: I ground;ccelmtJon
I I
1 1
~nanc.e
An ab"or.nal~ large vlbratlon In a
system C3 used ~ are!atwe!y sma"
vlmtc.-y force ofthe same or nariy the
same per'w:ld as the natural perIodof
viUrat Ion of the system.
damping - ..........................................,..!-!
· -
. .
-·~-=~"-------+-i-~----------
The al1sorptlon or dIssIpation of !
energy to progressIvely diminIsh ~---t-.r----+-----i-----------
successIve oscillations or W3ves
of avluratlng structure.
r----=.:b>--------r'-----J-~---------
t .
u
I
r
,
I
r
p
.~
I
1"-
!
-
I
r
r
~smic~fxtcr ----
t :----. weightfactor -.--------------.-----....
'
f.: The total dead load of abulldln". •
i: Including the weight of furnlshi~gs. ······'.•.-.1
f' stored materials. permanent -
i equipment. and hea..y snow loads.
i Base shear Is directly proportional to
i the mass ofauulldlng: the greater
i the mass. the greater the base she4lr.
,
LOAD
i-----------· b3~
./ The level at which earthquake motions are
. assumed to be Imp-arted to astructure.
A~fOi" ~ustlng Ir.Jse sear
according to the prolr.lDIe seismic actlvtty
ana Intens~ of a¥Ographlc location.
There a1'8 5 ~mlc zones In the U.S. with
zone 0 ~~ tto.e Ie3st 4Jctlve and Z9ne 4
~Ing an are;; close to 3 major fauft
system.
sei,mic coefficient --------..-~-.
' t {
/,CZI W= V
.-/' ,../Rw
)-----------I'---f..:::=::=...,..r.---L-----'- base 5~ar
''--.----- b1se sht3r' --.-.---...--..:----..,
O~---~
The shearing force developed at the Ir.lse of
a structure Dy the tendency ofIts upper
mass to remain at rest while the !rase Is
translated Dy ground motions during an
earthquake. Base shearIs the minimum
design valuefor the total lateral selsmlc
force on astructure. and Is assumed to act
nonconcurrently In the direction ofe;lch of
the main axes of the structure. It Is
computed Dy multiplying the total dead
load of the structure Dya numPerof
coeftIctents to reftect the cnal'3Cter ana
Irrtensltyof the ground motions. the mass
and stiffness of the structure and the way
these are dlstrJDutea, the type ofsoI1
underlying the foundation, and the presence
of dampln~ mechanisms In the structure.
AcoefflcIentfor adjusting Pase shear
according ta ~ relationship l>etween the
natu,..l perrd ofv!l;ratlon ofastructure
and that of ~ unc:krlyfng sail on which the
structure rests_ When these periods are
$lmll4Jr. 7~ srarIs Increased to reflect
the likelihood of dt:structlve resonances
occumng tn the structure. Also called
pase shear codficient.
,ftc ccefficient
A~.ent ~ng the nature and
~ of* foonaatlon soil usually Ir.lsed
on a~~ InvtStlgatlon. Ground
~ts m ~11y much greater In
anuvlalsoils t~rt In rody areas ordlluvlal
soils.
Iiquebcticn
1Msudden bs5 of srarlng re$lstJ nce In a
~ so1. causing the soil mass to
~have as 4J ~ul.d..
SUlry drift
The ho~ rrcrement of one level of a
structure retztlve to the level above or
Pelow.
drift Index
The maxlmum rJt10 of story drift to story
~ht allc~ by 3 ~ildlng code In order to
IMfnlmlu d3~ to Pulkilng components or
adJ3cent str.i..~res. Also called drift
hmIt.atl011
..-
/
...puilding ty~ factor
Acoefficient for adjusting 7ase shear
according to constructlon type and
rnaterl31. 3nd the energy-aDsorDlng
capacity of the structural and lateral
force-reslsUng systems used. Base shear
Is Inversely proportional to the energy-
al1sor1:nng capacity ofastructure; the
greater the structure's stiffness or
ductility. the lower the Pa5e shear.
horizontalforu factor
groundacceleration
Acoefficient used In calculating the lateral
seismic foru on structural elements.
nonstructural components. ortheir
connections. according to their wef9ht and
----- -----... di5tri17ution of pase 'hear
function. r
story shear --------------------------- .. -... ----f.----H.....------J
The total shear In arry horizontal plane of a :
structure subject to lateral loads,
dlstrl!nIteO accor.dlng to the varlcus lateral
force-resisting elements In proportion to
their rigidities. Story shear 15cumulative
and Increases from tts minimum value at
the top to Its maximum at the ~ase.
r puilding &eparation
/ The dlst~nce required to avokJ contact
. ~tween separated structures under
deflection from selsmlc action orwind
forces.
horizontal torsion
The torsion resultlng from alateral load
acting on astruc'ture having noncolncldent
centers of mass and resistance. To avoId
destructive torsional effects. structures
subject to lateral loads should De arranged
and Draced symmetrically with centers of
mass and resistance as coincident as
possl!7Ie..ln asymmetrical layouts. bracing
elements snauld ~ distributed with
stlffnes5es that correspond to the
dlstrlbutlon of the mass.
r-______
I --,
I I
I I
I I
I I
I I
I I
I I
I I
I I
.t--~I!!!II..~
I
I
I
restoring moment
Aresisting moment provided Dy the dead
load of astructure acting aDout the same
point of rotation as the overturnIng
movement. BUilding codes usually require
that the restoring moment De at least 501.
greater than the overturning moment. Also
called righting moment. stablllzJng
moment.
The manner In wh!ch lr.Jse shear Is
dlstrluute<./ ov~ the h~ht of~ structure
according to the displacements that would
occur durln~ an earthquake. For ~ l>olldlng
of regular recta~ulJr shape I'Ittn equal
floor weights and he~hts and no
Irregularities In stiffness or mass. 7ase
shear Is dlstrl17uW to e;lch horizontai
diaphragm a7ove the !rase In proportlcn to
thefloor weight at each level and Its
distance from ~ l7ase. This results In 4J
tri3ngular load ccnflguratlon val)1ng from
zero at the !lase to amaximum value 3t the
top. For structures having aI13tural period
of vll7ratlon greatu than 0.7 sec.on.ds. a
portlOn of the tot4ll7ase shear Is assumed
to ~ concen~ 3t the top of the
structure to accourrt for the whiplash
effect of seismic forces. For structures
with Irregular shapes orframlng systems.
tne dlstrll>otlon of lateral forces should De
determined according to the relatP.'e
stlffnesses of adjaunt floor levels and the
dynamic characteristics of the structure_
- overturning moment
An external moment generated at the l7ase
of astructure Dy aIJteralload applied at a
distance a7ovc grJde. For equlllDrlum, the
overturning moment must Ue
wunter7alanced by an external restoring
moment and an Internal resisting moment
provIded Dyforces developed In column
meml7ers and shear walls.
153
LOAD
wind load sliding uplift
Any of the forces exerted by the kinetic
energy ofa 1I1OV~ lI13SS ofair, resulting In
pressure on ~In parts ofastructure
.ndsuctlon on others.
The horlzontallTlO'.'ementofastructure In
respon~ to alateral load.
The r;;islng ofastructure or port:on of
structlJre In response to an OYertumlng
momet1t or wind suctlon.
6ernaulli ~u.1tWn . ) dynamic wind pressure -----+)! de5i.gn wind p~sure
An express10n ofthe conservatlon ofenergy The pressure exerteJ by amovl"9 II13SS of l Aminimum design value for the equlvoilent
In stre3mnneflow, stating thatthe sum of air, derlv~ from Bernoulli's equation and i statlc pressure on the exterior surfaces
the ratlo ofpressure to mass density, the equal to the product of the mass density 1ofastructure resul1;Jng from acrltlc3l
square of the vetodty divided !1y 2. and the of the air and the square of the vebclty at l wind velocity, tqU31 t<) the wind
produa ofthe gravtt.tional constant and agiven height divided by 2. lsta~natbn pressure modified ;.ya
vertlc2l height. rem.l1ins constant. Also !num~ ofcoefficients to UCOIJnt for the
called 6emounrs ~rent !effects ofexposure condition, !11Jlidlng
height factcr !h.elght. wlna gusts, and the geometry and
T T
! I
, I
I I
i --.} I
; 1.
®.
I
I
I
Acoefficient Incre3slng des~n wind iorlen~tbn of the structure t<) the
pressure to 3CCOUnt for the Increa~ In :.: Impi:'.ging air flow.
wind velocity with height apoye the ....'
ground. ~ .""
gustfactor ®..~"Ceqqqs I""
Acoefficient IncreJslng design wind ...........
pressure to acccunt for the dynamic ..' i ...._....
effects of wind gusts.
exposure ~ndition
One offour conditions mod~"4 des~n
wind pressure according to oktructlons In
the area surrounding a~ulkiln~ site..
exposure A:. umn areas with h~h-rlse
liulldlngs. or rough, hilly terrain;
p,-e,sure coefficient
I
~
~ I  . - exposure 5: su~uritan sttes. wooded areas.
~t-'--+--+----i-7--:'-t--~:--_-
__....,_~ or romng krr3ln;
Acufflclent moJrfylng design wind
pressure to reflect hew the geometryand
~n ofthevar'cus p3rts ofa
struc't<Ire aItertJo.e tffects ofan
Impl~l~ .Irfiow.lr:w.rd Of posltIYe
coefficlents result In wind pressure while
outw.rd or negative ccdfIclents result; In
wind suction.
l f
t----+--I'---t~r"i.ih-;-+--+---II--i"~-~ exposure c; flat. open terrain wtth minimal
i r--···--1 oI1structlons;
.
t---+_-+-..
f......~_-+-_+---I,_··_-·-·- exposure D: flat, unobstructed terrain
• J. f.clng ~rge I10dles of water.
fa,u,t-mite wind 'peed - ........._.
The mrage ~ of. one-mi~·long
column of air that psses oyer a~iven
o 0.5 1.0 1.5 2.0 2.5 3.0 The mOrtopen3 s/U. thegreater the 'Nind point. IT'".e3sured in mi~s per hcw.
speed3f1atheresvfting aeslgn iWlapre$tJre.
r wind 5uction
leeward --- - ~ The lY~tlve pressure exerted ~ wind on
Pertaining to. ~1"9ln, or the sldesand ~rd vertIc.l1l S<Jmusof
racing the "Irectlon toward .. !11J~ aM roonnal to windward roof
___-----;¥IllCh the win" wing. surfaces h..v1ng as~ less tn.n 30".
---~, ?Ji
wlndw3rd normal force method
Pertaining to, l'Ie!ng ln, or
facing the ~rectlon from
which the wind ~Iows.
Adesign methodfor 2pplylng design wind
pressure to theprimary fr.1me and !:>racing
systems of.. ~ulld1ng.ln which wind
pressures are assumed to act
154
wind pressure
The pressure exerted by wind hOflzontal1y
on the windward vertlcalsurfaGeS ofa
pulldlng and normal to windward roof
surfaces having aslope greater than 30°.
slmlo'lt4~sly normaIt<) all exterior
surfaces. This methcJ may ~ used for any
structure. (,utIs rqulred for g3bled rigid
frames.
r3rt. ~buliJ/rIg$. ~.rJcrures i'rf'th unuSU3{
orcorr:fk:tsh3pes.1tIaH~htwaglrt. fdb{e
~ suujecttcfivtter rtq~ ttrma
tunneltd:Ing orC«rf!Mt"fTII)Jaing to
InvtStig'U howtMyrtSfon4 to tJ:t .
dlstr+.J~n of'Nind?"~$lJrt.
flutter
The rapid oscillations of aftexl~le cable or
rr.embrane structure caused by the
uroJynamlc effects of wind. Also called
urodytumlc oscilL1tton. '
impo~nce f.actor
Acoefficientfor Incre.slng the des~n
values for wind or seismic forces on a
~ildlng Peeause ofIts large occup.ncy,lts
po'~ntlally hazardous co~ts, or Its
es~tl31 nature In the wa(e of a hurrlc'rIe
or earthquake.
. wind rt.agnrtion pre,sure
The static equivalent to dynamic wind
pressure used as a reference In calculatlng
design wind pressure, sptcIfW In pounds
~ square foot and tqU41 to 0.D0256 tllMS
the sqU3re ofthe Uaslc wind ~fOf'~
~r;;Phlc Iocatlon. Wind velocity
approoches uroas the movI~ air IlUSS
parts to flow around an oPstruc'tlon. Slnce
the sum ofstatlc.na dynamic pressures
remains constant In streamline flow, anof
the ener~ In the flow at thiS polrtt of
5~natbn Is In tht form of static
pressure.
~sic wind speed
The wind velocity used In calculating wind
s~gn~tlon pressure:. usually the extreme
- - fli5~'mlle wind speed recorded for a
~r;;phlc Iocatlon li"ta starilird height of
33 ft. (10 m) 3rta based on .. 50-year /TIt:ln
occurrence IntetYal. Also called de$l~n
wir.d veWcfty.
nT! rrrrrrrrrrTT
.~..i-.-_
..-.- ~
projected a~ method
Adesign method for applying design wlr.d
pressure to the primary frarr.e and ~~Ing
sys~s of apulkilng.ln which the total
wind eff~t Is con5kfered to ~ a
ccmDlnaUon of. single Inward or positive
horlzo;1~1 presSUit actmg on the-fun
vertlc31 projected area ofth.e liulldln~ and
an outward or negative pressure acting 0f1
the full horizontal proJUted are. of the
l'>uildlng. This method m.ily ~ u~ for any
structure less than 200 ft. (61 m) h~h.
except for ga!:>led rigid frames.
t. '
I
,
l,J
I
1
1.,J
/ l
¥'
r
r
l '
r
f
r
t
r
I
r
r
I I
I
.-- I
I
,I
r-I
~_ I
r
I
,
- I
I
- I
he3djoint --.--..--.-- ..-.--.---.
The verticaljoInt !letween two
masonry units. perpend1cular
to the face of awall.
~hovedjolnt
Aheadjolnt fanned I1y
"pplylng mortar to the end of
" IT13SOnry unit and forcing It
In posItion ag3lnst the 13st
masonry unit laid.
collarjoint ------------ ---. -- ----- -----
Thevertk:.ljolnt retween two
wythes of masonry.
~Jolnt -----------.-----.
The horizontaljoint !letween
two masonry courses.
bed ---.---.-------.-----.--.----.----.
The undersk:le of" brick or
other masonry unit. or the
layerof mortar In which a
masonry unit I5laki
clipjoint
A ~Joint made thicKer than
usual I" order to level the
course above.
point
wythe _________j_.__.. J
Acontinuous vertical section ofII
masonry wall one unit In thickness,
Also. wft.he.
To f11 arul flnlsh the surface of;l masonry
Joint with mortar after the masonry has
been laid. tither toflnlsh thejoint or to ~'
repair adefectiveJoint.
tuck pointing .-.-.----.-----.-..-------.-.-.-. ','iL~ :..' ".,,:.-... :.: "'~:
The process of raking out defective mortar •.'., -. " .
from a IT3S011I)'joint. filling with fresh
mortar, ana too11119 thejolnt. _
wck and pat pointing .---------- -- ------ ~:':::..: '. ':- .. '. '..' :. ':.-
~~k:~~~I;;;:~;t~nng~:~rn;;:;~I~~~ of ,>,i~~.,· :.'.. .- '.' .: .-- :-'
ua~rtard pointing '1
An Imlt3tlon of tuck and pat pOinting. having ,,1
afillet made from the mortar of theJOint.
flat-joint pointing .-- --.'.
PoIntlng having flush joints of cornman
mortar.
field
The expanse of3 masonry walll1etween
openIngs ana comers. usually composed
primarily of stretchers. --~.
.
MASONRY
Building with units ofvarious
natural or manufactured products.
as stene, PricK, or concreU plock,
usually with the use of
mortar as a ponding agent.
- course
Acontinuous, usually horizontal range
of brIc1:s. tiles. or shingles. as In a wan
or roof.
range
Acontinuous course of masonry units
having the same height from end to
end.
closer
The last masonry unit laid In acourse.
,.---.~.---.------- ------ cor!1e1
A~k orstene projectll19 from
, - coruelio,g
~
within awall. usually to support a
w~ht.
An overlapping arrangement of
brids orstones In which t'ach
~-;::::::::::::~::::::::::::::::::::::::~=, course steps upward arul outward
from tht; vertical face of awall_
tco~djolnt ------------...--------.
Aweather-resistant mortarjoint
compressed and sha~ with any
tao! ather than atrowel.
trowe~Joint ~-------.-------­
AmortarJoint finished I1y striking
offexcess mortar with atroweL
concavejaint
AClJrved. hollowed mortarjoint formed
by <I r'O'Jnaea par.
V-joint
An .ngul3r. hollowed mortarJoInt
formed by aV-5hapeajointer.
weatMredjolnt
Am0rt3rJoIIIt smoothed I1y pressl"9
the trowel Inat the upper eage ofthe
jolntJormlng a slopl~ surface that
sheds water re3dlly.
flushjoint
AmortarJoint strud: flush with the
masonry.
struckjoint
Amortarjoint pres~ In at the lower
edge and slop1119 In the reverse
direction from aweatheredJoint.
rakeajoint
AmortarJoint made I1y removing
mortar to agiven dep~h wIth asquare-
edged tool ~ore hardening.
155
MASONRY
~lk:I m.1sonty --..•....-........_................"
Awall constnJcWof brick or other '"
soI1d rrgsonry units bid contiguously
with aDpin10solidlyfilled with mortar
aM aa~ wythes I10nded by
ItI3sonry headers or Jnetal ties.
c.1vitywall-·-···-·--·---··-·---..·--·---.,
AmasonryW2U h2vtng a~clng ana '•...
!7ackl~~separateaexcept "'"
for metal ties anaenclosing an Inner ",
space servtng to prevent penetration ',
bywater. ".
hclng .- '-"---'" -.. -..-...-- ...-..-....-..-....
An ornamental or protective layer. as '.
the outer wythe ofamasonry wall.
backing --...--._..-......-.-.......- ..- ...
Something that forms the pack or ••••• ""-''''1."''''''-
pr-ovlJes SlIpport.strength. or
protectlon from the !7ack. as the Inner
wythe or ~es ofamasonry wall.
weep hole -.---.---.---------..-.-.----.-
A~ openln4 In a~vIty wall
reta~ ""u.orother constnJctIon
for ar.lnlll! offa<:cumuiaW moisture.
as from GOI'Idensatlon or leakage.
t.aced wan _ ............--........-...... --".
Awall ~ a rrusonry facing ponded
to 2 !7acklll! so as to ~rt acommon
action UMerIoa4
adheted~
Aveneer sapported l:>y and secured to a
!7acklng by Intansofabonalng material.
veneer -.---....-----.....--..........--.-
Anonstruaural ~ of~k. stone.
C-OIICI'tte.ortile ~hed toa~cklng
for the purposeofornamentation.
~orlnsubtlort
ve~edwall······ - ....---.-.-----.- .~,:....
Awan h2vIn4 anonstructlJral facing """
rtbche.d Put not rondtd to a .
supportl~ structure.
anchored veneer
Aven~r supported by and secured to a
!7acklng Py r.eans of mechanical
fasteners.
156
economywatl
Abrick wan 4 In. (102 rr.m) thick.
plastered and strengthened At
Intervals with 8-ln. (20:3-mm) pilasters
to support roof trusses.
....... composiU wall
.' wythe d1sslmllar to the other wythe or
~
/ Amasonrywallh3vlngatle<istone
. '.:' wythes with respect to type or grade
.': :'.: ..: of masonry unit or mortar.
...- adjustau~ tle
AmetaItie consisting of two
Interlocklng parts whIch et13171e It to
adapt to PeaJoints at different
elevations.
..... tie
Any of various con-oslve-resistarrt
metal devices for holding two partsof a
constr-uctlon together. as the wythes
of amasonry wall
uacl: p,-"tel'
r0 parge a part ofawaU that Is not
seen. as Pehlna the ouwwythe ofa
cavtty wanIn order to exclude air and
moisture from the Interlorofthe wall.
panel wall
Anon-Ioaa'~ring exterior n-usor.ry
wanwholly 5UpporteJat each story.
~
Adevice for lifting adressed stone or
precastconc~ panel consisting ofa
numt>erofpieces fltt:Ing together to flll
acIovet.a11ed rtUSs cut Into the stone
or panel.
mtjalnt
Awmpressluiejoint directly Pelowa
supportl~ shelf or relieving angle.
allowing for the expansion ana
contraction of apanel wall ana
preventing the weight ofhighercourses
from befng transmltUd to the masonry
pclow.
, '
·'1 •
t •
I
_I
j
_I
mortar
Apt..stlG mlxtl;~ of lime or cement. or a
combll14tlon of both. with sand and
W3ter. used as, Pending agent in
~ry const...JCtlon.
I
Type Mmortar
MASONRY
grouted m3sonry
Awall constructed of "riel: orconcrete
I7rIcl: units with all Interiorjoints being
fliled with grout as the worl:
progresses.
umentmcrt..;r ~ ..----------
AIr.ortar made ~ mixing portland
c.e::1t1'1t. 5JM, arid water.
Ahlgh-strength mortar recommended
for use In reinforced masonry-pelow
grade or in contact with the earth. as
foundation ana retaining walls subject
I to frost action or to high lateral or
--I compressive Ioads_
I
cement-lime rrwrt.1r
Acement mor-
....r to which lime Is added
to Increase tts Fllstlctty and water-
retentivity_
m3S<lnry c~ent
Aproprietary Jr:Cx ofportland cement and
otherIng~. as hydrated hme.
plasticizers. alr-rotralnlng agents. and
~um. mtu~ only the addition of
5Jna and~...er to make cement rrwrtar.
epc'XY mort.ar
Arr.ortar ~n~ ofepoxy resin. a
cat31yst. and f.r!C aggregate.
nonstaining martar
Amortar havll3 3 low free-alkali content
to :n1nlmlz.e eff..--rescence or the staining
of3dJacent masol1ry by the migration of
$OIui7'.e II1Jtma~.
lime mortar
Amixture of Ii:r..e. sana. and water that Is
mely used ~~ ofIts slow rate of
hardening arid ~ compressive strength.
lime
AwhIte or9r7y':sh white. C3 ustlc.
odortess so!ld ~lned by heatlng forms
of C3lclum Q~. as shells or
nmes~e. ~ ~ ~h temperature. Also
C31ed QIcium~. QIx. caustic lime.
'Ulcklime.
hydrated lime
Asoft.CIj'St3k:r.e powderol7talned by
W~lonohr3teron lime and used In
MI1I9 rncrt¥. p-bster. ana cement. Also
c.olled calcium hydroxide. slaked lime.
grun
Of or ~Ining to conc:-ete or mortar that
Is freshly set ~t not completely hardened.
fttmix
A~rete or :r.crtar mix that Is easy to
l¥Cft or spread ~~ of a relatively high
~t or nrrc: :.ootent. Also called rich
mix.
!eJn mix
Acoocrete or :r«i-3r mix that Is difficult to
1'I(in; or s~ ~~ of ashortness of
ce:nent or D~
plasticizer
An admixture for m3kl~ aconcrete or
mortar mix ~b~ wIth little water.
I Typ85 mortar
, Amedium-hlgh-strength mortar
recommenaed for use In masonry where
bond and lateral strength are more
Important than compressive strength.
Type Hmortar
Amedium-strength mortar
recommended for general use In
exposed masonry arovegrade where
high compressive and lateral strength
are nat requlred_
Type 0 mortar
Alow-strength mortar suitable for use
In Interior non-load-bearing walls and
partitions.
Type Kmortar
Avery-low-strength mortar suitable
only for use In Interior non-load-bearing
walls where permitted by the "ulldlng
code.
grout ------------ ---- -- ------ -- -------'::-_..
Afluid cement mortar that will flow -'"
easily without segregation of the
IngredIents. use.:! to fill rt3rrow cavftles
In masonry and consolidate the
adjoining materials Into asolId mass.
lJond
Theadhesion "etween mortar or grout
and the masonry units or steel
reinforcement "elng cemented.
joint reinforcement .. ':
high-lift grouting
Atechnique for groutIng amasonry wall
constructed astory at atime In lifts
notexceeding 6 feet (1.8 m).
low-lift grouting
Atechnique for groutingamasonry wall
In lifts not exceedlng six tlmes the
width of the grout space or amaximum
of aInches (203 mm) as the wallis
I7ullt.
_. --- grout pour
The total height ofmasonry to be ftlied
with grout before the erection of
aadltlonal masonry. conSisting ofone
or more grout Itfts.
--- ------. grout lift
An Increment of grout height within a
total grout pour.
cleanout
Any of aseries of temporary openings
at the bottom ofa masonlj' wall large
enough to permit the removal of de"ris
orobstructions from acavtty or cell
prior to groutlng.
reinfor~ grouted ma50nry
Amasonry wall constructed wtth
horizontal and vertical ~I
"-. reinforcement fully embedded In grout
for Increased resistance to buckllng
and lateral wind ana seismic loads.
hollow unit ma50nry
Awall constructed of hollow masonry
units laid and set with mortar. with
adJaunt wythes I70ncled by masonry
headers or metal ties.
". reinforced hallow-unit masonry -
Hollow unit masonry having certain
cells continuously fUled with concrete
or grout. In which reinforcing steel Is
embedded for Increased resistance to
buckhng and lateral wlna and seismic
loads.
Any steel reinforcement placed In a
bedjoint to Increase the resistance
ofa~asonry wall to cracking. /~
/ / '
-_//
157
MASONRY
rul:>~1e
R.,~~h fragments of Uroken storie or
tht masonry ~ilt of such stones.
ranacmru~
AN~ wan h:wlng discontInuous put
approximately level peds or courses.
ashlu
Asqtared ~1kiln9 stone finely dressed on
• Hfx.es ~pcent to those ofother stones
so as to permit very thin mortarjoInts.
158
gallet
To emPed small stone chips In the JnOrt.J:-
joints of rough masonry to wedge I3rger
stones In posltlon or add det.'ill to the
appearance. Also. garrtt.
coursed ru~1e
ANDbIe wall hJvlng approximately
le¥el Peds and ~rought at Intervals to
continuous levd courses.
random 3shLu
Ashlar IT13soory ~i1t In
discontinuous CO'Jrses.
~IU~ nipple .
Arucw wall pullt of S<iuared stones
of ~Iji.'~ sizes and coursed at rNt:ry
third 01" fourth stone.
co~ashl.1r
Ashlar lI"'.Jsonry 1xI1/tof stones having
the S4m(: h&-9ht within e3ch course.
~t ~h course varying In height.
cyclopean
Formed wt'...n I3rga.lrre~ulAr pcd:s of
stones fitted closely together I'rithout
the use of mortar.
proken nngework
Ashbr masCJnry laid In hortzont..ol courses
of t'arylng heights•.anyone of ~-hlch m3J'
be I1ro(en at tntuvals Into two cr more
COOr5es.
ru,tk:a~n
AshlAr masonry having the v1s1~~ faces of
the dressea s'".ones raised or otr~rwlse
contrasted with the horlzont.l. nd usua1ly
thevertlalJolnts. which may ~ r.i~.
chamfered. or beveled.
rust«;joiITt
A mortarJolnt paween stones ~sed
from the adjxent. faces petween $<ink-en
drafts or Devels.
ru,tk
H3v1ng rougn.lrregubr sumces.aoJ
sunken or~JoInts.
irrt:erlocki~loint
AJelnt In ashlar masonry made Py fitting
aprojection on OI1e stone Into a routed
groove on the next stone.
"-- cramp Iron
An Iron bar or rod with pent ends for haldlnq
together stone mason ry units.
; I
II
F"
I
!
l
r
r
r-
I
r
r
r
I
i
f'"
l
corb~ gable
Agabie havl~ corl:>iesteps.
i?o5S
Astone roughly formed and set In
:~-.~ COrPle5Up
. Any of aseries of steplike projections
that terminate amasonry !!able al10ve
the surface of the roof. Also called
crowsttp.
saddlejoint .
Avertlcaljotnt raised arovethe level of
the washes 011 astone sill or copln!! to
prevent the penetration of rainwater. 7
/
pl3ce for 13terC3rv1n9. --- .------- -.-.-.---. _____ ~'_'.',}-'"-'-""""'_____
t.1~ in
To f.lsten abe:lmor stone Dy one
erJ.
~m~ .--.-..-.---..---.....--...-------.....-______~,+,"~'-,,~*--_~
The part of astof1e or urick
projectlng from awall.
1111el - .----.--.. --. -- -.--. -.-...-- ................--.. --.--:
AR".oIdir19 or drlpstDne OIer adoor or
WlnJo,.,., esp. one that e:t:tends
horIz.olTtaIly 3cress the t.op of the
openli3 anavertlc311y downward for a
short distance at the sides.
j.1m~~ .....----..----.-..-..-.......-- ..-...-
A stone. or one at the stones. formln!!
the9mb of 3 door or window opening.
embr3~ure -'"
A spb)ed enlargement of adoor or
window opening toward the Inner face of
3 '<311.
MASONRY
capstone
Aftnlshl~ stone of3 structure. 3S a
copestone.
-----------------------..-.- knuler
Any of the stones havln!! aslopIng Up for
supportln!! or formln!! agable copl"4- Also
called skew.
---........- .... skewcorl1el
Astone OIerhanglng at the foot of. ~at>1e
cOf'l~. often servIng as astop for tzie
gutters or wall cornices.
,...----------...-.-... copestone
Astone farming acoping.
~ dripstone
A5tOM moi01ng used as adrip. as or. a
cornice over awIndow or doorway.
stringccu~
A horizontal course of brk;k or stor1e ftush
with or projecting l>eyond the face ofa
UuI~lng. oft:en mok:led to rna~" ditislon In
tM wall Alsa called l7elt COU~
corc:IDn
Astringcourse. esp. one ""vl!!g lIttle ex- no
prcJxtlon.
~171e
Acourse or Ir.lnd.esp. ofII13sonry. !i3Y1"4 a
distinctive form or posltlon.
wztertable
Aprojutlng stringcourse. mold1~ or led!!e
placed 50 as to divert I"2lnwaterfrocn 2
UuI~lng.
sc.arcement
Afooting or ledge formed Dy asetv.;clln •
theface ofa waII.
------.. ---- ....- plinth
Acontinuous. usually projecting CO.ir5e of
5tof1es forming the base orfouna.;tlon ofa
wall Also called plinth COurse.
159
MASONRY
concrete nuSOM)' unit concr~ plock
Aprecast msonI')' unit'Of portl3nd
ca-oent. flnc ~te. and water.
II'IOUed Into 't'3rIous shapes.
Ahcllcw or solid COI"~rete
partltton ~ock
Aconcrete ~5Oru)' unit used In
con~ non-wd-l1earing walls.
u~ ~ arlCmlnal thld:ness of 4
or61n. (102 or152 11m).
bull~~
Acon~ ll"t;lsonry unit having one or
Ir10re rounded ~ corners.
copi~~
A~ ~ ~sonry unit useaIn
con~"4 PIe top or finishing
course ola~ry 11311.
Ac.oncre1e NSOflry unit having an end
sbt or ~ ta rt.ee!ve theJ3mbofa
dtxr or wfndcw frJme.. Also calledJ.aml7
£,lock.
~11 ~Iocl:
rne2
.."
.~.c;.
•.,--,
.....••..• :
~ - " .
~ '.'. . .. '
~
~
Asofld coocrete ~sonry unit having a
~~~~~-~:~
~~.
cap 1110a
Aconcrete rn<l5Or.ty unit having asolid
tap for :ISe as aPQ~ surUce In the
flnlsh~ course ofafourWtIon wall.
Alsoca~~~k.
control-jornt ~k •..__._._...__._.•__ ..__..•..-
Arry ofvarious concrete masonry units <i'-..
<z.>
<::S
used In ~ avertbl control ~
joint.
~nd-~m!M.ocl: _......_ ...........
ACOI"ICrCte INsonty unit used In 
con5troctl~a!:ocrld ~m.~nga t'--
depressed sectIo!Iln which reinforcing ' ..:::.,:';:::.
stul can be ~ for emUedment In :,::::...." ....
grout. . .
~nd~m
Amasonrycourse groutea and
relnforuJ to senoe as a~e3m. a
horizontal tie, or a~rlng course for
struc~1 mem!:>ers,
160
open-end 11lock
Aconcrete masonry unit having one
end open In which vertical ~I
reinforcement can be placed for
embedmeirt In grout.
IIntel17lock
Aconarete masonry unit used In
constructing a lintelorbona l:Ieam.
having aU·shaped section In whlGh
reinforcing ste.el can !:Ieplaced for
em~ment In grout.
~b~k
Aconcrete masonry unit having a
portion ofone fa~ shell removed to
receive he3ders In a!:Ionded masonry
wall
~und-al7so",ing ma,onry unit
Aconcrete masonry unit having asolid
top andaslotted fa~ shell. ana
sometimes aflbrous filler. for
Increased sounaal:lsorptlon.
,'umpvlock
Aconcrete masonry unit having an
Irregularface and surface texture
caused I:Iy the settlement ofawet fl1fx
during curing.
'plit-me VIock
Aconcrete masonfj' unit. split
lengthwise I7y amachine aftercuring to
produce a rough. fractured face
texture.
~
" ..'~-'" .-... ~:!:c~sonryunit having a
~"" specialceramic. glazed. orpohshed
face.
. ~.<.~. ~~~concretemasonryunlts
. ." having oneor morevertical grooves
. . which slmul3te rakedJoints.
~
'~Mw17lock
~ Arry ofvarious concrete mason!)' units
~ : :-- :: ~:::~~ with apattern of
ureenl7lock
~
. Aconcrete masonry unit useaesp.ln
~ tropicalarc;hltecture. having a
~
h. decorative pattern of transverse
~ openings for admitting airand
l--:: excItuling sunlight.
~
concreU 17rick
Asolidrectangular concrete masonry
unit. usually not larger than 4 x4 x12 In.
(102 x102x:305 mm).
,and-lime vrick
Ahard.llght·coIored brick made by
molding amixtureofdamp sand and
slaked nme under high pressure and
curing In asteam oven.
50lia masonry unit
Amasonry unit having anet cross·
sectional are3ln arry plane paranel to
the Dearing surface that Is 75%; or more
of the gross cross-sectionaf area
me3sured In the same plane.
hollow masonry unit
Amasonry unit havl"9 anetcross·
sectional area In arry plane paraUel to
the bearing surface less than 151 of
the gross cross·sectional area
measured In the same plane.
gross cross-5Utionaf are.1
The total cross'sectloll4l are; of;::
hollow masonry unit perpendicular to
the direction of loading. Including
cellular3na reentrant spaces. except
when these spaces are to !:Ie occupied
by portions of3djacent masonry.
net cross-sectional area
The gross cross-sectlon.d area ofa
hollow masonry unit minus the area of
ungrouted COres ofcellular spaces.
~uilalent thickness
The thickness that would be obtained if
the amountofconcrete contalned In 3
hollow masonry unit wert: recast
without arry cellular spaces. used esp.
to detennlne the flre reslstan~ ofa
wan constructed with such units.
ab~rption
The wtlghtofwatera~ bya
concretemasonry unit when Immersed
In water. expresse.:lln pounds of water
per cul1lc foot ofconcrete.
Grade N
Agrade of loaa·l:Ie3rlng concrete
masonry unit sultal1le for gener31 use.
as In exterior walls a!:lo.'e and l7e1ow
grade.
GradeS
Agrac:le of loaa·l:Ie3rlng concrete
masonry unit limited to use al1o.'e
grade. In exttrIor walls with weather·
protective coaungs. or In walls not
exposed to the weather.
Type I
Aconcrete masonry UI1!t manufactured
toaspecified hmltof moisturecootent
In order to minimize the drying
shrinuge thatun cause cracking.
Typ~1J
Aconcrete masonry unit not
manufactured to aspeclfled hmlt
molsturecontent.
normal-weight Mock
Aconcrete masonry unit made
with sand. gravel. orotherdense
aggregateand weighing fI'IOrtl than
125 pcf(2000 kglm3).
trghtwelght 17lock
Aconcrete masonry unit mac:le with
lightweight aggregate.as cinder or
expanded slag. and weighing less than
125 pcf (2000 ~glm~).
,urfau I10nalng
The bondingof aconcrete masonry wall
I7y stackl"9 the units without mortar
ana trowenng on astucco-II~~
compound of whIte portland cement
and glass fiber.
1
i
...-J
j
J
I
I I
L
·L
L
L
L
L
I
l
(
"--
..!'...~
~nd
The a~ force Py which atoms.lans.
ergroups ofa~s are bound together In a
molecule oraystall1ne structure. Also
called chemic.11 Pond.
ionic pOM ----.....--.............·······-i
Achemical rond characteristic ofsalts and
ceramic materbls. formed Py the complete
transfer ofone or more electronsfrom ooe
kind of Ian to another. Also called
electrovalent Pond.
p05itive ion
Aposltlvely charged Ian created by
electron loss. Also called crtIon.
negative ian ~_i
matter
That which oc<:upleS space. Can ~ perceIVed by
the senses. and constitutes the su!7s~nce of a
physical roay.
....... shell _.--.............. --....---....-.......
Any of up to seven SPherlcal@'
surfaces containing the Q
or'Plts of electrons of .... •
approximately equal energy .. /
al10ut the nucleus of an ".
atom. ~.... -""" :
electron --_.---.._..... --.i...-
Afundamental 0 0
MATERIAL
Matter havin~ unique quarcti~
I7y which it m3y ~e C3tegoriud.
rtom
The smallest unit of an element;hat
can exlst either alone orIn
com!?in3tlon. conslstlng ofa nucbls
of neutrons and pw.cns surrour.ded
by OM or more electrcnsbound to
the nucleus by electrical attraC"..lcxt.
ion
Anegatlvely charged Jon createa by
electl:ongain. Also called anion.
valence
partlc'.e of matter • •
havl~ anegative ..../0 •• 0 • 0
charge. /' ..r o. .~. atomic numper
An electrically charged atom orgroup
of;rt.oms formed Py the loss orgaIn of
one or more electrons.
A measure of the capacity ofan
atom orgroup to com~lne with
otheratoms orgroups, equal to the
num~er ofchemical bonds the atom
orgroup can form.
neutrOn _h_...__m
_ _ _• I The num~rofprotooslnthenocleus
Afunaamental partlcle ofan atom of agiven element. w!rich
having.r.ocharge. I equals the numPerof ~Iectrons
covaknt bond valence ekc'tron
i normally surrounding the nucleus.
proton .....----...---...: ~---'"-:,~--, Also caileJ proton numPer.
Apasttlvelycharged particle f6 element
A'chemlc3l rond formed by the
that Is afundamental ~
between two a~ . {f!f .~.
sh,rl''4
01
p''''oI_.s j 10 I
An electron located In the outer
shell ofan atom that can :Ie
transferred or shared In forming a
chemlcall10nd with another atom.
consUtuentof an atomic nucleI. (ARBON One of acl3ss ofsu~tdncesthzt
cannot Pe separated i:tto slmrer
su~t3nces Pychemlc31 means.
composed ofatoms h.tvlng an
identlcaf num!?erof protons II e3dI
nucle-JS.
Q(~!r H ®
~
.' ®
hydro¥" bond
·····BJ~
An ~r0st3UC bond retween an ...
electront9t!ve;rt.om and ;1 hydrogen atom'··..
amJy linked toanother electronegative .....
atom byaCOV3!ent bond.
molecule ----..--.......-----..----- ...-- ....:.
The smalbt partlGle ofasul>stance that
dlspbys aRor thech3r3Gter1st1c physlc3land
chemlc31 ~ of the su!?stance.
conslstlng ofone or more I1ke atoms In an
elanent. ortwoor more clifferent atoms In a
compound.
molecularweight
The average Weightof amolecule of an element
or compoundC<llcvbteJ as the sum ofthe
atomic we~ts ofthe molecuIe's constituent
41toms. Also.C31W formula w~ht.
mole
The molecubr weight ofasu!?stance expres~
In grams: gram 1I'IOIecufe. Also. mel.
inert g35 configuration
The sta~le configuration ofan
element in which the outer shells of
Its atoms orIonsarefilled with the
maximum num!?erofe!ec;tron pairs.
Nature maves;rt.oms ana Ions
toward thiS co~uratlon by
capturlng. surrenderlr.g. or sharing
e!ectrons with ne!ghUorlng atoms or
Ions In an effort to achieve a
relatively Inert state of low energy.
nol7legas
Any of the themlcally Inert
gaseous elements: hehum. neon.
argon. krypton. xenon. and radon.
Also called I~ g.Js.
periodic tap~
Atal;>ular arrangement of the
chemical elements In related
groups. formerly In theorderof
their atomic weights and now
according to their atomIc
numPers.•.•..._ ...
OO'frfl i group. eief11.(;t1ts
~cerbln
cluncterlstlc5 and
b<:h;veIn 3 s1mll3rm3nner
bea~ofthe way
eJ~ 3re3rnng~In
th~ ooters.l,elts.
~~~!7stance.as agas or IIq~Ud'~~rhaving neither Independent
that Is capal7le offlowing. yields sha~ norvolume. possessing
easily to pressure. and conforms perfect molecul3r mo!?1I1ty and the
to the sha~ ofIts container. tendency to expand Indeflnltely.
J?~/~
lc~ !-O)r~lk:I
CCndeJlse --...-..- ......... - ..- ....... "" '- ~.; partlcles.orptrslstence of
'-- ~ ..r-'..../~ firmness. coherence of
~
~"Y.'1 1./ M4~rhavlngrelatlve
!~:~:~;~ ......'.., eva'~rm/'/ /' ......~~.
orsolldstate. Tocbn~orconvertfroma r•...
: .. "1
~t of~ation liquid or solid Into avapor. I '. I
The heath~tedPya unit mass : I :
of gas at Its bolh~ point as It l . i
cooaenses to aIlquld. .' J ...,..,~......,.. ,/
heat ofvaporiutlon solidify ~........" .
The quantity of hat ~ulred to
convert aunit mass of liquid at Its To change or convert from a
bolJl~ point Into vapor at the same liquid or gas Into asolid.
temperature: equal to the heat of
condensatlofl. liquid
Matter dlstl~ulshed from the solki or
gaseous states by acharacteristic
readiness to flow. littleor no tendency
to disperse. and re13tlvely high
IncompreSSibility
heat of solidification
The hei1t liberated by aunit maSS of 11q~ld
at its freezing pollTt as It solidifies.
h~toffu5ron
The quantity of heat required to
convert aunit mass of a solid at Its
meltln~ point Into aIlquki at the same
temperature: equal to the heat of
solidrxatlon.
,
12
,
....... atomk:; weight
The ave~e weight of;in atom ofan
element lr.IseJ on V:z the welglrt of
the carWn·12 atom.
~- met.1nic bond
. AchemlCJl bond char:tcteristlc of
metals. produced by t."e sharfng cf
valenu electrons wh;Ch rnovefreeiy
throllilh the lattice of.a usually
j stab-le crystaHlnc: stn.'Cture.
g
':9. '9
r.'" ..
... + .. -+
e
Ltttiu
AreguIarpattern of !sc1ted poin:".s
In space showln~ the '.xatlon of
atomS. Ions. or molecu!.es In a
crjstal:lre solid.
cry,~1
Asolid having areguLJr'y repeatl~
Intern..I sCructure of a';.Oms. Ions. IX'
moiecub and enclOStd '7j
symmetr.cally arrange..! pi3ne
surface:;.
amorphous
Not cryS1:Jlline In stc.::Jre
161
G
MATERIAL
property
Nt essentbl or d'lStlnctNc attr!l?ute or
qualtty ~ir.g spectfbllyln the
consmutJonof. orfounJ n.the
~ofathl"'4-
medlaniut pro~
Anyofthe ~l pro~s of a
IT13terial M exhWlt arespon~ to
applied forces.
tension
Theact ofstretchlr.g or stJ~ of being
pulWapart. ~lt~ In tM elongatlcn
of.n~stlc ~.
strength
The capauillty of aIT13terial to resist
the forces Im~ on It.esp. the
at>itl-ty to sust.ln ah~h stress
without yIeIdlng or rupturing.
~trength ofIt1&rials
The stuayof the relationship l?etween
applied external forus and the
In~maIeffects produced by the~
forus In a body.
te~~ -"---"-"'-'---"-'---
An app&.d force prod~ or ~dln.g
to procItUtenslon In anebstlc rody.
axbIforce
Atensile orcomp-esslveforu actlng
~ the ~udIn.I12XIs ofa
~r21 1!IemM-and at the centroid
of thecross ~. proJucl14 ax131
stress wtthcu~ bal.dlng. torsion. or .
shear.A!sac;3~nUlload. -....--- .-----.---...:
axbf~
-me,tensileor ~sMs stress that
~ to res!s; 311 mal force.
~ fa ~ I?rNI fa anJ uniformly
~ M;f'~ area ofthe cross
sectSon. !Jscc.albi direct 5tress.
ftOnft.11 ~.
ccmprt5*"
The act of shortenin.g or st4~ of Peing
pushed~. resu~ in a
reduction In size or vo/ur.e ofan elastic
~-
ccmp~fQru --...-.. -----....-- ...
An applied force proa~ or t.endln.g
to pt'OdtU com~ In an ebstlc
~-
ec.untric farce
AfOfU applle& pmf1eI to the
IonglW4inafax15ofa~r21
lnen-Wer M ~ to the centroid of the
cross sutlon. prcJucfll4 ~nd1ng and
311 uneven c:ilstrit>ut-lon ofstre5~s In
~ section. A!saC41led ecuntric
load.
162
"-. i .---- Exhllntlng the same physical properties
r::: «1'::0'1 l~troplc
~ ..' along all axes.
k:."" • .:.I
J, anl~otropjc
Having different physical propertles
~"" ~ along different axes. as woodand other
-'" .-=" fl17rous materials.
/'
~ "'"::d
stress
~ 1ntet1131 resistance or reactlon of
an eiastlc rody to extemal forces
applled to It. c'lU31 to the ratio offorce f
to area and expressed In units of force I
per unit ofcross-sectional area. Also I
.called unit stress. I
u~~~~ !
The ax13l5treSs that develops at the I
cross section ofan elastic body to :
resist the coll1near tensile forces I
::~:;:a~~~..____._.__..__._J-: __
The ~atlon of aunit length of T
mattrlal produced by atensile stress.
&tr.lin e
The deformation of.11cdy under tM
action of an applied fo~. Strain Is a
dimensionless quantity. equal to the
rati9ofthechan~ln s!uorsha~ to
the origll12l sizeor shape ofa stressed
element.
Young', modulu,
Acoefficient ofelasticityof amattr131.
expres$lr.g the ratio of longltudlnJI
stress to the correspondlng
Iongltudln.alstraln C3usea by the
stress.
',. Poi,scn',ratlo
The ratlo of lateral strain to the
corres?O"dll19 longitudinal strain In an
elastic body unaerIongltudlnalstre5s.
I
f
I
I
- comp~5ive ~tress :
The axfaIstress that develops at the l
cross ~n of an ebstlc body to I
resist the collinearcompressive forces I
tend1n~ to shorten It. 11
comp~~lvutrarn -----....-..-- ~
The sho~nl"9 ofaunit length of :r-
material produced by acompressIve
stress.
tensile test
Atest for determining the ut:havlor of
amaterial under-axial tension. In which
aspecimen Is grlppea at roth ends and
pulled apart until rupture occurs: the
most common test for structural
materials.
tensile strength
The resistance of amaterial to
longitudinal stress, ~surea II)' the
minimum amount of longitudinal s"tfess
reqUired to rupture the material .
,.elong.nfon
: A measureof the ductmty ofa
material. expresseJ as the percewge
Increase In length of atest specimen
after failure In a~nsfle test.
~uctlon ofarea
Ameasure of theductlltty ofa
ma~rial. expressed as the peruntage
decrease In cross-sectional area of a
test specimen after rupturing In a
tensile test.
compre5sion ust
Atest for determining the ~ of
amatulal under axial compressk:ln. In
which aspecimen Is crushed untU
fracture or dlslntegr.ltlon occurs. The
ccmpressk:ln test Is used fer tm~
materials slnu their lowtensSe
strc"9th Is dIfflcult to IT1e2sure
accur.rtely.
,train gauge
An Instrumentfor measurl"9 mInute
deformations In atest spec~
causea by tenslon. compression.
venJlng. or twisting. Also calf&j
exUnscmeW.
I1ulk modulu,
Acoefficient of elasticityof amaterial.
t:tpresslng the r.;tlu ~etween a
pressure and the corresponding
fractional Change In volume produced.
conipr~~j:7jJity
The reciprocal of Pun.: modulus. ~ual to
the ratio of tM fractfooal change In
volume to the pressure applied to a
substance.
l
u
i
U
6-
r
f
~! '
r
r-
shearing force
An Internalforce tangential to the
surfau on which It acts. developed ~ a
rolly In response toa shearforce. For
~
equihbrlumofa rectangularetement
subject 1:<> shear. shearing In avertical
~~:,,~~~:,~,~'v~!:rlt--- ..,.[L
.....-...-- ..--_......
..._......_
....... shearing s~s
The force per unit area developed alang a 1
~Ion of an elastic roayto resist ashear
f~. Also called shear stress•
....1 t.an~entlal stress.
t-....-~ shearing str2in .-..' shear modulus
I The lateral deformation developed In 3,body Acoefficient of elasticity ofarttrterl3I,
In response to shearing stresses, defined 'I expressing the ratio between she3ring
as the tangent of the skew angle of t.~ stress and the corresponcl1ng shearing
deformation. Sinu this sk~ angle is I strain produced by the stress. Also
always very small, shearing strain Is aptJre called rtWdulus ofri9laity. modulus
numuervery nearly equal to the sl:e.w aM.3te , oftcrslon.
In radians. Also called shear strain. ~
:-...-...-....- .............-..~ coml?lned stre"es
v Aset oftensile and compressive strts~s
I
res:Jitlng from the superposition of ~l
and bending stresses In the cross ~n
of astructural member. acting In the s.rr.e
+ direction and equal at any point to t·r.elr
3lqebraic sum.
MATERIAL
shear
The lateral defonnatlon prOduua ~ abody
by an external force thatcau5es ex-.epartof
the body 1:<> sltJe relative to an ulJxtnt
part In adirection E?rallel to their pbne of_
co(rt~.£t.
-..~ shearforce
An applied force producing or talding to
produce shear In aPolly.
Pending
The !?owlng ofan elastic Dody as an extern..1
force Is appl1ed transvtrSeiyto It.5 ~ngth.
~Ing Is the structunl mecfuni:sm that
er1"!?lesaload to l:re ch3nneled L, adlrectlor.
perpenalGular to Itsapplication.
I
"._.........._..._
..- tra~ver5efo~
-
-
t!tr~, concentration
An Ircrease In stress that develops at
dlsccntlnultles or flaws In amaterl31.
Stress concentrations In !1r1ttle rtt3terlals
dev&.op crads which propagate unUl failure.
In ductile materials. stress concentrations
dev&.op local deformations which serve to
rwlstrlbute and relieve the stresses.
~
Aforce applled perpendicular to t.~
length of astruct!Jral rnemPer.
producln~ benolng and shear. ,AJ.;,o
called transverse load.
•5u ~m forrendlng ~.
~~::~""
tor,ue
The moment of aforce system Dt3t causes
or tends to cause rotation or torsion.
tor,ion
The twisting of an elastic rodyaPou't Its
Ioo~Jtudlrt31 axis caused by two tqU31 and
opposftetorques, producing shear'~
stresses In the Polly.
163
MATERIAL
~aindU~ram
ApPIrk: rtp~ of the
reb~ ~~ unit stress values .
and the ClrTtSpondll14-l1nlt strains for .
a~ltiIte~l
elJstic~ •.-.-.-.----------- .....----
The ra~ of unit stttsses for which a
materUIe:xnIDItS el3stlc deformation.
t..-.· pl.1stic r.1nge :.--.- strain-lurdenin~ range
: The range ofunit stresses for which a : The range of unit stresses for which a
ddonn.rt:ion
Awl'I¥kI the shape ordlmensions
eXa~ ~ structure resuftln~ from
stress.
_
:.~:: m_ater131 exhl!:>its plastic deformatl.on. 1 material exhl!:>lts Increased stength with
: some 1055 of ductility.
~~~====~~~~~==~~~~~~~~~
1'1 -----v!'-J V-
I i
eU~defo~n
AtempcratJ' change In the dimensions
IX ~pecia roayproduced ~ a
stress Ic:s6 than the elastic hmlt of
them~l
I I
I I
I I
:
I
I
I
I
I
I
I
I
I
I
pl.1st!c defortn.1tlon
I
I
I
I
I
A~nent chan~ In the dimensions or
shape ofabody produced byII stress greater
than the elastic hmltofthe materl.al.
remalnl~ rlgJa under stresses of less than a
certaIn Intensity.The molecularrorldsIn a
material that exhlults plastic Ue/uv1or reform
a&r Pelng stressed !:>eyond the ~Ic hmlt.
The material thus retains ameasure of
reserve stre~th. Also caltea plastJe flow.
r-- ultJnuu strength
I7ritt1~s ---.........-----.---............ -....---r·
Theprop:rlY of 3 rn4U:r1aI that causes I
~ to rupWe suddenly under stress i
!'flth nmeevl.:kntkfonnatlon. Since I
~ The maximum tensile. compressive. or
shearing stress amaterial can 1e
expected to ~ear without rupturing or
fracturing. Alsa c311&1 uftint.1U stress.
PrittIe rtr'~1s lack the plastic I yield point ~------=-=---<:".-..-=
~of ductile rruterials. they can I
;l¥e no ~nee W<1rnl~ ofImpending :
~~~ I
~lllmit ~-..---........-----..- "-'.
The stress PeyoM which amaried
Increase In strain occurs In a~terla!
without aconcurrent Increase In stress.
Many materialsdo not have clearfy
deflnedyield points. For these
materials, atheoretlcalyIeki strength Is
calculated from the sUess-strain curve.
The stress ~ which the ratio =- ...
OI'stresstc strain fi:u material S+--..:.,:H-~+--=========-----------7r
~1on¥rrt:lT'..lns~nt. ~
~
fracUJre --- ..
The ~real:lng of 3 material resulting from
the rupturing of Its atomic I10nds when
stressed Peyond Its ultlmate strength.
U)
'.~-~ eb5tlc limit ......--...............-.......- auctility
A~so-e of aIl13te~rs
.-esis14~ ~ aef0r:n4t1on when
stresse.d ...ithln I;s elastic range.
,nowm,~" -............. -----
The maxfmum stress that can !:>e
appl1ed ~ amaterial without
causing permanent deformation.
.-.----------.----....(JD
STRAIN(In/m.)
The maxirJJm unit ~s pennlt~
fc.- a~11n the deslgn of 2
~ ~.1ISU311y afractlon
OI'~ ~r5e!astlc hmit.yleki .....- ebstklty L modulU5 ofe~5ticfty
S"~ c.- u/tlrrgte 5tl'ength. The The property ofa~terlal
~~ wesses for V3r1ous that enal?les Itto deform In
NteNls art: sp«if,eJ ~ Dulldlng response to an appll&l force
cedes. ~ SCodetIes. ana and to recover Its original size
t.ndct as:socI;rtlons. Pased on and shape upon retT'lOVlII of the
~s and II'Iethods of testl~ forc:e.
~~theAl!'erIcanSocIety jlll--.-
~T~ and M;terbls. Nso caltea
~ wnit ,~. woricln§ -
~ - --r-·t
)ield 5tre~ --.----- -----..--.......... "--'.• -- -- -- -- +--+---+--+--+
~ stres5 necessary ~ produce a
~ lInltl~ penNnent set In a
~terblll5Uafly O~ ofItsoriginal
~th M tested !n tension. Yield .
5trengti Is useJ to tkttrmlne. the limit
cf ttSefvi'.ess of amaterfal having a
~ defI;,~ y~1d p<)nt. Also called
proof str-ess.
__ jl._.[-
-+-f---4--- -( -+'-+--+--4
.--I·---l-'-1--cf------1
-------.--.--.--.... perm.1nentset
AC«fficJent ofelasticity oh material
expressing the ratio between aunit
stress and the correspondIng unit
straIn caused ~ the stress, as dertved
from Hooke's lawand ~tta I1y
the slopeofthestralght-bneportion of
the stress-straln dJa9ram. Also caltea
coefflcltnt ofelastlcity. ebstlc
modulus.
Juctl1e;nJtcugh
The Inelastic strain remaining In a
materIal aftercomplete release of the
stress producing the deformation.
164
The prcperty of3 material thot et1al11es It
to undergo plastic deformation after 1elng
stressed DeyOnd the elastic nmit and
before rupturl~. Ductility Is adeslralne
property of astructural material slna
plastic f,ehavlor Is OIn Indicator of reserve
strength and can ser;e 3S avisual W3mlng
ofImpending failure.
Hooke', L1w
The law statIng th3t the stress on • Dody
~Is directly proportional to t~ strain
produced. provldeJ the stress ekes not
exce&:f the elastic "mit ofthe mat.t:Nl
u>ughne55
The propertyofamaterl31 that enau!es It
to a~ energy Ddore rupturing.
rep~ try the area under the stress-
strain curve derived from atensIle test of
the material Ductile materials are tougher
than brittle materials.
l -
;
I
l .
i
1;-
I
If
L
J
L
J
l .
i.':
.~
mo~ture expansion
An Inc~se ill the IxIIk of a IT13terIaI
caused ~ the a!1sorptloo of water or
)¥;l~r V6por. Also C311eJ Uulklng.
aas-orptlon
The adhesion of 3 thin, condensed layer
of gas, hquld, ordissolved substance to
the surface r:iasolid, usually ~lthout
~rtj physical orchemical change In the
ITlJterial
wutherometer
Adevice for~Inl~ the weather
re5lstanceofa /113~rlJll1y sul7jectlng a
L~ s~rn.en to accemtea
~t~.
~leraW weathering
Aproc.ess for exposing amaterlJl to
uftmlolet r7yS, Vtdtel' sprays. alid
he;3tln~ elements In order to simulate
the 1ong-tm1effectsof sun. rain, and
temperature ch4nge5. Also C3l1ed
uulerateJ ~Ing.
etr.ain-rate effea
~ trlttle behavioran Increased rate
of load application can cause In a
nonrully d~ IT13terlal
tempent4reeffect
& ImttIe ~vIor low temperatures
can C3use In anormally ductile
ITt3terial
~ relaatlon ---.----- ----- -.-~,
;'-" coefficient ofexpansion
: The fractional change In length, area, or
volume of amaterial per unit change In
temperature at agiven constant
pressure. Also called expanslvtty.
~~------~--~--------------~-~Ir
[ _J I
MATERIAL
dimensional stainUty
The property ofamaterial that enables It
to IT13lntaln Its o~lnal shape and
dimensions when subjected to changes In
temperature Orhumidity.
kinetic theory ofheat
The theory that the temperature ofa
substance Increases with an Increase of the
average kinetiC energy ofIts particles when
heat Is absorbecI.
~- thermal expansion .
An Increase In ~gth. area, orvolume of a
I
: - 4~' material caused I1y arise In temperat.Ure.
~ thermal contraction
~ AdecreaseIn length. area, or~meOfa
~ =====-================ material caused I1y adrop In temperature.
. '
i___.____. thermal5tress
abrasion resistance
The property ofamattNl that enables It
to resist ~ng worn away I1yfrlctlon when
rul7l1ed wft.h anotherobject. Amslon
resl5tanee Is a mea5U~ oftoughness
rather than hardness and Is anecessary
qualJty of flooring materials and surface
ftnlshes.
.jIbrasion-~isbnu inkx
Ame3sure of the abrasion reslst3nce of
a1TlJterl31. commanly expressed as tM
depth of ~etratlon or material loss
after testir.g with awe'9h~ abrasive
wheel for aspeclfted number ofcycles.
The tensile orCOOlpresslve stress
aeveloped In amaterial constrained against
thermal expansion orcontraction.
thermal shock
The sudden stress arapid change In
temperature can produceIn amaterial
h.ardnes~
The property ofamaterial that enaUles
It to resist def0rtn3tlon ~ compression,
Indentation.or penetration.
Moh5'~le
Ascale for measuring the hardness ofa
mineraI. Its degrees, In Increasing hardness,
(lre: I, talc; 2.l:IYPsum; 3, calcite; 4, flUOrite;
5, apatite; 6, feldspar. 7, quartz; a.top3Z: 9,
sapphire; la, diamond.
5rinefl numl1er
Ameasure of the hardness ofa rruterl3l
determined ~ pressl"9 astandard stu!
Inllinta atest plea using astandard force
and dlvldlng the load by the area of
Indentation.The higher the numb-er. the
harder the material.
Rockwell number
The tlme-~nt decreaseIn -.'-. ~-+-7'1i--+--+--!-+--l--!---1
btigu~
The l'/e3i:ening orfallure ofaIT13ter13l
at astress l7efow the elastic limit
when sul7jected to arepeated series
ofstre~5.
Ameasure of the hardness of amaterial.
determined ~ Indenting atest piece with a
conoidal diamond Indenter, or with a
standard steellr.lll. undertwo sucusslve
loads and measuring the net Increase In
depth of the Impressions: the higherthe
numb-er, the harder the material.
stress In 3 COI'Istralned material
under .. const3nt load.
creep •.----.--------.--.-.-.....--.--.,.
The !r.ldual and permanent ". h-+!---...-!c:.....+
.tkformatlon ofaPody produced by a
continued appllcatlofl of stress or
prolonged exposure to heat. Cretp
deflection In aconcrete structure
continues !:NeT time and can b-e
s~ntflcant~ ¥e3ter than the Initial
elastic def'utlon.
i
--;
btigu~Jjmit
The IT13xlmum stress to which a
IT13terial can be subJectecl for an
Indeflnlte number ofcycles wtthaut
failing.
fatigue r.atio
the-ratio b-etween the fatigue limit
and the tensile strength of amaterial.
Also called endurance ratJo.
Vickers number
Ameasure ofthe hardness of amaterial.
aetermlned ~ Indenting atest piece with
the point of adiamond using aknown force
and dividing the load ~ the surface area of
Indentation: the higher the numl7er, the
harder the material.
165
MEASURE
A unit or stand.1rd of measurement
used tc ~scertafn the dimensions,
,uantlty, or capacity ofsomething.
metric 5ymnt
AkcJm31 system of weights ana.
~res, adopted flrst In France I7ut
now wldesprtad and universally used In
~,
InUrn.rtlonaISystem ofUnits
An In~ally aa;epted system of
c.ofIertnt physbl units,using the
lneter. klqram. second.ampere. kelvin.
..Mc.nJeb as W InsIc units ofthe
fuAda~ quantltles of length.
IN~. tlIM. electric current.
~~. and luminous intensity.
~
Tht~of anythl~ measured
along Its ~reatest dimension.
. ~W1re mu,ure
Aun~orS'J'5temof units for
JI"eaS(J~~. derived from units
rimr~sure.
a~
A~lTtttatIve mt2sureofapiane
or ~ surf.Ju.
cuWc 1I1a$UI"e
AunItorS'J'Stemof unitsfor
~ ro/ume OI'c.paclty.
kriYed froIn unitsofhne.rmeasure.
vol&m'le
The sb:e orextent ofathree·
dlmensbt31 objector region ofspace,
IrUSUred III cuPic ulWts.
166
conversion b~le
A t:al7ul3r arrangement of the equivalent
values ofthe weight or measure units of
different systems.
51 unit
One of the uasle units of the
IntematlonalSystem of Units.
meter •......;
The I7asle unitoflength In the metric
system. equivalent to '39:37Inches,
originallydefined as one ten·millionth of
the dlst3neefrom the ~uator to the pole
me3sureaon the merldbn, bUras the
distance IIctween twonnes on aplatinum·
Irldlum I:r.irpreserved at theInt:.em3tlonaI
Bureau of WeI9htslina Measures ne3r
Parls. ananow a51/2.99,972.45a of the
distance I19httravels In avacuum In one
second. APIn-.: m
kilometer
A un~ of length linadlstance cq,ual to
1000 meters anJ equivalent to32Ml..8
sea'"
Asystem of ordered mari:sl3k:.f down
at known Intemls alid used as a
stanaard reference In measuring.
1
·-cemmeter
Ametric unltof length equal to 1/100 of
arneteror0.39:37 Inch. The use of the
centimeter Is not recommended for use
In construction. AuPr.: em
.• mnlirneter
Ametric unit of length equal to
1/1000 ofameter or 0.03937 of an Inch.
APln-.:mm
micron
The millionth part ofameter. Also
foot
Aunit of length originally derived from
the length of the human foot. divided
Into 12 Inches and equal to 304..8
millimeters. A!7~.: ft.
inch
Aunit of length, 'filth of afoot,
equivalent to 25.41T1I1nmeters.A!7ur.: In.
mil
Aunit of length equat to OOOfofan
Inch or 0.0254 mm, used In measuring
the dl3meterof wires and the
thlcl:ness ofvtfy thin shut mat.erl3ls.
yara
Aunit of length equal to 3feet or:36
Inches, and equivalent to 0.9144 meter.
AIIPr.:yd.
roa
Aunit of length equal to 51
hyaras or
16'/2 feet. and equivalent to 5.029
meters.
eJlled mIcromeUr'. S:imPol mu, ~ 1mile
Aunit of distance on ~na equal to
5200 feet or1760 yards. and equivalent
..................._....... to 1.609km. Also ~11ed ~t..t"Wte mile.
AI7W.:ml
:.._...... n~utic;!1 mae
1 Aunit of distance used In sea or air
!......O
..21 milo. Al!>d.. ···-i
r------------------------~~X navlgatlon. ~ual to 1.852 kilometers or
arout6,076 feet. Also eJlled aIr mite.
are
A metric unitofarea equal to !fIOO of a
hectare. 100 square meters, or 119.6
5'1ual'ej'3rds.APln-.:a ......._.........................
hect.<lre _................._.........................
A metric unit ofarea equal to 10,000
squart meters or 2.47acres, Auk: ha
liter
Ametric unitofeJpaclty equal to
VIOOD ofacuPlc meteror 61.02 cullie
Inches. AUIn-.: L --"1
.. ure
,---r-~~~~~:f_<~*~~ Aunit of land are3 equal to1J6-4-0ofa
square mile, 4640 !Xtuareyards. 43,560
square fU't. or 4047 square meters.
circulJr mil
Aunit used prlnclpallyfor measuring
the cross~' area of WIre, eqU31
to the area of acircle haVing adiameter
ofone mil
mmnitet' r....·..--~ fluid ounce
Ametric unit of eJp3clty equal to i Aunit of lIquld capacity equal to
1f.oooofa I1teror 0.0162 cullle Inch. : ta05 cuulc Inches or 29.573 mllhbters.
AIIPr.: ml i Aim.: ft 0%.
~: ...
.-'..• pint


~1
I
Aunit of liquid capacity equal to 16
fluid ounces, 28.875 cuPlc Inches, or
0.473 liter. Auvr.: pt.
}-.- quart
• I ! Aunit of liquid capaclty ~ual to two
: H 'j pints, 57.75 cubic litChes. or O.946Iit.er.
. }I / ' AbI:n-'lt
.L·/1-': - .
. : ~- gallon
. Aunit of liquid capJclty eqU31 to 4
.' quarts. 2.31 cubic IncMs. or 3..875 liters.
Al>br.: gal.
"·1.'
l 1
tJ
I
U
L·
6-
r..-
u
r
I
~
'T"
1
J
T
,1
]
J
&e115fty -.---- .--........-.... ..r
The mass of a substance per unit
volume.
I
spuific volume I
fre rulprocal of densfty. equal to .
vclume per untt mass. !
sp~ific gravity I
Th~ ~tlo of~ densttyof asubstanu i
to the density ofanother substJnu I
tdk~ a5 iI st3nd3rd, usually distilled
WJUr forBqulcls and solids, and air or I
loy,,",.,,,,rO",,,... L
pouna
Aunit of force equal to the we4!ht of a
~-poond rrt3SS underthe aculerat!cn
of gr.wlt)'. Ab~.: Ib
tI-eWtcn - ....-.--.-.----......- .. -..-.-... -.- ..-.-
w Sl untt of force equal to the force
rea.u1rea to accelerate amass ofOM
k~~m;it the rateofOl1e meter per
x:caM per ~nd_ Am.: H
k:J~r..m
Aunit of force and weight equal to the
",~~ht of, kl~ram INSS under the
xu!er3tlon of gravity. Abbr.: kg
~..mcsphcre
A unit of presSlJre equJI to the nonr.aI
pressure of ~ alr.;lt seJ level, equal to
1.0025 x105 Nfm2or about 14.7 pounds
~~ square !nch. Al?br.: atm.
st-ar..:Urd ztm05phtre --.-.-.--.
As~ndJrd unttof atmospr~ric
Fi!'Ssure. hJving avalue of 29.92 in.
(roo mm) of mercury.
r...mcsp+.erlc pres5Yre
The prts~ exerted by the earth's
':'ToO$p~.,t arry given point. usuar!y
~?resstd ttl terms ofthe height of a
roumn of ITlercury. Also called
~.1l"Ometric pressure. ~.- .. -- ----.
~.1l"Ometer
A~ Instrument fQr me.ilsuri~
Jtlr'-05phaic pres'5ure, used In we3ther
fC'1"X4stlr~ and dettrn1lnlng elevatloo.
kor~power
,A, 'Jntt of power equal to 550 foot·
,.:;,.;nds per secOM or 745.7 watts
,l~.:hp
mecn.a niCAI equIvalent of heat
I"e number of units of iYQr'( or ener~
t:l.;31 to one unit of heat. as 7782 fe·lb.
A~:";h equ31s one Btu. or4.1858 Joules
"- ch eqJJls one C;Jlorl~
metric ton
gram
A metrlG unit of mass equal to '1'000
of akIlogram or 0.035 ounce. Al-lbr.: 9
MEASURE
mass
Ameasure of a body's inert13,·as
determined by the quantity of materta!
It ccntalns and Its weight In afteki of
constant gravitational accelemlon.
AUPr.:M
Aunit of mass equal to 1.000kilograms
and eqUivalent to 2.204.62 avoirdupois
pounds. Also calted tenne. Al-lk m.t.
/". kilogram
:' The base 51 unit of mass, equal to the
mass of a platinum-Iridium cylInder
kept at the International Bureau of
Weights and Measures ne3r Paris;
equivalent to 2.205 avoirdupois pounds.
Abk:kg .
pound -------
AunitofWeight equal to 16 ounces and
equlv3lent to 0.453 kg. Abbr.; IP.
kip
Aunitofweight equal to 1000 pounds
or453.6 kg.
ton
Auntt of weight equal to 2,000 pounds
or0.907 metrlG ton. Also called short
ton.
Boyle's law
The principle that, at re13tlveiy low
~ssures and aflxt.d tempe~ture. the
pressure ofaccnflr.ed!deal gas varies
Inversely wtth Itsvelume.
ffi tld
...:
..,:~
O~
foot..pound
Aunit ofener!r{ equal to the won:dane
when the point ofappt1c3tlon of aforce
of one POUM mO'r'es through adlstance
of ont foot In the direction of tht force.
Al-lbr.: ft-!17
Inch-pauna
One-tweffth ofafoot·pound.
Abbr~ In-l17
...,"''''',
....'" 
(. 
1
:  ; / ,
,  ......- ,
 '( :
 I ............J
~............
power
The amount of wor'( dane orener!£{
transferred per unit of time, usually
expressed In watts cr horsepower.
work
The transfer of energy produced by the
motion of the point ofapplication of a
force. equal to the product of the
component of the force that acts In
the dlr~tlon of the motion of the point
of action and the distance thro~h
which the point of application moves.
weight
The graVitational force exerted by the
earth on aPody. equal to the mass of
the I-Iody tlmes the local acceleration of
gravity.
gravity
The central force ofattraction exerted
by the mass of the earth on a rody near
Its surface.
acUleration ofgravity
The acaleratlon ofafreeryfam~ body
In the earth's gravitational ftelJ, having
an approximate value at sealevel of 32
ft_ (9.8 m) per second per 5eCO!Id.
pressure
The force exerted over a surface,
me3sured as force perunit are3.
pascal
The Sl unit of pressure equal to one
newton persquar/: meter. Al?br~ Pol
energy
The won: aphyslc31 system Is capal7le
of doing In changl:1g from Its actual
state to aspeclfted reference st3te.
joule
The 51 unitof won: or energy equal to
the won: done when the point of
appllcatlof1 ofaforce ofone newton
moves through adistance of one meter
In the direction of the force:
approximately 0.7375 ft-Ib. Also called
newton-meter. Abbr.: J
watt-hour
Aunit of energy equal toener!r{ofone
watt operatl~ for one hour and
eqUivalent to 3.600Joules. Abbr.: Wh
167
MEMBRANE
Athin. flexible surface that carries
IoUs primarilythrough the
development oftensile stresses.
tent 5tructure
Amemt.rane structure pres~ssea by
externallyapplleJforces so th3tIt Is held
com~ taut 1ltl00r all anticipated
load conditions. fo avoid extremely high
tenslleforus.lI mem~rane structure
sMuid W relatively sharp curvatures In
oppostte tArectb1s.
net 5tructure
Amemmnestructure havl~ a
surbceofcIo5eIyspaced caDies
InsWdofafa~ material.
pneum.atJc ~t:ncture
A mem~e structure that Is placed In
tension and sta/:IIIIzeJ by the pres~re
ofwnpressedair.
-=--===---==--:----
~ir-5upporUd structure
A pr.eUll13~ structure consisting of asingle
~ supported by an Internal air pressure
sUght.ly higher than no.-mal atmospheric
pressu~ and securely anchored and sealed
alo~ theperlrnet:ertc prevent Ieakln!3. AIr1od:s
art: l'eCulredatentrances to maintain the
tntern.JIairpressure.
Jlr-infUt.ed ,tructure
Apneunutlc structure supported by pressurized
air wtthln Inflated !1ullding elements. which are
shaped tocarry loads In atraditional manner.
whIle theenclosed volume of Dulldlng air remains
at normalatmospheric pressure. The tendency
for adouUle-meml1rane structure to bulge In the
middle Is restr.llnea byacompression rIng or I1y
Internal ties or tlaphragms.
168
reinforcing edge c.1P!e
Ac;o~ stlffenl~ thefru~s
of aprestresseJ memln'ane
stnJct<Jre.
cable loop
Areinforcing edqe C4b~ tied to
the m3st support of amembrane
structure.
~- distnlnItlon cap
 The pr03dened end of am.st Ofer
.... which apres~ memm~
... st.ructure Is stret.che<i
clible-restrolinea pneumatic ,truct.<Jre
An air-supported structure that uses anet of
caUies placed In tension by the InfIa~~ foru to
restrain the memDranefrom developing Its
naturallnfbted proflk:.
.
L
u
u
u
'.
ingot
ArNSS of metal cast Into aconvenlen!
sha~ for stange or tnnsportatlori
Wfore further processing.
Hank
Apiece of metal ready to De drawn.
pressed. or machined Into aflnlshea
object.
bloom
A1mof steel reaucea from an In!lot to
dlmenslons suItable for further roll1ng.
blooming mill
Amill for roll1ng Ingots Into blooms.
billet
Anarrow. ~enerally square. barof steel,
forgea or hot-rolled from an In!lot or bloom.
~---------------------. hot-roll
~
Torollmetalata heathi~henou~hto
I r
· I I' .] permitreGrystalllzatlon.
'. i i hot-rolled finish
• . • The dark. oxidized. re~tlvely ro~h flnish
: - _. .. . . oi1talnea I1y roiling metal while hot.
S(;ale
An oxide occurring In aseaIy form on
the surf.lce of metal when brought to a
hl~h temperature.
mill s.cale
Aloose coatlng of Iron oxk:ie that forms
on Ir"Oi'1 or steel during hot-roiling. Mill
seale I~s the bond between steel
and co!'C~ In reinforced concrete or
In structural stulwon: enC4sed In
conc~forflre pro~lon.
hat trutment
The controlled heatl~ and coolln~ of a
metal to dcie'.op certain desirable
phys1c31 or mechanlc31 propertles.
annul
/-.-...-.-.-- die casting
../ The process or product offorcing
./ molten metal Into ametallk: mold under
hydraul1c pressure to give It a
particular shape odorm.
~5tlng
~
~~_ :...;:". ~::{:~~'~
;.!.:.~ Theprocess or product of forming a
.'::~. ::..'~ rrt3terlal Intoapartlcubrsha~e I1y
<: /~~;.;:.:::::~.' ::}. pouring It Into amold In aflukl state
~~ and letting It harden.
.---.- mold
o
Ahollow form or rrt3trlx for giving a
._.. p3rtlcll~r shape to something In 3
-1 molten orplastic stak
~ 'forge
To form metall1y heating and hammering.
cold-roll
To roll metal at atem~rature below
that at which recrystal/lzatlon occurs.
50 as to Increase Its unsile strength
.orImprove Its surface flnlsh.
mlllfinl.sh
The striated finish that cold roiling or
extruSion Imparts to ametal surfau.
METAL
Any ofa class of elementary
substances, as gold, siIYer, or
copper, all of which are crystalline
when 50lkf and many ofwhich are
ch3racterized by opacity, d~ctility,
conductivity, and aunique luster
when freshly fractured.
--- hat-working
The working ofa metal at a
temperature hIgh enough to permit
recrys~lIlzatlo11.
recrystallize
To acqUire anew granular structure
with new crystals because of pbstlc
deformatlon, as when won:ea after
being heated. 'l.
I
[
I 1
r r
I , I f , ,
I f I "
r -r fo
! T
I
i
I 1 t 
r r l T "I
I
i
1
I
+-+
I
--~-+.
1 1
f I
To rtmOfe Internal stress from metal or
glass I1y he3tlng to a tem~re below
that of recrjstalflzatlon and then gr3dually
coohng l1 al1quW or air. esp. to make the
materi31 more ductile.
---. extru~lon
-- cold-working
quench
To r<1pWly cool aheatai rnetall1y Immersion
In W7ter. esp. to Increase Its hardness.
temper
To stre~then Or tou~nen ametal by
rene;itlng at alower umperature and
slowty cooling the material.
str~, rel~ving
The tempering of anmal at atemperature
high enouqh to relk:ve residual stresses.
followed boy slow. untform coolln~.
g-e,ialUl,tress
Microscopic stress In ~ metal resulting
from nonuntform thermal changes. plastic
defornu Clan. or otner caus~ aside from
external forces or applications of heat.
c~~h4rde:n
To rruke the outside surface of an Iron·
bascQ alloy hard by carourizatlon and heat
treatrrent, leaving the interior tough and
duct,!,:
The process or product offorml"9 a
metal or plastic with adesired cross
section byforcing Itthrough ad'e with
iI pressure ram.
r---- cold-araw
.... To draw metal through asetofdies to
/ reduu Its cross-sectlonal area
.' without preheating. as In the
'il_~~~~rmiiiiiii~~-+ fal1r!catlon of wire or tubi"9'
iii drawnflnlsh
Asmooth. p~ht finish produced by
drawIng metal through ad1e.
','--...-.- ..----.. die
. Asteel block or plate h3vlng small
conical holes throu9h which metal or
plastic Is extruded or drawn for shaping
The working of metall1elow tne
temperature at which
~rystalllz3tlon occurs. as In
drawing. pressing. or stamping.
169
METAL
·fer~~1
A metJIcontalnl~ Iron as aprincipal
~.
&-oft
A1NJe.t~ auctlle. magnetlc. sl~er­
white ~ element from willch pig
Iron 2M steel are made. Syml1ot: Fe
ig IroA
~ruk!roll~tIs arawn from al;>{ast
furnace anacasiInto pigs I" preparation
for conversion Into castIron. wrought
Iron. or5teet
cast Iroa ~--- ----------------.----------------
An.ra. tnmle. nonmaIleaVIe Iron-l:rasea
alloy conto1lnlng 2.01 to 4.51 cart>on ana
0.51 to:51 slilcon. c~t In a sand mold ana
machined to make rnany pulldlng products.
steel -------------------------.--.--.----
Ar:y ofvarious lron-l:rased alloys having a
C<lrPon ~t Itss titan that ofC;lSt Iron
and II'IOI"C ~nthat of wrought Iron. and
ha~ qlUl!tles ofstrength. hardness. and
ela~ varyl~ iCCOrdlng to composition
and heat tre;;tment.
170
smelt
To melt or fuse ore In oraer, to
separate tM metal constituents.
pig
An ol:rlong ITt3SS of metal that has been
poured while stili molten Into amold of
sa!d.esp. such amass ofIron from a
blastfurnace.
mallta~1e cast Iron
CastIron that has peen annealea by
transforming the carron content Into
graphite or removing ~ completely.
rn.allu~l"
Capapleofl:relng shapedorformed by
hammering or by pressurefrom rollers.
cnl?on steel ...--------------------.-- --.----
Ordinal)'. unalloyed steel In which tlte
residual elements. as carron,
IT13nganese. phosphorus. sulfur. and
sll1con. are controlled. Arry Incre4lse In
carVon content Incre35es ~he strength
.aoJ hardness-ofthe stu! !:rutreduces
It..S ductility and weldaln11ty.
~rPon
Anonmetalbc element occurring In a
pure S'bte as dlamond;loJ graphite. or .
a5 aconstituent ofcoal anJ petroleum.
·5)tmro~C
alloysUd .------------------------------..
CarVen steel to which various
elements. as chromium. coI1alt.
copper. manganese. moIyt7denum.
nwl tu~ste';. orvanadium. have
~n added In asufflclent amount to
okaln partlcularphysical or
chemical properties.
alloy
AsU~5tance composed oftwo or more
~Is.orof;l metal and anonmetal.
Intimately mixed. asl1y fusIng or
electrodeposltlqn_
P;a~metat
~ princIpal metal of an alloy or apiece
underlying acoating of another metal.
~~tfurnace
Afarge vertlc;al ~ for smcftlng
Iron from ore. In which com!7ustlon Is
intensified by aCO!Ttlnuousl;>{ast of
air through the futl
mila~1
A1ow-C3rl1on steel containing from 0.151
to 0251 carVen. Also called ~ stu!.
medium 5teel
AC3rWn stet! co~inlng from 0.251 to
0..4-51carbon.
~rd,teel
Ahlgh-carron stt.eI containing from
0.451 to0.851 carron.
~~5teeI
Ahlgh-carkm steel contalnln~ O~~ to
~carWn.
hlglHtrength Iow-al/oyetul
Anyofagroup of ~rron steels
c.?ntalnlng less tn.n Ztalloys In a
chemicalcomposition speclflcatr,.
dM~ for Inc~ strength.
ductlllty. and resist.nee to corroslo11.
~rlng,teeI
Ahlgh-strength.low-l!1oy stu! th..t
fonns;ln oxide ~tlll9 when tx~ to
rain or moisture In the lItmosphere. which
adheres firmly to the !:rase metal ana
prottcts It from further corrosicn.
Structures using watnering steel should
~ a.rnlled to prevent the small arr.ounts
ofoxIde carried off ~ rainwater from
staining aajolr.lng maUr1als.
Amixtu:re ofIrm ere.
;r,.~.3nJCO~
cake
~~e safld residue of walleft after
destructlve distOatlon. useJ as afuel
PU~t-furruce 'l.1g
5l3g ~ .s iii reskiue boy the smelting
ci Iron ore In;i!71ast fuma~.
~
T'he vJt.rtfie.d matterleft ;a s ;a resldus
from the smeitlng of ametallic are.
Also C3!1ed clrlder.
I'
f 1
, I
LI
j
o
f
,u
I
b
L
(
L
l
,-
I
t
I
L
c~ing
Th~ process or productof ~ny one
rnetJl to another. usually to protect
the Inner metal fmn ccrroslort
pickle
An llGta or otherd1emiG31 solutbn In
which ametal otject Is dipped to
remCN~ oxide SC3~ orother~rlny
suVstarlUS.
Ponderlu
To coat s~ with 3nantlcorroslv~
phosplute solvtlcr1ln preparrtlon for
th~ appllcatlon cfpalnt. enairel, or
lacquer.
i
nople metal
Ametal, as gold, stiver. a!1d mercury,
that resists oxklatlon when heated In
air. and solution by Inorganic acids.
C1thoJe 8 GOLD & PLATINUM
(most noble) TITANIUM
SILVER
STAINLESS STEEL
8RONZE
COPPER
BRASS
NICKEL
TIN
LEAD
IRON & STEEL
CADMIUM
ALUMINUM
Oeastnoble) ZINC
;lf1CM CD MAGNESIUM
METAL
corrosion
The gradual deterioration of metal by
chemical aetlan. as when exposed to
weather. moisture. orothercorrodlng
agents.
galvanic corrosion
An accelerated corrosive action that takes
place when dissimilar metals are In contact
In the presence of an electrolyte.
.---.~ galvanic series
Alist ofmetaIs arranged In oraer from
least no!11e to most no!1le. ~ fart~r
aparttwo metalsareon thenst. the
more susceptl!1le the least ncl7le one Is to
corrosive deterloratlcn.
surffic~1 anode 4-..·_..··..··..·- ._..._
...-...._
.... cathodic protection
An anode that Is attached to ametal The protection offerrous metals
object su!7ject to electrolysis and Is against ~lectrolyslsl1y th~ attachment
decomposed Insteadof th~ object. of sacrificial anodes. Also called
electrolytlc protectlon.
chrome
To coator plate alTletal surface with a
compouna ofchromium. Also calW
cnromep~.
chromium
Alustrous, h41rd.l>rlttle metallic ~lement
used In allay steels for hardness and
corrosion resistance, and for electroplating
other metals.
:'-' ._- g.;alvaniu
.. To (;q.It m~l esp.lron or steel with zinc,
esp. to Immer~ In mo~n zinc to produce a
co;rt1ng ofzinc-Iron .I~.
hat--dip ~Jvanlzlng
The protectwe coatl"9 offerrous metal by
dipping In a!lath ofmolten zinc.
gllvanized iron
Iron co3ted with zJnc to prevent rust.
zinc
Aductlle. crystallIne. bluish-white metallic
element. us.ed for galvanizing Iron and steel
and In making otheralloys. Sym!1& Zn
tinplate
Thin Iron or steel sheet plated with Un for
protection 3gJlnst oxld3tlon.
tin
Alustrous, ow·meltlng. lliulsh·white
metallic element that Is malleal1le and
ductile at ordinary temperatures and used
in plating and In making alloys and soft
solders. Symbol: 5n
electroplate
To platewith an adherent metalite
coatlng by electrolysis. usuaIly to
Incre35e the hardness. Improve: the
durabHlty. orenhance the appearance
of the l1ase metal.
electroly~i~
The producing ofchemical changes by
the passage ofan electric current
through an electrolyte. with
su!1seq~nt migration of positively arid
negatlv~1y charg&i Ions to the negative
and positive electrodes.
171
METAL
W~Up" .
Ahot-rolled st:uctural stet! section
h3vmf 6ft H-sbptwith wkle p;1r.1lle1
flanges, ~ ~ the prefix W
followea by the slze ~ weIg~ ofthe
. Ir'Iemher. AIsoC311ed wfda fU~e....-----.-. --- -'--
M~up"
Ahot·roIIed wuctural steel shape
simnartoM natclassified as aW-
shape. ~~ by the prefix f.A
followed byt!le slze and we~htofthe
rr.em~r.
~~~~~;.~~~~..--...:.
slmibr to J W-slupe I7Ilt having
fla~ a~ _ ofec:tU31 thickness
3114 typIcaRy.sed as aload-~rlng
p~ designated Pythe preflx HI'
foI~ P.t~ slze and wclg~ofthe
member.
5-5upts ~.-- -.--.----------------.-.......
Ahot·rc&a 5'ttu:;turalsteel section •
~ aft I~ with slopedInner
fla~ surface.s. desl!!nmd by the
prefixSf~ by the size and
weig~ ofthe MnPer. Also calletJ
AmericMl5t.anchrd ~.
America" $brWrdchanMl
Ahot-rolled ~ral steel sectlon
ha'r'lns a~ularC-shape with
S¥aner~ sumces,
~ I,~ prefix cfollowed by
the sIu aM.;.g1ltofthe mem:Ier.
m~" clunMl
Ahot-rc&:I ~ral steel sectlon
. slmilartoJ C-sNpe !7utdes~nated by
the preflxI.ef~ bythe size and
we!g~of~~ber.
angle
Ahot-rolleJ WlJeturaIsteel section
having alt l-sb~ Oeslgl13kd by the
prefix l foIIcMej Py thd length ofe3ch
~ and tJ!etr ;hic[ness. Also calW
,~Ia Iroft.
eq~I~HgIe -.............. .
~~;;:::;~~....-...······z::S:,·,··,/
r=~~~~~~u..u.um~lr:J
paraId qsrtZi ~ 1n contactor
s~htfy sepmW.
~It.u
A stnIctmlstaI sectlon cut from a
W', 50. rxM-sItape ~ having aT·
shape. ItIs ~ by the prefix
wr, ST, exUf.deperJlng on the
~ froIt whldllt Iscut. followed
by the size 3fI4 ~t ofthe mem~r.
tee
A rolled metal UM having aT-sha ped
CI"OS5 sectloll AlsoC3lled T-bar.
zee •..------------.------- --... -----
Arolled metal UM h,vlng aZ·shaped
cross sectloa with Internal ~ht
'ngles. AlsoC3fk.d Z-par.
par •... ...............
A~ sand ~ of metal, esp. one
h3v1"~ Oil 5q1r.lr'e. rect3ngular. or other
Simple cross·sectlon31 sh3pe.
172
............... --. '1"-'-'--'" structural tu~ing
: . Ahollow structural steel shape of sq~re,
rectangular, or circular cross section.. It
Is designated Py the preftx TS followed Py
the sIk dimensions or diameter and ~
W3n thickness.
$tandard pipe
Astructural steel pipe of stand3rd
weight and W311 thickness. designated 3S
Plpe (nomlnallnsk:le diameter) Std.
extra-,trong pipe
Astructural steel pipe havl~ IncreaseJ
W3H thickness for greater stre"!lth,
deslgl13kd as PIpe (nomll13IInside
diameter) X-Strong.
double-extn-strong pipe
Astructural steel pipe havfng awall
thlcl:ness greater than that of extra-
, . strong pI~. designated as Plpe (nomlll4l
O
Inside diameter) xx-Strong.
-_.-.-. ~urralent round
The dlameterof acIrcle having II
. . clrcumfcrenu equal to the perimeter of a
nonclrcular tube.
/~~~~~~~'~~~ r:.fbt sheet or piece of metal esp.
1"'~~~~~~~~ oneofuntformthlckness.
~~~~~~~~~.-- checkered piau
~ ~ ~ ~ ~ ~ ~ ~ Asteel or cast-Iron plate havfng a
~. ~ 6(
... j( ~ ~~ ~ j( i:l waffleUke pattern.
&heetmetal
Meblln thin sheets or plates. use.d III the
manufacture of ductwori::, flashing. and
roofl~_
·····co~metal
Sheet metal drawn or rolled IrTto paral~1
ridges a!1dfurrows for addltlol13l
mechanical strength.
. -
' . ....-. -. ~~~::~andstretcheJlnto3
'~ stiff, open meSh or lattice, used esp. as
_~____ Iath_
WickpLrt.e
. . - CoId-roIIed sheet steel Defore plckll~ or
-
cle3nlng. use.d for coating with zinc. tln,
orterne mruL
;_..--_._-- PU96
"¥.~ Arrycfvarlousst.arll:brdsfor~~
/1' the thld:ness or d13meterofathin
oVject.as theth!d:ness of sheet metal or
the dlamet.erof awire or Wtw. Also,
flee-
....-. wi~ P&I96
A~U9c' cahmteJ for aetermlnlng the
dlameterof wire or thickness of sheet
metal conslstlng ofasteel plate with .a
seNsof standara-slmd notches .aroond
the~.
wi~ cloth
Afa!nic of woven metallic wire, used In
SCIUl1S. sieves, or the like.
hardware cloth
Agalvanized stull'llre cloth with a
mesh uetw~n 0.25 and 0.50 In. (6.4 to
t2.7mm).
- , ~ ~ . n . . _ • • • ' ~:~:mDerof openln~sper Inch In wire
~.
--
cloth.
wire rope
Aheavy rope made of or cont3lnlng wire
strands twisted around acentral core.
lJ
u
u
u
lJ·
fUnge
Abro3d ridge or palrof ridges projectl~ at
anghtllrI!Jldrom t!Ie~ ofa structural
sha~ In order to strengthen or stiffen It. - ....-.-. --...-............. --. --";
web
An I~ral part ofa~m that forms a
flat, rigid connection ~een two broader.
parallel parts. 3S the fl3n~es of a
structural shape. ~--
)-beam
Arolled or ~ruded metal beam
havlrI!J across section resemUlln~
the cap~..4lletter I.
-···-····f·~--··--·-·--·
J
METAL
,tructur..r,tee!
Stul that Is hot-railed orcckHormed
In avariety ofstandard shapes ant.!
fabrlGated for use asload-~rlng
memrers arelem""ts.
5t-eell1eam
Abeam conslstln~ ofaSingle or built-
up structural steel sect1on.
..-...., "pen-websteeIJoist .
AlightWeight, fal:nic3ted steelJalst
h3vlng an open weU. A!I.-Serfesjoist
has awel1ccnslstlng of3 single rent
lr.lr, runnIng Inazl!JZ3~ pattern
!letween the upperand lowerchords.
lH- and DLH-Serlesjalsts have heavier
wel1 ant.! chord meml1ers far Increased
s:.Ij" ~"ndSl"n~AIsc,,11ed ~..joist-
.....• jol5tglraer
. Atrussed girderfor supporting open-
~ZSAs:ZS:ZS:Z
cover pLate •..-...,.-...--.....-.....-.........._-.,
Aplate fastened to thcflJnges of a plate
girder to lllCre3~ Its section modulus In
areas su~ to hlgh-!lendlngstresses.
fUng<:i.a~1e •... -........-..... -..........-.. -...
weu steelJoists. .
Oneof the lIrl!Jles fonnlng the top or
rouom flarI¥ ofapI;rte girder.
r··--··-·--------· .--.-.. pIaU girder
wupLtte ----.-....-..-..-...-...-.....
Asteei pl.1te forml~ the web of a plate
~!rder.
~rp!.1te
Apt.te f.tst.ened to the we~ of a plate
~lnkr to Ir.cre<l5e Its resistance to
shQrl"!j strtsses.
&tifftnet'
I·
I
I
...
Oneoh palrofv~langles
fastenea to each slde of II we~ p~
to sttffen It against buckllrI!J.
..- ~ri~ 5tlffeMr
I
I
Astlffe:-.erlingle for the we!1 ofaplate
girder. pl-oMJ at apoirrt of support ar
underII c.:-runtrited Io3.d.
Intermediate ~jffener
Astiffe:-.et" .ngle for ~ weI? of'lI p~te
girder, ~ ~etween re.arlng stiffeners
for lncre4 ~ reslst3rIU to dI3~0I131
compreSS:ve stresses.
WVVVVVVVVJ
-··O'O--O··O·O-O-'O-·Oi
Asteel9lrder buIlt up from pL1tes or
shapes thllt are wek:/ed orriveted
~ether..
I70xglrder
Asteel beam i1utlt up from shapes and
havln~ ahollow. rectangular cross.
section.
...,. c.astellrted I7eam
Asteel beam fa!1rk;ated by dividing the
weU ofa wide-flange section with a
lengthwise zlgza~ cut, then weldln~
Path halves together at the peaks,
thus Increasing Its depth without
Increasing Its weIght.
173
MOISTURE PROTECTION
jojnt~lnt
ArTYofvarious vl5ccus su17stances Injected
Into J buildingjoint. curing toform a flexll:lle
I113terUl ~t adheres to the surrounding
surmes ana seals theJoint 3g3lnst the
1'a5539" ofair and water.
joint movement ...--------.------------:-------
The change In Width ofaI:IuIIdlng
joint resultll14 from achange In
tempmturc:_
exUnsi1n1ity ~------------------.---------------- -------------------+-1-
~~~ofasealanttol1eextendedln ~<I':~,..,.
...,..,.......~:
~%~:~~~~UilJe.I"~re<ha"'. . , ~
or s111canecapa7leofelongations up to 251,
used for sealingjoints In curtain-wail
systems.
mtdium-r.l"¥ sealJnt
Ajoint Se3lant of I:Iutyl rul:l!?er or aCl)'lIc
capaUle ofelong3t1ons up to 101, u~ for
sealing nonworkllig or rneGhanlc3lly
osteneajoints.
caulk
A Iow-rangejoint sealant used for filling or
closing aSe3n1.crevice orcraaIn order to
make It ~ht and airtight. Also,
cauru~_
~
~...... .
~ ..----------------------------------------------- ------·_-----------1
An.a1TOW deposit of sealantapplied to a i
!:nJ1!dln~ joInt_
bond fXlI 0---- ----------- .--.--..-.-------- ----- ---j ----.-----
The surfx.eoh l:Iulldlng componentorjoint I
thzt se:ves2S asu!1stratefor a5e21aITt I
and to which the sealant Is llonka. !
I
~U~ !
Arry nuteltill that underl1es and serves as 3
i?ase orfoundatlon_
II
~ ~ker 0-- - - - - - - - - - - - - - --- ----------~
'i1I"fofvarious materials. as polyethylene ~,
~p".uS«!f", prev.ntl~th, adhesion ofa ~.'
~lant to the l:Iottom of ajoint.
78
,,!:':~':'-~ '~::::':'~::-:~:'::'.
- '- - <,
!'.' . .: ..
'", :..~.': ....... ~ ...:
constructtonjoint
AJolnt !?etween two successive
placetUnts of concrete. often
k~ oraoweled to prorlde lateral
sta!?1I1ty across theJoInt-
....--------------..-.--- waul'5u,p
A&xl!?le strip of rul7t1er orplastic
InStrtea across aconcrete ormasonry
Joint to prevent the passage of water_
exp.ansionjoint
AJoint !?etween two parts of.a l:Iultalng
orstructure permitting thermal or
moisture expansion to occur without
da~9" to elther part. Exp2nslon
Joints aIso serve aslscbtlonjoints and
controlJoints-
.--. ----.--..--..----. exp.ansionjoint cover
Apref2IuiC41tec.i cover for protecting an
expansionJoint while allowing relative
move~nt !1etween the two parts I1eIng
connected_
contro/joint
Acontlnuous groove or separation
formed. 53wed. or tooled In aconcrete
or masonry structure to form aplane
ofwe3kness and thus regulate the
location and amcuntofcraalng
resulting from drying shrlnbge or
thermal stresses.
contr.lcttonjoint
AjoInt l:Ietween two parts of a
structure, designed tocompensate
for the contr3ctlon of either part.
r' ---.--..---.--. --..--.------.- IsolationJoint
, AJornt separatrng two sectIons ofa
structure SO that differential
movement or ~tftrnent can occur
!?etw~n the parts_
~ -
.< t
[
l
1
I
d
I
d
U
I
J
J
J
J
I I
u
U
U
U
U
U
II
Ir
1. ..
f
I
I"
r
I ."!,.
~c~~~~~-~';~I;~~'I~i""'1 F~==============:;::;;:;:;;:':;:;:;:;;:;;;:;;;;:;;;;
.r'O
carniu
i The uppermostmemverofa
cornu. usuallyacyma recta.
cal'01.3 - -............--...---------~ ~~;;;::;;;::::;;~~~;=;;~......,
_: classical ental1l3ture, conslstl~
typically of acymatlum, corona.
and l1ed molding.
The proj~~ sI.aDJike memverof a
c135Slcal cornice. supported Vy the Ped
molJil1<j and crowned by the cymatlum.
Ped moldi~ - ..-._.._
...--..---._.-.-
The 1r(Jldlng (X ~roup of moldings
Imme.d13te1y ~th the coron3 of3
cornu.
calumni.1tict1
The use oramngement of
columns In astructure.
disty~ ....---_....-
H3vtng two columns on
one or~ch front.
tri5tyle
H3v!ftg three columns
on oneor e3ch frant.
tet.-astyte
H.;'rii1.j four columns on
one oreach fron"t.- ...
p~nta,tyle
H3v!i1.j flve coIuR1ns on
one Of each froat.
hexH~
~.nir~ six colurIns on
011e Ofe3ch front. - ......_
....- ..---.-.- ··.-_...-·--r
heptJ5tyle
H30r.g seven c.olumns
on O!'e oreach front.
oct.astyk
H.'';~ ~ht cciumns on
~ oreitherfront.
e~
Havir.g nine columns on
one oron e3Ch front.
Also. enne.astyf.ar.
kca5tyl~
H2v!r~ 10 coIums on
cr.e oran e3ch fror1t.
dode.c.astyte
I-UY!~ t2 coIums on
one oreither front.
Alsa.~r.
du~styte.
Int.ercolumnUticn
Tl'Ie Sp3U ~ two adj3cent
columns. U$lUI'.fthe clear space
~n the lower part~ of the
sh3fts. me3s!M"ed In diameters.
Alsa.3 system for spacing
columns In 3 coIonn3Je 11ase.don
thlsmeasure~. ~_. __... ___.,.. _
....... _
.._._._ .. _
......_.
...• frieze
The horizontal part of aclassical
entavlature vetween the cornice
and archItrave, often decorated
with sculpture In low relief.
Larchitrave
l The lowermost dIvision of 3
-----f&--~ c13ss1cal ental1l3ture. restlng
~ directly on the column c3pltals
i and supportIng thefrleze.
L capital
The distInctively treated upper
end ofacolumn. pillar, orpier,
crownll19 the shaft and taking
the weight of the entavl3ture or
architrave.
-- shaft
The central partofacolumn or
pier between the capita! and the
I1ase. .
,- pase
! The lowermost portion of awall.
; coIumn. pier. orother
: structure. uSU311y distinctively
~~==~'::::{:#~___~: tr~te4 and c~nsldered as an
.J architectural unit.
~~~~~~~~?-~=J:....cornfceorC3p
._ dado
The part of apedestal between
the base and the comice or cap.
Also called die.
!"' b3semoldIng
~ plinth
---e~
..i !The usually square slab I1eneath
J
#~=;:;;::;:::~**~ --t.Jthe base ofa column. pier. or
""'-'-'~~-~'-'-----'---'-'-" --t- pedestal.
. .......• ~IUmnlation
,/...../_. of 1'12diameters.
~::(.--.....):~...-
.......•:..:.
.::::•....•::::(...-..::/.~..•...-.
systyle
Having an Intercolumnlatlon
of two dIameters.
eu't~
Having an Intercolumnlatlon
of 2'/4 diameters.
diasty~
Having an Intercolumnlatlon
of three diameters.
·;·afi~~ ..
Having ~;; ihtircolumnlatlon
of four diameters. Also.
areostyle.
Arly of five styles of classiC31
architecture characterized l7y the
type anaarrangement ofcalumns
and entablatures employed, as the
Doric, Ionic, Corinthian,"Tuscan,
and Composite orders.
ental7lature
The horizontal section of acl3ss1cal
order that rests on the columns.
usually composed of acornice. frieze.
3nd architrave.
column
A0ilndrlcal support In russbl
architecture. conslstlng of acapital.
shaft. and usually aI1ase. either
monolithic or built up of drums the
full diameter of the sh3ft.
ptdestal
Aconstructlcn upon which acolumn.
statue. memortal sh3ft. orUle fie. Is
elmted. usu311y conslst1~ ofa .
comlce orcap. adado. and aboise.
i
~ '!F
I
I
I
""'- .i-
1 I I
accouplement
The placement of two columns or
pilasters very close together.
179
ORDER
Dorlccrder
Theo'Jest~nd simplest of the five ci3sslcal
orders;&c,.oe1opeJ In Greece In the 7th
un~ S.c.;and bterImitated by the
~ch4I'3~ ~a ftutedcolumn
having no u.se. aplain cushion-shaped
~pltal5U~ oil squareaPacUs. and an
ent.Vlrntrtconsisting ofaplain architrave.
oil frlezeoftrlglyphs and naopes. and a
cornice. the corona of which h3smutules on
Its sofflt.ln the Roman DorIc order. the
columns a~ more slenderand usually have
Pases. the channe!1ng Is ~rnes altered
oromlttd and the caplt.f consists ofa
Pandllke ~Ing. an echlnus. and amolded
a~acus. .
~ J~
"-.:: .11
I>'A; ~. ,
10
0 0 0
0 0 q
0 0 ci
0 0 0
0 0 a
lOoOOOC
rvooooc
oooooe
000000
000000
000000
.~
!
:
:
I
EO OO
bOO o·
000
~.: .
..-'-.-
J
..-.soffit
The underside ofan archltecWral element.
as an arch. beam.cornice. or staircase.
.......-. gutta _
One ofaseries of small droplil:e
ornaments. attached to the undersides
of the mutules and regulae of aDoric
entaplature. Also called drop.
~ ........-.,.................-.,.-.-. mutule
~--------------------~
I
: Apro.Jectlng flat l7lock under theCOrona
ofaDoric cornice. corresponding to the
rnodllllon of other orders.
=~v!iE:~~ii:~;--i I
two vertic.llgrooves or glyphs on Its face. ~tr'?""~~~~~;;~:J~~~~~~~~}J
=::::~:_~:~h"'~"____l:~~~_:::::_
.1-_.
Anyofthepanels. either plain or
&ec.orar.ea. retween ~lyphs In the Doric
frlez.e.1Jsc called /ntertrig/yph.
taenia ~ .....--.---.....------.-.-.-.-.-...... ,
. .......... zophoru$
I
I
Afrieze pearing carveaflgures cf people
or animals. Also. zoophorus.
Araised !rand orMet separatln9 the ~ ..............'-
frleufrom the 3rcnltraveon a Doric .......-_.... - -.l:;;~::;u::;::::;;::
w:;:;:::;uu::;::::;:r
u------"!::::J:;::;:::;u::;u::;:::::;;Ju!
ent.Plature.Also. W1Ca.
i
regub _____.._
........__..._
..____.__..._.J
AfUIa ~th the ~nla In aDoric
entaPlature.corresponJing to atrlglyph
~~ and from which guttae a~
suspenk.d. Also carled futtae Vand.
..l1acU5 - ...-..---.-.-.....-.----...-.--..-...-..........-... I
Theflatsl.aUforml1l.3 tnetop of acolumn
Coilpital. plain In the DorIc style, ~ut mok:ied ;-......-..,.-..-.~~~~~~~~;:")
orotherwise enrlchea In other s t y l e s . .
ecl1fnu, .....--.--.-.--.--.....-- ...--..........j r·~::.--=-::·~····~~: ! I
~~~ofcOlrcularmold
r IngSuPJ'Oltrtllng 1,:, II 
vnc; av~ a orlc or uscan ~p a.
~;~~~~,~;.i~~:~;fj : I I' 'I I
~:~~::=:">u_uJ II' i
"pItol......lto/acolu.... JLl_l. . L
trachelium _...•....- ......1
That partof the necking
retween the hypotrachellum
ar.a the capital of aclassical
column.
hypotrache/ium _-............i
Arry mem~er retween the
capital and the shaftof a
claSSical column.
enU,l$ ....-...-.--...-...-.•-...._-
Aslight convexity given to a
coIumnto COI'l'tCtan optbl
lIlustcn ofcoricavlty Ifthe sk:les
were straight.
drum
Arryofseveral cylindrical
stones laid one above 'the other
to form acolumn or pier.
1
flutlng ~"""'--"'-""'--"""""""-""T--'--'-'--"'" -
A~ motifconsisting of aseries: ~...--I.-.L---L-_...I..---L_~bJ-_ _ _---.
of long. rounded. paralief !f'OOVes. as on 1 ~
the shaftofaclassical column. ,-.-.---•.-...- .
flute
Arounded ch..nnel or groove. Also called
stria.
180
(
f
Tu~norder
Ac~slcal orderof Roman origin.
Pask411y oil slmpllflea Rom3n Doric
charxUrIze.d byan unflutea column and
aplain Pase. capital. and entaulatur~
having no decoration other than
mok:IJngs.
J
1
l
l
J
j
L
u
I
r
1 •
Com~iU order
Ionic order
egg and dart ~-..-.-......-..--............ ~~~~~~~~~~~~~1J6l~.C/
An ornamental motlf for enriching an ovalo [ I D
Acl3sslcal order that tb-ek:Jped In th~
Greek colonies ofAsl3 Mln« In the 6th
century B.C.. characteriuJ esp. by the
spiral volutes of Its capital The fluteJ
columns typically had moI.:led b3ses and
supported an entabl3ture consIsting ofan
architrave of three fascias. a.richly .
ornamented frieze. and acornice ~led
out on egg-and-dart and dentll rndJIngs.
Roman and Renaissance examples are often
more elaborate, ana uSU311y set the VQiutes
of the capitals 45°to tke architrave.
or echlnus. cansls~ng ofacbsely set, ~~-4-~'-~'-~""~i-~.~~"-~I.....I~W~~p~
alternating serits ofoval and pointed ~
forms. Also C311ed egg anatongue.
dentl1 ___...._.__._._._.._._....._...;.......J
Any of aseries ofclosely Sp3ced. sm3ll :
rectangul3r blocks forml"l! amolding or
projecting ~ne;;th the caron3S ofionic,
Corlnthl3n, and Composite cornices. r-t r--···-····- volute
fasci41 ---.----..•-...-.....- ...•-•...:.~~!-i---------,----J:/ Asplral,scroll-Ilkeomament.asonthe
One of the three horizont31 Dands making L..; . f / capitals ofthe Ionic. Corinthian, and
up the archltr3ve In the ionic order. . . / Composite orders.
AtticPa~
Atta5e to 3ctaSslc.11 colurr.n, conslstlr~
of an upper and alower toruS separated
~ ascati3 l>etween two fjilets.
~ .---_._.._-_........_"'"
Adeepconcave molding ret~n two ......,....
r@SJJ.~JT-JJt:iI ~~) ~...-.--.-.•..- ....~~:~Igulclellne through t~~teofa
~ I·:#'. volute In an Ionic capita!, from which the
;
I i spira! form 15 determined.
"tHl"*"I!---··--..---..······~ echinus
-..--
The clrcul3r moldlJ1g under the cushion of
an Ionic capltall:>etw6e11 the volutes.
usually carved with an ~·and-d:a~
pattern. Also called cyrnatium.
·······-········fillet
A n3rrow part of the surface of acc~umn
left between adjoining flutes.
/'-•.•....-...-...........- apophyge
fillets. Also C3l1ed trochnus. ..........•. <' ) Asmall. concave curvejoining the sh4ft
of aclassical column toIts base. Also
called apophysIs.
~MlS ._.-.........--•••••.• _-... --......- •••
Alarge convex. semicircular motdlng.
comrr.cnlyfound directly aDove the pilRth
of the ttase ofacbsslc3l coUJmn.
.
I
Y ~
)
l
~~~mm~~~~~~/
,
:s,n;.u;;;;;:;;I:;Z===~~;:;;;j';F=~~;:;::;jZl==.~1WJ:;;:LL:::jj.Jl.F&:r~:;;;:i.---- ..• modillien
..,. • An om3mental uracl:et, usu311y In U-.e form
"" J JLll
Yo'
f 1l1' " r n.T 1 of ascroll with acanthus, used In ~
Peneath the corort3 ofaCorlnthi3n,
Composite, or Roman Ionic cornice.
1 ...... helix
I .//.. Aspiral ornament. as arry ofthe vOOItes
-----:~~~~§"W~~~~J.~~ Issuing from aC3ullculus In aCorlrr!:h~n
.v~ -u ,// C3~1t31.
c
~/ifW!t.~. _.-.....- ..-... ~ullculu'
;kI~I~.~i;~~:i~~~ii~·~~:···· ..'..~.~tl;' --- =~~£~~;~~:I....
,.." .~ .'1 I A 1 11 Sprln9·Alsocalledcaulcoie.
acanthus _.................................../
Corlnthi2n order
One of the flve classical orders. popular esp.
since the ~glnnlng of the Renaissance but
Invented ~ the ancient Romans. In which
the CorInthl;n order Is modl&d ~
supulmposlng four diagonally set Ionic
volutes on a~ll of Corinthian 30nthus
leaves.
An OI'T13ment, as on the Corlnthi3n
capital, patterned aftu the I..rge.
toothea leaves ofaMediterranean
plant of the same name.
The most ornate of the flve cl3sslcal orders.
devek:Jped by the Gree~s In the 4th century
B.C. ~ut used more extensively In Roman
architecture, slmll3r In most respects to
the Ionic ~ut usuallyof slenderer
proportions and characterized esp. bya
detp bell·shaped capital decorated with
acanthus Ie3vesand an al1acus IIf"...h
concave sides.
181
ORNAMENT
gl'2ffiti
~ or anwlngs spray'palnted or
011 • f'JP/Ic sumce. 35 aslaewa11:
CK lII'4§ ofaWilding.
~~
~ produced ~ cutting or
~ through 3 sum", layerofpaint
or ~ to I'M'4la ~rouna ofcontrasUng
ccIcr. ------------_.-.-.-••••.•._..
tt'IOSJic
A~ure CK ~tlve p.ttern made l1y
Inby1ng SI1aI. ~11y colored pltGes of tile.
~rrd. crgUssln mortar.
~sen -'--'-................_........
Ord cI~ SoTIiI ~ ofcolored In3rVle.
~ (X~ use.d In ~Ic wort.
~
Cciored #ass cr enamel. esp.ln theform of
Inlnt.rte squ.res. used In mesaIe won:..
rd"tef
~ ~ of. ~ure orform from the
Ibt ~rJ on which ~ Is formeO.
ClVo-rdievo ...........................·......-..·...·..I .. '··--:~
Sculp'tn ~ In which the highest points i
of ~ n::deied fOl"lTlS are PeIowor livel wtth
~ ~ SlJrf'3a. AlsocafIeJ sunk relief.
a~ ......_- ....................._ .....................- ..-,
Sculpta-al re:Ilef In which the modeled forms L.
project froIn the ~round byat least
h3lf;hefr~ Also caRed high relief.
~
~~~Petweenhlgh
r:WaM ~. Also calleJdemfrellef.
Ulfrdief.
~ ..-.................~........................,
ScIl~1 reI1d tit.7t projects very slightly .
from ~ oo~. Also C311ed basso·
rd£evo.1cw r&d.
~Iypft
An ~lI"C1t C3r1l:J oremrossed In low
~d.
182
munl
Alarge picture p;;ln~d on or .pplled
dlrectly to aWJfI orcemn~ surface.
fresco
The.rt or technique of palnUn~ on a
freshly spre3d, moist plaster sUrUce
wtth ~ments ~round up In water or a
hmew.ter mIxture. Also. apicture 01'
design so painted.
_... opus seetile
Any mosaic of r~ utarly cut mateml
opus Alexanarlnum
Aform ofopus seetHe having a
geornetn:; pattern formed with few
colors. as plac~ and white. ord3ri::
green ana red.
op~ vennlcut.um
Amosaic oftes~ arranged In W4Vfng
nnesreseml1/Jng ~ form or tracls of a
worm.
FIo~ne mo,aic
Amosaic madel:>-t Inlayln~ fine.
dellcately colored 5toneslnto a white
or ~acl: marVle s!Jrf3ce.
..:................... applkt~
Adecomlon orormment ma~ by
cuttIng outa design ana fastening It t.o
alar~er pleceof rn.T'..erl31.
Inlay
Todecorm I7y ~ pieces of wood.
ivory. or the 11:"Irrto" surface. USU4r1y
at the s.a~ level.
TI
:;r......._
....................~:!~;~mekl.orC3r1e.sUrfau
1 design In relief.
. !J ] -:l.i--.... engrave
Tocarve; cut. aretch designs on ahard
I J 5urfau. as of rnet.i!. stone. or the end
~ grain of 1YOOd.
Intaglio
Aflgure ordesign Ir.::lsed Into the
surfar.e of astone or metal plate so
thatan Impression yields afigure In
relief.
openwork
Omamental orstroctural Work having a
tattlcelJU nature or showing openln~s
through Its substance.
'tr.:/---..·· fjllgru
~S. Omament31 openwori:: of dellca~ or
~~ Intricate ~slgn. ~Iso. fflagree.
L
L
[1
J
1
J
I
l
l
f
L
f
i
L
·"[
'1;' ~,'
pa~he
An artlstJc composltlon consistlng of forms
or motifs Porrowed from different sources.
~counterfeit. or false. as an
archttectunl orrurnent that is added
superlluousJyorInaPPraprlately.
~r
Acormrrtlort31 figure uSU311y having flve or
mort: po1nts r.Jdbtlng from acenter. often
used as a" ornament 3nd symPol
SUrofD3vY
Ahex;a;r:am used as asyml70l ofJudaism.
Also C4Bed M.1¥n David. Mogen Davk:f. ---.....
hex3gnm
Aslx-pomted stJrIll:e ftgure. formed by
~ /:Uhof~ sides of a regular
hex3~ lntoequil3teJ"31 tri3ngles.
glol')'
A rl~ clrcle. orsurroundlng J"3dIance of
'llght,2s;J h31a. nimPtJ5, or aureole.
*
~Ic ----......-.............................r.==t---=:::::::,..__
Adisk Of" ring of raa'bnt Itght arouna or
aboYc the ~ tradtlonally symDollzlng
tM ~ ofadivine or sacred personage
In ~1:lilS p;llnttngs and sculptures. Also
cafbf c1m!nJS.
aureo~
Aclrce of tight or rad13nce SUf"I"O(Jndlng the
h~ or Dody In Pie representatlofl of a
5W'ed p5OfIJ¥.
v~~pbci5
An eIltpt!cJl EX'lnW figure used esp.ln
t3riy Christian art 35 an em17lem of Christ.
Also C411d nunJorU. --.-..--.....- ..... .
Chl~Rho
AChrlstbn ~r3m ,lnd syml701 formed
!1y supaimposl~ the first two letters of
the Gre.e!: word for Christ. Also C31!ed
chri$l'TC!. -.---.-...-.....- .....-.-.
~Ine
AralseJ orsuurectangular panel on a
wall ~ tre;rted or ornamented
wtth lnsaiptlons. ~lnUng. or sculpture. _.....
tablet
Aflat stab or ptaque h.1vlng asurface
QL-_____---' 0
sulta~ for or ~rlng an InSCription. 0 r----------j 0
;;:::""'b'~t,~nG
t>earing afigure orom3ment In rellef.~- ''; 0 /
cartolJCne , )
An anI 01" 00i0ng. sl~htly convex surface.
u!XIally surrotJlIdea with ornamental
scrol~. for rec.civ1ng a palnud or low·
relief dea>ntlon. AI.$.J. C3rtouch.• "-'
grotesq.ue
Adecorative style char3ctetized I1y the
fantastic ~hap~ng and comblnln!J of
Incongruous human and animal forms with
foliage or similar~ures. often distorting
the natuJ"31 Into caricature oral1surdlty.
:[,;::~.~~~....- ....ntic
Agrotesque sculf1ture ofanimal. human. or
foliated fOfms. as a gargoyle.
_...... mask
An often grotesque representatlon ofa
head orfau. used as an architectural
ornament. Alsocalfed mascaron. .
SE;~~~.--..... griffin
A mythological animal typically having the
head and wings ofan eagle and the ~ody and
tail of a lion. AlsO. griffon. gryphon.
r······.. griffe
/ An ornament projecting from the round
; base ofacolumn toward acorner ofa
square or polygonal plinth. Also,called spur.
pallflower
A medieval Engnsh ornament suggesting a
flowerofthruorfour petals enclosing and
partlallyconceanng a 17311.
cross
An object Of figure consisting essentlally cf
an upright aotd atransverse p~ at right
angles to each another: often ~ as a
symbol ofChristIanity.
.. latin cross
crossed near the top by ashorter
horizontal bar.
....-..- .....--.-.._-..-..- Celtlc cross
Across shaped flke a13Un cross and having
+
:n~n~,.:~~~e IntersecUon of the shaft
. .-.-....- GreekcroS5
Across conSisting of an upright crossed In
O
the mk:!dle by ahorizontal of the same
o 0 ._...____..._.__.._~:~:·alemcross
O
,...n, Across whose four arms each termlrt3t.e In
V a crossb3r. often with asmall Greek cross
Across formee having the outer f3ce of
each arm indented In 3Y.
cross formee
~
_.___......~ ::::1::::qU3dmt.
Across haVing arms of equal length. each
expanding outward from the center.
183
ORNAMENT
motif
A~tMs ana l"Uurrlng shape. form.
orcobrIn adesign.
cMcter ------.---.------.------------.----
To INrt ordt:tor2te with asquared
pattern.
i-etlcuLtte --------..------------------ --~
;:~;;::;-:----.'~~~
con~ng orgrowln~ out ofone ' , .
al'lOther. 0I'"IgIn31ly used In the Middle
~:=~~a~-gOI~-nn--nnm..---~,
", ' " ! , ' : -
A~orde~nresemullngU1e ' . . . .:
regularOYerlapplng of ules orshlngles.- . . ,
herril19bone -----~----. ------------ _
..--..----
ApattMI consisting of rows ofshort.
paral1elllnes which In any two adjacent
rows slant In opposItedlrectlons, used
In masonry. parquetry. and weaving.
chevron ~----------.--------------.--..--.-!H(-r~~
Av-shapeapattern used In heraldry
ana as ~tIon.
da~ ~--.--------------.----------.j
An ornamental zf4zag. as In"a molding.
fret .----------------.---.-----------.----.---- - =il
A~ design contalneJ within a
InndorParder, ccnslstlng of repeated.
often geometric figures. Also calied Uy
patUrft.
murtdet- .--. ---------------------.--.-..
Arunntng Of113l'T1tf1t consisting of an
Intrlc4i'te varietyof fret or fretwork.
Venetian derrtl1 •.___.__ .___._______._______._.: _I--.IP""-....,.~..6Al__..__._...iI........_
AnyofasenesofsnuH rectangutar
PIocks aftMmlng with sloping surfaces
on an ~ or moratrtg. .
5Cr011
An ornamenthavl"9a spiral or
convofut.eaform resemuUng a partlyor
Ioosdy rolled parchment.
V1ttvvbn &Croll ---'-"'--' -----.-.. -...----
A~ ofscrolls forming a stylized .
=~pa~~~caneaVftruvfan I.'.....'~
~~:;::;,~;J~~~;ii~;~u-n-----i-u~;c:~
riuron orscroll.adapt.ed to receive an
Insc'i'tlon. Also. vandtrol. l7androle.
5trapwort _._..._
.. _._ ... ______ .. ____ .___ ... _lI'•••II" .....
Ornarnent4tlon composed offolded.
crossed. and Inurlacea uands.
sometlmescut with foliations.
184
folima
Ornamented with foils or representatlons
of foli3ge. Also. folL1te.
....-..- wruth
Adecorative Pana or garland offlowers.
foli~e. or otherornaIt'.ental materiaL
----.. --· ....·.ro~
An omament having a generally clrcular
com~lnatlonof parts reseml7llng aflower
or plant. Also. rose.
~
' .' ~~"
~~ dogtcoth
~;. ~. ~ Any ofa.series of closely spaced. pyramidal
. . ' ~ om.aments. fonned ~ sculptured leaves
rad11tlng from ara!seJ center. used esp. In
::::- e3r1y English Gothic architecture.
.., ~r2p~ue
Acomplex and ommdesign that employs
flowers. foltage. anasometimes anllNl ana
~ ~ures to produce an In~
pattern of Interlaud 1Int:S.
~~=:;~;;:;:::~;:::;~riL~ Wllf5-tcngue
Arno!dIn~ having pendJnt. ~uern:e
elements carveJ In rellef against aflat or
I curvea surface.
~~... ~IIOp
Anyofaseries ofcurved projections
forming an ornamental ~order.
:._"'_'_____'.,. purfle -
.... To deco~te ashrine or tal;!ernacle with
I miniaturearchltutural forms Soas to
produce a lacy effect.
I
I
i
l
l
L
L
L
L
L
arrls - ...................-- .--..-- ..-..-'.
AshJrp ~e or rtJqe fanned Py two .....
surfues meetln~ at ~n exkrior angle. .
Also called rend..
pullnose
spl3y - ....-.--..--.-..--. ---.- ..-- ..
Asurface that I!13~S an oblique angle
with another.
~:;~:.~~i:=i";;~·~····:::!
areas. Also called list.
pillet
Any of aseries ofclosely spaced
cyl1ndrlcal forms omamentlng a
~
hollow mold1~ orcornice. -.---..--.-----
ccve - .....-..-.--......--.---..--..-......- .....~
ACOfIC3Ve surface or molding. esp. at L..._
...._
._......
the tnnsltlon from W3H to uillng.
C3Vetto •. --- ........... -- ........... -..........
Aconcave molding havi~ anoutline
that approximates aquarte-:"circle.
conge
AconC3Ve moIdlng having the farm of a
quadrant curvlri'away from agiven
surface and terminating perpendicular
to afillet parallel to that surface. Also.
COf9u. ~"- ---.........-.....''''-' ........................- ...........- ..
09u
Amolding having aprofole of adouble
CUrie In the shape of an elongated 5.
Alsa called gull......." .....................
cym.1
Aprojecting moIdlng having the profile
of adouVte curve formed by the union of
aconvex line and , concave nne.
cyma recta ..........................
ACYm.1 h3vl~ the conC4ve part
projectln~ ~ the convex part. Also
called DoriG cynu.
cymJl rt:YeN.1I _ .. - ... - ................... _.
Acyma having the convex part
projecting ~ thewr.c.3ve part.
Also called ~ cynu.
mk .......-....._..._
..........................
Asmall pendant molding forming adrip
and casting adeep shadow. as on the
soffit of:. cornice. Also called bird's
l1eak.
prace mo'di~ ..............................
Aprojecting moIdlng having aprofile
formed by two Q¥eS symmetrically
disposed about an ,uris or fillet. Also
called keel.
profile molding
An outline of an objeGtformed 0f1 avertlGal
plane passed through the ol?jectat right
angles to one of Its prinCipal horizontal
dimensions. -"1
Any ofvarious feng. narrow.ornamental
surfaces with uniform cross sections and a
profile shaped to produce modulations of
light. shade. and shadow. Almost all
moldings deriveat !east In partfrom wood
prototypes. as th~ In claSSical
architecture. or stone prototypes. as th~
In Gothic architecture. Byextension. the
term nowrefers to aslender strip ofwood
or other material having such asurface and
used for ornamentation and finishing: Also.
meld. mOtJldlng.
~ Iulfround
Amolding having asemlGlrcular cross
section.
--.-- ..-- 'llJ.1rter round
Aconvex molding whose section Is a,U3rter
chrcle.
..-. ovow
Aconvex molding having aprofile
approxlmatlng a'tuarter section ofacircle
or ellipse.
-.......- PolUI
Aconvex. rour.ded molding. Also. 17outel.
Powtet
-'- g3droon
. .- . .- Acanvex molding elaboratelycarvedwfth
rudlng or lnaented with notches. Also.
~ §Odrocn.
~ - ...- ~ron',rod
Aconvex molding having pointed leaves or
scroU)¥art ~rg!ng at regular Intervals.
- - ..._. c.aulemokli~
Awnvex molding having the form of jl rope.
. ~L....'" ~~IIconvex molding usually having 3
continuous cynndrlGal surface.
: "<' . '. . . :/ Asmall conv~ moialng usually semicircular
. ..... .' In sectlon.
~
..-....- 2SU2g3J
'::-;"
."'~ . u3gUetU .
Asmall convex molding of semicircular
. section. smaller thanan astraga!. Also.
1;12~uet.
~-"·-~.a2naraf
Aconvex molding having theform ofdls1:s
. a~ating wtth spherical or elongated
beads.
~-.... ~rlmolding
~ Amolding having theformofa row of pe3r!s
or pe3ds. Also called lIead molding.
PaumosUr.
..-....- reeding
Aparallel set of small convex moldings for
ornamenting 3 plane orCUried surface.
185
C;>RNAMENT
trim
The flnished woodwcrl orthe lit used to
~ rordtr, orprotta the edgesof
openln4s orsumces.
cornice -----.-.-:~ ......-....-.-..-....-
A~s, molded ~n that
crowns awanorotherconstructlon. or
divides ~ norlzontafly for compositional
purposes.
p~ meld •.........- ..-.-.................
A ~I molding ~ acel~ from
wtrlch ~rtS can be su~nc:bi Also
c*d picture rail.
pLrteI'3U _ ...•.-._...........•...--...- ...........
AraM or ~rrow shelfftxed 3long a 1'1'311
and ~~ to hold platts. esp. for
01"1UIMTt ordisplAy.
chlirrail--.--...........- .._.................,
AhoriwTt3l molding on.1n Interior 1'1'311 .••.
'fo'l"""'"~tMWS of,ha'"from '"" 
",
...........• crown molding
Any Om.-lmental moldl"4 terminating the
top of a structure or kcoratlve feature.
".
DO
pl~nt
To attach or fasten a molding to a surface.
kerfing
Making aseries of parallel saw cuts
partway through the thickness ofa pieceof
wood to enaVle the piece to bend toward
the kerfea side.
::::,
;;!f--'- ~ratlveI7and, as one along the top
ofan Interior waII, Immediately !1e1ow the
cornice, or asculpturea one In a
st.rln~course on an outside wall
i
:
i
DO
=",,'mand "~'"gth, "''' ' r
DO. .00
r-- r---
ffi
I--I---
~~ JnCtdi~ ,-................._........- ....
An ~~III'IOId1"4 3rove the pUnth
ofJ~t plfbr.CX'W31l
~rd _ ..-_.._......._-.._..._...
AroarJor mcIdI"4 conct;1hng thejol~
~ an Interlor1r.I".1ndthe ftoor.
Also ~~ mopVo.ard. 5kJrt.
~hoe
A ~a ~1~ as aqlQrtu round.
covering thejoint between abaseroard
~d the ftoor..AJso ca'b:f N se sho~ •...... .......-'.....•.....;
broken ptdiment •..."-"" ...................
ApecfllrC'!t ~v1ng its rat:1~ cornices
it!temJpW at the crown orapex. the
~F often Peing filled wtth an ~m. a
~M. or other ornament.
~rchit.l7ve •............,----....---..--........
A~ crdecoratlve band
framlri a rect4"4u13r dooror
window openlr14.
retw'I
The~ of.1 rnoI.::i1"4.
projeGt:lon. or other pa~ atan a~ Ie.
~ily ~ to ~ ,",in part.
·--·----1
DO
DO
00
DO
......_........_......-}
ancon
A~L"t or console used In claSSical
archlt«t.u ~ to supportacomIceor
theentaNtu~ (Net' adootway or
window.
:ltop
Afeatu~ tennln3~ a
molding cr charnfet'.
,~-....• plinth ~Iock
/ Apftnth for stopping the architrave of
: adoor or window arove the floor.
186
b ~erlUcle fr~me
Aframe 3round adoorway or niche.
havl~ two columns orpilasters on a
base supporting apediment.
plinth
Aflat, plain mtmper at the rottom of
an archltr:ave. dado. or Da~ard.
DO ~ I---
DO ~ i--
DO f-- ,--
DO "-- -
- -
SWJn·5 ~Ic petIlment
AInUen pedimenthaving an 0U'tl1118 fonnea
I1ya"..!rof S-Curves ta~ to the
horizontal corniceat tM eMs ofthe
pediment anarising to apair ofscrolls on
eithersIk ofthe center, where afinial
often rises between the scrolls.
coronet
A pedimental ornament wrought In relief
over aWindow or door.
I;
l
l
l
l·
L
L
i
j
!
I
j
~:. ~.
PAINT
91o~
1M degree of 5~ luster of adried paint
film. 171~ In ~51ng order of gloss
from hlgl! gloss, semigloss. eggshell. to flat.
pigment
A
1
.>.. Afinely grouna.lnsoluble substance
. ~~~t}i::-. suspended In aliquid vehicle toImpart
17inder ::.:<.~..:;.;.~ color ana opacity to apaint.
Amixture ofasolid pi~ment
suspended in aliquid vehicle,
applied as'a thin. usually opaque
coating to a 5Umct for
protection and decoration.
hi9h9~S
H3~ al1rlliant shun or luster.
tfi2mel
Arry p3intorvamfsn drying to avery
smooth. hard, usuaOy glossy finish.
~~~
H3Y1ng a I1Oder.1te. satlny luster.
prod~ aflnIsh InIdw3J' Detween high
~loss ;3nd ~skell /JS() called sztIn
finish.
eggshe«
HavIng tittlt or no gbss. producing a
flnlsh It1Idway ~ semlgloss and
flat.
fut
Without gloss or sheen.
The nonvolatile part ofapaint vehicle
that ponas particles ofpigment Intoa
coheslvefilm d~rlng the drying process.
&Olvent
The volatile part of apaint vehicle th3t
evaporates during the drying process.
thinner
Avol2tlle liquid usea to dilute paintor
varnlsh to the cleslreJ or proper .
COf1slstencyfor e35e In application.
minerai spirits
Avol3tlle alstlll3t1on of petroleum. usea
as asolvent and thinner for paints ana
varnishes. ,
turpentine
AcaIorIess. volatile all ol7t3lned by
dlstllling oleoresin from various conifers
colorfast ana useJ as athinner ana solventfor
Having cdor that will not fade or run '. i .. paints ana varnishes. Also called 011 of
with 'tIi'2Sh1/1§. age. 01' exposure to .."" ! /'. turpentine. spirits ofturpentlM.
il9h
: esp. 5Un~ht. -., :'~O·.~.:'.-.'.: '"
utinlcray ". ..... ".
AI"4IJ' of Ii9ht, as ultraViolet. th3t ' " ,......
p~ pI1~lcal effects. as
the~ch4~and
dlslrrk.gratlon of paint coatings.
photocl1emicll
Of or perbln~ to the chemical
utlon of radlant energy. esp: light.
c.over1¥
A~ ofthe are3 over which a
galo!1 ofp3int ffU'J be spread ;3ta
given thlcknGSS. u$U311y expressed
In 5<.1uJr6 feet per~Ilon.
hkfi~ power
The ability of ap;llotfilm to conceal
arry naris. p;mem.or color on the
s~ to wfllch It Is applied. Also
calted ~~ power.
a~lvtpamt
A paint or~ s~1311y
fOrTTltlbt.ed w!th rust·lnnIDltln9
pigments to pm-entor reduce the
corroslOfl of 1"e"..4l sm'aces. Also
cal1eJ ~t'1mi~ paint.
fjre'r~r~nt paint
A paint ~bny formulated with
slllcOfle. poly.-llTJi chloride. orother
sUP-stJnce to reduct: the flame·
spmd of;3 cocrbust$1e material.
~t·~i'brrt paint
A paInt ~I!oj fonnul3ted with
51~ reslrts to withstand high
tempv;it<Jres
palnt'~tem
Acomlrlna'tIon ofone or mort: coatll19s
~ for ccmpatllrlllty wfth each ather
ana the surface to which they art: ap~led,
as wellas suitabilityfor the expected
expcsu~ and desired decorative effect.
gL1zecoat
Athin CC3t oftransparent color applied to
enhance thecolcrofapainted surface.
m~at
Athin. sometimes pi9inentedcoat awlled
to afinish C03tto Improve its luster.
topcolt
The final coat ofpaint applied to asurface.
Also called finish C4.1t.
undercoat
Aprimeror~ate C03t applied to
hide tM ccforofthe substrate and Improve
aaheslon ofthe topcoat.
ground coat
Ap~ or basecoat of paint Intended to
show through atopcoat. Also callea
,roundcolor.
l1a,ecoat
Afirst coat ofpaint orother liqUid finish
appl1ed to asurface.
primer
Ar.IseGOat applied to asurface to Improve
the adhesion of subsequent coats of paint
or varnish. Also called prime coat.
&U1er
Abasecoat applied to asurface to reduce
the a~sorptlon of su~sequent coats of
paint orvarnish. or to prevent bleeding
~rough the finish coat.
+
vehic~
Aliquid In which pigmentIs diSpersed
before ~el~ apphed to asurface. to
control consistency. adhesIon. gloss.
and duralrliity.
c:fryl~ oil _______--l.) oil paint
Arryofvarlousolt-. organic liquids. Apaint In which the vehicle Is adry!~ oiL
as Ilnseecl 011. that ox/alzts ana
hardens to form atough elastic film
when exposed In athIn l3yer to aIr.
alkyd I't'ln _------4) alkyd paint
Anyofa group ofsynthetic resins ApaInt In which the vehicle Isan alk)ld resin..
derived from apolyvalent alcohol In
reactloo with an organiC acid. usee! ep01:J paint
chiefly In adhesJves anapaints. Apaint having an epoxy resin as a
i1lnderfor Increased resistance to
a~ras1on. corrosion. and chemlca!s.
latex --------.....) IaUxpalnt .
Awateremulsion of synthetic rul7ber Apaint having alate:-c Innder that
or pl3stlc globules ol7t3lned by coalesces as waterevaporates from
polymerization and used In paints the emulsion. Also called ruDDer-pase
ana adhesives. paint. waur-l7ase paint.
dye ------------4) ~toIin
Asolu~1e coloring material that Asolution ofttje or suspension of plgmerrt
Imparts color by a!1sorptlon. In avehicle. app!1eJ to penetratearJ color.
W3ter stain -1 wood surface wtthouto!:>scuril19 the graIn..
Apenetrating 5"..3ln made I7y t-··· penetnti"9 stain
dissolving dye In awatervehicle. A staIn that per..etrates awood sumce,
leaving avery thin film on the surface.
spirit min
Apenetrating stain maae I7y
dissolving dyeIn an alcohol or spirit
mlc~ ~
Astain made I1y dissolving dye or An 011 stain corrt.lnlng plflments c.opable of
onmin. J
....pigmented stolin
suspending pigment In adryIng 011 or o~5Curing the graIn and texture ofawood
011 varnish vehicle. surface. Also called opa'lue stain.
copal _________...!o) varn~h
Ahard. lustrous resin ol7t3lned from A!'quid preparation consIsting of aresin
various troplc<ll trees. used chiefly In dissolved In an 011 (olt varnish) 01' In
makIng varnIshes. alcohol (spirit varnish). that when spread
and allowed to dry forms aliard, lustrous.
'par vam~h usually transparent coating.
Adura~le. weather·rtSlstant varnish
made from dUI7IUle resins and hnseed
or tul19 011. Also called nurfne vamlsh.
polyuretUne vam~h
An exceptionally hard. abraSion·
reSistant. anachemlcal·reslstant
varnish made from apl3stlc resin of
the same name.
~c ---------...!o) shellac
Aresinous secretion of the female of Aspirit varnish made I1y dissolving
the I3c Insect. used In makIng shellac. purified lac flakes I" denatured
alcohol. Also called shellac varnish.
Chlne,e lacquer
Anatural varnish outalnea from an
Asian sumac. used to produce ahighly
polished. lustrous surface on wood.
Also called Japanese lac,uer.
lacquer
Any ofvarious clear or colored synthetic
coatings conSisting of nItrocellulose or
other cellulose derivative dlssolveJ In a
solvent that dries by evaporation to
form ahigh-gloss film.
187
PLASTER
Acompositfon ofgypsum or lime.
W4iW, sand,.and sornet;imes hair or
other fWtr. appUed in ap~ form
to the surfaces ofwalls orceilings
In .a plasticstate andallowed to
h3rden and dry.
gypsum p~5ter
AI7asecoat plaster 1T13~ ofC4 !cir.ea
gypsum mixed with S3nd. ~4.2rJ
various aaattivesto control :;5 sev,j~.g
and wafting 1U3I1tleS.
calcined gypsum
Gypsum heated to drive off ~()st ofi';s
chemically com!7lnea waw.
plaster of Paris
Calcined gypsum In white. p""'OeryfC17',
containing no addltIves to c..:r.t.rol the
set.u~a$a u.seforgyp5'i:r! pla~~i.
as an addltlve In "me pl3st.tr. 2nd as 3
matertll for makl~ arname:':"tJl casts.
three-C03t p~sUr ------------,
P;Isterwori:: applle.::f In three sucasslve
coats,a scr.atch ccatfollo~ I1ya
brown C04t and aflnlsh coat.
gauged~ur
AflnlsJl coat In plastering. conslstlll!J
oflimeputtyto wfllch gaugl~ plaster
Is ~ to control the set1:lng time
anacou~shrfn~
g.1~lng pbstel'
Aspectal!y~round gypsum plasterfor
mixing I'I'ftIt Rrne putty. fonnubted to
provide c:Ithera'uIcl:-setoraslow-
set fora.flnIsh coat ofplaster.
~rdfini5h
AftnJs.h ~t of lime ~ and ~n.e·s
~orf3~I~ plaster, troweled
toasmoot11. elense finish.
lime JXItty
Quicklime slaked with sufficient water
to fOt'll atj,1ck plI5te. Also caled
pb5Urer't pvtty.
Keene'5~
Tr3demart for amndOfwhite
anhydrous ~um plaster~
prodtasanexceyUonally~
&en~ cract-resl5b~ flnIsh.
~nhy~
Havf~ .. .merofCl)'staBiutlon
removed.
whltecog
Aflnlsh coat of lime putty and white
ga~lng pbstel', troweled to a
smooth, &ense finish.
finish coat
Theftnal coat of p!3ster. ~~
eitheras aflnrshed surface C)' n
a!r.Isefor decoration.
slclmcoat
Athin levenng or finish coat;f
plaster.
veneer~ter ~-.--.-.-..-.-..------.........
Aready-mlxed gypsum pbst.erapplled
as avery thin. one· or two-co~flnlSh
overaveneer I7ast. Also callea thln-
coat pta.sttr.
acou~1 plaster
AIow·~ plastercontatn.ing
vermiculite orother porous nuterlal
toenhanu Itslll7llJtytoa~50und.
188
gypsum
;.. soft mineral hydrated calcium sulfate.
~ as iI retarkr In portland cement
And ~ :'~e mal:1~ ofgypsum plaster.
.L1~.15ter
Afir.e!y ~ranularfonn of pure ~sum.
*~ white and translucent, used for
orn31T'.ental oPjects and wort.
.. .• two-coat p~5ttr
~~ lIPp!lea In two coats, a
lra~t fol1owea !1yaflnlsh COlIt.
brown coat
Aroug~ ftnts}~ leveling coat of
pl.a:sUr. ~ ~ second coat In
th~ p!ast.erorthe base C03t
In t~ p!ast.erapplied over
gyp$iit:1 bth or 1TI35Onry. Also called
f.o~ c.aat.
Iimepbster
AmlxtlJ~ of lime. sand. and sometlmes
aflPer. used as a~3secoat plaSkt'.
cementtempu
The addltlon of portland cement to Orne
p/4ster to Improve Its strength and
dura!7lltty.
~asecoat
Arry plastercoat applied ~efore the
finish caat.
~rmhcoat
1Mfirst coat In thru-coat plaster.
which Is scrat.ched to provk:le aDetter
rond for the second or In-own coat.
IurawaD
Alr3seroat of ntat gypsum plaster.
nutp~ster
Agypsum u.sec.oatplaster having no
admixture except hairar otherftkr.
used for on-the·Job mixing with
agg~3tes.
wood-fibered pla'ter
AI:'IIfI-ml.xedgypsum Insecoat pl3~...er
containing coarse ceDu~ fI~ers for
gre4W InJIk. strength. anaflre
reslst3nee, used nator mixed with
~rJ to obt3ln alr.lsecoat ofsu~r'.or
hardness.
pond pU5Ur
A~um Insecoatplaster containing
asma" amountof nme and chemical
~ to Improve ~ bondof
succudlng coats f.o &en~. ncnporoos
su~
9Y!"um-perllte plasur
A~um ir.lseccatpbstercontaining
periJteas an aggl'e9te to reduce Its
~t and l:Ic~se Its therm31 and
ftre resistance.
gyp5um-vermlcullte pb5ur
,.. ~um baseccatplastercontaining
vermiculite as an aggregate to reduce
Its weight ana Incre;ase Its thennallina
fire resistance.
ready-mixed pla~ter
Plaster that Is formubted and dry-
mIxed !1y the manufacturer. requiring
on~ tile addttlon ofwaterat theJoD
site.
f
I
I
I
[
I
rr
renderi09 C03t
The first co;rtof plaster on A
Nsonry dAIso C31!eJ rough
coat.
5"...~rdasb ._....- ....................+_..+.._...#" .. -1.
Awet. rich ..of port13nd cement
anasan.d thrown ontoasmooth brick
orconc~ surf3Ce and .Itcwed to
h3rden to prcrt'IJe a~ for afirst
~t of pbster.
key
Agrooving orrou.:Jhness appl1e.d to a
surf.;c.e to lItprove tts roM with
.notr.erSiJrbce.
me!di"9 plJ:ster
Apl.aster llsc:d In ornamental worl
conslstfng offlndy ground gypsum and
hydrmJ hire.
running nw&d _..._....................
Ash~·~1 tcnplate cut to the
deslred~. !lacked With wood. and
pUS~;lon.§ l>etween temperary
grour.ds or Mes to form 3 plaster
rnokfl~ A~ the .ngle ~twU!l awall
anaullIr-1- &,0 cartea ~ meld.
hoNe
The l'I~ support for tr~ sheet·
1"r1et31 tem~ ofarunning maid.
pargeti"9
Fine or:'.3fT1e1rtJ1 plasterrrorl:. esp
extd.cr p{3sterrlorl: be3r.n~ designs In
low relid. Also. parget
PLASTER
, .._............. 5tue<:O
l Acoa~ plaster composedof portlana
Of" masonry cement. sand. and
hydrated lim~. mixed with water and
applied In aplastic state to form a
!tard covering for exterior walls.
portiand cement stUcc<)
Stucco made with masonry cement or
with portland cement mixed with less
than 50~ by volume of lime.
-portland cement-lime stucco
Portland cement stucco to which hrr.e.
Is added In an amount greater than 50~
by volume to Improve the plasticity of
the mix.
.Ibarium
Astucco used In anc~ times. 1113,u
from powdered marble and lime mortar
and often pol1shed.
intonaco
Afinish ccat of plaster made with whfte
I113rble dust to reulve afresco..
$C3gliola
Plasterwork Imitating granite or marole.
sand-flcatfinish
Atextured flnlsh ccat of plaster containing
sand. leveled and smoothed with a&nf
....• &atfinlsh
,:,•.::.~.;,~:.:::.::.;; ::-':;·,··,.:·~·!~'...i,:·;'.:;':l Afine-textured stucco finish produud by
K'.:,::}I.~':.;.::~~.~:::.:~~;;})":::f.:~;..: smoothl~ with aC3rpetor rul:rPer·f.ae&:l
float.
dau17lng
The process of giving awan arough flnlsh
by throwing plaster agaInst It.
....... pePpledash
An exterior wall finish produced by
throwing ana pressing small peb~s Into
unset stucco.
_..... roughca5t
An exterior wall finish composed of a
stucco mixed with fine pebVles and dashed.
against awall. Also called spaturdash.
189
p~AmR
L1ih
Anyofanumber ofsulbb'e surfaces
for receMng pbsterwort as gypsum
lath, metal lath, wood lath. masonljl,
or brlc~wort.
wood IJth •_______.__. _. ______________________...________ i-_-
•._-
__
-.-..~--::-----....r- pl.1!ter~l'td
The ulhe$lon ofpIJster to its Pa5e
producea ~ mech..nlc3l or chemical means.
metalbtls
Aplaster Pasefal1nc.W d exp3Mea
metal orofm fabric. palnteJor
Athin, ~ITOW strip of wood used with
otherstrips to form latticework. aUac~lng
for plasteror stucco. or asupport for
slates orother rooflng material
furring ~._..____...__._._.____.. ---- --~- ..,
The attaching of wood strips or metal
channels to awall orother surf.1ce. as to
provide an e'l'e:1 Ua5e for lath or afinish
material. or to provide an air space
between aW3n ana afinish material.
galvanlzeMorcorroslon resistance. , ' . ' ,;
::$r'=~~1=:--~.!
stiff networtwith diamond-shaped
.~~ - . .
n1rlath ~--------------------------------I!I.~~
An expanaea-met;1I bth h2v1ng V-5haped
ribs to provide greater stfffness and
ptnnlt widerspacing ofthe supportlng
fr3m
Ing IT1eft1bers.
5e1f-ce~ lath
Aril1lath usea (}It( stuljolsts 35
fonnwori: rorconcme s/aj,s, oras lathing
In ~ plaster partttlon~
5eJf..furril1'!f~ ------------------------
~Mea-~l welJed-wl~, or woven-
m ~th M Isdimpledto Sp:iCe ltse!f
from the supporting surfac.e, c~tlng a
spacefor die keying of plasterorstucco_
.. wfrebtJa --------------------------~
W~- orwoven-wire faurlc, usually with
apape!'17act1ng. usedas aUase for
pI4ster or~.
paper-l7aaed~ ... ------.-----.
up;aMea-met.1lor wire lath having a
~I~ of perforated or in:lkilng paper,
usedas ansefor pbsUrorstucco.
C<lrnet' bth .------- --.- ----- --.. ---- ....-. --------- ----.
Astripofexpanded-metallath !lent to
form a900
angle. use.dat an Intern31
con'oerto ~ent crulsIII plastering_
Also called comerrdnforc.ement.
!tripbth .-.........-.------.--.---. ---·----'r'I'.W-MrW
Anarrowstrip ofexpan&ed·rnetallath for
reinforclngjdnts In gypsum lath or
Junaures betweenctiferenttypes of
pbster 1r.1ses.
5Cnm
Coarse cotton, flberglass, or metal mesh,
~ for ~11!g and reinforcing aJoint or
as aInseforplastering or painting.
gyp,umbth .-..------------- ..-.. -------.-.
Gypsum roard having an alr-entnlned
corebceJ withaj,sorWn-t paper, used as
a !r.Jsefor plaster. Also called rock bth_
perforated9YP'um bth
Gypsum lath punched wIUt small holes to
provloull1eChanlcal keyfor plastu..
in,ulltlng gyp!um lrth
Gypsum lath having an aluminum foil
Uacklng that serves as avapor retaroer
and ref1ecUve thennallnsulator.
venurl:ta5e
Gypsum lath having a spulal paper facing
for receiving veneer plastu.
190
.'..:
mechJnleaIJ,onJ
The physlc3l keyln~ of aplaster coat to a
plaster Pa~ or with another plaster coat
rougheMd Py scoring.
ponaing ..gent
Achemlc315u~tance applied to asuitable
sul>strate to impreves Its !?ond with a
sucettding layer.
s~n
The aDsorption of water from afinish coat
of plaster by the ~seco3t or gypsum 14th.
resulting In abetter Dond.
:: r··J-..-ground
.- .-_. ,..-/ '.', Ast,;p of wood or ametal pead used at
>
..:..-..,-.. an a~lng as a~ulde for plastering to a
.' given thJc1::ness and as a stop for the
p~
~reed
Astrip of wood. plaster. or metalappNed
to asurf.1u to ~ plaS'tt:red to serve as 3
gUide for making atrue surface and
plastering to agiven th1cl:ness.
----------- ---------.-.--.--. "a5e screed
Apreformed metal screed for separatln~
i,;~m.=,=~~n;;::~
AptrforaW metal screed for venting a
conceaW space behind a plastered
~~~c.Lu.:;:wn......
Aprefom-te.d met.1 screed applied (]m
Jolnts In gypsum 13th to co:ttrolcl'3Cklng.
.;.~.~:~:~:;·:.::~:J.&f;~;-···.:F---· ~=~"!etaIStrlpInstalled to
. . rel1eve shrinbge. tempernu~, or
1. structural strts-ses wtthln a large
plastered or stuccoed area.
·---Au_u"nuu·s~~%=~
A
asafroundanato~and
protect an external angle In plasterwori:
ora g:ypsum board surface. "Iso called
.I~Ie~
~
. --'I1uIl~~rner~
. . . __.______~_.._._. ::h:::~7aroUnded~~
A~ cormr~ forfannlng and
reInforcing the curved portlon ofan
3rchedopening.
.<,--" ~!Ing ~d
.,/ Apreformed metalstrip ~n9 an -
• expanded or perforat.e~Hla~e and·
variously shaped ends. useJ asagrOuna
and kl5kengthel! 2!".d re!llforce the
edges of pl3st.erwori: or " gypsum Dema
surface.
L
I
J
j
J
I
1
I
L
b
rounded edge
tong~ &groove
.....::;. :.:;i) (d..:;/~'." ':":" :.;.;
}5'::.:..::,/},":;:~ t~;l/;:;..-.:......:. '.:.:':':
-·.·.··:·../-.:,:,..·-~·::;<d)y(~,·k.::·;::·::· '.'; ::.::
joint compoulkf ~...........-.-.............-.
Apastycompound for embeddlngJoInt
bpe. fltnng k1kntatlons, anaflnlshlng
thejoints In a~um'board surface.
jointtape - ................-.-.- ..----......---,
Astrip ~ paper, paper-faced cotten, or "
plas;lc mesh used withJaint compound
to w;er th~Jolrits ~etween sheets of
gypsum board.
PLASTER
wallpoard
Any of V3rlous sheet matertlls used In
co;erin~ awall or celling as asuVsmu~ for
pl3s~ror paneling.
..- gypsum poard
Asheet rruterlal having agypsum core
faced with paperon each side, used for
coverin~ walls or as 13th. Also called
drj'Wall. plasterboard.
Sheetrock
Trademan: for a~r3nd ofgypsum roard.
.....,.... type-X gyr-ium uoard
Agypsum boord havfng acore
containing additives for InGreased ftre
reslsta nee.
......--- backing "oard
An Inexpensive gypsum board usee! as
the lr.Jse layer In amultilayer assemPty
for Incl'e3sed rigidity, sound Insulation,
and ftre resistance.
'-'" card-oard
Agypsum boord I-In. (25.4 mm) thick.
used as a!?ase In solid gypsum-mrd
partitions and for hnlng shafts.
-.--- prefinish.ed gyp~m poard
Agypsum boardlt3;t1ng adeco;.atlve
vinyl or prinW papersurface.
r-----····--·--··--·- foil-l7acked gyp,um "oard
: . Gypsum Po<ird having an aluminum foil
backing that serves as avapor ~rder
and as artfIectlve ~llnsul3tar
when the foil n..iesa3/;, In. (19 mm)
minimum air space.
. ~=~ -.---..- gyp,um ,nutblng
. Agypsum board havfn~ aflre-resl$bnt
core and faced with a water-repellent
paper, used as exterlor sheathing.
191
PLASTIC
Any ofnumerous synthetlc or
n.1tur21 organic materialsthat are
mostlythtrmop~st1c or
thermosetting polymers ofh~h
molecuw- weightand ~t can ~e
mokltd. extruded, ordrawn Into
objects,films, orfitament6.
casting •..-.....-..---------........... -
Amethodof shapingapbstlcoPject by
pouring the mmnallnto amoldand
allowing Itto harden ~ the use of
pres$U~
!now molal,,! - ...-..-...-----...................--...-.....- ...-...........-~......
Amethodofforming hollow W<ll'e by
=.~~:=::~:~~ @t.:.:.:.~~~~:M£ ]
wplng the Jltltenal wfthln amold. . : '. '.':. .... .~ . '
=~:~~;:-- ::t,'"~··~:D·
rendering Itflukf In 3 ~tlng cham!1eran d :
then forcing It under h~ pressure Into a •
closed mold.
Q)mpre,,u,n moldi19 •.............- .....'
Amethodofforming *nnosettlng
pbsUc l!y~ a maY CII J1;, forming the
Nterlalily hQt and pressure.
tr~~ermotding .
Amethodofforinlri *nnosettlng
p/2sUc l!ysoftening It in one cham!1er
kfon, It Is forced Intc an Jc:fjacent mold
where It Iscured under ~ aM pressure..
thermoforming
Amethodof sh3pl~ a~rmoplastlc sheet
~ heatli19 and forcing It against the
contours ofa mold ~ he:at anapressure.
~,ure forming -.---.......-...-....
Amahodof thennofoml"9 aplastic sheet
~ forcing It against the contours ofamold
with compressedair.
vacuum forming - ...........................
A mahod of thermoforming aplastic sheet
Vy evacuatl"9 ~e space f,etwun the sheet
and the contours ofa mold.
192
resin ( ...-..................................... acrylic rt,i/'I
ArtyofnumeroLlS salla or semlsolk:l . Anyofacbss of thermopl3stlc resIns
organic substances prep3red by u~ for C4stl~ or molding plastlc parts
polymerIzatlon ana u~ with fillers. that are except1on.. ~ transp:3re:1t. tough,
stal1illurs. and other components to and res.lstant to wmnerand chanlcats,
form plastics. or as the main In~rehnt In CD4~s.
filler adhesives. and cau!l:l"1 compouMs.
Are!at1vetyInert subsbnce added to Lucite
modlfythe Pulk. strength. he3t TI'3demarI:: for " m rJ of transprent
resistance, ele.ctrlcal resistance. or acrylic resin.
wori:lng properties-ofaresin.
,ta17f1izer
AsuVstanceadJed to prevent or retard
~e ~radatlon ofapb~1c when
exposeJ to the ultraviolet raalatlon or
other environmental conditions.
plasticizer
AnyofV2rious substances aaaea to a
resin to Increase Its wori:al1illty and
flexll1iUty.
cat.1ly,t
Asul:lstancethat causes oraccelerates
achemical reaction without Itself
undergoing apermanent change In
composition.
calendering
Amethodofproducing plastic film Or
sheeting ~ ~SSI"9 the mater/al
~n aseries of revoMng. heated
rollers.
,hettlng
A~In form ofplastic. having a
thickness very sma" In proportion to
Its length anawidth.
film
Sheeting navlng anominal thickness
not greater than 10 mils.
Plexiglas
Traae~rI:: fO(';a mnd of light.
transp-ent. we3ther·reslst3 nt acryHc
resin.
polycarWnaU
Atough. trans~rerrt thermopl.asUc
ch3~ ~ Its nlgh·fmp3Ct strength
and use.a for tlgbtl~ ~res. $4fety
glazlng. arJ h3rdw41 re.
Lex.an
Traaemali: for a!:onrid of ~h
poIycarro,..te used for sh~
windows.
poly~~
Atough.1I.;1rt. and iblble ~stlc
u5e<J esp. In the form cisheetlr.g .. nd fllm
for ~ I~ dampprooflng. and as a
vapor retarder. Also c.l1ea ~.
polyproprieM
AtoIJ4h. ~p!ast!c U1at Is ~!st..nt
to he;rt .. rJ chemlc.1ls and used for pipe
ftttings. ~allr'tSulatlon. ar.a
carpeting f1Pers.
po~ne
Ahard. toJgn. sta~ thennop!ast:<c that
Is easily coIoreJ .. rod moldeJ. expr~, or
rolleJ Inta ~.
~rylonitn1e-~i.ene-5tyre.r.e
Ath~sUc used for /T1;1Klng piastlc
pipes and hardware products tJ..3t a~
tough. rlgLd, and reststJnt to hat 1M
chemicals. AbW.;ASS
vinyl
Anyofn~ ~h. ftexJVIe ~s
I!1adefrotn ~ resln.
polyvinyl ~In
Anyofacl2ss of thmrcpIastlc res.71 s
fonned by ~i§ or~ng a
vinyf ~ AI5c c.Sed v1nyf resJn.
polyvinyl chloride
A'whlte. nter-Insciu~ th~
widely u56d In tM ~numture of1Jor
caverings. insulation, and piping. AZ?r-.:
PVC
polyvlny{ ~I ,
AthermoplasUc resin used ch~.s the
Interlayerof s.afety ~l;ass.
ny(on
Anyofa c!ass of thenr.oplastic5
cnar.IGtertud Py ex-
.....eme touqMes5.
strength. arJ elastldty and cap3~ of
!1elng extruJed Into flI3~T1ts. fI~.•na
shuts.
1
·..
"#.. :.~
... :
'-il
f
I
l
l
l
I
L
f
,
La
r
i
L;
'1'
i . ~~
"::." ~."..'.
~ . ~ ..~
wrmosettlng p~,tic
Apl3stlc M Pecomes ~nently rigid
~ heated and cannot De softened again.
Also called ~et.
polyl~
Arry of various t:hennoplastlc or
thermosetting resins used In flexl!7fe and
rigid fooms, elastomers. and resins for
salants. adIIcsNes, and C03tlngs.
polyester
Arry of agl"Ollp ofthermose«lng resins
used In the ~ure of plastics anJ
te:xtltefll:>ers..
,~ temperature
The maximum temper2ture at which a
pf3stlc can ~ continuously employed
without anotfcea!7le reduction In arry of
Its Inherent properties.
5Oft.enlng pcint
The temperature atwhich aplastic
changes from arigId to asoft; state:
fiPe:fgtas!-ttinfo~ pta5t~ .------.--- -
A~ reWlXUd with glass fJ!7ers
and useaII kansluunt roofs and
~hts, bc:lng:s for sandwfch panels.
,lid molded pkImi>lng flxtures.
Dacron
Tr3demari:: for amnd of strong. wrlnkle-
~t.ant po/'jesttrflDer.
Mybr
r~ri::fora mndofstrong. thin
~~fllln t15eJ In photography.
r:x.ardlng t3peS. and ee:ctrlc.of Insulation.
tpc1:Y resin
Arry of various ~ resins
cap3Ple offcmin.g tight Cl"C:Ss-nnked
~~cha~by
~-nness. ~ aaMslon. and high
wroslon anachembl ~nce. used
esp. In surface C03t1ngs and adhesives.
mdJmj~~in
I-.rry of aclass of ~~~ resins
f~ by ~ !n+.mctk1n of meLomlne
~,-.J fonn4lddr.i~ ana used for molded
products. adr~lves. and surface
cc;;tl~
phenolic ~
PLAmc
ruuber
Arruttrl31 m3de 7y chemically treating and
toughenIng natura! rubber. V31~ for Its .
el3stlclty. nonconductlon ofelectricity. and
resIstance to shod: and molsture.
J...-...................... n:rtur~1 ruul1er
• Ahighly elastic solid substance.
essentIally apolymerofIsoprene. o!;rtalned
7ycoagulatlng the milkyjuluof rubl>er
trees and pf3nt~ Also called India ruPM-.
fo~m rubber
Alight. spongy. cellularrubDer ItI3deby
foaming I3ttx before vulcantzaUon.,·
vulc~niution
The treatment of ruul>erwtth sulfurand
heatto Impartgre~terelastlclty.
stren~. and durability. .
' - ••".r..- •.,~ ............- :lynthetic ruuber
tamirate
Aproduct ITI3de by uniting two or more
byers ofIT13terial by an adheslveorother
rr.t417S. 35 plywood a'ld plastic /amInate.
'. plJ.5t1c bml~
AhJrd surfacing rrutertal consIsting of
~poerpo".,ec:f layers of paper Im~nated
wtth melamine and phencUc resins. fuse.::f
~ under ~t.and pressure.
An ef3stomer similar to natural rubber In
propet"tles and uses. produced-11y tM
poIymerlz3tlon ofan unsaturated '.
hydrocarPcn. as lnstyIeneorisoprene. or by
thecopolymerization ofhydr0c3rrons With
styrene orInJtadlene.
eI~,tomer
Any ofV3rlous polymers haVing the elastic
properties of natural ru~!;rer. as Irotyl
ru!7ber or neoprene.
butyl rubl7er
Asynthetic rubPer having exceptional
resistance to sunlightand unusually low
gaseous permeability. produced Py
polymerizing InJtylene and used In roofl~
meiOmnes and l'r.lterprooflng barrler3.
Butyt
TraJemari:: for 3 mnd ofbutyi ru!7!;rer.
neoprene
Asynthetic rubPercharacterized by
superior resIstance to oils and sunllglrt.
and used In paInts. roofing memmnes.
flashing. !!askets. and ~arlngs.
silicone rul1l1er
Arry of aclass of h4rd. he.t·reslstant
~~ resms formed by the
~~tblcf~ with
f~kleh)'de and used for IT'.okled
P"""Aucts. adhesives, ana sumce
~~ngs. AlsocalW ~st,
...-......... h~h·pr~'ure tamlrt4te ArubPer rrude from sllicone elastomers
and noted for Its retention offlexI17IBty.
resilience. and tensl~ strength (Ner awide
temperature ra"¥.
enerrte
T~ri:: for agi.ilnaof d4ri:: phenolic
I'e$ln. ~ by Dr. Ltc l3~land In
~-6. and ~ for ~hone reu!vers.
~.o C3~nets, eb:;trIc Insutators. ana
~ ~stlc I.3rdw.1re.
Ure.Horm..~ ~i"
Antof Y.1ricu:s ~n.g synthetic
re:Jn ltilde byc.ondenslng urea wIth
fO"W~ Jnd used In ap~nce
ho.i$lngs, ~I devices. #dheslves.
and ~rface ccgUngs.
,.
. Aplastic laminate molded and cured In
the i.iI~ ofpressures from 1.200 to
2oCOO psi (34 to !40 ~ per54cm). used
for wfaclng countmops anaca~netry.
....• Icw-p~,ure tam/ute
Aplastic laminate molded ar..:l cured with
aIT!3xlmum pressure of 400 psi (28 kg per
Soq. m). used In vmlc3lanJ low-wear
applications.
Form~~
TraJemari:: for a~rand of plastic laminate.
:- ~nlcone
i Anyof.a group ofpolymers contaInIng
1 .alternating sAlcon .and oxygen atoms,
: characterl:z.e& bythemial stability.
: chemical Inertness, and extreme W<Jter
1 repellence•.and used In adhesives.
; lul7r1cants. protectivecoatIngs. and
'1 synthetic rubPer.
193
PLATE
Arigid, planar. us~1Iy monolithic
structure thatdisperses applied
Io.Ids In a multidirectional pattern,
with the loads generally following
the shorttst and stiffest routes
to the supports. .
plate action
The,manner In which an appllea load Is
transmitted to the supports of aplate
In amultidirectional pattern.
ApUtec;n reenvfsloneJ151 seriesof
upcart~strlpS~ .'
corrtJnuously;/ongtlreHmgths. _................'
AsmIppIIeJloadIs trlll5l1litteJto the
supp0rt.5 througlt ~ ofonebeam
st.1'. the Io3d15JIstrtvteJovertheentire
pImUywrtlcllsIseztnnsmittUfrom
theddftcttJstrlptoupurrt~ .................
The~ Ofone~~ilsoC3uses
t'M5tlng oftransverse5t:rip5. whose
torsIorulresl5t3nce 1na'ea5eS the overall
~ffne55 ofthepIm. T1Ierefore. whIfe
Pending;nJ sheartrlnsfer111 appfIeJload
in theJirutJon oftheloiJeJbe3m stnp.
sbarIlfatl+f5tl~ t:r.1n5fertheloadat
ridht1ngles to the101deJstrip. ..- ...........-
contlnuou, plate
Aplate extending as astructural unit
CHef thru or I1'1OI'e supports In 3 given
dlrt.Ct:lon. AcontlnlJOU$ plateIs subject
to lowerbendlng moments than 3 series
of dlscrete. simply supportea pla~s.
foldedpllU
Aplate structure composedof
thin. deepelementsjoined rigidly
along theirboundariesand forming
sharpangles to mceeach other
against later.al pucUng, The
resulting stiffnessofthe Cross
sectlon enaUles afolded p~ to
span relatlvefy long dlstanus.
194



.
EachplanePeh3Ves1s1 beamIn
thelongltudlnlldIrection. •..................
Vert/c;ldiaphragms orrigId frames stlfftn a
folJedplateagainstdeforTTl3tlon ofthe fold
profile.
Apl3te5houldPe sqUiirtorntarlysqU2rt
to (;f1SUrt thatIt ~h3re515a two-ny
5trocture. As1 platebecomesmort
rut1ngu16r th1n square. the tlIC~
actlon decreases lnd1~-way5ySt.trn
5p3nnlng the 5horterJlrtCtlondevelops
sitU tileshorter~ strips1restiffer
1nd~rryI gre3terportt.mofthe 10M.
~~~J~~;;~'~~;di"-~'
. :
curved nus which follow the . GiJ j
lsost4tlcs of'the structure. n _ ~
In the shortd/~n. the span15reduced
Uy~" foldlCtlng151rigid support.
1505tatlc,
u~ of principal stress Ir.dicatlng ~
flow ofI1endlng stresses 3M3 long which
torsional shear stresses are zero.
;.-Transverse strips ~have 1S1 ccnt/tIU0U5
bc4m supporteJ1t foldpoints.
I
.I
I
J
,
I
.1
I !
I
1
!
i I
1
l-
L
L
I3mella roof
Avaulte4 roofcomposeJ of lamellae
forml~ acrisscross pattem ofparallel
.rches skewed with res~ to t~
sk:lesofthec~ space. ----------------,-------- .'
13mella
One of the relatlYely short tlml1er.
mebl OI"rtlnfOlUd'concrete elements
formn4 abmelb roof.
InCfU5/T7g the be3riroq areJ ofthe 5IJpports
Incra5.ts the num:.erofmemf?t:rs Irrto which
5~r 15 trJnsfcrmlandreduce5 ch~ fcrcesln
tkrnem~.
~pa~fra~
Athrt¢-dlmensloll3l stnlcWral frame
Pa~ on the r'.gldlty of the triangle and
composed of I!r.earelements subject
only to ~131 teTtslofl or compresslon_
The simplest s~tbl untt of aspace
frame!s;;l twahedron having 4joints
and 6 strJCtur;l1 merT1Ws. As with
plate structures. the sUPfX'rtl~ Pay
for a5p<1ct fr4lme should ~ squ3ril or
nearly square to ensure th3t tt acts aL!l
atwo-l'r.1ystructure. Alsa called
space truss.
PLATE
grid~~ure
Aframework ofcrisscrossing beamS
connect.e.dat their Intersections by r191d
joints and dispersing an appl1ed load In
two dlrectlons according to the physical
propertles anadimensions ofthe ream
elements.
Anbe.1m tkmentspartlcfpmIn C3nyfng ;
load through; combination ofrending and
t¥tfstlng. Iftwo~1715;trightangfes to
each otherare /dMtlc1l. theyshare m .
;ppWloadequallyIn rendlng.1fthePt:a!ns
have difftrentlengths. h~ the shc.rter
~m C4rrlesmereoftheIo3dsInte the
stlffr.essof1 ~m isInverselyprr>pcrtlon;l
to the cv~ of/tslength an4aIo#dgmdy
follol'l5 thepthofIe3strt5I5bnu to
5IJppcrt5. Forex;mple.1ftwoPeaI715 h;vu
spm f7tkJ of1:2. theirstlffnesses wi hare1
ratio of1:8.Ccnsequently. theshorW-beam
ItfnC3ITy%oftheload. 1M torslcn31
reslst3ruof~5 ap/nst the t;r,fstfng
InducedI1ythe bmJlng ofa tnn~ be3m
/urt:;;ses the stiffnessofthegrid.
195
PLUMBING
The system ofpipts,valves,
fixtures, and otherJlpparatus ofa
watersupply or ~ system.
wmr,upp!y
1MS4rpp1yd purlflea water~ a
eotmUIItty. usuallyIncIudln4bclhtles
for st«lng and dIs1:rI~ this water,
as reservoirs aMpipelines.
aq,uifet ---.....-..---......
A~lcal fornutlon con~lnlng or
conducting ¥QUndw31:er. esp.on~
~ of~ W2ter1a usal1le
,ua~ to s~ orwefts.
arte5bnwell
AweiIn which waterrises under
pre$Sijrcfrom apt:r1MIPIe stratum
OIerbid ~ Impennea~ rock.
waUrtawer
Atower Into which water Is pumped
to aheightsufficientto 1I131ntain a
desired ~rc fordlstriUutlo~ to
customtrs. orforflteflghtlng..
drawdown
Alowering oftht water surface level.
as In awellorthe d1~nce by which
the groundwater !eve/Islowered as a
result ofpumping.
il
o
.....__• corpol'2tion ,top
/ Avalve controlling theflow of water
•
,"" or gas from arrt.iln to ase~ p1~.
:' AlsocallM corporatfoncoct.
/1
waurm.1ln
AII13In pipe orcondultthrough
which aputnlGorcommunity
water system COITVey5 W2ter to
;;III seMce connections.
196
curp cock ~-.......................--.....:
Acontrol valvefor shuttlng offtM
water supply toa~Jldlng In case ofan
emtrgency.installta In awater service
pl~ and operated by mtans ofalong
key InStrtea through acurb Pox. Also
called curir step.
c/mm
AreStrVolror tank for storing or holding
waterorother liquid. as rainwater ~11ectecJ
from aroof. for use when reqUIred. •......... -..................-......~.: .:.:.;;:,.~....:·.;·::.,.;:;,:7.::.'~'·...;.·.:
wrt.er tre4tment
The act or process ofmaking water
more potalne oruseful as by purifying.
clartfylng. orsoftenIng.
.- cun,pox
! Avmlcal enclosure with aremova!1le
/ CIJItr providing access to acurbcoa.
I Also ~led Buffalobox.
~rvice pIpe ~.....
Apipe wnnecting a~Ildlng to awater
or gas main. usually Installed byor
under theJurisdiction of apu~11c utlnty.
~rvoir
Anatural or artlflclal pl3u where wa~r Is
coIJectea and storedfor use, esp. ~ for
supplyfng acommunlty.ln1gatlng 1ml. (X'
furnishing power.
raWWl"Ur
Water that reqyIres treatment
i:1efore It can bf"'used for .::lrinklng..
L
&hutoffvalve
Arrtvalve for shuttlng off the flow of
wateror gasfrom asupply pipe.
w.iUr meUr - ....
Adevice for rne3surlng and
recording the qUJntltyof water
that passes through apipe.
J
l
l
l
l
L
L
L
L
i
L
gravity water system
Aw.w supply and dlstributlO11 system
In which the water source Is set at a
height sufficient to maintain adequate
supply pressure throughout the water
dlstriMlon system. Also called
dowrrfud distriinstlon system.
€ he.ad .--_..._......__................................-..
The pressu~ at the lower of two given
points In allquIJ. expressed In terms of
the vert1ca1 d1st3nce between the points.
Also C311ed pt'Cssure head.
pJ"e$~re drop
Aloss of head orfluid pressure !?etween
two polnts of apipe or across ava Ive. due
to hydraullc friction.
fixture unit
Auntt fer ~surlng the pro!r.;!71e demand
for w;rter PyaplumPing fixture. or the
pnml7edJsch3rge of i1qutd waste from
the flxture. equivalent to 7'h gallons or
one cuM; foot perminute.
wata ~ner - ....-........1
An appai.itl.!s that removes calcium and
rna~rIt$Ium S<llts from hard water Py Ion
exchan~e In order to give the water more
efflc~nt sudslng ..Wllty wrth soap.
hardwaUr
W.ter COlTtalnlng dissolved saIts of
calclu~ or magnesium ana forming soap
lather ,..ith difficulty.
PLUMBING
waur5ystem
Asystem of pipes. valves. and fixtures for
dlstrl!7utlng andusing water In abulk:llng.
t--'----+-r------+---++--4lJ--C....-....:...,.~==nl_...... -.........-...... ltranch
Any memberofapiping system
other than amain. riser. orstack.
.._..._..._.......- riser
Avertical pipe. conduit. or duct In
autility system.
main
Aprincipal pipe. conduit. orduct In
autility system.
- - - . - ....-.--t-----!.-l--++..::..-..1.----l
".- - ...--..- ..................-............. expansion I1end
• An expanslonjolnt of pipe and plre
.._.....- waterheatu
An electric or ~..sappliJr,u for heating
water to ate1r.pef'3ture Detl'iun 120'1' and
loW'f (50't arj &O't) aM storing It for use.
fittings permlttl/19 thermal expanslon to
occurIna long run of hot·wmr piping.
Also called expansion loop.
..-......- .. hc,e lnl7l7·
./ Athrea&ed ext-erlcrfaucif.as for
attaching a garden hose. often .attached
to the stde ofahouse at arout the height
of a sill Also called hosecocl sillcock.
faucet
Adevice for controlll/19 the flow ofa1lqt:1d
from aplpe l7yopenlng orcioslry an orIflu.
Also called spfgot.tap.
flew pre&&ul'e c
The fluid pressure In .a supply pl~ at a
faucet orotheroutlet while the faucet or
outlet Is wtdeopen ana water Is ftowl/19.
expressed In psi (Nfm2).
mixing faucet
Afaucet having asingle outlet for water
from separately controlled hot-water and
cold·water taps. Also called mixer.
.... aerator
A sievelike device for mixing air w~h the
water flowing from the end of aspigot.
antl'~ald faucet
Afaucet haVing athermostatlc311y
controlled valvdor malntalnln9 the
desired water temperature re.q3 rdless of
pressure or flow.
197
PLUMBING
PfumIn"9 fixture .
AIryofV3 rio.;s rtUptacles for
receiving W4iW from a w~ system
and dlsch3~lng the liquid waste Into
adr:;lM3ge system.
~anit.11')' ware
!?all cock
Adevice for regulaUng the supply ofwater
In" flush tam: by means ofahollow floating
~n which by Its rise odan shuts oropens a
supply valve. Also called float valve.
Plumbing fixtures. as slnG and toilet
Pc~. mJde of vitreous china. porcelain
e:13me1. or e.1art'lded metal-l
!
~
reverse-trap
---....,.,='"'. Atoilet rowlslmllar to the Siphon-Jet. ~t
. having asmallerwater surface and trapway_
W3U-hu~ ______J
D~~ ned to ~ rtt3Creato
~ h~ from " wall
wrter h.1mmer
The corlCusslon and I13nglng noise that
resu/t5 whtn al'OIurneof m.ermoving
In apipe s~ stopsor loses
IT'()-malt.u m.
Jir-ch.1m~r
water ciaset
Afuture consisting of aceramic rowl with a
~haule. hinged seat ana lidand adevice
f~flushlng with wa~r. usedfor def'ecatlon
and urination. Also called tenet.
fl~homet.er valve
A",lve that supplies afixed Iuantltyof
W3ter tcflxtures for flushing purposes
when actU3ted Uy direct water pressure.
:--·-------------------l1ack~plash
/ Avertlcal panel of waterproof
_
...
----
.....
:/ material a"ttached to the wall uenlnd
acountertopor stovetop to protect
a~lnst splash~ Ilqulds_
Acomp3rtment In" ~ system 0
CO!ltalnlngaIrMeb5~1b' I:
2irg.1p
The ctarvertlc3l dlstanu
petloieen the spoutof afaucet or
otheroutlet ofa supply pipe and
the flood level of a receptacle_
COIl"'f'resses arJ ~Ids to ~u3llze I
~=~~~~:cu~~:~~ I
overflow
An Mlet. pipe. or receptacle for
exu:s5 liquid.
~kflow
Aflow of aliquid ~ to the usual
~ desired dlrecUon.
17~k-$jphcruge
Ii
I
I
flood level
The level at which water would
1 ::W:-~ rim ofaplumbing
jj,j.~.t:;"'I:cr"",----- -.-- .---- --. - - ~
~§
l?idet
AUaslnllke fixture des~ned to pe stnddled
for Uathlng the genlt3ls and posterior parts
ofthe 1Iody.
urinal
AflushaUfc fixture used by men for ~
urinatIng.
toilet partition
Apanel forming an enclosure around a
watercloset for privacy 1n apuullc lavatory.
l?athtul?
An oV!ong tub to Imhe In, esp_ one th2t !s a
permanentfixture In aUathroom_
~hower
AUatn In which water Is sprayed on the
I10dy from an overhead nozzleor
show~ead_
gra17l7ar
AParat"t3ched to 3 wall rwraUathtu!7or
showerto provk:lea hand gripfor a ~
who Is Imhln4-
receptor
The shallow P3se pan of astall shower.
lavatory .
Abowlor PiI$ln with running waterfor
washing th" face and hanas.
A~ of ~ orcont.a1nl1t3tea
lIt7Wfrom apIu~ fixture Into it
pl~ supplylr4 fOb~ W4iWaue to
~e p~~ In the pl~.
'-,------------------------ 51nk
~kwmrV2lve
A'r'lilve for ~~ flowing liquid. as
5eW3~. from ~erslng Its dtrectlon.
Also called pacl:flow valve.
flow rm -------------.-------------------------
The n~ of dtsc~rge from aplumbIng
fIxtu~. ~U31 to the tat.allltlmkl'of
galkxls dlscMar:l~ per 1r.1n~ dIvk:Ied
by 75 and expressed In fixture unlts_
198
trap .------;
AU-shapedor $-shaped section of
dnlnplpe In whloh Iltiuld remains
and forms aseal for preventing the
passageofsewer gas without
rifecUng the normal flow of waste
wateror sewage through ~_ Also
called air trap_
drum trap'
Acylindrical trap closed on the
l?ottom and having acover plate
for access. usually Installed on the
drain line from al?athtuu_
APastn, as In akitchen or laundry,
connected wfth awater supply and draln3¥
system for washing.
df'po'.1f
An electrical device In the anln of3 sink. for
grinding foOd wastes to be washed clown
the al"3ln. Also ~11ed disposer.
launary tr.:y
Adeep sink for washing clothes_
~rvk:e,lnk
Adeep sink used Injanltarl3l wort Also
called *pslnle.
Ll
I 1
I
!
.J
r I
I I
•
i !
! I
i I
I
l
f
L..
J
L
roughing-In
Tht: ~ or process of Installing all
parts of aplumulng system that 1'1111
l3-'~r Pe conce31ed. usually to the
foct<Jre connecUons.
v;dve
Any devlce forcantroliing or stopping the
few of aliquid or93s by amovaDle part
tn..t Cpt:r1s. p3rtlallyobstructs. or shuts
3 paSS3¥. pipe. Inlet. or ootlet.
........ t···· plumUing wall
! AwallorpaMlon containing
! vertlc31 space for aplumulng
: st3ck. Also calleJ stuk
f partition.
J.~...closet bend
r A90°501/ fltting Instai1t:J
i di,ectly Deneatn ;; .....~..er close:.
developed length
The length ofaplpe!1r~ measc~
along the centeriir.~ cf the pI~
and pIpe flttlngs.
..• molded insuLrtlcn
Thmnallnsulatlon premokled to
fit aroond pipes arJ pipe fIttl~-:s.
PLUMBING
pipe
Ahollow cylinder ofmetal or plastic used
for the ~nveyance of water, steam, gas.or
otl1erfluld IT13terial.
t1 pipe fitting
Astandard part. as an el&ow, unlan, or tee,
for cannt:ctlng two or more pipes.
Pena, Alsocallt:J ell. el.
(""1 ./' drop elbow ,
~.
I An elrow hav!ng lugs for attachment t<> a
wall orjolst. Also called drop en. .
.--.----.-- 'weep fittill9
~
. A pipe fitting haVing alarge radius of
(
curvature.
. _ ...._. return pend
V
AWO·vendlna pipe.
j .--_..--- ~Shapt:Jplpeflttlng for making athree-
wayJolnt.
draptee -
Atee having lugs for attachment to awall
orJoist.
........--... sanitary tee
A tee having as~ht curve In the 90°
pipe In the direction of the main.
~nnet ~....- ........-..-.. --.-..- ...--.- ........-
~
t;ansltlon tochannel theflow from avranch
---- :0~shapt:Jpipe flttlng forjoining aln-anch
pipe wtth jI main, usuallyat a45°angfe.
fht part ofavalve casing through which
th~ stt:m passes and that forms aguide
3M se;;ll fortM stem.
~ •....- ...-........-.................-~
Th~ part orsurface of avalve on which the
s:.cm Is closea to stop flow completely.
glo~ VlIlve _._.--.--......--.--.--................. -....1
Avalve with agfa!rolar PDdy. closed Py a
at$ ~tlng on an o~nlng In an Intema:
......n.
¥U valve ~ ......-.......-..........-.......
Ashutoff valve closed Dy Iowerini,J a
'r"Age-shaped gate across the passage.
~n.gk v.alve
Aglo~ valvt: having an ooUet at aright ~
ar.gletothelnfet.•- ... _._...-............ ...• • •
al~nment valve
AK<lsherless v;llve opened by aligninCj
hde-s In adisk. cyllnkr. or Pall.
mixing valve
A.,..lvt: forcontrolnng the relatlve
a:T1O'Jntof hot and cold 'rV;l ter admitted
from separate hot-waterand coId'water
Rr.es.
check valve
A.,..lve permitting aliquid or gas to flow
In OI1e direction only. -:
o·~·--··-·--·····-~;]:::9fo<""kl'9'/0"'"",
-..- sanitary cross
ACI'O$S h~ving aslight curve In ea<;h ofthe
OO·transltlons to channel the flow from
mr.ch plpts In the direction of the IT13ln.
~
1? ~~::~pipe for bypassing anotherpipe.
m~le' ...' - -- ... . . .. .• nippk
M~ to fit Into • ~ Ashort length ofpipe with thrt:ads on t3ch
~~r.g op:1 :r ' 0, t:nd. used forjoining ccupllngs or other pipe
~ part. " ... fittings.
.0,0
fenute ... -..----.-,,'. ccupling
Hmog , ~ ?rt Ashol1length ofpipe having each end
Into whW;h jI ~~ng threaded on the Inside, used forjoInIng two
part fr..s.. pl~ ofthe same diameter.
[ [
' ~-.- incre.aser
-1
I
I
.
. Accupllng Increasing In diameterlit one
I end.
--- reduur
Acoupllng decreasing In diameterlit.one
end.
'-"'-"-'-'" union
pelf-and-'plgot ---..._. -.~
Apipejoint IT130e byfitting the  lL----I-..-,
end (splgat) ofone pipe Into the
Acoupllng device for connt:ctlng two pipes
neitherof which can retu~, consisting'
of two Internallythreaded t:r1d pieces whleh
are tlghtent:J around the pipe ends to I:>e
joined, and an externally threaded center
i~t. ~~~~~~~::!":'odPI_
enlarged t:r1d (l1ell) of another
pipe and sealing with acaull:lng
compound or acompressluie ring.
gasket
ArUDDer or metal ring Insertt:J
petween two mating surfaces to
make theJOint watertight.
--- t-·
~ A. """.ally,h,..Je<I flttl'g fO"~5I'g
~.., ...._ .. :::endofaPlpt.
An Intemally threaded flttlng for enclosing
the end of apipe.
199
PLUMBING '.
dl'2i~e~stem
A~ ofpipes. tr2ps. and other
~forCOOYeylng ~.
W2ste W3ter. or I'2mter to. puullc
~ or apriv4lte trea~ hclhty.
anin
Arty pipe orchanrel by w.b...lch a~uld 15
dI'3~:1 off.
vent 5y:;tem ~.• 5tack vent
Asystem of pipes supplying aflow of f The extension of asoli or waste stack
air to or from adl'3lnage system or j arovetile hlghtsthorizontal al'3ln
provldlng aclrcui3t1on ofair within the f connected to the stack. Also called
system to prot.ect trap seals from f: selt vent. wastt vent.
siphonage ana!;ad: pressure. : L..-.'
: r V."'-Grj
! ~ Agroup oftwo or more sImIlar ./
f :, plumping fixtures dIscharging Into a.,/'
I common waste or soil bl'3nch. .......
fixWr-e drain ---..-.--.............- ..............................~
/.r-" .-.......--
Aclr.Iln~frocn~tnpofa 
pItsInPi~ flxture to .1junction wtth a 
wa~or5Oil~
----.:..L..._.:..-.
k_.•~_..... .
vent
Apipe connectln~ a draIn near one or more
traps to avent staa or stack vent.
/'~ reliefvent
Avent th:ot provides circulation ofaIr
Petween aar3inaqe and aventing system b'j
connecting avent stJd to. horizontal
al'3ln !1etween the flrst fixture and the $Oil
or.waste stack.
...- loop vent
Acircuit vent that loops back anaconnects
with. stack vent Inste4d ofavent stack.
. common vent
Asingle vent servln9 two fIxtu~ drains
mnch drarn connected at the same level. Also called
Adr;aln con~ one or more ftxtures aU.11 vent.
to;a soil orwastest;acl ...·-_·-··········-·· .."......................•- •••i. - ...
~k . . ! .....,.~ev:::r~~ntInstalledj~~rllytoprovl~
Avtrt:lc.1 waste p!~or~ rpe I circulation of alrtoorfrom any partofa
~ HUrrWeroffuors. I dl'3lnage syste-m.
~ ~k ....-.• ~r.nch vent
A~I soil pipe. - .-.-'-" .-.- ., •....••-.--:.
••:--:..-::.~
..=-::
..::
..:--:.
..~--::
..=
..=
..::
..::.:-:t1==:tt:~:::::::i.=::::=t:::a--:-/~:":":'O"1 Avent connectl~ one or more Indtvtauai
~ pipe vents with aI'e1rt staci: or stack vent.
Any plpeca~ thedlscharge from ....... individtJ.11 vent
wata' c~tsor riulsto ~ ~lk::I1ng Avent connecting afixture draln.to a rnaln
draill or 1Iulldl"!l sewer. ..._.._.,- or mnch vent. AIsoc.1le.d revent.
wa5te stack- " -
A~I waste ptpe.
~upipe
Any ~ carT)4n§ ~ dlschar~ from -
plumPlr~ fixtures ~than ~
closets or urln4ls.
iMirect ¥Q5U pi~
AW4~ ~ M Is ~ cOnnec--..ea
dire..
"tJy wItJI • ~ 5)'5te!: ~t
~ Into It~rougha ~rly
trapped pIuIn~ ~re.
mnch~ _ .......-......-.............................
A~of5OilorlQStestad::
~~to.1~helgh'OM
neve- i!:ss than ~ fl. (2.4 m~ wt?1ln
which tile horlzont.;l mnch al'3:ns
from or.e fioor are connectea.
I
f.1B ---.-•.•.--.--.••.- -.•--.-.....- •.•- ••....•.•••.•..•.-"'--j
The downward sbpe ofa pipe.c.ondult. I
orc!u~~~asa I
~~orin Incfoes perfoot. I
wet~
J..n oversized ~ functlonlng Path as .
J so«orlf3Ste ~JMa vent.•._-.......- •._....•...•_.•.•.-
c1eanc-ut -....... _ ......-......"'" ..-......-.......................-.._.
Apipe ~ ~ armovaule ~ '-
gfvI~ acuss to. soIf or waste pipe
for Jns.pectIon orc~nlng.
sump pump --.-•.....•- .........................
Apump fix ~ the
accumulatlons of Iquldfrom ;a sump. T
,ump
Apit or rtScmOIr seMl14 .1S a arain or
reup~ for W2ta' orother I1qu-lds.
Invert -.........................- .................~
TheIol'o'ffi poln~ on the Interlor of
.1 dralrpi~ or 5eWef wf.c:re the
~uldis~t.
200
l1uiiding drain _.'--'
The lowest p2rt ofadl'3lnage
system that receives the discharge
from sell anaW2ste st.cks Inside
tM walls of .i7ulldlng and conv~s It
by gravity to tf.c: I7ulldtng sewer. Also
calleJ house draIn.
pullding trJp •.•__.••_._J
Atrap Inst.11ea In the 17u1k:fl"9 dl'3ln to
prevent the passageofsewer!faStS from
the pulkllng sewerto thearalnage
system ofaI7uJldlng. Not all plumull19
codes require aI7uIk:flng trap. Also called
house trap.
-..- circuitvent
Avent ~rvlng two or more tr.Ips ana
extending from III front of the ~ fixture
connection of afo.orizont4lmnch tothe
vent stack. .
....- b~k vent
Avent Installed on the sewer side of. trap.
...,. continuou, vent
Avertical vent fortT'led Dy acontinuation of
the drain nne to whk;h It connects.
,.- fre,h-Jlr Inlet
! Avent pipe ad~ fresh airInto tM
f dr2l04ge system ofj 17u~. connectea
! to the pu11dlng dnlln at or~ the
i l1ulldlng trap.
,",Raing &eWet
Adrain connealng iii i7ulldil14 drain to a
putnlc: sewerorprtvau treatmentbCIRty.
Also called hGUM MWet".....1
. ~er _..........-..-...-.....,.
ApIpe or otheJ:~lal conduit. usually
underground. for c.rTJ'lng offsewage and
otherliquid waste to atreatment plant
orother point of dIsposal
5anitary ~er
A sewerconveying only ~ sewage from
plumbing fixtures and excluding stonn
water.
~lIge
The IlqulcJ waste contaIning 3nlmal or
vegetJble matter In suspension or
solution that passes throu~h asewer.
L
,
I
L j
I
I
I
c~
I
I
...
I
j
, !
l '
I
•
l
l
l
L
L
L
, l
~um ~-------------- ------------ -------- -- --- ------ -------- ---------,
Al3)'C1' of ~~ matter that rises ;
to the surbce of the sewage In a !
sep-tlC tallL ;,t
~m cle2r space - - -___
PLUMBING
sewage tr~tment pt3nt
Structures .ndappurtenances for
receiving the dIscharge ofasanttary
drainage system and reducing the org4nlc
and !1acterlalcontent ofthe waste so as to
rencler It less offensive ordangerotJS.
The dlstance retwten the vattorn of !
the l3yerof scum and the I1ottom of ~~f::::~;--..t~$2ZZz~~~~~X;~==::zgS1;g~~~~
tt~ outletIn aseptic tank,
sluage eftar space
The distance retween the top of the
s.l!:dge anJ tM I1ottom of the outlet in
3~tlc~~ -------__~.~~--~r_---------_±~-,H~r----------------~;j
stuage
Sed1ment th3t settles"out ofsewage,
font1l~ asemi-solid mass on the
t>ottom oh septlc tank. ..-------------------
C~5poot
Acovered pitfor receiving the sewage
from ahouse. having aperforated lining to
af1cw the liquid portion of the sewage to
!exh Into the ~round while the sludge Is
rrt1lneJ In the pit to undergo
decomposltlon_ Cesspools are no longer
;;.c.c.eptal1!e as ameans of sewage d1sposal
sup~epit
Apte that Is lined with aperforated
~~s-onryQ"concreteW311 to aHow effluent
cc&cteafrom aseptIC tank to seep or
Ie3ch Intothe surrounal"9 soil sometimes
septic tank -----j
Acovered watertight tank for recelvlng the
discharge from aInllkllng sewer. separatir.~
out the solid organic matterwhich Is
ducmposeJ anapurified I1yall3erovlc
l1a~rIa. ana allowing theclarlfled liquid to
discharge for final disposal ----------.--
u~ as asubstitutefor adralnfleld_ --------:
~n4 fitter
Afllterforcleanslng w.teror
purlfyf~ effluent. con51stlng of l41yers
of coarse stone. coarse gr:wel. and
$4 rod vecomlr~ finer toward the top,
r
I
sub-5urf.ace sana filter .-------------- ------ --. '-:_' - .; .-; :'-' -, " . 1"-' .•. " .
~~~~~: ~t~liI,
~Id~n
Asequtnee ofaPsorptlon trenches.
aD-sor-ptloo beds. or seepage plt6 so
amngt.d ~t the totaleffectlve
a~tlon area of one Is utilized
Defore effluent flows Into the next.
perco~tion u~t
Atest for determining the rate.t
whlch;l so~ wlllavsorv effluent. made
by IT1e3surl~ the rate at which the
water level drops afterahole Is dug In
the soli and filled with water.
i
j: .....s=r.~__
~-+--->--'.,..
i
dosing cham17er -1 effluent ,____J
Achamver ofaI3rgeseptIc tank employing
slphonlc action to automatically discharge
aIarge volume ofeffluent when a
predetermIned quantity h3s accumulated_
liqUId sewage that has ~een tre3W In a
septic tank or a sewage treatment plant.
-------1-
-{~-i- I
: I I : l
: : I : : !
.-.--- grease trap
. Atank Installed between akitchen sln~ and
ahouse 5etIer for retaining and rerr.cvlng
grease from waste water. Also cail.ed
grea5el~,
,--'" distri1ution box
, AVox through which th<: flow ofdf..rent
from asept.lC tank Isdlstrlvutea to the
dralll3ge tiles ofadra!rrfleld. Also o lid
diversion l:>ox.
_-.... dr.ainfield
An open area containing an arrang~of
al1sorptlon trenches throogh which seytlc.
tank effluent from a septlctank rttry seep
or leach Into the surroundlng soG.l.J:so
called al1sorption field. dlsp~r fi.dd.
I I I I I I
I : I l: ----;---~ avsorp-tiontrench
: I I I I . Anarrow trench 12to 36 In. (.305 to
I : : : : . ,._/ 914 mm) wide containing coarse ag:;re-
L.~
___
--L--___
..L--
__.....
___
.J,.
____4 g3te and;l dIstrll1utlon pipe through
i which the effluent from aseptic ~ri: Is
To cause water or other lI!uld to
percalate through something. so as to
dissolve out solul:7le constituents.
allowed to seep Into the sofl
3~rptlon~
Atrench wider than :30 In. (914 mm~
containing coarse ~gregate and two or
more dlstrlVutIon pIpes through ,,'hlch
tM effluent from aseptIC tank Ny seep
Into the surrounding solt Also callt-d
&Upage~eci
di~trl~utlcn pi~
Drain tileslakJ with openjolnt5 or
perforate<! pipe having sufflc~nt
openings for the dl5trlvutlon of the
effluentfrom aseptic tank. Also caf1aI
dlstrfWtlon line,
drain ti~
~. hollow tile bid end to end with o~
joints to disperse effluent In adra1rrfle1J.
or to drain water-saturated soil Also.
drainage till.
201
REINFORCED CONCRETE
Concrete in which steel
reinforcement is embedded in such a
maMer that the two materials act
~gethtr in resistS~ forces. Also
caned l1hon Jrme.ferroconcreU.
reinforcement
Asystem of steel !ms. stnods. or
wires for al7sortrlng tcn~iie. shearing.
and sometimes t~ corr.::r-;::ssNe
stresses In aconcret<~ ~~<:;nDer or
structure.
rtinforcingpu -. _
..-............ ""'-"
Astttl Uarfor reln{:' ~;",.g c.oncrae.
U$U311y speclfltd Py : numPer
equ~lent to Its .f:·~ln eighths of
an Inch. AIsoC31le(; 't.~ar.
deformed bar' . - ...-....•.-.-.....~,.
Arelnforclng ~;,,::t-rokd with
sumcedeforrr:.. )!15 to develop 3
greater Pond¥-- ~.
/.!
./
plain concrete
Concrete havln9 no reinforcement.
or relnforcea only for drying
shrinkage or thermal stresses.
ferrocement
Constructed ofUmtnt-5ana mortar
overa wtre mesh thAt h4s l>een
preshaped (}Ief' amold.
I
f-
te",ion ;eir.: '-;emen1; ~--"--'-""'''''-'''''-.
Relnforceme< ,:~;5Ignea to 3DsorP ...•.•.•..,
tensile stre:: .
compre~t:,
Relnforcerr-
comprtSs,.
:'clnforument
,iesigned toaPsorV
"A-tSses.
!
i
ttnsion -_.......
!
f
....-_..__.-.... cracked ~n
....... Aconcrete section kslgred or analyz!.d
..•..•..... on the assumptlon th3t concrete h4s r.a
resistance to tensile stresses.
crackInglo~
J
i L rtSl5tIng couple
AIoad"tha~ c.uses the ~slle stress :,
aconcrete member to e:r:cud t~ tens;le
stren!)th of the concreu
i
i...__...._._ strtS54strlbution
L.._.__......-...._ 5traln Jlstn'Pution
202
effective are.1 ofcoxrm
The area of aconcrete section !1etw~
the compress.,n f;oce artd the w.tWJ
oft~ tension relnforce,.r~nt.
effectlveart4 ofreinforcement
The product of the ~ht Cl'O$5·sectior..;:
area ofreinforcement anJ the cosine of
the angle Paween Its d1rectlon and the
d1rectlon for wtllch Its effectlveness Is
~
~reinfo~
~ mIoofeff~a~ of
relnfo~ fc effectll'e ma of
concrete a-t arr; ~,Ion of3 reinforced
concrete memt>er. expressed as a
~~
fi~r-1"tjnforud concrete
Conc.~..t rel~ with dispersed.
rarukmly oriented fl!1ers ofglass or plastic.
gfrc
AP~~tlon for glass·flber·relnforced
cooc.~..t,
_... wtk!t.d-wi;e~mc
AgrJ of Iongltudlnal and tr"3nsverse
steel wires or bars welded together at
all p:;;nts of Intasectlon. usually
sped'oed ~ the $lze of the grid In Inches
and ~e wire g3u¥, Also called welded-
wiN! ~5h.
17alJr.ua se.ction
A~~ ~ In which the tension
reinfor-~ t-heoretlcally re4Ches Its
specif'oed yield strength as the concrete In
compresslon ~ Its assume.d
uft~~strafn.
ovtmfnforce.d ~n
Acor.crete section In which the concrete
In corrres.slon re4cnes Its assumed
uftt:r.z-~ strain Pdore the tcnslon
reinfor-..a1ent re3Ches Its spec!f'ledyield
stre:r* This Is" d3ngerous conaltlon
since ~ffure of the SoXtlon could occur
Inst.irltaneous!y w!thout W3mfn~
undeminforced ~on
Aco~~ ~n in which t~e ~n
relnf~.ent ~hes Its specified yield
st~ Defore the concrete In
comFresslon rexh~ Its assumea
uftimr~ strai!1. This Is adeslra!71e
cond'rt,.,lon since ~ilure of the sectkin would
De ~ po,. brg.e deformatlons. glvl"9
prior ....mlng oflln~"9 cofta~
ancnorage
Anyof~rlous I'r"ans..3S emPedment
len!)th Of' koo(ed Ir.ars. for deve!op~
tension or compression In a reinforcing
bar on exh side ofacritical sectlon In
order to prevent ronahllure or spnW"4-
criticJlS«tlon
The sectiao of aflexural concreU: member
at apoint of m.ax!mum stress. a point of
Infltctlcn. or. ?'lnt within the span
where ~ston !73rs are flO longer needed
to resist stress.
l-
L
L
f
i
i
1 ;:~
we!? reinforcement
Reinfvrcernent conststl/11 of Pent Pars
or stlrrups, placed In aconcrete peam
to resIst dIa9Oft31 tenslen.
-'
tru5511ar
Alongitudinal Par Pent up ordown
at points of moment reversal In a
reinforced concrete peam.
..-·····-·····l1entbar
.' Alongitudinal ParPent to an angle of
5O"or more with the axis ofa
concrete ~eam, perpendicular to ana
Intersecting the Cl"3cklng tlut could
:,.------------------ occur from diagonal tenslen.
r--------,.L--~'--__. -, or!:~~,U-'h'peJ,,,",,"-klop
: :: pars placed perpendicular to the
, • ' longitudinal reinforcement of a
concrete peam to resist the vertlcal
component ofdiagonal ten51on.
diJgorul un5ion --;
The principle tensile stresSt:s acting at an
ar.qle to the longitudinal axls of abeam.
vertlcJll reinforcement
~itudln31 relnforument placed In a
W1Crete column to aDsorp compressive
stresses.resist bendl/11 stresses, and
~uu the effects ofcreep and shrinKage
fn the column. The effectlve cross-
sectlonal ar~ of vertical relnforcement
shO'JIJ not l>e less th3n 0.D1 nor more than
0.06 tlmtS the gross cross-sectional area
of the column,with 3 minimum of four #5
~rs for tied coIumr.s and aminimum of six
15 ~rs for spiral columns. .-.. . ........ ---.. .
~p5pliu
Aspl1ce for transferring tensile or
compresslve stresses from one
Ior-jlUJdlnal u.r to another. made !1y
bpplng their ends for a length
~if1eJln !r.lrc::l13meters_ ~ .....- ..
b1.Itt5ptice
~~r;::;::=t:~~or ~
~ltud1nal u.rto another. made!1y
~ttlng their ends together and
C011nectlng ~hem In apositive faShle~..._.-...
wdaed 'pllu _._..- - ----..../
Al>utt splice INQe by arc-weiJlng the
l>utted enas of ~wo reinforcing bars.
~O~[;~~~t~c~~~~~i~'~'~h~'----~
l>utted ends oftwo reinforcing pars
'11th 3meclunlcJl fastener. 3S 3
sbeclJmp. _
off~ l1end 0---·--"
At>c~d displacing asection of
longitudinal bar to 3posltlen parallel
to the orlglnaIPar. used esp. In the
,,~rtIc31 reinforcement of concrete
co1umns.
-.
p ~.
'. .~ '~.:;': ...~-
;. .~~"'-~ 4:'i~ .'
.... t.
~4 ..
.". · "
~
:
·'. ."
;..
;'4' ., "0
· .~
:. ..
4 ~ '.
.- I
I
tied column
Aconcrete column reinforced with
vertical Pars and InalviJuallateral
tieS. lateral ties shou!c::lluve a
diameterof at least % tn. (9.5 mm).
spaced apart not over 43 tie
diameters. 16 bar diameters. or the
least dimension of the column
sectlen. Each comerand ~tternate
lonflltudlnal bar should be laterally
supported !1y the bend ofatie having
an Included angle of not more than
135", with no bar being more than 6 In.
(152 mm) clear from such a
supported b3r.
top bar
A~ of the longitudinal Pars
serving as tenslon reinforcement In
the section of aconcrete !leamor
slapsubject to anegative moment.
l?ottom l1ar ~....~
A~ of the longitudinal !r.lrs
serving as tenslon reinforcement
In the sectlon ofaconcrete beam
or slab subject to apositive
moment.
REINFORCED CONCRETE
relnforcedconcreu ueJm
Aconcrert beam designed to act togetner
with Iongltudlr.al and wep reinforcement In
resisting applied forces.
,·Iongitudinal reinforument
ReInforcement essentially paraHel to the
horizontal surface-of aslaD or to the tong
axis of aconcrete beam orcolumn.
deepl7eam
Areinforced concrete pe3m havl/11 adepth.
to-span ratio greater than 2:5 for .
conttnuous spans, or4:5 for simple spans.
subject to nonhnear distribution of stress
and lateral buckling.
T-l7eam
Amonolithic relnforced concrete
construction In which aportloo of the sl3b
on each skie ofabeam acts as aflange In
reslsttng compressive stresses. and the
portion of the peam projecttng below the
slab serves as aweb or stem In reslstl/11
bending and shear stresses.
reinforced concrete column
Aconcretecolumn designed to act ~ether
with vertical ana lateral reinforcement In
reSisting applied forces. Relm"orua
concrete columns constltutlng the principal
sopportsfor afloor or roof shotild have a
minimum diameterofiO In. (254 mm). or If
rectangularIn section. 3 minimum thickness
of& In, (203 mm), and aminimum gross area
of 96 sq.ln. (61935 sq. mm). -
laural reinforcement
Spiral relnforcemtnt orlateral ties placed In
a concretecolumn to laterally ;estraln the
vertical reinforcement ana pre-.ent !?ucl:linl
LL..l..I.:=~::::rr"'"""T·l
.LJ.-~==:=r:::rr'-- d.;---...... -.. -.• 5pir.11 reinforcement
I L-:!:!:::::::::~==rr"'" _, lateral relnforcemtnt COi1slstl/11 ofan
~ evenly spaced COlltlnuO'Js spiral held flrmly
In piau by vertlcJI spacers. 5ptral
reinforcement shouiJ hJve ad14meter of at
least % In. (9.5 mm), with amJXlmum
center-to-centerspacing ~ spirals of
'16ofthe core diameter, and aclearspacing
retween spirals not to exce.ea 31n. (76 mm)
norl1e less than 1% In: (35 mm) or 11/2 t1rr1eS
the size ofthe coarse aggreg3te.
compound column
Astructural steel column erlC3sea In
concrete at least zVz In. (64 mm) thick.
reinforced with wire mesh.
__..........__ .. compo5fU column
Astructural steel column thorcuqhly
encasea In concrete reinforcedilith Doth
vertical ancl spiral reinforcement.
203
REINFORCED CONCRETE
reinforuJ concrete sbv
ArlgtJ plalUr 5tnIcture ofconc;rat
kslgned to act ~ wttfI principal
anaStGOn.:bry~In
reslstl~ .~forces.
()M-WZj sbb ~-----.------.--- ....-.---
A~ slap ri unlfonn thlci;ness
reinforced ., one dlrec1:lon anacast
~ra!ly lIttth parallel supporting
/:Ie3ms. ()r,e-way sbllsare suttal1Ls
onlyfor ~ ~ spans.
~m-Jnd-gfrder 5bb ____________._._._.
Ao~W1Y slap ~ by
second2ry!1ea~ wflich In tum are
supported Py pmry !7e3ms or
glrkrs.
principal re!rtforcemeltt •.-.--..-.--..-...... ··--·-····-·····1
Relnforcemetlt deslgneJ ta a(,sori1 the i
stresses from applied loads and moments. !
5hrink.agt reinforcement -----......- I
Relnforcement placed pt:rpen~ulartathe I
principal relnfOt"Ult1ent In aone-wayslab to .i
absorb the stresses resulting from .
shrinkage or changes In temperature. Also !
called umperature reinforcement.
i
n~~b .-------------.-..--.--------.--.
Areinf~ concrete sbpcast
~rally II'Ith .a seres ofclosely
spacedp!ru whldlln tum are
supported by ap.;ral'd set cj !Jc:ams.
~1~ slabs.re~ as aseries
of parallel T·~ms and econotnlcal for
lI'Iedum sp4rlS wtt~ ~M to lned!um !ive
baas. Also ~Iledjoist sbl7.
topping
Athin layerof hlgh-qualJty concrete
placed overaconcrrn base to form a
floor surf.ice.
bonding layer
Athin layerof mortar spread on a
moIstened and prepared exlstlng
concrete surface prior to laylfi1 a new
concrete 51317.
...--...----.--..-.--- ------. --.-. distribution rll7
,.•••-.. Aripformed pcrpendIcular ta thejoists
.' ofa rlW?ed sla~ ta dIst:rIl7uta ~
load concentratkms over ab~ area:
one r,ulred for spal15l7etween 20 and
:30 ft. 6 and 9 m). and two for spans
ov~r:30ft.
.----------------..---. ------. Joist l7and
A llroad. shallow supportIng ~m for a
rI~ slap th~ IseconomIc..Ito rorm
s~ Its depth Is tM same.as tim of
tr.ejoists.
;-.--..-.-.-.. pan
: AreuS3!?le metal orftl1erglass moIJ
n" use4 In forming a rl!roed sla~. avarbJUie
In stana.ra 20- and 3O-I~h (508- .na
762·mm) wlJthsana avariety of
~pths.
two-waysbb --.-----------------.---.----.--
Ac.oncm.estlpcj IlllIfonn ~ness
reinforud n twodreaJons ~ cast
l~rallyMth ~edf' ~ms
or be.1~ IQIIs on fair sides.Two-wzy
sla~ are ~ fa- N:iIum spans
~~~~IaaJs.
continuo~ ,ub
Areinforced ccncw~ 51.~ extending
as a structural unit CHef tnru or'more
supports In ag!Yen d!rectIon. A
conUnuous s./JpIs subjectto lower
~nd1ng /I'1O!I'1ents th4n a~ of
.dlscme. slll'lply supported slolk. ~_._..
o u
204
u o
paMi
Aportlon ofa refnforce& concrete sla~
rouMea on all sides ly the cente1ines
ofcolumns. beams. or walls.
I!J - . [ I n
;:::-_.J1L:--:i=.-=-=-::---i----.~= panel ~p
-=1f"--y------:-f---nr- Astrip running In eachdlrectlolTofa
:!: 1 1 Ii: two-wayslal7. within which moments
-"-~r-""-;--'-:'--'-"" -"--'-r--'--"'--"'I-" - perfoot are assumed ta !Ie constant.
1.1: : ,I, ..-., middle strip
!II l ; IiI Apanel Strip. one-half panel In width
Iii: : I·' and symmetrical arout the panel
~...ll......._.l..-.....--..-.........-i.........-..H:..- cenURlne.
II: l j Iii .-.-. column 5trlp
~-,*.rL:::.=.::.~
.. :::"-=--::'-:_::..:--==t=.L:--=::*.~._ Apanel stripoccupYfng the adJ3unt
I I quarter panels orl roth sides of a
I I I · : : III column centullne.
~
I
l
I
L
:!, !~/~
punching shear
The potentially high-shearing stress
developed by the reactive force ofa
column 0113 reinforced concrete slau.
shearhe3&
The ovtm>tres5ed region ofa reinforced
concrete slab rt acolumn support.
drop panel ~-...--.-- ..--...--.- ----. ----j--
The portion of aflat slab thickened
around acolumn orcolumn caplt31 to
Increase theIts resistance to shear.
~,,~.
.-
column capit.11 ----- -.--.------.-...
The head ofacolumn supportfor aflat
sbb enbrgeJ to Increase the plate area
In sheoIr.
exteriorpMI
AFnel of aflat slab having at least one
e&ge which does not adjoin another panel. ---:
!nUrlor panel
Any panel of aflat slab that adjOins
othu panels along all four edges.
REINFORCED CONCRm
futpL1te
Aconcrete slab of uniform thw~
reinforced In two or more dlrectlorl:s ana
supported directly bycolumns I¥rtMut
~ms orgirders. Flat plates m su~~
for short to rneJlum sparlS with reb"tivel';(
Il:lht live loads. Since there are rIO column
capitals ordrop panels, sh~r gcva-ns the
thicl:ness of;l flat plate: •
futslal7
Aflat plate thlcl:ened at tts cotUll"'w'
supports with column caplt3Is ar.a drop
panels to increase Its shearstrer~ and
moment·reslstlng capacity. Fta-t sI;o~ are
suitable for heavily loaded spans.
mushroom construction
Fl3t slJb construction utHlzlng c...iumn
capitals ana drop P~"els.
w~slal7
Atwo-W3y concrete sIabrelnf~ ~ r*s
lt1 two dlrectlons. W3ffle St.DS m 3~ to
carry heavier loads and span ~
distances th3n flat sla~. Supportjrlg
~ms and drop panels can I;le ~ by
omtttlng dome forms In se!ecte.d 're4S.
dome
Asquare met31 or fI~glJS5 pan LI5e.d In
forming the rI~ ofaW1ffle slab. m!l:.aD!e In
stand3rd 19- and 3O-ln. (483- artJ 702·mm)
Widths and avariety of ~pth5.
205
REINFORCED CONCRETE
pr~tr~ea concrete
Concrete reinforced !Iypretenslonlng
or postta5lor.lz'!J hlgh-strength steel
tendons Withlll their elastk; limit to
actively resist a service road. The
tensf18 stress.eslll ~ ~s are
tr3nsfrnt<:! to theconcrete.. placing
the entireCl'OS5 section ofaflexural
memPerIn compression.The resultlng
compressNe ~ c:ounWactthe
Unsilt-~~ stressesfrom the
applied ~ en3~ the prtstrtssed
me1I'1Per to ~ less.C4rty agre.ter
load. orspan agT'C2terdistance ~h4na
conventionally remfurced memPerof
the same sht. proportion. and welght.
prt't~,
r0 Introduce ~I stresses to a
concrete ~Per In order to
counter3ct thest.resses thn will
~ f1"OI'1 an applltd ta.d.
preUn,lcn ................................
r0 pres~s aconcrete meml7er !Iy
tenslonl~ the mnrorclng tel'laons
11ef~ the concrete Is cast. The
tendons are first streUhe!:f petween
two alluw.ents untUapredetermlnea
tensl1e force Is ~ Concm" Is
then C4st In fonnwork ,roun4the
tenJons and fuJicured. ~ily. the
tendons arecut, ,ndthe tensile stress
In the tenJons are transferred to the
c.onaetetilI"OU9h bond stresses.
tendon
A hlgh·strength sted strandor !73~
for prestressing col'lCrt"~. •._.._.....:
stnnd
Acaine composed of hlgh-strengt:h
steel wires twisted aPout acore.
~ .......... "'" .......• aputment
. Astructure fer ;;r.chorlng the relr1forc:~-.l
o tendons In the pret.enslonlng of-a concrt".<:
lr.emDef.
;-._................ anchor
1 Amechanical devIu forlocllng a st~seJ
i tendon In position anadelivering the
p-es~sl~ force to the concret". ettJ'~
~ ! ~ per.n3nently Ir1 a~slontd me1t1Pt:rer
~A"ffl~~ =~duC:;;:~l':.~"Cd
casting l1ed
Along horizontal slap 00 which anum!1e1'of
pretenslo~ concrete memPers may pe
prestressed. fOl1T1ed. and cast
slmultar.eously.
;............ juking for~
~~t:t;l±t~.tt~:~~:~:;~
~ ~slle fcxu e::t..er1"...ed temporarily by 3
jaclln the prest<tssJng of acor.crete
Ir~mber.
j4ck
Ahydraul1c ~ for stretchIng and
St.res5I~ ~ In the prestressing of 4
concrete member.
initLll prestr~5
~ tc1sile: fcxu!n the reinforcing ~n~s
transferred to a concrete member at the
tlrr.e ofstress1"4
~ofp~'
A reductlon In Inttlal Pf'tStres5 resuftl~
from thecom~neJ effects ofcmp.
shrlr.&:a9t. ordast:lc s~nlng of the:
concm.e. re~tlon of the relnforcln~
ste.el friction losses resultl~ from the
curva-ture ofar.pea tenaons. arJ sllpp3oe
at PIe ancoor.f¥S.
firul pr~tre"
The ~lstres5 th3t exists m
a
p~ concrete mtn1Per.-fter all
losses k1 prestress luve occurred.
-effective pr~tr-ess
l?~~.~~: l+:~r
: :.....- comPIneJ5trt55~
The fl~1 prestress In aprestressed .
conc.rete ~mPer.lncludlng tM effect of
the weight of the: memPer ~ut exc!udlng the
effect ofarry supcrlmpo~d load.
p.ut-ul pre'tressi~
The prestressing of ACOI1cre~ member to ..
level of stress such tlu t IlOmlna! ~s1le
stresses exist at deslgn or serviu loads.
,. -. -- _ •• c••- •••.•••.•••••••• dead load strtsses ....................- live/oMstrtsses
206
l
l
l
L
L
L
L
L
I
L .•
REINFORCED CONCRETE
...• po5ttensicn
To prestress aconcrete mem!:>er Irt .
tensioning the reinforcing tendons after
the concrete has set. Unstressed tendons
are placed In sheaths before conc~ Is
cast In formwon: around the tuPes. After
the concrete has cured.the tendons are
clamped on one end andjacked against the
concrete on the other end until the
required force Is developed. The tendons
are then ancho~ on theJac~lng end and
thejack removed.
1?onded posttensioning
Posttenslonlng In which the reinforcing
tendons arePonded to the surrouitcllng
concrete !1y Injecting grout Intothe
annular spaces around the strands.
unbonded postten5roni~
Posttenstonlng In which th6 annular
spaces around the reinforcing tendons are
not grouted. allowing the tendons to move
relative to the surrounding concrete.
shuth
Atube for encasing tendons In a
posttenslonecl member to prevent their
bonding to the concrete during placement.
pre-posttensicn
To prestress aconcrete member!1y
pretenslonlng same of the tendons and
posttenslonlng others.
.-.......--..- concentric tendon
. Atendon luvfng a straight tr;;jectory
cofncldent with the centrokfalaxls ofa
prestressed concretememrer. Wh~
=t---.-.-.-.-.-~.3=
tenSioned, the tendon produces a
uniformlydlstril7uteclcompressive stress
across the section thn counteracts the
tensile stressfrom ben.::l1ng.
.-.........- .. eccentric tenacn
.: Atendon havlng astraight trajectory nat
colncldent wtth the centrold3laxls ofa
i ++I~ , =b.-.-.-.-.-.-~.+
prestressed concrete memrer. When
tensioned. the tendon produces an
eccentric prestres5ln~ foru th3t
reduces the compressive stre:;s across
W. section toth<lt produud by bencIlng
alone.
WJ ~;1lancfng
The concept ofprestressing aconcrete
R'Ie1r.~r with draptd tendons.
theoraic311y rt:Sultlng In astate ofzero
~n under2 given loading cone/ltlon.
/----.. dr<1ped tendon
: Aposttenslcnlng tendon having a
parabonc trajectory thn mirrors the
~ dlstribuW gravtty load. When tenSioned.
~
./ momentdlagramofaunlformly
t----·-·-·--·-·-·~·~<~ ~:r::~:;o:a:the
variation In applied pendlr.g moment along
the length ofthe member.
.....--..................- ......• depres~tendcn
Apretenstonlng tendon that
approximates the curve of adraped •
tendon with stl'3~htllne ~ments. used
In the pretenslonlng process since the
prestressing foru does not allow for
draplr.g the tendon.
.
'.........-........... harped tendon
One of aseries of depressed tendons
having '/arylng slopes.
207
ROOF
The external upper coveri~ pf
af,uitding.lndudingthe frame
for supporting the roofing.
flnroof
Aroof havl~ no ~. or OM ~ith only
aslight pltcls so as to drain rainwater.
pitchtd roof
Aroof havln! ooe or more slopes..
hip roof.•.__.. _..........._...............
Aroof having sloping ends ana sides
meeting ~an ~ned projecting angle.
Also. hipped roof.
curproof
Aroof dMded 011 each side of the ridge
IrTtc two ormore slopes. as agam!1re!
or mart53rd.
nta"'trd •......- ...._................_...
Aroof havI"9 en each sideasteeper
lower pmand, shallower upper part.
Also ~tIeJ ~rd roof.
I7utterfly roof ~.................,......................-: .
A roof having two slopes; each ~
descending Inward from the eaves.
~hed roof- ..............................._...............-
Aroof h2v1ng aslngle sk¥.
lean·to .:........................_......
Ashed roof with the higherend
al7uttlng awan or larger I7ulldlng.
penthou~
Ashed roofprqectlng from a waII or
the side of aI7ulla1n<j. as to shelter a
door. Also called Jppentlce. pent.
pentlce.
208
:.._......._.-...... pitch
/ The slope of aroof. commaniy
;' expressed In Inches of vertical rise per
/ c----------- ..----- ::01""_"1",,_
i i The measured height of asloping roof
from the eaves to the r'.aqe.
..t-.~~horizontal distance from the eaves
I to the rI~e ofasfopi"4 roof..
paviticn roof ...- ...
APY'"3mlJal hlp roof.
~~~~.......• hj~a gal7le
Aroof having ahipped eM
tru~tlng aga~ Also c.;11ed
Jerkinhud. shreadhai
.~...•..- ....... gaml7rel roof
./ A~eJ roof divided on t4Ch side Into
ashallower slope abo.re.ii steeper one.
..-._.........- cur"
Thearris retween an upperanaalower
slope on agam!1rel or ma~ard roof.
..•._....... '.-~ ralnl:oow roof
. A9!11e roofIn the form ofa Proad GothIc
arch. with gentfy sloping convex su~
,'- I:rarref roof
. Aroofor~mng havl"9 a
semlcyllndrlcal form.
... ,awtaoth roof
Aroof composed of aserlts of small pmrd
roofs of trlanguiarcross sectlon. u$U4ltf
asymmetrical wlth the shorter slope glnd
,J
r J
.J
.J
!
1
Il.J
.)
,kyi~1tt
An ~nln~ In aroofOf' ceiling. glazed
with atr3nspamrtOf'transluunt
rnaterl3l for admitting daylight.
f3U
The IncUnea.llsually projecting edge of a slopln~
e~
monitor
Araised COfI5truction 5tr;idann~ the
ridge of aroof. having windows or lowers
for IIghtlng or ventllatl~ a17uilding. _.
The OI'erna~ loweredge of a roof. Also. eav~ ~........-""-.~.
As; 7 //1",
/ . ,
(, : /-'r
I ' /" I
1 Y I
,addle ~-......... -.:
A~e connectlng two higher
elevations of aroof.
cricket •._............................._..-
Asm.;a11 rooffor dlvrnlng r3lnwaw arounJ
aprcjectlon. IS achlm ney. on a slof'i~ roof.
Pox gutter
A gutter built Into the slope of a roc{
aDove the cornice. __...__.,._.-..
~rPoard
Aro..rd laid ~ to the gutter on a
sloping roofto~~ethe turned·up
eJge of the rnetJlllnlng. Also calteJ
layer l10arct
I I I
I 1 I
~
:l
. 1 I
/., ..•. 1
.-- 1
.. ~. I 
 I  I
 I  1
 I I
1 ,.)
{.,//
a~ gutUr ~...-......- ..._.._.__...._...._.._~ b
A gutterhav~ aV-sh3~ section. ftxe.d W
to the eaves of:a I7ulidlng.
lunging gutUr
Agutter bstcned to the ends of r.oft.us
or to afuscl;uttne eaves of aroof. -.--.....- ..~
gutter ha"¥r
Arr.etal strap or bracket for 5U pportlnq
arJ seCUrl~;I gutter..
spike-arld-ferrule
AIonq·nat1·and·fonr.e.d·metal slee-,e for
fastening <I gutter to the eav~ of <I reef.
ROOF
............._.........., rkfge
Ahorizontal nneof Intersection at the
top l1etween two sloping planesofa roof.
............,.._..•valley
An Intersection of two Incllnea roof .
surfaces tovmd which rainwater flows.
..-........ hip
. The Inclined projecting angle formed I7y
th(:Junction of two adjacent slOping sides
ofa roof.
dormer
A projecting structure l7Uilt out from a
sloping roof. usually housing a vertical
window orventilating louver.
cheek
Either oftwo similar sides ofa
proJection. asadormer or17uttress.
shed dormer
Adormer h.-wIng ashed roof.
~~"-..- ..- ......- gaple dormer
Adormer having agable roof.
...............................···link dormer
Alarge donner that houses achimney
orJoins one part of aroof to another.
eyel7row
~ Alow aonnerhaving aroofthatlsan
~ upwardly curvtng contlnuatlon of the
main roof plane.
....... roofdrain
Adrain des~ned to recelve water
collecting on the surface ofaroof anato
discharge It. Into aleaderoraMwnspout.
.... ~upper
An opening In the SIde of 3 ~ulldlng. as
In apar3p~t. for draining off r3lnwater.
gutter
Achannel of metal orwood at theeaves
or on the roof ofaPulidlng. for carrying
off rainwater. Also called eaves trough.
..--...... leader head
The ~11ke head ofadownspout connected
to a scupper or gutter.
...'...... down,pout
... Avertical pipe for conveying ralnwat-er
down from:a rooforgutter to the ground.
Also called dralnspout.l-e.14er.
5hoe
The 17ase ofadownspout. curved
outward to direct the flow away from
the wall.
... 5plJ'h plock
Aprecast concrete Moc~ having a
.::--....... : depressed. splayed surface. placed at
.;,~:.' .,.~~,..~, the base of adownspout to disperse
_ '.>~ ",7""jj rainwater that woukl otherwise erode
----~ the soil.
209
ROOF
douWerocf
Aroofil ~ Ior.g~~ mem~••sa
~ beaII and purilns. m us.e.d.s
~ supportsfur common
ra&rs. ~ C4IW ~-frarud roof.
king pest _.-._.-............................-.......................'.
Avc:rtbl ~mPtr from tht arex ta tht .
rou.om~a of. plUhed truss. .'....
jo99le~
A~ pas;1t4v~ t?t.Ches or i.iiseJ are3S
for ~ ana supportlng the fet"t of
Inclined 5tt1rts. Also C4lbljoggl.e~.
jo~ .
.'-.-.-..-. purlin
:- AIongftudll13! meml1trof arooffrall1e for
supporting common rafters ~ the
ridge and the eaves. Also. purfll14S. Also
C3l1ed I1fndl~ ratul".
5ubpurUn
AlJ~ht structural memperfor C3rrylng
roofing I!13Ur13ls. supported!1y and
runnIng at right angles to pur/Ins.
---....----.., common raftu
Arafter extendIng from a wallplatc to ..
ri~el1a.ra or rldgebearn ana h3v1ng no
functlon other than to support sheathing
and cavenng of aroof.
..,. poleplm
A!;team perpendicular to the ends of t18
I1eams In • trussed roofand supporting
common rafttrs near theIr lowerends.
An enb~ are;;! of. postfor supportlng
theftm(/astrut or ma.
kingtru55
-~~~-~.-.----.--..----.• princlp31 rafter
ApItched truss havIng a~Ing post.
auxili3ry r3fter
Arafter relnforcl~ aprincipal rafter
stninil'f~----.-...--...-- ..-... -...-....-...........-....--.---,. /~::jJ::>, ::s:.ar,:~~~~~i~.
A~I t:le ~m uniting t~ taps of /~.. / '<>"
two~pcsts.AlsocaIW stninl~ ,,/ "
I7e.1m..
'I.ueeQ post ------------.--...---------.--.,c-"'..r,.-N-:>£---.-"'i
Elt:her(/~ ~~ ~ mem~
set~. Jl5t:.nus from th.e ap6c of•
piUhedtnIS5.
t1e~
AhorlzoWl tJmber for connectlng two
~ =-c:mbers to Uep them from
~ lp<lrt. as;;l ~m conn~ng the
feaof~ prit1clpal r7ft.ers In. roof truss.
mai~~ ./
ACQIn~ rnemM-~ng along ana r---...----.-----/
~~~ ~ ~m of aIuterl truss and
~r.I~ ~ feet of1:he ,ueen posts.
hammer po1t - .....-....-...-...."--'........"--"---'.
A~~setOCl th6lnner ~ of. ....
~ft1II'IerIa~;alund mud~ acorlar be4rn .
aOM ~s-pp:rlapo.Jr"'- '
h.1m~~m ~---.-.....-.---.......-.--...-,.
One ofP*(/si10rt ~I me:mt>trS ".
attacheJ~ die~ (/aplinclp2l i.ifter
~ UIeb-d of~ W41U pIN."seaIn ~
ofatic be;am.
ummer~ --.---------...----..-__
A~forsu~3h.mn:er~m- .----
~
ASI.I~ projecting h.xUontallyfrom a
IQd to bear the weight of. cantIlever or
to~.n.1ngk:.
pendant~ --------...--..--....--.-...
~~nttu's
Ap~hed truss having tw0'1ueet1
posts connected Dy astl'3lnlng piece.
Avertlcat tlmber supporteJ at ftslower
end (,ya~ and carT)'kl4 at Its upper
end ahallWler ~m or ~ ~II'L hammer'~e3m roof
Aroofsupported Dy hammer !:>eams.
210
Adiagonal mem!:>erof. roof principal
usually forming part of. truss ana
supporting the purllns on which common
rafters rest.
principal
AmemberIn aframt structure upon
which adjacent or similar members
depend for support or relnf~t.
arch hace
Acurved ~rau. usuallyused In pairs
to support aroof fume and give the
effect ofanarch.
cruck •.J
Oneof. palrof naturally curvea timbers.
forming one of several arched frames
supporting the roofof an old Enghsh-
cottage orfarm l1ulldlng.
l
l
l
L
~ue.Jm
APam for supporting the upper ends
of ~ at tilt riJ¥ ofa roof.
;
I
I
! [II! II iiIll! i
l_._..___~"
tap cut ------------- ..---.. ------.--------
Aplumpcut at the upper end of a rafter
where it !luttsagainst arldgeboard.
plumu
Vertlc.olor~f<;ularin direction.
stepping off ------- .--------.-------------- ----------------.----:/
A~ ofdetermining the length ofa
raf'"...er with aframing square.17y marXlng an
Increment ofangular length for each foot of
hortzontal rurt
Ioo~ut
ArelJtlvelyshort mcket orcantllever
for SJ.Jp~ the ovemang ofaroof.
Also "lied bffp!ue. ·-------1
fly~r
EIUIerof the en.:! rafters In
~ plrt ofag3 PIe roof tilat
~s~theg3ble
"",,11. -----.
Varge ~upk: L._____.... outrigger
Apalrof I'3fUrs supporting the part A!leam extendlng outward from amain
ofagal7le roof that projects !1eyond structure to support the projection of
the ~I7I.e W3l a floor or roof.
ROOF
riagel10ara
Ahorizontal timberat the ridge ofa
roof. to which the upper ends of the
rafters are fastened. Also called
ridgepole. ridgeprece.
roof framing
The act. prcx;es5. or manner of COnstructing
the structural frame of aroof.
couple
Apair ofrafters connected!;y acall3r ~m
or tie beam. Also calleJ couple-cic~.
/'--'- --------..-----.------....---.-: collar ~m
cellingjcist - ....!
AJoistfor carrying the finish
ceiling of a room.
knee wall
Ahorizontal tlm!1er unitlng t,.,.o Opposl%
common rafters at apoint t-.elow ;he ~.
usually mthe upper h3ffof the rafter
length. Also called collar tie.
r------·-··--· rafter
Any ofa~rles of SItl3I1. par311e1 beams for
supporting the sheathing a,..J covering ofa
pitched roof.
Ashort wall supporting ~rs at some
Intermediate posltlon along their length.
..-------- bird's mouth
./ Aright-angled notch cuton ~
...- underslkof arafter to fit Ofera
/ ..,. Iongltudirt31 memw. as awall pl3te.
seat cut
Ahorizontal cut at the lower end of a
rafter th3t allows it to rest 00 and !Ie
connecteJ to awall plate. Also called
foot cllt. pIaU cllt.
jack
Having 3 length or height less than that ~
most of the others In afrarr.e.d strurnre.
asaJad: raft;eror~ troS5.
J3ck r3ft".er
length of the roof slope. as lXle meetlng a
~
Any rafter th3t Is shorter t.1an the fun
~~ hlp or II va!ley.
 ~'=-- valleyjad
AJack rafter extenJlng from avalley rafter
to a ridge.
V4111ey I7fttr
-- Araft.e:r connecting the rld¥ to the W4R
plate atong avalley.
cripplejack
Arafterjolnlng ahlp to ava r~. Also C311ed
aouPkj..tck rafter.
~
hiPjaCk
AJack: rafterextendlngfrom; W411 plate to
ahlp rafter.
hiprafUr .
Arafter forming theJunctlotl of the sloping
sides of ahlp roof.
~ar¢'o~rd l1acKlng .-------------...-..---..--..------......-./
A!1<nrd. often carved. attached to A ~el given to the outerand upper edge
the pro¥:c~ end of aga!ne roof. of ahlp rafter In order to allow sheathing
Also called veTgePoard_ ---.------: to fit the top of the rafter without leaving
atrbngular space !1etween It and the Iow~r.-
sk:k of the roof covering. ..'
cheekcut ...----....-..--- ..---..
An oblique angular cut at the end of ajack
 rafter ena!1l1ng It to fit tightly against ahlp
, ~'''''''Iley "I"" Alsocall<d sid< cut.
aragon beam
Ashort Pe3m receMng aM h&1ng the foot
of ahlp rafter to counteract tts thrust.
Also called dragon rue.
dragon tie
An angle brace for supporting one end of a
dragon ~::am.
211
ROOF
rocfi~ r---------- --- sheathing
My of v;; r"oJs w.wrt$l5t.nt materlals.
~s sh~b, sbtts. or tlles. bid on aroof
to shea Cf dnln nlrooter.
$hj~te
Athin. u$UJ~ ~ ~ of wood.
~5P!U1t1c nt..erbl sbte. ~r. or
conaete. bid In Or'erlappi~ rows to cover
~~~~~~~;~~;~~~!~~Iii~i~~ Boards or structural p;;nels. as plyrYood.
fastentJ to the fra~ of awall or roof •s
~ Ua5e for cL-ufdlng or roof1ng_
panel clip
An H-5haptJ metal aevluforJolnl~
sluts of plywood roof sheathl~ at
unsupportedJolnts_ .-;
t.l,e roof • ~J walisof Puild1~ 5. ~- -.--.----.. -. - .---.. -. t==;r==il===:;;::==G:=:==;;;====='
UnIIrication
The over.J~ ofsh~~s or roofing tlles
with!n-e3i:,~ to fonn;a weathertlght
covering.
1I~lcjaint! ---.-----..------------------ ----.- --.---.....
The ;arr;a~ of PuIIJl~ units. as masonry. p=dJ:==r====:Jb==;;;===Jb==;r==:J
shlngles. or sldI~ to ensure that vertlcal
FiniS are root ccml1'lUO'J5 In adjacent
courses.. Also calleJ ~~ joints.
E± - .
--------------, underl.1yment
Aweather-reslsta nt material as roofl~
felt. for coveting and protecting aroof
deck Defore shIngles are appfled.
------------., t3V~ fbshlng
common lJp •. -.~-.--.--.-...-.-.-------...-~--~~===~===~===~===~==::::~
Amethod ci l;iying sh~~s by offsetting
An addltlonall3yer of underlayment
cemented to ~ roof ded to prevent
meltIng Ice and snow from Packing up
under the rooflng along the eaves.
alternate c..."'Jrses one-haIf the width of a
shln~~.
§5?2j::~£e~~~ '.
~~~;;~~;;h;;;~~i;;;;:.~A
Of' roofI~ ~ ~ expo!d to the weather _
..-.....
lIrf.en b~ iI ~ Also ~nea §-3~e. .
~
~p -------------._-_._-------------_......
Tl-.e dls~i'U ~ which ~ shlng~. slate. or
rocfI"'9 t:~ ~ps ano-"r.er In the second
COIJI"5e ~l
...... lt_
~~p . __._---_....._.
Acourse Q' ~of roofing materIaI
~?lt r-'~ of aroof.
~COII~ •.....-- ... -- ..-- .• --.-.
~ top c..Jt.)r$t of shlng1cs, states. or
rooflr.g ul.es ~ to arJ¥. cut to the
requlreJ ~<
.. .'
n)-l,on~ •.------.--------00-----.-···
One ofthe *..tr'IUUCO.lI'"SeS of shlngIes
Of slJte 12~ lWith $horte:' or longer
~re_
~~1'ed CCUrH .---.---------------------- -.--
Accurse cI ~ laid JII'lth the Putts
~Irtly a~ or ~ ~~ one adjacent.
6oupnng~
AaouPle ~ of$hlng~s Of' utes laId at
the foot of J roof slope Of' • vertical
stCtlon of s)I~hng.
,t,arti~ C-C'JNe
~ first ~rse of$hl~es. sldtes. or
u~ alo~ ~ e4Ves of • roof ~ore the
first ~ular WJr5e Is !dId.
212
drip edge· .--.-.------.---.-- -. --.:
A metal moldIng placed along the
eaves and rakes of aslopIng roof to
allow rainwater to drip free.
-r-r
I
I
I
I
I
I
I
:
1:':;
k~l'~
~~
~ :::~
~~ ~
j f- 1-----·_-------_· ~ ...
ice dam
AIrollaup of snow and Ice along the e3Ye
of a sloping roof.
Dutchbp
A method of laying shIngles or~ Py
~pplng each shingle over OM to the side
and one !?eiow.
sldelJp
The distance I;>y which ashingle. $bte. Of'
roofI~ tlle overlaps an adpcat~ oneabng
Its side ed¥.Also called endUp.
ccverage
The amount of weather protection provided
11)'the overlapping of shl~les orslates.
'iu:ue
Aunitfor measurIng roofl~ materials.
equal to 100 sq. ft. (9.3 54 mJofcove<¥
asp~lt shingle
Acomposition shingle h3vlng an aspkaft-
Impregnated felt trase. surfaced on the
weather side with colored mineraI granu~
em~ In ahot aspbltlc coatl~
fillergbs6 'h~!e
Acomposition shingle h3'(~g an Inor~nlc
fl~rgb55 :7a56. saturated with asphalt
and surfaced on the we3ther side with
colored wamic granules.
..-'-"~~~-4-- clo~ valley
Ava/ley for1n&:f 11)' overbpplng ~
ccursesof shingles In alternate d1rectlon:S.
Also called I.1ced val~. woven valley.
.....".~~;..:.r- open valley
Avalley at whIch shingles or slates are rm
laid to the !nte~lon. exPOS!!1g ann~ of
sheet metal or roll roofl~.
__ -. valJeyfushing
A wide strIp of sheet metal or rooflng felt
for linIng the va lIey of aroof.
I
. 1
I
. ~
i
r~
I I
~ i
....
l.
l.
:-;.'
ROOF
plue L1PeI ----.------------- dime",icn shing~
Aprtmlum graJeof red ceclar shingle of
c~r, ~e-gralned heartwood.
red IJPeI
Art Intermedl3tegrade of red cedar
shingle Imlng aImltea amount of flat
_~raln and sapwood.
l1L1ck bDel
Autility grade of red cedar shingle.
o
undercou~
Arow of wood shingles laid along the rake of
a sloping roof wfth the Mts projecting
outward to give an Inward slope to the
surface shingles. Also caned under-cloak.
spaced sheathin9 ---------- ------- ---- ---------- J..-' .-
R.ooflng roards bid some distance apart to
provide ventllatlon for l'I'OO<f shingles and
sh3kes. Also caned open ~oardlng, skip
sheathlng_
f'ostcn hip -------.------------------------;-.------
The weaving of shingles at the hlp or ridge of
;i roof. Also called 5cstcn ridge_
weaving
Amethod of la~ shlng~ on adjoining
surfaces ofarooforwall $0 that shingles
on each face lap each other alternately.
fascia
Arry l1road, flat, norlzontalsurface. 35 the
ouUr edge of acornice or roof.
-...- fascia l70ard
~rni~ return ---~
The COfltlnU3tlonof 3cornice around
the g3~ end of.Oil house.
diagolU151Jtl~
Amethod of b)i114 roofing sIates with
the diagonal of~ tHe running
horizontally. AIsoC311ed drop-poInt
~.
hcneycomu flbting
Dbgo113Islatln~ In which the tails are
cut from the rooflng slates.
I10x cornice -------------~
Asl~htly projectit1g, hallow cornice of
!:>cards and moIdJ~, r03iW to rafters
and Iockouts_ Also called cfo cornlu.
Awide roard set vertlc.ally to cover the
lowerendsof raftc-s or theJoint recween
the top ofa wa" arid the projectlng eaves.
Wood shingles cut to auniform s1zt.
random shingles
Wood shlnglts of uniform length, Mof
random width.
--sha~
Athld shingle formeJ~ splltUng a
short log into .. numPer oftapered radial
sectlons_
tapersplit shake
Ahanaspnt snake tapered by reversing
the l11ed with each spilt. .
~ handsprrt-and-~awn shake
Ataperspllt sha~e hzvlng aspiltfau ana
asawn~
",-- straightsplit,luke
 Ahanasplit shake of uniform th~.
''---- f,utt
The thid:. usually Io~ exposea eM of
awood shingle or shake_
;- sprocKet
:. Astrip of wood ftxed to each rafter at the
eaves I" oder to extenJ asloping roof Wfth
;:I flatter pitch. Also callea cocking pieu.
- rafUrt4n
The lower, sometllT1¢.5 exposed. end of
;; rafterthJtovem3ngS3 waiL
.-- tail cut
Asorr.etl~s orT13 mentaIcut at the
lower eM of 3 rafter tail
open~miu
An e3Ves overhJng exposing the ends of
rafters and the underside of the roof
sheathl~ Also carlea open eaves.
-------- sized 5~
RoofIng sb"tes of uniform width.
ranacm,uu,
RoofIng slates ofV3l)ing width, often
laid In dIminishIng ~. Also c;ar!ed
rUst«; ~us.
------- head
The up~ end of aroofing 51&.
open slating ·-·------------·--------·------'f'---F--",,;---=--=---=·-'~
....:=;=;====rr==r-l=
Amethod of~ roofing slates with
spaces ~ adjacent ules In a
course. Also called spaud slatJng.
/=.::!::::===.~---- tail
dimini~hing co~
One of ;:I number ofcour.x:s of rooflng
slates that dlmlnl$h In exposure, and
sometimes width, from the eaves to
the ridge.
The lower. ex~ portlon ofa
roofing slm.
t ... slating lUi!
Acopper nail haYIng allrge, flat head and
3 medium-dlamond-shapea point, u~
esp. for flxlng slates.
213
ROOF
rocfi~tile
ArtyofVlIrious Ct.y or concrete
tlles for coverI~ aroof.
field tile -------.. ---.-------------,
One of~ ~ tl1es covering ""-,_
the 11131" expanse oh roof. -
hipti~ ~--------.-.---.------',.
Aconvex rrofl~ tllefor .......
W>'eM~ the hlp ofa roof. ',,_,
Also oiled pon1rt tllt.
eaves cour~ _._____._.____ 1
Afirst courseof shingles. slates.
IY' tiles on aroof.
Var~cout~ --.-.--------.-....--
Arowofslates or tiles placedon ana
projecthlg OYer the mln~ ~s ofa
gal;le,
rUIge tile
Acanvex. 500".etimes decorated
roofing tI~ for caverlng the ridge
of aroof. Also oiled crown tife. ~-;
nuti1e --...-.-.-.--.---------,
A ~ We forT!1ed tocoverthe -.•..."'t:~~=======~===::=::::=::=
r3l:e ola sloping roof.
arri'5~1e
A., L-5haped rooflng tilefor COferlng
~~. hlp. or ,..keofaroof. Also
Q~'~'~~[--~
o·t1-canning
1l-.e s~ht wavfness of a
shea metal sumu.
co~rooflng - ....;
Aroof COo'erlng ofcorrugated sheets of
galvanlu.-J iron. ~t.ed steel. aluminum.
fi!:>ergbss. orreinforced plastic.
cop~r roofi"9
AroofCCfering ofcopper sheets.Jolned
by st3na1ng seams.
tinroofi"9
Aroof COtering of IbIPle tinplate or
ten'.qlate.
,-tarter tae --..------.------.
Arooflng Ule. usually shorter orplainer
th.'ln thefie1J utes. pl3ua underthe
~es course tc give It:i proper slope.
~roU
Arounded C4 pfor CC'erir.g
t.l"e ridge of:i roof.•.--~
nola-down cUp -------.........--.-
Ametal clip for securing ~gths of
shut rnet3t ,-
overcloak -.-----.----.-.---..-.,..-"
The part ofasheet of metal roofing
thzt fapsC'er asheet l1entath it at a .//
drip or Se4m.
ul4krcloak -----.-....-- -------.-. --/
~ k>wer ~ of metal rooflng at a
drip or seam.
,.---------- tile tie
Atwisted wire tie exter,alng from the e4ves
to the rid¥ of aroof, to which rooft~ tiles
are secured.
---. missIon tile
Atapered. semlcyllndrlcal roofing tile bid
convex side up to overlap flanking. similar
tlles laid concave side up. Also called
Spanish tlle.
---------. im~rex
Atapered. semlcylindrlcal rooflng t~ laid
convex side ~p.
----.--.-. Ugula
~.
. . . - -. Atapered.semlcylindrlcalrooflngtllebld
. . concave side up.
,,----'--- pantile
Arooflng tile having an 5-shaped cross
~n. bid 50 the downturn ofone
C'ertlps the upturn of the next In the same
course.
Cl2
-I ... pan-and-rolltiling
·J Asystem of roofing tiles consisting of
tapered. semlcyflnarlcal tiles C'er!applng
the flanges offfat unMrtlIes In the same
, course.
.£~~~~.-...-...---.--.-....--.-. interlockIng tile
"~- tilting fillet
Aflat. rectangular roofing tile having a
groove along one edge that fits rNer a
fu"4e In the next tile In the same course.
------.--. 'hingle tile
Afut. rectangul3r roofing tile laid In an
C'erlapplng pattem.
'.~---- ..-....- ~atten
Anorlzontal wood strip on which roofing
tiles or sl3tes are hung.
Awooden $trip of triangular section
usea to ~ise the edge ofaQoul>le
e4ves course and ensurethat the tail$
of the lowesttiles pea tlghtly on each
other. Also C<!llea arris fillet.
~
.......... .------. lock ~3m
.........., . . / AJolnt l>etween two pieces of sheet metal
, .... made by foWlng up the adjoining edges
.' against each other. folding them over. ana
futtenlng the Interlock.
-~.~~. .._...J.--. ,~naing ~m
••.•••• •..•..... Ajoint l?etween two pieces of sheet I1'Iet.il
-"'''' ... made byfoldln!! up the adjoining edges
••••••• . 3g3lnst each other. then folding their upper
" portion over In the SJIT1e direction a numPer
'. . oftJmes.
r--:"'-' l1atten ,eam
.."" : AjoInt 1?etween two p~ of sheet metal.
... : made by turning up the adjolnlng edges
against apatten and locking them In pI#ce
with ametal strip placed over the lr.Itten.
.......-...... roU,eam
Ajolnt ~wun two pieces of sheet met4lln
the directionof fall of acurved or sloping
roof. made Py turning up the adJoining-edges
against each other; then !:lending them
around to form acylindriC<!Iroll
.,·-17eaa
An edge of sheet met31 stiffened by pending
and futtenlng anarrow strip or rolling the
edge Into atu~ shapt:.
Mond metal c1ezt--···-- ..............-........-.........-.- -....-.-.-........ . --~-~
Tr3~mart for amndof an aJJoy
consisting mainly of nickel and copper.
214
Astrip of met41 Of' wood attached to a
surface to restrain or support an
e!e",ent or me1:';u.
L
JI
: I
~ I
-'
I
I
I
I
M
i
I
/..
l
I
L
I
L
r
i
j
Hypalon
r"deman:for ahana of chlorinated
polyethylene.
I
fluid-applied roo&g ~--.
Acontinuous coverl~ for roofs ofcomplex
geometry. conslstl~ ofan elastomerlc
material as neoprene, Hypaton. or butyl
rubrer, apple<J In multiple coats with a
roller or spray gun and curing to form a
contlnoous membr.lne.
structul'3lllt5ubting roofduk ~.:
Acement!tlcusInsubtlng ~oard of
Ilghtwe!gh~ agg~ate crwood fl~
ronded unJerpressure wtth portland
cement. having afactory-finished
underside for use on roofs with exposed
reams.
EPDM
Ethylene propYlene d1ene mOflomer. a
synthetlG rubl1er manufactured In sheets
ana used 35 arooflng memmne.
ROOF
.....-- -.----.--...-..-...--..--. single-ply roofing
•••-.... Ashut ofel3stomerlc llUteri3las
~,,/ ,"" necprene, EPDM. or PVC, fm1ng 5e3~S
:' fused by heat or a sof.'ent. ftxed to aroof
/ det;.k with adhesNe. rneciunlc3lfasttners.
! Or by the weight of a grave! ~11a st. Also
,.......".6.---.,....-..-..........,.......--.-..........~·_____.,.......rv called rustc~ric ~.
-=----;,/ elasUlmeric
I f
I
Having the elast~ qualltles of natural
ruL1>er.
'-...- gravel SUlp
Ametal strip with avertical runge for
retaining sumcI"4 a~~ and •
preverTtIng leaks :around the ~ ofa
I7uItt·up roof. .
r--- p~ membrane rocf
; Aslngle·ply rooflng mem~r.e p~
~liiDiiiillliiaa~ from sunlight ana extremes of
tempmture by alayerof r~iJ board
..i Insulation ana an aaaltlonal !ayerof gravel
~all.:lst.
."~-'-----'--------'---' selvage
.•."-;' The edge ofa sheet ofroU rooflng th..t is
..-- / ~ of granules anJ most of the aSpflaft
coaUng SO as to provide a~ter rond
with the lap of the next shut.
-------.-------...... roll roofing
: Aroofing m.oter131 consisting offe!t
saturated with 3:Sphaft artJ surfaced on
the weatherside with ahar~ asphJft
mlxeJ with mIneral orglass fl~rs. ana a
coretin9 of minerai gr3nules.
bitumen
Any of'r'3rious mixtures of irydrocarrons
occurrin9 natul"Jtly ordlsU~ from C04l or
petroleum. as asph31t or coal tar, used for
surfaCing roads. w.;terp~. and rooflnq.
Before appllcatlon. the semisol1d rrtit'".er
must redIssolved In .. sotve:rt. emulsif'.ed.
or heated to a liquid state.
asp1'13It
ADrcwnlsh-Dlad mIxture of ~mens
obtained from ~.Jtlve aeposr-..sor as a
petro!etJm by-product. used for paving.
waterprooflng. ; narocflng.
coal t.ar
Aviscous. bbcl: !lquldformed during the
dlstIlbtlon of co.l uSe.a for p-alnts.
waterprooftng. .na roofing_
~ ...- wearccu~
rigId bo3rdfnSul3tJon .-------. --. ------ ---- --- ---
Alayer ofgravel serving to protect a
rooflr~ memml'lefrom mech3 nleaf
aUr3son ana uptrftlng wind fof'ces.
cold-proceS5 roofing
Aroofcovering conslstlng of layers of
roofing felt or synthalc faDric bonded and
s.ealed with acold application of an asphalt
mastic orcement.
roofing bond
Aguar3ntee Uy asurety compa ny that a
roofing manufacturer 1'1111 repair aroof
m~mbrane orcovering under the conditions
listed In the bOtld1ng contract
.,----. cap shut
Ashut ofcoated. mIneral's~rfaud feft.
used as the top ply In al7uitt-up roof.
..-----._---- ..... l1a~ ,hut
l1uilt-up roofing -----._.
AcontInuous covering for flat or low·
pitched roofs. COMsIstl119 of altematln9
layers or piles of rooflng felt and heated
Dltumen. surfaced with acap sheet or a
lJyer ofgravel or slag In aheavy coat
em!1edded In bitumen_
Afeft Imp~nated with asp'.JltarC04I
tar for use as the first ply In th~ layInguf
a~Itt·up roof.
roofing felt
Amatted. fibrous m3terlal i~pr-e9nat;ed
with abltumlnoos material b- increased
tcughness and resistance to ·~ther_
Also called roofln9 paper
215
ROOM
A portWn of spau withina
l7Jlkfing. ~arJt&i by walls or
parW:i~ from other similar
spaces.
,nteroom
Art outer room ~ ~ toalarger,
~ ~nt room. often used as a
W3J1;l~art2. --.- .••----.-••--'....
~~orp3ssa~In ahotJSe, .,...." ••) .
11
hate!. orether bu~ A!so called haiL ....
corridor
AItilITOW passageway orgallery ?
...
c;oonectlng pzrtsof abuilding. esp. one ".
lnt-a which severalrooms orapa""..ments ;.. ~.
open. ~---' ..--._._~., "
5uiU
Aconnected series or ~roupof rooms
amln~ to be used together. --...._ ...-
open p~n
Afloor pbn fuvI~ no My el1(;losed
spaus or distinct rooms.
216
.-...... alcove
. Arecess or small room connected to
orfonning part ofa13rger room.
.- vestl"btllt
.... ASIr...nentrance h.R ~een the outer
. doer 3M the Interior of ahouse or uUIk:llng.
function.al groupin.g
A~ of fumlture p~ arranged
3CCO!'ding to funct.lo!1 anJ use.
~htfit
Aclose, often CO!TIp3Ct c.orrespondence
~ funct~1 voupl~s an.:! the
fonn orstructure ofthe enclosillf space.
A~rge room or Pulldlng for puullc
gatherings orentertainment.
.• ~Iltry
A~ rel3t1ve!y narrow room or lull,
esp. ont: for puU/1c use and having
architectural Importance throu~h Its
SC3le oraea)ratlve treatment.
enfiiaae
An axl3lamngement ofdoorways
connecting aseries of rooms sa as to
prov1.de avista down the entire length
of the suite.
Afre.e and unrestrained arrangement
offurniture groupfngs that does not
neusS3 rlly correspond to the form or
structure of the surrounding space.
;,
l1
1-
J-
1--
1TJ~5
The physical volume Of' ~ufk of asolid ~ody.
voia
An empty space conbJned within or
~Pyrnas5.
--.~.--------- .. -------
refuge
Ar'.Juaffording shelter. protection.
or SJfety from danger or distress.
r-e;i~
A ~JU of rest and tranquility
centu
Apoint or place upon wh'w;h Interest.
activity, or emotion focuses.
~Itf
- . - 0 0 0 0 0 0 0
J11~
focus
Acentral point of attraction,
attention, oractivity.
ROOM
space
.The three-dimensional field In which o17jects
andevents occur and hav~ relative position
and direction, esp. aportlon of that fleld
set apart In a9lven Instance or for a
particular purpose.
Euclidean space
Ordinal)' two- or three-dlmenslonalspace In
which Euclid's definitions and axioms apply.
Also called CarUsian spau.
place
Aphysical environment having particular
characteristics or u-sed for apartlGular
purpose.
amInance
The mood, character, or atmosphereof an
environment or milieu. Also, amlrienu.
animated ~
Full of Ilfe, activity. moverr.ent. or spl~
outlook
Avlew from aparticular p!3ce. or the
place offering aview.
pro5pect
An outlook over a~Ion Of' In aparticular
dlrectloo, or the pl3ce that commaods
such aview.
217
ROOM
Jdjacent !5pau,
Two spaces al7UtUng or contiguous
with each other. esp. when havln~ a
common :>ounaary or rorder.
linked spaces
Two spacesjolnea orconnected by
athird Intervenl~ space. .
interlockin9 space!5
Two spaces Interwoven or fl~ Into
each other50 as to form azone or
fIekf of shared spau.
em17eaJea spau
Aspace enveloped or IncorpOrateJ as
an essentl3l part of alar~er space.
DID
I ~ I
0
:···,:·'
··e····:
':." .'
: ..
• • 0 '
L,i;.:::.,
-
lineM organiut1cn
Spaces extended. amnged. or IIn~ed n'Q-n.n'Q.nn
along ahne. path. or gallery. ~ - X. .I - I.~
centralized organization _.
Spacesgathered aroutor coming
together at a large or dominant
central space.
rubIorganlutlon
Spaces arran~ fie 1'3d11 or rays
from a central spue orcore.
grkf organization
Spaus organized with reference to
arect3ngular system of lines and
coordinates.
clu~tered or9anization
~~ grouped. collected. orgathered
""=':1 toc3ether and relateJ by
proximity rather than geometry.
218
~/-- ........~ ..~.. ~.-~.
1~lJt:~~]
00000
D~DD
D~DD
DDDDD
DDDDD
[bDO
D~
··.'··.. D
.:" ~ :',
DO ':;::· 0
:.;.~ D
.,
D
,..- transitWn
Moyement. passage. orchanItA fro
one form sta"A ':1'" m
• I<C>. or place to aneth
r------- .. tT'.
... ~
Anne or 113 rrow part where an
area begins or ends.
:..__.. thrtshcld
~ce or pointofentering or
""'jlnnlng.
path
Arout.e orccurse along which
movementocc
h
UI'S. or the pattern of
SUC~.
l
I -
i
L<
memirr;ane ,tre55eS
The compressive. tensile. and shear
stresses actln!J In t~ piane of the
surfau ofashell structure. Ashell can
sust3ln relatlvely large forces If uniformly
applW. Because of Its thinness. however.
ashell h3s little !lending resistance and
15 unsuitable forconcentrated loads.
l1am~lshell
Arigid cylindrical shell structureo
elliptlc paraboloid
Asurnu ¥nerated by sI4:llng avertical
pa",t,.ob with downward curvature alonfl
aperpend1cul3r pararola with downward
cumture.lts horizontal sections are
e!!1pses while Its vertical sections are
p3r3bolas.
Iftiltlengthof3 barrelsheDIs three orm~
times its trafl5llerse span. It ~hJves as3
deep Pe.m tWth 3 ()JrveJsectIcn 5p3fl111ng In
the IcngltuJWJafrectlcn. EJgesare
5tIffeneJwith Pe3mSoradjoiningsheDs.
--)
thin shell
Ashell StnJcture constructed cf
reinforced concrete.
IfItIsrt/3tI..-dysOOrt.Itexhibits archlib
action. TIe rods. tran5V~ rlglJ frzmes. or
thelikeare~ireJ tocourrtenctCM
OIltwara thrusts ofthearching action.
hyperbolic paral1olold
Asurfau ~r.trated hy sliding 3 parabola
with downward curvature along :iI parabola
j,;lth upward curvature. or ~ slldl~ a
smi9ht hne segment with Its ends on two
~ew lines. It can ~ considered to ~ both
atranslatlonal and aruled surf3Ce. Also
called hypar.
SHELL
Athin, curved plate structure,
shaped to transmit applied
forcesi7y compressive. tensile,
and shear stresses acting In
the plane of the surface.
translational surface
Asurface generated by s!ld1ng aplane
curve along astraight line or eNer another
plane curve.
cylindrical surface
Asurface generated ~ sItdlng astraight
line along " plane curve. orvice versa.
Depending on the curve. 2 cyflndr1c31
surfau may ~e circular. ellIptIc. or
pararollc. BecauseofIts strai9ht bne
geometry. " cylindrical surface c.an ~
regardea as being either atranslatlon3l
or aruled surface.
paral1oloid
Asurfau all of whose Intersections by
planes are either paraPolas:ilna elllrses or
pararo!35 and hyperbolas.
,addle surface
Asurfau having an upward curvature In
one dilUtion and adownward curvature In
••.............................. ~:~:I:~:~:ris~ructure.
I reglons of downward curvature exhiln-t
I archhke action.
··r····· while regions of upward curvature !7eh4ve
I as acable structure. If the edges of the
, surface are not supported. peam !7Mlar
may also Pe present.
anticlastic
Having opposite curvatures at agiven
point.
219
SHELL
rvIetJ&umce
Asum~ gener.lted I1ythe motion ofa
~Ight line. ~use ofIts stra~ht hne
~. aruled surbuIs generally
I.'!<Islertoform andwn5tnJctth3na
robtlorul or translatlonalsurf.ice.
.....'.
conoid ...._._.//./
Aruled surfacegene:rated I1ysliding a
~ht hne with OM endon astraight "lie
se.gment2nd the otheron a plan"curve.
Depetldlng on the culYe. a~ may !?e
circular.einptlc. orparaPolIc. -
roUtlon.1 ~rbce
Asum", generated I1y rotating a
pbneculYe aboutan axis.
sphe~1 ,urface
Arot3t-i0n31 surface ~nerated I7y the
revolution of acirculararc auouta
v~laxJ5....
eUiptbl ,Ul'bu
A~nal surface generated I7y the
revolution of ahalfellipse a~ a
!
hyP...IooIoLl •........_...1
Asulfa", havl~ afinite centerwitJ1
certain pia"" sectlons thnare
hypetVoiasandothers ~ are
circles orenJpses.
syncla,tlc
Having similarcurvatures atagiven point.
vertical axiS.........................................___-4-_-
parapollc ,urface
Arotoltlonal surface genelOlted I7y the
revolutlon ofapar.ilrola arout a
vertlcal2xls. ...................... .
2.20
j
U,ru, .........................1
Adoughnut·shaped surface generated I7y
the revolution 012 circle about an e;xterior
hne lying In Its plane.
one",hM hyperl7olold
Aruled surface ~ted Py slldlng
~n Inchned nne se.gmen-t on two
horlzonbl clrcfes.Itsvert1c31
sections are hyperl1ol3s.
j
I !
I !
I j
I
1
l
1I
encroachmetrt
The uruuthorlztd extension ofa
l>ulldlng.or partthertcf.on the
propertyor ~In of.nother.
set~act --_.--....---.......-.--..--.-.-
The mlnlll1um required distance from
evtry structure to the property nnes
of alot. e:stal1lshed by azonln9
ordinance to providefor air. light.
solaracuss. and privacy.
curll cut --'---'---'-'-'-'-.
Adepression ill acurP provkll"9 "'"
vehicularuce:sofrom astreet to a
driveway on prtnte property.
wntraa limit
Aperimeter _ est;J1:7Rshed on the
drawl~ Of'~ In the contract
documents ~I~ the Poundaries of
the site <lV31bb!e to the contractor
for constructlon purposes.
overvuraen
W
3Ste e;arth .naroo:;k Oo'erf:ting <I
useful mIneraideposlt.l7edrock. or a
deposit of SJnd. 9ravel. or rock neeaea
for constructlon. Also called l:7urden.
te,t it
Asmaftpit a~to examine the
exlstlng sonccnaltkms and determine
the depth of ~ W3ter tJb1e at a
propased l>ulldlng slte.
shori"9
Asystem of shores for bracln9 or
supportl"9 • l'I3l1 orather structure.
shore
Atemporary supporting strut. esp. one
placed ovllqueyagainst the slde ofan
excavatlon. furmwoO:. or structure.
SITEWORI<
Work done at asij;e in
preparatlon for a construction
p:oject. as excavation, sheeting.
~
-- -- -- ---n
I --. r-············-····-··········-·-·-·----·- ..----! . :
'---'--"'-: ,··--··..·············1 I {.-..-L--..-;-...-site
" I lThe geographic location ofa
shoring. and grading.
-".
,
,.-. I
I . tonstructlon p. roject. usually deflned
I t>y 1eg3lboundarles.
I I'
I --.. property me
I lOne of the legally deflned ana recorded
14;, H
Doundarfes of aparcel of land. Also
called lotline.
I :
.•._...._ j L___ ,-'-- ~~:a~~theld t>y spectfled persons
--"'-""..-.-...........-..-.. :JJ' or the public to make IImltea use ofthe
_ _ - . - . - -........... j I land cf another. as aright-of-way.
------ I
patter poard ~..--..//
One of• numPerof bc.aras set
horizontally with vertlcal stakes to
support the strln9S outlining the
foundation plan of3 prop05ed
l:7ulk:ll"9.
~ . - . - - - - --.- - _ •• 0 " " - - - ' " - -
-------
-- .. -0 _ ...
..-·groundbruking
The <lCt orceremonyof preaklng 9round
for a newconstruction project.
e3r'thwork
The excavation and emlr.inkment of.
earth In connection with an engineering
opmtlon.
exc3V7tion
The Q!4gln9 and removal of e3rth from
Its natural position.orthe cavity
resu~ng from such removal.
tieback
As-t..eel rod or tendon attached toa
deadrun or a rock or soilanchorto
prevetTt lateral l71O'Iement ofa retaining
W<lfl orformwart
raker -.-.-------------- ..--------- -----------....-
--_.__...... shut pfle
Any cf 3 num1:7er of timber. steel or
precast concrete planks driven
v~lfy side t>y slde to retJln earth or
preve:1t water from seeping Into an
exc3't7t1on. Also called shath pile.
An IncRneJ short: for supporting awall.
Also cal1eJ r.KIng shore.
flying ,hore .
AhorlzontaIstrot fixed ~ween and
supportlng two walts aDove ground
level.
ccfferbm .----.--- -...--._/
AwatertIg~t enclosureconstructed
unaerw2tuorln W2ter-~e:lrlng soil
anapu~ dry to.IIow access for
constructlol1 or repairs.
dewater
--~#....
~ing .
AtUJm~r of boardsJoined together
side b:i side to retain the face ofan
exC3Y7tlon.
1~~~~~~~2~~~~~~·---soldier pile
~ As~ H-sectlon driven vertlcaily Into
the ground to support horizontal
sh~ng or Iaggl"9. Also called soldle..
p~m.
I
L·-tremie
To remOt'e W3terfrom an excmtedJoO
site. uSli4lly bydrainfng or pumping. ~- existing w;ter tJble
-t+- .+----1 - - ----
Afunnellike device wIth a pipe or tu!:>e
for deposttlng concrete unaerwa~r.
boil
An unwanted flow of water and solid
matter Into <In excavation. due to
excesslve outside W3 ter pressure. Also "
calted UIow.
APys,jnian well
AperforneJ p!pt: driven Into the
ground for pU1l1pln1 oot collected
ground water.
--------
~------ '-.... /-
/ ~..- water tJble afterpumping ....'.
wellpoint
Aperforated tube driven Into the ground
to collect water from the surroundi"9
area so tt can be pumped away. as to
lower 3 water table or to pre-..e~t an
excaV3 tion from fi:ling with grc~~d'''J t.er
slurry wall
Accr.cre-te waf! cast In a trench to
serve 3S sheeting and often as a
penn3nent foundation waf!.
constructed t>yexcavating 3 trench In
short lengths. ft"ln91t with aslurry of
Denton~ and waterto preVent the
slkw3f!s from co"apslng. setting
reirrfOlUTrlent. ana placing C011CreU: In
the trench with atremie to dlspl3ce
the slurry.
221
SITEWORK
fill
To I'2lse an existing grne with earth.,
~ orother materla~ or the ,
~Iltltyof rnat.erbl useaIn Pullalng ~--..----.-- --.-------. ------.---'..
up the Ieve! ofan area.! ".
~4rouna
GI'OJI1J authas ~n ralseJ to 3
higher level !:y fjlb~ with hard ruDPIe.
is stone or mien prick. Also called
rrt.1<k-up grooM.
Pcrrowpit
Ap~ from which sand. gravel orother
canstructloo mzterl3lIs ~ktn for use
as fill In anot1'ter location.
cut.3M fill
An excmtl~ operation In which the
exc.a~ m~11s lTlOVea to
another rutlon ana used as fill
~------------------ ------------~
g~ ~.------::-....- ..- ....-....-.-.--.---.-.-----.----...--.....-------'.,.-
The ~r'OJnd elevation at.3rfi specific .....
point on acon5tnIctlon Site. esp. where
the ~ r()IJ nd IMtetS the foundation of a
Pv~ />Jsc cal1ed §rad4 U~. ,..."
~~g gn~ -.-.-.-...... j .
The elevatlon of the orIglnaIground
$umu~ ~Ion orgrading
~ Also ~Ile.d nrlura'vaa~
~ grade .-........- .....---.-..--- .
The ~at~ of drlv~. w;ols.lawns. or
ather~ SIIt'faus ~
~ ofcons~ orgraalng
opomtions. Al:so. finished grade. ,
J,.elowgraae -.-..---.---- ··-··..···--..·--l----
Occurring or situated!:>elow the 1
"m«of"" ! "",oJ. I
I
underpinning
.r·-------·. rough grading
,. : The cutting. filling. ana sh3plng of earth
In p~eparatlon for finish gradlng.
---.---. fine grading
The precise graal"i! ofan area ailer
rough graQing to prepare for paving.
seeaJng. or planting.
grade nake
Astake man:lng the amount ofcut or flll
required to ~rlng the ground to a
specified level.
.controlledfill ,
All material that Is placed In laye.rs.
compacted. and testedafter each
compaction for moisture corrtent, depth
of 11ft. and Pearlng capacity ~~
additional layers are placed.
vertkal curve
Asmooth paral10llc curve In the
vertlcal plane for conMCtlng two
grades of different slope In order to
avok:! an aprupt transition.
Ptnch Ur"1'aCe
An eml73n~mentconstructed
across sloping ground with asteep
drop on the downside.
------..-...-...-.-----...• ~ackfill
j 0 reflll an eXcavation with earth. stene.
orother material. esp. the space around
exterior founaatlon walls.
eu1lgraM
Th~ prep;a~earth surface upon which 2
p2vement. concrete slab. orfoundation Is
~11t. Asu~grak should bostai;lkt. anln
well arid ~ relatively free offrost action.
-"-'''-'''' needle
Ashort Peam pas~ through awan35
a temporary support while the
found3tion or part ~eath Is repalre-d.
altered. or strengthend Also called
nudr~ 17e.1m.
...... ~d&horcs
i An uprighttlml1erfor supporting a
J dead load during the structural
; alteration of2i;lUIJalng. esp. one of
Asystem of SlJpports that enaDles an
exlstlng fO<Jn.btlon to !:>e r'ePullt.
strengthened. or detpened. esp. the
~fUl SlJP?XtrequIred wben anew
exumIon III adJdnlng property is
~pet' than t.~ existIng found3tlon.
I two supports for aneedle.
___________J
222
;
I
-oJ
.J
I
...,
I
.. .oj
!
I
.."
,..
SITEWORI<
,wale ----------------...--...-. -.-------..--------------------~ runoff site arain3g8
Ashallow depression formed by the . Somethil14 that drains cr flows off,.s The surface and sullsurface drainage of
l!1t.ersection of two ground slopes,
often designed to direct or divert the
flows off the !Jna In streams. asite In oraer'to prevent the ccllectlon
runoff of sumu water_
+l' 1'1 1 r-
~£~;:;:n.';'':~::~;ofth, ~j'/':P:f5Wit;';~I~
springs, ccnslstl~ brgely of surface : j :. i .-; .T::'r
::~::t~~_~_~~~~...__.____..__...;l___~ .. i-' ;-j:
The process by which groundwaterI s ! '. - ~ '.. : - _. I':
absarbtdlntothewatertal:rie- 1j'~': -1 : i
'" .... .... ..............
;:~:::~~~~~~~~~~h------.- r~2~7T~~-.:-;::::;~~~;~'~~'.~~
which the earth Is saturated wtth " .'__ .: - --. ">:-.~
water. . . , .-'-' .:
perched w4TUrta~1e It . . ,
AW3terta~ofUmIWarea,held' I
above the noot13l watertal:rie by an
ImpeTYlouS byer.
culvert
Adrain or c~nnel p3sslng under a
rwdorskbral:. ~------- --------'.
box culvert ..·.....A~,-
Artlnforcea concrete culvert having ~ _ "- ... -', _.
a fectangul3r cross section. 7/-"", -. ~
hea~1I -----~----------.--..----../..-. (" "". ..: "
Acorn;rete OI"II13S0nry retaining 1';311 ' ...' ......
3Uhe Inlet of a drain orcufvert:. "" ...
e:1od'l'!all -----.......-------..-.----......-...;---.-:-- ..----: /-..····l,-..-:...--.......r
Aconcrete OI"lI1asonry retaining wall I . >/
;otthe outletofa drain or culvert. l,://
building ,term ar3in --....:
Abuilding drain forconveylng
rainwater, groundwater, or Similar
dlscharge to aPuftdlng storm
sewer or acomPlned sewer. Also
called hou~ 6tom1 drain.
hnding ,term 5~er -.
Adrain conr.tC;.Jng a~ui!dil"~ storm
drain to astorm 5e'l't'er. "'m~ned
sewer, or otl-.er point of d'~31.
Also called M.c-Jse storm ~U.
;
I
"'"
of excess surface water or -
gl'OtJnawater_ .
surface arainage
The grading and sumclng of asite In
order to divert rain ana other surface
water Into natural drainage pattems
or astorm sewer system_
cutcff
Awall orother structure Intenaea to
elIminate or reauce percolation through
porous strata.
•..a~-~:..-...---.+..- curtain drain
Adrain placed l1etween the sauru of
I
water and the area to l1e protected.
Also callea Int.erceptlng drain.
L ....._____ .. _. ____ .. - unaerdrain
L_._ _ _ _ _ _~ Aperforatea pipe Installed In porous fill
to draw off groundwater.
.............. Frencharain
Adralr!3ge trench filled to ground level
with loose stones or rock fragments.
subsurface drainage
An underground network of piping for
conveying groundwater to apolnt of
disposal, 35 a storm sewer system.
Excess groundwater reduces the bad-
carrying capacity ofafoundatlon soil
and Increases the hydrost3tlc
pressure on a l1ulfdlng foundation.
-"-'- ..- ........-- areJ araln
Adrain for collecting surface water or
rainwater-from a I1asement floor or
paveaare3.
-......--....-..-..... "'" arywell
Adralr!3ge ptt linea with gravel or
ru!1!71e to reulve suriau water and
allow It to percol3te away to
.UsorPentearth underground. Also
called,11~~ wetl.
---- manhole
Acovered h<l!e through which aperson
may enterasewerordrain.
...j...... catch ~a,jn
~--.-. .'.i Areceptacle for the runoffof surnu
,: i water, h3VIng al1asln which retains
I
l
:- sterm~r
Asewer for conveying rainfall
aralned from roofs and paved
5uri.uS. A'rso called storm drain.
~m~ined sewer
Asewer cor.veylng !loth sewage and
rainfall dra~:",e.1 from roofs ana
pv'ed sur'~as.
heavy se.d1ment refore tt can pass
Into an underground drainpipe.
223
SOil
The top layer of the earth's surface,
consisting ofdisinttgrated rock and
decayed organic mattersui'ta!1le for
the growth of plant life.
~p~1I -.-.......--.----...--.......-...--..-.
The fertile surface layer of soil as
d1stlnct from the suPsolI.
,ub~oil ~--...- ..--....-------.----...- ...--.
The ~ or la)-er ofearth
immediately l1eneath the surf.lce
sart. •
permafrost
f'erennlally froun subsoil In arctic
or SUDarctlc regions. Alsa called
~rgelr~1.
soil analysi5
Aprocess for determIning the particle-
size dlstrfl1utlon In an aggrega~. 5011, or
sedIment.
r~----··---···---···- organic scil
r-::::::::::::::::::::::::::::::::::::::::::~'::;:;:~:::::! Soli containing alarge amount of organic
)..- matter. usually very compressll7le and
having poor load-sustaining propertIes.
~jl profile
Ad!3gram of a- vertwl section of soil from
the ground surface to the underlyfng
material snowlng 3 succession ofhorizons
developed I1y weathering. deposition. or
roth.
laye~ of soli or Its underlying materiJ/
J
-----~~~;series of relatively dIstinct
m'7"""r:-rr77""f7-rr.r-:777?'7""Tn7i found In avertical section of 13nd.
.' ·d.. o·~:
.. " . ~ .
.,
o "." ".0
·0 ",. ~
".. - .
. d,' D
,unum
Asingle red or layerof sedimentary
earth or rock having the same
composition throughout. lyIng l1etween
l1eds of another kInd.
~1cb~----------------------------------------------~
Anumerlc.1I cl3sslflcatlcn of soli Dy
texture. used bythe U..s.i?ep2rtment of
Agriculture: (l) gravel (2) sana. (3) clay,
(4) loam. (5) loam with some sana. (6) sUt-
loam, and (7) clay-loam.
boulder
Alarge. natur:ally rounkd roct.ly!ng on
tM surface ofthe ground or partially
em!:ledded Iii It.
col:rPfe
Anaturally rounded stone. smaller than a
!:ootrlderand brger than apeb~. usedfor
rough paving. walls. and foundrtlons. Also
called col:rf,festoM.
224
grave!
Sman peDVles arJ stones. ora mixture of
these witIt sand, fol1!'oed either nzturally
or I1y crushing rock. esp. such m~1
that will pass ~.3-In. (76 mm) *'~ ana be
retained on aNo. <4 (4-" 111m) sleve.
cru,hed gravel
Gr:avel luivlng one or more fractured faces
produced by mecnanbl crushing. 6
crul5hed ,tone ~
Stone having well-defined edges
produced Dythe rruhanlcaf crushIng of
rocks or Doulders. Nso called Cf1.IsM.d
rock.
pea gravel
Asmall-d1ameter, natural gravel. usually
If4 to 3fe In. (6.4 to 95 mm) In slzt.
screened to speciftcatbn.
pepple
Asma". rounded stane, especl311y one
worn smooth I1y the acUon of W3~.
'-1r.a
Aloose, gr:anul3r mate:r!31 resulting from
tJ1e d1s1~l7tbn of rxks. conslstlng of
graIns smaller tJ1~n grnel Putcoarser
tJ1an $lit.
S.1MCt.y
Awdl·g~ naturallycuurrlng sand
often used as a 7ase orsul1Dase ma~riJl,
having arout 101 clay orJust enough to
make the mixture ~lnJ tightly when
compacted.
silt
loose sed1mentary material consisting of
flne minerai particles l1e"tween 0.002 mm
~nd 0.05 mm In diameter.
cby
Anatural. e3rthy matertJl that Is plastic
when IMOIst M hara when flred and Is
used for Mlng I1r~t tilt:. ana potte.')'.
composed I113lnly of floe particles of
hydrous aluminum sl/k;a~ less than
0.D02 mm 1n diameter.
cL1yloam
Solicootalnlng m to 40t clay and 2O'.t
to~tsand.
I1entonite
Aclay formed I1y the decomposition of
volcanic ash. having the a!111lty to al;>sorl1
I3rgeamounts ofwaterand to expand to
several tl~ Its natural volume.
loam
Arich soil contaIning" rdatlve/y equal
mIxture of sa rJ and silt ~nd asm,lIler
proportion of clay ilnd organic ma~r.
loess
An unstratlfle.d. cohesive. loamy deposit
deposIted I1y wind.
l-
I
I
....
I
l..:ool
'.
Atu~Umit5
The levasof water content defining the
PoJndJ~ ~UI1 the different states
of con~ncy ofaplastic or cohesive soli.
lIS ~ !1y standard tests,
I~uid lait ...................-..-...-.-....-.---
The wa~conttnt. expressed as ;,I
~~ofIry ~Irt.at which asoli
p2~ fmn , pbs~ to aliquid state.
p~5ticlt.y Indd -.-..----.--------..--......--.
The nurnen:.1d1ffertn<:e I1etween the
/!quid hllitand the plastic limit ofasoli.
pWtlclinit -------------.---.---.:------.--
The W3tercontent. expressed as a
~rcetTb¥ ofdry weight. at which asoli
lcses Itspbstlclty and l7eglns to l7ehave
as;,l sol1J..
pl.a5tlc soil
A soil M can ~ rolled Irtta '/8 In.- (32-
mm) diameter thre3ds wtthout cruml7l1ng_
shrin~limit ---------- ----- --..----....----
The W3~corrtent. expressed as a
~runb¥of Iry ~Ight. at which a
rtJuctloII mW3ter content win natcause a
further dt:cre3se In the volume of asoli
nuss.
• -'.0
l-
l- I-
l-
l- I-
I-
~ I-
I-
f- l-
I-
f- II-
III--III
~ II-
lil-lI/
i--[J I-
I/~
I'- I--
~ I--
I'- I--
~ l-
I'- I--
~ l-
f- l-
f- l-
l- f-
illf- III I-
1-1 f- II
1111-III 10-
'-I i-- II
!1If-til f-
II ~IIII-- 1 i--! 1 (
~rln~r.r~1
AIry §rnd.S3nd.0- sUt that exhibits ~o
cohesiv~ 01' plastlclty_
~p.rfty
The propc:rty of aporous nuteri31 that
ail.uwsa 95 01' lIqula to pass through Its
pere sp3CtS.
p~u, ~n --------------------------- ..------
;..rry ~nrabie SOil true allows the :.' , •
r'!la ttvefy free morelT1em of wakr,
impervlo~ seil ---- --- -- ..-----.-------------
Arry flr<:-g~1ned soli, as clay, h3Ylng pores
t.:xJ small to permit w3ter to pass except
b-j slow ca~ry aGt'C'1
geotechnical
OforpertainIng to the practical
applications ofgeologica/science In civil
engineering.
foundatIon investigation
The Investigation and classification of a
foundation solfl7ased on observation and
tests of material dlsclosea by l7or1ngs or
excavations to obt3ln the Information
necessaryfor the deslgn ofafoundation
system. Includln9 the shearing strength.
compressluUlty. cohesion. expansiveness.
permeal7l1tty. ana molswre ccnterrt ofthe
soil. the elevation ofthe water ta!lle. and
the antlclpated total and differential
settlement. Also called su17surface
Investlg3tfon.
SOIL
~iI mectunlc,
The I7ranch ofeMI englneerlng that deals
with the mechanical f,ehavlorof so~ wnen
compressed or sheared. or when water
flows through It.
soil stnJcture
The arrangement and aggregation of soil
particles In asoli mass.
core
An undlstur17ed. cylinarical sample of
earth or I'OCk otrtalnea by means of ~ core
drill and used for analySis ana testln9 of
l1earlng capaclty. Also called poring.
-- -- cohesive soil
Soli that has conslderaPte strength when
unconfined and air-dried. anaSignificant
cohesion when SU!:I!T1ergd
--cohesionle" soli
Soil that has little or no strength when
unconfined and air-dried. and littleor no
cohesIon when sulnnerg.ed.
.r-------------~ compaction
The consolidation ofse.dlment by the
~Irt ofcmrl:tlng aeposlts.01' asimilar
compression ofsoil aggregate. Or
cemerrtltlous material by roiling. tamping.
or503;Jng. '
optimum moisture conUnt
The watercontent ofaSOt1at which
maximum densltycan ~ attalMd through
compaction.
penetration ~
Atestfor measuring the density of
granularsoils ana tMconsi5tencyof some
clays at tM rottom ofaMI!o~.
recordIng the numberofPlows reqUired by
ahamrnerto advance ast4ndard sod
sampler.
~netrztlon ~l,-unu
The unit load reqUIred to produce a
speclfled penetration Irrto asoli at a
specified rate ofpenetration.
shearing sU'en~
The pro~rty ofaso" that enaPteslts
particles ~ resist displacement with
respect to one another when an external
force Is applW. d~ largely to the
coml7lned effects ofcohesion and Internal
friction. Alsocalled shu~ resistance.
225
SOLAR ENERGY
~br COMtoInt _.--_................... '-'-""-'
Tnt ave:rage rate at which radiant ener~
from the sun 15 receIv~ by theearth, equal
.ltitude
The angulareievatlon ofa
celestial roaya!love the
horizon. _..- .....
...,.....
:~--..--- ~Iar path diagram
/ Agraphic deplctlon of the path of t~ Sun
/ withIn the sky vault projected onto a
: horlzon~1 pl3ne.
summer ~I,tice
Thetl",,", ofyear, on onDoutJune 21, wMn
the sun reaches Its northernmost point on
the celestlalsphtre. rruri::lng the beglnnl~
ofsummer In the northern hemisphere.
f equinox
! Eitherofthe two times during thayear
! when the sun crosses the ~ne oftht
; celestial equator and ~ the ~ of
d3yand night are evetjWhm appi-ox!mate~
~uat oc.;urring aPout March 21 (vernal
equinox or spri~ equinox).ana
SepUm[,er 21 (autumnal equinox).
- ...- ..----...-----...- winter ~15ttce
Thetl",,", ofye:ar. on or aPout Decembet21,
when the sun re3ches Its scuthernn-.:;.st
pointon the celestial sp~re, marking the
~Inn!ng ofwinter In the northern
hemisphere.
_.-._.._..---.....- latitude
~ 430 6tu perhr. perSIt.ft. (1.94cal per
min. persq. em), used In calculating the f--1:......r-+--I---+--+-'-l~-H. ~ angulardistance north or south from
effectsof solar rad1atlon on lroiIJlngs.
~brho~
Ahouse ~ned to morvand store
sobr hat III order to supplementor
replace conYC11tlonal heating methods.
~laHatl"i ,y,tern
A~ system u~ solar ener~.as
the prWrtal7i source of he3t.
~ ~br-he~ting 5y5tem
AsoIa/'"hQtJng system iJslng mechanical
tne2ns, as solarcollectors,t.1nS. or pumps.
to collect, store, anddlstrll7!1te solar
~!y.
~ or1ent.atlon
The pbcIng ofa building In relation to the
path of the sun, either to niaxlmlze the
amount of heat gained from Solar rad13tlon
cfur1~ the widest months. or to minimize
the alr()Unt of heat gained In the wannest
months.
226
,oL-ir collector
Adev1ce orsystem deslgned to use solar
radlatlon to heat an al1sorPer through
which atransportlns medium, as airor
water, Is circulated. Alsocalled ccI1ector.....
the tl<uator ofapoint on the e.rth's
surface. IMe.3syrea In degrees along the
rnerldI.an pa55l~ through the point.
meridian
Agre3t circle on the e;;rth's surface
passing through Doth ~hyslc.af poles.
.,,-_.-...._--..- Io~ltude
The angulardlstance e3st or weston ~
earth's surface, me4surea from the prime
",,",nabn at Gtunwlch. England. to the
meridian of aglvtn point arid expressed
either Indegrees or a correspondtng
difference In tlrr.e.
, I
I
~
l
l
1-
~~
~.
~
b
L
L
~ ----------_.. ---
A~nk of t<lrth placed against one or
~e:xterlorwal1sof abUIlding as
~n ~alnst extremes In
tem~ture.
drumwall --------- ----------
Ast.rl of blJck. wa~filled drurr.s
pl3ced on the Insldtof awindow wall to
a~ sol3rM3t and then release tt
slowly Into the Interior of auul1dI~.
~ccntrof ----------------.---. -',
A..~of~rIous~rdevk:esfor I '"
~utatt~ tM amount of solar ht3t ,.--- -,- -.,-
and su~ht tha-t ~rs 41 window. -:
coo5lstl~ of II1OV3U!e horlzontaIor
~.lc4l fins controfb:l manually or
~ OIutomatlc3lly wtth time or
~controIs.
~Itt.e1' ~Hnd -'-'--'" --.--------- --
A!f"3nually or electrlcaIly
controlled exterior Vet1et13npHnd
for protectln~ ab-ultdlnq Interior
from solar gain and ~lare.
SOLAR ENERGY
passive 5CL1r-heating.
Asolar-heating system using aInJlldlng's
design and construction and the M4ltunl
flow ofheat to collect. store. and
dlstrluute solar energy. with minimal use
of fans or pumps.
-----------.-.--..---------.---..~ Trompe wall
Aglass-fronted exterior masonry waif
that ausorUs solar heat for radiation Into
the InteriorofaInJlldlng. us~11y after a
tI~-lag ofseveraIhours.
5OIo3rlum
Aglass-enc~ porch. room. or gallery
used for sunuathlng or for therapeutic
exposure to sunlight. .~
,unroom
Agl3s5-enc~ porch or room oriented to
admtt large amounts of sunlight. Also called
sun parlor. sun parch_
i---"'--'~ ,un deck
1 Aroof. balcony, or terT;lce that I:s exposed
~~~~'U:'~----==----~._-41 to the sun and used for sunbathing.
--------.---------.:;---.-. ,un,~ae
.. Any ofvarious exteriordevices c~slstl"9
offixed horizontal or vertical fins angled to
shield awindow from direct sunllght_
W- ......---.---+--. 1ni~.5Clell
Ascreen. usually oflouvers, placed on th~
outside ofalnJlldlng to shield the windows
from direct sunlight.
-··--t·-·-···I···..-·--=:r:.,...."'·-t-·~ 5OIo3r ureen
Apanel of miniature external louvers for
shading awindow from dtreGt sunllght and
glare while allowing ahigh Mgru of
vlsltnllty. d3yllghtlng. ventilatIOn. visual
daytime privacy. and Insect protection.
227
SOUND
The senSAtion stimulated in the
organs of he3ri~ I7y mechanical
r3al3nt energy transmitUd as
longitudinal pressure waves through
the .airorother medium.
&0unawave
A IongltuJlnal pressure wave In air or an
elastic medium. esp. one producing an
audlUle senS3tion.
wave
Adlstumnce or oscllbtlon that transfers
energyprogressively from point to point In
2 medltim 01' space withoutadv3nce I7y the
p<?lnts thtmselves. as In the transmission
ofsourul or ~ht.
waveform
A graphic representation of the shape of a
wave, ol1talned by plotting deviation at a
fIxeJ point versus tllI18.
.'
w.1Velength -.-.........-.............,...
Thed1sbnce.lI18asu~ In the direction of
propagatlorl ofa wave, from arry one point
to the next pointofcorresponding phase.
pha~
A particularpoint or sta¥ In a periodic
~Ie or process.
.'
.'
.'
.'
amplitlJde
The maxlmum aevl3tlon of awave
or alt:enutlng current from Its
average value.
fffituency -.-....
The numbtrofcycles per unit tlll18 ofa
mve orosclllatlon.
hertz







I
I
I
I
I
I
I
I
/
/'
""-y/
/
/
wavefrorrt
I
/
;'
The 51 unit off~uency, eGualto one
cycle persecond. AVln-.: Hz
fundamenbl ~n. . _ . ' _ " _ ' " ' ' • • • • m . __ . . . . . , ~~ pitch
Thelowest~uencyat which avlln'atlng ! ',,----__________-------/ 1 The preaomlnantfre.quencyofa souna
~r¢ orsystem wlU freely oscUlate. 1 1-+:as percelved !1ythe human ear.
Asurface of apropagating YdVe
composed at arry Instant of an points
having klentlcal phase; usually
pt:rpenalcular to the dlrectlo" of
propagation.
Also called futkUmentaf I-"uency. : :
.. ~ : . : octave
harmonIc ....-.......-...................... ,.. ! _-----_ ; Thelnteml ~ween twofrequenctes
Avfmtlon h3vlng afrequency that ~ having aI"3tlo of 2:1.
Is an 1fTte4ra1 mu!tlpleofthat of the : '---------' i
fundall18ntal ~ :
l1ai1d
A1'2"¥of W3velengths orfrequencies
between two defined limits.
....../.r...._
....t::::j>
.p«<lohound i / ~-----~>
The velocityof sourul traveling / r ~
throU9h watapproxhnate!y 1087 ft. --.........! ..,/
(0.3 km) persecond at sealevel. /' a
throU9h WlIWat approximately 4500 ft. - - . - - j ' . / f------------
(1.~ km) persecond. ....,•..
Dopplereff~
An apparent shift In frtquency occ;u~
when an acousU: source an4 listenerare In
motion relative to e3ch other. the
frequencY Incre4slng'when the source aM
Iistene~ approach e3ch ather and
aecreaslng when they move apart.
--------.;
throU9h wooaatapproxlmate-/y 11.700 ft........-..-
~!~~~mate-ly~ooo~--.-...-.-.-..n~~~~~~~~~~~~~~~~~~~~~~~~~~~~~~
(5.5 km) per second. ~ V
228
.1
1
L~
: I
I
l.-
I
Itt-
I
lr
L
L
L
L
L
~
~
§
'e
~
~
~
"'-
t!
~
.s
~
VI
~
.s
""
§
~
10-2
10-4
10--0
1(J-6
10-10
10-12
10-14
10-16
157
loudness
AsU17jeCtNe response to souM
Indlcatlng the ~n~ of the
auditory 5efls3t1oo produced I7:i the
amp~ of asound wave.
phon
Aunit for measurln~ the apparent
loudness of.a sound. equal In number to
the deci17el5 of al000·Hz reference
soundjudgea 11y Oil group of listeners to
17eequal in Iouaness to the gIven 5OUnd.
501le •.".,.".,.,................- ..........._..,
Aunit for IMt.3surl~ the apparent .
loudness ofOil sounJ.~ 11y Oil group
of Ilste:ws to ~ equal to the loudness
ofal000-Hzreference 50lJnd having an
Intensityof40 deci~
deci!1el····.·-·.··.·····.··....····.·..····.·.······:
Aunit for expressing the rel3tlve I
pressure orIntensityof sounas on a i
uniform scale from 0 for the Ieoist :
perceptl171e 50UnatoabouH30 for the 1
avera~ threshold ofpain. Autn-.: d6 1
OecibelmasiJmntnt/s ~oo.a
logarithmicSC31eSInceInmments of
5O!JTIJ;ris5ll~ or/nt.mstty.a~perceived
.as ~I wilen ther.atJo Mween
suuesslYech3nges InIntensityrem3in
c0nst3nt. 1M~ImIs of~ sound
5OlJf'Ce5, therefore. C3f1notbe.aJdtd
~ny:
e.g.• eo18 +eodB =63dB. ntJt t20 dB.
I
!
V
--~--~r-~~I40
SOUND
hearing
The sense by which soundIs percelvM.
Involving the entire mechanism ofthe
Internal. mldale. aildexternal e3rand
Including the nervous and cerebral
operations that translate the physical
operations Into meaningful signals.
; ........• threshold of pain
equal loudness contour
Acurve representl~ the sound
pressure level at which sounds of +---+--+--I---!---+-='::::.-.-!-~-+--=­ 120 The level of sound Intensity high en0U9h
to produce the sensation of pain In the
human ear. usually around 00 d6.
different frequencies arejudged 11y a
group of Ust.eners to ~ equally foud.
31.3 62.5 125 250 5a) 1000 2000 4000 XOO
~ln cyclesp!T ~nJ(Hz)
audio frequency
A m.ge offrequencies from 15 Hz to 20,000 Hz
audiPl.e to the ~I human e3r.
16.0c0 32.000
I
auaitory btigue
Physical or mental weariness caused Py
prolonged exposureto loud noises.
hearing 1055
An Increase In the threshold of
audl!lllity. at speclflc frequencies.
caused by nannal agll19. dl5e3se. or
Injuryto the hearing org3n5.
threshold of hearing
The minimum sound pressu~ capa171e
of stimulating an audltory sensation.
usually 20 rnlcropascals orzero dB.
50una inU""rty .~'o----------- &cund p~5Urt ~(-------- &cuna powe1'
~ rate 1t which acoustc ~'!:i flows The dlfferenu ~n the actu31 The amount of4ICOUstIc energy
through aIM::Ilum. expressed In W3tts per pressure at arry poliTt In the fleId of a radiated Py aSOIJIU per unit time.
square ~. sound wave and the static pressure at eXpressedIn watts.
~_..........__ 50una inUn5rty level that polnt. expressed In pa$Ca!s. &cuna power level
Sound Intensity measured on the decll7el 50und p~5urt level The accustlc power-ofasource.
scale. eqll3l to 10 times the common Sound pressure me.asured on the de<;lbef measuredon tM decibel scale.equal to
Io~arlthm of the ratlo of the sound scale. eq1l31 to 10 times the common 10 tlrnes the common logarithm ofthe
Intensity to arefmra intensity. usually logarithm Gf the r:atlo of the sound ratio ofthe acoustic power to a
10-12 watts fl'!T' square I'I'teter (10""16 watts pressure to areference pressure, usually referenu power. usually 10-12 watts.
per sqll3re centl~:-.) 20 mlcropascals.
logarithm
The exponent lnd1caUn~ ~ power
to which at>356 numPer must 17e
raised to arrive at agtve:1 numl7er.
common lagamhm
Alogarithm h:wlng a7.156 of 10.
mlctopa5C3i
Ont-mlltlonth (10-6) part of apascal.
SymrocJ.iP.a
&cund level meter
An electrical Instrumentfor rne3SU ring
sound pressure levels.r0 compensate
for the way we percewethe relatlve
loudness ofdifferentfreque~s of
sound. there are three Mtwon:s: A. 6.
and C. These networi:s weight the
recordings for different frequenGles
and coml7lnc the results In asingle
reading. The A·netwon: scale. In dElA
units. Is most comrnonly used since It
discriminates 3g3lnst the lower
frequencies. 35 does the human ear at
moderate sound levels.
229
SOUND
JC.OusW
The mnclt ofphysics M ~Is ~,
~ ~W1trol tnnsmlssicn.
~.anddfern of sound.
room~5
The 'U2Wesorwracterlstlcs of <I
room. ~tn, orconcert haD *.4t
ktermlnetMaudlPiI1ty of speech C1"
fldeIlty of II'1l1slcal sounds In tt.
~undjr.g~ard
Astruct.u~ r:Ntr or behlnd ;and
aPove;a~or~to
reflect the sou"" ~rd the
audlenu. -" ...
~ng5urfau
AnonabsorptIYesurface,from which
Incident sourJ Is refIecW. uSea esp. to
red1rect sourJ In aspace. r0 I1e effective.
artfIectlng surface should have aleast
dimension equal to orgreater than the
wavelength of the lowestfrequency of the
soond being refkted.
acoustical c!cud
, One ofanum~ ofacoustlc panels
Installe.:J near~ celling of aconcert
hall to reflect 50Und for Improving the
acoustic ,uattty of music. --:
_.-....._-...-
acou~ticJi analysis
Aaetalle.:J study of the use ofabulldll1!3.
the Iocztlon and orientation of Its spaces,
posslUle sources of noise. anathe deslraL>le
acoustical environment In edch usable area,
acous~1 de~lgn
The planning. shaping. finishing. and
furnishing ofan encloseJ space to estaDllsh
the acoustical envlronlT'.ent neuss.ryfor
distinct hearing,
acoustic.11 treatment
The application ofabsorrent or refIect.lng
materials to the walls. celll~. and floor of
an enclosed space to aIter or Impro'ie Its
acoustlc properUes. '
---.~-.-
--._...-.- d~ sound
~rWrne~M
Soun.:f ~te4 directly ~ ana
'tr3n~ through tM;alr.
Iivs
H~hfy~ntorresanant.as
;an audit.orlum orccncert ~IL
dud
~ re:scaance. as aroomfret
from echoes aM n:v~t1on.
!OQndproof
Imperrb15 to ,udllk sound.
~runce
The In~tIon and prOO"93tlon of
sound produud Py sym~thetlc vim :ion.
'J'1!1P~ vfVrmon
A~ lnductJ In one body Py tl-~
~ ofe:octfy the same perW
In a n~h~ Pody.
direct ",una _...._..1
Alri?ornt scund traveling directlyfrom a
source to the listener. In aroom. the
hUlTI3n 63t' a~ hears direct sou/lJ
I1efore tt ~rs ~ sound. As direct
souna loses intensity. the Importance of
refecttd scunaIl1Greases.
reverl?eratian
The persistence ofasound wtthln
anenGIos&:I space.caused !1y
muttlple refIectlon ofthe sound
100 ~ Its source h<as stopped.
~
.s 60
........ decayrm
attenuzt.Wn
Adecrease In ener~ or pressure per
unitarea of;a sound W2ve. occurring as
the dls~1'IU from the source Increases
as aresultofal?sorptlon. SC3tterf~. or
spreading In three dimensions.
]
loa
~ 4(}
§
The rate ofdecrease of sound pressure
~ 20
, level after Its source has stappea. usually
expressed In decibels per second.
o ~----~-----+----4-----~---4-----+----~
230
r"eVerPtrn.wn time
The time In ~nds requlreJ for;a
sounaITI3k 1n an enclosed space to
diminish Py 60 decibels.
Airborne sound waves bent by
dtffr.Ictlon arouna an <*stxle
In their path.
..-.- rdIected sound
The retum of una~roe.d alrrome
sound after strl~lng 3surface. at an
angle equal to the angle of Incidence.
~
::~'.-'.'
~...
~':.~:.,,""
, ......:::..... 0·······
". '.......••..••:::. ......" ..
echo
The repetition of asound produced by
the reflection of sound waves from an
c»structlng surface. loud enough ana
received late enough to be perceived 45
dlstlnct from the source.
flutter
A rapid sucus$lon ofechoes C3u5e4:llly
thenrlIectlon ofsound waves Ir.Icl: arid
forth'Paween two paralld surf.aces.
wtth suff1clent tl~ between each
reflection to cause the ~er to j,e
awareofseparate. discrete signals.
focusing
The convergence of souna waves rtflected
from aconc3Ve surface.
L
L
t-
l.
L
~
~
.so
]
{
~
.so
~
;:,
~
90
MJ
10
60
50
40
30
2f)
10
j
/
/
i
1000. 2CXXJ
octavehnJcenterfr.-4'etlcies In fa
;-.............-.. noise crittria curve
. One of aseries of curves representing the
sound pressure level across the frequency
spectrum for 17ackgrouna noise that should
not ~ ~ In various e11vlronments.
Higher noise !eYels are permittedat ~
lowerfrequencies sincethe human e4lrIs
less 5alsltlve to sounds In this frequency
region. Also called He curves.
SOUND
nol~
Any sound that Is unwanted, annoying.
ord1scor&3nt, or that Interferes with
one's hearl"!! ofsornethlng.
:-- nol,,~ redllC'tWn
; The perceived difference In sound
: pressure levels Petween two enclosed
spaces. due to the sound-lsolatlni
qualttles of the separatlng barrieras well
as the al1sorptlon presentIn tM receIvIn~
room: expressed In kclbels. .
-_.'"' _ .._....----.. -~ ___ i __ ----..----- -----i~...:·
.moJtr7tdynolsy
background no~ ltiel -j
3fPr'OllJITI3te thres/loIJofh~rir~ for~ nol5e
The level ofamble.nt sound normally
presentIn a$~. aPave which speech,
music, orother sound5 must be
presented to be he3rd.
,tandil19W3Yt
Awave In which the amplitude of the
resultarrtof atnnsmttW and a reflected
wwe Is flxed In tlme and ranges from zero /.
at the nodes to 3 maximum at the
antlnoaes. ;
Interference _"'_'_._........_.._..........._............. j
The pMT1OIreI'Cn In which two or more Ilght
or souna W3'I'eS of the same frtqlJtncy
wmbine to re!m'orceor cancel each other.
the amp~ ofthe resultl"!! W3ve relng
equal to the algemlc or vectorsum of the
amplltudes of the combining waves.
..P5CrptioII ccef&lent
Ameasureof the effk:lencyof a
ma~NIIn aPsorVlng sound at a
speclfled~. equal to the
fractional partof ~ Incident sound
energyat Mfreq~cy a~ ~
the lTt3Wbl .....--..- ......................- .._..
nol~ reduction coefficient
Ameasureof the souna-al:1so"vlng
efficiencyofalI1~al. equal to the
average ofthe a~n coefficients
of the lTt3ter!4l comptl~ to the
nearest 0.05 Jt four frequencies: 
250. 5OO.lOOO. and 2000 Hz.
'.00
.90
M
.70
.60
.50
.40
.J()
.20
.10 /
125
/
/
/
./y
250
white I!Cj~ f- .....-...........--.---................. 17ackground no~
An Ur!V3')'i~. unoVtn.lslve sound havfng the The sound "9""311ypresent In an
same intensity for an freql.le1lCles of a~lven environment, usu311yacompostte of
Uand. ~ to rrt3s( oroVI1ter3te unwarrtea soundsfrom both exterlor and interior
sound. Also called wnru SOuM. sources. none ~ which are-distinctly
ldentffial7le ~ the hstener. Also C41led
~mJ:,fent sound.
".r--
~ -r-
1000 2000
---
4000
..~rption
The Interception and conversion ofsound
energy Into heat orotherform ofenergy
~ the struCtureof amaterl3l.lMIsurtd
In salrins oral1sorptlon units.
~l7tn
Aunitofsound al1sorptlon. equal to
~ sq.ft. (0.D9 54 m) ofaperiect!y
al1s:orPtIv" surface.
metric~17ln
Aunitofsound al1sorptlon. eqU21 to 1
square meterof ~rfectly al1scrptlve
surface. Also calleJ ,~rptlcn unit.
frt<j{jtr~y in C}cks r~r $(Cord (Hz)
231
SOUND
~und I:5cbtlon
The used Pu~ 1I3~1s and
c.on~~de~neato .
reJ.u~ ~ ofalrPoc-neana
structure-rome SCAlna from one room to
~ccfrotn ~~ to~ interior
of J ~1'dn4- Alsoc.IW SCUM ~~on.
fUn~i~p.th
Apath for the transmission of sound
other than through afloor, wall, orceiling
assemPly, as along such InterconneGtlng
~res as ductworl: or piping.
•irPol'M ~nd traI$mis,jon -.............-..-.- '" ...-f--}-f--+-"-+-+-i-t-+--t-"'-!-~F-1
SounatnnsmlUed wheft a surfoau 15 set
Into v~ bythe ittrn.:iItI"4 air
~ of~SCtJnJ waves.
~11orne~tr.I~i5slon ------...:-~.
SounJtransmittedthroogh the sana . .
~ ofJ ~'s stndurc as aresult
01dIreapf1ysIc3lcontact or Impact. as
~ ~ ~Ip~ or footsteps.
tr.Ift$m~ion loss
AJne3SGre ofthe perfom3nceof a ~Ildlng
~or~ assembfyln
~ thetransmls5lcn ofairborne
souM..'to the ~ In soona
~as" passes~h the Nterlal
ex' ~seri+j wfIeft tested1taRone-third
~e l:rand ~lesfrom 125 to
4OOOHz:~ln~AUPr.:n .
T7ww fM;t.ors enlunce tJJe 1l rJtIn§ of3
~ ~JItIS5, seprztton Intc
b)ers..,;~~.
~tra~m~~I0~
A~mber~oJth~
~eof aPulkIIng ~I ex
~ assembfyln prev~ the
tnn5ll'lls5bn ofa~ sound. eqU41 to
the~ ofIts11 V3~ at nine test
frequencies.
aceustlc; mass
ResJst.nce to the transmIssion of sound
C3usea by the Inertia and elasticity of the
transmlttln9 ~um.ln general. the
ram.namore densea 11ody, the greater
Its ~nce to sound transmission.
~50 r-;--+~~+-~-+--r-+-~-+~~~~~~
~
.s
~40 r-~-+~--+-~-+--~~4r-+~~+-~-+~
r~-"''''
,-lQ
: ~.;o r--t--+--rl--7-oC..f-~'-'rl~f--t---+---+--+--1--+--i
is
~ ~ 20 1---:;i-"7"-+-~+-",*=---+--+--~-+--+--;--+--+---+---I
: ::.
• 11'1
. "
~tn~I!I~,ioneta" •._..._ ........! ~ to jL--+--+---f--+--+--+--!---+--+--J.._I--+--+--+~
Asln~!e-flcmP,;, mll'lg ri the perform3nce
oJJ l7U~ ~teri31 ex ccn:structlon
~ In preventll'lg the transmission of
~ sauna.&erivea ~ rompa~ the
bbcraforyn ~ curvefex' the mzteTtIl or
~toastalWra~uerv::ycurve.
APW.:5TC
plenum barrier
An acoustic Darner erected In aplenum
(Net' a p3rtltlon to reduce sound
transmission I:>etween adjoining rooms.
vlbmion Isolator __.i
Aresilient I73se for mech3nlcal
equipment. Installed to reauce the
transmission ofvl!n-aton and noise
~the ~pport1~ strocture. Also
called Isolation mount.
inertL1l7locK
Ahe.l't')'concrete Ir.lse for vmtlng
mechanical equipment. used In conjunction
WIth vfl",rtlon Isolators to Increase the
mass ofthe equipment and decre4se the
potentiaIfor vfbratory IT1OVement.
di5<:Ontinuou5 c;onstructWn
Arryof several constructlon ~hoas,4Is
the use of s~ggered studs or reslllent
mountings. for breaKing the continuity ofa
path th~h which structure-~ sound
II't1y !Ietr3nsmitted from one space to
another.
Tbe IHfhertieSTC17tJr.I. ~ ,.ezt<rtile
5CUJJ-IscIztky• qffief'IUt:erUIcr
~ Mopetr JJxn4y~1I1 SfC
~ of1O; I'IOf'fTi3fconstructton bsSfC
I7tiIfSfl'CIIff YJ ~ 6O;!p«bI~ Is
~&STCr1tIng5~ 60.
- - - , - - - - -0 ~ered~tud p,rtitlon
~~
Stnscturt-borne scund ~ted by
~ ,,"~, as ~ footsteps orthe
~ offurniture.
Impact Jrt,ubtIon c;~
A~1c-tIu~ rnl~ oftJle performance
of• floor-ul~ constnlctlon In pre'fflTtlng
the transmlsslon of ltnp<Ict noise. Am-.: IIC
The "'4hertlleocrztJn§. the mex-e dftCtJy~ Is
tlIe~kI~i1lf'3ct~ The
ncrltinf repbas the~ IJ5dImfnct
~ ~ (HR) XIdIs WOXfm3td;·~
to the I«t7tJng +51J6 for; gMtr
const.roctJon.
232
" ",----,-"/~
' .... -..:.._--,.
75
~ 65
.s
l
~55
11'1
11'1
t 45
~
~
~ 35·
~.
25
It')
~
~ c--,
<::)
~
It)
·35
45
55~
..!!
)
t:
~
G5~
~
-S
75~
t
~5
~ <::) ~
~
<::) ~
~ ~
'" ~
one·t!-.irdoctJ'It EndurrUr frequency (H.zj
: A partition for reducing souna
transmIssion Pe'twetm rooms. frarneJ with
two separa~ rows of stllds arranged In
zigzag fa5h1on and supportl"9 opposite
Qces of the partItIon. sometlrnes with a
flPerglass bbnl::a ~.
~illent mounting
Asystem offlexlVle attachments or
supports th4t pennIts room surfaces to
vfmt.e nornully witholIttransmtttlng the
vfmtor)' motions and assocuted noIse to
the supportl"9 structure.
.---- -. ~lIlentc;h.1nnel
Ametal channel for the resilient mounting
of wallboard to studs orjoists, used In
sound-lsoIatlng construction to reauce
the transmission of vllmtlons and noise.
~lIIentcHp
A flexible met31 device for the reSilient
mounting of wallPo3rd or me~llath to
studs orJoists. used In sounc/·lsol3Ung
constructron to reduce the transmission
of vibrations and noise.
,.
r
l
handrail
A raIl providing ahandhold and
-----------------'L servlngasa support at the side
-.....!!!a stair or platform. -:
'. :
" 1
,,
" !
hi1droom --------------------- ------------.---- ---
The clear vertlcal space from the nosing
" ;
'i.,.
:,
: ,
of astair tre:aJ to any overhead
ol>struct1on. usually required by Utilldlng
codes to ~ at least 7810. (2 m).
st.Jirhead
The top or tap lanalog ofa stairway.
ri~ .-----...--.- ..------.-
The measured height of a stair
SUp oraft~ht of steps.
. ,
: ,,,,
" ,,
"
"'1
L ____
,------.----.-.- tr~ad
STAIR
One ofa fl~ht or series
of steps for gol~ from
one level to another, as
In a~ullding.
i The horizontal upper surface ofastep
In Ii stair. on whIch the foot 15 placed.
:---.- nosing
: The usually rou"jed edge ofa stair
tread that extends over the riser.
_.' riser
The vertlcal face of a stair step.
~
raking rl5er ~.-.-.---'>
Ariser that Is Inclined Inward to permit
mare footroom on the tread I1efow.
+---+----- stairway
A passageway from one level ofa
~JiLding to anather 7y aflight of staIrs.
~~+---------------------------F==========~I fI~ht
stairwell
A vertical shaft oropening
COfltalr.lng a stair1'f3Y.
I3dder
Astructure of wood. metal. or rope.
u~llyconslstlng of two sklepieces
Joinedat sutta~1e Intervals by t:rars or
rungs. forming Ii means ofc!1mbing up
ordown at an angle of pitch Wtween
7Soand 90". ----.-. "- .---- -- ... -- .-. -- -- ...-.
nJng -------.-.-..---.
One of the crosspieces,
usually round&!. forming the
steps of alaader.
ship'sladaer
Afixed stepl3Jder having an angle
of pitch Petwurl 55'and 70'. -
usually equipped with handrails.
run ~__._____..J
The horizontal distance ~tween
successive risers or l7etween the first
and last risers ofaflight of steps.
---
AconUnuous series of 5tepsl7etween one
f.oo1' or landlog of a Uulkllng and the next.
.-------- ..----.-.-------------.. crfticalangle
:" The angle of pitch abore which 3 5t3ir
is consldered to l7e uncomfortal7le or
unsafe. usually 50~
ri~r;tread ratio
The preferred ratio ~ween the riser and
tread ofa stalrstep. specified by either of
two formulas:
R+ZT =24 to 25;
RxT= 72 to 75.
·i----·--·· prrlerredangle
: For aft4Jht of stairs. any angle of pitch
; ~een 25°and 36~ Ot'. for aramp. an
. angle ofpitch less than 5~
;-' nmp
! Asloping floor, walk. or roadway
! coonectlng two levels.
!
'upped ramp
Aseries of ramps conne:cted by SUps.
.--"'--'-.. -_.- helicline
Acurved ramp.
233
STAIR
5traight-run ~~Ir _....-..---.--.
AstairexttMI"4 from one level to
,notherwtt:hout turns or winders.
fllet
~ ofthe steps In , straIght
flight cl5taIrs. •- ...-.---...- .....- ..--...--.-.....
,~rUr-Rm stair .----........--.-....-.,
AsblrM~ a ~ht-angled tum. !
ronslstln§ of~ straight flights ;
connected (,yan IntemnIng IandI~ or !
, ~ ofwInkrs. AlsocaRed Lstair. :
~~~~~~~~~,
pace
~tralght fl~ht
Aflight ofstairs having no
turns or winders.
I3nding
ApIa~orm Petween flights of
staIrs orthefloor at the foot
or head of, flight ofstairs.
.//,---+1--'-~';.;;;""'" ,uarterspace landing
! AsquartIandlngwnneGtlng
t two flIghts of.. staIr. Also,
/luarterpau landing.
--- ---
walking nne
Ahne 18 In. (457 mm) In from the
centerllneof"' handrall. along
which the run of awinder Is the
same as aflier. Also called Une
oftraveL
'::.-....- halfspau landing
.... Alanding ronnectlng two
i'''''' winder
'1 Amore or less we.dqe-shapeJ staIr
1 step for changIng dlrectlon.
i kitt winder
The central of three stair winders
1I13~lng :a 9O"turn. -I
--------
Ar.l1std step or platform. esp.one
5eIYlng as abinding or resting place at
the endofa~ flight of steps. Also
cal1ea foatpu. r------,-.,---"[1r--rr-l....--,rr-n-'-:n flights ofahalf-tum stair.
: Also, ~Ifpau landing.
~1f..tml5b1r ~-H--I+---H-+----#-~~: ...
AstW~tums l8O·ortnl"OlJgh two
ri9ht anglesatan Intervening bndlng.
dcf~~ir
Ahalf-return stalrconslstlr~ oftwo
stral§ht flights immediately s1de by
side and c:ormect-ed by an Intervening
bnJIng.
dcul7le-l5taIt
Ahalf-tum stair hMr-9 two
I~te landings, each offering
.. 90'"ch211¥ ofdirection. --...- ...........-.
three-,uarter-tvm 5~lr .-.---..--.---..---..-.--.--.....-...........-.........-
Ast.aJr Mulring a three-qtl3rter tum
for contlnuedascentor ~
winding mlr
My stairccnstructed chld1y with
~ as ageometrical or spiral stair.
circubr5blr ...........,.•
AwfndIn~ stair having acircular plan.
fptr"'Sbir ______._..._.___.._..t..:.........__...._
Adrcubrstair having ~-s-haped
~ wincing around and su~
po,. auntral post.
newel .._......................................c:::
..;;;;.::=.==:;;3
Acentralpost from which the winders
of, spiral staIr radbte.
234
I
I
dou17e-retum 5~ir ---
Astair havlnf one wfde flight
from ~ mainfloor to an
ntel'1T1ed1ate landing. and two
s4k flights from that lanalng
to the floor a~ove.
~---~
// . /7f~---W
// /.:
/ I I
I ,~+-_____
~
I" .
I ,------'.__.,._....-------
l~===rrt....~
"-...
17al3ncea step ~...i
Arry of aseries ofwlrJers so
amngeJ that th~ 2"e nearly.s
wIde at the Inside of the stair as ~
adjacent fliers. Also C3f1ea dancing
sUp. d.1nclng winder.
elliptlwll &tair
AwIndingstair h3ving an eWptIC3l1y
shapeJwel.
geometrl~1 stall'
Awlnalng stafrccnstructed aroun4 a
Circular orelliptical well without the
use of newels ana often no landings
~etwun floors.
. ... , ......... r .. -·· .. ~ wre.1the
 ....."..... ACUlVed section of handraIl.
, "
l ..-.-...~.--- wrt.1the piece
: I AcUlVea section of astaircase strirl4
I
I
l
STAIR
landing tread .......................- ....- .............".
Al10ard dlrectly over the uppermost riser In ...
string 5talrc25e
One ofthe sloping roards running
alongside astalrc:.1se to support or
COlt< ~ ends of~e treads and risers.
Also oiled 5~Poard. stringer.
.3 flight of stairs. having an ~ II13tchlng
that ofthe noslngs 011 the stair treads.
w.1l 'tring -.-.--.--..- ...-.-...-......-.-.............,.
Astair string setagainst awall. ",
usually notched or housed.
c.arrilge ~'-'---" .-.....---.................-.--.-
An InchneJ PeaIn for supporting
the ~ of ;J stJlr. Also called
hors.!. rough ~er.
~x5tair
Astair having ahoused string on
both stdes SO tbt It may vemore or
less completelyfklJshed Vefore velng
set In Itsfln.lloc3tlon.
hcu~'tring
II staIr string reaMng the enas of
risers ana treads In aseries of
housings. Also ~ ct05e4 .."'''~.'---l'_tt-_Hl~::__--7<;:__~~~~_+_""''I.
;apron ~ ..--..·.--.-....-..- ..-.I-.N&<.:.::.>!.r.o..,~-·"":::I..J~~
Ahe3der receM~ the ends of stair
ca~. strings. and thejoists of
bn.dlngs. Also calb:l pitching pl~e.
kickpl~ -r---··..·····..·....···-..·
A plate for anchoring and
aDsorVing the thrust of an Inclined
~Der. as a stalrcarri.lge.
niling
A ~rrlercompoc...eJ ofone or more
horlzontal ralls ~pport.ed by spaced
Uprightsor !:>alusters.
,
,t..1nchion ~......- ..--......-......- .....
An upright postor support. as In a
wiMow or raflln~
p.lltStl'3de
Araill~~ with
balu5ter ~-.-..- ..-.-..-.-....--..........
Arry of anumrer ofclosely spaced
SJpports for;l rJ~. Also called
~Jnlsw.
newel drop •.._._...._..._..._ ......._ ...,i
An ~mental. doI'fnward projection of
;I r!eWel post. oft.e:rt through asoffit..
S-rletynoerng - ...-...........................--.•...-
Anaslng havIng an alms1ve. nonslip
Atread h3vlng a roughened surface to
prevent slippIng.
wai5t
The least thickness of areinforced·
COI1crete stair slap,
r;amp
Ashort concave slopeor bend. as
OM cannectlng the higherand lower
parts of a stair railing ata landlng:--
AfI~htorserle$of~htsofstalrs.
Includl~ Its supporting mmework,
casIng. and h3ndralls.
open-string st3lr
Astair it3vlng an open string on oneor
roth sides.
.......~ open string
Astal~ string having Its upper
t:dge cut to the profile of the treads
and risers. Alsocalled cutstring.
:ltalrro" face string
Ametal rod for holding astair
carpetIn place against the .
.Iwttom ofariser. ---1
Theouttr string ofastaircase. usually
of better materl31 orfinish than the
carrl3ge which Itcovers. Also called
finIsh string.
bracket .-..
retum
Acontinuation of the rounded nosing
ofatre;ad I1eyonJ the face ofan open
string.
..-.-- cut-;and~miUred 5tring
An ornamental plea: filling the angle
Petween ariser and the overhanging
edge ofIts tread.
An open strI"9 having the vert:cal
edges of the notches mitered with the
ends of the stair risers.
.-.......- ....... curt.iJ
Ahoriz.ontal spIral tennllt3tlon to the
lower end ofastafr rail. Also calbf
volilU.
.--.---.-...-. curbit step
Astarting step having ascroll
termlnatlon to one or Path enas of the
tread.
...~- MWet~p
Theterm11131 fe;ature ofa newel post.
often moldeJ or turned In 2 decoratlve
runner.
..-...-.--.....-.- newet
Apostsupporting one end ofa hanaraU
at the top orbottom ofa flight of
stairs. Alsocalled newd post.
open-rtur~Ir
Astair havl"9 open spaus Pet~n
sucuss1ve treads. alloWing lightto
pass from a!xlve.
............. ...................... open ~
.,/ An o~n space I1etween two
successive treads.
.. pan tread
Asteel pan rw:Mng aconcrete fill and
s.t:rvlng as atrt:3d or as acomDlne.:J
tread and riser.
235
STONE
Rock or2 pieu of rock ,U3rrled 3nd
woried into aspulfic size and slupe
for aparticularpurpose.
rock
5otkI1I'1Ine:ra11N~. naturallyformeci
by the aalon of bQt orW3terant.!
occ~ In fragments orlar¥ II13sses.
&ed~ry rock ------------...-..;
Aclassof n::d fonned by the
~ ofstDlrnent.as bmestone.
s.ndstone or shale.
Ii~
AsedIt1e:ntalj' roct funned chiefly by the
accumubt10n oforpnlc renulns. as shells
N caaI.conslsUng It13lnlyofcalcium
~. ana used as abul~ stone and
ill the IIGfImcture of lbne.
tnvertine
Ara~ of bmestcne deposited Py sprin~
W4ters. esp. hot springs. soIJ as nurtie In
tM~~
dolomite
AIItnesfone rich In m~neslum carPoMate.
ooliU
. ADmestone comp0se4 ofsmal round.
~Icerous grains rcsemPling fIs& roe. Alsa
c.Iec:I11M stone.
UndstoM
A~I)' roc;l: cooslsttn§ of sand.
usuallyCuartz. cemented ~r by
various suPsf.anctS. assilica. clay. or
~lcfumc.arWnm
bfues1:oM
Aden~ flne-gramea. argillaceous
sandstoRe thatsplitseasilyabng bedd1~
planes tofonn thin slaPs.
mWMtcM
Aredd:sII-Prown s.ndstone quarried and
used extensively as aI7ultdlng II13terlaL
~ap~ne
A~ssNe. soft rock contJlnlf14 ahigh
proportlon of tJlc. used as dimension stOM
for hea1hs. tJPIc tops. anJcarvea
ornaments. Also called stutlU.
236
metamorphic rock ----
Aclass of rock that has uMergone a
change In structure. texture. or
compostUon due to natural OIge:1cles. as
~ and pressure. esp. when the rock
becomes harderand Il1Ol'8 crystamne.
ItUrble
Ametamorphic rock ofcl)'stJllIud
hmestone.ccnsl5tlng 1I'.alnlyofc.alclte or
dolomite. capal7le oftal:lng ahigh pohsh.
and usedesp.ln architec1;ure and sculp?J~ ,
The presenceand dlstrlWtlon ofnumerous
minerals account for the d1stlnctwe
varleg3ted appearance that many marl1les
have. Thecommercial tenn Includes many
dense hmestones and SOI!lC: coarse-grained
dolomites.
verda~ue
Adari:-grten. mottled serpentIne that
takes ahigh polish and Is sold 3S amarple.
Also. verdeantktue.
,bU
Aknse. fll1(7-gralned metamorphic rock
fortned l>y the compression ofvarious
sediments.3S clayorshale. having good
cleavagealon9 parallel planes.
,uartziU
Acompact.granular metamorphic rod:
consisting essentially ofttuartz, krived
from sandstone.
gne~
A~nded orfohated·metamprphlc rock
comsponaing in composition to granite. In
which the minerats are arranged In layers.
IgMOUS rock ~-..!
Acbss of rod: formed by the
clj'St4IrlZ3tlon of molten ma~ma.
as ~ranrte.
g,..n~
Avery hJrd. ccarse-gr3Jr.ecJ lqneolls roct
com~ maJ:11y of quartz.. feldspar. and
mlcJ I)( other colored mlnen!.s.
o~ldr.n
AvoIc.anlc 9~S siml~r in composltion W
gra~. USU3ty H3ci: with a bright luster.
and tr.iInsparent In thin p1eces.
nu~ite
A~ to ne4r+j bbci: mlner3l wpper
c.a~.U5ed ~ ahighly poIIshetI veneer
ana for Nk!~ om3 mental artlc!es.
~rrtJne
AII'IIr«.11 or rod: COIlslstlng of hydrous
nug~um s!lIc4te. usually green In color
and ~" ~ appe;annce.
l
l-
l-
L-
L
L
L
grain
The granu13r ~ure or appearance of a
stone.
,
vedding pllne .-.-........-..........-.....:i;;.-~~~~~
The surfau that sep"rates one
str.ltum or bye-of strat1f1ed rock
from ;lOOtMr-.
cle.w3¥ plane _ ....---....._...-.....-
A~ smooth surface along whleh
~In rocks l'rII tend to sp!lt.
e;plit-hua
Nott~ a~h stone finish produced
by splitting to ~ the Peddlng
planes..
m~tcne
Arry f'tne-~ralr.ed stone, as hmestone or
S3~, ~C3n ~ ,uarr!eJ or
wortt.d~. esp. one thatcuts well In
all directlons.
carved werk .- ..... _. -....-....-..-.....
Han.d-cut oma~t31 features In bid
or st.one masonry.
ca5tstoM
Ah4r~ mix rI concrete wtth a
fine storie ~~te. havlng a
surfx.e ~una. ponshed. or molded
to slmulate rut.lral stone.
Iwnedfinish •... - ......_........
Asrnocth stor.e finish having little
or no gloss. obtak1ed by ru bblng with
an abraslYe.
poljs~ work ~ ..
A stone fx.e of Cf)'StJ1line texture. as
of m3r.k or grJnlte. grourtJ and buffed
to form J g!4/ssl1ke surf3Ce. Also caned
glassed surface.
~~~.{~"~x,'·"' '1
,~tl~0~~,')~~~~
STONE
building ston~
Any stone suItable for use In
Pulldlng construction, as limestone,
IT13rMe, orgranite.
.....' fieldstone
Loose, unflnlshed.stone found 0f1 the
surface or In the soli, esp. when used for
building. as In ell)' masonry.
...-. dimension stone
Quarrtea anasquared stone 2ft. (€itO mm)
or mare In le"9th anawidth and of ~
speclfled thickness.
dressed stone
Stone worked to desired shape and
smoothed on theface.
:......._.. _.-... pitch-faced
~ Noting astone having all arrlses cut In the
...------------t---, same plane and thefaces roughly dressed
wtthaplek.
draft
Aline or borderchlseleJ at the edge ofa
~tone to guide the stonecutter In leveling
the surfaces.
L._ drafted margin
Asmooth, uniform IT13rgln i'!on:ea around a
:..:.~.:.""'} !7'."!~"'??T') stone face.
L._ sunk draft
Amargin of astone set below the rest of
the face.
... - boasted &umau
Astone flnlsh obtained bychiseling
roughly parallel grooves across the face.
--. batted ,urface
Ascored stone surface made with a
mason's chisel after the surface has
been rub17ea smooth. Also called
tooled surface.
237
STRUCTURE
Ast.Ple ~s5e/'i1bly ofstnJctural
elements destgntd ana canstructed
to function as awhole in supporting
and transmitting appntd loads
SJfeIy to the grouna without
exueding the allowable stresses
in the members.
linear ~tructur., ,
Astructural member ~vln9 alength that ~
domll13t.es Its othertwo dimensions.
~id
Ofor pert3lnl~ to astructure or . ~m
stroctur.al memDeI' h~ ashape t~t
~ notc~r~eapprcc!aDlyunkrt~ /
::.:;:=or~~~~~~.~~//
AS'tnlCture or 5tructlIr.almtmber that
~ external focus prIm3lily
~l'OU!1h the ~II:: and ~ulty of Its
material as aDe:im or column. frame
'eCt<)r-actNe structure ----------------------------.
Astructu~ th3t red1rect5~mal
forces prinurlly through the composition
of tension and compression memDer'S. as
.a truss.
~KtNe rtructu""
AS'tnJGt.u~ that realrectsexternal
forces prilT'4rily abrlg the contlnulty of
41 surface. as ap!.ateor shell _._.__,-_.......__.._________:-____ ---__.__ .-.....-.-....,-.•.- ...---. -.--.---- "-
~r1I~mDer
One oftntconst:ltue:1t parts Into which a
~re m:zy ~ rtSOlved I1yanalysis.
hH.ng .a unlt4ry c~mter and exhlDltl~
J unique loeh3vlor unk!- an appl1ed load.
.238
,
compre~lon memller
Astructural memberSUDJect prfmartly
to compressiveforces. --tt-=·CI:::r:::I::CI::r:::r::~~_
~tnrt
Astructur.al memDerdes~ned prtmarfly
to resist IongltuJlnalcompression.
uMlon meml1er
Astructural membersubject primarily
to tensile forces. J.~____-.--.--r--'--.--r-"'--'---A~'
tie
,umce~tructure
Astructural member having alength ana
width that dominates Its thlcl:ntss.
f
i
_._J
OM-way
Of orpert.lnlng to a structure or
struaural member havl~ aIoaa·cjrrylng
mechanIsm thatacts In one direction only.
twO-way
Of orpertaining to astructure or
structural memrer havIng a Ioaa·carrylng
mechanIsm that acts I" two or more
dll'e(;tlons.
~
rJ
rJ
I
.J
I
,..I
I
1...1
l."
V
I
lr
I
!
l,
J
I
M
,tl'""
,/ i .""-.
/ .
.  .
/  "'-. .
" . :
,tructural unit
Ad1scrett struG"Wre oras~mbly of
structur.il members formlng;1 spatial
volume.
......~..~.~ .'1//
'. j: ./ ~ay
: . ! Amajor spatial division. usually one of;1
: sues, marltd or part!tloned off by ~
principal vertlcal supports of astructure.
t.-ansition structure
II s~ture meJi3Ung Detfleen two cr
r.-.c~ drffererrt stnJCtural patterns
!Structural grid
Agrid defining the princIpal points or niles
of supportfor a structural system.
regubrgrid
Astructur.il grid havlng regularly
rtpenlng Pays In two dlrectlon.s.
cfou~legrid
A5truCtural pattern consisting of t....o
gridsoffset from each otheranacreatlng
Interstltl3l spaus ~en tM bays.
inU~1
Irregubr grid
Astructural grid havl~ Irregularly
Sh3~ !lays In one or more directions.
!Slipped grid
Astructural grid h'-lYing points or lines
of supports spaced uniformly In one
dlrtctlon Put val)ing In the other.
STRUCTURE
~
J _I ,
: :1 :
1 i
I
&tructuralpattern
The arrangement ofprinCIpal vertlcal
supports for astructure, whlGh
Influences the see:ctlon ofan approprtrte
sp;annJn~ sys~ a"" esbPllshes the
possllnhtles for the ordering ofspaces
ana functions.
STRUCTURE
structural des~n
T'he preuss ofali3ngl~ InterconntC~ng.
slzln4. and proporUonlrl4 the members of a
~I system In ordertc safely C3rT'j
agiven set ofIoac.ls without exceed1rl4 the
a~ stresses of the materbIs
emp~. DDDDDDO
.a1Icw..I7~ stress k~~n
AmOOd fi:lr sizing arJ proportJonlng a
structllral r<:mper ~ on the
2SSUmpU::Ja that the savice load will not
skts5 *.e I'I3teriaI ~ Its allowable
st.resse:s. AI:sc ailed ~t«; dtslgn.
~ design. woroni 5~S de~lgn.
~nkW
Aklad used In structural
kslgn computations.
i .'
DL=P;L=@
----=~-  ..
atlowa17Ie Ioaa
Aklad Ind~ the alloW3!?le
st.~ at acrltlc3l StCtlon
of astructu~1 metT1Per.
uftJ.mm rtrength ~lgn
Arna/IodftJr sizing arJ proportioning a
s~rat nanpt:(' D.~ on the
~;.I.~ta~wdwillnot
~ the natt:ial ~ Its ufUlT13te
~. A'6o ~tIed fxtored load
~ Iaad-bctcr kslgn.
Iimit~ig1l
Struct..lral does!;n ~ on arry
chose-n nm!;of 1..'Sefu1r.ess. as el3stlc
ftmlt, pl3st(; nmit. or ~ue limit.
DL =FL =®.:X FS

,.
,.
r'
strvfu load
The IT13Xlmum load a~..ructure may!:>e
~son3!1ly r~ulred to support during Its
usefuillfe.. BuIlding codes specify minimum
service loads forvaric1JS uses. occupancles.
types ofconstructlon. and environmental
conditions. Also C31~ wari:lng load.
~ ~.
bctoredlo~ ..........., ......, hcto'D".rety
A~ load ~ual to the sel"YU T'I1e ratio ofthe maxlrnum stress t~ta
load ~ by.. f3ctcr of S4fety. structural memberC3l1l'1'1thstandUl the
!.JsoC2IIec:f uft.Imat.e load. maximum stress ts~ for ItIn the
usefor which itIs kslgned. Alsoc.ol!ea
5.1fetybctor.
,tructunlf;anure
Any cond!tb1. AS fnctwing.11ucI:nng. or
pl3stlc ddormatlon. ~ renders a
struct.Jral a.s~PIy. ~ orplnt
lnca~ofSIJstJinIn~ ~ 1oad-C2rry1ng
functloo forll'f1lch it W15 ~ned..
240
structural analy5~
The process ofdeterminIng the 3blllty of a
structure oranyof its constltuent
memrers to safely carrya given set of
loads wtthout material distress or
exceSSivedeformatlon. given the
arrangement. shape, and dimensions of
the members. the tyPeS ofconne:ctlons
and supports utilized. and the allow3l7!e
stresses of the materials employeJ. For
an exIstIng structure, thIs ~ure Is
also known as str-Jctul'al ratl~.
'j
. J
~ I
J

Il1
I.
L,
I~J
I~
r
t
f
I.
load trace -------
The process of modeling how astructure
collects. channels. and redirects the loads
resulting from exterrtill forces through the
hierarchyofIts memrersto the foundation
and underlying solt Tnt ar13~ USU311y
starts at the roof level wtth the smallest
metnPers actually picking up the loading ana
proceeds bytracing the loads through each
collecting memPer. Tnt re3CtIons of each
memrerto Its loading Pecomes forces 011
the metnPer$ supportl~ It. Also called
load flow.
trivut.1ry are3 ------'------~~~___::;~'
The portion of~ structure contriputlng to
the lou! 011 astructural t!ement or
memPer. Also called ccntrWutcryarea.
ttibut.1ry
Channeling Into somtthlng mare Inclusive.
STRUCTURE
~
. .
!.'~~~!
. . .
i .
. .
. : : .
tril7lrtaIj' lead
The load on astructural element o~
memDer coUe<;teJ from Its tripubry area.
r--- load strip -----------+l+-~::__~~ff!__'
The triPl1t3ry area ~r unit Itngth ofa
supportlng structural memrer.
~..- ...-.......~ primary mem17e1"
• Astructural mem~ ~serTtlal to the
staplllty of astructural whole. Also
called rn.1ln mempeT.
/'._........ ve3ring
- Apoint. surface. or mass th3t supports
weight. ~p. the area of C011tJct t>etween a
Dearing memt>er. as:l t>eam or truss. and a
column. wall. or other uMe~ing support.
ve3r1ng 'tr~'
The stress deveJopea t>etween a~earlng
memPer and an underlying support. equal to
the quotleT1tof the magnttuk of the forces
transmitted and the area ofcontact
~etween the two eI.ements.
I
I I
241
STRUCTURE
'upportcoMition
The Nnner In which as~14I1
rne:mber Is ~pportea and connected to
other mem~. affecting the nature of
the rtactIYe forces devebped on the
Io.dtJm~.
pointohttpport
Apoint Oft astructur.11 memberat which
Its reactIoft to aload Is tr2l1$111ltted as a
forutoa supporting rnetn!1er. ~--''''''-''''''
~-..--..- ...-....-.. unre5trafned ~mber
fixed-end connection -.-.......
Arigldjoint connectln~ the endof a
stnJctur.11 memw to a support.
242
Astructul'3l meml1er permitted to rot3te
freely aroutapolntolsupport.
plnjoint
Astructural connection that allows
. rotation but resists translation In arry
direction. Also called hlngtjoint.
pinned ccnnectlpn.
pin
Aslender rod driven th~h holes In
adjacent parts to !upthe parts
together or topermit them to mcve In
one plane relative to each other.
rtgtajoint
Astructural connection that Nln'talns
theangular relationship ~ tM
joined elements. restrains rotation and
tr2nslatlon In any direction. and pr'OVk:Ies
both force and moment reststance. Also
calteafixed connectlon.fixedjoint.
rigid connection.
roller 5UppOrt
AstructlJl'3I support th"t allows rot.;tIon
rot resists translatlon In adlrectlon
ptrpendlcul3rInto or iW4Y from Its bee.
Also canea rollerjoint.
C<1ble ~upport
AcalXeanchorage tit<lt allows rotat1on
rotreststs tr3n$latlon only In the
dlrectlon ofthe cable.
anchorage
Ame3ns for Pndlng a st.roctur.11 rretrJ,.er
to another or to Its founaztlon. often to
resist upllfU,~ and hori.w1t31 folUS.
~-.
I
l
! I
I .
U
u
L
L
L
L
L
L
STRUCTURE
,t3bility
Th~ abilityof astructure. when dlstUm:a
from acondition ofequili~riu mby an appfled
load. to develop Internal fcrces or moments
••~~~~~~~~~~~~~~~~~~~~~~~~~~~~~~~~~~~~~) ~grestore~eor~~I~~~.
lrteralst3pmty
The ability of astructure to resist
I3teral forces without sliding.
o.'ertumlng.l1uckllng. or collapSing.
In-aced frame ",
Astructural frame of linear"
lIot:mbers maJe rigid Py ;1 system
of dlagor13Imembers.
diaphragm
Arel3t1vely thin. rigl.d structural
member capal1le of withstanding
shear when loaded In adlrectlon
para!let to Its pl3ne.
~=~:~~~:~'=::-----~i: ~.I ] -- ~=~£::.~,~~:"
111 fJ down underanapplied k:l3d without a
......~~~~~~~..... ch3"ge In length ofarty lna.vidu31 member.
".
IaUral17raclng
l ~
St3!nllzlng astructural ~...em ag31nst
~1--------_____=~IO""'SI>y"""of~"'I""""S
_~_ Astructural element for posltlonlnq,
supporting, stre~thenlr~. or restraIning
I
I-
the members ofa struct1.:nl frame..
al3gOnall7racing
Asystem of Inclined memWs for mclng
the angles between the rrenbers ofa
structural frame and ensuring the ~I
stabilltyofthe whole.
5W3y17race
Adlagonal memberfor mc:r.g ;1 st.rtJcture
~alnst I3teral forces.
. -_._- cro'517rulng
Apalroftransvcrse bra~ for st.ob;:tzlng a
structural frame ag.olnst ~...eral~,
When using cables. two are ~lj'to
St3!7i1tze the structure a~Ir!5t 1a~1
forces from eitherdlrectiorL For ~h
c:flrectk:m. one cal1le wUl opmteeffectlvely
In tension while the other w01.:ld simply
tnJclde. Ifrigid braces are u~ acertain
degree of reaund3ncy Is lrT'y'oIYed situ a
slng~ meml1er Is capal1le of ~bH1zj~ the
stn.Jcture. Also. X-l7radrtg.
~.- ...__ ....... horizontal diaphragm
. ArigId floor or roof plane act:!~ as a
~In. deep beam In transferring lateral
forces to vertical shear .,....rtS.11raud
frames. or rigid frames.
....._......- ... 5he.1rwall
Avertical diaphragm acUr14 35 athin.
~p cantilever Deam In tra:'lSferri~
i3uralloads to the ground f"'Jnd3~n.
243
STRUCTURE
regul.u 5tructure
Astructuralsystem c~ract:ertze.d Dy the
symmttrIcaIconflguratlon ofmass ana
later.Iforce·reslstl~ ~nts and
having no significant d1scontlnuttfts of
stiffness or st.rength. The effects of
1ater.1 forces on regular structures may
!?Cdetmnlned Dy static Inethods.
~ring wall ~y5um
Astructural system ~tlng of
vertlcal planare!ements for supporting
grnity loadsana shear wans or lmleed
frames for r:eslstlng lateralforces.
~ul2r Wucture
Astructural system charac;t.crizeJ Dy arry
of ~rIous plan Of' ve~ Irreguiaritles, 35
asoftOf' d story. adscontlnuous
shearwattordlaphragm, or the "
asymrnetrIc:allayout ofInaSS Of' lateral·
force reslstlng elements. Irregular
structures ¥ner.l11y rettulre dynamic
al14l~ In orderto determine the
torsional effects oflattnIforces.
tor~lon..3llrregu~rity -----------....-.-..
The a~1 by<Mof m3SS Of' lateral
f01U-reslstlng elements. resultlng In
noncolncldent centers of mass ana
rests'bnu and C3uslng ~e story drift at
one end of the structure to ~ more th4n
the a~ ofthe story drifts at roth
ends.
frame 5ysum
Astructural system ccnslstlng ofa
tnree-d1melJ?lonaI array of
Interconnected linearmembers that
functions as acomplete. s.eIf-
contained u·nttln supporting gravity
loads ana she.ar walls or meed frames
for resisting lateral forces.
centerofresi5tance
moment'1'e5~tjng frame
Aframe system designed to resist
lateral fOfUS primarily by flexure In
the mem~ andJOints.
Thecentroid of thevertlcaIelements of a
lateral force-resisting system, through
which the she3r reaction to lateral forus
acts. Also called centerofrigidity.
reentr.lrrtcorner ----..-.....- .................-.._-...
DOD
DOD
DOD
ODD
DOD
DOD
DOD
The plan com'Iguratlor. ofastructure and
Its latml force-~ ~mb.avlng
p~ beyondacomer slgnlftc3nt1y
!rcaterthan the plan c2bnensIon In the
SiYen OIrectlon. Areentn/1t comer tends
to produce &Ifl'erentlal h.7tIons ~tween
differentportions of the structure, "
rcsuftlng In beal stress concentrations at
tM COt'TIeI'. Solutlons IncIuGie provldlng a
seismicjointto separa~ the Irolld1ng !nto
simpler wpes, tying the Irolidlng together
II"oOre s~1y at the comer, or splaying
the corner.
~{5mic joint •.._..-....- ........_- .............-...
Ajoint th4t physically separates two
adjacent 1ro1ld1t1g masses so that fru
vlln-atory movement In each can occur
Independentfy of the other.
244
r-dUJI system
Astructural syst.e~ fer reslsUng lateral
forces, combining t-I.,e ducUllty of 3
moment'res!stJrtg mrr.e wtth the" rigidity
of ashear wan.
"......• ecurrtric ~raci~
Astructural ~ for reslsU~
~ter.ll forces. COO'~,1l'.3 the ducUlity
ofa moment·rtSlst:.~ frarre wtth the
~Idtty of a brn.ea fr3 :ne.
y
I
. j
F
I
I
I
'"
I
&'''
l-
I
l~'
I
t
It
~.
I
I
t!
I
G
ptrionted s~1I WPe ~----"'-----'-'--'--"--­
Atu~ structure h3ving perimeter shear
JIr.i ils lrith less thAn301 of the surface
:om ~orateJ by openings.
h:o~tuPe------------------~~~~--~~
AtJJbe structure having clo$ely 5paced '""'-' l~rt.i">1
~~ ccWlnn5 ~ld1y conn~ted by
~ ~reI reams.
~tuPe ---------------.----------.-.-
Aframed tu~ structure tled together by
• 5)'$ta1 of dbgonal mus.
tr~s.ed tuPe c.--------b*;::~t:t:'r_-__t:~nH3
A~ tu~ structure h3ving trussea
wag fnres of widely 5p3ced columns tied
t.,~ by dbgon3/ or cross /mlcl"4
~~5~be------------~~~~--~~~~~--~~~
A~ tu~ structure having perl~r
frarr.esof closely spaced c/1agonals with no
....
~column5.
P-unaled~ ---.------------------------------.-.---.----,_
An ~~ of narrow tuDes tied d1rect1y .•••
to exl! atI'er to fonn 3 lnOdular stniCtUre
that bd13ves lie a mu/"tlcellular roxgirder
C4~ngoutofthegrounJ. Mort
tu~ are som.etlrnes prorlded In the lower
~ of :0 t;lR structure wh~re greater
~~Ifo.-u resistance Is needeJ.
t.u~ilt-tube struct1.lre •. ----------.-- ....
Atu~ w-JCUJre hAvu19 an inner praced
t.u ~ a4.:W to th~ ~r tuo~ to
l!r.pror'e Its she3r5tlffness In resisting
~.er31 foru:s..
b-ract4ccre ~-------- --.--------- --,.'
1-.:1 :n~ sm-ice core br.3ced to prcvlde
~rtbl4l stiffness In reststlng latenl
f~.
ilrt.erM damping
T.".e ~~ th3t II41tur.li1y occurs 65:0
p...~ ~ ~stlc or plastlc
~n. ~ from the InternJl fr1ctlan
cf:O~m3terbl~s
~~). from the friction l1aw~n two
~ parts (frictlonal ~mpln~), ~-- - --- -- -.
or from the ~ resistance ofafluid
5-'xn 3s:olr (mcou5 dampln~).
~ro~mic dampi~
TI-.e shApInq of. tall ~ulki1ng to create
t-:rt-Jk:nc.e which g~nerates cross-wind 11ft
tc oppose cross-wind dd1ectlons during
"'~ wlnJs.
ttl,b1Jknee
1;-~Jl3r Il1ct.icn of che 3crn05phere
CCj,'""Jctat:::J by ur'-and·c!own current5
.
,-,.--It""""
,..---- ~
~~
r--:-~
H Ir-
~~
r--+-"~
STRUCTURE
tupe~cture
A high-rise structure having perimeter.
I3teraI foru-reslstln!! systems Inter11311y
braced fly rlgldfloor diaphragms. Atube
structure acts as acantilevered ~ Peam
In resIstIng lateral forces.
,bmp
To cause adecrease In amphtuk of
successive oscillations or W3V~s.
d~mping mech3nism
Any of various viS<:Oelastlc aevices
typically Installed at structuralJolnts to
3bsorU the etlerrJ generated by wind or
earthquak~ forces, pt'O!Jre5Slvely dlmlnlsh
, or ~lJmlll3te vl17mory oroscllbtory
rnotIons, ana prevent destructl'r'e
resonances from occurring,
L_______________ --..--.-.....• tuned ma~~ damper
A heavy mass moonte4 on rollers and
att3ched to the upper portlon of~ bll
pulfdlng with spring dampIng mechAnisms,
havi~ an Inertial tendeMGy to n::rruln at
rest ana thus counteracting ana
dissipatIng arry ~Ikllng movements.
pa5ei,oLttlon
Isol3tlng the I13se ofa l1ulldlng from the
ground with dJmplng mechanisms to allow
the superstructure tofloat 3S a~Id l10dy
and alter the natural period of vll1r.3tion of
the structur~ 50 that It Is dlff~rent from
that of the grouna. thus preventing
destructlve resonances from occurrinq
245
SURVEY
To atUrmlne the ex.1ctform,
boundaries, extent,ana position of
J tract of land by Unear anaangular
measurements and the apF"Catlon·
oftM principles ofgeometry and
t.r~onometrjl.
true north _-..- - -........-..J
The direction of the north pole from
1I given polnt.
..//'
//
nugnetic north ----------..-----~­
North liS ~ Py the north-
~I~ pole of the magnetic needle
In 1I compllss. .
~~'d1~~-exp~;dI~ /
/'
rnet.e, 3na l70unas
. The property hnes or boundarIes ofa
parcel of bne.
plane ,urvey
Asurvey In which curvature of the e4r?l's
surf.lce Is Ignored. and all distances ~rJ
horIz.ontal angles are assumed to Pc
projectea onto a horizontal pI4Moo
~na survey
Asurvey made to estaPIlsh the length
and Dearing of roundary nnesana the
are3 of the tract bounded l>y these tr.cs.
cad.a5tn1 survey
Asurvey showIng rouna..rles and
p~ nnes, USU311Y ln4aeto.CI'e4te
land units suitaDle for transferof ~
~utts anal70unds
A!egaIterm for the 170unaary Ilnes of II
parcel of laM as used In deeds and ~
~retS ~ or westofatrue or /
",~"netlc north or south direction. / ,r....-. m~Jnd-l7ounas survey
.. -:I ; / Asystem oflana survey In which the
pLat
Apianor II't3pof land In acity, tawn.
section, or subdlvlslon.lnJlc;atlng the
location ana boundaries of Individual
properties.
n:lmuth __________.________________.i ~:./ cour5eaMlengthofeach boundary Une of
The angleof horizontaldeviation. _____•• " ./. aparcel oflandare called out startln~ at
measurea clockwise.of3 Pealing r·· "'( aknown refmnce point and woti::lng
from astandard dlrectlon.as from '"" around tM periphery ofthe plat until
;;~~~~:~-------. I A
~=~~~p.:oc~lnnl~-
,urvey plat
Aie9al documentdescrl~ the 1oc3t:C:
boundaries. ana dimensions ofatract IX
parcel of land.lnclud1~ zoning and
plannl~ commission approvals•.
easements and restrictions. and. for a
subdlvlslon. the dMdI~ tlnes of stred.,
blocks, and lots. aM the numbering arJ
almenslons ofeach lot.
Intersection are recorded 5l'3phlcally, / ' The compass dlrectlon from one reference
on aNp and liS dau Ina ub!tt ~ poIlrttothe nextfor each ~ofa~'
p~of~fnmng ·----··----c..---··-------· ...- I" and-roundssurvey.staW In degrees.
~ ~ pointfor ametes-aM- . mlnuUs. and seconds as an angular
rounds"'''''Y- ~'~",st......,oc0", no.<II or
legal de$crfption
Awrttten description of the Ioc3tlon ..rJ
boundaries ofaspecific parcelof Iand.
!:rasedon a~'and-Pounds surveyIX.
rectangular system ofsu~. or made
with reference to arecorde.d plat.
rect.angu~r system
Asystem of land survey !:rased on a
rno.:1i&4 9rid of north-south principal
me.rldlans and e;ast·west baselines.
Also C1lIed government system.
~n.ge .
On.s ofaseries ofaMsions numberedeast
or ~ from aguide II'1eI"IdI2n In the
rect.ongub,.~ ofSIJtYftjana
consistlng ofa rowoftownshipsthatare
IWlT1Pered north or south from a!:rase~ne........
=l~"j_;;;~~~~~~~.._
...'._.......
sysUIn d~. approxbl1atefy 6 54 mL
(932 ~ m) conta~ 36 sections.
&«t!cn
One ofthe:36 num~ subdiviSions ofa
township. ~h approximately One square
mite (2.59 S<tkm or 640 acres) and further
suPdlvded Into flJlves. CU3rters. and
CU3rter'1lUrters. ----1
1
"-.......
246
.-....
..............
._.._..._ ....._
.., princip;1 meridian
In the rcct3n~ular system of survey, a
north~h reference nne estaPllsred
at a~~tant:1allandmari: for alarge
area of land.
....---.. -----.-....• guide merid~n
In the rcct3ngular system of ~rvey.a
north-south ref~ hne ~
~ com:ctlon hnes at 24-mlle
Intm'3fs to the eas;and l'I'eSt of
princIpal ~ns_
•........~-...........-I-;-....----.-..- ... -.- l7a~li~
--+---+---1---+'--+---' The princlpal e;aS;.west reference nl18
for an are3 In UIt rectangular system C1f
survey.
t··-..·-..--··..·-····-- correa.lcn 11M
: An east-west reference bne Ioc.teaat
24-mlle nt.erv;aIs to the north and south
ofa!:rasel1ne In the rectangular system
ofsurvey. estaPllshea to correct for the
convergence of meridians and equalize
east·westdistances.
-........-....- .......... -..--. range line
In the rcct3ngular system ofsurvey, a
north·south reference line locaW at
6-mlle lITtervals between guide
meridIans.
j
l
l
l
l
l
I
...
bel
Adevice for~Inl~ true horlzorrt.1
or ~I dlrectlons by the centerl~ of
aP-.JWte In a~htly rowedglass tu~
filled with alcohol orether. Also called
spirlt.level --.----...----.-.-."'-'-
.artffi,ci.·d herizon
A~ 3S asurf:Jce of mercury.
5tJIdia --......-..-.----... -'-..---.,-...-.. -:
A~.od of surveying In whJ.;n dlstar;c.es 1,
are re;ad l7y noUng t~ In~1 on a
gr<1dUJte4 rod Intercepted by two
karizcn~1 cross hairs mounted In the
:::::::~:~_~_I_~~:~n~_.~. ~
Ared ;;nd white dJsl: on alevdin~ rod Uut,
f3C~~S the s1ghtln~ and reading of tr~
rod.
rod -_.-.-...-.._- ..... "'-"'_'-"
Astr..:ght pole or ~r. conspicuously
marU.d wtth grnuatlons.;;fJ used In
rne;;su~ the ~al d1s~na Petwec1 a
point 011 the ground .n.:! the tine of sight of
a~'s level Also called levelll9 rod.
sWi.JroJ.
cturn
Ad1st4 ;x:.e-measurlng devIu conslstl~
of 100 rr.rul nrn:sof~1J3lletgth.
Guntde cluln
Ad1st4na-me;;surlng devlu conslstl~
of 100 Malllnks and atataIle11gth of
66 ft. (20 m). Also called WN~cr'S
ctuln.
en.ginut"9 cluln
Ad1st4na-lTIasurlng devIu conslsUng
of 100 Irlet3ll1nks and atot3i fe11gth of
100 ft. (30 m).
. ~
datum ~_.._...i turning point .-..
./
./
./
Arty kYd surface. line, or point used
as 3 refmncdrom which reratlons
are lT1C3surea.
Apoint tempomlly located and marked in
order to estaUllsh the elevation or posit~
of asurveying Instrument at anew station.
l'
~~
----------- 
 ,
 ,

SURVEY
trllauration
A methodfor determIning the relative
posltlons of three or more points by
treating these points as vertices ofa
triangle or triangles of which the sides and
angles can be measured,
tr~ngulation
A trigonometric methO<l for determining
the position ofapoInt by takIng rearlngs
from the end poInts of a1r.lsellne of known
 I or measuraule length.
, I
.....··----····-r-····-····- ba$eline
/ Aline ofknown length and posItion from
/ which points or other lines may be '
-__ f estaWlshed.asacornerofa!1ullding
---~ structure ora property line.
oJ-
"
r---'-~-., "
transit
Asurveying Instrument. as atheodolite.
having atelescope that can Pe reversed
by turning In avertical plane. used for
measuring horizontal and sometimes
vertical angles.
thecdolr:e
A precision Instrument having a
telescopic sight for estaUllshlng
hortz.ontal and sometimes vertical
angles.
a1Id.1de
The entire upper part ofatransit or
theodolite. Including the telescope. its
supports. spirit level. horizontal cIrcle.
levell~ devices. and the spindle.
',~--.-- .... horiz.o~1 circle
~~~n __.. _ ...1
Apreclsel:i kx3te.d reference point
(N~ which a5'J:r~ng Instrument Is
cenured. Also C3lled Instrument
st.ttlot1. ut'1J p.
Acircular plate, graduated In degrees.
minutes. and seconds. and flxed to the
baseof atransit for measuring
horizotttaIangIes.
. -...- o~1 plummet
.
Adevice for centering atnnslt or
theodolite over areference point. used
In place of aplumu rouIn astrong wind.
leveling
A procedure for determlnl~ the
difference In elevation Uetween two
points by means ofalevel or transit and
a rod. Also c.111ed dffferentl.allevellll4.
e~r.rtJon
The vertical distance aUoVe or uelow a
datum.
~pot elevation
The elevation ofacertain point relative
to aspeclfled datum.
profile
Avertlc3l section of the ground surface
taken parallel to asurvey hne.
L'bench nurk
A marked point ofknown or assumed
elevatIon. usually on aperT!13nent
ouject. from which other elevations
may be estaUllshed,
247
TEMPLE
An eaifict or place dedicated ta the
worship or presenu ofa deity.
,acrea
Ofor~Inlng fa re«glousoUjll(;ts, rites,
or practices,2S opposed to the StCul3r or
pr0f3ne.
~uL1r
Ofor ~Inlng fa the temporal or worldly
rather~n the sacrea or spiritual. Also,
profane.
:~ ,!
menhir . ~'!~~'j,
:'t ..,·1
Aprehistoric monurnentconsisting of an 1f~'."
upright megahth. usually standing alone uut f' ~,:
sometlmes allgnea with ers. .-...................... r~~:1..
meg4l'rth ':1 ~ .
Avery brge ston used as found or ~hly .. i!:' .
d~esp.1 ancient construction wori:. 1·:~t~1.~
monolith J~,j,.'l'll .
Asingle Plock of stone ofCOI1slderal?le S1ze.~~~~:;~~-
often In the form of an ol>elisl: orcolumn. . . .
... zl~ur;rt
Atemple-tower in Sumerian and Assyrian
archlteGWre, l7uitt In dlmlnlshlng stages of
mud bnd: with M t<essea wans faud with
l?umt ~rlct culmfn..,--tl~ In a 5<Jmmtt shrine
or temp~ reached ~ aseries of ramps;
th~ht to ~e of StJmerI3n origin. dating
from the end of the ~d rnHlennlum B.C. Alsa
zillirat. .
Tower of BaDcl
Atemple·tower preSiJmed to be the
great~ur.1tat Babylon, which no
Ion~ survtves, ~h tt was seen and
clescMuea by the Gr--A h!stori3n,
Herodotus. In the 5th century 6.c.:
°ArJ thq SJIJ to oro! ~Mther. Letus mate
britt iII1Jburn It t/lawghly. And they h3d
brld: for5tone, zr,J sime forrnor1:Jr. AM
tMySlIJ, LetusJ;:r.;!J 1 citymh ~
~ t;(>p m1Y~ IJt'ItQ heiwen;3Mlet
usnuU1 rume.1est webe5CZttt:rtJ
z/:IroUuponthe bCt ofthe wfrofe earth.•
~1I.'4
uma'5U
The monument31 SkX1e sculptures of
hurrun-he3deJ. W1T1~ Irolls or nons that
guarded tMerTtr;;rus to
Mesopotamian pC.us and temp~s.
cairn --'---....:-...--.-.... dolmen
Ahe2p of stones pnea'up as amonument,
tom~toM. orbndrT13rt. Also, cam.
pa'~grave
Amtg3llthic toml7 of the Neolithic and early
Bronze A¥Sfauna In the 6ritlsh Islesand
Europe, cans/sUng ofaroofea I7urlal
cham~ ~d narrow entrance p4ssage,
covered by atumulus: relievea to have !leen .
usedfor successive f3mily orcl3n l?urials
spln"~ a numrerof ¥neratlons. Also
C4~ chanWer!lrave.
shiligrave
Atom~ of the Aegea ncIvlhzatlons
cOf1slstlng of adeep rIl(;tJngular cut
Into sloping rock and aroofof timber
Of'stone.
248
17eehive tamp L....................... dromos
A stone-~ullt su!7terranean tomu of the Along. &up passageway Into an
Mycenaean clvllizatlon consisting ofa ancient 5<J~rr.lnean tom~.
circular chamuerCOIered by a cor!1eled
dome and entered by awailea passage
through ahillside. Also callea thows.
Aprehistoric rronument conslst1/t9 of two
or more fa rge u~ stones supportl/t9 a
horlzont415to1'ie $l:.ol1, found esp.ln 6rft3ln
and Franuand lI$U3fly regarded as atom~.
t.n1ithon
Two u~ht mega~tr.s supporting a
horizontJl st..ol1e. ~ called trlIlth.
5tcnehenge
ArnegaRthlG monumen~ erecud In ~he
early Bronze Age cZ700 6.C. on S31ls~ury
Plain, Wlttshlre, ~~rId. conslstll'o4 of
four concentrlc ri~ of trllithons ana
menhirs untered 3rOlma an altarstone:
!?elleved to have Peen used by asun cutt
or for astronomlc31 oDsemtlonS.
l .
I
I
L'"
I I
! I
!
I
11
I
u
~
An ~ ~n tomb m3de of mud
!1rlGk. ~larln plan wtth aflat roof
Jlnd slopl~ ~ from which ashaft
le3ds to cmdergroond ~ur!aland offering
elum~. --------------_________________ _
~d.a17
ASm3" ehamPer Inside amastaDa
containing" statue of the deceased. ------
ur.teU5
The ~ure of;he S3Cred asp, depleted on
the ~of ancle11t Egyptlan rulers
and kttIes as an em!?lem of supreme power.
pluraoh
Arry of the rulers ofanclerTt ~ who
were ~ to ~dlvl/'l('; and had
al;>solute power.
roU-cuttomb
Atamp hewn out of 113~ red,
~ only an arc~ral front
WIth dolrt In"terl:lrcham~, of which
~~a~su~!7ymasses
of stone left In the form of sollJ pHl3rs. ._
_/
~",.,..
ol:rd~k ..------------/
Abit, fo~ sh3ftof5tcnethat
bpers as tt ~ to af"iT'lmldal point,
o~IT13t1n41n ancient Egypt as;l sacred
symPol ofthe $lin-god Rland usually
standing In pairs ~ temple
entr.lrlCeS_
OsirL.Jn cofumn
An ;lncltnt ~n column
lnco~ the sculptured ~ure
of Oslrls. the ~an ~oa of de3th
and resurrectlon_
necropolis -_.-_.--_:-
Ah1storic Irortal ground, esp.
a13rge, eI3bor.rte one ofan
ancient city.
cav~ ~
Accncave molding having an
outbl'le that approxlm3tes a
quarter clrele.
r- cavetto cornice
i Aeltaracteristlc cornice of Egyptian
; Irolldl~s, con.."-lstlng ofa I3rge cavetto
. decc~ with vertlcal Ie;ues anda
roll molJlng !;elow. Also called
gor~.
pyIon-..-j
AInOfIUmen-c.f gateway to anancient
Egyptian temple. conslstlng eitherof a
pairof tall tru~ J'YI'3mlds and a
doorway Detween them orofone such
masonry mass p~n:;ed wteh adoorway.
often ~te.d with painted reliefs.
propYton
AfreestarJ<llng gateway having the form
ofapYlon and precedIng the main gateway
to an ancient Egyptian temple or sacred
enclosure_
H3thor-headed .--------------------- -----------
Notlng an anc~nt Egyptl3n column having
astes capital the head of Hathor. the
Egypt!an godckss of love and happiness.
often represented with the head or horns
of 3 cow_ Also. Hathoric
TEMPLE
pyramid
Amassive m3sonry structure havIng a
rectangular lr.Iseand four smooth. steeply
slopIng sides facing thecardinal pointsand
meetlng at an apex. used In ancient Egypt
as atom~ to contaIn the Irorlal chamPer
and the mummy ofthe pharaoh. The
pyramid was usually partof" complex of
uulldlngs within awalled enclosure. IncludIng
mastaDas for memuers of the royal family.
an offering c~pel and a mortuary temple. A
raised causeway led from the enclosure
down to avalley templ:on the Nile. wh~e
purlflcatlon rites and mummlflcatlon were
performed.
syrinx
Anarrow rocl:·cut corridorIn an
ancient EgyptIan temu.
-----. cau~W3y
A~ure ofan Imaginarycreature having
the DoJy ofahon andthe head of;l man,
ram. or hawk. COtI!monly pl3ceJalong
1Venues leadIng to ancient Egyptlan
temples or toml1s.
hypostyfeh311
Alarge hall having manycolumns In rows
supportl"9 aflat roof, and sometImes a
cltrestory. prevalentIn ancient Egyptian
anaAchaemenkf architecture.
,.......
Araised pass~eway ceremonially
connecting the valley temple with an
ancient Egyptian pYramid.
cultumple
An ancient Egyptian temple for the
worship ofadetty, as distInguIshed from a
mortuAry temple_
mortu~ry temple
An ancient Egyptian temple for offerings
and worship of adeceased person. usually a
deffied 1:1"9. In the Ne,., f:Jngdom. cult and
funerary umplts had manyfatAJres In
common: an aven~ of sphlnxeslQdlng to a
tall portal guarded !7y;l towering pylon, an
axial plan with :.1 colonnaded foruourt 3na 3
hyposty!ehall set before adark./lJrTOW
sanctuary In which stood astatue ofthe
detty. ;lnd walls laVishly decorated wtth
pictographic Qrr1ngs In low or sunkml relief.
Marry of the ITt3jortemples grew Uy
accretion due to the pious amu!tlonsof
successive pharaohs. who ~hevea In the
afterlife and were determined te create an
endurl"9 reput4tlon through theIr uuUdlngs.
New Kfngaom
The period In the history ofancient Egypt,
cl550-1200 6£.. comprfslng the lath te
~ dyna$tles: ch3racterfzed!7y the
dominance of Its capital at Theues.
'-''---- palm capital
,-J-----. An ancIent Egyptian capital shaped
IIl:e of the crown ofapalm tree_
--- low, capital
An ancient Egyptian capital having
the sha~ ofalotus 17ud.
249
lnelProti
A!lulkillfor seml-I~r.derrt unIt of a
ltulldll1j.~1Iy ha~ ~ rectangular
princlpal~ with a~ he3rth
and ap«dt.o(t.,n ofcolumns In antis:
~ In Greece since ~ean
times..believed to Pe the alUSt« of
theDcric~
Greelctala*
Atem~ ~Ikas a shrine fa the ancient
Greek fOIlor~ to wnom Itwas
~ Since the temple was not
1nt:enJedfor IIrtenuI worship. It was ~ullt
wtth 5p'da1 rt'9d for ~I effect. It
stooJ 01 a~Ir.rte ofthree or mOf'l7
steps.Mthacella,containing the stoatue
ofthe ~ aadfront and re3r porticoes.
the whole ~ surmounted Pyalow
~~ roofof~ber. coverea In terra-
cotta orltarble tiles.
albr
An eIevaW pba orstructure upon
which sacrIflces areoffered orInctnse
~~ ill worship. orbefore which
relglous ritesare performed.
cetb ---------------....--.----
Thcs prlIIdpal clt.mberorencbs.ed part of
acbssbl teI1p/e. where the cultImage
was I:ept.Also called MOS.
'-Tc/£;'
..-....
..--.......... agora
:/ Arrt3rtetplace or pu!7llc squa~ In an ancl¢m
/' G~d: city. usually surrounded with pu~
·f· i.. IxIlldlngs and PO~5 and com~~ used
/..... --..... as ap~ce for populJror polltbl as.sem~.
/ ~ ~ ,toa
An ancient GruI: portico. usually detached
and ofconsidera171e length. used as a
promenade or meeting pl3ce arourld pubi1c
places.
(J
....... pronaos
An open vestibule l1efore the cella ofa
. classbl temple. Also calb:! antlcum.
roo- acrourlum
! Apedestalfor. sculpture or
I
temeno5
In ancient Greece. jI piece of ~r:otmd
speclal~ reserved and enclosed as a
sacred piau.
5tela .
An upright stone slal1 or pillar with 3 c.rvc4
orinscribed su~. usedas aInOrnlrnent
orINM. orasJ commemorative t.(,~ ill
the f3ce ofa ~ildJng. Also. 5te~.
~mcnt .
Awide.~hed gal1le surmounting 3
i ornament atthe apex orat each of
~~~~~:::;=~~~A i tilelowercomersof3pedlment.
Also calledJeroUrion.
t..._ acropolis
Th6fortlfleJ high area or citadel of an
anclerrt Gred: city.
~orJmaJorJlvlslonof~~de. _....--.-...........
S?f;.~E:=··J···~··~···~··§'~··~~··~:~~~···~···~···~~~i~~~~~~~~~
~~
etyfobU
Acourse«N5OI1ryfonni1g ~
f~ boa rowOfcolumns. esp. the
outennostcdonnadeofacb$slciltemple.•.._,
~ ....__...- ...._......_.-.
Asolid IIi1S5 rI NSOI1ry ~ ~Povt7 
¥OUnd breiaIseMlIf as~ fourWtlon 
- 6tla,
Asculptured ~'J~ of a!TUn used as
acolumn. Also calltd Ubmon.
ofa~tsp.~~fonnlngtM[2.~~~~~~~~~~~~~~~~~~
ftoor alldsa~ ofJ c!ass~1
tempk AlsoC3I1ed~. podium. .
...- caryatid
Asculptured female flgUn5 used as a
column. /<Jso cartea ~nephora.
b~erucle
fu porbP4esanctu3ry In which the
HebrnsC3f'Tied the art ofthe covenant
ttl~ 1ieJesert untl1 the !lulldlng of
theTmpIcofJerusa~ bySolomon.
holycn~ ~---.-.--...-....--........
The In~ chamberIn the 171!7flca1
Ta~ aad therempleIn Jerusalem
where tfIe artofthe COVCIUnt w.5.kept.
Also ~ Nnctum 5.1nctcnlm.
Art oftM Ccwenant
The chestc.owlnillf two stone b!nets
InscrlOeJ ~ the ren Ulmmandments.
carried by ~ Heln-ews during their
ck:sut wanJerlngs after the Exodus.
250
Temple of50lomon
Theflr5tTemple ofJerusalem. completed
c950 6.C. by Ph~nlclan artisans under
the direction offJng Solomon and
des~ by NePuch3Jnezzar II In 586
6.C. Basedon CanaanIte and Phoenician
prototypes. It was oblong In shape. and
consIsted ofthree maIn parts: an outer
hall (u~m). the main sanctuary (hekhal).
and the holy ofholies (deVlr). all
decoratea with massive carvlngs In Ivory.
gokl. and cedar.
5ynago~ut
Altulldlng or place of asseml1ly for
Jewish worship and reI1glous
Instruction.
I1lmah
The platform In asynagogue from wfirch
services a~ conducteJ. Also called
.almemar. vem.a.
Holy Ark
The calrlnet In asynagogue In which the
scrolls of the Tor.Ih a~ kept. set Into
or against the wall that faces toward
Jerusalem.
I
1
l
l
L
~
=-
;...
l'
r ~
~
I ~
;:.
'{
*
~
....
Jt
PJ,mca
Al;irgec*long !nJ1~ ~asa hall of
~ anapuUl1c ~ plJce In
~nclent ~. typ~ h4Yin~ ah~h
untnl space Ilt I7y aclerestory and
COt'erta bytlmPer trusses. and aI'lIlsea
~l5ln a semicircularapse fOf'the
triPunal The Roman lnslb servea as a
II'1OdeIforearlyChrl~n ~slllcas. -----~~~-
tn1>unal __.._._._._..........._..__..._......_,
AI'lIIsed platform In an Ar.clent RomAn
~sllb fOf' the seatsof ln31Istrates.
AIsa.tri11une.
:triump~1 arch
A lI'1011umental mt1T1Ort.l ~rch uxted
astride the line of mmh of avictorious
army durl~ Its triu~ procession.
.trch order
The en~ge& columns aM entablature
mlnl~ an arch. as In 3 t.-11,1mphal arch.
clithl'3l
Of orperblnlng to a cbss~1 temple
~~ Is roofed over.
hypethr31
Of or publnlng to acl6ssol temple
that Is II'f1cOy or ~~. ~ to the sry.
Also. hyputhral
~perf~1'31 ~. __._...___........
H2Vr.g ~aged columtlS 1t the skks..
• II
~I
.!
~I
[] ~I
· . .;:
· . .Ii
· . jl
e:
II
~i
.!
Ii
.'"
•I
•I
..I
tj
I
•• ••
I
..
TEMPLE
forlm
The public square or man:etplace ofan
.nclent Ro~ ncity. the centerofJud1c1a1
and Iroslness afulrs•• naaplace of
asseml7/y for ~ people. usually Including
al7aslllca anaatemple.
pantheon
Atemp~ ded1cited to qll the gods ofa
people.
cenotaph
Amonumenterected In memory of. .
deceased person whose remains are Irorled
elsewhere.
.-...-.- mcnopteron
Aclrcubr Iroltdln~ having asingle row of
columns surrounding acentral stl'UCture
oracourtyard. Also. moncpteros.
B
--------·-dj~yteIn Inti,
H3v1ng two cc1umns In from: between antae.
.• '.. ../"-._...._- ~~ngu!ar pier or pllasterfo~ by
thlcl:enlng t~ e~d ofaprojecting waiL
-.-.-.-.--.- ........--.- pro$tyle
Havfng apor>..lcoJn the front only.
J pte....I
WIthout;] colonnade along the sides.
"- ~mphlpro,tyfe
Prostyle on roth fronts.
- ....-~ perfpteral
H3v1n~ asingle row ofcolumns on all
sides.
.-....- ptero~
Acolonnade p3rallel td:' but apart from
the cella.
_
.......... pteroma
The passage retween the pteron and
the cella.
251
TEMPLE
mo~ac:
AM~ l-J~ or pbceofpup{1c
worshf.}Js<Jcalled NSJId. mU5Jk1.
m.aarasah .
AMuslll ~Icaf schoolarranged
around J cou~d and attache<l to a
I!1OSqUt. bindfrom the 11thcenturyon
In ~ AIt4tc113. and Persia. Also.
~
~idu
The Ia~open~U4Ire of acity. used 3S
a rna~ orparaae ground. esp.ln
huJla ~ mdtbn. m~n.
~
Acourtor serlesofcoorts serving to
. sheIura~ from Immedlate
contaaII'ItIt secularkli1d1ngs.
mlmbar
Apul~ i2 • mosque. recalUng the three
s~fn::c1 which Muh.mmad addressed
his folklwers........-_........•...........- .....-
t~~·~·~;~;;i,~;h;~ih·~t;~--·
set.~ ~ Mecc2. Also. 'l11Tlah.
khb.l:tUh.
mlhrn ~..__..__.._...__._.._....._
....._
A nicheor ~lAtJye p30d In amosque
tks~r.g the oJPIa.
MecCJ
Actty.. Saudi Ar3!?!a. ~rt.!1plac.c of
Mult,l!W'IJJ and splritu31 centerof Islam.
~'h
ASM3I.~~I stone ~ilc:l!ng In the
cou~ ofthe Grea1: ~ue at Mecca
cont4l1*14 asacred I7Iact stene and
~r«4 byMuslims as the House of God.
W objective of their pilgrimages. and the
poIrrt ~rd whick they turn In praying.
J.Js<J. ~·a~a. ~·~.1h.
~
I
::
~ .
~ ~
t W
~ ~
I ~
~ ~
~ r
i-.•
t:.;~
~ ~i
~
~
CJr~ry ............_..- ..........._...._....-..
An Inn .. t~ Neatust for the overnight
~tlon ofC3ravans. usually having
alargeCQUt'tyard enclosed by asolkJ waII
.nd~ through an Imposing gateway.
Also.~l
pyraaid
A IT13SOCW'y NSS hiilVlng arectangular I1ase
.nd fow ~ and s~ faces
culml~ In a~Ie apex. used In ancient
EgyptJnd pre-CoIumblan Central America
as a torb oraplatform for atemple.
252
 ..- minaret -_. iw3n
Islam
The religious faith ofMuslims. ~ased on
the teachings ofthe prophet Muh4ll1mad,
the central themes of which are retlef In
the one God. Allah. the existence of
Pa,-,d1se and Hell. and the unIvers. I
Judgment Day to corne. Also called
Muh.Jmm.Wanisll1.
M~lIm
Ofor pertaining to the law. religion. or
clvillz3tlon of Islam; a believerIn Islam.
Also. Moslem. Muslem.
Muh.1mma&
Ar3~ prophet and founaer of Islam. AD.
570-632. Also. Molumm&l.
'-........ Alofty. slen~er toweratt6c~~ Alarge vaulted portal opening
'~" ~~ to amosque. having stairs onto thec.cntral courtyard of
Koran
. leading up to one or II'1Ore amosa,ue. Alsa. Ivan. liwan.
The S4lCr-ea text of Islam, revered as ~
revebtions made I1y Allah to MuhamnW
through the angel Ga~rleland acupted 3S
the foundation of islamic law. religion.
culture. and polltlcs.
projecting Inlconles from whi:h
the muezzin C3nS the Musn~
peopleto prayer.
..··..····..·_·····sahn
Thec.cntralcourtyard of amosque.
-. ......._.......... riw~
An 3rc3ded hall of 3 mosa.ue.
melon dome
Al1u11?ous ri~Dea dome. found esp.ln
islamic architecture.
.......- 5bl3ct:lU worle
Asystem of decoratlon In Islamic
architecture. formed by the Intricate
corVellng of Imcl:ets. squluhes. ana
Inverted pyr,amlds; SOIT1etltnes wrought In
stone M moreoften In pb5ter. Also
called ~ wort. m~
pendenttVe &racketlng
~ having the gener.al fonn of 4
~.commonlyfounJ In MoorIsh
archItecture.
m:hocr:h
An openwort screen or partftlon enclosl~
an area for prayeror3 tomb In • mosque.
tal1lero
Arectangular. strongly fumed pane! tha~
overh3"9Satalud. An orI9lnal contrit?utlon
ofrecUhuacan an;hIUcUire. this taUlero-
talud com~natlon waslnWduCed cAD. 150
to dlffmntlau the ~ ofstepped
pyramids and altar platforms. It Is widely
..... copied throughout Mesoamerica. WIth
regional variations.
'.~--. t.1lud
In Mesoamerican archtteGture. an outer
waR that slopts Inward as It rises. The
talud first appeared cM)()'6.c. at VieOlrne:c
site of La Venta.ln Ta!1asco st3u, Mexico.
L·
L·
L
L
L,
L
L
Hinauism
The domlltant religion of Indl3.l:rased upon
the relJ910n of the original Aryan settlers as
expoundeaanaevolved I~ theVed3s. having
J diverse bodyofphIlosOphy and cultural
~manypopularcults. anaalarge
pantheoo symbollzlng a supreme pelng of
lnany foms and natures. Buddhism Is
outslde the HIndu tradition but Is regarded
as arelated religion.
pantheon
The of&blly recognized gods ofapeople.
Vedas
The aides; s.acrtd wrttlngs of Hlnaulsm.
composed I1etween 1500 and 000 B.C.
Incorporating four coIlectIans hymns.
prayers. and hturglcal formulas: RIg-Veda.
YaJur-Ved3. 5ama-Veda, and Ath;ma-Veda.
~m17a
Afreestanding memorial pillar In
Indlan archlW;ture. ~rlng carvea
inscriptIOns. religious emblems, or a
S"...a~ !4so. ttamWla.
lit
Amonolithic st3mPa, as distinguished
from one built up ofstonecourses.
vihara
A8uddhlst 1nOII35tefj' In Indl3n
areI!tt:ecture oftenexcavated from sond
roc(, consisting ofacentral pillared
chamPer surrounaea Uyaver.indah onto
l'I'fllch open snull sleeping cells. Adjacent
to this cloisterwas acourtyard
contalnl~ the main stupa.
c:h.dtya
A6uddhlS; shrine In Indl3, usually carved
out of solid rod: on ahillside, having the
form ofan alsled Paslnca with;l stupa at
one end. _.-..._......__...- ..
wat
ABuddhist monastery or temple In
Thailand or Cambodia.
Khmer
A peaple ofCampoala who estaPlished an
empire In the 5th century A.D. and
d.oml~teJ mostof Indochina from the
9th to the 12th centuries.
tTt3ndira
AHindu temple.
-l ...- ..
rath ~---.!
•
TEMPLE
AHindu temple cutoutof solid rock to
resemble acharlot. Also. rath.1.
viman.
The sanctU3ry ofaHindu temple In which a
Oelty Is enshrined.
.:--.-..----------........- ....--...-------...............---.... a~l.abl
tee
Aflnl3lln the form ofa
conventionalized umbrella, used
on stupas. topes, and pagodas.
,Uteri
An umbrella-shaped flnl3l
symrollzlng dignity. composed of .
astone dIsk on avertical pole. """
toraIU
An elaborately carved, ceremonial
gateway In lndi3n 8uddh~ and
Hindu an;hltecture. h3vlng twoor
~''''''''
three lintels between two posts. ~:.. ---""
veaika
Arailing enclosIng asacred area.
3S astupa. ..-··..·.._·_-_·_·_··..·..-1
rf?i
~
t
The pulrous stone finial of3slkh3ra.
............_.- ~ikhlra
Atowerof41 Hindu temple. usually tapered
convexly and capped by an amalab. Also.
sikra. .
mand3p3
Alarge. porchlike hall leading to aHindu
temple and used for religious dancing and
music.
L..._.__._...__._.• gopuram
Amonumental. usuallyOM13te gateway
tower to aHindu temple enclosure. esp. In
southern India. Afso, gopura.
.....- Dtupa
ABuddhist memorial mound erected to
enshrlr.e arelic ofBuddha and to
commemJr.ite some event Or m3rt: asacred
s~. Modeled on afunerzry tumulus.1t
conSists of an artificial dome-shaped
mound ral~ on aplatform, surrounaed by
an outer a:nPulatory with astone vedlb
and four toral13s, and crowned by achattrl.
The 113 me for the stupa In Ceylon Is d.19C17a,
;lnd In nPet lind Nepal. chorten. Also called
to~.
Buddhl~m
Are11glon Uasedon the Four Noble Troths,
originated In 1ndi3 pyGautama 8uddha and
later spreadlll9 toChll13. 8urrna.J2pan.
nPe't, ana parts ofSoutheast AsI3.
Four Nol7leTruths
The doctrIMs of 8uddha: allltfe Is 5lIffering;
the cause ofsuffering Is deslr~ ceS53tlon
ofsuffering I:s possi11e through Nlrvan3 -
t.ie extlnctfon ofcravfng; Nirvana can lie
reached through rnental3nd moral self-
purific3tIon.
Buddha
Tttle ofGautama 5lddhartha c56.}-c48.3
B.C.• lndl3n philosopher. religious leader. and
founder of Buddhism. Also called Gautarrt3
Buddha.
253
I
S~;<:
cfC't
CT'C'
TEMPLE
pag()(b
A6uddhlsttemple In Ule form ofasquare
or po~ towerwith roofs projectlng
from each«Itsmany st«Ies. erected as a
metT1OI'tIlorto hoY relics. From the stupa.
thelndlan prototype. thepa90da ~radU4tl:i
changed nform to rc:sem171e U1e traaltkNl
multlstoried watchtowt:ras Itspreaa with
~dc:ltlsm toChina a!1CA Japan. Pa~odas
were InIUally oftllni?er. 1IItfrom the 6d1
Ct:Ittu'Y0II.1¥ert: II'IOI"e frc:quently of ~rld or
s~ possiblydue to Indtan Influence.
paitou
Amonumental gateway In Chines"
architecture. h3VI~ atra!1eatea fonT1 of
stone or wOOfconstructlon with one.
thru, orfive openl~s anaoften !loki
projecting roofs, erected as arnemori31 at
Ule entranceto apalace.tom~, or sacrea
place: rebuJ to the indIan tor;lnas ana
U1e Japa~ tori!. Also. panoo.
zhonglcu
Abell tower or pavllion In Chinese
architecture, located at the right s~ of
acitygate. palace entrance, or forecourt
ofatemp~
gulou
Alarge drum tower or pavilion in Chinese
archltecture.locatea at the left slk of a
Iingd40
The spirit way th..t ~ from the south
g3te to aroyal torr.i1 ci the T..ng~sty.
Itntd wlth stone pi~rs ana sculptured
anlrT'l3lana hurrun figures.
lang
Adynasty tn China. AD. 613-007.lttlrUa
by temtorl31 exparcslo1. the Invent-Ion of
printlng. prosperoliS trade. ana the
development of pW..ry. Also. "a~.
Yunga"9
Alarge Buadhlst rnmstlc center 1'
roorthwestChlna. De.gt.n In A.D.%<). where
there are numerous Qve temples. e;uh
having a shallow. Mkhaped Inta-1.or wtth
a~sslve cent.r31 ~ of Buddha f'wrUd
b-j two smaller B~ ~ c.onc.ept of
carv1~ into cliffs Is bdleved to have ~me
to China from Indla /-Js(). Yun-~
of, umpl', 'i
city gate, ~Ia~entrance.orforecourt --!!~ellll~~~i;~~~~~~~~~i~~;;~
c:Iougot1f _.-.....---.......................... -...."'-'--"
Almackefsystem used In traditional ....,
ChineseCXIIStnIctIon to sup~ roof .....
~ms. ~ tM eavesoutward, and .
support~Inferiorceding.The
ab~ rAa triallfular1:2etJframe In
chir.eso -.:t.~wre ~ ~
necessaryto multlplytho numl7er of
suppor1O Dftderthe ~.In order to
reJuce thenunWerof pillars ttlIs woula
normally require, thcl area ofsupport
affon:Jed~ each pillar was Incrc:ased
IrjUle ~ Also. tou-kung.
41rtg .----...---.....- .....- ....~.•
A leverann In traditional Chinese '.
construab1, pIaceJ parallel to the
rafters aM r2bI at an an~1e to
cou~nce the fCll"US applJea Py the
InneranJ outerpurlins. The ang supports
the OI/tennos~ purlln Py me.ns ofa
In-ack~ orcross'~am and Is pinned at
the Innerend 39lnst apurlln.
254
_..-'-' gong
.' A cantilevered Dradet!n tr3dIVor.21
Chinese construction. Also. k~.
...•
.......-.. i ..-.-.- c:lou
......_...- ..-...... A Vtarl~ Dlod In traaIUon3IChll1e-:;~
construction. Also. tcu.
l
l
l
l
l
L
l
I
L
,
I
!
L
•
TEMPLE
Ut!Il.IOgl--......- ....- ....- .........--............_...........~.............._........._ ..........
The short woodetIlrlllets placed at ~ht . ;
Shinto
3~b to the rM¥ of 3 Shinto shrine. ;
.~~ ~~~~~~~~~~~~~~~~1
ch19I ....··---·····-·--.--.-..- .....-.-..,.....·· -
The Indigenous religion ofJapan, rn..rked .
by acultle devotion to aelt1es of rt3tural
forces, ancestor worship. and venmtlon
of the emperoras adesundant of the
Sun·Goddess, Amaterasu.
The c~ ftnIal fonned by the projecting.
lr3rge Poards 2t each encl of the ridge of a
Shinto shrine.
~hlra ~--... - ......----.....- ........- ...•....•.-....-.-f-f=~
ASXrta po5t in Shinto architecture.
sh3~ by hl.lln3n hands.
N3.g.lN:"Zukuri _...-_._-._..-.........~
A~ ofShlrrtoshrine, based on the
lse prototype. M with the front slope
of the roofextending to form acanopY
0V'et';he ~ staIr; this space r!±:::=!~:::1i::::U::==:U==:1.8;l
evaltuaDy ~ Into 3 pl'3yer
room fOf' 't'I<l1"Shipers.
~-zubri
Astyte of Sh~ shrine. characterized
lry a hipped roof(;Xtendlng from the
maIn roof, (Her acentrally placed
erttnnu stairat one ga!ne end.
iuiden
The h3n of wors.iip of3 Shinto shrine.
u5U4I1ly In frcm of the honJen.•..-.........../
hcn.den /
____-.-...::....of_3_S_hl_nto ShrlM:.//
l......_._.... biro
~nt appro~ •....................i
An .pproach ~h two gateways that
are r>Ot al~ned. 50 that It Is nec.essal)' to
ITtJke ~ sharp eurn to pass from the first
thr"CJ1h the~. used for privacy In
h<XI~ or~mJks. orfor security In
fortffic3tlons.
terii
Amonumental, freestanding gateway on
the approach to a Shinto shrine. consisting
of two plllars connected at the top by a
norlzontal crosspl~e and alintel al>ove It.
usually curving upward.
The covered !lallery surrounding
aprecinct ofaJapanese temple
or shrine.
.-,.
Shimmet·zukurl
Astyle of ShInto shrine eTI1l>odyfng the
original style ofJapanese l>ulld1ng. before
theIntroduction ofBuddhism. It consIsts
essentially ofa small unpainted
rectangular structure raised 3Pove
ground level on post5lll5ef'ted directly
Irrto the earth. Arailed veranda '
surrounds the structure at floor leVel. a
freestandln!j post ~ each gable end
supports tM ridge, and the bargel:103rds
extencl outward from the thickly
thatch~ roof. fonnlng chlgl at each end.
....~ kada
An assem~1y half for mon~s In .. Japanese
Buddhist temple. In which sacred texts are
~d.
to
AJapanese pag0d3 enshrfnlng Buddhist
holy rtI1cs.
s-orin
The crowning spire on aJapanese pag0d3.
Golden Hal~ the sanctuary where th¢ main
I~ofworshlpls keptIn aJapanese
Buddhist temple. The Jodo. Shlnshu. ancl
Nlchelren sects of Buddhism use the term
hondo for this sanctuary. the Shlngon ana
Tend3l sects use chudo. and the Zen ~
uses Msuden.
rund.1lmon
. _____ The principal SOt!th gateway to aJapanese
temple orshrine.
..........- chumon
The Innergateway to the precl~ of a
J~panese Buddhist temple.
,noro
AstnJcture from which the temple PeR Is
hu~. as oneofapairofsmatl,1dentIca1.
symmetrfG.oi1y plaud pavl~ns In a
J"panest Buddhist temple.
l1ut5u
Arepresentation of Buddha.
d.1i~ut~u
AI1rge representation of Buddha.
255
THEATER
A~iU.fing. ~rt of alnJilding, or a~
outdoor area for housing dramatic
present.1tJons. stage entertainment,
or motlon-picture shows.
Greek~
An opeII-w t&e.ter, usu.11y hollo~ out of
the sbpeof.. hillside~ atiered seating
are2 around and facl"4 aclrcular orchestra
lneW bythe stene, a~~ for the
actors'lISe.
orchenra _ .._-_._....-.--.---~.
fu clrcubrspace In frorrtofthe stage In
the anclcmGreet~, reserved for
the cI1orus.
choru
The groupd actors III ancientGreece
M ~ as Jn3jorpartlclpants In or
romnentatorson the min actlon of the
drama.
,une ___..____..._.___._._._.
Astructure ~g the audience In an
ancle:r;Gre.et: Ple3ta".forming tht:
Inckground Pefore which perl'ormances
~gIvtn.
!
p~ium _____ .____________.____.._
..!
fu front part of the stageof an anclent
Gru:k or-RDman theater upon which the
actors perfonned.
Jfb.
gradill
One 0( iii StrIes of steps ortlered seats.
as In an ampl1tthe3te1'. Also. gradlM____ -:
Jmphithater
An Gv.iIlor round l1ulldlng with tlers
of seatsaround acentral arena. as
those IISed In ~lent Ro~ for
gladiatorial ~tests and
s~les.
256
podium ______
Araised platform enCircling
the arena ofan ancient
Roman amphitheater. havl~
on It the seats of prlvl~ed
spectators.
•
.._.___... ___.... ______.~ parodo5
• One ofthe two side passageways to an
ancient Greek theater. !1etween the
st~e and the seatJng area. thro~h
which the chorus enterea the orchestra.
.'____._____.___ parascenium
,--- velari:.lm
Eitherof two wings flanking and
projecting forward from the skene of an
anclentGreek theater. containing
apartments for the actors.
----.---. dlazoma
AIl aisle Petween the lowerlind upper
tiers ofseats In an ancient Greek
theater,concentric wtth the orchestra
and the outerwall and communicating
with the radial aIsles.
····.-_cerci'
Awedge-shaped sectlon of seats
recween two stepped passageways in
an ancient Greek theater.
Roman the.rt.er
An open·alrtheater modeled upon
that of the ancient Greeks. 1M; often
~11t on level grountl WIth colonnaded
g311er1es. a semicircular orchestra.
and .a raised stage I7acl:ed I7yan
e!at>orate arChitectural structure:.
---_ orchestra
Asemicircular space In the front of
the stage ofan anclent Roman
theater. reserved for senators and
other dlstl~ulshed spectators.
Acanvas 2Wf1lng dr.iWl1 over an
ancientRoman amphitheater to
protecttilt audience from rain orsun.
---_... _-_.._.-...-_....__..
vomftcry
Alarge opening. as In an ancient Roman
amphitheater or stadium. permitting
large numVers ofMIe to enter or
leave. Also. vomftorlum..
5upercclumnlrtlon
The placl~ ofone orderofcolumns
a!1ove ano1(her. !Jsualfy with the more
ela!xJrate orders at the top.
1
I
L 1
t,
l.
l.
I
I
~ting
The arra~ement ofseats In a theater,
st3alum, orather place of ;assem~ly.
c.ontinerrbl seating
Atheater sating pfan In which there Is
no center;alste, Putwith wkIe spacing
~each row of se3ts to permit
proscenium stage
Astage that Is framed ~ aproscenium
arch.
proscenium arch
The arch that separates the stage from
the auditorium. Also called pros~nlum.
..
..
e:JSe of passage. ------ --.--- ------- ---- ---- --. - ------ --~Hl'IHH.I_+H
THEATER
".
~urround theater
Atheateror concert hall In which the
seatlng Is arranged around or on all four
sides ofacentral stage.
Jt.·m'-~Ilitii areru theater
Atheater with seats arranged 01'1 it least
three sides around acentral stage.Also
2~~-----·--.--.---.---.--------~~~~~~~+­
AW3~ ~ween or along sectlons of
seats In;l the3ter. ;ludltorlum. church, or
ather p1aceofassem~ly.
l7lin& row ~.---_____...__.. _____________.....___"./'
Arow of seats having Its first seat at a
side aIsle and Its last seat at aside wall.
5tageho~
..-
I ~  called thUUf'-fn-the-round.
i ,II thru,t stage
~ tttttttttttttttlrttt--~t-!:-1- Astage that extends ~eyona the
~~ proscenium arch and Is usually surrounded
f"~~II·..-====:Ili; on t~_reesides l>y seats.
J! .,
The part of;I theater 00 the stage side
of the proscenlum,lncludlng the stage. ;----------. spotlight houselights'
wings, and storage area. ~- .. --.. --------- -- ---- ----- ------1
~
. Astrong. focuf>ed ;>eam of light for
calling attention to an o~ject. person,
orgroup on astage. Also called spot.
The I3mps pl'OYldlng IllumInation of
an auditorium or the seating area
ofatheater.
gridiron --- ----....--- ----. --- ------ ----------..---
Astell ~re arove the stage of a
thaW.from which hung scenery and
equipment are manlpulate<:!_ Also called
grid.
flies ~-----------------------.----------- ..-- :.
The space aAA-e the stage used chiefly
for storing aM tunglng scenery and
equIpment. Also called fly loft. '
I fire curtain
Acurtain ofaSDestos orotherflreproof
rnaterl3l that can veloweredjust Inside
the proscenium arch In case offlre.
sealing off the Uackstage are3 from the
aualtorlulT1. Also called safety curbIn.
::,'.,
Inoidge -------------------------------.--- -~ .'----:
Ag3flery or pbtform that C3n ~ raised ~,.
: :------------------------------------ barkr
te-clmlcbns and sta¢tands. : ~.
AIt3rrow curtain orstrip of painted
canvas hung above the stage to mask the
flies and form the top of the stage set.
or ~over;l sbge ar..d Is used l>y Ji ..-
~ :
~~:i$E~:·~~~ .i. ~~
lighting units. Also carted pipe 1?.rtten. / /1
-.- ..------.-----..-----.-------.--. teJ6er
Adraperyor flat piece hung .cross the
top of the ~Iumarc;h to mast: the
flles and. tcgether with the tormentors,
frame the stageopenl~.
fLit ..--------.--------------------------------.. / ...../
Apiece of scenery conslstlng ofa wooden / ; ..".-,
frame. usually rectangular, cevered with ". / ....//
Ilghtweight Dcard or faD
ric. -""" ( ' / /
I .
orchenn ,hell ....--------------------------.---.-- .---....--- '-"- 1 /
Asound~g structure that I I
closesoffthe files ;Ina wfngs ofastage I j
to form aperforming are3 for music. I /
LII
5tage -----------------------------------------
1M pl3tfonn. usually raised, 00 which
~;lctors perform In a theater. Also.
the pl3tform ~ all the parts of a
theater Uacl: of the prosce.,lum.
drop stage ~-- -- ----- --
Astage floor that mOles vertically on an
ekvator. u~11y so that one set can quickly
replace another.Also called flft stage.
..-
----------_.. ----.----._./

.---.---.---.-.----..------.--------. tormentor
AcurtaIn orfrarnec.f structure used
dlrectl-j Pehlnd ~ proscenklm at each
side ofthe stage to screen the wings ana
sidelights from the ;ludlence.
--.---. ------ ------.----------....--.---. aacurbln
Acurtain for closlnfJ the proscenIum
opening Petween acts orscenes. Also
called ..ct drop, house cu~fn.
____b ______.orche,tr;a pit
The space reserved for mUSicians.
usually the front part of the maIn
floor, sometimes wholly or partly
under the forward part of the stage.
apron .---.: ---------------- .oo.---, footlights
The part of astage floor In The row oflights on thefront ofastage.
front of the curtain line. usually set In atrou9h. nearly 011;1 level
wIth the fut of the performers.
257
THEATER
opeu house
Atheaterdevoted chIefly to the
puPlIc performanee ofoperas.
front ofthe house
The partsofatheater that are on the
audience side ofthe flre wall
wing balcony
The part ofa~alcony that extends along
::""waIl5of," auditorium. -'!:.:
AprivateseatIng area fora
small group ofspectators In I
a theateroropera house'--'~l_+__--:..--4_
palcony
A~11er.i UlJt projects orer the main
floor ofatheater to accommodate
additional pecple.
gallel)'
An upper fi.cc1" projecting or~ the
main floor of atheattr or hall.
.- ....--.-..----.....-. peanut gallery
The rearmost and cheapest section
of seats In the uppermost l'>alcony of
atheater.
, ..,;._.... ,IghtliM
.- Anyofthe lines of s~ht between the
spectators and the stage or Playln9
area ofatheater or stadium.
~~~~~~~~~~~~~~~~~~~~~~~~~~~.--.-b~5cl~~
Acurved orcircular division of seats
In atheater. o~ra houSe. or the like.
usually the flrst gallery, originallyset
apartfor spectators In evening dress.
backstage
Thearea l7ehlnd the proscenium In
a theater, esp.ln the wl~s and
dressing rooms.
(
d~5lng room .:..,i
A room for use Ingating dressed. esp.
one for performers f;.!d:sta¥ In a
~ter or television studio.
greenroom
Alounge In atheater. concert hall. or
Pr03dcastlng studio,for use Py
perfonners when t./Ieyare not0" stage.
258
i
j
o~hestra _.j
The enUre main-floor space for
spectators In atheater orauditorlum.
:"parterre
The rt3r ~icn ofSt3ts. ana
sometimes a!so the s~ ~Ions, of the
main floor of atht3ter, opera house, or
concerthaL Also C3lled f'M'luet cfrcl~
r....-····-·....··--·-..·· ........ auditorium
; The space set apart for the audience
In atheate:- Cl' meetlng han.
"'--. mezzanine
The lowest l>a!cony or fooma part of
such al>alcony In atheater.
grand tier
The first U~r of boxes Immediately
3Po.'t the parterre In a large opera
house or theater.
tier
One of 3 numperof9a1lerles, as In a
tht3ter.
.. .a:~
.-----------a - ...........--.-.-.-.----.---- !coPy
;
1 A11311 se:-.1~ as aP3S5J¥r'f.iy or
i._ wing
The platform or space to the right or
leftof the stage proper.
runway
Anarrow platform or ramp extending
from a stage Intothe orchestrll pit
or Into an aisleof an auditorIum.
• S:J waiting roomator Ile3rthe entr.ince to
• atheater. hotel. or apartment house..
::I I Also called foyer.
lounge
Alarge puPlIc waltl~ room. as In a
theater, hotel, orair terminal. often
havIng adjoinIng washrooms.
~xoffiu
The office ofatheater or stadium .t
which tickets are sold.
m3r'lUU
Atall roofll~e projection aWie atheater
entrance. uSU4lly cootalnlng the name
of acurrentlyfeatured play or film ana
Its stars.
I I
.~
,it.
j I
!
,
j i
I
U
I ,i
I
b
I
l
I
1
p.1nel •.. --- - ----- --. -- .-- ----------
The space wttnln ~ wet> of atruss ""
~~ any two pa~ points on a ""
chord and acornspondln~ pair of "'.,
joints Of asinglejointon an opposite ...•
c~i ~
panel point
Ajolnt uetween two or more memt>ers
ofatruss. Atruss must be loaded only
at Its p1nd points IfIts members OIre
to be su~ on~ to axial tension or
compresslo11_}.Jsa C3lb:l node. --._- '-'-'--"'''''
pJnellengtb . ".
The space 00 ~ chord ofatruss
~;lnytwoa~jolnts maae
Py principal ~ m~ with ~
chord.
i
UTO-foru mem~ ..-;
heel
The lower. supported ttId ofan up~nt
timber. r*"..er. ortrus5.
Atruss 1MTlP-erttutU1eoretlc31ly
carries ~ dlrect loa.d and wh~
omlsslan would not alter the stability of
~ truss ~uratlof1.
~u"ing ":,
Astructure formed Dy trusses. While rigid r
,., Its own pbne. ;I truss must be In-aced In '-'
• perpenJlcubr dlrectlon to prevent
fa ter31 Pucl:nng.
IocallnJ.cknn~
The 17ucl::n~ ofa thin compressed dement
of a structural rr.emkr, leading to failure
of the ,.,hole.
r··-·-----··---· chord
Either of the two prlnclpaImembers of
atruss extenaing from end to end and
connectecl by web members.
web
The lrTte9ral system ofmem~ers
connecting t~e upper and lower chords
of atruss. ~"',


i
shoe
i
i
Arearing plate for supporting and
resisting the thrust ofatruss or girder.
TRUSS
A structural frame based on the
geometric rigidity of the triangle and
composed of linear mem&ers subject
only to axial tension or compression.
planetru55
Atruss an of whose members lie In asingle
plane.
trussing
The rigid members forming a truss.·
5U!1ject to axial forces proportional to
the rise of the truss. 6uGkl1n~ gen~rally
governs the size ofcompression .-
meml7ers. while tensile stresses at the
weakest points. usually at the
connections. control the size of tension
members.
-----..----.....-..-..'. panel load
I 
I 
/ 
I 
I 
I 
I 
"  I
I /  I
, I I  I /
',II 1 ,,/
(!
Aconcentrated load applied to apanel
point ofatruss..To prevent seconaary
stresses from developing. the centrok:lal
axes of truss meml7ers;lna the load at a
joint should pass through acommon point.
direct ~tre55
The tensile or compressive stress th.-lt Is
constant through the depth of a
structural membtr su~ject to axial
tension orcomprtSslon.
~Olkbry5~~
AdditIOnal ~endlng and ~he<lr tresses In 2
truss meml1er rtSultlng from an eccentric
conrteCtlon or3joint flxed ag.alnst rebtlve
rotation. While trusses are assumed to
have Ideal!zed pin connections. truss
connections In reality may be rotted.
welded. orriveted. Imparting adegree of
rigfdIty to thejoInts.
. 5tre:5~ rever5.11
Achange!n the force of3 truss member
from tension to compression or vice versa
caused !7yachange In the loading pattern.
.....-.:~'-- .• counterPrace
Atruss member sul7ject to tension or
compression unaervaryfng load conditions.
funicular tru"
Atruss havIng an overall shape derived .
from thefualcular shape far aparticular
set of loads. The Interior mem~ers of a
funicular truss are zero-force mem~rs
which serve only to ~race compression
members ~ut they will carry forces If any
changes occur In the pattern or
magnItude of the loads.
259
TRUSS
,
A~~for
e:tt.entilfc,r-".lS N
~Is~
~ fDlIow:J PjtM
~oIfM;e
~ for tiJernar:m-
forc.=s3t~jonts.
260
Since tko~11yonlyzxiJl
forcts Zf'e tr.lnsm/tt.eJ from
onemembertoar.otUrzt
thejoItTts, the d~ I1f
memberforces C*tI beInI+f1
p3l"36dto the truss
m~. Worting from tf'rI?
I:~points. athinlpoIrrtof
~n C3n beW1Jtld by
projectSJg force lines of
~ JJrectJon.
f
metha-d of5utlons
A~ for del:e:r.ninrng.memberforces
In atruS5 by con~ng thUquili!?rlum of
any porrunofthe t-r'JSS assem!?IJ·.
M.1xwefi di2gr2m
AgraphIe method for determlnIng the
Ngnit-ude and ch.r.acterof the 5tre5~
In the rr.emrers of a~JSS.
C;pIt111~ JesIg.-.4U panel5p3Ces.
wMe~se f~ desfgn3te mas
ofthe ~ vectors.
Ikmber fI:>rcts arePr'trSely
proporttonito the r:seofatross.
method ofjoints
Amethodfor determlnl~ memver forces
In atruss I7y con5lJering the equlnvrium of
the variousjOints Ic:Ie3llzea as points In
free-!1oQy diagrams.
~---------9--------~~------~~ G
R, Bowt5 notation
The ~oc:I ofla!1ellng the spaces
betw~n forces or their linesofutlon
with letters, each force !;IeIng IdentlfleJ
I7y the two lettersIn the aaJ~
spaces when proceec:llng In aclcx:t:wise
IT13nneraround ajoint.
i I
'~
 .
I')
I'
·-1 ,
l
I/.
lI
t,
lI
l'}
l
L
l~
J!~~.
r piUhed truss
Atruss having InclIned top choras.
TRUSS
flattru'5
Atruss having parallel tap anabottom
chords. Flat trusses are gene..l~ not as
efficientas pitched or I10wstrlng trussts.
Also called paralltl-dwrd truss.
lS1S1SJSJZVVI7I .
tru~ rafter
A IIg~ht wood truss used In fram
aroof. usu.1Iyprmlnicated
of2x45 anJ b6sjOO1ed I'll n
toothedpbte
connectors.
crown pest
Arry v~1 mem~ In apitched
truss. esp. aking post.
Pratt ""--__________-.ll
OforpertainIng to • JUt orpitched truss
having vertlc31 web memDers In compression
and dl3gonal we!7 memPers!ll tension.
~-------- Howe I
Oforpertaining to aJUt or pitched truss
havln~vertlcal web rnem~rs fn tension and
di3gonal web mem~ In compression.
•
tr1I,sedJoist
A I19htwelght. flat wood truss used In
framl"9 afloor, usually prefabricated
of 2x4s and 2x6sJoined wtth toothed
plateconnectors.
.
~'f;e~ian '---y------. Warren
di3gorut
An IncnneJ web lMT1!7erJoining the
top and bottom chords of atruss.
Of or pertaining to apitched truss
having Orily Indned web memDer5.
:--- 5u~dL19orul
 An lncnned we!:> memDerJoining a
. chord wtth amain d~OO3l
~fl1lk~'
Atruss h3v1ng more than two web
Ir.trtlbers raJlatlng from a common point
on the rottom chord.
I
A~~n truss having ~ba13gonals to
~uce the length of com~sslon wcl7
~rs toward the calurilne of the 'part
r.a~~hora~5 L ~'<''''~5
Atruss ~ abottom chord
r3!sed ~1Iy a!7ove the level
of the ~ports.
Apitched truss hav!rtg tension
~ exterIdlrtg from thefoot of
exh top chord to .an IrrterInedlate
poUrt on the opposite top CMrd.
""''t )~
~
tru,~ ~m _____--'1
Atlmw!;am stlfferd boy a
c.omlnl'.3tlon of ~al truss rods
ii nd eltha compression struts or
susper.sl.on rods.
9u~ ~.-- ..----.--.---------.------
Aplate for unlt!ng struct.Jral
members meet1r,q In asl~~ pla~.
Also called gusset pl3t,e
Ofor pertaining to af13t or Dowstrlng .
truss having Inchned we~ mem!1ersformll19
aseries ofequllater3Itrl3ngles.Vertical
web mem~ a~ sometimes Introduced
to redUC6 the panel lengths ofthe tcp
chord which Is In compression.
,-I----< l7ow~tri"9 tru"
Atruss havfng 3 curved top chord meeting
astraight rottom chord at each end.
5elfa~t truss
AtlmDerrowstrlng truss.
cre~nt trus,
Atruss h.vIng rothtop and I1ottom chords
curvl"9 upward from acommon pointat
each side. Also called camelback truss.
r--- trus,rod
! A metal tie rod serving as atension
memPerIn atruss ortrussed !leam.
composlU trus5 •
Atruss h3v1ng Umber compression
members and steel tension mem!lers.
261
VAULT
An arched 5uucture of stone. urick. or
reinforced COf1~. formi~ a uiling
or roofOV~ a hall. room. oroth~
whoityor parti311y enclostd space.
;...- ..-.-......-...--.......-...._.-.... key course
: Awurse of keystones In the crown of
262
5~ -,.........-..;
AdlstJnct. slenkr. vertical masonry
fe;ltIJre engaged In awan or pier and
supporting orfelgnlng tD support an
arch ora rll1bed vault.
2 masonlj'vault.
,.....---....--------... vaulting ccurst:
Ahorizontalcourse forming the
aDutments orspringers ofamasonry
: vault.
L_____._..~ transverse arch
An arch for stiffening a Darrel vault or
supporting 2 groin vault. '
r--'-- ~try
1 .APay ~ two transverse arches
~_j I", vaulted structure.
5InceItbehmsasanarch extendedIn athird
Jlmenslcn, theIong/tudlna/supportlng walls
must~ bvttrts5edt(1 younter3Ct the thrusts
ofthearchIngactIon.
I
1---...... i?uttres,
I
An external support built tD stabilize a
struGturs by opposing Itsoutwara thrusts.
esp. a p~lng support builtInto (lr
I against theoutside ofamasonry wall
.;--- -.--- flying 1?uttre"
/ An Inclinea barofm3sonlj'carried on a
/ segmentalarch anatransmitting an
./ outwardana downward thrust from aroof
.: or vault to asolid buttress that through
Its mass transforms thethrust Intoa
vaultlng 5hili
vertical one. A~ ~allea ~rc-!1outant. --
pjnlWlc~ ••---•.-.......-.......-.....- .....
Asubordlnau vertlc3l structure
Unninztlllf In apyramid orspire,
. usedesp. In Gothic archltecturs to
add welght to a buttress pier.
~5 pier --_............-......
The partofapler that rises to take
the thrust ofaflying buttress.
Jmcrttument h .."-",_,,,,,,,,,,,,
Asloping topon a1uttress or  ..
projtctlng plerto shea rainwater.
no51ng
Aprojecting ed¥ofa buttress.
Ashaft that leaas tD the springerofa
rluorgroup ofriPs. either rising from tht:
grouna orfrom acarVel at agreater
height In theface ofthe nuSOMIj'.
corbel vault
Avault canstructed ~ carbehng caurses
of stone masonry. The resulting stepped
surfacecan Pe smoothed orcurvea. but
no arch action Is Incurred.
•
, I
l
l
l
L
~. J
,'lx
:.
I ~;I rrel v.ult
AVAult havl~ asemicircular cross
section. Also caRed cradle vault.
wtlMl vault, ¥Qgon vault.
groin
. conical vault
Avault havln~ acircular cross section
that Is largerat one end than the other.
rampant vault
Avault sprlngln~ from an abutment
higher at one side than at the other.
VAULT
annular vault
A barrel vault hJving acircular plan In
the shape of aring.
One of the curvea lines oredges alo~
which two Intersectl~ vaults meet.
~
-..-..' tripartite vault .
: Acompouna vault for covering a
" : triangular sp3u, formed by the
groin vault
Acompound vault formed by the
pe~nd1cu~r Intersection of two vautts.
forml~ arched ~aniscs ca!ltd
groins. Also catted~ V3u1;.
weD
A su:fau framtd Py the
ribs ofa ri~d V<lutt.-',
hn vault
.At Y3 wit com posedof ;a numbu of concave
cC1'1C1da1 sections, usually four, springing
from the corners of the vaulting
ccmpartmerrt.~~tedwlth ribs
rut radla~ from the springing like the
fr;;mewon: of. fan.
}--.- Intersectlon of three barrel vautts.
underpiUh vault
Acompound V3lJlt having acentral
vault Intersected Py vaults of lower
pitch. Also caned Welsh vault.
rwvault
Ava ult supporte.:f by or clecorated with
arched dlagonal ribs. Also. ribPed Yauft-.
...... q,uadrlpartrte vault
Arluvault divided Into four parts by
Intersectl~ dIagonal ribs.
sexpartite vault
A rll7vault divided Into six compartme:r.:s
by two d13gonal ribs and three tranSv'er:e
ribs.
rip
///
stilted vault
Acompound vault having ana~
transve~ vault springing from a
higher ~el SO that the rk:Iges are at
the same height.
key
The l:eystone at the crown ofan arch
orat the intersection of two or more
vaultl~ rips.•'"
/:
Arry of several archlike members suppor;ing
a vault at the groins. deflnlng tts distinct
surfaces ordlvtdlng these 5Urfaces Into
panels. ." , 
arc dou17~u --_.._..__...__.._.........•/ 

ArIl7 sp3nnlng the Iongltualnal axis of arib /
vault and dMdln~ ttInto !rays or . ........ '---,
compartments. Also called transver~ np, /:.....
tierceron •........_._..__.........-.__../
Arll7 springing from apoint of support on
either side of theoglves ortransverse rik
ofa rib vault. Alsocalle.::l IlTtermedlau np. ..~.//
fo~ret --.--.-.........--.-......-.....~/
Arib a~alnst a wall parallel to the
longitudinal axis of aribvault. Also calied
wall ril1.
cloister vault
Acompound vault formed IIyfour caves
meetlng along diagonal vertIcal planes.
Also called coved vault.
:---- rU:lge rib
Ahorizontal riP marking the crown
of avaufUng compartment.
.. ogive .
AriP crosslng acompartment ofarib
vault on adla¥nal. Also called
d~gon31 nb. 9ro1n riP.
-.,..
!
~'5
~..-.~",-.-':~ lieme
An ort13mental. knoblike projection.
as acarvea keystone at th~
Intersection ofogfve5.
pendant
A sculptured omam~nt suspended
from a roof truss. vault. or cemrTg.
Also calltd drop.
~
,tar vault
Avault having ribs. !Jemes, or
tlercerons arranged In astar·shaped
pattern. Also callea su/lar vauft-.
An ornamental vaulting rib other than
one springing from apier or a rldqe rib.
263
VISION
5~ht: the;let orpower of
sen5ing with the eyes.
&ee
r0 pac.elve with the eyes. The actof
seei"41s a~mlc and creativeprocess.
It 15 capaP-leof &ellveringa s~~. three-
dimensIOnal perctptlon of the II1OfIng.
changing 1m3¥swhich make upourvlsual
world.There are three steps In the swift
and sophls~ processing which
"'su~s In,t. ""'g"we see. --1
I
t.......-~ reuptlon: 0tJr eyes~ ~ergy .......,-...~ ~ ~ visu3Ifmures _
.................~ Irtferenu: on the b1sIstlftheseextracted
klputIn t.~~ form ofl!glrt. . a~ ~ from thisInput. fe3ture5. Infcmlces a~ made3boutourKOrld.
l1inocularmicn .-.._ ......- .....-.
The thru-dimenslonal stereoscopic
vision resuftl~ from ~ use of both
eyes at the ~~ tllM.
" ' ...
~:;;~~~~~~-;,-;,.;~.--.-....... - ........ -.--... ~ ""
Inwara tcfocus on .. ~&i point. ....."
.....
4~mmo~n .....,
The ~5 ~ which the hUlTl3n ~
changes focus for.ol1ects at various
dlstanus. im'01v1"4ch<a"¥5 In the
shape of the Cl"'jstalnoe lens. 1
h.':~_~:=~ng.'n-·---·--·---~
dlrectlon ofan ooserveaoljeaC<lusea !7y
achange In the position of the oUserver
that provides anewhoe ofsight.
m~rt1a1
Pertalnl~ to ~ of the spatial
relationships a:nong oop;tswft:hln the
fleklofv1slon. ~ -_._-_.._.-.....-.... ...............--_._..•
orientltfon
The ability to Wxm oneself In one's
environment .nth referenu tc time.
pbce.ana~
Yi5U4t literacy
The a~ to apprehend and
~ pictures. dl'2wfngs. or
ot~~IINges.
eye
AppreciativeordISCriminating VISU31
perception.
optical iII~icn - ..........- .........----f----r----<
Aperuptlon civisualsUmuh that
rep~t5 what Is perctlved In away
differentfrom tM way It Is In re3tlty.
264
,.
,,/
./
/0
,. '.
,. '.
,. ..
./  ..
fitld of vision _..
,.
,./
,.
The etltJre fe!a enalmt'3ssed ~ the
hum.an ~ wh~ It Is tnlnea In arry
par-xulirdirection. Also caned visual
fletd.
vi~~1 angle
The 3~lethat3n oPjector~1I
sulrtenas at*'epoint ofoI1semtlon.
USU3~ lI'IeasureJln mlnuteschrc.
visual cortex
The portion of the ure!n-al cortex of
the In-aln that recdves and processes
Impulses from the optic nerves.
visu.;12CUIty
Acuteness of v15Ion 25 determined
by 2 comparison wfth the nonnal
abillty to ~ certain ~ at a
g!Yen dlst.anee. IlSUaIly20 ft. (6 m).
df~m!nztJon
The a17i1ity or power tc see or m3ke
fine distinctions.
.1,pect
Appeal'3nce tc the human eyeor
mind.
j
, t
I
I
I
I
I
l
I
l
L
b
L
~
L
L
L
L
_J
carr.oufu¥
The ~~ of aform or ~ure that
occurs when Its ~pe. pattern.
texture, orcoIor.Itlon Is slmllarto that
of Its SlJrTOundlng field or l1ackground.
pro~n 
APl""Cf"!rty of perception In which the "
mind's ~ ~rches for meaning Irj •
Imagining .naprojectlng known or
familt3r l1T13geS onto the seemingly
4I~sshapesofa pattern until It
flnd.s 3 m3tch whIch rrt3l:es sense. This
atte:r1pt to COOIplete an Incomplete
paturn. or find ameaningful pattern
emp.-..-dkJ fn a largerone. Is In
4Iccord;;}nu with ~t we alre3dy know
or Ct-r'"'tCt to see.Once seen and
ur.derst<xJ. it IsdlfficuIt to not see
the~~.
tlimil4rity ~"""-'-"---'--'----'-""'-"-1
Aprcymyof perctptlon In which there
Is 3 wokncytogroup things which
h;we $O~.e visual ch3racterlstlc In
com."roCl""l.4IS aslml13rtty of shape. slz.e.
color. or'..etTtJtIon ordet3ll
•••••
•••••
.:....
•• •••••
•••••
.0.0.
.0•.0.
.oeo.
eoeoe
•••••
~~~Z:=~~::~hi~;;······1
m c~ tc¥ther.to the exclusion of _ . • e _
those which are further away.
ectrt.inurty • • • • •
A~ ofperception In which there
Is a~to group*~nts which
ccm:n~ a~ the same line or In the
same directlon. This 5e3rch for
contlr.:;ity of line and dIrection can also
lead to O<Jr pc:rceptlon of the simpler.
~~ft~~~·-····~··-·-····-··-······"··-I
thl~. f"t4irdless of how dIstant they
are. bJ1ng to the ~ptlon of aclass
ofo~ as Imlng uniform slz.e ana
constJ rrt colorand textureo
cto~ur-e
Ap~rtyof perception In which there
Is 3 t.enkncy for an open or Incomplete
fig ure to ~ seen as If It were aclosed
orcomplet.e and staVle form.
•. : -./
.' .I_,S
~;
• e
+
successive contrast
Aphenomenon of visual perception In
which Intense exposure to one color or
value leads to the sensation of Its
complement. which Is proJ~ted as an
afterimage on another color or surface
viewed Immedl3tely thereafter.
afterirrt3ge
Avisual sensation
that persists after
the stimulus that
caused tt Is no Io"¥r
operative or present.
VISION
perctption
The act or faculty of.pprehendlng by
means of the senses or of tr,., mind.
visual perception
An awareness derived Irj the visual
system In response to .on extern..ol
stimulus.
_..• figure-ground
Aproperty of perceptloo In which
there Is atendency to see parts of a
visual field 35 solid. welh:leflnea .
otjects standln9 out against.. less ~
distinct l7ackground. .
figure
Ashape or form. as determlnea t.y
OtItlllltS or exterior surf.lces.
ground
The rececl1n£j part ofavisual f1ekl
agaJhst which a~ure Is perceived.
Also called background.
!imultaneou! conU-a~
Aphenomenon ofvlSlUI perception In
which the stlmulatlon ofone coloror
value leads to the sen~n of Its
complement. which Is projected
Instanta~sly on ..Juxtaposed color
Of' value. Simultaneous contrast
Intenslfle5 camp1ementary colors"ana
shifts an..logous colors tcw3ra each
other's complementary hue. esp. when
theJuxtaposed colors are Similar In
value.When two colors ofcontrasting
value areJuxtaposed. the Itgfrtercolor
will deepen the darker War while the
darker color will lighten the lighterooe.
265
WALL
Any of vari0tJ5 upright coostructions ~(~-::
presenting ... continuous surfau ana /~J~
serving to enclose, asvide, or protect / I I
an area. ~
/' ~"
vearing wall .
Awall capal7le ofsupporting an Imposed
load. ~ from afloor orroofofaInJIWlng.
Also called load-bearinf wall •..- ...--.........-.:
nonl?eari~ wall
Awalt 5Up~ no load otherthan Its
own weight. Also called non-toad-
l1earf~ W31l-......~
carrtc11 •...~
Api!a~orslmltar
feature pro~ng from a
cornerof a Pulta!ng.
pil4s-ur .-........-.....-
A~Ilow rectangular fmurt projecting
from, w;lll ~ng aC3~ ana a !7ase
and arch~11y ~W as acolumn.
!
~edcolumn .-....-.--.-..........................
Acolumn l1uilt SO as to ~ truly or
see~1y ronJed to the)¥;ln before which
tts~nds.
retum wan _--.-o. _ • • • • • • • • • • • _ • • • • • • • • • - - •• - • • • • - . . . . . . . . . 0.· - ••••.••• ,
Ashort w;l1 perpendictJbr to the end of
aIongerwaL
pier
Avertlcals~ng structure. as a
seaIon of wad between two openIngsorone
supporting theendofan arch or hntel
~_____- ----0---- __________:
~';:r~'~a=~a~~~·~,·'·-·-·~·i-~--~-II;;~ir---
member to relieve Its load. AlsoC311ed E
rellevfn9 If'dt.
lirrtd ~...--........--.........--...-.... -.-..
A~msupportlng the ~h~abovea :
door or window openIng.
umpl1te
Ahorizontal timberor st.one set In 3 wall
to receive anddistribute the pressure of
agIrder orbam. as (Ner an opening.
Also. tempkt.
266
,-... -.........- .............~ exUricr wail
Awall formIng p3rt of the envelope ofa
InJlldIng. havl"9 one face exposed to the
w~theror to earth. Also c.11ed
exUmatwali.
,1"-"'." .•• Interior wall
.,/ Any wall withIn aInJlJalng. entirely
......./ surrounded by exterlor W4i 115.
0/ partition
An Irrt:erlor wall dlvldlng aroom or part of 3
Pulldlng Into separate areas.
~eari~ partition
An interior wall carrying ast-ructuralload.
Also called lo.1d-bearing partition.
non~ri~ partition
An Interior wall supporting no Ioaa other
t~n Its own weight. Also called non-load·
~nf p.1rtJtSon.
$creen
Amovap~ orfixed device. esp. a
framed COI15trtJctlon. deslgne4 to
divide. conce;al. or pror
- movaple partition
Apartltlcn cap;a17le of I1eIng moveato
different loC3tlons. Also called
demountaPla partttfon.
coping
I " Aflni5hlng or protective C<lp orCOUr56 to
i 3n exterfor W4lfl. usually sloped orcurved
 ....... to5heJ~.
 ........, ..- - spla~ copIng
 i .0-.--: .... ~addlecoping
;  Acoping that slopes to either sideof a
>..~ ./' :~~~ge. Also called ~ld1acked
...............-......... par..pet
Alow. protecUve walla~ the edge of.a
term.e, balcony, or roof. esp. th4t part
ofan exterior w;l1I, fire w.all orparty wall
that rises arove the roof.
..-.-.--..-..-,...--...• gal?1e W3U
- -.. AwaH ~rlng orcrowned byagal1ie,
--.'.-.. '.............-... pa~ment wan
party wall --.-...:
Awall ~Jointly ~ ccnt1guous
structures, ~ upon aline dlvIalng
two parcels ofI3nd. ~h ofwhich Is a
separate rt31 estate entity.
-- .. ---.-------~
Afoundatlon- wan tha"t encloses a
usaPle areaunderal7ui1dln~.
plinawall
Awan having no WIndows. doorways,
orother openInqs.
I
l
l
l
l
L
L
L
f
L~
-~ ,I...;.·f
't
11
l~
t~
m~hause
Ahouse constructea with askeletaI
framework of t1mrer. usually sheathed
wtth siding or shingles.
corner I7race _._...;
Adl3gonal bracelet Into studding to
reinforce the corner of aframe
structure.
let In
i 0 Insert Into the surface of a stud.
wall Of:,the tn:e as apermanent
addftlon.
comer post .....-.•--.--------------- .----..
An ;asseml7ly of two orthru studs
splW togetherat the Intersection
of two frarnecl walls to provide a
nailing sumu for flnlsh materials.
~cklng
AnJrTOW wood strip flxed to the
cornerof afrarnecl paMlon to
provlk anallln~ surface for flnlsh
materials.
firestcp -------.-----.--------------'.
ArlUterial or member !roUt Into a 
tlvlldl~ fl.lme to I1lbcl: aCOTlce31ed .
hollow space through which aflre ".
might sp~ from one part of the
!ro11.d1M§ to another.
ledgerWip
Apleu attached to the face of a
Deam at the bottom as a support
for the ends ofjoists.
M17Pon ~_ ..________._ ------.---.----. -.__.J'-
Athin. h~ I;Io3rd let Into
studdlng to carry the ends of
joists. Also called ledger. rippand.
rIPPon strip.
balloon frame ..-- --...-..--'-' _
.....
Awooden !rolldl"4 frame having studs
that rise the fun height of the frame
from the sIR pl3te to the roof piate_
wlthjolsts nailed to the studs and
supported by sills or by ribbons let
Into the studs.
plate 1110cking
Any ofvarious hOrizontal tlml:>ers laid
flat across the headsofstudding or
upon floors to supportJOists. rafters.
or studs at or near their ends.
wall plate
Anumberofsmall wood pieces
Inserted to space.join. or reinforce
memrers of a!rolldlng frame. fill the
spaces between them. or provrac a
nailing surface for finish materials.
Ahorizontal member built Into or laid
along the top ofa wall to support and
distribute the load fromjoists or
rafters. Also called raising plate.
top plate ~- ....---.....-.......-....-.-.......------
The uppermost horizontal meml:>erofa
framed wall on whichjoists orrafters
rest.
/'
anchorbolt •... --.--...~.. ~~~~~~
Any of various rods or rolts "..•..• E
;'L:··:·
~. ."
. ,.
~. ..".'
. -'
.. ·4:
embedded In masonry or concrete
to hold. secure. or support a
structural member.
sill sealer ......-..-.-..-.....-......-.-.-.--;-~~.~
Areslhent, ftln-ous material placea J
~etween asliland afoundation wall /f"'.
to reduce alrlnflltratlon. ,/
termfU shield~···-···..·-·······./
Sheet metallnstal1ed atop a
foundation wall or around pipes to
prevent the passage of termites
.~ .
- b '_.
WALL
~-......_.. stud wall
Awan 01' partition fr.lmeJ wtth stuas
and factd wtth sheathing. siding.
wallboard, or plasterworX. Also caW
stud partition.
.'" stud
Any of aseriesof slender. upright
memrers ofwood or tne't31 fonnlng the
structural frame of awall or p-artltlon.
-... cripple
Any framing member chat Is shorter
chan usual. as astud above adoor
opening or relow awindow sill
.-- center--to-center €
From the centerlineof one eIe:r.ent.
member. orpart to the centerline of
the next. Also callta on CCT'tu.
.... $OkpLtu
The :>attom htficntJImemper of a
ftamed wall upon which arow of studs
Is erected. Also called shoe. sole.
soIeplece.
platform frame
Awooden !rolldlng fr.lIne h3vir..J studs
only one story high. rt-gardless of the
stories ~ullt. each story restl~ on the
top plates of the st.ory ~Iow or on the
sill plates of the four-dation waft Also
called wc:sUrn frame.
....-.-...... ponyw~1I
Adwarf wall for sUPr«t1"9 fIo?,.joists.
dw~rfwall
Awall less than afullstor)' In hd.3ht.
5111
The lowest horizontal mem~ of a
frame struGture. resting on ana
anchored to afourWtlon wart. Also
called mudsill. sill ptru.
.-.....• l1ox,iII
AslH for atlvlldlng frame. composeJ of
aplate resting on afoundation l'f311 and
ajoist or header at the outertd¥of
the pl3te. as well as 3 soleplm for
studs resting either dlrectly on :he
joists or on the rOu.,Jh flooring.
l,fII
Aslll for atlvllcllng fr.lme. composed of
aplate resting on afoundatlo:! ""nand
a10lst or header at the outer~ of
the plate
267
WALL
!Siding
Awe3tMrproof material as shingles.
boards. or units of sheet ~l used
for sarf.ulng theexteriorwalls of•
mme!7ulldlng.
comer 1?oard
Aroard against which siding Is fIt1;ed at
rake
AbOard or molding placed along the
sloping sides ofagal7le to cover the
ends of the siding.......''-:..
5huthing
Arough covering of Poards. plywood. or
other panel materials appW to aframe
structure to serv~ as abase for siding.
flooring. or roofing.
.- 5tructur21&huthlng
the comerofafr3me structure. ~............._....;.
Sheathing capal7le of bracing the plane of
aframed wall or roof.
~att.en
ASlmfll70ard orstripofwood used for
varloos uulldlng purposes. as tocover
joints ~ mrds. support shingles or
rooflng tiles. Of' provide _Da5e for 13~!ng.
l10ard 3nd l1atten
Siding consisting ofwkie boards or
pljwood sheets set vertically wtth Putt
joints covered by u.ttens.
colonbl ~ing
5JdJil! composed of plain. square-edged
twrds bld horlzontaRy so that the
uppero.'erlaps the one PeIow.
PJ~
Aseries ofpancls•.esp. decorative wood
panels.joIned In acontinuous surface.
surround
t
I·
. I '.1' i
..... di~onaI5he3thjng
Asheathing of Doards applied diagonally
for lateral strength.
i10arding
Astructure ofboards. asforsheath~
or su!riloorlng.
.... ~uifdjng paper
Artyofvarious papers. felts. or slmlbr
sheet material used In construction to
prevent the pass3g6 of airor motsture.
vertica "QI"9 ~..._...l
Siding consisting of matched
roards applied vertically.
i ' OO
cl3pboard
! Along. thin board with one ed~e thlcl::erthan
the other.laki horizontallyas bevel slJ1ng.
shiplap
Aflush. overiapplngJolnt.as aral7ret.
Petween two boardsJoined edgeto~.
Also. the boardingjoined wtth such
O'IerlapplngJolnts. "
bevel siding
Siding composed of taperea Ltoards. as
clapboards. laid horizontally with the
thicker loweredge ofeach board
O'Ierlappln!1 the thinnerupperedge ofthe
Deard uelow It. Alsocalled lap skiing.
flLl5h panel
Apanel having 3 surface In tht same
plane as tfie surrounding frame.
o
Dolly Y2rden siding
Bevel staln~ r30reted a~ng the lower
edge to recelve the upperedge of the
board relow It.
r.I~paMI
AF'nel h3vlng acenter portion thlcl:er
than theedges or projecting above the
surrounding fume. Also called fielded
pa~l.
)/
drop siding
Siding composed of boards narrowed 3 long
the upperedges to fit Into ral*ets or
grooves In ~ lower ~s.lald
horizontally with their uacks flat 3g3lnst
the sheathing or studs ofthe w;;r/t Also
called novelty sklln~. I"UstJc skiing.
sunkpaMI
Apanel h3v1ng asumce recessed Pelow
the surrounding frame Of'surface.
An enclrclklg bo de
areaOf' r r.~.............. ~.;.. I
portion. Section. ordfvlslon
.. mlnscot.celbng orc:Ioor. esp.
S41rfacesunk beloworI'2tsea
the surrounding area. or
panel
A~
ohwa
ofaff'J
a~
~Iosed byam~ or rorder. -_..........
atwood paneling. esp. when
NJln$COt
~ facin4
:overing
vall.
the lowerportion ofan Interior
.....
...-
n ~ ......- ..........................
"ullio
, vertical memberdividing the panels In
-a11l5COt~.
lYe/'?'rtIon ofan Interior wall
ado
1elo
ilenfa
,eupper
'3ilpa
ced ortre3ted dlfferenttyfrom
section. as with paneling or
~.
R'''-'-
I .
I
I
!
.....'1".. - ...... -
.-'
.'
..-'
~
=
',-
~ID
--
. . J
me1
r..·_·..-..·....·_....·......• flU5h ~
a~ APe3dhavlngltsoutersurfaceatt:hc
same level as the adjoining sumces.
1" ... - ........................ cock~a
1 Abead that projects aDove or Deyond the
; adjoining surfaces.
i ;0...._................. Culrk .
• Agcoov.....cot<,ng~""kling' !><1J ...
ffifu X~ :::alng from adJmnfng'members or
:..................... Polutlon
./ Araised molding for framing apanel.
Oooli'r'ay. orfireplace. esp. when the
mutlng surfaces are at different levels.
Also.lrilectlcn.
j
..
I
Il;
L
L
L
I
L
L
I
u
3r1Chor -' _...;'
Arry of V3rlous rret.ll ~ used In
curt.;aln wan constructlon to secure a
fr.1~ Of' pane! to ~ bultdlng structureo
usually aflo~ for 3dJustlT'.ent In three
dlmenslons. ~'-".
ttnltsystem
AClf't.4ln Iv.ifi system conslsUng of
pre3sserrWW. fr3~ wan units
.....hlch IT!3'j be pregf3zed or glazed
3f+..er InstJlI.aUon.
pand system .-._ ............._
..........' ...................../
A cu-rt..ln waH system conslstlng of
pm'Dr1'I1td met.t cut stone, precast
con.cme. or p3ndluJ t>rlck wall units.
l'rhIch rt13Y be preglned or gl.azeJ after
fn~
...1tatlon.
column·ccver-ana-spandrel system1
II curtJln w311 systaTlln which vlSlon·glass !
lls~m~les liM 5~Mrd units are
5wpporUd l7y 5f13nJrel beams between
~~ columns cI.Jd with caver sections
WALL
.-"-" curtain wall
..- ,. An exterfor wall supported wholly by
-r---
l
g
-
irt
--,.-.,.-.-......,.,..,......,..··.,.".:.
..,...,
...',.-..:.,....-~,
......,.,:-T:~.:~-.:.,..:...,...:.J,...:...:~:"""
".,·'M~""'··.-r
..·~·P'!';rr~'I!V' t-) ~~~ht~;:;I0:;~~~~~;~:~ .
Ahortzontal member spanning welg t ana wlna aaS.
retween exteriorcolumns to support t----7
wall sheathing or cla-dd1ng. •.._..........'-"-'.
mng ~..~.....................................--.-........-_
Anoncombustl~ material placed In an . -.
opening to p~t the p3SS3ge offlre, .... t--}
~m. ~
r---~~--.~.~,,~.~
.. :~.-:~.;.~
...~:;7~.~
..~
..•
~
..~{~~:~
..~~-~a~'~~~~~.~~~
3S uetween acurtain wanand aspandrel • ~ 1
__._;. ~~ JIll
~p:ea":r:~:n~~ b~~~i~·~~·....-..····· ~ ............~ ~~~~:I~~area In a multlstor:t frame
and supporting tneotIter edge ofa lnJlidlng. between the sill of" window on
floor or roof. one level and the head ofawlnaow
backup wall Immediately below. Also, spandril.
An assemlny of materials used behlna
acurtain wall to provkle the r~ulr'ed
~ree offire-resistance.••.•..- .._-...........--~ ~
~
stlck s)"tem
Acurtain wan system In which tuuuf3r
metal mullions and ralls are assembled
pJeci by pleuon-site to frame VIsion
glass and spandrel units.
.--.......... spandrelgl1s5
An opaque glass for conceahng the
structuralelements In curtain wall
ccnstnJCtlon. proJucea byfusJrIgaceramic
frIt tothe Intenorsurf2Ce oftempered or
heat·strengthened glass.
unlt-3nd-mulllon synem
Acurtain wan system In which one-or
two·stor)'·hlgh mullionsare Installed
l7efore pre3s5emblea wall units are
lowered Into placebehind the mullions.
The framed wall units may Pe preglazed
or glazed after Installation.
269
WALL
ret.1lning W311
Aw.noftre3t.e.a tlml1er. I!i3S0flr)'. or
~ for holdlng In place a1n35S of
earth. Arebln~ w.1I C211 f.l1I by
overtumlng. s/Ia'In~ orseuRng. Also
C411ea ~5t waR.
5urc!lJrge
An addltlooal or excessive load or
Irorden. 35 that ofthe earth above the
b<el ofthe top of aretalnflo.g wall....._- .______.
toe··---·"!'
Theforwa ra. lower tip of the base ofa
footing orretaining wall extended to give
!?roader Pealing and greaUr
-......
----~
~rrtiJever W3n ----------------',
Art't4lnlng ~ of reinforced conc~ -.._------.
"''''...
or re!rrforcea ~ masonry.
C4ntlievmd from ana securely tied to 3
spre3d footing th3t Is shaped to resist
overturning aM sl1J1ng.
cn17Uing -.-...___ .._.___________ .__ .__......
A system of Cli~ for ret.1lnlng earth or
sora ~..lld1ng ~ng lT1CY'edorhavlng Its
;c·Hldatlon rdnJltt. Also C41ieJ
c.r.bworl
;n'b
, cellulJrn.~of.red
:':mbers.or s~ orconcrete rnemPer5
;;f $Imlbrform.. asseml:>led In laj'ers at
...;~ht angles. often filled wtth earth or
stones ;rod used In theconstroctlon of
'':lI.maatlons .nd retaining walls.
.3~ion ---......;
p Ivanlud wire b.sl:et filled with
.0f1es and used In coostructlng an
Jt ment or retaining structure.
o
de3dm.1n
A log. concret.e Plock. or similar mass
uurled In ~ ground as an al1Ghor.
rlprap
A layer of ~en stones thrown
together Irregularlyon an emban~ment
slope to pm-cnt erosion.
revet
fo face asloping surface or
emuankment wIth stone or other
material.
revetment
A facing of masonry orother sultaple
material for protecting an
empankment against erosion.
.r---__.• ccunterfort
...- Atriangular-shaped cross waU tying a
concrete ret.olnlng '(311 to Its Dase at
regular Intervals. built on the s~ of
the I!13terial to be retained In Of~r to
stiffen the vertical slap and add weight
to the Dase.
i7atter
Al:r.ichard s~ of the face
ofa wall as It rises.
!
gfMty wall .-------j
ANsonryorconcret" retaining waH
that resists overturning and sI1dl~ ~
the sheer weight ana YOlume offts ctilss.
'--.--.--.-...-.• ~inwali
Atype of gravity retaining wall for.r.ed
loy stJcklng modular. interlocking
prec.ast concrete units and filling the
voids with crushed stone or gravel.
Also called cellular wall
- - - ------------ ---~- ---. t.1rth tle17ack wall
- - - - - - - Aretaining waif consfstl~ of precast
- - - - - -- concrete panels fastened to long
_ _ _____ gatvanlzed steel str.lps extending Into
a compacted soil UacHlll
~-
-
~==::::=::::=------ --j
c~lhe~ht
The maxImum height at which 3
vertlcal cut In 3 cohesive soil will
sbna wlU,CtJt shoring.
;-------
I
/
/ The maximum sIop6. rne3surea In
/
/
/
. . &eg~ from the horizontal. at whk;J,
[
Jngleufre~
/ .......
/
',___ • soli binder
Aplant that prevents or Inhlplts
erosion Dy providing aground cover
and forming adense network of
roots that hold the soil.
. _--.--' loose solid mate~1 wll remain In
..•.•-- place without slidlnq. .
angle of ,ride
The minimum slope. measured In
deg~ from the horlzont.1l at wh!ch
loose solid material will begin to silk
orflow.
soil5ta17i1iur
Achemical admixture for
malnt3lnlng or Increasing the
St3!1lnty of a soli mass.
I
iI
J
,
j
l
l
l
l
L
L
L
L
L
•
window IUIit
AlI'taC!8bctureJassem17ti of amme.
S.ilsh. ~ and necessary hardware.
~toftta wlndowopenlng. "',,_
sa5h
The fhe.d or I1OV3~ mmeworX
ofa ~ordoorln which
panes 01 ~l2ss are set. -----".
---
~ick .,kI~ ---...:.
',,-.
Awood ~ COt'eriIlg the g.3p
~ a~rne or wlnao,.; f,..me
;and th6 msonry reveal Into which the
m~ Is set. Also c;alled staff peaa.
~d~~
The ~ CNer. window ~n~ Of" a
window frame
The fixed mmeofaWindow. consisting
oftwoJam17s.• head. and asill.---'1
.....
.,.....
~ Jna In3sonrywalL ----..--------- ---.-------
drip ~-----T'-----,,;::-,v---rr-----rr
Arry of vr.ious t:b1ces for sr.eddl~
,..fnwrtef so as to teep It from running
down aIf3ll orhlllng onto the slfl of an
~l~
drip ~ ~-----.------- --'.--...---- -'-'-' .. -.. .,~
A~ ~ CNer an exterior
dooror~opcnl~ forc3tchl~ and
~ t7lnwater.
~a~ ..---.----.-.... -------------.--... ---
A~ $UfTOUnd1~ the tnm at the
top arJ skksof adcor or window.
wi~ll __..__....u _ u _____ . . _______ -·····-·~
The hor!zx;m.ai mtn1Per at the 173se of a - __
~
_ _=::.._ _ _li.I-..L...<::.~
winDow ~ning. esp. the edqe for-mea Py -
Sl.Ch a mnboer.
~h
~ ~ SlJrf.ceof a!1ulldlng memrer.
as a~ orcoplng. slopeJ to shed
r.afnWlter. AJsoC2lea we.tthering.•-----.-----.--.----- .. -... ---..---. -'_.
chuk~
A~rtXYe M or fonned on the ur.derslJe
ofa slior otherextulor horizontJf r-_L,""'___
rr.ember to prevent the C3plllary flow of I
rJlnwaterto 3 wall ~.---.------. -'---..-...- .---. ----..... -.......-. _t/
>,
~up.,ilI--..----.-.---------·--·--'--···--·-"--·-"···-·---· .-.-.-_.' '1
An ~lslU fttttd to 3 window
fnme to oUSt r.J1nw;rter to drip farther
3W1'j m::.n.. w;iR surface. Also C3lled sill
drip maldif1~.
WIND,OW
dressing
The ornamental detail ofa Dulldlng.
esp. the molded framework around
door and wIndow openlngs_
An opening in the wall ofapuflding
for admitting light and air.usually
fitted with aframe In which are
set operapIe sashes containing
panes of glass.
pane ~-..~
One of the divisions of awindowordoor.
conSistIng of asingle unit of glass set In
aframe_
muntin
A raDDetea It!emDerfor holding the ~es
of windowpanes within a sash. Also called
glazing l1ar. sash bar. '1
omOOE]
/
-~ mullion
Avertical rnemDer 17~een the lights
ofa window.
~-- ..--..-~ light
Amediumfor admItting light. as one·
compartment of. window or window
sash. Also called day_
slip sill
A5111 cut to fit !1e-tween tMJam17s ofa
w:ndow ordoor opening.
.r:---------------. lug sill
./ A. sill extend)n!! !1eyond awindowcrdcor
./ openln!! and Irollt Into theJaml7s.
r--"-"---' horn
/ That part of apmb extending a!1ove the
.' head of adooror window frame. or the
horizontal extension of awlndowslll
~nd theJamD.
-- - ---.-...--------------. 5"Wol
The Interior 5111 of a window.
'--....... -.-- ----- .. -- -. apron
Aflat piece of trim Immediately Deneath
the stool of awindow. Also called skirt.
b4lck
The area of Interior wall. usually paneled.
between a windowsill and the floor.
271
WINDOW
doub~hunt wi~w
Awfn&ow hMtftwo vertically sl1t.f1ng
~. ~ .. sepal'2te grooves or,trads
anaclosll4J ciffererrt'part of the wfndow.
hung sash ...- ......•.•.- ..- ......... _........ .
AvertlcalJ:t std1~ window S3Sh balanced
by :iI cou~ht orapretenslonea
spring on ~ side 50 ~ ~ c.n Pt
raised ex Icwertd wtt:h reb~ Itttfe
~ort. Alsocalled lralancea 5.1s-h.
meett~ raI-.....- ..-.--..-.--..-
The r.:11 ofeadI s.sIt In:il dou~hu~
wlnaowM ~ n t1Ie I'2Ifofthe
other whe-a ~ window ~closed.
~fm
Afastening 011 the II1eetIng 1"211 ofone
sash which swings .cross to the meetlng
I
. - ..
1
.- .-..
___J
r
rail ofancPlersash and engages with a
spuronIt.AIsoc.lledsashb~.~······-····-····-···-~~__
checl: ran
Ameeting raM. esp.one closl~ lIgJlnsta
~ rad wtth ad1agon31 or
ra~ overlap....--•.----...•..........
pl.1in ran
Ameetl~ ral equal In thJ§:ness to the
other mem~ of the frame.
r------.-
I I
Pcx-~dwindow - ..................... ,....~ 
Adoutne-h~ window constructed with a I I
pocket In ~ he3d.1rTf.o which oneor both
:;.;shes caR 1'355 to Increase the opening i
iNallaPlefor ~tlbtlon.
OJ
I
drop window - ..•-......- ........- ..........---1
Awindow c.oastructeJ with apoclet I I
llelow the sJl.lnto Mitch asash can slide L _______.J
t.? Increase ~open~ ..vallable for
venUbtlon.
horizo~ny eUd~ window
Awindow M1n~ too or InOrC 53shes. of
whlch at ~ one sI1Jes along horizontal
gl'OO'l'CS(X tracks.
,ltaing ,a~ ........._
....._.c .................... _
A52sh thit opens Pi' movIl1!J horizontally
alo"9 gl"OOr'cs or tncl:s at the top and
rottom of ~ wlndow fram~
H2
--7
-
'"
/
i
r·....·..·..--_... yoke
rT'>....-r----f-,..,. AhorlzontJl p~ fonnl~ the t.?p of a
frame for adouble·hung window.
,top
Astrip of molding along the InslM of
wlndow frame for holdlll!J .1 sl1dl~ 52sh. or
~alnst which ;1 sash cioStS. Also called
sash step. window step.
.._..... ~top bead
Astrip of molding along the Inslde of a
window fl"3me for hoki1~ aslld1n!J sash.
~.. - .._..... parting ~
Astrip of molding u~ on euh side of.ll
frame ofadou~hu~ window to keep tM
upperand lower sashes .11lr-1rt when raised
or Iowere4 Also c.lled p~rtJ~ strip.
-..-- Wind ca~l~
The ro~h casl~ ofaI10x frame to which
trim Is secured.
.--.-. Pox frame
Awlnaow frame h3vlng hollow'pmbs or
mull10ns for S3sh weights.
.... hanging ~tIle
Astile In 3 window frame against which a
wlndow sash sl1d~, Also called pulley
stk.
..- ~a,h weight
Acylindrical c.;sl~ of Iron (X Ie3J used 35 3
coonterwelgfit to balaneea vertlcafly s~
window sash.
""hline
Arope (~sh cord) orch.ln (sash awn)
forconnectl~ avertically snalng wlndow
sash with 3 counterweight.
~a~h rii7Pon
Astrip Of~I or aluminum alloj used In
place ofasash cord to connect .. vertlcally
sliding window sash with acounterweight.
pocketpleu
Aremovable part of a113"91"9 stile
permlttl~ aCUS5 to Insert.ll sash weight
or to re~ace the sash I1ne.
~ingle-hung window
Aw1naow havin9 two 52shes. of whlen
onlyonelslT'oOV3~
vertJcally sliding window
Awlndow havltlf one or more sasl;es
which move vertlc.11yand.are held In
various open positions by means of
friction or 3 ratchet &M;e Inste3a of
by 5.11sh 17alancesorcounterweights.
ea'hi7alanu
Aspring·loat.feJ device used In place of
sash weights to cou~lance 3
vertically slldl~ window sash. Also
cal~ spring l1atanu.
I I
I
1
t
l
L
l
l
L
L
f
t~
~.-
,:
extension ~ent hinge
A ~e for an outward·swlnglng
C35tment wlnam.located to allow
ck:anl~ froD1 the Insrde when the
wlnaowlsopen.
~ent~
AV3rfor hoId1~ acastment In arry of
sevml ~n positions.
~ver oper;ator
Agearless device for operatlng a
ca5tment and hokllng It In an open
~
~m handles ~--..-..- ......-.....-.-.
Ah;an& th<at Iocl::s 3 hinged sash In a
closeJ posftlon by wedging It against a
keeper pl3~ Also called lockIng
~n.k.
l"O'too~r ....---...-.-....-./
ACr3nk·drlYtn worm drive for opening
and c~~ awning windows. casement
windows. 3nd,lJlousles.
• ;~4"
wicket scr-een _._.._.-........_ ....."'''-'''.
Asman slla'l~ or hinged portion of a
13rg~ SC/Ull providing access for
operstl"9 awlnJew sash.
pivoted wind<>w
' I
 /
' /
' I
 I
" I
/'-
I '
I '
/ '
I '
I '
A~ hJving a sash that rotates 90°
Of ~"arouta vertlc31 or horizontal axis
at or ~r Its center, used In air·
condltloned multistory or h41h·rI$e
!lu1tdl~s and operaW onlyforc!eanlng.
FI1Jin~ar.ce. or emergency ventll3tlon.
J.a~ie window
Awindow h~ horizontal glass or wood
louvers which pivot simultaneously In a
co:nl!"lOf1 mire.useaprlmarily In mild
cnmate5 to control ventllatton and to cut
off visibility from the ootslde.
J;alcu5~
A ~Ind or shutter having horizontal slats
that can ~ 6dJusted to admit l41ht and
air ~t excluck sun and r3ln.
shielding ~~Ie --....--
The angle Pd.ow which something can be
sten when viewed through alouver.
o
WINDOW
0
······-···-·-··········----··-1 ~~~h!sashofawlnJowthatdoesnot
op~n for ventll3Uoo. Also called fixed sash.
~-...- ..-.~ oper;a;oe window
~ AwlrJow having asash that rruy ~ opened
: for vtMtllatlol1.
V
-----................-....----.-..-.--. ca~ment window
I
/
/ ,
'


,
,-
/
,

/
/
/
/
/
I
/
/
~-

-

 I




!/
/1
/
- IL_1J
i.
t
ti tj
Awlndcw with at ~st one casement, often
used In comblnatlon wtth flxecll41hts.
:-..- CJ~ment
. Awindow sash opening on hinges gener311y
attached to "the up~ht sik of Its frame.
folding casement
Apairof casements with r3bbeted meeting
Stles, hung In aframe having roO multlon.
1--- "'~ing stile
The stlIe ofawln.:low frame from which a
C3sementIs hung.
~...- meeti"9 stne
Oneofthrr"03 stiles In ap3lrof
castrr.en~
..--.-..~ French winaow
.. Ap3/r ofca~nt windows extending to
the fC()r and strVing as adoorway, esp.
from aroom to ~n outside porch or temlce.
cremeI'M ~tt
Avmlcall10tt used on aFrench window or
the tit, consls~ of two rods moved by at
abob mechanism and extending Into
pocUts In the head and sill of theopening
to prcv1Je asecure fastening. Also,
cremone bolt.
...-_....- l:Ia!conet
Ar3inng or!7alvstrade projecting slightly
~ the pla~ ofawindow and reaching
to the fuor. having the appe3r.l nee ofa
!7alcony whe.n the window Is fully open. Also.
l>a~.
I ,
II 


'
'
/
I
/
I
I
hopptr window
Awlndcw having one or mort sashes
swl~lng Inward on hinges genmlly
att.c~ on the rottom. Also called
hospft.al window.
...-..~ hcppt1' light
Awindow fl9ht hir1¥d on the bottom and
swinging Inward. Also called hospital
light.
.- ......, hopper
One of the triangular draft lrarrlers on
each side of ahqpu light.
273
WINDOW
~
'.::~::.:":'......
-"'-:"~:/'.::~...!..
',. ~ ~ .' :,', .,
:. ......::.J .
picture window .
It ~rge. usually ftxta slngie-pane window.
p~ toframe an aUQctlve exterior view.
~aywindow
It wlrWw or series ofwlnJows projectl~
OIJ'tWardfrom the main ¥;inofa building
anQ forming aPayor alcove Inaroom
within. esp. one iuvlng Its ownfoundation;
windowseat - ...-.......-......_.._ ......,
It se.7t built Into arecess ofawindow
::;~:---~
~nt ~ay window
It bay window having canted sides.
~wfndow
It Ir.1ywindow havl~ a roundea projection.
DBDD
DOli
DCd5;J~~ if~':' ~~~
DODBBB=
DOOOO' -
window wall
Anonbearlng waR composed primarily of
vertical and ho~nt.1 framing members
containing acomPination offlxeJ lights
and operating sashes.
dormer window ~.- ....-.........-..............- .. ,.
Avertblwlndow In a projection Pulit out
from aslopl~ roof. Also called I~m.
~Iao~r --_._......-.......
Avertlc41 wIndow set Dele... the line of a
slopea roof.
luc.ame
A~ Window In aroof or spire.
oxeye _....c................_ ....... _ ............_ ... .
AGCmparaUvely 5m3"rounaoroval
window. as In ~ frieze ordormer. AlSo
called odl-de-Poeuf.
hocdmold
Aproject1ng moldl~ overthe arch
of ~ window or&ocr. esp. In Intero!'
wort. Also. hood mokJi"f.
P~"adi.1n motif
AwIndow or door-way In the form of a
round·headed archwayfbnke& on either
sk:le by narrowercomp3rtments. the side
compartments Peing ~ppeQ with
ent4PIatures on which the arch of the
centnl compartment rests. Also calkJ
5~j.an motlf. Venttlan motlf.
274
I
!
t· I...J;! I
riLWn window
Ahorizontal b-and of wlnaaws,
seraraW only Py mullions.
V-
I t
clere5tory
Aportion of211 Interior risl~ above
adjacent rooftops and having Windows
admitting d;iyIlght to the Interior; Also.
cIe.1rstcr:t.
.r- ~ Porrowed I~ht
Awtnaow ~nlng In an Interior part-mon
allowing Ilgh1 to De transmltted from one
space to another.
.- .... pa5'-thr-o~h
Awlnaowill:e opening In awall or partition
through which ~I~s may be passed.'as
Petween 3 kitchen and adining room.
-_...... 9a~1e wir.dow
Awlnaow In C(' under 3 !pine.
'-"-1'---' oriel
~~~~. A!?ay window supporteJ from klow
awnin.g
A~ COfer ofC3r1V3S or other materiaI
exterI.11~ In front of a&oorvay or window.
or0Vet' adecl:. to pror1de ~ from
the~" or rain.
Pyco,wls or ~r;;ckets.
me,hrePu-jeh
An orielse~ Py lanluwort.
through which the air rr.zy araw freely
while the Inter'«Is COI1Ce3Iea from view.
found along tr., streets ofCaIro3nd
othertowns ofUIe Levant. Also,
""sh~.lNsh~h.
IychM5COpe
A51114111 window sa low In the W311 ofII
rntdIeval church. pm11tt1"'9 the Interior
to ~ seen fmn theoutska Also callea
~ewlr.dcw.
!~-... - ... -.- 5Gretn
. Aframe hoIdi~ aflne ~h of Mal
or fiberglass. pbcedIn aWindow or
L window pox
A!;.ox ksi.3nea to hold sol! for grtWlng
plants at or on 3Windowsill.
&oorway. orarouna apon;h to admit.
aIr ~ut excluk l!Isects.
'" storm window
Asupplementary sash pl3cea OIJts1ae
an existIng window as additional
protection a!pinst severe weather.
Alsocalled st.cnn u5h.
com~nat!on window
. Awindow equl~ with'
InUrchange3rte serun and grass
sections for summer ana wlnter u~.
1
L
L
; !
I
iLl
L
L
L
L·
L
L
L
L
I
i
I.
I
plate tr~cery
EJrly Gothic tracery funned of
pierud slobs of stone set on ~e.
the des~n ~"9ln the shape and
dlsp<l$1'tlcn of theopenings. Also
carted pafor3Udtracery.
par tracery ...-_...._--.-...........................
Gothic meet)' tlutsucceeded plate
mcery. conslstl~ of mok!ea stone
mul110ns that divide Into various branching
emnts which flU the wIndow head.
ret.icuL1td tr~ry •.-.--.-_............-
Gothic tracery conslstlng mainly of a
nttlii:e arra~ement of rtpt:ated
~~metric31 ~ures. AlsG called net
tracery.
g~metric tracery
Gothic tracery characterized by apattern
of geometric sJ,apes. as circles 3nd foils.
fon ~--- .------------------.-----.- ----.,,--..--,
Arry of several arcs orI'Oilncled spaces' '"
aMdtd by cusps and bngent to the Interior
ofalargerarc.;;Is ofan arch or circle.
foliatlon
OrTt41rnentatlon ofan archway. Window. or
otheropening wtth foils or representations
offol13ge.
cu,p ~ .. ---- ...... ---- ..---- ....... ---
ApoInteJ p~ecUon formed by two
IntersectIng arcs. used esp. to vary the
Mhnes of ~ or to form foils.
cu'pkUtlon
Decoratlo11 wIth cusps
trefoil
An amngement of three foils
dIvided by cusps and radIating
from acommon center.

ITWUc~ ~
Adaggerllkt motH'found esp. In
Gothic mcery. forrnea by elliptical
and agee curves. .
an~ellight .•- ..--.---------_.
Atrlangu13r 119htIn a
Goth1c window.fOl"11'1ed by
the arch of the Window. an
arch ofa!ewer tier of
mctr)'. ana 3 mullloo of
an upper tier of tracery.
perpendiculartracery
Predomirt3ntly vertlwl
Gothic tracery havfng
mullions rising to ~
curve of the arch. crossed
at Intervals by horizontal
transolT1:S. Also caled
rectni~~ury.
q,uatrefoil
An orn3rr.ent com~ of four foils.
divided by cusps and radIating from a
comlT1Ol1 center.
WINDOW
tracery
Om31T'.eRtalwoti: of branchllke lines,
esp. the lacyopenwork In the upper
part of aGothic window.
cu,..,,1in~r tncery
Gothic tracery charactertzea by a
p-attem ofilTegular,l1cldlycurved
forms. Also called flowing tracery.
cina.udoil
Adesl<:Jn composed of five foils. clivlkd i;;t
cusps and radiating from acommon ce~~.
rnutufoil
HaYi,19 more than five foils.
275
WOOD
The tc~h. fil7rous cellular
su~tance th.-t makes up most
ofthe sUms anal?l'3nches of
trees ~eneath tU ~rt
~.ilr1: .-..------.-------.-----..--.-- -'--"'-'--'--'-'.
The to~h extemal coverl~ ofawoody '.
sttm.l7ranch. or root. composed ofa nvlng
In~ layer caltea phloem and an outer Dan:
ofcorty. dead tIssue.
.-~:h":f'll~~~ ~ --------"-------------.---.----.-.-.--..-
A~oftls5ue th3t C3rr1eS food from U,e
~ to the growing parts ofatree. Also .
calW InMrpark.
~m9jum
A_t;hln ~ of reproductive tlssue ~
~~~: '..4,:..:1 ~ phloem aM xylem. which produces new .
~i£"It;g ph~ on the outslJe and newxylem on the
In~ ofstems.l7ranches. anaroots..
~wood ~---- ---:------ --- --------.~-.•:',..•;.-••-
The wood from .; can!fer. The term Is not
JescrfptlYeof the actual softr.ess of the
wood.
conifer
Anyof various predomlnantry evergreen.
~-17ear.~ trees. as pine. fir. hemlock.
ana spruce.
t:VeT3~
Having fol!a¥ that remains grun and
functtonal throughout the ye:Jr or
th~h mort: than one 9ro~ ~son.
crown •.--.-...-------.-.-------...--_..!
The ~ves and living
Pranchesofatree.
tnmk
The main stem ofatree
apartfrom Its mnches
and roots. ~
hardwood ....----------------.---.--
The wood from a Imnd·le3vea f.owerlng
~ee, as cherry, maple, or oak. The term Is
t".ot descrl~ of the actual h4rdness of
tilewooQ.
kckfuolf:J
Shedding lt2ves annU4/ly orn the end of a
~rowlng season. The term Is descriptive of
most hardwoods and afew sof':woods.
276
resin duct .---- .--.-.....-.-------
Atu!xtlar.lntercellular space In a
woody stem that secretes reslns.
esp. In contfers. Also called resin
. canal. .
resin
Aviscous. clear to tr3nslucent.
organic sul1stance ex~ by
certain pines. used In rnakl"9
vamlshes. adhesives, and plastics.
pith
The sof';. central core aDout
which frst growth t3l:es piau
in anel't)'fonned stem.
r--···· xylem
.... The WoMy tissue of ;I tree th4t pro;ldes
support ,lI1J conducts water;lna minerai
nutrients upward from the roots.
lignin
An organic subst~"u that. wtth cenulose.
forms the woody cell ~ 115 of plants ;I nd
thecementln:3 m3terull7etween u,em.
cellulose
An inert C4rt>ohydta~ that Is the chief
con~ ofthe cell lI2Rs ofpl2nts and
ofdried woods.jute. hemp•.;andCDtt9n.
used In the rnanuflctu~ of .; wide variety
ofsynthetlc burt&~ rnat:emIs. .
sapwood
Theyou~. ~. llv!~ portion of wood
~ ~ camrom and htartwood,
com~~Ple In st-re:ngth to htartw:lod but
usually lighter In color, mo~ pertne;lPte.
and less durable. Also called allXlrnum.
'..---.---- -..----. he3rtwocd
The older. k3rder. n3Ctlve core ofatree.
usuallyd.arUr.de~•.and moredural7!e
than the surroundin.g sapwood. Also calrea
duramen.
r- annual~
........._""'--.::""111~~::i -de.. AccncerTt<ic layer of wood produceJ during
~11!5;~ a single Jle3r's growth ofatemperate tree.
, Also called frowth "lli.

,
springwooa
;,
The softer. more porous portion of an
annual ring that.:kYelops e3rly In tl:,e
growlr1§ sasoo. cha~rlzed bybrge.
thin-wailed cells. A!sc called earfy wood.
~.----..--. summerwooa
.", "
..... '.
The harder. dJri:er.le-ss F,s portion of
an annual ring that de.-eiOpS late In the
growing sasoo. char-;tC'terized by compact,
thld:-walied cells. Also caltea r...te wood.
~-.., tracheid
.i One of the d.or43W. S<Jpporting and
conductive cells il1 woody tissue. luvlng
taperl~ c!oseJ ends Vla ~nlfied walls
oriented pmlid to ~ axis of astem or
branch.
vessel
Atubur.lr st<ucture of wooJy tissue for
conducting W7ter ana ifJlneral nutnerrts.
formed by the fusion a:1d loss of end W".i rts In
a~ of connected ceils.
'~--.-, ray
.' ,:' One oftht vertlcal!:73nds of tr.Insvers6
! cells that rui!.ate ~ ptth and 17ari: for
; the storage and hortzon-tal conduction of
: nutrients.
-----. pore
One of the relatively ~ge verticai celis for
conducting 54 p. esp. It nardwood trees.
,ap
The vital fluL::l of 'ater. nftiogen. and c
mineraI nUtr¢1ts thn circulates through;;
plant.
fiber
One of the sct1der. thW:i-walled cens whlcn
together ~e to st<et1gtnen plant tlssue.
I
l
l
L
r
L
L
L
L
f
.~.
~
.,. r
1
<·1'·'
.'
II
I
I
I
equilibrium rrk)isture content
The moisture content at which wood
ne!tMrgains nor10ses moisture when
surrounded f;y air3t .. g),15.n
~perature2~ relatlve humidity.
rough lumper
Luml1er that Is sawn. edged and
trimmed. but not surfaced.
fWe~saturation point
The stage In the d~ng or wetting of
wooclat which the cell walls arefully .
saturated butthe cell cavitiesare void of
water. ranging from a.molsture content
of25% W 32% for commonly used species.
Further drying results In shrinkage and
generallygreater strength. stfffness. and
density ofthe wood. ~"--1
dressed lumber
Lumber that Is surfaced with a
planing machine to attain asmooth
surface and uniform size.
surfacedgreen
Oforpertaining todresseclluml1er
having amoisture content exceeding
19% at the time of manufacture.
surfaced dry
Of or pertaining todressecllumber
having at amoisturecontentof19% or
less atthe time ofmanufacture.
WOOD
luml7er
The timber product manufactured ~
sawing. resawlng. passing length~
through aptanl":1 machine. cross-cutting to
length. aM grading.
seasoned
Ofor pertaining Wlumber that has
been dried to reduce Its molsture
content and Improve Its servICe3uiltiy.
kiln·dried
Ofor pertaining W lum!1erseasoneaI,n a
kiln uMercontrolled conditions of heat.
.alr clrculaUon. and humidity.
air-dried
Ofor pertaining to lumperseasoned lrj
exposure to the atmosphere.
oven·dry
Of or pertaining to lumberdried to apoint
at which no molsture can be extracted
when exposed In akiln to atemperaturoe of
2Wto Z21"F (101~to 105"C~
~~t~~co~ ----------------------------Q-------~----~r_--------------------~
The amount of wat.ercontalned In a wood
piece. expressed as aperunt3{Je of the
~gnt of the wood when oven-dry.
werking
The ii~ swel~ and shrinkage of
sasoned wood occurring with changes In
~t.ure coote1Tt C3Used I1y ch3n~es In
rei3tNe humtdlty of the surrounding air.
J.CC{jmatae
To s~re wood products. as mlllwori: and
f'oorlng,1n an Interior space until the
:n4~1s ~pt to the motsture ccntent
~nJ temper;rture of the new environment.
l10ard foot
A unit ofquantity for lumper equal to
the volume of apiece whose nominal
dlmenslons are 12 In. (304.8 mm)
square and lin. (25.4 mm) thick.
l10ard me3sure
Lumber measurement In board feet.
t1
e
f . j
1 ;f.--- shrinkage
~1'~1
i .'-:"  The dimensional corrtractlon of 3 wood
I ., piece occurring when Its moisture
content falls Pelow the flffl.saturatloo
point. Shrlnl:age Is very slight a!ong the
grain, but slgnlflcarrt across the grain.
-----...--------. ta"gentialshrinbge
Wood shrlrn:3!]e In adlrectlon ta"4ent to
the ~rowth rings. about clouu~ that of
radial shrlnbge.
-- ----. ~i31 shrinbge
Wood shrlnk3!]e perpendicular to the
grain. iiCross the growth rings.
Iongltuc::linzl ~hrinlc.1ge
Wood shrlrbge parallel to the grain.
auout 21 of racf1al shrin~
nominal dimension
:--- ---.. -- -- -----. The dimension of lum!1erbefore d~ng and
• surfacl"4. useafor convenienceIn
defining size and computing, quantity.
Nominal dimensions are always written
I 1 wlthootlnch """',. Alsocalled nominal
slu.
L- , dressed size
I' . -.--...... Thedlmenslonoflum!1eraftersalsonlng
I ~
• •
I ~#i~;~I~;¥';S~;~
dimension.
277
WOOD
gr2in
The dlrectlon. size, alTllngement. and
appearance ofthe fibers In a piece of
dressed wood.
~g,...in
Wood grain resulting from quartersawlng,
hav/n4 ~ annual rings forming an angle of
45°Of' more wiUI the In'oad faces ofapiece.
Also called v~1 grain.
ltUrUrsaw
To ~w ~rtered logsapproxllt13tefy at
~ht angles to the annual rings.
warp
Any kvlatlon from aplane ortrue surface
ofa bo4rdorpanel usua/lyc3used Uy
uneven dryi/14 durl~ the se.asonlng process
or by ~ cha~e In moisturecorrtent.
cup •. -....._._...................•..-..-....._....
ACUM~re 3C1'OS5 the width orface of a
wood p~, rne3surea atthe pointof
flat grain
Wood grain resulting from plaln·sawlng.
having the annual rings forming an angle
of less th.an45°wtth the In-oadfaus of
apiece.
plaln-saw
r0 53W asquarealog Into !loards with
evenly spaced parallel cuts. A!:c C4f1ed
pasbra-saw.
greatest deviation from a straight fine '-'"
drawn from edge to edge of the piece. -....... .
..~
Pow _......_..__..........-..-..........._.....................,. . .~
A~ ;/Iong the length ofawood
pleu. ~surtJat the point ofgreatest ~
devbtlon from astraight hne drawn from
end to endofthe plece.
=~~~;~~,~:!~~;;~ -C-:=:=+--
aevbtlon from astraight fine drawn from
end to end ofthe piece.
twi5t --..---....- ..................- .....................-/
.. warp resulting from the turning of the
~es ofawood pleee In opposite
JlrectIons.
:;hake ~....- ..........- ......- ..........."
.. septiratlon along the grain ofawood ".
pleu. uSlUllly betwten the annual rings.
caused ~ stresses on atree while standing
ordul"fn4fe/bng.
pitch pocket ......_ .......-......._.._ ....,.....
,J.., weft-defined opening ~een the annual -
~ngs ofasoftwood, containing or having
;"U contained solid or liquid pttch.
;heck ~.-...- ......................................
mIudgr.in
Arry coml?!natlon of edge'gralned
and ftat·gralne.::l luml>er.
end 9r2in
Wood gr;;ln resulting from
actIt across the graIn.
crosscut
Acut made across the
grain of'r'lood.
--------'i~111 > di.1gon.a1 gr2in
Wood grain having the annual rings at
.an angle to the length ofa plec6.
resultlng from sawing at an angle to
the axJs of aog.
era" grain
Wood grain havlng the cells and fibers
running transversely ord13gonafly to
the length of ap~ as aresult of
sawfng. orlrregulJrly as aresult of a
growth ch3r3Cterlstlc.
c~91'J1n
Wooa grain characterized l1y 1t31T'C'r',
Inconspicuous annual rings with ~
dlffmnce In pore size Petween
sprlngwood alld summer wood.
€> cc.ar'Se grain
np •___u _ n _ _ _ ~ ~_~.~.
. . . . :;;~~~~~rl~.9Sw~wlde.
To S3W IYOOd In the ..•-,..... "'~~ - COr~ ..VJ(:; contrast In pore slze
direction of~ grain. . '~ . l7etween sprlngwood and sumlTlCrWo:.i
Also ca~ ripsaw. . cc.a~ texture
~
--...... WooJ grain havi"4l;uge pores. Also
knot called open graIn.
The meof awoody mnch fine Uxture
tIlcloseJ b-j asubsequent Wood grain having small, close~' s=-r~..I
growth of wood In the stem' '1 r-""""
from wl1k:h It rises. In the portS.
struct.ur;;1 gr;;dlng ofawood ral~ grain
piece.knots are restricted Adressed wood surface having the
Dy sfu arJ location.....; denser sum~rwood rising aDove t!;e
softer sprl~wood.
live knot
A~not having annual rlngslntergrown
with those ofthe surroundlr.g wood.
live knots are allcwal7le In 5tructvral
tlm~r within CUbln size "mlts. Also
called inta-gl"OWl1 knot.
SCUM knot
Aknot th3t Is solid across Its face. at
least as hard as the surrounding wood.
and unJecayeJ.
ttghtknot
Aknot held firmly In pI.xe l1ygrowth or
position.
~'i'H+-I+-l'fiH-- deaa knot
Aknot having ~nnual rings not
Intergr'OWn with those of the
surrounJln; wood. ~merrt TI12Y ~
pal11alorcomp~. rut adead knot Is
consI&ere<J to be .3 defeasinceItC3!1
easily loosen or Pc knocked out. }Jsc
cafk:d ~s&f Icnct, ~ knot.
~
Thekcomposltlon of wood l1y fungI ~nd
other microorganisms, resu/tlng In
soft.enl/14. iossof strength and w~ht.
anti often 2 ch;!rl~ of~wn:: iiid
color.
 tengthwl~ separation of wooaacross the
lflnual rings, caused Iry uneven or rapId
;i1rlnkage dUrl/14 the seasoning process.
Jo/it ~......-.. ~...................................
..!;-.. ,kip
_
:::~):i? An area on t~ surface of aroard or panel
i~~~ missed Dy aplaning machIne.
L_._... dry rot
Adec3yofseaso~ tlm!lercaustd Dy
fungi t~t conSume the cellulose
leavIng asoft. ~ttIe skeleton readily
re.::luced ta powder.
,'cncd; th3t ~nd5 completely throu~h a
"Jard Or wood veneer. Also called through
h(!ck.
'~ne - .......-.........-. -..................-
.h(! presenu of ~art or a!7sence of wood at
corner or along an eaqe of apleee.
78".
m.3chiM ~urn .
Asurface charring caused Dy overheating
of the cuttl~ !1lades or abr;;slve lleIts
during shapl~g or flnlshlng of amaterial.
peeky
Having Isolated spots of IncIpient
decay from fungi, 3S pcdy cypress or
pecky cedar.
l
L
u
L
L
L
L
L
I,
I
I
board,
Yard lumber less than 21n. (51 mm)
thld and 21n. or more Wide.
yard lumber - - - -___-+-_" dimension lumffl - - - - - i
Softwood wmw In~nded for generaI Yard lumperfrom 2to41n.
bulldlng purposes. Including roards. (51 to 102 mm) thick and 21n.
dimension lumber. and timbers. or more wide.
fa~r:t lumber -------j
lumber S4wn or selected primarilyfor
further Il13nufacture. graJecl accordlng
to the amount of usable wood that will
produce clIttlngs of aspecH'led size
and quality. AI$O called shop lumver.
structural lumber
Dimension lumber and tlmWs
graded e~her Pyvlsuallnspectlon
ormechanlc4l11yon the basis of
strength and IIrtenJed use. Also
called framln§ lumpeI".
timbers
Yard lumper 51n. (127 mm) or more
In the least dimension.
nutched lumber
lumper having edqes dressed and
shaped to form atongue-and-
groovejoint when bid edge to edge
or end toend.
patterned lumber
lumberdressed ana shaped to a
pattern or molded form.
appearance lumber
lumber sawn or selected prltn3rily for
useas afinish mater131 ratherth3n for
strel19th. graded according to natural
characteristics and manufacturing
Imperfections.
joist5 and planks
Structural lumberof rectangularcross
section. from 2 to 4 In. (51 to 102mm) thick
and more than 41n. wide. gradecl prImarily
w~h respect to I7endlng strength when
Ioaaea e~her on the narrowface as ajoist
or on the wide face as aplank.
I~ht framing
Dimension IUl)1per 2to 4 In. (51 to 102 mm)
thick and 2 to 41n. wlde.lntendecl for use
where high strength V3lues are not
reqUired.
decki"9
Dimension luinper 2 to4ln. (51 to 102 mm)
thick and 41n. or more Wide. graded
primarily with respect to pending strength
when loaded on the wide face.
be4lms and stringers
strocturallumberofrectangularcross
section. at least5 In. (127 mm) thick and a
wk:Ith morethan 2 In. (51 mm) greater
tn:m the thickneSs. graded prlmarlly with
respect to bending strength when loaded "
on the narrow face.
posts and timbers
Structural lumberofsquare or
approxlmate/y sq~ar:e cross section,
5x5ln.or I3rgerand awidth not more
than 2In. (51 mm) greaterthan the
thickness, graded primarily for use as
columns carrying an axial load.
WOOD
11
·_··facewiath
The width of the face ofapiece of
dressed and matched or shlpupped
" lumber. excluding the tongue or bp.
.~:~~
279
WOOD
vi$ual gnding
The visual c:xamlnatlon arJ grading of
structural lumber bytrained Inspectors
accordI"4 to ,U3l1ty-reduclng
ch3mt:m;t1cs ~hat affect strength,
appe3raru, aural7l1lty. orutliity.
nuchine rating
The 9~ ofstructural lumber by a
machine that flexes atest specimen.
measures Its resls14na to l7endlng.
calculates Its modulusofelasticity. and
eIectronbI1ycomputts the approprt;te
stress ~ tal:lng Into lICCOUnt such
bctors as the effectsof knots. slope of
graIn. growth rate, density,ana molstllre
content. Alsocalled machine stress-
rat./n4.
9rademari:
Astampayptteato each pieceoftumDel-
Indlcatl~ the asslgned stress grade. mill
oforIgIn,l1OIsture content at time of
manubaure. species or species group.
and the ~ authority.
$ lopeofgrain
1Mangle ofgrain relative to aline
parallef to ~ length ofawood piece.
~wocd
Wood that hasl:oeen coated or impregnated
wlUI chemlc4ls to Improve Its resIstance to
decay. Insect infestation. orfire.
~$are-~ wood
Wood Imp~~ted with chemicals appl~
unaer ~re to reduu Its reslstanu to
&eczy aM InsectInfestation.
non-pre$surt-~ wood
Wood coated. dlppea. or Impregnated with a
presavative underatmospheric pressure.
fire-retartbnt wood
WOO<J tm~ wlUl minerai salts
Impregna~ unkr" pressure to reduce
fummablllty orcaml1ustll7llity. The salts
react chemically at temperaturesl7elow
the '9n~ point of wood. causlng the
coml7ustlp./e vapors normally generated
In the wood to ~k &own Into water
and C3Mn aloxIM.
280
stress grade
Arry ofthe grades ofstructural
lumberfor which aset of l7ase
values andcorresponalng
modulus ofelasticity Is
estal7l1shed for aspecieS or
group of species by agrading
~ency.
design value
Any of the allowable unit
stresses for aspecies and grade
ofstructural lumberol7talned by
moatfylng the base value by
factors related to size and
conditions of use.
MACHINE RATED
rW) 12 ~
~®·S·-OR,( ~
1650 Fb 1.SE
r:
11
full-cell pr~s
=
Aprocessfor pressure-treating wood In
which avacuum Is first drawn to remove
air from the wood firersand allow the
preservative to be a~ bythe cell
walls. after which pressure Isapplied to
force additional preservative Intothe cell
cavities.1Mfull-cell process leaves the
maximum amount of preservatlve In the
wood.
empty-cell proc~9
Aprocess for pressure-treatIng I'IO<:ld In
which the pressure oftheeitterlng
preservative tntr.psairIn the wood
ft!1ers. which e:xpanas when the prc5sure 15
released to expel excess preservativefrom
theullcavities. The empty-uO process
yields adrier product wh~ ensuring deep.
uniform penetration ofthe preservative.
vacuum prou"
Anon-pressure treatmentIn which a
vacuum orpartlaIvacuum exhausts air
from the cells 3nd pores ofthe wood
while atmospheric pressure forces
preservative Into the wood.
o
size-adjustedvalue
AInse valuefor aspecIes or group
of speciesofstructural lumber.
adjusted for cr05s-sectlonalsize.
base value
. Any ofthe allowable unit stresses
for rending. compression
perpendicularand parallel to grain.
tension parallel to grain. horizontal
she;ar. arJcorresporJlng modulus
of e/3stlclty,established bya
grading agencyfor various Species
and gradesofstructuralluml7er.
6a.sevalues must be adJustedfirst
for sizearJ then for conditions of
use.
I
If-
x
siufactor
Acoefficient for modffylng the base values
of aspecies and graMof lumber accardlng
to the cross-sectlonalslz.e of the pIece.
repetitive meml;ter factor
AcM1lclent for InCre<lslng the slze-
adjusted values of repetitive meml7ers.
since the sharln~ ofthe load bythe pieces
enhances the strength of the entire
assem!1iy.
repetitive member
Any ofa.series of three Of mOre light
framing members. asJoists or rafters.
spaced not more than 24 In. (6lO·mm) on
center3ndjoined by sheathing. deckl~.
or other load-alstrIMI/19 members.
durJtWn of load Deter
AcM1lclentfor Increasing the size-
adjust&! values ofawood membersul1ject
to ashort-term load. since wood hasthe
propertyofcarrying su!?stantlally greater
maximum loadsfor short durations than
for long durations of Ioadl"4
Iwrlzontal5hearfactor
Acoefflclent for Incre<lslng the slze-
adJu~ horizontal she.ir value ofa wood
mem!ler h3v1ng shal:es. checls. or splits
when their length Is ~nown and any
Increase in length Is not anticipated.
fln U5e factor
Acoefficient for Increasing the 5Ize-
adjust&! pendlng value for plankIng h3v1n~
aface ~th of4In. (102 mm) ormore.
wet U~ factor
Acoefficient for decre3slng the slze-
adjusted values for wood mempers when
their moisture content will hkelyexceed
191m use.
waur-porne pre~rvatNe
An Inorg.anlc. w3Ur-solu!1e compound, as
ammoniacal copperarsentte (.AtA) or
chromatedcopperarsentte (CCA). used as
awood preservative. ACA and CCA 3fftx
chtmlcally tothe wood ull wans ana Is
resistant to leaching. The copper acts as a
fungicide while the arsenate Is toxic to
wood-destroying Insects. Wood tre4ted
with ACA andCCA Is odorless and
p3lntaPie.
olt-bort14!: pr~rvative
An organic chemlc3'dlssolvea In a
petroleum 011 c3rr1er. ~ pentachlorophenol
orcoppernaphthenate. tI~ as ~ wood
prescrr.rt.'vc. ren~chloropheool. the Ii"105t
commonly used oil-Dome preservattve. h3s
a persistentodor,ls In50IuPieIn water. arid
Is highlytoxic not only to fungi and Jnsects
Putalso to humans aM pbnts.
creo~
An oily liquidofaromatic hydm:;arWns
obtained ~ the distillation ofcool tar.
u~ as awood preservatlYe for marine
Installatlonsodor severe exposures to
wood-des~lng fungIand Insects.
Creosote and creosote solutions have a
penetratlng odor and render wood
unpalnta!7le.
l
l
l
L
L
L
l
L
L
· ;.
~
femie --_._. pracket load ~oxcolumn
A~~I ring or C4p plxed
around ~ end ofawooden
post or h3nd1e to preve:nt
$~-7
j
I
I
sefid coIu.mn
Awood column ~ng of• ~Ie
pI«.eof soII&-~WII Of" ~ luecI-bmin3ted
tlmw.I.'SU311y squareor rect3i1<jular
In cross sectlon.
~ilt-up~m
Avmlcally I3mirutd wood Pe3m rtt3ae
by t.a~1n!! together two or II'lCre
smaller Jne#1~ wtth bolts. ~ screws.
or ~ equal In strength to th.e: sum
of the strengths of the Jnd1vldu41 pieces
If none cfthe 13rnIrt;rt:lons are spIlc&L
An eccentric load apple.d at some point
below the upperend ofatimber column.
the static effect ~ which Is assumed to
be equlv3lent to the same load applied
axially plus an addltlonal side load
3ppl1edat mld~ht_
"'-'--t--------j.--/'l
"~-- polster
Abuilt-up column having a
hollow. square or rectangul3r
cross section. --"'"'....
Ahorizon"tal timber on a
postforenlarging the
rearing area and reducing
the free span ofabeam.
tapered column
Awood column having across section that
diminishes alongIts length. In determining
the slenderness r.rtlo fora"tapered column.
the leastdlmenslon Is taken as the sum of
the minimum dlaineterorleast dimension
and one-third the difference ~ the
minimum and ITt3Xlmum diameters or lesser
3na greaterdimensions.
pox beam
Abeam having ahollow. rec"tangul3r cross
section. ln3aeby glUI"9 two or more
plywood or oriented str.lnc:lPoard we17s to
5Jwn orI3mlnated veneer lumber flanges.
puilt-up column
Awood column formed Pyfastening or
gluing ceverpl3tes to two or more parallel
pianics. or ooxlng planksaround asoIld core.
APullt-up column 15 never equal In strength
to asolkl column ofcomparable material
and overall dimensions.
Heam
Abeam made by gluing sawn or
laminated veneer /umuerfbnges along
the top and Pottom edges ofaSI"9le
plywood ororiented strandooard wel7.
Alsocalled I-~Ist.
WOOD
II
r~
- 'H ~--
r-
5paced column
Awood column consisting of twoor more
parallel members separated at their ends
and midpoints 17yPlocklng. andJolned at the
ends by tlml?er connectors capaUle of
developing the reqUired shearresistance.
flitchplite
Asteel plate for
reinforcing aflitch ueam./
 '
flitch ~e.am
Avertically I1i'nlnated beam consisting
of tlmuers set on ~ and rotted slk
Py side to steel plates or sections. Also
called fUtch tl~. 5.1ndwfch l1eam.
glued-Iamln.tted timl1er
Astructuralluml?er product made 17y
laminating strtss-gr.ade lumuer with
adhesive undercentro/led conditions.
usually with the gr.aln ofanpiles being
parallel. The advantages ofglued-
laminated timberoverdimension lumber
are generally hIgherallowable unit .
stres5es.lmproveJ appear.ance. ana
3Val1auillty of various sectional shapes.
Glue-1amlnated tlml1ers may l?eend-joined
with scarf or flnger.JoInts to any desired
length. oredge-glueJ for greater width or
depth. Also called glulam.
appearanu grac:k
One of three grades of glue·lamlnated
timber - premium. architectural. and
Industrlal- based on surface appearance
as affected I7y growth enaracterlstlGs,
wooa fillers, ana aresslng operations.
281
WOOD
exterior~
Aplywood F~ con~ of C·grade
vt:1UrS or ~~. ron«4with afully
l'r.lterprooft.Jellnefor ~nen~
expo'".xJre to ~th(;(orll'lOlsture.
interior pf:Jwcod
Ap~ood p;.-.d lnade with D-grade,
vt:1UrS or ~~. ron«4 wfth an
exterbr. ~~te. orln~rior
~
hig~MNy ......-;
All exterior.ood ~ 1tM~ aresln~Per
overlayOft k7t:J, sldes provIdl~ asmooth.
lura. abrasIcn-resIst4nt surbce. used for
concre-t.e fur:-.s. C31r1nru. artd countertops.
Auk:~
~-~overby
lv,extuior ....xJ pand having a~oHc or
meb~ resln oreNy011 one or both sides
~ asnxth lr.lsefOr Fiintl"4.
AUbr.:MDO
'pecblty pJMi
AnyofV2MouS I'I'CIOd panelproducts. as
groovedor ro~41-S4wn l*Jwood.ln~nded
for use as $ldir"! or ~
Uxture1--1<J ..........._..._........................-
Iv1 exUrfor ~~ pand havl"4 grooves
'I,.In. (6.41rt1T1) ~paM% In. (9.5mm)
wide. spaced 4 IX 8 In. (102 or 203 mrrt) on
unter.
282
r.-·...·-·. group number
.-l Anumber identifying one of flve groups cf
~;~~~~~~~~t-:;~S~~~ species used for the face ana Uac~ vene,..,--s
®0~~~~11._.'
"!i_'~_ of a plywood panel. the species ~ng
~~~ ~:':':~"~ classified on the I7asls of rending s~..h
~~~~~~~'S.~"¥&~ and stiffness. with Group 1contalnlf1 tr.e
. / : stiffest species artd Group 5 the least stff.
L..._.._.....j
span rating - ....--.---..-..-.--........---
Anumber specifying ~he maxImum
recommenclea center-to-centerspacing In
Inches of the supports fora structural
wood panel spanning with Its long dimension
;!Cross three 01' more supports. ,_..,
, ..",";.
exposure duralrility --_.,.
Aclassiflcatlon of al'OOci panel product e
according to Itsabilityto wlthstar.a
exposure toweatherormoisture without
weakenIng or warping.
extericr
An exposure dural7i11tyclassification for
s'tnJctural wood panels manufacturea with
awaterproofgluehne for use as siding or
other continuously exposed apphcatlor:ts.
exposure 1
An exposure durabilityclassification for
structural wood panels rrt4f1ufactured with
an exterior9luelJne for use In protected
construction sul7ject to repeated wetting.
exposure 2
An exposure durabilltyclassification for
structural wood panels ITUnufacturea with
an In~rrned1ate glue/lne for use In fully
protectedconstruction subject toa
minimum of wettl~.
"M'"
RATED·:SH!ATHfHG--
2/'16· 15/32 INCH
SIZED FOR SPACING
..,~ EXPOSURE 1
1 - - - - - OOO-~
NRB· foa
grade~mp ~...__..I
Atr3atman: ofthe American Plywood
Assoc~tlon (APA). stamped on the bac~ of
astructural wooJ panel productto
identifythe panel grade. thicl:nes5. span
rating. exposure duraUitltyclassIfICation.
mill numf,er. and NatIonal Research Board
(NRB) report number.
('.
I .
!
..• panel grade
The graae of awood panel product
identified by the face and back veneer
grades or l1yIts Intended use.
engineered grade
The grade of astructural wood panel
based on Its I~ded use as shtathl~.
su!7flooring. or In the fa~rIcatlon ofI:1ox
l7eams lind stressed-skin panels.
I
I
I
l
l
L
premium grade
The highest ~rade of hardwood veneer.
pennlttlng only afew small burls. pin
knots. and Inconspicuous patches.
good grade
Agnde of hardwood veneer similar to
premium ~rade except that matching of
vencerfaces Is not requlreJ.
5-Ound grade
Asound. smooth hardwood veneer free of
opal defects but containing strea(s.
dlscolontlon. patches. and small sound
tlght knots.
utility grade
Ahardwood vencerpennltting
dlSGclol'3tlon. strt3ks. patches. tight
knots. sma" knotholes and splits.
~acking grade
Agrade of hardwood veneer similar to
utliity gl'3de but permitting larger
defects notaffecting the strength or
durability of the panel.
mauhlng
Arranging shuts of veours so as to
emphasize the wlor and figure of the wood.
book matching •............................
Arran~lng veneers from the same ft~h
alternately face up and face down to
produce symmetric4l mirror IlT13ges about
the.JoInts Petl'ieen adjacent sheets.
herringloone ITt3tching ,......................
Book matching In which the figures
In adjacent shuts slope In opposlte
dlrectluns.
,lip matching •............... - ..............
Arranging adjacent sheets of veneer
from the same fl1tch side by side without
turning so as to re~t the flgure.
di41mond m.rtchfng - ......................
Arranging four dl3gonally cut
sh~ts of aveneer to form ~
diamond pattem about acenter.
random matching .........................
Arranging veneers to Intentionally create
acasual, unmatched appearance
WOOD
decarative plywood
Hardwood-f3ced plywood manufactured
for use as paneling or In cabinetry and
fumlture.
-:;;~~~~~~
..-..• veneer
Athin shectofwood rotary cut. sliced. or
s~wn from alog or flitchand used as a
superlar facing to Inferior wood or bonded
~ether to form plywood.
fi9ure
The natural p3ttem on asawed wood
surfaceproduced ~ the Intersectlon
of annU31 rings. knots. ~ur!s. rays. and
othergrowth characteristics.
)
I
r

cro"uand
A~er of veneer Immediately adJacent to
and at ~ht angles to the face piles Ip a
plyNood paneL
core
The centerofaplywood panel conslstl"!) of
veneers. sawn lumber. or composition board..
bandi~
The solid wood stock extending around the
sides of aveneered pane!. concealln!l the
COf'e and faclflt3tln9 the shaping of the
p3nel edges.
rotary cutting
The rotatl"!) ofalog against the cuttl"!l
ed:1eof aknife In alathe. producing a
continuous veneer with abold. variegated
ripple figure.
fbt slicing
The longitudinal slicing ofahalf-log parallel
to afine through Its center, producing a
veneer having avariegated wavy flgure.
Also called plain slicing.
~u.1rter &licing
The Iongltudlll3l slicing ofaquarter log
~ndlcufar to the annU31 rings.
producing aseries of stra19ht orval'leJ
stripes In theveneer.
half-round ,Ilcl~
The slicing ofaflitch mounted off-center In
the lathe. sl19ht~ across the annU3( rings.
proauclng characteristics of both rotary
ctMlng and flat sllcln~
flitch
Alongitudinal section of alog to becutInto
veneers.
rift cutting
The sllcln9 ofoak ana similar species
perpendicular to the conspicUOUS. ndlatlng
rays SO as to minImize their appearance.
283
WOOD
oriented strandPo.1ra OP---'-'---'--"--'---',_
AnonYe~ wood panel product "
co:nmonly tl:Sedfor ~thlng and as
scbf1ooring. maae ~ bonding thru odlve
~ of ~ thin wood stranas under
kzt3napressure using 3 waterproof
~Jve. n-~ surface strands are aligned
pmlllel ta the long axis oHIle panel. making
the panel stro~er along Its length.
Am-~OS6
w.fe~rd .--.---._.--...._- ..----.-...----'-',
A~nveneered panel product composed of '.
b'¥. thin WOO<:Ifla~ Ponded under heat
ar.apressure wtth aw;;!;erproof adhesive.
The planes ofthe W6fers are generally
~ted pmllel to the plane ofthe panel
Put thelr~nin directions are random.
INking the p-anelapproxlmatefy equal In
strength anastiffness In all directions In
::;=~;:~~.--.-----------.--------."-.- ~:~~~~~~~il~i~~
Awooc:l par.el productconsisting oftwo '--
face v~ Ponded ta a reconstituted
wooJw-e.
partlcle!1oo.ua ~- ...-----.-.--.-- .-----.--- ....'..
Arcnven~..d wood panel product IT13M .....
by Ponding $ln3n wood particles under heat '.
and pres~, commonly used 35 3 core
m1teri3f for ~ratlve panels and
w~wort. 3na 3S uMer!ayment for
floors. Also c;; neacbipboard.
parallel stnInd lum~ .-----.-----
Astructunlluml1er product made I1y
Pondlng ~ ~rrowMXld strands
~r ur~ hrn;ldpressure using a
l'r7terproof~t5Ive. Pa,..llel strand lumDer
15 aproprle'"
...ry product m3rketed under
the tf3~ri::. Par.abm. used as :Ieams
and columns in post-ana-Pea",
constructlcn 3nd for ~ms. headers, and
Iltr"..ds In IIgh~ fl'3~ construction.
Alrbr~ PSt
ur.;in.aua ~neer wml1er _.-....-.-- ...--.- '--'.
A stru~!4i1 lumDer product made I1y
ronding Iaye:-s of wood veneers together
~ he3t ....apressure using awaterproof
~e. H..-'il'~ the!r2ln of311 veneers run
lsi the S41ne ~dNl direction results In
a~M 15 s~ when~ loaded
as J beam or00 Ioadedasa plank.
umblaW~ lumber15 marteted under
V4 rloIIS mnd rg meso 3S MIQ'Olam.and
used as heade:rs and ~ms Of' as flanges
for prtf;aln-bt.ed wood I-joists. ADbr.: LYL
fiP,em,ard
A~ng m...~' Irtac:ieofwood orother
pl.ant ftf,ers ~ with alnnder Into
~ldsheets.
h.1rdPoard
Avery dense, compresse.d wood flPerWard.
-umpered Iurdl10ara ~ ..---- --- ----- --.,. --. -.-- ...... .
A Jurlhoard tmpregnated with 3 drying
oil orotherc.da'lzlng resin 3na Daked to
Impt"Ol'e Its hardness and moisture
res1st.1nce..
M.1""nite
Tr-akm3rk for. Dranaof tempered
~rdr03rd.
Pt.9-~ard
T~rk for 4 Drand of tempered
h4r~rd havir~ regul3rly spaced
.~oratlons W..o which I-rooI::s may Pe
In~r'"..ed for t.!-~ st0r3~ or display
of arrcles.
284
L
I
, J
1
J
I
J
J
1
I I
I
! ,
I
..
I
l.
I
l.
~ f
,'ll,:,,':,.'
::...
,.(-
i
o
I>
I
I
I
Aa
A3ron's rod 185
aliacus 180
Amm'slaw 44
amslon resistance 165
ams1cn-reslstance Index 165
a~1ssa 108
al>solute humkllty 120
a~ute scale 117
a~ute temperature 117
a~ute zero 117
a!7scrt>er 124
absortnng well 223
al?sorptance 143
aDsorption 18,160,165.231
absorptlan Ded 201
absorptlon coefflclent 231
a!7s0rptlan fleld 201
aDsorptlon refrl¥ratlan 124
absorptlan trench 201
al>sorpt1cn untt 231
al>stract 52. 59
al>stra:t expressionism 135
ADulb 144
abutment 13,206
Ab:isslnian well 221
acanthus 181
accelerated agIng 165
accelerated weathering 165
acceleratlan ofgravity 167
acceterator 43
ClccerTt tIghtlng 148
access 57
accessfloorl~ system 93
accklerTt 59
accnmatlu m
accommodatlon 264-
accordlon door 62
accouplement 179
achromatIc 39
acorn nut 84
acoostlcalana(ysIs 230
aCOlJstlcal cellI~ 31
acoostlcal cloud 230
aC01Jstlcal design 230
acoustlcal door 65
aC01Jstlcal plaster 188
ac01JStical tile 3I
aC01Jstlcal treatment 230
acoostlc clecklng 93
INDEX
acoustic mass 232
acoustIcs 230
acre 166
f_~250
acroterlum 250
acroterlon 250
acrylic resIn 192 0
acrylonttrlle-(;utadlene-styre~ 192
act curtain 257
actdrop 257
actlnk; ray 187
action 58
active earth pressure 100
active leaf 62
active 5Olar-heatlng system 226
acute 109
acute angle 108
adaptation 148
additive 43,52
additive calor 38
address 59
adhered veneer 156
adiabatic cooling 120
adIabatic heatlng 120
adjacent spaces 218
adjustable doorfra me 65
adJustable tie 156
admixture 43
adobe 34
3d50rptkln 165
advancing color 39
aerator 197
aerial perspective 72
aerodynamk; damplng 245
aerodynamIc oscillatlon ,154
aesthetics 10
A-frame 104
aggregate 43
agitator truck 46
agora 250
A-grade 282
agreement 54
alrrome sound 230
air cha"'!.Der 198
air change 127
air conditioner 124
air condltlanlng 124
air curtain 62
air cushion 198
air-dried 2Tl
285
INDEX
alrdua 122 American standard channel 172 anti-scald faucet 197
alr-em;c,lnl~ agent 43 Americans with Dlsal>ilitles Act 51 anvil 102
alr-~lnll4 portland UlTlef1t 42 amorpnous 161 apartment vulld1ng 139
alrgap 198 amortizement 262 apartment house 139
alr-h4nd11114 unit 125 amperage 74 apophyge 181
alr-lnflattd structure 168 ampere 74 apophysis 181
alrmile 166 amphlprostyk: 251 apothem 109
air-supported structure 168 amphitheater 256 appearancegr.lde 281
air swftch 79 amplitude 152, m appearance lumber 279
alrtermlnal n anaglyph 182 appentlce 208
alrtrap 198 analogous wlor 39 appl13nceclrcult 77
air-watersystem 126 analogy 59 appliedforce 97
airway 119 analysls 58 applique 182
aisle 35.257 ana/ytlc3/ dr.lwing 66 apron 257. 271
alalr.Jster 1M ana/yttqlU! 67 apron plec8 235
al~arlum 189 anamorphosis T3 apse 35
al~ronze 175 Anato/la 128 apsis 35
al~rnum 'lJ6 anchor 65.206.269 aptml251
alclaa 175 anchor.lge 202.206.242 aquifer 196
a-Icove 216 anchor 1lO1t 267
i_;~
~de 247 anchored veneer 156
~nlng punch 86 ancon 186 arror27
alignment 54 ang 254 arc 00.110
at~nI11CITt valve 199 angel Ilght 275 al'C<lae 36
alkyd paint 187 angle 108. m arcature 36
I
alkyd resin 187 angle !?ead ·190 arc-Poutant 262 l
aI/-air system 126 angle cleat 174 arc douUleau 263
allee Zl angle clip 174 arch 12
Allen he3d 83 angle Iron 172 arch 3ct:On 13
l
allowaPie PearIng capacity 100 anglejoint 140 arch axis 13
anow.l1Ie bearing pressure 100 angle ofIncidence 143 archmce 210
almblehld 240 angle of mtectlon 143 arch corner bead 190
allowable pile load 102 angle of refraction 143 archetype 59
l
allowable soli pressure 100 angle ofrepose 210 arching 100
allow3!71e stress 164 angle ofsflde VO architect 48
allowable stress des~ n 240 angle t1le 214 architectonics 11
allowable unitstress 164- angle valve 199 archlt«turallmmzt 175
L
alloy 170 Anglo-Saxon architecture 131 archltectural concrete 47
alloy stu! 170 angstrom 142 architectural hardware 114
anure 37 anhydrous 188' archlU.ctura/.terra cotta 34
an-water system 126 anlm3tea 217 architecture 9
L
.Imem.ar 250 anion 161 archttrave 179. 186
alph.1-~ mss 175 anIsotropic 162 archlvolt 12
~ 35.250 anneal 169 arch ordu 251
alternating c~nt 75 annealed ~1aS5 112 arclQte 36.106
l
~e58 annual rl~ 276 arcwelalng 00
.1tern3tor 75· annular vault 263 are 166
almude 109.226 annulet 180 area 166
afto..reIIevo 182 annuncl2tor 81
~-
'iC•• .- ~
•
alumll1.3 175 anode 74 3~or
L
afumlnum 175 anodize 171 area pbn 69
aluminum Vms 175 anomaly 54 area source 147
aluminum Pronu 175 anse de panier 14 a~23
alumlnum.ox!de 175 arlta 251 arel13 thm:er 257
L
alure 37 antei'lx 2...1iO arecstyle 179
3malaka 253 anteroom 216 3rt ofthe CO(enant 250
aml7iance 217 anthemlon 1M armature 75
aml1lent sound 231 anthropology 11 armored C3~1e 78
l
aml>lgulty 59 anthropomlltry 57 anis 185
amro 35 anthropomorphize 57 arris flliet 214
amron 35 antic 183 arris gutter 209
am~latolj' 35.37 antlclasttc 219 amstlle 214
L
amenity 58 antltorroslve paint 187 art 10
American rona 20 antlcum 250 'MD/lc({:G~
, . - .-.-,:.:::..-::.,;~... .!
Amerfc.1n standard !:Ieam 172 antlmony 175 artesi3n well 196
L
286
L
.'
-:
INDEX
artlcula~ 141 bacHlow valve 198 base anchor 65
artrflc131 horizon 247 background 265 baseboard 186
artifk;laIsky 150 background noise 231 ba~ard hea~r 123
articulation 52 background noise level 231 basecoat 187.188
Art Nouveau 134- bad hearth 87 base flashing m
Arts and Crafts Movement 134- backing 95.156.211. 267 base lsolatlo~ 245
NS8~ul~ 144 backing board 191 baseline 72.246.247
ashlar 158 backing grade 283 basement 23
ashplt 87 backlight 148 basement wall 266
ashptt door 87 back plaster 156 base metal 86.170
aspect 59.264- ~ackset 116 Inse molding 186
aspect ratio 109
~H!P
basepla~ 174
asphalt 215 ' ,""; splash 198"'" Inse screed 190
asphalt mastk:: 176 backstage 258 base shear 153
asphalt shingle 212 backup rod 178 Inseshearcoeff'.clent 153
Assyrl3n architecture 129 backupwall 269 basesheet 215
astr3gal 62. 185 back vent 200 baseshoe 186
asym~ 110 backwatervalve 198 uase value 280
atlas 250 baff1el46 basic wind speed 154
atmosphere, 167 baguette 185 basmca 35.251
atmospheric pressure 167 ualley 98 basket-handle arch 14
atom 161 Bal:e!l~ 193 ins-relief 182
atomic num~r 161 balance 55 basso-rellevo lf12
atomic weight 161 balanced door 62 bastard pointing 155
atrium 26.35.137 balanced sash 272 bastard-saw V8
at~nuatlon 230 balanCed section 202 bastlon 98
At~rberg hmlts 225 baIaneed step 234- bat 19
attic 23 batconet 273 bathtuu 198
Attlc base' 181 Uatcony 24.258 Uatted surface 237
attle ventilator 127 Uakf3chln 35 Ua~n 214. 2fJ7. 268
audio frequency 229 ualdaquln 35 ba~"door 64-
auditorium 258 Uallast 145 Uatten seam 214
audltoryfatigue 229 173II-rearing hinge 115 ba~r 270
aureole 183 ball cocI: 198 Va~r roard 221
t1~~a'~ Ualtfiower 183 ba~rplle 102
automatic door 62 Ualloon frame 267 Uat~ry 74.200
:wtomatlc door 110tt0m 114 baluster 235 !:>at't l"su~tlon 119
automatic flre,extlngulshlng system 90 u<llustrade 235 Uattlement 99
autumnal equinox 226 Uand 228 Bauhaus 135
auxll13ry rafter 210" Uandage 61 bauxite 175
avant-garde 135 banderole 1M bay 24.239
average t,ransmlsslon loss 232 Uandlng 283 Bayer process 175
award 49 Uandrole 184 baywndow 274
awning 274 banister 235 B~ulu 144
awning window m Uank W bead 86. V8. 185. 214
axial force 162 baptlsm 35 ~ <lnd reel, 185
axlalload 162 Uaptlstery 35 read molding 28
axlalstress 162 Uar 172 Peak 185
axis 55 UarUacan 99 be<lm 15.149
axis ofausclss3S 108 Uargeroard 211 ~m-a~lrder slau 204
axis ofordinates 108 Uai~e couple 211 ~m ce!l!n~ :;0
axis of symmetry 55 lr.lrge course 214 ~mflll93
axonometrlc 71 UarJoist 173 ~mpocket 93
axonometr(; projection 71 UarX V6 reams and stringers 279
azimuth 246 Uarometer 167 Peam seat 85
'r~~re.;]$~ Uarometrlc pressure 167 beam spread 149
Baroque architecture 133 i1earl"9 241.246
6t? Uarrel roof 208 i1earlng stiffener 173
bad,271 ~~ bearl"9 stratum 102
17acl:band 271 Uarrel vault 263 i1earln9 sUess 241
backbend 65 barrler-free 57 bearing wall 266
17ackched 114 Uarrow 248 be3r1ng wan sys~m 244
uadflll 222 ~artlzan 99 beauty 10
bacHlap hinge 115 uartracery 275 Beaux Arts architecture 132
17adflow 198 base 109.153.179 ~d 155
287
,--
:t
INDEX
bedding 113 bleeder 123 rottcrn carclearanee 80
Deadlng plane 2:37 bleedervalve 123 !1ottom rad 64
Peajolnt 155 !?!eedlll9 46 !?oulder 224
Pea molding 179- blind 24 round3ry calk 29
PearOO: 224 bllndarcacle 36 routel 185
lleehlve tomb 248 bltnd C3slng Zl2 row 7]8
b-ehavloral scIence 11 blind door 64 rower 99
Belfast tnJS5 261 blind floor 92 Bow's notation 260
Belgian 261 blinding glare 148 rowstring truss 261
~11 103,181.199 blind mortlse 141 bowtel 185
befl-and-splgot 199 bllnd-na" 82 rowwlndow 274
l>ell arch 14 blind row 257 box~m 281 -
Pell bucl::et 103 Inlndstory 24 roxcolumn 174,281
l>elow grak 222 Inlnd wall 266 Poxcornice 213
Peltcoorse 159 block 26 Pox culvert 223
l>e~ Zl block flooring 94 boxedframe 7J2
I
b-enta 35,250 Inocklng 2fil box gIrder 173
J.
Pench mart 247 !?Ioom 169 boxgutter 209
b-ench terrace 222 11100mlng 171111 169 !?ox-head wlnclow 272
bending 163 plow 221 boxrull 82
Pending rnem!?er 238 plower 125 !?ox office 258
Pending moment 15 I7low molding 192 PoxslU 267
Pending stress 15 pluela~1 213 boxstalr 235
l>entl05 Inuestone 236 box strike 116
Pent approach 255 boara and Patten 268 6oyIe'slaw 167
~ntPar 203 boardfoot m In-ace 243
b-entonlte-224 boarding 268 In'aced core 245
Penn 98,22:1 board measure _
m PraceQ frame 104, 107.243
~mouillequatlon 154- boards 7]9 mcedtul>e 245
Btrnoullrs theorem 154- boas~ surface 237 Prace mold1~ 185
~tcn 3rtr.e 202 BOCA ~tIonal Bulk:llng Code 51 bracket 210,235
Deton!mzt 47 body 32,111 bracket load 281
Pevef 116,141 roR 221 Prad 82
bevc:l51di~ 268 poiler 123 In-anch 197
B-gl'3de 282 bolectlon 268 mnch clrcu~ n
~lng 49 bolster 12.45.281 mnch drain 200
~ 198 bolt 84.116 In-anch Interval 2QO
::~~~~
roltel 185 mnch yen t 200
rond 2fJ, 157, 161. 202 Pr3SS 175
bilateral symmetry 55 bondl:>eam 160 - mttlce 99
bi~tlon 268 rond-Peam blOCK 160 I1rau 86
~levef 138 bond breaker 178 lrn1kdown volta~ 78
~ bondcoat 33
'~-. .'
Pim" rona course 20 ~ fits 212
i:1imeta11Jc element 121 Ponded 4a break hM 68
Il
~. 107,158.187 t?onded posttenslonlng 207 ~tl7eam 107
tindlng!:>eam 107 ronaea temzzo 94 lrn1stsummer 107
binding rafter 210 t?ondertze 171 breast tlml>er 45
binocularvlslon 264 bonaface 178 breast w.an 7]0
&in wan ZlO bondlng a£!tnt 94. 190 ~.t38
I
bird's-l:>e4k 185 t?ondlng layer 204 1nict18
Dirc::l's-mouth 211 rona plaster 188 Inict,rade 18
l
~ult 32 !?ondstone 158 I1rId: moIcIl~ 271
;;S<ue 32 rond stress 202 Inicttype18
l
~ue-flred 32 bonnet 87,122. 199 brlctwort 20
::t 116 bonnet tile 214 ~257
~ 113 Pool: matching 283 ~lamp 147
~rren 215 Poot 122 ~1~92
b
7bcl: label 213 border 257 ~joInt 141
~d:plate 172 borrowed light 274 Imghtness 38.142
:-30: 169 borrow pit 222 Imghtnessratio 148
~~~~H~ boss 159,263 lnillbnt 38
I
:>lankJamp 63 Boston hlp 213 Brine" numper 165
~
::'ast furnace 170 Boston rk:Ige 213 lnise-solell 27J
;ust-fumace slag 170 rottom Par 203 British thermal unit 117
I
U
88 I
i
i 2
~
O.'Y>
-:t
·t
.-. INDEX
:;-
lnit't!eness 164 ~utterfty weJge 140 cantilever wail 270
In-tXen ped1ment 186 ~tt hinge 115 canton 266
~n rangewOlt 158 ~ttjoint 140 cant strlp lTl
~nze 175 ~tt-lolnt gl3zlng 113 cap 199
Bronze ~e 128 ~uttonnead 83 cap~ead 113
Vroom flnish 47 ~tt plate 174 cap ~Iocl: 160
~wncoat 188 ~ttress 262 cap flashing 177
~ttress pier 262 CapeCod 138
~utts and Pounds 246 capillarity m
~tt s~lce 203 capillary action 177
~ttwekJ 86 capillary attractlan lTl
l:J.Jck 63 Butyl 193 capillary ureal: 177
Ducket trap 123 ~utyf ruul?er 193 capital 179
Ductllng 40 BXcaDle 78 cap nut 84
l>uckllng load 40 By.z.antlne architecture 130 cap plate 1{4
Bu.1dh. 253 cap receiver lTl
Bu.1dhlsm 253 Cc cap screw 83
Buffab!1ox 196 caulnet drawing 71 cap sealant 113
~.rffer 80 ca!1le 28.78 cap sheet 215
l>um 46 ca1le loop 168 capstone 159
l:J.J~!e he3d 83 caD~ molding 185 caravansary 252
~Ji1dlng 21 calXe-restralned pneumatlc structure 168 carl1lde 175
l>uildin.gmcl: 18 caPle-stayed structure 29 carron 170
l>uikil~code 51 ca~1e structure 28 carbon ~I 170
~Jildlng drain 200 cable support 242 carframe 81
l>uIWlng afflclal .49 cal>(etray 78 cam 248
l>uikilng paper 268 CA bulp 144 Carolingian architecture 131
~iWlng permit 49 c.uiastral survey 246 CarpenterGothic 134
l>uikllng separation 153 cadmium 175 carpet 95
l>utld1~ sewer 200 calm 248 carpet cushion 95
l>ulkilng stone 237 cals50n :30.103 carpet pad 95
D-Jlkilng storm drain 223 calcine 42 carpet tlle 95
~Ikilng sUlrm sewer 223 C3lclnea gypsum 188 carriage 235
l:J.JilJ1ng trap 200 calch.:m hydroxide 157 carriage l70It 84
~ild1ng typefactor 153 calcium oxide 157 carriage porch 25
Duilt-up ream 281 calendering 192 Cartesian coordinate 108
~ilt-up column 174.281 calfs tongue 184 Cartesian space 217
~Itt-up rooflng 215 call1>utton 81 cartoon 67
. l:J.JID 103.144 calorie 117 cartoUGhe 183
DuI1:-actlve structure 238 calx 157 cartriJqe fu~ 76
t<J!(head 23.45,80 cam 116 carved work 237
P,JiXlng 165 camber 15 caryatid 250
l>ul:: modulus 162 camber bar 87 cased openlnf! 63
l>ullflo41t 47 camber piece 12 cased pl~ 103
l>u"~ 185 camrersllp 12 case-h4lrden 169
l>uI1nose Plock 100 cambium 2:76 casemate 98
l>unnose comer Dead 190 C3melDack truss 261 casement 2J3
l>ulrs nose 185 C3m hand~ 273 casement door 64
l>un stretcher 19 c3mouf1afJe 265 casement stay m
l:>umper 114 C4mpanl!e 36 casement wIndow m
l>unkd tures 245 C4mpcellln~ 30 casln~ 63.103
l>u"43low 138 cancela 35 ca~ln~ l1eati 190
l>un~lowcourt 138 candela 142 caslnf! nail 82
l:>ur~n 221 c3na!e 142 cas~ll3ted beam 173
... canatepower 142 cas~ll3tec:f nut 84
c-us b3r 76 canalepower distribution curve 146 castlnf! 169.192
l:J.JS duct 7PJ C3nephora 250 castlng Pea 206
DushhammereJ flnlsh 47 C3rrt 109 cast-ln-pl3ce concrete 46
l>ushlnf! 78 carrt bay wlnaow 274 cast-In-place concrete pile 103
PtJsway 78 carrtharus 35 cast-In-sltu concrete 46
~tsu 255 cantilever 17 cast Iron 170
~.
cantllever ream 17 castle 99
cantilevered step 235 castle nut 84
Pt;tterfly 140 carrtilever footln~ 101 cast stone 2:37
P,J twfly roof 208 cantilever mhod 105 Catal Hiiyuk 128
289
INDEX
CJtaiyst 192 C-grade 282 chromertat.t 171
CJtcn ~sin 223 chain 247 chromium m
CJten2ry28 chair 45 chuda 255
C<ithe.dral 37 chalrr.all 1e6 chuman 255
C3therir.e wheel 36 chaltya 253 chut.t 46
C3thews 181 cham!?ergrave 243 clrortum 35
cathode 74 chamfer t~ CIE 150
c3thotk ~n rn chamfer strip 45 cinder 170
C<itlon 161 chancel '37 Clnquecento.rchltecture 133
CJulak 81 chandelier 147 cinquefoil t:l5
CJullculus 181 ch,lntry '37 circle 110
caulk 173 chaos 54 circuit 74
C<iusew;y 249 chapel '37.99 circuit ~ket 76
c;au5tlc I!rcs 157 chapter '37 circuit vent 200
C<iV311erdr.iwlng 71 chapter house '37 clrcular mH 166
C4Vetto 85.249 charret'te 58 clrcular stair 2'34
I.
cavetto comlce 249 cha~ 122 circulation 213
cavity w.. 156 chase mortlse 141 Circumference 110
~132 chat-sawn 237 clrcuII'IV311.ite 98
C~f!,. 144 chattrl 253 cistern 196
t.
cei~ 30 Chavln 129 citadel 99
ceinn~ C3'I'tti 149 check 7:13 city plannln§ 10
cei~Jc*st 211 cheaer 1M clvUlutlon 128
ull74 checkered ~te 172 c!addlng m
l
~ 250 check rail 7:12 ct.lm 'l7
~r 23 check thr'03t 'l71 ct.pboard 268
~wbr~lng 93 check valve 199 ct.ssA 89
u{lular M 101 chee!c 209 class Aflre 90
l
celtular w.1 ZlO cheek cut 211 ct.55689
cdhJlose Zl6 chemlQl bond 161 cbss6flre 90
Cdslus sale 117 chemln-de-ronk 99 ct.ssC 89
Wft:lc cross 183 chevet '37 ct.ssCflre 90
cement ~2 chevron 1M classD 89
l
ctmelTt~ 44 Chicago School 1'35 ct.ssDflre 90
caT1tnt-~ II1OI"t3r 157 chlgl 255 class E 89
cement InOI'br 157 chlllec:f water plant 125 C1asslc 130
~~43 chiller 125 C1assblarchJtuture 130
l
~ tt:nper 188 chimney 87 ct.sslclsm 133
~ph 251 chimney arch 8~ ClassIc ~I 133
u:tter no. 111.217 chimney l:oar 37 ctay224
u:rteri~ 12 chimney Preast 87 clay loam 224
l,
~ri"'4shlrn 113 chimney C3p 37 c~nout 157.200
~ 63.1'0 chimney cheel: 87 c~rsky 150
~ofplty 96 chimney comer 87 c~span 15
~ofN55 96 chimney eff~ 127 c~1'StoI)t 'l74
!o
center orresls~nu 244 chimney pot 87 ek:Jt 214
l
~ofr'.31d1ty 244
~
C~V3ge plane 237
center of risbn 72 cleres~ 'Zl4
~~2E7 china 32 cb1s 84
f
~sa~ 117 china clay '32 c!!:;1P!rifonn 45
L
~166 Chinese archlt«ture 128 eM 82
CCIW3l *c.on&tlonJ"4 125 Chinese ~uer 187 cllnUr 18.42
cen1"nIzd5 rivision n chino/serio 133 cllpjol'" 155
untnI~ t21 chlplmrd 284 cllthral 251
L
centnllud ~anIzAtlon 218 Chl-~ 18'3 clolsttr 37
~~n 127 chisel point 82 cloister9~ '37
~96 choir 37 c~vau" 263
l
ceramic 32 chord 110.259 close 37
cer.mlc~ '32 chorten 25'3 closedcornice 213
cer.mlc JI'lOSalc tIfe 33 chorus 256 clostd pbn 216
..42;'_ Chou 129 closed strill9 2.35
cenmlcware 32 chrismon 183 clostdvalley 212
l
cercls256 Christianity 35 close §raln 'l78
~teofoccupancy 49 chroma 33 closa- 20. 155
GeS5pOOf 20t chrome 171 closet bend 199
L
290
r
closure 20.265
cloudy sky 150
clustered organlz3tion 218
cluster housing 139
cooch screw 83
cool tar 215
coarse aggregate 43
coarse grain 278
coa~ texture 278
coaxial ca~le 78
coVble 224
cob~lestone 224
cock bead 268
cocking piece' 213
Code ofH3mmurabi 129
coeffiGlent ofelastlcity 164
coeffiGlentofexpanslon 165
coefficient ofheat transfer 118
coefficient ofutilization 149
coffer 30
cofferdam 221
coherent 54
coheslonfess soil 225
cohesive soli 225
coil 75.126
coln.ck:lent 109
coI:e 170
cold-air return 122
cold-cathode lamp 145
cold-draw 169
cold-process roofing 215
cold-roll 169
cold-won:lng 169
coI!3ge 54
collapse mechanism 243
collar m
col~r~m 211
collarJOint 155
collar t1e 211
collector 226
collegiate Gothic 134-
collimate 146
coIllnearfo1Us 96
COOnlalarchltutJ.;re 133
colonial skiing 268
coIonn3de 25
color M
color circle 39
colorfast 187
coloring ~ent 43
color rendering InJex 145
colorscheme 39
color temperature 145
color triangle 39
color wheel 39
column 40.179
column tr.1se 85
column cap 85
column capital 205
coIumn-cover-and-spandrelsystem 269
calumniation 179
column strip 204
coIymbethra 28
combed flnlsh 189
combinatIOn door 64
comblnatlcn window '2:14
combined footing 101
combined ~er 22.3
combined st..esses 41.163
combplate 81
combustl~ 88
combustiblt construction 51
combustlo., .Ir 121
comfort e:1'~'elope 120
comfort zor.e 120
commerciJIbronze 175
commcJrty 10
coml11OT1 alley 175
common rona 20
common brlsS 175
commonm 18
common dovetail 141
coml11OT1tap 212
common ~rithm 229
coml11OT1 iU~ 82
common~ 210
commons 139
common vent 200
communlc.Ju 58
communion t3ble 35
compact fluorescent lamp 145
comp<lCtlon 225
comp~nt3r'j color 39
comp!exlty 54
complwlum 137
compontrrt5 of afexu 96
composite column 203
compost".e decl:lng 93
Composite Ct"aer 181
composite p-anel 2M
composite pile 102
composite trJSS 261
composlte;;-zIT 156
composition 53
compourJ column· 203
ccmpressiWrty 162
ccmp~{1 162
compression g3sket 113
compressicn rralPer 238
compresslo11ll1Ok1Jng 192
compression reinforcement 202
compresslon sp!lce 203
compression test 44.162
comprtS$lv~ forc;e 162
compresSNe refrlgeratlon 124
compress.Y~ strain 162
compresslve stress 162
compres:.or 124
CO!C.3tenzt:on 55
concave 110
concaveprot 155
concealed gr.d 31
concealed r.i~ 115
concdYe 58
concentra';.tJ load 151
concentric 110
concentric te~don 2fJ7
concept 59
conception 67
cor.crete 42
INDEX
concrete Plod: 160
concrete Prick 160
concrete masonry unit 160
concrete mixer 4t3
concrete na~ 82
concurrent forces 96
condensate 176
condensatlon 176
condense 161
condenser 124
condominium 139
conduction 118
COMlJCtIvtty 74
conductor 78
condutt 78
cone 45
conePolt 45
cone of ,islan 72
corrftguratlonlsm 265
Confucl3nfsm 129
conge 185
congruent 109
contQl vault 263
conic sectlon 111
conifer '2:16
connected bad 77
con~ 59
connector 79
conok:l 220
conslstency 44
conso~ 186
con501WtIon 46. 100
constancy 265
COItstant-alr-volume system 126
constrJCtlan 48. 49. 50
constructlon class 51
constructlon docunnents 50
constructlon drawings 68
construct.lonJolnt 178
constroctlo11load 151
constrJCtlo11 managemer 48
const~ type 51
ConstructMsm 135
consultant 48
corrtactpre:ssurelOO
content 5:3
contl~~1 sating 257
contlnutty 54.265
contlnutty of outline 72
continuous ~m 17
continuous footing 101
contlnuous hinge 115
contlnuous plate 194
contlnuous slav 204
contlnuousvent 200
contour 66
contourar.awing 66
contour Interval 69
contour flne 69
contract 49
contract documents 50
Wltract drawings 68
contractlonjoint 178
contract nmtt 221
contractor 48
291
INDEX
contrad1ctlon 54 corrosion 171 critlcal ~d:hn9 stress 40
contr.;st 54 corrugatea fastener 82 critlcal density 225
contrast ratio 148 comJg3tea metal 172 crttlcal helght 210
cent:r!l1utory area 241 corrugated rooflng 214 crttlcal section 202
Contrive 58 cortlle 26 critical void ratio 225
centro/joint 178.190 ~nt 109 crocket '37
control-joint ukxk 160 cosine 109 cromlech 248
controned flll 222 cosine law 142 cr'OOk V8
control panel 00 cotJngelrt 109 cross 183. 199
convectlon 118 coulomD 2b crossbana 65.28'3
convector 123 counterbore 84 cross !?raGIng 243
conven1enu outlet 79 countMn-ace 259 crossl7lidglng 92
I
convergence 73.264 cOJnterfushln~ 177 cross-corrtcurarawlng 66
converslon!1umer 121 counterfort 270 crosscut 218 t
conversion taDkl 166 cou~ht 150 cross fortnee 183
convex 110 counterpoInt 54 cross-~met 115
l
cool :39 coonterpolse 55 cross grain 218
coolant 124 countersc3rp 98 cr0ssh2tch,lng 66
cooling degree-day 124 countersink 83 crossing 36
cooling lo3J 124 counterwelght 00 cross-lapjoint 141
coo/IItg medium 124 couple 96,211 Cr05S!~ht 150
l
cooIlng tower 125 couple-clo~ 211 crossover 199
co-op 1:39 coupUng 199 cross sectlon 70
coo~lve 1:39 course 155. 2M3 cross tee 31
cooperative apartment 139 coursed ashlAr 158 cross V2U~ 263
L
coordinate 100 coursed ruuble 153 cross ventlbtlon 121
coordln4t« 116 court 26 crowfoot 68
copal 187 courty.Ira 26 crown 12.216
copedFlirt 140 CMlent rona 161 crown gbss 112
L
copestone 159 CCJ.te 30. 1<55 crown molding 186
~266 UNe ceiling 30 crown post 261
coping DIod 160 core ~htlng 147 crown tile 214
coybnar folUS 96 corer 202 crowstep 159
L
copo~ 192 COru3ge 187.212 crud: 210
copper 175 corerlng pcwer 187 crushed gnvel 224
copper roofing 214 corer plate 173 crushed rock 224
~1155 cowl 87 crushed stone 224
L
COfi,eI arch 14 C-plu~ea 9~ 282 crypt 37
~!l.ig 155 Cf').l49 crystai 161
COft,eI V3 u~ 262 crnW~lon '202 cube 111
carine ga!7le 159 Cr3cklng load 202 culnc me3sure 166'
L
~159 cradle V3utt 263 cuPl$ll1 1:35 .
cord 79 cr3mp Iron 158 cul-de-four 61
cordon 98. 159 crawi space 23 cuU l8
core 65.75,100.225,283 cml~ 47 cult temple 249
corWo.rd 191 creative ~In4tJon 59 cultu~ t2a
l
coreUst 44 c~1vfty 59 culve~ 2ZS
Corinthian order 181 creep 165 cup 218
cmUIe 95 cre~DoIt m cupob 61
corner~ 190 crene! 99 curb 208 ,
comer~ 160 crtne~~ 99 crirox 196
L
comer roard 263 crenelle 99 curbcod: 196
cornermce 267 creosote 280 curbcut 221
COI"1'Ierbth 00 crepldoma 250 curb roof 208
L
coc-ner post 267 crescent 139 curb stop 196
comer reinforcement 190 crescent truss 261 cu~ 47
cornice 179.100 CriD 210 current 74
cornice ~htfng 147 crl!7i:llng 270 curtan 235
L
cornice return 213 cri1r.otOfi: 2:10 curt.lIs1:ep 235
corona 179 cricket 209 curt.1n 98
COfOf1et 186 cripp~ 267 curt.ln wan 269
corporation cocI: 196 Cripplepcl: 211 CUM 110
L
corporatlon stop 196 criterion 58 CurvlUnear style 132
correctlon hne 24t; critlcal angle 233 curvlhne.r t:r3cery 275
corrkIor 216 critlc.1l ~cknng load 40 cushion 102
L
29}
L
293
INDEX
diversion rox 201 dovetail hl~e 115 dropW 199
diversity~r 77 dovetaliJoint 141 drop wiMJW 272
Jok~heJron 111 dowel 85. 178 drum 6~ 180-
doJec3style 179 dowefpln 85 drummp 198
Qog-~ sbir 234 downdraft 87 drumw.U 22J
dogtooth 1M downfeed dlstrllnltlon system 197 dry-lnlrb temperature 120
dogtrot 138 downllght 147 dry glnj~.g 113
dolly 00 downspout 209 drying oil 187
I
Doity Varden sidi"4 26a draft 58.67.87.237 dryin9 shrinkage 47 I
!
dolmen 248 drafted margin 237 drym!x 44- j
dolomite 236 drafting 68 dry-paa 174-
acme 60.205 draft stop 89 dry-pipe system 90
aonJon 99 dragged ftnlsh 189 dry-press process 18
·door 62 dragon ~m 211 dryret.lJm 123
doorl;tevel 63 dragon p~ 211 dry rot 218
Qoorbuct 63 dragon tle 211 dry-~~ finish 47
aoorc;haln 114 drain 200 dry Sbnaplpe 90
Qoorc;hecl: 114 drainage mzt 176 dlj'W4" ~1
~c;le3l'3nce 63 drainage system 200 dlj'W4U frame 65
doorcontact 81 drainage Uie 201 drywe!l 2Z3
doorframe 63 draInfield 201 du.l-duct system 126
doorInteriocl: 81 dralnspout 209 dUJi sys"'..en1 244
dootpmb 63 drain Ule 201 dual vt1Tt 200
dooltnob 116 draped tenaon 207 duct 78.122
dooropener 62 Dravidian 130 ductllltJ' 164-
tfoorplate 114 drawrore 141 ductl~ 122
doorpuU 114 drawrore pi" 141 ductlr.erl22
doorsl:ln 28 dra~ 99 ductwort: 122
doorstep 63.114 drawdown 196 dumm~ 00
Dopplereff~ 228 drawl~ 66 d~99
Doric;~ 185 drawn flnlsh 169 d~~ 179
Done order 180 drawn glass 112 duomo 132
donner 209 dress circle 258 duplex 133.139
donner window 'lJ4 dressed dImension 277 duplex .~rtment 139
dosing wmw 201 dressea lumPer m duplex hc~ 138
Oos~ 36 dressed size ZJ7 durawmiil 175
00tt&l1lM 68 dressed s~ "87 dUl'3rr.en ?:J6
dou 2!).4. dresslng 271 dura~ ofload factor 200
doutne-~ door 62 dresslng room 258 Dutch ~ond 20 ,
dou~actl~ hinge 115 drift 13. e;6. 152- Dutch Colonbl. 138
dOlJ~ angle 172 driftrolt 82 Dutch@ 64-
dou~~elweld B6 drift Index 153 Dutch I.p 212
doul7le-cal7le structure 29 drift lImltatbn 153 dwarf .....a 2El l
doulMc;om~ry 39 driftpl" 82, 00 ~ 1.57
doubte-COI'TIeI"~Iccl: 160 drip Z71 ~en(;ft; 51
doub4e-G~ stnlcture 29 dripcap Z71 ~mIc~ 151
I
doul7fe doors 62 dripedge 212 dynllma: pi1eformula 102
l
doulk-egress n.ilne 65 drip molding 271 dynarnlcs ~. 97
dou~ plpc 172 dripstoM 159 dynarnlc win.:! pres$Ure 154
doul1le-mmea roof 210 drive ;lana 102 I
doubte~ 113 drtvescrew 82 U
l
doul1fe grid Z39 drive shoe 102 urlyChri5tbn Archttecture 130
c:IoulM-hul1§ window 272 driving sheave eo urly English s~ 132
doubtejack raft« 211 drolt'105 246 urlyF~styIe 132
l
doul7le-l stair 234 drop 122, 100.263 urly Renaissance 132
doulM overil2nglng ~m 17 drop.arch 14- early wood 216
doul?fe-rtturn Sblr 2M dropcelling 31 e;arthen.....re 32
doulM roof 210 dropchu~ 46 earth prtssure 151
L
doubfe-s~ glass 112 dropllght 147 e;artho,lQl:e 152
douWc Ut; 206 drop panel 205 earthqu.~ load 152
dou"~-vee weld 86 dropped celbng 31 e;arth ~ck wall 270
doul?llng course 212 dropped girt 1m earthM:ri: 221
L
dougo"4 254 drop-point slating 213 easea~ 140
dovetail 141 drop siding 2GB easement 140.221
dovetail halving 141 drop stage 257 e;aves 209
I
I
U
294 I
L
INDEX
eaves course 214 electric motor 75 enthalpy 120
eaves fbshlng 212 electrode 74 entrained air 42
tJves trough 209 electrolysIs .171 envlronmental design 10
E~ul~ 145 electrolyte 74 envision 59
eccentric 110 electrolytic protectron 171 EroM 215
eccentric ~racl~ 244 electromotive force 74 ep1center 152
eccentric force 162 electron 161 eplnaos 250
eccentricity 41 electroplate 171 epoxy mortar 157
ecutTtrIc load 162 electrovalent rond 161 epoxy resin 193
eccentric tendon 207 element 161 epuro 67
echlnus 100.181 elevation 70.247 equal leg angle 172
echo 230 elevator 00 equal loudness contour 229
eclectic 134 elevatorcar 81 equiangular 109
eclecticism 134 elevatorcarsafety 00 eqUilateral 109
ecanomy 58 elevatorpit 00 equl~tel'3l arch 14
economy ~ricl: 19 elevator shaft 80 equInlncint 97
ecanomy wan 156 ell 26.199 equlll!mum 55.97
ectyPC 59 elhpse 110.111 equIlIPrlum diagram 97
~ 111.218 elnpsold 111 equIlI!mum moisture content m
~Plocl: 113 elllptlcalstaJr 234 equinox 226
~cle3r3nu 113 elllptlcalsurface 220 equipoise 55
~ distance 84 enIptic p.rarolold 219 equivalent load 151
edge gr41ln Va elong3tlon 162 equivalent round 172
ed¥joint 140 emUattlement 99 equivalent thickness 160
ec!gu 47 em!1edded space 218 ER ~ul~ 144
earflce 22 emPedment length 202 erect 49
effectlve a~ of concrete 202 emPoss 182 erection ~raclng 151
effective area of reinforcement 202 emUrasure 99, 159 emtlon stress 151
effective ~ 202 emergencygenerator 75 ergonomics 57
effw-lve ler.gth 17.41 emergency hghtlng 91 escalator 81
effectlve ler.gth factor 41 emissivity 112. 119 escarp 98
effective prestress 206 emphasis 54 e$C011 son 63
effectlve span 15 Empire style 133 esclItcheon 116
effective tem~ture 120 emp~cdlprocess 280 esortarthex 35
efflcacy 144 enamel 32. 187 esqulS5e 67
efficiency a~rtment 139 encased knot 278 esthetlcs 10
efflorescence 18 enceinte 99 Et~an architecture 129
effl~1Tt 201 encl'03chmtmt 221 Eucfkk3n geometry 108
~andd3rt 101. end-P0e3rlng pile 102 Euctlkan space 217
~ and tongue 181 end distance 84' Euler Utic1:Jlng load 40
~crate 146 end grain 278 eurythmy 56
~sheR 187 endJolnt 140 eustyle 179
~storte 236 endlap 212 ev3luate 58
~gn arch~re 128 end-lapjoint 141 evalmlon 58
EgyptIan~ 249 end-nail 82 ev3por41U 161
~ntpenny rtla 82 endur.ance r41tio 165 M poratlve coohng 120
el 26.199 enawall 223 evaporator 124
elastic dd~1on 164 energy 167 evugreen 276
elastic des~n 240 energy ccd6 51 evolute 110
elasticity 164 energy effk:ltncy rating 124 excavation 221
elastlc limit 164 enfllade 216 exulslor 119
elastic modulus 164 engage 59 txe<b :35
elastic r.nge 164 er.gaged column 266 exfol13t1on 43
elastomer 193 engawa 137 exhaust air 125
elastomerlc 215 engineer 48 exhaust fan 127
elasto~rIc rocflr.g 215 engineered ~rlck 19 exhedra :35
el~ 199 er.gl~ grade 282 existing grade 222
electrical metallic tubing 78 er.glneerlng 11 exit 91
electric arc 86 englneer's chain 247 exit access 91
electric cd! 74 English rona 20 exit corridor 91
electric charge 74 English cross rona 20 exit court 91
electric eMtor W engrave 182 exit discharge 91
electric furnace 121 enneastyfe 179 exltdoor 91
electric heat 123 entablature 179 exit light 91
electricity 74 elTtasls 180 exit passageway 91
295
INDEX
exit st31rw3)' 91 face putty 113 flllgree 182
~113~35 face shell 160 flll 222
~arldea cby 43 face string 235 filler 192
exparldea IT'Ie't.1I 172 face width 2:79 fillermetal 00
expanJed-~rbth 190 facing 156 fillerpbte 174
expanded pl.15tlc 119 faclng~k 18 fillet 181.185
expanded $h.;lle 43 factore.d load 240 flllet1ng m
expanded slJte 43 factored load de$lgn 240 flliet wekl 00
expankd view 71 factor of safety 240 flllister heaa 83
expansion ~ 197 facto!)' lumPer V9 fllm 192
expansion ~ 84- Fahrenheit scale 117 fllter 125
expansionjo/lTt 178 faIf 200 fllterfa!nic 176
expanstonJoln~cover 173 fafsefront 24 final prestress 206
expansion loop 197 fa lsewer.: 49 fine aggregm 43 L
~anslon screed 190 fan 127 flnegl'3ti1ng 222
~anslon s.h~ 84- fan-cell unit 126 fine text.u~ V8
I
~anslon sleeve 84-.173 fancy 59 fingerjoint 140
expansion v;;~e- 124 fanlight 63 finial 37 J
expanslvtty 165 fan trus5 261 finish w.rt 187.188
exp!od~~ 71 fa nvault 263 finish floor 92
J
explosive ~ 86 fascia 181. 213 flnlsh flooring 94
ex~ a~~te finish 47 fascia Poara 213 finish gratle 222
ex~gr'J 31 fastening 82 finish h3rdW3~ 114
exposure 212 fastes~-mlle wind speed 154 finishing 47
j
exposure I 2.82 fast-pin hinge 115 finishing nail 82
exposure 2 232 fast-trn;i: 49 finish string 2:35
exposure canditlon 154 fa~ue 165 Ank truss 261
exposure dIra~Ilty 282 ~uenmlt 165 flntu~ 12.3
expression t2.8 fatlgue rat!c 165 flre-alann system 90
~
~ plalum system 122 fat mix 157 flrearea 89
roende.:l-5eT'Vce lamp 144 faucet 197 flre assem~ 89
extensl~11ty 178 fault 76.152 firebox 87
extenSion PoIt 116 fe-3Sllntlty study 49 flrei1reak 89
J
extension C4ser.'1ent hlnqe m fe3ther 140 flrel1rick 18
exten$OFne"..er 162 Federal style 133 fireclay 18
exteror 2.82 fu,dlr.;cl: 58 flreaorbln 257
exterora:o.sle 109 fuJer 75 flrecut 93 I
I
~.¢ior exit 91 feint 177 flie d3mper 89
exterbr I:XIt racorrJ 91 ferT'...1e 199 flrc:-ktectlon systtm 90
•
exterbr p:ar.d 205 fenestration 24 flredoor 89
t:xtaior plywood 2.82 fe rrocemerrt 2fY2. fI~escape 91
ext.eror ~ n266 ferroconcrete 202 fire h3zara 88
~I ~ component 150 ferrous ~I 170 firehose 90
oo:enul waR 266 femJle 281 fire hydrant 90
extn-st~ plpe 172 FeitJle Cresurrt l28 flrebU 58
extnJos 12 festoon 184- flreplace 87
extruded pofystyrene 119 fi~r 2:76 flreplug 90
roruslon 169 fI~rb03rd 119.284 fireproofing 88
eye 2.64 fl~rb03rd sheathing 119 flropump 90
~Dolt 34 F1~g!as 119 ftrc-r.ua Be
r/'ftm:,..., 209 flPoergbss 119 flre-rcsisbnce rating 88
eyelet 99 fI~gbss ~Jnforced ccncrete 202 flre-reslstIvIJ 88
fi~rglass-relnforced plastic 193 flre-~rdant p2lnt 187
Ff fl~g!ass shingle 212 flre-~rdant wood 28Q
faDrlc 53 fI~r-sa~ratlon point m flresaftty M
faDrlc3te 50 APonaccl series 56 fire scrttn 87
facade 24 fleld 155 flre se~ratlon 89
face 98 ~Ikd panel 268 flrestop 20T
face urick 18 fleld of vlslon 264 firewall 89
face clearance 113 fieldstone 237 fire wln&ow 89
faced Dba 160 field tile 214 flrezone 89
faceJ wall 156 ~ure 109.265,283 firing 32
fau glazl~ 113 ~ured glass 112 flrmness 11
fac~-nall 82 ~ure-ground 265 first floor 23
f3Uplate 79,116 filament 144 fishjoint 140
I
296
r
"'
:*..
~
INDEX
flshpl3te 140 floor coverfng 95 form 45.52. 53
fued arch 13 floorframlng 92 form-actlve structure 238
fued connection 242 flooring nail 82 form deckll'19 93
fixed-enJ Pe3m 17 floor pl3n 69 formeret 263
fixed-end connection 242 FIorentlne mosaic 182 Formica 193
flxed frame 104 flowing tracery m form liner 45
fixedjoint 242 flow pressure 197 form nail 82
fixed~ht m flow rate 198 form tie 45
fixedsash m flue 87 formula weight 161
fixture drain 200 flue lining 87 formworX 45
flxture unit 197 fluid 161 fortification 98
Fl3mPoy.int style 132 fluid-applied roofing 215 forum 251
/'
fume finish 2:!J7 fluid ounce 166 foundation 100
flame retardant 88 fluorescence 145 foundation drain 176
fume-spread ratlng 88 fluorescent I3mp 145 foundation Investigation 225
fbnge T73 flush read 268 foundation walt 101
funge al'.gle 173 flush bolt 116 Four Nol?leTruths 253
funk 9B flush door 65 four-pipe system 126
flanking path 232 flush frame 65 four-way switch 79
fuph~e 115 flush girt 107 fox!lalt 84
flarot header 20 flush glazing 113 foxtail wedge 141
flashing 18.177 flushjoint 140. 155 fox wedge 141
fush pelnt 88 flushometervalve 198 foyer 258
flat 139.187.257 flush panel 268 fractal7le 159
fut arch 14 flute 100 fracture 164
flatgraln 278 flutlng 100 frame 104
flat~ 83 flutter 154. 2:!JO framed connection 174
flat-jolrrt polntlng 155 flux 86 framed tube 245
flat pQte 205 flux-cored arc welding 86 frame house 267
futroof 208 flyash 42 frame system 244
flat slap 205 flying Mtress 262 framewori: 106
flat sllclng 283 flying form 45 framl"9 106
flat truss 261 flying shore 221 framing anchCr 85
flat use ~ctcr 280 fly left 257 framing pUn 69
melle'S! fly rafter 211 FranklIn stove 121
Flemish rond 20 foamed pl3stlc 119 free-!lady diagram 97
Flemish cross !land 20 foamed-In-place Insulation 119 freefal! 46
Flemish dlagonal band 20 foam glass 119 freehand drawing 60
fleur-de-Bs i84 foam (UpPer 193 freestone Z1J7
fbllTe 238 focus 217 freight elevator 00
fbll7le duct 122 focusing 2:!JO French arch 14
fbl~ metal conduit 78 foil Zl5 French door 64
fbure formula 16 foll-17acW ~psum Paard 191 French drain 223
filer 234 folded plate 194 French wn~ 273
files 257 folding casement m frequency 228
flight Zj3 fotdlng &ocr 62 fresco 132
flitch 283 foliated 184- fresh air 125
flltch pe4m 281 foliation 275 fresh-air Inlet 200
flitch ~Irder 281 folly 'Zl Fresnellens 146
flitch plate 281 font 35 fret 1M
float 47 foot 166 frictional ~mplng 245
float ftnlsh 47. 139 foot-candle 142 friction pile 102
float stass 112 footcut 211 frieze T79.186
floatl~ ca.t 138 footing 100 frlt 32
fuatlng foundatlon 101 foot-Iamrert 142 front 'Zl
float switch 79 footlights 257 front ~rth 87
float ~lve 198 footpace 234 frontlspleu 24
fucW carpet 95 foot-pound 167 front of ~ house 258
flood tamp 147 force 96 frost Pan 100
flood level 198 forcearm 96 frost heave 100
flood~ht 147 forced warm-aIr heatIng 122 frostllne 100
floor 23.92 forecourt 25 frustum 111
floor anchor 85 foregrouna 265 fuel-contrll1utlon ra tlng 88
floor C3vlty 149 foreshortenIng 73 fulcrum 97
fuorc~ 114 forge 169 full-celiprocess 200
297
INDEX
fun fr3 me 107 general diffuse I~htlng 14S grau~r 198
full·penetnt.loa weld [;6 generalllghting 148 gradation 55
fu/l-surfau hln4e 115 general purpose circuit n grade 222
functlon 58 generator 75.111,124 grade ueam 101
functloo2l ~1on 57 generatrlx 111 gradedaggregate 4:3
functlolUl ~rouping 216 geodesic dome 60 grade line 222
Functionalism 135 geometric 52 graaemart 200
fund3~1 m geometrical stair 234 GradeN 160
fund3menbl~ m Geometric style 132 grade stake 222
funda:renbIperiodofvfpratloa 152 geometrlc tracery 275 gradestamp 282
funicular arch t3 geometry 108 grade strip 45
funlcu~ curve 2fJ Georgian archltuture 133 GraaeS 160
funlcut.rpotygcn 23 geotechnical 225 gradln 2.56
funlcu~ shape 2fJ ge.otextlle 176 gradlne 2.56
J
funlcul.1r ~ 28 gestalt 265 grading plan 69
funicular truss 259 Gestalt psychology 265 graffiti 182
furnace 121 gesture 66 graffito 182
furring 190 gesture drawing 66 grain 2:51.278
J
fuse 76 gfrc 202 gram 167
fus/ple alloy 76 gludoor 64 gram calorie 117
fus/~Ie nnk 89 gingerbread 134- grandtler 258
fusll71e metal 76 girder 106 ~ranlte 236
fuslon~C3rpet 95 girt 107.269 granular material 225
glacis 98 graphic T3
Gg glare 148 graphic scale 69
gatnon 270 glass 112 gravel 224
gal71e 20a glass Plock 112 gravel drain 176
~aPle &onrc 209 glass PrIcI: 112 gravel stop 215
93PIe roof 200 glass door 64 gravity 167
~Plew.~ 266 glassea surface 7:37 gravity hinge 115
~~ wlrubw Zl4 glass mullion system 113 gravity wall 270
~roon 135 glass Size 113 gravity water system 197
gage 172 glass wool 119 gray 39
~hI 115.141 glaze 32 gray scale 38
gal:k.e 37 glaze coat 187 grease Inte:uptor 201
93/1er1a Zl glazed wall tile 33 greaS<l ttap 201
~11ery 36.216. 253 glaze-flred 32 greatclrcle 60
galla 158 glazIer's point 113 greathan 99
~1Ion 166 glazing 113 GreatWall ofChina 129
g4lvanlc cell 74 gl3zlng uar 271 Gl'ubrchltecture 129
9 Ivanle C()rrO$~ 171 gl3z1ng l7ead 113 GruI: cross 183
~lvanle saies T71 glazing urad 113 Greek temple 250
l
~lvanl:ze 171 glazing compound 113 GruI: theater 256
~Ivanlzed Iron T71 glazing size 113 green 157
i3mUrtl roof 208 glazlng step 113 GreenfteId conduit 78
~rJen~~ 139 glazing tape 113 green room 25a
l
!prden-wa! ron& 20 . gloP" valve 199 grid 68.101. 257
~rde~ 99 gloss 187 gridiron 257
prP.J'le 37 glory 183 grid organization 218
J2rret 158 glued·lamlnated tlmw 281 grid structure 195
•
;;rt."t 37 glu~m 201 griffe ~
l
~s 161 gneiss 236 griffin 183
f35 furruce 121 goaroon 185 grillage 101
f3s1:et 199 gold In'onze 175 grille 122
L
i-3S weldl"4 [;6 gokfen mean 56 grisaille 66
.ltecontJct 81 golden section 56 groin 263
3te vaIve 199 gong 254 groin riP 263
3th~ 122 good grade 283 groin vault 263
L
auge 19.95. T72. 212 ~neck lamp 147 grommet 78
auged ~5ter 183 gopuram 253 groore weld 00
auglng pU~ 1.M gorge 98 gl"O$s cross-sectional area 160
autama Buddha 253 Gothic arch 14 grotesque 183
nero ?:l Gothic architecture 132 ground 76.190.265
L
Pulp 144 GothIc Revival 134 ground acceleration 152
~l1tral CO(!tr.1ctor 48 government system 246 ground be3m 101
r
U
}8
r
c
grouncJ~kl~ 221
grouncJ coot 137
grouna War tb7
grour~ conductor 76
grourJ t.ult 76
grour.J.-hult Interrupter 76
grourJ roor 2.3
ground"u"1g electrode 76
grolmding outlet 79
grour.ding plug 79
grour.a ~ht 150
grourJ nne 72
grouna pbne 72
grour.a $bu 101
groUM-Hater 22.3
grour.a wire 76
group numPer 2.b2
grout 157
grotMdframe 65
grotMd masonry 157
grout ~ 157
g~pour 157
grow-;h ri~ Zl6
grypi'.on 183
gud¥on 115
gulde~n 246
guide rag EX>
gul/cd-.e 1M
gub 1.85
gu~ 254-
Gur.r~ 46
GurTt.e:r's chain 247
Gur..4 00
gus~ 261
gust. mtar 154
gutt. 180
gut~nnd 180
gUt"".a' 209
9utt¢" h4"¥r 2q9
guyC4~ 29
gypsum 188
gYpS~1f1 roard 191
gyps~!I1 14th 190
gyp$'Jm-perIlte ~5W 188
gyp$m pbster 1M
~!!1 she3thfng 191
gyp$i::H'ermlcullte plaster 188
Hh
halde:1 255
h3lf-~ dov~U 141
half-byjoint 141
haff-C"«tlse hinge 115
h..ffpu tandl~ Z34
halfr~ 182
halfrwnd 185
haff-rotJt1d slicing 2.b3
halfspa bndlr.g 2.34-
haff"SIJrfau hlr.g~ 115
haff-tlml>er 107
haff-tlJm stair 234
hall 216
hall·"'"j 216
hala 183
hala~ lamp l44
halvedjcint 141
ham1M'" ~m 210
hammer-~.m roof 210
ham1M'" UT'3U 210
hal!1li"o¢( post 210-
ha~d 1:4 .
handr.;;1 233
hands?S"t-and-resawn shake 213
han~~ 85
Har.glr~ Gardens of 6a!7ylon 129
hanging gutter 209
han~i:>g step 235
hangii14 stIle 64. 2:12. Zl3
haptic 57
HmFP 128
h3rd'mrd 284
hard-~med 32
hard f.,l:sh 188
hard r~ht 148
hardr.eso 165
hards-~ 170
h4rd"t'f"4H 1M
hard"Ir"4r"e 114
hard"Ir"3r"e cloth 172
hard jlijJter 197
hard"...ocd Zl6
hanrcr:'c 228
h4r.r.x:1c motion 152
Iwnrcr.1c progresslon 56
h3nr...
~~ series 56
h3nr.:~ 54
harpeJ teno011 207
h4$hir;l 255
h...-Uhi~g 66
Hat·her 249
Hau-c:--reaaed 249
HatJ-:or'G 249
h3ur~" 12. 17
haur0.eJ tenon 141
head 63.197.2T3
ke3~ 19.92
hadab'lccl: 160
had f'.lShing 271
~dir~ COU~ 20
~djd1T"t 155
~? 212
r.e3arocm 233
headw3g 22.3
ke31~ 113
ke3rir~ 229
hari~~ loss 229
harP! 87
har-....ood 276
heat 1f7
heat-.;.soruing glass 112
hat C4racity 117
he; t ccr.tent 120
hat ~h4nger 124
he3U~~ ugree-dJ)' 121
hat!~~ 'cad t21
he3t.'~~ medium 121
h~3t cf C011dens.aClon 161
h~~ ;of fus!cr. 161
h~: cf hydration 47
he3~ cf scfldrflcatlon 161
INDEX
heatofvaportz.ation 161
heat pump 124
heat-reslsbnt paint lb7
he3t sink 124
heat-strengtheneJ glass 112
heat-treat3U1e alloy 175
heat treatment 169
heavy-timberconstruction 51
hectare 166
heel 259
Heial1 131
height 109
height factor 154
hellcllne 233
hel10d0n 150
hellx 110,181
Hellenic 129
Hellenistic 129
hept3style 179
hermetic 112
herringrone 184-
herrlngrone matching 283
hertz 228
hex,ogon 109
heX3!:ram 183
hexahedron 111
heX3style 179
hexhead e4J
hiding power 187
HlDbmp 145
hleT'3rchy 54
high altJr 57
high chair 45
high-densityoverl3y 282
high glass 187
high-Intensity dl~arge lamp 145
high key 66
hlgh-Ilft grouelng 157
high~ht 70,148
high-output lamp 145
high polymer 192
high-pressure laminate 193
high-pressure sodIum lamp 145
high-range~lant 178
high relief 182
High Retulssance 133
high-rise 22
high-strength bolt 174
high-stre~th low-ailoy $teel 170
high-tech 135
high-~sIon I10It 174
high-velocity duct 126
hlgh-voltage 75
Hinduism 253
hinge 115
hinged frame 104
hingejolnt 242
hInge stile 64
hip 209
hipJack 211
hipped g3U1e 208
hipped roof 208
hlp rafter 211
hlp roof 208
hlp tile 214
299
I
INDEX
hl$~ t2a house.djoint 140 lm~tlon 134.212
HIUlteaniltecture 129 hou~ anIn 200 Imp~ fictor 151
~.0g311 G6 house.:! string 235 Imput Insu~lon class 232
hols~ C3PIe 00 ho~hts 251 Impw.~d 151
hols~ NChlnel)' 80 ho~ sewer 200 Im~ noise 232
holstw.y fJO house stonn drain 223 Im~us soil 225
hols~.wr 80 house stenn sewer 223 Implt:nent 58
hok:l<JoM e5 house tnp 200 lmplwkJm 137
hotdt.brl dp 214 ho~unlt 139 lm~nufactor 154
honow-b:t.ed 94 Howe 261 Im~ 12
hoRow-c;oredoor 65 H-p~ 102 ImpostL>lccl: 36
hollow-coresla11 206 HP-sh3pc 172 1113~1eaf 62
hollow NSClnI}' unit 160 HPS bmp 145 In-~r.::!-out ror.::! 158
hollow-~ door 65 Hsb 12a InC4 ~rchtt:ecture 132
hol~lfr.ame 65 hue M lnc~nksc.ence 144
hollow~ M hum;;n englneerln~ 57 IIIC4n.:.!escent lamp 144
hollow unitmSOl1ry 157 hum;;n scale 56 Inch 166
HoIyArt 250 humidH'ler 125 Inch-pctJr.::! 167
noIyof holes 250 humidity ratio 120 Inclkr.ce 143
ho~s54 hU~S3sh 7:12 IncnntJ lift 81
1
roOnaen 255 hu~-sFan rJ IncreoaStr 199
hondo 255 hurr'G.lne anchor 85 I~rmlli.te 105
honed fWsII Z5l hurrlc3ne tie 85 IndlJn ;rchltectu~ 129
ho~47 hut 136 Indla r.;pPer 193
ho~ slating 213 HVAC 125 Indirect gbre 148
l
!-.oneyc.cri wort 252 hyanm 90 Indlrect ¥tJng 148
ho~omamerTt 1M hydrned lime 157 Indlrect W4Ste pipe 200
rood 87 hydrrtlon 47 Individualclrcutt n
rood.-.oY 274 hyarn!lc cement 42 Individualvent 200
l
hoct 202 hydn.ullc elevator 81 Induct1.:x1 unit 126
Hoob'slaw 164 hydrcgen rond 161 lnertps 161
roOOf' force 60 hyarooic heating 123 Inert~sconfl..3uratlGn 161
hooplne 60 hygT'01l"eter 120 lnert·~s shle~ arc welding 86
b
hopper Z!3 hyp3~hral 251 lnert~ 97
hopper~ 273 Hypa()n 215 inertiJ Plock 232
hopperMIdow 273 hyf73r 219 Infllt.mlon 118
horizoa 224 c hyperPcl3 110.111 Infb;t'.on 58. 110
L
horl:z&.m _ 72 hyperrolC pm;,olola 219 Inflec'".,i:;-n poln~ 17
r.ortwnt.i 108 ~22q Inform 59
horiz.on~ cIrcle 247 E: hypcthral 251 Infrared 142'
horizonblalaphragm 243 hypocenter 152 fnfrartJ t.mp 144
L
horiz.onbIextt 91 hypostyle hall 2~9 IngIenoc1: 87
~forcefacter 153 hypote:1use 109 Ingot l69
hortz.ont.1lfumace 121 ~fs58 Initial pc-estrtss 206
~slldl~wfndow 2:12 hypot:xhe/lum 100 In~53
L
hortz.or;~snearl~ stress 15 hystere:slsd3mpfng 245 InJ~ 1I'1CI4n9 192
horlz.on~ torsion 153 Inlay 182
hont Z71 Ii Innerm ZJG
~ 189,235 l-p~C'1 TT.3.281 Inner I.earth 87
"-'rseJ niJ 1a9 lceaz!!'i 212 II15~n~..art l.mp 145 "
~
~167 Icon 35 Il15tnJlI'Ient stztloo 247
~mhJ4 Iconostasls 35 Insu~ conum 43
~~t97 fcosJr.earon 111 Insu~ ibss 112
hosecoctl97 ~ 59 Insu~ !iJ"Sum bth 190
L
~¥tm Idle sr~ve 80 Insulnor 78
t-cs~ stop 65 IES 150 Insurance 48
hospfbI window 273 19100 1..'7,6 Int~fIo 1.82
hot 76 I9neous rod; 236 IntegraWcelhng 31
L
hot-"'P¢nnlzlng rJ1 I9nitlon point Be Intensity :38
hot-roW 169 I-Joist 281 Interctptlng dr.1ln 22.3
hot-roIIeJflnlsh 169 illuminance 142 fnterroiumnlatlon 179
not-waterheating 123 iIIuminatlon 142 fnterOome 61
b
rJJt-~ 169 Image 59,66 Interfe~nce 231
house G6 Imagination 59 Intergl"Ol'ln knot '1]8
houSe ~in 257 ImPm: 214 fn~·3ngle 109
L
r·~·
300
. -
i..-
'-
Ii.~
Ii INDEX
Interiordesign 10 jamltltlock 160 kick p13te 114,235
Interiorpanel 205 jaml1stone 159 kiln 18
Interior plywood 282 Japanese architecture 131 klln-dr.ea m
Interior wall 266 Japanese lacq~ 187 klloulorle 117
Interlacing arcade 36 J-~It 84 _ kilo!Jr.om 167
Interlocl:lngjolnt 158 jerl:inhe:.ld 208 kllogrJ" caIorie 117
Interlocking spaces 218 Jerusalem Cross 183 kllome~ 166
Interlocking tile 214 jlltdoor 64 kilowatt 74
Intermediate column 40 joggle 140,210 kllowrtt-hotJr 74
Intermediate rilt 263 ./O!1gle piece 210 klnest~la 57
Intermediate stiffener 173 ./O!1gle post 210 kinetic theory of neat 165
Internal damping 245 Joinery 140 klngb«; 261
Internal dormer 274 jolntcompound 191 king closer 2D
Internal reflected component 150 Joint filler 178 king fOSt 210
International style 135 Joint mC'lemet1t 178 king rod 261
International System of Units 166 joIntrelnforc.ement 157 king trt.:ss 210
Intersecting arcade 36 Joint sealant 178 kip 167
Interstice 218 jolnttape 191 kite wlnaer 234-
Interstlt131 239 jolst 92 kiva 136
Intertrlglyph 100 jolst anchor 85 kn~ 105
Interval 55 jolstl1ancl 204 kn~mu 243
Intonaco 189 joist girder 173 kn~1er 159
Intrados 12 jolsts and planks 279 knee w:ail 211
Intuition 59 Joist slalt 204 knrfe-!*lclefuse 76
Intumescent paint 88 joule 167 knife s·...ttGh 79
Inverse-square law 142 Joule'slaw 74 ~nltW eJrpet 95
InverteJ tee 206 judas 114 knOO-.nd-tuPe wfring 79
Invlslltle hinge 115 judas hole 114 knockdown frame 65
Involute 110 Jucl9ment 58 knock~ 114
Ion 161 Jugenclstll 134 knock::vt 78
ionic rond 161 jumro urick 19 knotZJ8
Ionic order 181 junctJG.n I10x 78 knock'.e 115
IRlamp 144 Jutty 107 kodo 255
Iron 170 Juxtaposition 54 I:ondo 255
Irregular grid 239 Kor3~ 252
Irregular mass 244 Kk krrlt paper 18
Irregular structure 244
~
!:.a'aDa 252 kung 254-
Islam 131 kalro 255
Isf3mlG architecture 131 kakemono 137 LI
Isobar 102 k.lameln door 65- label 159
lsocephallc 73 bolln 32 IabeW 89
Isochart 146 Kasug:a-zukurl 255 labyr."t-h 37
Isolated footing 101 katsuogl 255 !ac 187
isolationjoint 178 K-Prace 243 1aud.,..11et 212
isolation mount 232 ~ 185 !acIng 174
lsolux line 146 I::..eene'scement 188 bcquer W7
Isometric 71 keep· 99 !acurtJr :?O
Isometric projection 71 kelVin 117 ladder 233
Isosceles 109 Kelvin scale 117 Wych3pd 37
IsostatlG plate 194 ken 137 lag 12
lsostatlcs 194 kerf 31 lag btj-; 83
lsotroplG 162 kerfl"~ 186 Iaggl~ 221
Italian Renaissance architecture 132 kern 41 lag screw 83
Ivan 252 kern 3rea 41 1a1t3r.u 46
Iwan 252 kern point 41 131lycolumn 174
key 66.116.141.189,263 13massu 248
Jj keycou~ 262 lam~ 142
Jack 206,211 keyedjoint 141 13m~'slaw 142
Jackarch 14 k~ole 116 lamell... 195
Jacking force 206 key pattern 134 lamella roof 195
Jack rafter 211 keyston~ 12 laminate 193
jalousie Zl3 key swttch 79 Iamln3ud block 94
jalousie Window 273 keyway 45.116 f3mir...'M:/ glass 112
Jamb 63 Khmer 253 Iamlna'M:/ veneer lumber 284
Jamb anchor 65 klbla 252 13mp W4
301
INDEX
low-lift grouting 157 mansard 208 menhir 248
low-key 66 mansard roof 208 mercury lamp 145
low-pressure laminate 193 mantel 87 mercury switch 79
low-pressure sodltJm lamp 145 lI'.3ntelplece 87 mercury-vapor lamp 145
low relief 182 manteltree 87 merge 27
low-rise 22 marole 236 meridian 226
Iowslde wlnaow 274 margin 212 meridional force 60
low-voltage 71 lI'.3rlqold window 36 meridional line 60
LPS lamp 145 marlnevamlsh 187 merion 99
lsill 267 marquee 258 mesa 1:36
Lstalr 234- ruscaron 183 mesh 172
lucarne 61. 274 mashrereeyeh 274 meshr~eyeh 274
I
luclte ·192 lI'.3sjld 252 Mesoamerica 130
lug 5111 271 mask 183 Mesopotamia 128
luml1er 271 Masonite 284 metal 169
I lumen 142 masonry 155 metal decking 93
l
lumen method 149 masonry arch 12 metal lath 190
lumll13lre 146 masonrycement 157 meta",c!7and 161
lumll13lre dlrt depreciation 149 masonry nail 82 metal pan 31
lumll13lre efficiency 146 mass 67,167.217 metamorphic rock: 236
luminance 142 massing 52 metaphor 59
luminous ceiling 31 mast 29 meter 166
lumInous flux 142 mJstaUa 249 metes ana PoUl1ds 246
luminous intensity 142 Masterforrnat 50 metes-ana-rounds SUNey 246
lunette 61 mastic 95,176 method ofjoints 260
luthern 274 lI'.at 101 method of sections 260
lux 142 matched lumber 279 metope 100
Iychnosco~ 274 matching 283 metric sarnn 231
matulal 161 metric system I~
I Mm matter 161 rnetIt ton 167
machlcolatton 99 M3urj3 129 mew 139
machine beam 00 maximum demand 77 meyd3n 252
machine role 84 rr.axlmum overall length 144 mezunlne 23,258
I
machine Dum 278 MaX"Nell diagram 260 mez:w-rellevo 182
machine raUng zeo M3y3n architecture 130 Mlcrolam 284-
machine room 81 meander 184 micrometer 166
machine screw e3 IT'.t3n radl4nt temperature 120 micron 166
machine stress-~t!ng 200 ~ ns ofegress 91 mlcropascal 229
made ground 222 mea~re 166 MWteAgesl30
maarasah 252 IT'.t3suring point 73 middle strip 204-
Magen David 28 Mt.CC3 252 mkklle-thlrd rule 41
magnesium 175 ~hanlcal Dond 190 mid-rise 22
magnetlc north 246 IT'~hanlcal drawing 68 mlhraD 252
maldan 252 mechanical equlplMlt room 125 mil 166
mall slot 114 mechanical equlvale11t of heat 167 mildew 176
main 122. 197 rneGhan!ca1 property 162 mllds~ 170
main member 241 me:;han!cal sc.ale 56 mile 166
maIn runner 31 mechanical system 121 mill CCf1structlon 51
malntenancef.ictor 149 rr.uhanlcal ventilation 127 mlllflnish 169
majoraxis 110 IT'.uh3nlcs 97 milliliter 166
maksoo~ h 252 rr~111on le3 millimeter 166
mal3chlte 236 med13tlng space 218 mlllscale 169
male 199 Mea~1 architecture 130 mlml>ar 252
malleap[e 170 medium-density overlay 282 minaret 252
malle3ule cast Iron 170 med1um-range sealant 178 mlneral-Insula~ caple 78
Malt~ cross 183 rr.ed1um steel 170 minerai spirits 187
manaapa 253 meeting rail 272 mineraI wool 119
manaJr.a 253 mutl"4 sUIe 64.273 Minoan architecture 128
mandorla 183 ~hth 248 mlnoraxls 110
mandrel 103 1T1e931"011 250 minster 132
manganese 175 rr.ekian 252 minute 108
manganese pronze 175 IT'~bmlne resin 193 miscellaneous channel 172
manhole 223 IT'd:." dome 252 MlsslO11 Style 134
manifold 122 rr.errbrane 168 mlss~n tile 214
Mannerism 133 rt'.t:T"brane stresses 219 mist coat 187
303
INDEX
miter 140 mopbC3rd 186 113vaI"ra5s 175
miterdaretall 141 mortar 157 Il3ve 35
mitered ~lvlng 141 morti~ 141 neat plaster 188
miterjolnt 140 morti~-and-tenon joint 141 necessarium 99
mix design 44 mo~ hinge 115 neck 84
mlxea grain V8 morti~Joint 141 necking 100 J
mixer 197 mortise locI: 116 neGropojls 249
mlxln~ Pox 126 mortuary temple 249 needle 222
mixing bucet 197 mos.;ic 182 needier
mixing I'lltb 120 Moslem 252 need!epu carpet 95 ~
mixing ~Ivc 199 mosqu~ 252 negative frictlon 102
mixing w.W 43 motif W4 Meg3tWe Ion 161
I
MIxUG architecture 131 motte 98 Meg3tlve moment fl I
moat 99 motte aM "al~ 913 negaUve shear 17 1
Moche 129 mouefrlt.e Z15 Neo-6.byIonlan architecture 129
Mochlc2 129 moulding 185 Neoclassicism 133
mock-up 58 movablt partltlon 266 Neolithic 128
mo<JeI 58.59 movement 55.66 necn lamp 145
model code 51 moving load 151 neoprene 193
modeling 66 moving skiew3i1: 81 netcross-sectloll3l area 160
mMmllsm 135 movfng stalrca~ 81 net structure 168
Modernlsmo 134 moving stall'W3Y 81 Mettracery 275
modify 58 Mozar;;?lc s~ 131 Meuml76
moJIJlIon 181 MRbulb 144 neutnl axis 15
modul4lr~ 19 M-shape 172 neutron 161
modul4lrcoordlnatlon 50 MudeJar 132 newel 61..2.34.235
modulardes~n 50 Mudejar architecture 132 newelQP 235
module SO. 56 mudsln 267 newel drop 235
modulus ofeb5tlc1ty 164 Mu~mmad 131 newel post 235
modulus of ~ldlty 163 Muhamm.1danlsm 131 New ~gdom 249
modulus of torsion 163 mlllllon 62. 268. 27J newtonlfi7
~David 183 mulUlr.3yframe 105 newton-metu lfi7
Mogul architecture 133 multif:3mily 139 Newton'sflrst law of motion 97
~11'IIneJ 131. 252 muftifon 275 Newton's second law of motion 97
Mohs'SC41e 165 multi-OIJUet assembly 78 Newt...on's third law of motion 97
molsttn'tcontent m multistoryframe 105 N-graae 282
moisture exp3nslon 165 multlzone system 126 nlckef 175
moisture protection 176 Munsell System 38 nimbus 183
mold 169. 185 muntln 64. 271 nipple 199 I
molde4lnsulatlon 199 Muntz rr.etJ1 175 noP!e gas 161 .
molded polystyrene 119 muqarna 252 naVle metal 171
moldll14 U)5 mural 182 node 259
I ,
moldln9 plaster 189 mushroom constructlon 205 nogl07
/
..
~ 161 mU!:l1d 252 nogg~m
molecular weight 161 Mushm 252 no~ 231
molecule 161 Musnmarchltecture 131 noiseCl'&1ia curve 231 I
Molty 64 mutule 1M noise reduction 231
k
moment 96 Mycenuan architecture 129 !IOIsereduction coefflclent 231
~.nn 96 Mylar 193 nominaldimension 19. m
mo~center 96 nominal slze '07
I
~ connectlon 174 Nn non~rInf partition 266
mo~~m U Nagarc-zul:url 255 norWearl~ w.U 266 l.
momentc:IIstril7utJon method 105 1l3i1 82 I'IOfICOInl,ustlP!econstruction 51
Il1Oft1entof lnertla 16 nailing strip 82 nonconcurrentfolUs 96
L
II1Oment-reslstln~frame 104.244 Il3naalmon 255 nonconforming 51
Monellletal 214 Il3nometer 142 nonferrous metal 175
monochrONtlc 39 Il30S 250 non-hQt-trc.t3u!e alloy 175
monolith 248 Nara 131 non-Ioaa-l1e3ring partltbn 266
L
monolithic ttrmzo 94 narthex 35 non-loaJ-pearing wan 266
monomer 192 Il3tul'lll cement 42 nonmetallic sheathed cable 78
monopteron 251 Il3tural grade 222 nonobjectNe 52
monotony54 natural period ofvl~r;;tion 152 nonparallel system 244
L
Moor 131 natural rubDer 193 non-prcssure-treated wood WO
Moorish .rch 14 Il3tural ventilation 127 nonrec.overaVle light loss factor 149
Moorlsh arcl1~ture 131 .nautlcal mIle 1% nonrepresent3tlonal 52
J
li
304
f
L.::
n01lstalnlng mort3r 157
nonvltreou5 52
nortrl3/ force method 154
normal str~s 162
Norman architecture 151
Norman brlc~ 19
Norman Conquest 131
north arrOW 69
Norwegian Iniy~ 19
nosing 233,262
notice to proceed 49
novelty siding 268
nut 84
nylon 192
00
obell~ 249
object line 68
oblate 111
oPIate spheroid 111
ob~ue 71. 108
ol7llque projection 71
oblique section 70
obscure glass 112
obsidian 236
obtuse 109
obtuseangle 108
occupancy load 151
occupancy separation 89
occupant load 91
octagon 109
octahedron 111
octastyle 179
octave 228
oculus 61
oell-&e-boeuf 274
off-center 110
offset l1end 203
ogee 185
ogee.rch 14
ogive 263
ohm 74
Ohm'slaw 74
ell-borne preservative 280
oll-c.nnlng 214
ollfurn.u 121
oUIet 99
011 of turpentine 187
oilpalnt 187
oilstaln 187
oi/v;arnlsh 187
olfactot:i 57
olive hinge 115
olive knuckle hinge 115
Olmec architecture 129
on center 267
one-point perspective 73
one-sheet hyperoolold 220
one-way 238
one-way slab 204
onion dome 36
oolite 236
opaque 143
opaque stain 187
open boarding 213
open cornice 213
open eav~ 213
open-end I1locl: 160
open grain V8
openl~ Ie;;f 62
open mortise 141
open plan 216
open riser 235
open-riserstair 235
open slatl~ 213
open 5tr1~ 235
open-5trln~ stair 235
open-timbered 107
open valley 212
open-wet? steelJOist 173
openwort 182
opera house 258
operal11e Window· 273
oplsthodomos 250
opposition 54
optical illuSion 264
optical mlxlng 58
optical plummet 247
optlmum moisture content 225
opus Alexandrlnum 182
opus StGtile 182
opusvermlculatum 182
orchestra 256,258
orch~tr;J pit 257
orch~tra shell 257
order 12. 54
ordinary co"structlon 51
ordinate 108
organic 52
Organic architecture 135
o:-ganlc soil 224
organlz3tlon 53
orfel Z14
orient~1on 2J. 264-
oriented strand!1oard 284
orlgl~nty 59
ornament 182
orthogonal projection 69
orthD9r3phlc prpjectlon 69
oscIllate 152
osclttatlon 152
OsIrtin column 249
Ottoman ;Jrchltecture 132
Ottan13n archttecture 131
oul7l~ 99
outerIlearth 87
outlet 79
outlet rox 79
olltnne 66
outlool: 217
outrigger 211
outside air 125
outwort 98
0'131 head 83
oven-dry m
overourden 221
overcast sky 150
overc103k 214
overdoor 63
overflow 198
INDEX
overhanging beam 17
overhead concealed closer 114
overhead door 62
overrelnforced section 202
overturning moment 153
ovalo 185
owner 48
oxeye 274
oxidation 171
oxIde 171
oyelet 99
.Pp
pace 234
pacbged airconditioner 124
pagoda 254-
pal-Iou 254
paint 187
paint system 187
palazzo 26
pale 38,98
palisade 98
Palladlana 94
Palladian motH' 274
Pallava 130
palm capital 249
palmette 184
pan 204
pan-and-roll tilIng 214
pane 271
panel SO, 64, 76.204,259,268
panelboard 76
panel cflp 212
panel grade 282
paneled door 64-
panel l!e3tlng 123
paneling 268
panel length 259
panel load 259
panel point 259
panel strip 204-
panel system 269
panel waH 156
panhead 85
panic Ir.tr 116
panic bolt 116
panic hardware 116
pantheon 251. 255
pantlle 214
pan tre3d 255
paper-backed lath 190
pal'2Pola 110,111
parabolic reflector 146
parabolic surface 220
paraboloid 219
paradise 37
parallne drawIng 71
Parallam 284-
parallax 264
parallel 74,108
parallel-chord truss 261
parallel forces 96
parallelogram 109
parallelogram law 96
parallel strand lumPer 284
305
INDEX
p'l'2pet 98.266 penetration test 225 picture window 274
parapet stIrtlng tTl penny 82 plend 185
parascenlum 256 pent Z08 pier 105.266
f'AR l1ul11 144 pentagon 109 pig 170
?,rga 87.176. tag pentastyle 179 pig Iron 170
:argetlng 87.189 penthou56 00. 139. Z08 pigment 187
;;;3rgl14 176
0
pentlce 208 pigmented stain 187
;7arli3menthinge 115 people mover 81 pigtail 79
..3rodos 256 percentage relnforument 202 pilaster 266
~rquet 94 perceptlon 265 pilaster ~ 160
"rquet circle 258 perched waterta~1e 223 pile 95.102
.arquetry 94 percolatlon test ZOl pilecap 103
:3rterre ZI.258 perforated gypsum lath 190 piledensity 95
"'.rthbn architecture 129 perforated shell tube 245 piledriver 102
~rtI 53 perforated tracery 275 pileeccentrlclty 102
r'a~l-penetr.ttlon weld e6 pertormance spuiflcatlon 50 pilefoundatlon 102
partialprestressing 206 pergehsol 224 pile ring 102
particleboard 2M pergola 27 pile tolerance 102
parUcle-size d1str1Putlon 43 perimeter heating 122 pile weight 95
partlng Pe3d m. perimeter loop system 122 pillar 40
parttng compound 45 perimeter radial system 122 pilot hole 83
parting strip m. period 152 pllotl 26
paM.,n 266 periodic motion 152 pin 242
partltton bIod: 160 periodlc table 161 plnjolnt 242
party wan 266 perlpteral 251 pinned connection 242
pascal 167 ptr!style 137· pint 166
passage 67 ~Ite 43 pinnacle 262
p~gnve 248 penn 176 pintle 115
p~eb-atar 00 pernufrost 224 pipe 199
pa$5Jng m permanent set 164 pipe 1r.rtten 257
passive e3rtn pres5UI'C 100 ptrmeal1l1lty 225 pipecolumn 174
passlw: sobr-h~ng 'lZl ~ance 176 plpeflttlng 199
P
ass-through 274 perpend 158 pipe pile 102
,
pastlcile 183 Perpendicularstyle 132 pl53Y 34
P~185 perpendicular tracery 275 plse 34
path 21a Persbn 129 plse de terre 34-
pattna f75 Persian architecture 129 pitch 83.95.208.228.276
patio 26 personal distance 57 pitched roof 208
l
patWn 53.265 personal space 57 pitched truss 261
p-atterne.Jgbss 112 perspective 59.72.73 pitch-faced 237 .
patternedlum!1e-r 279 perspective projection 72 pitching piece 235
~umelte 115 pervious soil 225 pitch pocket 278
1
pavement SOIW 47 petcock 123 pitdwelling 136
pzverUIe 33 phantom 71 plthZi6
pavlf10n 24. 27 phantom line 71 pivoteddoor 62
p;NiIIon roof 208 pharaoh 249 pIvot&:fwindow m
l
P-delta effect 41 ph356 58.76.228 pI.ace 217
~91'2vef 224 phenolic resin 193 placement 46
~nut pllery 258 phenopl3st 193 piauofbeginning 246
?e3rIIte -43 PhillIps head 83 p!o:fond :30
L
~rf JnOIdInf 185 phloem 276 plain lap 141
pebO{e 224 phon 229 pblnra" Zl2
~dash 189 phosphor 145 plaln-S;iw 278
rectY Zi8 phosphorpronze 175 plain shc~ 283
L
~bl179 photochemical 187 plan 69
~lpIle 103 pi 110 plane 109
~ment 250 plano hinge 115 pl3negeometry 109
Peg-603rd 2M plano nolnle 26 pbne surv~ 246
L
~cbnt 147.263 plazzOl Zl plane truss 259
~cbnt post 210 plcl:le 171 pl3nk-ancHeam construction 106
xnaentlve 61 plcUlgraph 182 pl3nk flooring 94
;-entknUVe ma:etmg 252 pictorial space 12 plank house 136
6
~UVe&ome 61 picture mold 186 pbnt 186
;-enetl'2t1ng stain 187 picture plane 72 planted stop 63
:>eI'Ietratlon re~nce 225 . picture rail 186 plan view 69
L
U
06
INDEX
pt.ster 1t;8 polarized 79 preactlon system 90
plasturoara 191 pok: 100 precast concrete 206
plaster bond 190 pote construction 106 precast concrete pile 102
plasterer's putty 188 pote house 100 PreclassIc .128
plasterofParls 1t;8 pole plate 210 Pre-Columl1lan 130
plastic 192 ponshed work 237 prefabricate 50
plastic deform3tlon 164- po~carbonate 192 prefabricated flue 87
plastic flow 164- potychromatlc 39 preferred angIe 233
plastic foam 119 polyester 193 preflnlshed gypsum board 191
plastic hinge 104 potyethylene 192 preheat lamp 145
plasticity lnaex 225 polygon 109 preheater 125
plastIcizer 157,192 potygon method 96 prehistoric 128
plastic lamlM3te 193 potyhedron 111 prehung door 65
plastic nmlt 225 potymer 192 premium grade 283
plastic mix 44 potymerlzatlon 192 preparation 58
plastic ra"¥ 164- potipropylene 192 pre-posttenslon 207
plastic soil 225 potystyrene 192 presbytery 37
plat 2~ potythene 192 presentation drawing 67
plate 152. 02. 194, 267 potyurethane 193 preservative 200
plate action 194 potyuretnanefoam 119 pressure 167
plate cut 211 potyuretnanevarnlsh 187 pressure bult? 102
plate gIrder 173 po~lnyl butyral 192 pressure coefficient 154
plate glass 112 po~lnyt chloride 192 pressure drop 197
plate rail 186 po~lnyt resin 192 pressure-equalized design lTl
plate tracel)' Zl5 pony wall 26"1 pressure forming 192
plate trt3d 235 porcelain 32 pressure head 197
platform frame 267 porcelain enamel 32 pressure-tre3ted wood 280
P13tonJc solid 111 porch 25 prestress 206
plaza 'Zl pore 276 prestressed concrete 206
plenum 31,122 portal 25, 105 pretension 200
plenum lr.lrrier 232 portal method 105 primary air 126
plenum chaml1er 127 portculliS 99 primaI)' ream 106
plenum ventilation 127 porte-cochere 25 primal)' cable 29
Plexiglas 192 portico 25 primal)' color 39
plinth 159,179, 100 portland cement 42 primary compreSSion 100
pllnth I7Iock 1(;6 portland cement mortar 33 primary consolidation 100
plinth course 159 portland cement-lime stucco 189 primal)' meml>cr 241
plot ~n 69 portland cement stucco 189 prime coat 187
plug 79.199 posltlve Ion 161 primer 178.187
p{ug fuse 76 posItIve momen't '0 principal 210
plump 211 posltlve shear 17 principal peam 106
plumlnng 1% post 40 principal merk:I1an 246
plumbing fixture 198 post-and-l1eam construction 106 prinCipal rafter 210
plumbing waD 199 post-,lMd-lIntel construction 100 principal reinforcement 204
plywood 282 po5tlr.l~ 85 princlpalstres5es 16
pneumatic pl3cement 46 postcap 85 ' principle 59
pneumatic riVeter 86 P05tclasslc 132 prism 111
poeumatlc strocture 168 postern 25.99 prismatic lens 146
pneumatic water supply 197 postformlng 193 process 5t;
pqche 69 postlche 183 profile 66.185. 247
pocke~ door 62 postlcum 250 program 58
podet piece 2:12 post-modernism 135 pro%t 59
podlum 250,256 postoccupancy evaluation 49 proJeG"ted area method 154
point 54, lOO.155 posts ana timbers 279 projected window m
polnt-~earing pile 102 posttenslon 207 projection 69.265
poInted arch 14 potable water 196 proJet 59
point Mnoa 149 potential 74 prolate 111
point of refusal 102 pountlal difference 74 prolate spheroid 111
point of resistance 102 pouna 167 promenade 27
polnt of support 242 power 74.167 promenade tile 33
point source 147 power trowel 47 pronaos 250
Poisson's ratio 162 ponolan 42 proof stress 164
potar angle 108 practice 59 property 162
potar axis 108 Prairie School 138 property line 221
polar coordinate system 108 Pratt 261 proportion 56
307
INDEX
proport:onal hmlt 164 queen post 210 ravenn 9b
prop0s41 58 queen truss 210 r.lW~ter 1%
propriet4ry speclflc3t1on 50 quench 169 r.l'j 216
pro~ 249 QuetzalcMl 13t R;yonru~ st)Joe: 132
proscenium 256 qulcldlme 157 R~lp 144
proscenium arch 256 qUIri: 140.268 react1ve force 97
prospect 2fl quoin 158 ready-mb:t.d concrete 46
prostye 251 re3dy-lnlxtd pl3ster 188
protected mem~ne roof 215 Rr real 59
protected noncomPustlVle constructlon 51 r.l7tlet 140 re350n59
protected openl"4 89 ra*aeastep 63 re~r202
protected ordinal)' constructlon 51 ra7tletjol~ 140 re~te 140
protected right mmeconstruction 51 racew7j 78 reu.din~ cob- 39
prothes15 35 rac~!ng 243 receptor 198
proton 1-61 radial dome 60 recessed grid 31
proton num~r 161 radialorgini:z3Uon 213 rech3rge 223
prototype 59 rad131 shrinbge m recotm~ Ilght loss factor 149
proxemlcs 57 radial symmry 55 rect.; r~~ 109
proximity 54.265 radlan 108 rectJr.gubr 109
PS pulp 144 radla ITt rat 120 rect.;r~ubr coordinate system 108
pseudodlr
..eral 251 radIant ~t1~ t23 rect3r~ubr system 2%
pseu~pteral 251 radlatlon 113 rectllirar 109
psychrorr.ettr 120 radIator lZ3 Rtctmnar~ 132
psychl'O"lT"oe:trlc ch3rt 120 radius 110 rectJnr.e.tr;nc.ery 275
ptef'OlT3 251 radius of gyration 40 red Pr:3SS fl5
pteron 251 radius vector' 108 red ~Pe! 213
I
puUl1c WZ'j 91 raft 101 reducu 199
puckfle wda 86 rafter 211 reducU?!l 175
puc!7lo 130 rafW tail 213 reductk:xl of.~ 162 I I
puR u;;r 1'4 rail 64- redurWrGy X)5
I
p(;lley stl~ 2J2 ralflng 235 ru&ng 185
pump 125 rainbow roof ~ runtnnt109
pun~hlng srar 205 ralnSCree:l lTl runtnnt corr.er 244
I
purfte 184 ralnscreen principle m reevalu.rcn 58
I
puriln 210 rai~-chord truss 261 reference ~1fIc3tlon 50
purpose 5.3 rai~ ~ system 93 referen~1 dr.lwing 67
push Ft.te 114 ral~glrt m rtflne 50
L
putty 113 raised grain 2:78 r:flectJnee 143
P'1'nost:l~ 179 ralsed par.a 268_ refb;t.e.d c.ein~ pl3n 69
pybn 2Ag ralslng plate 267 ~cclx·38
py~mld 111.249.252 rake 209.26a reflected s!are 148
b
f'ytnagor-=:;;n theorem 109 rakedJoi~ 155 .' refoecW pbn 69
raker 221 reflecUd sovrJ 230
G£l ra~e tile 214 ~SlIrface 230
ql!7la 252 ra~l"4 riser 233 ~143
~
Qln 129 rak1"4 shore 22T ~§bss 112
qUJdrangle 27 ramu~ 138 ~ In$u~lol'i 119
qUJd1"3nt 110 ramrr.eJe~ 34- rtftect.or ~
qu.ad~1109 ramp 233, Z35 refractloll 143
,uadtipan:~ va~ 263 rampa~ ardl 14 refrW,uy ~
~
q~~Z37 rampa~ rau/t 263 ~124
qU3rry~ 33 rampart 98 refuge 2f7
'l~rt 166 random ashbr 158 ~ency style 133
,,R~ce bndl~ 234 rant..lom maunl"4 283 reglstert22
~
quarter l"01.lnJ tb5 random row':: 158 registered 48
1U3rtersaW 2Jf) random shingles 213 reglet m
Q,qrter~ 283 rarubn sla~ 213 regula 100
a,u3rtersp1Celanding 234 range 155,246 regular 54,109, III
~~
'F3rter-t.um st3lr 234 range I1ne 246 regular Pe't'cl 116
:l.u3rtZ heater 123 ra"¥, 45 regular !rid 239
Q,:':3rtzlte Z36 rapld-st4rt I3mp 145 reguIar stroct<Jre 244
J.~rtz lamp 144 ra~ life 144 ~ulat1~ nne 66
Ir
q:J3tref0l1 Z75 rath 253 rehat coli 126
Q~3ttroc.et1to architecture 132 ratio 56 reinfOtUJ conert'U 202
a.u'een ctosa- 20 Rationalism 134 reinfOtUJ concrete ~m 203
~-
308
r .
i
f INDEX
I reinforced concrete column 203 rhythm 55 roller support 242
reinforced concrete sb1:J 204 riP 263 roln~door 62
reinforced grouted maSOl1fj1 157 ril+.ind 261 rollocl: 19
I reinforced '!allow-untt 1T135Oflfjl 157 ri~amat 101 roll roofing 215
reinforument 202 ri~sla~ 204 roll se<am 214
reinforcing par 202 ri~V3ult 263 Roman arch 14
reinforcing edge ca~ 168 ricwn 267 Roman architecture 130
relative humidity 120 rI~nstrip 267 Roman~lck 19
release agent 45 rimncou~ 212 Romanesque architecture 131
relief 70. 182 r.~winaow ZJ4 Roman theater 256
reliefvalve 123 r,g~th too Rome 130
reliefvent 200 ri~V'3ult 263 Romex caule 78
relieving arch 266 rich mix 157 rood 37
Renaissance 132 Ricft3rdsonlan Rom3nesque 134 rood screen 37
Renaissanc.-. architecture 132 r~ 209 roof 208
I
rendering 67 rid¥ ream 211 roof drain 209
rendering coat 189 r.:l.Jeboard 211 roofflange m
repetttlon 55 ~p212 roofframing 211
repetltlve mem~er 280 r~course 212 roofl~ 212
I
repetitive memuer factor 280 r'~ I73ff!e 140 roofJ~ rond 215
repose 54.217 ~plece 211 roofl~ felt 215
reproductNe imagination 59 rid¥pole 211 roofl~ nail 82
reservoir 196 ~rlb263 roofl~ paper 215
residual stress 169 ~roIl 214 roofI~ tile 214
resilient channel 232 ~t11e 214 roofplan 69
resilient clip 232 ~ cutting 2b3 room 216
resilient flooring 95 right angle 108 room acoustics 230
resilient IT1OlnU~ 232 ro:1htclrcularroM 111 room cavity 149
resin 192.'lJ6 rig~clrcularC)11rJer 111 room cavity ratio 149
resin canal ZJ6 r~'Hand 114 room surface dirt depreclatlon 149
resin duct 'lJ6 r'-3~t-h.and reverse 114 root 86.141
resinous IT13trlx 94 r~ht!ng morr.e:rt 153 ~ 116.184
resistance 74 r+~t triangle 109 rose wlnaow 37
resistance weldIng 86 r'..:l'J 238 rosette 184
resisting moment 15 r'~'J arch 13 rotafjl CtIttl~ 283
resistivity 74 r~ mrd Insu~tlan 119 rotation 97
resonance 152. 2.30 r# connectlcn 242 rotational surface 220
respond 36 r'~:.afr;;me 104- rota operator 273
restoring moment 15;3 r-!JJoint 242 rotunda 26
restrlct1v~ covenant 51 r,!?J rnetatcondurt 78 rough !rod: 63
resultant 96 rtmjc1st 92 roughcast 189
retaining wall 'lJ0 r.m~ 116 rough coat 189
retlrder 43 rtr.;-shank nail (';2 rough floor 92
reticulate l34 rip 'Zle rough grading 222
retlcubteJ ~ Zl5 ~p 'lJ0 rough hardware 114
retrocholr 37 ri~w 'lJ8 roughing-In 199
return 186 ~ 12.80.200.233 roughluml:Jer m
return air 125 ~ 197.233 rough ~nlng 63
return ~rJ 199 rise;--tread ratio 233 rough 5tr1~er 235
retUrM-COfMr plock 160 ~~hfnge 115 round arch 14
return grille 122 ~86 round head 83
return pipe 126 ~set 86 round point 82
return wan 266 ri~ 252 rout 140
reveal 63 roc!: 236 row house 139
revent 200 rca caisson 103 rowlocl: 19
revem:ratlon 230 rca-cut tomb 249 row spacing 84
revem:ratlon Clme 230 rca-faceJ 237 rul7Ver 193
reverse :level 116 rca ~th 190 ru~~se paint 187
reverse return 123 Rc.dwell numb>er 165 ruul1er tile 95
reverse-trap 198 rca wool 119 rubule 158
reversll1te uk 116 Roccco 133 rulea surface 220
revet VO rcJ 166.247 run 208.233
revetment 270 rr-...Jdinq 46 Rundrogenstll 134-
revolving door 62 r;;;'~ gL-Jss 112 rung 2.33
rheostat 79 r.;-:·ujoint 242 running Mnd 2J)
309
--1
INDEX
runnl~ J10kj 109 sash fast 272 secondary stresses 259
runoff 223 sash fastener 712 secret dovet.1I I4l
runW2Y 253 sash line 272 sectlon 70,246
rustle 158 sash ribPon 2J2 section hne 70
rust:btlon 158 sash stop m sectlon modulus 16
rustbtlon ~p 45 sash we~ht 272 sector 110
rustlcJoint 158 5aS53nian architecture 130 secular 243
rustic slJl~ 268 satIn flnlsh 187 security glass 112
rustic slates 213 satur3tea air 176 sed1ment.ry rock 236
rustic temzzo 94- satur3tlon 3a see 264-
rusVln~ paint 187 satUr3tlon coefflclent 18 seepage pit 201
R-valut 118 saucerdome 60 ~met1t.1 arch 14 I
sawtooth roof 208 ~~tlon 46
i
55 Shrfb 144- seismic 152
S3!:r1n 231 saffold 49 seismic coefficient 153
sack +4 saffold nail 82 seismic fOfU 152
sac~ 248 scagliola 189 seismicjoint 244
sacrtfd3l;mode m scale 56.69.166.169 seismic zone factor 153 j
sacristy 35 scalene 109 select 58
s~ 63.a?9 scan~ 47 selectlYe aPsorytIon 38
S3aa~coplng 266 scallop 184 setf-centQIng lath 190
sadk copInt 266 sca!'Cement 159 se!f""iosIng fire assemPty 89
sada'1ejoint 159 scarfjoint 140 self-furrh'9 lath 100
S3dde sW"fxe 219 scarp 00 self-t3pplng screw 83
safety ~rbin 251 scheme 59 SellUK archlttcture 132
s.fe-ty~ 240 5chl¥ed1tr dome 60 seIva~ 116.215
s.fay§lass n2 science 11 semicircular Glome 60
s.fe-ty ~ 235 sds.sors truss 261 semlJetachea dwe!!lng 133
~ety~ 235 sconce 147 semld1~ Ilgh~ 143
s.fetyvm 123 sccncheon 63 semldome 61
s..~269 scored 17'.od 160 semigloss 187
S34 28 scotb 181 seml-lnJ1rect lighting 143
sahli 252 SCR PrIck 19 semlvltreous 32
sailor 19 senteh coat 188 sensl~1e h~ 117
salient 54.109 sc~ 47.190 septle t3nk 201
sally port 96 scrun 266.714 serda~ 249
saltbox t:3a screen block 160 serendipity 59
sanctu3ry ~ scrt.en door 64 serial dlstr!~tlon 201
sanctJ..m ~m 250 screw 83 series 74
sand 224 scrtIt' eye 83 Ser!lan~·Z/4
sanJ clay 224 5CrewnaU 82 ~tlne 236
I
sand--cushlon temzzo 94- scrWPbng 66 sm-u75
s.nd ftIt.er 201 saWedjoint 140 service conductor 75
~t ftnlsn 189 scrim 190 ser«.Adrop 75
sand-lime ~ 160 scroI 184 seMce entrance conductor 75
I
sanJ pI~ 103 scum 201 service~ulp~ 75
sandstone Z36 scum clear sp~ce 201 service Iatml 75
sand-strud: IIttl 18 scuncheon 63 service Ioa.:l 240
S3ndw1ch!:om 28t scupper 209 servIu pipe 196
l
s.;~pand 50 scutc~ 116 service rac,ew3'J 78
S3"~ry I7Jss :33 se.168 service sink 100
S31I~ry cross 199 se31er 187 servlceswfUh 76
sanitary sewer 200 se350neaW 5m'Ice ttnlpmture 193
S3n~ry stop 65 se3t 199 set 47.82
l
S31I~ ry tt.c 199 seat angle 174 ~22t
san~ry WlIr'e 198 seatcut 211 setscrew 83
sap Zl6 se3te.aconnutlon 174 setting Plod: 113
sapwood Zl6 se.tlng 257 ~ shrinkage 47
L
sarcophagus :;s secant 109 settlement 100
sash 271 second 108 settlementload 151
sash !:talance z/2 secondarybeam 106 set-up 247
sash !:tar Zl1 secor.darycaMe 29 S¢lery 262
L
5.sh~ 160 St:COndarycolor :39 sewage 200
sash chain 'Elf. St:COndaryconsolllitlon 100 5eW2~ treatment plant 201
s3sh cord m secondary member 241 se;;er 200
L
310
r-
I

INDEX
sexpartite vault 263 sr,ae 221 site coeffl<;lent 153
Sezesslon 134- sh«ing 221 site drainage 2Z3
sgrafflto 182 shcro 2.55 site plan 69
shade 39.70 shcrl 76 sitewon: 221
shades and shadows 70 shcrl circuit 76 51 unit 166
sh~d1ng 66 shcrt column 40 slxteenpenny nail 82
shading coefficient 112 shcrt ton 167 stze-adJusted value 200
shaclow 70 shatcrete 46 sized slates 213
shaclow plock 160 shct-S3wn 231 size factor 21)0
shaft 179.262 shctJkler 98.141 size puspectlve 72
shaft grave 248 shc1Jlder miter 140· skeleton constructlon 106
shake 213.278 shcvedJoint 155 SkeM 256
shallowfounaatlon 100 shcwer 198 sketch 67
Shang 128 shre:3dhead 208 skew 159
shank 82 shrino¥ 7J7 ske'.... arch 12
shape 52 shrfnbge hmtt 225 skewi?ad 14
shear 163 shr!nbge relnfcrcement 204- skew corbel 159
shearcenter 16 shrink-mixed concrete 46 skewgrk:l 195
shear dlagram 17 shiP'.offvaIve 196 skew lines 108
shearforce 163 sh~~nd m skim coat 188
shear Mad 205 sh ~ter paroe! m skin friction 102
sh~g force 163 sh~lng stlle 64- skip 218
shearing resistance 225 ~:rese 90 $l:lp sheathing 213
shearing strain 163 s:k cut 211 skirt 186.271
sheari~ strength 225 s~p 212 sl:y component 150
shearing stress 163 siddlght 63.148 sl:yltght 150.209
shear modulus 163 sldesway104 s(yscraper 22
shear pl3"te 85.173 sta:r.g 268 sla~ 26
shdr stratn 163 ~htline 72. 258 sla~ongr;lde 101
shear stress 163 s~,' 52 slag 170
shear stud 93 s1(hm 253 slaWlime 157
shearwall 243 S~r3 253 slat ~lcd 94
sheath 207 siraous 42 slate 236
sheathing 212. 268 siliCOl'l 175 siatlng nail 213
e sheath pile 221 S:rlC....,,~;TU 175 sleeper 94
shel101t 45 siilc.cne 1.93 slendemess ratlo 40
shed &ormer 209 slrCCfle ru~r 193 sr01ng 154-
shed roof 208 sin 63.267 sndl~g door 62
sheet Slass 112 silt ,ncnor 85 sndlng S3sr 272
sheetlng 192 sm~~ 160 snp 37
sheet metal 172 siroe.cd 197 snp form 45
sheet-metal screw 83 siR pl.4te 267 sOp rT13tchlng 283
sheet pile 221 sift :a!er 267 sap mortlse 141
Sheetrock 191 silt 224 shp~ grid 239
shdl 21. 161. 219 s.~r 109 snp slll 211
shellac W7 s;1!'liUrtty 54. 265 slope of gratn 2W
shellac V<imlsh 187 sln-.pl,e Peam 17 slopslnl: 198
shelter 136 sl:r:u13t.e 58 slot dIffuser 31
shielded cable 78 s}rro..;!t3r.wJS Wltra5~ 265 slot mortlse 141
shielded metalarc wekllng 86 sir~ 109 slot~ head 83
shlekll~ a"91e 146.273 slr~~.ctlng doo!- 62 slud¥ 201
Shlmmel-zukurl 255 sin.g~paymrr.e 105 skJ~ clear space 201
shiner 19 sir.;~l1evel weld 86 slump 44
shingle 212 slr.g~urv1turt structure 29 slump bloc!: 160
Shingle style 134- slr.gl¢-dllCt system 126 slump cone 44
I shingle ~ 214 s!r.g~hul1g window 272 slumpkst 44
I Shinto 255 sing~ph3se 76 slurry wall 221
I shiplap 268 sln.g~strength glass 112 slype 37
shlp's ladder 233 sir.ge~ 206 srT13I1c.alorie 117
shoc~ 76 si~~-vu ~kl 86 smafta 182
shoe 102. 186. 209. 259. 267 sir-: 198 smelt 170
I
shain 137 s;r.i:~g 115 srr.ol:e chamber 87
sholn-zul:url 137 sIF"cn-Jet 198 srr«e detector 90
shOJI 137 sIF~cr)-vor-.a 198 smol::e-developed rating 88
shop lumber 279 si~ 221 smc.l:dome 87
I
I 311
INDEX·
smokeprodenclosure 91 sollar 107 sphinx 249
smoke sid 1)7 solvent 187 sp~ot 197. 199
smokesta2 1)7 sone 229 spike 1)2
~~1)9 Sonotul1e 45 splke-and-ferru1e 209
snaptle 45 sorln 255 splke grid 1)5
snowloa-l 151 sound m splll 147
S03p 19 sound-al1sorDlng masonry unit 160 spill hght 147
S03pstce 236 sound grade 283 spindle 116
society tW sound-Insulating door 65 splral 110
sociology n sound Insulation 232 spiral column 203
socket 79 sound Intensity 229 spiral reinforcement 203
SOCketedC4lsson 103 sound-Intensity level 229 spiral stair 234
l
sodhousc 00 sound Isolation 232 splre :36
sodium bItp 145' sound knot 271) splrlt level 247
sodlum-GpOr t.lmp 145 sound level meter 229 spirits ofturpent1M 187
soffit leO sound power 229 spirit stain 187
l
soft;-UurItA 32 sound-power level 229 spiritvamIsh 187
softenl", point 193 sound pressult 229 splash ~k 209
soft;JoI'" 156 sound-pressult level 229 splay 63.185
soft; hgItt 148 soundproof 230 splayed coping 266
l
soft;-mudprocess 18 sound transmission class 232 spl1ce plate 174
soft; sted 170 sound wave 22b sp"ne 31.140
soft stofy 244 space 217 spilt V8
soft;wood V6 spaced column 281 spilt complement~1)' 39
soil 224 spaced sheathing 213 spllt-face!rlock 160
l
soil./lalysis 224 spaced slatlng 213 spllt-facecJ 237
soU PinJa VO space frame 195 spilt-level 138
sail class 224 space heater 123 spilt-ring e5
sdf~1cs 225 space heating 121 spot 147.257
L
sdtpl~ 2CO space planning 10 spot elMtlon 247
soli pressure 100 spacer 45.113 spotl~ht 147.257
soil profIe 224 spaCtl truss 195 spray-on flreprooflng 88
soli stMzer VO spacing crlterl3 149 spre3d 122
L
soil stact 200 spading 46 spreader 45
sOil str.;:t.ure 225 spailing 47 spread foot!ng 101
soiIytg 200 span 15 sprig 113
sob.. m spandrel 12.269 spring 12
L
sobrcoht.or 226 spandrel !?eam 269 spring ~alance V2
solarCOIIStJnt 226 spandrel glass 112. 269 spring equinox 226
I
soIa..~ 226 spandril 12.269 springer 12 .
solar-hating system 226 Spanish tHe 214 spring hinge 115 .
l
sobr~ 226 span rating 282 springing 12
solar ~tIon 226 span:: arrester 87 spring steel 170
sobr~d13gram 226 span::gap 77 springwood V6
sobr sc;n:en 2Zl s~r vamlsh 187 sprinkler he3d 90
saYer e6 spat 65 sprinkler system 90
L
soldier 19 spatial edge 72 sprink1ered 90
soCdIerD1 221 spatteraash 11)9 sprocket 213
soYIc:rcorse 20 specialty panel 282 spur 183
soYIc:rpie 221 specifications 50 sqU2re 109. 212
,
sole 2JU specific conductance 74 squared ru~ 158
1.
~267 specific 91'3vIty 167 square~ f)4
soCepfate 267 specific heat 117 square measure 166
soY tt1.161 specific humicllty 120 square splice 140
L
sana•• 142 specific resistance 74 squinch 61
soIt.d Woct flooring 94 specific volume 167 . $-shape 172
so(kl~l~ 92 spectral dlstriPutlon curve 145 stalnhty 243
soIld coImn 281 spectrum 38 staPil1zer 192
L
sona-an000r 65 specular 143 staPillzlng moment 153
soIld flg sIa!1 206 speculation 59 stack 122,200
soIld~ 111 speculative builder 48 stack rond 20
solidify 161 speed of sound 228 stack partltlon 199
L
soIld masonry 156 sphere 111 stack vent 200
solid masonry unit 160 spherical surface 220 stadia 247
soIld-tDp PIocl: 160 spheroicl 111 stadia rod 247
I
1.J
0
312
, r
f
r
I
I INDEX
staff Pead 271 stepping off 211 stress relieving 169
stage 2!57 step-up transformer 75 stress reversal 259
stagehouse 2!57 steradian 142 stress-strain diagram 164
staggtred COtJI'Se 212 stereo~te 250 stress trajectories 16
staggeredjoints 212 Stk;k style 1:34 stretcher 19
staggered-stud partition 232 stick system 269 stretcher block 160
staging 49 stlffVack 45 stretcher bond 20
stain 187 stiffener 173 stretching course 20
stained gl3ss 37 stfffmlx 44 stria 180
stainless steel t70 sttff-mud process 18 strike 116
stair 233 stiffness 164 strike plate 116
staircase 235 stile 64 string 235
stalrhead 233 Stile Uberty 1:34 stringboard 235
stair headroom stilt 106 string course 159
stair lift 81 stilted arch 14 stringer 92. 235
I
stair rod 235 stilted vault 263 strip 83
stairway 233 stipple-troweled flnish 189 strip flooring 94
stairwell 233 stippling 66 strip footing 101
stalactite wo~ 2!52· stirrup 203 strip lath 190
stam~ 253 stoa 250 strongl7ack 45
starIChlon 235 stone 236 struckJoint 155
standlng leaf 62 Stone~e 128 structural analysis 240
standard atmosphere ·167 Stonehenge 248 structural clay tile 34-
Standard BUilding Code 51 stoneware 32 structural design 240
standard candle 142 stool 271 structural dimension 57
standard hook ·202 stoop 25 structural facing tlle :34-
standard pipe 172 stop 63, 186, 272 structural failure 240
standard terrazzo 94 stop bead 272 structural gria 239
standby generator 75 stop clurnfer 140 structurallnsulatlng roof decI: 215
standing seam 214 stopped dado 140 structural lightweight concrete 43
standing wave 231 stopped mortise 141 structural lumber Zl9
standpipe 90 storm cellar 23 structural member 238
staple 82 storm door 64 structural pattern 239
star 183 storm drain 223 structural rating 240
Star of David 183 storm sewer 223 structural sealant 113
starter 145 storm window 274 structural sheathing 268
starter tile 214 story 22.24 structural steel 173
startlr.g course 2i2 story drift 153 structural tee 172
star vault 263 story shear 153 structural tul7ing 172
stat~11y equivalent· 97 stov~ 84 structural unit 239
statlc fit 57 stovepipe 121 structure 53,238
statk; load 151 Str.llght flight 234 structure-rome sound transmission 232
static load test 102 straight-run stair 234- strut 238
statk;s 97 stralghtspflt ~hake 213 stub tenon 141
I
statlon 247 strain 162 stucco 189
station polrrt 72 str;lin g3~e 162 stud 267
statute mile 166 strain-hardening range 164 studiO apartment 139
stave church 36 straining veam 210 stud partition 267
Steaml70atGothic 1:34- straining piece 210 stud wall 267
steam heaUng 123 straining 5111 210 study 67
steam trap 123 strain-rateeffect 165 StUp3 253
Ste.llttte 236 strand 206 styfe 128
I
steel 170 strap footing 101 Style Modeme 135
sted~m 173 strap hinge 115 5tylolr.ite 250
steel column 174 strapwon: 184 Styrofoam 119
steeple 36 strattflcatlon 46 sul7uasement 23
Steiner tunnel test 88 stratum 224 5uDc3slng 63
stele 250 strength 162 sul7contractor 48
stellar vault 263 strength of materials 162 sul7dlagonal 261
step 233 stress 162 suDfloor 92
step-down transformer 75 stress concentration 163 sUDgrade 222
step flashing 177 stress design 240 submerged arc welding 86
stepped flashing 177 stressea-skln panel 50 subpurlin 210
stepfW footing 101 stress grade 280 sUDs'" 271
step~ ramp 233 stress relaxation 165 subsoil 224
313
INDEX
sut?sbtlon 75 switch 79 tempmtureeffect 165
sut?stractlve color M swltch~o3rd 75 temper3ture relnforcement 204
sul1str.lte 101. r78 swltchge3r 75 temperedglass 112
sul1strnum t)1 switchgear room 75 tempmJ h2rdPoard 284-
su~structure 21 symbol 52 temp13te 266
su~surhu dr.linage 223 symmetry 55 templ1te hinge 115
sul1surface investlgatlon 225 SJ'I13gogue 250 temple 24a
sul7surface s.na filter 201 syncl3stic 220 Temple ofSolomon 250
sul7tmtlve 52 SJl1ectlcs 59 templet 266
suction 18. 190 S)'Tlthesls 58 tendon 206
suite 216 S)'Tlthetlc rul?Der 193 ten14 100
sulfate 3Ctlon 42 syrinx 249 tenon 141
Sumerian architecture 128 system 21 tensile fofU 162
summer 'tCJl systems building 50 tensrle strain 162
summersolstice 226 systyle 179 tensile strength 162
summ~ '{J] tensile stress 162
sumll'lel"WOOd 216 Tt tensile test 162
sump 200 taremacle 36.250 tel$lo!1 54,162
sump pump 200 taremacIe fr3me 186 tension-control Dolt 174
sun control 227 table 159.183 tens1o!1 member 238
sun ded: ZZl ta:1lero 252 tenslo:l reinforcement 202 0
sunkdraft Z!J7 tal7let 183 tens~ ring 60
sunk panel 268 tactile texture 52 tent str.Jcture168
sunk relief 182 taenia 100 teree 136
sunlight 150 tag In termin41 79
sun parlor 2ZJ tall 213 termin3J ~t system 126 ,
sun porch 2ZJ tal1cut 213 term!n41 unit 126
SUTlI'OOll'l 2Zl tail!n 159 termin41velocity 122
sunsfWe 2ZI tall!ng 159 termIt.e shield 267
supercolumnlatlon 256 ta~p1ece 92.211 te~ Mal 175
l.
superpbstlclzer 43 talud 252 temepbte 175
supet"Structure 21 tamrour 61 terra cotta 34
supply:.Ilr 125 tana 137 terrace 25.139
supply pIpe 126 Tang 254 terrace house 139
support condition 242 tange11t 109.110 terrazzo 94
Ii
surbaStd:.lrcl1 14 ta"¥ntlal shrln~ 2n terrepldn 98
surch3rge 210 tangentlalstre5s 163 terrltc:xi3!1ty 57
surface 111 T:.Io 129 tert13ry Deal!! 100
surface-actlve agent 43 Ta.:lism 129 tertJ4rycolor 39 Li
surface-active structure 238 .tap 83.197 ter1!..ory memkr 241
surface I10ndlng 160 tapered column 2.81 tessm 182
sumce conaensatlon 176 tapered end form 204 test 53
surf.lctc:Jr.Ilnage 223 taperspllt shake 213 test cylinder 44 U
surbc&:f dry m tapplng screw 83 test~221
surfaced ~reen m bract 247 tetra~ron 111
surf.lctstructure 238 b5l; lightIng 148 ~t79
surface tension 177 taste 10 texture 52.53 U
surfactarrt 43 tataml 137 texture l-M 282
surround '0. 268 T-Uar 172 texture perspective 72
sum:rur.d thtoiteo 257 T8 lnJlP 144 thM m
survey 246 T-Peam 203 the4ter 256 U
SUl"'t'eyOr"schaln 247 TUuII1 145 the4ter-ln-the-rouna 257
survr;yplat 246 te3ser 257 theodolite 247
sU5pendedcelllng 31 technics 11 ~59 I
suspended-span r7 technique 66 tMrm 117
~
suspension bridge 29 technology 11 thertT14lllr.lnier 118
suspension stl"1JCtUre 29 tectonIcs 11 therm31 brt3t 118
5W31c223 tee 172. 199.253 thermalccmfort 120
L
swan's neck pedlmtnt 186 tupu 136 thernul conductance 118
sway In-ace 243 tegula 214 thernul conductivity 118
sweatln~ 176 telaman 250 therm31 contraction 165
sw~p 62 ~" 128 thernul expansion 165
L
sw~p fitting 199 temenos 250 thernul finish 237
Swlng~ door 62 temper 169 therm.;llnsulatlon 119
swirl finish 47 ~mperature 117 thtrtnal resistance 118
I
U
314
I
INDEX
thermalshock 165 tin roofing 214 transformer 75
thermal stress 165 tint 39 transformer vault 75
thermal transmittance 118 tln~d glass 112 tr;lnslt 247
thermocouple 121 to 255 transltlon 218
thermoformIng 192 toe 86.270 transltlcnal structure 239
thermometer 117 tc-enall 82 transit-mixed concrete 46
thermoplastIc 192 togg!ebolt M translation 97
thermoset 193 toggle swltGh 79 translational surface 219
thermosettlng plastic 193 toilet 198 translucent 143
thermostat 121 toilet partition 198 transmission loss 232
thick-set process 33 tcl:mshlra 137 transmIttance 143
thlmtne 121 tc-l:011orna 137 transom 63
thln-~ed process 33 Toltec archItecture 131 transom light 63
thin-coat plaster 188 to11 167 transcm window 63
T-hlnge 115 tone 39 transparent 143
thinner 187 tongue-ana-gl'OOle 140 transverse arch 262
thln-set terrazzo 94 tongued miter 140 transverse force 163
thin shell 219 tonne 167 transverse load 163
tholo~te 61 ton of refrigeraUon 124 transverse rib 263
tholos 248 tooledjolnt 155 transverse section 70
thre3d 83 t..."Oled surface 237 transverse shear 15
three-coat plaster 188 toothed pl3te 85 trap 198
three-hinged arch 13 tcp~r 203 trapezIum 109
three-hinged frame 104 top carclearanu 50 trapezoid 109
three-phase 76 tcpcoat 187 trave 107
three-point perspective T3 topcut 211 travel 00
three-'luarter-tum staIr 234- tope 253 travehng C3Ule 00
three-way lamp 144 topiary ZI traverse 246
three-way switch 79 topup 212 travert1ne 2.36
threshold 63.218 topout 49 tread 233
threshold of hearl"9 m toppl"9 94.204.206 tl"e3d retum 235
threshokJ ofpain 229 top plate 267 tre3tea wood 200
throat 65.00.87 top rail 64 tl"efoll Z75
th rough check 278 topsail 224 tl-efoll arch 14
through stone 158 torana 253 trelliS Z7
through tenon 141 t.crchlere 147 tremle 221
through-wall flashing m toril 255 triad 39
throw 122.149 t...~ntor 257 tn41"gle 109
thrust 13 torque 163 tri3ngle method 96
thrustst3ge 257 - torsion 163 tNngular arch 14
thuml:mut 84 torsloll3llrregularJty 244 triangulation 247
thumbscrew 83 torus W1.220 triDunal 251
Tlanuan3co 130 totem 136 triDuM 35.251
tie 156.238 totem pole 136 triMary 241
tlelncl: 221 tou 254 tributary are;! 241
tie ~In 103,210 toughness 164 triWtary leW 241
t1e.:J column 203 tou-kung 254 tricalclum aluminate 42
tier 258 toure!1e 99 tricalclum slnc.te 42
tlerceron 263 t..."'Wer 26 trtforlum 37
tie rod 13 Tower of63Del 248 triglyph 100
tlghtflt 216 toWTI planning 10 tri4Or.orr.etrlc function 109
~htknot 278 township 246 tri4Onometry 109
tlle acussory 33 tra~ate 106 tri!atentlon 247
tlle grout 33 trace 66 triflth 248
tlletle 214 traetry Zl5 trlflthan 248
tilting fillet 214 tracheld ZIG trim 186
1
tllt-up construction 50 tracheflum 180 trlmetric projectlon 71
J
timber 277 tracl lighting 147 trimmer 33.92
timber connector 85 tr3<:t house 138 trimmer arch 87
I
tlm!1er pIle 102 tnctlon elevator 00 tripartlte vault 263
I
tlmbers Zl9 tnnsept 36 trlphasphor 145
tlme-klay fuse 76 tl":lnsfercolumn 105 triple point 117
time of haul 46 transfer glrkr 105 triplex 138
tin 171 tnnsfer molding 192 tristyle 09
tinplate 171 transformation 58 triumphal arch 251
!
315
NDEX
1
t
rllngwd 240
,-
rllng stress 164- l
)f':lng 5tressdesl9n 240
)f': pbne 149
f'
7t'enC3~ 95
)len valley 212 L
l'r'en-wire f.iUr!c 202
-eathe 184.234
I
-eathe piece 234
"Ought Iron flO L
-sha~ f72
Ie 199
I'
{the 55
L
(
axis 108
I
mclng 243
coordinate 108
L
i 12a
!em 2:76
I
y
Ing-shao 128
lJ
ra 166
, I
rdlum~ Z79
axis 107 r
:;.ooralll3te 107 11
~ point 102, 164
I
~kJ Sf'.rell§th 164-
, 128
I:e 45.Z72 U
u~'s modulus 162
ngang 254-
I
~t:36
U
z:
po~ architecture 130
~lkl 137
Ixis 108 i
i.J
~r 172 i
:oordlnate 10~ i
: T72 i
11th 150
b
'O-foru mem~r 259
~Iou 2S4
I
)U 129
~ur;Jt 248
~17l U
ilda 252
IaIC3Vfty r.ethod 149
L
~ 126
ln9 or&ntaru 51
horus 100
~ 133 ,
l.
I
U
II I
I
li
l
I
Architecture Is an artfor.h to learn pecause all are concerned with It. -John Ruskin • Architecture depenas on
Order. Arrangement. Eurythmy. Symmetry. Propriety. ana Economy. All of these must l:>e pullt with due reference to
duraplhty. convenience. and Peauty. Duraplhty wllll>e assured when four.datlons are c.rrled down to the solid ground
and materials wisely and liberally selected: COfwenlence. when the arrangement of the apartments Is faultless and
presents no hindrance to use. andwhen each classofbuilding Is assigned toItssultableandapproprl3teexposure: and
beauty. when the appearance of the wort Is pleasing artd In good taste, and when Its meml:>ers are In due proportion
according tocorrectprinciplesofsymmetry.-VItruvlus • Archtucture is themasterly.correctand m~ntflcentplay
ofmasses !7roughttogetherIn light.-leCorilusler • Arryoneentering an the studyofarchlUcture must und~rstand
that even though aplan mdy have abstract beauty on paper. the four f3C3deS may seem wel~ balanced and the total
volume well proportioned. the pulldlng Itselfmay tum out to l:>e poorarchttecture.1rrtemalspace. that space which
cannot ;Ie completely represented In'any form. which c.n De grasped ana felt only through direct experience. Is the
protagonistofarchitecture.rograsp space.toknow howtoseeIt.Is thekeytotheunderstandingofpulldlng. -Bruno
levi • Architecture. painting. and sculptureareC3l!edtheflne arts.They ap'peal to theeye as music doesto the ear.
Butarchitecture Is notjudged byvisuaf appeal alone. Buildings affect.1I ofthe hult13n senses - sound. smeR. touch.
taste.•ndvlslon. -Forrest WIlson • It b¢::ame apparent to us thatarchructure Isgenerally3S5umedto~ ahighly
speclal1:zed system with aset of prescribed technical goals ratherth3n asensual sccl3lart responsive toreal human
deslres.ndf~ngs.This hmltatlon IsmastfrlghtenlnglyIt13nlfested In the relianceon two-dlmenslonaldl3granns that
laymarestressonthequantlfulDiefeatures ofIrolldingorganization run on thepolychromatlcandthree-dimensional
quahtlesofthe whole architectural.experience. -Kent Bloomer&Charles Moore • The only wayyoucan pulld. theonfy
way you can get th~ buUdlng Into being. Is through the rneasural7le. You must follow the laws of natu~ ana use
quantftlesofPrick. methods ofconstruction.andengineering. But In the e:'1d. when the Dulldl"9 ~mes p3rtof living.
tt ~ unmeasura!11e qualltles. and the spirit of Its existence takes or'er. -louis Kahn • Built environments hlYe
various p1Jrposes: to sher-..er peaple ana their 0ICt1v1tles and possesslor.s from the elements. from human and animal
enemies. and from supematural powers; to estaDllsh place; to cr~ ;; humantzed. s3fe area In a profane and
potenttillfydangerous world; to stresssocialk:lentltyandIndlc.testatJJs; and soan.Thus thearlglnsofardIlUcture
a~ ;lest un.derstood Ifone t31:~ awlde~view.nd considers sociocultural factors. In the In-oaQest sense. to !;Ie rr.ore
Important th3n climate. technolcgy. materials. and economy. In arry stt.uatIon. It Is the Interplay of all these f.Jctors
thatl>est ~lalns thefonn of buildings. Nosingle explanatlon willsufflc.e. M:3useDulldlng.s - even apparerrtly huml:>le
dwelhngs - artrno~than material09jectsorstructu~s.They.rtInstttutk:>ns.pasJc cultural phenomena.Peoplethink
envil'O!'lmerTts !lefore they l7ultd them. Thought orders space. tlme. actMty. status. roles. and Pdl3V1or. But gMng
physicalexpression toIdeas Isva1U3Die.Encoding ideas ma~s them usefuImnemanlcs; Ideashelp behavlarbyreminding
peopleofhowto act. how to ~ave. and what Isexpectedofthem. ItIs 1mportant tostress thataD builtenvironments
-i:lulldings. settlements. and landscapes - are one way ofordering the world I:Iy making ordering systems vIsIi:lle. The
essentbl step. therefort.1s the ordering or organizing of the envlronment.-Arnos Rapaport • Ruskin sald:'~
nations writetheir.uto!1lographlesIn three manuscripts. the l7ookofthelraeeas.the 0001.:aftheirwords and the Pock
of their .rt. Not one of these Pocks C3n pe understood unless we read the two others. Put of the th~ the only
trustworthy one Is the last.'On the whale Ithink this Is true. If Ihad to say which was telling the truth about society.
aspeech by aministerofhousingortheactualbUildingsputup In his time. Ishould Pellev~ the I7ultdlngs. -KennethClart
• We requlr~ of any building. chat It act well. and do the things It was IntertJed to do In the Pest way: that It speak well.
and say the thl~gs It waslnte1'lded to sayIn the best words; that It lool: well. and please us I1y Its presence. wnatevu
It has to do or say. -John Ruskin' Architecture also exists without r.ue5sary assistance from an architect; and
architects sometimes cre-a~ buildings which are nat architecture. -Norval White' Architecture Is produced by
ordinary people. for ordinary people: therefore It should be easily comprehensible to all. -Steen Eller R3smussen
319

A Visual Dictionary Of ArchitectureS.pdf

  • 2.
    A VISUA lDICTIO N ARY OF ARCHITECTURE fIlAN( U O. K . ( H INC;
  • 3.
    i i I- f J A VISUAL DICTIONARY OF ARCH ITECTURE JI I I I I I I I FRANCIS D.K. CHING A VNR BOOK JOHN WILEY & SONS, INC NEW YORK CHICHESTER WEINHEIM BRISBANE SINGAPORE TORONTO
  • 4.
    f { r I ! I I .-" - It... _.-l- f I .I - ~ ; , , 1 ~ l... ~ t- ) l . ; ~ I ! I l l. i.. - A VISUAL DICT-IONARY OF ARCH·ITECTURE r I. AlZ~H) FRANCIS D.K. CHING fER~ANr7~l (
  • 5.
    This book isprinted on acid·free paper. 8 CopYright @1995 'ry John Wiley &Sons, Inc. All rights reserved. Published simultaneou5~ in Canada. No part of this publication may be reproduced, stored in a retrieval system or transmitted in arry form or by arTy means, electronic, mechanical, photocop-yinq, recording, scanning or otherwise, except as ~rmitteJ under Sectionsl(J7 or 108 of the 1976 United States CoPJlight Act, without either the prior written pemission ofthe Publisher, or authorization through payment ofthe appropr~ per-copyfee to the CopyrightClearance Cenw, 222 Rosewood Drive, Danvere, MA 01923, (978) 750-8400, fax (978) 750-4744. RequesUi to the Publisha for pennisslon should be add~ to the f'enni55loos Department, John M.~ &Sons, Inc.. 605 Third Avenue, New York, NY1015U012, (212) 850-6011, fax (212) 850-6008, E-Mail: PERMREQ@W1lEY.COM. This publication is designed to proMe accurate and authoritative information in regard to the subject matter covered. It is sold with the underetanding that the publisher is not enqaged In rende:ing professiot131 servius. Ifprofessional adviCt or other expert assist...anu is required, the services of acompetent professional person should be oought. U~ralj' of Congre% Cataloging-irH'uuncatlon Data: ISBN 0-471-28451-3 Printed in ~e United S~ ofAmerica. 20191817 16 15 1413 12 L·: L L
  • 6.
    (ONTENTS PREFACE 7 ARCHITECTURE 9FORCE 96 PLASTIC 192 ARCH 12 FORTIFICATION 98 PLATE 194 BEAM 15 FOUNDATION 100 PLUMBING 196 BRICI< 18 FRAME 104 REINFORCED CONCRETE 202 BUILDING 21 GEOMETRY 108 ROOF 208 CABLE STRUcnJRE 28 GLASS 112 ROOM 216 CEILING 30 HARDWARE 114 SHEll 219 CERAMIC 32 HEAT 117 . SITEWORK 221 CHURCH 35 HISTORY 128 SOIL 224 COLOR 38 HOUSE 136 SOLAR ENERGY 226 COLUMN 40 JOINERY 140 SOUND 228 CONCRETE 42 LIGHT 142 STAIR 233 CONSTRUCTION 48 LOAD 151 STONE 236 DESIGN 52 MASONRY 155 - 'STRUCTURE 238 ~ DOME 60 MATERIAL 161 SURVEY 246 DOOR 62 MEASURE 166 TEMPLE 248 DRAWING 66 MEMBRANE 168 THEATER 256 ELECTRICITY 74 METAL 16? TRUSS 259 ELEVATOR 80 MOISTURE CONTROL 176 VAULT 262. FASTENING 82 ORDER 179 VISION 264 FIREPLACE 87 ORNAMENT 182 WAll 266 FIRE SAFETY 88 PAINT 187 WINDOW 271 flOOR 92 PLASTER 188 WOOD 276 INDEX 285
  • 7.
    "')I i i r~ I, ~ I I ~ J One picture is worthathousand words PREFACE Just as a single image can be worth a thousand words, a single word can conjure up in the mind's eye a thousand images. Regardless oft.he power ofasolitary word or image, however, each communicates meaning more effectively when brought together into a sfngle preserrtatlon, The symbiotic relationship between graphic and verbal communication is the basis for this visual dictionary of architecture. Instead of an alphabeticallistil19 of entries as found in most dictionaries, the information is clustered around basic aspects of architecture as outlined in the table ofcontents. Within each section, words are placed in a visual context which further explains, clarifies, and completes their meaning. '.. ' -', . "'" f--' ill ',' tjC~/~_._ . r~'r m , /~' =1.= 0_.____ ~ ' , ;...>+-,- " "'. : . :...- - .. -;r- . . -4- . The reader may use this dctionary in a number ofw3'js.lf one trows the exact term and wants to find CiJt rts meaning, then one can 1001: it up in the index. Looki~ up one term will always present related terms arTa:1ged around one or more illust<ations. If one does not Know the precise teim, then one can lOOK up the ~eneral subject either in the table of contents or the Index, One can then refer to the appropriate section, brOn-5e the illustrations. and scan fer the terms, While browsing, if one encounters an entry or aword used in adefinrtion that is unfamiliar. one C3', look rt up in the index. Included are fundamental terms relating to architectural deSign, history, and technology. Since architectcre is avisual art, most of the entries naturallylend.themselves to graphic representation. Some are more abstract but are included to help clarify related terms or to complete the treatment ofasubject. Others are inserted simply because they are of historical Interest, This is abook for the curious to browse as well as adesktop reference for the student ofarchltectuJe. The' compilation of words and definitions is not intended to be exhaustive. RAther, the selection is designed to be comprehensive enough to reflect the rich, complex. and multidimensional nature of architecture, 7
  • 8.
    Archftut.ure Is an1rt for aU to !earn because an are concerned with It. -John Ruskin· Archltect1Jre depends on Order. Arran~ Eur:;thmy, Symmetry, Propriety, and Economy. All of these must Pc built with d~ reference to dUl'3billty, convtn1enu, and beauty. ~urabll;ty will lie assured when foundations are carrleJdown to the solId ground and ~Is wl~ and liberally selected; convenience, when the amngement of the apartments Is faultless and presents no hindrance touse, and when eachclass ofbuildingIs assigned toItssultal1le anaapproprlateexposure; and pe~uty. when the appeal'3nce of the work Is pleasing and In good taste. and when Its members are In due proportion accordtng tocorrect principlesofsymmetry.-Vltruvlus • Architecture Isthemasterly. correctand magniflcentplay ofmaS6eSproughttDgetherln light. -leCorpusler· Anyoneenteringon the studyofarchitecture must understand that even though aplan may have abstract peauty on paper. the four facades may seem weU,palanced and the total I'Olume wen-p~. the pulldlng Itseffmay turn out to Pe poorarchitecture. Internalspace, thAt Sp3ce which cannot ~ completefy rtpresent:ed In any fonn, which can De grasped and felt only through direct expmence.ls the p"*,gonlstof.archttecture.Tograsp space, to know howtoseeIt. Isthe ~eytothe understandingoflnJikllng. -Bruno levi- Arch~re,palntlng,and sculpturearecallecl the flnearts. Theyappeal totheeyeas musicdoes to thet3r. Butarchitut-ure Is notjudged Pyvlsual appealalone. BUildings affect all of the human senses- sound, smell, touch, taste. and vision. -Forrest Wilson· It became apparent to us that architecture Is generally assumed to be ah~hly specialized system with aset ofprescribed technicalgoals rather than asensual soci31 art responsive to real human desiresandfeel1ngs. This nmltatlon Is mostfrlghtenlngly manifested In the renanceontwo-dimenslonaldi34rams that laymorestress on the'luanttflablefeatures ofbuJldlng organ1z3tion than on the polychromatlc and thr~-dlmensI011al IualJtlesofthewholearchltecturalexperience. -Kent Btoomer&Ch3r!es Moore • Theonly I'4'Jj'OU C3n 1nJ1ld. the only ny you can get the ~u!ldtng Into being. Is through the me3sura~le. You must follow tr.e laws of nature and use Iuantltlesof~rk;l::. methods ofconstruction,and engineering.But In theend. when the lnJildlng Pecomesp3rt of living. It evokes unmea5'Jral11e qualities, and the spirit of Its existence takes (J·m. -l.ools Kahn • Built environments have varioltS purposes: to shdter people and their activities ana possessions from the elements. from human and anImal enemies, and from supernatural powers; to esta~nsh place: to create a hum.in!z.ed, safe area In a profane and potentsallydangerous!York.:; tostress socialidentityand Indicate status;.indsoon.Thustheoriginsofarchi~re are ~ understood Ifone ta~es awider view ana considers sociocultural factors, In the broadest sense. to Pc more Im~"t than chrnate, ~hnology, materials. and economy. In any sltuatlon,lt Is the Interplay ofall th~ factors th4t Pcstexpblnsthefonnof ~ulldlngs. No single explanation wfllsufflu. ~use InJlldlngs - even appart11tly humPle dwcUl"4S-areI'IOrCthan materlalo~ects orstructures.TheyarelnstlMlons, baslccultlJ;.iIphcnomen..Pecplethlnk environments Veforc they ~lk:I them. Thought orders space. time, actlvIty: status, roles, and ~ehavlor. But gr.-Jng physlcalexpreS$lon tokleasIsvaluable. Encodinglaeas makesthem usefulmnemonics; Ideas helpPenaviorDyremInding peopleofhow to ~ howto !leh3ve.ana what Isexpec1'...edofthem. ItIsImportanttostressUutalllnJlJtenvlronments -~,~, and landscapes - are one W<rJ oforJerlng the world by making ordering systems vlsMe. The esstntIal step. therefore, Is the ordering or organizing ofthe environment.-Amos Rapaport • Ruskin said: 'Great natlonswrlte their allto~raphles In thrumanuscrlpts,the rookofthelrt!eeds, the bookoftheirwords andthe ~ook of ~Ir art. Not one of these ~ooks can I1e understood unless we rt3d the two others, but of the three the only trust~or.e Is the last.'On the whole I think this Is true.lfl had to saywhich W3S telling the truth arout society. aspll('JChbya ministerof'housing orthe actual~ulldlngs put upIn his time.Ishoukl"elievethe InJlldfngs. -Kenneth Cla~ • We requ/reofarry rulldlng. that It act well. anddo the thingsIt was Intended todo In the Pest way;that Its~k well, and S3y the things It was Intenaed to S3y In the Pest words; that It look well. and please us by Its presence. whatever It has to do or ~. -John Ruskin • Archltuture also exists without necessary assistance from an architect; and architects sometlmescreate buildings which are not architecture. -Noryal White· Archfttcture Is proJuud ;y ordinary people. for ordinary people; therefore It should pe easily comprehensib~ to all. -Steen Eiler R3slT'ussen 8 l, ; t, I l j I J l .- l- l. L L L L
  • 9.
    r I I I r r' I I r r ARCHITEC The ART architecture Theproduct or result of archit tural work: ~u~ldlngs. collectively. and SCIENCE architecture of DESIGNING architecture The profession ofdesigning Duildlngs and other ha~1 ~le environments. and CONSTRUCTING architecture BUILDINGS 9
  • 10.
    ARCHITECTURE art The consclenu useof skill craft. and creative lm.1glnatk>n In the production of what Is beautiful appeallng. or of more than ordil'l3l)' slgnlflcanu. environmental design The ordering of the physical environment by me3ns of archlt.xture. e~lnurlng. construction. landscape architecture. urban design. andcity planning. 10 aesthetics The branch of philosophy that deals with the nature ofart. beauty. anatJste. with a view to estabhshlng the meaning and valiatty ofclitlcalJudgments conceming wori::s ofart. Also. esthetics. beauty The aggregate of qualities In a person or thing that gives Intense pleasure to the senses or deep satlsfactlon to ~ mind or spirit. whether arising from harmony of fonn or color. excellence ofcraft. trutirfulness. originality. or other. often unspeGlfIal7!e property. taste CriticalJudgment. discernment. or appreciatlon of what Is fitting. harmonious. or beautiful prevailing in aculture or personal to an Il1<.Ilvldual url1an design The 3spectof architecture and city planning that de3ls with the design of urban structures and spaces. city planning The actMtyor profession ofdetermining the future physical arrangementand condition of 3 community. involving an appraisalof the current conditions. 3 forecast offuture requirements. aplan for the fulflllment of these reqUirements, and proposals for legal. financial. and constructional programs to Implement the plan. Also called town planning. urean planning. inUrior design The art.l7tJslness. or profession of p13nnlng the design and supervising tr.e ~utlon ofarchttecturallntulors. includlng theircolor schemes. fumishi~s. fittings. finishes. and sometimes architectural features. delight Ahigh degree of pleasure or enjoyment. space pIa nnjng The 3Spect of archItecture and Interior desIgn that deals with the planning. layout. design. and furnishing of spaces within a proposed Of' exIstIng building. i J u L L L , L. J I L
  • 11.
    r L -a i firmness The state orquality of Delng solidly canstructed. technology Applied science: the branch of knowledge that deals with the creation and use of technIcal methods and materials. and their Interrelation with life. society. and the envIronment. technics The science of an art or of the arts In general. tectonics The science or art of shapIng. omamentlng. or assembling materials In construction. architectonics The unifying structure or concept of an artlstlc work. engineering The art and science ofapplying scientific principles to practical ends in the design and construction of structures. equIpment. and systems. l1ehavioral science ARCHITECTURE science A branch of knowledge dealing with a body of facts or truths olrtalnea!1y direct observation. experimental Investigation. and methodical study. systemat1cally arranged and showIng the operatIon of generallal'ls. Any ofthe Sciences. as salology and anthropology. that sed: to discover generaI truths from theoDservation of hum..n behavior In society. ~cio(ogy The science ofhUlT13n social Institutions and relationships: sped. the study of the o~ln. development. structure. funeticnlng. and collective behavior oforganized groups ofhuman befngs. anthropology The scIence of human beings: speclf. the study of the origins. physlc3l and cultural development. and environmental and $OCtal relations of hUlt13nklnd. __L-________________~ ~~-- 0.-,; _ _ -....- ...... ~~-,--....-- .----------:7'..::--------------c:=.:~~;~~~~~ landsc;ape architecture The art. business. or profession of deSigning. arranging. or modifying the ~ . features ofa lanJscape for aesthetic -~rf/ or practical reasons. _,J)i1fr"';';..~ - L.,".. ;"· r:-'- ~~/:~~:-:: t .'-''''-'-''-''-''''""~ ~__I~~~'cfitl,.' -: .-~'N~..:r~J:~~~.j< '..:), -'-"-?~--- 11
  • 12.
    I j I· I. I: .:; 1; j L I ,- I ! tARCHf AcUrYed structure forspanning an opening. des~ned to support a vertlcal103d primar~y :7y axial compression. N50ntyM-ch ~ An arch constructea of Individual stone or prick VOlJ ssolrs. ~voU$$Oir __________---.. Anyof ~he wedge-sh2ped units In a ITI3sonl)' arch orvault. havl~ sidecuts converging ,,' one of the arch centers. ~ keystone - The wedge-shaped. often embellished voussolrat the crown of an arch. serving to lock the other voussolrs In place. H--~_ • extrados The exterior curve. surface. or ;;.:'..:11d31')' of the visible face of an arch. Alsv :3i!ed barr ~--_ archivolt Adecorat1ve molding or ba nd ,;;", "he fau cf an arch follOWing the curve of t.!-~ ;ntraclos_ r l .. ~_e.h'e~htof~na_hfrom",-,.-.-.r-->n---:intrados-. Ill(; .. ", Thelnnercurveorsurfaceof":1J~h t5pn'ftM!f!--------- formln~~Leco _J 11 • .~- the sprlMIMtI line to the ..., VII ncave uUClersouc_ The first v'oussoir resting on theImpost ..., ..., M='=a=na=rch==_==================~===±~______ . _____ .~h,_s_t~ __ I~_of_~h_e_In_Ua_d_OS_'~~~~========================== ~croWn -"--------------------, -The-highestJ'"Ir1orpoint ofa cormxccnst:ructlon. as anarcn. vault.or~_ t-~-~~------------~- ofan arch curving down from thecrown to the Impost. ~----~-E:1 Tr.e uppermost partof an 4IPutrnent. often In the form of a !7Iock.capfbl. or molding. from which OIn arch springs. I 5pring The point at which an arch. VJu~. or dome rises from Its support. Also CJi!ed 1springl~. .----------.------..:..' spandrel or~~l------------------~ ArrJ several concentric ringsof forming an arch. esp. when e3ch Dro1·~.~'~~[~, ',-U-l.J"'- pCjond the o:'.e pelcw. The triangular-shaped. sometin-.es ornamented area 17etween the ~.ndos of two adjoining arches. or ~ ~~ left or right extrados of an arch .rJ t.:...t rect3ngular fra mewon: surroundirI.,1 It. Also~Sp2ndril. i r.g Acrosspleu connectlng the I".l>s in 3 centering. Also called folster. f '>.~. -.···rlJUVUrt;h I - .~ An archway having sides orJam~s not at .. - :~ right angles with the face of Its abutments_ ~enur!ng AtemForal)' fl7lmework for supportln~ a masonI)' arch or vault during construction until the work can suppo~ Itself. camber piece Aroard used as centulng for aflat arch. ~ ( IIffilllI{ slightly crowned ~allow for settling of j / the arch. Also calle4C.1l)1per 51ip. _ _ 12 I , l; t J I I ! LJ I u L L l L L L L L
  • 13.
    l r I l r f" I f f r r , I Junic~lar .1rc_hI An .rchshapeJ to develop only axial compression und~r agiven loading. This sh3p<: may ~ found by Inverting the funicular sh.:;pe for ac.:;ble carrying a similar Ioadlng pattern. As with any funlcu13r structure. afunicular arch Is subject to Pendlng ~ the loading pattern changes. An tr.oerW~ry is t~ funlcul.r 5hape for ;In arch C3tTjlng avtrtlC3lload uniformly JI5triMdi1hng the lenqth ofthearch axis. TIlep2r3rol1l$ the funicular sh3~ for an arch C2rT)fng ao;r:rticz{ loaduniformlydi5trW.d C'ltritS horlzw...afprojection i .-.--;-.-.~----.-4- tigid arch--·i An ;m::hed structure of timber. steel. or relrrforc;ul concrete. constructed as arigid body capable of carrying bending stresses. fu:ed arch Afhed frart'~ structure having an arched form. two-hing~ arch -------~ Atwo-hlngeJ frame structure havir.gan archeJ form. thru-hinged arch Athru·hlng~ frame structure h3vlng an arched form. ~ Su fr3rt1~ 5trvcture ARCH ,...--------------+-'archaction I The manner In whlcn an arch transforms the vertlcaIforces of asupported load Into Inclined components aria transmits them to abutments on either side of the archway. r--~-------+- ~rchaxis the median line of an arched structure. .---------J-..~ line ofthrust; . , The setof·resultantsbf thrust and weight each part of an arch Imposes 0'1 the next lowerone. For bending to be eliminated throughout an arch. the line ofthrust must - coincide with the arch axis. Ithru5t. ! The outward force or pressure rertea I7y one part of astructure against another. --...:liI~~·::it-"Jrlft" I .i The thrust of an arched structure on Its ~~-#-r-------------t-I.L-.~.~ abutments. proportional to the total load anaspan, and Inversely proportional tcthe rise. ~Mment ~ The part of astructure receiving and supporting the thrust of an arch. vault. or strut. tie rOd An Iron or steel rod serving as astructural tie. esp. one keeping the lower ends of an arch or frame from spreading. 13
  • 14.
    ARCH <::<:.....~~ ..... .'..':.:.~ ":-:;~ fUt.nch; ~t Anarch having ahorizontal Intrados with voussolrs r.:Idiating from ~ center~w. often puilt with aslight camPer to allow for settnng. Also C31~1c ai-aI:',I round arch' An arch having acontinuously cuc;'ed Intrados. esp. a semicircular one. polll'ted arch' An arch ~vlng a pointedcrown. 14 ~ French arch . Aflat arch having voussolrs inclined to the same angle on each side of the center. • RolTL1n arch An arch having a semicircular i~tr.:ldos. ~~~Iarc~··.i An arch strock from one or more centers ~Igw the springing line. • skewPact _'--,-_____-.l Astone orcourseof masonry having a sloping f.Jceagainst which the: end ofa segmental arch rests. • ettuli~r3rarc&' Z r =' Apointed arch havIng two centers and r.:Idll equal to the span. G~thl~'~Rh; I r.. ApoInted arch, esp. one havIng two centers and equal r.:Idn. ~ triangular arch' AprimiUve form ofarch consisting of t ....o stones laid diagonally to support each other over an opening. corbel arch Afalse arc~ cc:~s~ructed by corbeling courses from each slde of an opening until they meet at 3 midpoint where acapstone Is laid to comp!eU the won:. The stepped reveals may be smoothed, but no arch action Is effe.c:.ed. ~. i rampant.1rch . fL··J·~ An arch having onc Impost higher than the 1 other. ........;-..------~ stilted arch ~ An arch restir~ on imposts treated as : . downward ccn,i~uations of the arctr0lt. . .-t-.. !PeUarch . 'A round arch rest'lng 011 two large corbels with cUrYed taus. fi) '" 'to> . .-L.~..,.'_______ hor$eSMe arch 'i.~ ". ..J/ ..... ·~·t··7-·, .... /."'.... / "---~_+ '---' _l la~arcltt Apointed ~rch having two unters and radII greater than the span. An.rch having an Intracios that Mdens aPove the spri~lng Pefore 1I3rrowing to;jJ rounded crown. Also cal1e£fMoorIsh arch.! ,'trefol1arch An .1rch having 3cusped Intrados with three round or pointed foils. ; basket-handle .1rch Athree-centered 3rch having a crown with a radlus mUGh gre3ter than that of the outer pairofcurYes. Alsocallefn~ de panic! , drop al'C" A pointed arcll haying two centers arid r.:IdJl tess than the spar!. : 'lU'pasedarch An arcn havIng ari~ of tess than half the span. .-3.. o¥earch Apointed arch, e3Cn hJunch of which Is a double curve with t~ c.cncave side uppermost {j I I l.J I I tJ I lJ L i L I L l~ ! I L
  • 15.
    r- I i ! I r i i r f L r .- - i l BEAM Arigidstructural member designedW C3rry and transfer ~1I1I~~It~i!~IIIIIIIIII;;!!!lliliiiiiill!!lIIII~~ii~Ii~~tiriainISViel~e,oadsacrossspaceto ~ ____ supporting elements. M--"-'_h __ 1span ' The extent of space l7etween two supports of astructure. L,.----L.L.....---.-l- - Also. the strocture so supported. ; rcearspa~'-:..,,:-"------------~ The dIstance b-etween the inner faces of the supports of a span. -r.=i~=!r~~lerdistance l7etween the supports of a ! span. f=+ t f ±[f -+ -t + -===------------------~Iii [ Ptnd~mcment -<,--'_ _ _ _ _ _ _--":yz:...~:.;:zc....---'X:.?'-_,. An exta1tl1 monierrt~ndlng to C3'J5e fi3rt of astructJJre to rotJte or ~end. ea031 to the al¢'r31c sum of the moments amt the neutnl axIs of the section U~&!­ ~14 COnsk:lerJtIon. 1 ~~ moment t------------------~---, • An fnt:er.ul mOmerrt'ec{U31 and opposr-..e to a ~~ roment_ generated by a fcru couple to Nlntaln equilibrium of t<~.e ._~'.~ ------- --------- -------~---. a;mpresslon ''--------- ---- -----------~ Un5lon sectbn Deing considered. ~ft.!--------' 1 ~-~ulard1stance a spanr.i~ If'.em~ ~tes from ;1 true W1.J~ under ?4nsverse loadlng.lncre3sing with Ioad;lM span. and aecre3Slrlq ·...-f';h 3fl1ncre:ase In the morr.ent ofInertl3 of the sectloo or tM modulus of ei3~..ctty of the ruteri3L ~-~ ~sngfit' convex curvature Intentlot1311y ~nt Intoal>tam. gIrder. or truss to compellS.1te for an anticipated ~- ~--~-- ..~~'- - - -__-=:::~~..::....J;,~---------- _;neut-i-alaxis , An ImagInary line passing through the I cel!troid of the cross section of abeam or , otMr rneml7er su~ject to !lendIng. alonq y which no ~ending stresses occur. C bending-5tre55 , ~ ... Acoml7inatlon of compressive and tension ~ stresses developed at. cross section ofa r structural mem~ to resist atransv~ ~ force. having a maximum yalue at the ~ surface furthest from the neutral axIs. , ~~h~~ ____________----1 -Anextern.alshearforu at across section of abeam or other member subj~ to Pendl~. fl1U31 to tM a~ebralc sum of tnnsverse forces on Ofle side of the section. I .---:vertical shearing stress; : The shearing stress developed along a ~ . : cross section of a~eam to resist ___---- _: transverse shear. havIng ama"xtmum value ___ ---:------ - : at the neutral axIs and decreasIng ::::::::::::::::::::::::~-=---=---=--=------------ --- ~ nonlinearly toward the outer faces. ------r------J----~-------- : The snearlng stressdevetOped t.J prevent 1-~ : slippage alang Iong!tudlnal planes of a~m' : ur.oer transverse loading. ~ual at any point '-"-. ~. -- - -:- - -------- ---- - ----:- ---~ to the vertlcal~h~~r:l~_~ *e:;;;at that point ~ AIso calIec90ngftudinaf s~rfn4 s~s; 15
  • 16.
    BEAM Whk ~3 ~spanreduces th~ bending ~ ry3 tJacre{z.JouPling th~ depth reduces t;!!ebending 5tres5eS by3 factor of4. 16 fp =MC{!)_______ mamentoflnertia The sumOfthe products of each element of 2n 2rea 2nd the square of Its dlstance from acoplanaraxis ofrotation. Moment of Inertia Is ageometric property that Indicates how the cross-sectional area of a structural mem~er Is dlstrl~ted and does not reflect the Intrinsic physical properties ofa material. where f. = extmn~ firerstressIn ~ndjng M = bending n10mttTt C = distJnc~ from neutnl/axis to th~ outermost surfJC~ in b~ndin9 If Yc=®~-------- section modulu, 'A~~r6pMy ofacross secuon. deflned as the moment of Inertia of the section divided l1y the dlstanee from the neutral axis to the most remote surface. then fp =MIS Thetfflcfetlcycf3 Pe3m15 lnCT'e3seJby CQnflgurlng the CT'OS5 section toprovfde the requireJmomentcfInmb orsection modulus with the 5maOe$tpos5M~ 3rea. usua!1yby mating the section kep with mostofthe m3teri;(at the ~mitles where th~ maximum bending ~ occur. _1- J - 5hearceo'Ur T~~p~-~nal~Ia_~9f.a s~l~~gIfWfiICfi'i'?· -,- , transverselOad';r'-ustpa'55InorJe~ to prevent torsion or twlstlng.of the mem~er a~out.a Iongltudlnal axis. 33.25inz = Area ofsection 25OIn4 = I aPoutx-xaxis 52.61n' "" S ,tresstrajectories lines depictIng the direction put not the magnitude of the principal stresses In a ~eam. I I I: 11.20 in2 = Area of5Xtion 3861n4 = iaboutx-xaxis 54.7in3 = 5 principal stresses The tensile and compresslv~ stresses ' resulting from the Interaction of ~na1nf! and shearstresses at across section ofa beam. At the txtreme surfaces ofabam. only !>ending 5tr~ses &:xl5tand theprlnclp;1l stres:.e-s3rt equivalent to the tensiJe and a;mpr-c5slvc str~5e5 resulting from l>alJ1nq. At th~ nelltra/axlsofthe section. only shar stresses exist and these can ~ rcscI~eJ InW ta7sJ1~ ;milcompre55l¥e ~ses xtJn~ at45" mgfe.s to the neutnl1Xl5, For217 lrrU:rrnedim element sut;ecttobotb be:nJlng x.J she3r5tre55eS. theprlnctp.al stressesh3re3n InclinztJcn ktemI/neJbythe rd3t1r~ magnitudes ofth~ 5tre55e5. ~- tension I = " I 1 i L L L J L r I L
  • 17.
    r l f t r i r r fF i -.-t." f LtlU 1 +J.1J.Lt . I . : ; : t : BEAM 5imple beam A~m restlC3 0.1i sim~~~u.ff£ljs at Dot.~ ends, which are free tc rota~ and have no moment reslst4nce. As with any st.otlwfly aetennlnate structure, the v-alues of an reactions, shears. and moments for a simple beam are Independent of Its Crc5S' sectional shape and ma~31. ,heard.g..m 111.11111111' ). '~ .•. !:; I, II.·~' ii'l:1 Agraphic representation of the variation In ~:.. IIIr ( III I! ,'I! magnitude of the external shears present In ... !!.... I astructure for agiven set of transverse -' - cantilever beam loads anel support con.:fitlons. Concentratedloadsproducee~ma(she~ UniformlydistribtJudloadsproduce(ine3ri) :.": X'pro~rij veat:ns,upPPfted.a~ only.one momentdi.1gram ______~~~~~.~!~CQn-'~m.'g.wJ'-~ ~~~: :.,,'''''. r , ;;';~~' " " ' , ' ' , A¥3EIC:~torrott~~nJn: . : : : :-~:~~!-W,f~~jj,!!e.: . :; I : Concentr.ltedloadsproducebendingmom~ts which varyhne;;rfybetweenloads. cantilever UniformlydistribrMdloadsproduce panbciJc311yvar:lr.~ moments. louis and support conditions. The overall tkf1ected shape ofa structure subject to Pendlng can often lie Inferred from the shape of its moment diagram. ';~~~~~~~~'~=:~~~~~~~~~~~=t ~i 6' positive shear - . . . .P,,~~ ...t ... ,.res~l?nt. of.shearforceSth3tacts r vertIca~ upW1rd'~n the left partofthe J structure !:>errig consldered. 'rnegativeshear ----------------~ ~ ~ A~."r:esutta .. nt. of.5 .. hearforcesthatact5 . "ertIC3l!:t~~rapn the left part of the I structUrl: ~elrig'c·onsldered. ~---:",""r-T--,.-,-.,."-l...1fJ-l-L-L...LL.....w.-l...L.L....w..::... positive moment ·.c.,....~.~.~._ _ _ _ _ _ _ _ _ _ _ _ _- " -_ _- ' A !:>ending m<Jrrtent ~ proaUcesa concave ClHYaturl: at a section of a structure. overhanging peam A slmple Deam extending beyond one its supports. The overhang reduces the posltlve moment at mldspan while developing an~3t!ve moment at the Inse of the cantlieverover the support. Assuming3 lJI1/formlydTstrWvW(03d, tJ;e projection for wltfch themorrr~ OY~ the 5I.:pportIseqwfindopposlU ta themorr.t:rt 3tmidspan is approxlmMy% ofthe Sf!41 1 J. 1 $J, J, J. J, J. J. J. 1 J.i .L4t- I As5l.ifT1ir., 3 uniformlydistriWW l:::;;J. ; . theprojections for .,.,nlch themommts 5u'pended-span AsImple ~m supporW by the cantlievers of two adjolnln~ spans with pInneJ constructlonJolnts at polnts of· zero moment. Also calW hu~-span. : ' : OYerthe5Upport53~eq~/md : 'oppos,'u to themomer.t3tmidsp71 h3unch - - - - - - - - - - Thepartofalleamthat!Sthlcl:e~OCi' ~ ~' ~~Th~~f~~t;~~aM~~ " ~J J ~,.< J 1 ~ ~~' inc~e;jS@iiY shaping Itslertgth In respon..~ to the moment and shear values whk;h typically vary along Its Iongttudlnalaxls. ~ ~ [Y 1J_ effective length The dist3~ce Det.....een Inflection points In the sp3~;f aflxed'end or continuous beJ~. quiIl3ie.-: in nature to the actualleng~h ~ 3 simp!] s~pported 'eam. ;;re approximately'/, IJfthe sp:m. fuea-:.eM~r.t- " ~'~~~;.~~~~ tr..nsfer !:>ending 's~s,lncre-ase the rlgldlty of the ~m. and ~uu Its maxlmum defIect1on. ccrttinuou5 pe4m _ ~ be3m extettding~~t~~ih",,~J~,.. ~~§Jn ordu to aevelOp greater rlgfdttyaiid smaller moments than a ser~s of simple lleams having similar spans and loading. Both fIXed-end and contJnuous !:>eams are Inktamlnate structures for which the values of all reactions. shears. and mo~nts are dependent not only or. span and Ioaalng but also on cross- sectlonal Sh3F~ 3'1d material. 17
  • 18.
    ,lJJ.Sl.(W Am3SOf1f)'unitofclay, formed into •rectar.gwr prism while plastic and lurdenea Py drying in the sun or firi~inaUn. 'ccmmott~~ Brict made for general Pulkllng purposes and :let s~1a11y treated for color and te~~re. Also C311ea building brick; _.. ' -- ....... - .. - - mingl1rict' !3rlcl: maJeofspec~1 clays for facing a wall. often treate4 to produce the ~sJ~~.~glg~ and 5Jrfau text.ure. Also calrea faciIn-Ick. :.--. --: ~~~~ ! scft-mud process . The process of forming prick l:>y molding relatively wet clay havlng~re C$!:Vwt- Jt ~..... j5.1ndstruck brick Bricl: formed In the soft·mud process wlt.,~ 3 mold lined with sand to prevent stlckln9. producing3 matte-textured surf~ 1prick_type! Ades~ll3t1on Indicating the pennlssll7le ~rtatlon In size. color. chIppage. a"d dJst.ortk)n albwed In afacing I7rick unit. rex F.ang I1ricl:: suitable for use where a !ninlmum ~rlatlon In size. narrow color fA ng~. and high degree of l.T1ech3nlc31 pafectlon are rea.ulred. 1~~!llllllllllilll~1r waterstruckhick Bricl: formed In the soft-mud process with 3 mold lulnicated with water to prevent stlci:!~. producing 3 smooth. dense surface. "trrt-mud pro~ ! The process of fonnlng prick and structur.il tile ~ extruding stiff Put plastic clay having a moisturecontent ofl2t to 151 through 3 !~ anacuttlng the extrusion to length with w'res FB5 F,cln~ kick sultaple for use where a wider color ~,nd greater variation In size 3re ~rmitted than for type FBX. FDA F.a~ I1ricl:: sulta7te for use where p,rtlcubr effects are desired resultlng from lIOIIurJformlty In size. color. and texture ofthe Individual units. , lorici~' Adr!s~tUtIon indicating the dura!7i11ty of a m:t unit wfIen exposea to weathering. The u.s.Is drtW In~ three weathering ~ - serer!. moderate. and negllgll7le - .3cc,~·dIng to,nnual winter rainfall and the 6n~1 number offreezing-cycle days. Brick is pJd for use In each I'C9lon according to ~ strength. maximum water , a~.andm3XlmumSJturatlon coefl'.clent. t MW~ . AImCk grade suitable for exposure to-- ,moder'3te weatherl~ as when used ~e grade on surfaces unlikely to l7e penneated liiltn Wlltel Iii subfreezing temperatures. j5W ~ ,II !nick grade suita~1e for exposure to severe weatheri~,;as when In contact with ---~-----=::: the ground or uSMon surfar.es Ukely to ve- ~ permeated with water In subfreezl~ temperatures. . l:>efore firing. 1drrpress process i The process of fanning prick ~ motdlng relatively dry clay having amoisture co~ •.e:q; of 51 W under high pressure. resulting in sbrp- edged. smooth-surfaced pricks. 1b1n) f.. fumau oroven for Pumll1g. I:1aklng. or dryi~ ~I~. esp. one for firing pottery.17a:ir-3 , m=ks. ordryl~ tlml:>er. j~~hin~'f , - - - - - -__--.: Plfing luiCk un~lterTl4tely with too much or too httle air to vary their face COlOr. !cull " . 1 A!nicI: or tlmb~ rejected as being ~ Infer':£r quality. ~. The ~ofW3ter a~ Py. claL I"'.lSOlllj' unit when Immersed In either cold or boIIIn4 I'I7terfor ast3ted length of time. ~'5 apercent3ge of the weight of ~l.,edryl/l1lt. t1~­ ~-~~ NW ...... -..... -.... -... ,.. ...... .... ........ Jfi!e·l7ridcr·-···: Abrick grade sulta~1e for ~posure to AGT{£mUle of fire clay ana used for IInln~ ~iI coefficient The rnlooft~ weight of water absorbed ~5bhiy Dille hi!mtlrsta In cotr IIt7terto the weight a~sorPed when ~ In rolh~ water. Indicating the ~ resistanceof the brick to the #etlan offreezl~ and thawing. ~. 3 weight of water absorbed ~._' iTl3S011f'y unit when partially Immersed for croe minute. expressed I~ grams orounces p minute. AlsocalleJ mlt/al rau of iI~ 18 jl!e9~n~~~ ~~as when useaas a amaGtts and flreplaces. 113Gb,,.orin Itfterlormasonry.- -.; . ,-;;>:'!f',-!J . ,~ ;_ .t.t~ ~:'l ~. - - i :' .:!{ :: ~.~.. .~ ~ "'- -.;.;" .- ... -- ......~~ I ~. . ":~~;" ~ ,,;:;. ~. ~q . .., ;( .." ,-i· ~-:-;;~~·.:.~I':~ ~, "V.' ~~ h.·.'j~) S dflo~res;e:;~~:~~ Awhite. powdery deposit that fonns on an exposed masonry or concrete'surface. caused Vy the leaching and crystallization of 50luple salts from within the material. t.~_c~ AWct¢ryclay useaIn the making of ~rucl&t;S. aria otHer objects exposed to high tempentlJres. ~!y_, Amaterial having the avlllty to ~taln Its physical shape ana cliemlCal WnE§' w~ suPjected to high temperatures. l. u u I l.i I U
  • 19.
    r r r r f r i r r rnoml,,' dim",.Ion ~ I Abrlc~dline~S'o()f1 Lvgerthan the l actual dJ~s:cn toaccount for the . thicl:ness rf 3 :nortarJoint. -·r---· ·'h jumbo urick . Any of "'3 r100J5 C'1erslzed 17ricks h3vlng nomlnJl di~~S:Ons establJshed Dy the m3nubct~~e-. seal' I -'i Abrd or tl.e i-.3Ying normal face " dlmensloos ~Jt 2 nominal thickness of 2In.(51I11m~ ht-J A!mel:: cut t... rsversely so as to leave onetr1dw~ ~:.., TaChipar rJC> stones or 1nicks to a certain s~ c-r sl1ape. .3 courses =8 in. (20.3 mm) 5 COU."'5ts = 16In. (406 mm) ~=:::ib=:::o:;f=:.d,-,-~~£.. 4 coursts = 8 In. (20.3 mm) •See mJSOnry for types ofmortJrpr.:s BRICK moduL-lr brick A 17rld: h.wing nominal dimensions of 4 x21,.'3 x3 in. (102 x68 x203 111m). NormJn brick APricl: h.wing nominal dimensions at 4 x21,'3 x12 in. (102 x68 x305 mm)... SCRurick Briel:: h3';119 nominal dimensions of 6 x2113 x12 In. (102 x68 x305 mm). engineered brick AInicl: h.wlng nominal dimensions of 4x3~/s.5In. (I02x81x203mm). Norwegian I1rick A17M h3Vi~ nominal dimensions of 4 x 3'/s x12 in. (102 x81 x305 mm). Roman brick Brick ha'ling nominal dimensions of 4x2x 12 in. (102x5! x305 mm). ecanomy Prick Amodu~r vrick having nominal dimensIons of 4x 4 x5 in. (102 x102 x203 mm). stret:.cMr Al?rlcl: or other m3sonry untt laid hortzoot..fIy In awall with the lo~er eage~ or parallel to tne$lJri:ou. '·'·' ..''~r., A 17rld: or other m3sonry u,nlt /;lid horlzontaily 1(1 awall with the shorter end ~ or parallel to the surface. -.,..,~~J A I7rld: lakl horizontally on the longer edge with the shorterend exposed. AI$O.~J fc.~~} A I7rld: laid vertically with the longer face edge ~pqsed. . itorl r~k lakl vertically with the I1read faceex~. ,... '.' 7shineri 'A brIck i3J h<:Jrizontally on the longer wge with the broad face exposed A!S] called pull str~her.! '! 1 19
  • 20.
    BRI(K fbrickwcrij erfck~Ion, esp. tMart of bondin9 Prld:s effealvely, '~ndt Anyofmblsamngements of masonry units ~.iI regular, recognluble, usually OYerbp~ pattern to Increase the strength and enhance the appear3 nce of the conskuctlon. j ",n~~/-..........-.--··-··.... Alni:iwort or masonry bond composed of OY~ stretchers. Also called 's~ron(U pa.otllond 1 Alni:iwort bond having acourse of headers ~ ~flveor slxCQu~ P-f stretchers.AlsocalW .f'rieffi.1nl1~, f clesa' ..........-.......... . ANSOnry unit specially formed orcut to fDsh " COU~ orcomplete the bond at ~ co,cner ofawall. Also, closure. ~~~l Alni:illlOrk laond having altemate courses of hakrs ~lidstretchers In whleh the ~n untered on stretcMrs and the joints ~ stretchers nne up vertically lnaiCOlll'StS. ~ ~=~h::~.I.~.t~:-:~~- 00.- - forroa"1~ng" course or for spacIng reglbr!nicks. Also;Cuun closure. fJem~~~1 A~ bon(i having alternatIng headtrsand StretcMrsIn e3Ch cou~, ~ ~ ~ng centered arore and Pelow .iI~. ~da~ ----------....... --- .. ~'='==_::::!±:=::! A~uarter Imci: fodlnlShlng a cor..eorfor spacing regiliarlmcks,t Also. ki". cfO$Ure. !F~~ 'A fonn~~nd In which the c.ourst:Sn offset to form adtamona pattera. 20 .... soldlerccur5e, Acontinuous ecurse of soldiers In brickwork. .~tack~ond '). br1ckwori: or masonry bond havin9 =::>==:;;::- successive courses of stretchers with all headJoints al1gned vertlea Ily. Also. ~acked I1ond.! ~~~~~~~~~::=:K :Englishcros5 Pond- ODD DCJDDD .ArnodJfJed EnglJsh bond In which the heaa DD~D~~~ Jolnts!n the stretching courses are offSP,t ~~C=::J( .by half the length ofastretcher. Also called ODDDDDDDDC ,-Dutdt~1 Dc::=Jt=Jt=JDT ODDDDDDDDC c=Jc:::Ic::Jc:=Jf ODDDDDDDDC Dc=Jr==Jr==:JO( ODDDDDDDDC c=Jr::=:JDDc==J[ Flemish CtO~5 Pond A mod1f1ed flemish bona having courses of altel'Tl3te headers aM stretchers "ftem3tI~ with stretching cou~. -..- flare header Abrick h3vlng adamr end exposed as a heac.ier In pattemed brlcl:won:. ~)~~~~~~~Ill: larden-wall Ponel F ~prlclilYOrHond for lightly loaded ~~~~~i~~~g: rounaary walls, having aseq~ence of a po header and thru stretchers In each course, ~~~~~i~~~~= with each heac.ier ilelng centered over a t= header In alternate courses. I i I j J J I i 6 L L L L J f L
  • 21.
    A~ Is Asheltb' from r3in, SUn, and wind. This mpIksa~and Waifs wsupportIt. If the ~ emtmym;Jose th~ 5pau WIthin, ~ xt ~ for access. 3I1dWlndCW$ for ¥t- Ro:7fs and waDs, door5 and WIndows a~ ~ ~ fe3tures (J(buffdl"95. Roof5 T/U'j b.: f!.it:. sloping. orcurved. Aroof with~ slopeIs C3iWaLan-to. When two ~ roofs ~ upa!p3r.l1ldw;Jn5 andle.in a~ns:r;ne ~ theymeetIn ahor/zorrt.31 rlJge.lt ~ ~,XIII form aG3t>1eatt.3ch~. Iftwo rQ/Js m;;;i~aprojectingang~ their rwfs ~1n3n It1cIiMJlint calledafip. Ifthe rr;;aIl:; me&t;,areentulngangl~, the ItIcfJr,dile ofIrrtersectSon Is calfeda Valley. Orcul.r JlQIJsC3rrfca1Idordcmlc31roofs.. IfthaeIs m«e dwItX7e 5tcry, the fL1t; roof qfthe ~ stcryb.:comes the Floor(J( the stQry~.lfthe fYX!fextenJs b.:yond the wall tJrztsuppa-tsIt, the projection15 called the &;es. Ifthe W31al5oproj~cts to suppon the ~ (J(the roof. the projection is calJtJ;/ComJce. Theprincipalmember(J(a ccmice. JIIhJchproject5llf:~ a5heJfandcrO'Nr15 the IQI, is c;tIIeJ;/Corona. Wans 3rC ger.er;HiyI1I3de Wfd~r}U5tat the bottom5<);15 togetabetter b.:.arlngon the ground T1r5projectItXrIs the Ba5e. Asimilar ~ atthe tq7IscalJed;/ CiIp or.IfIt project6 nJCh.aCcrrke, ;15 h35 been said. A low".,IsakJA r~ Ashortpiece rJf "an.iIboIrt.25 bng.25/tIs thIct15 calida rcs:..3IIrIlflt~5<JfT1ethI"9.a ,~theprt~ It6 capanJb~15 thaT theOle. AtalpestIs canedaPIer, IfIt Is 5qlI3~;ndaCdumn IfIt Is round. Wp5 (J( pierSxtIcdumnsxt c.alledwpftals. and the p-t~ theC3p andthe ba~, the 5h3ft. The M ~ marIber(J(3 C3pitaJIs c.al/ed the~. Abam tit3t 5p311'5 the spxe Pmrun two pIerS orccJumns orb.:twetn;lpierorc.dumn MJJa tIr.1ils aJIJedJill ArchJtrav~, or EpiStyk. Abc¥~ fC. ~ thearchitraveand the CCJmIa. tha'eIsgeneralfya11tti~ strip ofwall (.;J/f~ the ~ ArchItr;ve, frieze, and &ornJce~the~A~ cfcolumns Is C4i1eJa CcIontude. The 5p3US ~pierS orcoVnns ~ sometimes 5p3m.e4Py.Jvcks,A ~s (J( which Is c.alled 3f1~ The spx:e~ ~paralfd wansl5 ~ ~bya sa-trJfc.?r1Unuou5 3rdI c.;fIeJ;/ Y.at~ In5tt.3drJfbyafloor or reef. The Wa( the PIer, and the Cdumn, WIth or irlt:hovt the pede5t.aI. COr7'StItute th~ chief ~memb.:rs.· the Frle:ztandCornice, fIrltIr therooftit.7trestsupon them, ~ thechidptofthe load they urry, The ~ the keres, and ~ Spandrds fcmI partcfthe 1caJrel3tJy~ to WtIs ~ tMrJ. Mar~ SUpporting members~i3tJVe to wh.1tIs a/Joy~ them. f3e5kks ~ valu.1b1e35;1 sh~IUr, abuilding ff!3y be In It6df;/ noble mddelightful obJ~t. :Jndarchitects ~ bvilder5 who, bygMnq a Pvd&ng p:JproportJcnsand flroe details. and bytm~ ""~tJfulIfl3tma15,11I3i~ It rafU3&1e onl'tSl7Wnacccl(Int..ln«pendentJyof ft5~. -William Robert Ware (he American Vignol; The vertical extension of al7ulldlng orother construction aDove the foundation. BUILDING Arelatively permanent enclosed structure constructed over a plot of land for habitable use. ~ uperstrLICture ! ,.------,c::z;~~~ l •munJation ~ubstructure , The underlying structurefor~g the foundation ofaDuildlng or other., construction. . . system Agroup of Interacting. Interrelated, or Interdependent things or parts forming a complex or unlfted whole, esp. to serve a common purpose. )1
  • 22.
    BUILDING ( I ! I . i ~ high-rise Descrll1lng aIrolldlng havinga comparatively large numl1er of stories and equipped with elevators. r->.. -' __..i ____----,~ fFTI::.--___L--f- ..._--1':t;~------____f story f 1 ~ yF? i / Acomp~ koriz.o~ arvision of a I ! /~ ". I1uildi~.~"4 acontlnuous or nearly : continuous floor ana comprising the . : spa~ l>et;.leen two 1acent levels. ··i :l 1111 1111111 !Ill I! ( .....7' - - - - - ' - II [HI-! IHH n~ n :iTt ,m ni iii nf nr nr nr rtf' m nr nr Mn ; )J lh. I I I + f+ rt- II' f f J I I' I 1/ TI i 1 low-rise: DescrlUiog ,;a I1ullding having one. two. or three stones and usually 110 elevator. One of the upper floors of awarehouse or fa~. typlcal~ unpartltloned ana sometJmes converted oradapted to other uses. asl!vlng a.uarters, artists' studios. or exhi!:>felon gal!eries. loft ~ikiing A?tJ:!dlng haVing several floors with large areas of unobstructed space. originally rerrtea out for ~ht Industrial purposes and r.aw fre'.uently converted to residential OCCt;p3r.cy. o 1 - - - - f---c. f---c. f---c. f---c. I--- - I j I j 1 j I i L1 J I LJ I [] I J J , I U I I I ; I 1 _..J
  • 23.
    L t. _ f L L , L r I k ·crawl space,...,.,." An area In abuildIn!! hJvl"9 aclearance less than human height. M accessible I1y crawhng. esp. such a space below the flrst floor that Is enclosed by foundation walls. cellar __J Aroom or set of rooms. for the storage of food. fuel. or the like. wholly or partly underground and usually be'neath a bulk/ing. cyclone cellar Acellarorother underground place for shelter during violent storms. as cyclones. torna.ms. or hurricanes. Alsa called stann cell.1r. l1ulkhe3d -.__......__•.•........-..._-'/ / .rttic Aroom or space directly under the roofofa Pullding. tsp. ahouse. luffeltory _._.. _ ..._ .....-._ .........'.. Ausal7le living space within a sloping roof. ", usually hav~ng dormer windows for lighting. :" floor BUILDING Acontlnuous supportl"9 surface [ f Ahorizontal or InclIned door overa ~ .~l__________~____st_a_/~ __ aY_g_M_n_g_~_c_~_s_to__ a_ce_"a_r_.____=-__________________~ . extending horizontally throughout a : bulkllng. havl"9 a numberofrooms and ; const~utl"9 one level In the strocture. -$-- l ;-.- mezzanine ! Alow or partial story Wtween two main : stories ofabUllalng. ~p. one that projects i as ablcony and forms acomposltion with , the story beneath It. -B--- r-fi~tfloor ! The gl"O'Jnd floor ofabu!k:flng. In 8rltaln and : elsewhere. the first floor IStilefloor I Immediately above the ground floor. --;-.. ground floor : The floor ofabu/ldlng at or nearestto ground level ;'" pasement : Astoryof abuilding that Is wholly or part~· A below ground level. ..;.+:--l-_ _ _ _ _ _ _ _ _~_I___ _ _ _ _ _ _ _.... _ _ _ -v- areaway Asunken area affording access. air. and light to a!1asement door or window. I subbasement Arry story or floor below the maIn basement of abuifding
  • 24.
    BUILDING ~~~~~~~~~~~~~-..-.......- ....--.------.---- J=" I The frontofa ~ulk:llng orany ofIts skies facl~ apu~hc wtrj or space. esp. one dlsUngulshui by Its architectural "',:reatment. "" ",""""" ~ == I I· : I """"""",., ""'" ~"~~~==::S r- pavilion ~ Acerrtr31 orfIar.l:i:-..g ?ro}xt~ su~alvlslon : ofaf:3C3de. us~i!J ~tea by more elabor3t.e decon<;:cn or gre3W hel9ht a~.d distinction of ~~r,e. ~~~=~~~~~~~~~~H stcr"f tf I !Amajor ho"';.zontal archlt.ectur31 fenestration The design. proportioning. and alsposltlon of windows anaother exterioropenings of a ~ulldlng. . dlvlslon.•5of 3 fac3de or the w.ii ~~.Q,d~~~!",g.-'b'l=F~A9~n~1 ofa n.ve.. ~~==~~~~~~ pay Ar'rJ of. 1~mper of prlr.clpal alvlso(l5 of • wall roof. orother part of;; ~Ji1d1~ rnarl:~ offby vertical or tr;;nsve~ supports. bll~r"f Aft'Ia]or horizontal dMslon ofaw;; il havl~ no m.erlor windows. I7lind DescrIbi:'~;; recess In awall havi~ the appe4r3nee ofawlndow (~l1rJ wlMcw) or Joer (Plln4 door). Inserted to c.omp~ aserles of wlnOows or r.o provide symme-try of Je~n. nnnn 24 ,Ii fronUspiece Aprinc!p31 fac3de. or a part orfeature of a facade. often t~ as aseparate elerTl!rTt of tl-.e des~n 3nd highlighted by OrT1a~ntation. nlsefront A~ falstfyl~ the size or lmp:lrtance of a ~Ildlng. ~alccny An eb7ted platfonn projectl~ from the wall ofa ~~ and enclosea by a ram~ Of p3rapet. ! 1 1j d u U I l~ i l..w I L L
  • 25.
    r- I l ,- #lfJ Ar.a~ p~tfunn. appro;;;;heJby steps $Oft1etl~ having a nxrf. at the ofahou~. ~n usualti roof;J~~d pt1yenclosed. 25 by araUir:g. often ~1"4 across the front and sldes of a ~. A!so.;erandab. i t~,;1.esp.afully fuml:shd 0 e used 4IS a livI~rOOm. t~A An open. unrociea porch or ~tform ~ng fl"Ol1 a hou~ or ~r BUILDING l ~~~ ~ ~ ~ ~ . f== I- r= r- ~ ~ I:::: :p6~1?:1 An ~r appendage to ai1ulldlng. forml"4 Ii covered approach or vestlpule to adoorway. r-~I1i£g,J Aporch having a roofsupported by . columns. often leading ta the entrance of a ~ulldlng. ~ IcnrWer/ rseriesOf re~u13."'Yspaced columns supportIng an er:tJNture and usually one sIde of a roof structure. lf05te~tq -A prfvateorside entrance. as 011(: for .'.< peaestrians next ta a porte-cochere. ::~:;:.; r--- ---. ------ -.- ,-_._._ ... _ ..........2"fO~hert: • -/.~ : ' " A porch roof proJdtlng over a driveway .~>;: at the entranceta a lnJlldlng and !-" I shelterjA!tfho~ gettlng In or out of ve.bIcles·;A1Socalleatarrt.ue porch. fJ L") f· ..~. . . . 1 I I : i ; (#:;::::::r::::.:::::::~) ~ng. --.-------.--~ portal, . Adoorway. ga):e. or entrance. esp. an ImposIng one emphasIzed by size and stately archltp;tural treatment. 25
  • 26.
    BUILDING •••1. : • rotunda ArC1Jnd.domed pullding. or alarge and b~h clrcularspau In such apuJldlng. esp. or..! surmounted l'Ya dome. ~ AP-.lltalng orstructure hIgh In proportlon to Its lateraldImensions. . ~ standing alone orformir.g part of a lorgtr I7ulldlng. Ploc1: II ~rge buildIng divided Into anumberof ~me a~rtments. offices. or shops. ~~ - ....................... . AcOOnnakd orarcaded space within the body of a~ng !lut open to the air on one ~?ften at'an upper story overlooking an ~ccurt. rUM no17i1e _...-................00 • • _ · · · _ · · • • • • • J The prir.clpafstory ofa large ~ulldlng. as a pal3ce or villa. wtth formal reception and din~ rooms. u5~1ly one fltqht a!love the ~floor. corU!e •.---- ...... -- ..-- --... - -----. --. A br~ or principal courtyard of an Italian palma. 26 sL;b I_l ,!' piloti _:._..i ---- Anyof aserIes of columns supportIng a pulldl~ arove an open ground level ell AwIng at right angles to the length of a pUllding. Also. ef. wing Apart of a buildIng projectl~ from a"4 sul10rdlnate to or main part. A~..anqu"r ~Ji!dlng h3V!r-qlittle width ~ ..., respect to its length 3na hetqht. patuza Alarge. Imposing puplic ~JM'~ ~ priV3':.e residence. esp. In It31y' [., .: , :. . court ., An area open to the sky and mostly or _~entlrely surrounclea by walls or I7ulldlngs. atrium Askiit. central court In a buil.::li~~. esp. afarge Interiorone bavl~ aglass roof and surrc~ -Jed by sevml Stories of galb'es. atrium " L.fi An open. skylit court around which ahouse or bultdlng Is ~ullt. D courtyard Acourt adjacent to or wlthfn a building. esp. one enclosed on all four sIdes. patio Acourtyard, esp. ofa house. enclosed by low I1Ulldlngs. arcades. or walls. I ~ I I ~ L y L i L I
  • 27.
    l _ r t e._ .- f L i-_ L r i L ] L r f iL [ I L r- I cbim To assertOf' demand re~nitlon or possesstcn. merge To comlnr.e. !knd. orunite ~radU311y by stages so 3S to I1luridentity or distinctions. pL1Z3 Apul7llc 5qUJre or open space In a city or town. 'luadrangfe .•- ........-....-.............. Asquar~ or'tU3aranguiar spaceor court surrounded ;,y3 bui!dll19 Or I1ulldlngs. as on a college CJmpus. Also called quad. 941llem Aspaclo!JS promenade. CCIIrt. orIndoor maR. usuar1y navl"9 aV3ulted roof and lined with comrr.erci;;ll establishments. pro~fUde An aro;I use.dfora stroH or.wall:.esp.~n 3 .•' pul7Hc p!xe.lS for p!easu~ or dlsp!ay. . Jllee ~ French tern for a broad walk planteJ ",itn trees.. /" ~ I i .' p ~" front To face In a specific direction or look out upon. Jri?or _ ....- ............_-- ......-..... _.... -.. Ashelta c.f shruPs ana17r.lllches orof bWcewor1: Irrtmwlned with cl1mlnl19 v1n_~~ . d flowers. . ~" ~ . uellis Afume supportlng open iattlcewon:. used as a screen Of' 3 supportfor ~rowlng vines or plants I.3ttice AStructure of crossulstrlps arranged to form a rt:.3JiJ r p3ttem of open spaces. pergola . Astructure of parallel colonnades supporting an open roof of Peams and CrOSSl119 raftus or treillswon:. over wHich cllml1lng plants are trained to grow. orientation The position of aDuilding on 3 site In relation to true north. to pOints on the compass. to aspeclfiG placeor feature. or to localconditions of sunlight. wln:~and BUILDING folly Awhimsical or extravagant structure built to serve as aconversation piece. lend Interest to aview, or com memoratea person orevent. pavilion Asmall, often ont3mental bUilding In a garden. gazebo Afreestanding roofed structure, usually open on the sides, affordll19 shade and rest In agarden or pari:. r ~Ivedere I[J[ If aS0Rf-H....... Al7ulldln!J, orarchitectural feature ofa 11ullJlng. des19ned and situated to look aut upon 3 pleasln!J scene. topi3ry Clipped or trimmed Into ornamental arlO fantastic shapes. or the won: or art of such clipping. 27
  • 28.
    r j ~ r- ! t r i r r i r r I ' f i '-I r r i I ( i: ~ f I [ f t I ..; I, I I I CABLE STRUCTURE sU5penslo~structure Astructure ofcal7ies suspended and prestressed !letween compression meml7ers to directly support applied loads. suspension 17ridge AImdge having ad,e.c.I: suspended from cables raised on towers and securely anchored to abutments at the ends. ~ ~ single-curvature structure Asuspension structure utlllzl~ aparallel ... ' . ' . ' series ofca17les to support surface-forming .. _ l7eams orpl3tes. Asi~le-cul'V3ture structure Is susuptlule to flutter Induced . by the aerodynamic effects of wind. This ~ ~ lia17i1itycan l7e reduced by Increasing the ~ ~ dead load on the structure oranchoring the primary ca17les to the ground with ~. ... .. ~., transve~guyca17les. .. ;-=~~~ .~ r it~ · ~;~~!~a~~~~~~~~;;I---------~'" ~..~ component of thrust In asuspension or ~ ------~- n~ cal:>le-stayed structure and..n. v ,-_.......,;:;~ transferring the force to aground foundation. Avertical orinclined compression rneml7er In asuspenslon or cable- stayed structure. supportlng the sum of ~ vert.ical forcecomponents In the primary aMgfl'JcaPles. Incnning the mast enal:ks It to pIcl: up some of the hortzootal cal:>le thrust and reduces the foru In ~ guyca!rles. double-cable structure - .--.- - -.. Asuspension s~re having upper and lower sets of cables of different curvattlres, pm.ensloned by tles or compresslon struts to make the system more rlgk:l2nd reslst3nt to flutter. I I primary cable One of the pretenslooed cables directly supportlng the load on 3 suspension structure. i--------------.-.-...- secondary cable L .. bound2rycable 011e of the pretensloned cables used for stal:rillzln a5uspenslof'l5tructlire against flutter, uS1J311y having acumture oppo$fte to tha t of the primary cables. Acablefor ~nchorlng aset of secondJr)' cables In asuspenslon S"" ....JCture. C3ule-stayed structure Astructure h3Vln~ vertical or Inclined masts from which cables extend to suppcrt horizontally spannIng members arranged irI aparallel or radial pattern.' --------- douule-curvature structure Asuspension structure composed of a field of crossed C41l>leS ofdifferent and often reverse curvatureS. Each set of caufes h3s adifferent natu:"31 ~rIod ofvlur3tlon, thus formlog aself- dam~nln~ system that Is more resistant to flutter. 29
  • 29.
    ., (ElLING The overheadinterior surface or Iini"4 of.1 room. often concealing the underside ofthe floor or roof above. ~ CQVe Ut1~ ; - ~ Ace!ling hMng;l cove. Also. caved 71"-'1 ullifli· /,/ ; C()Ve _ •........•.•...•.••.•.•................. ~/'. A CO~ surfue fonnln!! part of• celh"i at Its ~ so as to eI1mlnat.e the usuallnt:enor angle ~etween the wall and the celnng. 30 o plafona , !?eam ceiling The unac:rslde ofaftoor showIng ~ supporting I1eams arid finished to form a ceiling. jcoffer 1 One ofa number of recessed. USu.iily square oroctagonal panels in ;I ceiling. ~. or vault. Also called c.alsscn.i.1curur. '; bcunar/ . Aceiling. soffit. orvault adorred Mt-h a pattern of recessed p:onel5. Aflat or v3ulW ceiling ofdecorative character. iU I i ! ! I 1u } i I l
  • 30.
    (ABLE STRUCTURE Astructural systemutilizing the caHe as the principal means ofsupport.. cap~ AflexIple structural meml1er. as wire rope or ~'chaln, having high tensile strength / IxItoffering no reslstanee to compresslon Or~g. i ! funicularslupe ...j ~ The shape assumed Vi afruly cleformlng C3Pe In directresponse to the magnitude ,••"."."."., and location ofexternal forces. Acaple alw-ays adapts Its sh3pe so that It 15 In pure tension undertheaction ofan applled load. funicular polygon· .,._....................../ The wpe assumed Viafreely cleformlng 0-----------,-,0 ~ In direct I'tSf'On5e to a set of ~, ........, ,-' concentrated loads. ' .......... ",' ,~t l '" -,' '" -+-.' , '------,,' /' ~":~:::;ed;;~·i~~:ki;~·I~~······-···1<'",.... . /<~;J C3uelndlrectresponsetoa uniformly ~~"" ,".,' / 11- J"tStrIbuteaload. . ",,- ,---" ,./ Ii ~r;.;;~~.~-;;;i.;~.~~~.-----.-._--;~:--.-;:iLl uniform cal7lesuspendeafreely from two r.m~'" polnt6 not In the same vertlcall1ne. For a load that Isuniformlydistrluutea In a ~I prqectlon. thecUrr'e approaches . ~ ofap3r.1rola - .•-.-•.-..... --.- •.•.•..--- .,-.•.-.---. - •..•-.••---..........- ....... -.... "._" ..•..._.....,; 8uttresses. -.-......•...-...--... ~5tnJts. -- ..-.•--•.••-.--.-.-..•'" orsnbrelements~re rtflufret/ ~ contJfn~nJ ".; ~thehOitz0nt3IC1)mponentsqfthe~/lIe "'" thrusts. """ ~~mbl...uum~r-.""""'- 28 Alens·shaped structure having the outward thrusts of an arch ualanced by the Inward pulls ofacaple. resulting In no net lateral forces at the supports. .' sag Theyert~31 distance from the supports to the lowest point of 3 cable structure. As the 5Jg of3 CJb{e incre35t:S. the Inte.maJ forces dtvtloped in the uble dXre3se. funicuL1r structure ,.. structure shapea to carry or support agiven Ioadlng Vieitheraxial tension or compression. For arry !liven loading condit;1on. there Is only ~ general funicular shape. If the L:ndlng pattern ella nges. bendl~ Is iruJuud In the structure. I ! Ii ! j i u LJ I I I L f- i ! ~ ~--
  • 31.
    r I j r i r r j r r r r I 1 f i ,- i 1 i c' dropceili~ A ~ry cel~formed to provlde space fer plpln.g orduC1Jl!ori. or to ~tter the proportions of ~ room. Also. dropp~ uili"i- --------_. , CEILING suspended ceiling Aceill~ suspended from an overhead floor or roof structure to provide space for pipes. ductwork. lighting fixtures. or other service eqUipment. . '. :' ;":';.~:........' ~•.;.... :.; ~:.:~. :,;,.., .":.' .:.~: ~ ~:,'.:~':;~~ ~'.:.7,:':=;::;,',,1 ~~! ~:'.:<;.)~::!'::':, ..'.•··.l·-~ ~.;: ',:) ..: ..:':...·.2.:..·_~,~l ~========:::;:========::::::::.::::::::;::z:~:ti:::::o::::::q:±:::::::::::::~:;:j:;;:i:::~~~~::iz.:~i:::c:b~2:z:c~~~=:±:~-T"- plenum / accu5wltik Tl~ made In v.rlous sius anJ textiJres from asoft. 5OOnd-~!?sorVlng matertll. 35 corl mlnenf f1w. or ~bss f1l>~. metal pan --------------------.----------- An~stlcaltl~cons~ofasteelor aluminum p3n having aperfonted fau and cont3lning a5epante l3yer of sound- al1sortl119 material ---- cross tee Asecand3ry memberof the grid supportln~ asuspended ceiling system. usu.ally a sheet-lretal tee carried by t~ main runn.ers. -----.- m3in rtJnnu AprlllClp31 rnemDerof ~ grid supportlng a suspended ceinng system. usually a sheet- metal char.nel or tee suspended by hall9er wires from the O'>'erhead structure. . -.- spline Athin metal str:p Inserted InCO the edges of two acoo5~31 t;ile= to ma~ a lrottJolnt between them. 11I1i!!i;IIIIIIIIIIIIIIIIWrr- ------.--.- kerf / " lumina us ceiling A sus~nded ceiling of t~,~slucent PJr.els for diffUSing the light frc-r, !umlnaires mount.ed above it. Agroo.-e cut In c.o the edges of an acoustlcal tlle to rteelve aspline orT-shaped m~~r ~rt1~qrid. (j~r mebl uiling Asuspended ce:1I~ system of narrow metal strips.usually Incorpornl~ rnodul3r I19htl/l4 .nd alr-nanJnll9 components. ;II ~'5...; JJ :) ~ .;) ~~ A'S;.. ~ .;I. # ~ 4. ~~ ..; A ~ ,<~~ louvered ceiling AsusperJed ceiling of multlceUular louvers for shle!d11l9 the nght sources mounted above ft. 1 The space petween a suspenaed celilng ana _! the floor structure apave. esp. one that serves as a recelvlll9 cham!1erfor conaltloned air to pe dlstrl!1uted to Inhaplted spaces odor return air to pe conveyed pack to acentral pl3nt for processln~. acoustical ceiling Aceilln!! ofacoustical tile or other sound- absorbing material. texposed grid 1 Ametal grid of Inverted tees suppartin~ the acoustical tiles ofasuspenaed ceiling. , recmtigrui' -.1 Ametal grid for supporting a suspenaed celhng ofacoustical tiles haVing rapl:>eted J?~~. ----- ~ . pconccal&:J grid ~ Ametal grid suppOrting the acolJstl~1 tiles of ~ suspended ceiling. hldcfen within kerfs cut Into the edges of the tiles. Integrated ceiling Asuspended cell1~ system Incorporating ~~§~~ 1igh_~n.9•..~11<;f alr-l13ndling_ £QmponentsJnto.a.unlf1ed whole... linear diffunr ~ Along. narrow dlffuserdeslgned to disperse air through slots l>etween the panels of an Integrated ceiling system. Also called slot diffuser. 31
  • 32.
    (EMMIC Any ofVArious hard.lnittle.noncorrosive. and ~UGtlve II'I4ttrbls formed by the k?nlc rondng ofametal and 3 nonmetaf. as In"!d:.~. and rl4tul'3lstone. cu..micware Arty ofnrlous products made by firing clay or similar NttrI3ls In akiln. as !nick.tile. andpc«cy. flri"i The process of hardening or glazing ceramic W;i re by hating In • kiln to aspeclfled temperWJreo earthenware low·flred. opaque. nonvitreous ceramic ware. stoneware Hlgh.flred. opaque. vitrified cel'3mlc ware. vitrify To make aclay body vitreous Pyflrlng ata specifled temperature. D b lurd·hrnea _........... ...... ............ vftreo~ Ared ~. high temperature to near Reseml1llng glass. as In tl'3nsparency. Yltrtflr..atlon and having relatively low hardness. l1rlttleness. luster. or having low apsorptlon and high compressive strength. or no porosity. b 6· 5Oft·l7umed _................_..........-: semlvftreous Fired ~ • low ttmperature and having Having arnodel'3te wattr al1sorptlon of relatively h~h 3Vsorptlon and low shghtly under 61. compressNe strength. nonvitreous Having awater al1sorptlon greater than 71.. 32 porcelain Ahard. vitreous. translucent cel'3mlc material consisting essentially ofKaolln. fek:lspar. and quartz.fired at avery high temperature. china Atranslucent ceramic material, I1lsque· fired at ahigh temperature and glaze·flred atalowertemperature. kaolin Afine white clay used In the manufacture of porcelain and white portland cement. Also called china clay. enamel Avitreous. usually opaque. decoratlve or protective coating appl1ea Py fusk)n to the surface of metal. glass, or pottery. porcelain enamel An opaque. grassy coating ponded to ~~ ....I by fusing at ahigh temperature. Also wiled vitreous enamel. ceramic bond ------ - -------.... ,/ " A thermochemical rond I1etwun I!13w...ls / '" resulting from exposure to tempetAt~ / , .' "',, '-. '" . approaching the fusion point of the mtx-'"...I,;re. " .: }~,,~.~,'"..': ~ .,~~A~.~:~... -...~...- body '. <- ;:":,~:' , ) The structural portion of aceramic ar--..<t: , .....•.,,_... / ~!~~aymaterlalormlxturefrom ~,,~ it "'''''I!I!II--••~~ / ·l1l~ue..fired Fired to harden aclay Poay. bi,,ue Earthenware or porcelain that h;;s p~ flred once put not glazed. Also called W&allt. glaze-fired Afused or partially fused material that ts ground to Introduce asolulile or unsta~.e Ingredients Intcglazes or enamels. I l~ I ' t .i , I t l i I U I I J o I L' I
  • 33.
    t t L trimmer Any of variousspecially shaped ceramic tiles foe "'5hi" '""",,'""'"1 9 .~.#." .... ; ..., ~ ............... I ......····· ....~ .......- --," -N-O /" ..n~~~a~ "-"~"~I'=~~~~~ Aco.'ed tk setat the meeting of afloor Any of tM ceramic or nonceramlc articles and wall to prevent 3CCumuf4tlon of dlrt designed to Pe affixed to or Insmed In and to facll1t3te cleaning. tllewar+;. as tower I7ars. saap holders. and the like. t;'Nk~"~":~ thlck-~et process Atllese'ttlng proussln which ceramic tile Is apphed OVer' aportland cement mortar Pea ¥..to 1Vzln. (19 to:3a mm) thlel:. which allowsfor murate slopes aruf planes In the finished war+;. portland ument mortar Afield mix of portland cement. sand. water. and sometimes hydrated lime. used for leveling or setting ceramic tlle In the thlc~· set process. U ~ndcorl Athin coat of mortarfor rondlng ceramic tile to aI7ading. t- ,..- I-- - I-- ,..- .-_. 1 1-----; _'~ _........ c--; I-- -' : I I I I I : I I J J I I--~ I--t-- f--~ I .. f--~ r--~ r-t- f-- t-t- ~ r-t- I I I i I j .LI.J.J ! thln-l7ed prou~ Atllesettlng process In which ceramic tile Is bonded to acontinuous. stable I7acklng with athin coatofdlj'-set mortar. latex· portlandcement mortar. tp<JY:i mortar. or an arg3nlc adhesive. '132 to '/aln. (008 to 32 mm) thlel:. tile grout Acementltlous orresinous mix for filling CERAMIC / uramic tile Anyofvarlcus fired clay tiles used for surfacing walls. floors. ana cauntertops. / glazed wall tHe Ceramic tHe h3ving 3 rfonvltreous Pody and aI1rlght. matte. orceystailine glaze. used for surfacin~ Interior walls and IIght·duty floors. / ceramic mosaic tile Small ceramic tile haVing a porcelain or naturalclay Dody. glazed far surfacIng walls or unglaztd for use on roth floors and walls. and usually face- or Pack'mounted on sheets to fac~rtatc: handling and speed Installation. qU3rrytile Unglazed ceramic floor tile having a I13tural c14y body. Alsa called promenade tile. pavertile Unglazed ceramic floor Ule slmlf4r In composition to ceramic mosaic tlkl M thicker and Llr~c:r In surface area. JOints In ceramic tllework. ---------r 33
  • 34.
    (ERAMIC ,t.Mlctur.a1 clay tile AI-clIowtl~ offtreJ clay having parallel cells or ceres. used In lnJitdlng walls ana ~s. ,(.B l..o3J-~ring structural clay tile sult3l1le for m.asonry walls not exposed to frost xtbn. or In exposecJ masonry where protected by afacing of31n_ (76.2 mm) or mo~ of stone. prick. terra cotta. or other mJsonry. " LeX l.o3d-~rlng structural cf3y tile sultal1le for IT13sonry waMs exposed to weathering or frost ~ terr.1~o; An.ra. fired cby. reddlsh-prown In color whell unglaztJ. used for architectural ~s and ornaments. tl~ units. and potttry. ~ ~rJlterr~ cotta·, n.rJ-~rned. glneJ orunglazed terra ccu.. hand-molded or machine-extruded to or~ as.a cer2m1cveneer-for wans orfor ~ntatlon. "'";:':-;-:-._:~:p";,:,,,T:~:-:·~­ r- • ~';:t~!::,:-!-;:"Ii:C~ - -""," "J .~ ~ IIP.-J.. ,adck'"'J Sun-dried urick made of clay and straw. ~Iy ustd In countrieS with little ,.Infan. . structuraIfacing tile Structural clay tile having aglazed surface. used for facing walls ana partitions. esp.ln areas subject to heavy wear. moisture problems. and strict sanitation requlrements. frS Structural facing tile suitable for e:xposecl exteriorand InterIor masonry walls ana partitions where moderate absorption. slight va~~f~~dlroenslaJJs~ mlnor_ 3efects In surface flnlsh..3nd medlum color· ,!ng~~re~~~a~ie, FTX Smooth structural facing tile suitable for exposed exterior and Interior masonry W3l1s and partitions where low aJ??9.rp1Io.n ana stain resistance are required. and where a high degree of mechanical perfection. minimum variation In fau dimensions. and narrow color range are desired. rammea~rth Astiffmixture of cf3y. sand or other aggr~ate. and water compressed ana dried within forms as II wall construction. Also calleJ plse. plsay. plse de terre. ~- . . --,.~ - ; l j I u I I u i ~ L I 1 1
  • 35.
    r ! L, I L I I L.. L L L I I L I I I L l ! L I Ch~nity The~. rounded onthe teachings ofJesa:sChrist,lncluding theCatholic. Pro~t. 3nJ ~tern Orthodox chu~ • P3SiJka ---:......- .................... An e~Chri5tlan church. ch.arackrtzea by along. rectangular ptan. J ~h coIonnad~ nave lit I1y a cferestofy andcoverea I1yatimbered gable n:lOf. tMJ or four lower side aisles. asemlci"cul3r~ at theend. a 113~3tIJ often otherfeatures. as an atrtlln,,, ~. and small semlca'cutar3pse5 terminating the aIsles. ~..~.'it..- ...-.........--......--.-----..--...--..---.-- Tliefmurtofan early Christian church. flankedorSumllJnde& by.ffrtiCOes:f b'~.fifJ·--..-·-.-·---....--........-----...... The ~d w3~ofan 3trlum or cloister. !i~~-:;i-.-.-- ...........-.-.-.--.--.....--.-.----- /..~asit~tor ~ rttU31 cleansing wIth waterIn the atrltJm of3n early Christian basilica. -I· __ l • .j ! j : • • 4 _ _ • baptl5ttry A partofachurch or 3 separate ~ In which I7aptlsm Is administered. Also. ~aptistfy. i13,rJ:5m A ~ntofinltbtlon Inta Christianity. symroncof splrituaI ~ner.Jtlon.llUrUd by aceremonial immersion or"Ppl1c4t1on of water. , ~~;j---...--.---.-............... The partied .1efore the nave of an early Chrlstl3n orfyz3rrt1ne church. appropriated ta ~nftents. eson.arthex .,' t~.. ' t. " An InMr narthex when two are present. exonarthex /' C~'.~~{ Acoverea walk orouter narthex situated before an Inner narthex. font H A Pasin. usu.allyof5WIe. holding the I water IISed In VaptlSm. . Iccn A representation of3sacred Christian Person.l¥. as Christ or asaint or angel. ~lcally palntea on awood $(J rf.ace31Id Itself vener3ted asDe1 ng sacred. esp. In the tradition of the Eastern Church. iconostas(, -- ASCrutl or partr.lon on which Icons are placed. separating the bema from 1 the nave of an E.astern church. Also, Iconostas. I-CHURCH· Al?uiUling for public Christian worship. r*'~f I' Ase-ll1lclrcutarorpolygonal projection ofa ~ulkllng. uSU311y vaultedand used esp. at the sanctuaryoreast end ofachurch. Alsa. apSis. ...~ .,t.- ... / ..... •.trivUMY .'-' • -The bls~p's throne. occuPYing arecess or apseIn an e3r1yChristian church. ·.....·-..1I7emJ' Atransverse open space separating.the naveand U!e3pseofan e.rlyChrlsti3n church. develcpi"4ln1;() the transept of latercruciform churches. t;jnct@ .~ Asac:ti-¥r~1yplace, as that part of a church In which the princlp31 altarls placed. _., ~lU'~j Theta~leln aChristlan church upon which the Eucharist, the sacrament celeUr.itlr,!! Chrl5t's Last Supper. Is ce!eUr.itea. Also cal~it'tal7~P5 ~~ij The princlp31 orcentral part of a church. extending from the narthex to the choIrorchancel and uSU3llyflanl:ed by aIsles. tisfe=-4 I'.nYC::of~tk longitudinal divisions ofachurch. separa~ from the nave by 3rowofcolumns or piers. baldachin / . An omamet!1:41 caner.; of steneor marbl,e permanently placed (Ntr the altarIn a church. Also. baldachino. ~akla'luln. Also called ciporium. _ .......: i 1#~ l-............................~. EltherOf two raised mnds from i'rhlchtheGospels or Epistles wer~ read or ch3nted 1n 3n earlyChrlstl3l1 church. Also. am1?on. euara - ..: .~ .....- ~nu ••,/ The sanctuary sp3ce surroondlng the altJr ,/ of an ~stem churcn. dbconIcon Asacristy In an e;JrfyChrlstlan or E..aste:m church. usuafrj on the solIth side of the !Jenu. 5Uristy Aroom In achurch where the sacrea vessels anavestments are kept. Also C3 lied vestry. prothesis . ' Achapel In an E..astem Church where the Eucharistic e~ts are prepared. u5l.:a!1y on the north side of the bema. Alarge apslaal extension of the Interior volume of achurch. Also. exhedra. 35
  • 36.
    Aanoped r~s fora ~ IIn3¥orICon. arcak ---.-----.---~.-- ..... __.....i A serles ofarches supporte« Oil plus or cofumns. arcU.1U Curved orarched hke aPow: a t"~rm used In descr1P~ the arched orv3u1i;,;cJ st·l1.lcture of 41 Romanesque church or Cothlc C3tnear3l:lis distlngulsht<;,om the tr"aPe3ted archltectur~of "" Egyptian hypost~ hall or Greek Doric /:emple. Also. arcuauo. 36 --- ....."'itra~~ Th~ maJortklnSVer5e p3rtcfacruciform church, crossln~ the main axis at a~ ht :lingle lletweenthe n3Ve and choir. r~pond ___._...••••._ •.••.•__••.__•.••..........1 A pieror pilaster projtctl"9 from awan as a support foran arch or lintel. esp. at the tenTIlnatlon ofan arcade or coIonna~. ~pjiu1c:'i-··--··-----·-·-·---·--------J A Pel! tower, usually one near put not attached to th~ rody ofa onTondOlffil APuI17ous, cbrr.elike roof te1~ating sharp point. used esp.ln 1(~r;:,.::II~ OrtbAM'J{ church arch~ure to CIJoI.~n?Upola ~y tower. :..~~tterY1 . II roofea promenade. esp. one ~tendlng Inslae or outside ;;Iong the exterior wallofaPulldlng. IIoft·t , Ag2'11e1)' or upper level In achurch or han. 15plr~--·-···· Atall. acutely tapering pY1'3mldal structure SUnTlountlng a steeple or tower. lneepltj II tan omamentaIstructure. usually enalng In a spire and surmounting the tower of a church orother pupllc uulldlng. t 5~ve churchl An Ina~noo5 ~ndlnavl3n church of the 12th ana 13th Unturies, havl"i a tlmllerfrarne, pf4lnk walls. a~Iered. stupty pitched roof, ana few windows. Interlacing arcade An arcade, esp. aI1Iindone. composed of arches resting on 31tema~ supports ana overlapping In series where they CI"05S. Also called InUrsecth!g arcade. I7lindarcade Aseries of arc~s superimposed on 3 waH for decoration. AI50 ailed arc3UIl'e. I ! I. lJ p ~ f I 6 L I r I f !
  • 37.
    [ f L f '0 - i i 1 f I. t t I f t r t I I i chancel lHURCH ~cathedralf The principal church of ad~, contalnlny the l1ishop's throne called thl catf1eJra> : ~-. chapel Aseparately dedicated part of achurch for private prayer, meditation, or small ",religious services. The space al10utthe altarof achurch for theclergyand choir, often elevated aDovethe nave and separated from It _____ ·__ ··_4 chevet t~~~lycarvedftqureofahurrun or anlrrul esp. OM wtth lin open mouth that serves 3S A spout 3M projects from a gutter to throw rainwater clear of a ~uilJif!. ~--"----T ~win.dow~ - ..-------..-.---.-- ..-..... Acfrcub;-Wfr,Jow. usu311y of stained glass " and dae.cor.ltecl ~ trn;ery symmetricaI •taoot t}.e center. ~~~. lGt.s5'c..~or~ired by h:avlng p~.ents !r.lWontolts surface or by Iuvlr.g V;1rious ~1I1c oxldes fused Into It 'I !:.- whik: lt1 J Il'1Often statL ~ ;--..-....-----:·-·-..-..----1'j An;l~stmylnachurch,~ the nHe arches anJ ~ and correspondlng to the 5f3U between the , V3U ttir.,pr.a the roofof an aisle. I by aralhng orscrt:en. • '~'~"" chantry Achapel enclowed for the saying of Masses and prayers for the souls of the founders or of persons named by them. • ------------~.. lapyrinth ------ Am3zel~ pattern the pavtmentofa IIIC;""C;Y,"-=~. church. ~7r~;;';;;;;;;;';;;;~;~~.;,;-,~-;----~~~;:~p""h ,~;,; lnJrl.;! pbce. esp. one beneath the main floor chapel for penitents at the of. cntJrCh. west end of sorne medieval E.n9l1sh churches. Also. o g3l1lee porch. rood - ..----.......-.-..---- --" --..-·------------·-,"--------7 . Acrucrfb: symbolizing the cross on whlcn i Christ .,...3S cruclflea. esp. alarge one set . + Oirove ~ entrance to the choir or chancel of ;) rreJ~vJI church. rood~un ~ .... -... - ..- .... -.. --- ASCru::1. ~n etlborllteiy adorned and pr~rlJ' S-Urn1ounted by Ii rood. separating the cha ~alor choir from the nave of a #[;f~~~~Jff;fL_..J±::tlt=:::d±=:tl meaie-;31 church. The rounded east end ofaGothic cathedral. Including the apse and ambulatory. .-~ am~ulatory An aisle enCircling the end of the choir or chancel of achurch. Also called deambul3tory. -..-....... choir The part ofachurch occupied by the slnqers of achoir. usually part of the chancel retrochoir Aseparate alvlslon behlna the cholror high altar of alarge church. :--. lady chapel ; Achapel dedicated to the Virgin Mary. : usually located behind the high altarof 3 . cathedral atthe extremity of the apse. high atbr The main altar of a church. ....-- p~Pyury The part ofachurch reserved for the offlci3tl~ clergy. c~ An enclose& place. esp. the laM surrouMI~ or beside a~ral .-------- 51ype Acovered passage. esp. onektween the transept and ctIJpter house X a cathedral. Also. slip. ch4p'Ur hou5e The place where the ch.1pterof OJ cathedral or !Monastery meets, usually a !?ufldl~g attached to orahall forming part of the cathedra! orrnon2stery. ch4pter An assembly of the !I1On(s In a !I1Ol13ste1y. or the rnemDers of a "-,,_ religious house ororder. '.~"--paradise garth _ Acourtyard or quadrangle enclosed by acloister. Also called cloister garth. alure A walk or passage. as along a cloister or behind the parapets of acastle. Also. allure. An atrium orcloister Dc:skJe achurch. ~ ...• cloi,ter Acovered walk having ;;n arcade or colonnade on one side opening onto a courtyard. 37
  • 38.
    COLOR .. , A phenomenonof light and visu.al perctptlon that m.ay ~e described in turns of an indivldU.arS perctption of hue, satur;ation, and ~htness for objects, and hut, s.aturation, and In-ightness for light sources. ~;:-~;," .~f': 'r.~;:~t,' spectrum The distribution of energy emitted by 3 r3dlant source, arT3~ed In order of wavelengths, esp. the pand ofcolors produced when sunlight Is refracted and dispersed Py aprism, comprising red, orange, yellow, green,plue,lndlga, and violet. ,"---. r~color pale Deslgnatir..g acolor having h~h ~htnts5 and low sa';;Jratlon. I d.ark .J Dt5Ignatl~..g • color h.ivfng low i<qhtlless arJ law satura~n, and rtfIectlng~!:i asmafl fr3ctlon of i.-.ciknt tIght. .. :. The perceived color ofan oPJect, k ...mnlrled I1y the wavelengths of the light ~~ted from Its surface after selective a~tIon ofotMr wavelengths ofthe lne~ light. ~eJ~rption -:. Thea~ofcerbln wavelengths of t..'e 5ght tIc1dent on acoIore<I surbce. the retr..alnlng portion pelng ~ or transmitted.. ~uVtractlve color Acclor produced by mixing cyan.yeflow. 2nd rnagent.a pigments. each ofwhich a~rbs cer'bln wavelengths. APafaneed mlxture of these coIora~ or su~e primaries theomlcallyyields I1IacI: ~ !t2~ 2n wav~~~<?f~Sl~ !Jg.1!:t.<- ~itNecolor Acolor produced Pycombining lights of ~,_ green, and Irlue wavelengths. These light or addltlve primaries contain all the wavelengths necessary to produce a ~ss or~!te light: 38 ~rllli.ant Designating acolor having high lightness and strong saturation. .:IeepJ Des~natlng acolor having low lightness and strong saturation. r~ I I ,LJ Munsell System Asystem for specifying colors arr.l nged Inf three orderly scales of uniform vlsual steps according to hue, chroma, and value, developed In 189817:7 Alpert H. MunselL Hue extends In a rotary dlrectlon about a central axis through a spectrum of flve major and five secondary hues. Value extends vertically direction from black at the ~ottom through a series of gr?ys to white at the top. Chroma extends r3dla fly from the central axis at which saturatIon Is zero, out to the strongest saturation attalnaple for edcn color's hue andV3lue. hue One of the three dimensions of color. the propertyof light Pywhlch the color of an apJect Is classlfled as pelng rea,yellow, ":.: green, or blue, or an Intermedl3te /;>etween any contlguous paIrof these colors. j s.aturation One of the three dimensions of color. tne I purity or vividness of a hue. Also called Inunsity. ~ chroma The degree Py which a color differs from a gray of the same l~htne'5S orlnightness, corresponding to saturation ofthe perceived color. ligh~!S The dimension of color Py which an ol:>,Jut appears to rt&ct more or less of the ~ Inck:!tnt light. V3rylng from Vlack to white f' . "j for surface colors and from plack to ~. '. 1 colorless for transparent volume colors. ~-------------- .~:".~'.::-- value l ,:,~~...~~::~ The degree l1y which acolor appears to gray SQle ~.t·t{'?1 reflect more or less of the Incident ~ht, .... sc.1e of achrornatk; C'j.'y.;·'i,' :" ':j corresponding to lightness ofthe perulved colors h.ivfng several. ra-. color. usua~ ten, equal: brightness graa..'"tlons ranging ~.., The dimenSion of acolor which Is correiated from ..mite to pl.1ck. with luminance ana by which visual stimuli yellow are ordered continuously from 'Iery dim to very plight. Pure white has the maxlmum Prlghtness. and pure I1!acl: the mlnlmum Lnightness. optIcal mixing The merging ofJuxt3posed dots or strokes of pure colors when sun from adlst.ince to produce ahue cften more luminous than that avallaple from apremixed plg~nt. II 11 I I f • J I U ! ! u j U L L J L
  • 39.
    f L I L L l Lr ~-Ir II l , L COLOR color wheel w.rm D~s~natlng acalorInclinedtoward or dominated by red.orange. oryello::,?' , .. r:Jlow / yellow-green . ___~. yeHow-O~3f1ge Acircular scale of the colors of the spectrum. showing complementary colors opposite each other, Also called color circle. ,.~ ---/------------------ ~~~m~;~~co!ors.as red. yellow. and cool •. _._j f _ Des~nJtlng 3 GOOrlnclined toward or dominated by green.l7lue. or violet. advancing color •_______ . __ •. __ A warm color that appears to move toward an obserter. giving an illusion of space. rece.dingcplor .--_. __ .__ .___ ••_. Acool color that appears to move 3WTj from an o~er. gMng an ftluslan of space. coler scheme An 3rra~ement or pattem of colors conceived of as forming an Integrated whole. cowr triJngle tint .-.- - ---. -- -.--.". ---.. -••- .- ---~ Arelatively I~ht value ofa colqr, produced by adding white to It. A triangular dl~ram developed by Faber 6~ to describe the relationship between a pure h~. white. and PUck, which combine to y1etd second31)tints, tones, shades, and 9rays. All colors IUY be su:1jectlvely ccnulved as a mixture of the PSJ'Chologlcal prirrurles - red. yellow. green. and plue- plus the achronutic pair of white and blacK. shade Arela tlvely dark va lue of acolor. produud by adding black to it. plue. r~arded as generating all other colors. --- - --••.~-.------- secondary color ----- Acolor. as Ol"ange. green, or violet. produced by mixing two primary colors. >f.i.-~--,_ .- •• _'1 tertiary color Acolor. as prown. produced by mlx!ng two secondary colors. or asecondary color with one of Its constituent primaries. /~----- comptementarycolor / One of apair ofopposing colors on acolor wheel, perceived as completl"9 or enhanclng each other. r .analogous color ; One of two or three closely related colors ~_...._._.__.,_._.___.-'-___.__________________1on acolor whee!. ,-------.... triad Acombination of three colors forming an equilateral trol19le on acolor wheeL r 'plit compleme~ry : J. combination ofonecoloranathe pair of i colors adJolnlng Its complementary color on ... __ •______•_________________________...J acolor wheel. ------~ doul7lecompiementary Acoml7lnatloo oftwo analogous colors and theircompementary cokJrs on acolor wheel. r moncchroma~ : Having only one coler or exhll7ltlng varying : Intensities and values of asingle hue. ___ ~ • __ .... __...... ____ .. _____ ...... ____ • __________ .J r polychromrt.lc i Having or exhlpltlng avariety ofcolors. ---~ tone An IntermedIate value of acolor between atint ana ashade. • gray An achromatic color between white and black. achromatic Having no saturation ana therefore no hue. as white. placl:. or gray. 39
  • 40.
    COLUMN Arigid. reL1tNely slenderstructural memperdesigned primarilyto supportaxial compressiveloads applied at the memper ends. avshlng5tress:f~=P/A -1 _____________L__ pillar An upright. relatively slender sh3ft or structure. uS1J311y of prick or stone, used as a l7ulldlng support Or standing alone as amonument. post -----------------.----------- Astiff vertical support, esp. a wooden column In tlml7erframlng. I r- -. J,ifurc.rt.lon ,/ The critical point at which acolumn. , carrying Its critical ~cl:lJng load. may either !?uckleor remaIn undeflected. The column Is therefore In astate of neutral equffi!?rlum. 7uckling The sudden lateral ortorslon3llnstJbillty of aslender structl.Jral metnPer induced;y the action ofacompressive load. Bucknng can occur well pefore the yield stress of U1e material Is reached_ l7uckling load The axial load at which acolumn ~ins to deflect laterally ana becomes un5t4ble. Underabuct/ing 103d. acdumnC31lIICt gentriiU theInt:enu{ forces ~ to resto~ Its orlgln3llJr.arcontIJtIon. My addltJonaJloading f+'O!Jid C3U5e the c.?lvmn to kflect furtheruntJcdapseoca;rs In kntifll MostcolumnsInp7ctJa 3~ ~ to both com~ andbe:nJir'1due to rnt;tIon in materlaIpropcrtJe5.lnitbICl'OIXtJr.,zs In "brlC3~ orsenseeccentricityif 10M ;ppllatJorL ThIs benJln§qfterr ca~ tile 3Ctu41bucl:IlngItnJ to~ slightlybwa- tIt.ln tirecriticalbudJlng 104d. r-:-·----·------·--·--- critic.al 7uckllng load . The maxImum 3xlalloul th"t cart @IA theorttlC3lly~app~toa column without causIng It to puckIe. The critical b-.rlllng Io3d for acolumn Is Jrwerse/y proportk?nal to the 5qU3re of Its effective length. ana dIrectly proportIOruIl tothe modulus of elasticityofthe ~I anJ to the moment of Inertia ofthecro:ss sectlon. Also C3ltea Euler ~ &cW. ~----------+----i--- ~Iende~~ ratSo 40 i 5fIort",lumn Athlcl: column su~ to failure P-y j crush~ rather than l!y ~uckllng. : F;illureoccurs when the direct stress • from an axial load exceeds the compressive strength ofthe material ml!;it,.!e In the cross sectk?n. An ecc-entnc load. however. can produce knJl~ and result In an uneven stress distrlWtlon In the section. !-.._ ......_._._--_._._.._._._..._--_._.... intermedlau ",Iumn Acolumn having amode of failure between that of ashort column and a lOng column. often partly Inelastic by crushIng and partly ei3stlc by buckling. The mloofthe effective length ofacolumn to Its te.st radius of gyration. .• --•. ---... - The higherthe sJenJemessmto. thelowerIs thecrltJcilf5tres5 that1+111causeINckllng. A prlTTl3fj'objectiveIn-thedesignofi cdurnn15 to reduaIts slendernessmtobyminimizingIts effectJvelength orTTl3ximlzing theradiusof gyration ofIts cross 5tCtIon. long column f. slender column sul7ject to failure Vy buckHng rather than P-y crushing. L 1f7--------.-.-.~ radiu5cfgyrmon , I ~ The radlal dlst<lnce from any axls to apoint • {f;; at which the mass ofa ~ cculd ~ r =-.; 1/A concentrated without altering the moment of Inertia of the bodyabcM that axis. Fora structural section, theradius ofgyratlon Is equal to the SoqU3re I'OO't ofthe~t of the moment oflnertb and the are4_ The highertheradius of~ of3 stnJcturalsection, the~resJst.;nt the --~ ~on 15 to buckling. ;, Jeta-mlnlng tk (rO$s-sectlon41sil;pe of3 column, the objective15 toprovide the ~ry radius gf gyr;tIon aboutthedfffermt iIXes. For ;n --...----. J5}mmetrlC31crosssectIOn, buclJln§ w:11 Cend to occurabout the ~31/5 orIn the dlrutlon gf the1~5t dimension. I' I i~ b ! I ...J
  • 41.
    ri I I ~ -I 1 1·_·1 } L f I ·1 I i -l " / 9---+ ~, I If) I c:i I III 1-' 1 I ~ fixed [~ eccentricity = = ~ .mount t>y which an axis deviatesfrom a~er pml!el axis- p·delta effect __...•_.....___ ...__.._ ......._ An aJdltlol13l moment ~ In a ~ stroctural mem~as Its ~ltudll13l axis ! dev13tes from *~ nneofactlon of a compresslv~ fOf"'"~. equal to the product of i the load and tr.~ rr.emPer dtfl.ectlon at any . point. ~.~___ m~·thirc:l MJle ______.____...... The proposition th3t acompressiv~ load '. "~ COLUMN . . [~- ~ : . . • I : : I ! '--t- ~nstonl.l ~I: ~ moment = load(P) xeccentricity(e) coml1i~c:l5tresses Asetoftensile ana compressive stresses resulting from the superpos1t!on ofaxlal and benalng stresses at across section of astructural metT1uer, acting In the same direction and equal it arry point to their 3lgel7ralc sum. shc1Jta ~ locaW wlthln th~ middle third of a horizontal sec':1o!1 ofacofumn orwall to prevent tensile stres~ from developing In t,1e section. ··"'·ir=--------T- ~;:'''tr.ll''''of'"Yho",,,,,,I,octlo, .! i' / of acalumn or wall within which the -----~---..i'~ .~...-(:' resufta~ ofall compressive loads must ~ ; : ,/ P3SS If only compressive stresses are to be r--@-.---- effectlye ~gth : The dlstance re-t~n Irtflectlon points In. , column su17ject to l?uci:Ill14- The effective kmgth ofacolumn detennir.es Its crttlc31 ~d!Jng load. 'rV'~~ this port!oo of acolumn ~.cides. the~~coIumnfJl1s. -oJ -l C c ....: Ci II 1 ..J I fixed fixtJ l I : t / present In the section. Acompressive load I / applied beyond this area will cause tensile ~ . / stresses to develop In the section. Also d / . : called kern area. lamaet' 4 i . 1/ ...- ....- kern point Apointon eithersideof the untroldal axis ---..t !..- of ahorizontal column or wall section 1 • i defining the limits of the kern area. J k=O.5 .....~ k= 0.7 -....; pinned k=I.0 l=2.0 p~)( 4- i 1 effective length DcU:lr Acufflclent ~ modifying t~ actual ~ ofacolumn acccrdlr.g to Its end ccMtlons In order to determine Its effxtive Iengt!1. Fixing rot., enasof a1of1~ column reduces Its effe<:tN~ length t>y h.;:f J.,d increases rts load-carT)ing capacity by 3 8ctor of 4. P&14 I' /1 /1 11 II 11 II I I I I I I I I I I I I ./ laurall7racing __.__..___I'· The uraclng of acolumn or other compression rr.emPer to reduce Its effective Iength.13teral uraclng Is most effective when the braCing pattern occurs In more than c~e plane. unl1racea length The distance uetween the points at which 3 structural memper Is!n-aud against uudling In adirection normal to Its length 41
  • 42.
    CONCRETE Art 2rtffici2lstcnelike buildingmaterial nude l7y mixlrl~ cementana various mineral ~tts with sufficient water tc cause the cement to set ana pinel the entire ITI3SS. · rutural cement Anaturally occurring clayey nmesUlne which. when calclnea and ftnely pulverized. produces ahydraulic cement. pczzoL-in A sll1ceous material. as fly ash. that reacts chemically with slaked lime In the presence of moisture to form a slow-hardening cement. named after a natural cement frcm Pozzuoll. an ancient Roman tawn near Vesuvius. Also. pozzoIona. pcnuol3na. siliceous Containing sillc. or oil silicate.. fly ash Flne particles of ash recovered from the waste gases of.3 sollcHuel furnace. t.a-----................. .... ~~..a .•.• ___ ........... ......... e.........-« ..... , t._._.. ~ eo. e.1 ... Le- •• ..a... • • J._ .... , It A.AiL ..... II 0 A. IlLm II G it.9 Q It 0 .. M AcalcJne.d II'1lxture ofclay ana i I~ filely pulverized and used as i an Ing~ In concrete and mortar. 1 The term Is rnquently used Incorrectly ! forco~ . ! i tnc.lcium sirute ---.-.--...-----1 ACO~constltutlng3rout half j the voilr.eofpa1tindc:eme1Tt and ; ~for;he h.rdenlng or early pin ill ~th ofthe cemelTt. I J"glcwnuOic& •.............-.·······t A~ WlStltutlng aDoift one- l quarter of~ volume of ~ nd : cement anartSpOMSl7Ie for the aging . or long.tM g3ln in s~th of the U'II1erIt. tricJlcium ,lumffUt.e.-.--....-...l A~ constituting arout one- tenth of t¥volume of;x>rtland ~ ana responslUle for the Initial settl~ r:J die cement. portland cement ------~ Ahydraulic cement /I13de f;ly ~urnlng a mixture ofclay and limestone In a rotary kiln and pulverizing the resulting clinker Intoaveryfine powdef. named for Its resem~lance to alimestone quarried on the Isle of Portland. England. hydraulic cement Cement capa~1e ofsettlng and hardening f;ly areac'tlon with water. 't~~~, " :,.," . ..;:.~.. ?:~~::' ~.. .,~-" -.~ R.3wm2terla/s ccn5l~ ofcoml1inationsof ~._.-;~.::./ ~ne. clay. 5hz/e. oyster-sheDs. sHlca ~ ... S3IIJ. ¥JJlronore. ~ ," I?3wmzUrl;/s""IfWI'JtopowJ""" :/ blended. . 1 r 8urnlng In ~ rot~ki1nchAnges r;lWmixture jlnto cemerrt dlnket-. clinker Qlcine To hea~a SGPstance to ahigh temperatare M without melting or fusl/14 r.o«iveoffvolatile matteror to cause~ ~ reduction. 4l Afused mass of Incomlnlstll7le /I13tttr resultIng from heating In akiln orthe InImlng ofcoal. Gypsum Is added to cflnk~ to ---? , C/lnkerlsgroundlnto ."" .;i' port/3ndcement. •.--". ,.f.:' L<_... TyPe I: narm.1 Aportland cemelTt used for general construction. h3v1n~ none ofthe distinguishing qualJt.les of the other types. _ ... TyPe II: moQerrt.e Aportland cement having areduced contelTtof trlc3lcium aluminate. makln~ It more resistant to su~ and causing It to ~ less ~ ofhydl4itlon: usea In geMer.il1 constructlon where reslstanr...e to rnode~ sulfite action Is ~ulred or where heat l?ulk:lup can ~ damaging. as In theconstroctlon of brge piers ana ht4"7i retaining walls. T~1I1: hlghe.atiystrength ~.....". Avery-flnelyground portland cement n..vIng an Incl"e35eJ content of trlc3lclum sl~. causing Itto cure mterand gain strength earlier than nonnal portland cement: uS&i when the early reI!1O'r'3/ offonnworl: Is tksIrtd, orIn coId-~therconstruction to redL'Ce the time rea.uired for protection from low t.empmtiJres. TyPe IV: low ht3t Aportland cement having. reduced content of triGalclum sltlc::ate.nd an Increasedcontentof d1calclum Silicate. catl$lll! it togenmte less ht-.at of hydmlon than normal portbndcement: used In;he construction of massive ~ structures. as gl?iltydams. where alarge lnIildup In heat can ~ damaging. TyPe V: 5ulfate ~5ting Aportland cement having areduced content of trlcalclum alumInate. lessening the need for gypsum. asulfate normally addea to cement to retard its setting t!lr~ used where reslst4nce to severesulfate action Is ~ulred. air-entraining pcrtl.1nd cement AType l Type It orType III portlandceme.rrt to which asman qU3ntltyofan air- entr.llnlng agent has ~een Intergrouna during manufacture: deslgnat.ed Py the suffix A. as Type IA. Type IIA.orType lilA. white portland cement Aportbnd cement produced from raw .mat.eria15 low In Iron oxJae and mangan~ oxide. the su~stances that give concrete Its gl4iy color: uS&i In precast concrete work and In the 1T1J1:1~g of temzzo. stur..co. and tile grout. 5uIbUactlon An expanslve rt3CtIon occurri/14 when the cement IItJtrIx ofconcrete or ~r CO!T1eS In contact wtth sutf~ dissolved In grouna water or In soli. ~ ... & ....... entrained air Microscopic. Spherlc31 air lnI!1V!es. tYF11y 0.0Q.4 to 0.04 In. (0.1 to 1.0 mrrT) In ~metcr. Intentionally ~ In aconcrete or .. ' mortar mix ~ an.~I~T!ral.nln:g ag.e~t~ :~.-:' I i , ! j i f r I~ t f
  • 43.
    r I I r .c_JL&~;(JlfJllf1I~d.'t}§O • • mixingW4ter The W3~r used In aconcrete or rnortJr mix. exclusive of any abs~ Dy the aggregate and free of such h3rmfulsubstances as O1"~pnic materol cl3y. and salts. W3Wfrt for drinking Is genenHy 3CCepta~1e. cemertt p~5~ AmlxtlJre ofcement and water forCC3~ setting. and ~1nd1ng t:he~pm!cles ~1er!n a concrete or mortar fix. I~ htweiglrt COncrete ConcrC"'"~ m.ade wt?I ~regJte of low $p'X!& gr.Mty and ~hlng less th3n nonTIJl conc~ which !us aunit weight of about t:o pcf (2.400 Ko/ m3). ~'* A_. , • « •.• .• .1 , . . . . . . . , , agg~ate Any of various hard. Inert. minerai materials, as sand and gravel. added to acement paste to make concrete or mortar. Since agg~ate represents from 601 to50% of the concrete volume. its properties are Important to the strength. weight. and fire· reslstaneeofthe hardened conerete. Agg~te shoukI ~ hard. dimensionally stable. and fru ofclay, srlt. ana organic matter which can prevent thecementlng matrix from binding the particles together. -- structur41lllghtweiglttconcrete Concrete II13de with strong lightweight aggrt43te. as expanded shaleor slate, having aunit weight from 85 to 115 pcf (1.362 to 1,840 k~1 m3) and compressive strength comparable to that of normal concrete. insu13tin9 concrete lightweight concrete h3vlng aunit weight of less than 60 pef (960 kg! m3) and low thermal conductivity, made with lightweight aggregate. as perlite, or with afoaming agent or gas·formlng chemical that Infuses the mix with a homogeneous cellular structure. fine aggregate Aggregate consisting ofsand haVing a particle size smallerthan 1f41n. (6.4 mm): sptclf. the portion ofaggregate that 1'1111 pass through a3/& In. (9.5 mm) sieve, almost entirely through aNo.4 (4.8 mm) sieve, and be predominantly retained on aNo. 200 (74~ sieve. coarse aggregate Aggregate consisting ofcrushed stone. gravel. or I1last-fumace slag having a particle size larger than 1f4In. (6.4 mm): speclf. the portion of aggregate th3t Is retained on aNo. 4 (4.8 mm) sieve. The maximum size of coarseaggrl:9ate In reinforced concrete Is limited by the size ofthe section ana the spacing of the reinforcing ~ars. graded aggregate . Aggrl:93te having apartlcle-slze distribution ch3raGterized by uniform grading. Graded aggregate requires the least amount ofcement paste to fill the voids and surround the particles. particle-sizedistribution The range of particle sizes In a granular material. expressed eitheras the cumulative percentage by weight of particles smalleror larger than a speGlfled sieveopening. oras the percentage by weight ofthe partlcles that range between speclfled sieve openings. uniform grading ,.. particle-size distribution In which aggregate particles vary uniformly from fine to coarse wtthout a preponkrance ofanyone size or group of sizes. expankd shale Astron~ lightweight aggregate oUtalned by the exfoliation of clayor shale. Also called expanded clay. expanded 51a~ Astrong lightweight aggregate oUtalned by the exfoliation of slate. exfolLrtion The sphttlng or swel/lng ofcertain minerals into ascaly aggregate wnen heated. perlite Avolcanic glass expanded by heat to form lightweight, spherical particles. used as nonstructural lightweight aggregate and as loose-flll thermal Insulation. Also, pearlite. vermiculite Mica expanded by heat Into very light, wormlike threads, used as nonstructural lightweight aggregate and as loose·ftll thermal Insulation. (ONCRETE o air-entraining agent An admixture that dlsperses entrained air In aconcrete or mortar mix to Increase workability, Improve resistance of the cured proa'_ct to the cracking Induced byfree-tha 1'1 c)ldes or the scaling caused by deicing chemicals. and In larger amcu~~5, tc produce lightweight Insulatln9 concrete. o~ acceleratcr An admixture that h3stens the sectlng ana strength development of • concrete. mortar, or plaste:' r.-rx. o retarder An admixture that slows the setting of aconcrete, mortar. or plasttr ~i;( In order to allow more time for pl3c:ng and working the mix. - o surface-active agent An admixture for reducing the surface tension of the mixing water m~ concrete mix. thereby facilitating the wetting and penetratlng actlc" of the wate. or aiding-In the emulsifying and dispersion of otheradditives in the mix. Also called surfactant. o water-reducing ~ent An admixture for reducing the amount ofmixing water required for the desired workabmty of aconcrete or m~.3 r mix. lowering the water-cement rat~ In this manner generally results In Increased strength. Also called superplastlclur. o coloring agent Apigment or dye added to aconere te mix to alter or control its color. 43
  • 44.
    tCONCRETi! mix~lgn The n10St economlcalselecUonand proportIOningofcement. water. and ~te to p~concrete or mortar NviI1g the required properties of worbl7lllty. strength.durability. and W'~htness. Aham'5law r[cement : water water-ce~entr3tio _.._..•._...~ The ratio of mlxl"!! water to cement In aunit volume of concrete or mort3r mix. air preferal7ly expressed ITy weight as adecimal fraction l7ut often stated In gallons of water per 94-117. sack ofcement. The water- cement railieantrots the strength. 7% -15%·· .- cement cefTtent The quantity ofcement per unit volume cf concrete or mortar mix. preferably expressed In pounds per cubic yard put often st3ted In saus of cement per cubic yard of mix. 16% - 21%"-' water content The quantity ofwater per unit volume of concrete or mortar mix. preferably 1% -.3% expressed In pounds per cubic yard but often stated In gallons per cubic ya rd of mix. A ~w postulatl~ that, with given concrete /n4teri3ts. curing. and testlng conditions. W compressive strength ofconcreteIs UTrerseIy propot1lo1ul to the ratio of water to ument: developeJ (,y DA Al7rams In 1919 from experiments at lewis Institute In Chlca~. dural7illty, and watertightness of hardened fine aggregate .' . :'..' 25% -.30% concrete. i o ---~----~--~--~I 4 5 6 7 IJ gallonsofW3terper53ck ofcement .. - ." .: ....... . ::... "."..... : :: sack Ameasure of portland cement: 94 117. In the ---"...........A 87.5 1!7. In Canada. 112 117. ~~~.!.t4- 8ritaln. and 50 kg In countres using the metric system.....Iso cal~J 139. .31%-5/% consis~rn;y The relative a!7ltlty of freshly mixed concrete or mortar toflow. usually measureJ bythe~p~~forconcre:U and ITy the~.te:st.fpr i..rqu.~r m~E. Consisttncy deperulslargely on the proportion of~nt pasteto.gg~ate In amix. ~Iump~~ ------------------------------------1 Amc-..hod for determining the consistency slump workability and wortabilityoffreshly mixed concrete ~ Ameasure ofthe conslstency and me.$lJ~ tke slumpof. test speclmell. wori::a~lIlty of freshly mixed concrete. tlXpres~ 35the vertical setthng.ln Inches. of aspecimen after It has I7een placed In a slur!1p cone. tamped In aprescrl!7ed manner, and the cone Is lifted. -------- slumpcone - ...........--..-.- -- .....- ----.•..----- An open·~nJncated cone of Sr.~metal.t2J=:( mm}hlgh. with .lr.i5"tiameter In 203 mm) and • topdiameter 41n. mm}. used to maYaspeclrnenorfreshly mlxeJ concrttefor the slump test. ~ mpreS510ntest Atest for ~lnlng the compressIve 5~ ofaco~ "atch. using a hyd,..ut1c press to mc:asurethe maximum load 3 testcylindercan support In axial compression ~ore fracturl~. u5tcyUnder •... -""-""-" _............ - Acynnderofconcrete 6 In_ (152 mm) In diameter and 12 In. (~mm) high. cast from a representative I7atch and cured In alaPof'atoryor In the field under controlled cond.1tlons. ···-'i~ The relatlve e35e with which freshly mixed concrete or mortarcan !7e handle4. placed In fOr1T1W9rk. comp~ and finished. Worb~ility depends partly on the water· cement ratio and partly on the grading of the aggregate In a mix. /plastJc mix Aconcrete or mortar mix that flows sluggishly without segregating and Is readlly mokle.d. v dry mix Aconcrete or mortar mix containing little wateror too moch ~g~ In relation to the othercomponents and having little or no slump. Also C411ed stHfmix. wet mix Aconcrete or mort3r mix having arelatlvely high watercontent and runny consisten0'. yJeld1~ aproduct that Is low In strength. duralnlity. and watertightness. ..:::.:.~";- '.':.::( .:. -'=~-:---+----!.-'~"'-t-t--'-- cere test Acompression test of acylinder cut from a hardened concrete structure. usually ~ means of acore drlii. J ; 1 , Ij I Jj I 11 I I lJ 6 j
  • 45.
    ~I ~I CONCRETE form Uner --.-.-....-.........-.............---"'- .-- . ,- spreader formwork Mata-blfor Iln~ the Inside face of a form. sped;;1!y selecttd to Impa rt a slTlOOth orp«ernedfinish to the concretesur-fJu. re~$eagent Arty of Y.IrIous lI1.3.terlJls. as ollar sillcoot. fa- preventl~ the bonding of concretetc asurf3ce. Also called partlni awnpound. bulkhead ------....-.-....-...-.--......- . Apartltbl closJng the end of aform or pr~en~ the passage of newly place concretert aconstructlooJoint. 'K.eyw"3'f ------.-----.._. -.---, Ao11gltucin.11 ~roove or channel .... fonnea IaacoocretefOOUng or ather '; metT1rer~ has~. proMlng a s~r-resistlng key for newly placed conc~ yoke A cl4m~ device for keeping column fDm1s or the tops of wall forms from spre3di~ Ilf1kr the fluid pressure of newly pbce&concrete. ~ .: Sonawbe ...: TraJernart for a~nd of cyllndrlc3l column form ITt3M ofccm~. resln'lmpregna~d paper. cfuir Adevice fur supporting and holding steel reinfOfUllleTTt In proper posrtion before and duri~ the: pladng of concrete. high ciuir > - - - - - - A ~n cgrorsupportlng top ~rs In a conc~beamorsb!7. bolsur -------------- A ~ chairforsupportlng and spacing rottom!r.rs in aconcrete beam or slab. clim~"ifurm A form that can ~ r31-sed vertically for succee.d~ liftsofconcrete during the constructlon ofamultistory bulk/lng. lift ~.-- -. -....-...-.-...-. -.-- -'" -. The M~htof aqU3ntlty ofconcrete placed In aform .t one tlme. slipform •.................. -'- ... Aform th4t can be moved slowly and contlnuously as concrete Is being placed during the construction of aconcrete pavement Of" DuJtdlng. ru~tian strip Astrip of wood or other material attached to the Inside face of aform to produce a groove In the surface of aconcrete member. . Abrau. usually of wooJ. for spacing and k~plng wall or footing forms apart. Also called spacer. .-'.- wale A horizontal timber or steel beam for relnfon:;ing various vertical members. as In formwori: or she--<>t piling. or for retaining earth at the edge of an emlr.lr.l::nent. Also called In-east timper. ran9er. waler. /" "';trongmk Avertlc31 support for aligning and relnfon:;lng wales. Also called I stlffitack. The kmpor.ilry structure ~ulreJ to support newly pl4ced concrete. Including th~ forms and an necessary supportl~ members. 7raclng. and hardware. form Boarding or sheeting of wood, meta I. pi3st1c. or ftberglass for ccntalning and giving adesired shape to newly placed concrete until it sets and gains sufficient strength to be self·supportlng. form tie A metal t!e for I:eep:ng wall forms from spreading underthefluicl pressure of newly pi3ced concrete. :'--": -.-.- ..... ~ snaptie i: i Aform tie having notches or crimps which II allow its end5 to ~ snapped off below the :l=====;r=={~i.~ concrete surface after stripping ofthe : ii forms. : i ' - L __. 'I ....!..-.--- COI'.ePott II I' Aform tie ha,1ng cones at each end Insicle ii the forms which allow it to also serve as a I:, II spreader. to r:::~~~~~~-I~'~;;;;;~~~~" ..'-" -'-.' .-' !. i Ji~:~'~'~~"lli ''--T-'--.~ ~S:lltrul1C3tea cone of wood, steel. or form to Indicate the top of accncrete lift. .' • ". ..•. : . plastlG attached to aform tie to sp2ce and -.uo,./A• • _______ • _____•• __ ._ • _____ ._.' . . • Ii spread w.1I forms. leaving a neatly finished "~ ~~=H~~~~3Wl!I· depressloo In tM concrete surface to ~ Anyof. varetyofslotted d...ovlces for ;~. filled or!rlt exposed. tightening formwori: ana transferring the : ;! I f01Ulnaform~tothew3les_ :....-. ~ "--r""" ~'::~conslStir9 of waler rods which '~' .... '. "'_" ~, are ir.serted through the form and threaded ~ i ontotheendsofan inner rod. After . .:."?.: II Ji stripping. the water rods are remcved while ~ . __ the Inner rod remains In the concrete. flying form A lar¥ form that can be moved by 3 Cr3ne. used In constructing the concre~ floors and roofs of multiStcry Duildings. 45
  • 46.
    C:ONCRETE ~st-jn-pbce concrete Ccncrete &eposItcd,fonr.ed. cured. and flnlshed In Itsflnal position as part of a structure. Also called ~st-fn-sltu concr'eU. ." ...... ~. .....- ! piaument : The process of deposltl~ and consolidatIng • fi-eshly mixed concreteInaform or In the • final position where It Is to harden. i ./ time of haul The period from first contact Petwun mixing waterand cement to completlon of dischargeof the freshly mixed concrete from a.truck mixer. agitator iruclc Atruck eqUipped with arotating drum to prevent 5egrt9t1on or loss of plasticityof the ready·mlxed concrete !icIng delivered to aconstruction site. tn.Jclcmiur Atruck eqUipped with arotating drum and aseparate water tank for mlxl"!! concrete en route to aconstruction site. . ~ concrete mixer direct pl3cement Thea'rsch3rglng-offreshly mixed concrete dIrectly Into afann from aconcrete mixer. ~uggy. or crane l1ucl:et. free fait Thedescent offreshly mixed concrete Into afor:n ~t the aidofadrop chute. drop chuu: .......-..--..-........ -....-.- A chute for co~lnlng and dlrectlri~ a falling stream offreshly mixed concrete SO 3S not to cause segr~tIon. chute An IncSned trough or tube for conveying free·fIowing materials to alower level !1y ~ravity. consolwt1on The processofeIImlna~ voids otherthan entralne.d air within newfyplaced concrete andensurinfcloseconbct of theconcrete with fonn surfaces and eml1edded relnf~. Amachine havl"!! arevolving drum. often motor-drIven. for mixIng cement. aggregate. and water to produce concrete. ,-~... buggy .... Acart. often motor-driven. for • transportlng heavy materials. 415 freshly mixed concrete. for snort distances at aconstruction site. :.::'~ .::"'S;;'ll.l~·t·~~:;~'.:;~ ~:...~ • A · 0 t ~ • ~ -4'.1 I ~'-:':: •..;.. ', ~ •. 'V'"Q • 0 ill I!. •~"t... •••0.4 0 1'1 f':~ .....~•• -,., • ::'''''.:: ••0, •• ~~ - "4 ilL 1:1 b.~.-" :....o..~ 0t1 ,:r 1" •• : : . '0 • "'l. :~--!;: ,::.~. ..~... • -, 4 -i.~ 'padi~ ~..---.------.------..---..--- ',,.-'!r'" ..... 4 : 0 .... "--:J '-II .. qf·: ......... Consorldatlon ofnewly placed concrete!1y ;4.·:/1".. ~. d I ..... , .• 0. 0" :/1;.°.1>':110._ the repeated Insertionsand with rawa sof '.... 4' .. 4.: .<l :. ;::'i~3detIke tool. ~'.,~. :: ~_~._~'... .....!.~ .~.:'.~ Consolidation of newly placed concrete!1y vibration ----.-.j the repe3ted Insertion's and Withdrawals of Consolidation of newly placed concrete by a rod. the moderately hIgh·frequency oscillations of avlprator. 46 vi~rator An electric or pneumatic oscillating tool for agitating and consolidating newly placed concrete. ready-mixed concrete Concrete mixed at alr.ltch plant for delivery by an ~Itatortruck to aconstruction site. shrink-mixed concrete Concrete partially mfxea at a lr.lteh plant and then mixed more completely In a truck mixer en rouu to aconstruction sl~. transit-mixed concrete Concrete dry !latched at .Pateh plant and mIxed In atrud mIxer en route to a constructlon site. pneunutic placement The ddlvery ofconcrete. slurry. or plaster by apIpeline or hose to the point of placernerrton 3 COMstnJct1on site. etther In aplastic state for depositing In place orfor spraying. or Inadry state wtth wak< aaaed at the nozzle from which It 15 sprayed. GuniU: AI~ntwelght concrete construction consIsting of amixture ofcement. sand or crushed slag. and water. pumped thro~h 3 noseand sprayed at high velocIty OV~ reinforcement until the desired thIdness Is reached. Also called shotcrete. stl9regation The separation ofcoarseaggregate from the mortaror of water from the other I"!!red1ents offreshly mixed conere-te. resuftlrlg from excessive horlzont31 movement or free fall of the mix. orfrcm evervlmtlon after placement. 5tr.ttlfication The separation ofan excessively wet or evervl!lrated concrete mix Into horizontal layers with Incre3slngly lighter material migrating toward the top. 9 Illuding The emergenceof excess mixing water on the surface of newly placed concrete. caused Dy settlement ofsolids within the mass. Also calleJ waUr' g.1ln. laitance Amilky depOSit containing cement ;lrd aggregate flnes on the surface of new concrete. caused?j the !lleedlng of exuss mIxing water. oVenYon:lng of the mix. or Improper flnishln1. J I I ,"'* I ; ,.$ I ,. ~ I II ! t1 .~ L I ~ L L I
  • 47.
    ''-I. lI finl,hlng .~--- dar+J Theprocess of leveling. smoothing. compacting. and tre3tlng anewly placed concrete surface to produce the desired texture and appe3r3nce. .:' Along wooden or metalstraightedqe for smoothing .a fresh concrete surface .lmmedlatelyafter screealng. screed ----------------------------- -- Awooaen or metalstr3lghtedge drawn a over <I newly placed concrete sl3bto bring it to proper level. 5GreeJ .----.. ------------ ---------------- Afirmly esta!7lished grade strip or edge form serving as aguide for making 3 true eve/surface on anewly placed concrete slab. flc.at ~----- -"" -------- ---- ---- ----- --- ----- --v:.-"/"""'-• .%"",,-, Afu~ tool for spreadlng and smoothing a fresh concrete. stucco. orplaster surface. l7ullflo.at Afloat havll1{1 alarge. flat blade attached to along handle. L_. _____ ---- trowel -----.---.. --------.--------------, Arry of v.arlous fut-bWed hand tools for . appJ:t!ng. Spreadl"9. won:lng. or smoothing .... plaStlc material. as concrete. mortar. and ' pl3ster. powertrowd A port.aPle machine having steel trowels float finish .--- ---- ---- --- Aflne'~ured flnlsh obtained by smoothir.q 3 fresh CO!1crete. p13s:er. or stucco surfau with awood fl..,"'3". moun~ on radlalarm5 that rot.1te about a , vert1c41 shaft to smooth. compact. and • ~ ;;:~;c:::~;,~f~---<~ _ roondlngthe~sofafreshconcreteslaD trowdfinlsh· --------- 3Slt ~Ins to set. Adense. smooth finish obtained 7j wor(l~ • fresh concrete or plaster p7f'ement,.aw surface /lith 3 steel trowel. Awhe.el-mounted, rotary power saw eqUipped with.a slllc.on-carbiJe or diamond !n.1Je for cutting acontrolJOint In a hardened concrete SIaD. .-- -- -- -- -- -- .. --- &et ~- ..------------ ---------------------, The assumption of ~ ~ld or hard state by i concrete, mortar. pasw. or glue due to a ! phys1c41 orchemical ch~nge. I £JDDDDCJO- cure ---------- ---- ----. --- ---- ---0.. ---.--..--............---- ....--.... "-' ....» To maintain ntwly plaua concrete or rnortJr at the required temperature and humidity fur the first seven days following placement. castlng. or finishing to ensure satisfactory hyaratlon of the cementltious materials ana proper hardening. hut of hydr.atlon The heat ~enerateJ by the process of hydr3tlon. as during the setting and curing of a concrete ml)(. hydration The process In whk;h asubstance combines chemlGally with water. as that occurring when cement Is mixtd rllth water. dry-shake finish Acolored finish produced by sprinkling a dry mixture ofcement. sand. and a pyment on afresh concrete surface follcwir.g screedlng and after any free water has evaporated, and then won:lng the mixture Into the surface with afloat. j 1 l:[.lITPf ,Pf.W.':':T::I.:':. . il·ill:I!::::!;!!il:::'i;:}:. . : :11·illlll:I·!!,:,·iil'i'i' II'" "I', ,., . ' I,ll:" ill.i;j""'I.j'I.'" I til "':;' :11. 1 1.. "I r'i:·~l:iill!:".'1;..,:'.: . 1:lid:il!d!i1il/. :., II:i:j! jl,'klii) c ,1I':'I':I.:l:dl'"I...", proom finish --.-------..! Astriated flnlsh obtained by stroking a Dr~"'m or strff ttrJsh overafreshly troweled co~cr~..e surface. ...... ~ .>.~~>~., . ~wirl finish Atextured fini$-' given to afresh plaster or ccr~rete surface by troweling with a clrcui3~. overlappi~ matlon. - - l~~'-':{';:t;i.'~&±;-~'~1 CONCRETE architectural concrete Ex~ concrete won: requiring special care In the selection of materials. forming. placing. and flnlshlng to acquire the desired appearance. peten brut Concrete left In Its natural state after formwork Is removed. esp. when the concrete surface refleGts the texture. joints. ana fasteners ofa !?oard form. exposed agg~ finish Adeccr3tlve finish produced ry sand!:T!astlng. etching with an acid. or scrul7t:>lng aCOllGrete surface after the Inrtl:al set In order to remove the outer layer of cement paste ana expose the aggregate. bu~hhammered finish Acoarse·textured finish o17talned by fr3cturlng aconcrete or stone surface wtth a power·drlven hammer having a rectangular head with a colTIJgated. serrated. or toothed face. honeycom17 Vvlas on aformed concrete surface, caused ry segregaUon during placement Of' Dy Insufflclerrt consolidation. ~pa!ling The chlppl"9 or scaling of ahardened CC11crete or masonry surface caused ry freeze·thaw cycles or the applk;atlon of de'.cI"9 salts. Also called 5(;3l/ng. crazing Numerous hairlinecracks occurring In the surface of a newly hardened COllcrete - slab as aresult of rapid drying shrinkage. drying shrinkage Areduction In volume of concrete. mortar, or plaster caused by aloss of moisture. ~etting shrink3ge Areduction In volume of concrete prior to Its final set. caused by hydration of the cement paste. 47
  • 48.
    CONSTRUCTION The art. science.or l1usiness ofbu~ai~, - ownu A person ororg:anlutlon twlr.g the ~al right or title to a piece of fL- ~,Il5~thearchlt.xt's f'/ .. - c!lent and pa~ to the owner- arch~t agrmnent. I I r~p~--~---------l 1 1 Apersooor0f9nlz2t1onM I Inves~ In and develops the I t pot.enttalltles ofreal esta~ esp. : I by Wtlatlng anaImplementl~ I I ~~ projectsforoWMership, : I ma~ent, or res.J1e. I L- _________________ ..! '--t Iendil19 institution T~ institution, usually a ccmll"erclal !1.ni:, providing the ~-tefm fI~I~.for a constroctlon project. I I I I I I I r _________L _________ , I speculnwe ~ui1kr I ~ A~ ororganlz3tlon that : I kv~ and constructs Dui!di~gs : I for suPsequent S31e or lease. I L ____________________ J 48 ~---------.----- .. -- ----- -- ---- -- --- ----- -~---.- --. --. -- --.------ Iicen5ea r-------l:------t I L~allycerUflecl bya governmental architect e~ineer ~ or other constItuted authority to Aperson who engages In the Aperson traIned. skilled, or engage In a!rosIness or professIon. profession ofarchitecture, usually l-L...J professlo!1311y enga~ed In any of Also, registered. trained and experienced in the rr-- various ~ranches of engineering. as ! Ii desIgn and construction of structural mechanIcal. or vulldlngs. e!e.ctrlcal engineerIng. T I ,--------------------1 I I consultant I : I Aperson or organlutlon hIred to : r----------1 glveprofesslonalorexpertadvlce l I I rtgJrdlng aspeclflc aspect of a : I I p~Ject, as acoustics or IIghtlng. I I ______________________..J ..J,. contractor ! libcontractor Aperson ororganlz2tlon that Aperson ororganlutlon that contracts wfth ageneral contractor to provide aportion of the won: on aconstructIon project. contracts to provlde the materials ~ and perform the wort for a construction project at aspeclfled time and rate. generalcontraGtor Insurance The Insurl~ of property. life, or one's person against loss or harm arising In speclfed contlngencles In consIderation of apayment proportionate to the rlsI:: Involved. contracts directly with an owner H3v1ng amonetary commitment set Aperson ororganization that I" ,.. -- .. :.-. ,--~..--.-. bonded to manage and supervIse a aside to ensure that ail o~llgatlons construction project. Including the 1 set forth In acontract are fulfllled. won: performed I7y sul>contractors. construction manager Aperson ororganlutlon that contracts with anowner to advise on and coordinate all pha~ ofa ltuik:ll~ prqect, from evaluatIng the constructlon cost and feasl~lity ofdesign decisions to managing the ~ng. award, and construction phases of the project. design-l1uiIJ Of orpertaInIng to an amngement under which aperson or organlutlon contracts dIrectly with an ownerto design and constnJGt a~lldIng or project. turn-leey Of or pertaining to an amngement under which aperson or organlz3tlon designs and constructs alnJlldlng for sale or lease when ready for occupancy. Architect Subcontractor Subcontractor Subcontractor I )' ~~U~ / --~-- , ; I : j l 10 .J I) ! II I n 1 I U ~ I t b
  • 49.
    L~I L./ ~I fe.1swility study AdetalfeJ InvestIgAtionand analysis conalJCf'.ed todetermlnt thefil13nclal. technical orotheradvIs3Dlilty of a proposed constructk)n project. top out To Install the highest structural member In . aconstruction or complete the uppermost course In amasonry wall. falsework The temporary framewon: for supporting astructure under construction that Is natyet capable of supporting ttseff. scaffold Atemporary structure or platform for supporting workers and materials at a height aDove the floor or ground during the construction or repair of abuilding. Also called staging. I~I CONSTRUCTION The process of puilding, from site preparation through erection, assembly, and finishing operations. ..........i>......................~ ......................~.......... i1iddin9 1'he compt:Utlve process of offering tv perform the wan: described In ;;1 contract fOf' aspecH'ied sum. award A formal auevtance of a Did or a negotlated prof1QS.ll ccntnct A~ally enforceable agtUment. usually In written form. between ~ or more partIes to do or not to do something specified. notice to procee;l Awritten communication Issued by an owner authorizing 3contractor to proceed with the won: and establishing the date of commencement of the work. puilding permit Awritten author!zatlan to p.-oceeJ wtth construction of 2 ~Ik:llng projectIn accordance with 2pproved dr.lwlngs and speclflcawns.lssued by the local. government agency havlngJurisdiGtlon after p!;:ns have been flied and reviewed. buildi"9 offICial Aperson des4lnatea by agovernmental authorlty to admInlsterand enforce the provisions ofa building code. erect To construct boy the raising, positioning. fittlng together, and fastening of materials or parts. ----- ----_._------, certificate ofoccupanq Adocument Issued by aj;,uJld1~ official certffylng that all or 2designated portion ofa building compiles wtth the provisions of the bUilding code. and permttung occupancy for Its designated ~. p05U1ccupancy tnluation The process ofd~noslng the technical. functional and l1eh2v1onl2spects ofa completed building In or~er to accumulate Informatlon for future programming and design activities. Q ~ Design ~ . ~ ~ fast-track ......................................................... ;....................j ..............-.+.....-..-..-..--..-~ ..---...... Occupancy.....·) Of or pertaining to project scheduling In : : : : which the des4ln anaconstructk)n phases I I I Ar-----------, ob ~ttdlng proJectoverl3ptocompress ' : Constructlonphase 4- Ull....-_______--' the total time required for completion. I : I Constr~tionphase 3 OC--========_________..J CPM Critical Path Method; amethod for punning. scheduling. ana managing a project, comblnlng all relevant Information Into aflow chart, Including the optimum sequence and duration ofactivities, the relative significance of each event, and the coordination required for timely completion cf the prOject I I I I Construction phase 2 6c=-----------t I I Construction phase 1 0II....________--l 49
  • 50.
    (ONSTRUcnON The manner inwhIch IUterials are ordered. assemlkd. 3M united into J whole. 3S fr.am~ construction. ,ysttm, Pui1di~ Aconstnsctlon prcuss U5ln9 a high d~ree of pref.l!nic4tlon In t1Ie nunufacture of standardlztd units or components to speed a-s~m171y and /:rectlon of alnJlldlng. Also called Industrialized Puitding. panel A pref.ll7riciW sectlon ~ afloor. wall. cein"40 or roof. h4nkJ as asingle unit In the assem~ and erectlon ofa pullding. prefal1ricm r0 fabricate or manufacture 17eforehand. esp.ln standardized units or components for qUid assem171y and erection. fabricate r0 construct l7y assembling diverse and usually standardized parts. ,.,n.:iwich p~ ----------' A stnsctural p3nel CQ1S!stlng of acore of rebUvei)' ~ mterial ent;osed Petween two sheru ~ ah~h-st~ material. ~rally re5lIltlng In a high stlffness'to- weight ratio. we,5ed-5kin pand --------II~__ Astructural p3nel cooslstlng of plyw~ facings gl~ to lum!ler stringers. used as ~.oor. roof. or WAil memw$.IbJect to Dendlng. The plywood bclngs and stringers act as a~rb ofI·beams with the plywood resisting ~~ all ofthe M1dlng stresses. Cross l7r3c~ rruy ~pUc.edto support the edges of the skin and to Idp distribute ccnc.entrne.d loads. ....... ···-1 '. ", " modul;r~n f'lwr.mng al'lJ design at!~1Zing prefalnic3teJ Il"()(lyles or rroaubrcoordlnatlon for ea~ of ~ flexJbleam"¥f11ent. orvarie ~U:Se. module _.-..•..- ........- ..-... "".'.- Arty In a ~ of standard1zea, frequently i1Tterchange.il~ components used In ass.e:n~ untts of.tff~ size. ~Y. orfunalon. modular coordiutfyn -.......- .--.- Cornbtl~ the dimensions of astructure and PIe unit sizes ~ Its cocnponents, ~ with ~ alJ ofaplanning grid l7ased on a+Jnch or1OO-lI'II1cu~1 module. lift·,Llb co~ion A technlq~ of constr~lng multiStory !7ulldings In ...mich aA horizontal stabs are C3St ,t ground b-efand. wnen cured. are raised Into position Vy hydraullcJacks. 50 tilt-up construction Amethod ofcastlng relnforua concrete -wall panels on site In ahorizontal position. then tilting them up Into their final position. ...<..~~'.'-'" ". --"-:. .--- ..-=:-..r:;.............. ", -', contract documents The Ieq;I documents comprising a construction contr;lct.lncludlng the owner' contractor agreement. conditions of the contr3ct. and the construction drawings and s~iflcatlons for the proJect. Including all addenda. modifications, and any ather Items stipulated as being specifically Included. construction documents The ccnstructlon drawings and speciflcatlons setting forth in detail the I't<uirements for the constroctlonof a project. 'peciflCaticn, The partof the contract documents consisting of a ~11ed description of the technical nature of the materl4ls. standards, anaquality ofexecution of the . work to ~e pbced ul'lJer contract. uniform ~y~um Afo/'lT13t developed Py the Constructlon Specifications Institute for coordinating spectficatlons. flllng of technical data and product literature. and const<uction cost accounting. organized Into 16 divisions l7ased on an Interrelationship of materiJl, trade. or function. Also called Masterionnat. Oivision 1 Gene,./ Req,uirement5 Otl'f51on2 ~ OIrlslon 3 ~ OIrlsJon4 ~ry OirlsJotl5 Met...1s Oirlslon G Wooa'& P135tJcs Olvlslon 7 ThmTLl/ &Moisture ProUctJ:;n OIrislOf'l~ Doors &Windows Otl'f51on9 Finishes Oirls/on 10 Speci3/tJes D/rI5lon 11 EqUipment Oil'f5ion 12 Furnishings D/risJon 13 5ped31ConstroctJon {)(YisJon 14 Ccrweyfn, 5ysU~ {)(rlsJon 15 1kcJunJaf Otrlslon 16 Bectnc41 perlormanu 'pecification Aspeclflcatlon that Stipulates how a particular component or system must perform without gMng the means to be employed to achieve the results. c:f~rjptlve 'pecification Aspectftcatlon that Stipulates the ex3ct CU3nt/tles and Cuahttes of rroterlals to be fumlshed anahow they are to De asseml">led In aconstruction. reference ~pecification Aspecification that refers to astandard spectfic.atlon to Indicate the properties desired In <I ~terlal or component and the methods oftesting required to substantl3te the performance of products. proprietary 'pecification Aspecification that stlpul3tes the use of specific products. systems. or processes without prOVision for substitution. Ii ! I I: j I lj I I ; i 1j i 1i I b . U ~ I L , L • t I. L , f ! l~ I
  • 51.
    r l./ :. ! f l-I , - r t.I r...1 ! r ~ui1dmgcode Acode regubtln~ the design. constructlon.alteratlon••nd repair of l>u~. ~ and enforced by a local go;emnent~ncyto protect the pu17llc mety.hea~ .nd welfare. AbuilJ~ UJJegenerally~5t3b1ishes mfrrirrtUlf stmbrds for materials and methcJs ofCMStroction. specifications for s~anJfirtszfety. and other ~!mftentsWstdon the trpe0 f const:ructJonadtheoccupancy0 fa budJ~oftm rsIng st3nJards ~blisheJ bytheklerbISocletyfqr T~ and M~ (AS1M). ~ American Ni1tIonal St3nJzJs ~ (ANSI). and various tecJrnJca/societiesand trade3550cbtlons. nwdefcc&e A17u~ cod!: developeJ I1y an organlutlon of states. professlonaI socletSes. andtr.laeassociations for adoytlCC'll1y local communities. BOCA N.rtiottal Building Code Al7uIdlng coJedeveloped .nd published by the 6u11dl~Offlclals andCode Administrators Intematlon31.lnc. (BOCAl and ~ prlm3rily In the n~US. Unifonn Buiidi"9 Code AIru~ coJedeveloped and published by the lIrte~al Conference of 6~ OffIcbIs (ICSO~ and use.d prlmrt,- In t&ecentr.rl and western us. Standard 5ut1ding Code A!ruMng caJe developeJ and published bytheSouthem Building Code Corrfereru (s6cc). and used primarily In the ~heastern u.s. ener~code Alrull.:Ang coJethat sets minimum sbndards forenergy conservation and the ercgy-efficlent design of Dulldlngs. ~n' 'With D~auilitie-s Act AIl ~ of Con¥ess that Decame 13w In 1992., estaDlisllln~ design stand3rds and reqt.'ltel1ent.sforalll7ulidlngs except sl~mlly residences to ensure their ~Ilty by the physlC311y J1s.ab!ed. zoning ordinance An orcllgnce regulaUn~ the dMslon of 13nd llTto zones. 2S to restrict the height. l?ul.~. J:Id use ofDulkllngs. and the prorisIcnof.ny2nciliary faeilities. as pari;~a prlncip2llnstrument In the Im~ ofamaster plan. Also called zonln§ co,U. r~ecoven.nt ACO'r'eItInt IriUI acl3use that restricts the ~ ofWi party to It. as an agreement.lIOflg property owners s~ the use to which aproperty can l7e put: raGbl and religious restrictions are legally unenforceable. noncmrfONR~ Of or pertaln~ to amaterial. type of constrllCt100.or occupancy or use not comp~ with the requirements set forth il'l a l7uKdlnq code. V41rUllCe An offlctll pemt to do somethlnq nornt;lllyfo~n by rt:9ulatlons. esp.by Dulld1~ In a'InY or for apurpose normally forbidden by abuilding code or zoning ordinance. nonccmbustiUle construction Construction haVing astructure of steel concrete or masonrj'. and walls. floors and aroofof noncom17ustl17!e materials. .. ; •. ) ....'.: ;. '....: comuustible construction Any construction th3t does not fuffill the requirements for noncombustible constrJctlan. protected noncombustIble construction ) Noncombustible construction having a structure ana major components with fire· resistance ratings at ieastequal to those speclfled by the appropriate authorities. unprotected noncomuustiule construction Nancombusti17le construction havln~ no f1re·reslstance requirements except far f1re walls and enclosures offtre exits and ordinary construction ACO!1structlon type having noncombustible roenor walls and an Interior structure wholly or partly of light wood framln~. protected ordinary construction -'" .--~ Ordln2rj' construction h;wlng astructure and major components with ftre-reslstance ratings at !east e<tual to those specified by tM appropriate authorities. unpl'Otected ordinaryconstruction Ordlnarj' construction h;wlng no fire- resistance requirementsfor the Interior structure except for fire walls and er.closures offlre exits ana vertIcal shafts. ~ V)'-timlrer construction ACO!1structlon type havl~ noncombustible e-..:terior walls and an Interior structure of tlmPers.nd decking of specified minimum sizes. Also called mill construction. I light wood frame construction Aconstruction type having aframework of wood rnert1!1ers not meeting the requirementsfor he3vy-timi:>er constructlon. CONSTRUCT. ON construction type Aclasstflcatlon of alrul!dln~'s construction accordln~ to the ftre resistance of Its major components: structural frame. exterior Pearlng and nonrearlng walls. Interior Pearlng walls. floors and cellin~s. roofs. and enclosures of ftre exits and vertical shafts. While each ofthe model codes differs In the detailed requirements for each construction type. they all limit the area and height of a17ullJ1n~ according to construction. type and Intended occupancy. Also called construction cl3ss. ~,-~ protected light wood frame construction ........00- . _ . . . . . - . - -.~ light wood frame construction having a structure and m3Jorcomponents with flre- resistance raUn~ at leastequal to those speclfted I1y the appropriate au.thorlt~S. unprotected 1i9htwood frame construction LIght wood frame construction having no flre'reslstance requirements except for fire walls and enclosures of fire exits and vertical shafts. 51
  • 52.
    DESIGN The cre3tWn andorganization of formal elements in a won: ofart. .I fOriit-i The ~pe and structure ofsomething as dlstlngulsWfrom Its Silbstaru or materl3l . :, ~~~ Oforpertalnlrlg to shapes and forms having 1~l3r contcurs wflic;h appear to resem!?let:f-~of~ plants oranimals. !~.~ Oforpertaining to shapes and forms not ~ng natural oractual oujects. AIso.~~naI;··:; ,shape' The outline or surface conflgurauon of • partlcularform or figure. While form wsU311y refers to the principle that gives uni~y to 3 whole. and often Inclllks asense of :rt355 orvolume, shape suggests an outnne w.h some emphasis onttle ellclased are3 ~ mass. <1~~:'~" .:'.. ~'~::::-'.> ". -:-".::: . ·;:;:<::~~~~~.:.s !textiirt " .' . . The visual and esp. tactile 'uality of a surface, apart from its.color or form. @ .#Iine The edge or wntdllr of a shape. /' , L_'--¥-_-->- '7 visualttXture The;;pparent texture of;; surface resulting from the comuinatloo and interrelation of colors and tonal values. i tactile texture. The phY$lc3l dlmenslonal structure of 3 surface, apart from Its color or form.. cc-.--:;;> ~! ~ ...........-.............. -....-.......... .....~ -+ [!] ~[]] Oforperblnlng to shapes and forms which resem!?le oremplcythe simple rectilinear or cu~r dements ofgeometry. '?a~··-·'"·''''·'·'''·''''''' Ofor perblnlng to shapes and forms having an Intellectual and affective content ~ solely on their Intrinsic lines. cofors.and relatlonshlp to one another. ~~f!1f::d Aunified compostlon oftwo-dimensional shapes or Rtru-dlrnenslonal volumes. esp. one 1:hat ftls or sffithe Impression of w~ht. dcnsfty. and Pul. 52 i~j~ syntPot----', t addi1::i~e 7....··....·_.. ·· ........ . Characterized or produced byaddtUOn. accumulation. or uniting, often resuftinq in a new Identity. 5ulrtractive ~ ..- ................. Characterized or produced by remmi cf. part or portion without destroying ;; ~se of the whole. ~----------------------. --+X • • Something th3t st;a nds for or represents sornethlr.g e~ Dy 3ssoclatlon. resemPbnce. or~n. derivl~ Its I meaning chiefly from the structure In which ltappe3rs. I'~~~~flgu:-t h3v!r.g .. ~nvenUof13! I . meaning and used In puce ofaword or ~_____---:"--~______---.JI _ph~se to exprtss 3 complex notion. .J artJcubtion I Ametf1CJOflhanr.erofjointing that mJtes the united parts cIQr, distinct. and pr~ise In relation to e3Ch other, ... ~."~~'I '~.:' "'---.' ..-. --, '-'.'CIJ-'>, ;, f~~~~~~:~ / '''~~:%~~~:l', ..,... "
  • 53.
    ,. ~i I I ~I - An InaiV1dual. minute,or subordinate p3rt of ~ whole. .11 • " ".II i ... I( III l1li • • II • ----------------------~ j tature The c~ractaistlc structure given to ;a surfJCe or 5u~tance ~ the stze, s!up~, ~rranqement, and prcportlons a' the parts. . f4l>Mc . pattern ' An ~rtlstlc or decorative design, esp. cne h<lYing ;I cruracterlstlc arran~ement and considered as aunit, of whkh an Ide3 can be given by a fragrr.ent. 'L_____ _ ___________ _ ! ~DESIGN form: Themanner of arm-.3in~ and coorana tlng the parts of acomposition so 3S as kJ produce acoherent im~e. II ; orga~~tiorJ , 1l1isystem3tlc arranqing of I Interdependent or coordinated parts Into a coherent unity or functioning who~ structure < Th~a-;:g3;;iffikJn of e~ments or p3-;S In a complex system as dominated ~ tee general eharaeter of the whole, 01 :parti: :j The lias1c scheme Or ccncept for an architectural design, represented b] a dlagram. diagr.wm : Adrawl~, nat neceS5.'lrlly representational, that outlines. eXf-'ins, or clartftes the arrangement and relatlci1s of the parts of awhole. , COrn' ,~rBrl.fr~t Ie eJlrrang n~ VI parts Or e me'lts fr.:.o proper proportion or relation SO as t.J form aunified whole. 53
  • 54.
    ~ ~~ft prfncfvle: Afundarrentaland CDtnprehenslve concept of visual ~ptIon for structuring an aesthetic CDmposltlon. unity' The state or quanty of Peing combined into one.astheorJerl~ofelements In an arUstle lI'OIi: tIut coostItutes a harmonious whole or promotes a singleness of effect.. DOD DDD DDD 'j 1I~_,".ity;",~ The stateOrquantyof being Identical. hOlT'lOgtl1tlOUS. or regular. ';. homogeneeu ' Unlfonn In strtJcRlrethroughout or composedofparts that are all of the same ~ture orkIM. ~~~::l Uniformlyorevenlyformed or arranged. ~ motOtony The state or~U411ity of lacKing variety. ~- The stJte or 'l.U41nty of having varied or alV~ forms. types.or eharaeterlsties. ,~. Stress or prominence given to an elcma1t ofaCO«1posltlon by means of contrast. anomaly. orcoonterpolnt. l~~:~i opposttIon orJuxtapos{tlon of dlssinlbr ~ In awon: ofart to intensifyeach eb1ent's properties and proGuceamoredynamic expres5iveness. brder turmony ACDnditlon of ~ic3l harmonious. or comprehensible ma~ement In which each element of agroup Is properly disposed with reference to otherelements and toIts purpose. The orderly. pleasing. or CO!1gruent arrangement of the elements or p3~S ill an arUstle wnoIe. 1'epCS6 : ~rmony In the arrangement of parts IX' colors that Is restful to the t:ye. I[ Ii I 'caherent lc.:3ic311y or 3esthet~311y ordered or lnU.grated to afford comprehension cr recognition. ~====~==~~====~==~~I========~ 1---~.--..:proximity : . ' I Ne3rT1es~ln place. order. or relatIOn I : I ~~~~~====~I I campJexity The state or quality of reing awhole composed ofcomp'bted,lntricate, or Interconnected prts. ,., caJlage canUnuity ; The state or quality of belnq contlnuoi.!S. as a nne. ~e. or dlrectlon. ai~~ Amngement In or adjustment acccrdi,,~ to astialqht nne. ~ An artistic ccmpositlon of often dlverse ele:na1ts In ~n ti1:tly or unexpectedJuxtapositbn. r-------..;-=-::..;;.= ...= ..;.;.;. ..""' ..~ .....!. kmrchy l I ! . Asyst.e'mofeiements r.lnKea. elasslf.e.d. I I and organfud one 3DOYt: another. acwrdin~ to importance or s~nlfcanu. rl~lR ··m II ~~~~ I~==::=;:,;:::::::==_-=---=·-=--~-/~~~;~":'=d ~======~ r corresponJlng posltlons from an ...... [>f I! -/.--' ntervenlngspaceor<*ject. . _ ....... - . . . 11[, '<t>' " '. ' .. II. ju$~ I The stateor poSm,n of Delng placed close ~>/ I, ~r()('s~byskk.so.stopermtt ·...0 comparlsonorcontnst. L.__ -------. t ~iDric~ Atenuous Valance malntalneJ In an artistic m retween opposl~ forces orele~t5. often causing anxiety or excttement. A~Ion from the normal or 1 0 ODD inoNIy' §DDODD expected form, order. or arrangement. -..~ 0 DOD 54 'nt DDITTIDD ~I!14Jor idea, essential pa rt. or DDDDDDO satlent feature ofa narrative or D_ i OUOD concept. ,.alient Prominent or conspicuous. ~QnUrpolnt .:........-.................: A parallel M contrasting element or theme in anarT3tlve orconcept. , wo, A5~3te Of utw disorder or CDnfUSlon. • , cantndlctlon The state orcoodltlon of beln~ opposed. Inconsistent. or lc.:Jically Inwngruous. L. L u I tJ I U I U U i ! P ~ I P J ~ I ~ r~ I I· L I r !
  • 55.
    -.I -I 11 ~~ri4m A5tJ~cfrestor!:ra!ance Pa..... ~ contr.lstlng ~~,,:;scr opposing forces. i., equipoise ; An e<lUJI distribution of weig;:. rdJUonshlp. or fcxus. ~cc~~-$ ACO.Jn~lanclng weIght o li -I orfw~ '-I "'-I I L.., i '--I i :-/ tI "-, j '~ilf The au ~k:>r-3 which rr.ovi~~~or~c ref~tothe It ts direcu.d.:;" ¥~~ AprOcessor change ta~lng place by kgm:s orthroogh <I series of gradual successive stJges. o )PESIGN-' tt==:tC:~::Jt==n:~w.ulllilW liabnce'1 .the-pleaSing or harmonious arrangement or proportion of parts or elements In adesIgn or composItIon_ 41..c:S;::::::::~! ,r r3(1bl5ymmetryj~..-----.-.-.--------- U Symmetry resultIng from the arrangemen ~ of similar. radiatIng parts a~ut acenter ....,......---"--1.~......-- I point or central axis. ,~~ ..y.i50h~metryi; AstraIght hne to WhIch I' An 1'"391I13ry hne al>Out which a elements In <I compositlon ~ure. body. or composltlon Is are referred for symmetrical. measurement or symmetry. ·_-----_·_--t ~~!/j Theact or prOcess of repeating formal elements or motifs In adesIgn_ concmnatioll Aseries of linked or Interconnected things or events. 55
  • 56.
    . PE$I~N : ;fro~, The COlny.,._e. proper,or h3rmonlous rel3tlon ofDI" partto another or to the whole ",1Ut respea to In'gnltuae. quantity. oraegree. %=9 ,proportlca. : The equality retwun two ratios In ' which the first of the four terms divldea Py ~ second equals the third divideJ Py tilefOIlrth. , golden~llj AprO~~n the two dimensions of apl3ne figure or the two divisions of a nne, In which the ratio ofthe smaller to the I.lrger Is the same as the ratio of the larger to the wholc:J ratio of approximately 0.618 to 1.000. Also c.lbf gpklerJ ~~{~ ~ .,;.. .;. ' A B B ~Ie '.L....................................... II certain prof'OftIonatesize, extent. or degree, uSlQlyl~ed In relation to some St3ndardorpointof reference. 1tutIu"~ale The sizeor proportion of aI7ullding ec:r.c:ntor space, or an article of flnlture. rel.ltlve to the structural or fllllCtlonal dimensions ofthe human ~.----~, ................... . eurythml ; Harmony ofproportlOiformOvement. .r ", -- -- --- - -.---------.--=-':Io..---~--------- ....-._'t_-;"--_>"<::-•• - '" 56 1, 1, 2, 3, 5, 8, 13. 21... VI, V2, 2;" 3/ 5, 5/ 8, 8113 ... Fibonacci se~ . The unending sequence of numbers where the first two terms are 1and 1. and each succeeding term Is the sum of the.two l.mm~lately preceding. Also called ~cd ~uance. I harmonCC~' ~. Aseries In which the terms are In harmonic progression. 1, '1.3.~. ~, ~ harmonic'progres5 !on Asequence of numbers the reciprocals of ",hich form an arithmetic progression. -I"-'''''-H~''--O mechanical scale The size or proportion of something relative to an accepted standardof measurement. visUJI scale The size or proportton a ~ulfdlng element appears to have relative to other elements orcomponents of ~nown orassumed sIze, , j I ..I I 1 ! I j I LJ I 1J .' - I r-
  • 57.
    r l f' ! j It f r i ~5tructul4ll ~sion ArTy Ofthe-dimenslO;,softhetiuman body and It5 p-art5. I I I I I ffunctioM&imell5ion "-...----,-.·-.----.-.-i~ Arryofthe dlrnenslonsdetermlnea by bodily l posltlon ana movement, 35 reach, stride, or !I:'- clearanu.. f : !,~fiti The correspondence petween the size and postureof 3human body aM alnJi!dlng e!emcnt ~ artlcle of fuml~re. jVa~ Of or ~Inl~ tospaces. Ptllk:Il~s. and facntt:es fully accessIpIe and usap!e by ali ~1e.1nclud1~ the physically h:mdlc3ppd ,i, J 11 ....) ~".",. territoriality ~." 'The i1bltfty~frudom. or permission to approach. enter. or use. fl·········............... The pattern of ~havlor associated with defining and defer1ding aterritory or domain """ pe~11315pace ~ fDESJGN ~gonomiG5 Art applledsclei1ce concerned with the cllaruterlstlcs of people that netd to Pc: consIdered In the design ofdevices 3 nJ systems In order that people an.:! things will Interact effectlvely and safely. Also called ~uman engCnurin4.· "'-"""1" a~r~~I11~ . The measur'embTt and study of t~ size and proportions of the human rody. Ra~ropoll10,rp~~ .f To asc'rlbil humin furm orchmcterlstlcs to nonhuman things or I1elngs. ~~ia.< tThesenSoYy~f>erienceof Podlly position, presence, or mo."etrent k.-Ived chieflyfrom stlmu/.atlon of nerve endl~s In muscles, tendons, aMJolnts.Also, k1na~$laii ,.~esi5..' ~)13ptJc i . Relatrng to or lr3sed on the sense of touch. t olfutory' ReI.aClng to or &3sed on the sense of smelL f!~} f>'~~~ i' :;i~~i?'~ i: f " j '~ P~r.!J~;! - The Sfuay-bfthe symtJol1c and communicatlve role of the spatlal separation Individuals malntJJn In varlous soc13Iand Interpersonal sltuat.,ns, ana how the n3ture anakgru of this spattal arrangement re!Jtes toenvlronrnental ana cultural factors. I r ]r;-' . > -, The Vlr!a!7le and su~lectlve dl5t.ance at which ooe person feels comfortable tal1:lng to 3~~her. Also called~! distance. : r,--,- 57
  • 58.
    1 DESIGN . ~igll" f0conulve, coof.rio.'e, or devise th~ form and structure ofabulldlng orother constru~ , Jesfgn f~"; Apurposefllactlvtty aimed at devising a plan for chafl!lng an exlstlng situation Into afuture preferrea state, esp. th~ cycncal. IteraUv~ process comprising the following contrive- foform In an artistic or Ingenious manner. ,~.: Tofonn'ln themlna ~ newcomplnatlons or applications of existing Ideas or principles. phases................................ lr-in -n;-J3-'-tlO-'n--'=""="",---., ~~itp;e~~~-:---I PfO~S . fJ~tifying ; problem ;nJIts.socia/' II systemailcseresof actions or economic. andphysical~xt. operatlons le;ading or directed to a partlcu~rc:ti iph.i$e;· ~ . •Apartlcubrsta¥ In aprocess ofchange or deve~ }~~"lforso.'Ilng aprol7lem, as a / statement~ forth the context, conditions, requirements, and .) ~in~ € o~Ject!ves forac:Its~n project. The pattern of change, growth, or ~ / _' ;;:;:::~:::~::M~OO' ~ r des~n project wtthln aspeclfJea •..,,_.._ ,/ tlme.Also.tharttte. ~! ~icwttd30 impIem~ solution In use ~ tk5p«ifieJgozlsand CI'iterU. ~P~~I To en~~ fulflnmentof ~ means of adefinite pbn or procedur~. ~ g o n ! feeduack , EVaIu3tlveInformation a~out an action or process promptIng areturn to;1 precealng phase for alteration or correction. ~l&iitJon .analysis 5~parattng ofa whole Into its constl:uent parts or elements. esp. as a method of studying the natur~ of the whole ana determining Its essentl3l features ana their relations. ~~yn,1;h~ls J " Comulnirig of separate, often dlve~ parts .:~5~f~'~ develop;: To wolt but, expand. or realIZe the capaPilittes or posslpl!itles of so 3S to pring gradually to afuller or mor~ advancea or effective state. ,tnodifyl fochange the form, character. or quant1esof In oraer to glve a new orientation to or to serve anew end. J refine; , f 0 Improv~ or elaborate In order ~ make more fln~ orprecise. .~ inflection ' . A~nd.angle,orslmll;1rchang/::n the shape ofa configuration. ~ meons of which achangeofrelatlor.sI1lp to some context or condItion Is Indlc:ate.:i traMformatlcn·' Slmulztlng. testing, ~ndmod;{y(ng ~bIe :lternnlves~CCCIf'Jlrig ~ specIffeJgoals ~ndcriteria. I CO"""~; ·----·-·-·--·---·------t~#----..·-..-·~:---'------..----;~! ~ process Oftha~9Jng In form or structure through aseries of dlscw~ permutatlons and manlpubtlons In ~ponse to aspecificcontextor set of condltlons withoutaloss of identity or concept. ~[gJ @@ To expre5S.canvey. or Interchange Ideas, fo chooSe from anuml?er of alternatives ~ fo asceruln or a55eSS the slgnlflcance. Infonnatloll. or~ lli:e by writing. speaking. fitness orpref~rence. worth. orqu.lltyof, usuarly bycareful or t$!~acommon system of signs or ~ judgment~ appraisal and study. symrols.esp, Ina way that Is cleariyand :, ..;,,,,~~,.i readily understood. T'lie mental a~!Iity to perceivedistinctIons, .. comprehend relationships, ordistinguIsh , f"OPO''' alternatlves. The off~ ofapianfor consideration, function: acceptance, oraction. 58 • The natural or properactIon for which somethln~ Is Mslgnea, used, or exIsts. ~purpo~ • The reason for which something ~xlsts or Is done. maM, or used. ~ J~meniFY; Arty featui'~ that provides or IlJ.Cr~ases I comfort. convenience. or pleasure. , ''-? i economy ._ ',..f . ~refut. t~rifty. and efficient use and m3nagement of resources. ~~n' Astandard, 1'111:, or prinCiple on wh!ch a Judgment ordecision may ~e ~ased. J dmlm-i , An .ss~~.given. or otherwIse c:fetennlndd bct or proposition from which conclusions may I?edrawn or decisions mac:fe. elnt~: fiicri3td li:enes5 or model of somethlog anticIpated for testing and evaluatbn. ~ model : . A';rifnfiture represent3tlon, USIJ.3 ny built to scali:. to show the appearance or construction ofsomething. jmoclc~up: . ' AfuH-s!ziJ modelof 3 Uulkllng or structure. bullt accurately to scale for study, testing. or teaching. .U5t ;rasu!1jtct asystem or process to such conditions or operations as will lead to acritical evaluatlon of a!71IIt!e5 01' p~rform3nce .ind subsequent acceptance or rejection. /, I, , I LJ L L L L L L L L L L L
  • 59.
    ._, I r 1 ~ I j :;'l, fI rI rI f' t I ! ~..! The f#culty or power of compre~ Inferring. or thinking In ,norderiy.l'ltlonJl way. o }.0 ) o-----~) fa~ The pTay of the mind through which 'il$cns are summoned. esp. mentallnventC1s that are whimsical. playful. ana characteristically removed from re4nty. --- iDESIGN I crutivity , The aPillty'tO transcend traditional Ideas. patterns. or relationships and to Initiate meaningful new lkas. forms. or Interpretations. ,,/ -e-nv-I-slc-n:-'-------~ irrt.l4~" To rorintmental plctvre of a. >>A rr.en61 representation of ,origiral~i The creative ability to Imagine or express In an Independent and Individual manner. future possibility. • - '-, / sorr.ethlng previously perceived In the 3b~nce of the 0~lnalstlmulu5. i . irrt3~in3ticn : The faculty of fontilng mental Images The powerof recombining former '. : or concepts of wh3t Is not present to experiences In the creation of nell' '. - ,: the senses or perceived In reality. IITt3ge5 directed at aspeclf1c g031 . IJ --.-•••- ~~Inthesolutlonofa' ..., ""'_'_______~~•.•••-~Q/,~: _ ..~_.._ ~..._._....,..-.........4-...--.-................-...-...... Kthoughtor notion resulting from .' mentalaW3reness. understanding. or .:t yro~;:;8 .~ ~~ '" 'Toreg3fd'an Ide3 orconupt 3S h~~ somefmn ofo~tlve ~Irty outside ofthe mind. ~~~} 10 ~nlmate orper-rneate with a ~rtk:ular fom. sul;>stance. qUJl1ty. or distinction. ~a.dd~; , To a'ir~theefforts or attention of. he~: "." " To rttrut anahold fast Py Influeta or powu. The act or powerof antlcipatl~ that which will or may come to be. I ~~~ Th'e faculty-ofsetllng things In their tnJe relations orofevaluating their relative significance. vieW~t Apart'lcular manner or mode of Iocl:lng at or regardin~ something. , asp~) Away In which athll19 may ~ viewed or re<jarded. ~pnctU ;---~Efl------- ~r)', .A.c-tu3r~nu or application of A~tr3ct thought or 5pecula~cr. principles. asd1stll19ulshed from theory. resultIng In asystem of a5sumF~~5 ! or principles used in analyzing. ; 1'e<11 ,~ explaining, or predicting phenorr~.a. ~vfn9 ot>~e. ve;rtfuple. and Independent arid prc~ orfollowed 3S the b-a% ros~. 3S op~ to ~1"i1 arttflclal or of2Ctlon. Hlusory. I I ! -~I • Anu.ofthings r'e!JardeJ as forming a grotJp ry ~ of common attrll:rutes or char.lCterls1lc.s. , ap~~ : ~hl~.wtthout rdereru to concrete re3l1ty or ap;irtlcuur Instance. Rri~neJP~ Aftirld3'mental anacomprehensr.e ;,.,.. tnJth. orassumption gc"Yernlng x-;~. procedure. or amngement. arc~-·····--·-·-····..·-····-·-····· ..~.. . e ;,V;n cW~~or pattem on which all ~ thl~s oftM ~me kinJ are copied or ~ased. ~.~i .' AreproJ'uctlooof3nofiginai. ~ ~ prototype : ~ An ~rly and typical example that exhl~tts the esse~J fe3tures of aclass or group t model anJ on which bter st3qes are ~ased or ' eJ. An rumple serving 3S 3 patte~~ Jlld.; for Imitation or emulation In tr.e creation of something, , ~~pt A'ri1entallmage or formulation of what somethIng Is orought to be. esp. an Idea generalized from partlcula r characteristIcs or Instances. des~n conceyt Aconcept for tl1eform. structure. and fe3tures ofaI1Ulldlng orotr.er construction. represented graphically Py diagrams. plans. orother drawings. ~~ An un.::lerlylng org3nlzatlonal pattern orstructurefor ades41n. --'~(_-l-.. proia, The original scheme for adeslgn presented In the form ofa sketch outlining Its spectflc char.1cter. to pe developed In detail In later studies. ~ph!J.r; M object;acUvtty. orIdea used In place ci another to s~gest alikeness ~rWeen them. as appl1ed to tile stating and solution of proPierns that Involves free use of T =~cr ,eatlve processes. esp. ~phor and anJ10gy In Informal a-nltogy ( . Interchange within asmall group of Asimilarity In some particulars diverse Individuals. ~ween things otherwise dissimilar. ~tf...1I0glcal Inference !rased on the ~ - '- ~mptlon that If two things are /lY'~ ..:' ._ [lIOWT'Itoi1ealiktlnsomeres::uts. .,-../ / / .. ' ~LP::=~f3CUItYofknoWlng w1thoot evident ratlonal thought and Inference. tBDJ]wf5~~, ~tIon orreftectlon on a subject or idea. resultln~ In aconclusion Inferred from Incomplete or Inconclusive evidence. . am~uity The state 0'7quality of pelng susceptlble to uncerta!nty of meaning or multiple Interpretation. ~renJiFity An 3pt!tudeforma[1119 deslrable and unexpu-tecl discoveries I1y accident. ~klent, AfortUitous circumstance. qU3!ity. or characteristic 59
  • 60.
    DOME AvaufW structure havinga circular plan and usually the form ofaportion of. spnere, so constnJcW 2S to exert an equal thrust in all directWns. ~ucerdcme Adome ~ the form ofasegment of a ~,lI'ftlIItS,cent.er I'd PeIcw the springing 11M Asaucerdome Is partlcularIy salsItlve tc budhng uI'Jer3n ~.emaIloaa. radl.aldome A dome l1uilt with stu! or tlmPer trusses amn¥d In 3 raalalll".Jnner 3na connected Coy polygon..Irings at various heights. 60 ._~.....-.......- meridiana! line ."" ACUllleJ hM aescrli:1lng avertical ,/ section cut thro~h the axis of a rotatlort31 surface. roo................... hoop nne I AcirculAr line aescrl17lng ahOrizontal , section cut perpendIcular to the axis of arotational surface. .-semicircular dome Adome havlng theform ofa hemlsp~re. ./... rr;ll$ItIon from merldiofl3l to hoop .-' forces 0CCIJr5 atanangleoffrom 45"to 6Q' from the verticalaxis for mostload conditJons. / hoop forc.e .~..-.----- ......- ..-.---.---~~' Aforce acting along a hoop line of a dome structure, perpendlcular to meridlon3Iforces. Hoop forces, whIch rtstraln the out-of-plane movement of the meridional strips In the shell of adome, 3rtcompressive In the upper zone ana~sife In the lower zone. meridianal force ~........---........ Aforce acting along ameridional line of adome structure, always compressive underfull vertical loadIng. ! conb!n the outward components of ; the rr.eridIonai forces. In 3 concrete .: dome, thIs ring Is thickened and .IT" i ;.e~~io~~~ngthe l7aseofil acme tc ! rtlnforuJ tc ~ndle the ~ndlng ----lJ':.:>..----<">----'7"lIr+- stresses C3usea by the differing elastic deformations of the ring and 5chwedler dome Asteel dome having memPers which follow the lines of 1atit<Jdeand longitude, and a third set ofdla~nals completing the triangulation, shell ~ttiudome . Astul dome structure havIng meml1ers which follow thecircles of latltuae. and two sets of diagonals replaCIng the lines of longitude and formIng a series of Isosceles triangles. 11 11 11 great circle The cIrcle ofgreatest d13meter that can ~e drawn on a sphere. geodesic dome Astul dome havIng members which follow thrte principal sets of9rtat cIrcles Intersecting at ~ subdlvldlr.g the acme surface Into;l series of ~uil3teral spherical trlanqles. t, !
  • 61.
    'I ~l l 'l l 1 :.------------------------ -- -..---------- r·-tb.~cl : A'superstructure crownIng aroof or dome : havIng open or windowed walls to let In ltght andalr. ,cupou AI1ght structure on adome or roof. serving 35 al:>elfry.1antern. or belvedere. It.lml1our· 'The vertiCal part of acupola. ..··~---llrrterdome . ,/ The space betJeen the Inner and outer ~ shells of adome. ' }-1~3rne 1 " Adormer window In a roof or spire. ~) L, '.- .----. Whispering gallei'y J. space or gallerJ ueneath " dome or i;1 vault In wh1ch low sounds produced I at any ofcertain points are clearly band.age .:.. audible at certain other dIstant olnts. Astrap. rIng. orchaln placed around a structure to secure and hold Its parts together. as around the springIng of a aome, DOME ..-------.-..-..-...~ oculu't .{ AdlrC~iaropenlng. esp. one at the crown of adame. semiaome, H3ff adome formed by avertical section. as (Nllr asem1clrcular apse. cul-de-four ~ Asemldome or:quarter-sphere vault. as O'IU anapse or nlche. pendentive ~ AspherlC.l1 triangle formIng the transition from the cIrcular plan of a dome to the poly~onal pLon ofIts supportIng structure. ----···--------'Iunette i An area In the plane of awall framed by an arch or vault. containing awindow. painting. or sculpture. pe~tttive dome ~ . Aspher1ca1 dome formed by removfng four ~gments SO that It merges with Its perJentlves and sIts on " square pLon. ~'L /' , ~Ulrn;rt~) , An arch or cOrl:>el1ng pullt acroSs the upper Inside comer of asquare tower to support the side ofasuperimposed octagonal structure, 61
  • 62.
    DOOR Ahinged, sliding. orfolding Darner ofwooa, ~l orglass for opening .nd closing an tntranu to a building. room, or c.1binet. sw~ing door A000r ~ tunis on hinges or pivots aPout avertical ~ wncn pushed or pulled. _ i_ _ _ . _ _ _ . pivoteQ door AXcr ~rT1e4 on and 5Wln~ln~ about on a un~roroff~ plvot, asdlstln~ulshed from one hung on hinges. foWtngdoor Adoor IritJI hI~ ~ns that can be ~ fbt ~"Inst one another when ~ 51iJin9 door Adoor ~ opentes or moves Vy st1dlng on. tnGt. usu4I1Iy p3n~1 to. wall. rolling door A ~ge doorconslstlng of horizontal, ~~ metal sbts gUided Vy atnd on eitherslcfe.~lng Vycolllng about4In ~ Ihm ~ the head ofthe door ~ DOD DDD DDD DOD 62 . .~ .: ~' . :' ;::~'. f' ...;.~ ,""':,'.: .:_: :.:. :":'::':." ••• ' • . • . '.' .., l1alanced door Ap~oW door that Is partially courT"...erir.Ilancea foreasier opening and c1051rtg. allU)m.rt:ic door Adoor that opens automaticallyat the approach of aperson or automobile. door opener Amech3nism that automatically opens a door ....hen actuated Vy aradio tr3nsmltter, electric eye, or other device. J-~..................._ ...,-~i:;g:~~~i~;~::sthat permit It to . swing In one direction only. I ......... double-acting door Adoor hung on hinges that permit It to swing In either direction from aclosed position. double doors I, Apair of doors hung In the same doorframe. " " ~ :'-""-Ieaf !i . Ahinged or sliding section of adOOr or shutter. r-----ir----=.......j- .,'''- active leaf ,/ ,. ,-' The leafofapair of"oulne doors to which the latching or locking mechanism Is attached. Also called openIng leaf. ...... ........ ....... Inactive leaf The leafof apair of double doors to which the strike prate Is fastened to receive the latch or bolt ofthe active 1e3f, usuallyflxed In aclosed position by bolts at the top and bottom of the door. Also called standing leaf. / .... astragal ./ Amolding attached to one or boUl meeting stiles of apairof double doors to prevent drafts or the passage of light, nolse, or smoke. mullion -f-l··-,H+···_....I- l:rifolddoor Aslendervertical memPer dlvidlng the opening for ap.lrofdouble doors. sometimes removal7le to permit the passage oflarge oVjects••.-:; r I i I I Afolding door that divides Into two parts. the Inner leafofeach part Pelng hung from an overhead tr3ck and the outer '~af ir ~ ucordlon door , jill j pl.oted ~tthejam". 1--_.......I.J,...LJu.u.=ii.w' Amultileafed door that Is hung from an overhead track andopens by folding back In the mannerof an accordion. rt-'-"Tl I : I I : I I ('f"'-"'" I : I - pocket door Adoorthat slides Intoand outofa recess In adoorway wall I ' I I 1 I I : I 1 : I ~ I __.J i / ,/ ,- / / , / / / ,/ ,- .... ..... ~' .' .... " .' ,/ ' ................, . . --.~- revolving door An entr3nce aoorfor excluding dr.oft.s from the Interiorof ai7ulldlng. COfI$lstlng offour leaves set In the form ofacross and rotatlng aboutacentral vertbl pivot within acylindrically shapedvestl~k:, Some revolvingdoors automatlc3llyfold I:r.Ick In the direction of~ress when pressure Is applied. providing a'eg41 passageway on roth sides of.Ihe door pivot. ......-~ wIng One of the leaves of adouble or revolving door. r ...........~ sweep overhead door Alarge door constructed of one or sever31 !eaves. opening Vy swinging or roiling up to a horizontal position above the aooropenlng. i The flexible weatherstripping along the eages of a revolving door. air curtain Astream ofcompressta air dlrec~ downward across" doorway 50 as ~ form a shield t;{l exclude drafts. I I I ! 1! I i II ( , Y
  • 63.
    :1, 1 I r j r r I r 1 I r 711 r .J I ,.I i I • •1 roughopening ---------.., An opening In awall Into which a doorframe or window frame 15 fitted. pmb Either of the vertlcaIsides of an archway. doorway, or window opening. ~---+-+-- cased opening .K.doorles.s opening finished with trlmworl:. '~------------~.~-----W~------------------ casing ________.___L __<. The finished, often decorative mmewori: around adoor or window openIng, esp. the portion parallel to the surroundIng surface and at ~ht angles to theJaml>s. subca,i/19 Arough casing for adoorway or wlndol'! opening. buc~ ----.---..-....-. Asubframe of wood or metal set In a partltlon to support the finish frame of a door or window. Also called door 1ud, rough puck. doorcle4r311U ------.-.--.~. Thecle3ral1Ce required to prevent __I~ DOOR r:·~·:~~~~~y .-,-c-~-7:'.c~--:-7::::7:~ doorframe " . '..- ",i Theframe ofa aoo11Y3Y, consisting of i I. I i I I· t· ">;':1 twoJambs and ahead or lintel ':J- head :0.1 The uppermost mem~erofadoorframe .::.::1 or window frame. .'.~-' doorjamb ..: Eitherof the two sidepieces of a <j doorframe. "l- '::1 stop I :.~j The proj~lng part of adoorframe '. ':1 agaInst which adoor closes. AlSo callej :':: doorstop. r-"--"",,--,-..u..."~-4 pianted 5tcP AstopfOf'lT'led by attaching amolding to adoorframe or window frame. rauueteJ stop A stop formed Integrally by ara bbetln adoorframe or window frame. blankpmb Adoorjamb having no stops. nor prepared to receive hardware. '-~- sill The horizontal member beneath a door or wIndow opening. --.--.-.....-...- th~hold Inndlng Detween 2 doorand its II ~~~?i;::=,~;-;.. ~: !--'------------- the fau of the loci: stile, usually an ... Inchnatlan of 'fa In. (32 mm) for each 2 In. (51rnm) of door thickness, allowing the door to swing free of the door The sill ofa o.oorH'3y, covering thejoint between twa flooring m3Url31s or provldlr.g weather protection at an exterior door. .~ ..--.- saddle .,/ Araised piece offtoorlng between the .... Jaml1s of adool1Yay. to which adoor fits closely SO as to prevent its binding when oper.ed. frame. ~e:=~~·I·~I~~~,~~~;~-,·~···....-···..·..·..··..--· Maml sectlan of woodwori: directly above a do<xway. ua"~m ----------.---.----------- Acrosspiece separating adoorway from awindow orfanllght above it. uan~cmwindow -----.----.-.-~/ A window aDove the transom of a doorway. Also calW transom, tr~n50m Il~ht. reYe411 ------------------- .. --- The part ofaJamb ofa window or door opening that Is vIsIpk: pet-ween the outer wall surface and the Window or aoor frame. 5wncheon The reveal of a window or door open:ng from the frame to the Innerface of the wall. Also. esconson. scunch~n .-- ------.---- fanlight I~ ;1 ' -=U'=== Veneti3n door Adoorway having aform similar to that of a Palladian window. Asem!clrcular or semleillptical window over adoorway or another window. . -- ~kleli9ht Awindow at the side of adoor or another Window. Also calle.::! wfnglight splay Asurface that makes an oVique angle with another, as where awindow or dooropening widens from the frame toward the face of the waI. •' .__ .. __ . __ ... ,' ,.' ~ ,~ -. ~_t~~ ~~; ::' . --------_... _--- '."---. 63
  • 64.
    DOOR paneledDoor .. ---.- ..• p3nel AdoorhJvlng aframework of sUIes. rails. ana ~ lI1untlns. filled with panels of a;hInlla' 1113teriJt Adistinc;t ~~ or dlvlskln of a wall c.elll~. or door. recessed below or raised 3bove the general level orenclosea by aframe. r3a ~ --- stile 64 Arryof various horizontal memDers framing panels. as in a system of .' panenng. apaneb:l door. window ,.-' IU ::~~c~~~~~~~:_~__________// The uppermost r3il connectJng the j stlk:sc:iap3~ door or winaow I. sa$It. ico..=~~=Zx=-==d IocIcrail ---------------------------- 1------- The ,...ofadoo-that meets the shutt1n4 stile n the level of the ~ i1ottom rail -------------- -----.----- The lowest rail connecting the --D stiles ofapa~ door or wiRdow sa$lt. french door Adoor having rectangular gl3ss panes extenang throughout its length. and often hung In pairs. AlsoCJlled ca~mentdoOl". gra~"ocr Adoor of heat-strengthened or ~pered glass. 'tlth or without ralis exsUits. used primarlly a5 an erTtrance door_ i o louvered door Adoor having alouvered opening for the passage or circulation of air. Also C4l1ed Pllnd £1001"_ D Dutchaoor Adoordivided horizontally 50 that the upper or lower part can De opened or closed separately. Ar,y of various:: ?right memDers fr;;ming panels.;;5 In asystem of paneling. apane!ed door. window sash. or aches~ vf drawers. hi"¥stile The stile of acloer Dy which it Is hung. Alsccalltd hangIng stile. locI: stile The stile of adoor that closes against thefrar.-.e ofthe opening. Also callea shlltting stile. muting stile ~_J Or~ ofthe a!nJtt.l~'-3 stiles In;; pair of douDie doors. vision light Asmallli.aht In the upper portlon cf;; door glazed with clear g1355 for vlew~,~g. louver --------~ ccmf,i~n door An ope-nlng fltW 'r'lith sl.'lnting. An exterior door having aframe fixed or rncvaD!e slats to admit air into which arfferent types of Dut exclude r3ln ana snow or to panels can Doe in~rtea. 35 ascreen pro0Je prlvacy. Also. louvre. for SlJmmer or st.onn sash for winter. f,.tun door Adoor const~.ed of vertical l7oard5 hekl to~her Dy horizo:1cal lr.itter.s and diagonal Dracing. Jip door Adoor hinged ~ be flush with the wall on either skk and treat.eJ sa 35 to Doe Indisu;-niL>te when cbsed. Also. gl1:7 door. storm door AI1 outer or supplemeir'..3'j door. usua!1y glazed. for protecting an erTtr;;lnce :XNr from dr;;lfts. driving /din, or severe we3tr.er. screen door A.1 exterior door havingr-ooJ or ..Iuminum sU!es ana r.lils that hold a wire or pI3S';l:: :nesh to ..dmit air I7Ut ~!ude in~s. I . 1 .: i u I Li L l. L L , L i L
  • 65.
    1 i I l _. iI . :! i.-' t 'i DOOR aajll5table doorframe Adoorfr4me h3vl~ asplit had andJ:Jmbs for InstJl13tlo11In various WJU thld::nesses. prehung docr Adoor hu~ In adoorfume More Ittstall3tlon In awall sometllr.es preflnishecJ and prefltted wtth all neces5Jr)' hardware aM casl~ ~m. acoustical door Adoor hJving • sound-&e3dening cor-e. ~sketed ~ .lang ~ t....t' an.::! sides. and an autolTutic drop ~I along the bo«om. Also ca11ed SOOnd-iIl5ULrti~ doer. .' ----- krIockdownfume sclkJ-ccre door Awood flush door having a solid core of staved lum!1er. partlck: Doard. or a minerai composition. k3~mein door AdoorhJving astructural wood core cl3d with galvanized sheet metal. ~ ~ Amet3! doorirame composed ofthree ormore .._.- we!de.dfnme cutQff:,-top flush door Adoor havl~ smooth-surfaced faces. 1 IIIIIt--core Awooden construction. as In adoor. forming alIacklng for face veneers. cr05s(,anding The plywood or hard!loard veneer Immediately ~eath the face veneers of a flush door. Also. crossl1and. docrskin Asurface veneer ofplywood. hardboard. p13stlc 13mll13te.ormedium densityoverlay. bonded to the crossbandlng or core of a flush door. hollow-ccre door Awood flush door having aframework of stiles and ralls encasing an expanded honeycom!l core of corrugated fI!1erl1oard or agrid of Interlocking horlzontal a vertical wood strips. hollow m~1 door Adoor luving face sheets of light-gauge steei PorJed to a steel channel frame, reinforced wtth channels.• kraft hontj'COm!1 structure. or3 rigid p~stIc­ foam core. r----- L- ____ _ throat rhe opening between the Dackbends of a metal doorframe. backbend/.... The fa~ atthe oUter edge of ametal doorframe that returns to the wall surface. hollowmetalfr;,ame Adoorframe having a head andJamDs formed from asl~le piece of metal. flu5hfraIM Ama.1 c:Ioormnneks~ ned to be Installed durl~ the construCtion ofa masonry or stud wan. drywall frame ~ ~~sforassem!llylnthe Amet31 doorframe th3tls completely set up and welded at t~ factory. Astop having aclosed end that terminates above th~ floor line a45°or90°angle. Alsacalled hospital stop. sanitary stop. Aknockdown frame having adcullle-return backbend for Installation after adrywall partition Is finished. anchor Ar.y of var'.:,..s :netal devices for ~r.a'l~ orc P3rt of astruckJre to arccher. pase anchor Ametal clip or device for securing t~ !;rase of a doorframe to the f.oor. """ i !lpat ~ ..; Aprotect!ve lining, usually of stainless scul. at the !13~ of a doorfrarT1(:. groute.:f frame A metal doorframe completely fll~ with' plastel' or mortar for structural rigidity and Increased fire resistance. double egre!ltS frame Ametal cIoorframe prepared to receive a pall' of single-acting doors that swing In opposite directionS. 65
  • 66.
    DRAWING The art, process,or technique of representi/19 an ol1ject, scene, or ide3 b:t me3ns of lines on a surface. technique A method or procedure for accompl1shl~ adeslrea aim or tas~. as that c:mpbyed Py an artist showing a high ~ru of skill or command of fundament3ls. centour drawing The technique of drawing lines to represent the contours of asubject, without shading or 1T1Oddi~ of form. centour The outnne ofatwo-dimensional shape or PoundIng edges ofII three-dlmenslonal form. modeling The technique of rendtrlng the illUSion of volume. depth. or solidity on atwo- dlmensloni/ S<Jrface Uy shading. 66 freehana drawing The art. process. or technique of drawing ~ hand WIthout the aidofdraftlng Instruments or mechanical devices. esp. for the representatlon of perceptions or the visualization of ideas. grisaille MonoehrolT'.3tic painting In shades of gray to produce 3 three·dlmenslonal effect. F'EKCEIYlNG lMAGlNIHG -t.. I I I DRAWING _.:..(' ~----"--lZ..' ,{' line ~ .. . Athin, continuous 1TI3r: made on ~ - surfau with apencil, Pe:'!. or ~rush;'?s distinguished from shadi~ or eolor: outline . Aline describing the outer boundary ofa. fjure or object. '. profile An outline ofaform or structure seen or represerrted from the side. c~,-cont.our ar3wi~ The technique ofdraw1114 hoes to represent a~ of cuts across the surface ofII fonn rather than,tts edges. ~. f / gesture drawing The technique of drawing asingle or multlple lines freely and quldly as asubject Is scanneJ and percepUoos ofvolume. rn.oss. movement. and significant details are projecW onto the drawing surface. In contrast to contour drawing, gesture drawing generally p~s from the whole to the p3rts. "g~ A1r'CI'em...~ ofthe b na.arm. had. f.Ice. or ?t~=:F==i~="':::;:- body th3t expresses an Idea. opinion. or .,'c:motlon. movement The effect or Illusion of motlon conveyed by the relationship of structural elements In a (l~:::::::~:;::-;:;=;:=:~~~-deslgn or compositIon. reg ulating line - A o~ drawn to measure or-express a~.gnrrent. SC3le. or proportlon. trace Aline I~htly drawn to record ali~nment or Irasurerr.ent. siuaifl9 The r:ndering of Ilght.nd dark V4lluesln ~ drll~ to Cre3te the Uluslon of three- dimensionality. represent light arJ s-ha.1ow. orgive the effect of color.. h.ttching Sh3dlng composed of flne "ncs drawn In close proxlmlty. ~,h.ttchin9 ShadlI14 composed of two or more series of Intersecting parallel noes. I Il ~ ~~~ng L Shadlng by means of anetworl: of random. multldlrectlonallines. .. high-key Havir":l chiefly l1~ht tones with little ccntr.;st. stippling , Sh3dlng by means ofdots, small spots. or short stroKes. key The dominant tonal value of adrawIng or palntlng. low-key Having eniefty dart tones with nttle contrast.
  • 67.
    r t I ' r I I • r r L I I ,ketch Asimply OfhJsUyexecuted drawing or palrrtll1g rep~ the essential ftatures of an ~ Of scene without the detJils. often I1Ude as aprellmlna ry study. sway Adrawing executed as an educational e~rcise, productd as aprelimina ry to a final wor1:. Of made to record ol7servatlons. ScmetImes referreJ to 35 3 referential dr.1wing. conception Ad~wing of so~lng Chat dees not yet exist. drm Aprelimlna!), s1:~ of adeslgnOf pian. esp. one subject to revision. es-quis5e A $l:etch showl~ the general feJtures of a design or plan. epure AflJrt-SQIe, ~ drawing done 0f1 3 wall. fbao.orother~sumce. from which are ~ the patterns forvarlous Dulidlng elar.ent5. cartoon AflJ~-sca~dra~ of it motif(X'des~n. to ~ :.toInsfmed In preparation f.x afresco. lI1OS.Oic. ort3~try. renderi~ A.:Inwing. r:sp. apers~ive. of a ~Iiding Of'" intuol" spau.artlstlcalfy deHneatln~ 1T'.oI ~rl3Is. shades 3nJ shadows: USU3 Ify done for tM pu~ of presentatlon and ~U3Sort tfom~roeil mass Aunlf'.ed area of Ilght. shade. or color that deflnes shape orform In general outhne rather than In detail. passage An area. section. or detail of awork. esp. with respect to Its qualities of executcf1. Adrawl~ Cf' painting In which objects are rendered In extremely fine detail to emph3slze the Hiusior c' tactile 3-j sp3tlal qU3rtt ies DRAWING design drawing Any ofthe drawings made to aid In the vlsuaflzatlon. exploration. and evaluation of aconcept In the design process. presentation drawing Any ofasetofdesign drawings made to artlculate and communicateadesign concept or proposal. as for exhibition. review. or puDllcatlon. +. .', )?)~ . $I:} ,6 ~~ 'I/? ,( r; ..~ ~~~. • :P ~', ~~~~~~~ / V' '. J . . 1-..-- /Ah_ "', M~I ,//~ ?fE..~ vignette Adrawing that Is shaded off gradually Into the surrounding paper so as to leave no definite line at the border. analyti~ue An elevato!l drawing of afacade. surrounded by adewratlve arrangement of drawings of Important details 3 nel somei:lmes apl3nor section of the fac3ae. 67
  • 68.
    DRAWING drafting Drawing done withthe aid of such Instruments as T-squares.triangles. compasses. ana scales. esp. for the sys~tIc representation and dlmenslonal specification ofarchItectural and e~lneerlng structures. Also called muhanlcaf drawing. o17jectline Asolid line representing acontour of an oi>ject. tUshed line --------~=---+---+-! AIn-oken nne conslstl~ ofshort. closely spaced strokes. used esp. to represent object nnes that are hidden or removed from view. dotUd line ---------H+-trH==--~1___l AIn-oken line conslstln!) ofaseries of closefy spaced Oots. sometimes used In place of adashed line. unUrline AIm*en nne consIstlng ofrelatIVely long segments separated by sIngle dashes or dots. used to represent the axis ofa symmetrlcaIelementor composition. 68 '. crowfoot AV-shaped mark.the apex ofwhich Is a reference point. leader Ashort line leading the r;ye from anote or dlmenslon to areference point. nne. or area. 17reakline AI1roi:en line consisting of relatIVely long segmentsJoined by shortzlgZ3g strokes. . used to cut offaportion ofadrawing. o grid Arectangular system of lines and coordInates serving as a reference for locating ana re1uiJtlng the elements of a plan. co",truction drawings The portlon of the contract documents snowl~ in ucurate graphic or pictorial fonn the ~lgn.lccatlon. dlmenslon5. and relatlonshlps ofthe elements ofaprojxt. Also C311edCOfTt.nct drawings. wori:fng I dr.iwi"4s. ~I An emrosslng stamp used l1y a licensed architect. engineer. orotherdesign professlol13t on Wltract drawings ana spectftcatlons to show evidence of ~Istratlan In the: state wMre the work Is to ~ perfonTltJ. /~~ ( ~-'. . exten~ion line Ahne e:xtendI~ from an edge or fe3ture of an o~. to which adlmenslon hne Is drawn. dime~lon line j Aline terminated by arrows. snort sl3shes. or dots. lnalcatlng the extent or magnltude ofapart or the: whole. and along which measurements are scaled and Indicated. 'l I ..... ! L.
  • 69.
    r I ., 1 I ~'"' !"I ~I l 1 ! 1 ~r1ptive teCmetry Thetheory of ","*Ing project1ons of three- dlmtl'l.Slonal o~ on ap~ne surface In order to deduce their geometric properties and relatlonshys. <~I~ 11===fF ". ···••.~1in9 ~dpl.1a ----~ ApI.;nofaroom as seen from aw,re hit having its celhllf Sijrf3ces arld elements proj«ted dowr.ard upon It so that what would appear to1he right whc1 seen from ~ appears 011 the plan to the left. Also calbi ~ cef1l~ plln. mmi~pUn ApUn showing the pattern, elements, and CO!UIeCt1ons of die: structur.llframe for a fu.;lr or roofof~ butldJrtg, usl~;; system of symrols and draftIng nnewon. XI 1~1====l1 ·...I~===ll ..... c.ontcurline --------~P"TJ_+--:"'"'T! ! ~:::::~;~~:p:::c r(/,//(' c.ontc~'~------------~~~~~~~~II~~~f The d!fferenu I.e!MtIon represented by t3Ch COI1tour l1neon 3 top::graphlc plan or map. gradi~ p~n A~ nshowing ~ proposeJ ftnlsh contours arld emtlons cf the ground surface of aconWuctlon sI~ narth arrow Agraphic symbd ~ on plans and maps to Indlcate the dlrectloo of north. ~a!e Aproportloo determining the relationship of 3 represtntatlCn to that ~lch It represents. graphic ecale - - - - - - - - - - f A graduated hnearPar Indlcatlnq the proportion ~ a representation and that which It represents ' . . .~._ _ '. __ ~'~. __'l.. _ DRAWING projection The process or technique of representlng 3 thru-d1menslonal o~ by projectlng an its points by str3lgh-e nnes. eitherparallel or converging. to apicture plane. orthcgraphic projection Amethod of projection In whlch a-ehree- dimCf1slonal '*.!ect Is represented by projecting lines perpel1dlcul.3r to aplcture pl.3ne. Also called orthogonal proJection. plan An orthographic projection of the top or sectlon of an o~ect or 5truct<Jre on 3 horlzoa"t31 plane. usually drawn to scale. Also calle.d plan view. floor ptan Aplan of 3 rOOm. suite. or entlre floor of a puildin~ as sun from above after a horlz0n"t31 sectlon ls cut and the upper portion remOr'ea. typlc.:ifly shewing the for:n and arrangement of interlor spaces and their enclosing walls. windows. and doors. poche The walls. columns. and other sof41s of a l:tulldl~ that 3re cut !n 3floor pl3n or sectlon drawlng. tnd1caw.J USl!3fly In plack orby hatching. rocfpL1n Aplan showing the top view of apulkllng. esp. the form of Its roof. ~iU pL1n Aplan showing the form.iocatlon..and orientation of 3 l:tultding or group of 17ulldlngs on 3 site. uSU311y Includlng the dImensions. contours. IandSC3plng and other s19ntf1cant features of the plot. AI50 called plot plan. area plan Aplan showing the principal elements ofa design proj~t In the wider context of Its surrounding en"lron~er.t. 69
  • 70.
    DRAWING &tCtio1t An orthographic proJectlonof an object or structure ;lSft woold appear if cut through by an Intu~ plane to show Its In~1 configuration, usually drawn to 5Q~ eros, S<':ction An ort~raphlc projection of asectIon rruk ~ cuttl~ transversely, esp. at right angles to the ~ axis of an object. Also cai1ea mns.,.erse section. e:b7tWn An ort.hogr#phlc projection Of an object or struct<Jre 00 avertical picture plane p3ratld to one of its sides, usually drawn to SC3~ 70 .shades ana shaaows The casting and rendering ofshades ;Ind shadows, esp. In orthographic views, to conv~ li9ht, surface, form, and depth. shade _ ...... _......_....................... The parts ofasolid that receive no li9ht ~u~ they are tangent to or wmeJ away from a theoretical light SOIIrGe. shadow AdarHlgure cast upon asurface Dy an opaque body Intercepting the rlIYs from atheoretical light source. Iongftudin415Ution An ortkoqraphlc projectIon of;l sectlon made Dy cuttl"1 through the ::Ingest ax!s of an ol1ject. section line) Acerrterllne termInating In aperpenalCular ~rnent with an arrow, used to indIcate where ;I sectlon Is cut In aplan or elevaticn view and the direction In which the sectlon Is to be viewea. opliCiue $eCtion An orth~raphlc projection ofa section made Dy cutting with a plane that Is neither paraIlei nor perpend1 cular to the long axls of an object. ~oo ~~relief An apparent projection from aflat bacl:ground due to contrast, crt3tlng t~.e Illusion of three dimensions. r-·lceal color . The naturlll colorof a part~ular09ject .s it . would a~r In white tlght. I It I It " L. III lu Ii i , ~ U ! Lj I:
  • 71.
    r1 il r r r r J r 1 f- p.1r.1line drawi~ Arry ofv.ri:lesslnglc-vk:wdrawings ,hm~ by pml1ellnes rtmaln~ pml1el to e3Cb other rather tn.311 converging ~ In linear perspective. ph.1ntcm A part of" dr3wlng that Is made tn!1S~renttv permlt reprtSelTt~ ofdetJlis otherwise hidden fromrlew. c~~ A dr;l~ or,"ode! havi~ an ouw StCtlon relnO'leQ to dispby tM ~ior. exploded new A drawlng ~ shows eM Individual parts of awoctureor coostructlon separ.rt:dy M Ind~ their proper re1.atlonships to each other and to the whole. Also calW ~naed view. phantcm line A brol:en anc wnslstlr.~ of rela tively 10"9 ~rno'Its separa~ by two short dJs~or dots. used to represent aproperty IIne,;in alternative posltlcn of apart of an object. or the relativ~ po9t!on of J n •~ntPJrt. dimetric projection An axonometrlc projectlon ofathree- dimensional object incnnea to the picture plane In such a way that twoofIts principal axes a~ t'qual1y foreshortened and the third appears longer orshorter than the other two. trimetric projection An axonometric projection ofa three-d1mension31 object Inclined to the picture plane In such away that all th clpal axes 're fo ata d'- en cavalier drawing A parallne drawing of an oblique prOJection. having the receding lines perpendicular to the picture plane drawn to the same scale as the lines parallel to the picture plane. isametric Apar.lMne draw',~ cf an Isometric prdp:;tlon. h1vi~4 .!llInes pml!el to the princIpal axes .;l,":lt'ln to true leryth at the sa;r,e scale. c3Pinet drawing Aparanne dra.... :~:f an oblique proJection. h3Ylng 311 lines pra'iel to the picture plaM drawn to exact scale, and the recedlng I1nes perperdicular tc j,e picture pl3re reduced to h3:f sc3le. DRAWING .1xonometrlc projecticn The orthographic projection ofathree- dimensional object Inclined to the picture pllne In such a WilY that its three principal axes are foreshortened. 3xonometric Aparaline drawing of an axonome~ric projection. haVing all lines parallel to the thru principal axes drawn to scale Dut diagonal and curved lines distorted. is-ometrk: projection An axcnametrlc projection of athru- dimensional object having its princlp31 faces equally IncUned to the picture pI.ne so thatIts three principal axes are equally foreshortened_ opli'tue projection Amethod of projectlon In which athree- dimensional oOJect. having one princlPJI face parallel to the picture pf3M.ls.cepre5e1'lW D:i projecting parallel nnes at some angle other th3n 90°to the picture plane. oPliqLle Aparaline drawing of an oDlique projectlc;1. having all nnes and faces parallel to the picture pllne drawn to exact scale. and all reced1n~ nnes perpend1cullrto the picture plane sMWT13t any convenient angle othl!1" th3n 90~ sometlrT'es at areduced scale to offset the appearance of distortion. 71
  • 72.
    DRAWING perspective Ivry afV2.nouS ~hnlquesfor representlng th.ree-dlmenslonal objects ana spatlal rtutlonshlpson atwo-dlmenslonalsurfact as they might appear to the eye. liij ~I perspective A~hnlque for rendering depth ordlstance !Iy muting ~ hue, tone. ana dlstlnctness ofobjects perceived as receding from the plcture·plane. Also called atmospheric perspective. linear perspective Amathem3tlcalsystem for representlng three-dlmenslonal oDjects and spatlal relationshipson atwo-almenslonalsurface loy means ofperspective projectlon_ ~pectJve proFtion Amhoc:Iofprojection In which a three· dlrnenslonalobject Is rtp~nte.d !rt projectinganIts points to ap!cture plane !Iy straight linesconverging at an ~rlly flxed point representJng the eye of the vlewer_ The illusion of sp3U or ~pth deplcW on a means. as aerial perspective. contlnuity of continuityof outline Af.Xhnlque for representIng depth or d1stance by emp/13stzlng the contlnulty of the contour of a shape perceived as "clng In front ana conceaNng a part of another Pehlnd It. pictorial space ~ two-dimensional sumce by various graphic X rn.o",,,,,,al~tIc~, _ i, - -- - ----->-- . _' 1--.... - ... -_..., ~patUl edge ___ An edge of an object or surface separated from Its bacl::ground by dn InU:r;a1 of space. denne3tea by a thlder fine or by asharI ~ contrast In value or texture. ;::r ' vertlc~llocn:lon A~hnlque for representlng depth or distance !rtplacing dlst.ntobjects h~her In the picture plane than otjects ~ed ;;as being closer. ~ize perspective ... ~hnlque for representlng depth or dist;;ance !rtreducing the size ofobjects pcruIvedas receding from the picture plane. ""':.:'<"f.:- t:;: :;;; hi Uxture p~pectlve A~hnlque for representlng depth or distance by graaU311y IncreaslM4 the density ofthe texture of a sumce perceived as receding from the plctore pl4ne. r- picture pl4ne j An Imaginary transparent plane. coexlstent I wft:h the drawing surface. on whk;h the I lma~ ofathree-dimensional o!7je.ct Is ~;:~~I~·th~·I~-~~·~-·-·~~~~~~~~~ the centl'2laxis ofvision and the plcture I ! projected. In Nnear persp-ectlve. arty line or pl4ne colnck:ltnt with the picture planec;an Ve drawn to exact scale. pbne In hnearperspectlve. ~~II~~llli,~Jlllii~~§~~=J'''''--vanishing point !5'btionpoint ..-- •.•.••••••••••.-.... ,/ Ap?lnttowardwhlchnualngpmllellines Aflxt.d point III spare representlng a / appe3rtoconver~ In llnedr perspective. slC'lg~eye dthe viewerIn hnear :' 1oc3teaat the point where aslghtllr.e perspectlve. / parallel to the set of lines Intersects the ccne ofvi~lon The field ofvision I'2dlatlng outward from the eyeof theviewer In nnear perspectlve. deflnedby slghtllnes forming alS°to:30° angle wft~ the central axis ofvlslon. The cone ofvision serves as aguJae In tkt.ermlnlng what ~n ~ drawn In hne;lr perspective wfthout the appearance of distortion. 72 • picture plane. -4 central.1xf~ ofvf~ion Theslghtllne InalcatlM4 the direction In which the viewer Is looking In linear .perspectlve. perpendicular to the picture p!a~e. horizon line Ahn.e representlng th., intersection of the picture planeanda horizontal plane through the eye of the viewer In n~r perspective. ground line Ahorizontal line representlng the Irrtersectlon of the ground pbne;;ana the picture plane In linear perspect~e. Also called "'&aline. .- ground pl~n6 Ahorizontal plane of reference from which vertlc31 measurements can ~ taken In linear perspectlve. usually the ~ar.e . supporting the object depicted or on which the viewer stands. I ~ i P I ~
  • 73.
    · "I r "'If f I l.o.l ... I 1 1 ;'1 I t.~! ccnvtrgence The apparentmovemertt of parallel lines towara "cammon v.nlshlng polrtt 3S they reude. usea In linear ~lYe to convey an HkJsloo of space anadepth. diagonal vanishing point AV3nfshlrtg polnt for aset of horizontal hnes receding at a45°~1e to the picture plane In hne"r pe~ Also called diagonal point. distance pOint. ---.-- ..' Par;lUellines rising upw3rdas they / ~WiH3ppe3rt<JCOtTVerge' / sornewhert ~ the horizon line. .... ,. V3n~hlng trace P"rallellinesperpenJicul.1rt<J the picturepune tt{lIappe3r t<J ~nverge at the centerofvision. ~-------1 horizon line Pmllellinesp;u-allel t<J thepicturt pl.1neret31n theirorientatlon and Will netappeart<J con~ge. I DRAWING peNpectJve A arawlng of the perspective projectlon of an aDject or scene. characterlzed chlefty l1y convergence ana foreshortenIn!!. .- --~-.-.- j-"- - .......• foreshortening wapparentcontractlon ordlstortlan ofa represented line or shape that 15 not parallel to the picture plane. conveying an iIIuslon ofexte~slon or projection In space. one-point per5pective Ahnear perspectiveof arectangular ODJect orvolume having aprinCipal face parallel with the picture plane. so that vertlc3lllnes parallel to the p1cture plane remain vertlc3l, horizontal lines parallel to the picture p13ne remain horizontal. and horizontal lines perpendicular to the picture plane appe3r AIlne along which all sets of receding p-JI'3/1ell1nes Iyfng In the same or parallel planes will appear to converge In linear perspective. .,.c..--,-~~-~--I--+--1---=~-'~+-~~-:>"'---':"~J . to canverge at the center ofvision. fd.d IMs sloping dol+f1W1rdas theyrmJe wfflappex tc~nverge ~ere Pelow th~ horizon fine. an.3 morpho,ls Adlston:eJ 11r139t: that appe3r5 In n3tural fOl1l1 only wh~n '(IeweJ at a~~I 3"!!Ie or reflected from acUr.'W mirror. graphiC mea,uring point AV3nlshlng point for aset of parallel lines used In transferring scaled measurements the picture plane to lines recedlM!J In linear Ive. '----' me3,urlng line ...---..--.~ Any nne colncldent with or parallel to the picture pl3ne. as the ground line... ' which can Pc used to take ... measurements In "nea.~,~rs~~. horizon line Of or relating to pictorial representation, esp. that which depfcts In aclear and effective 1T13nnu. View 3t" shallow angle from thispoint Parallellines which art hCriz0nt31M not pe~dicul3r t<J thep~ plane WiUappear to ~rrYf:rge somewh~ en t.~~ horizon /in~. isocephalic Having the heads ofall fi9ures at approximately the same level Also. ~phalor lOt-~ two-point per5peaive A"near perspective of arectangular aDject or volume havll14 twoprincipal faces oblique ;.0 the picture pl3M. 50 th3t vertical nn~ parallel to the picture pl3ne remain 'r'rnc31 and two horIzo1TtaI sets ofparallel lines ol7ilque to the p1cture plane appear to C011'r'erge at two vanishing points. 0I1~ to the left and the other to the right. diJg<'naf •.- ..-...-...--.--..-.----.... Astraight line connectlng two . IlOrI3dpcen't angl.es of arectangle. used .... 111 S1JpdMdlng a whole Into . propor..lonate parts or multiplying" '. ··~~Ic unit of measurement or space.. three-point ptr5pectlve Alinear perspective of arectangular object or volume having all prinCipal faces o~nqu~ to the picture p13M. so th3t the thr~ principal sets ofparallel nnes appear to converge at three different I'3nlshir,~ points. 73
  • 74.
    ELECTRICITY The sciena dealingwith the physical pheno~ arising from the existence and interaction of electric charges. electric wrge The lntrinsW; property of lNtter giving rise to an electr1; phenomena, occurring in two forms arl1itnn1y given posttlve and negative alge~ralc ~ns and rr.easured in coulom~s. Opposite ~rges attract while li~e charges repel each oU1er. coulomp The 51 unitofelectric cfmge, t:qual to the quantltyofelectricity transferred across a woauctorloy :a current ofone ampere In one second. Abk.: C Ii '. ~agt!ioftwo or more cells connected together to produce electric current. electromotive force I cell Adevice for converting chemical into The energy per unIt chargeavalla~1e for erectric energy, usually consisting of a conversion from achemical, mechanical, or receptacle with electrodes in an other form of energy lllto electrical energy, I ' electrolyte. Also called electric cell, or vice versa, In aconversion device as a I galvanic cell,voltaic cell. ~attery, generator, or motor. A~h.: emf •.... "'.'. potential difference ! electrolyte The voltage difference Petween two points I Anonmetallic conducting medium In which E~~::~~:::~r~:~::w Y :":~::5:,~:::t:~~::::t"~~"' potential / j ::::~:vesanunmetallic medium. (}:=~ ~) ~;;;~?f':~~:~' ( r_m--u~u .--..... ~,,:~~"~""r~rof'Pri~~,err~ i-----.o---t-----<).o-,~-~-..... llll.11 +-".'." ...., ~~~:Iveterminal ofaprimal)' celf or I f.ow: curnnt j w= VxA ----r- power ....l The proaua of potential difference and CUi1"el1t Itt J direct-currentcircuit. In an atternatln§ current circuit. power 15 t:qUJI to t1le ~ of the effe:ctlve voltage, the effectlve Cll!'Tent. ana the cosine of the p~se 2f141eretwetn current 2na voltage. wrtt The 51 unitofpo-""er, eqUJI to oneJoule per ~ortothe power ~ by a currentof0IIe ;Impere flowing across a potential ctfference ofone volt. APlir.: W ~e An amountof power, esp. the power required to oper.rte an electrical device or applial1Ce, expressed in watts. kilowatt A tIf1itofpower, equal to 1.000 watts. A~!7r.: leW lei!ow;rtt--Jour A unit ofene-rgy, equal to the energy transferredor expenkd by one kilowatt in one hoUr:;I common unit ofelectric power GOnSIJmptlon. A~.: kWh 74 voltage L ..• circuit .__./ ./ f'otentl31 difference or electromotive force The complete path of an electric expresStd In volts: analogous to pressure In current, including the SOurce of electriC water flow. energy. volt The 5/ unit of potential difference and eIecWmotlve force, defined as the dlfferenu ofeb=tric potentlall1etween two points of2 conductorcarrying acon~i1t curren't ofone :ampere, when the power dlsslp2ted Pe'tween the points Is t:qua! to one W3tt. A~r.: V current •...•. ~ The rate of flow ofelectric charge In a circuit per unit time, measured in amperes. More therrmngfeJectrlcttyw.l5 fuDy ~,It ~S3SsumeJ th3t3 JlrtCt aJrmrt fJoweJ fi-onI; positivepoint ~3 neg3tlveone. ThIsconvention Isstiffusedtren though electrons flowin the oppositedfrectlcn, from n~tiY~ r;,positive. am~e series •............................_ ..' .. An .rrangementofcomponents 1n;;:1 electric circuit In which the same currentflows through each component In tum without pranchlng. parallel •.•......•..•.-. - .....-..........•. An arrangement ofcomponents In an electric circuit In which all positive terminals are connected to one conductor and a/l negative terminals areconnected to oil second conductor, the same voltage Dtlng applied to each component. resist.1nce ~ .... ..j Theopposition of aconductor to the flow ofcurrent. causing some of the electric ener~ to ~ transformed Into he4t 2nd usUi11y measure4ln ohms. A~Pr.:R ohm The Sf unit ofelectrical resistance. t:qual to the resistance ofaconductor In which apatentl31 difference ofone volt produces acurrent ofone ampere. Syml7ol:0 storage ~ttery. resistivity The resistance per unit length of a sul>stan~ with aunit cr05s·sectlon.a1 area. Also called spec;i& reslst.an~. ccnductMty AIT1e3sure of the auliltyofasul>stance to conduct electric current, equal to the neclprocal of the resistivity of the sul>stance. Also called specific conductance. The ~asic 51 unit ofelectric current, t:quivalent to aflow ofone couloml1 per second or to the steady current producea !Iyone volt applied across aresistance of one ohm. A~!n'.: A Ohm's law •....- ........-...-................- I =VIR The law that for any circuit the electric amperage The strength ofan electric current measured or expressed In amperes: analogous to the rate of water flow. current Is directly proportional to the voltage and Inverselyproportional to the resistance. Joule's law The principle that the rate of production of heat by adirect Current is dlnectly proportional to the resistance of the circuit and to the square of the current. ~ j I U I P I
  • 75.
    r i ¥Mra-tcr A mJChlM thatconverts mechanical e~rgy Into electrblenertr:J. alttrtutor Ageneratorfor producing alternating current. ELECTRICITY ~di_wm~ ~ An electric currentflowing In onedIrection ~ . only and having amagnitude that does not ~ . time vary or varies only slightly. Abbr.: DC r--------------------l electric motor ---------:'i~ - : .. alternating current An electric current that reverses directio~ at regularly recurring Intervals, having 3 magnitude that varies In asinusoidal manner. Al:rbr.: AC A macnine that converts electric power I I Into muhanlcal energy. I : I , arl113ture ----_.______._. __.____ .l.. ..___ ----- _. - I The main cum:nt-canyfng winding of a 1_ " I vott-ampere ;=:::~7nhd~~d. L~___~~,~·~~-----------J r------------------- i .,~' I I Aunit ofelectric measurement, equal t<J the product ofonevolt and one ampere, equivalent to one watt for dlrect·current systems and a unit ofapparent power fer alternating·current systems. Abbr.: VA l1r~h •.-...____~._..__.._-........... A~ orcarronconductor serving ta maintain electric contact !?etween fixed and mOvIng elelnents In amotor or generat.?r. ill ~rviu The supplyi~ of uUlitles, as water, gas, and ~~Ity. ~ulred ordemanded by the pu~c.. line drop The decre3S<lln voltage between two polnts 011 a power!Ine, usually cause.:! by res!st3T1ce or leabge alone the line. 5e"";~ entranuconductor _........._ .. _...._ The portlon of 3 servuconducr.or ~ng~3~~~or~~u Ia~ral to the serke equipment of a buikflng. 'tIf<iItt-hour meter -.....--. Ameter for rne;lS~ and recording the 'iuartmj' of eleGtric powerconsumed with respect to Clrne. rr-=-=::::----=--- ---------------~- r- -I r- ! tr.InsfonMfvault l I I Aflre-:rated I'0OI1 housing a I I I I I I ~nsfor1f1erandauxlharyequlpment I I : for aI3rge building. usually located on '-rl'J.. ~raJe orPelow~round and ventilated V1 : dlrectly to the outside air. : i L ___________________ -1 I standby genaatcr Agenerator for providing emergency power during 3 power outage. Also c:J11ed emergency generator. uninterruptil1le power supply An emergency system designed to provide power automatically and Instantaneously upon failure of the nomul power supply. I I I I I , ""1..-1__1 - 1--' I I I I I I I I I I I I I core ----.------.----.-.-..--...- ..-t-.... l Amass of Iron or otherferrous I I materIal In an electromagnet. Induction l co!1. ortransformer, 5erVlng to k- transformer concentrate and Intensify the l An e!ectrlG device consIsting of two or more magnetlc ftekl resulting from acurrent _J J ..L _ L I I whlLllngs wounCA on "fiCO same core, wldch In asurrounding coil. I employs the prinCiple of mutual Inductton to coil _________....._...__..._ ..._ ·······r convert vari3tlons ofalternating current in A conductor wound In aspiral form to : I aprimary circuit Into vari3tlons cfvoltage Introduce Inductance Into acircuit. L---------_________J and current In asecondary circuit. high-voltage r- 5u!lstation Operated on, powered by, or / An auxiliary power station where transmitting high voltage. electrical current Is converted. as / from DC to AC, or where voltage Is s"'...epped up or down. (/~1 step-uptransformer Atransformer having fewer turns in the primary winding than In the secondary. senlng to transform low voltage to high voltage. step-down transformer Atransformer havln~ agreater numl7er of turns In the primary wlnJ1ng than In the secondary. serving to transform high voltaqe to low voltage. line volt.1ge The voltage supplied b:t apower Mne, measured at the point of use. 5erviceCOnductor Arry of several conductors extending from 3 main power line or transformer to the --.J service equIpment ofa building. }--....... 5el"lice drop __ :=:-=-=::,;:-_------:!.l The overhead portion of servIce conductors , __ -::. -::.-=..-::.:oo===:-=:-=-=-{""--=--- extending from the nearest utility pole to a - ==--- , bulkllng. ....... ~rviu l.rteral The un.de~~nd portJon of service condUC"tars extendlltjJ from amain power line or ~rtsformer to. bulkllng. --------------------l I5wft(;hg~r room Aroom corTtalnlng tM service equipment for alarge bulkllng. ~l"Ilce equipment The equipment r.ecessary for controlling. metering. and protecting the electric power supply to abulid1ng. located near the entrance of the service conr:!uctors and usually consisting of amain dlsconnect switch and secondary switches, fuses. and circuit breakers. switch!?-oard One or agroup of panels on which are mounted switches. ovucurrent devices, metering Instruments. and buses for controlling anr:! protecting a ~===::C numl7er of electric circuits. Also called swiUhgear. unit substation f~der A'nyofthe conductors extending from the service equipment to various dlStributlon points In a l7ulkllng. Afreestanding enclosure housing a disconnect SWitch, astq1-down transformer, and SWitchgear for a num!lu of electric circuits. I I L ______________________ ~ 75
  • 76.
    ElECTRICllY :-~ live i Electricallyconnected to a pluse Thefr3ctlonaIpart ofaper10d or cycle through which tlme hasadv;i nced. measured from aspecified reference point and often expressed 3S an angle. .--------------------------------,+- souru ofvo/t.age. or electrlc~11y chJrged SO;/S to hJve.3 potential different from thJt of ~rth. Also. hot. dead Not electrically conr,ected to ;J source of voltage. ground --- ..•...._...•.....-_...,..• _. ~- neutral Aconducting connectlon ~tween an . i. Not electrically char~ed. etectrlc circuit or device and the earth t-------'-"'"'----'"t---.---t--"t-"'--~..:.--'---'-"-t'_-+_-_+_--+~ orotherpointofwopotentlaL 9 120V 208V 208V fauft • A1oc31 failure In the Insulatlon one Ie 1C.:)V 120V or continuity ofa conductor. 120Y 2::'; 120V 120V or In the functlonlng of an electrical system. single-phase ____._...._.L_....._.......... J three-phase _..1 short circuit Ofor pertainIng to a circuit energized by an alternating current with one phaseor with phases differing ~ 180°. two-phase Ofor pertaining to acircuit energized Ofor pertainIng to acoml?lnatlon ofthree circuits energized !1y alternatlng currentS or voltages differing In phase I1y one third of a cycleorl20~ An abnDrm3I. usually accidental condition of ~w resistance Detween two points In an electric circuit. resuit1ng In aflow of excess current. Alsa called short. bytwo alternatlng currents or voltages differing In phase ~ OM quarter of a cycle or 9O~ t! / / _r-- -- -- -----1---1 ~!witch -----....---.-----. .... I Themalndlsconr.ectforU!e I -'" .-•.J -1:' I : : / r entlre ~al system ofa I ; ;! I ruildlng.exceptfor.3ny : i· : .: I emergency power systems. I L.._ .__ 1/ I I r- -'- -! I I i : ! r'" f.;~ :' ;. device ccntainlng 3 strip C'" I'Iire of fusible metal ;-.7; melts under the heat r Auced P:texuss c='t~ ~ lr- .cTUptlng the cIrcuit. . I rnwlem~1 "".')'ofvarious metal p;;:rt ~eIow :3000F ~" (:'7C). used as soldu ~ ;;-j in various safety " ~4'~.Alsccaned ...._ plug~ shock The muscular spasms causta P:t an electric current passing through the body. Afuse hooslng " fuSl'c!e fink In aporcelain cupfltt.ed wfth a threadeJ metal base. cartrWge fu5e Afuse havlng aont-Ume or renewable fuslv/e I1nl: enclo$ed man lnsuratlng fiber tuDe. I l ; ; I i : I I ;. i I i!...')'s havIng 41 rrodtlng , f~si~e alloy. :___ knife·!1lak fuse I :.. --l - I ./ A C3~ fuse having ;l nletal ~!ade at I I i each end for makIng ccntact with the -- --...;.- -- .....;.------~ ~a=rdon which are mounted the F= -.=--=-. =.-::: :-"-='====-'="""""'l swftches. fuses. and circuit ,: i Pre3~ersforcontrolflng4lnd Ii ~~ protectlng anum~erofslmllJr: 'I ~ncltcircuits. Installed 'n a l! ~ ;1 : - - : r - . caPlnetand ACCeSslP!e from the I; . 11 .• ... front only. Aisocalled Ii ~ ,-.:r----~ CIl"'Cuitm.ker-~ pandl7~rd. -=========4=~ll ~~ A$fofitch that 4Iutomatlcally Inttml~ an I! --:,- ~.rlc cIrcuIt to prevent excess current "us .....--.._. '-'" .......... _...... "--'Ir" :1 fr..-, damaging apparaws In the cIrcuit or Aheao.'Y conductor. usuaIly In the Ii ~_._"_ ~ causing ~ fire. Acircuit In'eaker I13Y Pc form ofasoIkIcopper b3r. used I~ :' rec'~ and reused witl10ut ~t for collecting. carrying. and n "..-..----+- of i"Y components. Also called ~Ur. dIstc1ht1ng brgeeltctric /l :1 '""'"'t~Also "lied...s~". '.... Ii.!.... :=:--;t~':I:-------------- grounded conductor -............ - -- t -- :j Any ccnductcrofan electrical Jl ,---....------:0'1-------------- fusl~le fink withIn. time-deL1y~ Afuse that klays opening to allow;i short· term ovedc3d to pass. 35 when starting a motor. ground fault Arnoment<iry. usually accldental. grounding ofaconauctlng wire. . ground·fault intempter Acircuit ~ker M 5C1SeS currents caused by groond fa ults ana Instantaneously shuts off ~r Pefure damage or InJury c.n occur.Al7!:>r.: §til system IlTUntlanally connected I: :1 to a ground ccnnectlon. :1 .~.:..____:,~~-_------..__-----_----- grounding electrode Accnductor. as ametal ground rod. ground plate. orcold·water pl~. flrmly embedded In the earth to est3l7lish aground connectlon. 76 L~:==:~~~=~~~~~:~-:j-----r-------------1 ground wire ~.--; ! Aconductor ccnneck.J electrlc : er3 eqUipment or aclrcu:t ioaground L____J connec~.Alsocarlid ~f'oundlng conductor. I; u u u l I L...
  • 77.
    ~. . , I -/ ~--I ~-I I Li 1 ! L l '-I lightnj~rod .-----.--.----..---.-......-...-----.--------" Arry of several conductl~ rods InstJl!eQ at . the top of ;i struct;re;inJ grounded to dlvert Ightl1l~ aWirJ from the structure. .... Also called ;ilr Unnin3L . lightning 3mster Adevice fO!" p~ng electnc equipment from damage I1y lightning or other hlgh- voltage currents. using span: gaps to carry the current to the ¥Ound wtthout f73sslng throogh the device.. 5pari: gap Aspace Petween two termllt3ls or t1.ectrodes. dCrosS whlch;i discharge of electrlctty may pass at a prescrlbeJ voltage. Dr3nch circuit The portlof1 ofan electrical system extend1ng from the ftn.ol overcurrent device protectl~ acircuit to the outlets savea I1y the circuit. [9]1 distriMlon panel I t I I I L-. ______ ...I law-voltage Apand for als;rlbutJ~ power to other panels or to rrctor-s and other heavy pc-wer-consumlnqlcads. Of or pertaIning to acircuit In which alternating current ~elcw 50 volts Is supplied I1y astep-dewn transformer from the normal nne voltage. used In resIdential systems to CO!'Itro1 doom:lls. Intercoms. heating and cooling systems. and rerr.o'..e lighting fixtures. Low·vcttage clrcui:S do not reqUire aprotect,ve raceway. ELECTRICITY load The powerdelivered I1y agenel'3tor or tr'3nsformer. or the power consumed by an appll3nce ordevice. ccnnecUd load The total load on an etearicaIsystem or circuit If all connected apparatus and eqUipment are energized simultaneously. maximum demand The greatest load deliverea to an electrical system or circuit overaspectfled Interval of time. . c:femanafKtor The I'3tlo of the maximum demand to the connected loadof an electrical system. used In estlmatlng the reqUired capacityof the system to account for the prolr.Jlrility that only aportion of the connected load may be applled at any time. c:fiversityfactor The I'3tlo of the sum of the maximum demands on the various parts of an electrical system to the maximum demand on the whole. Io.ac:fflctor The I'3tlo of the average load on an electrical system over aspeclflc perloclof tlrne to the pe3k load occurring In that period. g!ner.al purpo:se circuit Amnch circuit that supplies current to a number of outlets for IlghUng and appll3nces. appliance circuit Amnch circuit that supplies current to one or IT'IOT'e outlets specifically intended for appl13nces. Indlvk:hul cirr,uit Amnch circuit that supplies currerrt Oflly to a slng~ piece ofelxtrlcal equipment. Tl
  • 78.
    ELECTRICITY ~l7!e Asingle Insulated conauctorora Paund or sheathed coml7lnaUon ofconductors Insulated from one another. ..rmored caple Electric calk consisting of two or more Insulated conductors protected by a flexible. helically wound metal wrapping. Also called 6X caiJle. mineral-insulated caple Electric caule consisting ofatul7ular copper she3th con'blnlng one or more cond~rs em~ In ahighly compressed.lnsulatlng refractory mineral nonmebllk; 5~ caple Electric caPle conslstlng oftwo or more Insulatedconduct«s enclosed In a nonmebilic. moisture-resistant.flame- retardant she3th. Alsocalled Romex c;.a£,{e, coawlcaple Acaulefortransmlttlng h~h-frequency telephone. digital. or television signals. conslstlng ofan Insulated conducting tul7e enclosing an Insulated conducting core. shielded caple An electric ca!Jle enclosed within a metaIIIc sheath In orderto reduce the effects of extern.1 electric or magnetic ftelds. conduit A~Pe. pipe. or ductfor enclosln~ and protecting ~Iectrlc wires or cal7le. C'-'-T-_ _-=-l!{() ri9id metal conduit ~-........-.--.......-.,.. He3'fj'-wafled. tul7Ular steel conduitJoined by 5C;ew!ng directly Into <l threaded huu with loci:nuts ana l7ushln3s. =~.:Ia~~:::d~l~j~i~d~··1"'-_____--_--Jt compression or setscrew coop/lngs. Al7k: EMf ~!~~!I~;:~m~~'I'~~~-I~:"'-"~ used for connections ta motvrs or other vlln7tlng equipment. Also called Grunfleld conduit. racewJy ~;:~~~SwlSlydeS~:edLtol hold and .•.•.•/ r'V~."~W-"" res a'lQ calles. ...... &urface raceway _...._....._.../ Ara~ t:lesIgnedfor exposed installation In dry. nonhazardous. / noncorrosN~ locations. multi-outlet assemply _.......- ....,-'/ Asurface-mounted r.tteeway designed to house the electrical wires for acircuit and a series of receptacles. 78 underfloor raceway Araceway suitable for Installation under a floor. often used In offlu I1ulldings to allow for the flexlule placement of power. signal. and telephone ou~!ets. . wire Apnable metallic strand or atwisted or woven assembly of such strands. often Insulated with adlelectrlc material and used as aconductor ofelectricity..~ conduct.?r Asubstance. !:>ody. or device that Cv"nduct5 heat. sound. or electricIty. .' insulator . Amaterial that Is apoor conductor cf electricity. used for separating or supporting conductors to prevent tr.e undesired flow of current. ~reakdown voltage The minimum applied voltage at which a given Insulator I1reaKS down and permits current to pass. dielectric strength The maximum voltage trut can be applled to agiven materi31 without ca using It to !;>red!; down. usually expressed in volts or I::iiovor-..s per unit of thlcl:ness. dielectric Anonconducting substance. junction box An enclosure for housing and protect1ng electric wires or cables that arejoined together In connecting or branchin~ ~Iectr'c circuits. ......_- Knockout .,' Apanel In acasing or box that can readily be removed. as by punching. hammerir~. ex cutting. to provide an opening Into the Interior. grommet Arul7ber or plastic washer Inserted in ;I hole In ametal part to prevent grounding cf" wire passing through the hole. . Vushing f An Insulating and protective Ilning for one Q)"COoJOC"'" pm'"! th"",!h' ho<. An enclosed runway for housing conductors orcal7les. Pu~duct Arigid metal housing for agroup of ~ses Insulated from each other and the eflclosure. Also called Pu5way. cable tray An open metal framewon: for supportln~ Insulated electrical conductors. 1 l~ lJ u 11 I u L I. l ...
  • 79.
    r I J r f r= Jir switch II switch111 whlch tM Interruption of acircuit occurs In air. knife switch ....-- ----- ------------. II form of air swftch In which a "" hl~~ copper PI3~ Is placed " betwxh two co~tact cnps. float switch A switch controlled by aconductor fuatl~ In aliquid mercury switch An es~lally 't1Iiet Sl'fttch that opens ,maclcses anelectric circuit by shifting asealed !:,Iass t.u~ of mercury soas to u"coyer or CClVtr the conUcts. key,wftch II switch opel"3W O!lly by ~;~i~~i~::~;-····-··-··-··~ 0 ~ electric Ilght without appreciably i U I affe.ctin.; spatl31 dlstributlon. Also I I called dimmer switch. rheostat Aresistor for ~ulatlnq acurrent by me:ans of vartal>e resistances. kncl7-.1nd-tu~ wiring An obsolete wiring system conslstll11 of 5ln.g~.ln$u!ated conductors 5eCur~ to and suppor'..ed on porcd;lln knobs ana tubes. Iccm A flexible. nonmetallic. fire-resistant tubing for conductors In I:nob·and·tube wiring. leu! Aflexlble.ln~ted conductor for ekctr.c4l1ycon~ an app3ratus to another or to:.l circuit. p~n Ashort. /'bIble cOMuctor used In CO'tnecun~:.I statlor.ery termln31 with a termlr41 havl~ 3 n~d range of motlon. urmil13l A condxtlve dement or device for estabr,sning an electric connection to an aFp3r:ltuS. ':--' bceplate . Aprotective plate 5urrOJrtdin~ 3n electric , outlet or light swi"~h. ElECTRI(ITY swiU:h A device for making. Drcaklng. or dlrectlng an electric current. taggle switch A switch In which alever or knob. moving through a snnallarc. causes the contacts to open or close an electric circuit. --.i:;:'-~-'- three-way switch ~i:~! ! ASingle-pole. doulne-throw swttch used In : ~ 'I conjunction with another to control lights ""&-+------------H: ! I from two locations. d r----..........-+·...J I -"___..____._.l.... four-wayswiU:h ./ : A swItch used In conjunction with two / three-way SWitches to controlllqhts from ~ . ,:i, ----:-:1>-,:_____-+!,)+--Fe--l three locations. ~_~J_______~!~:>~ : :; :!: ! outlet A paInton awiring system at which current ls taken to supply an electric device orapparatus. ----- ...- outletl1ox AJunctlon box designed U, facIlitate connectlng an electric device or receptacle to a wiring system. ---. convenience outlet An outlet usually mourrted on awall ana housIng one or more receptacles for 0 1 (] _~ porta!nelampsorappllances. A snna~l. flexl!ne. insilited ca~ie fitted with a plu:l to conroxt a port.#~ !amp orap(:3nce to areap-tacle. wire nIt Aplas>J.c connec" ..... 'Vcontainln~ 3 threaud metal ftWr.q for 5C~""ing onto the Intertwl~ ~ds of t ..Oor more CCflductors. connector Any cfmlous de/a's forjoini~~ tllO or more conductors ',,;:hout 3 pe~3~ent splice "''--' __'--.--_.---. receptacle Afemale fitting connected to a power supply and eqUipped to receive aplug. Also called socket. grounding outlet An outlet havlng an acldltlonal contact for aground conne.ctlon. '.~--..- .. plug Amale fitting for making an electrical connection to acircuit by Insertion In a receptacle. grounding plug @ A plug haVIng aDlade for aground connection. J, , . -~ polarized I!Jl Designed so that aplug and receptacle can fit together In only one way. 79
  • 80.
    ELEVATOR Am~ pLotfonn orcage for c..rryir.g passengers or freight from ~ levei of a uui14ing to anothu. pulkhe3d Aroxllke structure on aroof providing access to a stalrwen oran elevatorshaft_ rift penthou~ ~~~~~~~~~~~~~__ control panel 6ritIsh tern1 for elevator. p;l'~r elct'rlor An emtor exclusively fer tne use of pas5el'l¥f'S. fre~ht elct'ator An elevJtorfor carT)'ing r.e3Y)'cargo. 011 whleh t.~ operator ;arJ the perso~s neu5S4ry for unloading aM loading the freight are permftttJ to ride. duml>w;after AsnuU eb7tor for COI1veying food, dishes, or other m~ Is Detween tM floors of ;a UullJlng. pan~ Arowofeb7tcrs In ahk3h-~ Uul1dln~ controlled by;a common operating S'jSt.em and responding to 3 slng~ ~~ Putton. Astructure housing elevator machinery on the roof of.. hulk/lng. top car cle..1rance The vertical alstance from the top ofan el.evator c..r to the nearest overhead obstructlon when the car platform Is with the top landing. hof,tw;ay ----------- ---------------- --- -----------~-+----li-~__HI~ Avertical enclose<lspace for the travel of cne or moreelevators. Also called elevatcr shaft. ....----- -- I4Inding ....------- -------- ----- ------, ~ .----------.--_.--------.------- The v~1 aiStance tnr~ by ;an ~tar Qr from the bwest to the h~kest larJings oft'" holstway. AI~ Q/bltnvd- e!ectl'1ceIevrtcr ~.n ebr3tor systemconslstlng of a Qr ~ Is InOUnWon gulde ralls, supporteJ by hoisting ~l1les. and Mven byeb;tric hoisting m-.::hlnery. Also called t.r3ctJon elevrtcr. 80 1 The portion of~ floor adjacent to ~n i eIemor holstway, usea for the receJvlng ! ;and discharge of passengers orfreight. ~r~rsafety .-----__________________ Amechanical Mvlce for slowing aown and stopping an elevator ~r In the event of ousslve ~ orfree t.n.actuated by a governorand clamping the guide 1'3115 by a wedging action. hoi$tW~ door ---------------------- ------------------ Adoor ~ween ~ holstway;and an elevator landing. no1"11141fly closedexcept when an elMtorcar Is stoppea;atthe landing. elevator pit ---- ---- ----.-._-----------------.-----.---------- The portlon of~ holstway extending from the levelof the lowest landing to the floor of the holstway_ L~ l>ottom carck.1r~nce The vertical distance from the floor of an elMtor pit to the lowest part ofan elevatar car pl~tform when the car rests on fully compressed buffers. Apanel contain1"4 SWitches, huttons, and other equipment for regulating electrical devices. hoisting machinery The machinery for raising and lowering an elevator car, consisting of a motor- generator set, traction machine, speed governor, hrake. drive shaft. driving sheave. • ana gears, If used. .1 driving ,heave Awheel ordis!: with agroovecJ rim. used as a pulley for hoisting. .... idle 5heave Apulleyfor tightening and guiding the hoistIng cahles ofan elevator system. Also called deflector she3ve_ - machine beam One ohhe heavy steel Deams supporting the hoisting machinery for an elevator. .~ hof5ting cable One of the wire caPles or ropes used for raising and 10werlng an elevator car. guider..il One of the vertlcal steel tracks centroiling thetravel ofan elevatorcar or counterwel!Jht. - traveling caple One of the electric cables connecting an elevator carto .. flxecf electrical outlet In the holstway. counterweight Aweight halancl"9 ,mother weight. as the rectangular cast-Iron ulocks mounted In a steel frame to courtt.eri1alance the load placea on the holstlng machine by an elevatorWI r. • limit5witch Aswitch that automaticallycuts off current to an electric motor when an object moved I1yIt. as an elevatorcar. has passed agiven point. buffer Apiston or spring device for a!lsorulng the Impact of adescending elevator car or counterweight at the extreme lower limit of travel. lu I~ IL. I' I~ IlA L ..
  • 81.
    r ! L ;~ -- J machine room Aroomhousl"9 the hoisting machlne1j'. control equlpmcmt. and $haves for ..ising ana Ioweri"'3 an ~car. inclined lift Achair or plJtform mounkd on asteel gulde rail and driven by an electric motor. used for raising or lowering., person or goods along astairway. Alsocal!ed stair lift. c hydraulic elevator An elevatorsystem conslstlrtg ofacar supported by ., piston that Is moved by or moves against afluid under pressure_ [. ELEVATOR elevatercar The foacl-carrylng unit of an e!e-{3~'Y. consisting of acar frame. platform. M~ht cnetal enclosure. and door or g3 te. • ---- carframe The structural steel frame of an e!evAtcr car to which are attached the pIJtfor.n, gulde shoes. elevatorcar safety, hoisting cables. and contrcl eqUipment. - --.----.~-~·~~·,:·::~-r- - -,~~~:':suallyover the entranu to an -- ! elevator on each floor ofa multistory , building. that slgl13ls the apprcJcn of:.'1e elevator, i __ i._-.--- annunciator Asignaling apparatus in an elev:l t:r W' cr at alanding that displays a VlsU31 nd1catlo11 of floor landings. --. c.311 17uttcn ~ Apush l7utton for requesting a,i el~.1;.c-r. ~. door inter'Uk Asaf~ Ibicefor preventing the operatlon of an ele/ator car unle:s$ the hclstway doorls Icd::ed In the clostJ posltlon_ door cont.1ct Asaf~ device for prevenUng t~.e oper;ltlon ofan elevate., car unless its a.x1' or gate Is fully cl~, Also cal!ed gJ~ contact. ,- newel . 1'4 f'~ [Thehor!zontalsectionofraJlingJtt~e J1 k'-- ,upp~orlowerendofanescaiJte.,.. ~.---4-- L .• .J ."com17plate / The tootneJ portion of the threshold plate : at roth enas ofan e5CJlator ormGVIng war::. " des19ned to mesh with the grooved surface of the movl~ steps ortreadway, ~~t.tor A power-driven stairway conslst!ng of steps attached to acontinuously Circulating belt. u$tJ for JTOIII~ passengers up and dcr'ln between flars. Also calfed moving staircase. mOYi"'3 stairway. moving sidewalk Apower-driven. continuously moving surf3Ctl. slmllJr to aconve:yor belt. usd ;:;r carrying pedestrians horizontally or akJq low Inclines. people mover Any of various forms cf mass tr3nsi~. 3S movlng sk:lewal~s Or automaud drtv~5 vehicles. used for shuttling people 3rc"~ airports or In congesW urban 3reas
  • 82.
    H~dingtogether or unitl~two or mere parts or members. as by d.tm~ with a mechaniC31 fastener. ry ronding with an adhesive. or Dy welding or 5OIderi~. r.Jn ;, 5tr.Ii!ht. slender piece of metal having ~ enapointed ana the other enlarged and f~ for hammerl~ Into wood orother b<Jildl~ I13terlals 35 afastener. ' cllt nait A ~d Ur1~ atapering rectangular shank witIt aWunt point mac:le I1y cuttlng from a rcl1eJ sheet of Iron or steel wire un A~rt maeI1y cuttl~ and shaping a piece of round orelnptlcal wire. ccmmonnan ArtlQIgvtn~ a slender shank. a flat hea.d. anJ a~monJ point. ~uiI Artad having afult heaJ ana ashank more ~th4n acommon nail of the same ~ ~~lUa Arta'luvIng asmall ccnJcaIheadan.:! a s!gnt~ ~ than acommon nail of Q-.e Si1I1e le:n§th. used In finish won: In whlGh thehead mzy remain vlslb1e. fictshing nan Al13.bvill4 asleMershank and a s:nall, ~pea head that1$ driven slightly ~the surf3ce and CCf~ with putty or thelk Pnd A ~flnlshlng rui!. doub(c-~ded naiI A113.used In ~I1dIng te-mpcr3 ry ~res. as scaffolding and formworc. ~ a~ on Its shari to prevent it fran ~~ driven In anthe way a-nd to1e<Ive the he3d free for pumng. Also called form n.1I1. suffold nan. cc~lUii A~ naM ~ng afliMd or ~ shank anaadbrnond point for halWleli~ Into concrete or masonry.1<Jso QlbInuSON')' IUiI. flooring nan AoUorfllstenlng floor roards. havl~ a s.naI con~1 ~a. amechanically defOl111ed shant. and a !Iluntdbmond point. ~hankrun A0'hav1~ aseries ofconcentric gl'OOl'es on ~ s~nk for Increased holding power. roofing nan A~ having a1rari1ed. thre3ded. orcement- coated shank and a ~ro3d. f'lJt head for osterling shlng~ or the like. drW$Crt;W AM4I fast.ener h3vi~ ahdlGally threaJeJ shac thatcan be driven with a hammer and relI"OIea with 3 screw driver. ~Iso called saewnai1. 82 4J 6J 8d 10J 12d 16d 20J - ....• penny IV2' 2' 2V2' 3' 4' The deslqnateJ length of a nail, from twopenny to slxtypenny. Symbol: d 3{Jmm 51mm 64mm 76mm 83mm 102mm D==========:=:::::::l n::::::::==========::bf> O-llIl~I'~I!~I~'----------------~~ il p " r II C'"1'1I O"II!!! c RUllI!!! ~'I!'!i#TC!jil~ ~ ~ ,,- ... ' J . . ., lUIll ·· .· ... i .. ~ .". . , I • ~~:-"-----'-'--_____ ...~J;;> ~ll;;o'.:'""""':.: ••~ •..••~.,;;;;,,;;;.~~~ ~...-..... '~'.. ~..;;3 shank The straight. narrow part of anail or bolt. between the head 3nd the pOint. eightpenny nail Ana1l21f2 Inches (64 mm) long. six1:unpenny nail Anail 31f21nches (89 mm) long. spike A heavy nail for fastening together heavy tlm!7er5.4to Min. (102 to 356 mm) long a~.d proportionally thicker than a COmmon nail driftl10lt Aspike having a round shanl:. driven into predrilled holes to fasten heavy timbas together. Also called driftpin. st.1ple AU·shaped piece of metal or heavy wire with pointed ends. driven Into a surface to secure sheet material or to hold ahasp. pin. or bolt. currug.rted fastener Afastener ccnslstlng of apiece of corrugated sheet stu! with one wavy eaqe sharpeneJ. for unltlng two pieces of wood. 3S In a miterJolnt. Also carted wiggle nail round point An acute, conical point on a nail or Spi(e diamond point An acute. pyramidal point on a nail or 5pil:e. chi~lpoint Apolnt on a nail or spike formed I1y two rut lnclin--"A slaes meeting at a sharp angk:. 'I 11111'~I~'~~'r«! _............... face-nail To fas-:.en I7y nailing perpendicular to thP. face of the wo~. roo0 0 _ . . . . . . ' , - toen.1i1 . To secure bY nalll~ o:1~uely to the surfaces ~eingJolned. Alternate nails mil)' be driven at opposite angles to prcl't'lde IncreaseJ holdIng power. 1 ....................................... end-nait To fasten I7y ruJll~ into the end of aboard. ~~ ~~ parallel to the grain of the wood. End-na lling ~____________._____________.~::~"'.S,.""tcWlthdra..1. To $.Xure I7y nallJ~ In such away that nailheads are not vlsl!71e on the face of the worl::. • . :~ii=i~.~---~:;I.'k'..U."d sl.l.,h" "tow'h,"ri,,, ~~--====== with a naUset. ~ ~ - ............... ~!i:urea nail or screw In position I7y namng strip hammerln~ down the protrudlng point. Astrip of wood or other partlyyielding material attached to a hard surface. as of steel or concrete. so that oUJects may be fastened to the surface. l. ! l ;;; ,.)I I U , L I l. I b I P L I L I L I f I
  • 83.
    ~ I i I 1' I rI r thread ----- --- ------ ----------- ---,- The helleal or spiral ridge of a screw. nut. or ~t_ pitch ,--------- --- ---- --------- -- ----1 The dlstance I:>etween two _ corresponcl~ points on adjacent ~~---~a threads of ascrew. nut. or bolt_ i countersink .-----------------------~~ - -...: To enlarge the upper part of a ~~ drilled hole so that the head of ~~ screw orbolt will lie flush with or ~~',~" below the surface. :::-."- '" .-,,.,...,-,"-,-" pitothole ~--------------------­ Aguldlng hole for anail or screw. or for drllll~ abrger-slze hole. tap To cut screw threads Into an opening. strip To te3ror darruge the threads on 3 bottorscrewbyapplylng too much foru. "--- ~~ ~~ futl~ad -.------------- A screw head having aflat upper surface and aconical bearing surf3ce_ e OV31 head .---------- Ascrew head ha"llng 3 Sh3l1ow. spneric31 shape with aconlcall1earing surf3ce. panhead .-. -----. --- -- -. ------.--. A screw or rivet head having acylindrical shape with Oil rounded shoulder. nllisterhead ----.- Acylindrical screw head having aslightly domed upper surface and aflat bearing surface. p~lehead . ------------- A screw head having aflat uppe~ surbce and an underside shaped Ii".e the bdl of a bugle. ','--------- ~ ~ ~ KIIII e JFASTENING, screw Ametal fastener having atapered. helically threaded shank and aslotted had. designed to I:>e driven Into wood or the like by turning. as with a screwdriver. wood screw Ascrew having a slotted head and a threaded point that permits It to form its own mating threads when driven into wood with ascrewdriver. self-tapping screw Acoarse-threaded screw designed to tap Its corresponding female thread as it Is driven. Also called tapping screw. lag screw Aheavy. coarse-threaded screw havlng a square or hexagonal head driven by a wrench. used In are3S Inaccessible to the placement of anut or where an exceptlcnally long bolt would be needed to penetrate ajoint fully. Also c311ed coach screw. lag "oIt. machine screw Ametal fastener used with anut or driven Into atapped hole. having a straight. threaded shank and aslotted or Phillips head for tumlng with ;I screwdriver. cap screw Ametal fastener for machine p3~. having astraight. threaded shank held ry threads tapped In the hole Into which It is screwed. sheet-metal screw Acoarse-threaded screw for fastening sheet metal and other thin material. setscrew Ascrew. often without ahead. threaded through ahole In one part tlght~ upon or Intoanother part to prevent relative movement. thum:1screw Ascrew having 3flattened. knur.ed head designed to be tumed by the thumb and foreflnger. screweye Ascrew having aring-shaped head. o slotted he3d Ascrew head having 3single slot. driven by afiat-tipped screwdriver. Phillips head Ascrew head having two partial slots crossIng at ~ht angles. driven by~a Phillips screwdriver. Allen head Ascrew head having an axial hexagonal recess. driven by an Allen wrench, security head Ascrew head designed to resist remOTaI with aflat-tipped or Phillips screwdriver. 83
  • 84.
    FASTENING" ~It Athre3ded metal pinor rod. usually h3vlng ;1 head at one end. des~ned to be Inserted through holes In assempled parts and secured fly alTt3tlng nut. carriage poIt Abolt having arounded head. aflat beJring surface. and asquare shoukJer for preventing rotation, used where the head /Tt3j' ~ Inaccessibleduring tlghtenlng. machine 170ft Abolt having aflat ~ring surface and a squareorhexagonal head for tumlng with a wrtnCh. exp.an,lon 170It An anchor bolt havl~ aspnt casing that expands mechanically to engage the sides square head Abolt or screw head having 3 5quare shape designed to !?e tumed with awrench. ~-. neck ~ . >_. nut ,.: Asqum~orr.eX310nJlrre:"'lbloc.l: ,,~,: pm'or.lted wr.:h athreadd r.ole to f-: ... '" around arJ secure abort cr screw i Thepartontheshankofaboltnextto ~~ locl:nut : the head. esp. when It has aspeGlal fOI1!1-'" ~ Anut speci3l~ constructed to prO'Y"je © ~~~ ~.. :t<~:::WU'M,"d,~re<o, Anut having r3d1J1 slits onl1;s outer fJCe to Olilowa locking pin or wire to!?e Inser-..ea in O Fi--I ~ 'both the nut and a hole in lts bolt. Ats-J ~UI+-,1l-_----"=.:..-JC!E~~'m~~~~~,~" _ db :~:stlenut. hex head . l:J/ Anut i1Jvlng ahexa90nal base <lnd ,dcmed Abolt or screw head having ahexagonal shape designed to ~e tumea with awrench. " tcp to co<er the threaded tr,d of 3 screw. -', Also called ac..om nut. "'""""""'" ,jJ ~:~t~:;~two flat P"'J«tl'g pl=s t"-'t ~ provide agrip for tightening wtth the thumb and forefinger. Also called thumlmut.. 0---.~~~teddis( of metal rubt>er, or ~ piJstlc. used ur'krthe he3d ofa nut or bort or at aJoint to c!stribute p-ressure. prevent "fi) m? IeJI:"':le. or rerle1e friction. &W lockwashu @~ ~. Awasher speciJlly constructed to p~ent anut from sh4klng loose. 103J·lndicm~ washer AW3Sher havlng small proJect1ons which are' ~ressfvely futtened as aDolt 15 ~htened. the,ap !?etwe.en tr.e he3d or nut ana the washer Indicating the te;lslori ill the Dott. ccun+...erPore To locraSoe the d~meter of 3 portion cf the ~gth of adrilled hole to receive the he;;id or nut cf aDolt or screw. row spacing -$- __ • __ + The center-tc-centerdistance I I I I ~tween two or more rows of bolts, ~__ .. ~ + ..... end distanu ;" ". of. hole drilled In-nusonry or concrete. . Melly ..__..____________....__n . . . . _ • • _ . . . . . . _~ The dlstance ~een tneend of• ~ "oJ the center of the ~rest bolt !IoIe. :............._..-.. edge d15tan.ce rraaeman: for.a Pr.lndofexpansion bolt h2v1~ ;I spilt. sleeveltl:e sheath threadeJ so th.t wmlng the boltdraws the ends of the s~th togetherand spreads the sides to enga¥;I hole drltblln masonry or the Inner sumceof ahollow wall. exp.an,lon 'hiekf -.-.-----.-'--' ---- ...-.- -- -"'-'-- '--' AIt3d or pbstlc sme Inserted Into a predrliled ho~ and expancled ~ driving a bolt orscrtW Into It. Also cal~d expansion sleeve. togglel1olt··..··-····· __··-···- ..-····- ..···· -~ An anchor ~olt havlng two hinged wings that close against aspring when passing through;l prearilled hole and open as th0' emerge to engage the Inner surface of .. hollow wan. The dlstance from the ~e of atlmbeT •rod the center of the ne3rest bolt ho~ Iewi5 ~It An anchor bolt i1Jvlng a~-shapea end ~round which coocrete or Ie3d Is poured ';0 hola It. fox~lt An anchor bolt i1Jvlng asplit tnd to re:c.e:ve afoxtail wedge as It Is scrtwed Into aHind hole. 11 Ii IL. I I ~ i ! I I r I , ! r r l c l..
  • 85.
    r I tull¥' A,~ of varouslHhaped II1etaI mckets for Soi..r~I"'§ ~ endofabeam,Jolst. purlin. or tl'uS5 Jt 2 §IrderorwaII. The supported ~ tnnsfers Its re3CUon to the ~~r t:hrough ~ring.l>ut load transfer t.:; ,:!-,e s~ member Is through shear b ';:'e ~ rtilils securing the hanger. ~j .--------------_._----------- AC)tmJr'd pm fttUng snugly Irrto holes b tlooO ~ piecesto prevent their s1.prUlg or to a.them. Also called dcwdpirt. ~pbte A$-~-rret.'li pbte punched to produce ,. • cCsdy ~ §lid of protrodlng teeth. t::d ~s 3 sp&ce pbte In the IT13nufacture C"p.;frtwood~ ~piU grlJ AfIr. or ~ CtlrYed grid of spikes for ~~ havytwt~. held III piau Py a :;;''"''!l~ Pdt. ~ re-5lJ~joInt Is ~ ...rrt :0 Iocsenlng due to vlbratlon. Ir.pct. uid ~ lateral Ioods. FASTENING .---- .-.----.----- ---------- --- :- --. framin9 anchor /' i Any of various sheet-metal connectors for / joining light wood framing members. using / special nails which are loaded laterally rather than In withdrawal. :_ ..-' .....---- --.-----.. hurricane anchor Aframing anchor for tying arafter or truss to awall plate and securing It against lateral and uplifting wind and seismic forces. Also called hurricane tle. .---------------- jolstanchor Ametal tie strap for securing thejoists of afloor or roof dlaphragmto aconcrete or masonry wall In order to transmit lateral wind or seismic forces. --- floor anchor A metal tie strap for restraining afloor of a fight wood frame structure against uplifting wind or seismic forces_ ~illanchor Aframing anchor for securing asill plate to aconcrete slab or fouMatlon wall. haWown A metal devtce for restraining awood frame structure against upllftlng wind or seismic forces, consisting of asttffened steel angle I10ftea to awall stud and secured Py a threaded rod to aconcretefounJatlon. tim7er connector Ametal ring. plate, or grid for transferring shear l1etween the faces of two timrer meml:oess, used with asingle 110ft that serves to restrain and clamp the assemDly to¥ther. llml:oerconnectors are more efficient than I10Its or lag screws useJ alone since they enlarge the area of wood overwhich aloaJ Is dlstrlputed. '1 5~rp~te ", ~plit'rln9 Atlm~r connectorconsisting ofa round Atlml:oer connectorconsisting of ametal plate of malleaule iron inserted Into a ring Inserted Into corresponding grooves corresponding groove, flush with the face cut Into the faces of theJoining members of atlm!1er, and he'd In place Py 3 single and held In place Py aslngte Dolt. The I1olt. Shear plates are used In bac~-to- tongue-anel-groove spht In the ring pennIts ~ck pairs to develop shear resistance In It to deform slightly under loading and demounta171e wood·to-wood connections, malnt3ln !learing at all surfaces. white the or sl"91y in a wood-to-metal connection. ~eled cross section eases Insutlon and ensures atlght-flttlngJoint after the ring Is fully seated In the grooves.
  • 86.
    FASTENING $O'kr To unite twopleus of ~I !1y applylng any of various nonferrous solders, USU311y a~In-~ .Iloy, at a tempmture "'low MO'f (427't). solder Any ofvarious fus/VIe albys applied In amolten state to thejollTt l:>etween two metal parts to unite them without he3ting the pa~ to the melting poIn~ TheJI10Iten sokler flows Into aJoint !1ycaplttary mtactton. fillet we14 Awek:f with atriangularcross sectionjoining t~ surf3ces that meet In an Interior right angle. - ----- o braze To unite two pieces of metal ~ applying anyof various nonferrous solders. usually acopper-zInc alloy. at atemperature a!love 800'f (427't). filler metal weld To unite or fuse two pieces of metal by heating aM allowing t.~e met3ls to few together. sometimes y,;th pressure .n.:.! the addition of an Interme-diate orfllb- rr.et31. l The metal that Is added during a welding. Imzing. or soldering process, haVing amelting point either approximatelythe same as or ~:17Jhatofth'motaI, Ucl~ "c~+fiJ~{!r~~:; 1ase metal ,~J The principal met31 to lie welded, Dl'3Zed. soldered. orcut, as distinguished from ftller metal. .--------- toe "'bead Acontinuous deposit of fused metal. Also called wela ~d. welding rod Awire or rod of filler Iretal used .,/ Thejunctton Detween the In gas-welding and mzing processes. and In these arc- wekllng processes In i'l'hleh the electrode does not rJmish the JI ftller metal ,/ I7ase metal and the face of a // wekl. --, root gas wetaing Any of;l group of welding pr~sses utilIZing the heat produced by the comDustlon of aoxygen and afuel gas. as acetyel1e. .arc welding Any ofa9roup of welJ1ng processes utinzlng the heat of an arc between an electrode 3nd ~he b3se metal. ---'--- arc Asustained luminous discharge of electricity across agap Iii;; c!rcuit or between two electrodes_ Also called electric arc. ---.---. shielJed metal arc weldi~ Amethod of ~rc welding usi~ a consumable metal electrode that .' relases an Inert g4S to form. shield around the arc. This shield protects the wela area from oxygen anJ nitrogen In the iilr that woula cause ra pia oxidatlon of the flquld metal -. inert-gas shielded .arc welding Amethod of arc wekilng In I'Ih~n the wekl.rea Is shielded !Iy~ corrtlnuOlls flow of an inert gas from an external source. the filler metal being SlJpprled l7y aconsumalne metal electrode or by .. sep-ara te weIJingrod. The pointat which the Pad: lap weld or rottom of.. weld !nUts Aweld made along the seams of the Ir.ise metal. two overlapplng pleu:s of metal --~~-.:...-----~~~-""-~""--'.>.....>.>-"'>-/- throat -'-" The dlstance from the root of -', .-/" 3 weIGl to the f3ce of the Pase flux 1--.--flLlX-cc~ arc welding Asulistance, as rosin. 3pplled to. Amethod of arc welding using a tutruiar remove oxldesfrom •rJ prevent stu! electrode contaInlng acore of further cx!datlon of 1T'.et.a1 vaporlzJn~ flux that forms ag4~s surfaces to I7ejoined ~ wek:Ilng, shlelJ around the wela area !lrazlng. or soldering. _ submergea arc welding ~,....... "i M'1e"t3l Wttweld A weld between two p~s of /I'1eb1 ~u.ea~. PJrtial-pen~atlon weld APutt weld h~ adepth less than ~ thickness ofthe smalIu of ~ two meriet's being.JoIned. full-penetrationweld A~tt I~d having adepth equal to the thickness ofth~ smaller of the two memDers Delng joined. f -----.--:---..--- ----, I5lngHevei weL:f A~roove weld 1ft which the ed¥ofoneal7utt~ IneIT1rer Is ~ from one side. rmt Ametal pin having a ht4d at one end, used for uniting two or more plates!ly passlng the sham: thro~h aholeIn exh piece and hamrrering down the plain eM to form a~d head. drift I .~-. double-bevel weld Agroove weWln which the eclge ofone abutting memller Is !?eveled from both sides. ArourJ, tapering piece of metal for enlarging or angnlng holes to receive rivets or Dolts. Also called drlftp!n. 86 aligning punch Adrift for Drlnging holes In line to receive arivet or bolt. , l.. puddle weld --·-·-----·------I-'-) Aweld made Py truml~ ahole In h~~5~~~~__.,.:__J a piece ofsheet metal arJ filling with asmall poolof molten rretal. l5ingle-vu weld Agroove weld In which the edge ofeach abutting meml1er Is !?eveled from the same side. douule--;u weld Agroove wela In whk;h P-.e edge ofeach ab-vttlng memwIs !leveled from Doth sk:ks. .-... pneumatic riveter dolly Apneumztlc hammer used with ariret setto form the second head ofarivet. rivet~ Atool for shaping the second head ofarivet. Atool for receiving and holding the head ofarivet while the other end is I7elng headed. A method of arc wekilng In which the welclarea Is shielded by a !7!an~et of fusi~. granular metal that n-.elts to form.1 ~ of protectloesla~ Tl~ filler:netal may I7e suppl1ed !1y a consum3ble dectrode or by aseparate l'Ieldl~ rod. rtSi,t.1 nee welding Any of,jJ group of welding processes uttrlziT'9 the heat generated by resist4nce to tbe pass~e of .. e!ectnc current_ -groove weld Aweld made In apreformed Indentation retween two alMtlng pleces of met..tl. explosive rivet Arivet for ..joint 3CCtsslble from or.e side only. having an explosive·filleJ shank th;lt is detonated ~ striking the head with ahammer to expand tr.e sh3n~ on the far side of the hole. L1 I Y I lj1
  • 87.
    'I' i I r f i i ! l b Ponnet Acorer for ~nopen flrepl3ce, or J cowL hood, or wind cap to Increase ~~~ii;~;~~s;;;········~- velitliJtor. . 5park arrester _.. -- ----- ----- Adevice, ccnslstlng of wire netting or ~ lixe, used to step or deflect sparts or emDers thrown from an op~ flreplace or chlmney_ prefa~ricrted flue .----------- -------- A me~1 vetTt forfuel-flrtd equipment, assemUlea from factory- ITt3de parts. smoke aome .---------------------- The smol::e chamber coverinq of Ii prefabricated metal fireplace unt!o hood ---- ------------------------. chimney Avertl<:al. Incom~stlb!e structure containing aflue through which the smoke and gase5 of afire or fumace are carried offto the out51de and by means of which a draft Is created. esp. the part of such astructure that rises above aroof_ smoke5ta<:k Apipe for the e5Cape of the smoke or gases ofcombustion. draft; AcurretTt ofair In any enclosed space. as In aroom, chimney. or stove. caused by the dlfference In temperature or pressure. downdraft Adownward current ofair In a chimneyor flue, often carrying smoke with It. A metal cover or canopy for a stoTe. fireplace, chimney, or ventiLJtcr. K"''''r'''-.-..;"",,"- fire screen 1Tt4nt.e1 A~stnJCtlon fr.Imin4 the opening of3flrepbce and usually coverlnq part of the chimney b-re~st In a<kcor3tlve ITt3nner. Also called m.1nUIplece. m;mteltree Astor.e orwooden lintel(Ner a fireplace opening, or a m3sonry arch used in place of such alintel. screen placed In front ofa fireplace to prevent sparks Or _ embers from enterll'g the room. chimney mast Apartofachimney orflrepl3ce that projects out from awall, usually Inside a~Ikl!ng. chimney arch An arch overafireplace opening, supporting the breast. -===============+==++==============::::;Jchimneypar I I I I I , /r- -- --------"'. /1 ~ ~ " i~lenook A comer or rwoI: nar 3 lJ rge, open flr~pIJce_ 1J5U311y provlded ....lth se3ting ",Iso called chimney corner Asteel lintel for carrying the masonry aDove tM firepl3Cc opening. Also c311ea camper P3r, tumlng par. ----.....----.., ./ chimney cheek "-.... . The sides of aflrepl;;ce opening supportlng the mantel. pack hearth The part of the hearth tis ---""'-"" contained within the flreplace Itself. Also called Inner hearth. front hearth The part of the hearth that projects Into the room. Also called outuhearth. flue FIREPLACE A framed opening made in a chimney to hold an open fire. ~chimneycap / Araised covufor achimney, usually / In the form of 3 slabor cornice. /'/....,'('X--chi.rnney pot . ./ / "_" AcyHndricalpipeofearthenwareor / ../tmetal, fitted on top of achimney to I , / / j Increase draft and disperse smoke. ./ /( ,< I ..r; I '---~~OA"~'II I I ~ ! ; , i ....-----r--.flue lining fPiiiiiiiii~hl Asmooth-surfaced unit of heat- reslstalit fire clJy or nghtwelght concrete, having 3 ~uare, rectangulJr, or oval sectlon, used for lining the flue of 3 chimney. pargeting An Incombustible passage or Asmooth ~ning of mortar or pia5 ter for achimney flue. Alsc, parget. d,CtfOC,mOkA''''· dr-rt Adevrce for regul3tlng the current of 3irln a stov~ orflrepllce_ damper Amovable plate for regulating the draft in afirep13ce, stove, Or furnace. sm(ike champer An enl3rged area Petween the throat of afireplace 3nd the flue of a chimney. smoke shelf Aledge at the bottom of 3 smoke chamPer, so made as to deflect or break the downdrafts from the chimne:i- throzt The narrow optnll19 ~ a flreplace anJ Its flue orsmoke chamPer, often closed wtr.h ad3mper. firepox The chamrercontalnlng the fire of a flreplace. trimmer arch An arch, usually of bricl: anQln the- form of haft of 3 segmental arch, !1etween achimney and 3 header in a floor structure to support ahearth. ashpit Areceptacle In the bottom of a fireplace or flreDax for the collection and remOV31 ofashes_ ashpit aoor Acast-I/"()(l door providing access to an ashpit for removing ashes. or to;l chimney fer removing SCOG. 87
  • 88.
    FIRE SAFElY The measurestaken to prevent fire or minimiu the loss of life or property resutting from a fire. including limiting fire loads and hazards. confining the spread of fire with fire-resIstant constructlon. the use of fire deuction and extinguishing systems. the establishment of adequate firefighting services. ana the training of building occupants in fire safety and evacuation procedures. fire-rated Notmg or pe~lnlng toa material. assemL>!y. 01'construction having aflre- reslstanu rating required by Its use.Also. fire-nslstlve. flre-reslsunce rating The time In hours amaterial orassem~1y can be ~ Ul withstand exposure Ul fire without collapsing. developing any openings whlch ~nnlt the passage offIame or hot ~ases. 01' exceed1ng a specified temperature on the slde aw;ayfrom the fire. determined by Slbjectl~ J full-size specimen to ~res according to J standard tlme-temperature curve. -_._-_.._. _.__.....-"-- .- fire hazard Any condition that Increases the likelihood of afire. o~structs access to ftreflghtlng equipment. or del3ys the egress of occupants In the event of fire. fire load The amount of com~ustlble material In a~ulldlng. measured In pounds per square foot of floor area. combustil1le Of or pertaining to amaterial capable of igniting and bumlng. 1200 j Q.................................................................._....._.....} time ~nition point The lowest temperature at which a substanu will undergo spontaneous comtoustJan and continue to!:oum without additloM31 appl1c3tIonofixterrull heat. flash point The lowest temperature at which a combustll:ne Ilqukl will give off suffic~~ vapor to ignite momentarily when ex~ to flame. tunnelu5t 1000 ~!--i---+::;;~....;.--...;--.:........----;---7--..; Atest measuring the time It takes for" controlled fIa me to spread across the bee ofa test specimen. the amount offuel the material contributes to the fire. and t.f:e denslty'of the smoke developed by the fire. Also called 5Ulnertunnel test. flame-spread rating ~ 800 1 ~ . d ! ~ 600 (:J!+---;--i----;.---i---'----i---........;---i ~ i Arating of how qUickly afire can spre:ad along the surface ofan Interiorflnlsh material Reel oak flOOring has aflame- spre3d ratlng of 100 white acement- asbestos roard has a rating ofO. ~~;~-T--7-~--~--~--7--+---; fud-GcntriPutlan rating Aratlng of the altlOtllTt of com!:oustl~ sUUstances an Interior finish mater!3i c.sn contrl!nIte to afire. 200~;--~--~~--~--r--7--~~ smoke-developed rati~ o o 2 f:?·~+~:· ". ,. .:~ .•.~ -.~..: .•:....,..:...'.' [LJ . : .- ' .. '.- . metallath andplaster r-------: -~.. I,-,':'·I U~;hou" 6 8 ~'~i:l Arating of the amount of sm'*e an InW.or finish IT'.aterial can produce when It 1nJrns. Materials having a srnol:e-clevelo~ rat:ng aDOI"e450 are not permitted to De ~ Inside lnJilalngs. ~ . fumeret3rd.ant A compound used to raise the Ignitlon p0,nt r ' . of aflammable material. thus makln~ It : . . more resistant to ftre. r " []I" ..'.. ' f "':~,- ~ .. D .. : I ::. .... -.- [ZI '..: ...~....'..:.:. J .]c. :~ ......>:~ .::....:..... " .' ~" . ~.': .... - ..: : .... "'"".i:' ••: . : - fireproofing Any of various materials. as concrete. gypsum. 01' minerai flber. used In making a structlJral memveror system resistant to dam~e or destruction by fire. 88 'pray-on fireproofing Amixture of minerai fll>ers and'an Inorganic ~Inder. applied by air pressure with aspray gun to provide athermal varrler Ul the he3t ofa ftre. intumescent paint Acoating that. when exposed to the heat of afire. swells to form athICK Insulating layer of Inertgas ~utoDles that retards flame spread ana comvustlon. IJ l~ukJ-filled column Ahollow structural-steel column filled with water to Increase Its fire resistance. IfexposeJ Ul flame. the water al?sorVs heat. rises by convection to remove the heat. and Is replaced with cooler water from astcrage tank or acity watu main. r i I t. I L. , I u I I U I ~ J ~ I L I I ~ I ~ I I r L I ~ - -~
  • 89.
    I '.' l.. [. L l l - I I firezofl('! fireseparation Arryfloor. wall. or roof-ceiling construction having the required flre'reslstance ratlng to confine the spread offire. fire area An _rea of aDuildlng ~nc!osed by fire· rated constructloi1 capal1le of confining the spread of fire. Azone of~cttywlthln which cutaln construction ~ ~re prohl~lted ~useofflrelm3rds present In the zone. fire~reak occupancyseparation _._.._.._--".--_._-..;.. I ':::========~ Avertical or horizontal construction Ll An open sp.uestabllsned to prevent the spread of fire from aDulidlng. a 9roup of 7uiIdJ~. ex anarea of a city to another. drntstop Aflre-ratea parlltlon dlvklll19 an enclc5ed attle spaceof comDustl~le construction, orthe concealed space l?etween a~d Ceiling and awood· fr3 mefloor arove. having the required flre-reslstance rating to prevent the spread of ftre from one occupancy to anotherln amixed· occupancy Dulldlng. distance separatlon 1M separation required Petween an exterior wall of apulidlng and aproperty nne. the center hne of an adjacent street or public space, or the exterior wall of an adjacent I1Ulldlng. all measured at right angles to the exteriorwall. -1 fire assembly ~ ..-..-- ..................... protected opening _.....• '··-0'" ..__ .. The assemDly of3 fire door. fire window. An opening In awall. floor. or roof- or fire damper.lndudil19 all required ceiling construction that Is fitted Mardware. anchorage. frames. and 51115. with aflre assemlily having the ~1f-c1o,11W fire a'~m'-lu ___•. _•.•, reqUired flre'reslstance rating for ''";lI ."J "Its location and use. Aftrt asseaWly ~t 15 normallykept In "', aclos&:! posltIoII and 15 equlppeJ with ....--,-----.. ".'~ an '?~ device to Insure closll19 ~ ;arJ latchl~ a&r having Peen opened irl· for use. ~ ,1L[t()m.rtk-cIo'i~ fi~ a~~mbly _... Afire assemlnythat may remaIn In an ~ posltlon and wiU close ~ utomatlcally IfsuPjected to an ~se In temperature oractuated by 4Smo(e~. ~ -.-.~..- ~ ~ " ~ " II ,,----.--~, UL laPel _..-..- ......_..........- ................, AlaDeI affixed to 1I11Ulkling maUrlal. -. component,ordevlce with the authorization of Underwriters' LaPora-torles. Inc.. Ind'.catlng that the FIRE SAFETY firewaU Awall luvfng the reqUired fire· resistance ratlng to prevent the spread of fire from one partof a D<Jltaing to "nother, extending from the found3ticx1 u> aparapet above the roof and having anopenings restricted to a certain percentage of the wall length and protected Py aself·closlng or autcrr.atlc·closlng fire assemDIy. Exh portlon of abUlkling separated Dy one or mere flre walls rruy ~ C<>Ilsklered .iI ~p3rate pulidlng when calculating the floor area and height allowed by a I1UIla'lr~ code'l fire door Adoor ~l>ly.lnclud1ng all requ~ hardw3re.lInchorage, frames and sills. havfl19 the reqUired flre-reslstance ratln~ for Its 1oc1tlon and use. fire wiI'Idcw product (a) has 1I ratlng vased on performance tests of such product.s; (l1) Is from aproductlon lotfotmd I1y exJmlttrtlon to ~ maaefrom materials and Py ~ses essentially taerrtlcal to those of representative products which have ~ subjected toappropriate flre. electrlcal hazard.oroth~ tests for safety; lind (c) 15 suPj«t to the reexamination $ervlce of UL ~~. ~. ~:1':~to ,!"""tom"''''1y :)~.jf/.>' ~!"~~:;:';~dd':::"·" Awindow ~~Iy.Inc"ldlng all required hardware. anchorag~ frarntS and sl!ls. havi"4 the reqUired fire· reslst;ru mtng for Its location an.:! u~. labeled Ofor pertaining to avulkllng materfal or as~mply having aflre·reslstance ratlng certtfW by Underwriters'Laroratorles. Inc. or other recognized testing 13~aratory. ~ _ " firetUmpu W =========.,' Adamp!rt),atc!osesanalrduct autorrut!cJIIy In the event of ftre to restrict the passage offire and smo(e. required whae aduct penetrates afire wan. ftre·rJt.ec/ shaft. orother fire $ep3rJ~n. / fu,ilk finK II hr,k rr3~ of afusible metal. When exposed ~ the heat of afire. the nn~ mel:s ,"" cau~s afire door. ftr!! d3rnpe~. cr the Ii~e to close. 89
  • 90.
    FIRE SAFElY flre-2L1rm system Anelectrical system Installed In a l?uildln4 to automatically sound an alarm when actumaI7yafire- tkttctlon system. fire-~n symm Asystem of thermostats orother approved sensorsfor detectlnq the preStllce of flre and automatlcally 5~nall~ an abrm. 5mokedeUctor An ek:ctronlc fire alarm that Is actlv3ted l7ythe presence of smoke. 5tandpi~ . A w;lter pipe extending vertlcally thl'OU:9h a~lkfIng to supplyflre hoses at every floor. wets~ndpipe ----...-----.--.-------- -- ....--- "'1 I r I I I A stantJplpecontaining water under pressurt:a~ fmed with fire hoses for emergency useI7yI1ulldlng occupants_ dry5tlndpfpe --------------.---- AstandpipeCOITt2lnlng nowater a~ used v.tthe flre tJepart~ to connect flre hoses toaflre hydr.llrt orpumper truct:. 90 " I ~ ---.----- .-.--1 I I I " I ''1 I I r I I r , I 'i I I , , , I I I , ,.... __.J siamese /-'fire pump i Apump th3t provides theI rea.ulred W3Ur pressure In a standpipe orsprinkler I system when the pre55u~e In W system drops ~Iow. 3 preselectM I'3lue. Aplpe fitting Insblled c~ to the ground on theexteriorofabuilding. providing two or more connections through which the flre department can pump waterto astandpipe or sprinkler system. waUrmafrl j fire extinguisher AportaDie apparatus for putting out a small fin I1y ejecting pressurized water or special chemicals. classifled according to the type of fire It fs able to extinguish. sprinkler ,ystem Apparatus for autornatlcally extlngulshing fires In abuilding. conslstlng ofasystem of pipes In or l1e1ow the ulllngs. connected to asuitable water supply. and supptJed with valves or sprinkler heaas maae to open automatically at acertain temperature. sprinklered Of or pertaining to. building or building area that has or Is protected by aproperly maintained sprinkler system. stlrinkler head A'nozzle In 3 Sprinkler system for dispersing 3 stream or spray of water. usu311y controllea I1y 3 fusible linl: that rr.elts at a predetermined temperature. automatic fire-extingui'hing 5ystem Asystem of devices and equipment which 3utomatlcally detects afire and disch3rges an approved flre-extlngulshlng agent onto or In the area ofafire. wet·plpesystem Asprinkler system containing water at sufficient pressure to provide an Immediate. contlnuous disch3rge throuqh sprinkler heads that opet1 automatically In the event of fire. dry-pipe system Asprinkler system ccnt3lnl"!'l pressurized air th3t Is rele3scJ whtn aSprinkler head opens In theevent offire, allowfng water to flow throu~h the piping a~ out the opened nozzle. Dry-pipe systern5 are used wh~ tM piping Is sulject to freezing. preactlon system Adry-pipe sprinkler system through which water flow Is controlled I1yaI'3lve operated I1yfIre-detection devices mor~ serl$ltlve than those In th~ sprlnlltr heads. Preactlon systems are usea when an accidental discharge would damage Vdluable M'13UriaIs. delu~ ')"tem Asprinkler system having sprinkler heads open ata!! times. through which ~flow Is controlled by avalve operated D:i 3 heat-. smoke-. orflame-senslng devlce. cbs, Afire Aflre Involving ordinary wmbustll>lt materials. as wood. pa~ :md cloth. on which the quenching or cooling effect of water Is ofprimary Importance. ca,,6fire Afire Involving flammape liquids. 35 gasoline. 011 and grease. whlch.must ~e extinguished by txeludill9 air and Inh1!:>Iting the release ofcombusUI7Ie vapors. cla55 Cflre Aflre Involving live electrk:31 equipment, which requires anOflconductlng extinguishing medium. cb" Dfire Aflre Involving certain combustible rr.etals. as magneSium or sodium. which rt<tulres a nonreactive, heat·al:>sortnng extinguishing medium. L L f I I L
  • 91.
    · i t L r exitacce55 That portlOn ofa means of egress that k:ads to an exit. Bulkllng codes spectfy tne maximum distance of travel to an exit and the minimum distance between exits when two or more are required. ~_" well Ashaft for dlir, ngh t, stairs. or an elevator. extendlng vertically the floors of a ~uilding. exit light ,1.1 nlumlnatea slg:1ldenttfylng a required exit. emerger.cy lighting Ahghti"9 s~ designed to SlJpply the alumlnatlon required for SJfe egres5 from a building In the event of.. pcwer failure. occupant load The wu! numberof persons that may occupy aI1vikllng or portion thereof at anyone tltne. Mtermlned by dividing the floor area ass4)ned to aparticular use I7y the square feet per occupant permitted In that use. Bulkllng codes use occupant load to establish the required number arid width of exits for :1 pAJ!ng. exit ~rrUlor ..-' Aj13ssageway serving as arequired &.. enclosed by walts offire-resistive constroctlon. 8ulldlng codes hmlt the length of dead-end corridors. exit door Adoor providing access to ameans of egress, swing1"9 In the direction of~ travel and usually e<:tulppea wtth apanic Par. exit passageway Ameans ofegress cor.neetlng al'e<ulreJ exit Of' exit court with apubl1c way, having no openIngs other than required exits ;ilrJ enclosed by fire-resistive constnlctlon "s ~ulred for the walls, fuors. and ceiling of the !nJlkilng served.......... her1ulntaIexit Apassage through or around awall ccnstructed as re<:tulred fer an occupancy separation, protected by an ~utomatic-closing fire door, and leadin~ tv an area of refuge In the same puildin~ 01C1l approxilT13tely the same level In aapcerT't pUltdIng. -': FIRE SAFETY me3ns of~ress Acontlnuous path of travel from any point In" pulkllng to the outside at ground level. exit An enclosed and protected path ofescape for the occupants of apulkllng In the event of fire, leading from an exit access to an exit discharge. .- smokeproofenclosure The enc1osl"9 of anexit staIrway I1y walis of flre-~Istlve construction, accessl~ by ii vestl!7tJ1e or by an open exterior balcony. ana venul3ted I7y natural or mechanical means to nmlt the penetration of smoke and he3t. Bulkli~ codes usually reqUire one or more of the exit stalr;v;;ys for ahigh-rise buildIng ~ protected I1y a smo~proof enclosure. -. exit stairway AstJlrway leading toan exit passageway, an extt court, or pupllc way, enclosed by fire-reslstive construction with self-closing flre doors th3t swing In the dlrectlon of exit travel 1 exterior exit balcony Alanding or porch projectlng from the wall , of a!7tJi1d1ng and serving as are<:tulred means of egress. fjre~pe An exit stairway dewn an ootslde wall of a building.'constructed to the same sta:ubrds as an interior exit stairway. ..' exterior exft An extt door opening directly to an exIt court or pu!;llc way. 91
  • 92.
    FLOOR The level. (,asesurface ofa room or hall upon which one stands or walks. F~.~~~~~,-,-:'~'_~~~~"':=~~'...:.=~'.~:'~=-::,·,~~.:/..:7 I r;f:::,:·~~.:::-:~:.::.:::=~·t:':':':=·T~:::·:C_-_7'"l ~ i ! : ; i ~ . : : j flni5h floor The wearing SUmc.e of.. floor. USU.HIy bid (Net .. sulrlloor. Also. fWshtd &01". ~U~~~"';':;~-fu;~~~~u;~---------[~===j!llillll;!~ ~3rds. plywood. orother structural she3thln~ bid over and ftxe.d to the floor joists. Asulrl:lorIs often used as awo~ln~ platform ~ ~n and may also act as II struc'tUraldlaph~m to transfer bUralloaas to ~rwalls. Also called ~Jnc:I fWor./'OUfh flM-. floor framil9 The act. proc:ess. or manna-ofconstructing the structural frame eX.. floor. jo~t ----------.---------------.-________ _ Atrj of.. ser¢S eX 5m3" parallel ~ams for - supportlni floors. cetnngs. orflat roofs. header •.- I Afram~ member~andsupportlng ! the eMs ofjoists. studs. or rafters. so as ,: totr2nsfert:kew~httc paralleljolsts.•/ studs. or 17fters. / / trimmer ~---------- A~m.joIst. or raftersupporting one end ofa heakr lit the edge of an opening In a floor or roof mme. -,' ~ilpiece --.---- Arela-tlle!y short i1eam.jolst. or rafter supported by awall at one end and by 3 hea~r lit the other. Also called stringer. -.----------.::>- rimJolst '-...-'-----......""'- ../ AJolst set on wpofthe sill and forming the .' perimeter ofawood-framed fuor, Also c;illled he3aer. "-'-Imdglng An arrangement of IH-aces orPIoctlng l7etweenjoists Or rafters to prevent their rotation or lateral dlsplacement. esp. when theirdepth-to-wktth ratio exceeds 6. Bridging may not ~ requll'tJ when ~ ends of the meml1ers are flxed against rotation and their eJges are held In line by suWlooring orshe:athlng. solid I1rtaglng Bridging consisting of short roarasfixed vertically I1etwun floor or roofJoists. cro"l7rldging Bridging composed of dlagonallmlces set In pairs Pe'tween floor or roofJoists. I l I., i I 1 l, .: y y LA I
  • 93.
    I . i1e31T1 fig Mattrblas m3S011ry orconcrete. for flIllng the sp~ t;.awtenJolsts or Peams In or on top ofam3S011ry wall. stiffening the memrers. and provldl~ Increased fire reslst4ra:. AIso.l:>e3m filling. ~ ________ _ beam pccket---.------------- ______ An opening In the vertical face of a -'- structunl !T1aT1rer to receive abeam. ..._-- An angul3rcut at the end of aJolst or beam whe~ It enters amasonry wall. allowing the mem!1er to fan without damaging the wall h' It /roms through somewhere along Its Ie~th. form duking ~I dectlng servl~ as permanent fonnworl: for.a reinforced concrete sla b und ~ stlb C3n support Itself. .1cou~tk duking Metal ~Ing ccntainlng glass fiber ~n the perf0!'3tea wel1s of ribbed kcl::lng Of" In the perforated cells of cellular tkci:lng. used as asound-al1sorblng ceIling. -------- FlOOR deck The structural surface to whleh flooring or roofing Is applied. _.----. decking Self-supporting units of wood. metal. or concrete capable of spanning beams.JOists. rafters. or purllns and serving as abase for flooring or roofing. ~-------~..".,..,..,==--"7--c:-'."- ..--.-_,--..,..---- - -- .-.- metal decking Sheet steel strengthened for use as floor or roofaecklng bycoW-roiling aseries of rips orflutes Into It. and usually galvanized forcorroslon ~Istance. The spanning capaPillty ofmetal decking depends on the thlclness of the steel sheet and the depth of the corrugations. -'. I composiU decking .,./ Metal deckl~ servlng.as permanent fOrM1worX and tensile reinforcement for a concrete slap 11on<kd to It by adeformed or dovetail rib pattern. -'" shear stud I, steel pin welded to t.he topftange of a steel ream or girder.and em~ In a concrete slab so liS to cause the beam and the concrete to act as a structural unit. -------------------, ,/ cellular decking .....--/.• Metal decking 1113nufactured by welding a corrugated steel sheet toaflat steel $hut. forming aseries ofraceways fo!, electrical wires andc.bles. • . floor panels supported on adjustable pedestals or stringers to allow free access to the space beneath. Also called raised floOf"lng sysUm. 93
  • 94.
    FLOOR fin~h floori~ M4ter13/ u~for the ~ring surface of a flOOr. as ~ rdwood. temz:zo. orfloor We. woodfloori~ Anl$h ~ in the fonn of wood strips. ptlnks. or ~s. strip floorin9 .-....-_..---.-.-- -..-._..... flooring composed of~. narrow wood s~'ips. usu~lti side· and end·matched. ~~~;~cl-~r~·~~;·-·····"·"'·~. '" , thanstripftoorl~usu~lyslde-and ~ ~J·m3tched. !B'lI i . pal"luet Afloor composed ofshort strips or 17!ocks of wood forming 3 pa~m. sometimes with , . Inlays of other woods orother materials. par'luetly Mosaic won: of wood used for floors and ~ WJ wainscoting. IIIIJ P-Iock floorirog FWing composed of square units r'.4ssem~ at the mill and usually mst.311ed w!th n-gstlc (]Ier awood $;; bf'.::or orcor.crete sbP. unit bfc.ck Aflooring ~Iod made ;!yJoining short len~ths ofstrip flooring edgewise. usually ~ued on two adjoining sides and grooved on the other two to ensure proper aIlgnmertt In setting. hollow-uackea afer pertaining to a wood or stone piece h3vlng apack face hollowed out so that Itcanfit more tlghtly against an irregular surface. sleeper .----.------------ --- Anyofa numberofwooaen strips laid upon aconcrete slap to provlde ameans of attaching asulrl'loor orflooring. solid plockflooring ------.. -..----------- long-wearing flooring composed of sond wood I7locks setIn adhesive with their grain oriented vertlcally. laminated plock Aflooring U10ck made ;!y ronding three or more wood venxrs with amolsture- resistant adhesive. usually tongued on two opposing sides and groovea on the other two to ensure properaltgnment In setting. slatl7lock Aflooring plod m~e ;!y assembltn!l narrow slats orflngers of hardwood Into larger units. ='''''"p",,,rompos<dol Ij~~iii :!~::~';;;-;;'~~h;p;~;;;u--_ _ _ ~;:';·'~I::=="PPI'.dl=tly :narbleor otr.erstone chips. set In a :t~~':'~4f!l~ umentltlousor resinous matrix overasound wood. mrul. or concrete cen-.tntltlous or resinous matrix and ;~~.. '~~ thatproduus aterrazzo surface. sulrl'loor. ~~ndwhendty. ~~~~11.~. bondingagent ~-------------__ . - monollthicternz:zo- ;:~ .~... ~;c -....~~~~~~~~~,;;.;~ o ~:..~ ~~........... 1" Achemical sul1stance appnea to a Aterrazzo toppln!llnstalled dlrect~ over a st.awrd terrazzo -_....-. -- -----...!i.~ ~••~~ substrate to create aPond rough-flnlshed concreteslaD. Achemical Aground and ~ temzzo flnlsh ~. ~~~ ....... '. ~een Itand asucceeding layer. Pondlng agent Is used Ifthe concrete consisting lItlinlyof~vely slT13l1 i:~~' ~...t.l.' as between aterrazzo topping . . - • 4 surface Is too smooth fora mechanical stone chlps. !..'~:il' D .!/f).. and asubfloor. rondo Veneti..1n temzzo ..-- ..------ underbed ----- ------.... • bondedterrazzo Agl"OlJnd and fdshe4terrazzo finish The mortar Ir.ise on which a •••.-.,••••••/:•.:,-;.;,/.:-;r·"I:.:-:·.••~ !.~'.;... ; ': Aterrazzo topping Installed over amortar cooslstln~ ~~ofbrge stone chips. terrazzo topping Is applied. " • " <.' ... '.' undert;.eQ that Is bonded to arough-flnlshed wfth 5lT13f1er chips flfflng tilt spaces resInous matrix . .' concrete stab. Pe-tween. Alatex. polyester. or epoxy Pinder ';: ='" .'~ .~ :.. :Ii,:..:.;6 ".: .4-' . rustic terrazzo comPined with stone chips to Aur.iformly textured terrazzo finish from aterrazzo topping proJucea by l't'3shln!l the matrix prior especially resistant to chemicals to ~Ing so as toexpose the chips. and apr3slon. I'<-hich are not ground. Palladi..1n.1 II rrosalc terrazzo finish consisting of cut ~ frac~rtd marVle slal:1s set ;!y h3 d in the desircJ pattern. with smiluchips Mlng the spaus ~t ....een. 94 ~~~5.~~I~~;i- eand-cu5hion urrazzo ~ Aterrazzo system for cantrolling crackln~ when structural movement Is expected. consisting of aterr.lZZO topping Installed over a reinforced mortar unaeroed that Is . separated from the subfloor ;!y an lsolatk>n ~~~~~~~~~~~ '. memDrane and athin layer of sand. l ~ i L I L J (
  • 95.
    r I ; 1, t I ! ~ I I rI I r1 r ill I. linoltum Aresl1lent floor covering formed ry roaUn4 1?urbpor canvas wtth heated lInseeJ oil powdered con:. ana rosln. and addln4 pigmalts to achieve the desired colorsand patterns. linoleum shook! Pe used only on asuUfloor suspended al:oove grade. vinyl sheet Aresilient floor covering composed prlnclp.iy ofpoIytlnyt chloride In comblnatlon wtth mineral fillers. p~ment.s. and afiber. fett. or foam !:rackIng. vinylt& Aresilient floor tHe ccmposed prfnclp3~ ofpoIyvlnyt ch10ride In combltUtlon wtth mIneral fillers and p4Jments. corku'le Aresilient floor tile composed of granulated cor: and synthetic resIn blnclers. finished wttha protective coat of wax or afilm ofclear polyvinyl chloride. can: Uk: should Pe used only on asuWloor 5lJspended above grade. ru1?1?erti1e Aresilient floor tile composed of natural or synthetic rubber with mineral fillers. FLOOR resilientflooring Any ofvarious floor coverlnqs capable of springIng bac~ to the original fonn after Pelng Pent or compressed. available In either tHe orsheetform and set In mastic CNer asuttable underlayment. floor covering Material. esp. anonfabric material as v!nyl or ceramlc tile. used to cover afleer. Any ofvarious pasty substances used as a sealant. adhesive. or protective coating. underl3yment Amaterial. as plywood or hardboard. laid CNer asuUfloor to provide asmooth. even base for resilient flooring. carpet. or other nonstructural flooring. carpet Aheavy WCNen. ~nlttec.f. needle-tufted. or l!~~r!~!!t!~~!!~~!!~!!~~~!!!!!!!~!J~~~~!!!!~~!!!!!!!!!!!!~!!!!! felted fabric forccverlng afloor. pi~w~ht ~ avera9/: weight of pile yam In a ~rpet. st3ted In oonus per 5qU3t"e yard. p~~ity The welght ofpile yam per unit volumeof carpet. stated In ounces percubic yard. §it~i~~~(6~liliiiii~ gauge --..--..__.._______._____._____..~ ~ The 5p3C1n~ of~s across the width of. tufted orknitted ~rpet. expressed In fr3ctlons of an Inch.. ~;~~~~~s~~·~~~~~·~~~-----rll~'!~mW---·· f~upright tufts ofyarn forming the Interweaving the backing ana pile ~ surface of acarpet or fabric. yarnsonaloont . -.---.--------. 10 '1 _----... - op pi e tufUa carpet •..-. -- .------- ---- -~ Acarpet texture created by weaving. Carpet made by mechanically -... tufting. orknlttlng the pileyarn Into stitching pile yam thrwgh a ". loops. primary faPrIc backing and bonded . '; . with latex to asecondary backing. cut pile Acarpet texture created rycutting knit~C3rpet ·········--..-------IrmiWl·· ... '. each loop of pileyam. producing arange ~rpet made by looping the . of textures from Infomt31 shags to backing. stitching. and pile yarns short. dense velvets. with three sets of needles. -=.-.A<->OL'__~'--":L-....:=--.IO fuslon-uondedcarpet ·--..--.----.gDB~ - Carpet made ryheat-fuslng face yarns to avinyl pac~lng supporteJ . by other materials. . ---. uacklng Thefounaatlon material securing the f1uW carpet --····-.. ---·-·--·~H1Jlmqn~mnlT[Illijnlnnn= plley'amsofa carpet and providing It Carpet m3de by propelling short .ru!llI.l!lll!!.lUL_.BHill~ with stiffness. strength, anJ stranJs of pile fiber dimensional stability. electrostatically against an ~~. 3dheslve-coatedbacklng. --__ --- carpetpad Apad ofcellular rubberorfelted animal neealepunched carpet .--.-- ..--~ -~ . hair.CNer which carpet Is Installed to Carpet I113ck by punching carpet ~ Increase resilience, Improve dltr3blltty. flPers back and forth through a ;;::-------= ana reduce Impact sound transmission. WCNen polypropylene sheet with ~ Also called carpet cushion. Darbed needles to form afelted flPermat. iiiit-·-carpet tile Aflooring tile made of carpeting material. 95
  • 96.
    FORCE An influence ona body producing or tending to produce achange In shape ormovem~. vector ~, ~ , ..-.. ~. . ......... - ",m"""f,,",,, "'. ~ '-. ' Concul1"e1'Ttforcesn~lngth~sameh~of A'luantlty possessing both magnitude and dlrectlon. ~ ~ anarrow whose ._ length Is proportlon4l to the magnitude ~ •.- ...., and whose orientation In space represents the direction.. line ofactio1I .-......- ..................... Aline ofIndeflnlte length of which aforce vector Is a~lnent. Aforce acting on a rigid body rruy ~ I"e9rdeJ as actlng anywhere aloatt Its line of~Ion without altering ther;mmal effectofthefo~;.•.••···• .--. ---. component6ofJ force •.._.-....•.......... 0E==:b=======i>. Two orII'IOre COII(;Urrtnt forces Into which a sln91eforc:e NiI1c resolved and having a net effecton arigkJ bodyt:lulvalent to that of the Initialforce. For convenfenu In structuralanafysls. these are usually the rect3ngular orCarUslan components of the Initial fOfU. ~. moment ---...-.-.-.--- The tendencyofafurc.e to produce rotation ofabody a~.a poIrrtornne. equalin magnitude to the productof the force and the momentann .and acting In a clockwIse orcounterclockwisealrectlol!. mornentcenter -.-..-......----....•--. The poInt .twhlch the axis ofamoment ~ the riane of th:: forces causing the moment. moment'Mft ~.-----.-.-.-.- ...-----.....--. 'The perpendiculardistance from the hne of action ofaforce to the point orn~ .arout wnlch aInOme<It OCClJrs. Aiso calleJ force arm. couple -.--..--........-.......-- .......... -; Aforce SYSt.21 of'twO equal. paralief forces : ~1n9 In ~ directions 2nJ tending to : produce rota1lon Put not translation. The momentof acouple Is equal I" IT12gnltudeto the productofone of the forces and the perpenarculardisbnu ~etween the two forctS. ---. ---~ - {11111l ~J --~-- '-: __ m " " parallelforc~s ~..j Nonconcurrentforces having parallel lines ofaction. noncancurrentforce, Forces "3".1ng lines of action that do not Intersect at acommon point. the vector ,~. actbn. ~ vectorsum of which Is the " '~ algcPralc sum of the IT13gnltudes of the " . forus. ~ctlng ak:lr.q the same Nne of actlon. ........ ")I wpl.1nar forus Forces ..hat o~ In aSingle plane. ..... wncurrent forces Forces h.av1ng nnes of action Intersect~ at acommoo polnt. tM vector sum of wnlch can bt found Dy applyIng the para"lleIogram law. - p;malle!.ogram Ltw The profOSltlon that the vector sum of two concumnt forces Cdn~e de5C1'ibed by the dlagor131 ofaparallelogram having adjacent slJes which represent th~ two force vectors ~I~ addea. '--. vector ,um Aslngle vector equ~lent to and produCing the sa~ meeton abody as the application oftwo or more given vectors. Also caf1ed resultant. ...• tri.1"9Ie method A9raphk: technique forflndtng the vect« sum of t1'I'O concurrentforces ~ dls~ng one force YeCtor p;araJleI to Itself until Its taU coincides l't'It:k the he3a of the other and completJ~ the tnangle with 2 vect.?r that represents the result3nt force. •. polygon method Agraphic technique for flndlng the vector sum ofacoplarl4r system of several concurrent fOfUS Py dnwlng to scale each force vector In 5ucusslon. with the tall of each at the head of the one preced1ng It. and comp!etJng ~ polygon with avector that ~nt5 the result3nt force. extendIng from ~ ~tl of the flrst to the head of ,;h~ last yector. r ' unter of gravity The point ~ which the entire welght ofa Pody may ~ c.:J~ wnuntratea so M.1f SlJ~ ai; ~Is point. the body would /'tIN1" In equilibrium In arry posltIon: coInclknt l't'lth the unt.erof mass In a uniform gnvftJtlondll field. Aforce whose nneofaction p;a5SeS ~~h the centerof gravity ofaboJy aff~ only Its translational equl!lDrium; the l>ody remains In rot.ltlonJl equJllDrlum. ....,~ -.,..... center of rtU" •••- Th~ point at which the entln?mass Of 3 Pody mzy ~ conslJered concentratea such that the II"IOmtnt aroutany line through the point Is zero. untrold The cem:a-of. or.:. or two-dlmenslonal flgure. aDout which the sum of the sum of which Is asl~1e force that would 1--_ _ _ _ _ ... _ _ _ _ _ _--1 displacements of.1I polnts In the Agure Is zero. cause the same translation and rotation of a rody as the set of original forces. 96 I u 1 u L L L
  • 97.
    F) ! r-···- r I· r ~ I .~I I tnn5Lrt.icn ~ tmiforin motion ofaPocly In astraight line, wttnaut rotatlon orangular dlsplaument. . fIj ~ Lh.. roUtion Q The c!rcuLY rnotlon of aDody aL>out an axis. lever •.-------.- ...-... -'-'" ----.---- Ari..;iJ element that pivots about a fulcn;m to e:xert;l pressure Of sustain a~ht at asecond polnt by aforce appr~ at a third. fulcrum •._.-_.-.. The point Of" support aDout wnIeha b'ert<Jrns. ~lunic31 advantage The mlo of output force to the Input force applltd to a~hanlsm. I • FORCE 1 Newto~'s first law atmoticn The physlcallaw that abody remains at rest or In motion with aconstant ve!oclty unless an external force acts on the I1odY.AI50calleJlawoflnertia. ~ inertia .. • .• The tendency of arody at rost to rort13ln at rost or of abody In motion to statically equivalent rotaln Its velocity along astraight line Haying the same translatlooal unless acted upon by an external force. aM rotational effect on aL>ocly. "" I ~ujlil1rant ··tsl .._ ......- .......-.... ! Theforcerequlreatobrl~asetof. : f concurrent forces Into equl!lllrlun'1, 1 f equal In magnitude l7ut opposite In 1 . ! dlreGtlon to the resultant of the ; .' ,.! concurrent force system and actlng i ~ along the same line ofaction. ,~ "'''''-,,-, 'p ...--.-........-.•........- equilil1rium LM.lwtc =pxQ - (7:t3) +(Ix 0) - (Ix 0) = 0 Astate of l7alanu or rest resulting from the equal action of opposing forces. For a rigid Poay to I7e In equlhlnium, two conditions are necessaij. First. the vector sum of all forces acting on It must equal zero. ensuring . translational equflllnium: LFx= O;LF)'= 0; LFz=O. Second. the a/ge17ra1c sum ofall moments of thefortes arout any polnt or line must ~ual zero, ensuring rotatlonal ~ullllnium: LM=o. llllllllll+ F 1 ~wton's,~orullawatmotion The physle31law that the sum of the forces actlng on a 7ody15equ31 to the product of the mass ofthe 7ody and the acce"'ratlon produced Py the force. with motion In the dlrectlon of the resultantof theforces. mechanics The !:>r.iInch of physics that d&lls WIth ~ effects offorces on Dodles or rrt4terbl systems, comprised of st.1tlcs ;Ind dyn3mIcs. StlUc5 The ~n,h of mechanics that deals with ';~ rei3tlons offorces prcJvdn.g equilibrium among bodies or m...~1 systems. ~mics The h~.ch of mech;uuc5 that deals 'Nlth :~~ motlcn and equlllDrlum of bod:es or m3tertll systems under the ~C':'<J<I of fcrus. m force (F) = /TI3SS (m) )( lcceJ~tlon (l) m;lSs (m) =F/~ =weight('11)1plt4tJonllforce (I) 3 ~wton', third law of motion The pnysicallaw that for everyforce actlng on 3Poay, the I70dy exerts a force having equal m3gnltude 3na the opposite direction along the same hne ofaction as the original force. AI50 C3neJ the law of..etlan and r!actlon. applied force An external foru actlng directly on a Pody. reactive force An external force generated Py the action of one lIody on another. 97
  • 98.
    FORTIFICATION Adefensive military work coostructedfor the purpose of strengthening aposition. circumvallate Surrounded ry or as If ry a rampart. .'~- ~ally port .... Agateway In aforUf1catlon permrttln~ 4 14rge number of tmJps to move npla'1y from the besieged position and attacl:: the Deslegers. C.1 5em.rt.e Avault or ch3 mber In arampart. i13vlng embrasures for artllkry. ....--. --------------.. curtain j bastion --··-·-·-..-·---·-......---...---.aa.,...tII~~=::;:!;:~ Aprojectlll4 partofarampartorother fort!fbtlon. typically forming an Irregular pentagon attached at the Ir.lse to the maIn L An enclosing wall connutlng two lr.istlons or towers. wort. l'2Velin AV-5ha~ outwork outside the maIn dltch of afortress. covering the wort5 ~ two bastions. outwork AII'Iinorkfenslve position esb~sr.ed ~nd a main fort~ ~ ~bc~ Aslo~ ex-"..en.:i1ng downward In front of afortlfbtkln In such a way that It PM"9S ad-m~clng enemy soldler5 Into the most "rectline offire. ,... motte and pailey ANorman ~stle of the 10th through 12th Ul'IWrics. consIstIng of amotte pl3ced withIn aDailey. 98 /---.---....... gorge .."" The rear ~ss.1geW3y Into a bastloo or /., slmllarotItwon. ./ --.• terreplein / The top platform or horizontal surf3ce of 3 rampart where guns are mounted. -_..---- funic The part ofa D3Stlon that extends from the curtain to theface. ......--... shculder The angle be-tween the face 3nd the fun: of I eSClrp T'~ Innerslopeor wallof the ditch SlJl"I"olJnding a rampart. Also C4i1ed scarp. -...............~:,. ~untet'5WIrp n-~ exterior slopeor wall of the d'r-..ch surrounding arampart. _..::: i / ,'...---..• motU " ;' Asteep mound ofearth Slrrounde.d ryaditch and sunnounted byat:lmboer stocbJe and tower. aIr.lstlon. ·-.f;au EItherof*'e two outer s!des th3t form tM sallent angle of a pastlol'l ......., parapet -.-.-- - Adefenslle W4l11 or elevauan ofearU1 or stone prot.ectlng sota1ers from enemy flre. cardon AproJecUng course of stones pelcw the parapetofa rampart. - ...- ....-- Perm 1 A~ ~n the exterior slope of;J .....- .• ~:J:~~ln,*mentof ~rth ~as 3 J :r:=~ moat of aforth'c;Jtlol'l L--_____ fortlflcatlon around a~ and usaa/ly surmounted by apal"3pet. .. l1alley Theouter wall ofacastle or the caurtyard enclosed by It. ..._..-.-.. palfsade -_.... Afence ofpales set firmly in th~ ground for enclosure or defense. pale ApoInted stlck or stJl:~. r r I r ~ •
  • 99.
    ·~ :. I . '" ." turret -------------------- AslTl3n towa-formingpart of a ~rger stroctu'e, frequently ~Innlng ~alstance above the ground. Also CJf1eJ tourdk. l7artrun Asm.all o.'~ll9lng turret on a wan or tower. often at acomer ar IeJ ra gl te',qy. Power Alady's pM~ chamPer In 3 l!1ed1en1 CJstle. ~um ---..-----..-- AslTl3I1 re.or dooror glte to afart arcast~. necessarium .-----......---. The privy of;l medieval castle/ or 1TI()1I;b~. Also called / gardero::'e, , przttU _._._____ .__1..______." A temponry l'OOden fartif'.c3tlon ' In med'tevalardrltecture. erected at the top of a lfJlI during:. siege. chemin-de-ronde Acootlnoous 9"!lW3Y prov!dl~ a Jne3n5 ofcomnmlCJtlon Denina the: rampart ofa forUfled l'follL ---: dungeon Ad..rt, ~..en undergrour.a prison or cell, as In. ineJIev-31 castle. oubliette -----.------ A ~~ ;Ln¥OO having an opallr":J CJr1"; !n theuiOng. through ..,htch pri5Cf'trS were drOFPed keep The Innermost and strongest structure or towerof amedieval cast~, used as aplace of residence, esp. In times of siege. Also called donjen. ~....---..-: '. chapel Asubordinate or private place of worship or prayer within alarger complex. FORTI FICATI ON castle Afortified group of Uulkflngs usually domlnatlng the surrounding country and held Pyaprince or nol:>le In feudal times. citadel Afortress In acommanding posltlon In or neara city, used In the control ofthe Inhabitants and In defense during attack ar siege. :::tVf"(-'-1::-::z:::::::::':::==~' --. ward '~. machicolatWn Apro~ng gallery or par.lpet at the top ofaCJstle wall, supported bycorVeled arches and having openings In tht: floor I throU9h which stones, molten Ie3d, or rolhng oU could De cast upon 3n enemy Deneath. portculli~ IT + Astrong gr.ltlng ofIron ortlmPer hung (Nt:( the gateway ofa fortH'led place In such away ~3t it could De lowered quickly to prevent passage. An open space within or betweenthe walls ofa castle. ----.--- ...- barbican An outwork on the approach to acastle or towil. esp. a watchtower at the gate or drawbridge. Also. l1arilacan. -. enceinte Afortified wall enclrchng a CJstle ortown, or the place so enclosed. battlement Aparapet haVing a regular alterr13t1on of merlo/ls and crenels, originally for defense Irot later used as adecorative motif, Also called eml1attlement. ,---...-----. merlen ,/ Ont: of tht: solia parts between the ... crenels ofa ~attlt:merrt. ,------- cl'eMI . of the opt:n spaces alternating with the merfons of abattlement. ~mbr~~ure An opening, 3S;;l loophole orcrenel, throU9h whlGh missIles may De dlscharged. -. loophole Asmall or lI3rrow openl~ In ;;I wall of ;;I fortification for the d1scharge of mlsslles. eyelet Asmall aperture In the wall ofa medieval castle used as awindow or Ioophoie. Also, omet, aye/te. dr~~ridge Alnidge that can De raised, let down, drawn ask:lc toprevent access or to passage Dene3th it. moat ' ADroad. deep dItch, usually filled with water, surrounding the rampart of a fortified town, fortress, or castle as protection against assault. 99
  • 100.
    FOUNDATION The lowest dMsionofa building or other coostruct1on. partly or wholly ~efow the surbu of the ground. designed to support and anchorthe superstructure and transmit its loads directlyU:l the earth. shallow fourubtlon Afound1t:k:m system placed directly Pelow the lowest pa~ of.iI su~tructure and tnnsfming building loads directly to the supportJn~ solllly v~1 pressure. DDDDD ~ ------------------------------; The gr.od-.I3l Su~lJ1ng of.il structure as the i soli ~ Its founa.atlon consolldates r __L - - - - - - - - - - - - -t urJerlo.adin~ ccnsoIWtion The graau:;;l reauctlon In the volume ofa soli mass ~1tJ1If from the .application of a ~t.;I~ Io4d and 3n Increase In ~5ttess. pf'im3ry c.ol15OlldrtIon AreJuctlon In vvlurne of.iI soli mass under the .action ~.a sust.;lned load. due chiefly to.a squeal~ out of wawfrom the voids I't'ftIIln the IlUSS.and.a tr.nsferofthe load from the soli wafer ~ the soli salkis. Also caib:l ~ry compression. 5eCCrWry~n A reauctlon In volume of;.l soli mass under the actlon of.a ~Ined load. due chiefly to;.It!ustr.etTtd the Internal structureof the soIlln355 after~t of the load has Peen tr3nsfemJfrom the soli water to the soIlsotld:s. diffuenti.1I5ett!ement The relitlve lI10Vement ofdifferent parts of ;I structure caused IIy uneven settlement or failure ofIts fou.wt01. ~ ! ! _1 i I l I' I I f---····-----·-··-···J"~' ::::::::.~~ '... ~~"". ...t_._nonuniform 9J{/pressure ~.. passive e..1rth pressure The horizontJl component of resistance developed by asoli mass against the horizontal movement of a vertlc.alstruct.Jre through the solL utive e..1rtn pressure The horlzontJl component of pressure th.at asoli ~S5 exerts on 3 vertical rrolnlng stroct.ure. soU pressure The actual pressure t:leveloped between ;.I footlng and the supporting soli mass. equal t~ the quotient ofthe magnitude of the forces t<.l nsmftted and the area CjUsM byUtml forces '.. 5he3rr~$W1cc provided by friction Utwun footings ;ndsot1 ;.IlIowa~1e be.-aring pressure The maximum unit pressure afoundation Is permitted to Im~ vertically or I3ter.;1ly on asupportl~ soillT13ss. Allowal7le ~ring pressures for va roOlJ5 solI claS5if1c3tlons are conservative v;llues permitted ~ PuIId1~ codes In the absence of ~hnlcallnvestlg3tlon and testing of the sot!. AISIJ C3IW .1llowal7le l1ealing capacft)'. allc.....abk $C/l pressure. -A=ccnt:3ct Jre3 off~ ~1~(q}=P/A r" frost.line 1 The maximum depth at which soli Is frozen i~rost per.etntes the ground. frost he,we An upltft In scl C3used tr.Y the freezl~ of Internal molsturt. fro$t ~on 7r ~ softenlng of soU resulting from the . f '~thaWlng of frozen groundwater. 0.5'1 ) 2rching n..""nsf..of",," f<om' y"r,n"" P'" ~,~ of;.l soil mass to adjoining. less y!ekilng or 02'1 / restrained parts of the mass. . / 100
  • 101.
    r; ! I rI' r I I I I rI rl r ! r" ~;:t.!':;~.;;;,;;,;ik;;;:~;~;t ~U"" I· grak. des~ to support and anchor the "". L.- - - - - - - superstro<:1:lrre. "" .••.=<::.~~~=-_____ ground sl# Aconcrete sbl:> placed CNer' adense or compacted 73se and supported directly l7y th~ ground. iI:SlJally reinforced with welded wire fJ~ en grid of relnforclng lrars to ~~~ control anya'3Cklng caused I1ydrying I~~ ~ s-hrlnbge orlhermal str~~.~~parate or ',; ~ -- Integral f~s artrequired for heavy or ~ ",@ concentrated leads. Over prol1lem soils. the ~~ slaI:> must t;.c, designed as a nut or raft ~ foonaatloo. N:so called slab on grade. ~.._.. -'S/'o.l'''~==__. ___....__ :.: l:r41~COUrse AbytrofCOiiJrStgranul3r m2terbls placed ! and compactedon undisturbed soil or prepared flO ~ prevent th~ capil!3ry rise of FOUNDATION sp~d footing Aconcrete footing extended I.teraIly to dlstrf~ the foun,13tlon load CNer' a wtde enough area that the allow3!71e ~arlng capacity ofthe supportl~ soil Is not exceeded. •-- critJc.;J{ 5tCtJon assumed for she3r - ~{p.inchlng she3r --.. ~ moisture toa concrete ground stal:>. _._.__ ...... _._. _"______.._ ..._________: 5 Ub-str3tucn r ....- ..·· --.--- - ----------. ------ ... - ~ifo()tig: ,/ Th;~~~~~s~pread footing of a . foundation wall Something thoIt underlies or serves as 3 !:rase or four'4btlon. Also c.alled su!lstrate. :'..:.t )F. . U '.1 I I'nii flcatlng founJ.1tion Afoundation ~ In y!eldln~ soil. having for tts footIng 3 r1ft placed dup enough that the weLjht of ~ excavated soli Is equal to or grea ~r th.M tM wdght of the construction s-upported raft ~~~.W~.~,·., ArefnforUa COncrete footing connected !:>y atie beam to .mother fOOUn~ In order to !7a!3ncean asymmetrlGallylmpJsed load.as at the perimeterof a~Ildlng s~. Also called strap foothtg. Arr.at providing afooting onyielding soil u5IJally for an entire ~ulkllng. placed so that the we~htofthe displaced soli mews the weight of the construction. grillage Aframewon: of crossIng ~eams for spreadIng heavy loads over large areas. Also called grid. .,./r~- ~~;:;r"~' .----...-- tonti~uotijf~;v' --- ArelrTfoffiJiOncretefooting extended to ./ support arowofcolumns. r - 9~~~1' ./ Arefrrf~'Col1Grete ream SlJP~1I9 3 .' superstructure at or neargrouna leYel.nJ tnnsfem~ the Io3a ~Jsa~~ footl~s, pic:rs. or piles. Also C3ltld~~~o; -.. -~.' :r~' '~-'-"Co~f~ng~~:: .' AreWoiujconc~ footing for a perln-etercolumn or foundation wan o;Undea to support 3n Intercr cclumn k::3J. To ;widrot'4tion ordifferential ~ COfTtJnuoIJs 1(4/ C3nt1lever~ n p-oportJoneJ t<1 ge:n~ uniform >:J~ ~SIn m.1t Ath~. sla!:>fi:e footing of relnfOf'Ce.d concrete supporting 3 num~r of co/umflS or 3n entire !:>u11d1~. np17ta mat AITI3t foundation reinforced l7y. gfJ of . ribs abc>.'e or below the sial:>. ullularmat Acomposl~ structure of relnforceJ coocre~ slal:>s and lra51ment W3i1S SlT">'.,~ 35 3 mat foundation. 101
  • 102.
    FOUNDATION dupfouncUtlcn Afou~sy.;tem t:hJt extendsdo.w11 _ th~h un~17Ie soli to transfer uullalng k:laJs to annappropriate l7earing stratum ~ kIow ~ superstructure. pi1efourWtion Asystem ofpks, pile C3pS, and tie ueams fer transferrfftg uulidlng loads dewn to a sult.a~ ~ st,.t;Jm, used esp. when the soil rNSS directly ~Iow the c.on~ Is not sultaule for the direct Pe3~of~s. ~ring stntum A~mof50norrockon which a footll14 ~ or to wIllch aIrolldlng load Is tn~ I7yapile or caisson. pile A~ sitna:rcolumn of wood, steel. or reinforced QlftCrete, driven or hammered~ical1y Into the earth to form partofafoundation system. batterpile Apile driven at aspecified angle to the vertlc3lln order to provlJe resistance against lateral forces. drive band Asteel ~and enGlrcling the head of3 tlml7er pile to prevent Itfrom splitting when driven. Also called plfe ring. anvil The component of apile hammer, locatedjust relow the ra m, that transfers the driving force to the pile head. cushion Acap for protectlng apile head as well as the pile hammer durl"1 a driving operation. Also caned cushion 17loGk. cushion head. pile driver Amachine for driving piles, usually composed of ataIIfra meworl: supporting machinery for Ilftlng 3 pile In position !7efo", drM~, 3 drM~ hammer, and vertical ralls or Ie2ds for guiding the hammer. end-~e.a"-9 pile ----------fto:'!!I Ap~ ~g prinCipally on the timber pile ~"!1 reslsbnu of soli or rock ~neath ~s b:it for support. The SUITlXl~ soil rruss ?rovides a ~ree ofbCa-alsta~lityforthe long ~ l1eml>er. Also called point-!>~ pile. ~!low3LoIe pt'1e Io~d The II3XlnII'I axb! and bteralloads pennfU.eJon apile, as c:feterrnl~ by a ~all1lc plefonnub,a static load ~ test,:;r a,m.echnlcaIInvestigation of ,/ the fourW1lon soil .' pile ~ity _._-_..-., The ~t:IoI of;1 pile from Its pian wUooarmthe vertQl, ~sultll1g In" reductkrl of Its aJlowable load. piletolmrIce froe p'rrnlUed devl3tlon of a pile frcm the v~ fOf' which a reduction In 3~PIe klad Is net ~ulred. e!' V pipe p~ ...-..:-.----------- Ahavy steel pipe driven with the lowerend ettheropen orclosed bya heavy steel plate orpoint and filled with concrete.An open- eMed pipe pile ~ul~s Inspection and excavatlon !1efo", i7elng fliled with concrete. ~wn~ ----------------~ Apllt depOloing principally 011 the frictlon31 resl:stanu of 5urroundln9 t3rth for SIip'f'<rt ,liftfrictiHI The frY;t1ol JevelopeJ ~tween the ~ of~ pfe and the son Into which the pile Is;;"en, .m!ted !?ythe ~Ion d soM to the pile sides and the snarstrength of the surrounding SOIIlI1ass. ~frictSon An ~I badon apile resulting from ~ of fln, which tends to d~ thepie down~rd Into the soil. i......_ i,obar H .," H-pile -... A log driven usually as a friction pite, often fttted with a steel shoe and adrive !nnd to prevent Itfrom spllWng or shattering. '--.• shoe The hard, polrUd or rounded foot of a pile orcaisson for piercing underlyIng soli. Also called drive &hoe. ~~. preca,t cOncrete pile Aprecast, often prestressed concrete cclumn, havIng a round. s-tuare, or polygonal section and sa~tlmt.5 an open core, drivpl Into the earth by3 pIle driver until it meets the requIred resistance. ccmpo,1U pj~ Asteel H-sect!on driven as apile, sometimes encased In concrete to apoint l:>elow the water tal71e to prevent corrosion. H'sectIons can be welded ~ether In the drivln9 process to form afT'j length ofpile. Apile constructed oftwo rruterlaIs, as a tlmuer pile havl~ aconcrete upper SC1Ctlon to prevent the portion of the pile auove the water taule from deterloratl~. :'IN ~:!.~=~~by.h"h th' "-, ~ allowable ax!4llload on apile can be :.:.-.;.~.'.'.'.II ~~;;:::~~: load on asingle pIle, usually a fraction ofthe ~::.: i load requlr~to reach aylelJ poInt, apoint ;::... 1 of reslstanu, ora pointof refusal .:;:;: .~: ..1 ....point ofre,~nu . .::::.: ?~.. . The pointat which apile loadcauses a '..J. specified netSt"tttement after Delng applied : f'·.... I continuously for aspeclfled period of time. t ~ ""l.. ~ I'~ point of rem,ai I The point at which no additional settlement , I takes place afterapile has Peen loaded _______'~," continuously for aspecified period of time. yield point Alineconnectln~ points of equal pressure. The point at wn!ch an Incre35e In pile load prod~ adlsproportlonate Increase In settlement. 102 IJ f J f . /- 1- I. I. f I L I ~ I L
  • 103.
    r i I f J I ,1 ~I - pile cap-------.....-.-.--......'... -~ .. o In o ° ex3mplts ofpile13Y0utS c~5t·ln·place co~rete pile Apl!e constructed !Iy placing concrete Inta ashaft In the ground. cas.ed pile -.....-...- .........--....--.+.. Aconcrete pile coostl"UCUd by driving asteel pipe orcasl~ Into the ground un-tll It meets the required resistance ;inathen ftlnng It with concrete. c..~I"9 -.........-....._...- ........- .... --: .... Acyl1ndrlc31 steel section. sometimes . ~ or taperea for Incre:asea s~s. driven or dropped In place ta $eI')'(: as aform for acast·ln·p!Jce coocme pile. m~n.drel ..-----_ .._--_.- //' Aha-Iy stu! tul>e orcore th3t Is Inserted Into athln-wal1ed casing to ~t It from coll3pslng In tM driving process. and then withdrawn Priore concrete Is pl3ced In the casing. pier - ....-.-....--.-...-.....-..-...-..... Acast·ln·place concl'eU foundation formed!ly Poring with a larg~ 3uguor ~vatlng !Iy hand a shaft In the earth to a suitable Paring stratum and filling the shaft with concrete. ~I~~n A pler. esp. when the roring Is 2ft. (610 mm) or larger In atameter to permit Inspection of the rottom. ~II - ....--............--........--....-'.... The ;1ase of 3 caisson enl3rged Ul ' lnuease Its bearing area. bdl17ucket An attachment to an earth auger having expanding I1lades for D:c3vatlng aPell at the rottom of acaisson shaft. Areinforced concrete slab Of mat Jalnl~ the heads of acluster of plies to; 1<: distribute the load from ;I cclumn or ;.- grade Pe<im equally am01l4 tr.e piles. t::3 0 oli}O o 0 Unc.3~ pile Aconcrete ~ CO!1struc'..t.d ~ driving 3 c;on.cme pl~ Ir.'.o the gro'.J-nd along wit.' • ~ casli1g unullt meets ~~ reqUired ~nce. and then r.;:r.tr'lir.g cancw~ L.,..-..o p~ as the casJng Is wtU-.:hwn. ~(;~Cai5~n , ...........1 rocl:~i5~n FOUNDATION· tiep~m Areinforced concrete pe3m dlstrlputlng the harizont.1 forces from an eccentric311y khided pile cap or spread footlngto other pile caps orfootlngs. .;•.• ped~1 pile i Acast·ln-place concrete pile having an enl3rged foot to Increase Its Pe<irlng area and strengthen the l1earlng stratum by compression, formed !Iyforclng concrete out at the Pottom of the casing Into the surrounding soil ...!.-.• pulP f : Abu~e C<lst u formed at the l10ttam of a j i cast·ln·piau concrete pile to enl3rge Its ! 1 Pearl~ area ar.a strengthen the rearing I stratum !Iy ccmpression. Acaisson that Is drilled InUl astr3tum of solld rod rather than belled. As.x~tted cat=scn having 3 steel H'sectlon c-=~ ",Ithln 3 c.:n:.-ete·fll'eJ pipe casing 103
  • 104.
    FRAME A skeletalstrocture ofrelatively slendermemf,~ designea to give shape and support to a ~uilding or otJ1er construction. "raced frame A·structuralfume whose resistance to lateralforces Is pf't1Vlded bydiagonal or other typeofk-ac1t4 - rigidmme Astructural frame of linear memrers ~ldly conr.ectea at theirjoints. Appllea loads produr.e axial ~ and shear forces In all meml>ers ofthe frame since the ~Id joints restrain the eMs of the meml7ers from rotatl~ freely. In aaaltion. vertlcal waSC4use arigid fr;1me to develop ~I thnIsts at Its lr.Ise. Arigid fr.ame Is st3Uca/1yindeterminate and rigid onlyIn Its plane. AlsoColIlea moment- ~"4 fr.1me. hinged frame A rigid fr3me connected to Its supports with pinjoints.The pinJoints prevent high !lCndin4stresses from developlnBby a~ u",frame to rotate as a unit when stnlned Loy SlIpport settlements. and to flex ~htly when stressed bychanges In temperature. L1 three-hi~ fume A structul'llfas5ell1!11y oftwo rlgta sections connectea toeacfl otherand to Its supports wltfl pi"joints. While more sensltlve to~n than either thefixed or hl"¥d frame. the thru-hlngea frame Is Ie.ostrlfect&i by support settlements and thtnl'tllstresses. The three pinJoints also permit the frame to lJe analyzed as a stat:lcally de1ermlnate structure. 104 pL1stic hinge Avlrtu.ol hillg/l that develops when an fJ,ers are fully yielded at across section Of a stroct<Jral member. ~'1 ....... fixed frame Arigid frame connected to Its supports with fixedjoints. Aflxed frame Is more reslstant to deflection thanahinged frame put also more sensitive to support settlements and thermal expansion aM contractlon. sIdesway The later.lf dlsplacement produced In ar'.3k:1 fralT16l7y lateral loads Or asymmetrbl v~31Ioadlr~ A-frame A!nJlldlng constructed with asteep triangular frame resting directly on .. foundation. I..1 I-1 r • f1 I. J. •
  • 105.
    ~' r;r' ""'! f'" 1 j r 1 r I' I knee Thejur.ctlcn ofthe tap ana either of tne uprights of abent. 10000000-0 0101010101001011 ,un IO]DID]ODlDiDiol V-terenJ~1 ~5 Aframed ~ stroctore h~l~ vertlc31 web mem!1ers ~idIy connecte.d to parallel top and ~ chords. A'{:trendeel truss ~ not a true ,",SS slnu Its members are subject to I'lOII2xtal ~ forces. Also called V1~ ~lrder, p<lrt.1I~ A method for a~lyzlng amutt...tstory frame .15 aC3l1t11ew:r ~te.d ~ shear rackIng. 1M portal methcJ assumes tn3t apoint of InfIectloIt occurs it the mkl~ of all rnemDer$ In the frame. and that the mme acts :.lS2 ~ of~ portals to which the tobl t.ter.ll shar:.lt each level Is distribuW 1ft propoI'tlon to the floor:.ilre3 ~h wlumn ~s. ~!M4 ry pin.lolrrts C2n ~ lnsute.d 3t e;;ch point of Inflectlon. Nkl~ ~ ~:.l st4t:b11:i dekrmlnate stnlCture. ~rrt&ver~ A Ir1ethod for J!t:.llyzlng alT1uttlstory frame ~ 2 C3ntllever $U~t to Pe:1dl~. The C3rTtllever method :.l5Surnes th.-t:.il point of Inflection OC~ it the 1l'1!d~ngth of an II"alPers In ~ fralre. and wt tM axidl fOf"Ce In ~h WuIM of ast.:ry ~ proportlonal;o ~ tIortz:ontal distance from the centroid oI3a the columns 0f1 tn3t level. Imaginary pinjoints c.1n ~ Inserted at each point of ~ Iftlk~ the frame a statlcally ~1n:.iIt.e WJ<-'"tUI"e. moment ~trip1ltlcn methcd A method for mlyzl~ an IrJetermlnate str'uCt1Jre ~h :.iIo'1Iter:.ltN/: pr-ouss of fixing ar19kijo!rTt In splU. ~termlnl~ the fIxed·enJ I1'OII'1CTt.s at theJolnt. then ~sI~ thejoint to allow It to rotate. and studyln4 the ~nsftrence of moments and rot3tlons to £Merjoints 1 ~ I t ~ I InkUrmil';1'U Of or pertaInIr.q to astructure havl~ more than the minimum number of members. corm~tlons. or supports needed for staDil1ty. resulUng In more unknown forces than there are static equ.aUons for solution. d~ru of iru:!eUrmlnacy ~ dlfferenu petween the number of unknown forces In an Indeterminate structure and w number of static equ3tions 3'.'ah,le for solur:cn, I i pent Abraced or ~Id frame deslgnea to carry vertlcal and lateral loads transverse to the length of aframed structure:. FRAME portal A rigid frame of two co{umns and a.ream defining aSingle bay. Also called slngte-l1ay frame. ~-. multi.toryf""", Avertical series of superimposed r1~ld , frames. deUrmllJrte Of orpertaining to astructure able to ~ analyzed completely by means of the principles of statics. ./ redund.Jncy •..,.......,.. Astrvctural member. connection. or support not required for astatically Wb!T1lnate structure. degree of reduMancy The number of members Deyond that re.:lulred for the statrillty of a st;:cally determinate structure. transfer column Adiscontinuous column In amultiStory frame. supported at some Intermealate level where Its load Is transferred to aajacent columns. - , DOt] DODD DDDD DDDD tran,-fergiraer ~-.-..--: A girder supportl~ atnlnsfer c;clumn. degreeoffr~m •.... The numberof members l"e<ulred to stabilize 3 collapse mech3nlsm. 105
  • 106.
    FRAME froilmlng Theut. proceS5. ormanneroffittlng and joining together relatively slender members to give shape and support to astructure. froilmeworic Askeletal structure of parts fitted and joined to¥therIn order to support. define. or enclose. skeleton construction Asystem ofconstruction utilizing a framewort ofcolumns and !leams to transmit !lullding loads down to the foundation. plank-oiInd-l:Ieam constructlon -.-..-- .--....,...............- Flooror roofconstructlon utilizing a framewort oftlml1cr ;Ieams to support wood planks ordecking. poie construction A sys~mofconstructlon employIng a vertical structure ofpressure-treateJ wood poles whlch are firmly emPedded In the ground 3sa pierfoundation. 106 lightframe constructlcn Asystem of construction utlllzlng closely spa~ and sheathed memPers of dimension lumreror lIght-gauge metal to fonn the structural elements ofa11ulldlng. .~ balloon fr;;me fIoorfr3minq platform fr3me roof fr3minq ,r_.... principal ueam .... Any large !leam In astructur.ll frame that ./ supports secondal)' beams orJOists. Also ... .../ called primal)' ~m. r"'"'' secondary ue.am / Any beam that transmits Its load to a principal ~eam. terttary ueam Any beam that transmits Its load to a seconml)' ~eam. ..- girder Alarge principal beam designed to support concentrated Io;Ids at IsoI;rte.d points along its length. arc~te Ofor pert3lnlng to a 5yStern of constructlon employing arches or arched fonns. AIso. arcu.tt&i pole MUse Ahou~ of pole construction. pole Along. cylindrical. often s~nder p~ of wood or metal. .. stilt One of seve-ral p!~ or posts for supporUng astnx:ture arove the surface of land or water. i I l I L J J , I ! j I 1 1 ,1 J
  • 107.
    principal~fter _..-.--.-_.---.........._ ........__. str3ining plect_...._._-._ ..... __ ..._.. ___.._. queen post -....--.-.----.-....-..-.~...,.. summer - ..........-- --------- .. -. -...------.--..", AheJ;)' Umber serving as a """ principal beam or girder. Also ' C3 Hed summer-tru. Ineast5ummer _ ..._ ...._ ...__..i Asum,'T1er supporting awan o,rer an ope~:ng. Also called Ureast beam. tr3Ye _.....- ..._--..- .....---".--.-.-._- .......i Acrossbeam or al73y formed ~ crossbeams. 17ifder ---.----.--............-...-.- AprllIclpai ream supportlng the ends of t:io-o sets offloorjolsts_ Also Cd lied t>indin~ P-e.1m. Iol./'r'i:r .---........--..---.. -- .... At:. ntern or turret on the roofofa ~~~~~~~~~ rnealCal building having slatted a~..;Jres for the escape of smoke and _ admission ofair. thJtch _...--.....--....--...........-.-._....-..... Amr..eml foreaverlng aroof. as straw. rv~. or palm leaves. fastened to..3~her so as to shed water and 5O~~s to provide thertT131 Insut..t1on. Also. ~hrn9. ~ ~.j ' - . . . _ - - - - - - ' - wattle and aaul1 Aform of wall construction. consisting of wattles covered and plastered with clay or mud. Also. wattle and dau. wattle Aframework of rods or poles Interwo,ren with thin ~ranches. twigs. and reeas. used In the construction of walls and fences. FRAME praced fra me A~ulldlng frame employl~ ahe3Yj1.ln-acea framework of solid girts mortised Into soltd posts the full h~1Tt of theframe. WIth studs one story high filling the interstices. Also called full frame. -post .- girt A horizontal timber connecting the posts of aIn-aceJ frame at an Intennealate level abo,re the ground floor. "-_.. _...• 5tiJd "'--- raiseagirt Agirt parallel to and level with the floor joists. Also called flush girt. --.-..-~ dropped girt i Agirt set lielow the floorJoists It supports. no~ '- One ofanumber of short wooden pieces Inserted between the principal members of ahaff·tlmbered wall to 5tr~gthen the frame and retain the brick Inflli. Also. half-timl1er H3v1ng a ~mber framework with the spaces fliled wtth masonry 01" plaster. Also. half- tlml1ered. open-timl1ered pan Amajor vertical division ofawall, esp. anoggedpanel of haff-tlm~er construction. .- -..- ..'f"- - - - - - i ;;;~:,~~~;;f;;r;~;~;;,,~- --11111 ~etween the members of atimber frame. 107
  • 108.
    GEOMETRY A branch ofmathematicsthat deals with the properties, measurement, and relationships ofpoints,lines, angles, and solids,deduud from tneirdefining a>nditions Dy means of urt.1in assumed properties of spau. point Adimensionless geometric element that h3s no propertY!lut Ioc3tlon. as the rn~rsectIon oftwo hnes. line y-axis - ......._._..._...............- The 3x1s along which o;d1nates or y. V3lues are ~sured In aCartesian coordln4U system. Also called axis ofordfuUs. z-coordinate Acoordlnzte determl !1y ~surlng parallel to thez·axls. z-axis _........-..---.. The axis 310ng whk:h z-V3lues are measurea In athree-dimensiOnal Ca~ian coordinate sys~m. rutangu~r coordilU'te system AC4rtesbn coordinate system In which the axes orcoordinzte planes are perpendlculdr. A ~ elementgenerated !1ya moving point 3nel ~vlng extension wlthOllt breadth or thickness. o 0 a~le The space l1etween two lines dlvergl~ from acom.mon point. or within two planes diverging from a common hne: the figure so fonnea. 108 / _.' a17scissa Acoordlna~ detennlnea !1y measuring parallel to the x-axis. Also called x-coordlnau. . /1 1/ l; Euclidean geometry Geometly based upon the postulates of Eucnd, esp. the postulJte that only one Mne may pe drawn throu~h agiven point parallel to agiven line. caordinate '/: AIry ofasetofnumms that serve to ! s~1fy the location ofa point on a .", radius vector Astraight line segment that JOins 3 V3rla~ point to ~he fixed origin of apolarcoordinate system. i i i : I .I I Itn-! il I nnt, 5Umce. orIn space !1y referenct to aftxed figure orsystemof hnes. c.aJ1:.es~n caordinate AIry ofthe coordlnates for locatIng a point on aplane PyIts dlstana from each of two Intersectln~ hnes, orIn ~ !1yIts distancefrom each of three planes Intersecting at apoint. l"'4....-.j..--: ....- ordinate .........-"-'.-"'-c-..l.'-;--;.:..,..--f----H-+--+ Acoordinateaetennlnea !1y x-axis --_.' ~rlng pal.i~1 to they-axis. A!:so calle<l y-coordlnm. T}.e axis aloog which abscls53s orx-values are I!1e3$Ure.:I In 3 C3rtesian coor&nate system. Also calLed axis of.1~ssas. ver"..ical f~~iartot:he p!3neof~ horizon. horizonbl faraneltoorope,..tlr~ Ina plane paraIleit.o the horizon. --.- vertex The point at which the sides of an lIng!e 1nterseG't. .--+----- right angle l Anang1eofWf~!1ythe . perpena1cularIntersection of two straight lines. "--. 3Cute JnSIe An angle less than OO~ '.-.-.-" -----.-.-.-. o~u!Je Jngle An angle grea~r than 9O~ Uut less than 100°. pobr angle The angle fortned !1y the polar axis and a radius vector In a polarcoordinate system. polar axis The reference axis from which the polJr angle Is measured In a polar coordinate system. ' .__ .___f __ pobr coordinau system Asystem for locating apoint on aplane !1yIts radius vector and polarangie. paralld Extending In the same direction. eq!Jldlstant at alf pOints. and neverconverging or diverging. skew lines Any lines In space that are neither parallel nor Intersecting. angle The amount ofrot3tIon neeaea to lning one nne or plane Into coincidence with another. measured in radlans or In degrees. minutes. and seconas. radiln Aunit ofangular measure equal to the central3ngle subtendlng an arc equal In length to the radius: ~/21t orapprox. 57:3°. degree Aunit ofangular measure. equal to'J~th of3 complete angle or tum. orof the circUMferenCe ofa circle. minute The 60th Dart of a aearee of angular ~asure. - ~ccnd The 60th part of a minute of angular measure. I I J , i 1 _
  • 109.
    ·'"t. .. he~ht Extent ex distance upwardfrom • glven level to;; fIxtd point. past!: - ...- ..-..................., The nneor surface forming the part of a¥Ometric ~ure that Is most ~rly oorlzo11tal or on whlGh ~ Is supposed to stand. from which ;an altitude ~n pe C011Str1.C.e.d. :...... vertex , The point opposite to and farthest , from the Pase of aplane figure. ."" altitude ./ The perpendicular distance ./ from the pase of ageometric ,. figure to the opposite vertex. parallel side. or parallel surface. reentrant Reentering or pointing Inward. as an Interiorangle ofa polygon that Is greater than 150~ --'•.•• ". ~ ~~ triangle Havl"!l t1000 sides of equal length. acuU -.-..........-............. Composed only of acute angles. Apolygon having three sides and three angles. obtuse --...................- ..- Havlng.n:;1;rtuse angle. I ~1eM -.---...-......- .1-.... Having ~ite unequalsk:les. I Lsalient An outward projecting angle or I part. .......j---- exteriorangle I The angle form&! petween any I side ofa polygon and an ! extendea adjacent side. coincideJTt 1 Occu~ tM same place In ... interior a"9le ----"'~~ The angle form&! Inside a GEOMETRY plane geometry The pranch ofgeometry th.tde3ls WIth pl3ne~ures. plane Asurface generated l1y. straight line moving at aconstant velocity with resp~t to aflxed point. such that. straight lineJoining any two of Its points lies wholly In the surface. figure Acomplnation ofgeometric elements disposed In a partlcularform o~ shape. .~--------l,.- ....-.... polygon q,uadribteral Apolygon having four sides and four angles. Aclosed plane figure havlngthru or more straight sides. rectilinear Forming. formed l1y. or characterized l1y stralght lines. "-.. 1:..... rectangular '-., Having edges. surfaces. or "'-....."'-..... faces that meet at right "'-... angles. "'-... r- aspect ratlc . '-t:-.. In any rectangularconflguratlon. ~_______...:._.'-...,--= the ratio ofthe longer dimension to the shorter. rectangle . . . Apmllelogral1ihavlngfour --...• dIagonal spaceort:~, CO"9/"tlCft _ •..- ..-_...-.. CoInc~ 3t all points when polygon!:>etween arty two adjacent sides. right angles. esp. one with sides Ahne connecting two nonadjacent r-:;:r....of unequaller!gths. angles orvertlces of.3 polygon or v polyhedron. $U~rI~ ~jmibr - ..-----...- ........-- H.3ving ccrrespondlng sides ~.41 and cor.espondlng cant - ..............-......---..:'.- An ol7l1que hne or surface. as one formed l1y cutting off the corner ofasquareorcuPe. angles e:q-.:.JL II--_ _ _ _ _ _ _ _........o¥. u-Ig~etry The I7nrci of l713thematlcs that deals with t~ ~les of kiangles and trI9O~..rlc functions, and of their .3ppfk7'..cf!$. u-~funcUon A fuoctb1 of3n 3rl9Ie, as sine or coslM. ~ 35 the ratio of tr.e ri9httriangIe Atriangle having aright angle. '::'" hypoUnuse ... The side ofaright tri3ngle that ;'. Is opposIte the right an~le. ........ square Aregular polygon having four equal sides and four right angles. / I···· n. ~~:~~~7h"J""roth p" ..aI / . ~~lteS~~~to~~~ ...-.~ trapezoid Q Aquadrilateral having only two sides parallel. _.' _-....,- Aquadrilateral having no two $Ides s~ of a~ht triangle. &iN! G _.'-.'trapezium ~-+--:""~+----t' parallel The ~rr.etrlc function deflned 3S the 1'3~ of the side oppostui agiven angle to ~ hypotenu~. c05ine The ~~ functlon deftn&! as the ra~ of the side adjacent to agiven angle to the hypotenuse. tangent The tro9""'O~trIG functlon deftned as the rat:o of the side opposite agiven angle to ~ side adjacent to the angle. ~carrt The ~rlc functlon defln&! as ratio of ~ hypotenuse to the side adj3Ce:1> to 3 given angle. C05eCarrt The ~"""lOmetrlc function deflned as the 1'3~ of the hypotenuse to the side opposr-~ ~ ~Iven angl.e. cot.J~ T~ tr'..,r.."<'CJT1etr!c functlon deflned as the 1'3".: :;i the sIde opposite agiven angle:.: :.'---: side adj3cent to the angie Pythagorean theorem The theorem that the sqU.3re ofthe length of the hypotenuse ofaright triangle equals the sum of the squares of the lengths of the other two sides. C' Ci 2 I b-: regular ...........-..:........ Having all sides equal (equllJttral) and an angles equal (equlangulJr) "---... pentagon Apolygon having flve sides and flve angles. - ...-...-.--.. hexagon Apolygon having six sides and six· angles. . octagon ./ Apolygon having elght sides and eight angles. ~ apothem - Apc:rpend1cular from the center cf aregular polygon to one of Its sides. 109
  • 110.
    GEOMETRY circle .'----.-.-- arc Aclosed pl3necurveeverypoint of which 15eq~1Tt from aflxed point within the curve. .../: Any,P3rt of the clrcumferenu of acircle. :' r-'''--''-' raalus .... / Astra~ht hne extendl~ from the center:f 1 111r: ill circle or sphere to the circumference or Poundmg surface. ....-.. sector Aptar.t figure rounded by tliO radii and t~.! Includ.e.d arc of a Circle. ------ ..- --- di3meter circumference __J The roundary hne ofaclosed curvilinear 'flgure, esp. the perimeter-ofacircle. pi The sym~ol Jt aef'(Jtlng tM ratio retween the circumference of 3 circle and Its diameter, accnstolrrt equ~ to 3.14159+, Astraight line extending through the cen~ of acircle or sphere.na meetlng ~ circumference or Poundl~ surface at eacb end. '.~..-- - cenUr The pcint within acircle or sphere equally d1staITt from 311 ~nts of the clrcumferer.::t or surf.ice. or the point within 3 regular polygon tqU311y dlstant from the vertices.. cherd -------- ....------------.-, The straight nne segment ~~ " two points on • ~lven curve. ; ./ I "'>'" ,',/ . ..,......" -..g-.---+----r.~- i , ~. ..~------ ---------~?'~~:slngthrough the tn'ofocl ofan __----'--I__ -.-- eUl~ e{Jj~ I , -,-------- minor axis Aclosed pbne curve generated by apoint ~ In such aW7"j th.t the sums of Its dlst.nces from tl'lC flxed points, the fOCi. Is a constant. hyper~ol. Apl.ne curve 9tnerated by3 point so ~ th~ the difference ofthe distances (rom two flx&f points In the pl3ne remains constant. 110 The axis ofan ellipse that Is perpendicular to the :T".3jaraxis ata point eq~!dlstant from the foci. ! I i i spiral.··--..-.... -.....------- I Aplane curve ~t3tea by.. point moving around afixed .,---- asymptote point while const4ntly recea:."oJ from or appl'03chl11g It. Astralglr; One nmiting acurve such that the perpenalCular d1s~nce from the curve to the n~ approaches zero.s the curve Is extenkd to Inflnlty_ -..... eccentric Not having the same center Or center line. off-center Not centered orat the center point. _----------.., concentric Having acommon center. as clrc~s or spheres. ._-- centerline , An Imaginary line that plsects. plane figure. ___________. q,~rant An arc of 9O~ or any of the four a,uarterslnto which aplane figure Is dM:Jed by two perpendlcutar lines, numrered counterclockwise from the upper right. (t ~UC:,,"o,,1yb"J,",""".wlth",t angles. ~---________.._____..--.-------. concave ~ Curved Inward like the Interior of a circular arc or hollow sphere. ----------- inflection ..------. evolute fhe locus of the centers of curvature of. orthe envelope of the nortTUts to. anothercurve. ..-.-..---- Involute Acurve traced by a point on;a string as It Is l:ept taut and unwound from a stationary cylinder. .....--------.-..-----.--. helix Athree'dimensional curve tr3Ced on a cylinderor cone Py the rota'tlon of-a point crossing Its right ~tlo"S at a constanto!:>llque angle. cycloId Acurve generated by a pOint on the circumference of acircle 3S It rolls along a straight line.
  • 111.
    &pherokf Asolid geomttrlc3l ~uresimilAr In shape to;a sphere. 3S an ellipsoid. ellipsoid A solkl f1qure all plJne sections of.mth are ell1pses. prolate sphuoid Aspheroid generated by rot3tlng an ellipse about Its major axis. prolate Eklngated along the po~r diameter. cyiinkr -_...._ .._...............-......... A solid I10unded by two parallel plJnes and asurface generated by astra~ht hne moving parallel to <1 ftxe.::Istra~ht line and Intersectlng ac!oseJ plane curve In oneof the planes. ~ht circuL1r cyiinaer _.... Acylindergenerated by a rectangle aboot one of Its skies. cone ......_......_...- ......... oblate spheroid Aspheroid gener.rted by rotating an e!l1pseabout Its mlnoraxls. oblate Flattened at the poles. selid Ageometric f1qure having the three dimensions ofIength.l:Ireadth. and thickness. Also called l7ody. volume The extent ofathree-dimensional object or the amount of space that It occupies. measured In cubic units. surface Arry figure having only two dimensions. as aplane orcurved two-dimensional l<Jcus of points deftning the boundary of asolid. generator An element th:lt generates a gtOlT'.etrlc fi9ure. esp.astraight I1ne that generates asurface by movln9 In asPeGffl~ fasnlon. Also called generatrlx. Asalk! whose surfau Is !lener<lt.ed by astraight line. the gentra0". passing through a ftxtd pclnt. the vertex. and moving a~ the Intersectlon wtth acloseJ plAne curve. the directnx. / ...- directrix . Afixed fine used In the descrlptlQn of acurve Of'surfau. right circuur cone -- A cooe ¥nerated by rotating a right tria"9Iearout one of Its legs. uuncmJ ,'- fru,tum Havl"9 the apex. vertex. or end . The portion of accn1calsolld cut off by arane. esp. by one ':. left aftercuttlng offtM top parallel to the base. _.. :. with. pl3ne parallel to the ellip~ A conic sectlon formed by the Intersectlcn of a~htclrcul3r cone with ;I pbne that cuts through both the a)(ls and the surface of t~ cone. :,base. paraPob Aconic section formed by the Intersection ofaright circular cone with aplJne parallel to a generator of the cone. center ..' Th~ point within aregulJr polygon equally dls~nt from thevertlces. ed.g.e ..........._......_ ......._ ..._...._.-_...-_... Anne at which asurface termlnaus or at which two surfaces ofasolkl meet. vuux ...---....-----_..-.. -- Apoint In ageometric solid common to thr~ Of' more sides. conic 5eCtion Aplane curve formed by the Intersection of ari9htCircular con~ with apl3ne. •·..··..1 hyperbob . Aconic section formed by the Intersectk)O of arl:Jht Circular cone with apl3ne that makes a greater an9te with the base than dc-es the generator of the cone. GEOMETRY selid geerMtry The branen ofgX'!l'.etry that dais with sofld figures and three-dimensional spau. sphere Asoild ger.erated by ~ revolution of a:-emic:rc1e about Its diameter. whose ~rface Is at all points ~. equidistant from the center.. poly41ron AsoIkI ge.cmetrlc fl9ure bounded by p13nd3ces. r~ular H.'lvir.g all faus congruent regular poly~ and all solid angles congr~ prramid Apo~t.edrcn havln9 apolygonallr.lse and t,";';;:"-3'JlJrfaces mutlng at a common pelnt or ver-..ex. ',,-_.- -~ tet.nhearon Aregubr polyhedron ~nded by four pbnef3us. cuP-e Asor.d rot:~ded by SiX equal square slks. t1-~ angk: ~ween lrry two adJac..,--r.t fates being 3 ri9ht angle. -- hex.hUron Arequbr pclyhedron having sIx f3us. pri~m Apo~hearcn havlng ends that are para~el. congruent polygor;s <lna sides that are parallelograms. Pl.iU1nic so~ One of t.1e flve re.gul3r polyhedrons: te;raheaml. hex3hedron. octahedr:;n. dodec3hearon. Of' Ic054heelron. ---.. --~ oct.a~rcn Aregular polyheJron h2v!~ ~~ht faces. - ~ do<b;a~ron Aregu br p<llyheJron having 12 faces. ',_.- ..~ ico~a~dron Are~hr pclyhedron having 20 faus. 111
  • 112.
    GLASS Alurd.lniWe. usually transparent ortranSlucent suf1stance. produced Pi' fusing sita together with a flux and ~ sbl1t11urInto a mass th3t cools to arigkJ condItion without c!,),staIJizJtion. crown glass An old fonn ofwfndow glass formed Dy plowl"1 and wftlr!l~ a hollow sphere of g13ss Into~ fbt. Circular dis£: with a centerIuI1p left Vy the wori:er's rod. shutgbss Aft3t, scda-Ibnc-~ glass faprlcaW Dy drawing the InOIten gbssfrom a fum~ «<aMIglass). or Dyfonnlng a cylinder.tJIvIdIng It lengthwise. and futtenl"! It (cyffnder,lass). The flre- polished~ are not perfe.ctly pmllc:l resultln41n some dlstcrtlon of vision. plate 5laS5 Aflat. soda-ltme-sl1lca glass formed Dy roinng molten glass Into apla~ (rotled glass) that IssuDse'luently ground and pons,W ~coonng. float glass .----.--.-.•..... Afut. soda-h~sll1cJ glass that Is ........ ewemc:ly smooth and nearlydlstcrtlon· .... free. NllIbctured by pouring mol~n ", glass ooto asurface of molten tin and a~ Itto cool slowly, Float glass Is the successor to plate glas5 and accounts for the 1113jorIty of flat-g lass proJuctlon. ·.;u&~!l~~: Aglass unltconststlngof two or more s-heetsofglass sepal'3ted by henretblly-seaied alrspaus. hermetlc --.._-.-._............. ~ airtlght by fusing or Staling. '"~t.~~: Glass ~ achem~1 admixture tc ~VsorV aportion ofthe rad~nt heat ~nd vIs~ Ight t1ut strike It. Iron oxide gives the!lass ~ pale ~-~~_~t; ££~It ~~ IInf'3I'ts a~h.~Il;; sdenkm Infuses a~ tlnt Also called hUt-~Rf ,lass. ~~""'~--"---"""'--"h_""_""'" Glassbiiig'a thin. translucent met.:;IIIc ~ toondeJto,he exterior or Interor sllf'bce kI refleaJ portion of the IIght ",lid radiant heatth3t strike It. :~~~Wt~:; ---.--...-.....-. Glass ~i-tnftSinitS~117Ie light while -. I "'-'" ~re&a!ng the longer 1"--........... ~sofradlant heat. produced Dy ""'-, ~alow-emlsslvftycoatlng •...--J._._..__.._...__ either~ the glass Itseffor over a ! transparent plastic film suspended In the i summer ~~~~~~nSUla~ng glass. Also I' em~ The ~ alIdlty ofasurface tc emit , radi3nt ~t.lI1easured 3galnst a placl: I ~at the same temperature. I I sh~di~~lent ~ The r.iI~ of solar heat tr.insmlssion thro~h:l partJcubr glass to the solar h~3t == tranS«1lsslon thf"'OUgh dool7le-strength c!earguss. __.-.:..!_ _ 112 si~~strength gla55 5~ glass h3Y1ng athickness of 3/YlIn. (2.4 mm). dcuble-st.ren¢l glas5 5f-at glass l!3yjng athickness of '/~ In. (32 mm). -t- ! i -r1 I I LL 1 T 1 1 .~ I II - anne.a1ed g1a5~ Glass t~3tTs cwtea slowly to reHeve Internalstres5es. .ht3t~enqthenedglas$ Annealed glass that Is partl3lly ~mpered Dy aproctss of reheating ana sudden cooling. Heat·strengthened glass has apout twice the strength of annealed glass of the same thlc~ness. ~tempered gtas, I' Annealed glass that Is reheated tojust l>elow the softening point 3 nathen 1'3pldly cootea tc Induce compressive streS~ In the SUrf3~S and edges of the glass and tensile stresses In the Interior. TempereJ glass has three toflve times the reslstance ofannealed glass to Impact and thennal stresses Put cannot De a~red after- faPrlcatlon. When fracturtd,1t In-e3ks Intc relatively h3rmless particles. -'·~~·-::~~=ll-j ~;~"::!~~ftrt9IaSSDoncWUnder heat and pressure to Interlayers of .:':~ i I i T 1 ill J 1 IL 1 I polyvinyl Dutyral resin that retains the I .fr39~.nts Ifthe g135s is Drcten. Also called I rsat~!!,~~;; I ,i'~~g~~~ 13mlnated glass havlng exceptional tensile and Impact strength. consIsting of multIple piles ofglass Ponded under he3t ~nd pressure to InWlayers of polyvlnyf I:>utyral resin. r~u~lgb" 13mlnated or InsiJktlng glass used for sound control Wire9ra,~ Flat or pattemed gtass having a so,uare or diamond wl~ mesh eml7edded within It to prevent shattering In the event of ~bge or excesslv~ heat. Wire glass Is wnsldered a safety glazing IT!3terl4l +A·····~=~~:~ularslJ/face pattern : formed In the rontng process tc obscure vision or tc diffuse fight, AIS<? called fl§ured I~SS. ;?o~~j~ Glass ~lng one orroth sides acld-etched orsand!llas~ to wscurevlslon. ~'~~~$j An o~~ glass'f~c.onceanng the structural elements In curtain wan construction. produced by fusing aceramic frit to the Interiorsurface of"temperedor heat-strengthened glass. ~~j~~~~~I~ ~j.~!~l~~· . Atf.lnstucent. hoilow bfoc~ of glass wIth clear. textured. Of' patterned faces. made Vy fUSing two h3lves together with a parUal vacuum Inslk and used for glazing openings. ;5~.5.;~k ~son,l.lmpaci-reslstant glass plock unit, sometimes haVing an Insert or coated to reduce solar heat transmission. < I I J I , i , i ! I ~. J r~ , I 1.
  • 113.
    ., II • t.Jcegl.uing The seWng ofaglass paM In arabbeted frame, hakllng It In pbce with glnler's points, and seaang ItIIIlth abeveled bead of putty or glazing compound. fAce putty .------------------- ------.--.----.----- -, The putty or glazll1 compound formed on . I: =~rio~:~01'_,1,,5F :"'_____, 111 Athin layerof putty or glazing compound . I'li lata In eM rabl>e-tofa window sash to give II paM of glass an mn I7acklng. • I glazier's point ---------.--.-..-.-'... ASm3n. pointed pieceof sheet metal for - hol.dlng aglass P"~ In awood sash until the tau putty has hardened. Also called gl..azJng Urad. s~. putty Acompound of whltlng and linseed oil. of doughfl:e consistency when fresh. used In secur!l1g windowpare5 or.patching woodwork defects. glazir~ compound An adh~sNe compound used as putty. formuiJted so as not to become brittle with age. ~~~~a;lass~~~·~~;~~~d·f~;----· .. ....--.--. gLnlng 3n opening. allowing for adequate eJ¥ce:aranus. Also called gl.a:zrng size. unit'.eJ inches The sum of one ~ and one width of a recta~ular glass pM or unit. measured In tnches.. ~e p~ck --..--.-....-- .. -...-----.-----'.• One of the SlT13n l7locks of synthetc ", rJb~ pl3ced l7etween the side ~es of a glJss f13~ or unit and i.1 frame to unter ....~ It. malntJln a uniform width of Sailant. arJnmft13ttral~t~usea~ sating block ..-: ..-..~-.,' ~Itdlry 'Ilt>ratlons ortherlT13l expansion One of the Sm311 Uiocl::s of lead or or contraction. Also calIea centerrng synthetic rul711er placed unaer the shim. spaur. lower eJge ofaglass pane or unit to support It within aframe. f.lce c!elr~n.ce _..---.-_.------ -.. -----~._, TheotStanul>e-t~thef3Uofaglass r"'::- - .--.-- ii' pa~orun!tandthenearcs-tfaceoflts "'- !I fra me" stop. ~surea n~31 to th~ '.'. : plane eft the glass. ~.. !ll l:Jite ~.- ...-.---.----.---------..--.. The .mount of OYeNp between the edge of, glass p:lMe or unit and a window fra me. stop. cr Icd-strip gasket. edgeck.1rance --------------..------- ... The dlst.anu bet~ the edge ofaglass p-ane or unit and. wi11dowframe. IT1e3surtd In the plane of the glass. ~X~t~if~~~~~~·~----··-·-··- tempertd glass are suspended from speclJl clamps. stJbll1zed by pe~ndlcular stiffeners of tempered glass. anclJoined by;l structlJral silicone ~larrt and sometimes l7y ~I patch plates doul:Jle gl3zing The Installation oftwo parallel panes of glass with asealed aIr space between to reduce the transmission ofheat and sound. GLASS gl.~zing The panes or sheets of glass or other transparent material made to De set In frames. as In windows. doars. or mirrors. wet glazing The setting ofglass In awindow frame with glazing tape or aliqUid sealant. -----------.--.---.----- ,-.--. glazing tape . : Aprefonned ribDon of synthetlc rubber hull:Je3d .....--..: haVing adhesive properties and use.4 In glazing to form awatertlght seall7etween glass and frame. --- ..-.- cap stalant An adhesive liqUid ofsynthetic rubDer Injected Into thejoint between aglass pane or unit and awindow frame. curing to fonn a watertight seal. Alsocalled cap l:>ead. '-,,----_ glazing ~d An adhesive liquid of synthetlc rubber Injected between aglass pane or unit and a glazing Dead. curing to form anaIrtlght seaI. Awood molding or metal section secured against the edge ofaglass pane or unit to hold It In place. Also catted glazing stop. dry glazing The setting ofglass In ~ window frame with ;I compression gasket Instead of glazing t3peor ahquld sealant. C<lmpression ga~ket Aprefonned strip ofsynthetic rubber or plastic compressed bawe.en aglJss pane or unit and aWindow frame to fonn a watertJght Sail and cushion for the glass. --_..--.... Iockstrip gasket Aprefonned gaske-t ofsynthetlc ru;ber for securing 3 glass pa~ or unit In awindow frame or opening. held In compression by forcing akeyed lockI11 strip Into agroove In the gasket. flush glazing Aglazlr.g system In which the framIng members art: set entlrely behind the glaS5 panes or units to form aflush exterIo!' . surfau, the glJss ~ng to the framing '.-"" Iwith astructural silicone sealant. '.~ .-.- structural Se3l.ant Ahigh-strength sl1k:oM Sailant capable of ;ldherln~ glass to asupporting frame. ... l:Jutt-joint glazif19 Aglazing system In which the glass panes or units are supported at the head and sill In aconventional manner. with their vertical edges beingJoined with a structural silicone sealant without mullions. 113
  • 114.
    HARDWARE The metal tools,fastenings, and fittings usea in construction. ~h hardware . Bor"...s. screws. nails. and other metal fI~s that are COI1ct3led In aflnlshed c.onstructlon. finish hardware Ex~ hardware serving adecorative as;;eilas autilitarian purpose. as the lod:s. hinges. anaotheraccessories for doers. windows. 01 ndC4lnnetwOrl:. Also C31~ architectural hardware. door h.1rdware The fu1ish hardware requlrea for ha~ing and operating adoor. doorclo~r Ahydraulic or pneumatic device for controlling the closing ofadoorand preventlng Itfrom slamming. Also called doo.ch«;k. _._/ push plate - ---- .---.------------.--- --- - - A protective pl3te of metal or plastic ···········,·········:fI.·, . .~ mcu~...ea vertlcally on the lock stile ofa __...-' door. . _.---.-.•.--.- ./.. door pull ~....-.-... A~~!e for opening adoor. pun par _......- ..-.............../ A Ir.lrflxed acl"O$s aglazed cIoor, used for ~lng orclosl~ the doorand prov1dl~ p~ for the glass. kick pL:rte ---.--.-...-..- ........•. A~lve metal pImfastened to the XttaTn of3 door to resist I110ws anJ scrnches. hand The position of the hinges of a door, In terms of right OIna left, when seen from the ~~rlor ofthe l1ulldlng or room to which t.ie doorwIIY leads. 114 floor closer --:. Adoorcloser Instat~ in arecess In the floor. --.--- automatic door Pottom AhorlzontaIIr.li-at the rottom of3 door that dropsautomatically when thedoor Is closed In order to seal the threshold and reduce noise transmission. left-hand Having the hinges on the left ofan Inward opening door when seen from the exteriorof the Irolldlng or room to which the doorway leads. Fl~) I I L/ I L_________ ._. ___ -.-..1 left-hand reverse Having the hinges on the left ofan outward opening door when seen from the exteriorof the ~ulldlng or room to which the doorway leads. overhead conce.3ttdcfcser AcIocrcloserconu;;!eJ In the he3d of adoorfra me. ~ac~~ck AtlevIu In ahydra!;!"" door closer for sloWing the speed i'o~i which adoor may be opened. .' knocl:er -.--.. ---......--....-/. Ahlngej ring. Dar. cr I::nol1 on adoor for use In knccl:ir-3. DfI doorptrt.e ....-' Asm~Q identifying plate on the outside door of ;J house or room, !?earing the OCCuF3nt'S name, the house Orapartment num~. or the IlI::e. ............_...- ...... judas ~- ......... .'~ . ~ ..-.---:::--.-.... -- ' Apt:t:Fho!e. as In an entr.i11C6 dooror the I door cf 3 prison cell. Also calledJudas hole. .... door cluin Ashort chain with a remov:;!?Ie slide fitting that C3n be attached between the InAA of ;; door and the doo~amb to preventthe door from I1eIng opened more th.n afew Inches wfthaut the chain l7elng removed. "-·1-- mails!ot Asmail ~Ing In an exterlordoor or war.. often i'fith ahinged closer, through which mail Is denve,ed. Also called letter slo1:.. -.--.. doo~p Adevice for hotdlng • door open, as a wedge ex- small weight. .". l1umper A~~ rim, gU3rd. pad, or diS«: for al1sor71r~ shock or preventing damage from t>vmplng. right-luna Having ~ hinges on the right ofan Inward C¥nlng door when seen from the exterior of the Irol!dlng or room to which the door"ay leads. right-hand reverse Having t-he hinges on the right ofan outward Cf'?llng door when seen from the exterior of the building or room to which t!--e doorway leads. I J Ii L L L
  • 115.
    I ~l mortise hi~ ~----------------------­ APunhinge I10rtLsed Into the aMtln~ sur-f.las ofadoor and doojam!7_ ~ah~;~~:oh~"6t;';;I~;d~~~-----I:---'. th~ tdge of the door anathe other : ... 5urf~-moofTk.d on the doorfra me. .L---,='==-t~~ half-suriacdinge ..---------- -- Ahin..3~ hJvi~ one!af mortised Into the doorfrarneana the other surface- moul1won the face of the door. flap billge ------------------, Ah~ 1uvI~ mo le3ves surface- ". mounteJ to tile adpcent faces of a dooranado<rlrarne. Also called l7acl:fup hl,,¥, fun-surface hinge. templ1te hinge ~-- ________.___ ,. Amortise hlr'¥ rnanufa<;turea to fit the rea:5S and match the arrangement of hck5 of hc&w metal doors and fran-.es. 17afl-P~Jring hinge ~----- -. --- -.- --- A hir-¥ eqUipped with!r.lll loearlngs bet~n the klltJdles to reduce friction and ensure e:35e of ~ratlon. b:rt-pin hi"¥ II hl~e having a nonremovaule pin. _.--- (£5 Iocs-e-pin hinge -------------------.--... A h~e bvlng;l reroovable pin so thilt a door can be unhuf11 P:isepar.ltlng the t.¥o~;l"es_ Iocs-e-joint hinge ------- -- -- -------'. Ahinge hJving 3 knudle formecl from half of e3ch bf, wlth the upper haff remon ~ from the pin. Also called liftcff nl~e. pintle --.---- ------- ---- ---- -- - --. Apin CW' rolt on which something turns, --.-. as tI-~ gudqeon of ahingt. gudge.on II socl:et for the pintle of ahinge. tlpring hinge ~.---..-------- ..--------- -~- Ahinge co~ a coiled spring In Its 10 VarTel for closing adoor automatically. aou17te-acti"!'l hinge A hinge pumlttlng 3 door to swing In either direction. uSUJIly fitted with sprlngs to mngthe doof to acIosea poslt1cn after opening. piano hinge II long. narrow hinge that runs the full length of the two surfaces to which Its ~aves ~repnd Also called con ti rHiOtJ 5 hin¥ HARDWARE hinge Ajointed device. uSUJl1y conslstlng of two leavesJolnea together lJy 3 pin. on which a door. ga~. or shutter swings. turns, Or moves. leaf Ahinged. sliding. or otherwise mevable part of adoor. hinge, or tabletop. -. gain Anotch cut Into 3 surface to reuive a leaf of a hln~. Also called sInkIng. -.------- ---- knuckle .~ . The cylindrical. proJecting jointof ahinge through whIch the pin passes. . -'" htthinge Ahinge composed of two pf3tes secured to the auuttlng surfaces ofadoor and aoo1amu. Also called Putt. .r----. strap hinge o Ahinge having two long !eaves for securing to the adpeent faces of 3 door and doorjamu. .'----. -- --'" cross-garnet .' Ar-shaped strap hinge with the crosspiece as the stationary 1!1emPa-and the long stem loeing the mava!7!e rat. Also called T-h1"9/!:. .- .-------- dovetail hl~e " Astrap hinge having ~es which are , • narrowerat theirJunctlon than it ~ei;- ~ ather extremities. ~ .------ -- ------- .-- "--'" parliament hinge invi,/lIle hinge ------.j ·Y·~ ~ :!) r····· Ahinge consisting of3 num!7er of flat plates rotating arout a central pin, with shouklers mortised Into the door edge and doorframe so as to concealed when cloSed. Also called conualeJ hlf14e. ,......---, 0 ® 0 ® D ® 0 ® 0 ' - - - - An H·shaped hinge h4vfng aprotrua'1ng knuckle so tllata door~n stand ..~ from the wall when My opened. --- pau~lIe I"r-- ..1 Ahinge having .. single, plvatl~joi.rTt. olive knuckle hinge Apaumelle having an MI-shaped knuckle. Also called olive hinge. gravity hinge A hinge that closes automatically by means of gravity. rI'lng hinge Agravity hinge causing adoor to riSt slightly when ope~d. 115
  • 116.
    HARDWARE lock Imh cylindu Acylindricaldevice for retaining the polt of a locI:: unUI the tumDlers have been pushed out of Its way. An asseml:ily of parts lT13Klng up .. complete locking system.lncfuair<;l ~nc;.s. plates and alocking mect3nlsm. A~ for securing adoor. drawer. or lid il posftloll whenclosed. consisting of abc4 fX com~atlon of ro!ts propelled and wtthJrawn l1yakey- fX comDlnatlon- opern:ed ~h3nisin. MnrM:·-----------..---..----.--. ~.-~.I Ade..'a for hoiding 3 door c~, ccnsistlng essent13l~ of .. b:;~ that falls or $ilks Intc A~roove or hole. //",·.u..mM An o~tructlng part In a Iod: that A'kdf3~~ tothe f3a of I a door. as opposedU> one l7Uilt ilto Its edge. ~~wtUtiltwo ~Ies specL;:!y c~ tc fit Intc alad and :r"",'e its ~. prevents apolt from relng propelled or wIthdrawn unUilt 15 movea by the action of aKey. (eyer'til.mbJer,.. Afut meta! tUmpler having a pivoting motion actuated Dy the turning ofa~ey. roreJ at right angles to euh other. one t&tough ~ face of adoor and the adler In the dooredg~ ----______ _pit::--·--·---···---····--··/ One cf *~ projecUn~ bl.3~ cut to; ~.gage with ana actuate elt.he·r::f roth the Pelt aM the tumr:~ of a lock. .~.- cam· &mit~~' jA ~.t,i~ within a ~ "(fOcdiUilt -------.---'. -. Thef.~b:;h..peahandle . ~~ular notch cut Into the ry which .. door 15 o~orc~eJ ~ ~~ ~---:.~--:-:.,.-::::::~ ,.'t) edgeofadoor. ..-___ A1IOtefrta loci: case or escutcheon for Inser-..;ng a~ey. .~Jdtt"~ J l ~nj&&7withfn arnortJse c~ Into adoer~ so ~ the led mech..nlsm Is ~ on ~oth5~""_ i~~" A~~eor onu:r.e:rtal plate. as arO'J rJ a ~eyhole. ___ doortoob. dr.lwer pulL '_ or r'9ht swluh. Also. -'sc~ecn'1 '. ;: &p~-~-·----·l <~:~) Ii Theliaror shaft •• :, that C3nie5 the ; - :: Koman" ; :: actuates the latch orl1oltofa Iocl:. ~'-t~.---..~__l An onurrental plate surrourJ1ng the sh..f; of a doori:nol1 at the face of adoor. ~;f~~,h The'!iOrlZont.-I dlstar.u frem the face of~ Oc~ through ,.';',ich the Pelt passes to the ~dJM of the ~nob stem. keyhc~. Of locI: cylinder. ~. .... Adlsk or cylinder having an IrreguI.ar form that rotates or stJdes U> Impart motion toa roller moving against Its edge or to apln free to move In a groove on ltsface. '...-_._.._} 'i.GjW-;y~ "', ~~:.~. The ~e plate or surface throogh which the Pelt of alock pas~. Alsocall&t~f!1~ ~~~ A~I !r.;r or rod In the mechanism ofa lock that 15 propelled or withdrawn. as Dy turning aknob or ~ey. ~}t;~ II K:>&~ having a~uare heat.l that Is rrcreainto posltlon !r,; the turning of 3 knob or key rather than Dy spring 3Ct1.on. Also called~; ;'".:1omB~ ·>,-'_7'.'.":;::-,,,.:f Th~ cplique end of a latchbolt th;;t hits astrl~ plate. AslOt In a lock for receiving and guk:llng akey. . war-If:; :Aproj~lng ridge of metal In a lad or :eyhole that prevents the Insert10n of any key that does not have a corresponding notch. revel'5i!11e lock Aled having .. latchpolt th3t can be rev~rse.d for Installation In either a ~ht·h3nd or Ieft·hznd door. pevel The side ofa lock facing In the same direction as the !level at the tTld of the I3tchrolt. •.---- .---- ---..-.• regu~r b>evd .' The l1evel ofa ronor lock on adoor openl~ 1nU> ~ L>ultdlng or room to which the &oorw;ry leads. .., .. -- ..... reverse bevel "~ The Devtl of., Dolt or loci: on adoor openl"g outward from the pulidlng or room to which the doorw3'j leads. pani;br A horiz""tar~ar that spans the Intero-of;ln emer~ricy exit door at waist ~ht and M opens the I3teh when pressure 15 applied. Also called panic bolt. paniC h3rdW3re_ 116 V~~~.' ."-~6riiDi1tatliandle for operaUng the Pelt ofa Ioc~. ~. ~.--"'.•,'~-=--==:-",.~---.--' --~--. Ametal plate 0.. a doorjaml1 havfng ahole for receMng the end of alock l101t when the door Is closed, Also called stn~ piaU:. lip ,~ ... "':'.--"'--"-----"- .-.- The prC¥Ctlng edg~ or rim of a strl~e. pox striKe Ametal Pox recessed into a doorJarrb to receive the end of a lod bo!: ...hen the door is closed. -y....~lnga !leveled head that Is moveaInto position Dya spring except when retracted ry a&oorI:noI7, or when pushed agaInst the lip of the strike plate as the &oor 15 closed, ';i"f.I.with the face or edge of aaoor. .'~iQift;.o~,;·--'·--"-··-'·-·-'···"-~· , .(fl~sh'boit&ieilnto a mortise In a aoor.sliding Into asocket In the head or th~ silL ; cOQJ~i~!C_~,-:; ~dtVfCefor'ens'uring that th~ Inactive leaf ofapair ofdoors 15permitted to close before the active leaf. ~ 1 1 .J 1- ,- L L L L L f I L .......i
  • 117.
    ,.. 1 'r<A 1 j .-- calorie ..-' Aunit ofheat ~U31 to the quantity of heat r~ulrea to raise the um~tureofoM gram of water l°e at a pressure of one atmosp~. ~ulv3tent to 4.186 joIJtes. AQl,r.: c.al. Also caW gram ~.alorle. snt311 C3lcrle. ki10cJlerie A unitofheat~U3ltothe qU3n".lty of heat required to raise the temperature ofone kl~ ramof W3ter 1"(; at a pressure of one aUr.ospnere. equlv3tent to 1000 SfT14IIf calorles. Abw.: ~l Also calW kilogram calo~,lArge c.a!ork:. hatC3pacity ----------.------~ The ql!3ntlty of ~.eat required to ; r;alse the temperature of a . suustance by one degree. Fahrenh~itSC3le Atemperature SC3le In which :32°F represents the freezing poInt and 212°Fthe roiling pointofwater under standard atmospheric pressure. When you knowdeqrees Fahm:heit. fft$ subcnct 32 and t!-~ multiplyby ~9 to find deg~Cdslus. 125lI I Celslu5~le Atemperature scale divided Into 100degrees, In whIch O°C represents thefreezIng point and 1000 ethe boiling point of water understandard atmospherlc pressure. Also called ~ntlgrade scale. Whenyou knowdegrees Celsius, first multiplyby9f5 and then add32to find tkgrus Fahrenheit. Kelvin $C3~ An absolute scale of temperature havlng azero point of -273.16°e. ~!7s0lute ~are Atemperature scale !1ased on absolute zero with scale units equalln m3gnltuae to centigrade degrees. .al?solute zero The hypothetlC3llowest limit of phystcal temperature characterized by complete absence of heat. equal to -27.3.16°C or -459.67"F. .al?solute temperature Tempe~ture as measured on a absolute scale. HEAT Aform of energy a550C~ with ~ random motlOfl of atoms 01' morecules. capaine of i:Jei"'3 transmitted ~ convection, conduction, Of' radiation and causi"'3 substances to rise in temperature, ruse, expand: or evaporate. kelvin The b:ase Sl unit of temperature equal to Vm.l6 of the tr:ple point of v.7ter. 5ym~oI: I( triple point The particular te:nperature a:'J pressure at which the hqliid. g3seous. a~J sola pha~ of asubstance can exist In l4,;iijbrlum. epecific heat IC<J r------r-------------' "'*~~_=;.~---__I1--~""r_--------___;------I1 ..- latent hut ~ 75 tl '----·-----L-----~·-..- The'tUJrrtlty of hat 3bsorred or rdeasea Heat C3p3City per unit mass of a su!:>stance: the num~r of Btu ~ulred to raise the temperature of one pouiJa of 3 sul:rst3nce 1°F, orthe numberof C310ries pergram perdegr-o.-e untlgr'3M. "- ._. _. 1 : by asU~5t3nce during achJi"L¥ in phase at ~ -.-....----.-.- : I const;"ttem~tureaMpressure. }:--r---,r·-----..-·· ;:;~:~I~hata!lSOrredorreleasea : by asubstJnu during achJr¥ In I I temperature wttlo,c1Jt 3 char¥!n phase. l I tlm~ ~ }j)J f ;/. 117
  • 118.
    HEAT convection ..~-----.--- ------------- Thetransferof heat Py the clrcuL-.tory :r.otlon of the ~tea parts of ~ lk1ulcl or ~3S owl"9 to ~ varbtlon In density 3na u,eactlon of gmlty. thetm.1lcc~ .--- ------------. -----------1 The t:lIM I'3te ofheatflow th~h .;!Unit : ~ofa ~Iven mterlaf of unit thlci:ness ' ~ the temperature difference across the thIcl:ness IsOM unIt oftemperatureo tnerm.a'ccMucbnce TheUme rate ofhat flow through a unit ~ ofJ given rgtertal when the ~tlIre difference across a speclflecl dllctness of the materl311s or.e unitof t.empmtllre. "'~:.= ----------------.....·~~~E( I , f tnermall7r~k __.___...L_....---(---..-..--'-.-. Art e!ementoflow thermal . conductMty pbce<l In..nassem~ tao reduce the flow ofheat ~etween highly. conductlve In3tulaIs. Also callecl tMrmal pamer. 118 conducti;,n The ti.lnsferof heat from the warmer to the cooltr partlcles of a medium orof two !ladles In direct contact, occurring without perceptiDle displacement of the prtlcles themselves. - -- radbtion _J The process In which energy In the form of l'I3ves or particles Is emitted by one body, p~~ through an Intervening mecllum or space,and a~sorrea by another roay. ..• thermal re~i5tance The reclpl'OC3l ofthermal conauctanee, expressed as the temperature difference required to C3use heat to flow through a unit area ofa material ofgiven thldness at the i.l~ of one ~eat unit per unit time. R-value o thermal tr.ansmittance The time i.lte of ~ flow through .. unit area of a l7ulldlng componentorassem~1y when the difference lIetween the air temperatures on the two sides of the component oraSS<:m bly Is one unitof temperature. Also called coefflcJent of heat transfer. ;-··U-value Ameasure of thermal reslstance of agiven materl3/. used esp. to specify the performanceof thennallnsulatlon. The ~I R-value for a ~ullcl1ng component or assem~ Is the sum of the R-values for eaGh layer In the componentor assem~ly. • I/R(t0t3I) =U , Ameasure of the thermal transmittance of a l7ulldlng component orassembly, equal ta the reciprocal ofthe total R-value ofthe component orassembly. - - - = - - --~--~----- Infiltration ....~ Theflow of outside air Inta an Interior space through cracks around windows and doors orotheropenings In the envelope of a building. we3ther strip - ..... Astrip of metal. felt. vinyl. orfoam rubber. placed l:>etween adooror window 535" and Its frame to provlJe a seal against wlna~lown rain anaair infiltration. Also, weather strippIng. 1 [ 1 I lJ J I ~ j~ I j I oM I - 1-
  • 119.
    ., mineral woel Arry ofYJrlous ~htwelght.1norg3nlG. fi,rous :n.;3~1s used esp. for thermal .aM sound Insolatlon. 3S glass wool and roct 1¥OC4. gllss wool Spun ~lJss fibers resembling weal and useJ f:x thenrul :n5<JL.tlon and air ftlws. fi~ergll55 AI'r.3 ta;l1 cons!stln.g of extremely fine ftl3marts of gbss. WGVen Intofabrlc. ITUssed for use 35 athermal ;11'1.1 .awJ5tlcallnsubt.or. orem~ to reirTforce 1fJn?us lTtlterlals. fi;ltrgL1s TradcTtul: for.a ~na of fibergl3ss. rock wool MIMr.l1 wool ~ by blowing steam or aIr th~h I1"oOI-ta1 slaq or rod:. --.J f03med pllstic fus:c, 3S po~r~hJM or poiy5~T"eM. ~ rl.jht and cellular by tl-..e lrrtroductlo!l of pockets of g3 s or atr and used 2$ thmT13llnsulatlon. Also ~rw expanded pUstlc. pUstJc fo<1m. polyilrrlhal1e fo.am Ar.gtJ expanJed ~mh<lM havlnq a closed-ull stru;ture 3na used ..s the~l:nsu~ mckW polystyrene A;-g'J polys~ f04m hJVIng an open-cdl stnJcture .ina used 3S ~llnsu~ ~~tyrene A~<J po~ foam h3Ving J closc:J-u1l structure ana used as the~.;;;1 ir.su!4u., Styrofo<1m T~r: for 1I brarJ of foamed pl4~~ rr.ao.e from polystyrene. rc.am gL1ss Ulubrglass Irt<Ide b:ifoa~ ~ ..... ~ gLJss 3rJ moIdlnq It Into Po.J ras or blccis for ~ 3S thermal insuLit.lon. wood wool ~ lOOOd shavlf'.,Js. u5U311y of pine or chem~11y ~tea wood fl~. used as an Insu1a';j11.3 materIJl. 3S aUinder In plaster. 41M f:x FJdl~ Al:so called exulslcr. ....~ airway The pasS3geway required fer the clrculatlon of air petween ~tt lnsul3tlon and roof sheat.~lng. lIatt in~uLrtion -.... . Flexi~I.e. fibrous thermallnsulatlon of gbss or m!r.eralwool. made In YJrIous thlc~r~ ana lengths and In 16·!n. (406111111) or 24-1n. (610 mm) widths to flt ~WI studs.Joists. ana rafters!n flght wood frame constructlon. scmetlrr.es faced with avapor marder ofkr7ft p3per. metal fall. or pl3stlc sheet. 8mInsulation Is also as a compooent In souna-lnsul3tlng constructlan. Also C31'ed I1tanket In$uLrticn.. kraft paper _.......... Astrong. usualti ~rown paper. processed from wood pulp and sized with resin. rigid ~:ua insul.rtion _.......-._......._-_.. Ap-refor.r-.ea. nonstnJCturallnsulatlng board of roamed plastic or cellular glass.Utular gl3sslnsulatlon Is fire· resl$t4lTt. Impervious to mc!sture. ana dlrnenslcr;ally sta~. M tt.s alower the-r.r.al-reslstance value than foamed plast~ ir6uatlons. whleh .are fummatr~ and must 1e protecteJ by a the~l ~rrIer when used on the Inter'.x 5'Jrfaus ofat>ulldl~. ~Id In5U~ fuvl~ closed-cell stf'.JCi-IJl"!S, as extnJata roIystyr!:r.e and cenl.itJr glass. are moisture' resl5'"~rrt arJ may ~e used In contact with the earth. foamea-in-pL1u ~ul;tion The~1 ir.sul3tlon in the formofa f03rr~ p-I3stlc. as polyurethane. th3t Is $j7¥ or Injected Irrtc acavtty wh~ It adheres to the SUITOllnd1ng surfaces. Ioc~fitt insulrtlon -_...........__........ . The~f lnsul3tlon In the form of mlnml 'I'rOOI fJ1ers. granular vermlcuhte or ~r!ite. or t:"eatea cellubslc fibers. poured ~ fund or Plown through a nozzle irrto ac.avtty or r:Ner a suppcrtlr.g memPT"aM. r~ye insul.ation .-........... Ther.r..llnsul3tlon In the form of a materi;;lof high rt&ctlvlty and low emlss.v1ty. 41S paper-lr.lcked aluminum fOil IX fo~·b3Cked gypsum Poord. used In corj"J~~lon with 3 dead'air space to reauu tr.e transfer of heat by rad;3:cn dead-.air 'pace ~.,.. .....: An unvet1tiLJted air space In which the air ~s not circulate. H~AT thermal insulation A ITUterI3l providing high resistance to heat flow. as mineraI wool. vermlcullte. Or foamed plastic. fallrlc3ted In the form of l1atts. lIlanKets. Poards. or loose flll weatherize To make ahouse or ~ulk:l1ng secure against cold or stormy weather. as by adding thermallnsul3tlon or storm windows. or by sealingJOints. .... fil7erl7oard An Insulating l70ard made ofwood orcane fJ~ers compressed and cemented Into rIfIld sheets. used as an Inexpensive watt finish oras celllng tiles. fil7erboard sheathing Insulating fiPerVoara treat:ea or Impregnated with asphalt for w.t.er resistance and used primarilyfor she3thlngllght wood frame walls. emissivity The alltllty ofasurface to emit heat by radiation. equal to the ratlo of the radiant energy emitted to that • emltt:ea by alIlack Podyat the S3me temperature. 119
  • 120.
    HEAT tWnul comfort' HUlTI3n ccmfortas ~lned Py the 3PUlty of the rody to dlsslpate the he3t and moisture It produces Py metaroncaction. effective temperature Atemptr3ture representlng the comvined meetof 3m~nt temperature, relative hu,,,ldlty, and air movement on the 5ef1satlon of warmth or cold felt Py the human !my. equivalent to the dry-vulp temperature ofstill air at 50~ relative humidity which Induces an identical sensation. _ ----- --.------- -----------'" wet-pulp temperature --~-.. The temperature rec.orded Py tM '-,- wet-!:>ull7 thermometer In a ....." " psychrometer. ~ dew point ~--- ---- --------------- -'y-'- - -- - ---- --------70 --t:--r--+---t 120 . ---~'-'- humidityratio The temperature at which air . vecomes saturated with water ... .r--+-->,-~po..,o=-i~-,.4--+---+---+ The ratio of the /1'1355 ofwater vapor to the mass ofdry air In a mlxture ofairand water vapar. Also called mixing l7tJo. vapor. Also called tkw-polnt . temperature. ' ~~--~~~~~~~~--~~~--~ comfortzane ~--.---.-----------. -------_. ____________ --- ------.------------ -- ,,-- The range of dry-!:>ull7 temprature. re!aUve humldity. .r--.I'---.,,,..-4--+--+-~F---'1'"=---'~~~ mean radiant temperature. and air movementjudged to be comfortalXe by a/l'l3Jority of Americ3ns and ~nadlans tesu.d. This comfort zone varies wtth cIllTI3te, the ~SO!1 of theyear, the ~ of clothing worn, and the activity leve! ofthe lMvidU3llJso called ~ envdope. psychrometli<: ciurt Achart ~t!.'Ig ~he we'Hull:> and dry-PtiII7 readIngs from apsychrcrroe:ter to relative humk:l1ty. ai1solute humla'"r;y. and dew point_ ~n radilnt te1t1perrture The sum ofthe temperatures of the surrounding W311s. floor. and ceiling of a room. ~hted aoo>rdlng to the solid angle su/7tende.d by each at the point of measurement. Mean radiant temperature Is Important to thermal comfort since the hU/l'l3i1 body receives radiant heat from or loses heat by radiation to the surrounding surfaces if their mean radlant temperature Is s~n1flcantly higher or lower than the air temperature. 120 50 .' ~ .l ary-l7ull1umperature -""'~-~--- ------- The tempe:-ature recorded by the dry- Duf17 thermometer In apsychrometer. ~ychrometer An instrument for measuring at~herlc humidity. cor.slStlrog of two thermometers. the Pulp of one I7elng dry and the-j,ulll of the other belr.g ~pt moist and ventllaW so that the cooling that results from Ciaporatlon ITI3KeS Itregister a lower temperature than the dry one, with the difference Petween tM I'C3dlngs I7elng a me3sure ofi'tll'1c5pher1c humldlty. radiant ht.at -------------- ---, He3t ener~ transmitted Py the radiation , of ~tromagnetlc waves In contrast to heat transmitted I7yconductton or convection. 70 90 relatNe humidity ---------j The ratlo of the alTlount of watervapor actually present In the airto the maximlim amount that the aIr could hold at the same temperature. expressed as apercentaqe_ AUl7r.:m .1b-50lutehumidity Themass ofwater vapar present In a unIt volume ofair. 'pecific humidity The ratloofthe ITI3SS ofW3ter vapor In air tothetcbl masscfthe mlxtureofalrand watervapor. hygrometer Any ofvariouslnstrurnents for measuring the humidity of the atmosphere. :--enthalpy : Ameasure of the total he;;t co~lned In asu7st3~ eqtl4l/ to the 1nterTt31 en~~ of the suDsi:.ance plus the product of Its volume and pressure. The enthaIpy ofair Is equal to the sensible he3toftM ak and the water vapor present In the air plus the latent ke3tofthe W3ter va par. expressea In Btu pe:r pound ('t:ilojoules perkilogram) of dry alr_ Alsocai!e.::l hutccnUnt. adL1Ua~~ A~ to temper.ture occuni04 wtthout the 3ddltlon or removal of heat. as when excess W3~V;lpor In the air condenses arid the I3t.ent heat of vaporizatlon of the W3"ter vapot" Is COI1Y~ to senslDie he3t In the 31r, 0~---~ ; : evaporative ~ling Adrop in kmpenture occurrlng wtthaut the addltlon or re:t1OV3l of heat. as when W3ta eva por.itcs and the senslple heat of the t1quld Is converted to latent heat In the vapor, Alsa called adlapatic caoll"9. ) r I J I !
  • 121.
    ,. thbsWle ----------------_,. Aprotective slee.'eof shec:t mebI passing throu~h the wall of.a chlm~. for holding the endof a stovepipe. stovepipe ----------..-.--- Apipe. usually of sheet metal. seMng as asteve chimney or connecting a stove with a chlmeyflue. ..- -- III t- r - f-'''---''' -i D <1- Franklin stove Acast,iron stove resembling an open flreplace but having enclosed sides. back. top. and I1ottom and afront completely -'''' ~?:;:;:~~~to bec/o;&! with doo<'$ I I I r--- I I I I I vent --- ---.-.------- ---- -- ------- .. ---.... --. -.- .--.--....-. -.. -- Apipe by which prodLJaS of combustion are carried from a fumact or otherappl13nce to the outside. compu!ltion .air The air ~Ired for coml>ustion of fuel In a fumace_ hcriUlrtbl funuce A fumxe designed for InstalIatlon In alowattlc or cral'li space. w311furruce A furnace recessed In or mounted on " wall and supplyf~ heated air dlrectty to aspace wltnout the use of ducts furnace ~--. ----~ An apparatus In which heat Is produceJ. as for heating ahouse Or prodUCI/19 steam. electric furnace AfurTIJU In which the heat required Is prodtUd throu~h electricity. ga5furnace Afurnace using gas as afuel. oil purnu Afurnace or boiler that bums fuel 011. conve~ion burner Aburner des4Jrted for Installation In a fumace that originally used another fuel. hertl"9lo.1d / I I I I I / I The hourly rate of net heat loss In an enclosed space. expressed In Btu per hourand used as the basis for seIectlng aheating unit or system. heJtl"9 d~ree day Adegree-day below the standard temperature of 65°f (l~C). used In estimating fuel or power consumption by aheating system. ~ree day Aunit that represents one degree of departure In the mean dally outdoor temperature from aglven standard temperature. HEAT mechanical5ysum Arty ofthe systems that provide essential sertlces to 2 bulldln~. as watersupply. sewage disposal. electric power. heating. ventilation. air-conditionIng. vertIcal tnnsportatlon. or flre fighting. space heating The heating of alimIted area. as aroom. esp. by means of aheat source located within the space. central heating Amechanical system that supplies heat to an entIre building from asingle source through anetwon: ofducts or pipes. heating medium Afluid su~tance. as warm air. hot water. or steam. capable of convc:ylng heatfrom 3 source to the space being heated. thermost3t Adevice that automatically responds to changes In temperature anel activates switches controlling such equipment as fumaces. refrlqerators. and air conditioners. thermocouple Adevice for measuring tem~rature In which <I palrof d1sslmilar metals. as copperand Iron. areJolnea so that a potentl31 difference generatea between the poInts of contact Is ameasure of the temperature difference betwetn tMpolnts. Pimebllic element Amaterial made by roncl1ng two metallic strips h3't'lng different coefflclents of expansion. used In temperature-Indicating and temperayore-controiling devices. ~7 121
  • 122.
    HEAT foruJ w.rm·. irhutlng A¥ttmforhe3U~:. bulldlng Dy rralIS of alrheattd In:. ful"l13U and dlstriNtea by af.ln through dlJCtlo;on: ~ fe4lsWS ordiffusers. exta1ded plenum system Aperimeter he3tlng system In whick amain duct COrr-lr:ys warm air to.3 numl1er of Pral1(;h ducts. each ~rvi~ asingle floor ~Ist.er. ~vnnet ~.-- ...- ....---- .. Ach4rnbet' j¢ the top ofa hot· air furn:au from wM:;h the laders e~ Nso calW plenum. le3der ~ .--..- .-.---.--.-. Aduct for conveying wann air from .3 furnace to astack or. mrICk duct. Alsa c.3lled maIn. trunK. manifola Ap~ or duaf1ttlng having several out~s for maki~ multiple conr.tCtlons. gathering J]8&~- ,.....~ r~m grille J.. ~r'l1e through which return ;;.~::; withdrawn from an air· c..;~Jjtloned sp3ce. __ .-... -.'-' cotJ-airretum Ad~ct for C011veylng cool ;illr ~..a to afurnace for re~ng. Atapered section ofaduct or flue forming atransition 1:>etween two sections, one of which fw a greaterarea than the other. ..... ~oot ••-.- Aduct fittlng formir~ .3 tr.tnsttlon ~tween ~ sections which vary In cross-:.ectlonal shape. duct Apipe or c.ondult of shut mct.;J/ or flkrgl3ss for conducting heated or conditioned air. Also called aIr duct. ductwork AsysUm of ducts, connectors, ana dampers for conveying air In aheating. ventilating. or alr-condltlonlng system. Also called ductln~. stack Avertical duct for conveyfng warm aIr from aleader to ;;I register on an upper floor. chase AC011t1nuous space 01' recess ~ullt Into a waII or througha floor for pipes orducts. grille Agrating or perforated screen for coverl~. C011Ce3 11ng. or p~ng a wall. floor. or ceil1ng openIng. ~~RRj~ - ~i,ur Adevice for contronlng the flow of warm orconditJonea aIr from an outlet• composed of a gr!U with a num~er of par.tltel ~tades th4it rruy I1e adJuste<l sa as to overlap ana close the opening. --. flexil;k duct. Apl~~. alrtl9ht ffttlng Installed ~etwten two ducts. or between afan and aduct, to prt't'Cl1t the transmIsslon of noIs.!: and vlmtlons along the duct~rt. perimaet huting ,....... perimeter loop e)'Sum perimaet r.dbl5)"!tem duCt lIr.er Af1i;.erglassl7brte't for hnlng tM Inside ofaduct to reduce noise and serve as thermallnsu!atton. -.- --1 A~ sysUm that dlstrIP~ Aperimeter heatl~ system In which a Aperimeter heatlng system In which a~derfrom acentrally :OCat.ea fumacc carrlts wann air directly t.o each floor ~Ist.er. warm *to ~Isters plact.::J III Of' loop of ductwork, usually eml1edaed In near tr.eflooralong ~ walls. aconcw~ ground s!a~, dlstrl~utes warm air to each floor register. diffu~ .._...__._...1 AdM::;e ~ slats at different angles for ~npl.3rm or con~ air from an outlet In various dircctlons. 122 throw . Urmin.al velocity The dlstance;il proJected.::-stream tnvels The a~ velocity of aprojected from an outlet ~a point "".Ut Its v~toclty ;illrstream aUIle endof the throw. ~ Is reduced to aspeclfled dOt. ~ "-:1: .... drop _ ___ :' The vertical distance ahorizontally . -- - - __ . p~alrstreamfallsfromthe ~ _...... --.. _ ele¥atlon of its outlet, measured at the '" ~ ........... .-'.' end of the throw. "" -'....... .........-...... ,/ L.··· 5p~d " ............ : The emntto which aprojected "'" ........,"-., __ : airstream diffuses at the end of the '" "'" ............. "•.j_'_-'" ........! throw. "'"", ') ~ " : '" . "'-: ~ _.-,- o , [ .1 I l L L L
  • 123.
    ~ I r , ~ ) iI r ! venturi tee Aspecial fitting used In aone-pipe system to Induce the flow ofwaterfrom ar~ m HEAT h~w;rter he3ting. Asystem for heating auuilJi~ I7:t means of water heated In a~Iler anJ circubted I7:t a pump through plpes to radl3tors or convectors. Also called hydroclc ~tin~. uranch Into the supply main. ~ ;'------ vuckettrap ~ ~~~ ; Avalveforellmlnatlng air and ~-~.. .... steam he3ting Asystem for heating aUullJing ~ means of steam generated In aroller ~nJ clrcul3W through pipes to radiators. raai3tor Aheating devlctconsisting of a sates or coU ofpipes through which hot wateror steam passes. 1;,~-~./ .~ . conaensed mOisture from aradiator ~ without allowing steam to escape. Also called suamtrap. . '. .~ ~ vluder ~ Avalve for draining apipe. radiator. ~ or tank. Also called Pluaer valve. one-pipe system Ahat-water heating system In wnlch a slng~ pipe suppl1es hot water from 3DoI~r to each radiatoror convectcr in sea;uenu. reverseretum -------------------...-...--.--. I t¥.to-pipesystem Atwo-pipe hot-water system In -.......... A, hot-water heating system in W~ich OM which the lengths of the supply and . tfk··,.~ >.rGl.. pipe supplies hot water from ~ boiler to the ""m pll"SI""ch",d1,t«o' c:::~'-';;~ ",dO"", ...",",,,,,,,,, '" "",,,'" pll" ?;~::::::;:--.~~~:~?~~>,J'---~~th'.,WW'h,rol~. which the return pipe from each ~. ~_~"'.•_._ '~""-.1 ~ raalator orconvector takes the .. -_/~ ......<i." ............ shortest route I7acl to the uoiler_ _~~,,_. ~'1 ~;~:;~eIn asteam-heating rfl: ~~~~~;~~ i system that carrIes both air and ,. -- ' I ' water ofcondensation. : t....' CCf1v~ctor El ~...- fin tu~ 5afety va1ve ---------_.- Aheatlng unit In which air heated ~ COfTt3Ct with araJlator or fin tu~ clrculaus I1:iconvectlon. P3~;oIrd huter A Icrtg. narrow hydronlc or electrlc convector des~ned for InstallJtlon alOf1~ the lr.lse of awall. unrt heater ; Atype of radiator having horizontal : tuDes with closely spaced vertical : flns to max!mlz.e heat transfer to I Aseff-cont3lnea electrlc or gas-fired space hea ter. consls~ of aMating element. fan. arJ adirectional OtJtlet. space heaUr Adevice for heatlng the space In which It Is Ioc3ted. esp. aunit that has no external heating ducts orconnect1on to achimney. qU.irtz heater An elutrlc spau heater having heating ek:ments sealeJ III quartz-gbss tubes that produce Infrared r:uliJ tlon In frOl1t of a rd!b:;Cive badl"9. Areliefvalve that opens when actuated I7:t agJs or vapor pressure al10vea predetermined level allowing the!J3s or vapo!' to escape U!Ttl! Its pressure Is reduced to a safe or acceptable level. relief valve Avalve that opens when actuated I1:i stJtlc pressure aDove a predetermined !evd in order to reduce the pressure to it. p~ck ----------------------.-..--.---~ Asman faucet or v.lve for draining or re1e3slnq compression In pipes. radiators, and boi~rs. raa~rTt htati"9 Asystem for Mating by radiation from a surface. esp. one that Is heated by meanS of electrlc reSistance or hot water. ~ilu L---------.----~ Aclosed vessd or arrangcmm of ~ anatuboes In which waterIs haU.d or SU3m Is ~nerated to sUFl'1y r~t Cf' power. elect.-ic hat He3t genmte.d by the reslstJnu of. conauctor to tM flaw of elect.n:: cum:rTt. P4nel huting The raJ1ant he-atlng of aroom or Pu~ ~ me3ns of wan. floor. Pii.semra. orceill~ panels COITtalnlng electrlcJl conaUC"..us. hot-wattr pipes. or hot-air d~s. 123
  • 124.
    HEAT ~Ir ~ naitionlng Asystemorprocess for simultaneously CCI1tro1llng the temperature, humidity. purity. dlstriPutlon, and motlon of the air 111 an Interior space. esp. one capable of coon~. campressive refrigerrtion ~ A~lon pr0ces51n which cooling Is ~ecW by the vaponuuon ana expansion ofa"!uld refrigerant. . air conditioner Arry device or apparatus for controlling. esp. lowering. the temperature and huml&ty of aspace. pack.age'hIirconditioner - ..................." Afactory-3ssembl&:! air conditioner having ". afan. fllters. compressor. condenser. ana evaporator colis for cooling. For heating. the unit may operate as aheat pump or contdln auxiliary heating elements. expansion valve Av.alve that reduces the pressure and rnporatlon temperature ofarefrlgmnt as It flows to the evaporator'..~.7 rmigerant .... Aliquid capal7le of v.aporlzlng at a low temperature. as ammon13. usealn tne{;hanlcal refrigeration. comp~~r _.____..J conde~_·i lead The aem3nd pl3ced on a heating. ventl13ting. or 3lr-wndltlonlng system In oraer to maintain the desired conditions of thermal comfort: In al7ui!dlr~. cooling lead The hourly rAte of heat gain In an enclosed space. expressed In Btu per hour3nd used as the pasls for selecting an air' conditioning unit or system. cooli~ dC9ree-day Adegree·day aDore the st3naard . tempmture of 75·F (24°C). usealn estlmatlng energy ~ulrements far air' condltlonln~ and refrigerAtlon. cooling meaium Afluid suDst3nce. as chilled water or cool air. for removln~ heat. as from the Interior spaces of abulld1ng. henrele3Std to ten of refrigeration . ........~ +The caollog off",,"""eO """0lie" ofIc, . at 3Z0F (o·C) melts to waterat the same - temperature In 24 hours. ~ufvalent ta . . ... 12,000 Btulhr. (3.5 tW)o energy efficiency rating An Index of the efficiency of arefrlgmtlng unit. expressln~ the Btu remcvea per watt of electric31 energy input. coolant er.Ipor;rtor - ..... 1Mcomponentofa refrlgeratlon SjIStem In which the refrlgerarrt aPsork heat from acooling medium ana changes from aliquid to agas. Apump orother machine for reducing the volume and Increasing the pressure ofagas. Adevice for reducing avapor or gas to Ilqula or solid form. Afluid agent for reducing the temper.atllre of a5y'StaT1 belowaspectfled value by conductlng away the heat produced In the operation of the system. hat pump A~ that uses acompressible ~ to transfer he.lt from one reservoir to another. with the process ~ reversi~ so that Itcan be used for ~ ~ ana cooling apulldlng. - - - I ) a~rpWn refrigeration A ~ processthat uses a ~ and an apsorberInstead of a compressor to transfer he<it. hatextrKte4byme3n5 of.. Indoors winterhe3tin hatexchangertQproJl.JCe;:~~~lllg; chiDedw;ta- forcoolIng keatexch.1nger ................................. _../ Akv1ce for transferring the heatof a fluid fuwl~ on one side ofaI7anier to afluid ftowlng on the other. condenser •.•. 124 W35te heat ~CW from stam3S It C()ndenses Wore rrlumfng to evaporator C?,, indoors ,, he.1t sink Amedlu mor environment for the aDSOrption or dlsslpatlon of unwanted I' heat. wtdoors ., D=«o~ i summercoolin ;-- a~o~r .I The component of an aDsorption' . :' refrigeration system M ~ asaOne : solution to araw W3ter VlIpor from the evaporator. cooling the rtm3lnlng W3ter In the process. : ....... generatar .: The component of an aDsorption· ! refrigeration system that uses aheat source to remove excess water vapor from asahne solution. ! : i ~ .. I j. l.
  • 125.
    f ;1 ; j . I~:~ -:.:'''. 5upplyajr --------.--.-- The condltlonea ,ir delivered by an air-conditlor.iM~ system to tM served sp~ I ~~:~";PP~~~-,;;;,;--I rnodente ~sSlJ~ ,s to supply forced d~5 ir1 a hatln!j oralr-corJ:tlcnlrJ4 system. humklifier --- -------- Adevice for rnJIntJh11~ or IncreJsln4 thI: arT101.ltlt of W3tervaPor In tM 3tr of;1 room orPulldlng. pump ------- ---_._- A machine th3t n~. tnrtSfers. or ccm~ fluids or!3SeS ~ ti-.e suctlon Of' ~ssure prcJl.'Ud ~ a piston. plunger. or ~ of rotating vanes. chilk:a water punt ------1-·1--~~ A room contJlnl~ cr.e or more chillers 3nd pumrs fof alr- conJltlonln~ a~"!dir";l. chillu Adevice empk;ylr.3 the compressive ~~n cycle to chili the W1ta" used In coon~ aPuIfJIr19- t'OI1er forproducing hoC wmror$Cam cooling tower Astructure. usually on the roof of a l1ulialng.ln which heat is extracted from water th3t has peen used for cooling. I I I I I I I __+ ______..l prthe3ter .------------: Acoil for heaUng air that Is below 3Z·F (O·C) to atemperature slightly above freezing. In advance of other processing. HEAT central air conditioning An air-conditioning system that treats air at acentral location ana dl5tril1utes the wndltloned alrto an entire ~ulld1~ Dy means of fans and ductwork. HVAC Ai1brevlatlon for heating. ventll3tlng. and air conditioning. • _._____________ ~ return air The air conveyed from an air- conditioned space pack to the central plant for processing 3nd recIrculatlon. t-------- damper ! A movable plate for re~ulatl~g the : draft In an air vutlet. air duct. or / the throat of aflreplace. ! ,----- exhaust air .--h..... The air exhausted from an Interior f.--I space to the outslde. r --. fresh :air :' Outdoorairdrawn In for treatment JLL In an alr-conditlcnlng system. Also --l callea outside air. ___• air-handling unit An alr-condi~nlng asseml7ly containing the fans. fllters. and othercomponents nece5saryto treat and dlstriWte conditioned air to an entire 17ulldlng or to specrf'oC zones within the liulldtng. --- filter A porous su?stance or mass. as cloth or a l.1yer of charcoal. through which a gas orhqula is passed to remove suspended impurities or to recover sol"tds. mechanical_equipment room Any room contalnl~ permanently Installed machinery and eqUipment for the mechanical systems of abuilding. 125
  • 126.
    HEAT ,"-water system An alr-condlt.lonl~system In which eIther hotorchilled water Is ~ to fan·coll units In the 5eNedspaces, where aIr Is circulated locally. two-pi~ sy5tem •..........'" ....... An an-W3ter system In whIch one pIpe supplies the hot or chilled water tof;in·coil units, and the other pipe returns It to the boiler or chilled water plant. four-pipe system - .................. An ;ill-water system In whIch separ3te hot-water and chliled- water pIping cIrcuIts provIde for simultaneous heating and coolJng as needed In various zones of a ~lld1ng. all-air system An aIr-conditionIng system In which central fans Q1striUute conaltloned aIr to the served spaces by means ofductwon:. 5ingle-duct system •. _............. An ail-air system In which a single duct conveys conditioned air to the served spaces. constant-air-volume s~tem An an-air system In which a master thermostat automatlc3lly regulates the quantity ofconditioned air suppI1edto each zone. varial7le-air-volume 5)'stem An an-airsystem In which a thermostatically controlled varlaPte-volume Pox regulates the ~ntlty ofcondItioned aIr supplied to tach zone. dual·duct system _.._.............. An an-air system In which separate cold-airand warm-aIr supply ducts meet at a mixing box where the air Is ~ baore d1strll1ut1on to eachZOM termlrul rebut !System _e......... An aQ-alrsystem In which areheat coil ~ubtes the temperature of theair being furnished to each IndMdU211ycontrolledzone. air-water system .-..••...•.•....•..•............ An ar-(;OndItIon~ system In which hIgh- velocityducts supp/ycondltloned airfrom a centr.ll plant to ~h zone where It mIxes with room aIrand Is further heated or cooled In an induction or fan·coll unit. 126 ~ --"----"1J" ......-.........j U 't- _.- r-' I'" I~ I· . t::::::> L. -l!:l !-- T ..~ supply pipe Apl~ fiX" conveying hot or chilled water from the boiler or chilled· water piJnt to;; fan·coll unit. ..._ .....- .. ~ return pipe .' Apipe for conveying water from a fan-coil unit to the boiler or chilled- water pllnt. termirl41 unit Any of mlous devlces for delivering ;; heating orcooling medium to;; spa~. .-.--- ..---- fan-con unit Atermln31 unit containing an "Ir filter. heating or cooOng coils, and acent~! fan for drawing In A mixture ofroom "Ir "nd outskk.lr. can AconnecteJ series ofpipes or tuplng In rows or layers, often having fins attached to Q1sslpa~ heat. muttizoM sysum Ace"tn! air-handling unit capaple of 5eTVIng up to eight zones Simultaneously. zone Aspace or group of spaces In a ~Ildl~ whose temperature and alrquanty Is regulaW ~ asingle control -' .-- mixill9!?ex Achamkr for proportioning and P~ cold and warm air underthermostatlc control to reach the desired temper.stm:. _-_.-- rehutccn ------- An ~ or hot·watucoU for ralslll{! ~ tempen~re ofthe air In the supply duct of an alr-cond1tlonlng system. r-"-"-' induction unit ./ A~rmlnal unit In which prImary "Ir draws In / room alrtnrough afilterand the mixture passes (Ner coils that are either he3ted or chilled ~ secondary water from aroller or chilled water pl.;nt. _. -..-" -. hlgh-velocity duct Asmall duct capa~1e of conveying primary air At aveloctty of 2.400 ft. (730 m) per minute or h'9her. primary air The conaltloned air supplle4 at ah41h pressure and high velocity l>y a antral.lr handling unit. . ·1 f
  • 127.
    . : I • I I ...i _I _J I ;_1 """"~---------------- airch.1"¥ The replacement tithe volume of air contJlned wtthln aroom with an equivalent volume offresh air within agiven period of time. The term air cha"~es-per-hcur Is often used to specify ventll3tlon stanaarcls. venti~r A Ioovered o~'lng or motor-driven fan for rtpUcmg swgnant alrwtth fresh air. HEAT vent ventilate An opening. as In awall. serving as an To provide aroom with fresh air to replace air that has ~n used or contaminated. outletfor air. smoke. fumes. or the ll~e. ~_ attic ventilator Awlnd- or motor-driven fan for asslstlng the natural air flow through an attic space. natural ventilation The process of ventilating 3 space by the natural movement ofair rather than by mechanical means. o chimney effect The tendencyof air or gas In a shaft Or other vertical space to rise when heated. creating a draft that draws In coolerair or gas from I1elow. ~~J <j:====l Y== ~ J ~ ~ cross ventilation The circulation offresh air thro.U9h - - - - - - - - - - - - - - open wlnaows, doors. orot-her openings on opposite sides ofaroom. ~.whole-hou..v.ntilator ,. Amotor-driven fan for pulling stale air from the living areas of ahouse and exhausting It through attlG vents_ -:~f;---;~~-~-~-~iJ r!:~;----·~~· ) I I. L ____________________________ .l~ .. plenum ventil1ticn A system of mechanical ventilation In whkh fresh air Is forced Into the space to DC ventil3ted from achamPer (plenum chamber) at a pressure Slightly higher than 3 t.m05 pherlc pressure. so as to ex~lstale air. fan Adevice that rotates an array of blades orvanes about an axis In order to produce acurrent ofair. exhaust fan A fun for ventilating an Interior space by ~~ """I'/f'r Iii __ :11 drawrng air from the Interiorand expelling > LJ It outside. ~~:~~;~~~~es:~~~-~~-I~~-~~;~--·---- --------- ..--------./ ~ and discharges It radially. ~ o mechanical ventilation The process of supplying fresh air to a . Irolkflng or removIng stale airfrom It by mechanical means, as with fans. 127
  • 128.
    HISTORY Asystem3tic. often chrOMlogical narrativeofs~njficant events as relating toa particular people. country. or period. often including an expIJnation of their causes. civitiution An advanceJ state of human society man:ed by arelatively high lev~ of cuttural. technlc3l and political development. society An endurin4 and cooper3t1n~ !ar~-scaIe communityof pecple havln~ comlr.on t.raJltb1s, Insmutlons, ..nd identity, whose It'IeI1Pers h3ve developed collective Interests and Pellefs throu~h In-<-..eractlon wtth ~ another. culture The~~ofhuman know~ beliefs. ..nd Dehavlors ~uilt up Dy .. group ofhuman reJngs and tr.alSmltted from OM ~tIon to the next. style Apartlcubrordistinctive form of artIstic expression characteristic of aperson. p~ple. or period. expression The manna-In which meaning, spirtt. or character Is 5yIT1bottZed orcommunlcated in the ~ ofan artistic wort preh~ Of, ~"'lng to. or exlstlng IF! t.I',c time priorto U1e recordln~ of hl!man ~ents. kncw~ ofwhich Is gained mainly through arclueologlcal d1scover'.es. SUldy, and research. Stcne~. The e41~ known period of hufro n Wture. ~ the Bronze A¥ ana the Iron ~ and cluracteriz.eJ by the lise of stone Implements and weapons. HeolitJric Of or re~"9 tc the !ast phase of tne 5to1e~~~ Pythe cu/;lvatJon ofgraIn crops, domestbtlon ofa01lmals, settle:Ment of vlfiages.ln3nuf~re ofpottery and textiles. aM useof poI1sheJ sto~ imp!emelrt.s: thought to h3v~ begun C$OOO-&OOO B.c. u~aux~e A~ve In ~aux. France. containing wan paln~ and engravings thought to d3U from c13.000-6500 B.C. 128 Mescpotamia An ancient r~1oo In western Asia l:>etwU1I the Tlgrls ..nd Euphrates rivers, comprising the lands of 5umer and Akkad and occupled successively ~ the Sumerl3ns. Ba~nlans..Assyrlans. and ~ns: nowpari-ofIraq. .-... Fertile Crescent An agricultural regIon arching from the eastern shores ofthe Mediterranean Sea In the west to Ir;;qIn the east: the locatlol1 ofhumanklnd's earliest cu~ures. Catal HiiyOk ANeolJthlc settlementIn Anatolla. Jated 6500-5000 B.c.One ofthe walia's earliest cities. It had mud·1nici: fortlflcatlons and houses. frescoed shrines. afullydeveloped ~riclJtture. and extensive tradIng In . o~sldlan. the chief materi31for tool-making. Anrt.olia Avast plateau Petwe..."11 the Black. MedlUrranean. and ~an Seas. synonymous with the peninsula ofAsia Minor: today comprises mostofTun:t:y. Bronze~e Aperiod of humanhlstc!)rth3t !:>egan c.;ooo-.3000 B.c.. followIng the Stene Age ana preceding t:he Iron A¥. characterized Py the use of ~ Implements. Yang-'luo ANeolithic culture In China cenUreJ around the fertile piaInsofthe Yellow River. cluracterlzed ~ pitdwelhngs and flne pottery painted In geomttrlc designs. Sumerton architecture The architecttire ~eloped ~ the 5umer.ans who dominated southern Mesopotamia from u,e 4th to the end of the 3rd millennium S.c., characterized ~ monu:r~ntal temples of sun-drlea ~rIck faced with ~rnt or glazed Prlcl:. often pultt upon U,e ruins of their predecessors. Sumer An ancient region in southern Mesopot.1mia. where anumf:.erof Independent cities anacity-states were esta~!lshed as ear.y as 5000 B.C. A numPerof rts cltles. 3S Erldu. Uruk.ana ~. are major archeck;.giC3TSites:' tell An artlflclal mound a.ccumulatea from the remains of one or rMre ancient settlements: often Use4 In the Mldale East 35 part of apiau name. f9yptL1n Architecture The architecture of the ancient clvliizatlon that flourished along the Nile RIver In northwest Africa from Vetore:3000 B.C. to Its annexation by Rome In :30 B.C.• characterized esp. by the axial plannIng of massive masonry tom17s and temples. the use of tra~eated construction with precise stonework. and the decoration pf lrattered walls with pIctographic carvings In relief. A preoccupation with eternity and the afterlifedominated the uUlldlng of these funerary monuments ana Umples.,which reprod~ the features ofdomestic architecture but on a massive scale usIng stone for permanence. : Minoan architecture The architecture ofthe Bronze Age cIvilization that flourished on Crete from a~Out 3000 to 1100 B.c.. named after the legendary King Minos of Knossos and characterized by the elarorate palaces at Knossus and Phaetus. 3000BC ••••••••••• e •••••••••••••• Harappa Xia A~endary dyl14sty tn China. 2205- 1766 B.c. AlsO. HslJ. 5h.1l:g AChinese dynasty. c1000 B.C.-l030 B.c.• man:ed ~ tne Introduct!on of writing. the development of an mn clvlllutlon...nd a master)' of In-onze ~ stlng. Also, Yin. ABronze ~e cultUrtl tltrt flourished In the Indus valleyc;2300-1500 B.C. 1~~IU'r..-'.101f .~~ > r.l;~~ Chinese archituture The Indigenousarchitecture ofavast country In eastern Asia whose clvlnz.tlon has continualfyevolvcQ and survived longer than anyothernatbt In the world. Despite the man:ed diversity In the archftecture of various regklns ~used by differences In geographic andclimatic conditions, aunique system of wood fralM construction graaually tooIc sh2peOIer several millennia of Innovation and synthesis and exerted a profounti Influeruoverthe an;hftecture of Korea. Japan. and Southeast Asia. Preclassic Oforpertaining to Mesoamerican culture from 2200 B.C.to AD. 100. . J. I -.-
  • 129.
    ..-- I I i i ~ Hittite archfteau-re The architecturedthe HIWte Empire which dominatedAsb Minor aM northem 5yN from aoout2O(X) to 1200 B.C.. characterized byfortlflc3tlons of cyclopean stont masonry;and gateways with portal sculptures. Code ofHamrmaraln ABalrjlonL1n ~codelnst!tuted by Hammura!7lln the ml&-laU! century B.c, lr.IseJ on prlncJyles a~ from 5u.merl3n culture: Myceruean architecture .The architecture d U1eAegean clvlllzatlon that sprt3d Itsnfluencefrom Mycenae In southern Greece to manyparts of the Ikdlterranean region from al10ut 1600 to noo 6.C. ch3racter!zed by shaft graves. monumental beelWe Wnl1-s. and palaces fortffied with cyclope3n walls. A5syriJn ~rchftuture The Mesopctamlan archlte<;ture developed under the Assyrl3n king-emperors of the 9th to7th centuries B.c. Within city walls strengthened by towers with crenelated ~ts. palaces tool: pre~nce (Ncr religlouslnJi1d1ngs. Vaulting played a greater role th3n In southem Mesopotami3 and polychrcme glazed brlckwork showed the Influenu of Egyptian decoration. .A J~ .~ Greek architecture The architecture of thecMIlz3tlon that fuurlshed 00 the Greek peninsula. In Asia Minor, on tr.enorth coastofAfrica. and in the western Mediterranean until the est3tnlshrfte:Tt of Roman domln!Q.ll..ln.A!2.... .!1§..character!ud byasystem of constrtJctlc,tl1ased on rules ofform and proportion. Temples of post-and-hntel COl1Stn.Jctlcl1 were continually reflned In a questfor ~ectlon and their ~slgn lrrf1uenetd awide range ofsecular. civic l7ul1dlngs. Neo-6a!7yloniJn archftuture The f,~esopotami4n architecture that de-,dcpe.d after the de<;lIne of the Assyrian Err.pire. deriving much from AssyrL1n archiu.cture arJ enhanced by figured des.l.3ns of hera!d'~ animals In glazed br'.cl:.....ork. Hanging Garddns of Ba!7ylon Ase~.es of 1rrlg.4:eJornamental gardens HISTORY Persi.1n archiUcture The architecture developed under ~ Achaemenld dynasty of kings who ruled ..nclent Persl3 from 550 6.C. untiltts conquest by Alexander the GreatIn 3:31B.c.. characterized by asynthesis of - architectural elements ofsurroundIng C<?untrles. as Assyria. Egypt. and lonon Greece. pta~ ~ on the terra~s of the Cttadel. the ./ PersL1n pa~ complex in ancient Babylon: regarded / Atelamon portrayed In Pers13n dress_ as ~ of the Se-..~ Wonders ofthe World. ! Heltenic Of IX ~Inlng ro ancient Greek history. culture. and art. e-sp. Pefore the time of Alex.:Jnder the G:-e:at. Hellenistic Of IX ptalnlr.g r.o Greek history. culture• arid 3rt from the Ume ofAlexander the G~,;'s death!.; 323 S.C. through the l6t ~;,JJry 6.c, dur.~ which Greek dynasties were estal7llshd ill Egypt, Syrl,J"; and Per-sbl. ~nd G~ culture was modified by f~n elements. Parthi.1n architecture The archItectUre developed under Part.l1i3n rule In Iran ana westem Mesopotamia. from the:3rd century 6.C. to the 3r.l century A.D, comulnlng classlcal with Indigenous features. Etru"anarchitecture The..rchlt.eaure of the Etruscan pecp1e In west-centraIItalyfrom the 8U! to :3rd centuries B.c, before the rise of Ro~ Its construction methods. esp. that of ~ ~~ ~~r.e ;uch,lnfluerud later Roml! architecture. ••••••••••••••••••••••••••••••••••••• ~ •••••••••••••••• •• •••••• 48( Zhou AChinese dynasty. c1000 ~.c.-256 B.C.• marked by the dMslon ofChln2'nto separate feudal states and the emergence ofConfuclanlsm and Taalsm. which gave thrust to all su!.>seq:Jent Chinese culture. Also. Chou. ConfuciJnl~m Aphilosophy th~ c:Iomin3ted China untll the early 20th U'TtIJry: an ethical system lr.Ised on the teachings of the Chinese phl~er. Confucius. c55l-473 6.C. emphasizing love for humanity, harmony In thought and conduct. ckvotlon to family. and reverence for parents. Including the spirits of ooe's ancestors. Olmec archituture ) The architecture of the MeS03merican cMllutlon which flourished c1200-500 B.C. In the troplcalloWnds of the Mexican GuIf Coast. charactertz.ed by ~mple~PJ"'imlds Indian architecture Maurya The architecture of the Indian A rr.en1Per of 3n ancient Indi3n people who stlllcontl~. from the Indus valleyculture united n~ India and es"taphshe.d an of the Harap?a to the Mauryan e:ra, and empire c:320 B.C.: architecture from ~:5 later to ~r'cJs offarelgn domination and period shows the culturallrrfluence of indigenous n:ie. chal'3Cterized esp. by Hindu Ach.aemenld P ersla and ~rs~u~ 3nd Buddhist monuments, sometlmes dressed 5tor.e. sharing the S3mt site, and rhythmic. - - -- straUfleJ rr.ul-tlpllcatlcn of motifs and profuse car.'ed ornamentation, often com!7lnlng tJ-.e rellglous and the sensuous. racl,m Chinese philosophy and religion considered next to Conf.xbnlsm In Importanu. Based on the ~I~s ofthe Chinese phllosopher,lao-tiu. c604-5316.c., It emph3slzes ~ lifeofslmpl1ctty ana noninterference with the course of natural events In or~ to ~taln ahappy existence In h3rmony wtth the Tao. As areligion. It dates from AD. 143, ~Ing popular during the dox"ne of the Han djnastyand the Introd~.1an of Buddhism to China. rao The Way: the creative prinCiple th3t orders the universe. Gr-ut Wall of Chin.a Afu,......lfled waH CC'1T1mencea unkr the Zhau dY1".;Jsty to ~ Chl~ ~alnst nomads froe1 the north 3~d seNe as ameans of corr::nunfcatJon. y.rous sectlons were pullt arJ connected 1:1Ttlf, during the Mlng dy~sty. t36a-1i-44,1t extended for 1..500 mi~ (2.415 kin). from southern Kansu prOr~r.ce to the ~ east ofPeking. ~;-At and rmcea repeatedly, It Is the oroi)' nurnan-/n3Je construction vlslule from W~space. Ch..1vin Gin Adjnasty 1:'1 Chlt13. 221- 206 6.c.. marteJ by the emergence ofa centr311:zed go.'ermr~ ana the constroctlon of much ofthe C~t Wall of CfiT..u. Also. Ch'fn... -~ -. _.- Mochica ~Cge c~:~mon~cente_~. _____ --,,~~/:~~. -----, APe;"'Jvf3n Culk~! 13stlng from cl000 6.C. to c200 B.C, !rased on the worship of the J~~~ god and cbracterlzed by excellent sUr,e sculptur!. ,13porate gold work, and re.'1"!3rt3ble cera~:cs: named after the town of ';~Jt name In untral Peru. where a corr:pfex of m3ss'.e stone InJlldlngs With su~..elT3nean ~3·'~rles surround formal cC".-:J3rds. .J... pre-Inca" culture that flourished on :.".e northern coast of Peru from c200 B.c. to A.D. 700. ncted for Its flne potteryard th~ colossal Temple of the Sun. aterrace.:l pyramid nude entirely of adobe pricks. .'.Iso called Moche ~_- _~~7//._____ '''-_·'_~'''-' 129
  • 130.
    HISTORY ~~I~rch~re Thean;hftecture ofanc!erttGruce and ~~ which theItaf14n RtI12Iss.nce and ~t styles,as the ~~and ~e ~ ~~ IT.ase4 tI1drdevelopment. RDiun ~rchitecture The~hlttcture of the ancient Roman ~ charactertua Dy massive ~ and ~..e COf1stroctlon employing such ~ as the semlclrcubrarch. the ~ and groin V3uItS, and the dome, a ~and granJeurofmassing often ~withelabor.lteMtalhng. the ~ of the Gred: orders as purely ~ motifs for the amrnentof ~ 3IId Interiors, and the useof marPle ~ I105alcs, and molkd stucco In ~ RDee Aat:'1ft ~ central part ofItaly wI1lch. ~ to tradition, was founded l1y Rc:In:Ius and Remus In 756 6.c~ ancient ~l of~ Roman Empire and s~ of V~ nCIty, the sea t ofauthority of the Roroon c.thollc Church. Sassanlan architecture The architecture prevalent In Persia under the Sassanlan dynastytlut rvl.ed A.D. 2:26- 651. forming ahnk l1etween the older Mesopotamian traditions arid the Byzantine, and character!ztd ~ palaces with ~lll~~~r.vau.ltsa~dA~rr.es set on .?<lllnchesanE.~kuCCOl;(~'?c~i)'lYllI? .art1cu~~ by pilasters and c.xnices.. Early Christian architecture The final phase of Roman architecture, following the adoption ofChristianity as the state re~1on by Constantine In A.D. :31:3 and lasting until the coronation of Charemagne In A.D. 000 as emperor of the Holy Roman Empire. characterized Py churchts planned forcongregational worship. esp. the basilica: coincident with and related to the rise of 6yz3ntlne archIte:ctureo 6yzantSne,rchitecture The architecture ofthe e3stern sphere of the later Roman Empire. tfeveloplng from late Roman and earlyChristian anteceaents In the 5th century and Influencing church Irolldlng In Greece. Italy. and elsewhere for more than athousand years: characterized by masonry construction. round arches. shallowdomes carried on ~ndentlves. andthe extensive use of rich !rescoe~. colored glass mosaics, and marPle revetments to (,(Ner whole Interiors. Medieval architecture The architecture of the Euro~n Middle ~es, comprising the architecture of the Byzantine, pre-Romanesque, Romanesque, and Gothic periods. Middle~e5 The time In European hiStory between classical antiquity and the Renaissance, often dated from AD. 476 when Romulus Augustulu~.the last Roman emperoroiihe Vestem Roman Emplre, was ~. to aDout~ Dark~es The early part ofthe Middle!<.¥s. from a!1out A.D. £~!:<?~1.100. AD100 ••••••••••••••••••••••••••••••••••••••••••••••••• ••••••••••• Pre-Ccl1Im~n OfCK ~Ining 1:0 the Amerlc3s befi:lre ~ vr:JP¥s of~mll.us. ~1Mric.a Thearea extendI"!:J from central t.4c::dc:o 2td;fIeY~n Peninsula to ~ and Nlc3ra~ In which pre- ~ cJvIlimbtsflourished. ~ ~rcs excelled In astronomy aM~ Ile3SU~ of"me, ana sIIare.a ~ple-pyram:ds and a ~ ofdeities Incfudlng sun. lriad. ar.& rain gods. ~ Of or~Inlng to IkSQ;lmerican cufture from AD. 100 to 900. 130 Gupta ,[O~·~:';' Pall.v3 S{.·.'~ D~vid~n .::~...:. The dynastyofthe Mauryan empire In AHindu st."teestal7llshea In southern India Astyle of Indian architecture In the fal1.?n northern India. AD. 320-540, ",-hose court auout AD.:550: contrluuted to the period, named ~ the langUJ¥ spoken In ~!l.s ~hc center.Q{~~~lj;.allna:3 n..artana expansion ofIndian cultllre Into Southeast southern India. ~~~~.the earliest suUstaiotial AsI3. architectural remains are from this period. Mayan architej;ture The architectureofthe Mesoamerican civilization oftheYucatan Penlnsub. Guatemala.and part of Horldur35, from the 1stcentury AD. toIts peak In the 9th century. characterized l1y magniflcent ceremonial centers with temple·pj'T'3mlds. ritual ball courts. spacious pfa~s, and palaces with sculpturea facades. .-----~......--..-"---- ..--- --.....,.,-......-. r,) Zapotu~rchltuture ~j . The eclectic architecture oftillAmerindian civilization which flourished e500 B.C.- A.D. 1000 In the highland valleyofOaxaca In southern Mexlw, assimilating Influences from the OImecs ana fromreotlh~3n during the Classic period. Tiahuanaco Apre-Incan culture existing from about :300 B.C. to A.D. 900, chiefly In Peru ana Bollvl3, characterlud Dy monolithic stone c"lrvlng. polychrome pottery. and Dronze artifacts i 'I J .. t 1-.· I
  • 131.
    .1 .1 .1 • 1 .t .I RolTUne~at architecture Astyleof arcnltecture emer~ln~ In Italy ana western Europein ~ 9th century and bstl/19 urrtJl the advent of Gothic architecture In ~ 12th century. wnprlslng. varietyof rebted ~Ional styks and ch.aractmzed by h~vy. •rtlculated ~50nl1 construction ~Ith narrow o~ni"9s. the use of the round arch .nd 7arrel VOIUtt.. the development of the vauItIM_ptand~••nd the introduction ofcetTtr.ll.nd wes~m towers for churches. ~l.amic architectl.lre ~ architecture of~ Muslim peoples from the 7th centuryon. developl~ 10 the wake of Mu~mmaa.n colUluests of diverse tenitorles from S~1n In the west to Indl3 In the east and a7sorV1ng elements of art and arch/"tectUre from each ~Ion: ch3ractertzed by tr,., devclopme1tt of the lI'1OS<ue a~ adistinct lnJlki1ng ~. masonry domes4Ind tunnel VOIults. roond and horseshoe arches. and rich surface decorations Incorporating C3Jngraphy and foral maUfs In agametrc fra mework ~use of the Ian on human and 3nlmal represent3tlons. Also refemJ to as Mu$llm JIIrchit.ecture_ £:.1rolinglan archiUcture The e3My Romanesque architecture of the Frankish dynastytnat reigned In France AD. 751-987and In Germany until ASJ.911. chmcterlztd I1ya~laf.the.focms.oL classlc~l.intkyl1Q' modlfled ~ ecclesiastical requlremem. Lomuard architecture The e3rly Romanesque architecture of ~ ltaiyAyr.lnll the 7th and 8th ~tJLri§. characterized 7y the use of fatty Christian and Roman forms and the ~velo.Jm1~_tof~ult and vaultlnash~. ~~T, :; j: :i Anglo-Saxon archftecture The early Romanesque archttecture of England lefore the Norman Conquest In 1066. characterized by the translation of timber prototypes Into stone. HISTORY Ottonian architecture The early Romanesque archlteGture of the (?erman ~~kY that ruleJ as em~rors of the Holy Roman Empire from~2.=.IClOb ~~h ~t.kY.elop_rnent offpfit!S ~dy~.!rom~roHnglan_and ByzantlJ'!tL ~~,~pt.~. Norman archftuturt The Romanesque architecture Introduced from Normandy Into England !lefore the Norman Ccnquest and flourishing until the rise ofGothic architecture c12OO, characteriuJ gy the 7ulIalng of great Benedictine abl1eys. the two-tower facade supplementing acentraItower over the c~slng. and the use of geometric ornamentation. Norman ColUlJest . The conquest of England I1y the Normans under WllIl3m the CclUlueror. 101066. ••••••••••••••••••••••••••••••••••••••••••••••••••••••••••••• 1000 l~m Moorish archiUcture Moural1ic style ~ religious tilthof Mushms. based on The islamic architecture of North Africa Astyle of Spanish architecture produced ~ texhtngs of tile prop~ Mulummad. and esp_ ofthe reglonsof Spain under from the 9th to 15th centuries by Chrlstl3ns tJ..e central themes of which are De!lef In Moorish domination. characterlze.d by under Moorish Influence. characterized by the on~ God. AlI3h. the existence of the lulldlng of large mosques and the horseshoe arch and other Moorish Par;;rdlse and Hell. and tr,., universal ela7orate fortress-palaces. features. J~ment [),ytoCGlme. Also. the cM11z.atlon !71dtt on islamic faith. Also Moor C41b1 t.Wlumm.l<:bnl:>m. Amemrerofthe Muslim people of Muhamnu4 Arab prop~ and founder of Islam. AD. 570-632. Also. MoIumrnecl. Nar.;!l A period In Jap;ine~hlstory. All. 710-794. ch3ractuIzeJ by ~ adoptlon of Chinese cultu~ and form of§OVt:mment: named ~ ~ first permanentcapital and chief Buddhist cen~ In ancient Japan. northwest Afrb who Invaded Spain In the eth century and«eupled It until 1492. Japane~ architecture The architecture of the civilization that emerged on the Japanese archlpel3go off the eastcoast ofASI3. characterized I1ya synthesis of seminal Ideas from China and native conditions producing adistinctive style ch3racterlzed I1yhghtness. delicacy. and reflnement. .a±::::::!===~~~~~~;;::::!:~:=!::lt::l:..... Mixtu archituture l~ The architecture of the Amerindl3n culture cen~reJ In the 0aX3C3 Valley of Mexico from about AD. 000 to the Spanish conquest, charac~rlzed by great stone masses, the use of Interior stone columns. and the highly detailed fretwork of Interior and exterior/rle:zes. Toltec archituture The architecture of the Amerindian people who settled In central Mexico around A.D. 900 ana who are traditionally credited with laying the foundation of Aztec culture: characterlzed by colossal 73saIt telemones ofToItec warriors. colonnades several ranks deep. and stone panels carved wlth,human- headedJaguars and sym70ls of Quetutlc6atl. set In plain wall surfaces. Quetzatlc6atl Priest-ruler of the Tottec people. who was deified as the feJtherea-serpent god called by that name I He~n _ Ofor pertaining to the period In Japan. A.D. 78S-1185. char3cter1z.ed by the modlf1caUon arid naturallz.atlon of1de3s and Institutions that were e3rl1er Introduced from Chlr1'a During this t1me Indigenous feudansm superseded Chlnese-lasea soc13Iorder ~d Japanese architecture developed In Isolation from China. 131
  • 132.
    HISTORY Gothic architecture Renaissance Thestyle ofarchitecture ~lnatlng In France In the 12th centulj';lnd exl:stlng In the western ~If of Europe throu~h the rnWIe ofthe 16th~.chamterized l7y the 17uiki:~~ ofgreat cathedrals. a~lve lightening ana The actlvlty. spirit, or time of the numanlstlc revival ofclassical art, nterature. ;lnd learning originating In Italy In the 14th centuryanaextendln9 u, the 17th century. mari:J"9 the transltlon from the medleval tc the modern world. helghtenln9 ofstnscture.;lnd the useof the pointed arch. ri17l7ea vault. and a~ ofrichly decoratea fenestr;;tion. : E.1rly French style The flrst ofthe three phases of Freneh Gothic archIt.ectureo ch2~ 7y the pOinted arch ana~rlc tracery. E.1rfy EngUsh style The first oftheth~ phases of ~1Ish Gothic architecture from the 1&12th through the 15thcenturies. characterized j..7ythe lanatwindow and plate /' // r " . R3yon/'3rrt style Flamboyant style The rr,W~ pnase of French Gothic The flll3l phase of French Gothic architecture archltect;,:(e from tM end of the 13tI1 from ~ bt814th through the middle ofthe tnrough the bt814~ c.entlJrIes. 16th centuries. charntenua I1y flamellke cha~.dJ by clrcubr windows traCt1j'.lnt.rkaCy of aetaillng. ana frequent with r;;.i3tJ~ tk1es of tracery. compnc.tlon oflntaior space. Deca~ s~ Perpendicul.1r 5tyle .The secorJ of the thru plt;ses of The flrI4/ phase of Engllsh Gothic Engnsh Gothic architecture from archftectijre prMm~ from the late the l3te eth tnr'0U4h ~ iat814th 14th through the ~rly 16th centuries. centuries. ~~ P-tIth charact.erizta I1y perpendlcubrtr;;·celj'. tracery. ~PoI7te ornamental flne Intrbt8 sto~. anaelarorate vaultln.g. a:".a reflnementof fan vaults. Also cafled RectIlinear stontC~ techniques. sty/e. Geometric 5tyie The e3 rly ~e!op:nem: oft.~ Deco~.&:l style in the 1at81.'3th and early14t:!1 centuries. charact.erized I1y the use ofgtometric tr3cerJ'. Curvilil'leJr style minstu Renaissance architecture The various adaptations of ttaflan Renaissance architecture that occurred throughout Euro~ until the advent of Mannerism ana the Baroque In th816th and 17th centuries, ch3racterfu.d 7y the u~ of Itall3n Renaissance fonns and motifs In more or less tradltlonall?urldln~s. itJlian Renaissance architecture The group of architectural styles t~t originated In Italy In the 15th and 16th ~turies. cnmcterizea I1y an emph4isls on symmetry. eX3Ct mathematlc.1 relatlonshlps l1etween parts, ana anoverall effect of simplicity and repose. E.1rly Renaissance A style of tta113n Renalssa1lCe art and architecture developed aurlng the 15th century. cllaracterlzed ":ithe development of Onear perspective.chiaroscuro, and In l?u1l:iJng. by the free and Inventive esc:: of ct..ssica/ details. duomo ./ta/l3n ciesl~natlon for a true cathedral The lr..e:- de¥elopr.-.e:1t of the Deco~..ed style In the ~a half of the 14~ cem:ury. cha~rtz.ed I1y use cf c;.w'V1Il1le3rmCt:!j'. Originally. a monastery church: bw. any large or Importantchurch, as acathedral or the prlnclpal church of3 town. I I ~1W II • 1100 ••••••••••••••••••••••••••••••••••••••••••• Muatpr .archit.ec1:vre SeUuk archittcture n Astyle ofSpanl$h ~ltecture The Isla::"llearchitecture eX sev~1 .L. produced from the Cd! to 16th run:lsh ~~ ~t ruled over "P unturies Py Mudejars and ClIristlans centnl.I"J ~tern Asta from the t1th 8 ~ within the Musllrr. tr3dltlon. to ~th cen';;Jrie-s. much lnfh:enua boy 6 cholracterized Pyafuslon of Persl3n adite.cture.~-I Rocrunesque anaGothic witJllslamlc eIe1nents. Mudej~r AMuslim permitted ta re~1n In Spain 3f"eer the Christtan reconq~. esp. during the 8th to Gth centuries. Chimu Otu,rna narchit.ecture The Islar.1iC ~rchttectlre of the Ottom3n Empire frcm the )4t:!1 ce!1tuf)' on. much Irrfluenua ';y &yz;orrUM architecture. An Amerindian people Inha17t;;:-.g the northem coast of Peru and h~ng • highly developea urban culture that ~sted from al10ut "'.D.loooto Its destr~lOn I1y the Incas c1470. P~tcl.1"ic OfOf' pertaining ta tksoamerican culture from AD. 900 ta the Spanish conquest In 1519. 132 InC.1 architecture The arcn~re of ~ Quxnuan people who migrated lntc theCuzco area aroutAJ).l100;lrd ruled Peru urrtll the S,anl5h corl<'luest In the 16th untury. chmct.enua esp. P-t strong simple forms of smooth ashlaror polygonal mJ sonrj which was cut. flnlshed. ana Atted~.h great precision withclJt the use ofIron chisels. " :~ • • • • • • • • • • • • • 48 • • Quattrocento architecture The ttall3n Renaissance archltecture of the 15ti1 century. ~~" - The archItecture ofthe Amerindian people who settled near the shore of uke Texcoco In central Mexico cl352 and who rose to dominance c145O: charaet8rIuJchiefly Py the PJT3mld supportln9 twin t8mples on a common platform. approached 7y paratle/ stairways. The destruction of AzteG archtte.cture I1y the Spanish conquistadors have left few remains. 1 I . ,I I ~ .- , ' I ....... L L L I L L
  • 133.
    ~ k f. ii I j. r -" High ~i5sance Astyle oflt3llanRenaissance art ana .architecture ~eloped In the late 15th and e4rly 16tt!centuries. characterized by an emphasis 011 draftsmanshIp. the IllusIon of sculptur;11 volume In paintlng. anain !7ulidlng. by the Imitative usc of whole orders aM composltlonal amin~mentsln the class~lstyle. wtth great attentIon to the formuUtlon of com~ltlonal rules ~r tM precepts of Vltrovius and the preceaents of existing ruins. Tudor archiUcture Atransitlonalsty!e ofEngnsh architecture that cWIe10pedduring the reign ofthe royal house ofTUdor in the second halfofthe 16tt! centu!),. cha.racterlzed by the Tudorarch ana the appl1catlon ofRenaissance details to uulldlngs OtherwIse late Perpendicular In style. zwinger Aprotectlve-fortressln or adjoining a German city: byextenslon•.a term for several German palaces or parts of palaces. 3sln Dresden. ~2.p~ile.~~~.~~~ Astyfe oO-rchlteCt'ure'Oi'lgln3ting in Italy In the early 17th century and variously prevalent In Europe.ana the NewWorld for acentury and ahalf.characterized by free and sculptural useoftheclassical ordersand ornament. dyn.am1c OppOSitIon and Interpenetration ofspaces. and the dramatic com!llned effects of architecture. sculpture. painting. and the decorative arts. Ro~ Astyle ofdecorative art that evolved from the Baroque. originating in France about moanadistlngulshed byfanctful. curved spatial forms and el3l>orate. profuse designsofshe/1m and foliage IntenJed for adellc3te overall effect. HISTORY cl.~ssicism The principles or styles ch3racteristlc of the culture. art. and literature ofancient Greece arid Rome. Classic Revival Art ana archItecture In the style of the ancient Greeks and Romans. as that of the Italian RenaIssance and the neOclaSSical movements In England and the Unltea States In the late 13th and early 19th centuries. Also. Classical RevIval. Neocl155icism The claSSicism prevailing In the archttecture of Europe. America. and various Euro~n colonies during the late latt! anaearly 19t:h centuries. characterized by the Introduction and wIdespread use ofGreek and Roman orders arid decorative motifs. the surordlnatlon of det311 to slmp~. strongly geometric com~ltlans. aM the frequent shallowness of renef In ornamental treatment offacades. ••••••••••••••••••••••••••••••••••••••••••••• 1700 •••••••••••••••• Cil'kluecento ,rchftecUlre M.anner~m chinci~rie Colonial architecture ~ tt..l1;;in Ren3lssance architecture of Atr3nsitlonalstyle In European Astyle of ornamentprevalent chiefly In Thestye of archltecture. decoration. arJ tM 16th century. archtucturt: In the late 16th ~ntury. 15ti1-GenturyEurope.characterized by iumlshln9sof the Brttlsh colonies In Mogul ~rchit.ecture The Indo-islamic .archltecttJre of ~ Mo.3ul dylusty. 1526-1557. typlfled by lI'1OIlummtal palaces t an.d mos.q~ with ~hly debI kcoraUie work. particularly In Italy. charactertz~ by Intricate patterns and extensIve use of Amerlc.a In the 17th ana lathcenturies. the unconventional uscofclaSSIcal motffsldentlfted as Chinese. mainly adapkJ to local materials 3na elements. In the fine arts. M.1nnerlsm demands from prevailing English 5ty1es. W3S chieflycharacterized by .a distortion of perspective. elongated Georgian architecture Fedtl'3l'tyie forms. and Intense. often strklent c~lor. The prevailing style ofarchitecture. The Classic Rc;ival style of the dec.or3tN~ furniture. and cr.afts current in England arts ana architecture current In the U.s. and the North ,'.l!1erlcan colonies. esp. from c1780 to c133O. from 1714 to la11. derived from classlc31. Rtn.alssance. ana Baroque forms: named .afterthe four kings n.amedGeorge who reigned successively during this period. DirecWire &tyte Astyle of French furnishings ana decoration preceding the EmpIre style. characterized by an increasIng use of Greco-Roman forms along with an IntroductIon. toward the end. of EgyptIan motifs: n.amed after the Directory. the .rody of ftve directors forming the executive power of France from 1795-99. ~ency~t~ The neoclassic style of architecture. furnlshln9s. aM decor.ltion durln~ ~ period In British history. lal1-20. during which George. Fr1n~ of Wales ( I3ter Geor~ rf) was regent: slmllJr to the Dlrutolre arid Empire styles and characterized ~ close Imtt..tlon of anclelTt Greek forms as ~B as ~ less freqW1t arJ looseradaptations of ancient Ronun. Gothic. Chinese. and ancient Egyptl3n forms. Empire 'tyie Tht neoclassic style of archltectu~. furnIshIngs. aM decoration prevaJn1l9 1n Fraru arid Imltakd in various other countries during the first French Empire. c1800-3O. characterized by the u~ of delICate put elaDorate ornamentation ImItated from Greek and Roman romples and I1y the occasIonal use of mIntary ar.a Egyptian moth's. 133
  • 134.
    HISTORY Gothic Revival A movementaimed 1treviving the spirit and forms ofGothic architectl.Jre, origlnatlng In the late lath century put flourishing mainlyIn the 19th century In France. ~ny. Engbndand to alesser ~nt In the U.S. Gothic remalnea the accepted style for churches wdllnto the 2Ot11 century. SUamboat Gothic Aflorld al'Chltectur.illsty!e used for homes l1u1lt In the middleofthe 19th century In the OhioaM Mississippi riverVll~, suggestlng the gln~d-~ construction ofriverroa'ts ofthe ~n period. gingerhead ~vlly, gaUdily, and superfluously ornamented, esp.ln architecture. collegiau Gothic Asecularversion ofGothic archrtecture, as In the alaer colleges ofCam?ridge and Oxford. Victorian architecture The revival ~nd eclectic architecture, decor. and furnishings popularIn English-spe3l:lng countries during the reign ofQueen Y1ctoeia of England, la:37-1901. characterized ~ rapid ch3r1¥s of style as aconsequence of 3esthetk: controv~rsy and technolo<;llcal Innovations. Dy the frequent presence of ostentatious ornament, and ?y an overall trend from classicism at the start to romantlclsm and eclecticism at the middle of the per.od and thenceto classlclsm again. wrpenter Gothic Astyle of VICtorian Gothic architecture In the 19tII century adapted ~ artlsan- Dullders to the resources of contemporary woodworking tools and machinery. BeJwc-Arts architecture Astyle of architecture favored ?y the Ecole des Beaux-Arts In late 19th-centuryFrance and adoptM In the us. and elsewhere c1s()O, characterized ?y symmetrical plans and the ~fe.ctlc useofarchitectural features comlnnea so as to give a massive, efa!1orate, and often ostentatious effect. The term Is often used In a pejorative sense to deskjnate excessive formalism dlsreg3rdlng considerations of structural truth, aav.nce.aaesthetic theory, rational planning. or economy. eclect!cism AtenJency In architecture and the decoratlve arts to freely mix V;;JrJous hlstorlc3lstyles with the aim ofcombining the virtues of diverse sources. or of Increaslng anusive content. particularly dueing ~ second halfof the 19thcentury In Euro~ ar.d the US. ec!ectlc Ofor pertaining to wo~s of archlttctu~ and the decorative arts that aerivt! from a wtk ra ~e of hIstoric styles. the style In each Instance PeJng chosen for Its aeemeJ appropruteness to local tradltlon, geography,orcutture. 1800 ...................................,At=~~61~~~ Mis,ion Styfe Astyle ofarch~re associated with that of early Spanish colonial missions In Mexico and the southwestern U.s.• maInly In the 15th century. 134 R.1tional~m Acleslgn lI"C1'ement of ~ mld-l9ti1 century that emphasizea the decorative use of lTt3terials and!extures ar.d the development ofornament as an ~ral part of3 structure r3therthan as appl1ed adornment. Arts and Craft5 Movement .Amovement th4t origln.ote.:l in Eng~nd cle60 as a ~ctIon against poor-qua!Jty mass-produuJ goods, ccXtivl~ ofcrnt and decoratbfl as asl~le tntlty In the handcraftl~ of roth uttti~rl3n and tIecoratlve cPjects. R1chard~nJan Romane~ue The revival of the Rom3nesque s~ In the U.S. Py Henry Ho~ R1ch3rdson,"'~e6, and his followers. chamterlzed Py htavy arches. rustlc3ted masonry walls. ana aramatlc asymmetrical effects. Rundbogen~1I Astyle ofarchitecture In the mid-19th century. esp. In Germany. ch3racterizea ~ the use of the round-arch motlf;and complnlng In varJous~rees elerr~ from the EarlyChristlan. 6yz3ntlM. RolTt3n~ue, and Early Renaissance styles: from the Germjln term for round- arched style. Shi~le style 5tickstyte An eckctlc style ofAmerican archltecw~ In the second half of the 19th c.cntuljI. char.aeterized esp. by the use ofvertlcJl Po3rd siding with ?attens or grids of ~rds over horizontal siding to express the frame construction Peneath. An American style ofdomestic architecture during the second haft of the 19th century. characterlzed by the extensive use of wood shingles as exterior claddlng Oier aUmlier fr3rne andfrequently asymmetrical and fluid plan arrangements. Art NcU't'eau Astyle offine and applied art current In the late 19th and early 20th centuries. cha~ Pyfluid. unduf3tln~ motifs. often derived from natural forms. ~1eliPerty The ltallan version ofArt Nouveau. namea afterthe flrm oflJPerty and Co. In t.cndon. Seu'5ion . The Austrian version of Art Nouveau. so named rec.ause Its adherents seceded from the official Academy of Art In Vlenna. Moderni5mo The Spanish. particularly CataIan. version of Art Nouveau. Ju¥nd,ul Art Nouveau as practiced In German- s~aklng countries: from the German term fo' youth style. J ~ I '. J I .~ ! J ~ .. I . r I ' ) ! r I t
  • 135.
    I· HISTORY deStlil. . II schOOof m that was founded In the NetherlandsIn 1917, embracing painting, sculpture, architecture, fumlttJre, and the decorative arts, mar:ed esp. by the use of plack and white wtth the primary colors, rectangular forms. and asymmetry. From 'the style', the name of amagazine published bypartlclpants In the movement. cul:rism 5auhJus Aschool of design established In Weimar, Germ.3ny.ln 1919 by WalterGroplus, meved to Dessau k11926. and closea In 1933 as a result of Nazi hostility. The concepts and Ideas deyelopeJ at the Bauhaus were characterized cblef1y by the synthesis of technology. craft. and design aesthetics, with an emphasIs on functional design In architecture and the applied arts. a17stract expressionism _ Interl13tional5t~ modernism Adeliberate philosoph1c4land pr3ctlc31 estrangement from thepast In the arts and hterature occurring!n the ccurse of tne 20ti1 century aM taking ferm In any of v3rious Innovative movements and styles. Afunctional architecture devoid of reglonaI characteristics. devetopea In the 1920'5 and 19:30'5 In Western Europe and the us. and post-modernism appiled throughout the world: charactertzed by simple geometric forms. large untextured, often white surfaces. large areas of glass. and general useof steel or relnforced concrete construction. Inutalism Amovement In architecture and the decoratlve arts that developed In the 1970's In reaction to the prinCiples and practlces of modernism. esp. the Influence of the Intemat1onaI5ty!e. encouraging the use ofeleme~5 from historical vernacutar styles and often playful illusion, decoration. and complextty. deccrated shu! II style of painting and sculpture developed In :he e3rly 20th cen~ry, characbized by an emphasis on formal structure. the reduction ofnatural forms to thei"!JeC)metrical eqUivalents, and the organlzatlon of the planes of a represenUd OOject Independently of represent.rtlonal rtttulrements. AmovementIn.experlmentaI. nonrepresentatlonal paintIng originating In the U.s. In the1940's. embracing many Individual styles mar:ea In common by freedom of techn'que. apreference for dramatically large canvases, and adesire to give spontaneous expression to the unconscloJs. AmovementIn ;irchltecture in the 1950's. emphasizing the aesthetic use of Irasic building processes, esp. of cast-In-place ccr.crete. with no apparent concern for vlsu31 amenity. Adesign concept ch<iracterlzed ~ buildings of utilltariandesign but having fronts Intended to &.evate their Importance or to anr.ouncetheir functions. 1900 •••••• ~ ••••••••••••••••••••••••••••••••••••••••••• ••••••••••• Ch~5c~1 A 9rot1P of US. architects ~ve clMO-lS10 ~ known for major Ifll1O'f.itlo!1s ill h41h-rlseconstructlon .nd for the Jevelopmcntof modem commercial bvltalng des~n. Constructivism A movementwhich orlgln;iW In Moscow' after1917. priln3rfly In sculpturt but with vroad appbtbn to architecture. The expression ofconstructlon W3 s to De the Pasls for atllMkilng design. with emphasls on functional machine parts. OrgJnic architecture Aphilosophy of architectural des~n that emerged In the early 20th century. asserting that abuilding shouId have.3 structure and plan that fuffiliits functional requlrtrnents, harmonize ....ith Its natural ~ronrnent. and form an Inter1ectually lucld,l~~ratea whole. The sh3pes or forms In such 3WOO are often of irregular cor.tour " and seem to resemble or s~~st forms found In nature. ArtOeco Astyle of dew-atlve art deve!aped originally In the 1920'5 with ;I revival In the 196{)'s. mar:ed chiefly lry geometriC motifs, st.reamh!'lea and curvlhne3r forms, sharply deflrid outlines. often roid colors. and the use of synthetlc materials, 3S plastlcs: shor'.ened from functicn.1li5m Exposition Internatlonale Des Arts Adeslgn ~ that evolved from g Dkor.1t1fs et Industrlel:s Modernes, an several prevfous movemerrts In Europe In ~ expos!tlon of modern and d¢;oratlve the early 2Otltcentury, advocating the c-.u:u.!JL.u..c.J1J.AJ.L~ arts held In Paris, France, In 1925. Also design of bvlldlngs, furnishings, or the like " . called 5tyl~ Modt:mt:. as directfulfilment of functlcnal . reqUirements, with the ronstructlon, materials, and purpose c~rIy expressed, and with aestl1etlc effect krived chiefly from proportions and ftnlsh to the exclusion orsubordination of purely decorative effects. vernJcular ;archMcture Astyle of architecture exemplrfylng the commonest building technIques b3~ on the forms and materials of a p3rtlcular hlstotical period, region. or group of people. .avant-garde _, The 30vance group in anyfield. esp.ln -....... the vi5Ual, bterary, or musical arts, ~~_. ~WhoseWor:sareCharacterlzeclchlefly ~~'-_.n~Dy unorthodox ana experimental ~~. ~ thodS' .. ~ "- ,-~ high-tech Astyle ofdesign incorporating IndUStrial. commercial, and InstlUltlonal fixtures. equipment. materials, or other elements having the utllttari3n appe3rance characteristic of Industrial &es~n. decon5truction Aphilosophical and critical movement tIut started In the 1%O's, esp. In the s~dy of literature, questioning traditional assumptions about the ability of langu~e to repreSt:nt re3llty and emphaslzlng that a text has no stable reference because words essentially refer only to other woras. A re3aer must therefore approach atext Dy eliminating any a~stract reasoning or ethnocentric assumptions through an active role of defining me3nlng. sometimes by areliance on etymology and new word construction. 135
  • 136.
    HOUSE A~M~ in whichptople live. ,hetur ~~~rna.orwithin .. whicll~~Is~from stoms orother ~ condltlons. hut Asrull. slInple dwd~~ orshelter. esp. one ~of n.;tural ::13ter13ls.. pit~ A~ funn of shelterconsisting ofa pit ~ In the earth and roofed over. AlsoC3JWpft~ !.kedweUing A~ esp. of prehistoric times. Dulft on pilesOf' oQler supports CNer the waterof a b~ ~ A~ dwe!n'"'4 ~~racterlstlc of ",.ny early~rt:S. esp. ~ of the Ircquolsand V3Ax1s cmet ~ ~n Indlan peoples. WIsisti'"'4 ofaJIIIOOden. Dark- cotere4frJmewori: ~ as much as 100 ft. (30.5 m) In ~ngth. ~ yurt _..j Acircular, tentJJkedwelling of the Mongol nomadsofuntral Asia, consisting ofacylindrical wall ofpoles In alattice arrangement with aconical roofof poles. Doth covered l7y felt oranimal sl:lns. ~. ~Ioo An Eskin;) house. U$ually Pullt of D!ocks of harJ sr.?W or U In p-,e sh3pe of adome. or wne. ~r.ent. of s.:d, 1'I'OOd. or stone. Alsa,~1v. pueVlo ACOIn~ dweIIl~ .nd defensive stnlc;ture of the PuePlo Indians of the southwestern U.5~ I:>untofufot,~ orstane. ~ runy-stoned. and ter1"3Ced. with enby tllroogh the fiat roofs oftile ch3Jnb.ers l7y ladder. PLdIIo structures were Pullt on t:I-e ~ fbor.ln val~s. or In the more easfydefenkA crrff w-alls of mesas. ~ Anaturalfiat-topped *ntlon with one or ll'1Of'e cl!ffll:e sldes. common In arid and sembrtd parts of th~ $OtJthi'l~stun U.S. ,ina Mexico. • 136 klVJ Alarge underground or partly und~rground chamuer In 3 PuePio Indian viRage. used l7y the men for religiouS ceremonies or councils. tepee Atent of the American Indians. made uSl:!lllyfrom animal skins laid on aconical frame of long poles and having an opening at the top for ventilation ancla flap door. Also. tupee. ...-'~ wigwam ... An American Ind13n dwelling. usuallyof round or oval shape. formed of poles overlaid with Dark. rush mats. oranimal skins. .r-~ hogan ./ ANavaho Indian dwelling constructed . usuallyofearth and logs and covered with mud and sod. ,oahouse Ahouse !roUt of strips of sod. laid nke Drlckwork. and used esp.11y settlers on the Great Plains when tlmuer was scarce. -_........._........ totem pole Apole or post carved and paInted with totaJlc fl!Jures. erected I1y Indians of t.N northwestcoast of North America. esp. In front of their houses. totem An animal. plant. or natural aDject serving as an emDlem of a famIly or clan l7y virtue of an ancestral relationship. plJnkhou~ Alarge. usually rectallgular house constructed oftlmDeI' planks. l7ulltan& used l7y Indians aMd. less frequently. Py Eskimos. trulla Acircular stone shelter.of the Ap-i'ha region ofsouthtrn Italy. roofed with conical constructions ofcori7e1ed dry masonry. usually whitewashed and painted wIth fl!Jures or symrols. Many trulll are aver 1.000 years ok:! and stili In use today. usually located amo~ vineyards to serve as storage structures or as temporary living quarters durIng the harvest. .~ ! '1. I, L L
  • 137.
    I ~I I· t5hain compluvium Aroof openlll9ln anancient RomJn oouse. through which raInwaterdlsch3rged Into a cistern In the atrium beneath it. - ..----.....-- displuviate Having roofs sklplng downward toward the compluvlum. impluvium Acistern set In the atrium of an ancient Roman house to rueive rainwater from the campluvlum. An ~ 17ay or proje:cW wl~ with a raised sill serving as a desk for wrlUng or reading. usually ~ plueJ at a right angle to the tokonomJln the reception room of a sholn-zukurlstyiereskknce. ---.. "-.. T..·.. -- bkemono J,--·------·....--..--·....--- AYert1c41 h.1oglng scroll COI1t3lnlng either tt:xt orapalntl"9.lnt~ to Pe ~ on awall ana rolled when not In use. ~----.. -- I , tokonolU-r----....j r;,-,...ftA-.,-W2,-;-_- ..-...-..-__......_-_- ..-._-.- __,-:-j---..z- Mure recess: ashallow. sl~htly raised r'7 1 alcovefor the display ofakakemono or 'An exttnslon of the floor on one or mare flower arrangement. One slOe ofthe sides of II Japanese-style house. usually recess rorders the outside W311 of the facing. garden ana servlng as a room through which light enters. while pass.;geway or sitting space. the !nter'.or side adjoins the t3n3. As the splrttuJIcenterof atndttlon31 Japanese house. the tokonoma Is located In Its mast formal roam. HOUSE ....... perlsty~ -atrium The main orU1tlallnnerhail ofan ancient Raman house. open to the sky at the center and usually haylng apool for the collection of rainwater. Also called cavaedlum. : . Acolonrude sUlTOIJnalng abUIk:!1r1fl oracourtyard. 5~i~:iu~lJri. i Aceremonial style ofJapanese residential archltectureIn tM Kamakura period. deriving Jt.s n3me from ~ eh2mterlst/c sooln or stu~ and marUd by a hierarchical arr.lrlflement ofpub-!ic and private rooms.i ~hikl ~ bptlonroom: the rn;aln room In a traditional Ja~r~ hause. used for receiving anaentertaining guest:;." Its Importance Is ~t In the presence ofatokonolTt1. t3n3. and shoin. -4 bl12,t In Ja'panese reslkrrtbl arch~re. a recess wfth burtt-In shelving, uSlJally adjoining 3 tokOllOfTU. :tJwjl , ane'ofase.rlcs of ~ tnnslucent panels usea InJJpa~a~re ~ the exterorana the 1tTtaior.or~ two Interior spues. can~ ofalight wooden frarnewcrl COr'ereQ on one side w!th rlu paptr: the ~ sectlon Is ~slonatly fliled by a t}ln ~ pJnel L . ~ ...... ~~~a:a~~thefror.tofthe ....._...-•• Ath~bWm.at.COi~wIth smooth. partltlon b-etween the tokonoma and flnely WOYtn ree.&s ar.d round wtth plain or the boa. sometimes ofexquisite wood decorated banJsofsIl.cotton.or hemp. ofparticular grain and shape. serving as 3 f'ooo~ and a~nd3rd for designating room sb:e In 3tradItIcl13l Japanese house.Ta-bml rneasu~ . approxlrrt3~3x6 ft.,tO.9~t~ II). M varied In actualdrmenst6ns accorJlng to region and method fordaermlnlng column spacing. I I I :""",,---1 ,_. I I I ..·,l,ken IA linear unit for ~ulJtlng column spacing In tladltblal J;;ipanese canstroctlon.lnltl3lly setat 6ft. or 113 m. but latu varying according to room width as determIr.eJ by tataml unIts. 137
  • 138.
    HOUSE detJcheJ dweRing A ~.~h;Mn~ no wallin common with 3Mt.~.tr reuse. ~peeca AstJ~of~eaevelopea malnlyon C~ Ccd. MasS3chusetts. In the 15th anJ w+yt9UI centuries. typlcally a ~l3ubr. one- orOM-artJ-a-half- St.orj.l¥OCd-fnlU house wtth white cb~rde.d or shl~1e w;llis. ag3l7ie roof wit.~ ~ aves:iinJ usually no dormer. a 13r3~ ~I chimney. arul afront door 00~ ~ one of the long sides. nmM A~..ory ~ with alow'pruhed roof. e5p. ~ lNift i1 the suDurbs. ~miktached dwelling Aho-_~ joined 1y aparty wan to anct..~ house or row of hOllSt5. 138 saltbox Atype of wood-frarnea house found esp.ln New England. generally twofull stories h~h In front andone story high In Dad. the roof having al?OtJt the same pitch In both directions so th.it the ridge Is we~ toward the front of the house. Prairie SGhool Agroupofearly 2Oth-centUtj' archttects. I'IO"t4D1y Fmk Lloyd Wright. who tkslgned houses and otherUulld1ngs with emph.islztd horizontal hIleS responding to the flatness ofthe Midwestern prairie. ~- tr;1cthouS6 Ahouse forming part of areal-estate development. usually h3v1ng aplan and a~ranu common to some or all of the houses In the dcm:lopment. duplex house .-. ..-_...- Ahoose having separateapartments for two families. esp. atwo-story hoose havl~ acomplete apartment on each floor ilnd two separau entrances. Also called duplex. tripltx Allulldlng having thru apartments. an apartment having thru floors. or amultiplex of three theaters. DutGh Coloni..11 Of or pertaining to the domestic architecture of Duuh settlers In New Yon: ana New Jersey In the 17d! centu ry. often characurlzed 1y gamDrel roofs ha~1ng curved eaves over porches on the ~ng sIJes. bungalow Aderlvat/veof the Indl3n Dungalow. popular esp.ln the flrst quarterof the 20th century. usually having one or one- and-a-halfstorles.a widely ~rac(eteJ gJDle roof, alarge porch. and often Pulft of rustic ITI3terl31s. bungalow court Agroup of three or more detached, one- story. single-family dwellings. arr.lngeJ with common utmtles and acces5Ol'ies under acommon ownershIp. split-level Ahouse having aroom or rooms somewhat al:love or ~w adjacent rooms. with thefloor levels usually dIffering byapproximately halfastory. bi-level Atwo-star; house having the lower level sunken relow gradeaM an ent/)' at grade halfway ~ the twofloor levels. ~i~]IIill" =~!:~'~~II~. dogtrot _._.......; ADreezeway linking two parts of a house. breezeway A porch or roofed pass~eway open on the Sides. for connecting two Dulldlngs or parts of aDulldlng. J J I ! ~ i I 'rI I I r LI I
  • 139.
    l'r :--.. ! I r-! 1"'"' I ,..... I ,.~ I 1 ,.... I J,. I I i r~ """ ,j J'. I' I condominium An apartme."~ house. office ~lIdlng. or other multiple-unit C4lIT1plex. the units of which art: InJ1vIduallyowned. each owner receiving arecordalne deed to the Indlvlaual unit purchased. Including the ~ht to sell or ~ that unit. and sharing In thejoint ownership of arty common elemen~. as hallways. elevators, mechanlc3land plum~ systems. or the n~e. cooperative AIrolldlng owned and Ironaged by a nonprofl~ corporatlonIn which shares are sold. enUtllng the sh2reholders to occupy units In ~he Irolldlng. Also called co-op. cooperativelpartment. r;!~~'r'!~fl)· .~ ;. 111! I ! I! ., •. .1(/, r! 'I' Iii Iii .' ~ : ..' ~ruce . A row of houses orreslknUJl : street on or IlQr the top of a slope. urracehou~ One of arow of hou;;es sh;uatea on a terraced sfte. clu~ur hous(19 A group of Irolldlngs and esp. houses Dultt close together to form relatively compact units on aSizaDIe tra~ In order to preserve open spaces larger than the Inelll/idualyard for common recreation. commons A tr3ct of land owned orusedjointly by the ~kknts of OJ community. usually acentral square or pari: In acity Of town, townhouse Oneofarow of houses In acityjolned by comlt1Oll sldewalis. In-ownsto~ Al7ulldlng. esp. arow kouse. fronted with areddlsh-l7rown sandstone. I mew _...1 Astr~t havlr.q small apartments ccflverted from stables. Also. mews. HOUSE multifamily Designed or sutta!7le for use by several or martyfamliles. housing unit Ahouse, apartment. suite of rooms. or a single room. occupied or Intended for ~cupancy as separate flvlng quarters. row house One ofarow of houses having at least one sidewall In common with ane~hl:>orfng dwelling. and usually uniform or nearly uniform plans. fenestration. and archh;ectural treatment. .-.' penthouse An apartment or resIdence on the top flooror roofof aIrolldlng. often set 17a,* from theouterwalls anaopening 01Tto a Uli3ce. ....-..__ ... duplex apartment M i ~ i apart'...ment house Abuilding containing anumPer r:;f 4ipartment units. Also called apa~ l7ulldfng, An apartment with rooms on two connected floors. Also callea duplex. .'-' flat An apartment or suite of rooms on one fioorformlng aresidence. walk-up An apartment above the ground floor In 41 building that has no elevator, .. garden apartment An apartll1C1t on the ground floorofan ap3rtme~ bulldlng havlng access to a Dackyard or garden. studio apartment An apartment consisting of asingle. multtfunctlonal room, akitchen or kitchenette. and al7athroom. Also callea effiGfency apartment. 139
  • 140.
    JOINERY The art orcraft of f.?nnin~ joints. esp.ln woodwork. eMJofnt Artyjointforrnea by uniting two membersend toend 50.s to Increasetheir1engtk.1Jso called ~1"4jo1nt. edgejoint Anyjointfonnea by uniting two members~ to edge 50 as to Increasetheirwidth. ~nglejolnt AnyjoImfOl'1l'led by unltl~ two lntIn(,ers at acorner SO as to WrIfedirection. miterjoint AJoint ~ two mem(,ers meetlnf2t anangle. made by cut'tlnfeach ofthe Imtlng ~ toan angle equalto . half tMangle ofJunctlon. woodwork The work producea ~ the carpenter's and Joiner's art. !Jenera11yapphed to objects or parts of awooden structure, as stairways, fumlture,or moIdlngs. sc.1rijoint Alengtheningjoint mak I1yovtrlapp'lng the tapered. notcnea. orh3lved ends of two members anahoIdlnfthem In place with 1101ts.straps.keys. orfishplates, to resist tension or compres5lon. tongue and groove Ajolnt mak I1yfutlng. ralseJ area or tongue on the edgeof one mem!ler Into acorresponding groov= In theedge of another mem!1er to pro.::luce aflush surface. AvPr.:T&G d4do •.........._........•.......•....•• Arectangular grOOfe cut In amttr1!1er to receive the en.:l ofanother. ~ &topped dado -'....' Adado that Is not cut .cross the full width ofa memrer. sq,uare 'plice Ahalved scarfjoint used esp. to resisttension. having athickerand athinnersection foreach niemrer. the thickerone ~elng on the end. ,./' spline ...".,/ Athin strip of material Inserted Into the grooved edges oftwo memrers to makea~ttJoint ~een them. Also C311ed ~ther. fishjoirtt AlengtheningJoint In which the al1utUng memkrs are held In alJgnment and strengthenea Dy flshplates. '" fi"hPI.rt.e fingerjoint Ametal pateDotted to each of two abuttlng meml;>ers. Alengthenlngjolnt formed Dy Interlacing f1nger-llke proje.ctlons on the ends ofthejolnea members. ~utterffywed~ 'j ~uttjoirtt Anyofvariousjointsfonned by 3~uttlng the surt.aces oftwo mempers squarelytogether withoutoverlapping. flushjofnt Anyjointfinished even or levcl with the surroundlng surfaces. Afastener In the form ofadooJ~ dovetanfurjoining two mem~ at their ~. Also called lnrtUrfly. ra~bet Achannel. gl"OC'l'e. or notch cut .Iong or nearone cageofa memberso that something else can ~ fitted Into ft. Also. rel1au. rout To groove or hollow out with a gouge or machine. dadojoint rab~etjoint AJoint made by Inserting the end oredge AJOint Pc:tween rabbeted parts. ofone memrer Into acorresponding dado In theother. Also callea hou~JoInt. miter An o~lJque sumcefonneJ so.s to ~tt againstanotheroVI1que surface to bejoined with It. shoulder miter tongued miter q,ulrk ......... ~pedjolnt Amiterjointhaving. raised surbceto limit motion ~n theJoined parts. Amiterjoint that Incorporates atongue and groove. An acute angle or gl"OOr'e separating one element from another. Ajolnt retween two molJlngs made I7y undercuttlng the end ofone of them to the profile of the other. AI50 called scrf1;,ed joint. e45ernent ..................... --" _..... ........... stop ch~mfer ...... ......... joggle Acurveajolntfonnlng a smooth tr3nsttlon retwun S1Jrfa~ that woulJ otherwise In~t at an angle. ea~edge -···..·..·· ..·..·~l@;_ Asl1ghttj rounded edge. ftjj,:;;;Z 140 Achamfer that narrows gradually to merge with asharp arrls. AI50. stopp~ chamfer. chamfer A~eveled surface. usually formed orcut at a45°angle to the adjacent principal faces. .' " --- Aprojection ononeof two '. .... ...../ .JoIning members fitting Into a . ..t. r correspondlng recess In the other to prevent shpplng. .' tUp Anotch cut In a timPer to receive atlm~er connectoror part of another timber. ~ I u
  • 141.
    I .~ ~ r Iulvedjo~ A~pjoIrrtfunned bycuttlngaway half ofe3clI r.emPer 1t the piau of Jdnl~ so tbt aflush surface results. Also called half-lapJoint. end-upjoint An anglejoIa'tformed by halving exh ~for 3 length equal to tM width r:I tM other. cross-bpjoint An,I'r'edjointfonM:l by two crossing memM-s. I mitered hllving An end·lapjoint Incorporrtlng amltel'on oneface. pbln 12p AfaP .JoIntformed by O't'erl3pplng two memPers without anychange In form. dovetail . Afan-shaped tenon In-oader JOINERY bpjolnt , AnyofvariousJointsformed by overlapping the endsor edges of two members. ~~~~ dovetail halving Ah.olvedjdITtmade ~ ftttlng a do't'etJll ;;~ end of one memPer Into 3 cornspond1ng mortise In the second 1IeI1~. biindmo~ A1I".artise ~ does not pa55 completefythrough 3 member. Also eJP.eJ st.opped mortise. " ~ stu~ tenoo ~/ A$hart tacn for fitting I,"'.o~ ~ndll'1Crtl~ ~unche4 tenon A ~r.cn M Is narrower1t Its Up th2l1 rt tts root. r I I ' I ~ I . L - - - i":--------" drawbort! > A ~oJc in 3 ~ bored eccentric wi~h t~ corn:spondlr.g holes In the 1r.crt:S<! 50 t!ut the two pieces be:~q Join~ win be forud tightly to3e:her ",~n the dr3...roore pin is ~3~r"'.er'd into plJu 5eCret dovetail Acornerdovet4lJoint showing only the hne of all'1iter. Also called mft.erdovetail. Ch3st mortise A~ru mortise !tav1ng oneInc0r.ea na"...."w side so tl..xt atenon canbe slid ilto It slkwiys. . 13p dovetJiI Acomer dC'vetaUjoint vlsil1le on one face only. Also QIIe.d half-91lnd dOYetan. openrr.o~ Amortise q:>enon three sides. Also calW slfp mort/st. slot morti~ _" common dovetail Acomerdo.-etallJoint visible on both faces. mortise Anotch or hole. usually rect3ngular. cut Into! piece to reulve atenon of the same .......... . dimensions. •.•.... dovetailjolnt AJointfanned by oneormore dO't'etal1s fitting tightly within corresponding mortises. :.:j .hoU~> '. r-L"u Tke end surface from I . mort[,ejoint Arty of variousjoints between two members h'13ae by housing a t::tnon In amortise: Also called mortist- ~nd-tencnJolnt. which aWoOn project . pevel Anne ex surface thrt meets another at arty 3~1t other than ar'0e3r:t .~~ ... tusk A~eveteJ $houklerfor stre~t.'~~.a ~non. root Ike wJ.der.eJ portlon of 3 tenon In ; through tenon tenon . Atenon that extends A~ formed on the end ofa cornpletely through or l>eyond memPer for insertion Into a the piece Into which Its mortise of the same~dlmensIonS' corresponding mortise Is cut. key -_·__·_·······_· ..··················_-_···_···1 ; Apiece of wood or meta! used as ~: a wedge to tlghten ajoint or to prevent motion between parts. ~0.. 'ho p"'"01the ,ho,ld<cs. /fil''"~~~::;:M/ /' ..; ''''''''''P'rt. ~ .;tJ keyedJoint Ajolntfastened or secured by a key. brL:lt~Joint Ajoi~t formed by !l>;;ting the end of OM rr.ember. notched to form two parai~ tenons, lr-.o two gains cut Int<J t~e edge cf a $eCOnd member, foxt.1i1 weJge Asmall ",ed¥ in t.he split end of a stu~ tenon for spre3dl~ aM securlnq tt when driven Into ablind mortise. ,A,ISO cal!ed fox wedge artlcul~ To unite Ity means of aJoIntor JOints. esp. SO as to make dIstinct or reveal how the parts fit Into a systematic whole. 141
  • 142.
    LIGHT EJectro~netic radiation thatthe u~lded hunun eye can perceive. having a wavef~th in the range from a~out 370 tc 000 nm ana propagating at a speed of 130.281 mUsec (299.972 kmlsec). n3nometer Aunitof1e~th equal toone vlllionth of a meter. used esp. to express the wavelengths of light In or near the vlsltne spectrum. Av~~"m angstrom Aunit of length equal to one ten'vllflonth of a meter. used esp. to express the wavelengths of raalatlon. Syml1ol: A ultraviofet infnred microwaves radio waves Ofor pertainIng to deWomagnetlc radiation having wavelengths from al>out 370 nm.lmmeJiately ~ond the violet In the vlsl~le spectrum. to 10 nm, on the rorderof the x-ray regIon. ---- ""';»- --. "--. ~----- --.... ->--._------ .-........ '---........................... Ofor pertaIning toelectrolT13gnetlc ra~tIon having wavelengths from aroutaoo nm. contiguous to the red end ofthe vlsll7le spectrum. to 1mm, on the Ilorderofthe microwave region. ..--------- --' .------- lumil1Cm intensity ~ ...... .-.--.--.' luminous flux --./ ~.-. inve~ Siuare law The luminousflyx emitted per unit solid angle ~ atight source. expressed In candelas. C2ndlepower luminous Intensityexpressed In Wlncfebs. candle Aunitofluminous Intensity used priorto1948. equal to the lumlnousln~slty ofawax candle of sbndard ~!&atlons_ C2ndeb The Ir.IsIc;Slunlt of luminous Intensity. equal to the luminous Intensityof ;! source thatemits monochrom;~Uc radiation of frequency SM) X1012 hertz and that h2s a radIafit lnttnsltyof '/683 watt per stenldLln. Also c.lled st.ancbrd c.1ndle. AbVr':Cd saiki angle An angle formed l>y three or more planes Intersectl~ at acommon point. ster3dlan . '" .......... -........... Asolid angle at the center of a sphere subtencllng an area on the surfaceequal to the square of the radius of the sphere. AbVr.: sr 142 The rate of flow of vislvle light per U'11t time. expressed In lumens. lumen The 51 unit ofluminous flux. equal to the light emitted In asolid angle of one ster3dQn byauniform poInt 5OI.IIU havll19 an Intensityofone candela. AI7br.: 1m cosinel.1w The law that the illumination produced on asurface I1y apoint One of~erallaws relatlng two quantltles such that one quantity varies Inversely as the so,uare of the other. as the law that the IlIumlnatlon produced on asurface l>y apoint source varies Inversely as the square of the alstance of the surface from the source. source Is proportional to the I cosine ofthe angleofIncidence. ----1''-": Also called Lambert's law. j / ) .•• j~' 17rtght~5 The sensation !1y which an oeserver 15 able to distinguish between differences In luminance. iIIumi~t!on The Intensity of light failing atarry gJven piauon a ~hteJ surface. equal to the luminous flux Incident per unit area and expressed In lumens per unit ofarea. Also calied llIumlnanu. lux The 51 unit of Iflumlnatlon. equal to one lumen ~r square meter. AIM.: Ix ... foot-candre . Aunit of f1lumlnatlon on a surface that Is everywhere ~ foot from a "ntform point source of o~ c.nkIa an.d equal to one lumen Inclknt per 5qWlre foot. A~In-.:FC lumin311Ce TheCuantlt3tlve measure of ~rlglrtneS5 ofaI1ght sourceor an illuminatedsurface. equal to the luminous Intensity per unit projected area ofthe source or surface viewed, from agJven dlrectlon. lambert Aunit of lumlnanu or bri9htness equal to 0.:32 candela per square centimeter. AWn-~ L foot-I~mbert Aunit of lumlnanu or Imghtness equal to 0..32 cankLo per square foot. Abbr.: fL II II I I U I o L L L L
  • 143.
    r j I 1 r il1Ciknc~ reflection The str!(l~of aray of Il<3ht The return of light. or sound wave on asurface, sound. or raalant heat ~ ~, after. .strlklnga , , surface. ~ fq.. 'i ~... 'i.~ ~~ .. : ~. refraction The change of dIrection of;1 ray of light as It passes obliquelyfrom one medIum Into another In which Its velocity Is different. ~~ -----....---- diffraction --} The modulation of lightor sound waves as they ?end around the edges of an obstacle In their path. opa,ue Impenetrable to light. angle of incidence The angle that astraight line. as aray of l41ht failing on asurface. makes with a normal to the surface at the point of incidence. [ r angle of reflection f The angle that areflected ! ray makes wIth anormal to i areflecting surface at the I .~7 ! /// I ..• !/// .}., . angl~ of refraction ''K The angle th3t ardracted ".1 ". • ray makes with anormal to I' ,,'~ ~ the Interface I:>etween two I".. ~~:~~~~~~.~ __............__U· """~ translucent TransmittIng and diffusing light 50 that bodIes on the opposite sIde are not clea~ vIsIble. I ~,,~~ .I transparent Capable of transmItting light 50 that bodies situated Deyond or l>ehlnd can be distinctly seen. LIGHT law of reflection The principle that when 14htor sound Is reflected from a smooth surface. the angle of Incidence Is ~ual to the an.,Jle of reflection. and the Incldent r3'J. the reflected ray. and the I'IOrmal ta the surface all 1113 In the same p13ne. specular DIrected from asmooth. polished surface. diffusion Ascattered reflection of 14ht from an Irregular surface oran erratic dispersion throughatranslucent mater1al. reflectance The ratio of the radiatlon ref1ect.eJ P:i a surface to the totallnclderrt on the surface. aUscrptance The I'3tlo of the radiation absorkd P:i a surface tothl total Incident on the surface. - transmittance. The I'3tlo of the radiation transmitted through and emerging from arod)' to the tot.IIncidenton It. equivalent to one mInus the absorpt.iinct. 143
  • 144.
    LIGHT ~mp ..... pulp Anyofmious devktsfor producing light or ht.It. as Py eIearIcItyor gas. Incandescent bmp ---.--....-...- .... ~.- ................: Alamp In which .ll filament g.lves off 1 ~ht when he3W to Inca~ence ~ :~~-~~~:~~~I~_-J . l- U U ' L, The threadlike conductorof an electric lamp that Is heated to Incandescence Py the passage of an ee(;1;ric current. 111Cl~ The emission ofvlsll1le light Py a rodywhen heated to a h".3h temperature. exUnded-servlce lamp A13mp dcslgnea for reduced ener~ COflsumption anO alife longerthan the conventlonally set value for Its genml class. AlsocalleJ Iong-Ufe lamp. effic~ A m.e;lsure of the effectiveness with which a lamp converts electric powerInto luminous flux. ~ual to the ratlo of flux emitted to power Inputand expressed In lumens per W3tt. nUdlife ~ average life In hours ofagiven type of bmp.~on IaPoratorytestsofa ~tlve ~roup under-controlled cona'ttlons. thru-w.ay 13mp AlllllC4~t lamp havlr'4 two fl13men ts so ~t Itcan !le switched to three sucusslve ~~ oflIIumlnatfort. ~"i'ten lamp All IncandescentI3mp having atungsten filament. . ! I3mp!Ja5e The pa~of;;lamp that connects to a13mp holder. lamphoider Adevice for mechanically supporting and making electrical contact with a13mp. Alsa called lamp sccket. + ! '-~ t ~"9mn-h4logen lamp - ..•---...-.......... .. Atungsten lamp having aquartz l?ulb containing a$/TUQ amountofa halogen that vaporizes on ~tIng ana redeposits any M~ ~ partlcles Ir.Jct onto the filament. Alsocalled /1alogen bmp.lurtzlimp. fRump At.ungsten-halogen lamp having an Infrareddichroic coating for reflecting lnfr.ired ener~ l>act to the filament. ralslM4lamp efficiency. and reducing ~rTt he3tIn the emitted ttght 1mm. infrared lamp An In~t lamp havl"4 ahigher percenta¥ofits radiant powerIn the Infrared region Qun:a standard Incal1<kscerTt lamp. often having a rea gla 55 l?u117 to reauee the radiated visible light. 144 TB l7ulb _..' Aquartz l>ulb for tungsten-halogen Lomps. similar In shape to the Al7ull7 but having an angu13r profile. Theg!ass housing ofan Incandescent 13mp. fliled with an Inert gas mixture, usuaIly of argon and nitrogen, to retara evaporatlon ofthefllament. Its shape 15 designated I7y aletter. followed Py a numl7er t11.t Indicates the 13mp diameter. n I lamp diameter The maxlmum diameterofa lamp pulp. measured In eighths of an Inch. In3ximum overall length The dimension In Inches from the liaseof alamp to the point on the PuII7 farthest awzy. or tne l7ase- to-lr.Jse dimension of;; 13mp havln~ alnse at e.ch end. lightcenter length The dlstanee In Inches from the centerofthe ft13ment of alamp and areference plane on the ~mp Ir.Jse. Auulb _.--j O The stJnd3rd rounded shape for the l7ul!:>s of gener.;l-service II'oWl~nt lamps. ~.- Bburb . Aflarr.e·shaped bulb for 1ow·W;ltt~e. decorn:Ve Incandescent lamps. c · ....··CI1urb Acone-shaped pulp for Iow·W;lttage. decorn:ve Incarldescent !amps. _........_...... CA 17urj, Acandie-shaped bufb for low-watt,age. decoratlve Incandescent Iamps. ._--..-..._--......- ... _.... Ruulu .-- A reflector Pulp of InoWTI glass for Incandescent and ~n-I~1ty­ dlscha~ lamps. having an In~a' reflective CC4tlng and etther ac!e;;ar or frosted 9lass front to prov~ tile deslred ;.eam spread. .........- PARIrJI}, Aparabol1c .Iumlntud reflector !1u!l?of C3st g14ss for Il'QrJescent ana nJ.gh- Intensity-discharge 13mps.l'I3vlng a precisely fonned Interna' rtfl.xt.or and a Iensea front to prcvi.de the desireJ l?amspreaa. . ERpull7 An eln~1 reflector blJlb for Incandescent bmps. havl~ apreclsdy formed internal re&c"...or thrt coIIect:s IIgMt ana red1reas It into 3 dispersed pattern rt some dlstara In front of the light SOUIU. ...,....---...,....J-........... - .............. .. .~ AlSB burl7 ", MRl1utl1 ~.J AmultlbceteJ reflector l7ull7 for tungsten-halogen lamps. having hlghly.pollshed reflectors arrangea In discrete segments to provide the desired pe3m spre3d. An A!1ufl, havl~ ahemispherical, reflective silver row! opposite the bmp ~se to aecre3se gLore.. .... GI1ull7 Aglcge-shaped l>ufl, for Incandescent lamps. having a101'1 tmghtr.ess for exposeJ use.. .-~ ............. P5 pufP Q tn:=13~~~crt.rge - .. 511ulb A straight-sided l7ulb for low-wattage. decorative IncaMeSU1Tt lamps. II II. II I I lJ .~ I I I I t
  • 145.
    -, ~ 11 • LIGHT 17arta~ discharge lamp AdevUfor ~Inlng the current Alamp In which light Is produced by the thrw~h .. ~ or HID I3mp at dischargeofelectricity I1etween electrodes the ~ COItSbnt VOllue. 3M In .. gas-flltea 913s5 enclosure. ~ ..Iso~~therequlred .Jl h- st3rtl~ 'r'Ott3~anJ current. <=t,-,-- '.--_______________________-J..<l..i" - fluore5Unt lamp . A tubul3r d1scharge lamp In which light Is 5ta rter produced by the fluorescence of phosphors Akila used"c;h 3 ballast to prO'llde coating the Inside of the tube. the st.artln.g vdU.le for apreheat fluorescent 13n"f- phosphor fluorescence Arry ofanumber of substances that The emission of radiation. esp. of visible TI;IurP -------- ---...----.-. --....-- -- ..---.. - emit light when excited by radiation. I1ght. by asubstance during exposure Ul external radiation. AtubtiI3r IxlIP b-~ndescent. fIuore:scent. aM lrigh-Intenslty- dlsch3rge btnps. clrcliMlamp ----.----..----- -.---.--..--.-- A~hn~ fluorescent lamp triphosphor Aphosphor having peaks In three specific color regions, red. blue, and green. used UllmprO'le the color rendering ofafluorescent 13mp. ~:::~=~~:~---- ..-. ---'--W l ' ~~====~[ efficiency fluorescent lamps having a sl~~ doub~ orU-Shaped tube. and ofWlanaaaftet"wdtttlngan ltil M (--::(~~~~~~e InC3~t ~holkr. Ll .0 -== _ color Umpenture ~ ~pern.u~ atwhich a ~rocJy emIt6 ~ht ofa spedf'eds~ Jlst.ritM1on. USO:I t.:J speclfy tM color of a ¥tSOIJrce. '" ~ ~ a. ~ ~ ~ 400 5(X) 600 neon Lamp 700 Acotd-catl-lok ~p emitting aglow when a h41h volt3¥ Is appka across two electrodts In a~-ftlled glass tube. cold-uthade Lw1p AdtschJrge !oJmp ItNlng c3thodes that emit e1.ectroll5 widIout havIng to be he3t.ed spectral distribution curve Acur;~ plotting the raalant energy In e3ch wavd.ei3th of a particular light SOIJr"U. --~ L /., BTbuib .' Abulged tubular bulb for hIgh-Intenslty-discharge lamps color renderil19 Index Ameasureofthe ability ofan electric I3mp to rendercoloraccurately when compared with areference Ilght source ofslmll3r colortemperature. Atungsten I3mpoperating at acolor temperature of3200"F:, noon sunlight haVing .. color temperature of~0F:, and average daylight having acolortemperature of 7000°1:. ..11 have an Index of tOO and are considered to render color perfectly. ~ ..' ,#.' ...100 f!OOn sunlIght E ~ulb •....J An ellIpsoidal bulb for high, IntenSity-discharge lamps. preheat lamp . Afluorescent lamp that reqUires a separate starterUl preheat the cathodes beforeopening the circuit to the starting voltage. rapid-5brt ~mp Afluorescent lamp designed Ul operate with aballast having alow-voltage winding for continuous heating ofthe cathodes. which allows the I3mpUl restarted more rapidly than aprefte3t lamp. Instant-start lamp Afluorescent lamp designed to operate with aball3st having ahigh-voltage transformer to Initiate the arc dlrectty without any preheating of the cathodes. hi9h-output lamp A rapid-start fluorescent I3mp designed Ul operate on acurrent of aoo milliamperes. resulting In acorresponding Increase In luminous flux per unit length of I3mp. very-hi9h-output I.1mp . Arapid-start fluorescent I3mp designed to operate on acurrent of 1500 milliamperes. providing acorresponding Increase Ir: luminous flux per unit length of lamp. high-inU~y discharge lamp Adlscharge lamp In which a s41nlflcJnt amount of light Is produced by the dischargeof electricity through a metaflc vapor In .. 5e3b:f glass enclosure. Also, HID ~mp. mercury lamp Ahigh-Intensitydischarge I3mp producing light by means of lin e1et."tric dlsch2rge In mercul)' vapor. Also calle!:l mercury-vapor ~mp. &OdIum lamp A hl9h-lntenslty discharge I3mp producing light by means of an electric dlsch3rge In sodium vapor. Also caltea sodlum-vapor lamp. Iow-pres,ure 5Cdlum lamp Asodium lamp producing ayellow, glareless lightand used esp. to illuminate roadways. Also.lPS bmp. hlgh-pre5!lure 5Cdium 13mp Asodium I3mp producing a broader- spectrum. golden-white light than aIow- pressure sodium lamp. Also. HP51amp. metal hallk I.1mp Ahigh-IntenSity discharge lamp similar In construction to amercury lamp. but h~ng an arc tu~ to which various metal hal1des are added to produce more 1i9ht and Improve color rendering. 145
  • 146.
    LIGHT luminaire Alightlng unit wnslstln9ofone or more electric lamps with alofthe necesS3ry parts and wIrln9 for positJonln~ and protecting the lamps.connecting the I3mps to apowersul¥i. and dlstrlUutlng the light. Also callea ¥tlng fixture. reflector --_.....--....--.............. . Asurfucefor reflec~ ~ht. heat. or sound. esp. the devuon a lumlnalrc hrnn4 suchasurfacefor controlling the dIstrIIM;Ion of light entted I1y a Iamp. !eM Ap~ of tr.Inspar~ II14Iterial. as gl3ss orplastic. having twoopposite surfaces eitheror !loth ofwhicll are curved, used In lumlnalrtS to focus, disperse. orcollimate ",,- "~/" .// ':. . I /. ... ... / . ~'!/ ; '/7.' ! . /. , I i .'" p'ira~olic refiectcr Areflector havi~ apmPoI1c sumce t.C) coWlTI3te. spread. or focus the ~ from a~ht s...,"Uf'Ce. depenJing on ~ rotlon of the source. theemltt&:llight. ----....................., + I 1 i I 1 · ~·t-·..t'....- collimate i.. .J, Te ::1ate r.;y5 cf liyht pmlleL ~ ~~ ~ litK. , ~1~~=:dnptlCal , '" , sumcetafocus the rays from a .. 0.' tL3htsource. iii iii i j' /~. .- ridged ~affle ' I/ / . t it t i' , / ;f .~ . ~~:~~~I~the ' i/'// F~nellen' -----.-.-~ ~rlghtnessofallght, ' Alens having concentric, prismatic grooves sourceat an aperture. 1/'/' to c;onctntr;rte lightfrom asrna" sou1'Ce. • ' '.. r Ir-~"---------, ~:~~lea":,ul~~~~;~········-·~·i.'·... + + ..... 1,""" V with parallel prisms to redirect the : .... . '.. /4¥ from a light source. :.... . '. . ./ I - - - .' .' :'--... / i ji i i i i . ~~J'l'~~'~~ ! / j I i I _ Arry of.3 V. riet)' of translocent m;lte.rlaIs fodilterl~ gl;arefroma fight source ~ dlst:ibut1~ ~ fig ht om an ~rJeJ louver Aflnned or vaned devU for controlling the nalatlon from a light -. -.~ c:.trJlepowt:r d~tripution curve A~r plot of a-c, luminous ItTtenstty emIttdtJya bmp. lumlrulrt. or w/ndoIIr In agJ.ten dIreG1lon from the centerci ~ light SOUIU. ~sured In a single plat't for. symrr.e-tncal flght source. and i.1l ~r, ~rallel aM sometl~ a 45'ptaMe for il nasym~1 source. source. .o.fi eggcrate -...........................-...~ Alouvered consPuct/oll divided Into ull-I:ke aredls and use.lfor redirecting the1Ig/rtemltted!:ryall overhead source. l13ffle ~ Alouvered ckvlceforshleldlng a light . source from view atcertain angles. -.... - ' shielding angle The angle !Ie1ow which alight source can !Ie seen. ~"-"""'" 146 "l///1 ." /~,../ I I isocturt Agraphic plot of the pattern of lIIu:rJnatlon produced on asurface bY .. tamp or lumhulre. ...-++-+-+-++I-+....j....-"~. ....• 1~lux line lumlrulre efficiency The ratlo of luminous flux emlttedbya lumlnalretothe total flux emitted !:rythe lamps In the luminaIre. Anr~ through 3"points on asurface where the level of I/lumlnatlon Is the 5a:r~. Calted lsofootcandle line if liIurrinatlon Is expressed In fw.-Cand!es. L
  • 147.
    I I ~! j -, I I ~i .... 1 i ~j ~I i ,.t j _I .1 W.1l1washer A down~ht rr.owted close to the plane of a wan and equlp~ with a ref1ector.l7affle. or lens to lIIumll14te PIe vertical surface. track I~hti~ L~htlng provIde4 by adjustable spotl~hts mounted along a narrow. celling- or wall-lI1OUntea metal track through which current Is conducted. cove I~hting .---- Indirect ~htl~ ~ upward from an InteMor c;ornIce at the edge ofa ceill"1. floodlight Alamp designed to project or diffuse a compmtlvely uniform level of illumination over a large area. Also called fleod. flood lamp.. downlight AluminaIre consisting of alamp set In a metal cylinder. recessed Into or mounted on aceiling to direct abeam of light downward. ----''''- spotlight .~. Alamp designed to project astrong. focused beam of light on an object or area. Also called spat. .~ spill Superfluous or useless I~ht rays. as from aspotl~htorotherfocused Itght source. Also called spill light. light strip .. Q Q Arigid or fiexll1le tape with exposed Iow- voltage light sources of1 to 10 watts. troffer Alumll13lre having atrough-shaped reflector holding one or more fluorescent lamps. val4lnce nghtl~ ./' Indirect ~htl~ directed upward or ...-/" downward from alight source ~ concealed by 3 horizontal Iioard or I7and. cornice I~hti"'! Indirect I~htl~ cArected downward from an I~rlor c;ornlce at the edge of aceiling. pri~elamp A floor I3mp hayj~ the light source on a hinged. norr...ont.11y adjustable arm. goo~neck L1mp Adesk I3mp h3V1~ aflexible shaft resembling the I'krl of II go~. torchlere Afloor I3mp having Its light source within areflecting bowl that directs the light upward. Also. tcrchere. tcrchler'. droplight Ahghtlng fixture suspended from:l cemng or wall b:t a flexible cord. by whIch It can be raised or Iowerecl. pendlnt AIlghtlng fixture suspended from acemng. chandeliu Adecorative llghtlng fixture suspended from aceiling. usually having branched supports for anumber of lamps. LIGHT point 5Curce AI~ht source having ;I maximum dlmenslcn less than one fifth the distance from the source to the surface lIIumll13ted. o o o linear source AI~ht source having one dlmens1cn Significantly greater than Its other dimensions, as afluorescent lamp. area :;Guru Alight source having significant dimensions In two directions. as a large window or a luminous ceiling. sconce Adecorative wall bradet for candles or other lights. 147
  • 148.
    LIGHT lighting The science, theory,or method of provldl~ lIIumlnatlon thro~h the use of eIec'trlc lamps. gener~lltghting llghtl~ designed ta pf"C¥lde a uniform level ofilumlr!3tion throughout an area. lecal lighting Lighting des~neJ to provide a relatively high level of Illumination OV~ asmall area, with asurrounding area of lower Intensity from spill light. accent lighting LIghting that calls attention to aparticular o~Ject orfeature In the visual field. or that forms a decorative pattern on a surface. i task lighting .r-----. ~htlng deslgneJ to provtae strong illumination for avtsually demanding activity, as reading ordraftlng. lo'---------.----- ...---- --- direa lighting lighting In which luminaires dIstri~ute 9O'L to 1001 of the emItted lightdownward on the SlJrfaceorare<i to ~ illuminated. &emtdirect lighting lighting III which lu~lres c:ltstribute SOl to 901 of the mltted nght downward. general dtffu~ lighting lighting from lumln3ires that emit an approximately equal ~trl~tIon of light upward and downward. direct-indirect lighting General dlffuse ~htln4ln which little light Is emitted In the horizontal plane eX tU lumInaires. ,eml-Indirect lighting lighting In which lumInaires d1stri~ute 601to 001 of t.ie emitted light upw;lrd. indirect lighting lighting In which luminaires dlstri~ute 9O'L to 1001 ofthe emItted light upward. esp. to avoId glare or prevent shadows. 148 .. - -----"'-<~. gL1re The sensatlon produced by any ~rlghtness within the vIsual field that Is sufficiently greater than the luminance to which the ~s areadapted to cause anncyance, dIscomfort, or1055 of vtslPIIlty. a<:Uptation The regulating by the pupil of the qU3nutyofllg~ enterl"9 theeye, resu!tl~ In achange In the sensitivity of the eye's photoreceptors to light. visual comfort prol1a!1i1ity Arating of the likelihood that aIIghtlng sys~ wHi not cause direct glare, expressed as the percentage of people who may ~e expected to experience vlsU31 comfort when seated In the least . fa,ora~1e visual position. brightness ratio ~ ratio !1etween the luminance of an object ana that of Its Uacl:ground. Also oiled ~rrtr3st rrtlo. ..• highlight To emphasize ~ illuminating with astrong light. ....., vacklight To Illuminate something from ~ehlnd In order to enhance depth or to separate the suDject from Its Uadground. .. _...-. sidelight Llg~ coming or produced from thesk:le. ..........- ...•.........-.- .. -..- soft light Diffuse Ilqht that produces little contrast ana poorly defined shadows on the su~Ject. ...• hard light Direct light that produces high contrast and distinct shadows on the suDject. 17linding glare Glare so Intense that. for an apprecla~!e length of time after It has ~een remOv'ed, vlsll7illty Is lost. di5al7~ity gbre Glare that reduces vlsll7inty or Impairs visual performanu. often accompanleJ by discomfort. discomfort gfa re Glare that produces discomfort Put does not necessarily Interfere wfth vlSI~ility or visual performance. . I -. .......---------r ':AST 1,1!1 ;11 .....--. direct glare Glare resulting from ahigh brightness ratio or an Insufficiently shIelded light sourceIn the visual fleld. .....' reflected glare Glare resultlng from the specular reflection of alight source within the visual fuM Also called Indirect glare. veiling reflectance Reflected glare on atasi: surface that reduces the contrast necessalj' for seeing details. [ f--; I j t-J I ,.J J f !.
  • 149.
    -j / - ,~' "'. -' r'" I I r ~I t .- ~am spread The angle of ahght ream that Intersects the c3ndtepowerdlStfiDutlon cum at points wkere tke luminous Intensity equ.ls astatea percent of a maxfmum rd'erenu Intenslty. sp;u;ing criteria Aformula for determining how far apart luminaires mayDe Installed for uniform lighting of asurface or are3. Dasea on mounting heIght. ,. spacing crlUrl3 (5{;) = spacing (s)/mourrtlng helg!rt(mh) ----;----------1 ! '. i 4 l i / ../ ----- 5C =0.5 ....•....•.---- 5C = 1.0 am Agroup of nearly parallel rays of light. throw The effectlve length of aDeam of light. ces1ing cavity ---------------------- The cavityformed DytM celnng. aplane of suspende.d lumlll3lres. and the wall surf3u-s Pctween~.,e two p!3nes. room cmy -------------------. The cavity fol'!l'led !7yaplane of Iumln3lres. the won:pl3ne. ana the wall surfaces Mween these two pones. floor C<1vTty -----.-..---------..----- The C3Vfty fanned !7y the won piane. the ftoor. and the 1¥3" surfaces ~n these twa planes. '''-.< /' '" room c~v!ty ratio Asingle numper derived from the dimensions ofaroom cavity for useIn Jetermlnlng the coefficient of utilization. coefficient of utHiution The I'3tlo of the luminous flux reaching a specified won: ptar.e to the total lumen outptrt of aluminaIre. taking Into account the proportions ofaroom ana the refIectances of Its surfaces. -----..-·1 1 __.:!IL. li9ht~,h~r Arry of se-t'ml factors used In calcuta",r~ the tffe....'"tive illumination provldeJ b)o a IIghtlll.3 system after a given ~ of Ume arJ under given condttk;l'.5. Formerly called mal~nance factor. recoveraLne light 10" factor ----------- A~ht bss factorth3t mayPe recovered by retampillg or main~ance. as IJmp lumen deprecl3tIon.lumlnalre dIrt deprecl3tlon. and room surface alrt deprecl3t-ion. LIGHT fX'int methad AproceJure for c.alculJtl~ the ~Iumlnaticn produced on • surface Dy a point souru from any arl.jlt. Dased on the Inverse square lIna cosine b·,.,s. lumen method Aproc&lure fur determining the numrer and types of bmps. luminaires, or windows reqUired to prcvIde auniform ~eI of fRuminztlon on J work plJne. takIng into account ~ .f.rect ana refI.ected lumlr'o?'.J:S flux. Also cai1:ed zonal cavity method. woN: plane The ha:izo~I pbne at which won: Is dar.e ana Of1l'r'hlch il1umlnatlon Is speGtfled aM measured. lISU311y assumed to De:30 In. (762 mm) abo,;~ tke floor. Lamp lumen depreciation A~ht loss fxtar representl~ the decre3se in luminous outputof3IJmp durlrog It,; opmtlrog 11ft. expressedas .. peru'1t3¥ of inltUl13mp lumens. lumiruire dirt depreciatlon A~ht loss f-,c,q represen~ the decre4se In klminous output ofa lumlna!re resultlng frc:m the accumulJtla11 of dirt ~ Its surfaus. expressed as aperc.enta~ of the mUIl1I~..cn from the luminalre whe:l new or claln.. room 'u~ dirt deprecUtion A~ht Io5s ~ represerrtlng the decre3se In rtfl.xted li9ht resultIng from the ucumu;J1'..lon ofdirt ~ aroom's surfaus. exrressed as a~rrtage of ~ ~ht refect.td from the surfaces when . cle3n. . . . , initiJllamplumens xCUxRLLFxNRLLF ~.....-......__ n ____ . . - - - - - - • • - . . - - . nonrecOVefa 171e light los, hctor average mamtalned"luminance = Any of se'ler:ll permanent light Io5s factors work area that take ir;~ 3ccount the effectsof initiallamp lumens = lumens perlamp x lamps per luminaire temp~UJ~. ,·oItage drops or surges. !:rallast vari3-::Cns. and partltlon heights. 149
  • 150.
    LIGHT d3y!~~ The sclenU, theay,Of method of providing Ulu!TIinJUon ;h~b the use of ~ht ofby. d.1y1~ht r0 ~ an Interior space with daylight from roth direct 3nd Indirut source5. skyrlght The !!ght from the sky, refItcted and diffused by air molecules. sunlight The direct hght ofthe sun. ground light Sunlight or skylight reflected Dy surfaces Pelow the plane ofthe horizon. .• clear sky Asky having less than 301 cloud COt'er with the sol3r dis: un~truCted. Also, the CIE standard for arefereru cloudless sky condition, having the greatest luminance near the sun and least luminance 90°from the sun. zenith - ......-.-...-.-.- ....-....-...........- ....~ ..__!!r---L.. ctI urrtci~ht Light o.-'~ Il13tJng from sources t.cl~ ach other. as from wlrJo;..s in opposite W3l1s. cro~t.ght lI~ht or'~IMlng from sources not~ ~ other, 3S from ~1n~W3l1s. d4yfight ~ctor method A~r.:d forcalcufating the ~orn'~:U of 3 dayllgr.ting systan. ~~ on the daylight betar. tUyr'9&tbct.or •.-..-........-.-. AI!1a~of~ht lI1umllUrGe, expressed as the ratlo of~ht IIIIImlnatlon at a point OIIl !iven plane to the slmu~ II'Ie4sured nlumlll4rGe on aborizontal pbne frcm;ll uno!:>structed sky ofassu~ Of known luminance dlsttilr.rt.lcn. 150 The point on the celestial sphere vertically above agiven position or ol1server. ~(-~O_---1- external rtfk:cte.d ctlmponent •.' Acompc,.~t of the d3y1~ht factor, equal to the rat:O of the dayl~ht i1Jumll13tlon at apolnt on aglv~:'1 piane recelvea directly from exterior reffect!r-3 s~rfaces to the sImultaneously measur~ iDumlnance on ahorizontal plane from an ~~·c;.structed sl:)- of assumed or ~nown . _lurnln3r=~ Jstributlon i ..• overcast sky Asky havln~ lOOl cloud cover. Also, the CIE standard for areference sky h3v1ng aluminance d1strtlrotlon three times ~rlghter neartho zenith than at the horizon. elE Commission Internatlonale de rEcl3lrage, an Internatlol13lcommlsslon developing definitions, standards. and procedures for the art. sctence, and technology of lighting. IES /IIumll13tlng Engl~rlng Society, a professIonal society In North Americ.a devoted to the development ana dissemination ofstandards;lnd procedures relatIng to the art. science. and technology of li9hUng. L._____.___.. artffic~15ky inUrnal r~ component ' Ahemlspherlcallhme or slmll4lr enclosurelIIumll3'Ud by concealed JIg"", sourUs that slmul3te the luminance dlstrlllUtlon of a clear or overcast sky. used for studying and testJng dayllghtlng techniques on archltecUJral models placed near Its center. hellodon Adevice for orienting an architectural model to alight source representing the sun, c:a1l~rateJ with respect to latitude, time ofby, and 5e3son of the year and used for studying dayhghtJng techniques and shadows cast Dy the sun. • /~ Acomponent ofthe dayhght Detar, equal to " .. the ratio of the daylight Hlumlnatlon at apoint . /", .. from Interior reflecting surfaces to the ./ on ;I given plane received directly or Indirectly 1?, .....' ,,/ simultaneously measured illuminance on a . /.' horizontal plane from an un~tructed sky of ,/ assumed or known luminance dlstrl~utlon. . t.....,i J J J I r
  • 151.
    .- ; f ! i I r 1 ., /. I LOAD Any of theforces to which a structureis subjected. static load Aload appl1ed slowly tc astructure until It reaches Its peak V4lue without fluctuating rapidly In magnitude or position. Underastatic load. a structure responds slowly and Its deformation reaches apeak when the static force Is maxlm.um. r---------------------------40 live load occupancy load - ..- ....- .... The llYe load on Oil structure resulting from the weight of people. furniture. stored IT13terbland other similar Items In a buI1dl~. 6ul1dlng codes specify minimum live loads for various uses anaoccupancies. snowloaJ ........................... _..' The live load resulting from the we41ht of snow accumulatl"'J on a roof. Snow loads vary with geographic loc3tlof1. site exposure. wlna cond1t1ons. ana roof geometry. water load - .....-..........--..... The Uve load of water thAt may accumulate on aroof l10ecause of Its form, def1ectloo. or the clogging of Its draln31e system. ~uiYa!ent load Aload substituted by abuilding coJe for an actu3lloaJ, derived on the ;.Isis of st3t1st!cJi evidence for given types of h;il.:l;rys. For mety.the equivalent load Is ~~.uty.J T.ultlp1e of the load that ""';" 'J ~'-c.j~ce failure or unacceptable C~:;'<,:;~..J~. Iald wm~!lUtlon The ~Jd (]:;d .3natwo or more live loads iSsumed to occur simultaneously on a structure when their combined effect can Pe reasonably expected to be less than the sum of their 5ep3l'3te actions. 1.00 (dad + live + snow(oaJ5) (.75 (dead +five +snow +wfndorsdsmfc 103d5) load reduction Areduction In design loading allowed by I7ulldlng codes for certain load combinations.l7ased on the assumption that root all live loads will act simultaneously on a structure at their full v31~e. Afur all possible load combinations are considered, a structure Is designed to carry the most severe but reans~'G distribution. concentration. and con-b ~3tlon of toads Arry moving or mcvable load on 3 structure result!ng from occup;lncy. collected snow arid water. or moving equipment. AIlve !aa.d typlGally ;lcts vertcally downward. but may ut horizontally as well to reflect the c:!ynamlc nature of a moving load. .-,,.,_ _ ..L. dt.ad load The statlc load acUng vertlGally downward on Oil str'.JCture. comprising the self·w~ht of the structure ana the we~ht of ~u:laing elements. fOCtures. ana equipment permanently attached to It. waur pressure The upllftlng fo~ awater tabl.e exerts on afour.d3t1on system. e.rth pressure The horizontal folU asoli mass exerts on ave~.al retaining structure. 5ettkment Ic3d ~ ...... _. Aload Imposed C1'I astructure by sul7sldence ofa portion of the supportl~ seiland the resulting cliffe:rentI3l sett!ement ofIts foundator1. o <;rind load » 1-~.~d~~~5uJJ.nftto••'_"e. < .~rthc{uake loAd often with rapid ch3nges In IIt3gnltuk .,-___L-______ ana IocJtlon. Under adyNmlc 1oad. a ......- mcvingload structur-e develops Ine~1 forces In relatlon to Its mass and ttslT13xlm:Jm defOrTT13t1on does not necessarily erection stress The stress Induced on a~ui!ding unit orcomponent by loads appl1ed during the erection process. erection I1racing The temporary bracing required to secure the units or components of abuilding until perm3nently fastened In pbce. Akinetic load of short duration due to If1C.ilng vehicles. equipment. ana machinery. 6uild1ng codes trtat this load as astatic load. compens.atlng for tts dyn.mlc I13ture by amplifylng tl-.e stat1c load. Also called Impact I Io~. impact factor J Afactor by which the effect of a 5t4tlG load Is multlplled to approximate tM effect ofapplying tJ-o.e same load dynamically. corre5rood to the maximum m31nltuae of the applied force. constructlon load Atemporary load on astructure occurring during Its erectlon.;;Is from wind or the Weight of constn.:ctlon equipment and stored ma';e"als 151
  • 152.
    LOAD I3teI'2IJoaa AIo3J ~ ~tallyon a structure, as awlndorearthqua~e load. e.1rthqw Io.td ThefOlUS exerteaon a structure!1y an ea~~ e.1rthqute Aseries of10119ltudlnaIand transverse vl/1rnlons Induced In the earth's crust !1y the almlp'lI1OVement of plates along fautt hnes. The sIIocis ofan earthquaKe propagate~ the earth's surface In the form of ~ and attenuate Iogarft:hmbllyMth distance from Its source. seismic Of, pertaining to, or caused by an earthqua:eorvluratlon of the earth. seismic force Any of t~ forus C3u$td ~ U1c vrmtcry grO'Jrla motlo1'1s of 3n e;; rtru.U.'l(e. Whi~ these :r.otlons are th~d'~slona/ln i r..;t;Jt"!, their horizD1Tt41 c:orr:po~nts at"! con$Ider!d to be t M most 1mportant in epicenta' - ..-~ ..........., .......~ .........~.- .. Apoint dIrt:ctIy.rovethe hypocenter, from S" ..n.c~~ml des~n; the vert.bllaad- carT)ir~ dements of a structure usua~ h3Y~ C...?!1skknb!e reserve for resisting 6<i:!it]cn;J1 vertlc3lloads. Duri~ an eartnQ:J3te, the m.;ss of .. s-t-rJcture develof,s ~n Inertl;J1 force ~s It tries to reslstgrouna acceleration. From Ne~'s secorJ 14w, this force ls e.q~1 to the prodoct of mass and accelentlori. For design purposes, astat:lc3rty e.qclv;ii!em 13ter;;1 force, base shear, Is computed by formula. which the shod:: waves of an earthquaI:e - .. apparen~emanate. hypocenter ~ .......- ..-.....,--....... The pointoforigin ofan earthquake, Also callea focus, fault ...--.........................- ......... AUrt3k In the earth's crust accompanled!1y aJlslocatbn in tile plane of the fracture. plate •- ....- ............................... Anyofthe huge lI'IOV3ule segments Into which the e4rth's crust Is divided. viln-aticft The osclllatlng. reclprocatlng, or other periodic motion ofan elastic roJtor medium when forcecl from a posltlonorstateofequlill.?rlum. anteroff1t255 --. + totalJeMPtdght - - ..{!.. 0-- ~ grouna accefent.lon The r.1teofcha~ In the velocIty of ground rooremetlt wtth respect to tlme. High acceferatlons are the most damaging to astructure, which must try to follow the rapid changes In ground movementJuring an earth'lua~e. 152 periodic motion Arty motlon that recurs In the sarr.e form ..t equallntemls oftIme. harmonic motion Periodic motion consIsting ofone or more vlmtory motions that are symmetric aUout aregion ofeqUilibrium, as the motion ofavll7ratlng string of a muslc3llnstrument. period Thetime reqUIred for onecomplete cycleofaW3ve orosctnatlon. -'1 0.3 < t <1.0 SoX. I IUtunI~riod ofyjPrn.lcn The tl!re requIred for a ~ SI.i~p;t to 3 vlmt.cry forc.e to ~ throughOM oscHl1tla1ln t:ke direction ~ con~n. Astl"Jeture's nT.ur31 peMod of t'ibrnton V:llies 6CC01"&ntj to its helght;i P:.-vC the base and Its dirnenslon paraliel to tM dlrectlon of the apptied forces. Are14Uve~ 5Uffstruc1.<Jre tends to oscfll:r...e r.lpklly dM h.1s. short pM:.d of ~!:rr.itlon while a IT1OI"e fbJ~1e -stl"Jei'...ure tends to oscillate sJcwly and Msa ~ period. Alsc C3~ fu~ment..ll pa-iod of ~rrtJoo. _.- amplitude The I!14XllTlum dlsplJc.ement from the mean poslt«Jn during one percJof an oscln.tlon. drift 1'<------4--.-- ~RImo" The lateral deflection or 'T"1--""'-'-1 Asln~le S1'ring of 3" oscJllatlt3 body movementofastructured~ ~ I I fromone~e~llmlttoanot.".er. to wind, e<lrthquake, or 11 I asymmetrical vertical loading. _................. t-- ! ~113te I I To swing 00 and forth 1J1:e. pendulum I ~ .It.enutlng ~ I I I I I I I I I h*-l I ',_...-- L .... lnertlalforcueslstlng : I ground;ccelmtJon I I 1 1 ~nanc.e An ab"or.nal~ large vlbratlon In a system C3 used ~ are!atwe!y sma" vlmtc.-y force ofthe same or nariy the same per'w:ld as the natural perIodof viUrat Ion of the system. damping - ..........................................,..!-! · - . . -·~-=~"-------+-i-~---------- The al1sorptlon or dIssIpation of ! energy to progressIvely diminIsh ~---t-.r----+-----i----------- successIve oscillations or W3ves of avluratlng structure. r----=.:b>--------r'-----J-~--------- t . u I r , I r p .~ I
  • 153.
    1"- ! - I r r ~smic~fxtcr ---- t :----.weightfactor -.--------------.-----.... ' f.: The total dead load of abulldln". • i: Including the weight of furnlshi~gs. ······'.•.-.1 f' stored materials. permanent - i equipment. and hea..y snow loads. i Base shear Is directly proportional to i the mass ofauulldlng: the greater i the mass. the greater the base she4lr. , LOAD i-----------· b3~ ./ The level at which earthquake motions are . assumed to be Imp-arted to astructure. A~fOi" ~ustlng Ir.Jse sear according to the prolr.lDIe seismic actlvtty ana Intens~ of a¥Ographlc location. There a1'8 5 ~mlc zones In the U.S. with zone 0 ~~ tto.e Ie3st 4Jctlve and Z9ne 4 ~Ing an are;; close to 3 major fauft system. sei,mic coefficient --------..-~-. ' t { /,CZI W= V .-/' ,../Rw )-----------I'---f..:::=::=...,..r.---L-----'- base 5~ar ''--.----- b1se sht3r' --.-.---...--..:----.., O~---~ The shearing force developed at the Ir.lse of a structure Dy the tendency ofIts upper mass to remain at rest while the !rase Is translated Dy ground motions during an earthquake. Base shearIs the minimum design valuefor the total lateral selsmlc force on astructure. and Is assumed to act nonconcurrently In the direction ofe;lch of the main axes of the structure. It Is computed Dy multiplying the total dead load of the structure Dya numPerof coeftIctents to reftect the cnal'3Cter ana Irrtensltyof the ground motions. the mass and stiffness of the structure and the way these are dlstrJDutea, the type ofsoI1 underlying the foundation, and the presence of dampln~ mechanisms In the structure. AcoefflcIentfor adjusting Pase shear according ta ~ relationship l>etween the natu,..l perrd ofv!l;ratlon ofastructure and that of ~ unc:krlyfng sail on which the structure rests_ When these periods are $lmll4Jr. 7~ srarIs Increased to reflect the likelihood of dt:structlve resonances occumng tn the structure. Also called pase shear codficient. ,ftc ccefficient A~.ent ~ng the nature and ~ of* foonaatlon soil usually Ir.lsed on a~~ InvtStlgatlon. Ground ~ts m ~11y much greater In anuvlalsoils t~rt In rody areas ordlluvlal soils. Iiquebcticn 1Msudden bs5 of srarlng re$lstJ nce In a ~ so1. causing the soil mass to ~have as 4J ~ul.d.. SUlry drift The ho~ rrcrement of one level of a structure retztlve to the level above or Pelow. drift Index The maxlmum rJt10 of story drift to story ~ht allc~ by 3 ~ildlng code In order to IMfnlmlu d3~ to Pulkilng components or adJ3cent str.i..~res. Also called drift hmIt.atl011 ..- / ...puilding ty~ factor Acoefficient for adjusting 7ase shear according to constructlon type and rnaterl31. 3nd the energy-aDsorDlng capacity of the structural and lateral force-reslsUng systems used. Base shear Is Inversely proportional to the energy- al1sor1:nng capacity ofastructure; the greater the structure's stiffness or ductility. the lower the Pa5e shear. horizontalforu factor groundacceleration Acoefficient used In calculating the lateral seismic foru on structural elements. nonstructural components. ortheir connections. according to their wef9ht and ----- -----... di5tri17ution of pase 'hear function. r story shear --------------------------- .. -... ----f.----H.....------J The total shear In arry horizontal plane of a : structure subject to lateral loads, dlstrl!nIteO accor.dlng to the varlcus lateral force-resisting elements In proportion to their rigidities. Story shear 15cumulative and Increases from tts minimum value at the top to Its maximum at the ~ase. r puilding &eparation / The dlst~nce required to avokJ contact . ~tween separated structures under deflection from selsmlc action orwind forces. horizontal torsion The torsion resultlng from alateral load acting on astruc'ture having noncolncldent centers of mass and resistance. To avoId destructive torsional effects. structures subject to lateral loads should De arranged and Draced symmetrically with centers of mass and resistance as coincident as possl!7Ie..ln asymmetrical layouts. bracing elements snauld ~ distributed with stlffnes5es that correspond to the dlstrlbutlon of the mass. r-______ I --, I I I I I I I I I I I I I I I I I I .t--~I!!!II..~ I I I restoring moment Aresisting moment provided Dy the dead load of astructure acting aDout the same point of rotation as the overturnIng movement. BUilding codes usually require that the restoring moment De at least 501. greater than the overturning moment. Also called righting moment. stablllzJng moment. The manner In wh!ch lr.Jse shear Is dlstrluute<./ ov~ the h~ht of~ structure according to the displacements that would occur durln~ an earthquake. For ~ l>olldlng of regular recta~ulJr shape I'Ittn equal floor weights and he~hts and no Irregularities In stiffness or mass. 7ase shear Is dlstrl17uW to e;lch horizontai diaphragm a7ove the !rase In proportlcn to thefloor weight at each level and Its distance from ~ l7ase. This results In 4J tri3ngular load ccnflguratlon val)1ng from zero at the !lase to amaximum value 3t the top. For structures having aI13tural period of vll7ratlon greatu than 0.7 sec.on.ds. a portlOn of the tot4ll7ase shear Is assumed to ~ concen~ 3t the top of the structure to accourrt for the whiplash effect of seismic forces. For structures with Irregular shapes orframlng systems. tne dlstrll>otlon of lateral forces should De determined according to the relatP.'e stlffnesses of adjaunt floor levels and the dynamic characteristics of the structure_ - overturning moment An external moment generated at the l7ase of astructure Dy aIJteralload applied at a distance a7ovc grJde. For equlllDrlum, the overturning moment must Ue wunter7alanced by an external restoring moment and an Internal resisting moment provIded Dyforces developed In column meml7ers and shear walls. 153
  • 154.
    LOAD wind load slidinguplift Any of the forces exerted by the kinetic energy ofa 1I1OV~ lI13SS ofair, resulting In pressure on ~In parts ofastructure .ndsuctlon on others. The horlzontallTlO'.'ementofastructure In respon~ to alateral load. The r;;islng ofastructure or port:on of structlJre In response to an OYertumlng momet1t or wind suctlon. 6ernaulli ~u.1tWn . ) dynamic wind pressure -----+)! de5i.gn wind p~sure An express10n ofthe conservatlon ofenergy The pressure exerteJ by amovl"9 II13SS of l Aminimum design value for the equlvoilent In stre3mnneflow, stating thatthe sum of air, derlv~ from Bernoulli's equation and i statlc pressure on the exterior surfaces the ratlo ofpressure to mass density, the equal to the product of the mass density 1ofastructure resul1;Jng from acrltlc3l square of the vetodty divided !1y 2. and the of the air and the square of the vebclty at l wind velocity, tqU31 t<) the wind produa ofthe gravtt.tional constant and agiven height divided by 2. lsta~natbn pressure modified ;.ya vertlc2l height. rem.l1ins constant. Also !num~ ofcoefficients to UCOIJnt for the called 6emounrs ~rent !effects ofexposure condition, !11Jlidlng height factcr !h.elght. wlna gusts, and the geometry and T T ! I , I I I i --.} I ; 1. ®. I I I Acoefficient Incre3slng des~n wind iorlen~tbn of the structure t<) the pressure to 3CCOUnt for the Increa~ In :.: Impi:'.ging air flow. wind velocity with height apoye the ....' ground. ~ ."" gustfactor ®..~"Ceqqqs I"" Acoefficient IncreJslng design wind ........... pressure to acccunt for the dynamic ..' i ...._.... effects of wind gusts. exposure ~ndition One offour conditions mod~"4 des~n wind pressure according to oktructlons In the area surrounding a~ulkiln~ site.. exposure A:. umn areas with h~h-rlse liulldlngs. or rough, hilly terrain; p,-e,sure coefficient I ~ ~ I . - exposure 5: su~uritan sttes. wooded areas. ~t-'--+--+----i-7--:'-t--~:--_- __....,_~ or romng krr3ln; Acufflclent moJrfylng design wind pressure to reflect hew the geometryand ~n ofthevar'cus p3rts ofa struc't<Ire aItertJo.e tffects ofan Impl~l~ .Irfiow.lr:w.rd Of posltIYe coefficlents result In wind pressure while outw.rd or negative ccdfIclents result; In wind suction. l f t----+--I'---t~r"i.ih-;-+--+---II--i"~-~ exposure c; flat. open terrain wtth minimal i r--···--1 oI1structlons; . t---+_-+-.. f......~_-+-_+---I,_··_-·-·- exposure D: flat, unobstructed terrain • J. f.clng ~rge I10dles of water. fa,u,t-mite wind 'peed - ........._. The mrage ~ of. one-mi~·long column of air that psses oyer a~iven o 0.5 1.0 1.5 2.0 2.5 3.0 The mOrtopen3 s/U. thegreater the 'Nind point. IT'".e3sured in mi~s per hcw. speed3f1atheresvfting aeslgn iWlapre$tJre. r wind 5uction leeward --- - ~ The lY~tlve pressure exerted ~ wind on Pertaining to. ~1"9ln, or the sldesand ~rd vertIc.l1l S<Jmusof racing the "Irectlon toward .. !11J~ aM roonnal to windward roof ___-----;¥IllCh the win" wing. surfaces h..v1ng as~ less tn.n 30". ---~, ?Ji wlndw3rd normal force method Pertaining to, l'Ie!ng ln, or facing the ~rectlon from which the wind ~Iows. Adesign methodfor 2pplylng design wind pressure to theprimary fr.1me and !:>racing systems of.. ~ulld1ng.ln which wind pressures are assumed to act 154 wind pressure The pressure exerted by wind hOflzontal1y on the windward vertlcalsurfaGeS ofa pulldlng and normal to windward roof surfaces having aslope greater than 30°. slmlo'lt4~sly normaIt<) all exterior surfaces. This methcJ may ~ used for any structure. (,utIs rqulred for g3bled rigid frames. r3rt. ~buliJ/rIg$. ~.rJcrures i'rf'th unuSU3{ orcorr:fk:tsh3pes.1tIaH~htwaglrt. fdb{e ~ suujecttcfivtter rtq~ ttrma tunneltd:Ing orC«rf!Mt"fTII)Jaing to InvtStig'U howtMyrtSfon4 to tJ:t . dlstr+.J~n of'Nind?"~$lJrt. flutter The rapid oscillations of aftexl~le cable or rr.embrane structure caused by the uroJynamlc effects of wind. Also called urodytumlc oscilL1tton. ' impo~nce f.actor Acoefficientfor Incre.slng the des~n values for wind or seismic forces on a ~ildlng Peeause ofIts large occup.ncy,lts po'~ntlally hazardous co~ts, or Its es~tl31 nature In the wa(e of a hurrlc'rIe or earthquake. . wind rt.agnrtion pre,sure The static equivalent to dynamic wind pressure used as a reference In calculatlng design wind pressure, sptcIfW In pounds ~ square foot and tqU41 to 0.D0256 tllMS the sqU3re ofthe Uaslc wind ~fOf'~ ~r;;Phlc Iocatlon. Wind velocity approoches uroas the movI~ air IlUSS parts to flow around an oPstruc'tlon. Slnce the sum ofstatlc.na dynamic pressures remains constant In streamline flow, anof the ener~ In the flow at thiS polrtt of 5~natbn Is In tht form of static pressure. ~sic wind speed The wind velocity used In calculating wind s~gn~tlon pressure:. usually the extreme - - fli5~'mlle wind speed recorded for a ~r;;phlc Iocatlon li"ta starilird height of 33 ft. (10 m) 3rta based on .. 50-year /TIt:ln occurrence IntetYal. Also called de$l~n wir.d veWcfty. nT! rrrrrrrrrrTT .~..i-.-_ ..-.- ~ projected a~ method Adesign method for applying design wlr.d pressure to the primary frarr.e and ~~Ing sys~s of apulkilng.ln which the total wind eff~t Is con5kfered to ~ a ccmDlnaUon of. single Inward or positive horlzo;1~1 presSUit actmg on the-fun vertlc31 projected area ofth.e liulldln~ and an outward or negative pressure acting 0f1 the full horizontal proJUted are. of the l'>uildlng. This method m.ily ~ u~ for any structure less than 200 ft. (61 m) h~h. except for ga!:>led rigid frames. t. ' I , l,J I 1 1.,J / l ¥' r r l ' r f r t r I r r
  • 155.
    I I I .-- I I ,I r-I ~_I r I , - I I - I he3djoint --.--..--.-- ..-.--.---. The verticaljoInt !letween two masonry units. perpend1cular to the face of awall. ~hovedjolnt Aheadjolnt fanned I1y "pplylng mortar to the end of " IT13SOnry unit and forcing It In posItion ag3lnst the 13st masonry unit laid. collarjoint ------------ ---. -- ----- ----- Thevertk:.ljolnt retween two wythes of masonry. ~Jolnt -----------.-----. The horizontaljoint !letween two masonry courses. bed ---.---.-------.-----.--.----.----. The undersk:le of" brick or other masonry unit. or the layerof mortar In which a masonry unit I5laki clipjoint A ~Joint made thicKer than usual I" order to level the course above. point wythe _________j_.__.. J Acontinuous vertical section ofII masonry wall one unit In thickness, Also. wft.he. To f11 arul flnlsh the surface of;l masonry Joint with mortar after the masonry has been laid. tither toflnlsh thejoint or to ~' repair adefectiveJoint. tuck pointing .-.-.----.-----.-..-------.-.-.-. ','iL~ :..' ".,,:.-... :.: "'~: The process of raking out defective mortar •.'., -. " . from a IT3S011I)'joint. filling with fresh mortar, ana too11119 thejolnt. _ wck and pat pointing .---------- -- ------ ~:':::..: '. ':- .. '. '..' :. ':.- ~~k:~~~I;;;:~;t~nng~:~rn;;:;~I~~~ of ,>,i~~.,· :.'.. .- '.' .: .-- :-' ua~rtard pointing '1 An Imlt3tlon of tuck and pat pOinting. having ,,1 afillet made from the mortar of theJOint. flat-joint pointing .-- --.'. PoIntlng having flush joints of cornman mortar. field The expanse of3 masonry walll1etween openIngs ana comers. usually composed primarily of stretchers. --~. . MASONRY Building with units ofvarious natural or manufactured products. as stene, PricK, or concreU plock, usually with the use of mortar as a ponding agent. - course Acontinuous, usually horizontal range of brIc1:s. tiles. or shingles. as In a wan or roof. range Acontinuous course of masonry units having the same height from end to end. closer The last masonry unit laid In acourse. ,.---.~.---.------- ------ cor!1e1 A~k orstene projectll19 from , - coruelio,g ~ within awall. usually to support a w~ht. An overlapping arrangement of brids orstones In which t'ach ~-;::::::::::::~::::::::::::::::::::::::~=, course steps upward arul outward from tht; vertical face of awall_ tco~djolnt ------------...--------. Aweather-resistant mortarjoint compressed and sha~ with any tao! ather than atrowel. trowe~Joint ~-------.-------­ AmortarJoint finished I1y striking offexcess mortar with atroweL concavejaint AClJrved. hollowed mortarjoint formed by <I r'O'Jnaea par. V-joint An .ngul3r. hollowed mortarJoInt formed by aV-5hapeajointer. weatMredjolnt Am0rt3rJoIIIt smoothed I1y pressl"9 the trowel Inat the upper eage ofthe jolntJormlng a slopl~ surface that sheds water re3dlly. flushjoint AmortarJoint strud: flush with the masonry. struckjoint Amortarjoint pres~ In at the lower edge and slop1119 In the reverse direction from aweatheredJoint. rakeajoint AmortarJoint made I1y removing mortar to agiven dep~h wIth asquare- edged tool ~ore hardening. 155
  • 156.
    MASONRY ~lk:I m.1sonty --..•....-........_................" AwallconstnJcWof brick or other '" soI1d rrgsonry units bid contiguously with aDpin10solidlyfilled with mortar aM aa~ wythes I10nded by ItI3sonry headers or Jnetal ties. c.1vitywall-·-···-·--·---··-·---..·--·---., AmasonryW2U h2vtng a~clng ana '•... !7ackl~~separateaexcept "'" for metal ties anaenclosing an Inner ", space servtng to prevent penetration ', bywater. ". hclng .- '-"---'" -.. -..-...-- ...-..-....-..-.... An ornamental or protective layer. as '. the outer wythe ofamasonry wall. backing --...--._..-......-.-.......- ..- ... Something that forms the pack or ••••• ""-''''1."''''''- pr-ovlJes SlIpport.strength. or protectlon from the !7ack. as the Inner wythe or ~es ofamasonry wall. weep hole -.---.---.---------..-.-.----.- A~ openln4 In a~vIty wall reta~ ""u.orother constnJctIon for ar.lnlll! offa<:cumuiaW moisture. as from GOI'Idensatlon or leakage. t.aced wan _ ............--........-...... --". Awall ~ a rrusonry facing ponded to 2 !7acklll! so as to ~rt acommon action UMerIoa4 adheted~ Aveneer sapported l:>y and secured to a !7acklng by Intansofabonalng material. veneer -.---....-----.....--..........--.- Anonstruaural ~ of~k. stone. C-OIICI'tte.ortile ~hed toa~cklng for the purposeofornamentation. ~orlnsubtlort ve~edwall······ - ....---.-.-----.- .~,:.... Awan h2vIn4 anonstructlJral facing """ rtbche.d Put not rondtd to a . supportl~ structure. anchored veneer Aven~r supported by and secured to a !7acklng Py r.eans of mechanical fasteners. 156 economywatl Abrick wan 4 In. (102 rr.m) thick. plastered and strengthened At Intervals with 8-ln. (20:3-mm) pilasters to support roof trusses. ....... composiU wall .' wythe d1sslmllar to the other wythe or ~ / Amasonrywallh3vlngatle<istone . '.:' wythes with respect to type or grade .': :'.: ..: of masonry unit or mortar. ...- adjustau~ tle AmetaItie consisting of two Interlocklng parts whIch et13171e It to adapt to PeaJoints at different elevations. ..... tie Any of various con-oslve-resistarrt metal devices for holding two partsof a constr-uctlon together. as the wythes of amasonry wall uacl: p,-"tel' r0 parge a part ofawaU that Is not seen. as Pehlna the ouwwythe ofa cavtty wanIn order to exclude air and moisture from the Interlorofthe wall. panel wall Anon-Ioaa'~ring exterior n-usor.ry wanwholly 5UpporteJat each story. ~ Adevice for lifting adressed stone or precastconc~ panel consisting ofa numt>erofpieces fltt:Ing together to flll acIovet.a11ed rtUSs cut Into the stone or panel. mtjalnt Awmpressluiejoint directly Pelowa supportl~ shelf or relieving angle. allowing for the expansion ana contraction of apanel wall ana preventing the weight ofhighercourses from befng transmltUd to the masonry pclow. , ' ·'1 • t •
  • 157.
    I _I j _I mortar Apt..stlG mlxtl;~ oflime or cement. or a combll14tlon of both. with sand and W3ter. used as, Pending agent in ~ry const...JCtlon. I Type Mmortar MASONRY grouted m3sonry Awall constructed of "riel: orconcrete I7rIcl: units with all Interiorjoints being fliled with grout as the worl: progresses. umentmcrt..;r ~ ..---------- AIr.ortar made ~ mixing portland c.e::1t1'1t. 5JM, arid water. Ahlgh-strength mortar recommended for use In reinforced masonry-pelow grade or in contact with the earth. as foundation ana retaining walls subject I to frost action or to high lateral or --I compressive Ioads_ I cement-lime rrwrt.1r Acement mor- ....r to which lime Is added to Increase tts Fllstlctty and water- retentivity_ m3S<lnry c~ent Aproprietary Jr:Cx ofportland cement and otherIng~. as hydrated hme. plasticizers. alr-rotralnlng agents. and ~um. mtu~ only the addition of 5Jna and~...er to make cement rrwrtar. epc'XY mort.ar Arr.ortar ~n~ ofepoxy resin. a cat31yst. and f.r!C aggregate. nonstaining martar Amortar havll3 3 low free-alkali content to :n1nlmlz.e eff..--rescence or the staining of3dJacent masol1ry by the migration of $OIui7'.e II1Jtma~. lime mortar Amixture of Ii:r..e. sana. and water that Is mely used ~~ ofIts slow rate of hardening arid ~ compressive strength. lime AwhIte or9r7y':sh white. C3 ustlc. odortess so!ld ~lned by heatlng forms of C3lclum Q~. as shells or nmes~e. ~ ~ ~h temperature. Also C31ed QIcium~. QIx. caustic lime. 'Ulcklime. hydrated lime Asoft.CIj'St3k:r.e powderol7talned by W~lonohr3teron lime and used In MI1I9 rncrt¥. p-bster. ana cement. Also c.olled calcium hydroxide. slaked lime. grun Of or ~Ining to conc:-ete or mortar that Is freshly set ~t not completely hardened. fttmix A~rete or :r.crtar mix that Is easy to l¥Cft or spread ~~ of a relatively high ~t or nrrc: :.ootent. Also called rich mix. !eJn mix Acoocrete or :r«i-3r mix that Is difficult to 1'I(in; or s~ ~~ of ashortness of ce:nent or D~ plasticizer An admixture for m3kl~ aconcrete or mortar mix ~b~ wIth little water. I Typ85 mortar , Amedium-hlgh-strength mortar recommenaed for use In masonry where bond and lateral strength are more Important than compressive strength. Type Hmortar Amedium-strength mortar recommended for general use In exposed masonry arovegrade where high compressive and lateral strength are nat requlred_ Type 0 mortar Alow-strength mortar suitable for use In Interior non-load-bearing walls and partitions. Type Kmortar Avery-low-strength mortar suitable only for use In Interior non-load-bearing walls where permitted by the "ulldlng code. grout ------------ ---- -- ------ -- -------'::-_.. Afluid cement mortar that will flow -'" easily without segregation of the IngredIents. use.:! to fill rt3rrow cavftles In masonry and consolidate the adjoining materials Into asolId mass. lJond Theadhesion "etween mortar or grout and the masonry units or steel reinforcement "elng cemented. joint reinforcement .. ': high-lift grouting Atechnique for groutIng amasonry wall constructed astory at atime In lifts notexceeding 6 feet (1.8 m). low-lift grouting Atechnique for groutingamasonry wall In lifts not exceedlng six tlmes the width of the grout space or amaximum of aInches (203 mm) as the wallis I7ullt. _. --- grout pour The total height ofmasonry to be ftlied with grout before the erection of aadltlonal masonry. conSisting ofone or more grout Itfts. --- ------. grout lift An Increment of grout height within a total grout pour. cleanout Any of aseries of temporary openings at the bottom ofa masonlj' wall large enough to permit the removal of de"ris orobstructions from acavtty or cell prior to groutlng. reinfor~ grouted ma50nry Amasonry wall constructed wtth horizontal and vertical ~I "-. reinforcement fully embedded In grout for Increased resistance to buckllng and lateral wind ana seismic loads. hollow unit ma50nry Awall constructed of hollow masonry units laid and set with mortar. with adJaunt wythes I70ncled by masonry headers or metal ties. ". reinforced hallow-unit masonry - Hollow unit masonry having certain cells continuously fUled with concrete or grout. In which reinforcing steel Is embedded for Increased resistance to buckhng and lateral wlna and seismic loads. Any steel reinforcement placed In a bedjoint to Increase the resistance ofa~asonry wall to cracking. /~ / / ' -_// 157
  • 158.
    MASONRY rul:>~1e R.,~~h fragments ofUroken storie or tht masonry ~ilt of such stones. ranacmru~ AN~ wan h:wlng discontInuous put approximately level peds or courses. ashlu Asqtared ~1kiln9 stone finely dressed on • Hfx.es ~pcent to those ofother stones so as to permit very thin mortarjoInts. 158 gallet To emPed small stone chips In the JnOrt.J:- joints of rough masonry to wedge I3rger stones In posltlon or add det.'ill to the appearance. Also. garrtt. coursed ru~1e ANDbIe wall hJvlng approximately le¥el Peds and ~rought at Intervals to continuous levd courses. random 3shLu Ashlar IT13soory ~i1t In discontinuous CO'Jrses. ~IU~ nipple . Arucw wall pullt of S<iuared stones of ~Iji.'~ sizes and coursed at rNt:ry third 01" fourth stone. co~ashl.1r Ashlar lI"'.Jsonry 1xI1/tof stones having the S4m(: h&-9ht within e3ch course. ~t ~h course varying In height. cyclopean Formed wt'...n I3rga.lrre~ulAr pcd:s of stones fitted closely together I'rithout the use of mortar. proken nngework Ashbr masCJnry laid In hortzont..ol courses of t'arylng heights•.anyone of ~-hlch m3J' be I1ro(en at tntuvals Into two cr more COOr5es. ru,tk:a~n AshlAr masonry having the v1s1~~ faces of the dressea s'".ones raised or otr~rwlse contrasted with the horlzont.l. nd usua1ly thevertlalJolnts. which may ~ r.i~. chamfered. or beveled. rust«;joiITt A mortarJolnt paween stones ~sed from the adjxent. faces petween $<ink-en drafts or Devels. ru,tk H3v1ng rougn.lrregubr sumces.aoJ sunken or~JoInts. irrt:erlocki~loint AJelnt In ashlar masonry made Py fitting aprojection on OI1e stone Into a routed groove on the next stone. "-- cramp Iron An Iron bar or rod with pent ends for haldlnq together stone mason ry units. ; I II
  • 159.
    F" I ! l r r r- I r r r I i f'" l corb~ gable Agabie havl~corl:>iesteps. i?o5S Astone roughly formed and set In :~-.~ COrPle5Up . Any of aseries of steplike projections that terminate amasonry !!able al10ve the surface of the roof. Also called crowsttp. saddlejoint . Avertlcaljotnt raised arovethe level of the washes 011 astone sill or copln!! to prevent the penetration of rainwater. 7 / pl3ce for 13terC3rv1n9. --- .------- -.-.-.---. _____ ~'_'.',}-'"-'-""""'_____ t.1~ in To f.lsten abe:lmor stone Dy one erJ. ~m~ .--.-..-.---..---.....--...-------.....-______~,+,"~'-,,~*--_~ The part of astof1e or urick projectlng from awall. 1111el - .----.--.. --. -- -.--. -.-...-- ................--.. --.--: AR".oIdir19 or drlpstDne OIer adoor or WlnJo,.,., esp. one that e:t:tends horIz.olTtaIly 3cress the t.op of the openli3 anavertlc311y downward for a short distance at the sides. j.1m~~ .....----..----.-..-..-.......-- ..-...- A stone. or one at the stones. formln!! the9mb of 3 door or window opening. embr3~ure -'" A spb)ed enlargement of adoor or window opening toward the Inner face of 3 '<311. MASONRY capstone Aftnlshl~ stone of3 structure. 3S a copestone. -----------------------..-.- knuler Any of the stones havln!! aslopIng Up for supportln!! or formln!! agable copl"4- Also called skew. ---........- .... skewcorl1el Astone OIerhanglng at the foot of. ~at>1e cOf'l~. often servIng as astop for tzie gutters or wall cornices. ,...----------...-.-... copestone Astone farming acoping. ~ dripstone A5tOM moi01ng used as adrip. as or. a cornice over awIndow or doorway. stringccu~ A horizontal course of brk;k or stor1e ftush with or projecting l>eyond the face ofa UuI~lng. oft:en mok:led to rna~" ditislon In tM wall Alsa called l7elt COU~ corc:IDn Astringcourse. esp. one ""vl!!g lIttle ex- no prcJxtlon. ~171e Acourse or Ir.lnd.esp. ofII13sonry. !i3Y1"4 a distinctive form or posltlon. wztertable Aprojutlng stringcourse. mold1~ or led!!e placed 50 as to divert I"2lnwaterfrocn 2 UuI~lng. sc.arcement Afooting or ledge formed Dy asetv.;clln • theface ofa waII. ------.. ---- ....- plinth Acontinuous. usually projecting CO.ir5e of 5tof1es forming the base orfouna.;tlon ofa wall Also called plinth COurse. 159
  • 160.
    MASONRY concrete nuSOM)' unitconcr~ plock Aprecast msonI')' unit'Of portl3nd ca-oent. flnc ~te. and water. II'IOUed Into 't'3rIous shapes. Ahcllcw or solid COI"~rete partltton ~ock Aconcrete ~5Oru)' unit used In con~ non-wd-l1earing walls. u~ ~ arlCmlnal thld:ness of 4 or61n. (102 or152 11m). bull~~ Acon~ ll"t;lsonry unit having one or Ir10re rounded ~ corners. copi~~ A~ ~ ~sonry unit useaIn con~"4 PIe top or finishing course ola~ry 11311. Ac.oncre1e NSOflry unit having an end sbt or ~ ta rt.ee!ve theJ3mbofa dtxr or wfndcw frJme.. Also calledJ.aml7 £,lock. ~11 ~Iocl: rne2 .." .~.c;. •.,--, .....••..• : ~ - " . ~ '.'. . .. ' ~ ~ Asofld coocrete ~sonry unit having a ~~~~~-~:~ ~~. cap 1110a Aconcrete rn<l5Or.ty unit having asolid tap for :ISe as aPQ~ surUce In the flnlsh~ course ofafourWtIon wall. Alsoca~~~k. control-jornt ~k •..__._._...__._.•__ ..__..•..- Arry ofvarious concrete masonry units <i'-.. <z.> <::S used In ~ avertbl control ~ joint. ~nd-~m!M.ocl: _......_ ........... ACOI"ICrCte INsonty unit used In con5troctl~a!:ocrld ~m.~nga t'-- depressed sectIo!Iln which reinforcing ' ..:::.,:';:::. stul can be ~ for emUedment In :,::::...." .... grout. . . ~nd~m Amasonrycourse groutea and relnforuJ to senoe as a~e3m. a horizontal tie, or a~rlng course for struc~1 mem!:>ers, 160 open-end 11lock Aconcrete masonry unit having one end open In which vertical ~I reinforcement can be placed for embedmeirt In grout. IIntel17lock Aconarete masonry unit used In constructing a lintelorbona l:Ieam. having aU·shaped section In whlGh reinforcing ste.el can !:Ieplaced for em~ment In grout. ~b~k Aconcrete masonry unit having a portion ofone fa~ shell removed to receive he3ders In a!:Ionded masonry wall ~und-al7so",ing ma,onry unit Aconcrete masonry unit having asolid top andaslotted fa~ shell. ana sometimes aflbrous filler. for Increased sounaal:lsorptlon. ,'umpvlock Aconcrete masonry unit having an Irregularface and surface texture caused I:Iy the settlement ofawet fl1fx during curing. 'plit-me VIock Aconcrete masonfj' unit. split lengthwise I7y amachine aftercuring to produce a rough. fractured face texture. ~ " ..'~-'" .-... ~:!:c~sonryunit having a ~"" specialceramic. glazed. orpohshed face. . ~.<.~. ~~~concretemasonryunlts . ." having oneor morevertical grooves . . which slmul3te rakedJoints. ~ '~Mw17lock ~ Arry ofvarious concrete mason!)' units ~ : :-- :: ~:::~~ with apattern of ureenl7lock ~ . Aconcrete masonry unit useaesp.ln ~ tropicalarc;hltecture. having a ~ h. decorative pattern of transverse ~ openings for admitting airand l--:: excItuling sunlight. ~ concreU 17rick Asolidrectangular concrete masonry unit. usually not larger than 4 x4 x12 In. (102 x102x:305 mm). ,and-lime vrick Ahard.llght·coIored brick made by molding amixtureofdamp sand and slaked nme under high pressure and curing In asteam oven. 50lia masonry unit Amasonry unit having anet cross· sectional are3ln arry plane paranel to the Dearing surface that Is 75%; or more of the gross cross-sectionaf area me3sured In the same plane. hollow masonry unit Amasonry unit havl"9 anetcross· sectional area In arry plane paraUel to the bearing surface less than 151 of the gross cross·sectional area measured In the same plane. gross cross-5Utionaf are.1 The total cross'sectloll4l are; of;:: hollow masonry unit perpendicular to the direction of loading. Including cellular3na reentrant spaces. except when these spaces are to !:Ie occupied by portions of3djacent masonry. net cross-sectional area The gross cross-sectlon.d area ofa hollow masonry unit minus the area of ungrouted COres ofcellular spaces. ~uilalent thickness The thickness that would be obtained if the amountofconcrete contalned In 3 hollow masonry unit wert: recast without arry cellular spaces. used esp. to detennlne the flre reslstan~ ofa wan constructed with such units. ab~rption The wtlghtofwatera~ bya concretemasonry unit when Immersed In water. expresse.:lln pounds of water per cul1lc foot ofconcrete. Grade N Agrade of loaa·l:Ie3rlng concrete masonry unit sultal1le for gener31 use. as In exterior walls a!:lo.'e and l7e1ow grade. GradeS Agrac:le of loaa·l:Ie3rlng concrete masonry unit limited to use al1o.'e grade. In exttrIor walls with weather· protective coaungs. or In walls not exposed to the weather. Type I Aconcrete masonry UI1!t manufactured toaspecified hmltof moisturecootent In order to minimize the drying shrinuge thatun cause cracking. Typ~1J Aconcrete masonry unit not manufactured to aspeclfled hmlt molsturecontent. normal-weight Mock Aconcrete masonry unit made with sand. gravel. orotherdense aggregateand weighing fI'IOrtl than 125 pcf(2000 kglm3). trghtwelght 17lock Aconcrete masonry unit mac:le with lightweight aggregate.as cinder or expanded slag. and weighing less than 125 pcf (2000 ~glm~). ,urfau I10nalng The bondingof aconcrete masonry wall I7y stackl"9 the units without mortar ana trowenng on astucco-II~~ compound of whIte portland cement and glass fiber. 1 i ...-J j J I I I L ·L L L L L I l ( "--
  • 161.
    ..!'...~ ~nd The a~ forcePy which atoms.lans. ergroups ofa~s are bound together In a molecule oraystall1ne structure. Also called chemic.11 Pond. ionic pOM ----.....--.............·······-i Achemical rond characteristic ofsalts and ceramic materbls. formed Py the complete transfer ofone or more electronsfrom ooe kind of Ian to another. Also called electrovalent Pond. p05itive ion Aposltlvely charged Ian created by electron loss. Also called crtIon. negative ian ~_i matter That which oc<:upleS space. Can ~ perceIVed by the senses. and constitutes the su!7s~nce of a physical roay. ....... shell _.--.............. --....---....-....... Any of up to seven SPherlcal@' surfaces containing the Q or'Plts of electrons of .... • approximately equal energy .. / al10ut the nucleus of an ". atom. ~.... -""" : electron --_.---.._..... --.i...- Afundamental 0 0 MATERIAL Matter havin~ unique quarcti~ I7y which it m3y ~e C3tegoriud. rtom The smallest unit of an element;hat can exlst either alone orIn com!?in3tlon. conslstlng ofa nucbls of neutrons and pw.cns surrour.ded by OM or more electrcnsbound to the nucleus by electrical attraC"..lcxt. ion Anegatlvely charged Jon createa by electl:ongain. Also called anion. valence partlc'.e of matter • • havl~ anegative ..../0 •• 0 • 0 charge. /' ..r o. .~. atomic numper An electrically charged atom orgroup of;rt.oms formed Py the loss orgaIn of one or more electrons. A measure of the capacity ofan atom orgroup to com~lne with otheratoms orgroups, equal to the num~er ofchemical bonds the atom orgroup can form. neutrOn _h_...__m _ _ _• I The num~rofprotooslnthenocleus Afunaamental partlcle ofan atom of agiven element. w!rich having.r.ocharge. I equals the numPerof ~Iectrons covaknt bond valence ekc'tron i normally surrounding the nucleus. proton .....----...---...: ~---'"-:,~--, Also caileJ proton numPer. Apasttlvelycharged particle f6 element A'chemlc3l rond formed by the that Is afundamental ~ between two a~ . {f!f .~. sh,rl''4 01 p''''oI_.s j 10 I An electron located In the outer shell ofan atom that can :Ie transferred or shared In forming a chemlcall10nd with another atom. consUtuentof an atomic nucleI. (ARBON One of acl3ss ofsu~tdncesthzt cannot Pe separated i:tto slmrer su~t3nces Pychemlc31 means. composed ofatoms h.tvlng an identlcaf num!?erof protons II e3dI nucle-JS. Q(~!r H ® ~ .' ® hydro¥" bond ·····BJ~ An ~r0st3UC bond retween an ... electront9t!ve;rt.om and ;1 hydrogen atom'··.. amJy linked toanother electronegative ..... atom byaCOV3!ent bond. molecule ----..--.......-----..----- ...-- ....:. The smalbt partlGle ofasul>stance that dlspbys aRor thech3r3Gter1st1c physlc3land chemlc31 ~ of the su!?stance. conslstlng ofone or more I1ke atoms In an elanent. ortwoor more clifferent atoms In a compound. molecularweight The average Weightof amolecule of an element or compoundC<llcvbteJ as the sum ofthe atomic we~ts ofthe molecuIe's constituent 41toms. Also.C31W formula w~ht. mole The molecubr weight ofasu!?stance expres~ In grams: gram 1I'IOIecufe. Also. mel. inert g35 configuration The sta~le configuration ofan element in which the outer shells of Its atoms orIonsarefilled with the maximum num!?erofe!ec;tron pairs. Nature maves;rt.oms ana Ions toward thiS co~uratlon by capturlng. surrenderlr.g. or sharing e!ectrons with ne!ghUorlng atoms or Ions In an effort to achieve a relatively Inert state of low energy. nol7legas Any of the themlcally Inert gaseous elements: hehum. neon. argon. krypton. xenon. and radon. Also called I~ g.Js. periodic tap~ Atal;>ular arrangement of the chemical elements In related groups. formerly In theorderof their atomic weights and now according to their atomIc numPers.•.•..._ ... OO'frfl i group. eief11.(;t1ts ~cerbln cluncterlstlc5 and b<:h;veIn 3 s1mll3rm3nner bea~ofthe way eJ~ 3re3rnng~In th~ ooters.l,elts. ~~~!7stance.as agas or IIq~Ud'~~rhaving neither Independent that Is capal7le offlowing. yields sha~ norvolume. possessing easily to pressure. and conforms perfect molecul3r mo!?1I1ty and the to the sha~ ofIts container. tendency to expand Indeflnltely. J?~/~ lc~ !-O)r~lk:I CCndeJlse --...-..- ......... - ..- ....... "" '- ~.; partlcles.orptrslstence of '-- ~ ..r-'..../~ firmness. coherence of ~ ~"Y.'1 1./ M4~rhavlngrelatlve !~:~:~;~ ......'.., eva'~rm/'/ /' ......~~. orsolldstate. Tocbn~orconvertfroma r•... : .. "1 ~t of~ation liquid or solid Into avapor. I '. I The heath~tedPya unit mass : I : of gas at Its bolh~ point as It l . i cooaenses to aIlquld. .' J ...,..,~......,.. ,/ heat ofvaporiutlon solidify ~........" . The quantity of hat ~ulred to convert aunit mass of liquid at Its To change or convert from a bolJl~ point Into vapor at the same liquid or gas Into asolid. temperature: equal to the heat of condensatlofl. liquid Matter dlstl~ulshed from the solki or gaseous states by acharacteristic readiness to flow. littleor no tendency to disperse. and re13tlvely high IncompreSSibility heat of solidification The hei1t liberated by aunit maSS of 11q~ld at its freezing pollTt as It solidifies. h~toffu5ron The quantity of heat required to convert aunit mass of a solid at Its meltln~ point Into aIlquki at the same temperature: equal to the heat of solidrxatlon. , 12 , ....... atomk:; weight The ave~e weight of;in atom ofan element lr.IseJ on V:z the welglrt of the carWn·12 atom. ~- met.1nic bond . AchemlCJl bond char:tcteristlc of metals. produced by t."e sharfng cf valenu electrons wh;Ch rnovefreeiy throllilh the lattice of.a usually j stab-le crystaHlnc: stn.'Cture. g ':9. '9 r.'" .. ... + .. -+ e Ltttiu AreguIarpattern of !sc1ted poin:".s In space showln~ the '.xatlon of atomS. Ions. or molecu!.es In a crjstal:lre solid. cry,~1 Asolid having areguLJr'y repeatl~ Intern..I sCructure of a';.Oms. Ions. IX' moiecub and enclOStd '7j symmetr.cally arrange..! pi3ne surface:;. amorphous Not cryS1:Jlline In stc.::Jre 161
  • 162.
    G MATERIAL property Nt essentbl ord'lStlnctNc attr!l?ute or qualtty ~ir.g spectfbllyln the consmutJonof. orfounJ n.the ~ofathl"'4- medlaniut pro~ Anyofthe ~l pro~s of a IT13terial M exhWlt arespon~ to applied forces. tension Theact ofstretchlr.g or stJ~ of being pulWapart. ~lt~ In tM elongatlcn of.n~stlc ~. strength The capauillty of aIT13terial to resist the forces Im~ on It.esp. the at>itl-ty to sust.ln ah~h stress without yIeIdlng or rupturing. ~trength ofIt1&rials The stuayof the relationship l?etween applied external forus and the In~maIeffects produced by the~ forus In a body. te~~ -"---"-"'-'---"-'--- An app&.d force prod~ or ~dln.g to procItUtenslon In anebstlc rody. axbIforce Atensile orcomp-esslveforu actlng ~ the ~udIn.I12XIs ofa ~r21 1!IemM-and at the centroid of thecross ~. proJucl14 ax131 stress wtthcu~ bal.dlng. torsion. or . shear.A!sac;3~nUlload. -....--- .-----.---...: axbf~ -me,tensileor ~sMs stress that ~ to res!s; 311 mal force. ~ fa ~ I?rNI fa anJ uniformly ~ M;f'~ area ofthe cross sectSon. !Jscc.albi direct 5tress. ftOnft.11 ~. ccmprt5*" The act of shortenin.g or st4~ of Peing pushed~. resu~ in a reduction In size or vo/ur.e ofan elastic ~- ccmp~fQru --...-.. -----....-- ... An applied force proa~ or t.endln.g to pt'OdtU com~ In an ebstlc ~- ec.untric farce AfOfU applle& pmf1eI to the IonglW4inafax15ofa~r21 lnen-Wer M ~ to the centroid of the cross sutlon. prcJucfll4 ~nd1ng and 311 uneven c:ilstrit>ut-lon ofstre5~s In ~ section. A!saC41led ecuntric load. 162 "-. i .---- Exhllntlng the same physical properties r::: «1'::0'1 l~troplc ~ ..' along all axes. k:."" • .:.I J, anl~otropjc Having different physical propertles ~"" ~ along different axes. as woodand other -'" .-=" fl17rous materials. /' ~ "'"::d stress ~ 1ntet1131 resistance or reactlon of an eiastlc rody to extemal forces applled to It. c'lU31 to the ratio offorce f to area and expressed In units of force I per unit ofcross-sectional area. Also I .called unit stress. I u~~~~ ! The ax13l5treSs that develops at the I cross section ofan elastic body to : resist the coll1near tensile forces I ::~:;:a~~~..____._.__..__._J-: __ The ~atlon of aunit length of T mattrlal produced by atensile stress. &tr.lin e The deformation of.11cdy under tM action of an applied fo~. Strain Is a dimensionless quantity. equal to the rati9ofthechan~ln s!uorsha~ to the origll12l sizeor shape ofa stressed element. Young', modulu, Acoefficient ofelasticityof amattr131. expres$lr.g the ratio of longltudlnJI stress to the correspondlng Iongltudln.alstraln C3usea by the stress. ',. Poi,scn',ratlo The ratlo of lateral strain to the corres?O"dll19 longitudinal strain In an elastic body unaerIongltudlnalstre5s. I f I I - comp~5ive ~tress : The axfaIstress that develops at the l cross ~n of an ebstlc body to I resist the collinearcompressive forces I tend1n~ to shorten It. 11 comp~~lvutrarn -----....-..-- ~ The sho~nl"9 ofaunit length of :r- material produced by acompressIve stress. tensile test Atest for determining the ut:havlor of amaterial under-axial tension. In which aspecimen Is grlppea at roth ends and pulled apart until rupture occurs: the most common test for structural materials. tensile strength The resistance of amaterial to longitudinal stress, ~surea II)' the minimum amount of longitudinal s"tfess reqUired to rupture the material . ,.elong.nfon : A measureof the ductmty ofa material. expresseJ as the percewge Increase In length of atest specimen after failure In a~nsfle test. ~uctlon ofarea Ameasure of theductlltty ofa ma~rial. expressed as the peruntage decrease In cross-sectional area of a test specimen after rupturing In a tensile test. compre5sion ust Atest for determining the ~ of amatulal under axial compressk:ln. In which aspecimen Is crushed untU fracture or dlslntegr.ltlon occurs. The ccmpressk:ln test Is used fer tm~ materials slnu their lowtensSe strc"9th Is dIfflcult to IT1e2sure accur.rtely. ,train gauge An Instrumentfor measurl"9 mInute deformations In atest spec~ causea by tenslon. compression. venJlng. or twisting. Also calf&j exUnscmeW. I1ulk modulu, Acoefficient of elasticityof amaterial. t:tpresslng the r.;tlu ~etween a pressure and the corresponding fractional Change In volume produced. conipr~~j:7jJity The reciprocal of Pun.: modulus. ~ual to the ratio of tM fractfooal change In volume to the pressure applied to a substance. l u i U 6- r
  • 163.
    f ~! ' r r- shearing force AnInternalforce tangential to the surfau on which It acts. developed ~ a rolly In response toa shearforce. For ~ equihbrlumofa rectangularetement subject 1:<> shear. shearing In avertical ~~:,,~~~:,~,~'v~!:rlt--- ..,.[L .....-...-- ..--_...... ..._......_ ....... shearing s~s The force per unit area developed alang a 1 ~Ion of an elastic roayto resist ashear f~. Also called shear stress• ....1 t.an~entlal stress. t-....-~ shearing str2in .-..' shear modulus I The lateral deformation developed In 3,body Acoefficient of elasticity ofarttrterl3I, In response to shearing stresses, defined 'I expressing the ratio between she3ring as the tangent of the skew angle of t.~ stress and the corresponcl1ng shearing deformation. Sinu this sk~ angle is I strain produced by the stress. Also always very small, shearing strain Is aptJre called rtWdulus ofri9laity. modulus numuervery nearly equal to the sl:e.w aM.3te , oftcrslon. In radians. Also called shear strain. ~ :-...-...-....- .............-..~ coml?lned stre"es v Aset oftensile and compressive strts~s I res:Jitlng from the superposition of ~l and bending stresses In the cross ~n of astructural member. acting In the s.rr.e + direction and equal at any point to t·r.elr 3lqebraic sum. MATERIAL shear The lateral defonnatlon prOduua ~ abody by an external force thatcau5es ex-.epartof the body 1:<> sltJe relative to an ulJxtnt part In adirection E?rallel to their pbne of_ co(rt~.£t. -..~ shearforce An applied force producing or talding to produce shear In aPolly. Pending The !?owlng ofan elastic Dody as an extern..1 force Is appl1ed transvtrSeiyto It.5 ~ngth. ~Ing Is the structunl mecfuni:sm that er1"!?lesaload to l:re ch3nneled L, adlrectlor. perpenalGular to Itsapplication. I "._.........._..._ ..- tra~ver5efo~ - - t!tr~, concentration An Ircrease In stress that develops at dlsccntlnultles or flaws In amaterl31. Stress concentrations In !1r1ttle rtt3terlals dev&.op crads which propagate unUl failure. In ductile materials. stress concentrations dev&.op local deformations which serve to rwlstrlbute and relieve the stresses. ~ Aforce applled perpendicular to t.~ length of astruct!Jral rnemPer. producln~ benolng and shear. ,AJ.;,o called transverse load. •5u ~m forrendlng ~. ~~::~"" tor,ue The moment of aforce system Dt3t causes or tends to cause rotation or torsion. tor,ion The twisting of an elastic rodyaPou't Its Ioo~Jtudlrt31 axis caused by two tqU31 and opposftetorques, producing shear'~ stresses In the Polly. 163
  • 164.
    MATERIAL ~aindU~ram ApPIrk: rtp~ ofthe reb~ ~~ unit stress values . and the ClrTtSpondll14-l1nlt strains for . a~ltiIte~l elJstic~ •.-.-.-.----------- .....---- The ra~ of unit stttsses for which a materUIe:xnIDItS el3stlc deformation. t..-.· pl.1stic r.1nge :.--.- strain-lurdenin~ range : The range ofunit stresses for which a : The range of unit stresses for which a ddonn.rt:ion Awl'I¥kI the shape ordlmensions eXa~ ~ structure resuftln~ from stress. _ :.~:: m_ater131 exhl!:>its plastic deformatl.on. 1 material exhl!:>lts Increased stength with : some 1055 of ductility. ~~~====~~~~~==~~~~~~~~~ 1'1 -----v!'-J V- I i eU~defo~n AtempcratJ' change In the dimensions IX ~pecia roayproduced ~ a stress Ic:s6 than the elastic hmlt of them~l I I I I I I : I I I I I I I I I I pl.1st!c defortn.1tlon I I I I I A~nent chan~ In the dimensions or shape ofabody produced byII stress greater than the elastic hmltofthe materl.al. remalnl~ rlgJa under stresses of less than a certaIn Intensity.The molecularrorldsIn a material that exhlults plastic Ue/uv1or reform a&r Pelng stressed !:>eyond the ~Ic hmlt. The material thus retains ameasure of reserve stre~th. Also caltea plastJe flow. r-- ultJnuu strength I7ritt1~s ---.........-----.---............ -....---r· Theprop:rlY of 3 rn4U:r1aI that causes I ~ to rupWe suddenly under stress i !'flth nmeevl.:kntkfonnatlon. Since I ~ The maximum tensile. compressive. or shearing stress amaterial can 1e expected to ~ear without rupturing or fracturing. Alsa c311&1 uftint.1U stress. PrittIe rtr'~1s lack the plastic I yield point ~------=-=---<:".-..-= ~of ductile rruterials. they can I ;l¥e no ~nee W<1rnl~ ofImpending : ~~~ I ~lllmit ~-..---........-----..- "-'. The stress PeyoM which amaried Increase In strain occurs In a~terla! without aconcurrent Increase In stress. Many materialsdo not have clearfy deflnedyield points. For these materials, atheoretlcalyIeki strength Is calculated from the sUess-strain curve. The stress ~ which the ratio =- ... OI'stresstc strain fi:u material S+--..:.,:H-~+--=========-----------7r ~1on¥rrt:lT'..lns~nt. ~ ~ fracUJre --- .. The ~real:lng of 3 material resulting from the rupturing of Its atomic I10nds when stressed Peyond Its ultlmate strength. U) '.~-~ eb5tlc limit ......--...............-.......- auctility A~so-e of aIl13te~rs .-esis14~ ~ aef0r:n4t1on when stresse.d ...ithln I;s elastic range. ,nowm,~" -............. ----- The maxfmum stress that can !:>e appl1ed ~ amaterial without causing permanent deformation. .-.----------.----....(JD STRAIN(In/m.) The maxirJJm unit ~s pennlt~ fc.- a~11n the deslgn of 2 ~ ~.1ISU311y afractlon OI'~ ~r5e!astlc hmit.yleki .....- ebstklty L modulU5 ofe~5ticfty S"~ c.- u/tlrrgte 5tl'ength. The The property ofa~terlal ~~ wesses for V3r1ous that enal?les Itto deform In NteNls art: sp«if,eJ ~ Dulldlng response to an appll&l force cedes. ~ SCodetIes. ana and to recover Its original size t.ndct as:socI;rtlons. Pased on and shape upon retT'lOVlII of the ~s and II'Iethods of testl~ forc:e. ~~theAl!'erIcanSocIety jlll--.- ~T~ and M;terbls. Nso caltea ~ wnit ,~. woricln§ - ~ - --r-·t )ield 5tre~ --.----- -----..--.......... "--'.• -- -- -- -- +--+---+--+--+ ~ stres5 necessary ~ produce a ~ lInltl~ penNnent set In a ~terblll5Uafly O~ ofItsoriginal ~th M tested !n tension. Yield . 5trengti Is useJ to tkttrmlne. the limit cf ttSefvi'.ess of amaterfal having a ~ defI;,~ y~1d p<)nt. Also called proof str-ess. __ jl._.[- -+-f---4--- -( -+'-+--+--4 .--I·---l-'-1--cf------1 -------.--.--.--.... perm.1nentset AC«fficJent ofelasticity oh material expressing the ratio between aunit stress and the correspondIng unit straIn caused ~ the stress, as dertved from Hooke's lawand ~tta I1y the slopeofthestralght-bneportion of the stress-straln dJa9ram. Also caltea coefflcltnt ofelastlcity. ebstlc modulus. Juctl1e;nJtcugh The Inelastic strain remaining In a materIal aftercomplete release of the stress producing the deformation. 164 The prcperty of3 material thot et1al11es It to undergo plastic deformation after 1elng stressed DeyOnd the elastic nmit and before rupturl~. Ductility Is adeslralne property of astructural material slna plastic f,ehavlor Is OIn Indicator of reserve strength and can ser;e 3S avisual W3mlng ofImpending failure. Hooke', L1w The law statIng th3t the stress on • Dody ~Is directly proportional to t~ strain produced. provldeJ the stress ekes not exce&:f the elastic "mit ofthe mat.t:Nl u>ughne55 The propertyofamaterl31 that enau!es It to a~ energy Ddore rupturing. rep~ try the area under the stress- strain curve derived from atensIle test of the material Ductile materials are tougher than brittle materials. l - ; I l . i 1;- I If L J L J l . i.':
  • 165.
    .~ mo~ture expansion An Inc~seill the IxIIk of a IT13terIaI caused ~ the a!1sorptloo of water or )¥;l~r V6por. Also C311eJ Uulklng. aas-orptlon The adhesion of 3 thin, condensed layer of gas, hquld, ordissolved substance to the surface r:iasolid, usually ~lthout ~rtj physical orchemical change In the ITlJterial wutherometer Adevice for~Inl~ the weather re5lstanceofa /113~rlJll1y sul7jectlng a L~ s~rn.en to accemtea ~t~. ~leraW weathering Aproc.ess for exposing amaterlJl to uftmlolet r7yS, Vtdtel' sprays. alid he;3tln~ elements In order to simulate the 1ong-tm1effectsof sun. rain, and temperature ch4nge5. Also C3l1ed uulerateJ ~Ing. etr.ain-rate effea ~ trlttle behavioran Increased rate of load application can cause In a nonrully d~ IT13terlal tempent4reeffect & ImttIe ~vIor low temperatures can C3use In anormally ductile ITt3terial ~ relaatlon ---.----- ----- -.-~, ;'-" coefficient ofexpansion : The fractional change In length, area, or volume of amaterial per unit change In temperature at agiven constant pressure. Also called expanslvtty. ~~------~--~--------------~-~Ir [ _J I MATERIAL dimensional stainUty The property ofamaterial that enables It to IT13lntaln Its o~lnal shape and dimensions when subjected to changes In temperature Orhumidity. kinetic theory ofheat The theory that the temperature ofa substance Increases with an Increase of the average kinetiC energy ofIts particles when heat Is absorbecI. ~- thermal expansion . An Increase In ~gth. area, orvolume of a I : - 4~' material caused I1y arise In temperat.Ure. ~ thermal contraction ~ AdecreaseIn length. area, or~meOfa ~ =====-================ material caused I1y adrop In temperature. . ' i___.____. thermal5tress abrasion resistance The property ofamattNl that enables It to resist ~ng worn away I1yfrlctlon when rul7l1ed wft.h anotherobject. Amslon resl5tanee Is a mea5U~ oftoughness rather than hardness and Is anecessary qualJty of flooring materials and surface ftnlshes. .jIbrasion-~isbnu inkx Ame3sure of the abrasion reslst3nce of a1TlJterl31. commanly expressed as tM depth of ~etratlon or material loss after testir.g with awe'9h~ abrasive wheel for aspeclfted number ofcycles. The tensile orCOOlpresslve stress aeveloped In amaterial constrained against thermal expansion orcontraction. thermal shock The sudden stress arapid change In temperature can produceIn amaterial h.ardnes~ The property ofamaterial that enaUles It to resist def0rtn3tlon ~ compression, Indentation.or penetration. Moh5'~le Ascale for measuring the hardness ofa mineraI. Its degrees, In Increasing hardness, (lre: I, talc; 2.l:IYPsum; 3, calcite; 4, flUOrite; 5, apatite; 6, feldspar. 7, quartz; a.top3Z: 9, sapphire; la, diamond. 5rinefl numl1er Ameasure of the hardness ofa rruterl3l determined ~ pressl"9 astandard stu! Inllinta atest plea using astandard force and dlvldlng the load by the area of Indentation.The higher the numb-er. the harder the material. Rockwell number The tlme-~nt decreaseIn -.'-. ~-+-7'1i--+--+--!-+--l--!---1 btigu~ The l'/e3i:ening orfallure ofaIT13ter13l at astress l7efow the elastic limit when sul7jected to arepeated series ofstre~5. Ameasure of the hardness of amaterial. determined ~ Indenting atest piece with a conoidal diamond Indenter, or with a standard steellr.lll. undertwo sucusslve loads and measuring the net Increase In depth of the Impressions: the higherthe numb-er, the harder the material. stress In 3 COI'Istralned material under .. const3nt load. creep •.----.--------.--.-.-.....--.--.,. The !r.ldual and permanent ". h-+!---...-!c:.....+ .tkformatlon ofaPody produced by a continued appllcatlofl of stress or prolonged exposure to heat. Cretp deflection In aconcrete structure continues !:NeT time and can b-e s~ntflcant~ ¥e3ter than the Initial elastic def'utlon. i --; btigu~Jjmit The IT13xlmum stress to which a IT13terial can be subJectecl for an Indeflnlte number ofcycles wtthaut failing. fatigue r.atio the-ratio b-etween the fatigue limit and the tensile strength of amaterial. Also called endurance ratJo. Vickers number Ameasure ofthe hardness of amaterial. aetermlned ~ Indenting atest piece with the point of adiamond using aknown force and dividing the load ~ the surface area of Indentation: the higher the numl7er, the harder the material. 165
  • 166.
    MEASURE A unit orstand.1rd of measurement used tc ~scertafn the dimensions, ,uantlty, or capacity ofsomething. metric 5ymnt AkcJm31 system of weights ana. ~res, adopted flrst In France I7ut now wldesprtad and universally used In ~, InUrn.rtlonaISystem ofUnits An In~ally aa;epted system of c.ofIertnt physbl units,using the lneter. klqram. second.ampere. kelvin. ..Mc.nJeb as W InsIc units ofthe fuAda~ quantltles of length. IN~. tlIM. electric current. ~~. and luminous intensity. ~ Tht~of anythl~ measured along Its ~reatest dimension. . ~W1re mu,ure Aun~orS'J'5temof units for JI"eaS(J~~. derived from units rimr~sure. a~ A~lTtttatIve mt2sureofapiane or ~ surf.Ju. cuWc 1I1a$UI"e AunItorS'J'Stemof unitsfor ~ ro/ume OI'c.paclty. kriYed froIn unitsofhne.rmeasure. vol&m'le The sb:e orextent ofathree· dlmensbt31 objector region ofspace, IrUSUred III cuPic ulWts. 166 conversion b~le A t:al7ul3r arrangement of the equivalent values ofthe weight or measure units of different systems. 51 unit One of the uasle units of the IntematlonalSystem of Units. meter •......; The I7asle unitoflength In the metric system. equivalent to '39:37Inches, originallydefined as one ten·millionth of the dlst3neefrom the ~uator to the pole me3sureaon the merldbn, bUras the distance IIctween twonnes on aplatinum· Irldlum I:r.irpreserved at theInt:.em3tlonaI Bureau of WeI9htslina Measures ne3r Parls. ananow a51/2.99,972.45a of the distance I19httravels In avacuum In one second. APIn-.: m kilometer A un~ of length linadlstance cq,ual to 1000 meters anJ equivalent to32Ml..8 sea'" Asystem of ordered mari:sl3k:.f down at known Intemls alid used as a stanaard reference In measuring. 1 ·-cemmeter Ametric unltof length equal to 1/100 of arneteror0.39:37 Inch. The use of the centimeter Is not recommended for use In construction. AuPr.: em .• mnlirneter Ametric unit of length equal to 1/1000 ofameter or 0.03937 of an Inch. APln-.:mm micron The millionth part ofameter. Also foot Aunit of length originally derived from the length of the human foot. divided Into 12 Inches and equal to 304..8 millimeters. A!7~.: ft. inch Aunit of length, 'filth of afoot, equivalent to 25.41T1I1nmeters.A!7ur.: In. mil Aunit of length equat to OOOfofan Inch or 0.0254 mm, used In measuring the dl3meterof wires and the thlcl:ness ofvtfy thin shut mat.erl3ls. yara Aunit of length equal to 3feet or:36 Inches, and equivalent to 0.9144 meter. AIIPr.:yd. roa Aunit of length equal to 51 hyaras or 16'/2 feet. and equivalent to 5.029 meters. eJlled mIcromeUr'. S:imPol mu, ~ 1mile Aunit of distance on ~na equal to 5200 feet or1760 yards. and equivalent ..................._....... to 1.609km. Also ~11ed ~t..t"Wte mile. AI7W.:ml :.._...... n~utic;!1 mae 1 Aunit of distance used In sea or air !......O ..21 milo. Al!>d.. ···-i r------------------------~~X navlgatlon. ~ual to 1.852 kilometers or arout6,076 feet. Also eJlled aIr mite. are A metric unitofarea equal to !fIOO of a hectare. 100 square meters, or 119.6 5'1ual'ej'3rds.APln-.:a ......._......................... hect.<lre _................._......................... A metric unit ofarea equal to 10,000 squart meters or 2.47acres, Auk: ha liter Ametric unitofeJpaclty equal to VIOOD ofacuPlc meteror 61.02 cullie Inches. AUIn-.: L --"1 .. ure ,---r-~~~~~:f_<~*~~ Aunit of land are3 equal to1J6-4-0ofa square mile, 4640 !Xtuareyards. 43,560 square fU't. or 4047 square meters. circulJr mil Aunit used prlnclpallyfor measuring the cross~' area of WIre, eqU31 to the area of acircle haVing adiameter ofone mil mmnitet' r....·..--~ fluid ounce Ametric unit of eJp3clty equal to i Aunit of lIquld capacity equal to 1f.oooofa I1teror 0.0162 cullle Inch. : ta05 cuulc Inches or 29.573 mllhbters. AIIPr.: ml i Aim.: ft 0%. ~: ... .-'..• pint ~1 I Aunit of liquid capacity equal to 16 fluid ounces, 28.875 cuPlc Inches, or 0.473 liter. Auvr.: pt. }-.- quart • I ! Aunit of liquid capaclty ~ual to two : H 'j pints, 57.75 cubic litChes. or O.946Iit.er. . }I / ' AbI:n-'lt .L·/1-': - . . : ~- gallon . Aunit of liquid capJclty eqU31 to 4 .' quarts. 2.31 cubic IncMs. or 3..875 liters. Al>br.: gal. "·1.' l 1 tJ I U L· 6- r..- u
  • 167.
    r I ~ 'T" 1 J T ,1 ] J &e115fty -.---- .--........-......r The mass of a substance per unit volume. I spuific volume I fre rulprocal of densfty. equal to . vclume per untt mass. ! sp~ific gravity I Th~ ~tlo of~ densttyof asubstanu i to the density ofanother substJnu I tdk~ a5 iI st3nd3rd, usually distilled WJUr forBqulcls and solids, and air or I loy,,",.,,,,rO",,,... L pouna Aunit of force equal to the we4!ht of a ~-poond rrt3SS underthe aculerat!cn of gr.wlt)'. Ab~.: Ib tI-eWtcn - ....-.--.-.----......- .. -..-.-... -.- ..-.- w Sl untt of force equal to the force rea.u1rea to accelerate amass ofOM k~~m;it the rateofOl1e meter per x:caM per ~nd_ Am.: H k:J~r..m Aunit of force and weight equal to the ",~~ht of, kl~ram INSS under the xu!er3tlon of gravity. Abbr.: kg ~..mcsphcre A unit of presSlJre equJI to the nonr.aI pressure of ~ alr.;lt seJ level, equal to 1.0025 x105 Nfm2or about 14.7 pounds ~~ square !nch. Al?br.: atm. st-ar..:Urd ztm05phtre --.-.-.--. As~ndJrd unttof atmospr~ric Fi!'Ssure. hJving avalue of 29.92 in. (roo mm) of mercury. r...mcsp+.erlc pres5Yre The prts~ exerted by the earth's ':'ToO$p~.,t arry given point. usuar!y ~?resstd ttl terms ofthe height of a roumn of ITlercury. Also called ~.1l"Ometric pressure. ~.- .. -- ----. ~.1l"Ometer A~ Instrument fQr me.ilsuri~ Jtlr'-05phaic pres'5ure, used In we3ther fC'1"X4stlr~ and dettrn1lnlng elevatloo. kor~power ,A, 'Jntt of power equal to 550 foot· ,.:;,.;nds per secOM or 745.7 watts ,l~.:hp mecn.a niCAI equIvalent of heat I"e number of units of iYQr'( or ener~ t:l.;31 to one unit of heat. as 7782 fe·lb. A~:";h equ31s one Btu. or4.1858 Joules "- ch eqJJls one C;Jlorl~ metric ton gram A metrlG unit of mass equal to '1'000 of akIlogram or 0.035 ounce. Al-lbr.: 9 MEASURE mass Ameasure of a body's inert13,·as determined by the quantity of materta! It ccntalns and Its weight In afteki of constant gravitational accelemlon. AUPr.:M Aunit of mass equal to 1.000kilograms and eqUivalent to 2.204.62 avoirdupois pounds. Also calted tenne. Al-lk m.t. /". kilogram :' The base 51 unit of mass, equal to the mass of a platinum-Iridium cylInder kept at the International Bureau of Weights and Measures ne3r Paris; equivalent to 2.205 avoirdupois pounds. Abk:kg . pound ------- AunitofWeight equal to 16 ounces and equlv3lent to 0.453 kg. Abbr.; IP. kip Aunitofweight equal to 1000 pounds or453.6 kg. ton Auntt of weight equal to 2,000 pounds or0.907 metrlG ton. Also called short ton. Boyle's law The principle that, at re13tlveiy low ~ssures and aflxt.d tempe~ture. the pressure ofaccnflr.ed!deal gas varies Inversely wtth Itsvelume. ffi tld ...: ..,:~ O~ foot..pound Aunit ofener!r{ equal to the won:dane when the point ofappt1c3tlon of aforce of one POUM mO'r'es through adlstance of ont foot In the direction of tht force. Al-lbr.: ft-!17 Inch-pauna One-tweffth ofafoot·pound. Abbr~ In-l17 ...,"''''', ....'" (. 1 : ; / , , ......- , '( : I ............J ~............ power The amount of wor'( dane orener!£{ transferred per unit of time, usually expressed In watts cr horsepower. work The transfer of energy produced by the motion of the point ofapplication of a force. equal to the product of the component of the force that acts In the dlr~tlon of the motion of the point of action and the distance thro~h which the point of application moves. weight The graVitational force exerted by the earth on aPody. equal to the mass of the I-Iody tlmes the local acceleration of gravity. gravity The central force ofattraction exerted by the mass of the earth on a rody near Its surface. acUleration ofgravity The acaleratlon ofafreeryfam~ body In the earth's gravitational ftelJ, having an approximate value at sealevel of 32 ft_ (9.8 m) per second per 5eCO!Id. pressure The force exerted over a surface, me3sured as force perunit are3. pascal The Sl unit of pressure equal to one newton persquar/: meter. Al?br~ Pol energy The won: aphyslc31 system Is capal7le of doing In changl:1g from Its actual state to aspeclfted reference st3te. joule The 51 unitof won: or energy equal to the won: done when the point of appllcatlof1 ofaforce ofone newton moves through adistance of one meter In the direction of the force: approximately 0.7375 ft-Ib. Also called newton-meter. Abbr.: J watt-hour Aunit of energy equal toener!r{ofone watt operatl~ for one hour and eqUivalent to 3.600Joules. Abbr.: Wh 167
  • 168.
    MEMBRANE Athin. flexible surfacethat carries IoUs primarilythrough the development oftensile stresses. tent 5tructure Amemt.rane structure pres~ssea by externallyapplleJforces so th3tIt Is held com~ taut 1ltl00r all anticipated load conditions. fo avoid extremely high tenslleforus.lI mem~rane structure sMuid W relatively sharp curvatures In oppostte tArectb1s. net 5tructure Amemmnestructure havl~ a surbceofcIo5eIyspaced caDies InsWdofafa~ material. pneum.atJc ~t:ncture A mem~e structure that Is placed In tension and sta/:IIIIzeJ by the pres~re ofwnpressedair. -=--===---==--:---- ~ir-5upporUd structure A pr.eUll13~ structure consisting of asingle ~ supported by an Internal air pressure sUght.ly higher than no.-mal atmospheric pressu~ and securely anchored and sealed alo~ theperlrnet:ertc prevent Ieakln!3. AIr1od:s art: l'eCulredatentrances to maintain the tntern.JIairpressure. Jlr-infUt.ed ,tructure Apneunutlc structure supported by pressurized air wtthln Inflated !1ullding elements. which are shaped tocarry loads In atraditional manner. whIle theenclosed volume of Dulldlng air remains at normalatmospheric pressure. The tendency for adouUle-meml1rane structure to bulge In the middle Is restr.llnea byacompression rIng or I1y Internal ties or tlaphragms. 168 reinforcing edge c.1P!e Ac;o~ stlffenl~ thefru~s of aprestresseJ memln'ane stnJct<Jre. cable loop Areinforcing edqe C4b~ tied to the m3st support of amembrane structure. ~- distnlnItlon cap The pr03dened end of am.st Ofer .... which apres~ memm~ ... st.ructure Is stret.che<i clible-restrolinea pneumatic ,truct.<Jre An air-supported structure that uses anet of caUies placed In tension by the InfIa~~ foru to restrain the memDranefrom developing Its naturallnfbted proflk:. . L u u u
  • 169.
    '. ingot ArNSS of metalcast Into aconvenlen! sha~ for stange or tnnsportatlori Wfore further processing. Hank Apiece of metal ready to De drawn. pressed. or machined Into aflnlshea object. bloom A1mof steel reaucea from an In!lot to dlmenslons suItable for further roll1ng. blooming mill Amill for roll1ng Ingots Into blooms. billet Anarrow. ~enerally square. barof steel, forgea or hot-rolled from an In!lot or bloom. ~---------------------. hot-roll ~ Torollmetalata heathi~henou~hto I r · I I' .] permitreGrystalllzatlon. '. i i hot-rolled finish • . • The dark. oxidized. re~tlvely ro~h flnish : - _. .. . . oi1talnea I1y roiling metal while hot. S(;ale An oxide occurring In aseaIy form on the surf.lce of metal when brought to a hl~h temperature. mill s.cale Aloose coatlng of Iron oxk:ie that forms on Ir"Oi'1 or steel during hot-roiling. Mill seale I~s the bond between steel and co!'C~ In reinforced concrete or In structural stulwon: enC4sed In conc~forflre pro~lon. hat trutment The controlled heatl~ and coolln~ of a metal to dcie'.op certain desirable phys1c31 or mechanlc31 propertles. annul /-.-...-.-.-- die casting ../ The process or product offorcing ./ molten metal Into ametallk: mold under hydraul1c pressure to give It a particular shape odorm. ~5tlng ~ ~~_ :...;:". ~::{:~~'~ ;.!.:.~ Theprocess or product of forming a .'::~. ::..'~ rrt3terlal Intoapartlcubrsha~e I1y <: /~~;.;:.:::::~.' ::}. pouring It Into amold In aflukl state ~~ and letting It harden. .---.- mold o Ahollow form or rrt3trlx for giving a ._.. p3rtlcll~r shape to something In 3 -1 molten orplastic stak ~ 'forge To form metall1y heating and hammering. cold-roll To roll metal at atem~rature below that at which recrystal/lzatlon occurs. 50 as to Increase Its unsile strength .orImprove Its surface flnlsh. mlllfinl.sh The striated finish that cold roiling or extruSion Imparts to ametal surfau. METAL Any ofa class of elementary substances, as gold, siIYer, or copper, all of which are crystalline when 50lkf and many ofwhich are ch3racterized by opacity, d~ctility, conductivity, and aunique luster when freshly fractured. --- hat-working The working ofa metal at a temperature hIgh enough to permit recrys~lIlzatlo11. recrystallize To acqUire anew granular structure with new crystals because of pbstlc deformatlon, as when won:ea after being heated. 'l. I [ I 1 r r I , I f , , I f I " r -r fo ! T I i I 1 t r r l T "I I i 1 I +-+ I --~-+. 1 1 f I To rtmOfe Internal stress from metal or glass I1y he3tlng to a tem~re below that of recrjstalflzatlon and then gr3dually coohng l1 al1quW or air. esp. to make the materi31 more ductile. ---. extru~lon -- cold-working quench To r<1pWly cool aheatai rnetall1y Immersion In W7ter. esp. to Increase Its hardness. temper To stre~then Or tou~nen ametal by rene;itlng at alower umperature and slowty cooling the material. str~, rel~ving The tempering of anmal at atemperature high enouqh to relk:ve residual stresses. followed boy slow. untform coolln~. g-e,ialUl,tress Microscopic stress In ~ metal resulting from nonuntform thermal changes. plastic defornu Clan. or otner caus~ aside from external forces or applications of heat. c~~h4rde:n To rruke the outside surface of an Iron· bascQ alloy hard by carourizatlon and heat treatrrent, leaving the interior tough and duct,!,: The process or product offorml"9 a metal or plastic with adesired cross section byforcing Itthrough ad'e with iI pressure ram. r---- cold-araw .... To draw metal through asetofdies to / reduu Its cross-sectlonal area .' without preheating. as In the 'il_~~~~rmiiiiiii~~-+ fal1r!catlon of wire or tubi"9' iii drawnflnlsh Asmooth. p~ht finish produced by drawIng metal through ad1e. ','--...-.- ..----.. die . Asteel block or plate h3vlng small conical holes throu9h which metal or plastic Is extruded or drawn for shaping The working of metall1elow tne temperature at which ~rystalllz3tlon occurs. as In drawing. pressing. or stamping. 169
  • 170.
    METAL ·fer~~1 A metJIcontalnl~ Ironas aprincipal ~. &-oft A1NJe.t~ auctlle. magnetlc. sl~er­ white ~ element from willch pig Iron 2M steel are made. Syml1ot: Fe ig IroA ~ruk!roll~tIs arawn from al;>{ast furnace anacasiInto pigs I" preparation for conversion Into castIron. wrought Iron. or5teet cast Iroa ~--- ----------------.---------------- An.ra. tnmle. nonmaIleaVIe Iron-l:rasea alloy conto1lnlng 2.01 to 4.51 cart>on ana 0.51 to:51 slilcon. c~t In a sand mold ana machined to make rnany pulldlng products. steel -------------------------.--.--.---- Ar:y ofvarious lron-l:rased alloys having a C<lrPon ~t Itss titan that ofC;lSt Iron and II'IOI"C ~nthat of wrought Iron. and ha~ qlUl!tles ofstrength. hardness. and ela~ varyl~ iCCOrdlng to composition and heat tre;;tment. 170 smelt To melt or fuse ore In oraer, to separate tM metal constituents. pig An ol:rlong ITt3SS of metal that has been poured while stili molten Into amold of sa!d.esp. such amass ofIron from a blastfurnace. mallta~1e cast Iron CastIron that has peen annealea by transforming the carron content Into graphite or removing ~ completely. rn.allu~l" Capapleofl:relng shapedorformed by hammering or by pressurefrom rollers. cnl?on steel ...--------------------.-- --.---- Ordinal)'. unalloyed steel In which tlte residual elements. as carron, IT13nganese. phosphorus. sulfur. and sll1con. are controlled. Arry Incre4lse In carVon content Incre35es ~he strength .aoJ hardness-ofthe stu! !:rutreduces It..S ductility and weldaln11ty. ~rPon Anonmetalbc element occurring In a pure S'bte as dlamond;loJ graphite. or . a5 aconstituent ofcoal anJ petroleum. ·5)tmro~C alloysUd .------------------------------.. CarVen steel to which various elements. as chromium. coI1alt. copper. manganese. moIyt7denum. nwl tu~ste';. orvanadium. have ~n added In asufflclent amount to okaln partlcularphysical or chemical properties. alloy AsU~5tance composed oftwo or more ~Is.orof;l metal and anonmetal. Intimately mixed. asl1y fusIng or electrodeposltlqn_ P;a~metat ~ princIpal metal of an alloy or apiece underlying acoating of another metal. ~~tfurnace Afarge vertlc;al ~ for smcftlng Iron from ore. In which com!7ustlon Is intensified by aCO!Ttlnuousl;>{ast of air through the futl mila~1 A1ow-C3rl1on steel containing from 0.151 to 0251 carVen. Also called ~ stu!. medium 5teel AC3rWn stet! co~inlng from 0.251 to 0..4-51carbon. ~rd,teel Ahlgh-carron stt.eI containing from 0.451 to0.851 carron. ~~5teeI Ahlgh-carkm steel contalnln~ O~~ to ~carWn. hlglHtrength Iow-al/oyetul Anyofagroup of ~rron steels c.?ntalnlng less tn.n Ztalloys In a chemicalcomposition speclflcatr,. dM~ for Inc~ strength. ductlllty. and resist.nee to corroslo11. ~rlng,teeI Ahlgh-strength.low-l!1oy stu! th..t fonns;ln oxide ~tlll9 when tx~ to rain or moisture In the lItmosphere. which adheres firmly to the !:rase metal ana prottcts It from further corrosicn. Structures using watnering steel should ~ a.rnlled to prevent the small arr.ounts ofoxIde carried off ~ rainwater from staining aajolr.lng maUr1als. Amixtu:re ofIrm ere. ;r,.~.3nJCO~ cake ~~e safld residue of walleft after destructlve distOatlon. useJ as afuel PU~t-furruce 'l.1g 5l3g ~ .s iii reskiue boy the smelting ci Iron ore In;i!71ast fuma~. ~ T'he vJt.rtfie.d matterleft ;a s ;a resldus from the smeitlng of ametallic are. Also C3!1ed clrlder. I' f 1 , I LI j o f ,u I b
  • 171.
    L ( L l ,- I t I L c~ing Th~ process orproductof ~ny one rnetJl to another. usually to protect the Inner metal fmn ccrroslort pickle An llGta or otherd1emiG31 solutbn In which ametal otject Is dipped to remCN~ oxide SC3~ orother~rlny suVstarlUS. Ponderlu To coat s~ with 3nantlcorroslv~ phosplute solvtlcr1ln preparrtlon for th~ appllcatlon cfpalnt. enairel, or lacquer. i nople metal Ametal, as gold, stiver. a!1d mercury, that resists oxklatlon when heated In air. and solution by Inorganic acids. C1thoJe 8 GOLD & PLATINUM (most noble) TITANIUM SILVER STAINLESS STEEL 8RONZE COPPER BRASS NICKEL TIN LEAD IRON & STEEL CADMIUM ALUMINUM Oeastnoble) ZINC ;lf1CM CD MAGNESIUM METAL corrosion The gradual deterioration of metal by chemical aetlan. as when exposed to weather. moisture. orothercorrodlng agents. galvanic corrosion An accelerated corrosive action that takes place when dissimilar metals are In contact In the presence of an electrolyte. .---.~ galvanic series Alist ofmetaIs arranged In oraer from least no!11e to most no!1le. ~ fart~r aparttwo metalsareon thenst. the more susceptl!1le the least ncl7le one Is to corrosive deterloratlcn. surffic~1 anode 4-..·_..··..··..·- ._..._ ...-...._ .... cathodic protection An anode that Is attached to ametal The protection offerrous metals object su!7ject to electrolysis and Is against ~lectrolyslsl1y th~ attachment decomposed Insteadof th~ object. of sacrificial anodes. Also called electrolytlc protectlon. chrome To coator plate alTletal surface with a compouna ofchromium. Also calW cnromep~. chromium Alustrous, h41rd.l>rlttle metallic ~lement used In allay steels for hardness and corrosion resistance, and for electroplating other metals. :'-' ._- g.;alvaniu .. To (;q.It m~l esp.lron or steel with zinc, esp. to Immer~ In mo~n zinc to produce a co;rt1ng ofzinc-Iron .I~. hat--dip ~Jvanlzlng The protectwe coatl"9 offerrous metal by dipping In a!lath ofmolten zinc. gllvanized iron Iron co3ted with zJnc to prevent rust. zinc Aductlle. crystallIne. bluish-white metallic element. us.ed for galvanizing Iron and steel and In making otheralloys. Sym!1& Zn tinplate Thin Iron or steel sheet plated with Un for protection 3gJlnst oxld3tlon. tin Alustrous, ow·meltlng. lliulsh·white metallic element that Is malleal1le and ductile at ordinary temperatures and used in plating and In making alloys and soft solders. Symbol: 5n electroplate To platewith an adherent metalite coatlng by electrolysis. usuaIly to Incre35e the hardness. Improve: the durabHlty. orenhance the appearance of the l1ase metal. electroly~i~ The producing ofchemical changes by the passage ofan electric current through an electrolyte. with su!1seq~nt migration of positively arid negatlv~1y charg&i Ions to the negative and positive electrodes. 171
  • 172.
    METAL W~Up" . Ahot-rolled st:ucturalstet! section h3vmf 6ft H-sbptwith wkle p;1r.1lle1 flanges, ~ ~ the prefix W followea by the slze ~ weIg~ ofthe . Ir'Iemher. AIsoC311ed wfda fU~e....-----.-. --- -'-- M~up" Ahot·roIIed wuctural steel shape simnartoM natclassified as aW- shape. ~~ by the prefix f.A followed byt!le slze and we~htofthe rr.em~r. ~~~~~;.~~~~..--...:. slmibr to J W-slupe I7Ilt having fla~ a~ _ ofec:tU31 thickness 3114 typIcaRy.sed as aload-~rlng p~ designated Pythe preflx HI' foI~ P.t~ slze and wclg~ofthe member. 5-5upts ~.-- -.--.----------------.-....... Ahot·rc&a 5'ttu:;turalsteel section • ~ aft I~ with slopedInner fla~ surface.s. desl!!nmd by the prefixSf~ by the size and weig~ ofthe MnPer. Also calletJ AmericMl5t.anchrd ~. America" $brWrdchanMl Ahot-rolled ~ral steel sectlon ha'r'lns a~ularC-shape with S¥aner~ sumces, ~ I,~ prefix cfollowed by the sIu aM.;.g1ltofthe mem:Ier. m~" clunMl Ahot-rc&:I ~ral steel sectlon . slmilartoJ C-sNpe !7utdes~nated by the preflxI.ef~ bythe size and we!g~of~~ber. angle Ahot-rolleJ WlJeturaIsteel section having alt l-sb~ Oeslgl13kd by the prefix l foIIcMej Py thd length ofe3ch ~ and tJ!etr ;hic[ness. Also calW ,~Ia Iroft. eq~I~HgIe -.............. . ~~;;:::;~~....-...······z::S:,·,··,/ r=~~~~~~u..u.um~lr:J paraId qsrtZi ~ 1n contactor s~htfy sepmW. ~It.u A stnIctmlstaI sectlon cut from a W', 50. rxM-sItape ~ having aT· shape. ItIs ~ by the prefix wr, ST, exUf.deperJlng on the ~ froIt whldllt Iscut. followed by the size 3fI4 ~t ofthe mem~r. tee A rolled metal UM having aT-sha ped CI"OS5 sectloll AlsoC3lled T-bar. zee •..------------.------- --... ----- Arolled metal UM h,vlng aZ·shaped cross sectloa with Internal ~ht 'ngles. AlsoC3fk.d Z-par. par •... ............... A~ sand ~ of metal, esp. one h3v1"~ Oil 5q1r.lr'e. rect3ngular. or other Simple cross·sectlon31 sh3pe. 172 ............... --. '1"-'-'--'" structural tu~ing : . Ahollow structural steel shape of sq~re, rectangular, or circular cross section.. It Is designated Py the preftx TS followed Py the sIk dimensions or diameter and ~ W3n thickness. $tandard pipe Astructural steel pipe of stand3rd weight and W311 thickness. designated 3S Plpe (nomlnallnsk:le diameter) Std. extra-,trong pipe Astructural steel pipe havl~ IncreaseJ W3H thickness for greater stre"!lth, deslgl13kd as PIpe (nomll13IInside diameter) X-Strong. double-extn-strong pipe Astructural steel pipe havfng awall thlcl:ness greater than that of extra- , . strong pI~. designated as Plpe (nomlll4l O Inside diameter) xx-Strong. -_.-.-. ~urralent round The dlameterof acIrcle having II . . clrcumfcrenu equal to the perimeter of a nonclrcular tube. /~~~~~~~'~~~ r:.fbt sheet or piece of metal esp. 1"'~~~~~~~~ oneofuntformthlckness. ~~~~~~~~~.-- checkered piau ~ ~ ~ ~ ~ ~ ~ ~ Asteel or cast-Iron plate havfng a ~. ~ 6( ... j( ~ ~~ ~ j( i:l waffleUke pattern. &heetmetal Meblln thin sheets or plates. use.d III the manufacture of ductwori::, flashing. and roofl~_ ·····co~metal Sheet metal drawn or rolled IrTto paral~1 ridges a!1dfurrows for addltlol13l mechanical strength. . - ' . ....-. -. ~~~::~andstretcheJlnto3 '~ stiff, open meSh or lattice, used esp. as _~____ Iath_ WickpLrt.e . . - CoId-roIIed sheet steel Defore plckll~ or - cle3nlng. use.d for coating with zinc. tln, orterne mruL ;_..--_._-- PU96 "¥.~ Arrycfvarlousst.arll:brdsfor~~ /1' the thld:ness or d13meterofathin oVject.as theth!d:ness of sheet metal or the dlamet.erof awire or Wtw. Also, flee- ....-. wi~ P&I96 A~U9c' cahmteJ for aetermlnlng the dlameterof wire or thickness of sheet metal conslstlng ofasteel plate with .a seNsof standara-slmd notches .aroond the~. wi~ cloth Afa!nic of woven metallic wire, used In SCIUl1S. sieves, or the like. hardware cloth Agalvanized stull'llre cloth with a mesh uetw~n 0.25 and 0.50 In. (6.4 to t2.7mm). - , ~ ~ . n . . _ • • • ' ~:~:mDerof openln~sper Inch In wire ~. -- cloth. wire rope Aheavy rope made of or cont3lnlng wire strands twisted around acentral core. lJ u u u lJ·
  • 173.
    fUnge Abro3d ridge orpalrof ridges projectl~ at anghtllrI!Jldrom t!Ie~ ofa structural sha~ In order to strengthen or stiffen It. - ....-.-. --...-............. --. --"; web An I~ral part ofa~m that forms a flat, rigid connection ~een two broader. parallel parts. 3S the fl3n~es of a structural shape. ~-- )-beam Arolled or ~ruded metal beam havlrI!J across section resemUlln~ the cap~..4lletter I. -···-····f·~--··--·-·--· J METAL ,tructur..r,tee! Stul that Is hot-railed orcckHormed In avariety ofstandard shapes ant.! fabrlGated for use asload-~rlng memrers arelem""ts. 5t-eell1eam Abeam conslstln~ ofaSingle or built- up structural steel sect1on. ..-...., "pen-websteeIJoist . AlightWeight, fal:nic3ted steelJalst h3vlng an open weU. A!I.-Serfesjoist has awel1ccnslstlng of3 single rent lr.lr, runnIng Inazl!JZ3~ pattern !letween the upperand lowerchords. lH- and DLH-Serlesjalsts have heavier wel1 ant.! chord meml1ers far Increased s:.Ij" ~"ndSl"n~AIsc,,11ed ~..joist- .....• jol5tglraer . Atrussed girderfor supporting open- ~ZSAs:ZS:ZS:Z cover pLate •..-...,.-...--.....-.....-.........._-., Aplate fastened to thcflJnges of a plate girder to lllCre3~ Its section modulus In areas su~ to hlgh-!lendlngstresses. fUng<:i.a~1e •... -........-..... -..........-.. -... weu steelJoists. . Oneof the lIrl!Jles fonnlng the top or rouom flarI¥ ofapI;rte girder. r··--··-·--------· .--.-.. pIaU girder wupLtte ----.-....-..-..-...-...-..... Asteei pl.1te forml~ the web of a plate ~!rder. ~rp!.1te Apt.te f.tst.ened to the we~ of a plate ~lnkr to Ir.cre<l5e Its resistance to shQrl"!j strtsses. &tifftnet' I· I I ... Oneoh palrofv~langles fastenea to each slde of II we~ p~ to sttffen It against buckllrI!J. ..- ~ri~ 5tlffeMr I I Astlffe:-.erlingle for the we!1 ofaplate girder. pl-oMJ at apoirrt of support ar underII c.:-runtrited Io3.d. Intermediate ~jffener Astiffe:-.et" .ngle for ~ weI? of'lI p~te girder, ~ ~etween re.arlng stiffeners for lncre4 ~ reslst3rIU to dI3~0I131 compreSS:ve stresses. WVVVVVVVVJ -··O'O--O··O·O-O-'O-·Oi Asteel9lrder buIlt up from pL1tes or shapes thllt are wek:/ed orriveted ~ether.. I70xglrder Asteel beam i1utlt up from shapes and havln~ ahollow. rectangular cross. section. ...,. c.astellrted I7eam Asteel beam fa!1rk;ated by dividing the weU ofa wide-flange section with a lengthwise zlgza~ cut, then weldln~ Path halves together at the peaks, thus Increasing Its depth without Increasing Its weIght. 173
  • 174.
    MOISTURE PROTECTION jojnt~lnt ArTYofvarious vl5ccussu17stances Injected Into J buildingjoint. curing toform a flexll:lle I113terUl ~t adheres to the surrounding surmes ana seals theJoint 3g3lnst the 1'a5539" ofair and water. joint movement ...--------.------------:------- The change In Width ofaI:IuIIdlng joint resultll14 from achange In tempmturc:_ exUnsi1n1ity ~------------------.---------------- -------------------+-1- ~~~ofasealanttol1eextendedln ~<I':~,..,. ...,..,.......~: ~%~:~~~~UilJe.I"~re<ha"'. . , ~ or s111canecapa7leofelongations up to 251, used for sealingjoints In curtain-wail systems. mtdium-r.l"¥ sealJnt Ajoint Se3lant of I:Iutyl rul:l!?er or aCl)'lIc capaUle ofelong3t1ons up to 101, u~ for sealing nonworkllig or rneGhanlc3lly osteneajoints. caulk A Iow-rangejoint sealant used for filling or closing aSe3n1.crevice orcraaIn order to make It ~ht and airtight. Also, cauru~_ ~ ~...... . ~ ..----------------------------------------------- ------·_-----------1 An.a1TOW deposit of sealantapplied to a i !:nJ1!dln~ joInt_ bond fXlI 0---- ----------- .--.--..-.-------- ----- ---j ----.----- The surfx.eoh l:Iulldlng componentorjoint I thzt se:ves2S asu!1stratefor a5e21aITt I and to which the sealant Is llonka. ! I ~U~ ! Arry nuteltill that underl1es and serves as 3 i?ase orfoundatlon_ II ~ ~ker 0-- - - - - - - - - - - - - - --- ----------~ 'i1I"fofvarious materials. as polyethylene ~, ~p".uS«!f", prev.ntl~th, adhesion ofa ~.' ~lant to the l:Iottom of ajoint. 78 ,,!:':~':'-~ '~::::':'~::-:~:'::'. - '- - <, !'.' . .: .. '", :..~.': ....... ~ ...: constructtonjoint AJolnt !?etween two successive placetUnts of concrete. often k~ oraoweled to prorlde lateral sta!?1I1ty across theJoInt- ....--------------..-.--- waul'5u,p A&xl!?le strip of rul7t1er orplastic InStrtea across aconcrete ormasonry Joint to prevent the passage of water_ exp.ansionjoint AJoint !?etween two parts of.a l:Iultalng orstructure permitting thermal or moisture expansion to occur without da~9" to elther part. Exp2nslon Joints aIso serve aslscbtlonjoints and controlJoints- .--. ----.--..--..----. exp.ansionjoint cover Apref2IuiC41tec.i cover for protecting an expansionJoint while allowing relative move~nt !1etween the two parts I1eIng connected_ contro/joint Acontlnuous groove or separation formed. 53wed. or tooled In aconcrete or masonry structure to form aplane ofwe3kness and thus regulate the location and amcuntofcraalng resulting from drying shrlnbge or thermal stresses. contr.lcttonjoint AjoInt l:Ietween two parts of a structure, designed tocompensate for the contr3ctlon of either part. r' ---.--..---.--. --..--.------.- IsolationJoint , AJornt separatrng two sectIons ofa structure SO that differential movement or ~tftrnent can occur !?etw~n the parts_ ~ - .< t [ l 1 I d I d U I J J J J I I u U U U U U II Ir 1. .. f I I"
  • 175.
    r I ."!,. ~c~~~~~-~';~I;~~'I~i""'1 F~==============:;::;;:;:;;:':;:;:;:;;:;;;:;;;;:;;;; .r'O carniu iThe uppermostmemverofa cornu. usuallyacyma recta. cal'01.3 - -............--...---------~ ~~;;;::;;;::::;;~~~;=;;~......, _: classical ental1l3ture, conslstl~ typically of acymatlum, corona. and l1ed molding. The proj~~ sI.aDJike memverof a c135Slcal cornice. supported Vy the Ped molJil1<j and crowned by the cymatlum. Ped moldi~ - ..-._.._ ...--..---._.-.- The 1r(Jldlng (X ~roup of moldings Imme.d13te1y ~th the coron3 of3 cornu. calumni.1tict1 The use oramngement of columns In astructure. disty~ ....---_....- H3vtng two columns on one or~ch front. tri5tyle H3v!ftg three columns on oneor e3ch frant. tet.-astyte H.;'rii1.j four columns on one oreach fron"t.- ... p~nta,tyle H3v!i1.j flve coIuR1ns on one Of each froat. hexH~ ~.nir~ six colurIns on 011e Ofe3ch front. - ......_ ....- ..---.-.- ··.-_...-·--r heptJ5tyle H30r.g seven c.olumns on O!'e oreach front. oct.astyk H.'';~ ~ht cciumns on ~ oreitherfront. e~ Havir.g nine columns on one oron e3Ch front. Also. enne.astyf.ar. kca5tyl~ H2v!r~ 10 coIums on cr.e oran e3ch fror1t. dode.c.astyte I-UY!~ t2 coIums on one oreither front. Alsa.~r. du~styte. Int.ercolumnUticn Tl'Ie Sp3U ~ two adj3cent columns. U$lUI'.fthe clear space ~n the lower part~ of the sh3fts. me3s!M"ed In diameters. Alsa.3 system for spacing columns In 3 coIonn3Je 11ase.don thlsmeasure~. ~_. __... ___.,.. _ ....... _ .._._._ .. _ ......_. ...• frieze The horizontal part of aclassical entavlature vetween the cornice and archItrave, often decorated with sculpture In low relief. Larchitrave l The lowermost dIvision of 3 -----f&--~ c13ss1cal ental1l3ture. restlng ~ directly on the column c3pltals i and supportIng thefrleze. L capital The distInctively treated upper end ofacolumn. pillar, orpier, crownll19 the shaft and taking the weight of the entavl3ture or architrave. -- shaft The central partofacolumn or pier between the capita! and the I1ase. . ,- pase ! The lowermost portion of awall. ; coIumn. pier. orother : structure. uSU311y distinctively ~~==~'::::{:#~___~: tr~te4 and c~nsldered as an .J architectural unit. ~~~~~~~~?-~=J:....cornfceorC3p ._ dado The part of apedestal between the base and the comice or cap. Also called die. !"' b3semoldIng ~ plinth ---e~ ..i !The usually square slab I1eneath J #~=;:;;::;:::~**~ --t.Jthe base ofa column. pier. or ""'-'-'~~-~'-'-----'---'-'-" --t- pedestal. . .......• ~IUmnlation ,/...../_. of 1'12diameters. ~::(.--.....):~...- .......•:..:. .::::•....•::::(...-..::/.~..•...-. systyle Having an Intercolumnlatlon of two dIameters. eu't~ Having an Intercolumnlatlon of 2'/4 diameters. diasty~ Having an Intercolumnlatlon of three diameters. ·;·afi~~ .. Having ~;; ihtircolumnlatlon of four diameters. Also. areostyle. Arly of five styles of classiC31 architecture characterized l7y the type anaarrangement ofcalumns and entablatures employed, as the Doric, Ionic, Corinthian,"Tuscan, and Composite orders. ental7lature The horizontal section of acl3ss1cal order that rests on the columns. usually composed of acornice. frieze. 3nd architrave. column A0ilndrlcal support In russbl architecture. conslstlng of acapital. shaft. and usually aI1ase. either monolithic or built up of drums the full diameter of the sh3ft. ptdestal Aconstructlcn upon which acolumn. statue. memortal sh3ft. orUle fie. Is elmted. usu311y conslst1~ ofa . comlce orcap. adado. and aboise. i ~ '!F I I I ""'- .i- 1 I I accouplement The placement of two columns or pilasters very close together. 179
  • 176.
    ORDER Dorlccrder Theo'Jest~nd simplest ofthe five ci3sslcal orders;&c,.oe1opeJ In Greece In the 7th un~ S.c.;and bterImitated by the ~ch4I'3~ ~a ftutedcolumn having no u.se. aplain cushion-shaped ~pltal5U~ oil squareaPacUs. and an ent.Vlrntrtconsisting ofaplain architrave. oil frlezeoftrlglyphs and naopes. and a cornice. the corona of which h3smutules on Its sofflt.ln the Roman DorIc order. the columns a~ more slenderand usually have Pases. the channe!1ng Is ~rnes altered oromlttd and the caplt.f consists ofa Pandllke ~Ing. an echlnus. and amolded a~acus. . ~ J~ "-.:: .11 I>'A; ~. , 10 0 0 0 0 0 q 0 0 ci 0 0 0 0 0 a lOoOOOC rvooooc oooooe 000000 000000 000000 .~ ! : : I EO OO bOO o· 000 ~.: . ..-'-.- J ..-.soffit The underside ofan archltecWral element. as an arch. beam.cornice. or staircase. .......-. gutta _ One ofaseries of small droplil:e ornaments. attached to the undersides of the mutules and regulae of aDoric entaplature. Also called drop. ~ ........-.,.................-.,.-.-. mutule ~--------------------~ I : Apro.Jectlng flat l7lock under theCOrona ofaDoric cornice. corresponding to the rnodllllon of other orders. =~v!iE:~~ii:~;--i I two vertic.llgrooves or glyphs on Its face. ~tr'?""~~~~~;;~:J~~~~~~~~}J =::::~:_~:~h"'~"____l:~~~_:::::_ .1-_. Anyofthepanels. either plain or &ec.orar.ea. retween ~lyphs In the Doric frlez.e.1Jsc called /ntertrig/yph. taenia ~ .....--.---.....------.-.-.-.-.-...... , . .......... zophoru$ I I Afrieze pearing carveaflgures cf people or animals. Also. zoophorus. Araised !rand orMet separatln9 the ~ ..............'- frleufrom the 3rcnltraveon a Doric .......-_.... - -.l:;;~::;u::;::::;;:: w:;:;:::;uu::;::::;:r u------"!::::J:;::;:::;u::;u::;:::::;;Ju! ent.Plature.Also. W1Ca. i regub _____.._ ........__..._ ..____.__..._.J AfUIa ~th the ~nla In aDoric entaPlature.corresponJing to atrlglyph ~~ and from which guttae a~ suspenk.d. Also carled futtae Vand. ..l1acU5 - ...-..---.-.-.....-.----...-.--..-...-..........-... I Theflatsl.aUforml1l.3 tnetop of acolumn Coilpital. plain In the DorIc style, ~ut mok:ied ;-......-..,.-..-.~~~~~~~~;:") orotherwise enrlchea In other s t y l e s . . ecl1fnu, .....--.--.-.--.--.....-- ...--..........j r·~::.--=-::·~····~~: ! I ~~~ofcOlrcularmold r IngSuPJ'Oltrtllng 1,:, II vnc; av~ a orlc or uscan ~p a. ~;~~~~,~;.i~~:~;fj : I I' 'I I ~:~~::=:">u_uJ II' i "pItol......lto/acolu.... JLl_l. . L trachelium _...•....- ......1 That partof the necking retween the hypotrachellum ar.a the capital of aclassical column. hypotrache/ium _-............i Arry mem~er retween the capital and the shaftof a claSSical column. enU,l$ ....-...-.--...-...-.•-...._- Aslight convexity given to a coIumnto COI'l'tCtan optbl lIlustcn ofcoricavlty Ifthe sk:les were straight. drum Arryofseveral cylindrical stones laid one above 'the other to form acolumn or pier. 1 flutlng ~"""'--"'-""'--"""""""-""T--'--'-'--"'" - A~ motifconsisting of aseries: ~...--I.-.L---L-_...I..---L_~bJ-_ _ _---. of long. rounded. paralief !f'OOVes. as on 1 ~ the shaftofaclassical column. ,-.-.---•.-...- . flute Arounded ch..nnel or groove. Also called stria. 180 ( f Tu~norder Ac~slcal orderof Roman origin. Pask411y oil slmpllflea Rom3n Doric charxUrIze.d byan unflutea column and aplain Pase. capital. and entaulatur~ having no decoration other than mok:IJngs. J 1 l l J j L u
  • 177.
    I r 1 • Com~iU order Ionicorder egg and dart ~-..-.-......-..--............ ~~~~~~~~~~~~~1J6l~.C/ An ornamental motlf for enriching an ovalo [ I D Acl3sslcal order that tb-ek:Jped In th~ Greek colonies ofAsl3 Mln« In the 6th century B.C.. characteriuJ esp. by the spiral volutes of Its capital The fluteJ columns typically had moI.:led b3ses and supported an entabl3ture consIsting ofan architrave of three fascias. a.richly . ornamented frieze. and acornice ~led out on egg-and-dart and dentll rndJIngs. Roman and Renaissance examples are often more elaborate, ana uSU311y set the VQiutes of the capitals 45°to tke architrave. or echlnus. cansls~ng ofacbsely set, ~~-4-~'-~'-~""~i-~.~~"-~I.....I~W~~p~ alternating serits ofoval and pointed ~ forms. Also C311ed egg anatongue. dentl1 ___...._.__._._._.._._....._...;.......J Any of aseries ofclosely Sp3ced. sm3ll : rectangul3r blocks forml"l! amolding or projecting ~ne;;th the caron3S ofionic, Corlnthl3n, and Composite cornices. r-t r--···-····- volute fasci41 ---.----..•-...-.....- ...•-•...:.~~!-i---------,----J:/ Asplral,scroll-Ilkeomament.asonthe One of the three horizont31 Dands making L..; . f / capitals ofthe Ionic. Corinthian, and up the archltr3ve In the ionic order. . . / Composite orders. AtticPa~ Atta5e to 3ctaSslc.11 colurr.n, conslstlr~ of an upper and alower toruS separated ~ ascati3 l>etween two fjilets. ~ .---_._.._-_........_"'" Adeepconcave molding ret~n two ......,.... r@SJJ.~JT-JJt:iI ~~) ~...-.--.-.•..- ....~~:~Igulclellne through t~~teofa ~ I·:#'. volute In an Ionic capita!, from which the ; I i spira! form 15 determined. "tHl"*"I!---··--..---..······~ echinus -..-- The clrcul3r moldlJ1g under the cushion of an Ionic capltall:>etw6e11 the volutes. usually carved with an ~·and-d:a~ pattern. Also called cyrnatium. ·······-········fillet A n3rrow part of the surface of acc~umn left between adjoining flutes. /'-•.•....-...-...........- apophyge fillets. Also C3l1ed trochnus. ..........•. <' ) Asmall. concave curvejoining the sh4ft of aclassical column toIts base. Also called apophysIs. ~MlS ._.-.........--•••••.• _-... --......- ••• Alarge convex. semicircular motdlng. comrr.cnlyfound directly aDove the pilRth of the ttase ofacbsslc3l coUJmn. . I Y ~ ) l ~~~mm~~~~~~/ , :s,n;.u;;;;;:;;I:;Z===~~;:;;;j';F=~~;:;::;jZl==.~1WJ:;;:LL:::jj.Jl.F&:r~:;;;:i.---- ..• modillien ..,. • An om3mental uracl:et, usu311y In U-.e form "" J JLll Yo' f 1l1' " r n.T 1 of ascroll with acanthus, used In ~ Peneath the corort3 ofaCorlnthi3n, Composite, or Roman Ionic cornice. 1 ...... helix I .//.. Aspiral ornament. as arry ofthe vOOItes -----:~~~~§"W~~~~J.~~ Issuing from aC3ullculus In aCorlrr!:h~n .v~ -u ,// C3~1t31. c ~/ifW!t.~. _.-.....- ..-... ~ullculu' ;kI~I~.~i;~~:i~~~ii~·~~:···· ..'..~.~tl;' --- =~~£~~;~~:I.... ,.." .~ .'1 I A 1 11 Sprln9·Alsocalledcaulcoie. acanthus _.................................../ Corlnthi2n order One of the flve classical orders. popular esp. since the ~glnnlng of the Renaissance but Invented ~ the ancient Romans. In which the CorInthl;n order Is modl&d ~ supulmposlng four diagonally set Ionic volutes on a~ll of Corinthian 30nthus leaves. An OI'T13ment, as on the Corlnthi3n capital, patterned aftu the I..rge. toothea leaves ofaMediterranean plant of the same name. The most ornate of the flve cl3sslcal orders. devek:Jped by the Gree~s In the 4th century B.C. ~ut used more extensively In Roman architecture, slmll3r In most respects to the Ionic ~ut usuallyof slenderer proportions and characterized esp. bya detp bell·shaped capital decorated with acanthus Ie3vesand an al1acus IIf"...h concave sides. 181
  • 178.
    ORNAMENT gl'2ffiti ~ or anwlngsspray'palnted or 011 • f'JP/Ic sumce. 35 aslaewa11: CK lII'4§ ofaWilding. ~~ ~ produced ~ cutting or ~ through 3 sum", layerofpaint or ~ to I'M'4la ~rouna ofcontrasUng ccIcr. ------------_.-.-.-••••.•._.. tt'IOSJic A~ure CK ~tlve p.ttern made l1y Inby1ng SI1aI. ~11y colored pltGes of tile. ~rrd. crgUssln mortar. ~sen -'--'-................_........ Ord cI~ SoTIiI ~ ofcolored In3rVle. ~ (X~ use.d In ~Ic wort. ~ Cciored #ass cr enamel. esp.ln theform of Inlnt.rte squ.res. used In mesaIe won:.. rd"tef ~ ~ of. ~ure orform from the Ibt ~rJ on which ~ Is formeO. ClVo-rdievo ...........................·......-..·...·..I .. '··--:~ Sculp'tn ~ In which the highest points i of ~ n::deied fOl"lTlS are PeIowor livel wtth ~ ~ SlJrf'3a. AlsocafIeJ sunk relief. a~ ......_- ....................._ .....................- ..-, Sculpta-al re:Ilef In which the modeled forms L. project froIn the ~round byat least h3lf;hefr~ Also caRed high relief. ~ ~~~Petweenhlgh r:WaM ~. Also calleJdemfrellef. Ulfrdief. ~ ..-.................~........................, ScIl~1 reI1d tit.7t projects very slightly . from ~ oo~. Also C311ed basso· rd£evo.1cw r&d. ~Iypft An ~lI"C1t C3r1l:J oremrossed In low ~d. 182 munl Alarge picture p;;ln~d on or .pplled dlrectly to aWJfI orcemn~ surface. fresco The.rt or technique of palnUn~ on a freshly spre3d, moist plaster sUrUce wtth ~ments ~round up In water or a hmew.ter mIxture. Also. apicture 01' design so painted. _... opus seetile Any mosaic of r~ utarly cut mateml opus Alexanarlnum Aform ofopus seetHe having a geornetn:; pattern formed with few colors. as plac~ and white. ord3ri:: green ana red. op~ vennlcut.um Amosaic oftes~ arranged In W4Vfng nnesreseml1/Jng ~ form or tracls of a worm. FIo~ne mo,aic Amosaic madel:>-t Inlayln~ fine. dellcately colored 5toneslnto a white or ~acl: marVle s!Jrf3ce. ..:................... applkt~ Adecomlon orormment ma~ by cuttIng outa design ana fastening It t.o alar~er pleceof rn.T'..erl31. Inlay Todecorm I7y ~ pieces of wood. ivory. or the 11:"Irrto" surface. USU4r1y at the s.a~ level. TI :;r......._ ....................~:!~;~mekl.orC3r1e.sUrfau 1 design In relief. . !J ] -:l.i--.... engrave Tocarve; cut. aretch designs on ahard I J 5urfau. as of rnet.i!. stone. or the end ~ grain of 1YOOd. Intaglio Aflgure ordesign Ir.::lsed Into the surfar.e of astone or metal plate so thatan Impression yields afigure In relief. openwork Omamental orstroctural Work having a tattlcelJU nature or showing openln~s through Its substance. 'tr.:/---..·· fjllgru ~S. Omament31 openwori:: of dellca~ or ~~ Intricate ~slgn. ~Iso. fflagree. L L [1 J 1 J I l l f L f i L
  • 179.
    ·"[ '1;' ~,' pa~he An artlstJccomposltlon consistlng of forms or motifs Porrowed from different sources. ~counterfeit. or false. as an archttectunl orrurnent that is added superlluousJyorInaPPraprlately. ~r Acormrrtlort31 figure uSU311y having flve or mort: po1nts r.Jdbtlng from acenter. often used as a" ornament 3nd symPol SUrofD3vY Ahex;a;r:am used as asyml70l ofJudaism. Also C4Bed M.1¥n David. Mogen Davk:f. ---..... hex3gnm Aslx-pomted stJrIll:e ftgure. formed by ~ /:Uhof~ sides of a regular hex3~ lntoequil3teJ"31 tri3ngles. glol')' A rl~ clrcle. orsurroundlng J"3dIance of 'llght,2s;J h31a. nimPtJ5, or aureole. * ~Ic ----......-.............................r.==t---=:::::::,..__ Adisk Of" ring of raa'bnt Itght arouna or aboYc the ~ tradtlonally symDollzlng tM ~ ofadivine or sacred personage In ~1:lilS p;llnttngs and sculptures. Also cafbf c1m!nJS. aureo~ Aclrce of tight or rad13nce SUf"I"O(Jndlng the h~ or Dody In Pie representatlofl of a 5W'ed p5OfIJ¥. v~~pbci5 An eIltpt!cJl EX'lnW figure used esp.ln t3riy Christian art 35 an em17lem of Christ. Also C411d nunJorU. --.-..--.....- ..... . Chl~Rho AChrlstbn ~r3m ,lnd syml701 formed !1y supaimposl~ the first two letters of the Gre.e!: word for Christ. Also C31!ed chri$l'TC!. -.---.-...-.....- .....-.-. ~Ine AralseJ orsuurectangular panel on a wall ~ tre;rted or ornamented wtth lnsaiptlons. ~lnUng. or sculpture. _..... tablet Aflat stab or ptaque h.1vlng asurface QL-_____---' 0 sulta~ for or ~rlng an InSCription. 0 r----------j 0 ;;:::""'b'~t,~nG t>earing afigure orom3ment In rellef.~- ''; 0 / cartolJCne , ) An anI 01" 00i0ng. sl~htly convex surface. u!XIally surrotJlIdea with ornamental scrol~. for rec.civ1ng a palnud or low· relief dea>ntlon. AI.$.J. C3rtouch.• "-' grotesq.ue Adecorative style char3ctetized I1y the fantastic ~hap~ng and comblnln!J of Incongruous human and animal forms with foliage or similar~ures. often distorting the natuJ"31 Into caricature oral1surdlty. :[,;::~.~~~....- ....ntic Agrotesque sculf1ture ofanimal. human. or foliated fOfms. as a gargoyle. _...... mask An often grotesque representatlon ofa head orfau. used as an architectural ornament. Alsocalfed mascaron. . SE;~~~.--..... griffin A mythological animal typically having the head and wings ofan eagle and the ~ody and tail of a lion. AlsO. griffon. gryphon. r······.. griffe / An ornament projecting from the round ; base ofacolumn toward acorner ofa square or polygonal plinth. Also,called spur. pallflower A medieval Engnsh ornament suggesting a flowerofthruorfour petals enclosing and partlallyconceanng a 17311. cross An object Of figure consisting essentlally cf an upright aotd atransverse p~ at right angles to each another: often ~ as a symbol ofChristIanity. .. latin cross crossed near the top by ashorter horizontal bar. ....-..- .....--.-.._-..-..- Celtlc cross Across shaped flke a13Un cross and having + :n~n~,.:~~~e IntersecUon of the shaft . .-.-....- GreekcroS5 Across conSisting of an upright crossed In O the mk:!dle by ahorizontal of the same o 0 ._...____..._.__.._~:~:·alemcross O ,...n, Across whose four arms each termlrt3t.e In V a crossb3r. often with asmall Greek cross Across formee having the outer f3ce of each arm indented In 3Y. cross formee ~ _.___......~ ::::1::::qU3dmt. Across haVing arms of equal length. each expanding outward from the center. 183
  • 180.
    ORNAMENT motif A~tMs ana l"Uurrlngshape. form. orcobrIn adesign. cMcter ------.---.------.------------.---- To INrt ordt:tor2te with asquared pattern. i-etlcuLtte --------..------------------ --~ ;:~;;::;-:----.'~~~ con~ng orgrowln~ out ofone ' , . al'lOther. 0I'"IgIn31ly used In the Middle ~:=~~a~-gOI~-nn--nnm..---~, ", ' " ! , ' : - A~orde~nresemullngU1e ' . . . .: regularOYerlapplng of ules orshlngles.- . . , herril19bone -----~----. ------------ _ ..--..---- ApattMI consisting of rows ofshort. paral1elllnes which In any two adjacent rows slant In opposItedlrectlons, used In masonry. parquetry. and weaving. chevron ~----------.--------------.--..--.-!H(-r~~ Av-shapeapattern used In heraldry ana as ~tIon. da~ ~--.--------------.----------.j An ornamental zf4zag. as In"a molding. fret .----------------.---.-----------.----.---- - =il A~ design contalneJ within a InndorParder, ccnslstlng of repeated. often geometric figures. Also calied Uy patUrft. murtdet- .--. ---------------------.--.-.. Arunntng Of113l'T1tf1t consisting of an Intrlc4i'te varietyof fret or fretwork. Venetian derrtl1 •.___.__ .___._______._______._.: _I--.IP""-....,.~..6Al__..__._...iI........_ AnyofasenesofsnuH rectangutar PIocks aftMmlng with sloping surfaces on an ~ or moratrtg. . 5Cr011 An ornamenthavl"9a spiral or convofut.eaform resemuUng a partlyor Ioosdy rolled parchment. V1ttvvbn &Croll ---'-"'--' -----.-.. -...---- A~ ofscrolls forming a stylized . =~pa~~~caneaVftruvfan I.'.....'~ ~~:;::;,~;J~~~;ii~;~u-n-----i-u~;c:~ riuron orscroll.adapt.ed to receive an Insc'i'tlon. Also. vandtrol. l7androle. 5trapwort _._..._ .. _._ ... ______ .. ____ .___ ... _lI'•••II" ..... Ornarnent4tlon composed offolded. crossed. and Inurlacea uands. sometlmescut with foliations. 184 folima Ornamented with foils or representatlons of foli3ge. Also. folL1te. ....-..- wruth Adecorative Pana or garland offlowers. foli~e. or otherornaIt'.ental materiaL ----.. --· ....·.ro~ An omament having a generally clrcular com~lnatlonof parts reseml7llng aflower or plant. Also. rose. ~ ' .' ~~" ~~ dogtcoth ~;. ~. ~ Any ofa.series of closely spaced. pyramidal . . ' ~ om.aments. fonned ~ sculptured leaves rad11tlng from ara!seJ center. used esp. In ::::- e3r1y English Gothic architecture. .., ~r2p~ue Acomplex and ommdesign that employs flowers. foltage. anasometimes anllNl ana ~ ~ures to produce an In~ pattern of Interlaud 1Int:S. ~~=:;~;;:;:::~;:::;~riL~ Wllf5-tcngue Arno!dIn~ having pendJnt. ~uern:e elements carveJ In rellef against aflat or I curvea surface. ~~... ~IIOp Anyofaseries ofcurved projections forming an ornamental ~order. :._"'_'_____'.,. purfle - .... To deco~te ashrine or tal;!ernacle with I miniaturearchltutural forms Soas to produce a lacy effect. I I i l l L L L L L
  • 181.
    arrls - ...................--.--..-- ..-..-'. AshJrp ~e or rtJqe fanned Py two ..... surfues meetln~ at ~n exkrior angle. . Also called rend.. pullnose spl3y - ....-.--..--.-..--. ---.- ..-- .. Asurface that I!13~S an oblique angle with another. ~:;~:.~~i:=i";;~·~····:::! areas. Also called list. pillet Any of aseries ofclosely spaced cyl1ndrlcal forms omamentlng a ~ hollow mold1~ orcornice. -.---..--.----- ccve - .....-..-.--......--.---..--..-......- .....~ ACOfIC3Ve surface or molding. esp. at L..._ ...._ ._...... the tnnsltlon from W3H to uillng. C3Vetto •. --- ........... -- ........... -.......... Aconcave molding havi~ anoutline that approximates aquarte-:"circle. conge AconC3Ve moIdlng having the farm of a quadrant curvlri'away from agiven surface and terminating perpendicular to afillet parallel to that surface. Also. COf9u. ~"- ---.........-.....''''-' ........................- ...........- .. 09u Amolding having aprofole of adouble CUrie In the shape of an elongated 5. Alsa called gull......." ..................... cym.1 Aprojecting moIdlng having the profile of adouVte curve formed by the union of aconvex line and , concave nne. cyma recta .......................... ACYm.1 h3vl~ the conC4ve part projectln~ ~ the convex part. Also called DoriG cynu. cymJl rt:YeN.1I _ .. - ... - ................... _. Acyma having the convex part projecting ~ thewr.c.3ve part. Also called ~ cynu. mk .......-....._..._ .......................... Asmall pendant molding forming adrip and casting adeep shadow. as on the soffit of:. cornice. Also called bird's l1eak. prace mo'di~ .............................. Aprojecting moIdlng having aprofile formed by two Q¥eS symmetrically disposed about an ,uris or fillet. Also called keel. profile molding An outline of an objeGtformed 0f1 avertlGal plane passed through the ol?jectat right angles to one of Its prinCipal horizontal dimensions. -"1 Any ofvarious feng. narrow.ornamental surfaces with uniform cross sections and a profile shaped to produce modulations of light. shade. and shadow. Almost all moldings deriveat !east In partfrom wood prototypes. as th~ In claSSical architecture. or stone prototypes. as th~ In Gothic architecture. Byextension. the term nowrefers to aslender strip ofwood or other material having such asurface and used for ornamentation and finishing: Also. meld. mOtJldlng. ~ Iulfround Amolding having asemlGlrcular cross section. --.-- ..-- 'llJ.1rter round Aconvex molding whose section Is a,U3rter chrcle. ..-. ovow Aconvex molding having aprofile approxlmatlng a'tuarter section ofacircle or ellipse. -.......- PolUI Aconvex. rour.ded molding. Also. 17outel. Powtet -'- g3droon . .- . .- Acanvex molding elaboratelycarvedwfth rudlng or lnaented with notches. Also. ~ §Odrocn. ~ - ...- ~ron',rod Aconvex molding having pointed leaves or scroU)¥art ~rg!ng at regular Intervals. - - ..._. c.aulemokli~ Awnvex molding having the form of jl rope. . ~L....'" ~~IIconvex molding usually having 3 continuous cynndrlGal surface. : "<' . '. . . :/ Asmall conv~ moialng usually semicircular . ..... .' In sectlon. ~ ..-....- 2SU2g3J '::-;" ."'~ . u3gUetU . Asmall convex molding of semicircular . section. smaller thanan astraga!. Also. 1;12~uet. ~-"·-~.a2naraf Aconvex molding having theform ofdls1:s . a~ating wtth spherical or elongated beads. ~-.... ~rlmolding ~ Amolding having theformofa row of pe3r!s or pe3ds. Also called lIead molding. PaumosUr. ..-....- reeding Aparallel set of small convex moldings for ornamenting 3 plane orCUried surface. 185
  • 182.
    C;>RNAMENT trim The flnished woodwcrlorthe lit used to ~ rordtr, orprotta the edgesof openln4s orsumces. cornice -----.-.-:~ ......-....-.-..-....- A~s, molded ~n that crowns awanorotherconstructlon. or divides ~ norlzontafly for compositional purposes. p~ meld •.........- ..-.-................. A ~I molding ~ acel~ from wtrlch ~rtS can be su~nc:bi Also c*d picture rail. pLrteI'3U _ ...•.-._...........•...--...- ........... AraM or ~rrow shelfftxed 3long a 1'1'311 and ~~ to hold platts. esp. for 01"1UIMTt ordisplAy. chlirrail--.--...........- .._................., AhoriwTt3l molding on.1n Interior 1'1'311 .••. 'fo'l"""'"~tMWS of,ha'"from '"" ", ...........• crown molding Any Om.-lmental moldl"4 terminating the top of a structure or kcoratlve feature. ". DO pl~nt To attach or fasten a molding to a surface. kerfing Making aseries of parallel saw cuts partway through the thickness ofa pieceof wood to enaVle the piece to bend toward the kerfea side. ::::, ;;!f--'- ~ratlveI7and, as one along the top ofan Interior waII, Immediately !1e1ow the cornice, or asculpturea one In a st.rln~course on an outside wall i : i DO =",,'mand "~'"gth, "''' ' r DO. .00 r-- r--- ffi I--I--- ~~ JnCtdi~ ,-................._........- .... An ~~III'IOId1"4 3rove the pUnth ofJ~t plfbr.CX'W31l ~rd _ ..-_.._......._-.._..._... AroarJor mcIdI"4 conct;1hng thejol~ ~ an Interlor1r.I".1ndthe ftoor. Also ~~ mopVo.ard. 5kJrt. ~hoe A ~a ~1~ as aqlQrtu round. covering thejoint between abaseroard ~d the ftoor..AJso ca'b:f N se sho~ •...... .......-'.....•.....; broken ptdiment •..."-"" ................... ApecfllrC'!t ~v1ng its rat:1~ cornices it!temJpW at the crown orapex. the ~F often Peing filled wtth an ~m. a ~M. or other ornament. ~rchit.l7ve •............,----....---..--........ A~ crdecoratlve band framlri a rect4"4u13r dooror window openlr14. retw'I The~ of.1 rnoI.::i1"4. projeGt:lon. or other pa~ atan a~ Ie. ~ily ~ to ~ ,",in part. ·--·----1 DO DO 00 DO ......_........_......-} ancon A~L"t or console used In claSSical archlt«t.u ~ to supportacomIceor theentaNtu~ (Net' adootway or window. :ltop Afeatu~ tennln3~ a molding cr charnfet'. ,~-....• plinth ~Iock / Apftnth for stopping the architrave of : adoor or window arove the floor. 186 b ~erlUcle fr~me Aframe 3round adoorway or niche. havl~ two columns orpilasters on a base supporting apediment. plinth Aflat, plain mtmper at the rottom of an archltr:ave. dado. or Da~ard. DO ~ I--- DO ~ i-- DO f-- ,-- DO "-- - - - SWJn·5 ~Ic petIlment AInUen pedimenthaving an 0U'tl1118 fonnea I1ya"..!rof S-Curves ta~ to the horizontal corniceat tM eMs ofthe pediment anarising to apair ofscrolls on eithersIk ofthe center, where afinial often rises between the scrolls. coronet A pedimental ornament wrought In relief over aWindow or door. I; l l l l· L L i j ! I j
  • 183.
    ~:. ~. PAINT 91o~ 1M degreeof 5~ luster of adried paint film. 171~ In ~51ng order of gloss from hlgl! gloss, semigloss. eggshell. to flat. pigment A 1 .>.. Afinely grouna.lnsoluble substance . ~~~t}i::-. suspended In aliquid vehicle toImpart 17inder ::.:<.~..:;.;.~ color ana opacity to apaint. Amixture ofasolid pi~ment suspended in aliquid vehicle, applied as'a thin. usually opaque coating to a 5Umct for protection and decoration. hi9h9~S H3~ al1rlliant shun or luster. tfi2mel Arry p3intorvamfsn drying to avery smooth. hard, usuaOy glossy finish. ~~~ H3Y1ng a I1Oder.1te. satlny luster. prod~ aflnIsh InIdw3J' Detween high ~loss ;3nd ~skell /JS() called sztIn finish. eggshe« HavIng tittlt or no gbss. producing a flnlsh It1Idway ~ semlgloss and flat. fut Without gloss or sheen. The nonvolatile part ofapaint vehicle that ponas particles ofpigment Intoa coheslvefilm d~rlng the drying process. &Olvent The volatile part of apaint vehicle th3t evaporates during the drying process. thinner Avol2tlle liquid usea to dilute paintor varnlsh to the cleslreJ or proper . COf1slstencyfor e35e In application. minerai spirits Avol3tlle alstlll3t1on of petroleum. usea as asolvent and thinner for paints ana varnishes. , turpentine AcaIorIess. volatile all ol7t3lned by dlstllling oleoresin from various conifers colorfast ana useJ as athinner ana solventfor Having cdor that will not fade or run '. i .. paints ana varnishes. Also called 011 of with 'tIi'2Sh1/1§. age. 01' exposure to .."" ! /'. turpentine. spirits ofturpentlM. il9h : esp. 5Un~ht. -., :'~O·.~.:'.-.'.: '" utinlcray ". ..... ". AI"4IJ' of Ii9ht, as ultraViolet. th3t ' " ,...... p~ pI1~lcal effects. as the~ch4~and dlslrrk.gratlon of paint coatings. photocl1emicll Of or perbln~ to the chemical utlon of radlant energy. esp: light. c.over1¥ A~ ofthe are3 over which a galo!1 ofp3int ffU'J be spread ;3ta given thlcknGSS. u$U311y expressed In 5<.1uJr6 feet per~Ilon. hkfi~ power The ability of ap;llotfilm to conceal arry naris. p;mem.or color on the s~ to wfllch It Is applied. Also calted ~~ power. a~lvtpamt A paint or~ s~1311y fOrTTltlbt.ed w!th rust·lnnIDltln9 pigments to pm-entor reduce the corroslOfl of 1"e"..4l sm'aces. Also cal1eJ ~t'1mi~ paint. fjre'r~r~nt paint A paint ~bny formulated with slllcOfle. poly.-llTJi chloride. orother sUP-stJnce to reduct: the flame· spmd of;3 cocrbust$1e material. ~t·~i'brrt paint A paInt ~I!oj fonnul3ted with 51~ reslrts to withstand high tempv;it<Jres palnt'~tem Acomlrlna'tIon ofone or mort: coatll19s ~ for ccmpatllrlllty wfth each ather ana the surface to which they art: ap~led, as wellas suitabilityfor the expected expcsu~ and desired decorative effect. gL1zecoat Athin CC3t oftransparent color applied to enhance thecolcrofapainted surface. m~at Athin. sometimes pi9inentedcoat awlled to afinish C03tto Improve its luster. topcolt The final coat ofpaint applied to asurface. Also called finish C4.1t. undercoat Aprimeror~ate C03t applied to hide tM ccforofthe substrate and Improve aaheslon ofthe topcoat. ground coat Ap~ or basecoat of paint Intended to show through atopcoat. Also callea ,roundcolor. l1a,ecoat Afirst coat ofpaint orother liqUid finish appl1ed to asurface. primer Ar.IseGOat applied to asurface to Improve the adhesion of subsequent coats of paint or varnish. Also called prime coat. &U1er Abasecoat applied to asurface to reduce the a~sorptlon of su~sequent coats of paint orvarnish. or to prevent bleeding ~rough the finish coat. + vehic~ Aliquid In which pigmentIs diSpersed before ~el~ apphed to asurface. to control consistency. adhesIon. gloss. and duralrliity. c:fryl~ oil _______--l.) oil paint Arryofvarlousolt-. organic liquids. Apaint In which the vehicle Is adry!~ oiL as Ilnseecl 011. that ox/alzts ana hardens to form atough elastic film when exposed In athIn l3yer to aIr. alkyd I't'ln _------4) alkyd paint Anyofa group ofsynthetic resins ApaInt In which the vehicle Isan alk)ld resin.. derived from apolyvalent alcohol In reactloo with an organiC acid. usee! ep01:J paint chiefly In adhesJves anapaints. Apaint having an epoxy resin as a i1lnderfor Increased resistance to a~ras1on. corrosion. and chemlca!s. latex --------.....) IaUxpalnt . Awateremulsion of synthetic rul7ber Apaint having alate:-c Innder that or pl3stlc globules ol7t3lned by coalesces as waterevaporates from polymerization and used In paints the emulsion. Also called ruDDer-pase ana adhesives. paint. waur-l7ase paint. dye ------------4) ~toIin Asolu~1e coloring material that Asolution ofttje or suspension of plgmerrt Imparts color by a!1sorptlon. In avehicle. app!1eJ to penetratearJ color. W3ter stain -1 wood surface wtthouto!:>scuril19 the graIn.. Apenetrating 5"..3ln made I7y t-··· penetnti"9 stain dissolving dye In awatervehicle. A staIn that per..etrates awood sumce, leaving avery thin film on the surface. spirit min Apenetrating stain maae I7y dissolving dyeIn an alcohol or spirit mlc~ ~ Astain made I1y dissolving dye or An 011 stain corrt.lnlng plflments c.opable of onmin. J ....pigmented stolin suspending pigment In adryIng 011 or o~5Curing the graIn and texture ofawood 011 varnish vehicle. surface. Also called opa'lue stain. copal _________...!o) varn~h Ahard. lustrous resin ol7t3lned from A!'quid preparation consIsting of aresin various troplc<ll trees. used chiefly In dissolved In an 011 (olt varnish) 01' In makIng varnIshes. alcohol (spirit varnish). that when spread and allowed to dry forms aliard, lustrous. 'par vam~h usually transparent coating. Adura~le. weather·rtSlstant varnish made from dUI7IUle resins and hnseed or tul19 011. Also called nurfne vamlsh. polyuretUne vam~h An exceptionally hard. abraSion· reSistant. anachemlcal·reslstant varnish made from apl3stlc resin of the same name. ~c ---------...!o) shellac Aresinous secretion of the female of Aspirit varnish made I1y dissolving the I3c Insect. used In makIng shellac. purified lac flakes I" denatured alcohol. Also called shellac varnish. Chlne,e lacquer Anatural varnish outalnea from an Asian sumac. used to produce ahighly polished. lustrous surface on wood. Also called Japanese lac,uer. lacquer Any ofvarious clear or colored synthetic coatings conSisting of nItrocellulose or other cellulose derivative dlssolveJ In a solvent that dries by evaporation to form ahigh-gloss film. 187
  • 184.
    PLASTER Acompositfon ofgypsum orlime. W4iW, sand,.and sornet;imes hair or other fWtr. appUed in ap~ form to the surfaces ofwalls orceilings In .a plasticstate andallowed to h3rden and dry. gypsum p~5ter AI7asecoat plaster 1T13~ ofC4 !cir.ea gypsum mixed with S3nd. ~4.2rJ various aaattivesto control :;5 sev,j~.g and wafting 1U3I1tleS. calcined gypsum Gypsum heated to drive off ~()st ofi';s chemically com!7lnea waw. plaster of Paris Calcined gypsum In white. p""'OeryfC17', containing no addltIves to c..:r.t.rol the set.u~a$a u.seforgyp5'i:r! pla~~i. as an addltlve In "me pl3st.tr. 2nd as 3 matertll for makl~ arname:':"tJl casts. three-C03t p~sUr ------------, P;Isterwori:: applle.::f In three sucasslve coats,a scr.atch ccatfollo~ I1ya brown C04t and aflnlsh coat. gauged~ur AflnlsJl coat In plastering. conslstlll!J oflimeputtyto wfllch gaugl~ plaster Is ~ to control the set1:lng time anacou~shrfn~ g.1~lng pbstel' Aspectal!y~round gypsum plasterfor mixing I'I'ftIt Rrne putty. fonnubted to provide c:Ithera'uIcl:-setoraslow- set fora.flnIsh coat ofplaster. ~rdfini5h AftnJs.h ~t of lime ~ and ~n.e·s ~orf3~I~ plaster, troweled toasmoot11. elense finish. lime JXItty Quicklime slaked with sufficient water to fOt'll atj,1ck plI5te. Also caled pb5Urer't pvtty. Keene'5~ Tr3demart for amndOfwhite anhydrous ~um plaster~ prodtasanexceyUonally~ &en~ cract-resl5b~ flnIsh. ~nhy~ Havf~ .. .merofCl)'staBiutlon removed. whltecog Aflnlsh coat of lime putty and white ga~lng pbstel', troweled to a smooth, &ense finish. finish coat Theftnal coat of p!3ster. ~~ eitheras aflnrshed surface C)' n a!r.Isefor decoration. slclmcoat Athin levenng or finish coat;f plaster. veneer~ter ~-.--.-.-..-.-..------......... Aready-mlxed gypsum pbst.erapplled as avery thin. one· or two-co~flnlSh overaveneer I7ast. Also callea thln- coat pta.sttr. acou~1 plaster AIow·~ plastercontatn.ing vermiculite orother porous nuterlal toenhanu Itslll7llJtytoa~50und. 188 gypsum ;.. soft mineral hydrated calcium sulfate. ~ as iI retarkr In portland cement And ~ :'~e mal:1~ ofgypsum plaster. .L1~.15ter Afir.e!y ~ranularfonn of pure ~sum. *~ white and translucent, used for orn31T'.ental oPjects and wort. .. .• two-coat p~5ttr ~~ lIPp!lea In two coats, a lra~t fol1owea !1yaflnlsh COlIt. brown coat Aroug~ ftnts}~ leveling coat of pl.a:sUr. ~ ~ second coat In th~ p!ast.erorthe base C03t In t~ p!ast.erapplied over gyp$iit:1 bth or 1TI35Onry. Also called f.o~ c.aat. Iimepbster AmlxtlJ~ of lime. sand. and sometlmes aflPer. used as a~3secoat plaSkt'. cementtempu The addltlon of portland cement to Orne p/4ster to Improve Its strength and dura!7lltty. ~asecoat Arry plastercoat applied ~efore the finish caat. ~rmhcoat 1Mfirst coat In thru-coat plaster. which Is scrat.ched to provk:le aDetter rond for the second or In-own coat. IurawaD Alr3seroat of ntat gypsum plaster. nutp~ster Agypsum u.sec.oatplaster having no admixture except hairar otherftkr. used for on-the·Job mixing with agg~3tes. wood-fibered pla'ter AI:'IIfI-ml.xedgypsum Insecoat pl3~...er containing coarse ceDu~ fI~ers for gre4W InJIk. strength. anaflre reslst3nee, used nator mixed with ~rJ to obt3ln alr.lsecoat ofsu~r'.or hardness. pond pU5Ur A~um Insecoatplaster containing asma" amountof nme and chemical ~ to Improve ~ bondof succudlng coats f.o &en~. ncnporoos su~ 9Y!"um-perllte plasur A~um ir.lseccatpbstercontaining periJteas an aggl'e9te to reduce Its ~t and l:Ic~se Its therm31 and ftre resistance. gyp5um-vermlcullte pb5ur ,.. ~um baseccatplastercontaining vermiculite as an aggregate to reduce Its weight ana Incre;ase Its thennallina fire resistance. ready-mixed pla~ter Plaster that Is formubted and dry- mIxed !1y the manufacturer. requiring on~ tile addttlon ofwaterat theJoD site. f I I I [ I rr
  • 185.
    renderi09 C03t The firstco;rtof plaster on A Nsonry dAIso C31!eJ rough coat. 5"...~rdasb ._....- ....................+_..+.._...#" .. -1. Awet. rich ..of port13nd cement anasan.d thrown ontoasmooth brick orconc~ surf3Ce and .Itcwed to h3rden to prcrt'IJe a~ for afirst ~t of pbster. key Agrooving orrou.:Jhness appl1e.d to a surf.;c.e to lItprove tts roM with .notr.erSiJrbce. me!di"9 plJ:ster Apl.aster llsc:d In ornamental worl conslstfng offlndy ground gypsum and hydrmJ hire. running nw&d _..._.................... Ash~·~1 tcnplate cut to the deslred~. !lacked With wood. and pUS~;lon.§ l>etween temperary grour.ds or Mes to form 3 plaster rnokfl~ A~ the .ngle ~twU!l awall anaullIr-1- &,0 cartea ~ meld. hoNe The l'I~ support for tr~ sheet· 1"r1et31 tem~ ofarunning maid. pargeti"9 Fine or:'.3fT1e1rtJ1 plasterrrorl:. esp extd.cr p{3sterrlorl: be3r.n~ designs In low relid. Also. parget PLASTER , .._............. 5tue<:O l Acoa~ plaster composedof portlana Of" masonry cement. sand. and hydrated lim~. mixed with water and applied In aplastic state to form a !tard covering for exterior walls. portiand cement stUcc<) Stucco made with masonry cement or with portland cement mixed with less than 50~ by volume of lime. -portland cement-lime stucco Portland cement stucco to which hrr.e. Is added In an amount greater than 50~ by volume to Improve the plasticity of the mix. .Ibarium Astucco used In anc~ times. 1113,u from powdered marble and lime mortar and often pol1shed. intonaco Afinish ccat of plaster made with whfte I113rble dust to reulve afresco.. $C3gliola Plasterwork Imitating granite or marole. sand-flcatfinish Atextured flnlsh ccat of plaster containing sand. leveled and smoothed with a&nf ....• &atfinlsh ,:,•.::.~.;,~:.:::.::.;; ::-':;·,··,.:·~·!~'...i,:·;'.:;':l Afine-textured stucco finish produud by K'.:,::}I.~':.;.::~~.~:::.:~~;;})":::f.:~;..: smoothl~ with aC3rpetor rul:rPer·f.ae&:l float. dau17lng The process of giving awan arough flnlsh by throwing plaster agaInst It. ....... pePpledash An exterior wall finish produced by throwing ana pressing small peb~s Into unset stucco. _..... roughca5t An exterior wall finish composed of a stucco mixed with fine pebVles and dashed. against awall. Also called spaturdash. 189
  • 186.
    p~AmR L1ih Anyofanumber ofsulbb'e surfaces forreceMng pbsterwort as gypsum lath, metal lath, wood lath. masonljl, or brlc~wort. wood IJth •_______.__. _. ______________________...________ i-_- •._- __ -.-..~--::-----....r- pl.1!ter~l'td The ulhe$lon ofpIJster to its Pa5e producea ~ mech..nlc3l or chemical means. metalbtls Aplaster Pasefal1nc.W d exp3Mea metal orofm fabric. palnteJor Athin, ~ITOW strip of wood used with otherstrips to form latticework. aUac~lng for plasteror stucco. or asupport for slates orother rooflng material furring ~._..____...__._._.____.. ---- --~- .., The attaching of wood strips or metal channels to awall orother surf.1ce. as to provide an e'l'e:1 Ua5e for lath or afinish material. or to provide an air space between aW3n ana afinish material. galvanlzeMorcorroslon resistance. , ' . ' ,; ::$r'=~~1=:--~.! stiff networtwith diamond-shaped .~~ - . . n1rlath ~--------------------------------I!I.~~ An expanaea-met;1I bth h2v1ng V-5haped ribs to provide greater stfffness and ptnnlt widerspacing ofthe supportlng fr3m Ing IT1eft1bers. 5e1f-ce~ lath Aril1lath usea (}It( stuljolsts 35 fonnwori: rorconcme s/aj,s, oras lathing In ~ plaster partttlon~ 5eJf..furril1'!f~ ------------------------ ~Mea-~l welJed-wl~, or woven- m ~th M Isdimpledto Sp:iCe ltse!f from the supporting surfac.e, c~tlng a spacefor die keying of plasterorstucco_ .. wfrebtJa --------------------------~ W~- orwoven-wire faurlc, usually with apape!'17act1ng. usedas aUase for pI4ster or~. paper-l7aaed~ ... ------.-----. up;aMea-met.1lor wire lath having a ~I~ of perforated or in:lkilng paper, usedas ansefor pbsUrorstucco. C<lrnet' bth .------- --.- ----- --.. ---- ....-. --------- ----. Astripofexpanded-metallath !lent to form a900 angle. use.dat an Intern31 con'oerto ~ent crulsIII plastering_ Also called comerrdnforc.ement. !tripbth .-.........-.------.--.---. ---·----'r'I'.W-MrW Anarrowstrip ofexpan&ed·rnetallath for reinforclngjdnts In gypsum lath or Junaures betweenctiferenttypes of pbster 1r.1ses. 5Cnm Coarse cotton, flberglass, or metal mesh, ~ for ~11!g and reinforcing aJoint or as aInseforplastering or painting. gyp,umbth .-..------------- ..-.. -------.-. Gypsum roard having an alr-entnlned corebceJ withaj,sorWn-t paper, used as a !r.Jsefor plaster. Also called rock bth_ perforated9YP'um bth Gypsum lath punched wIUt small holes to provloull1eChanlcal keyfor plastu.. in,ulltlng gyp!um lrth Gypsum lath having an aluminum foil Uacklng that serves as avapor retaroer and ref1ecUve thennallnsulator. venurl:ta5e Gypsum lath having a spulal paper facing for receiving veneer plastu. 190 .'..: mechJnleaIJ,onJ The physlc3l keyln~ of aplaster coat to a plaster Pa~ or with another plaster coat rougheMd Py scoring. ponaing ..gent Achemlc315u~tance applied to asuitable sul>strate to impreves Its !?ond with a sucettding layer. s~n The aDsorption of water from afinish coat of plaster by the ~seco3t or gypsum 14th. resulting In abetter Dond. :: r··J-..-ground .- .-_. ,..-/ '.', Ast,;p of wood or ametal pead used at > ..:..-..,-.. an a~lng as a~ulde for plastering to a .' given thJc1::ness and as a stop for the p~ ~reed Astrip of wood. plaster. or metalappNed to asurf.1u to ~ plaS'tt:red to serve as 3 gUide for making atrue surface and plastering to agiven th1cl:ness. ----------- ---------.-.--.--. "a5e screed Apreformed metal screed for separatln~ i,;~m.=,=~~n;;::~ AptrforaW metal screed for venting a conceaW space behind a plastered ~~~c.Lu.:;:wn...... Aprefom-te.d met.1 screed applied (]m Jolnts In gypsum 13th to co:ttrolcl'3Cklng. .;.~.~:~:~:;·:.::~:J.&f;~;-···.:F---· ~=~"!etaIStrlpInstalled to . . rel1eve shrinbge. tempernu~, or 1. structural strts-ses wtthln a large plastered or stuccoed area. ·---Au_u"nuu·s~~%=~ A asafroundanato~and protect an external angle In plasterwori: ora g:ypsum board surface. "Iso called .I~Ie~ ~ . --'I1uIl~~rner~ . . . __.______~_.._._. ::h:::~7aroUnded~~ A~ cormr~ forfannlng and reInforcing the curved portlon ofan 3rchedopening. .<,--" ~!Ing ~d .,/ Apreformed metalstrip ~n9 an - • expanded or perforat.e~Hla~e and· variously shaped ends. useJ asagrOuna and kl5kengthel! 2!".d re!llforce the edges of pl3st.erwori: or " gypsum Dema surface. L I J j J I 1 I L b
  • 187.
    rounded edge tong~ &groove .....::;.:.:;i) (d..:;/~'." ':":" :.;.; }5'::.:..::,/},":;:~ t~;l/;:;..-.:......:. '.:.:':': -·.·.··:·../-.:,:,..·-~·::;<d)y(~,·k.::·;::·::· '.'; ::.:: joint compoulkf ~...........-.-.............-. Apastycompound for embeddlngJoInt bpe. fltnng k1kntatlons, anaflnlshlng thejoints In a~um'board surface. jointtape - ................-.-.- ..----......---, Astrip ~ paper, paper-faced cotten, or " plas;lc mesh used withJaint compound to w;er th~Jolrits ~etween sheets of gypsum board. PLASTER wallpoard Any of V3rlous sheet matertlls used In co;erin~ awall or celling as asuVsmu~ for pl3s~ror paneling. ..- gypsum poard Asheet rruterlal having agypsum core faced with paperon each side, used for coverin~ walls or as 13th. Also called drj'Wall. plasterboard. Sheetrock Trademan: for a~r3nd ofgypsum roard. .....,.... type-X gyr-ium uoard Agypsum boord havfng acore containing additives for InGreased ftre reslsta nee. ......--- backing "oard An Inexpensive gypsum board usee! as the lr.Jse layer In amultilayer assemPty for Incl'e3sed rigidity, sound Insulation, and ftre resistance. '-'" card-oard Agypsum boord I-In. (25.4 mm) thick. used as a!?ase In solid gypsum-mrd partitions and for hnlng shafts. -.--- prefinish.ed gyp~m poard Agypsum boardlt3;t1ng adeco;.atlve vinyl or prinW papersurface. r-----····--·--··--·- foil-l7acked gyp,um "oard : . Gypsum Po<ird having an aluminum foil backing that serves as avapor ~rder and as artfIectlve ~llnsul3tar when the foil n..iesa3/;, In. (19 mm) minimum air space. . ~=~ -.---..- gyp,um ,nutblng . Agypsum board havfn~ aflre-resl$bnt core and faced with a water-repellent paper, used as exterlor sheathing. 191
  • 188.
    PLASTIC Any ofnumerous synthetlcor n.1tur21 organic materialsthat are mostlythtrmop~st1c or thermosetting polymers ofh~h molecuw- weightand ~t can ~e mokltd. extruded, ordrawn Into objects,films, orfitament6. casting •..-.....-..---------........... - Amethodof shapingapbstlcoPject by pouring the mmnallnto amoldand allowing Itto harden ~ the use of pres$U~ !now molal,,! - ...-..-...-----...................--...-.....- ...-...........-~...... Amethodofforming hollow W<ll'e by =.~~:=::~:~~ @t.:.:.:.~~~~:M£ ] wplng the Jltltenal wfthln amold. . : '. '.':. .... .~ . ' =~:~~;:-- ::t,'"~··~:D· rendering Itflukf In 3 ~tlng cham!1eran d : then forcing It under h~ pressure Into a • closed mold. Q)mpre,,u,n moldi19 •.............- .....' Amethodofforming *nnosettlng pbsUc l!y~ a maY CII J1;, forming the Nterlalily hQt and pressure. tr~~ermotding . Amethodofforinlri *nnosettlng p/2sUc l!ysoftening It in one cham!1er kfon, It Is forced Intc an Jc:fjacent mold where It Iscured under ~ aM pressure.. thermoforming Amethodof sh3pl~ a~rmoplastlc sheet ~ heatli19 and forcing It against the contours ofa mold ~ he:at anapressure. ~,ure forming -.---.......-...-.... Amahodof thennofoml"9 aplastic sheet ~ forcing It against the contours ofamold with compressedair. vacuum forming - ........................... A mahod of thermoforming aplastic sheet Vy evacuatl"9 ~e space f,etwun the sheet and the contours ofa mold. 192 resin ( ...-..................................... acrylic rt,i/'I ArtyofnumeroLlS salla or semlsolk:l . Anyofacbss of thermopl3stlc resIns organic substances prep3red by u~ for C4stl~ or molding plastlc parts polymerIzatlon ana u~ with fillers. that are except1on.. ~ transp:3re:1t. tough, stal1illurs. and other components to and res.lstant to wmnerand chanlcats, form plastics. or as the main In~rehnt In CD4~s. filler adhesives. and cau!l:l"1 compouMs. Are!at1vetyInert subsbnce added to Lucite modlfythe Pulk. strength. he3t TI'3demarI:: for " m rJ of transprent resistance, ele.ctrlcal resistance. or acrylic resin. wori:lng properties-ofaresin. ,ta17f1izer AsuVstanceadJed to prevent or retard ~e ~radatlon ofapb~1c when exposeJ to the ultraviolet raalatlon or other environmental conditions. plasticizer AnyofV2rious substances aaaea to a resin to Increase Its wori:al1illty and flexll1iUty. cat.1ly,t Asul:lstancethat causes oraccelerates achemical reaction without Itself undergoing apermanent change In composition. calendering Amethodofproducing plastic film Or sheeting ~ ~SSI"9 the mater/al ~n aseries of revoMng. heated rollers. ,hettlng A~In form ofplastic. having a thickness very sma" In proportion to Its length anawidth. film Sheeting navlng anominal thickness not greater than 10 mils. Plexiglas Traae~rI:: fO(';a mnd of light. transp-ent. we3ther·reslst3 nt acryHc resin. polycarWnaU Atough. trans~rerrt thermopl.asUc ch3~ ~ Its nlgh·fmp3Ct strength and use.a for tlgbtl~ ~res. $4fety glazlng. arJ h3rdw41 re. Lex.an Traaemali: for a!:onrid of ~h poIycarro,..te used for sh~ windows. poly~~ Atough.1I.;1rt. and iblble ~stlc u5e<J esp. In the form cisheetlr.g .. nd fllm for ~ I~ dampprooflng. and as a vapor retarder. Also c.l1ea ~. polyproprieM AtoIJ4h. ~p!ast!c U1at Is ~!st..nt to he;rt .. rJ chemlc.1ls and used for pipe ftttings. ~allr'tSulatlon. ar.a carpeting f1Pers. po~ne Ahard. toJgn. sta~ thennop!ast:<c that Is easily coIoreJ .. rod moldeJ. expr~, or rolleJ Inta ~. ~rylonitn1e-~i.ene-5tyre.r.e Ath~sUc used for /T1;1Klng piastlc pipes and hardware products tJ..3t a~ tough. rlgLd, and reststJnt to hat 1M chemicals. AbW.;ASS vinyl Anyofn~ ~h. ftexJVIe ~s I!1adefrotn ~ resln. polyvinyl ~In Anyofacl2ss of thmrcpIastlc res.71 s fonned by ~i§ or~ng a vinyf ~ AI5c c.Sed v1nyf resJn. polyvinyl chloride A'whlte. nter-Insciu~ th~ widely u56d In tM ~numture of1Jor caverings. insulation, and piping. AZ?r-.: PVC polyvlny{ ~I , AthermoplasUc resin used ch~.s the Interlayerof s.afety ~l;ass. ny(on Anyofa c!ass of thenr.oplastic5 cnar.IGtertud Py ex- .....eme touqMes5. strength. arJ elastldty and cap3~ of !1elng extruJed Into flI3~T1ts. fI~.•na shuts. 1 ·.. "#.. :.~ ... : '-il f I l l l I L f , La r i L;
  • 189.
    '1' i . ~~ "::."~."..'. ~ . ~ ..~ wrmosettlng p~,tic Apl3stlc M Pecomes ~nently rigid ~ heated and cannot De softened again. Also called ~et. polyl~ Arry of various t:hennoplastlc or thermosetting resins used In flexl!7fe and rigid fooms, elastomers. and resins for salants. adIIcsNes, and C03tlngs. polyester Arry of agl"Ollp ofthermose«lng resins used In the ~ure of plastics anJ te:xtltefll:>ers.. ,~ temperature The maximum temper2ture at which a pf3stlc can ~ continuously employed without anotfcea!7le reduction In arry of Its Inherent properties. 5Oft.enlng pcint The temperature atwhich aplastic changes from arigId to asoft; state: fiPe:fgtas!-ttinfo~ pta5t~ .------.--- - A~ reWlXUd with glass fJ!7ers and useaII kansluunt roofs and ~hts, bc:lng:s for sandwfch panels. ,lid molded pkImi>lng flxtures. Dacron Tr3demari:: for amnd of strong. wrlnkle- ~t.ant po/'jesttrflDer. Mybr r~ri::fora mndofstrong. thin ~~fllln t15eJ In photography. r:x.ardlng t3peS. and ee:ctrlc.of Insulation. tpc1:Y resin Arry of various ~ resins cap3Ple offcmin.g tight Cl"C:Ss-nnked ~~cha~by ~-nness. ~ aaMslon. and high wroslon anachembl ~nce. used esp. In surface C03t1ngs and adhesives. mdJmj~~in I-.rry of aclass of ~~~ resins f~ by ~ !n+.mctk1n of meLomlne ~,-.J fonn4lddr.i~ ana used for molded products. adr~lves. and surface cc;;tl~ phenolic ~ PLAmc ruuber Arruttrl31 m3de 7y chemically treating and toughenIng natura! rubber. V31~ for Its . el3stlclty. nonconductlon ofelectricity. and resIstance to shod: and molsture. J...-...................... n:rtur~1 ruul1er • Ahighly elastic solid substance. essentIally apolymerofIsoprene. o!;rtalned 7ycoagulatlng the milkyjuluof rubl>er trees and pf3nt~ Also called India ruPM-. fo~m rubber Alight. spongy. cellularrubDer ItI3deby foaming I3ttx before vulcantzaUon.,· vulc~niution The treatment of ruul>erwtth sulfurand heatto Impartgre~terelastlclty. stren~. and durability. . ' - ••".r..- •.,~ ............- :lynthetic ruuber tamirate Aproduct ITI3de by uniting two or more byers ofIT13terial by an adheslveorother rr.t417S. 35 plywood a'ld plastic /amInate. '. plJ.5t1c bml~ AhJrd surfacing rrutertal consIsting of ~poerpo".,ec:f layers of paper Im~nated wtth melamine and phencUc resins. fuse.::f ~ under ~t.and pressure. An ef3stomer similar to natural rubber In propet"tles and uses. produced-11y tM poIymerlz3tlon ofan unsaturated '. hydrocarPcn. as lnstyIeneorisoprene. or by thecopolymerization ofhydr0c3rrons With styrene orInJtadlene. eI~,tomer Any ofV3rlous polymers haVing the elastic properties of natural ru~!;rer. as Irotyl ru!7ber or neoprene. butyl rubl7er Asynthetic rubPer having exceptional resistance to sunlightand unusually low gaseous permeability. produced Py polymerizing InJtylene and used In roofl~ meiOmnes and l'r.lterprooflng barrler3. Butyt TraJemari:: for 3 mnd ofbutyi ru!7!;rer. neoprene Asynthetic rubPercharacterized by superior resIstance to oils and sunllglrt. and used In paInts. roofing memmnes. flashing. !!askets. and ~arlngs. silicone rul1l1er Arry of aclass of h4rd. he.t·reslstant ~~ resms formed by the ~~tblcf~ with f~kleh)'de and used for IT'.okled P"""Aucts. adhesives, ana sumce ~~ngs. AlsocalW ~st, ...-......... h~h·pr~'ure tamlrt4te ArubPer rrude from sllicone elastomers and noted for Its retention offlexI17IBty. resilience. and tensl~ strength (Ner awide temperature ra"¥. enerrte T~ri:: for agi.ilnaof d4ri:: phenolic I'e$ln. ~ by Dr. Ltc l3~land In ~-6. and ~ for ~hone reu!vers. ~.o C3~nets, eb:;trIc Insutators. ana ~ ~stlc I.3rdw.1re. Ure.Horm..~ ~i" Antof Y.1ricu:s ~n.g synthetic re:Jn ltilde byc.ondenslng urea wIth fO"W~ Jnd used In ap~nce ho.i$lngs, ~I devices. #dheslves. and ~rface ccgUngs. ,. . Aplastic laminate molded and cured In the i.iI~ ofpressures from 1.200 to 2oCOO psi (34 to !40 ~ per54cm). used for wfaclng countmops anaca~netry. ....• Icw-p~,ure tam/ute Aplastic laminate molded ar..:l cured with aIT!3xlmum pressure of 400 psi (28 kg per Soq. m). used In vmlc3lanJ low-wear applications. Form~~ TraJemari:: for a~rand of plastic laminate. :- ~nlcone i Anyof.a group ofpolymers contaInIng 1 .alternating sAlcon .and oxygen atoms, : characterl:z.e& bythemial stability. : chemical Inertness, and extreme W<Jter 1 repellence•.and used In adhesives. ; lul7r1cants. protectivecoatIngs. and '1 synthetic rubPer. 193
  • 190.
    PLATE Arigid, planar. us~1Iymonolithic structure thatdisperses applied Io.Ids In a multidirectional pattern, with the loads generally following the shorttst and stiffest routes to the supports. . plate action The,manner In which an appllea load Is transmitted to the supports of aplate In amultidirectional pattern. ApUtec;n reenvfsloneJ151 seriesof upcart~strlpS~ .' corrtJnuously;/ongtlreHmgths. _................' AsmIppIIeJloadIs trlll5l1litteJto the supp0rt.5 througlt ~ ofonebeam st.1'. the Io3d15JIstrtvteJovertheentire pImUywrtlcllsIseztnnsmittUfrom theddftcttJstrlptoupurrt~ ................. The~ Ofone~~ilsoC3uses t'M5tlng oftransverse5t:rip5. whose torsIorulresl5t3nce 1na'ea5eS the overall ~ffne55 ofthepIm. T1Ierefore. whIfe Pending;nJ sheartrlnsfer111 appfIeJload in theJirutJon oftheloiJeJbe3m stnp. sbarIlfatl+f5tl~ t:r.1n5fertheloadat ridht1ngles to the101deJstrip. ..- ...........- contlnuou, plate Aplate extending as astructural unit CHef thru or I1'1OI'e supports In 3 given dlrt.Ct:lon. AcontlnlJOU$ plateIs subject to lowerbendlng moments than 3 series of dlscrete. simply supportea pla~s. foldedpllU Aplate structure composedof thin. deepelementsjoined rigidly along theirboundariesand forming sharpangles to mceeach other against later.al pucUng, The resulting stiffnessofthe Cross sectlon enaUles afolded p~ to span relatlvefy long dlstanus. 194 . EachplanePeh3Ves1s1 beamIn thelongltudlnlldIrection. •.................. Vert/c;ldiaphragms orrigId frames stlfftn a folJedplateagainstdeforTTl3tlon ofthe fold profile. Apl3te5houldPe sqUiirtorntarlysqU2rt to (;f1SUrt thatIt ~h3re515a two-ny 5trocture. As1 platebecomesmort rut1ngu16r th1n square. the tlIC~ actlon decreases lnd1~-way5ySt.trn 5p3nnlng the 5horterJlrtCtlondevelops sitU tileshorter~ strips1restiffer 1nd~rryI gre3terportt.mofthe 10M. ~~~J~~;;~'~~;di"-~' . : curved nus which follow the . GiJ j lsost4tlcs of'the structure. n _ ~ In the shortd/~n. the span15reduced Uy~" foldlCtlng151rigid support. 1505tatlc, u~ of principal stress Ir.dicatlng ~ flow ofI1endlng stresses 3M3 long which torsional shear stresses are zero. ;.-Transverse strips ~have 1S1 ccnt/tIU0U5 bc4m supporteJ1t foldpoints. I .I I J , I .1 I ! I 1 ! i I 1 l- L L
  • 191.
    I3mella roof Avaulte4 roofcomposeJof lamellae forml~ acrisscross pattem ofparallel .rches skewed with res~ to t~ sk:lesofthec~ space. ----------------,-------- .' 13mella One of the relatlYely short tlml1er. mebl OI"rtlnfOlUd'concrete elements formn4 abmelb roof. InCfU5/T7g the be3riroq areJ ofthe 5IJpports Incra5.ts the num:.erofmemf?t:rs Irrto which 5~r 15 trJnsfcrmlandreduce5 ch~ fcrcesln tkrnem~. ~pa~fra~ Athrt¢-dlmensloll3l stnlcWral frame Pa~ on the r'.gldlty of the triangle and composed of I!r.earelements subject only to ~131 teTtslofl or compresslon_ The simplest s~tbl untt of aspace frame!s;;l twahedron having 4joints and 6 strJCtur;l1 merT1Ws. As with plate structures. the sUPfX'rtl~ Pay for a5p<1ct fr4lme should ~ squ3ril or nearly square to ensure th3t tt acts aL!l atwo-l'r.1ystructure. Alsa called space truss. PLATE grid~~ure Aframework ofcrisscrossing beamS connect.e.dat their Intersections by r191d joints and dispersing an appl1ed load In two dlrectlons according to the physical propertles anadimensions ofthe ream elements. Anbe.1m tkmentspartlcfpmIn C3nyfng ; load through; combination ofrending and t¥tfstlng. Iftwo~1715;trightangfes to each otherare /dMtlc1l. theyshare m . ;ppWloadequallyIn rendlng.1fthePt:a!ns have difftrentlengths. h~ the shc.rter ~m C4rrlesmereoftheIo3dsInte the stlffr.essof1 ~m isInverselyprr>pcrtlon;l to the cv~ of/tslength an4aIo#dgmdy follol'l5 thepthofIe3strt5I5bnu to 5IJppcrt5. Forex;mple.1ftwoPeaI715 h;vu spm f7tkJ of1:2. theirstlffnesses wi hare1 ratio of1:8.Ccnsequently. theshorW-beam ItfnC3ITy%oftheload. 1M torslcn31 reslst3ruof~5 ap/nst the t;r,fstfng InducedI1ythe bmJlng ofa tnn~ be3m /urt:;;ses the stiffnessofthegrid. 195
  • 192.
    PLUMBING The system ofpipts,valves, fixtures,and otherJlpparatus ofa watersupply or ~ system. wmr,upp!y 1MS4rpp1yd purlflea water~ a eotmUIItty. usuallyIncIudln4bclhtles for st«lng and dIs1:rI~ this water, as reservoirs aMpipelines. aq,uifet ---.....-..---...... A~lcal fornutlon con~lnlng or conducting ¥QUndw31:er. esp.on~ ~ of~ W2ter1a usal1le ,ua~ to s~ orwefts. arte5bnwell AweiIn which waterrises under pre$Sijrcfrom apt:r1MIPIe stratum OIerbid ~ Impennea~ rock. waUrtawer Atower Into which water Is pumped to aheightsufficientto 1I131ntain a desired ~rc fordlstriUutlo~ to customtrs. orforflteflghtlng.. drawdown Alowering oftht water surface level. as In awellorthe d1~nce by which the groundwater !eve/Islowered as a result ofpumping. il o .....__• corpol'2tion ,top / Avalve controlling theflow of water • ,"" or gas from arrt.iln to ase~ p1~. :' AlsocallM corporatfoncoct. /1 waurm.1ln AII13In pipe orcondultthrough which aputnlGorcommunity water system COITVey5 W2ter to ;;III seMce connections. 196 curp cock ~-.......................--.....: Acontrol valvefor shuttlng offtM water supply toa~Jldlng In case ofan emtrgency.installta In awater service pl~ and operated by mtans ofalong key InStrtea through acurb Pox. Also called curir step. c/mm AreStrVolror tank for storing or holding waterorother liquid. as rainwater ~11ectecJ from aroof. for use when reqUIred. •......... -..................-......~.: .:.:.;;:,.~....:·.;·::.,.;:;,:7.::.'~'·...;.·.: wrt.er tre4tment The act or process ofmaking water more potalne oruseful as by purifying. clartfylng. orsoftenIng. .- cun,pox ! Avmlcal enclosure with aremova!1le / CIJItr providing access to acurbcoa. I Also ~led Buffalobox. ~rvice pIpe ~..... Apipe wnnecting a~Ildlng to awater or gas main. usually Installed byor under theJurisdiction of apu~11c utlnty. ~rvoir Anatural or artlflclal pl3u where wa~r Is coIJectea and storedfor use, esp. ~ for supplyfng acommunlty.ln1gatlng 1ml. (X' furnishing power. raWWl"Ur Water that reqyIres treatment i:1efore It can bf"'used for .::lrinklng.. L &hutoffvalve Arrtvalve for shuttlng off the flow of wateror gasfrom asupply pipe. w.iUr meUr - .... Adevice for rne3surlng and recording the qUJntltyof water that passes through apipe. J l l l l L L L L i L
  • 193.
    gravity water system Aw.wsupply and dlstributlO11 system In which the water source Is set at a height sufficient to maintain adequate supply pressure throughout the water dlstriMlon system. Also called dowrrfud distriinstlon system. € he.ad .--_..._......__................................-.. The pressu~ at the lower of two given points In allquIJ. expressed In terms of the vert1ca1 d1st3nce between the points. Also C311ed pt'Cssure head. pJ"e$~re drop Aloss of head orfluid pressure !?etween two polnts of apipe or across ava Ive. due to hydraullc friction. fixture unit Auntt fer ~surlng the pro!r.;!71e demand for w;rter PyaplumPing fixture. or the pnml7edJsch3rge of i1qutd waste from the flxture. equivalent to 7'h gallons or one cuM; foot perminute. wata ~ner - ....-........1 An appai.itl.!s that removes calcium and rna~rIt$Ium S<llts from hard water Py Ion exchan~e In order to give the water more efflc~nt sudslng ..Wllty wrth soap. hardwaUr W.ter COlTtalnlng dissolved saIts of calclu~ or magnesium ana forming soap lather ,..ith difficulty. PLUMBING waur5ystem Asystem of pipes. valves. and fixtures for dlstrl!7utlng andusing water In abulk:llng. t--'----+-r------+---++--4lJ--C....-....:...,.~==nl_...... -.........-...... ltranch Any memberofapiping system other than amain. riser. orstack. .._..._..._.......- riser Avertical pipe. conduit. or duct In autility system. main Aprincipal pipe. conduit. orduct In autility system. - - - . - ....-.--t-----!.-l--++..::..-..1.----l ".- - ...--..- ..................-............. expansion I1end • An expanslonjolnt of pipe and plre .._.....- waterheatu An electric or ~..sappliJr,u for heating water to ate1r.pef'3ture Detl'iun 120'1' and loW'f (50't arj &O't) aM storing It for use. fittings permlttl/19 thermal expanslon to occurIna long run of hot·wmr piping. Also called expansion loop. ..-......- .. hc,e lnl7l7· ./ Athrea&ed ext-erlcrfaucif.as for attaching a garden hose. often .attached to the stde ofahouse at arout the height of a sill Also called hosecocl sillcock. faucet Adevice for controlll/19 the flow ofa1lqt:1d from aplpe l7yopenlng orcioslry an orIflu. Also called spfgot.tap. flew pre&&ul'e c The fluid pressure In .a supply pl~ at a faucet orotheroutlet while the faucet or outlet Is wtdeopen ana water Is ftowl/19. expressed In psi (Nfm2). mixing faucet Afaucet having asingle outlet for water from separately controlled hot-water and cold·water taps. Also called mixer. .... aerator A sievelike device for mixing air w~h the water flowing from the end of aspigot. antl'~ald faucet Afaucet haVing athermostatlc311y controlled valvdor malntalnln9 the desired water temperature re.q3 rdless of pressure or flow. 197
  • 194.
    PLUMBING PfumIn"9 fixture . AIryofV3rio.;s rtUptacles for receiving W4iW from a w~ system and dlsch3~lng the liquid waste Into adr:;lM3ge system. ~anit.11')' ware !?all cock Adevice for regulaUng the supply ofwater In" flush tam: by means ofahollow floating ~n which by Its rise odan shuts oropens a supply valve. Also called float valve. Plumbing fixtures. as slnG and toilet Pc~. mJde of vitreous china. porcelain e:13me1. or e.1art'lded metal-l ! ~ reverse-trap ---....,.,='"'. Atoilet rowlslmllar to the Siphon-Jet. ~t . having asmallerwater surface and trapway_ W3U-hu~ ______J D~~ ned to ~ rtt3Creato ~ h~ from " wall wrter h.1mmer The corlCusslon and I13nglng noise that resu/t5 whtn al'OIurneof m.ermoving In apipe s~ stopsor loses IT'()-malt.u m. Jir-ch.1m~r water ciaset Afuture consisting of aceramic rowl with a ~haule. hinged seat ana lidand adevice f~flushlng with wa~r. usedfor def'ecatlon and urination. Also called tenet. fl~homet.er valve A",lve that supplies afixed Iuantltyof W3ter tcflxtures for flushing purposes when actU3ted Uy direct water pressure. :--·-------------------l1ack~plash / Avertlcal panel of waterproof _ ... ---- ..... :/ material a"ttached to the wall uenlnd acountertopor stovetop to protect a~lnst splash~ Ilqulds_ Acomp3rtment In" ~ system 0 CO!ltalnlngaIrMeb5~1b' I: 2irg.1p The ctarvertlc3l dlstanu petloieen the spoutof afaucet or otheroutlet ofa supply pipe and the flood level of a receptacle_ COIl"'f'resses arJ ~Ids to ~u3llze I ~=~~~~:cu~~:~~ I overflow An Mlet. pipe. or receptacle for exu:s5 liquid. ~kflow Aflow of aliquid ~ to the usual ~ desired dlrecUon. 17~k-$jphcruge Ii I I flood level The level at which water would 1 ::W:-~ rim ofaplumbing jj,j.~.t:;"'I:cr"",----- -.-- .---- --. - - ~ ~§ l?idet AUaslnllke fixture des~ned to pe stnddled for Uathlng the genlt3ls and posterior parts ofthe 1Iody. urinal AflushaUfc fixture used by men for ~ urinatIng. toilet partition Apanel forming an enclosure around a watercloset for privacy 1n apuullc lavatory. l?athtul? An oV!ong tub to Imhe In, esp_ one th2t !s a permanentfixture In aUathroom_ ~hower AUatn In which water Is sprayed on the I10dy from an overhead nozzleor show~ead_ gra17l7ar AParat"t3ched to 3 wall rwraUathtu!7or showerto provk:lea hand gripfor a ~ who Is Imhln4- receptor The shallow P3se pan of astall shower. lavatory . Abowlor PiI$ln with running waterfor washing th" face and hanas. A~ of ~ orcont.a1nl1t3tea lIt7Wfrom apIu~ fixture Into it pl~ supplylr4 fOb~ W4iWaue to ~e p~~ In the pl~. '-,------------------------ 51nk ~kwmrV2lve A'r'lilve for ~~ flowing liquid. as 5eW3~. from ~erslng Its dtrectlon. Also called pacl:flow valve. flow rm -------------.------------------------- The n~ of dtsc~rge from aplumbIng fIxtu~. ~U31 to the tat.allltlmkl'of galkxls dlscMar:l~ per 1r.1n~ dIvk:Ied by 75 and expressed In fixture unlts_ 198 trap .------; AU-shapedor $-shaped section of dnlnplpe In whloh Iltiuld remains and forms aseal for preventing the passageofsewer gas without rifecUng the normal flow of waste wateror sewage through ~_ Also called air trap_ drum trap' Acylindrical trap closed on the l?ottom and having acover plate for access. usually Installed on the drain line from al?athtuu_ APastn, as In akitchen or laundry, connected wfth awater supply and draln3¥ system for washing. df'po'.1f An electrical device In the anln of3 sink. for grinding foOd wastes to be washed clown the al"3ln. Also ~11ed disposer. launary tr.:y Adeep sink for washing clothes_ ~rvk:e,lnk Adeep sink used Injanltarl3l wort Also called *pslnle. Ll I 1 I ! .J r I I I • i ! ! I i I I l f L.. J L
  • 195.
    roughing-In Tht: ~ orprocess of Installing all parts of aplumulng system that 1'1111 l3-'~r Pe conce31ed. usually to the foct<Jre connecUons. v;dve Any devlce forcantroliing or stopping the few of aliquid or93s by amovaDle part tn..t Cpt:r1s. p3rtlallyobstructs. or shuts 3 paSS3¥. pipe. Inlet. or ootlet. ........ t···· plumUing wall ! AwallorpaMlon containing ! vertlc31 space for aplumulng : st3ck. Also calleJ stuk f partition. J.~...closet bend r A90°501/ fltting Instai1t:J i di,ectly Deneatn ;; .....~..er close:. developed length The length ofaplpe!1r~ measc~ along the centeriir.~ cf the pI~ and pIpe flttlngs. ..• molded insuLrtlcn Thmnallnsulatlon premokled to fit aroond pipes arJ pipe fIttl~-:s. PLUMBING pipe Ahollow cylinder ofmetal or plastic used for the ~nveyance of water, steam, gas.or otl1erfluld IT13terial. t1 pipe fitting Astandard part. as an el&ow, unlan, or tee, for cannt:ctlng two or more pipes. Pena, Alsocallt:J ell. el. (""1 ./' drop elbow , ~. I An elrow hav!ng lugs for attachment t<> a wall orjolst. Also called drop en. . .--.----.-- 'weep fittill9 ~ . A pipe fitting haVing alarge radius of ( curvature. . _ ...._. return pend V AWO·vendlna pipe. j .--_..--- ~Shapt:Jplpeflttlng for making athree- wayJolnt. draptee - Atee having lugs for attachment to awall orJoist. ........--... sanitary tee A tee having as~ht curve In the 90° pipe In the direction of the main. ~nnet ~....- ........-..-.. --.-..- ...--.- ........- ~ t;ansltlon tochannel theflow from avranch ---- :0~shapt:Jpipe flttlng forjoining aln-anch pipe wtth jI main, usuallyat a45°angfe. fht part ofavalve casing through which th~ stt:m passes and that forms aguide 3M se;;ll fortM stem. ~ •....- ...-........-.................-~ Th~ part orsurface of avalve on which the s:.cm Is closea to stop flow completely. glo~ VlIlve _._.--.--......--.--.--................. -....1 Avalve with agfa!rolar PDdy. closed Py a at$ ~tlng on an o~nlng In an Intema: ......n. ¥U valve ~ ......-.......-..........-....... Ashutoff valve closed Dy Iowerini,J a 'r"Age-shaped gate across the passage. ~n.gk v.alve Aglo~ valvt: having an ooUet at aright ~ ar.gletothelnfet.•- ... _._...-............ ...• • • al~nment valve AK<lsherless v;llve opened by aligninCj hde-s In adisk. cyllnkr. or Pall. mixing valve A.,..lvt: forcontrolnng the relatlve a:T1O'Jntof hot and cold 'rV;l ter admitted from separate hot-waterand coId'water Rr.es. check valve A.,..lve permitting aliquid or gas to flow In OI1e direction only. -: o·~·--··-·--·····-~;]:::9fo<""kl'9'/0"'"", -..- sanitary cross ACI'O$S h~ving aslight curve In ea<;h ofthe OO·transltlons to channel the flow from mr.ch plpts In the direction of the IT13ln. ~ 1? ~~::~pipe for bypassing anotherpipe. m~le' ...' - -- ... . . .. .• nippk M~ to fit Into • ~ Ashort length ofpipe with thrt:ads on t3ch ~~r.g op:1 :r ' 0, t:nd. used forjoining ccupllngs or other pipe ~ part. " ... fittings. .0,0 fenute ... -..----.-,,'. ccupling Hmog , ~ ?rt Ashol1length ofpipe having each end Into whW;h jI ~~ng threaded on the Inside, used forjoInIng two part fr..s.. pl~ ofthe same diameter. [ [ ' ~-.- incre.aser -1 I I . . Accupllng Increasing In diameterlit one I end. --- reduur Acoupllng decreasing In diameterlit.one end. '-"'-"-'-'" union pelf-and-'plgot ---..._. -.~ Apipejoint IT130e byfitting the lL----I-..-, end (splgat) ofone pipe Into the Acoupllng device for connt:ctlng two pipes neitherof which can retu~, consisting' of two Internallythreaded t:r1d pieces whleh are tlghtent:J around the pipe ends to I:>e joined, and an externally threaded center i~t. ~~~~~~~::!":'odPI_ enlarged t:r1d (l1ell) of another pipe and sealing with acaull:lng compound or acompressluie ring. gasket ArUDDer or metal ring Insertt:J petween two mating surfaces to make theJOint watertight. --- t-· ~ A. """.ally,h,..Je<I flttl'g fO"~5I'g ~.., ...._ .. :::endofaPlpt. An Intemally threaded flttlng for enclosing the end of apipe. 199
  • 196.
    PLUMBING '. dl'2i~e~stem A~ ofpipes.tr2ps. and other ~forCOOYeylng ~. W2ste W3ter. or I'2mter to. puullc ~ or apriv4lte trea~ hclhty. anin Arty pipe orchanrel by w.b...lch a~uld 15 dI'3~:1 off. vent 5y:;tem ~.• 5tack vent Asystem of pipes supplying aflow of f The extension of asoli or waste stack air to or from adl'3lnage system or j arovetile hlghtsthorizontal al'3ln provldlng aclrcui3t1on ofair within the f connected to the stack. Also called system to prot.ect trap seals from f: selt vent. wastt vent. siphonage ana!;ad: pressure. : L..-.' : r V."'-Grj ! ~ Agroup oftwo or more sImIlar ./ f :, plumping fixtures dIscharging Into a.,/' I common waste or soil bl'3nch. ....... fixWr-e drain ---..-.--.............- ..............................~ /.r-" .-.......-- Aclr.Iln~frocn~tnpofa pItsInPi~ flxture to .1junction wtth a wa~or5Oil~ ----.:..L..._.:..-. k_.•~_..... . vent Apipe connectln~ a draIn near one or more traps to avent staa or stack vent. /'~ reliefvent Avent th:ot provides circulation ofaIr Petween aar3inaqe and aventing system b'j connecting avent stJd to. horizontal al'3ln !1etween the flrst fixture and the $Oil or.waste stack. ...- loop vent Acircuit vent that loops back anaconnects with. stack vent Inste4d ofavent stack. . common vent Asingle vent servln9 two fIxtu~ drains mnch drarn connected at the same level. Also called Adr;aln con~ one or more ftxtures aU.11 vent. to;a soil orwastest;acl ...·-_·-··········-·· .."......................•- •••i. - ... ~k . . ! .....,.~ev:::r~~ntInstalledj~~rllytoprovl~ Avtrt:lc.1 waste p!~or~ rpe I circulation of alrtoorfrom any partofa ~ HUrrWeroffuors. I dl'3lnage syste-m. ~ ~k ....-.• ~r.nch vent A~I soil pipe. - .-.-'-" .-.- ., •....••-.--:. ••:--:..-::.~ ..=-:: ..:: ..:--:. ..~--:: ..= ..= ..:: ..::.:-:t1==:tt:~:::::::i.=::::=t:::a--:-/~:":":'O"1 Avent connectl~ one or more Indtvtauai ~ pipe vents with aI'e1rt staci: or stack vent. Any plpeca~ thedlscharge from ....... individtJ.11 vent wata' c~tsor riulsto ~ ~lk::I1ng Avent connecting afixture draln.to a rnaln draill or 1Iulldl"!l sewer. ..._.._.,- or mnch vent. AIsoc.1le.d revent. wa5te stack- " - A~I waste ptpe. ~upipe Any ~ carT)4n§ ~ dlschar~ from - plumPlr~ fixtures ~than ~ closets or urln4ls. iMirect ¥Q5U pi~ AW4~ ~ M Is ~ cOnnec--..ea dire.. "tJy wItJI • ~ 5)'5te!: ~t ~ Into It~rougha ~rly trapped pIuIn~ ~re. mnch~ _ .......-......-............................. A~of5OilorlQStestad:: ~~to.1~helgh'OM neve- i!:ss than ~ fl. (2.4 m~ wt?1ln which tile horlzont.;l mnch al'3:ns from or.e fioor are connectea. I f.1B ---.-•.•.--.--.••.- -.•--.-.....- •.•- ••....•.•••.•..•.-"'--j The downward sbpe ofa pipe.c.ondult. I orc!u~~~asa I ~~orin Incfoes perfoot. I wet~ J..n oversized ~ functlonlng Path as . J so«orlf3Ste ~JMa vent.•._-.......- •._....•...•_.•.•.- c1eanc-ut -....... _ ......-......"'" ..-......-.......................-.._. Apipe ~ ~ armovaule ~ '- gfvI~ acuss to. soIf or waste pipe for Jns.pectIon orc~nlng. sump pump --.-•.....•- ......................... Apump fix ~ the accumulatlons of Iquldfrom ;a sump. T ,ump Apit or rtScmOIr seMl14 .1S a arain or reup~ for W2ta' orother I1qu-lds. Invert -.........................- .................~ TheIol'o'ffi poln~ on the Interlor of .1 dralrpi~ or 5eWef wf.c:re the ~uldis~t. 200 l1uiiding drain _.'--' The lowest p2rt ofadl'3lnage system that receives the discharge from sell anaW2ste st.cks Inside tM walls of .i7ulldlng and conv~s It by gravity to tf.c: I7ulldtng sewer. Also calleJ house draIn. pullding trJp •.•__.••_._J Atrap Inst.11ea In the 17u1k:fl"9 dl'3ln to prevent the passageofsewer!faStS from the pulkllng sewerto thearalnage system ofaI7uJldlng. Not all plumull19 codes require aI7uIk:flng trap. Also called house trap. -..- circuitvent Avent ~rvlng two or more tr.Ips ana extending from III front of the ~ fixture connection of afo.orizont4lmnch tothe vent stack. . ....- b~k vent Avent Installed on the sewer side of. trap. ...,. continuou, vent Avertical vent fortT'led Dy acontinuation of the drain nne to whk;h It connects. ,.- fre,h-Jlr Inlet ! Avent pipe ad~ fresh airInto tM f dr2l04ge system ofj 17u~. connectea ! to the pu11dlng dnlln at or~ the i l1ulldlng trap. ,",Raing &eWet Adrain connealng iii i7ulldil14 drain to a putnlc: sewerorprtvau treatmentbCIRty. Also called hGUM MWet".....1 . ~er _..........-..-...-.....,. ApIpe or otheJ:~lal conduit. usually underground. for c.rTJ'lng offsewage and otherliquid waste to atreatment plant orother point of dIsposal 5anitary ~er A sewerconveying only ~ sewage from plumbing fixtures and excluding stonn water. ~lIge The IlqulcJ waste contaIning 3nlmal or vegetJble matter In suspension or solution that passes throu~h asewer. L , I L j I I I c~ I I ... I j , ! l ' I • l l l L L L
  • 197.
    , l ~um ~-------------------------- -------- -- --- ------ -------- ---------, Al3)'C1' of ~~ matter that rises ; to the surbce of the sewage In a ! sep-tlC tallL ;,t ~m cle2r space - - -___ PLUMBING sewage tr~tment pt3nt Structures .ndappurtenances for receiving the dIscharge ofasanttary drainage system and reducing the org4nlc and !1acterlalcontent ofthe waste so as to rencler It less offensive ordangerotJS. The dlstance retwten the vattorn of ! the l3yerof scum and the I1ottom of ~~f::::~;--..t~$2ZZz~~~~~X;~==::zgS1;g~~~~ tt~ outletIn aseptic tank, sluage eftar space The distance retween the top of the s.l!:dge anJ tM I1ottom of the outlet in 3~tlc~~ -------__~.~~--~r_---------_±~-,H~r----------------~;j stuage Sed1ment th3t settles"out ofsewage, font1l~ asemi-solid mass on the t>ottom oh septlc tank. ..------------------- C~5poot Acovered pitfor receiving the sewage from ahouse. having aperforated lining to af1cw the liquid portion of the sewage to !exh Into the ~round while the sludge Is rrt1lneJ In the pit to undergo decomposltlon_ Cesspools are no longer ;;.c.c.eptal1!e as ameans of sewage d1sposal sup~epit Apte that Is lined with aperforated ~~s-onryQ"concreteW311 to aHow effluent cc&cteafrom aseptIC tank to seep or Ie3ch Intothe surrounal"9 soil sometimes septic tank -----j Acovered watertight tank for recelvlng the discharge from aInllkllng sewer. separatir.~ out the solid organic matterwhich Is ducmposeJ anapurified I1yall3erovlc l1a~rIa. ana allowing theclarlfled liquid to discharge for final disposal ----------.-- u~ as asubstitutefor adralnfleld_ --------: ~n4 fitter Afllterforcleanslng w.teror purlfyf~ effluent. con51stlng of l41yers of coarse stone. coarse gr:wel. and $4 rod vecomlr~ finer toward the top, r I sub-5urf.ace sana filter .-------------- ------ --. '-:_' - .; .-; :'-' -, " . 1"-' .•. " . ~~~~~: ~t~liI, ~Id~n Asequtnee ofaPsorptlon trenches. aD-sor-ptloo beds. or seepage plt6 so amngt.d ~t the totaleffectlve a~tlon area of one Is utilized Defore effluent flows Into the next. perco~tion u~t Atest for determining the rate.t whlch;l so~ wlllavsorv effluent. made by IT1e3surl~ the rate at which the water level drops afterahole Is dug In the soli and filled with water. i j: .....s=r.~__ ~-+--->--'.,.. i dosing cham17er -1 effluent ,____J Achamver ofaI3rgeseptIc tank employing slphonlc action to automatically discharge aIarge volume ofeffluent when a predetermIned quantity h3s accumulated_ liqUId sewage that has ~een tre3W In a septic tank or a sewage treatment plant. -------1- -{~-i- I : I I : l : : I : : ! .-.--- grease trap . Atank Installed between akitchen sln~ and ahouse 5etIer for retaining and rerr.cvlng grease from waste water. Also cail.ed grea5el~, ,--'" distri1ution box , AVox through which th<: flow ofdf..rent from asept.lC tank Isdlstrlvutea to the dralll3ge tiles ofadra!rrfleld. Also o lid diversion l:>ox. _-.... dr.ainfield An open area containing an arrang~of al1sorptlon trenches throogh which seytlc. tank effluent from a septlctank rttry seep or leach Into the surroundlng soG.l.J:so called al1sorption field. dlsp~r fi.dd. I I I I I I I : I l: ----;---~ avsorp-tiontrench : I I I I . Anarrow trench 12to 36 In. (.305 to I : : : : . ,._/ 914 mm) wide containing coarse ag:;re- L.~ ___ --L--___ ..L-- __..... ___ .J,. ____4 g3te and;l dIstrll1utlon pipe through i which the effluent from aseptic ~ri: Is To cause water or other lI!uld to percalate through something. so as to dissolve out solul:7le constituents. allowed to seep Into the sofl 3~rptlon~ Atrench wider than :30 In. (914 mm~ containing coarse ~gregate and two or more dlstrlVutIon pIpes through ,,'hlch tM effluent from aseptIC tank Ny seep Into the surrounding solt Also callt-d &Upage~eci di~trl~utlcn pi~ Drain tileslakJ with openjolnt5 or perforate<! pipe having sufflc~nt openings for the dl5trlvutlon of the effluentfrom aseptic tank. Also caf1aI dlstrfWtlon line, drain ti~ ~. hollow tile bid end to end with o~ joints to disperse effluent In adra1rrfle1J. or to drain water-saturated soil Also. drainage till. 201
  • 198.
    REINFORCED CONCRETE Concrete inwhich steel reinforcement is embedded in such a maMer that the two materials act ~gethtr in resistS~ forces. Also caned l1hon Jrme.ferroconcreU. reinforcement Asystem of steel !ms. stnods. or wires for al7sortrlng tcn~iie. shearing. and sometimes t~ corr.::r-;::ssNe stresses In aconcret<~ ~~<:;nDer or structure. rtinforcingpu -. _ ..-............ ""'-" Astttl Uarfor reln{:' ~;",.g c.oncrae. U$U311y speclfltd Py : numPer equ~lent to Its .f:·~ln eighths of an Inch. AIsoC31le(; 't.~ar. deformed bar' . - ...-....•.-.-.....~,. Arelnforclng ~;,,::t-rokd with sumcedeforrr:.. )!15 to develop 3 greater Pond¥-- ~. /.! ./ plain concrete Concrete havln9 no reinforcement. or relnforcea only for drying shrinkage or thermal stresses. ferrocement Constructed ofUmtnt-5ana mortar overa wtre mesh thAt h4s l>een preshaped (}Ief' amold. I f- te",ion ;eir.: '-;emen1; ~--"--'-""'''''-'''''-. Relnforceme< ,:~;5Ignea to 3DsorP ...•.•.•.., tensile stre:: . compre~t:, Relnforcerr- comprtSs,. :'clnforument ,iesigned toaPsorV "A-tSses. ! i ttnsion -_....... ! f ....-_..__.-.... cracked ~n ....... Aconcrete section kslgred or analyz!.d ..•..•..... on the assumptlon th3t concrete h4s r.a resistance to tensile stresses. crackInglo~ J i L rtSl5tIng couple AIoad"tha~ c.uses the ~slle stress :, aconcrete member to e:r:cud t~ tens;le stren!)th of the concreu i i...__...._._ strtS54strlbution L.._.__......-...._ 5traln Jlstn'Pution 202 effective are.1 ofcoxrm The area of aconcrete section !1etw~ the compress.,n f;oce artd the w.tWJ oft~ tension relnforce,.r~nt. effectlveart4 ofreinforcement The product of the ~ht Cl'O$5·sectior..;: area ofreinforcement anJ the cosine of the angle Paween Its d1rectlon and the d1rectlon for wtllch Its effectlveness Is ~ ~reinfo~ ~ mIoofeff~a~ of relnfo~ fc effectll'e ma of concrete a-t arr; ~,Ion of3 reinforced concrete memt>er. expressed as a ~~ fi~r-1"tjnforud concrete Conc.~..t rel~ with dispersed. rarukmly oriented fl!1ers ofglass or plastic. gfrc AP~~tlon for glass·flber·relnforced cooc.~..t, _... wtk!t.d-wi;e~mc AgrJ of Iongltudlnal and tr"3nsverse steel wires or bars welded together at all p:;;nts of Intasectlon. usually sped'oed ~ the $lze of the grid In Inches and ~e wire g3u¥, Also called welded- wiN! ~5h. 17alJr.ua se.ction A~~ ~ In which the tension reinfor-~ t-heoretlcally re4Ches Its specif'oed yield strength as the concrete In compresslon ~ Its assume.d uft~~strafn. ovtmfnforce.d ~n Acor.crete section In which the concrete In corrres.slon re4cnes Its assumed uftt:r.z-~ strain Pdore the tcnslon reinfor-..a1ent re3Ches Its spec!f'ledyield stre:r* This Is" d3ngerous conaltlon since ~ffure of the SoXtlon could occur Inst.irltaneous!y w!thout W3mfn~ undeminforced ~on Aco~~ ~n in which t~e ~n relnf~.ent ~hes Its specified yield st~ Defore the concrete In comFresslon rexh~ Its assumea uftimr~ strai!1. This Is adeslra!71e cond'rt,.,lon since ~ilure of the sectkin would De ~ po,. brg.e deformatlons. glvl"9 prior ....mlng oflln~"9 cofta~ ancnorage Anyof~rlous I'r"ans..3S emPedment len!)th Of' koo(ed Ir.ars. for deve!op~ tension or compression In a reinforcing bar on exh side ofacritical sectlon In order to prevent ronahllure or spnW"4- criticJlS«tlon The sectiao of aflexural concreU: member at apoint of m.ax!mum stress. a point of Infltctlcn. or. ?'lnt within the span where ~ston !73rs are flO longer needed to resist stress. l- L L
  • 199.
    f i i 1 ;:~ we!? reinforcement Reinfvrcernentconststl/11 of Pent Pars or stlrrups, placed In aconcrete peam to resIst dIa9Oft31 tenslen. -' tru5511ar Alongitudinal Par Pent up ordown at points of moment reversal In a reinforced concrete peam. ..-·····-·····l1entbar .' Alongitudinal ParPent to an angle of 5O"or more with the axis ofa concrete ~eam, perpendicular to ana Intersecting the Cl"3cklng tlut could :,.------------------ occur from diagonal tenslen. r--------,.L--~'--__. -, or!:~~,U-'h'peJ,,,",,"-klop : :: pars placed perpendicular to the , • ' longitudinal reinforcement of a concrete peam to resist the vertlcal component ofdiagonal ten51on. diJgorul un5ion --; The principle tensile stresSt:s acting at an ar.qle to the longitudinal axls of abeam. vertlcJll reinforcement ~itudln31 relnforument placed In a W1Crete column to aDsorp compressive stresses.resist bendl/11 stresses, and ~uu the effects ofcreep and shrinKage fn the column. The effectlve cross- sectlonal ar~ of vertical relnforcement shO'JIJ not l>e less th3n 0.D1 nor more than 0.06 tlmtS the gross cross-sectional area of the column,with 3 minimum of four #5 ~rs for tied coIumr.s and aminimum of six 15 ~rs for spiral columns. .-.. . ........ ---.. . ~p5pliu Aspl1ce for transferring tensile or compresslve stresses from one Ior-jlUJdlnal u.r to another. made !1y bpplng their ends for a length ~if1eJln !r.lrc::l13meters_ ~ .....- .. b1.Itt5ptice ~~r;::;::=t:~~or ~ ~ltud1nal u.rto another. made!1y ~ttlng their ends together and C011nectlng ~hem In apositive faShle~..._.-... wdaed 'pllu _._..- - ----..../ Al>utt splice INQe by arc-weiJlng the l>utted enas of ~wo reinforcing bars. ~O~[;~~~t~c~~~~~i~'~'~h~'----~ l>utted ends oftwo reinforcing pars '11th 3meclunlcJl fastener. 3S 3 sbeclJmp. _ off~ l1end 0---·--" At>c~d displacing asection of longitudinal bar to 3posltlen parallel to the orlglnaIPar. used esp. In the ,,~rtIc31 reinforcement of concrete co1umns. -. p ~. '. .~ '~.:;': ...~- ;. .~~"'-~ 4:'i~ .' .... t. ~4 .. .". · " ~ : ·'. ." ;.. ;'4' ., "0 · .~ :. .. 4 ~ '. .- I I tied column Aconcrete column reinforced with vertical Pars and InalviJuallateral tieS. lateral ties shou!c::lluve a diameterof at least % tn. (9.5 mm). spaced apart not over 43 tie diameters. 16 bar diameters. or the least dimension of the column sectlen. Each comerand ~tternate lonflltudlnal bar should be laterally supported !1y the bend ofatie having an Included angle of not more than 135", with no bar being more than 6 In. (152 mm) clear from such a supported b3r. top bar A~ of the longitudinal Pars serving as tenslon reinforcement In the section of aconcrete !leamor slapsubject to anegative moment. l?ottom l1ar ~....~ A~ of the longitudinal !r.lrs serving as tenslon reinforcement In the sectlon ofaconcrete beam or slab subject to apositive moment. REINFORCED CONCRETE relnforcedconcreu ueJm Aconcrert beam designed to act togetner with Iongltudlr.al and wep reinforcement In resisting applied forces. ,·Iongitudinal reinforument ReInforcement essentially paraHel to the horizontal surface-of aslaD or to the tong axis of aconcrete beam orcolumn. deepl7eam Areinforced concrete pe3m havl/11 adepth. to-span ratio greater than 2:5 for . conttnuous spans, or4:5 for simple spans. subject to nonhnear distribution of stress and lateral buckling. T-l7eam Amonolithic relnforced concrete construction In which aportloo of the sl3b on each skie ofabeam acts as aflange In reslsttng compressive stresses. and the portion of the peam projecttng below the slab serves as aweb or stem In reslstl/11 bending and shear stresses. reinforced concrete column Aconcretecolumn designed to act ~ether with vertical ana lateral reinforcement In reSisting applied forces. Relm"orua concrete columns constltutlng the principal sopportsfor afloor or roof shotild have a minimum diameterofiO In. (254 mm). or If rectangularIn section. 3 minimum thickness of& In, (203 mm), and aminimum gross area of 96 sq.ln. (61935 sq. mm). - laural reinforcement Spiral relnforcemtnt orlateral ties placed In a concretecolumn to laterally ;estraln the vertical reinforcement ana pre-.ent !?ucl:linl LL..l..I.:=~::::rr"'"""T·l .LJ.-~==:=r:::rr'-- d.;---...... -.. -.• 5pir.11 reinforcement I L-:!:!:::::::::~==rr"'" _, lateral relnforcemtnt COi1slstl/11 ofan ~ evenly spaced COlltlnuO'Js spiral held flrmly In piau by vertlcJI spacers. 5ptral reinforcement shouiJ hJve ad14meter of at least % In. (9.5 mm), with amJXlmum center-to-centerspacing ~ spirals of '16ofthe core diameter, and aclearspacing retween spirals not to exce.ea 31n. (76 mm) norl1e less than 1% In: (35 mm) or 11/2 t1rr1eS the size ofthe coarse aggreg3te. compound column Astructural steel column erlC3sea In concrete at least zVz In. (64 mm) thick. reinforced with wire mesh. __..........__ .. compo5fU column Astructural steel column thorcuqhly encasea In concrete reinforcedilith Doth vertical ancl spiral reinforcement. 203
  • 200.
    REINFORCED CONCRETE reinforuJ concretesbv ArlgtJ plalUr 5tnIcture ofconc;rat kslgned to act ~ wttfI principal anaStGOn.:bry~In reslstl~ .~forces. ()M-WZj sbb ~-----.------.--- ....-.--- A~ slap ri unlfonn thlci;ness reinforced ., one dlrec1:lon anacast ~ra!ly lIttth parallel supporting /:Ie3ms. ()r,e-way sbllsare suttal1Ls onlyfor ~ ~ spans. ~m-Jnd-gfrder 5bb ____________._._._. Ao~W1Y slap ~ by second2ry!1ea~ wflich In tum are supported Py pmry !7e3ms or glrkrs. principal re!rtforcemeltt •.-.--..-.--..-...... ··--·-····-·····1 Relnforcemetlt deslgneJ ta a(,sori1 the i stresses from applied loads and moments. ! 5hrink.agt reinforcement -----......- I Relnforcement placed pt:rpen~ulartathe I principal relnfOt"Ult1ent In aone-wayslab to .i absorb the stresses resulting from . shrinkage or changes In temperature. Also ! called umperature reinforcement. i n~~b .-------------.-..--.--------.--. Areinf~ concrete sbpcast ~rally II'Ith .a seres ofclosely spacedp!ru whldlln tum are supported by ap.;ral'd set cj !Jc:ams. ~1~ slabs.re~ as aseries of parallel T·~ms and econotnlcal for lI'Iedum sp4rlS wtt~ ~M to lned!um !ive baas. Also ~Iledjoist sbl7. topping Athin layerof hlgh-qualJty concrete placed overaconcrrn base to form a floor surf.ice. bonding layer Athin layerof mortar spread on a moIstened and prepared exlstlng concrete surface prior to laylfi1 a new concrete 51317. ...--...----.--..-.--- ------. --.-. distribution rll7 ,.•••-.. Aripformed pcrpendIcular ta thejoists .' ofa rlW?ed sla~ ta dIst:rIl7uta ~ load concentratkms over ab~ area: one r,ulred for spal15l7etween 20 and :30 ft. 6 and 9 m). and two for spans ov~r:30ft. .----------------..---. ------. Joist l7and A llroad. shallow supportIng ~m for a rI~ slap th~ IseconomIc..Ito rorm s~ Its depth Is tM same.as tim of tr.ejoists. ;-.--..-.-.-.. pan : AreuS3!?le metal orftl1erglass moIJ n" use4 In forming a rl!roed sla~. avarbJUie In stana.ra 20- and 3O-I~h (508- .na 762·mm) wlJthsana avariety of ~pths. two-waysbb --.-----------------.---.----.-- Ac.oncm.estlpcj IlllIfonn ~ness reinforud n twodreaJons ~ cast l~rallyMth ~edf' ~ms or be.1~ IQIIs on fair sides.Two-wzy sla~ are ~ fa- N:iIum spans ~~~~IaaJs. continuo~ ,ub Areinforced ccncw~ 51.~ extending as a structural unit CHef tnru or'more supports In ag!Yen d!rectIon. A conUnuous s./JpIs subjectto lower ~nd1ng /I'1O!I'1ents th4n a~ of .dlscme. slll'lply supported slolk. ~_._.. o u 204 u o paMi Aportlon ofa refnforce& concrete sla~ rouMea on all sides ly the cente1ines ofcolumns. beams. or walls. I!J - . [ I n ;:::-_.J1L:--:i=.-=-=-::---i----.~= panel ~p -=1f"--y------:-f---nr- Astrip running In eachdlrectlolTofa :!: 1 1 Ii: two-wayslal7. within which moments -"-~r-""-;--'-:'--'-"" -"--'-r--'--"'--"'I-" - perfoot are assumed ta !Ie constant. 1.1: : ,I, ..-., middle strip !II l ; IiI Apanel Strip. one-half panel In width Iii: : I·' and symmetrical arout the panel ~...ll......._.l..-.....--..-.........-i.........-..H:..- cenURlne. II: l j Iii .-.-. column 5trlp ~-,*.rL:::.=.::.~ .. :::"-=--::'-:_::..:--==t=.L:--=::*.~._ Apanel stripoccupYfng the adJ3unt I I quarter panels orl roth sides of a I I I · : : III column centullne. ~ I l I L
  • 201.
    :!, !~/~ punching shear Thepotentially high-shearing stress developed by the reactive force ofa column 0113 reinforced concrete slau. shearhe3& The ovtm>tres5ed region ofa reinforced concrete slab rt acolumn support. drop panel ~-...--.-- ..--...--.- ----. ----j-- The portion of aflat slab thickened around acolumn orcolumn caplt31 to Increase theIts resistance to shear. ~,,~. .- column capit.11 ----- -.--.------.-... The head ofacolumn supportfor aflat sbb enbrgeJ to Increase the plate area In sheoIr. exteriorpMI AFnel of aflat slab having at least one e&ge which does not adjoin another panel. ---: !nUrlor panel Any panel of aflat slab that adjOins othu panels along all four edges. REINFORCED CONCRm futpL1te Aconcrete slab of uniform thw~ reinforced In two or more dlrectlorl:s ana supported directly bycolumns I¥rtMut ~ms orgirders. Flat plates m su~~ for short to rneJlum sparlS with reb"tivel';( Il:lht live loads. Since there are rIO column capitals ordrop panels, sh~r gcva-ns the thicl:ness of;l flat plate: • futslal7 Aflat plate thlcl:ened at tts cotUll"'w' supports with column caplt3Is ar.a drop panels to increase Its shearstrer~ and moment·reslstlng capacity. Fta-t sI;o~ are suitable for heavily loaded spans. mushroom construction Fl3t slJb construction utHlzlng c...iumn capitals ana drop P~"els. w~slal7 Atwo-W3y concrete sIabrelnf~ ~ r*s lt1 two dlrectlons. W3ffle St.DS m 3~ to carry heavier loads and span ~ distances th3n flat sla~. Supportjrlg ~ms and drop panels can I;le ~ by omtttlng dome forms In se!ecte.d 're4S. dome Asquare met31 or fI~glJS5 pan LI5e.d In forming the rI~ ofaW1ffle slab. m!l:.aD!e In stand3rd 19- and 3O-ln. (483- artJ 702·mm) Widths and avariety of ~pth5. 205
  • 202.
    REINFORCED CONCRETE pr~tr~ea concrete Concretereinforced !Iypretenslonlng or postta5lor.lz'!J hlgh-strength steel tendons Withlll their elastk; limit to actively resist a service road. The tensf18 stress.eslll ~ ~s are tr3nsfrnt<:! to theconcrete.. placing the entireCl'OS5 section ofaflexural memPerIn compression.The resultlng compressNe ~ c:ounWactthe Unsilt-~~ stressesfrom the applied ~ en3~ the prtstrtssed me1I'1Per to ~ less.C4rty agre.ter load. orspan agT'C2terdistance ~h4na conventionally remfurced memPerof the same sht. proportion. and welght. prt't~, r0 Introduce ~I stresses to a concrete ~Per In order to counter3ct thest.resses thn will ~ f1"OI'1 an applltd ta.d. preUn,lcn ................................ r0 pres~s aconcrete meml7er !Iy tenslonl~ the mnrorclng tel'laons 11ef~ the concrete Is cast. The tendons are first streUhe!:f petween two alluw.ents untUapredetermlnea tensl1e force Is ~ Concm" Is then C4st In fonnwork ,roun4the tenJons and fuJicured. ~ily. the tendons arecut, ,ndthe tensile stress In the tenJons are transferred to the c.onaetetilI"OU9h bond stresses. tendon A hlgh·strength sted strandor !73~ for prestressing col'lCrt"~. •._.._.....: stnnd Acaine composed of hlgh-strengt:h steel wires twisted aPout acore. ~ .......... "'" .......• aputment . Astructure fer ;;r.chorlng the relr1forc:~-.l o tendons In the pret.enslonlng of-a concrt".<: lr.emDef. ;-._................ anchor 1 Amechanical devIu forlocllng a st~seJ i tendon In position anadelivering the p-es~sl~ force to the concret". ettJ'~ ~ ! ~ per.n3nently Ir1 a~slontd me1t1Pt:rer ~A"ffl~~ =~duC:;;:~l':.~"Cd casting l1ed Along horizontal slap 00 which anum!1e1'of pretenslo~ concrete memPers may pe prestressed. fOl1T1ed. and cast slmultar.eously. ;............ juking for~ ~~t:t;l±t~.tt~:~~:~:;~ ~ ~slle fcxu e::t..er1"...ed temporarily by 3 jaclln the prest<tssJng of acor.crete Ir~mber. j4ck Ahydraul1c ~ for stretchIng and St.res5I~ ~ In the prestressing of 4 concrete member. initLll prestr~5 ~ tc1sile: fcxu!n the reinforcing ~n~s transferred to a concrete member at the tlrr.e ofstress1"4 ~ofp~' A reductlon In Inttlal Pf'tStres5 resuftl~ from thecom~neJ effects ofcmp. shrlr.&:a9t. ordast:lc s~nlng of the: concm.e. re~tlon of the relnforcln~ ste.el friction losses resultl~ from the curva-ture ofar.pea tenaons. arJ sllpp3oe at PIe ancoor.f¥S. firul pr~tre" The ~lstres5 th3t exists m a p~ concrete mtn1Per.-fter all losses k1 prestress luve occurred. -effective pr~tr-ess l?~~.~~: l+:~r : :.....- comPIneJ5trt55~ The fl~1 prestress In aprestressed . conc.rete ~mPer.lncludlng tM effect of the weight of the: memPer ~ut exc!udlng the effect ofarry supcrlmpo~d load. p.ut-ul pre'tressi~ The prestressing of ACOI1cre~ member to .. level of stress such tlu t IlOmlna! ~s1le stresses exist at deslgn or serviu loads. ,. -. -- _ •• c••- •••.•••.•••••••• dead load strtsses ....................- live/oMstrtsses 206 l l l L L L L L I L .•
  • 203.
    REINFORCED CONCRETE ...• po5ttensicn Toprestress aconcrete mem!:>er Irt . tensioning the reinforcing tendons after the concrete has set. Unstressed tendons are placed In sheaths before conc~ Is cast In formwon: around the tuPes. After the concrete has cured.the tendons are clamped on one end andjacked against the concrete on the other end until the required force Is developed. The tendons are then ancho~ on theJac~lng end and thejack removed. 1?onded posttensioning Posttenslonlng In which the reinforcing tendons arePonded to the surrouitcllng concrete !1y Injecting grout Intothe annular spaces around the strands. unbonded postten5roni~ Posttenstonlng In which th6 annular spaces around the reinforcing tendons are not grouted. allowing the tendons to move relative to the surrounding concrete. shuth Atube for encasing tendons In a posttenslonecl member to prevent their bonding to the concrete during placement. pre-posttensicn To prestress aconcrete member!1y pretenslonlng same of the tendons and posttenslonlng others. .-.......--..- concentric tendon . Atendon luvfng a straight tr;;jectory cofncldent with the centrokfalaxls ofa prestressed concretememrer. Wh~ =t---.-.-.-.-.-~.3= tenSioned, the tendon produces a uniformlydlstril7uteclcompressive stress across the section thn counteracts the tensile stressfrom ben.::l1ng. .-.........- .. eccentric tenacn .: Atendon havlng astraight trajectory nat colncldent wtth the centrold3laxls ofa i ++I~ , =b.-.-.-.-.-.-~.+ prestressed concrete memrer. When tensioned. the tendon produces an eccentric prestres5ln~ foru th3t reduces the compressive stre:;s across W. section toth<lt produud by bencIlng alone. WJ ~;1lancfng The concept ofprestressing aconcrete R'Ie1r.~r with draptd tendons. theoraic311y rt:Sultlng In astate ofzero ~n under2 given loading cone/ltlon. /----.. dr<1ped tendon : Aposttenslcnlng tendon having a parabonc trajectory thn mirrors the ~ dlstribuW gravtty load. When tenSioned. ~ ./ momentdlagramofaunlformly t----·-·-·--·-·-·~·~<~ ~:r::~:;o:a:the variation In applied pendlr.g moment along the length ofthe member. .....--..................- ......• depres~tendcn Apretenstonlng tendon that approximates the curve of adraped • tendon with stl'3~htllne ~ments. used In the pretenslonlng process since the prestressing foru does not allow for draplr.g the tendon. . '.........-........... harped tendon One of aseries of depressed tendons having '/arylng slopes. 207
  • 204.
    ROOF The external uppercoveri~ pf af,uitding.lndudingthe frame for supporting the roofing. flnroof Aroof havl~ no ~. or OM ~ith only aslight pltcls so as to drain rainwater. pitchtd roof Aroof havln! ooe or more slopes.. hip roof.•.__.. _..........._............... Aroof having sloping ends ana sides meeting ~an ~ned projecting angle. Also. hipped roof. curproof Aroof dMded 011 each side of the ridge IrTtc two ormore slopes. as agam!1re! or mart53rd. nta"'trd •......- ...._................_... Aroof havI"9 en each sideasteeper lower pmand, shallower upper part. Also ~tIeJ ~rd roof. I7utterfly roof ~.................,......................-: . A roof having two slopes; each ~ descending Inward from the eaves. ~hed roof- ..............................._...............- Aroof h2v1ng aslngle sk¥. lean·to .:........................_...... Ashed roof with the higherend al7uttlng awan or larger I7ulldlng. penthou~ Ashed roofprqectlng from a waII or the side of aI7ulla1n<j. as to shelter a door. Also called Jppentlce. pent. pentlce. 208 :.._......._.-...... pitch / The slope of aroof. commaniy ;' expressed In Inches of vertical rise per / c----------- ..----- ::01""_"1",,_ i i The measured height of asloping roof from the eaves to the r'.aqe. ..t-.~~horizontal distance from the eaves I to the rI~e ofasfopi"4 roof.. paviticn roof ...- ... APY'"3mlJal hlp roof. ~~~~.......• hj~a gal7le Aroof having ahipped eM tru~tlng aga~ Also c.;11ed Jerkinhud. shreadhai .~...•..- ....... gaml7rel roof ./ A~eJ roof divided on t4Ch side Into ashallower slope abo.re.ii steeper one. ..-._.........- cur" Thearris retween an upperanaalower slope on agam!1rel or ma~ard roof. ..•._....... '.-~ ralnl:oow roof . A9!11e roofIn the form ofa Proad GothIc arch. with gentfy sloping convex su~ ,'- I:rarref roof . Aroofor~mng havl"9 a semlcyllndrlcal form. ... ,awtaoth roof Aroof composed of aserlts of small pmrd roofs of trlanguiarcross sectlon. u$U4ltf asymmetrical wlth the shorter slope glnd ,J r J .J .J ! 1 Il.J .)
  • 205.
    ,kyi~1tt An ~nln~ InaroofOf' ceiling. glazed with atr3nspamrtOf'transluunt rnaterl3l for admitting daylight. f3U The IncUnea.llsually projecting edge of a slopln~ e~ monitor Araised COfI5truction 5tr;idann~ the ridge of aroof. having windows or lowers for IIghtlng or ventllatl~ a17uilding. _. The OI'erna~ loweredge of a roof. Also. eav~ ~........-""-.~. As; 7 //1", / . , (, : /-'r I ' /" I 1 Y I ,addle ~-......... -.: A~e connectlng two higher elevations of aroof. cricket •._............................._..- Asm.;a11 rooffor dlvrnlng r3lnwaw arounJ aprcjectlon. IS achlm ney. on a slof'i~ roof. Pox gutter A gutter built Into the slope of a roc{ aDove the cornice. __...__.,._.-.. ~rPoard Aro..rd laid ~ to the gutter on a sloping roofto~~ethe turned·up eJge of the rnetJlllnlng. Also calteJ layer l10arct I I I I 1 I ~ :l . 1 I /., ..•. 1 .-- 1 .. ~. I I I I 1 I I 1 ,.) {.,// a~ gutUr ~...-......- ..._.._.__...._...._.._~ b A gutterhav~ aV-sh3~ section. ftxe.d W to the eaves of:a I7ulidlng. lunging gutUr Agutter bstcned to the ends of r.oft.us or to afuscl;uttne eaves of aroof. -.--.....- ..~ gutter ha"¥r Arr.etal strap or bracket for 5U pportlnq arJ seCUrl~;I gutter.. spike-arld-ferrule AIonq·nat1·and·fonr.e.d·metal slee-,e for fastening <I gutter to the eav~ of <I reef. ROOF ............._.........., rkfge Ahorizontal nneof Intersection at the top l1etween two sloping planesofa roof. ............,.._..•valley An Intersection of two Incllnea roof . surfaces tovmd which rainwater flows. ..-........ hip . The Inclined projecting angle formed I7y th(:Junction of two adjacent slOping sides ofa roof. dormer A projecting structure l7Uilt out from a sloping roof. usually housing a vertical window orventilating louver. cheek Either oftwo similar sides ofa proJection. asadormer or17uttress. shed dormer Adormer h.-wIng ashed roof. ~~"-..- ..- ......- gaple dormer Adormer having agable roof. ...............................···link dormer Alarge donner that houses achimney orJoins one part of aroof to another. eyel7row ~ Alow aonnerhaving aroofthatlsan ~ upwardly curvtng contlnuatlon of the main roof plane. ....... roofdrain Adrain des~ned to recelve water collecting on the surface ofaroof anato discharge It. Into aleaderoraMwnspout. .... ~upper An opening In the SIde of 3 ~ulldlng. as In apar3p~t. for draining off r3lnwater. gutter Achannel of metal orwood at theeaves or on the roof ofaPulidlng. for carrying off rainwater. Also called eaves trough. ..--...... leader head The ~11ke head ofadownspout connected to a scupper or gutter. ...'...... down,pout ... Avertical pipe for conveying ralnwat-er down from:a rooforgutter to the ground. Also called dralnspout.l-e.14er. 5hoe The 17ase ofadownspout. curved outward to direct the flow away from the wall. ... 5plJ'h plock Aprecast concrete Moc~ having a .::--....... : depressed. splayed surface. placed at .;,~:.' .,.~~,..~, the base of adownspout to disperse _ '.>~ ",7""jj rainwater that woukl otherwise erode ----~ the soil. 209
  • 206.
    ROOF douWerocf Aroofil ~ Ior.g~~mem~••sa ~ beaII and purilns. m us.e.d.s ~ supportsfur common ra&rs. ~ C4IW ~-frarud roof. king pest _.-._.-............................-.......................'. Avc:rtbl ~mPtr from tht arex ta tht . rou.om~a of. plUhed truss. .'.... jo99le~ A~ pas;1t4v~ t?t.Ches or i.iiseJ are3S for ~ ana supportlng the fet"t of Inclined 5tt1rts. Also C4lbljoggl.e~. jo~ . .'-.-.-..-. purlin :- AIongftudll13! meml1trof arooffrall1e for supporting common rafters ~ the ridge and the eaves. Also. purfll14S. Also C3l1ed I1fndl~ ratul". 5ubpurUn AlJ~ht structural memperfor C3rrylng roofing I!13Ur13ls. supported!1y and runnIng at right angles to pur/Ins. ---....----.., common raftu Arafter extendIng from a wallplatc to .. ri~el1a.ra or rldgebearn ana h3v1ng no functlon other than to support sheathing and cavenng of aroof. ..,. poleplm A!;team perpendicular to the ends of t18 I1eams In • trussed roofand supporting common rafttrs near theIr lowerends. An enb~ are;;! of. postfor supportlng theftm(/astrut or ma. kingtru55 -~~~-~.-.----.--..----.• princlp31 rafter ApItched truss havIng a~Ing post. auxili3ry r3fter Arafter relnforcl~ aprincipal rafter stninil'f~----.-...--...-- ..-... -...-....-...........-....--.---,. /~::jJ::>, ::s:.ar,:~~~~~i~. A~I t:le ~m uniting t~ taps of /~.. / '<>" two~pcsts.AlsocaIW stninl~ ,,/ " I7e.1m.. 'I.ueeQ post ------------.--...---------.--.,c-"'..r,.-N-:>£---.-"'i Elt:her(/~ ~~ ~ mem~ set~. Jl5t:.nus from th.e ap6c of• piUhedtnIS5. t1e~ AhorlzoWl tJmber for connectlng two ~ =-c:mbers to Uep them from ~ lp<lrt. as;;l ~m conn~ng the feaof~ prit1clpal r7ft.ers In. roof truss. mai~~ ./ ACQIn~ rnemM-~ng along ana r---...----.-----/ ~~~ ~ ~m of aIuterl truss and ~r.I~ ~ feet of1:he ,ueen posts. hammer po1t - .....-....-...-...."--'........"--"---'. A~~setOCl th6lnner ~ of. .... ~ft1II'IerIa~;alund mud~ acorlar be4rn . aOM ~s-pp:rlapo.Jr"'- ' h.1m~~m ~---.-.....-.---.......-.--...-,. One ofP*(/si10rt ~I me:mt>trS ". attacheJ~ die~ (/aplinclp2l i.ifter ~ UIeb-d of~ W41U pIN."seaIn ~ ofatic be;am. ummer~ --.---------...----..-__ A~forsu~3h.mn:er~m- .---- ~ ASI.I~ projecting h.xUontallyfrom a IQd to bear the weight of. cantIlever or to~.n.1ngk:. pendant~ --------...--..--....--.-... ~~nttu's Ap~hed truss having tw0'1ueet1 posts connected Dy astl'3lnlng piece. Avertlcat tlmber supporteJ at ftslower end (,ya~ and carT)'kl4 at Its upper end ahallWler ~m or ~ ~II'L hammer'~e3m roof Aroofsupported Dy hammer !:>eams. 210 Adiagonal mem!:>erof. roof principal usually forming part of. truss ana supporting the purllns on which common rafters rest. principal AmemberIn aframt structure upon which adjacent or similar members depend for support or relnf~t. arch hace Acurved ~rau. usuallyused In pairs to support aroof fume and give the effect ofanarch. cruck •.J Oneof. palrof naturally curvea timbers. forming one of several arched frames supporting the roofof an old Enghsh- cottage orfarm l1ulldlng. l l l L
  • 207.
    ~ue.Jm APam for supportingthe upper ends of ~ at tilt riJ¥ ofa roof. ; I I ! [II! II iiIll! i l_._..___~" tap cut ------------- ..---.. ------.-------- Aplumpcut at the upper end of a rafter where it !luttsagainst arldgeboard. plumu Vertlc.olor~f<;ularin direction. stepping off ------- .--------.-------------- ----------------.----:/ A~ ofdetermining the length ofa raf'"...er with aframing square.17y marXlng an Increment ofangular length for each foot of hortzontal rurt Ioo~ut ArelJtlvelyshort mcket orcantllever for SJ.Jp~ the ovemang ofaroof. Also "lied bffp!ue. ·-------1 fly~r EIUIerof the en.:! rafters In ~ plrt ofag3 PIe roof tilat ~s~theg3ble "",,11. -----. Varge ~upk: L._____.... outrigger Apalrof I'3fUrs supporting the part A!leam extendlng outward from amain ofagal7le roof that projects !1eyond structure to support the projection of the ~I7I.e W3l a floor or roof. ROOF riagel10ara Ahorizontal timberat the ridge ofa roof. to which the upper ends of the rafters are fastened. Also called ridgepole. ridgeprece. roof framing The act. prcx;es5. or manner of COnstructing the structural frame of aroof. couple Apair ofrafters connected!;y acall3r ~m or tie beam. Also calleJ couple-cic~. /'--'- --------..-----.------....---.-: collar ~m cellingjcist - ....! AJoistfor carrying the finish ceiling of a room. knee wall Ahorizontal tlm!1er unitlng t,.,.o Opposl% common rafters at apoint t-.elow ;he ~. usually mthe upper h3ffof the rafter length. Also called collar tie. r------·-··--· rafter Any ofa~rles of SItl3I1. par311e1 beams for supporting the sheathing a,..J covering ofa pitched roof. Ashort wall supporting ~rs at some Intermediate posltlon along their length. ..-------- bird's mouth ./ Aright-angled notch cuton ~ ...- underslkof arafter to fit Ofera / ..,. Iongltudirt31 memw. as awall pl3te. seat cut Ahorizontal cut at the lower end of a rafter th3t allows it to rest 00 and !Ie connecteJ to awall plate. Also called foot cllt. pIaU cllt. jack Having 3 length or height less than that ~ most of the others In afrarr.e.d strurnre. asaJad: raft;eror~ troS5. J3ck r3ft".er length of the roof slope. as lXle meetlng a ~ Any rafter th3t Is shorter t.1an the fun ~~ hlp or II va!ley. ~'=-- valleyjad AJack rafter extenJlng from avalley rafter to a ridge. V4111ey I7fttr -- Araft.e:r connecting the rld¥ to the W4R plate atong avalley. cripplejack Arafterjolnlng ahlp to ava r~. Also C311ed aouPkj..tck rafter. ~ hiPjaCk AJack: rafterextendlngfrom; W411 plate to ahlp rafter. hiprafUr . Arafter forming theJunctlotl of the sloping sides of ahlp roof. ~ar¢'o~rd l1acKlng .-------------...-..---..--..------......-./ A!1<nrd. often carved. attached to A ~el given to the outerand upper edge the pro¥:c~ end of aga!ne roof. of ahlp rafter In order to allow sheathing Also called veTgePoard_ ---.------: to fit the top of the rafter without leaving atrbngular space !1etween It and the Iow~r.- sk:k of the roof covering. ..' cheekcut ...----....-..--- ..---.. An oblique angular cut at the end of ajack rafter ena!1l1ng It to fit tightly against ahlp , ~'''''''Iley "I"" Alsocall<d sid< cut. aragon beam Ashort Pe3m receMng aM h&1ng the foot of ahlp rafter to counteract tts thrust. Also called dragon rue. dragon tie An angle brace for supporting one end of a dragon ~::am. 211
  • 208.
    ROOF rocfi~ r---------- ---sheathing My of v;; r"oJs w.wrt$l5t.nt materlals. ~s sh~b, sbtts. or tlles. bid on aroof to shea Cf dnln nlrooter. $hj~te Athin. u$UJ~ ~ ~ of wood. ~5P!U1t1c nt..erbl sbte. ~r. or conaete. bid In Or'erlappi~ rows to cover ~~~~~~~;~~;~~~!~~Iii~i~~ Boards or structural p;;nels. as plyrYood. fastentJ to the fra~ of awall or roof •s ~ Ua5e for cL-ufdlng or roof1ng_ panel clip An H-5haptJ metal aevluforJolnl~ sluts of plywood roof sheathl~ at unsupportedJolnts_ .-; t.l,e roof • ~J walisof Puild1~ 5. ~- -.--.----.. -. - .---.. -. t==;r==il===:;;::==G:=:==;;;=====' UnIIrication The over.J~ ofsh~~s or roofing tlles with!n-e3i:,~ to fonn;a weathertlght covering. 1I~lcjaint! ---.-----..------------------ ----.- --.---..... The ;arr;a~ of PuIIJl~ units. as masonry. p=dJ:==r====:Jb==;;;===Jb==;r==:J shlngles. or sldI~ to ensure that vertlcal FiniS are root ccml1'lUO'J5 In adjacent courses.. Also calleJ ~~ joints. E± - . --------------, underl.1yment Aweather-reslsta nt material as roofl~ felt. for coveting and protecting aroof deck Defore shIngles are appfled. ------------., t3V~ fbshlng common lJp •. -.~-.--.--.-...-.-.-------...-~--~~===~===~===~===~==::::~ Amethod ci l;iying sh~~s by offsetting An addltlonall3yer of underlayment cemented to ~ roof ded to prevent meltIng Ice and snow from Packing up under the rooflng along the eaves. alternate c..."'Jrses one-haIf the width of a shln~~. §5?2j::~£e~~~ '. ~~~;;~~;;h;;;~~i;;;;:.~A Of' roofI~ ~ ~ expo!d to the weather _ ..-..... lIrf.en b~ iI ~ Also ~nea §-3~e. . ~ ~p -------------._-_._-------------_...... Tl-.e dls~i'U ~ which ~ shlng~. slate. or rocfI"'9 t:~ ~ps ano-"r.er In the second COIJI"5e ~l ...... lt_ ~~p . __._---_....._. Acourse Q' ~of roofing materIaI ~?lt r-'~ of aroof. ~COII~ •.....-- ... -- ..-- .• --.-. ~ top c..Jt.)r$t of shlng1cs, states. or rooflr.g ul.es ~ to arJ¥. cut to the requlreJ ~< .. .' n)-l,on~ •.------.--------00-----.-··· One ofthe *..tr'IUUCO.lI'"SeS of shlngIes Of slJte 12~ lWith $horte:' or longer ~re_ ~~1'ed CCUrH .---.---------------------- -.-- Accurse cI ~ laid JII'lth the Putts ~Irtly a~ or ~ ~~ one adjacent. 6oupnng~ AaouPle ~ of$hlng~s Of' utes laId at the foot of J roof slope Of' • vertical stCtlon of s)I~hng. ,t,arti~ C-C'JNe ~ first ~rse of$hl~es. sldtes. or u~ alo~ ~ e4Ves of • roof ~ore the first ~ular WJr5e Is !dId. 212 drip edge· .--.-.------.---.-- -. --.: A metal moldIng placed along the eaves and rakes of aslopIng roof to allow rainwater to drip free. -r-r I I I I I I I : 1:':; k~l'~ ~~ ~ :::~ ~~ ~ j f- 1-----·_-------_· ~ ... ice dam AIrollaup of snow and Ice along the e3Ye of a sloping roof. Dutchbp A method of laying shIngles or~ Py ~pplng each shingle over OM to the side and one !?eiow. sldelJp The distance I;>y which ashingle. $bte. Of' roofI~ tlle overlaps an adpcat~ oneabng Its side ed¥.Also called endUp. ccverage The amount of weather protection provided 11)'the overlapping of shl~les orslates. 'iu:ue Aunitfor measurIng roofl~ materials. equal to 100 sq. ft. (9.3 54 mJofcove<¥ asp~lt shingle Acomposition shingle h3vlng an aspkaft- Impregnated felt trase. surfaced on the weather side with colored mineraI granu~ em~ In ahot aspbltlc coatl~ fillergbs6 'h~!e Acomposition shingle h3'(~g an Inor~nlc fl~rgb55 :7a56. saturated with asphalt and surfaced on the we3ther side with colored wamic granules. ..-'-"~~~-4-- clo~ valley Ava/ley for1n&:f 11)' overbpplng ~ ccursesof shingles In alternate d1rectlon:S. Also called I.1ced val~. woven valley. .....".~~;..:.r- open valley Avalley at whIch shingles or slates are rm laid to the !nte~lon. exPOS!!1g ann~ of sheet metal or roll roofl~. __ -. valJeyfushing A wide strIp of sheet metal or rooflng felt for linIng the va lIey of aroof. I . 1 I . ~ i r~ I I ~ i .... l. l.
  • 209.
    :-;.' ROOF plue L1PeI ----.-------------dime",icn shing~ Aprtmlum graJeof red ceclar shingle of c~r, ~e-gralned heartwood. red IJPeI Art Intermedl3tegrade of red cedar shingle Imlng aImltea amount of flat _~raln and sapwood. l1L1ck bDel Autility grade of red cedar shingle. o undercou~ Arow of wood shingles laid along the rake of a sloping roof wfth the Mts projecting outward to give an Inward slope to the surface shingles. Also caned under-cloak. spaced sheathin9 ---------- ------- ---- ---------- J..-' .- R.ooflng roards bid some distance apart to provide ventllatlon for l'I'OO<f shingles and sh3kes. Also caned open ~oardlng, skip sheathlng_ f'ostcn hip -------.------------------------;-.------ The weaving of shingles at the hlp or ridge of ;i roof. Also called 5cstcn ridge_ weaving Amethod of la~ shlng~ on adjoining surfaces ofarooforwall $0 that shingles on each face lap each other alternately. fascia Arry l1road, flat, norlzontalsurface. 35 the ouUr edge of acornice or roof. -...- fascia l70ard ~rni~ return ---~ The COfltlnU3tlonof 3cornice around the g3~ end of.Oil house. diagolU151Jtl~ Amethod of b)i114 roofing sIates with the diagonal of~ tHe running horizontally. AIsoC311ed drop-poInt ~. hcneycomu flbting Dbgo113Islatln~ In which the tails are cut from the rooflng slates. I10x cornice -------------~ Asl~htly projectit1g, hallow cornice of !:>cards and moIdJ~, r03iW to rafters and Iockouts_ Also called cfo cornlu. Awide roard set vertlc.ally to cover the lowerendsof raftc-s or theJoint recween the top ofa wa" arid the projectlng eaves. Wood shingles cut to auniform s1zt. random shingles Wood shlnglts of uniform length, Mof random width. --sha~ Athld shingle formeJ~ splltUng a short log into .. numPer oftapered radial sectlons_ tapersplit shake Ahanaspnt snake tapered by reversing the l11ed with each spilt. . ~ handsprrt-and-~awn shake Ataperspllt sha~e hzvlng aspiltfau ana asawn~ ",-- straightsplit,luke Ahanasplit shake of uniform th~. ''---- f,utt The thid:. usually Io~ exposea eM of awood shingle or shake_ ;- sprocKet :. Astrip of wood ftxed to each rafter at the eaves I" oder to extenJ asloping roof Wfth ;:I flatter pitch. Also callea cocking pieu. - rafUrt4n The lower, sometllT1¢.5 exposed. end of ;; rafterthJtovem3ngS3 waiL .-- tail cut Asorr.etl~s orT13 mentaIcut at the lower eM of 3 rafter tail open~miu An e3Ves overhJng exposing the ends of rafters and the underside of the roof sheathl~ Also carlea open eaves. -------- sized 5~ RoofIng sb"tes of uniform width. ranacm,uu, RoofIng slates ofV3l)ing width, often laid In dIminishIng ~. Also c;ar!ed rUst«; ~us. ------- head The up~ end of aroofing 51&. open slating ·-·------------·--------·------'f'---F--",,;---=--=---=·-'~ ....:=;=;====rr==r-l= Amethod of~ roofing slates with spaces ~ adjacent ules In a course. Also called spaud slatJng. /=.::!::::===.~---- tail dimini~hing co~ One of ;:I number ofcour.x:s of rooflng slates that dlmlnl$h In exposure, and sometimes width, from the eaves to the ridge. The lower. ex~ portlon ofa roofing slm. t ... slating lUi! Acopper nail haYIng allrge, flat head and 3 medium-dlamond-shapea point, u~ esp. for flxlng slates. 213
  • 210.
    ROOF rocfi~tile ArtyofVlIrious Ct.y orconcrete tlles for coverI~ aroof. field tile -------.. ---.-------------, One of~ ~ tl1es covering ""-,_ the 11131" expanse oh roof. - hipti~ ~--------.-.---.------',. Aconvex rrofl~ tllefor ....... W>'eM~ the hlp ofa roof. ',,_, Also oiled pon1rt tllt. eaves cour~ _._____._.____ 1 Afirst courseof shingles. slates. IY' tiles on aroof. Var~cout~ --.-.--------.-....-- Arowofslates or tiles placedon ana projecthlg OYer the mln~ ~s ofa gal;le, rUIge tile Acanvex. 500".etimes decorated roofing tI~ for caverlng the ridge of aroof. Also oiled crown tife. ~-; nuti1e --...-.-.-.--.---------, A ~ We forT!1ed tocoverthe -.•..."'t:~~=======~===::=::::=::= r3l:e ola sloping roof. arri'5~1e A., L-5haped rooflng tilefor COferlng ~~. hlp. or ,..keofaroof. Also Q~'~'~~[--~ o·t1-canning 1l-.e s~ht wavfness of a shea metal sumu. co~rooflng - ....; Aroof COo'erlng ofcorrugated sheets of galvanlu.-J iron. ~t.ed steel. aluminum. fi!:>ergbss. orreinforced plastic. cop~r roofi"9 AroofCCfering ofcopper sheets.Jolned by st3na1ng seams. tinroofi"9 Aroof COtering of IbIPle tinplate or ten'.qlate. ,-tarter tae --..------.------. Arooflng Ule. usually shorter orplainer th.'ln thefie1J utes. pl3ua underthe ~es course tc give It:i proper slope. ~roU Arounded C4 pfor CC'erir.g t.l"e ridge of:i roof.•.--~ nola-down cUp -------.........--.- Ametal clip for securing ~gths of shut rnet3t ,- overcloak -.-----.----.-.---..-.,..-" The part ofasheet of metal roofing thzt fapsC'er asheet l1entath it at a .// drip or Se4m. ul4krcloak -----.-....-- -------.-. --/ ~ k>wer ~ of metal rooflng at a drip or seam. ,.---------- tile tie Atwisted wire tie exter,alng from the e4ves to the rid¥ of aroof, to which rooft~ tiles are secured. ---. missIon tile Atapered. semlcyllndrlcal roofing tile bid convex side up to overlap flanking. similar tlles laid concave side up. Also called Spanish tlle. ---------. im~rex Atapered. semlcylindrlcal rooflng t~ laid convex side ~p. ----.--.-. Ugula ~. . . . - -. Atapered.semlcylindrlcalrooflngtllebld . . concave side up. ,,----'--- pantile Arooflng tile having an 5-shaped cross ~n. bid 50 the downturn ofone C'ertlps the upturn of the next In the same course. Cl2 -I ... pan-and-rolltiling ·J Asystem of roofing tiles consisting of tapered. semlcyflnarlcal tiles C'er!applng the flanges offfat unMrtlIes In the same , course. .£~~~~.-...-...---.--.-....--.-. interlockIng tile "~- tilting fillet Aflat. rectangular roofing tile having a groove along one edge that fits rNer a fu"4e In the next tile In the same course. ------.--. 'hingle tile Afut. rectangul3r roofing tile laid In an C'erlapplng pattem. '.~---- ..-....- ~atten Anorlzontal wood strip on which roofing tiles or sl3tes are hung. Awooden $trip of triangular section usea to ~ise the edge ofaQoul>le e4ves course and ensurethat the tail$ of the lowesttiles pea tlghtly on each other. Also C<!llea arris fillet. ~ .......... .------. lock ~3m .........., . . / AJolnt l>etween two pieces of sheet metal , .... made by foWlng up the adjoining edges .' against each other. folding them over. ana futtenlng the Interlock. -~.~~. .._...J.--. ,~naing ~m ••.•••• •..•..... Ajoint l?etween two pieces of sheet I1'Iet.il -"'''' ... made byfoldln!! up the adjoining edges ••••••• . 3g3lnst each other. then folding their upper " portion over In the SJIT1e direction a numPer '. . oftJmes. r--:"'-' l1atten ,eam .."" : AjoInt 1?etween two p~ of sheet metal. ... : made by turning up the adjolnlng edges against apatten and locking them In pI#ce with ametal strip placed over the lr.Itten. .......-...... roU,eam Ajolnt ~wun two pieces of sheet met4lln the directionof fall of acurved or sloping roof. made Py turning up the adJoining-edges against each other; then !:lending them around to form acylindriC<!Iroll .,·-17eaa An edge of sheet met31 stiffened by pending and futtenlng anarrow strip or rolling the edge Into atu~ shapt:. Mond metal c1ezt--···-- ..............-........-.........-.- -....-.-.-........ . --~-~ Tr3~mart for amndof an aJJoy consisting mainly of nickel and copper. 214 Astrip of met41 Of' wood attached to a surface to restrain or support an e!e",ent or me1:';u. L JI : I ~ I -' I I I I M i I /.. l I L I L
  • 211.
    r i j Hypalon r"deman:for ahana ofchlorinated polyethylene. I fluid-applied roo&g ~--. Acontinuous coverl~ for roofs ofcomplex geometry. conslstl~ ofan elastomerlc material as neoprene, Hypaton. or butyl rubrer, apple<J In multiple coats with a roller or spray gun and curing to form a contlnoous membr.lne. structul'3lllt5ubting roofduk ~.: Acement!tlcusInsubtlng ~oard of Ilghtwe!gh~ agg~ate crwood fl~ ronded unJerpressure wtth portland cement. having afactory-finished underside for use on roofs with exposed reams. EPDM Ethylene propYlene d1ene mOflomer. a synthetlG rubl1er manufactured In sheets ana used 35 arooflng memmne. ROOF .....-- -.----.--...-..-...--..--. single-ply roofing •••-.... Ashut ofel3stomerlc llUteri3las ~,,/ ,"" necprene, EPDM. or PVC, fm1ng 5e3~S :' fused by heat or a sof.'ent. ftxed to aroof / det;.k with adhesNe. rneciunlc3lfasttners. ! Or by the weight of a grave! ~11a st. Also ,.......".6.---.,....-..-..........,.......--.-..........~·_____.,.......rv called rustc~ric ~. -=----;,/ elasUlmeric I f I Having the elast~ qualltles of natural ruL1>er. '-...- gravel SUlp Ametal strip with avertical runge for retaining sumcI"4 a~~ and • preverTtIng leaks :around the ~ ofa I7uItt·up roof. . r--- p~ membrane rocf ; Aslngle·ply rooflng mem~r.e p~ ~liiDiiiillliiaa~ from sunlight ana extremes of tempmture by alayerof r~iJ board ..i Insulation ana an aaaltlonal !ayerof gravel ~all.:lst. ."~-'-----'--------'---' selvage .•."-;' The edge ofa sheet ofroU rooflng th..t is ..-- / ~ of granules anJ most of the aSpflaft coaUng SO as to provide a~ter rond with the lap of the next shut. -------.-------...... roll roofing : Aroofing m.oter131 consisting offe!t saturated with 3:Sphaft artJ surfaced on the weatherside with ahar~ asphJft mlxeJ with mIneral orglass fl~rs. ana a coretin9 of minerai gr3nules. bitumen Any of'r'3rious mixtures of irydrocarrons occurrin9 natul"Jtly ordlsU~ from C04l or petroleum. as asph31t or coal tar, used for surfaCing roads. w.;terp~. and rooflnq. Before appllcatlon. the semisol1d rrtit'".er must redIssolved In .. sotve:rt. emulsif'.ed. or heated to a liquid state. asp1'13It ADrcwnlsh-Dlad mIxture of ~mens obtained from ~.Jtlve aeposr-..sor as a petro!etJm by-product. used for paving. waterprooflng. ; narocflng. coal t.ar Aviscous. bbcl: !lquldformed during the dlstIlbtlon of co.l uSe.a for p-alnts. waterprooftng. .na roofing_ ~ ...- wearccu~ rigId bo3rdfnSul3tJon .-------. --. ------ ---- --- --- Alayer ofgravel serving to protect a rooflr~ memml'lefrom mech3 nleaf aUr3son ana uptrftlng wind fof'ces. cold-proceS5 roofing Aroofcovering conslstlng of layers of roofing felt or synthalc faDric bonded and s.ealed with acold application of an asphalt mastic orcement. roofing bond Aguar3ntee Uy asurety compa ny that a roofing manufacturer 1'1111 repair aroof m~mbrane orcovering under the conditions listed In the bOtld1ng contract .,----. cap shut Ashut ofcoated. mIneral's~rfaud feft. used as the top ply In al7uitt-up roof. ..-----._---- ..... l1a~ ,hut l1uilt-up roofing -----._. AcontInuous covering for flat or low· pitched roofs. COMsIstl119 of altematln9 layers or piles of rooflng felt and heated Dltumen. surfaced with acap sheet or a lJyer ofgravel or slag In aheavy coat em!1edded In bitumen_ Afeft Imp~nated with asp'.JltarC04I tar for use as the first ply In th~ layInguf a~Itt·up roof. roofing felt Amatted. fibrous m3terlal i~pr-e9nat;ed with abltumlnoos material b- increased tcughness and resistance to ·~ther_ Also called roofln9 paper 215
  • 212.
    ROOM A portWn ofspau withina l7Jlkfing. ~arJt&i by walls or parW:i~ from other similar spaces. ,nteroom Art outer room ~ ~ toalarger, ~ ~nt room. often used as a W3J1;l~art2. --.- .••----.-••--'.... ~~orp3ssa~In ahotJSe, .,...." ••) . 11 hate!. orether bu~ A!so called haiL .... corridor AItilITOW passageway orgallery ? ... c;oonectlng pzrtsof abuilding. esp. one ". lnt-a which severalrooms orapa""..ments ;.. ~. open. ~---' ..--._._~., " 5uiU Aconnected series or ~roupof rooms amln~ to be used together. --...._ ...- open p~n Afloor pbn fuvI~ no My el1(;losed spaus or distinct rooms. 216 .-...... alcove . Arecess or small room connected to orfonning part ofa13rger room. .- vestl"btllt .... ASIr...nentrance h.R ~een the outer . doer 3M the Interior of ahouse or uUIk:llng. function.al groupin.g A~ of fumlture p~ arranged 3CCO!'ding to funct.lo!1 anJ use. ~htfit Aclose, often CO!TIp3Ct c.orrespondence ~ funct~1 voupl~s an.:! the fonn orstructure ofthe enclosillf space. A~rge room or Pulldlng for puullc gatherings orentertainment. .• ~Iltry A~ rel3t1ve!y narrow room or lull, esp. ont: for puU/1c use and having architectural Importance throu~h Its SC3le oraea)ratlve treatment. enfiiaae An axl3lamngement ofdoorways connecting aseries of rooms sa as to prov1.de avista down the entire length of the suite. Afre.e and unrestrained arrangement offurniture groupfngs that does not neusS3 rlly correspond to the form or structure of the surrounding space. ;, l1 1- J- 1--
  • 213.
    1TJ~5 The physical volumeOf' ~ufk of asolid ~ody. voia An empty space conbJned within or ~Pyrnas5. --.~.--------- .. ------- refuge Ar'.Juaffording shelter. protection. or SJfety from danger or distress. r-e;i~ A ~JU of rest and tranquility centu Apoint or place upon wh'w;h Interest. activity, or emotion focuses. ~Itf - . - 0 0 0 0 0 0 0 J11~ focus Acentral point of attraction, attention, oractivity. ROOM space .The three-dimensional field In which o17jects andevents occur and hav~ relative position and direction, esp. aportlon of that fleld set apart In a9lven Instance or for a particular purpose. Euclidean space Ordinal)' two- or three-dlmenslonalspace In which Euclid's definitions and axioms apply. Also called CarUsian spau. place Aphysical environment having particular characteristics or u-sed for apartlGular purpose. amInance The mood, character, or atmosphereof an environment or milieu. Also, amlrienu. animated ~ Full of Ilfe, activity. moverr.ent. or spl~ outlook Avlew from aparticular p!3ce. or the place offering aview. pro5pect An outlook over a~Ion Of' In aparticular dlrectloo, or the pl3ce that commaods such aview. 217
  • 214.
    ROOM Jdjacent !5pau, Two spacesal7UtUng or contiguous with each other. esp. when havln~ a common :>ounaary or rorder. linked spaces Two spacesjolnea orconnected by athird Intervenl~ space. . interlockin9 space!5 Two spaces Interwoven or fl~ Into each other50 as to form azone or fIekf of shared spau. em17eaJea spau Aspace enveloped or IncorpOrateJ as an essentl3l part of alar~er space. DID I ~ I 0 :···,:·' ··e····: ':." .' : .. • • 0 ' L,i;.:::., - lineM organiut1cn Spaces extended. amnged. or IIn~ed n'Q-n.n'Q.nn along ahne. path. or gallery. ~ - X. .I - I.~ centralized organization _. Spacesgathered aroutor coming together at a large or dominant central space. rubIorganlutlon Spaces arran~ fie 1'3d11 or rays from a central spue orcore. grkf organization Spaus organized with reference to arect3ngular system of lines and coordinates. clu~tered or9anization ~~ grouped. collected. orgathered ""=':1 toc3ether and relateJ by proximity rather than geometry. 218 ~/-- ........~ ..~.. ~.-~. 1~lJt:~~] 00000 D~DD D~DD DDDDD DDDDD [bDO D~ ··.'··.. D .:" ~ :', DO ':;::· 0 :.;.~ D ., D ,..- transitWn Moyement. passage. orchanItA fro one form sta"A ':1'" m • I<C>. or place to aneth r------- .. tT'. ... ~ Anne or 113 rrow part where an area begins or ends. :..__.. thrtshcld ~ce or pointofentering or ""'jlnnlng. path Arout.e orccurse along which movementocc h UI'S. or the pattern of SUC~. l I - i L<
  • 215.
    memirr;ane ,tre55eS The compressive.tensile. and shear stresses actln!J In t~ piane of the surfau ofashell structure. Ashell can sust3ln relatlvely large forces If uniformly applW. Because of Its thinness. however. ashell h3s little !lending resistance and 15 unsuitable forconcentrated loads. l1am~lshell Arigid cylindrical shell structureo elliptlc paraboloid Asurnu ¥nerated by sI4:llng avertical pa",t,.ob with downward curvature alonfl aperpend1cul3r pararola with downward cumture.lts horizontal sections are e!!1pses while Its vertical sections are p3r3bolas. Iftiltlengthof3 barrelsheDIs three orm~ times its trafl5llerse span. It ~hJves as3 deep Pe.m tWth 3 ()JrveJsectIcn 5p3fl111ng In the IcngltuJWJafrectlcn. EJgesare 5tIffeneJwith Pe3mSoradjoiningsheDs. --) thin shell Ashell StnJcture constructed cf reinforced concrete. IfItIsrt/3tI..-dysOOrt.Itexhibits archlib action. TIe rods. tran5V~ rlglJ frzmes. or thelikeare~ireJ tocourrtenctCM OIltwara thrusts ofthearching action. hyperbolic paral1olold Asurfau ~r.trated hy sliding 3 parabola with downward curvature along :iI parabola j,;lth upward curvature. or ~ slldl~ a smi9ht hne segment with Its ends on two ~ew lines. It can ~ considered to ~ both atranslatlonal and aruled surf3Ce. Also called hypar. SHELL Athin, curved plate structure, shaped to transmit applied forcesi7y compressive. tensile, and shear stresses acting In the plane of the surface. translational surface Asurface generated by s!ld1ng aplane curve along astraight line or eNer another plane curve. cylindrical surface Asurface generated ~ sItdlng astraight line along " plane curve. orvice versa. Depending on the curve. 2 cyflndr1c31 surfau may ~e circular. ellIptIc. or pararollc. BecauseofIts strai9ht bne geometry. " cylindrical surface c.an ~ regardea as being either atranslatlon3l or aruled surface. paral1oloid Asurfau all of whose Intersections by planes are either paraPolas:ilna elllrses or pararo!35 and hyperbolas. ,addle surface Asurfau having an upward curvature In one dilUtion and adownward curvature In ••.............................. ~:~:I:~:~:ris~ructure. I reglons of downward curvature exhiln-t I archhke action. ··r····· while regions of upward curvature !7eh4ve I as acable structure. If the edges of the , surface are not supported. peam !7Mlar may also Pe present. anticlastic Having opposite curvatures at agiven point. 219
  • 216.
    SHELL rvIetJ&umce Asum~ gener.lted I1ythemotion ofa ~Ight line. ~use ofIts stra~ht hne ~. aruled surbuIs generally I.'!<Islertoform andwn5tnJctth3na robtlorul or translatlonalsurf.ice. .....'. conoid ...._._.//./ Aruled surfacegene:rated I1ysliding a ~ht hne with OM endon astraight "lie se.gment2nd the otheron a plan"curve. Depetldlng on the culYe. a~ may !?e circular.einptlc. orparaPolIc. - roUtlon.1 ~rbce Asum", generated I1y rotating a pbneculYe aboutan axis. sphe~1 ,urface Arot3t-i0n31 surface ~nerated I7y the revolution of acirculararc auouta v~laxJ5.... eUiptbl ,Ul'bu A~nal surface generated I7y the revolution of ahalfellipse a~ a ! hyP...IooIoLl •........_...1 Asulfa", havl~ afinite centerwitJ1 certain pia"" sectlons thnare hypetVoiasandothers ~ are circles orenJpses. syncla,tlc Having similarcurvatures atagiven point. vertical axiS.........................................___-4-_- parapollc ,urface Arotoltlonal surface genelOlted I7y the revolutlon ofapar.ilrola arout a vertlcal2xls. ...................... . 2.20 j U,ru, .........................1 Adoughnut·shaped surface generated I7y the revolution 012 circle about an e;xterior hne lying In Its plane. one",hM hyperl7olold Aruled surface ~ted Py slldlng ~n Inchned nne se.gmen-t on two horlzonbl clrcfes.Itsvert1c31 sections are hyperl1ol3s. j I ! I ! I j I 1 l 1I
  • 217.
    encroachmetrt The uruuthorlztd extensionofa l>ulldlng.or partthertcf.on the propertyor ~In of.nother. set~act --_.--....---.......-.--..--.-.- The mlnlll1um required distance from evtry structure to the property nnes of alot. e:stal1lshed by azonln9 ordinance to providefor air. light. solaracuss. and privacy. curll cut --'---'---'-'-'-'-. Adepression ill acurP provkll"9 "'" vehicularuce:sofrom astreet to a driveway on prtnte property. wntraa limit Aperimeter _ est;J1:7Rshed on the drawl~ Of'~ In the contract documents ~I~ the Poundaries of the site <lV31bb!e to the contractor for constructlon purposes. overvuraen W 3Ste e;arth .naroo:;k Oo'erf:ting <I useful mIneraideposlt.l7edrock. or a deposit of SJnd. 9ravel. or rock neeaea for constructlon. Also called l:7urden. te,t it Asmaftpit a~to examine the exlstlng sonccnaltkms and determine the depth of ~ W3ter tJb1e at a propased l>ulldlng slte. shori"9 Asystem of shores for bracln9 or supportl"9 • l'I3l1 orather structure. shore Atemporary supporting strut. esp. one placed ovllqueyagainst the slde ofan excavatlon. furmwoO:. or structure. SITEWORI< Work done at asij;e in preparatlon for a construction p:oject. as excavation, sheeting. ~ -- -- -- ---n I --. r-············-····-··········-·-·-·----·- ..----! . : '---'--"'-: ,··--··..·············1 I {.-..-L--..-;-...-site " I lThe geographic location ofa shoring. and grading. -". , ,.-. I I . tonstructlon p. roject. usually deflned I t>y 1eg3lboundarles. I I' I --.. property me I lOne of the legally deflned ana recorded 14;, H Doundarfes of aparcel of land. Also called lotline. I : .•._...._ j L___ ,-'-- ~~:a~~theld t>y spectfled persons --"'-""..-.-...........-..-.. :JJ' or the public to make IImltea use ofthe _ _ - . - . - -........... j I land cf another. as aright-of-way. ------ I patter poard ~..--..// One of• numPerof bc.aras set horizontally with vertlcal stakes to support the strln9S outlining the foundation plan of3 prop05ed l:7ulk:ll"9. ~ . - . - - - - --.- - _ •• 0 " " - - - ' " - - ------- -- .. -0 _ ... ..-·groundbruking The <lCt orceremonyof preaklng 9round for a newconstruction project. e3r'thwork The excavation and emlr.inkment of. earth In connection with an engineering opmtlon. exc3V7tion The Q!4gln9 and removal of e3rth from Its natural position.orthe cavity resu~ng from such removal. tieback As-t..eel rod or tendon attached toa deadrun or a rock or soilanchorto prevetTt lateral l71O'Iement ofa retaining W<lfl orformwart raker -.-.-------------- ..--------- -----------....- --_.__...... shut pfle Any cf 3 num1:7er of timber. steel or precast concrete planks driven v~lfy side t>y slde to retJln earth or preve:1t water from seeping Into an exc3't7t1on. Also called shath pile. An IncRneJ short: for supporting awall. Also cal1eJ r.KIng shore. flying ,hore . AhorlzontaIstrot fixed ~ween and supportlng two walts aDove ground level. ccfferbm .----.--- -...--._/ AwatertIg~t enclosureconstructed unaerw2tuorln W2ter-~e:lrlng soil anapu~ dry to.IIow access for constructlol1 or repairs. dewater --~#.... ~ing . AtUJm~r of boardsJoined together side b:i side to retain the face ofan exC3Y7tlon. 1~~~~~~~2~~~~~~·---soldier pile ~ As~ H-sectlon driven vertlcaily Into the ground to support horizontal sh~ng or Iaggl"9. Also called soldle.. p~m. I L·-tremie To remOt'e W3terfrom an excmtedJoO site. uSli4lly bydrainfng or pumping. ~- existing w;ter tJble -t+- .+----1 - - ---- Afunnellike device wIth a pipe or tu!:>e for deposttlng concrete unaerwa~r. boil An unwanted flow of water and solid matter Into <In excavation. due to excesslve outside W3 ter pressure. Also " calted UIow. APys,jnian well AperforneJ p!pt: driven Into the ground for pU1l1pln1 oot collected ground water. -------- ~------ '-.... /- / ~..- water tJble afterpumping ....'. wellpoint Aperforated tube driven Into the ground to collect water from the surroundi"9 area so tt can be pumped away. as to lower 3 water table or to pre-..e~t an excaV3 tion from fi:ling with grc~~d'''J t.er slurry wall Accr.cre-te waf! cast In a trench to serve 3S sheeting and often as a penn3nent foundation waf!. constructed t>yexcavating 3 trench In short lengths. ft"ln91t with aslurry of Denton~ and waterto preVent the slkw3f!s from co"apslng. setting reirrfOlUTrlent. ana placing C011CreU: In the trench with atremie to dlspl3ce the slurry. 221
  • 218.
    SITEWORK fill To I'2lse anexisting grne with earth., ~ orother materla~ or the , ~Iltltyof rnat.erbl useaIn Pullalng ~--..----.-- --.-------. ------.---'.. up the Ieve! ofan area.! ". ~4rouna GI'OJI1J authas ~n ralseJ to 3 higher level !:y fjlb~ with hard ruDPIe. is stone or mien prick. Also called rrt.1<k-up grooM. Pcrrowpit Ap~ from which sand. gravel orother canstructloo mzterl3lIs ~ktn for use as fill In anot1'ter location. cut.3M fill An excmtl~ operation In which the exc.a~ m~11s lTlOVea to another rutlon ana used as fill ~------------------ ------------~ g~ ~.------::-....- ..- ....-....-.-.--.---.-.-----.----...--.....-------'.,.- The ~r'OJnd elevation at.3rfi specific ..... point on acon5tnIctlon Site. esp. where the ~ r()IJ nd IMtetS the foundation of a Pv~ />Jsc cal1ed §rad4 U~. ,..." ~~g gn~ -.-.-.-...... j . The elevatlon of the orIglnaIground $umu~ ~Ion orgrading ~ Also ~Ile.d nrlura'vaa~ ~ grade .-........- .....---.-..--- . The ~at~ of drlv~. w;ols.lawns. or ather~ SIIt'faus ~ ~ ofcons~ orgraalng opomtions. Al:so. finished grade. , J,.elowgraae -.-..---.---- ··-··..···--..·--l---- Occurring or situated!:>elow the 1 "m«of"" ! "",oJ. I I underpinning .r·-------·. rough grading ,. : The cutting. filling. ana sh3plng of earth In p~eparatlon for finish gradlng. ---.---. fine grading The precise graal"i! ofan area ailer rough graQing to prepare for paving. seeaJng. or planting. grade nake Astake man:lng the amount ofcut or flll required to ~rlng the ground to a specified level. .controlledfill , All material that Is placed In laye.rs. compacted. and testedafter each compaction for moisture corrtent, depth of 11ft. and Pearlng capacity ~~ additional layers are placed. vertkal curve Asmooth paral10llc curve In the vertlcal plane for conMCtlng two grades of different slope In order to avok:! an aprupt transition. Ptnch Ur"1'aCe An eml73n~mentconstructed across sloping ground with asteep drop on the downside. ------..-...-...-.-----...• ~ackfill j 0 reflll an eXcavation with earth. stene. orother material. esp. the space around exterior founaatlon walls. eu1lgraM Th~ prep;a~earth surface upon which 2 p2vement. concrete slab. orfoundation Is ~11t. Asu~grak should bostai;lkt. anln well arid ~ relatively free offrost action. -"-'''-'''' needle Ashort Peam pas~ through awan35 a temporary support while the found3tion or part ~eath Is repalre-d. altered. or strengthend Also called nudr~ 17e.1m. ...... ~d&horcs i An uprighttlml1erfor supporting a J dead load during the structural ; alteration of2i;lUIJalng. esp. one of Asystem of SlJpports that enaDles an exlstlng fO<Jn.btlon to !:>e r'ePullt. strengthened. or detpened. esp. the ~fUl SlJP?XtrequIred wben anew exumIon III adJdnlng property is ~pet' than t.~ existIng found3tlon. I two supports for aneedle. ___________J 222 ; I -oJ .J I ..., I .. .oj ! I .." ,..
  • 219.
    SITEWORI< ,wale ----------------...--...-. -.-------..--------------------~runoff site arain3g8 Ashallow depression formed by the . Somethil14 that drains cr flows off,.s The surface and sullsurface drainage of l!1t.ersection of two ground slopes, often designed to direct or divert the flows off the !Jna In streams. asite In oraer'to prevent the ccllectlon runoff of sumu water_ +l' 1'1 1 r- ~£~;:;:n.';'':~::~;ofth, ~j'/':P:f5Wit;';~I~ springs, ccnslstl~ brgely of surface : j :. i .-; .T::'r ::~::t~~_~_~~~~...__.____..__...;l___~ .. i-' ;-j: The process by which groundwaterI s ! '. - ~ '.. : - _. I': absarbtdlntothewatertal:rie- 1j'~': -1 : i '" .... .... .............. ;:~:::~~~~~~~~~~h------.- r~2~7T~~-.:-;::::;~~~;~'~~'.~~ which the earth Is saturated wtth " .'__ .: - --. ">:-.~ water. . . , .-'-' .: perched w4TUrta~1e It . . , AW3terta~ofUmIWarea,held' I above the noot13l watertal:rie by an ImpeTYlouS byer. culvert Adrain or c~nnel p3sslng under a rwdorskbral:. ~------- --------'. box culvert ..·.....A~,- Artlnforcea concrete culvert having ~ _ "- ... -', _. a fectangul3r cross section. 7/-"", -. ~ hea~1I -----~----------.--..----../..-. (" "". ..: " Acorn;rete OI"II13S0nry retaining 1';311 ' ...' ...... 3Uhe Inlet of a drain orcufvert:. "" ... e:1od'l'!all -----.......-------..-.----......-...;---.-:-- ..----: /-..····l,-..-:...--.......r Aconcrete OI"lI1asonry retaining wall I . >/ ;otthe outletofa drain or culvert. l,:// building ,term ar3in --....: Abuilding drain forconveylng rainwater, groundwater, or Similar dlscharge to aPuftdlng storm sewer or acomPlned sewer. Also called hou~ 6tom1 drain. hnding ,term 5~er -. Adrain conr.tC;.Jng a~ui!dil"~ storm drain to astorm 5e'l't'er. "'m~ned sewer, or otl-.er point of d'~31. Also called M.c-Jse storm ~U. ; I "'" of excess surface water or - gl'OtJnawater_ . surface arainage The grading and sumclng of asite In order to divert rain ana other surface water Into natural drainage pattems or astorm sewer system_ cutcff Awall orother structure Intenaea to elIminate or reauce percolation through porous strata. •..a~-~:..-...---.+..- curtain drain Adrain placed l1etween the sauru of I water and the area to l1e protected. Also callea Int.erceptlng drain. L ....._____ .. _. ____ .. - unaerdrain L_._ _ _ _ _ _~ Aperforatea pipe Installed In porous fill to draw off groundwater. .............. Frencharain Adralr!3ge trench filled to ground level with loose stones or rock fragments. subsurface drainage An underground network of piping for conveying groundwater to apolnt of disposal, 35 a storm sewer system. Excess groundwater reduces the bad- carrying capacity ofafoundatlon soil and Increases the hydrost3tlc pressure on a l1ulfdlng foundation. -"-'- ..- ........-- areJ araln Adrain for collecting surface water or rainwater-from a I1asement floor or paveaare3. -......--....-..-..... "'" arywell Adralr!3ge ptt linea with gravel or ru!1!71e to reulve suriau water and allow It to percol3te away to .UsorPentearth underground. Also called,11~~ wetl. ---- manhole Acovered h<l!e through which aperson may enterasewerordrain. ...j...... catch ~a,jn ~--.-. .'.i Areceptacle for the runoffof surnu ,: i water, h3VIng al1asln which retains I l :- sterm~r Asewer for conveying rainfall aralned from roofs and paved 5uri.uS. A'rso called storm drain. ~m~ined sewer Asewer cor.veylng !loth sewage and rainfall dra~:",e.1 from roofs ana pv'ed sur'~as. heavy se.d1ment refore tt can pass Into an underground drainpipe. 223
  • 220.
    SOil The top layerof the earth's surface, consisting ofdisinttgrated rock and decayed organic mattersui'ta!1le for the growth of plant life. ~p~1I -.-.......--.----...--.......-...--..-. The fertile surface layer of soil as d1stlnct from the suPsolI. ,ub~oil ~--...- ..--....-------.----...- ...--. The ~ or la)-er ofearth immediately l1eneath the surf.lce sart. • permafrost f'erennlally froun subsoil In arctic or SUDarctlc regions. Alsa called ~rgelr~1. soil analysi5 Aprocess for determIning the particle- size dlstrfl1utlon In an aggrega~. 5011, or sedIment. r~----··---···---···- organic scil r-::::::::::::::::::::::::::::::::::::::::::~'::;:;:~:::::! Soli containing alarge amount of organic )..- matter. usually very compressll7le and having poor load-sustaining propertIes. ~jl profile Ad!3gram of a- vertwl section of soil from the ground surface to the underlyfng material snowlng 3 succession ofhorizons developed I1y weathering. deposition. or roth. laye~ of soli or Its underlying materiJ/ J -----~~~;series of relatively dIstinct m'7"""r:-rr77""f7-rr.r-:777?'7""Tn7i found In avertical section of 13nd. .' ·d.. o·~: .. " . ~ . ., o "." ".0 ·0 ",. ~ ".. - . . d,' D ,unum Asingle red or layerof sedimentary earth or rock having the same composition throughout. lyIng l1etween l1eds of another kInd. ~1cb~----------------------------------------------~ Anumerlc.1I cl3sslflcatlcn of soli Dy texture. used bythe U..s.i?ep2rtment of Agriculture: (l) gravel (2) sana. (3) clay, (4) loam. (5) loam with some sana. (6) sUt- loam, and (7) clay-loam. boulder Alarge. natur:ally rounkd roct.ly!ng on tM surface ofthe ground or partially em!:ledded Iii It. col:rPfe Anaturally rounded stone. smaller than a !:ootrlderand brger than apeb~. usedfor rough paving. walls. and foundrtlons. Also called col:rf,festoM. 224 grave! Sman peDVles arJ stones. ora mixture of these witIt sand, fol1!'oed either nzturally or I1y crushing rock. esp. such m~1 that will pass ~.3-In. (76 mm) *'~ ana be retained on aNo. <4 (4-" 111m) sleve. cru,hed gravel Gr:avel luivlng one or more fractured faces produced by mecnanbl crushing. 6 crul5hed ,tone ~ Stone having well-defined edges produced Dythe rruhanlcaf crushIng of rocks or Doulders. Nso called Cf1.IsM.d rock. pea gravel Asmall-d1ameter, natural gravel. usually If4 to 3fe In. (6.4 to 95 mm) In slzt. screened to speciftcatbn. pepple Asma". rounded stane, especl311y one worn smooth I1y the acUon of W3~. '-1r.a Aloose, gr:anul3r mate:r!31 resulting from tJ1e d1s1~l7tbn of rxks. conslstlng of graIns smaller tJ1~n grnel Putcoarser tJ1an $lit. S.1MCt.y Awdl·g~ naturallycuurrlng sand often used as a 7ase orsul1Dase ma~riJl, having arout 101 clay orJust enough to make the mixture ~lnJ tightly when compacted. silt loose sed1mentary material consisting of flne minerai particles l1e"tween 0.002 mm ~nd 0.05 mm In diameter. cby Anatural. e3rthy matertJl that Is plastic when IMOIst M hara when flred and Is used for Mlng I1r~t tilt:. ana potte.')'. composed I113lnly of floe particles of hydrous aluminum sl/k;a~ less than 0.D02 mm 1n diameter. cL1yloam Solicootalnlng m to 40t clay and 2O'.t to~tsand. I1entonite Aclay formed I1y the decomposition of volcanic ash. having the a!111lty to al;>sorl1 I3rgeamounts ofwaterand to expand to several tl~ Its natural volume. loam Arich soil contaIning" rdatlve/y equal mIxture of sa rJ and silt ~nd asm,lIler proportion of clay ilnd organic ma~r. loess An unstratlfle.d. cohesive. loamy deposit deposIted I1y wind. l- I I .... I l..:ool
  • 221.
    '. Atu~Umit5 The levasof watercontent defining the PoJndJ~ ~UI1 the different states of con~ncy ofaplastic or cohesive soli. lIS ~ !1y standard tests, I~uid lait ...................-..-...-.-....-.--- The wa~conttnt. expressed as ;,I ~~ofIry ~Irt.at which asoli p2~ fmn , pbs~ to aliquid state. p~5ticlt.y Indd -.-..----.--------..--......--. The nurnen:.1d1ffertn<:e I1etween the /!quid hllitand the plastic limit ofasoli. pWtlclinit -------------.---.---.:------.-- The W3tercontent. expressed as a ~rcetTb¥ ofdry weight. at which asoli lcses Itspbstlclty and l7eglns to l7ehave as;,l sol1J.. pl.a5tlc soil A soil M can ~ rolled Irtta '/8 In.- (32- mm) diameter thre3ds wtthout cruml7l1ng_ shrin~limit ---------- ----- --..----....---- The W3~corrtent. expressed as a ~runb¥of Iry ~Ight. at which a rtJuctloII mW3ter content win natcause a further dt:cre3se In the volume of asoli nuss. • -'.0 l- l- I- l- l- I- I- ~ I- I- f- l- I- f- II- III--III ~ II- lil-lI/ i--[J I- I/~ I'- I-- ~ I-- I'- I-- ~ l- I'- I-- ~ l- f- l- f- l- l- f- illf- III I- 1-1 f- II 1111-III 10- '-I i-- II !1If-til f- II ~IIII-- 1 i--! 1 ( ~rln~r.r~1 AIry §rnd.S3nd.0- sUt that exhibits ~o cohesiv~ 01' plastlclty_ ~p.rfty The propc:rty of aporous nuteri31 that ail.uwsa 95 01' lIqula to pass through Its pere sp3CtS. p~u, ~n --------------------------- ..------ ;..rry ~nrabie SOil true allows the :.' , • r'!la ttvefy free morelT1em of wakr, impervlo~ seil ---- --- -- ..-----.------------- Arry flr<:-g~1ned soli, as clay, h3Ylng pores t.:xJ small to permit w3ter to pass except b-j slow ca~ry aGt'C'1 geotechnical OforpertainIng to the practical applications ofgeologica/science In civil engineering. foundatIon investigation The Investigation and classification of a foundation solfl7ased on observation and tests of material dlsclosea by l7or1ngs or excavations to obt3ln the Information necessaryfor the deslgn ofafoundation system. Includln9 the shearing strength. compressluUlty. cohesion. expansiveness. permeal7l1tty. ana molswre ccnterrt ofthe soil. the elevation ofthe water ta!lle. and the antlclpated total and differential settlement. Also called su17surface Investlg3tfon. SOIL ~iI mectunlc, The I7ranch ofeMI englneerlng that deals with the mechanical f,ehavlorof so~ wnen compressed or sheared. or when water flows through It. soil stnJcture The arrangement and aggregation of soil particles In asoli mass. core An undlstur17ed. cylinarical sample of earth or I'OCk otrtalnea by means of ~ core drill and used for analySis ana testln9 of l1earlng capaclty. Also called poring. -- -- cohesive soil Soli that has conslderaPte strength when unconfined and air-dried. anaSignificant cohesion when SU!:I!T1ergd --cohesionle" soli Soil that has little or no strength when unconfined and air-dried. and littleor no cohesIon when sulnnerg.ed. .r-------------~ compaction The consolidation ofse.dlment by the ~Irt ofcmrl:tlng aeposlts.01' asimilar compression ofsoil aggregate. Or cemerrtltlous material by roiling. tamping. or503;Jng. ' optimum moisture conUnt The watercontent ofaSOt1at which maximum densltycan ~ attalMd through compaction. penetration ~ Atestfor measuring the density of granularsoils ana tMconsi5tencyof some clays at tM rottom ofaMI!o~. recordIng the numberofPlows reqUired by ahamrnerto advance ast4ndard sod sampler. ~netrztlon ~l,-unu The unit load reqUIred to produce a speclfled penetration Irrto asoli at a specified rate ofpenetration. shearing sU'en~ The pro~rty ofaso" that enaPteslts particles ~ resist displacement with respect to one another when an external force Is applW. d~ largely to the coml7lned effects ofcohesion and Internal friction. Alsocalled shu~ resistance. 225
  • 222.
    SOLAR ENERGY ~br COMtoInt_.--_................... '-'-""-' Tnt ave:rage rate at which radiant ener~ from the sun 15 receIv~ by theearth, equal .ltitude The angulareievatlon ofa celestial roaya!love the horizon. _..- ..... ...,..... :~--..--- ~Iar path diagram / Agraphic deplctlon of the path of t~ Sun / withIn the sky vault projected onto a : horlzon~1 pl3ne. summer ~I,tice Thetl",,", ofyear, on onDoutJune 21, wMn the sun reaches Its northernmost point on the celestlalsphtre. rruri::lng the beglnnl~ ofsummer In the northern hemisphere. f equinox ! Eitherofthe two times during thayear ! when the sun crosses the ~ne oftht ; celestial equator and ~ the ~ of d3yand night are evetjWhm appi-ox!mate~ ~uat oc.;urring aPout March 21 (vernal equinox or spri~ equinox).ana SepUm[,er 21 (autumnal equinox). - ...- ..----...-----...- winter ~15ttce Thetl",,", ofye:ar. on or aPout Decembet21, when the sun re3ches Its scuthernn-.:;.st pointon the celestial sp~re, marking the ~Inn!ng ofwinter In the northern hemisphere. _.-._.._..---.....- latitude ~ 430 6tu perhr. perSIt.ft. (1.94cal per min. persq. em), used In calculating the f--1:......r-+--I---+--+-'-l~-H. ~ angulardistance north or south from effectsof solar rad1atlon on lroiIJlngs. ~brho~ Ahouse ~ned to morvand store sobr hat III order to supplementor replace conYC11tlonal heating methods. ~laHatl"i ,y,tern A~ system u~ solar ener~.as the prWrtal7i source of he3t. ~ ~br-he~ting 5y5tem AsoIa/'"hQtJng system iJslng mechanical tne2ns, as solarcollectors,t.1nS. or pumps. to collect, store, anddlstrll7!1te solar ~!y. ~ or1ent.atlon The pbcIng ofa building In relation to the path of the sun, either to niaxlmlze the amount of heat gained from Solar rad13tlon cfur1~ the widest months. or to minimize the alr()Unt of heat gained In the wannest months. 226 ,oL-ir collector Adev1ce orsystem deslgned to use solar radlatlon to heat an al1sorPer through which atransportlns medium, as airor water, Is circulated. Alsocalled ccI1ector..... the tl<uator ofapoint on the e.rth's surface. IMe.3syrea In degrees along the rnerldI.an pa55l~ through the point. meridian Agre3t circle on the e;;rth's surface passing through Doth ~hyslc.af poles. .,,-_.-...._--..- Io~ltude The angulardlstance e3st or weston ~ earth's surface, me4surea from the prime ",,",nabn at Gtunwlch. England. to the meridian of aglvtn point arid expressed either Indegrees or a correspondtng difference In tlrr.e. , I I ~ l l 1- ~~ ~. ~ b L L
  • 223.
    ~ ----------_.. --- A~nkof t<lrth placed against one or ~e:xterlorwal1sof abUIlding as ~n ~alnst extremes In tem~ture. drumwall --------- ---------- Ast.rl of blJck. wa~filled drurr.s pl3ced on the Insldtof awindow wall to a~ sol3rM3t and then release tt slowly Into the Interior of auul1dI~. ~ccntrof ----------------.---. -', A..~of~rIous~rdevk:esfor I '" ~utatt~ tM amount of solar ht3t ,.--- -,- -.,- and su~ht tha-t ~rs 41 window. -: coo5lstl~ of II1OV3U!e horlzontaIor ~.lc4l fins controfb:l manually or ~ OIutomatlc3lly wtth time or ~controIs. ~Itt.e1' ~Hnd -'-'--'" --.--------- -- A!f"3nually or electrlcaIly controlled exterior Vet1et13npHnd for protectln~ ab-ultdlnq Interior from solar gain and ~lare. SOLAR ENERGY passive 5CL1r-heating. Asolar-heating system using aInJlldlng's design and construction and the M4ltunl flow ofheat to collect. store. and dlstrluute solar energy. with minimal use of fans or pumps. -----------.-.--..---------.---..~ Trompe wall Aglass-fronted exterior masonry waif that ausorUs solar heat for radiation Into the InteriorofaInJlldlng. us~11y after a tI~-lag ofseveraIhours. 5OIo3rlum Aglass-enc~ porch. room. or gallery used for sunuathlng or for therapeutic exposure to sunlight. .~ ,unroom Agl3s5-enc~ porch or room oriented to admtt large amounts of sunlight. Also called sun parlor. sun parch_ i---"'--'~ ,un deck 1 Aroof. balcony, or terT;lce that I:s exposed ~~~~'U:'~----==----~._-41 to the sun and used for sunbathing. --------.---------.:;---.-. ,un,~ae .. Any ofvarious exteriordevices c~slstl"9 offixed horizontal or vertical fins angled to shield awindow from direct sunllght_ W- ......---.---+--. 1ni~.5Clell Ascreen. usually oflouvers, placed on th~ outside ofalnJlldlng to shield the windows from direct sunlight. -··--t·-·-···I···..-·--=:r:.,...."'·-t-·~ 5OIo3r ureen Apanel of miniature external louvers for shading awindow from dtreGt sunllght and glare while allowing ahigh Mgru of vlsltnllty. d3yllghtlng. ventilatIOn. visual daytime privacy. and Insect protection. 227
  • 224.
    SOUND The senSAtion stimulatedin the organs of he3ri~ I7y mechanical r3al3nt energy transmitUd as longitudinal pressure waves through the .airorother medium. &0unawave A IongltuJlnal pressure wave In air or an elastic medium. esp. one producing an audlUle senS3tion. wave Adlstumnce or oscllbtlon that transfers energyprogressively from point to point In 2 medltim 01' space withoutadv3nce I7y the p<?lnts thtmselves. as In the transmission ofsourul or ~ht. waveform A graphic representation of the shape of a wave, ol1talned by plotting deviation at a fIxeJ point versus tllI18. .' w.1Velength -.-.........-.............,... Thed1sbnce.lI18asu~ In the direction of propagatlorl ofa wave, from arry one point to the next pointofcorresponding phase. pha~ A particularpoint or sta¥ In a periodic ~Ie or process. .' .' .' .' amplitlJde The maxlmum aevl3tlon of awave or alt:enutlng current from Its average value. fffituency -.-.... The numbtrofcycles per unit tlll18 ofa mve orosclllatlon. hertz I I I I I I I I / /' ""-y/ / / wavefrorrt I / ;' The 51 unit off~uency, eGualto one cycle persecond. AVln-.: Hz fundamenbl ~n. . _ . ' _ " _ ' " ' ' • • • • m . __ . . . . . , ~~ pitch Thelowest~uencyat which avlln'atlng ! ',,----__________-------/ 1 The preaomlnantfre.quencyofa souna ~r¢ orsystem wlU freely oscUlate. 1 1-+:as percelved !1ythe human ear. Asurface of apropagating YdVe composed at arry Instant of an points having klentlcal phase; usually pt:rpenalcular to the dlrectlo" of propagation. Also called futkUmentaf I-"uency. : : .. ~ : . : octave harmonIc ....-.......-...................... ,.. ! _-----_ ; Thelnteml ~ween twofrequenctes Avfmtlon h3vlng afrequency that ~ having aI"3tlo of 2:1. Is an 1fTte4ra1 mu!tlpleofthat of the : '---------' i fundall18ntal ~ : l1ai1d A1'2"¥of W3velengths orfrequencies between two defined limits. ....../.r...._ ....t::::j> .p«<lohound i / ~-----~> The velocityof sourul traveling / r ~ throU9h watapproxhnate!y 1087 ft. --.........! ..,/ (0.3 km) persecond at sealevel. /' a throU9h WlIWat approximately 4500 ft. - - . - - j ' . / f------------ (1.~ km) persecond. ....,•.. Dopplereff~ An apparent shift In frtquency occ;u~ when an acousU: source an4 listenerare In motion relative to e3ch other. the frequencY Incre4slng'when the source aM Iistene~ approach e3ch ather and aecreaslng when they move apart. --------.; throU9h wooaatapproxlmate-/y 11.700 ft........-..- ~!~~~mate-ly~ooo~--.-...-.-.-..n~~~~~~~~~~~~~~~~~~~~~~~~~~~~~~ (5.5 km) per second. ~ V 228 .1 1 L~ : I I l.- I Itt- I lr L L L L L
  • 225.
    ~ ~ § 'e ~ ~ ~ "'- t! ~ .s ~ VI ~ .s "" § ~ 10-2 10-4 10--0 1(J-6 10-10 10-12 10-14 10-16 157 loudness AsU17jeCtNe response tosouM Indlcatlng the ~n~ of the auditory 5efls3t1oo produced I7:i the amp~ of asound wave. phon Aunit for measurln~ the apparent loudness of.a sound. equal In number to the deci17el5 of al000·Hz reference soundjudgea 11y Oil group of listeners to 17eequal in Iouaness to the gIven 5OUnd. 501le •.".,.".,.,................- ..........._.., Aunit for IMt.3surl~ the apparent . loudness ofOil sounJ.~ 11y Oil group of Ilste:ws to ~ equal to the loudness ofal000-Hzreference 50lJnd having an Intensityof40 deci~ deci!1el····.·-·.··.·····.··....····.·..····.·.······: Aunit for expressing the rel3tlve I pressure orIntensityof sounas on a i uniform scale from 0 for the Ieoist : perceptl171e 50UnatoabouH30 for the 1 avera~ threshold ofpain. Autn-.: d6 1 OecibelmasiJmntnt/s ~oo.a logarithmicSC31eSInceInmments of 5O!JTIJ;ris5ll~ or/nt.mstty.a~perceived .as ~I wilen ther.atJo Mween suuesslYech3nges InIntensityrem3in c0nst3nt. 1M~ImIs of~ sound 5OlJf'Ce5, therefore. C3f1notbe.aJdtd ~ny: e.g.• eo18 +eodB =63dB. ntJt t20 dB. I ! V --~--~r-~~I40 SOUND hearing The sense by which soundIs percelvM. Involving the entire mechanism ofthe Internal. mldale. aildexternal e3rand Including the nervous and cerebral operations that translate the physical operations Into meaningful signals. ; ........• threshold of pain equal loudness contour Acurve representl~ the sound pressure level at which sounds of +---+--+--I---!---+-='::::.-.-!-~-+--=­ 120 The level of sound Intensity high en0U9h to produce the sensation of pain In the human ear. usually around 00 d6. different frequencies arejudged 11y a group of Ust.eners to ~ equally foud. 31.3 62.5 125 250 5a) 1000 2000 4000 XOO ~ln cyclesp!T ~nJ(Hz) audio frequency A m.ge offrequencies from 15 Hz to 20,000 Hz audiPl.e to the ~I human e3r. 16.0c0 32.000 I auaitory btigue Physical or mental weariness caused Py prolonged exposureto loud noises. hearing 1055 An Increase In the threshold of audl!lllity. at speclflc frequencies. caused by nannal agll19. dl5e3se. or Injuryto the hearing org3n5. threshold of hearing The minimum sound pressu~ capa171e of stimulating an audltory sensation. usually 20 rnlcropascals orzero dB. 50una inU""rty .~'o----------- &cund p~5Urt ~(-------- &cuna powe1' ~ rate 1t which acoustc ~'!:i flows The dlfferenu ~n the actu31 The amount of4ICOUstIc energy through aIM::Ilum. expressed In W3tts per pressure at arry poliTt In the fleId of a radiated Py aSOIJIU per unit time. square ~. sound wave and the static pressure at eXpressedIn watts. ~_..........__ 50una inUn5rty level that polnt. expressed In pa$Ca!s. &cuna power level Sound Intensity measured on the decll7el 50und p~5urt level The accustlc power-ofasource. scale. eqll3l to 10 times the common Sound pressure me.asured on the de<;lbef measuredon tM decibel scale.equal to Io~arlthm of the ratlo of the sound scale. eq1l31 to 10 times the common 10 tlrnes the common logarithm ofthe Intensity to arefmra intensity. usually logarithm Gf the r:atlo of the sound ratio ofthe acoustic power to a 10-12 watts fl'!T' square I'I'teter (10""16 watts pressure to areference pressure, usually referenu power. usually 10-12 watts. per sqll3re centl~:-.) 20 mlcropascals. logarithm The exponent lnd1caUn~ ~ power to which at>356 numPer must 17e raised to arrive at agtve:1 numl7er. common lagamhm Alogarithm h:wlng a7.156 of 10. mlctopa5C3i Ont-mlltlonth (10-6) part of apascal. SymrocJ.iP.a &cund level meter An electrical Instrumentfor rne3SU ring sound pressure levels.r0 compensate for the way we percewethe relatlve loudness ofdifferentfreque~s of sound. there are three Mtwon:s: A. 6. and C. These networi:s weight the recordings for different frequenGles and coml7lnc the results In asingle reading. The A·netwon: scale. In dElA units. Is most comrnonly used since It discriminates 3g3lnst the lower frequencies. 35 does the human ear at moderate sound levels. 229
  • 226.
    SOUND JC.OusW The mnclt ofphysicsM ~Is ~, ~ ~W1trol tnnsmlssicn. ~.anddfern of sound. room~5 The 'U2Wesorwracterlstlcs of <I room. ~tn, orconcert haD *.4t ktermlnetMaudlPiI1ty of speech C1" fldeIlty of II'1l1slcal sounds In tt. ~undjr.g~ard Astruct.u~ r:Ntr or behlnd ;and aPove;a~or~to reflect the sou"" ~rd the audlenu. -" ... ~ng5urfau AnonabsorptIYesurface,from which Incident sourJ Is refIecW. uSea esp. to red1rect sourJ In aspace. r0 I1e effective. artfIectlng surface should have aleast dimension equal to orgreater than the wavelength of the lowestfrequency of the soond being refkted. acoustical c!cud , One ofanum~ ofacoustlc panels Installe.:J near~ celling of aconcert hall to reflect 50Und for Improving the acoustic ,uattty of music. --: _.-....._-...- acou~ticJi analysis Aaetalle.:J study of the use ofabulldll1!3. the Iocztlon and orientation of Its spaces, posslUle sources of noise. anathe deslraL>le acoustical environment In edch usable area, acous~1 de~lgn The planning. shaping. finishing. and furnishing ofan encloseJ space to estaDllsh the acoustical envlronlT'.ent neuss.ryfor distinct hearing, acoustic.11 treatment The application ofabsorrent or refIect.lng materials to the walls. celll~. and floor of an enclosed space to aIter or Impro'ie Its acoustlc properUes. ' ---.~-.- --._...-.- d~ sound ~rWrne~M Soun.:f ~te4 directly ~ ana 'tr3n~ through tM;alr. Iivs H~hfy~ntorresanant.as ;an audit.orlum orccncert ~IL dud ~ re:scaance. as aroomfret from echoes aM n:v~t1on. !OQndproof Imperrb15 to ,udllk sound. ~runce The In~tIon and prOO"93tlon of sound produud Py sym~thetlc vim :ion. 'J'1!1P~ vfVrmon A~ lnductJ In one body Py tl-~ ~ ofe:octfy the same perW In a n~h~ Pody. direct ",una _...._..1 Alri?ornt scund traveling directlyfrom a source to the listener. In aroom. the hUlTI3n 63t' a~ hears direct sou/lJ I1efore tt ~rs ~ sound. As direct souna loses intensity. the Importance of refecttd scunaIl1Greases. reverl?eratian The persistence ofasound wtthln anenGIos&:I space.caused !1y muttlple refIectlon ofthe sound 100 ~ Its source h<as stopped. ~ .s 60 ........ decayrm attenuzt.Wn Adecrease In ener~ or pressure per unitarea of;a sound W2ve. occurring as the dls~1'IU from the source Increases as aresultofal?sorptlon. SC3tterf~. or spreading In three dimensions. ] loa ~ 4(} § The rate ofdecrease of sound pressure ~ 20 , level after Its source has stappea. usually expressed In decibels per second. o ~----~-----+----4-----~---4-----+----~ 230 r"eVerPtrn.wn time The time In ~nds requlreJ for;a sounaITI3k 1n an enclosed space to diminish Py 60 decibels. Airborne sound waves bent by dtffr.Ictlon arouna an <*stxle In their path. ..-.- rdIected sound The retum of una~roe.d alrrome sound after strl~lng 3surface. at an angle equal to the angle of Incidence. ~ ::~'.-'.' ~... ~':.~:.,,"" , ......:::..... 0······· ". '.......••..••:::. ......" .. echo The repetition of asound produced by the reflection of sound waves from an c»structlng surface. loud enough ana received late enough to be perceived 45 dlstlnct from the source. flutter A rapid sucus$lon ofechoes C3u5e4:llly thenrlIectlon ofsound waves Ir.Icl: arid forth'Paween two paralld surf.aces. wtth suff1clent tl~ between each reflection to cause the ~er to j,e awareofseparate. discrete signals. focusing The convergence of souna waves rtflected from aconc3Ve surface. L L t- l. L
  • 227.
    ~ ~ .so ] { ~ .so ~ ;:, ~ 90 MJ 10 60 50 40 30 2f) 10 j / / i 1000. 2CXXJ octavehnJcenterfr.-4'etlcies Infa ;-.............-.. noise crittria curve . One of aseries of curves representing the sound pressure level across the frequency spectrum for 17ackgrouna noise that should not ~ ~ In various e11vlronments. Higher noise !eYels are permittedat ~ lowerfrequencies sincethe human e4lrIs less 5alsltlve to sounds In this frequency region. Also called He curves. SOUND nol~ Any sound that Is unwanted, annoying. ord1scor&3nt, or that Interferes with one's hearl"!! ofsornethlng. :-- nol,,~ redllC'tWn ; The perceived difference In sound : pressure levels Petween two enclosed spaces. due to the sound-lsolatlni qualttles of the separatlng barrieras well as the al1sorptlon presentIn tM receIvIn~ room: expressed In kclbels. . -_.'"' _ .._....----.. -~ ___ i __ ----..----- -----i~...:· .moJtr7tdynolsy background no~ ltiel -j 3fPr'OllJITI3te thres/loIJofh~rir~ for~ nol5e The level ofamble.nt sound normally presentIn a$~. aPave which speech, music, orother sound5 must be presented to be he3rd. ,tandil19W3Yt Awave In which the amplitude of the resultarrtof atnnsmttW and a reflected wwe Is flxed In tlme and ranges from zero /. at the nodes to 3 maximum at the antlnoaes. ; Interference _"'_'_._........_.._..........._............. j The pMT1OIreI'Cn In which two or more Ilght or souna W3'I'eS of the same frtqlJtncy wmbine to re!m'orceor cancel each other. the amp~ ofthe resultl"!! W3ve relng equal to the algemlc or vectorsum of the amplltudes of the combining waves. ..P5CrptioII ccef&lent Ameasureof the effk:lencyof a ma~NIIn aPsorVlng sound at a speclfled~. equal to the fractional partof ~ Incident sound energyat Mfreq~cy a~ ~ the lTt3Wbl .....--..- ......................- .._.. nol~ reduction coefficient Ameasureof the souna-al:1so"vlng efficiencyofalI1~al. equal to the average ofthe a~n coefficients of the lTt3ter!4l comptl~ to the nearest 0.05 Jt four frequencies: 250. 5OO.lOOO. and 2000 Hz. '.00 .90 M .70 .60 .50 .40 .J() .20 .10 / 125 / / / ./y 250 white I!Cj~ f- .....-...........--.---................. 17ackground no~ An Ur!V3')'i~. unoVtn.lslve sound havfng the The sound "9""311ypresent In an same intensity for an freql.le1lCles of a~lven environment, usu311yacompostte of Uand. ~ to rrt3s( oroVI1ter3te unwarrtea soundsfrom both exterlor and interior sound. Also called wnru SOuM. sources. none ~ which are-distinctly ldentffial7le ~ the hstener. Also C41led ~mJ:,fent sound. ".r-- ~ -r- 1000 2000 --- 4000 ..~rption The Interception and conversion ofsound energy Into heat orotherform ofenergy ~ the struCtureof amaterl3l.lMIsurtd In salrins oral1sorptlon units. ~l7tn Aunitofsound al1sorptlon. equal to ~ sq.ft. (0.D9 54 m) ofaperiect!y al1s:orPtIv" surface. metric~17ln Aunitofsound al1sorptlon. eqU21 to 1 square meterof ~rfectly al1scrptlve surface. Also calleJ ,~rptlcn unit. frt<j{jtr~y in C}cks r~r $(Cord (Hz) 231
  • 228.
    SOUND ~und I:5cbtlon The usedPu~ 1I3~1s and c.on~~de~neato . reJ.u~ ~ ofalrPoc-neana structure-rome SCAlna from one room to ~ccfrotn ~~ to~ interior of J ~1'dn4- Alsoc.IW SCUM ~~on. fUn~i~p.th Apath for the transmission of sound other than through afloor, wall, orceiling assemPly, as along such InterconneGtlng ~res as ductworl: or piping. •irPol'M ~nd traI$mis,jon -.............-..-.- '" ...-f--}-f--+-"-+-+-i-t-+--t-"'-!-~F-1 SounatnnsmlUed wheft a surfoau 15 set Into v~ bythe ittrn.:iItI"4 air ~ of~SCtJnJ waves. ~11orne~tr.I~i5slon ------...:-~. SounJtransmittedthroogh the sana . . ~ ofJ ~'s stndurc as aresult 01dIreapf1ysIc3lcontact or Impact. as ~ ~ ~Ip~ or footsteps. tr.Ift$m~ion loss AJne3SGre ofthe perfom3nceof a ~Ildlng ~or~ assembfyln ~ thetransmls5lcn ofairborne souM..'to the ~ In soona ~as" passes~h the Nterlal ex' ~seri+j wfIeft tested1taRone-third ~e l:rand ~lesfrom 125 to 4OOOHz:~ln~AUPr.:n . T7ww fM;t.ors enlunce tJJe 1l rJtIn§ of3 ~ ~JItIS5, seprztton Intc b)ers..,;~~. ~tra~m~~I0~ A~mber~oJth~ ~eof aPulkIIng ~I ex ~ assembfyln prev~ the tnn5ll'lls5bn ofa~ sound. eqU41 to the~ ofIts11 V3~ at nine test frequencies. aceustlc; mass ResJst.nce to the transmIssion of sound C3usea by the Inertia and elasticity of the transmlttln9 ~um.ln general. the ram.namore densea 11ody, the greater Its ~nce to sound transmission. ~50 r-;--+~~+-~-+--r-+-~-+~~~~~~ ~ .s ~40 r-~-+~--+-~-+--~~4r-+~~+-~-+~ r~-"'''' ,-lQ : ~.;o r--t--+--rl--7-oC..f-~'-'rl~f--t---+---+--+--1--+--i is ~ ~ 20 1---:;i-"7"-+-~+-",*=---+--+--~-+--+--;--+--+---+---I : ::. • 11'1 . " ~tn~I!I~,ioneta" •._..._ ........! ~ to jL--+--+---f--+--+--+--!---+--+--J.._I--+--+--+~ Asln~!e-flcmP,;, mll'lg ri the perform3nce oJJ l7U~ ~teri31 ex ccn:structlon ~ In preventll'lg the transmission of ~ sauna.&erivea ~ rompa~ the bbcraforyn ~ curvefex' the mzteTtIl or ~toastalWra~uerv::ycurve. APW.:5TC plenum barrier An acoustic Darner erected In aplenum (Net' a p3rtltlon to reduce sound transmission I:>etween adjoining rooms. vlbmion Isolator __.i Aresilient I73se for mech3nlcal equipment. Installed to reauce the transmission ofvl!n-aton and noise ~the ~pport1~ strocture. Also called Isolation mount. inertL1l7locK Ahe.l't')'concrete Ir.lse for vmtlng mechanical equipment. used In conjunction WIth vfl",rtlon Isolators to Increase the mass ofthe equipment and decre4se the potentiaIfor vfbratory IT1OVement. di5<:Ontinuou5 c;onstructWn Arryof several constructlon ~hoas,4Is the use of s~ggered studs or reslllent mountings. for breaKing the continuity ofa path th~h which structure-~ sound II't1y !Ietr3nsmitted from one space to another. Tbe IHfhertieSTC17tJr.I. ~ ,.ezt<rtile 5CUJJ-IscIztky• qffief'IUt:erUIcr ~ Mopetr JJxn4y~1I1 SfC ~ of1O; I'IOf'fTi3fconstructton bsSfC I7tiIfSfl'CIIff YJ ~ 6O;!p«bI~ Is ~&STCr1tIng5~ 60. - - - , - - - - -0 ~ered~tud p,rtitlon ~~ Stnscturt-borne scund ~ted by ~ ,,"~, as ~ footsteps orthe ~ offurniture. Impact Jrt,ubtIon c;~ A~1c-tIu~ rnl~ oftJle performance of• floor-ul~ constnlctlon In pre'fflTtlng the transmlsslon of ltnp<Ict noise. Am-.: IIC The "'4hertlleocrztJn§. the mex-e dftCtJy~ Is tlIe~kI~i1lf'3ct~ The ncrltinf repbas the~ IJ5dImfnct ~ ~ (HR) XIdIs WOXfm3td;·~ to the I«t7tJng +51J6 for; gMtr const.roctJon. 232 " ",----,-"/~ ' .... -..:.._--,. 75 ~ 65 .s l ~55 11'1 11'1 t 45 ~ ~ ~ 35· ~. 25 It') ~ ~ c--, <::) ~ It) ·35 45 55~ ..!! ) t: ~ G5~ ~ -S 75~ t ~5 ~ <::) ~ ~ <::) ~ ~ ~ '" ~ one·t!-.irdoctJ'It EndurrUr frequency (H.zj : A partition for reducing souna transmIssion Pe'twetm rooms. frarneJ with two separa~ rows of stllds arranged In zigzag fa5h1on and supportl"9 opposite Qces of the partItIon. sometlrnes with a flPerglass bbnl::a ~. ~illent mounting Asystem offlexlVle attachments or supports th4t pennIts room surfaces to vfmt.e nornully witholIttransmtttlng the vfmtor)' motions and assocuted noIse to the supportl"9 structure. .---- -. ~lIlentc;h.1nnel Ametal channel for the resilient mounting of wallboard to studs orjoists, used In sound-lsoIatlng construction to reauce the transmission of vllmtlons and noise. ~lIIentcHp A flexible met31 device for the reSilient mounting of wallPo3rd or me~llath to studs orJoists. used In sounc/·lsol3Ung constructron to reduce the transmission of vibrations and noise. ,. r l
  • 229.
    handrail A raIl providingahandhold and -----------------'L servlngasa support at the side -.....!!!a stair or platform. -: '. : " 1 ,, " ! hi1droom --------------------- ------------.---- --- The clear vertlcal space from the nosing " ; 'i.,. :, : , of astair tre:aJ to any overhead ol>struct1on. usually required by Utilldlng codes to ~ at least 7810. (2 m). st.Jirhead The top or tap lanalog ofa stairway. ri~ .-----...--.- ..------.- The measured height of a stair SUp oraft~ht of steps. . , : ,,,, " ,, " "'1 L ____ ,------.----.-.- tr~ad STAIR One ofa fl~ht or series of steps for gol~ from one level to another, as In a~ullding. i The horizontal upper surface ofastep In Ii stair. on whIch the foot 15 placed. :---.- nosing : The usually rou"jed edge ofa stair tread that extends over the riser. _.' riser The vertlcal face of a stair step. ~ raking rl5er ~.-.-.---'> Ariser that Is Inclined Inward to permit mare footroom on the tread I1efow. +---+----- stairway A passageway from one level ofa ~JiLding to anather 7y aflight of staIrs. ~~+---------------------------F==========~I fI~ht stairwell A vertical shaft oropening COfltalr.lng a stair1'f3Y. I3dder Astructure of wood. metal. or rope. u~llyconslstlng of two sklepieces Joinedat sutta~1e Intervals by t:rars or rungs. forming Ii means ofc!1mbing up ordown at an angle of pitch Wtween 7Soand 90". ----.-. "- .---- -- ... -- .-. -- -- ...-. nJng -------.-.-..---. One of the crosspieces, usually round&!. forming the steps of alaader. ship'sladaer Afixed stepl3Jder having an angle of pitch Petwurl 55'and 70'. - usually equipped with handrails. run ~__._____..J The horizontal distance ~tween successive risers or l7etween the first and last risers ofaflight of steps. --- AconUnuous series of 5tepsl7etween one f.oo1' or landlog of a Uulkllng and the next. .-------- ..----.-.-------------.. crfticalangle :" The angle of pitch abore which 3 5t3ir is consldered to l7e uncomfortal7le or unsafe. usually 50~ ri~r;tread ratio The preferred ratio ~ween the riser and tread ofa stalrstep. specified by either of two formulas: R+ZT =24 to 25; RxT= 72 to 75. ·i----·--·· prrlerredangle : For aft4Jht of stairs. any angle of pitch ; ~een 25°and 36~ Ot'. for aramp. an . angle ofpitch less than 5~ ;-' nmp ! Asloping floor, walk. or roadway ! coonectlng two levels. ! 'upped ramp Aseries of ramps conne:cted by SUps. .--"'--'-.. -_.- helicline Acurved ramp. 233
  • 230.
    STAIR 5traight-run ~~Ir _....-..---.--. AstairexttMI"4from one level to ,notherwtt:hout turns or winders. fllet ~ ofthe steps In , straIght flight cl5taIrs. •- ...-.---...- .....- ..--...--.-..... ,~rUr-Rm stair .----........--.-....-., AsblrM~ a ~ht-angled tum. ! ronslstln§ of~ straight flights ; connected (,yan IntemnIng IandI~ or ! , ~ ofwInkrs. AlsocaRed Lstair. : ~~~~~~~~~, pace ~tralght fl~ht Aflight ofstairs having no turns or winders. I3nding ApIa~orm Petween flights of staIrs orthefloor at the foot or head of, flight ofstairs. .//,---+1--'-~';.;;;""'" ,uarterspace landing ! AsquartIandlngwnneGtlng t two flIghts of.. staIr. Also, /luarterpau landing. --- --- walking nne Ahne 18 In. (457 mm) In from the centerllneof"' handrall. along which the run of awinder Is the same as aflier. Also called Une oftraveL '::.-....- halfspau landing .... Alanding ronnectlng two i'''''' winder '1 Amore or less we.dqe-shapeJ staIr 1 step for changIng dlrectlon. i kitt winder The central of three stair winders 1I13~lng :a 9O"turn. -I -------- Ar.l1std step or platform. esp.one 5eIYlng as abinding or resting place at the endofa~ flight of steps. Also cal1ea foatpu. r------,-.,---"[1r--rr-l....--,rr-n-'-:n flights ofahalf-tum stair. : Also, ~Ifpau landing. ~1f..tml5b1r ~-H--I+---H-+----#-~~: ... AstW~tums l8O·ortnl"OlJgh two ri9ht anglesatan Intervening bndlng. dcf~~ir Ahalf-return stalrconslstlr~ oftwo stral§ht flights immediately s1de by side and c:ormect-ed by an Intervening bnJIng. dcul7le-l5taIt Ahalf-tum stair hMr-9 two I~te landings, each offering .. 90'"ch211¥ ofdirection. --...- ...........-. three-,uarter-tvm 5~lr .-.---..--.---..---..-.--.--.....-...........-.........- Ast.aJr Mulring a three-qtl3rter tum for contlnuedascentor ~ winding mlr My stairccnstructed chld1y with ~ as ageometrical or spiral stair. circubr5blr ...........,.• AwfndIn~ stair having acircular plan. fptr"'Sbir ______._..._.___.._..t..:.........__...._ Adrcubrstair having ~-s-haped ~ wincing around and su~ po,. auntral post. newel .._......................................c::: ..;;;;.::=.==:;;3 Acentralpost from which the winders of, spiral staIr radbte. 234 I I dou17e-retum 5~ir --- Astair havlnf one wfde flight from ~ mainfloor to an ntel'1T1ed1ate landing. and two s4k flights from that lanalng to the floor a~ove. ~---~ // . /7f~---W // /.: / I I I ,~+-_____ ~ I" . I ,------'.__.,._....------- l~===rrt....~ "-... 17al3ncea step ~...i Arry of aseries ofwlrJers so amngeJ that th~ 2"e nearly.s wIde at the Inside of the stair as ~ adjacent fliers. Also C3f1ea dancing sUp. d.1nclng winder. elliptlwll &tair AwIndingstair h3ving an eWptIC3l1y shapeJwel. geometrl~1 stall' Awlnalng stafrccnstructed aroun4 a Circular orelliptical well without the use of newels ana often no landings ~etwun floors. . ... , ......... r .. -·· .. ~ wre.1the ....."..... ACUlVed section of handraIl. , " l ..-.-...~.--- wrt.1the piece : I AcUlVea section of astaircase strirl4 I I l
  • 231.
    STAIR landing tread .......................-....- .............". Al10ard dlrectly over the uppermost riser In ... string 5talrc25e One ofthe sloping roards running alongside astalrc:.1se to support or COlt< ~ ends of~e treads and risers. Also oiled 5~Poard. stringer. .3 flight of stairs. having an ~ II13tchlng that ofthe noslngs 011 the stair treads. w.1l 'tring -.-.--.--..- ...-.-...-......-.-.............,. Astair string setagainst awall. ", usually notched or housed. c.arrilge ~'-'---" .-.....---.................-.--.- An InchneJ PeaIn for supporting the ~ of ;J stJlr. Also called hors.!. rough ~er. ~x5tair Astair having ahoused string on both stdes SO tbt It may vemore or less completelyfklJshed Vefore velng set In Itsfln.lloc3tlon. hcu~'tring II staIr string reaMng the enas of risers ana treads In aseries of housings. Also ~ ct05e4 .."'''~.'---l'_tt-_Hl~::__--7<;:__~~~~_+_""''I. ;apron ~ ..--..·.--.-....-..- ..-.I-.N&<.:.::.>!.r.o..,~-·"":::I..J~~ Ahe3der receM~ the ends of stair ca~. strings. and thejoists of bn.dlngs. Also calb:l pitching pl~e. kickpl~ -r---··..·····..·....···-..· A plate for anchoring and aDsorVing the thrust of an Inclined ~Der. as a stalrcarri.lge. niling A ~rrlercompoc...eJ ofone or more horlzontal ralls ~pport.ed by spaced Uprightsor !:>alusters. , ,t..1nchion ~......- ..--......-......- ..... An upright postor support. as In a wiMow or raflln~ p.lltStl'3de Araill~~ with balu5ter ~-.-..- ..-.-..-.-....--.......... Arry of anumrer ofclosely spaced SJpports for;l rJ~. Also called ~Jnlsw. newel drop •.._._...._..._..._ ......._ ...,i An ~mental. doI'fnward projection of ;I r!eWel post. oft.e:rt through asoffit.. S-rletynoerng - ...-...........................--.•...- Anaslng havIng an alms1ve. nonslip Atread h3vlng a roughened surface to prevent slippIng. wai5t The least thickness of areinforced· COI1crete stair slap, r;amp Ashort concave slopeor bend. as OM cannectlng the higherand lower parts of a stair railing ata landlng:-- AfI~htorserle$of~htsofstalrs. Includl~ Its supporting mmework, casIng. and h3ndralls. open-string st3lr Astair it3vlng an open string on oneor roth sides. .......~ open string Astal~ string having Its upper t:dge cut to the profile of the treads and risers. Alsocalled cutstring. :ltalrro" face string Ametal rod for holding astair carpetIn place against the . .Iwttom ofariser. ---1 Theouttr string ofastaircase. usually of better materl31 orfinish than the carrl3ge which Itcovers. Also called finIsh string. bracket .-.. retum Acontinuation of the rounded nosing ofatre;ad I1eyonJ the face ofan open string. ..-.-- cut-;and~miUred 5tring An ornamental plea: filling the angle Petween ariser and the overhanging edge ofIts tread. An open strI"9 having the vert:cal edges of the notches mitered with the ends of the stair risers. .-.......- ....... curt.iJ Ahoriz.ontal spIral tennllt3tlon to the lower end ofastafr rail. Also calbf volilU. .--.---.-...-. curbit step Astarting step having ascroll termlnatlon to one or Path enas of the tread. ...~- MWet~p Theterm11131 fe;ature ofa newel post. often moldeJ or turned In 2 decoratlve runner. ..-...-.--.....-.- newet Apostsupporting one end ofa hanaraU at the top orbottom ofa flight of stairs. Alsocalled newd post. open-rtur~Ir Astair havl"9 open spaus Pet~n sucuss1ve treads. alloWing lightto pass from a!xlve. ............. ...................... open ~ .,/ An o~n space I1etween two successive treads. .. pan tread Asteel pan rw:Mng aconcrete fill and s.t:rvlng as atrt:3d or as acomDlne.:J tread and riser. 235
  • 232.
    STONE Rock or2 pieuof rock ,U3rrled 3nd woried into aspulfic size and slupe for aparticularpurpose. rock 5otkI1I'1Ine:ra11N~. naturallyformeci by the aalon of bQt orW3terant.! occ~ In fragments orlar¥ II13sses. &ed~ry rock ------------...-..; Aclassof n::d fonned by the ~ ofstDlrnent.as bmestone. s.ndstone or shale. Ii~ AsedIt1e:ntalj' roct funned chiefly by the accumubt10n oforpnlc renulns. as shells N caaI.conslsUng It13lnlyofcalcium ~. ana used as abul~ stone and ill the IIGfImcture of lbne. tnvertine Ara~ of bmestcne deposited Py sprin~ W4ters. esp. hot springs. soIJ as nurtie In tM~~ dolomite AIItnesfone rich In m~neslum carPoMate. ooliU . ADmestone comp0se4 ofsmal round. ~Icerous grains rcsemPling fIs& roe. Alsa c.Iec:I11M stone. UndstoM A~I)' roc;l: cooslsttn§ of sand. usuallyCuartz. cemented ~r by various suPsf.anctS. assilica. clay. or ~lcfumc.arWnm bfues1:oM Aden~ flne-gramea. argillaceous sandstoRe thatsplitseasilyabng bedd1~ planes tofonn thin slaPs. mWMtcM Aredd:sII-Prown s.ndstone quarried and used extensively as aI7ultdlng II13terlaL ~ap~ne A~ssNe. soft rock contJlnlf14 ahigh proportlon of tJlc. used as dimension stOM for hea1hs. tJPIc tops. anJcarvea ornaments. Also called stutlU. 236 metamorphic rock ---- Aclass of rock that has uMergone a change In structure. texture. or compostUon due to natural OIge:1cles. as ~ and pressure. esp. when the rock becomes harderand Il1Ol'8 crystamne. ItUrble Ametamorphic rock ofcl)'stJllIud hmestone.ccnsl5tlng 1I'.alnlyofc.alclte or dolomite. capal7le oftal:lng ahigh pohsh. and usedesp.ln architec1;ure and sculp?J~ , The presenceand dlstrlWtlon ofnumerous minerals account for the d1stlnctwe varleg3ted appearance that many marl1les have. Thecommercial tenn Includes many dense hmestones and SOI!lC: coarse-grained dolomites. verda~ue Adari:-grten. mottled serpentIne that takes ahigh polish and Is sold 3S amarple. Also. verdeantktue. ,bU Aknse. fll1(7-gralned metamorphic rock fortned l>y the compression ofvarious sediments.3S clayorshale. having good cleavagealon9 parallel planes. ,uartziU Acompact.granular metamorphic rod: consisting essentially ofttuartz, krived from sandstone. gne~ A~nded orfohated·metamprphlc rock comsponaing in composition to granite. In which the minerats are arranged In layers. IgMOUS rock ~-..! Acbss of rod: formed by the clj'St4IrlZ3tlon of molten ma~ma. as ~ranrte. g,..n~ Avery hJrd. ccarse-gr3Jr.ecJ lqneolls roct com~ maJ:11y of quartz.. feldspar. and mlcJ I)( other colored mlnen!.s. o~ldr.n AvoIc.anlc 9~S siml~r in composltion W gra~. USU3ty H3ci: with a bright luster. and tr.iInsparent In thin p1eces. nu~ite A~ to ne4r+j bbci: mlner3l wpper c.a~.U5ed ~ ahighly poIIshetI veneer ana for Nk!~ om3 mental artlc!es. ~rrtJne AII'IIr«.11 or rod: COIlslstlng of hydrous nug~um s!lIc4te. usually green In color and ~" ~ appe;annce. l l- l- L- L L L
  • 233.
    grain The granu13r ~ureor appearance of a stone. , vedding pllne .-.-........-..........-.....:i;;.-~~~~~ The surfau that sep"rates one str.ltum or bye-of strat1f1ed rock from ;lOOtMr-. cle.w3¥ plane _ ....---....._...-.....- A~ smooth surface along whleh ~In rocks l'rII tend to sp!lt. e;plit-hua Nott~ a~h stone finish produced by splitting to ~ the Peddlng planes.. m~tcne Arry f'tne-~ralr.ed stone, as hmestone or S3~, ~C3n ~ ,uarr!eJ or wortt.d~. esp. one thatcuts well In all directlons. carved werk .- ..... _. -....-....-..-..... Han.d-cut oma~t31 features In bid or st.one masonry. ca5tstoM Ah4r~ mix rI concrete wtth a fine storie ~~te. havlng a surfx.e ~una. ponshed. or molded to slmulate rut.lral stone. Iwnedfinish •... - ......_........ Asrnocth stor.e finish having little or no gloss. obtak1ed by ru bblng with an abraslYe. poljs~ work ~ .. A stone fx.e of Cf)'StJ1line texture. as of m3r.k or grJnlte. grourtJ and buffed to form J g!4/ssl1ke surf3Ce. Also caned glassed surface. ~~~.{~"~x,'·"' '1 ,~tl~0~~,')~~~~ STONE building ston~ Any stone suItable for use In Pulldlng construction, as limestone, IT13rMe, orgranite. .....' fieldstone Loose, unflnlshed.stone found 0f1 the surface or In the soli, esp. when used for building. as In ell)' masonry. ...-. dimension stone Quarrtea anasquared stone 2ft. (€itO mm) or mare In le"9th anawidth and of ~ speclfled thickness. dressed stone Stone worked to desired shape and smoothed on theface. :......._.. _.-... pitch-faced ~ Noting astone having all arrlses cut In the ...------------t---, same plane and thefaces roughly dressed wtthaplek. draft Aline or borderchlseleJ at the edge ofa ~tone to guide the stonecutter In leveling the surfaces. L._ drafted margin Asmooth, uniform IT13rgln i'!on:ea around a :..:.~.:.""'} !7'."!~"'??T') stone face. L._ sunk draft Amargin of astone set below the rest of the face. ... - boasted &umau Astone flnlsh obtained bychiseling roughly parallel grooves across the face. --. batted ,urface Ascored stone surface made with a mason's chisel after the surface has been rub17ea smooth. Also called tooled surface. 237
  • 234.
    STRUCTURE Ast.Ple ~s5e/'i1bly ofstnJctural elementsdestgntd ana canstructed to function as awhole in supporting and transmitting appntd loads SJfeIy to the grouna without exueding the allowable stresses in the members. linear ~tructur., , Astructural member ~vln9 alength that ~ domll13t.es Its othertwo dimensions. ~id Ofor pert3lnl~ to astructure or . ~m stroctur.al memDeI' h~ ashape t~t ~ notc~r~eapprcc!aDlyunkrt~ / ::.:;:=or~~~~~~.~~// AS'tnlCture or 5tructlIr.almtmber that ~ external focus prIm3lily ~l'OU!1h the ~II:: and ~ulty of Its material as aDe:im or column. frame 'eCt<)r-actNe structure ----------------------------. Astructu~ th3t red1rect5~mal forces prinurlly through the composition of tension and compression memDer'S. as .a truss. ~KtNe rtructu"" AS'tnJGt.u~ that realrectsexternal forces prilT'4rily abrlg the contlnulty of 41 surface. as ap!.ateor shell _._.__,-_.......__.._________:-____ ---__.__ .-.....-.-....,-.•.- ...---. -.--.---- "- ~r1I~mDer One oftntconst:ltue:1t parts Into which a ~re m:zy ~ rtSOlved I1yanalysis. hH.ng .a unlt4ry c~mter and exhlDltl~ J unique loeh3vlor unk!- an appl1ed load. .238 , compre~lon memller Astructural memberSUDJect prfmartly to compressiveforces. --tt-=·CI:::r:::I::CI::r:::r::~~_ ~tnrt Astructur.al memDerdes~ned prtmarfly to resist IongltuJlnalcompression. uMlon meml1er Astructural membersubject primarily to tensile forces. J.~____-.--.--r--'--.--r-"'--'---A~' tie ,umce~tructure Astructural member having alength ana width that dominates Its thlcl:ntss. f i _._J OM-way Of orpert.lnlng to a structure or struaural member havl~ aIoaa·cjrrylng mechanIsm thatacts In one direction only. twO-way Of orpertaining to astructure or structural memrer havIng a Ioaa·carrylng mechanIsm that acts I" two or more dll'e(;tlons. ~ rJ rJ I .J I ,..I I 1...1 l." V I lr I ! l, J I M
  • 235.
    ,tl'"" ,/ i .""-. /. . . / "'-. . " . : ,tructural unit Ad1scrett struG"Wre oras~mbly of structur.il members formlng;1 spatial volume. ......~..~.~ .'1// '. j: ./ ~ay : . ! Amajor spatial division. usually one of;1 : sues, marltd or part!tloned off by ~ principal vertlcal supports of astructure. t.-ansition structure II s~ture meJi3Ung Detfleen two cr r.-.c~ drffererrt stnJCtural patterns !Structural grid Agrid defining the princIpal points or niles of supportfor a structural system. regubrgrid Astructur.il grid havlng regularly rtpenlng Pays In two dlrectlon.s. cfou~legrid A5truCtural pattern consisting of t....o gridsoffset from each otheranacreatlng Interstltl3l spaus ~en tM bays. inU~1 Irregubr grid Astructural grid havl~ Irregularly Sh3~ !lays In one or more directions. !Slipped grid Astructural grid h'-lYing points or lines of supports spaced uniformly In one dlrtctlon Put val)ing In the other. STRUCTURE ~ J _I , : :1 : 1 i I &tructuralpattern The arrangement ofprinCIpal vertlcal supports for astructure, whlGh Influences the see:ctlon ofan approprtrte sp;annJn~ sys~ a"" esbPllshes the possllnhtles for the ordering ofspaces ana functions.
  • 236.
    STRUCTURE structural des~n T'he preussofali3ngl~ InterconntC~ng. slzln4. and proporUonlrl4 the members of a ~I system In ordertc safely C3rT'j agiven set ofIoac.ls without exceed1rl4 the a~ stresses of the materbIs emp~. DDDDDDO .a1Icw..I7~ stress k~~n AmOOd fi:lr sizing arJ proportJonlng a structllral r<:mper ~ on the 2SSUmpU::Ja that the savice load will not skts5 *.e I'I3teriaI ~ Its allowable st.resse:s. AI:sc ailed ~t«; dtslgn. ~ design. woroni 5~S de~lgn. ~nkW Aklad used In structural kslgn computations. i .' DL=P;L=@ ----=~- .. atlowa17Ie Ioaa Aklad Ind~ the alloW3!?le st.~ at acrltlc3l StCtlon of astructu~1 metT1Per. uftJ.mm rtrength ~lgn Arna/IodftJr sizing arJ proportioning a s~rat nanpt:(' D.~ on the ~;.I.~ta~wdwillnot ~ the natt:ial ~ Its ufUlT13te ~. A'6o ~tIed fxtored load ~ Iaad-bctcr kslgn. Iimit~ig1l Struct..lral does!;n ~ on arry chose-n nm!;of 1..'Sefu1r.ess. as el3stlc ftmlt, pl3st(; nmit. or ~ue limit. DL =FL =®.:X FS ,. ,. r' strvfu load The IT13Xlmum load a~..ructure may!:>e ~son3!1ly r~ulred to support during Its usefuillfe.. BuIlding codes specify minimum service loads forvaric1JS uses. occupancles. types ofconstructlon. and environmental conditions. Also C31~ wari:lng load. ~ ~. bctoredlo~ ..........., ......, hcto'D".rety A~ load ~ual to the sel"YU T'I1e ratio ofthe maxlrnum stress t~ta load ~ by.. f3ctcr of S4fety. structural memberC3l1l'1'1thstandUl the !.JsoC2IIec:f uft.Imat.e load. maximum stress ts~ for ItIn the usefor which itIs kslgned. Alsoc.ol!ea 5.1fetybctor. ,tructunlf;anure Any cond!tb1. AS fnctwing.11ucI:nng. or pl3stlc ddormatlon. ~ renders a struct.Jral a.s~PIy. ~ orplnt lnca~ofSIJstJinIn~ ~ 1oad-C2rry1ng functloo forll'f1lch it W15 ~ned.. 240 structural analy5~ The process ofdeterminIng the 3blllty of a structure oranyof its constltuent memrers to safely carrya given set of loads wtthout material distress or exceSSivedeformatlon. given the arrangement. shape, and dimensions of the members. the tyPeS ofconne:ctlons and supports utilized. and the allow3l7!e stresses of the materials employeJ. For an exIstIng structure, thIs ~ure Is also known as str-Jctul'al ratl~. 'j . J ~ I J Il1 I. L, I~J I~ r t f I.
  • 237.
    load trace ------- Theprocess of modeling how astructure collects. channels. and redirects the loads resulting from exterrtill forces through the hierarchyofIts memrersto the foundation and underlying solt Tnt ar13~ USU311y starts at the roof level wtth the smallest metnPers actually picking up the loading ana proceeds bytracing the loads through each collecting memPer. Tnt re3CtIons of each memrerto Its loading Pecomes forces 011 the metnPer$ supportl~ It. Also called load flow. trivut.1ry are3 ------'------~~~___::;~' The portion of~ structure contriputlng to the lou! 011 astructural t!ement or memPer. Also called ccntrWutcryarea. ttibut.1ry Channeling Into somtthlng mare Inclusive. STRUCTURE ~ . . !.'~~~! . . . i . . . . : : . tril7lrtaIj' lead The load on astructural element o~ memDer coUe<;teJ from Its tripubry area. r--- load strip -----------+l+-~::__~~ff!__' The triPl1t3ry area ~r unit Itngth ofa supportlng structural memrer. ~..- ...-.......~ primary mem17e1" • Astructural mem~ ~serTtlal to the staplllty of astructural whole. Also called rn.1ln mempeT. /'._........ ve3ring - Apoint. surface. or mass th3t supports weight. ~p. the area of C011tJct t>etween a Dearing memt>er. as:l t>eam or truss. and a column. wall. or other uMe~ing support. ve3r1ng 'tr~' The stress deveJopea t>etween a~earlng memPer and an underlying support. equal to the quotleT1tof the magnttuk of the forces transmitted and the area ofcontact ~etween the two eI.ements. I I I 241
  • 238.
    STRUCTURE 'upportcoMition The Nnner Inwhich as~14I1 rne:mber Is ~pportea and connected to other mem~. affecting the nature of the rtactIYe forces devebped on the Io.dtJm~. pointohttpport Apoint Oft astructur.11 memberat which Its reactIoft to aload Is tr2l1$111ltted as a forutoa supporting rnetn!1er. ~--''''''-'''''' ~-..--..- ...-....-.. unre5trafned ~mber fixed-end connection -.-....... Arigldjoint connectln~ the endof a stnJctur.11 memw to a support. 242 Astructul'3l meml1er permitted to rot3te freely aroutapolntolsupport. plnjoint Astructural connection that allows . rotation but resists translation In arry direction. Also called hlngtjoint. pinned ccnnectlpn. pin Aslender rod driven th~h holes In adjacent parts to !upthe parts together or topermit them to mcve In one plane relative to each other. rtgtajoint Astructural connection that Nln'talns theangular relationship ~ tM joined elements. restrains rotation and tr2nslatlon In any direction. and pr'OVk:Ies both force and moment reststance. Also calteafixed connectlon.fixedjoint. rigid connection. roller 5UppOrt AstructlJl'3I support th"t allows rot.;tIon rot resists translatlon In adlrectlon ptrpendlcul3rInto or iW4Y from Its bee. Also canea rollerjoint. C<1ble ~upport AcalXeanchorage tit<lt allows rotat1on rotreststs tr3n$latlon only In the dlrectlon ofthe cable. anchorage Ame3ns for Pndlng a st.roctur.11 rretrJ,.er to another or to Its founaztlon. often to resist upllfU,~ and hori.w1t31 folUS. ~-. I l ! I I . U u L L L L L L
  • 239.
    STRUCTURE ,t3bility Th~ abilityof astructure.when dlstUm:a from acondition ofequili~riu mby an appfled load. to develop Internal fcrces or moments ••~~~~~~~~~~~~~~~~~~~~~~~~~~~~~~~~~~~~~) ~grestore~eor~~I~~~. lrteralst3pmty The ability of astructure to resist I3teral forces without sliding. o.'ertumlng.l1uckllng. or collapSing. In-aced frame ", Astructural frame of linear" lIot:mbers maJe rigid Py ;1 system of dlagor13Imembers. diaphragm Arel3t1vely thin. rigl.d structural member capal1le of withstanding shear when loaded In adlrectlon para!let to Its pl3ne. ~=~:~~~:~'=::-----~i: ~.I ] -- ~=~£::.~,~~:" 111 fJ down underanapplied k:l3d without a ......~~~~~~~..... ch3"ge In length ofarty lna.vidu31 member. ". IaUral17raclng l ~ St3!nllzlng astructural ~...em ag31nst ~1--------_____=~IO""'SI>y"""of~"'I""""S _~_ Astructural element for posltlonlnq, supporting, stre~thenlr~. or restraIning I I- the members ofa struct1.:nl frame.. al3gOnall7racing Asystem of Inclined memWs for mclng the angles between the rrenbers ofa structural frame and ensuring the ~I stabilltyofthe whole. 5W3y17race Adlagonal memberfor mc:r.g ;1 st.rtJcture ~alnst I3teral forces. . -_._- cro'517rulng Apalroftransvcrse bra~ for st.ob;:tzlng a structural frame ag.olnst ~...eral~, When using cables. two are ~lj'to St3!7i1tze the structure a~Ir!5t 1a~1 forces from eitherdlrectiorL For ~h c:flrectk:m. one cal1le wUl opmteeffectlvely In tension while the other w01.:ld simply tnJclde. Ifrigid braces are u~ acertain degree of reaund3ncy Is lrT'y'oIYed situ a slng~ meml1er Is capal1le of ~bH1zj~ the stn.Jcture. Also. X-l7radrtg. ~.- ...__ ....... horizontal diaphragm . ArigId floor or roof plane act:!~ as a ~In. deep beam In transferring lateral forces to vertical shear .,....rtS.11raud frames. or rigid frames. ....._......- ... 5he.1rwall Avertical diaphragm acUr14 35 athin. ~p cantilever Deam In tra:'lSferri~ i3uralloads to the ground f"'Jnd3~n. 243
  • 240.
    STRUCTURE regul.u 5tructure Astructuralsystem c~ract:ertze.dDy the symmttrIcaIconflguratlon ofmass ana later.Iforce·reslstl~ ~nts and having no significant d1scontlnuttfts of stiffness or st.rength. The effects of 1ater.1 forces on regular structures may !?Cdetmnlned Dy static Inethods. ~ring wall ~y5um Astructural system ~tlng of vertlcal planare!ements for supporting grnity loadsana shear wans or lmleed frames for r:eslstlng lateralforces. ~ul2r Wucture Astructural system charac;t.crizeJ Dy arry of ~rIous plan Of' ve~ Irreguiaritles, 35 asoftOf' d story. adscontlnuous shearwattordlaphragm, or the " asymrnetrIc:allayout ofInaSS Of' lateral· force reslstlng elements. Irregular structures ¥ner.l11y rettulre dynamic al14l~ In orderto determine the torsional effects oflattnIforces. tor~lon..3llrregu~rity -----------....-.-.. The a~1 by<Mof m3SS Of' lateral f01U-reslstlng elements. resultlng In noncolncldent centers of mass ana rests'bnu and C3uslng ~e story drift at one end of the structure to ~ more th4n the a~ ofthe story drifts at roth ends. frame 5ysum Astructural system ccnslstlng ofa tnree-d1melJ?lonaI array of Interconnected linearmembers that functions as acomplete. s.eIf- contained u·nttln supporting gravity loads ana she.ar walls or meed frames for resisting lateral forces. centerofresi5tance moment'1'e5~tjng frame Aframe system designed to resist lateral fOfUS primarily by flexure In the mem~ andJOints. Thecentroid of thevertlcaIelements of a lateral force-resisting system, through which the she3r reaction to lateral forus acts. Also called centerofrigidity. reentr.lrrtcorner ----..-.....- .................-.._-... DOD DOD DOD ODD DOD DOD DOD The plan com'Iguratlor. ofastructure and Its latml force-~ ~mb.avlng p~ beyondacomer slgnlftc3nt1y !rcaterthan the plan c2bnensIon In the SiYen OIrectlon. Areentn/1t comer tends to produce &Ifl'erentlal h.7tIons ~tween differentportions of the structure, " rcsuftlng In beal stress concentrations at tM COt'TIeI'. Solutlons IncIuGie provldlng a seismicjointto separa~ the Irolld1ng !nto simpler wpes, tying the Irolidlng together II"oOre s~1y at the comer, or splaying the corner. ~{5mic joint •.._..-....- ........_- .............-... Ajoint th4t physically separates two adjacent 1ro1ld1t1g masses so that fru vlln-atory movement In each can occur Independentfy of the other. 244 r-dUJI system Astructural syst.e~ fer reslsUng lateral forces, combining t-I.,e ducUllty of 3 moment'res!stJrtg mrr.e wtth the" rigidity of ashear wan. "......• ecurrtric ~raci~ Astructural ~ for reslsU~ ~ter.ll forces. COO'~,1l'.3 the ducUlity ofa moment·rtSlst:.~ frarre wtth the ~Idtty of a brn.ea fr3 :ne. y I . j F I I I '" I &''' l- I l~' I t It ~. I I t! I G
  • 241.
    ptrionted s~1I WPe~----"'-----'-'--'--"--­ Atu~ structure h3ving perimeter shear JIr.i ils lrith less thAn301 of the surface :om ~orateJ by openings. h:o~tuPe------------------~~~~--~~ AtJJbe structure having clo$ely 5paced '""'-' l~rt.i">1 ~~ ccWlnn5 ~ld1y conn~ted by ~ ~reI reams. ~tuPe ---------------.----------.-.- Aframed tu~ structure tled together by • 5)'$ta1 of dbgonal mus. tr~s.ed tuPe c.--------b*;::~t:t:'r_-__t:~nH3 A~ tu~ structure h3ving trussea wag fnres of widely 5p3ced columns tied t.,~ by dbgon3/ or cross /mlcl"4 ~~5~be------------~~~~--~~~~~--~~~ A~ tu~ structure having perl~r frarr.esof closely spaced c/1agonals with no .... ~column5. P-unaled~ ---.------------------------------.-.---.----,_ An ~~ of narrow tuDes tied d1rect1y .••• to exl! atI'er to fonn 3 lnOdular stniCtUre that bd13ves lie a mu/"tlcellular roxgirder C4~ngoutofthegrounJ. Mort tu~ are som.etlrnes prorlded In the lower ~ of :0 t;lR structure wh~re greater ~~Ifo.-u resistance Is needeJ. t.u~ilt-tube struct1.lre •. ----------.-- .... Atu~ w-JCUJre hAvu19 an inner praced t.u ~ a4.:W to th~ ~r tuo~ to l!r.pror'e Its she3r5tlffness In resisting ~.er31 foru:s.. b-ract4ccre ~-------- --.--------- --,.' 1-.:1 :n~ sm-ice core br.3ced to prcvlde ~rtbl4l stiffness In reststlng latenl f~. ilrt.erM damping T.".e ~~ th3t II41tur.li1y occurs 65:0 p...~ ~ ~stlc or plastlc ~n. ~ from the InternJl fr1ctlan cf:O~m3terbl~s ~~). from the friction l1aw~n two ~ parts (frictlonal ~mpln~), ~-- - --- -- -. or from the ~ resistance ofafluid 5-'xn 3s:olr (mcou5 dampln~). ~ro~mic dampi~ TI-.e shApInq of. tall ~ulki1ng to create t-:rt-Jk:nc.e which g~nerates cross-wind 11ft tc oppose cross-wind dd1ectlons during "'~ wlnJs. ttl,b1Jknee 1;-~Jl3r Il1ct.icn of che 3crn05phere CCj,'""Jctat:::J by ur'-and·c!own current5 . ,-,.--It"""" ,..---- ~ ~~ r--:-~ H Ir- ~~ r--+-"~ STRUCTURE tupe~cture A high-rise structure having perimeter. I3teraI foru-reslstln!! systems Inter11311y braced fly rlgldfloor diaphragms. Atube structure acts as acantilevered ~ Peam In resIstIng lateral forces. ,bmp To cause adecrease In amphtuk of successive oscillations or W3V~s. d~mping mech3nism Any of various viS<:Oelastlc aevices typically Installed at structuralJolnts to 3bsorU the etlerrJ generated by wind or earthquak~ forces, pt'O!Jre5Slvely dlmlnlsh , or ~lJmlll3te vl17mory oroscllbtory rnotIons, ana prevent destructl'r'e resonances from occurring, L_______________ --..--.-.....• tuned ma~~ damper A heavy mass moonte4 on rollers and att3ched to the upper portlon of~ bll pulfdlng with spring dampIng mechAnisms, havi~ an Inertial tendeMGy to n::rruln at rest ana thus counteracting ana dissipatIng arry ~Ikllng movements. pa5ei,oLttlon Isol3tlng the I13se ofa l1ulldlng from the ground with dJmplng mechanisms to allow the superstructure tofloat 3S a~Id l10dy and alter the natural period of vll1r.3tion of the structur~ 50 that It Is dlff~rent from that of the grouna. thus preventing destructlve resonances from occurrinq 245
  • 242.
    SURVEY To atUrmlne theex.1ctform, boundaries, extent,ana position of J tract of land by Unear anaangular measurements and the apF"Catlon· oftM principles ofgeometry and t.r~onometrjl. true north _-..- - -........-..J The direction of the north pole from 1I given polnt. ..//' // nugnetic north ----------..-----~­ North liS ~ Py the north- ~I~ pole of the magnetic needle In 1I compllss. . ~~'d1~~-exp~;dI~ / /' rnet.e, 3na l70unas . The property hnes or boundarIes ofa parcel of bne. plane ,urvey Asurvey In which curvature of the e4r?l's surf.lce Is Ignored. and all distances ~rJ horIz.ontal angles are assumed to Pc projectea onto a horizontal pI4Moo ~na survey Asurvey made to estaPIlsh the length and Dearing of roundary nnesana the are3 of the tract bounded l>y these tr.cs. cad.a5tn1 survey Asurvey showIng rouna..rles and p~ nnes, USU311Y ln4aeto.CI'e4te land units suitaDle for transferof ~ ~utts anal70unds A!egaIterm for the 170unaary Ilnes of II parcel of laM as used In deeds and ~ ~retS ~ or westofatrue or / ",~"netlc north or south direction. / ,r....-. m~Jnd-l7ounas survey .. -:I ; / Asystem oflana survey In which the pLat Apianor II't3pof land In acity, tawn. section, or subdlvlslon.lnJlc;atlng the location ana boundaries of Individual properties. n:lmuth __________.________________.i ~:./ cour5eaMlengthofeach boundary Une of The angleof horizontaldeviation. _____•• " ./. aparcel oflandare called out startln~ at measurea clockwise.of3 Pealing r·· "'( aknown refmnce point and woti::lng from astandard dlrectlon.as from '"" around tM periphery ofthe plat until ;;~~~~:~-------. I A ~=~~~p.:oc~lnnl~- ,urvey plat Aie9al documentdescrl~ the 1oc3t:C: boundaries. ana dimensions ofatract IX parcel of land.lnclud1~ zoning and plannl~ commission approvals•. easements and restrictions. and. for a subdlvlslon. the dMdI~ tlnes of stred., blocks, and lots. aM the numbering arJ almenslons ofeach lot. Intersection are recorded 5l'3phlcally, / ' The compass dlrectlon from one reference on aNp and liS dau Ina ub!tt ~ poIlrttothe nextfor each ~ofa~' p~of~fnmng ·----··----c..---··-------· ...- I" and-roundssurvey.staW In degrees. ~ ~ pointfor ametes-aM- . mlnuUs. and seconds as an angular rounds"'''''Y- ~'~",st......,oc0", no.<II or legal de$crfption Awrttten description of the Ioc3tlon ..rJ boundaries ofaspecific parcelof Iand. !:rasedon a~'and-Pounds surveyIX. rectangular system ofsu~. or made with reference to arecorde.d plat. rect.angu~r system Asystem of land survey !:rased on a rno.:1i&4 9rid of north-south principal me.rldlans and e;ast·west baselines. Also C1lIed government system. ~n.ge . On.s ofaseries ofaMsions numberedeast or ~ from aguide II'1eI"IdI2n In the rect.ongub,.~ ofSIJtYftjana consistlng ofa rowoftownshipsthatare IWlT1Pered north or south from a!:rase~ne........ =l~"j_;;;~~~~~~~.._ ...'._....... sysUIn d~. approxbl1atefy 6 54 mL (932 ~ m) conta~ 36 sections. &«t!cn One ofthe:36 num~ subdiviSions ofa township. ~h approximately One square mite (2.59 S<tkm or 640 acres) and further suPdlvded Into flJlves. CU3rters. and CU3rter'1lUrters. ----1 1 "-....... 246 .-.... .............. ._.._..._ ....._ .., princip;1 meridian In the rcct3n~ular system of survey, a north~h reference nne estaPllsred at a~~tant:1allandmari: for alarge area of land. ....---.. -----.-....• guide merid~n In the rcct3ngular system of ~rvey.a north-south ref~ hne ~ ~ com:ctlon hnes at 24-mlle Intm'3fs to the eas;and l'I'eSt of princIpal ~ns_ •........~-...........-I-;-....----.-..- ... -.- l7a~li~ --+---+---1---+'--+---' The princlpal e;aS;.west reference nl18 for an are3 In UIt rectangular system C1f survey. t··-..·-..--··..·-····-- correa.lcn 11M : An east-west reference bne Ioc.teaat 24-mlle nt.erv;aIs to the north and south ofa!:rasel1ne In the rectangular system ofsurvey. estaPllshea to correct for the convergence of meridians and equalize east·westdistances. -........-....- .......... -..--. range line In the rcct3ngular system ofsurvey, a north·south reference line locaW at 6-mlle lITtervals between guide meridIans. j l l l l l I ...
  • 243.
    bel Adevice for~Inl~ truehorlzorrt.1 or ~I dlrectlons by the centerl~ of aP-.JWte In a~htly rowedglass tu~ filled with alcohol orether. Also called spirlt.level --.----...----.-.-."'-'- .artffi,ci.·d herizon A~ 3S asurf:Jce of mercury. 5tJIdia --......-..-.----... -'-..---.,-...-.. -: A~.od of surveying In whJ.;n dlstar;c.es 1, are re;ad l7y noUng t~ In~1 on a gr<1dUJte4 rod Intercepted by two karizcn~1 cross hairs mounted In the :::::::~:~_~_I_~~:~n~_.~. ~ Ared ;;nd white dJsl: on alevdin~ rod Uut, f3C~~S the s1ghtln~ and reading of tr~ rod. rod -_.-.-...-.._- ..... "'-"'_'-" Astr..:ght pole or ~r. conspicuously marU.d wtth grnuatlons.;;fJ used In rne;;su~ the ~al d1s~na Petwec1 a point 011 the ground .n.:! the tine of sight of a~'s level Also called levelll9 rod. sWi.JroJ. cturn Ad1st4 ;x:.e-measurlng devIu conslstl~ of 100 rr.rul nrn:sof~1J3lletgth. Guntde cluln Ad1st4na-me;;surlng devlu conslstl~ of 100 Malllnks and atataIle11gth of 66 ft. (20 m). Also called WN~cr'S ctuln. en.ginut"9 cluln Ad1st4na-lTIasurlng devIu conslsUng of 100 Irlet3ll1nks and atot3i fe11gth of 100 ft. (30 m). . ~ datum ~_.._...i turning point .-.. ./ ./ ./ Arty kYd surface. line, or point used as 3 refmncdrom which reratlons are lT1C3surea. Apoint tempomlly located and marked in order to estaUllsh the elevation or posit~ of asurveying Instrument at anew station. l' ~~ ----------- , , SURVEY trllauration A methodfor determIning the relative posltlons of three or more points by treating these points as vertices ofa triangle or triangles of which the sides and angles can be measured, tr~ngulation A trigonometric methO<l for determining the position ofapoInt by takIng rearlngs from the end poInts of a1r.lsellne of known I or measuraule length. , I .....··----····-r-····-····- ba$eline / Aline ofknown length and posItion from / which points or other lines may be ' -__ f estaWlshed.asacornerofa!1ullding ---~ structure ora property line. oJ- " r---'-~-., " transit Asurveying Instrument. as atheodolite. having atelescope that can Pe reversed by turning In avertical plane. used for measuring horizontal and sometimes vertical angles. thecdolr:e A precision Instrument having a telescopic sight for estaUllshlng hortz.ontal and sometimes vertical angles. a1Id.1de The entire upper part ofatransit or theodolite. Including the telescope. its supports. spirit level. horizontal cIrcle. levell~ devices. and the spindle. ',~--.-- .... horiz.o~1 circle ~~~n __.. _ ...1 Apreclsel:i kx3te.d reference point (N~ which a5'J:r~ng Instrument Is cenured. Also C3lled Instrument st.ttlot1. ut'1J p. Acircular plate, graduated In degrees. minutes. and seconds. and flxed to the baseof atransit for measuring horizotttaIangIes. . -...- o~1 plummet . Adevice for centering atnnslt or theodolite over areference point. used In place of aplumu rouIn astrong wind. leveling A procedure for determlnl~ the difference In elevation Uetween two points by means ofalevel or transit and a rod. Also c.111ed dffferentl.allevellll4. e~r.rtJon The vertical distance aUoVe or uelow a datum. ~pot elevation The elevation ofacertain point relative to aspeclfled datum. profile Avertlc3l section of the ground surface taken parallel to asurvey hne. L'bench nurk A marked point ofknown or assumed elevatIon. usually on aperT!13nent ouject. from which other elevations may be estaUllshed, 247
  • 244.
    TEMPLE An eaifict orplace dedicated ta the worship or presenu ofa deity. ,acrea Ofor~Inlng fa re«glousoUjll(;ts, rites, or practices,2S opposed to the StCul3r or pr0f3ne. ~uL1r Ofor ~Inlng fa the temporal or worldly rather~n the sacrea or spiritual. Also, profane. :~ ,! menhir . ~'!~~'j, :'t ..,·1 Aprehistoric monurnentconsisting of an 1f~'." upright megahth. usually standing alone uut f' ~,: sometlmes allgnea with ers. .-...................... r~~:1.. meg4l'rth ':1 ~ . Avery brge ston used as found or ~hly .. i!:' . d~esp.1 ancient construction wori:. 1·:~t~1.~ monolith J~,j,.'l'll . Asingle Plock of stone ofCOI1slderal?le S1ze.~~~~:;~~- often In the form of an ol>elisl: orcolumn. . . . ... zl~ur;rt Atemple-tower in Sumerian and Assyrian archlteGWre, l7uitt In dlmlnlshlng stages of mud bnd: with M t<essea wans faud with l?umt ~rlct culmfn..,--tl~ In a 5<Jmmtt shrine or temp~ reached ~ aseries of ramps; th~ht to ~e of StJmerI3n origin. dating from the end of the ~d rnHlennlum B.C. Alsa zillirat. . Tower of BaDcl Atemple·tower preSiJmed to be the great~ur.1tat Babylon, which no Ion~ survtves, ~h tt was seen and clescMuea by the Gr--A h!stori3n, Herodotus. In the 5th century 6.c.: °ArJ thq SJIJ to oro! ~Mther. Letus mate britt iII1Jburn It t/lawghly. And they h3d brld: for5tone, zr,J sime forrnor1:Jr. AM tMySlIJ, LetusJ;:r.;!J 1 citymh ~ ~ t;(>p m1Y~ IJt'ItQ heiwen;3Mlet usnuU1 rume.1est webe5CZttt:rtJ z/:IroUuponthe bCt ofthe wfrofe earth.• ~1I.'4 uma'5U The monument31 SkX1e sculptures of hurrun-he3deJ. W1T1~ Irolls or nons that guarded tMerTtr;;rus to Mesopotamian pC.us and temp~s. cairn --'---....:-...--.-.... dolmen Ahe2p of stones pnea'up as amonument, tom~toM. orbndrT13rt. Also, cam. pa'~grave Amtg3llthic toml7 of the Neolithic and early Bronze A¥Sfauna In the 6ritlsh Islesand Europe, cans/sUng ofaroofea I7urlal cham~ ~d narrow entrance p4ssage, covered by atumulus: relievea to have !leen . usedfor successive f3mily orcl3n l?urials spln"~ a numrerof ¥neratlons. Also C4~ chanWer!lrave. shiligrave Atom~ of the Aegea ncIvlhzatlons cOf1slstlng of adeep rIl(;tJngular cut Into sloping rock and aroofof timber Of'stone. 248 17eehive tamp L....................... dromos A stone-~ullt su!7terranean tomu of the Along. &up passageway Into an Mycenaean clvllizatlon consisting ofa ancient 5<J~rr.lnean tom~. circular chamuerCOIered by a cor!1eled dome and entered by awailea passage through ahillside. Also callea thows. Aprehistoric rronument conslst1/t9 of two or more fa rge u~ stones supportl/t9 a horlzont415to1'ie $l:.ol1, found esp.ln 6rft3ln and Franuand lI$U3fly regarded as atom~. t.n1ithon Two u~ht mega~tr.s supporting a horizontJl st..ol1e. ~ called trlIlth. 5tcnehenge ArnegaRthlG monumen~ erecud In ~he early Bronze Age cZ700 6.C. on S31ls~ury Plain, Wlttshlre, ~~rId. conslstll'o4 of four concentrlc ri~ of trllithons ana menhirs untered 3rOlma an altarstone: !?elleved to have Peen used by asun cutt or for astronomlc31 oDsemtlonS. l . I I L'" I I ! I ! I 11 I u
  • 245.
    ~ An ~ ~ntomb m3de of mud !1rlGk. ~larln plan wtth aflat roof Jlnd slopl~ ~ from which ashaft le3ds to cmdergroond ~ur!aland offering elum~. --------------_________________ _ ~d.a17 ASm3" ehamPer Inside amastaDa containing" statue of the deceased. ------ ur.teU5 The ~ure of;he S3Cred asp, depleted on the ~of ancle11t Egyptlan rulers and kttIes as an em!?lem of supreme power. pluraoh Arry of the rulers ofanclerTt ~ who were ~ to ~dlvl/'l('; and had al;>solute power. roU-cuttomb Atamp hewn out of 113~ red, ~ only an arc~ral front WIth dolrt In"terl:lrcham~, of which ~~a~su~!7ymasses of stone left In the form of sollJ pHl3rs. ._ _/ ~",.,.. ol:rd~k ..------------/ Abit, fo~ sh3ftof5tcnethat bpers as tt ~ to af"iT'lmldal point, o~IT13t1n41n ancient Egypt as;l sacred symPol ofthe $lin-god Rland usually standing In pairs ~ temple entr.lrlCeS_ OsirL.Jn cofumn An ;lncltnt ~n column lnco~ the sculptured ~ure of Oslrls. the ~an ~oa of de3th and resurrectlon_ necropolis -_.-_.--_:- Ah1storic Irortal ground, esp. a13rge, eI3bor.rte one ofan ancient city. cav~ ~ Accncave molding having an outbl'le that approxlm3tes a quarter clrele. r- cavetto cornice i Aeltaracteristlc cornice of Egyptian ; Irolldl~s, con.."-lstlng ofa I3rge cavetto . decc~ with vertlcal Ie;ues anda roll molJlng !;elow. Also called gor~. pyIon-..-j AInOfIUmen-c.f gateway to anancient Egyptian temple. conslstlng eitherof a pairof tall tru~ J'YI'3mlds and a doorway Detween them orofone such masonry mass p~n:;ed wteh adoorway. often ~te.d with painted reliefs. propYton AfreestarJ<llng gateway having the form ofapYlon and precedIng the main gateway to an ancient Egyptian temple or sacred enclosure_ H3thor-headed .--------------------- ----------- Notlng an anc~nt Egyptl3n column having astes capital the head of Hathor. the Egypt!an godckss of love and happiness. often represented with the head or horns of 3 cow_ Also. Hathoric TEMPLE pyramid Amassive m3sonry structure havIng a rectangular lr.Iseand four smooth. steeply slopIng sides facing thecardinal pointsand meetlng at an apex. used In ancient Egypt as atom~ to contaIn the Irorlal chamPer and the mummy ofthe pharaoh. The pyramid was usually partof" complex of uulldlngs within awalled enclosure. IncludIng mastaDas for memuers of the royal family. an offering c~pel and a mortuary temple. A raised causeway led from the enclosure down to avalley templ:on the Nile. wh~e purlflcatlon rites and mummlflcatlon were performed. syrinx Anarrow rocl:·cut corridorIn an ancient EgyptIan temu. -----. cau~W3y A~ure ofan Imaginarycreature having the DoJy ofahon andthe head of;l man, ram. or hawk. COtI!monly pl3ceJalong 1Venues leadIng to ancient Egyptlan temples or toml1s. hypostyfeh311 Alarge hall having manycolumns In rows supportl"9 aflat roof, and sometImes a cltrestory. prevalentIn ancient Egyptian anaAchaemenkf architecture. ,....... Araised pass~eway ceremonially connecting the valley temple with an ancient Egyptian pYramid. cultumple An ancient Egyptian temple for the worship ofadetty, as distInguIshed from a mortuAry temple_ mortu~ry temple An ancient Egyptian temple for offerings and worship of adeceased person. usually a deffied 1:1"9. In the Ne,., f:Jngdom. cult and funerary umplts had manyfatAJres In common: an aven~ of sphlnxeslQdlng to a tall portal guarded !7y;l towering pylon, an axial plan with :.1 colonnaded foruourt 3na 3 hyposty!ehall set before adark./lJrTOW sanctuary In which stood astatue ofthe detty. ;lnd walls laVishly decorated wtth pictographic Qrr1ngs In low or sunkml relief. Marry of the ITt3jortemples grew Uy accretion due to the pious amu!tlonsof successive pharaohs. who ~hevea In the afterlife and were determined te create an endurl"9 reput4tlon through theIr uuUdlngs. New Kfngaom The period In the history ofancient Egypt, cl550-1200 6£.. comprfslng the lath te ~ dyna$tles: ch3racterfzed!7y the dominance of Its capital at Theues. '-''---- palm capital ,-J-----. An ancIent Egyptian capital shaped IIl:e of the crown ofapalm tree_ --- low, capital An ancient Egyptian capital having the sha~ ofalotus 17ud. 249
  • 246.
    lnelProti A!lulkillfor seml-I~r.derrt unItof a ltulldll1j.~1Iy ha~ ~ rectangular princlpal~ with a~ he3rth and ap«dt.o(t.,n ofcolumns In antis: ~ In Greece since ~ean times..believed to Pe the alUSt« of theDcric~ Greelctala* Atem~ ~Ikas a shrine fa the ancient Greek fOIlor~ to wnom Itwas ~ Since the temple was not 1nt:enJedfor IIrtenuI worship. It was ~ullt wtth 5p'da1 rt'9d for ~I effect. It stooJ 01 a~Ir.rte ofthree or mOf'l7 steps.Mthacella,containing the stoatue ofthe ~ aadfront and re3r porticoes. the whole ~ surmounted Pyalow ~~ roofof~ber. coverea In terra- cotta orltarble tiles. albr An eIevaW pba orstructure upon which sacrIflces areoffered orInctnse ~~ ill worship. orbefore which relglous ritesare performed. cetb ---------------....--.---- Thcs prlIIdpal clt.mberorencbs.ed part of acbssbl teI1p/e. where the cultImage was I:ept.Also called MOS. '-Tc/£;' ..-.... ..--.......... agora :/ Arrt3rtetplace or pu!7llc squa~ In an ancl¢m /' G~d: city. usually surrounded with pu~ ·f· i.. IxIlldlngs and PO~5 and com~~ used /..... --..... as ap~ce for populJror polltbl as.sem~. / ~ ~ ,toa An ancient GruI: portico. usually detached and ofconsidera171e length. used as a promenade or meeting pl3ce arourld pubi1c places. (J ....... pronaos An open vestibule l1efore the cella ofa . classbl temple. Also calb:! antlcum. roo- acrourlum ! Apedestalfor. sculpture or I temeno5 In ancient Greece. jI piece of ~r:otmd speclal~ reserved and enclosed as a sacred piau. 5tela . An upright stone slal1 or pillar with 3 c.rvc4 orinscribed su~. usedas aInOrnlrnent orINM. orasJ commemorative t.(,~ ill the f3ce ofa ~ildJng. Also. 5te~. ~mcnt . Awide.~hed gal1le surmounting 3 i ornament atthe apex orat each of ~~~~~:::;=~~~A i tilelowercomersof3pedlment. Also calledJeroUrion. t..._ acropolis Th6fortlfleJ high area or citadel of an anclerrt Gred: city. ~orJmaJorJlvlslonof~~de. _....--.-........... S?f;.~E:=··J···~··~···~··§'~··~~··~:~~~···~···~···~~~i~~~~~~~~~ ~~ etyfobU Acourse«N5OI1ryfonni1g ~ f~ boa rowOfcolumns. esp. the outennostcdonnadeofacb$slciltemple.•.._, ~ ....__...- ...._......_.-. Asolid IIi1S5 rI NSOI1ry ~ ~Povt7 ¥OUnd breiaIseMlIf as~ fourWtlon - 6tla, Asculptured ~'J~ of a!TUn used as acolumn. Also calltd Ubmon. ofa~tsp.~~fonnlngtM[2.~~~~~~~~~~~~~~~~~~ ftoor alldsa~ ofJ c!ass~1 tempk AlsoC3I1ed~. podium. . ...- caryatid Asculptured female flgUn5 used as a column. /<Jso cartea ~nephora. b~erucle fu porbP4esanctu3ry In which the HebrnsC3f'Tied the art ofthe covenant ttl~ 1ieJesert untl1 the !lulldlng of theTmpIcofJerusa~ bySolomon. holycn~ ~---.-.--...-....--........ The In~ chamberIn the 171!7flca1 Ta~ aad therempleIn Jerusalem where tfIe artofthe COVCIUnt w.5.kept. Also ~ Nnctum 5.1nctcnlm. Art oftM Ccwenant The chestc.owlnillf two stone b!nets InscrlOeJ ~ the ren Ulmmandments. carried by ~ Heln-ews during their ck:sut wanJerlngs after the Exodus. 250 Temple of50lomon Theflr5tTemple ofJerusalem. completed c950 6.C. by Ph~nlclan artisans under the direction offJng Solomon and des~ by NePuch3Jnezzar II In 586 6.C. Basedon CanaanIte and Phoenician prototypes. It was oblong In shape. and consIsted ofthree maIn parts: an outer hall (u~m). the main sanctuary (hekhal). and the holy ofholies (deVlr). all decoratea with massive carvlngs In Ivory. gokl. and cedar. 5ynago~ut Altulldlng or place of asseml1ly for Jewish worship and reI1glous Instruction. I1lmah The platform In asynagogue from wfirch services a~ conducteJ. Also called .almemar. vem.a. Holy Ark The calrlnet In asynagogue In which the scrolls of the Tor.Ih a~ kept. set Into or against the wall that faces toward Jerusalem. I 1 l l L
  • 247.
    ~ =- ;... l' r ~ ~ I ~ ;:. '{ * ~ .... Jt PJ,mca Al;irgec*long!nJ1~ ~asa hall of ~ anapuUl1c ~ plJce In ~nclent ~. typ~ h4Yin~ ah~h untnl space Ilt I7y aclerestory and COt'erta bytlmPer trusses. and aI'lIlsea ~l5ln a semicircularapse fOf'the triPunal The Roman lnslb servea as a II'1OdeIforearlyChrl~n ~slllcas. -----~~~- tn1>unal __.._._._._..........._..__..._......_, AI'lIIsed platform In an Ar.clent RomAn ~sllb fOf' the seatsof ln31Istrates. AIsa.tri11une. :triump~1 arch A lI'1011umental mt1T1Ort.l ~rch uxted astride the line of mmh of avictorious army durl~ Its triu~ procession. .trch order The en~ge& columns aM entablature mlnl~ an arch. as In 3 t.-11,1mphal arch. clithl'3l Of orperblnlng to a cbss~1 temple ~~ Is roofed over. hypethr31 Of or publnlng to acl6ssol temple that Is II'f1cOy or ~~. ~ to the sry. Also. hyputhral ~perf~1'31 ~. __._...___........ H2Vr.g ~aged columtlS 1t the skks.. • II ~I .! ~I [] ~I · . .;: · . .Ii · . jl e: II ~i .! Ii .'" •I •I ..I tj I •• •• I .. TEMPLE forlm The public square or man:etplace ofan .nclent Ro~ ncity. the centerofJud1c1a1 and Iroslness afulrs•• naaplace of asseml7/y for ~ people. usually Including al7aslllca anaatemple. pantheon Atemp~ ded1cited to qll the gods ofa people. cenotaph Amonumenterected In memory of. . deceased person whose remains are Irorled elsewhere. .-...-.- mcnopteron Aclrcubr Iroltdln~ having asingle row of columns surrounding acentral stl'UCture oracourtyard. Also. moncpteros. B --------·-dj~yteIn Inti, H3v1ng two cc1umns In from: between antae. .• '.. ../"-._...._- ~~ngu!ar pier or pllasterfo~ by thlcl:enlng t~ e~d ofaprojecting waiL -.-.-.-.--.- ........--.- pro$tyle Havfng apor>..lcoJn the front only. J pte....I WIthout;] colonnade along the sides. "- ~mphlpro,tyfe Prostyle on roth fronts. - ....-~ perfpteral H3v1n~ asingle row ofcolumns on all sides. .-....- ptero~ Acolonnade p3rallel td:' but apart from the cella. _ .......... pteroma The passage retween the pteron and the cella. 251
  • 248.
    TEMPLE mo~ac: AM~ l-J~ orpbceofpup{1c worshf.}Js<Jcalled NSJId. mU5Jk1. m.aarasah . AMuslll ~Icaf schoolarranged around J cou~d and attache<l to a I!1OSqUt. bindfrom the 11thcenturyon In ~ AIt4tc113. and Persia. Also. ~ ~idu The Ia~open~U4Ire of acity. used 3S a rna~ orparaae ground. esp.ln huJla ~ mdtbn. m~n. ~ Acourtor serlesofcoorts serving to . sheIura~ from Immedlate contaaII'ItIt secularkli1d1ngs. mlmbar Apul~ i2 • mosque. recalUng the three s~fn::c1 which Muh.mmad addressed his folklwers........-_........•...........- .....- t~~·~·~;~;;i,~;h;~ih·~t;~--· set.~ ~ Mecc2. Also. 'l11Tlah. khb.l:tUh. mlhrn ~..__..__.._...__._.._....._ ....._ A nicheor ~lAtJye p30d In amosque tks~r.g the oJPIa. MecCJ Actty.. Saudi Ar3!?!a. ~rt.!1plac.c of Mult,l!W'IJJ and splritu31 centerof Islam. ~'h ASM3I.~~I stone ~ilc:l!ng In the cou~ ofthe Grea1: ~ue at Mecca cont4l1*14 asacred I7Iact stene and ~r«4 byMuslims as the House of God. W objective of their pilgrimages. and the poIrrt ~rd whick they turn In praying. J.Js<J. ~·a~a. ~·~.1h. ~ I :: ~ . ~ ~ t W ~ ~ I ~ ~ ~ ~ r i-.• t:.;~ ~ ~i ~ ~ CJr~ry ............_..- ..........._...._....-.. An Inn .. t~ Neatust for the overnight ~tlon ofC3ravans. usually having alargeCQUt'tyard enclosed by asolkJ waII .nd~ through an Imposing gateway. Also.~l pyraaid A IT13SOCW'y NSS hiilVlng arectangular I1ase .nd fow ~ and s~ faces culml~ In a~Ie apex. used In ancient EgyptJnd pre-CoIumblan Central America as a torb oraplatform for atemple. 252 ..- minaret -_. iw3n Islam The religious faith ofMuslims. ~ased on the teachings ofthe prophet Muh4ll1mad, the central themes of which are retlef In the one God. Allah. the existence of Pa,-,d1se and Hell. and the unIvers. I Judgment Day to corne. Also called Muh.Jmm.Wanisll1. M~lIm Ofor pertaining to the law. religion. or clvillz3tlon of Islam; a believerIn Islam. Also. Moslem. Muslem. Muh.1mma& Ar3~ prophet and founaer of Islam. AD. 570-632. Also. Molumm&l. '-........ Alofty. slen~er toweratt6c~~ Alarge vaulted portal opening '~" ~~ to amosque. having stairs onto thec.cntral courtyard of Koran . leading up to one or II'1Ore amosa,ue. Alsa. Ivan. liwan. The S4lCr-ea text of Islam, revered as ~ revebtions made I1y Allah to MuhamnW through the angel Ga~rleland acupted 3S the foundation of islamic law. religion. culture. and polltlcs. projecting Inlconles from whi:h the muezzin C3nS the Musn~ peopleto prayer. ..··..····..·_·····sahn Thec.cntralcourtyard of amosque. -. ......._.......... riw~ An 3rc3ded hall of 3 mosa.ue. melon dome Al1u11?ous ri~Dea dome. found esp.ln islamic architecture. .......- 5bl3ct:lU worle Asystem of decoratlon In Islamic architecture. formed by the Intricate corVellng of Imcl:ets. squluhes. ana Inverted pyr,amlds; SOIT1etltnes wrought In stone M moreoften In pb5ter. Also called ~ wort. m~ pendenttVe &racketlng ~ having the gener.al fonn of 4 ~.commonlyfounJ In MoorIsh archItecture. m:hocr:h An openwort screen or partftlon enclosl~ an area for prayeror3 tomb In • mosque. tal1lero Arectangular. strongly fumed pane! tha~ overh3"9Satalud. An orI9lnal contrit?utlon ofrecUhuacan an;hIUcUire. this taUlero- talud com~natlon waslnWduCed cAD. 150 to dlffmntlau the ~ ofstepped pyramids and altar platforms. It Is widely ..... copied throughout Mesoamerica. WIth regional variations. '.~--. t.1lud In Mesoamerican archtteGture. an outer waR that slopts Inward as It rises. The talud first appeared cM)()'6.c. at VieOlrne:c site of La Venta.ln Ta!1asco st3u, Mexico. L· L· L L L, L L
  • 249.
    Hinauism The domlltant religionof Indl3.l:rased upon the relJ910n of the original Aryan settlers as expoundeaanaevolved I~ theVed3s. having J diverse bodyofphIlosOphy and cultural ~manypopularcults. anaalarge pantheoo symbollzlng a supreme pelng of lnany foms and natures. Buddhism Is outslde the HIndu tradition but Is regarded as arelated religion. pantheon The of&blly recognized gods ofapeople. Vedas The aides; s.acrtd wrttlngs of Hlnaulsm. composed I1etween 1500 and 000 B.C. Incorporating four coIlectIans hymns. prayers. and hturglcal formulas: RIg-Veda. YaJur-Ved3. 5ama-Veda, and Ath;ma-Veda. ~m17a Afreestanding memorial pillar In Indlan archlW;ture. ~rlng carvea inscriptIOns. religious emblems, or a S"...a~ !4so. ttamWla. lit Amonolithic st3mPa, as distinguished from one built up ofstonecourses. vihara A8uddhlst 1nOII35tefj' In Indl3n areI!tt:ecture oftenexcavated from sond roc(, consisting ofacentral pillared chamPer surrounaea Uyaver.indah onto l'I'fllch open snull sleeping cells. Adjacent to this cloisterwas acourtyard contalnl~ the main stupa. c:h.dtya A6uddhlS; shrine In Indl3, usually carved out of solid rod: on ahillside, having the form ofan alsled Paslnca with;l stupa at one end. _.-..._......__...- .. wat ABuddhist monastery or temple In Thailand or Cambodia. Khmer A peaple ofCampoala who estaPlished an empire In the 5th century A.D. and d.oml~teJ mostof Indochina from the 9th to the 12th centuries. tTt3ndira AHindu temple. -l ...- .. rath ~---.! • TEMPLE AHindu temple cutoutof solid rock to resemble acharlot. Also. rath.1. viman. The sanctU3ry ofaHindu temple In which a Oelty Is enshrined. .:--.-..----------........- ....--...-------...............---.... a~l.abl tee Aflnl3lln the form ofa conventionalized umbrella, used on stupas. topes, and pagodas. ,Uteri An umbrella-shaped flnl3l symrollzlng dignity. composed of . astone dIsk on avertical pole. """ toraIU An elaborately carved, ceremonial gateway In lndi3n 8uddh~ and Hindu an;hltecture. h3vlng twoor ~'''''''' three lintels between two posts. ~:.. ---"" veaika Arailing enclosIng asacred area. 3S astupa. ..-··..·.._·_-_·_·_··..·..-1 rf?i ~ t The pulrous stone finial of3slkh3ra. ............_.- ~ikhlra Atowerof41 Hindu temple. usually tapered convexly and capped by an amalab. Also. sikra. . mand3p3 Alarge. porchlike hall leading to aHindu temple and used for religious dancing and music. L..._.__._...__._.• gopuram Amonumental. usuallyOM13te gateway tower to aHindu temple enclosure. esp. In southern India. Afso, gopura. .....- Dtupa ABuddhist memorial mound erected to enshrlr.e arelic ofBuddha and to commemJr.ite some event Or m3rt: asacred s~. Modeled on afunerzry tumulus.1t conSists of an artificial dome-shaped mound ral~ on aplatform, surrounaed by an outer a:nPulatory with astone vedlb and four toral13s, and crowned by achattrl. The 113 me for the stupa In Ceylon Is d.19C17a, ;lnd In nPet lind Nepal. chorten. Also called to~. Buddhl~m Are11glon Uasedon the Four Noble Troths, originated In 1ndi3 pyGautama 8uddha and later spreadlll9 toChll13. 8urrna.J2pan. nPe't, ana parts ofSoutheast AsI3. Four Nol7leTruths The doctrIMs of 8uddha: allltfe Is 5lIffering; the cause ofsuffering Is deslr~ ceS53tlon ofsuffering I:s possi11e through Nlrvan3 - t.ie extlnctfon ofcravfng; Nirvana can lie reached through rnental3nd moral self- purific3tIon. Buddha Tttle ofGautama 5lddhartha c56.}-c48.3 B.C.• lndl3n philosopher. religious leader. and founder of Buddhism. Also called Gautarrt3 Buddha. 253 I S~;<: cfC't CT'C'
  • 250.
    TEMPLE pag()(b A6uddhlsttemple In Uleform ofasquare or po~ towerwith roofs projectlng from each«Itsmany st«Ies. erected as a metT1OI'tIlorto hoY relics. From the stupa. thelndlan prototype. thepa90da ~radU4tl:i changed nform to rc:sem171e U1e traaltkNl multlstoried watchtowt:ras Itspreaa with ~dc:ltlsm toChina a!1CA Japan. Pa~odas were InIUally oftllni?er. 1IItfrom the 6d1 Ct:Ittu'Y0II.1¥ert: II'IOI"e frc:quently of ~rld or s~ possiblydue to Indtan Influence. paitou Amonumental gateway In Chines" architecture. h3VI~ atra!1eatea fonT1 of stone or wOOfconstructlon with one. thru, orfive openl~s anaoften !loki projecting roofs, erected as arnemori31 at Ule entranceto apalace.tom~, or sacrea place: rebuJ to the indIan tor;lnas ana U1e Japa~ tori!. Also. panoo. zhonglcu Abell tower or pavllion In Chinese architecture, located at the right s~ of acitygate. palace entrance, or forecourt ofatemp~ gulou Alarge drum tower or pavilion in Chinese archltecture.locatea at the left slk of a Iingd40 The spirit way th..t ~ from the south g3te to aroyal torr.i1 ci the T..ng~sty. Itntd wlth stone pi~rs ana sculptured anlrT'l3lana hurrun figures. lang Adynasty tn China. AD. 613-007.lttlrUa by temtorl31 exparcslo1. the Invent-Ion of printlng. prosperoliS trade. ana the development of pW..ry. Also. "a~. Yunga"9 Alarge Buadhlst rnmstlc center 1' roorthwestChlna. De.gt.n In A.D.%<). where there are numerous Qve temples. e;uh having a shallow. Mkhaped Inta-1.or wtth a~sslve cent.r31 ~ of Buddha f'wrUd b-j two smaller B~ ~ c.onc.ept of carv1~ into cliffs Is bdleved to have ~me to China from Indla /-Js(). Yun-~ of, umpl', 'i city gate, ~Ia~entrance.orforecourt --!!~ellll~~~i;~~~~~~~~~i~~;;~ c:Iougot1f _.-.....---.......................... -...."'-'--" Almackefsystem used In traditional ...., ChineseCXIIStnIctIon to sup~ roof ..... ~ms. ~ tM eavesoutward, and . support~Inferiorceding.The ab~ rAa triallfular1:2etJframe In chir.eso -.:t.~wre ~ ~ necessaryto multlplytho numl7er of suppor1O Dftderthe ~.In order to reJuce thenunWerof pillars ttlIs woula normally require, thcl area ofsupport affon:Jed~ each pillar was Incrc:ased IrjUle ~ Also. tou-kung. 41rtg .----...---.....- .....- ....~.• A leverann In traditional Chinese '. construab1, pIaceJ parallel to the rafters aM r2bI at an an~1e to cou~nce the fCll"US applJea Py the InneranJ outerpurlins. The ang supports the OI/tennos~ purlln Py me.ns ofa In-ack~ orcross'~am and Is pinned at the Innerend 39lnst apurlln. 254 _..-'-' gong .' A cantilevered Dradet!n tr3dIVor.21 Chinese construction. Also. k~. ...• .......-.. i ..-.-.- c:lou ......_...- ..-...... A Vtarl~ Dlod In traaIUon3IChll1e-:;~ construction. Also. tcu. l l l l l L l I L , I ! L
  • 251.
    • TEMPLE Ut!Il.IOgl--......- ....- ....-.........--............_...........~.............._........._ .......... The short woodetIlrlllets placed at ~ht . ; Shinto 3~b to the rM¥ of 3 Shinto shrine. ; .~~ ~~~~~~~~~~~~~~~~1 ch19I ....··---·····-·--.--.-..- .....-.-..,.....·· - The Indigenous religion ofJapan, rn..rked . by acultle devotion to aelt1es of rt3tural forces, ancestor worship. and venmtlon of the emperoras adesundant of the Sun·Goddess, Amaterasu. The c~ ftnIal fonned by the projecting. lr3rge Poards 2t each encl of the ridge of a Shinto shrine. ~hlra ~--... - ......----.....- ........- ...•....•.-....-.-f-f=~ ASXrta po5t in Shinto architecture. sh3~ by hl.lln3n hands. N3.g.lN:"Zukuri _...-_._-._..-.........~ A~ ofShlrrtoshrine, based on the lse prototype. M with the front slope of the roofextending to form acanopY 0V'et';he ~ staIr; this space r!±:::=!~:::1i::::U::==:U==:1.8;l evaltuaDy ~ Into 3 pl'3yer room fOf' 't'I<l1"Shipers. ~-zubri Astyte of Sh~ shrine. characterized lry a hipped roof(;Xtendlng from the maIn roof, (Her acentrally placed erttnnu stairat one ga!ne end. iuiden The h3n of wors.iip of3 Shinto shrine. u5U4I1ly In frcm of the honJen.•..-.........../ hcn.den / ____-.-...::....of_3_S_hl_nto ShrlM:.// l......_._.... biro ~nt appro~ •....................i An .pproach ~h two gateways that are r>Ot al~ned. 50 that It Is nec.essal)' to ITtJke ~ sharp eurn to pass from the first thr"CJ1h the~. used for privacy In h<XI~ or~mJks. orfor security In fortffic3tlons. terii Amonumental, freestanding gateway on the approach to a Shinto shrine. consisting of two plllars connected at the top by a norlzontal crosspl~e and alintel al>ove It. usually curving upward. The covered !lallery surrounding aprecinct ofaJapanese temple or shrine. .-,. Shimmet·zukurl Astyle of ShInto shrine eTI1l>odyfng the original style ofJapanese l>ulld1ng. before theIntroduction ofBuddhism. It consIsts essentially ofa small unpainted rectangular structure raised 3Pove ground level on post5lll5ef'ted directly Irrto the earth. Arailed veranda ' surrounds the structure at floor leVel. a freestandln!j post ~ each gable end supports tM ridge, and the bargel:103rds extencl outward from the thickly thatch~ roof. fonnlng chlgl at each end. ....~ kada An assem~1y half for mon~s In .. Japanese Buddhist temple. In which sacred texts are ~d. to AJapanese pag0d3 enshrfnlng Buddhist holy rtI1cs. s-orin The crowning spire on aJapanese pag0d3. Golden Hal~ the sanctuary where th¢ main I~ofworshlpls keptIn aJapanese Buddhist temple. The Jodo. Shlnshu. ancl Nlchelren sects of Buddhism use the term hondo for this sanctuary. the Shlngon ana Tend3l sects use chudo. and the Zen ~ uses Msuden. rund.1lmon . _____ The principal SOt!th gateway to aJapanese temple orshrine. ..........- chumon The Innergateway to the precl~ of a J~panese Buddhist temple. ,noro AstnJcture from which the temple PeR Is hu~. as oneofapairofsmatl,1dentIca1. symmetrfG.oi1y plaud pavl~ns In a J"panest Buddhist temple. l1ut5u Arepresentation of Buddha. d.1i~ut~u AI1rge representation of Buddha. 255
  • 252.
    THEATER A~iU.fing. ~rt ofalnJilding, or a~ outdoor area for housing dramatic present.1tJons. stage entertainment, or motlon-picture shows. Greek~ An opeII-w t&e.ter, usu.11y hollo~ out of the sbpeof.. hillside~ atiered seating are2 around and facl"4 aclrcular orchestra lneW bythe stene, a~~ for the actors'lISe. orchenra _ .._-_._....-.--.---~. fu clrcubrspace In frorrtofthe stage In the anclcmGreet~, reserved for the cI1orus. choru The groupd actors III ancientGreece M ~ as Jn3jorpartlclpants In or romnentatorson the min actlon of the drama. ,une ___..____..._.___._._._. Astructure ~g the audience In an ancle:r;Gre.et: Ple3ta".forming tht: Inckground Pefore which perl'ormances ~gIvtn. ! p~ium _____ .____________.____.._ ..! fu front part of the stageof an anclent Gru:k or-RDman theater upon which the actors perfonned. Jfb. gradill One 0( iii StrIes of steps ortlered seats. as In an ampl1tthe3te1'. Also. gradlM____ -: Jmphithater An Gv.iIlor round l1ulldlng with tlers of seatsaround acentral arena. as those IISed In ~lent Ro~ for gladiatorial ~tests and s~les. 256 podium ______ Araised platform enCircling the arena ofan ancient Roman amphitheater. havl~ on It the seats of prlvl~ed spectators. • .._.___... ___.... ______.~ parodo5 • One ofthe two side passageways to an ancient Greek theater. !1etween the st~e and the seatJng area. thro~h which the chorus enterea the orchestra. .'____._____.___ parascenium ,--- velari:.lm Eitherof two wings flanking and projecting forward from the skene of an anclentGreek theater. containing apartments for the actors. ----.---. dlazoma AIl aisle Petween the lowerlind upper tiers ofseats In an ancient Greek theater,concentric wtth the orchestra and the outerwall and communicating with the radial aIsles. ····.-_cerci' Awedge-shaped sectlon of seats recween two stepped passageways in an ancient Greek theater. Roman the.rt.er An open·alrtheater modeled upon that of the ancient Greeks. 1M; often ~11t on level grountl WIth colonnaded g311er1es. a semicircular orchestra. and .a raised stage I7acl:ed I7yan e!at>orate arChitectural structure:. ---_ orchestra Asemicircular space In the front of the stage ofan anclent Roman theater. reserved for senators and other dlstl~ulshed spectators. Acanvas 2Wf1lng dr.iWl1 over an ancientRoman amphitheater to protecttilt audience from rain orsun. ---_... _-_.._.-...-_....__.. vomftcry Alarge opening. as In an ancient Roman amphitheater or stadium. permitting large numVers ofMIe to enter or leave. Also. vomftorlum.. 5upercclumnlrtlon The placl~ ofone orderofcolumns a!1ove ano1(her. !Jsualfy with the more ela!xJrate orders at the top. 1 I L 1 t, l. l.
  • 253.
    I I ~ting The arra~ement ofseatsIn a theater, st3alum, orather place of ;assem~ly. c.ontinerrbl seating Atheater sating pfan In which there Is no center;alste, Putwith wkIe spacing ~each row of se3ts to permit proscenium stage Astage that Is framed ~ aproscenium arch. proscenium arch The arch that separates the stage from the auditorium. Also called pros~nlum. .. .. e:JSe of passage. ------ --.--- ------- ---- ---- --. - ------ --~Hl'IHH.I_+H THEATER ". ~urround theater Atheateror concert hall In which the seatlng Is arranged around or on all four sides ofacentral stage. Jt.·m'-~Ilitii areru theater Atheater with seats arranged 01'1 it least three sides around acentral stage.Also 2~~-----·--.--.---.---.--------~~~~~~~+­ AW3~ ~ween or along sectlons of seats In;l the3ter. ;ludltorlum. church, or ather p1aceofassem~ly. l7lin& row ~.---_____...__.. _____________.....___"./' Arow of seats having Its first seat at a side aIsle and Its last seat at aside wall. 5tageho~ ..- I ~ called thUUf'-fn-the-round. i ,II thru,t stage ~ tttttttttttttttlrttt--~t-!:-1- Astage that extends ~eyona the ~~ proscenium arch and Is usually surrounded f"~~II·..-====:Ili; on t~_reesides l>y seats. J! ., The part of;I theater 00 the stage side of the proscenlum,lncludlng the stage. ;----------. spotlight houselights' wings, and storage area. ~- .. --.. --------- -- ---- ----- ------1 ~ . Astrong. focuf>ed ;>eam of light for calling attention to an o~ject. person, orgroup on astage. Also called spot. The I3mps pl'OYldlng IllumInation of an auditorium or the seating area ofatheater. gridiron --- ----....--- ----. --- ------ ----------..--- Astell ~re arove the stage of a thaW.from which hung scenery and equipment are manlpulate<:!_ Also called grid. flies ~-----------------------.----------- ..-- :. The space aAA-e the stage used chiefly for storing aM tunglng scenery and equIpment. Also called fly loft. ' I fire curtain Acurtain ofaSDestos orotherflreproof rnaterl3l that can veloweredjust Inside the proscenium arch In case offlre. sealing off the Uackstage are3 from the aualtorlulT1. Also called safety curbIn. ::,'., Inoidge -------------------------------.--- -~ .'----: Ag3flery or pbtform that C3n ~ raised ~,. : :------------------------------------ barkr te-clmlcbns and sta¢tands. : ~. AIt3rrow curtain orstrip of painted canvas hung above the stage to mask the flies and form the top of the stage set. or ~over;l sbge ar..d Is used l>y Ji ..- ~ : ~~:i$E~:·~~~ .i. ~~ lighting units. Also carted pipe 1?.rtten. / /1 -.- ..------.-----..-----.-------.--. teJ6er Adraperyor flat piece hung .cross the top of the ~Iumarc;h to mast: the flles and. tcgether with the tormentors, frame the stageopenl~. fLit ..--------.--------------------------------.. / ...../ Apiece of scenery conslstlng ofa wooden / ; ..".-, frame. usually rectangular, cevered with ". / ....// Ilghtweight Dcard or faD ric. -""" ( ' / / I . orchenn ,hell ....--------------------------.---.-- .---....--- '-"- 1 / Asound~g structure that I I closesoffthe files ;Ina wfngs ofastage I j to form aperforming are3 for music. I / LII 5tage ----------------------------------------- 1M pl3tfonn. usually raised, 00 which ~;lctors perform In a theater. Also. the pl3tform ~ all the parts of a theater Uacl: of the prosce.,lum. drop stage ~-- -- ----- -- Astage floor that mOles vertically on an ekvator. u~11y so that one set can quickly replace another.Also called flft stage. ..- ----------_.. ----.----._./ .---.---.---.-.----..------.--------. tormentor AcurtaIn orfrarnec.f structure used dlrectl-j Pehlnd ~ proscenklm at each side ofthe stage to screen the wings ana sidelights from the ;ludlence. --.---. ------ ------.----------....--.---. aacurbln Acurtain for closlnfJ the proscenIum opening Petween acts orscenes. Also called ..ct drop, house cu~fn. ____b ______.orche,tr;a pit The space reserved for mUSicians. usually the front part of the maIn floor, sometimes wholly or partly under the forward part of the stage. apron .---.: ---------------- .oo.---, footlights The part of astage floor In The row oflights on thefront ofastage. front of the curtain line. usually set In atrou9h. nearly 011;1 level wIth the fut of the performers. 257
  • 254.
    THEATER opeu house Atheaterdevoted chIeflyto the puPlIc performanee ofoperas. front ofthe house The partsofatheater that are on the audience side ofthe flre wall wing balcony The part ofa~alcony that extends along ::""waIl5of," auditorium. -'!:.: AprivateseatIng area fora small group ofspectators In I a theateroropera house'--'~l_+__--:..--4_ palcony A~11er.i UlJt projects orer the main floor ofatheater to accommodate additional pecple. gallel)' An upper fi.cc1" projecting or~ the main floor of atheattr or hall. .- ....--.-..----.....-. peanut gallery The rearmost and cheapest section of seats In the uppermost l'>alcony of atheater. , ..,;._.... ,IghtliM .- Anyofthe lines of s~ht between the spectators and the stage or Playln9 area ofatheater or stadium. ~~~~~~~~~~~~~~~~~~~~~~~~~~~.--.-b~5cl~~ Acurved orcircular division of seats In atheater. o~ra houSe. or the like. usually the flrst gallery, originallyset apartfor spectators In evening dress. backstage Thearea l7ehlnd the proscenium In a theater, esp.ln the wl~s and dressing rooms. ( d~5lng room .:..,i A room for use Ingating dressed. esp. one for performers f;.!d:sta¥ In a ~ter or television studio. greenroom Alounge In atheater. concert hall. or Pr03dcastlng studio,for use Py perfonners when t./Ieyare not0" stage. 258 i j o~hestra _.j The enUre main-floor space for spectators In atheater orauditorlum. :"parterre The rt3r ~icn ofSt3ts. ana sometimes a!so the s~ ~Ions, of the main floor of atht3ter, opera house, or concerthaL Also C3lled f'M'luet cfrcl~ r....-····-·....··--·-..·· ........ auditorium ; The space set apart for the audience In atheate:- Cl' meetlng han. "'--. mezzanine The lowest l>a!cony or fooma part of such al>alcony In atheater. grand tier The first U~r of boxes Immediately 3Po.'t the parterre In a large opera house or theater. tier One of 3 numperof9a1lerles, as In a tht3ter. .. .a:~ .-----------a - ...........--.-.-.-.----.---- !coPy ; 1 A11311 se:-.1~ as aP3S5J¥r'f.iy or i._ wing The platform or space to the right or leftof the stage proper. runway Anarrow platform or ramp extending from a stage Intothe orchestrll pit or Into an aisleof an auditorIum. • S:J waiting roomator Ile3rthe entr.ince to • atheater. hotel. or apartment house.. ::I I Also called foyer. lounge Alarge puPlIc waltl~ room. as In a theater, hotel, orair terminal. often havIng adjoinIng washrooms. ~xoffiu The office ofatheater or stadium .t which tickets are sold. m3r'lUU Atall roofll~e projection aWie atheater entrance. uSU4lly cootalnlng the name of acurrentlyfeatured play or film ana Its stars. I I .~ ,it. j I ! , j i I U I ,i I b I l I 1
  • 255.
    p.1nel •.. ---- ----- --. -- .-- ---------- The space wttnln ~ wet> of atruss "" ~~ any two pa~ points on a "" chord and acornspondln~ pair of "'., joints Of asinglejointon an opposite ...• c~i ~ panel point Ajolnt uetween two or more memt>ers ofatruss. Atruss must be loaded only at Its p1nd points IfIts members OIre to be su~ on~ to axial tension or compresslo11_}.Jsa C3lb:l node. --._- '-'-'--"''''' pJnellengtb . ". The space 00 ~ chord ofatruss ~;lnytwoa~jolnts maae Py principal ~ m~ with ~ chord. i UTO-foru mem~ ..-; heel The lower. supported ttId ofan up~nt timber. r*"..er. ortrus5. Atruss 1MTlP-erttutU1eoretlc31ly carries ~ dlrect loa.d and wh~ omlsslan would not alter the stability of ~ truss ~uratlof1. ~u"ing ":, Astructure formed Dy trusses. While rigid r ,., Its own pbne. ;I truss must be In-aced In '-' • perpenJlcubr dlrectlon to prevent fa ter31 Pucl:nng. IocallnJ.cknn~ The 17ucl::n~ ofa thin compressed dement of a structural rr.emkr, leading to failure of the ,.,hole. r··-·-----··---· chord Either of the two prlnclpaImembers of atruss extenaing from end to end and connectecl by web members. web The lrTte9ral system ofmem~ers connecting t~e upper and lower chords of atruss. ~"', i shoe i i Arearing plate for supporting and resisting the thrust ofatruss or girder. TRUSS A structural frame based on the geometric rigidity of the triangle and composed of linear mem&ers subject only to axial tension or compression. planetru55 Atruss an of whose members lie In asingle plane. trussing The rigid members forming a truss.· 5U!1ject to axial forces proportional to the rise of the truss. 6uGkl1n~ gen~rally governs the size ofcompression .- meml7ers. while tensile stresses at the weakest points. usually at the connections. control the size of tension members. -----..----.....-..-..'. panel load I I / I I I I " I I / I , I I I / ',II 1 ,,/ (! Aconcentrated load applied to apanel point ofatruss..To prevent seconaary stresses from developing. the centrok:lal axes of truss meml7ers;lna the load at a joint should pass through acommon point. direct ~tre55 The tensile or compressive stress th.-lt Is constant through the depth of a structural membtr su~ject to axial tension orcomprtSslon. ~Olkbry5~~ AdditIOnal ~endlng and ~he<lr tresses In 2 truss meml1er rtSultlng from an eccentric conrteCtlon or3joint flxed ag.alnst rebtlve rotation. While trusses are assumed to have Ideal!zed pin connections. truss connections In reality may be rotted. welded. orriveted. Imparting adegree of rigfdIty to thejoInts. . 5tre:5~ rever5.11 Achange!n the force of3 truss member from tension to compression or vice versa caused !7yachange In the loading pattern. .....-.:~'-- .• counterPrace Atruss member sul7ject to tension or compression unaervaryfng load conditions. funicular tru" Atruss havIng an overall shape derived . from thefualcular shape far aparticular set of loads. The Interior mem~ers of a funicular truss are zero-force mem~rs which serve only to ~race compression members ~ut they will carry forces If any changes occur In the pattern or magnItude of the loads. 259
  • 256.
    TRUSS , A~~for e:tt.entilfc,r-".lS N ~Is~ ~ fDlIow:JPjtM ~oIfM;e ~ for tiJernar:m- forc.=s3t~jonts. 260 Since tko~11yonlyzxiJl forcts Zf'e tr.lnsm/tt.eJ from onemembertoar.otUrzt thejoItTts, the d~ I1f memberforces C*tI beInI+f1 p3l"36dto the truss m~. Worting from tf'rI? I:~points. athinlpoIrrtof ~n C3n beW1Jtld by projectSJg force lines of ~ JJrectJon. f metha-d of5utlons A~ for del:e:r.ninrng.memberforces In atruS5 by con~ng thUquili!?rlum of any porrunofthe t-r'JSS assem!?IJ·. M.1xwefi di2gr2m AgraphIe method for determlnIng the Ngnit-ude and ch.r.acterof the 5tre5~ In the rr.emrers of a~JSS. C;pIt111~ JesIg.-.4U panel5p3Ces. wMe~se f~ desfgn3te mas ofthe ~ vectors. Ikmber fI:>rcts arePr'trSely proporttonito the r:seofatross. method ofjoints Amethodfor determlnl~ memver forces In atruss I7y con5lJering the equlnvrium of the variousjOints Ic:Ie3llzea as points In free-!1oQy diagrams. ~---------9--------~~------~~ G R, Bowt5 notation The ~oc:I ofla!1ellng the spaces betw~n forces or their linesofutlon with letters, each force !;IeIng IdentlfleJ I7y the two lettersIn the aaJ~ spaces when proceec:llng In aclcx:t:wise IT13nneraround ajoint. i I '~ . I') I' ·-1 , l I/. lI t, lI l'} l L l~
  • 257.
    J!~~. r piUhed truss Atrusshaving InclIned top choras. TRUSS flattru'5 Atruss having parallel tap anabottom chords. Flat trusses are gene..l~ not as efficientas pitched or I10wstrlng trussts. Also called paralltl-dwrd truss. lS1S1SJSJZVVI7I . tru~ rafter A IIg~ht wood truss used In fram aroof. usu.1Iyprmlnicated of2x45 anJ b6sjOO1ed I'll n toothedpbte connectors. crown pest Arry v~1 mem~ In apitched truss. esp. aking post. Pratt ""--__________-.ll OforpertainIng to • JUt orpitched truss having vertlc31 web memDers In compression and dl3gonal we!7 memPers!ll tension. ~-------- Howe I Oforpertaining to aJUt or pitched truss havln~vertlcal web rnem~rs fn tension and di3gonal web mem~ In compression. • tr1I,sedJoist A I19htwelght. flat wood truss used In framl"9 afloor, usually prefabricated of 2x4s and 2x6sJoined wtth toothed plateconnectors. . ~'f;e~ian '---y------. Warren di3gorut An IncnneJ web lMT1!7erJoining the top and bottom chords of atruss. Of or pertaining to apitched truss having Orily Indned web memDer5. :--- 5u~dL19orul An lncnned we!:> memDerJoining a . chord wtth amain d~OO3l ~fl1lk~' Atruss h3v1ng more than two web Ir.trtlbers raJlatlng from a common point on the rottom chord. I A~~n truss having ~ba13gonals to ~uce the length of com~sslon wcl7 ~rs toward the calurilne of the 'part r.a~~hora~5 L ~'<''''~5 Atruss ~ abottom chord r3!sed ~1Iy a!7ove the level of the ~ports. Apitched truss hav!rtg tension ~ exterIdlrtg from thefoot of exh top chord to .an IrrterInedlate poUrt on the opposite top CMrd. ""''t )~ ~ tru,~ ~m _____--'1 Atlmw!;am stlfferd boy a c.omlnl'.3tlon of ~al truss rods ii nd eltha compression struts or susper.sl.on rods. 9u~ ~.-- ..----.--.---------.------ Aplate for unlt!ng struct.Jral members meet1r,q In asl~~ pla~. Also called gusset pl3t,e Ofor pertaining to af13t or Dowstrlng . truss having Inchned we~ mem!1ersformll19 aseries ofequllater3Itrl3ngles.Vertical web mem~ a~ sometimes Introduced to redUC6 the panel lengths ofthe tcp chord which Is In compression. ,-I----< l7ow~tri"9 tru" Atruss havfng 3 curved top chord meeting astraight rottom chord at each end. 5elfa~t truss AtlmDerrowstrlng truss. cre~nt trus, Atruss h.vIng rothtop and I1ottom chords curvl"9 upward from acommon pointat each side. Also called camelback truss. r--- trus,rod ! A metal tie rod serving as atension memPerIn atruss ortrussed !leam. composlU trus5 • Atruss h3v1ng Umber compression members and steel tension mem!lers. 261
  • 258.
    VAULT An arched 5uuctureof stone. urick. or reinforced COf1~. formi~ a uiling or roofOV~ a hall. room. oroth~ whoityor parti311y enclostd space. ;...- ..-.-......-...--.......-...._.-.... key course : Awurse of keystones In the crown of 262 5~ -,.........-..; AdlstJnct. slenkr. vertical masonry fe;ltIJre engaged In awan or pier and supporting orfelgnlng tD support an arch ora rll1bed vault. 2 masonlj'vault. ,.....---....--------... vaulting ccurst: Ahorizontalcourse forming the aDutments orspringers ofamasonry : vault. L_____._..~ transverse arch An arch for stiffening a Darrel vault or supporting 2 groin vault. ' r--'-- ~try 1 .APay ~ two transverse arches ~_j I", vaulted structure. 5InceItbehmsasanarch extendedIn athird Jlmenslcn, theIong/tudlna/supportlng walls must~ bvttrts5edt(1 younter3Ct the thrusts ofthearchIngactIon. I 1---...... i?uttres, I An external support built tD stabilize a struGturs by opposing Itsoutwara thrusts. esp. a p~lng support builtInto (lr I against theoutside ofamasonry wall .;--- -.--- flying 1?uttre" / An Inclinea barofm3sonlj'carried on a / segmentalarch anatransmitting an ./ outwardana downward thrust from aroof .: or vault to asolid buttress that through Its mass transforms thethrust Intoa vaultlng 5hili vertical one. A~ ~allea ~rc-!1outant. -- pjnlWlc~ ••---•.-.......-.......-.....- ..... Asubordlnau vertlc3l structure Unninztlllf In apyramid orspire, . usedesp. In Gothic archltecturs to add welght to a buttress pier. ~5 pier --_............-...... The partofapler that rises to take the thrust ofaflying buttress. Jmcrttument h .."-",_,,,,,,,,,,,, Asloping topon a1uttress or .. projtctlng plerto shea rainwater. no51ng Aprojecting ed¥ofa buttress. Ashaft that leaas tD the springerofa rluorgroup ofriPs. either rising from tht: grouna orfrom acarVel at agreater height In theface ofthe nuSOMIj'. corbel vault Avault canstructed ~ carbehng caurses of stone masonry. The resulting stepped surfacecan Pe smoothed orcurvea. but no arch action Is Incurred. • , I l l l L
  • 259.
    ~. J ,'lx :. I ~;Irrel v.ult AVAult havl~ asemicircular cross section. Also caRed cradle vault. wtlMl vault, ¥Qgon vault. groin . conical vault Avault havln~ acircular cross section that Is largerat one end than the other. rampant vault Avault sprlngln~ from an abutment higher at one side than at the other. VAULT annular vault A barrel vault hJving acircular plan In the shape of aring. One of the curvea lines oredges alo~ which two Intersectl~ vaults meet. ~ -..-..' tripartite vault . : Acompouna vault for covering a " : triangular sp3u, formed by the groin vault Acompound vault formed by the pe~nd1cu~r Intersection of two vautts. forml~ arched ~aniscs ca!ltd groins. Also catted~ V3u1;. weD A su:fau framtd Py the ribs ofa ri~d V<lutt.-', hn vault .At Y3 wit com posedof ;a numbu of concave cC1'1C1da1 sections, usually four, springing from the corners of the vaulting ccmpartmerrt.~~tedwlth ribs rut radla~ from the springing like the fr;;mewon: of. fan. }--.- Intersectlon of three barrel vautts. underpiUh vault Acompound V3lJlt having acentral vault Intersected Py vaults of lower pitch. Also caned Welsh vault. rwvault Ava ult supporte.:f by or clecorated with arched dlagonal ribs. Also. ribPed Yauft-. ...... q,uadrlpartrte vault Arluvault divided Into four parts by Intersectl~ dIagonal ribs. sexpartite vault A rll7vault divided Into six compartme:r.:s by two d13gonal ribs and three tranSv'er:e ribs. rip /// stilted vault Acompound vault having ana~ transve~ vault springing from a higher ~el SO that the rk:Iges are at the same height. key The l:eystone at the crown ofan arch orat the intersection of two or more vaultl~ rips.•'" /: Arry of several archlike members suppor;ing a vault at the groins. deflnlng tts distinct surfaces ordlvtdlng these 5Urfaces Into panels. ." , arc dou17~u --_.._..__...__.._.........•/ ArIl7 sp3nnlng the Iongltualnal axis of arib / vault and dMdln~ ttInto !rays or . ........ '---, compartments. Also called transver~ np, /:..... tierceron •........_._..__.........-.__../ Arll7 springing from apoint of support on either side of theoglves ortransverse rik ofa rib vault. Alsocalle.::l IlTtermedlau np. ..~.// fo~ret --.--.-.........--.-......-.....~/ Arib a~alnst a wall parallel to the longitudinal axis of aribvault. Also calied wall ril1. cloister vault Acompound vault formed IIyfour caves meetlng along diagonal vertIcal planes. Also called coved vault. :---- rU:lge rib Ahorizontal riP marking the crown of avaufUng compartment. .. ogive . AriP crosslng acompartment ofarib vault on adla¥nal. Also called d~gon31 nb. 9ro1n riP. -.,.. ! ~'5 ~..-.~",-.-':~ lieme An ort13mental. knoblike projection. as acarvea keystone at th~ Intersection ofogfve5. pendant A sculptured omam~nt suspended from a roof truss. vault. or cemrTg. Also calltd drop. ~ ,tar vault Avault having ribs. !Jemes, or tlercerons arranged In astar·shaped pattern. Also callea su/lar vauft-. An ornamental vaulting rib other than one springing from apier or a rldqe rib. 263
  • 260.
    VISION 5~ht: the;let orpowerof sen5ing with the eyes. &ee r0 pac.elve with the eyes. The actof seei"41s a~mlc and creativeprocess. It 15 capaP-leof &ellveringa s~~. three- dimensIOnal perctptlon of the II1OfIng. changing 1m3¥swhich make upourvlsual world.There are three steps In the swift and sophls~ processing which "'su~s In,t. ""'g"we see. --1 I t.......-~ reuptlon: 0tJr eyes~ ~ergy .......,-...~ ~ ~ visu3Ifmures _ .................~ Irtferenu: on the b1sIstlftheseextracted klputIn t.~~ form ofl!glrt. . a~ ~ from thisInput. fe3ture5. Infcmlces a~ made3boutourKOrld. l1inocularmicn .-.._ ......- .....-. The thru-dimenslonal stereoscopic vision resuftl~ from ~ use of both eyes at the ~~ tllM. " ' ... ~:;;~~~~~~-;,-;,.;~.--.-....... - ........ -.--... ~ "" Inwara tcfocus on .. ~&i point. ....." ..... 4~mmo~n ....., The ~5 ~ which the hUlTl3n ~ changes focus for.ol1ects at various dlstanus. im'01v1"4ch<a"¥5 In the shape of the Cl"'jstalnoe lens. 1 h.':~_~:=~ng.'n-·---·--·---~ dlrectlon ofan ooserveaoljeaC<lusea !7y achange In the position of the oUserver that provides anewhoe ofsight. m~rt1a1 Pertalnl~ to ~ of the spatial relationships a:nong oop;tswft:hln the fleklofv1slon. ~ -_._-_.._.-.....-.... ...............--_._..• orientltfon The ability to Wxm oneself In one's environment .nth referenu tc time. pbce.ana~ Yi5U4t literacy The a~ to apprehend and ~ pictures. dl'2wfngs. or ot~~IINges. eye AppreciativeordISCriminating VISU31 perception. optical iII~icn - ..........- .........----f----r----< Aperuptlon civisualsUmuh that rep~t5 what Is perctlved In away differentfrom tM way It Is In re3tlty. 264 ,. ,,/ ./ /0 ,. '. ,. '. ,. .. ./ .. fitld of vision _.. ,. ,./ ,. The etltJre fe!a enalmt'3ssed ~ the hum.an ~ wh~ It Is tnlnea In arry par-xulirdirection. Also caned visual fletd. vi~~1 angle The 3~lethat3n oPjector~1I sulrtenas at*'epoint ofoI1semtlon. USU3~ lI'IeasureJln mlnuteschrc. visual cortex The portion of the ure!n-al cortex of the In-aln that recdves and processes Impulses from the optic nerves. visu.;12CUIty Acuteness of v15Ion 25 determined by 2 comparison wfth the nonnal abillty to ~ certain ~ at a g!Yen dlst.anee. IlSUaIly20 ft. (6 m). df~m!nztJon The a17i1ity or power tc see or m3ke fine distinctions. .1,pect Appeal'3nce tc the human eyeor mind. j , t I I I I I l I l L b L ~ L L L L _J
  • 261.
    carr.oufu¥ The ~~ ofaform or ~ure that occurs when Its ~pe. pattern. texture, orcoIor.Itlon Is slmllarto that of Its SlJrTOundlng field or l1ackground. pro~n APl""Cf"!rty of perception In which the " mind's ~ ~rches for meaning Irj • Imagining .naprojectlng known or familt3r l1T13geS onto the seemingly 4I~sshapesofa pattern until It flnd.s 3 m3tch whIch rrt3l:es sense. This atte:r1pt to COOIplete an Incomplete paturn. or find ameaningful pattern emp.-..-dkJ fn a largerone. Is In 4Iccord;;}nu with ~t we alre3dy know or Ct-r'"'tCt to see.Once seen and ur.derst<xJ. it IsdlfficuIt to not see the~~. tlimil4rity ~"""-'-"---'--'----'-""'-"-1 Aprcymyof perctptlon In which there Is 3 wokncytogroup things which h;we $O~.e visual ch3racterlstlc In com."roCl""l.4IS aslml13rtty of shape. slz.e. color. or'..etTtJtIon ordet3ll ••••• ••••• .:.... •• ••••• ••••• .0.0. .0•.0. .oeo. eoeoe ••••• ~~~Z:=~~::~hi~;;······1 m c~ tc¥ther.to the exclusion of _ . • e _ those which are further away. ectrt.inurty • • • • • A~ ofperception In which there Is a~to group*~nts which ccm:n~ a~ the same line or In the same directlon. This 5e3rch for contlr.:;ity of line and dIrection can also lead to O<Jr pc:rceptlon of the simpler. ~~ft~~~·-····~··-·-····-··-······"··-I thl~. f"t4irdless of how dIstant they are. bJ1ng to the ~ptlon of aclass ofo~ as Imlng uniform slz.e ana constJ rrt colorand textureo cto~ur-e Ap~rtyof perception In which there Is 3 t.enkncy for an open or Incomplete fig ure to ~ seen as If It were aclosed orcomplet.e and staVle form. •. : -./ .' .I_,S ~; • e + successive contrast Aphenomenon of visual perception In which Intense exposure to one color or value leads to the sensation of Its complement. which Is proJ~ted as an afterimage on another color or surface viewed Immedl3tely thereafter. afterirrt3ge Avisual sensation that persists after the stimulus that caused tt Is no Io"¥r operative or present. VISION perctption The act or faculty of.pprehendlng by means of the senses or of tr,., mind. visual perception An awareness derived Irj the visual system In response to .on extern..ol stimulus. _..• figure-ground Aproperty of perceptloo In which there Is atendency to see parts of a visual field 35 solid. welh:leflnea . otjects standln9 out against.. less ~ distinct l7ackground. . figure Ashape or form. as determlnea t.y OtItlllltS or exterior surf.lces. ground The rececl1n£j part ofavisual f1ekl agaJhst which a~ure Is perceived. Also called background. !imultaneou! conU-a~ Aphenomenon ofvlSlUI perception In which the stlmulatlon ofone coloror value leads to the sen~n of Its complement. which Is projected Instanta~sly on ..Juxtaposed color Of' value. Simultaneous contrast Intenslfle5 camp1ementary colors"ana shifts an..logous colors tcw3ra each other's complementary hue. esp. when theJuxtaposed colors are Similar In value.When two colors ofcontrasting value areJuxtaposed. the Itgfrtercolor will deepen the darker War while the darker color will lighten the lighterooe. 265
  • 262.
    WALL Any of vari0tJ5upright coostructions ~(~-:: presenting ... continuous surfau ana /~J~ serving to enclose, asvide, or protect / I I an area. ~ /' ~" vearing wall . Awall capal7le ofsupporting an Imposed load. ~ from afloor orroofofaInJIWlng. Also called load-bearinf wall •..- ...--.........-.: nonl?eari~ wall Awalt 5Up~ no load otherthan Its own weight. Also called non-toad- l1earf~ W31l-......~ carrtc11 •...~ Api!a~orslmltar feature pro~ng from a cornerof a Pulta!ng. pil4s-ur .-........-.....- A~Ilow rectangular fmurt projecting from, w;lll ~ng aC3~ ana a !7ase and arch~11y ~W as acolumn. ! ~edcolumn .-....-.--.-.......................... Acolumn l1uilt SO as to ~ truly or see~1y ronJed to the)¥;ln before which tts~nds. retum wan _--.-o. _ • • • • • • • • • • • _ • • • • • • • • • - - •• - • • • • - . . . . . . . . . 0.· - ••••.••• , Ashort w;l1 perpendictJbr to the end of aIongerwaL pier Avertlcals~ng structure. as a seaIon of wad between two openIngsorone supporting theendofan arch or hntel ~_____- ----0---- __________: ~';:r~'~a=~a~~~·~,·'·-·-·~·i-~--~-II;;~ir--- member to relieve Its load. AlsoC311ed E rellevfn9 If'dt. lirrtd ~...--........--.........--...-.... -.-.. A~msupportlng the ~h~abovea : door or window openIng. umpl1te Ahorizontal timberor st.one set In 3 wall to receive anddistribute the pressure of agIrder orbam. as (Ner an opening. Also. tempkt. 266 ,-... -.........- .............~ exUricr wail Awall formIng p3rt of the envelope ofa InJlldIng. havl"9 one face exposed to the w~theror to earth. Also c.11ed exUmatwali. ,1"-"'." .•• Interior wall .,/ Any wall withIn aInJlJalng. entirely ......./ surrounded by exterlor W4i 115. 0/ partition An Irrt:erlor wall dlvldlng aroom or part of 3 Pulldlng Into separate areas. ~eari~ partition An interior wall carrying ast-ructuralload. Also called lo.1d-bearing partition. non~ri~ partition An Interior wall supporting no Ioaa other t~n Its own weight. Also called non-load· ~nf p.1rtJtSon. $creen Amovap~ orfixed device. esp. a framed COI15trtJctlon. deslgne4 to divide. conce;al. or pror - movaple partition Apartltlcn cap;a17le of I1eIng moveato different loC3tlons. Also called demountaPla partttfon. coping I " Aflni5hlng or protective C<lp orCOUr56 to i 3n exterfor W4lfl. usually sloped orcurved ....... to5heJ~. ........, ..- - spla~ copIng i .0-.--: .... ~addlecoping ; Acoping that slopes to either sideof a >..~ ./' :~~~ge. Also called ~ld1acked ...............-......... par..pet Alow. protecUve walla~ the edge of.a term.e, balcony, or roof. esp. th4t part ofan exterior w;l1I, fire w.all orparty wall that rises arove the roof. ..-.-.--..-..-,...--...• gal?1e W3U - -.. AwaH ~rlng orcrowned byagal1ie, --.'.-.. '.............-... pa~ment wan party wall --.-...: Awall ~Jointly ~ ccnt1guous structures, ~ upon aline dlvIalng two parcels ofI3nd. ~h ofwhich Is a separate rt31 estate entity. -- .. ---.-------~ Afoundatlon- wan tha"t encloses a usaPle areaunderal7ui1dln~. plinawall Awan having no WIndows. doorways, orother openInqs. I l l l l L L L f L~
  • 263.
    -~ ,I...;.·f 't 11 l~ t~ m~hause Ahouse constructeawith askeletaI framework of t1mrer. usually sheathed wtth siding or shingles. corner I7race _._...; Adl3gonal bracelet Into studding to reinforce the corner of aframe structure. let In i 0 Insert Into the surface of a stud. wall Of:,the tn:e as apermanent addftlon. comer post .....-.•--.--------------- .----.. An ;asseml7ly of two orthru studs splW togetherat the Intersection of two frarnecl walls to provide a nailing sumu for flnlsh materials. ~cklng AnJrTOW wood strip flxed to the cornerof afrarnecl paMlon to provlk anallln~ surface for flnlsh materials. firestcp -------.-----.--------------'. ArlUterial or member !roUt Into a tlvlldl~ fl.lme to I1lbcl: aCOTlce31ed . hollow space through which aflre ". might sp~ from one part of the !ro11.d1M§ to another. ledgerWip Apleu attached to the face of a Deam at the bottom as a support for the ends ofjoists. M17Pon ~_ ..________._ ------.---.----. -.__.J'- Athin. h~ I;Io3rd let Into studdlng to carry the ends of joists. Also called ledger. rippand. rIPPon strip. balloon frame ..-- --...-..--'-' _ ..... Awooden !rolldl"4 frame having studs that rise the fun height of the frame from the sIR pl3te to the roof piate_ wlthjolsts nailed to the studs and supported by sills or by ribbons let Into the studs. plate 1110cking Any ofvarious hOrizontal tlml:>ers laid flat across the headsofstudding or upon floors to supportJOists. rafters. or studs at or near their ends. wall plate Anumberofsmall wood pieces Inserted to space.join. or reinforce memrers of a!rolldlng frame. fill the spaces between them. or provrac a nailing surface for finish materials. Ahorizontal member built Into or laid along the top ofa wall to support and distribute the load fromjoists or rafters. Also called raising plate. top plate ~- ....---.....-.......-....-.-.......------ The uppermost horizontal meml:>erofa framed wall on whichjoists orrafters rest. /' anchorbolt •... --.--...~.. ~~~~~~ Any of various rods or rolts "..•..• E ;'L:··:· ~. ." . ,. ~. ..".' . -' .. ·4: embedded In masonry or concrete to hold. secure. or support a structural member. sill sealer ......-..-.-..-.....-......-.-.-.--;-~~.~ Areslhent, ftln-ous material placea J ~etween asliland afoundation wall /f"'. to reduce alrlnflltratlon. ,/ termfU shield~···-···..·-·······./ Sheet metallnstal1ed atop a foundation wall or around pipes to prevent the passage of termites .~ . - b '_. WALL ~-......_.. stud wall Awan 01' partition fr.lmeJ wtth stuas and factd wtth sheathing. siding. wallboard, or plasterworX. Also caW stud partition. .'" stud Any of aseriesof slender. upright memrers ofwood or tne't31 fonnlng the structural frame of awall or p-artltlon. -... cripple Any framing member chat Is shorter chan usual. as astud above adoor opening or relow awindow sill .-- center--to-center € From the centerlineof one eIe:r.ent. member. orpart to the centerline of the next. Also callta on CCT'tu. .... $OkpLtu The :>attom htficntJImemper of a ftamed wall upon which arow of studs Is erected. Also called shoe. sole. soIeplece. platform frame Awooden !rolldlng fr.lIne h3vir..J studs only one story high. rt-gardless of the stories ~ullt. each story restl~ on the top plates of the st.ory ~Iow or on the sill plates of the four-dation waft Also called wc:sUrn frame. ....-.-...... ponyw~1I Adwarf wall for sUPr«t1"9 fIo?,.joists. dw~rfwall Awall less than afullstor)' In hd.3ht. 5111 The lowest horizontal mem~ of a frame struGture. resting on ana anchored to afourWtlon wart. Also called mudsill. sill ptru. .-.....• l1ox,iII AslH for atlvlldlng frame. composeJ of aplate resting on afoundation l'f311 and ajoist or header at the outertd¥of the pl3te. as well as 3 soleplm for studs resting either dlrectly on :he joists or on the rOu.,Jh flooring. l,fII Aslll for atlvllcllng fr.lme. composed of aplate resting on afoundatlo:! ""nand a10lst or header at the outer~ of the plate 267
  • 264.
    WALL !Siding Awe3tMrproof material asshingles. boards. or units of sheet ~l used for sarf.ulng theexteriorwalls of• mme!7ulldlng. comer 1?oard Aroard against which siding Is fIt1;ed at rake AbOard or molding placed along the sloping sides ofagal7le to cover the ends of the siding.......''-:.. 5huthing Arough covering of Poards. plywood. or other panel materials appW to aframe structure to serv~ as abase for siding. flooring. or roofing. .- 5tructur21&huthlng the comerofafr3me structure. ~............._....;. Sheathing capal7le of bracing the plane of aframed wall or roof. ~att.en ASlmfll70ard orstripofwood used for varloos uulldlng purposes. as tocover joints ~ mrds. support shingles or rooflng tiles. Of' provide _Da5e for 13~!ng. l10ard 3nd l1atten Siding consisting ofwkie boards or pljwood sheets set vertically wtth Putt joints covered by u.ttens. colonbl ~ing 5JdJil! composed of plain. square-edged twrds bld horlzontaRy so that the uppero.'erlaps the one PeIow. PJ~ Aseries ofpancls•.esp. decorative wood panels.joIned In acontinuous surface. surround t I· . I '.1' i ..... di~onaI5he3thjng Asheathing of Doards applied diagonally for lateral strength. i10arding Astructure ofboards. asforsheath~ or su!riloorlng. .... ~uifdjng paper Artyofvarious papers. felts. or slmlbr sheet material used In construction to prevent the pass3g6 of airor motsture. vertica "QI"9 ~..._...l Siding consisting of matched roards applied vertically. i ' OO cl3pboard ! Along. thin board with one ed~e thlcl::erthan the other.laki horizontallyas bevel slJ1ng. shiplap Aflush. overiapplngJolnt.as aral7ret. Petween two boardsJoined edgeto~. Also. the boardingjoined wtth such O'IerlapplngJolnts. " bevel siding Siding composed of taperea Ltoards. as clapboards. laid horizontally with the thicker loweredge ofeach board O'Ierlappln!1 the thinnerupperedge ofthe Deard uelow It. Alsocalled lap skiing. flLl5h panel Apanel having 3 surface In tht same plane as tfie surrounding frame. o Dolly Y2rden siding Bevel staln~ r30reted a~ng the lower edge to recelve the upperedge of the board relow It. r.I~paMI AF'nel h3vlng acenter portion thlcl:er than theedges or projecting above the surrounding fume. Also called fielded pa~l. )/ drop siding Siding composed of boards narrowed 3 long the upperedges to fit Into ral*ets or grooves In ~ lower ~s.lald horizontally with their uacks flat 3g3lnst the sheathing or studs ofthe w;;r/t Also called novelty sklln~. I"UstJc skiing. sunkpaMI Apanel h3v1ng asumce recessed Pelow the surrounding frame Of'surface. An enclrclklg bo de areaOf' r r.~.............. ~.;.. I portion. Section. ordfvlslon .. mlnscot.celbng orc:Ioor. esp. S41rfacesunk beloworI'2tsea the surrounding area. or panel A~ ohwa ofaff'J a~ ~Iosed byam~ or rorder. -_.......... atwood paneling. esp. when NJln$COt ~ facin4 :overing vall. the lowerportion ofan Interior ..... ...- n ~ ......- .......................... "ullio , vertical memberdividing the panels In -a11l5COt~. lYe/'?'rtIon ofan Interior wall ado 1elo ilenfa ,eupper '3ilpa ced ortre3ted dlfferenttyfrom section. as with paneling or ~. R'''-'- I . I I ! .....'1".. - ...... - .-' .' ..-' ~ = ',- ~ID -- . . J me1 r..·_·..-..·....·_....·......• flU5h ~ a~ APe3dhavlngltsoutersurfaceatt:hc same level as the adjoining sumces. 1" ... - ........................ cock~a 1 Abead that projects aDove or Deyond the ; adjoining surfaces. i ;0...._................. Culrk . • Agcoov.....cot<,ng~""kling' !><1J ... ffifu X~ :::alng from adJmnfng'members or :..................... Polutlon ./ Araised molding for framing apanel. Oooli'r'ay. orfireplace. esp. when the mutlng surfaces are at different levels. Also.lrilectlcn. j .. I Il; L L L I L L I u
  • 265.
    3r1Chor -' _...;' Arryof V3rlous rret.ll ~ used In curt.;aln wan constructlon to secure a fr.1~ Of' pane! to ~ bultdlng structureo usually aflo~ for 3dJustlT'.ent In three dlmenslons. ~'-". ttnltsystem AClf't.4ln Iv.ifi system conslsUng of pre3sserrWW. fr3~ wan units .....hlch IT!3'j be pregf3zed or glazed 3f+..er InstJlI.aUon. pand system .-._ ............._ ..........' ...................../ A cu-rt..ln waH system conslstlng of pm'Dr1'I1td met.t cut stone, precast con.cme. or p3ndluJ t>rlck wall units. l'rhIch rt13Y be preglned or gl.azeJ after fn~ ...1tatlon. column·ccver-ana-spandrel system1 II curtJln w311 systaTlln which vlSlon·glass ! lls~m~les liM 5~Mrd units are 5wpporUd l7y 5f13nJrel beams between ~~ columns cI.Jd with caver sections WALL .-"-" curtain wall ..- ,. An exterfor wall supported wholly by -r--- l g - irt --,.-.,.-.-......,.,..,......,..··.,.".:. ..,..., ...',.-..:.,....-~, ......,.,:-T:~.:~-.:.,..:...,...:.J,...:...:~:""" ".,·'M~""'··.-r ..·~·P'!';rr~'I!V' t-) ~~~ht~;:;I0:;~~~~~;~:~ . Ahortzontal member spanning welg t ana wlna aaS. retween exteriorcolumns to support t----7 wall sheathing or cla-dd1ng. •.._..........'-"-'. mng ~..~.....................................--.-........-_ Anoncombustl~ material placed In an . -. opening to p~t the p3SS3ge offlre, .... t--} ~m. ~ r---~~--.~.~,,~.~ .. :~.-:~.;.~ ...~:;7~.~ ..~ ..• ~ ..~{~~:~ ..~~-~a~'~~~~~.~~~ 3S uetween acurtain wanand aspandrel • ~ 1 __._;. ~~ JIll ~p:ea":r:~:n~~ b~~~i~·~~·....-..····· ~ ............~ ~~~~:I~~area In a multlstor:t frame and supporting tneotIter edge ofa lnJlidlng. between the sill of" window on floor or roof. one level and the head ofawlnaow backup wall Immediately below. Also, spandril. An assemlny of materials used behlna acurtain wall to provkle the r~ulr'ed ~ree offire-resistance.••.•..- .._-...........--~ ~ ~ stlck s)"tem Acurtain wan system In which tuuuf3r metal mullions and ralls are assembled pJeci by pleuon-site to frame VIsion glass and spandrel units. .--.......... spandrelgl1s5 An opaque glass for conceahng the structuralelements In curtain wall ccnstnJCtlon. proJucea byfusJrIgaceramic frIt tothe Intenorsurf2Ce oftempered or heat·strengthened glass. unlt-3nd-mulllon synem Acurtain wan system In which one-or two·stor)'·hlgh mullionsare Installed l7efore pre3s5emblea wall units are lowered Into placebehind the mullions. The framed wall units may Pe preglazed or glazed after Installation. 269
  • 266.
    WALL ret.1lning W311 Aw.noftre3t.e.a tlml1er.I!i3S0flr)'. or ~ for holdlng In place a1n35S of earth. Arebln~ w.1I C211 f.l1I by overtumlng. s/Ia'In~ orseuRng. Also C411ea ~5t waR. 5urc!lJrge An addltlooal or excessive load or Irorden. 35 that ofthe earth above the b<el ofthe top of aretalnflo.g wall....._- .______. toe··---·"!' Theforwa ra. lower tip of the base ofa footing orretaining wall extended to give !?roader Pealing and greaUr -...... ----~ ~rrtiJever W3n ----------------', Art't4lnlng ~ of reinforced conc~ -.._------. "''''... or re!rrforcea ~ masonry. C4ntlievmd from ana securely tied to 3 spre3d footing th3t Is shaped to resist overturning aM sl1J1ng. cn17Uing -.-...___ .._.___________ .__ .__...... A system of Cli~ for ret.1lnlng earth or sora ~..lld1ng ~ng lT1CY'edorhavlng Its ;c·Hldatlon rdnJltt. Also C41ieJ c.r.bworl ;n'b , cellulJrn.~of.red :':mbers.or s~ orconcrete rnemPer5 ;;f $Imlbrform.. asseml:>led In laj'ers at ...;~ht angles. often filled wtth earth or stones ;rod used In theconstroctlon of '':lI.maatlons .nd retaining walls. .3~ion ---......; p Ivanlud wire b.sl:et filled with .0f1es and used In coostructlng an Jt ment or retaining structure. o de3dm.1n A log. concret.e Plock. or similar mass uurled In ~ ground as an al1Ghor. rlprap A layer of ~en stones thrown together Irregularlyon an emban~ment slope to pm-cnt erosion. revet fo face asloping surface or emuankment wIth stone or other material. revetment A facing of masonry orother sultaple material for protecting an empankment against erosion. .r---__.• ccunterfort ...- Atriangular-shaped cross waU tying a concrete ret.olnlng '(311 to Its Dase at regular Intervals. built on the s~ of the I!13terial to be retained In Of~r to stiffen the vertical slap and add weight to the Dase. i7atter Al:r.ichard s~ of the face ofa wall as It rises. ! gfMty wall .-------j ANsonryorconcret" retaining waH that resists overturning and sI1dl~ ~ the sheer weight ana YOlume offts ctilss. '--.--.--.-...-.• ~inwali Atype of gravity retaining wall for.r.ed loy stJcklng modular. interlocking prec.ast concrete units and filling the voids with crushed stone or gravel. Also called cellular wall - - - ------------ ---~- ---. t.1rth tle17ack wall - - - - - - - Aretaining waif consfstl~ of precast - - - - - -- concrete panels fastened to long _ _ _____ gatvanlzed steel str.lps extending Into a compacted soil UacHlll ~- - ~==::::=::::=------ --j c~lhe~ht The maxImum height at which 3 vertlcal cut In 3 cohesive soil will sbna wlU,CtJt shoring. ;------- I / / The maximum sIop6. rne3surea In / / / . . &eg~ from the horizontal. at whk;J, [ Jngleufre~ / ....... / ',___ • soli binder Aplant that prevents or Inhlplts erosion Dy providing aground cover and forming adense network of roots that hold the soil. . _--.--' loose solid mate~1 wll remain In ..•.•-- place without slidlnq. . angle of ,ride The minimum slope. measured In deg~ from the horlzont.1l at wh!ch loose solid material will begin to silk orflow. soil5ta17i1iur Achemical admixture for malnt3lnlng or Increasing the St3!1lnty of a soli mass. I iI J , j l l l l L L L L L
  • 267.
    • window IUIit AlI'taC!8bctureJassem17ti ofamme. S.ilsh. ~ and necessary hardware. ~toftta wlndowopenlng. "',,_ sa5h The fhe.d or I1OV3~ mmeworX ofa ~ordoorln which panes 01 ~l2ss are set. -----". --- ~ick .,kI~ ---...:. ',,-. Awood ~ COt'eriIlg the g.3p ~ a~rne or wlnao,.; f,..me ;and th6 msonry reveal Into which the m~ Is set. Also c;alled staff peaa. ~d~~ The ~ CNer. window ~n~ Of" a window frame The fixed mmeofaWindow. consisting oftwoJam17s.• head. and asill.---'1 ..... .,..... ~ Jna In3sonrywalL ----..--------- ---.------- drip ~-----T'-----,,;::-,v---rr-----rr Arry of vr.ious t:b1ces for sr.eddl~ ,..fnwrtef so as to teep It from running down aIf3ll orhlllng onto the slfl of an ~l~ drip ~ ~-----.------- --'.--...---- -'-'-' .. -.. .,~ A~ ~ CNer an exterior dooror~opcnl~ forc3tchl~ and ~ t7lnwater. ~a~ ..---.----.-.... -------------.--... --- A~ $UfTOUnd1~ the tnm at the top arJ skksof adcor or window. wi~ll __..__....u _ u _____ . . _______ -·····-·~ The hor!zx;m.ai mtn1Per at the 173se of a - __ ~ _ _=::.._ _ _li.I-..L...<::.~ winDow ~ning. esp. the edqe for-mea Py - Sl.Ch a mnboer. ~h ~ ~ SlJrf.ceof a!1ulldlng memrer. as a~ orcoplng. slopeJ to shed r.afnWlter. AJsoC2lea we.tthering.•-----.-----.--.----- .. -... ---..---. -'_. chuk~ A~rtXYe M or fonned on the ur.derslJe ofa slior otherextulor horizontJf r-_L,""'___ rr.ember to prevent the C3plllary flow of I rJlnwaterto 3 wall ~.---.------. -'---..-...- .---. ----..... -.......-. _t/ >, ~up.,ilI--..----.-.---------·--·--'--···--·-"--·-"···-·---· .-.-.-_.' '1 An ~lslU fttttd to 3 window fnme to oUSt r.J1nw;rter to drip farther 3W1'j m::.n.. w;iR surface. Also C3lled sill drip maldif1~. WIND,OW dressing The ornamental detail ofa Dulldlng. esp. the molded framework around door and wIndow openlngs_ An opening in the wall ofapuflding for admitting light and air.usually fitted with aframe In which are set operapIe sashes containing panes of glass. pane ~-..~ One of the divisions of awindowordoor. conSistIng of asingle unit of glass set In aframe_ muntin A raDDetea It!emDerfor holding the ~es of windowpanes within a sash. Also called glazing l1ar. sash bar. '1 omOOE] / -~ mullion Avertical rnemDer 17~een the lights ofa window. ~-- ..--..-~ light Amediumfor admItting light. as one· compartment of. window or window sash. Also called day_ slip sill A5111 cut to fit !1e-tween tMJam17s ofa w:ndow ordoor opening. .r:---------------. lug sill ./ A. sill extend)n!! !1eyond awindowcrdcor ./ openln!! and Irollt Into theJaml7s. r--"-"---' horn / That part of apmb extending a!1ove the .' head of adooror window frame. or the horizontal extension of awlndowslll ~nd theJamD. -- - ---.-...--------------. 5"Wol The Interior 5111 of a window. '--....... -.-- ----- .. -- -. apron Aflat piece of trim Immediately Deneath the stool of awindow. Also called skirt. b4lck The area of Interior wall. usually paneled. between a windowsill and the floor. 271
  • 268.
    WINDOW doub~hunt wi~w Awfn&ow hMtftwovertically sl1t.f1ng ~. ~ .. sepal'2te grooves or,trads anaclosll4J ciffererrt'part of the wfndow. hung sash ...- ......•.•.- ..- ......... _........ . AvertlcalJ:t std1~ window S3Sh balanced by :iI cou~ht orapretenslonea spring on ~ side 50 ~ ~ c.n Pt raised ex Icwertd wtt:h reb~ Itttfe ~ort. Alsocalled lralancea 5.1s-h. meett~ raI-.....- ..-.--..-.--..- The r.:11 ofeadI s.sIt In:il dou~hu~ wlnaowM ~ n t1Ie I'2Ifofthe other whe-a ~ window ~closed. ~fm Afastening 011 the II1eetIng 1"211 ofone sash which swings .cross to the meetlng I . - .. 1 .- .-.. ___J r rail ofancPlersash and engages with a spuronIt.AIsoc.lledsashb~.~······-····-····-···-~~__ checl: ran Ameeting raM. esp.one closl~ lIgJlnsta ~ rad wtth ad1agon31 or ra~ overlap....--•.----...•.......... pl.1in ran Ameetl~ ral equal In thJ§:ness to the other mem~ of the frame. r------.- I I Pcx-~dwindow - ..................... ,....~ Adoutne-h~ window constructed with a I I pocket In ~ he3d.1rTf.o which oneor both :;.;shes caR 1'355 to Increase the opening i iNallaPlefor ~tlbtlon. OJ I drop window - ..•-......- ........- ..........---1 Awindow c.oastructeJ with apoclet I I llelow the sJl.lnto Mitch asash can slide L _______.J t.? Increase ~open~ ..vallable for venUbtlon. horizo~ny eUd~ window Awindow M1n~ too or InOrC 53shes. of whlch at ~ one sI1Jes along horizontal gl'OO'l'CS(X tracks. ,ltaing ,a~ ........._ ....._.c .................... _ A52sh thit opens Pi' movIl1!J horizontally alo"9 gl"OOr'cs or tncl:s at the top and rottom of ~ wlndow fram~ H2 --7 - '" / i r·....·..·..--_... yoke rT'>....-r----f-,..,. AhorlzontJl p~ fonnl~ the t.?p of a frame for adouble·hung window. ,top Astrip of molding along the InslM of wlndow frame for holdlll!J .1 sl1dl~ 52sh. or ~alnst which ;1 sash cioStS. Also called sash step. window step. .._..... ~top bead Astrip of molding along the Inslde of a window fl"3me for hoki1~ aslld1n!J sash. ~.. - .._..... parting ~ Astrip of molding u~ on euh side of.ll frame ofadou~hu~ window to keep tM upperand lower sashes .11lr-1rt when raised or Iowere4 Also c.lled p~rtJ~ strip. -..-- Wind ca~l~ The ro~h casl~ ofaI10x frame to which trim Is secured. .--.-. Pox frame Awlnaow frame h3vlng hollow'pmbs or mull10ns for S3sh weights. .... hanging ~tIle Astile In 3 window frame against which a wlndow sash sl1d~, Also called pulley stk. ..- ~a,h weight Acylindrical c.;sl~ of Iron (X Ie3J used 35 3 coonterwelgfit to balaneea vertlcafly s~ window sash. ""hline Arope (~sh cord) orch.ln (sash awn) forconnectl~ avertically snalng wlndow sash with 3 counterweight. ~a~h rii7Pon Astrip Of~I or aluminum alloj used In place ofasash cord to connect .. vertlcally sliding window sash with acounterweight. pocketpleu Aremovable part of a113"91"9 stile permlttl~ aCUS5 to Insert.ll sash weight or to re~ace the sash I1ne. ~ingle-hung window Aw1naow havin9 two 52shes. of whlen onlyonelslT'oOV3~ vertJcally sliding window Awlndow havltlf one or more sasl;es which move vertlc.11yand.are held In various open positions by means of friction or 3 ratchet &M;e Inste3a of by 5.11sh 17alancesorcounterweights. ea'hi7alanu Aspring·loat.feJ device used In place of sash weights to cou~lance 3 vertically slldl~ window sash. Also cal~ spring l1atanu. I I I 1 t l L l l L L f t~
  • 269.
    ~.- ,: extension ~ent hinge A~e for an outward·swlnglng C35tment wlnam.located to allow ck:anl~ froD1 the Insrde when the wlnaowlsopen. ~ent~ AV3rfor hoId1~ acastment In arry of sevml ~n positions. ~ver oper;ator Agearless device for operatlng a ca5tment and hokllng It In an open ~ ~m handles ~--..-..- ......-.....-.-. Ah;an& th<at Iocl::s 3 hinged sash In a closeJ posftlon by wedging It against a keeper pl3~ Also called lockIng ~n.k. l"O'too~r ....---...-.-....-./ ACr3nk·drlYtn worm drive for opening and c~~ awning windows. casement windows. 3nd,lJlousles. • ;~4" wicket scr-een _._.._.-........_ ....."'''-'''. Asman slla'l~ or hinged portion of a 13rg~ SC/Ull providing access for operstl"9 awlnJew sash. pivoted wind<>w ' I / ' / ' I I " I /'- I ' I ' / ' I ' I ' A~ hJving a sash that rotates 90° Of ~"arouta vertlc31 or horizontal axis at or ~r Its center, used In air· condltloned multistory or h41h·rI$e !lu1tdl~s and operaW onlyforc!eanlng. FI1Jin~ar.ce. or emergency ventll3tlon. J.a~ie window Awindow h~ horizontal glass or wood louvers which pivot simultaneously In a co:nl!"lOf1 mire.useaprlmarily In mild cnmate5 to control ventllatton and to cut off visibility from the ootslde. J;alcu5~ A ~Ind or shutter having horizontal slats that can ~ 6dJusted to admit l41ht and air ~t excluck sun and r3ln. shielding ~~Ie --....-- The angle Pd.ow which something can be sten when viewed through alouver. o WINDOW 0 ······-···-·-··········----··-1 ~~~h!sashofawlnJowthatdoesnot op~n for ventll3Uoo. Also called fixed sash. ~-...- ..-.~ oper;a;oe window ~ AwlrJow having asash that rruy ~ opened : for vtMtllatlol1. V -----................-....----.-..-.--. ca~ment window I / / , ' , ,- / , / / / / / I / / ~- - I !/ /1 / - IL_1J i. t ti tj Awlndcw with at ~st one casement, often used In comblnatlon wtth flxecll41hts. :-..- CJ~ment . Awindow sash opening on hinges gener311y attached to "the up~ht sik of Its frame. folding casement Apairof casements with r3bbeted meeting Stles, hung In aframe having roO multlon. 1--- "'~ing stile The stlIe ofawln.:low frame from which a C3sementIs hung. ~...- meeti"9 stne Oneofthrr"03 stiles In ap3lrof castrr.en~ ..--.-..~ French winaow .. Ap3/r ofca~nt windows extending to the fC()r and strVing as adoorway, esp. from aroom to ~n outside porch or temlce. cremeI'M ~tt Avmlcall10tt used on aFrench window or the tit, consls~ of two rods moved by at abob mechanism and extending Into pocUts In the head and sill of theopening to prcv1Je asecure fastening. Also, cremone bolt. ...-_....- l:Ia!conet Ar3inng or!7alvstrade projecting slightly ~ the pla~ ofawindow and reaching to the fuor. having the appe3r.l nee ofa !7alcony whe.n the window Is fully open. Also. l>a~. I , II ' ' / I / I I hopptr window Awlndcw having one or mort sashes swl~lng Inward on hinges genmlly att.c~ on the rottom. Also called hospft.al window. ...-..~ hcppt1' light Awindow fl9ht hir1¥d on the bottom and swinging Inward. Also called hospital light. .- ......, hopper One of the triangular draft lrarrlers on each side of ahqpu light. 273
  • 270.
    WINDOW ~ '.::~::.:":'...... -"'-:"~:/'.::~...!.. ',. ~ ~.' :,', ., :. ......::.J . picture window . It ~rge. usually ftxta slngie-pane window. p~ toframe an aUQctlve exterior view. ~aywindow It wlrWw or series ofwlnJows projectl~ OIJ'tWardfrom the main ¥;inofa building anQ forming aPayor alcove Inaroom within. esp. one iuvlng Its ownfoundation; windowseat - ...-.......-......_.._ ......, It se.7t built Into arecess ofawindow ::;~:---~ ~nt ~ay window It bay window having canted sides. ~wfndow It Ir.1ywindow havl~ a roundea projection. DBDD DOli DCd5;J~~ if~':' ~~~ DODBBB= DOOOO' - window wall Anonbearlng waR composed primarily of vertical and ho~nt.1 framing members containing acomPination offlxeJ lights and operating sashes. dormer window ~.- ....-.........-..............- .. ,. Avertblwlndow In a projection Pulit out from aslopl~ roof. Also called I~m. ~Iao~r --_._......-....... Avertlc41 wIndow set Dele... the line of a slopea roof. luc.ame A~ Window In aroof or spire. oxeye _....c................_ ....... _ ............_ ... . AGCmparaUvely 5m3"rounaoroval window. as In ~ frieze ordormer. AlSo called odl-de-Poeuf. hocdmold Aproject1ng moldl~ overthe arch of ~ window or&ocr. esp. In Intero!' wort. Also. hood mokJi"f. P~"adi.1n motif AwIndow or door-way In the form of a round·headed archwayfbnke& on either sk:le by narrowercomp3rtments. the side compartments Peing ~ppeQ with ent4PIatures on which the arch of the centnl compartment rests. Also calkJ 5~j.an motlf. Venttlan motlf. 274 I ! t· I...J;! I riLWn window Ahorizontal b-and of wlnaaws, seraraW only Py mullions. V- I t clere5tory Aportion of211 Interior risl~ above adjacent rooftops and having Windows admitting d;iyIlght to the Interior; Also. cIe.1rstcr:t. .r- ~ Porrowed I~ht Awtnaow ~nlng In an Interior part-mon allowing Ilgh1 to De transmltted from one space to another. .- .... pa5'-thr-o~h Awlnaowill:e opening In awall or partition through which ~I~s may be passed.'as Petween 3 kitchen and adining room. -_...... 9a~1e wir.dow Awlnaow In C(' under 3 !pine. '-"-1'---' oriel ~~~~. A!?ay window supporteJ from klow awnin.g A~ COfer ofC3r1V3S or other materiaI exterI.11~ In front of a&oorvay or window. or0Vet' adecl:. to pror1de ~ from the~" or rain. Pyco,wls or ~r;;ckets. me,hrePu-jeh An orielse~ Py lanluwort. through which the air rr.zy araw freely while the Inter'«Is COI1Ce3Iea from view. found along tr., streets ofCaIro3nd othertowns ofUIe Levant. Also, ""sh~.lNsh~h. IychM5COpe A51114111 window sa low In the W311 ofII rntdIeval church. pm11tt1"'9 the Interior to ~ seen fmn theoutska Also callea ~ewlr.dcw. !~-... - ... -.- 5Gretn . Aframe hoIdi~ aflne ~h of Mal or fiberglass. pbcedIn aWindow or L window pox A!;.ox ksi.3nea to hold sol! for grtWlng plants at or on 3Windowsill. &oorway. orarouna apon;h to admit. aIr ~ut excluk l!Isects. '" storm window Asupplementary sash pl3cea OIJts1ae an existIng window as additional protection a!pinst severe weather. Alsocalled st.cnn u5h. com~nat!on window . Awindow equl~ with' InUrchange3rte serun and grass sections for summer ana wlnter u~. 1 L L ; ! I iLl L L L L· L L L L I i
  • 271.
    I. I plate tr~cery EJrly Gothictracery funned of pierud slobs of stone set on ~e. the des~n ~"9ln the shape and dlsp<l$1'tlcn of theopenings. Also carted pafor3Udtracery. par tracery ...-_...._--.-........................... Gothic meet)' tlutsucceeded plate mcery. conslstl~ of mok!ea stone mul110ns that divide Into various branching emnts which flU the wIndow head. ret.icuL1td tr~ry •.-.--.-_............- Gothic tracery conslstlng mainly of a nttlii:e arra~ement of rtpt:ated ~~metric31 ~ures. AlsG called net tracery. g~metric tracery Gothic tracery characterized by apattern of geometric sJ,apes. as circles 3nd foils. fon ~--- .------------------.-----.- ----.,,--..--, Arry of several arcs orI'Oilncled spaces' '" aMdtd by cusps and bngent to the Interior ofalargerarc.;;Is ofan arch or circle. foliatlon OrTt41rnentatlon ofan archway. Window. or otheropening wtth foils or representations offol13ge. cu,p ~ .. ---- ...... ---- ..---- ....... --- ApoInteJ p~ecUon formed by two IntersectIng arcs. used esp. to vary the Mhnes of ~ or to form foils. cu'pkUtlon Decoratlo11 wIth cusps trefoil An amngement of three foils dIvided by cusps and radIating from acommon center. ITWUc~ ~ Adaggerllkt motH'found esp. In Gothic mcery. forrnea by elliptical and agee curves. . an~ellight .•- ..--.---------_. Atrlangu13r 119htIn a Goth1c window.fOl"11'1ed by the arch of the Window. an arch ofa!ewer tier of mctr)'. ana 3 mullloo of an upper tier of tracery. perpendiculartracery Predomirt3ntly vertlwl Gothic tracery havfng mullions rising to ~ curve of the arch. crossed at Intervals by horizontal transolT1:S. Also caled rectni~~ury. q,uatrefoil An orn3rr.ent com~ of four foils. divided by cusps and radIating from a comlT1Ol1 center. WINDOW tracery Om31T'.eRtalwoti: of branchllke lines, esp. the lacyopenwork In the upper part of aGothic window. cu,..,,1in~r tncery Gothic tracery charactertzea by a p-attem ofilTegular,l1cldlycurved forms. Also called flowing tracery. cina.udoil Adesl<:Jn composed of five foils. clivlkd i;;t cusps and radiating from acommon ce~~. rnutufoil HaYi,19 more than five foils. 275
  • 272.
    WOOD The tc~h. fil7rouscellular su~tance th.-t makes up most ofthe sUms anal?l'3nches of trees ~eneath tU ~rt ~.ilr1: .-..------.-------.-----..--.-- -'--"'-'--'--'-'. The to~h extemal coverl~ ofawoody '. sttm.l7ranch. or root. composed ofa nvlng In~ layer caltea phloem and an outer Dan: ofcorty. dead tIssue. .-~:h":f'll~~~ ~ --------"-------------.---.----.-.-.--..- A~oftls5ue th3t C3rr1eS food from U,e ~ to the growing parts ofatree. Also . calW InMrpark. ~m9jum A_t;hln ~ of reproductive tlssue ~ ~~~: '..4,:..:1 ~ phloem aM xylem. which produces new . ~i£"It;g ph~ on the outslJe and newxylem on the In~ ofstems.l7ranches. anaroots.. ~wood ~---- ---:------ --- --------.~-.•:',..•;.-••- The wood from .; can!fer. The term Is not JescrfptlYeof the actual softr.ess of the wood. conifer Anyof various predomlnantry evergreen. ~-17ear.~ trees. as pine. fir. hemlock. ana spruce. t:VeT3~ Having fol!a¥ that remains grun and functtonal throughout the ye:Jr or th~h mort: than one 9ro~ ~son. crown •.--.-...-------.-.-------...--_..! The ~ves and living Pranchesofatree. tnmk The main stem ofatree apartfrom Its mnches and roots. ~ hardwood ....----------------.---.-- The wood from a Imnd·le3vea f.owerlng ~ee, as cherry, maple, or oak. The term Is t".ot descrl~ of the actual h4rdness of tilewooQ. kckfuolf:J Shedding lt2ves annU4/ly orn the end of a ~rowlng season. The term Is descriptive of most hardwoods and afew sof':woods. 276 resin duct .---- .--.-.....-.------- Atu!xtlar.lntercellular space In a woody stem that secretes reslns. esp. In contfers. Also called resin . canal. . resin Aviscous. clear to tr3nslucent. organic sul1stance ex~ by certain pines. used In rnakl"9 vamlshes. adhesives, and plastics. pith The sof';. central core aDout which frst growth t3l:es piau in anel't)'fonned stem. r--···· xylem .... The WoMy tissue of ;I tree th4t pro;ldes support ,lI1J conducts water;lna minerai nutrients upward from the roots. lignin An organic subst~"u that. wtth cenulose. forms the woody cell ~ 115 of plants ;I nd thecementln:3 m3terull7etween u,em. cellulose An inert C4rt>ohydta~ that Is the chief con~ ofthe cell lI2Rs ofpl2nts and ofdried woods.jute. hemp•.;andCDtt9n. used In the rnanuflctu~ of .; wide variety ofsynthetlc burt&~ rnat:emIs. . sapwood Theyou~. ~. llv!~ portion of wood ~ ~ camrom and htartwood, com~~Ple In st-re:ngth to htartw:lod but usually lighter In color, mo~ pertne;lPte. and less durable. Also called allXlrnum. '..---.---- -..----. he3rtwocd The older. k3rder. n3Ctlve core ofatree. usuallyd.arUr.de~•.and moredural7!e than the surroundin.g sapwood. Also calrea duramen. r- annual~ ........._""'--.::""111~~::i -de.. AccncerTt<ic layer of wood produceJ during ~11!5;~ a single Jle3r's growth ofatemperate tree. , Also called frowth "lli. , springwooa ;, The softer. more porous portion of an annual ring that.:kYelops e3rly In tl:,e growlr1§ sasoo. cha~rlzed bybrge. thin-wailed cells. A!sc called earfy wood. ~.----..--. summerwooa .", " ..... '. The harder. dJri:er.le-ss F,s portion of an annual ring that de.-eiOpS late In the growing sasoo. char-;tC'terized by compact, thld:-walied cells. Also caltea r...te wood. ~-.., tracheid .i One of the d.or43W. S<Jpporting and conductive cells il1 woody tissue. luvlng taperl~ c!oseJ ends Vla ~nlfied walls oriented pmlid to ~ axis of astem or branch. vessel Atubur.lr st<ucture of wooJy tissue for conducting W7ter ana ifJlneral nutnerrts. formed by the fusion a:1d loss of end W".i rts In a~ of connected ceils. '~--.-, ray .' ,:' One oftht vertlcal!:73nds of tr.Insvers6 ! cells that rui!.ate ~ ptth and 17ari: for ; the storage and hortzon-tal conduction of : nutrients. -----. pore One of the relatively ~ge verticai celis for conducting 54 p. esp. It nardwood trees. ,ap The vital fluL::l of 'ater. nftiogen. and c mineraI nUtr¢1ts thn circulates through;; plant. fiber One of the sct1der. thW:i-walled cens whlcn together ~e to st<et1gtnen plant tlssue. I l l L r L L L L f .~. ~
  • 273.
    .,. r 1 <·1'·' .' II I I I equilibrium rrk)isturecontent The moisture content at which wood ne!tMrgains nor10ses moisture when surrounded f;y air3t .. g),15.n ~perature2~ relatlve humidity. rough lumper Luml1er that Is sawn. edged and trimmed. but not surfaced. fWe~saturation point The stage In the d~ng or wetting of wooclat which the cell walls arefully . saturated butthe cell cavitiesare void of water. ranging from a.molsture content of25% W 32% for commonly used species. Further drying results In shrinkage and generallygreater strength. stfffness. and density ofthe wood. ~"--1 dressed lumber Lumber that Is surfaced with a planing machine to attain asmooth surface and uniform size. surfacedgreen Oforpertaining todresseclluml1er having amoisture content exceeding 19% at the time of manufacture. surfaced dry Of or pertaining todressecllumber having at amoisturecontentof19% or less atthe time ofmanufacture. WOOD luml7er The timber product manufactured ~ sawing. resawlng. passing length~ through aptanl":1 machine. cross-cutting to length. aM grading. seasoned Ofor pertaining Wlumber that has been dried to reduce Its molsture content and Improve Its servICe3uiltiy. kiln·dried Ofor pertaining W lum!1erseasoneaI,n a kiln uMercontrolled conditions of heat. .alr clrculaUon. and humidity. air-dried Ofor pertaining to lumperseasoned lrj exposure to the atmosphere. oven·dry Of or pertaining to lumberdried to apoint at which no molsture can be extracted when exposed In akiln to atemperaturoe of 2Wto Z21"F (101~to 105"C~ ~~t~~co~ ----------------------------Q-------~----~r_--------------------~ The amount of wat.ercontalned In a wood piece. expressed as aperunt3{Je of the ~gnt of the wood when oven-dry. werking The ii~ swel~ and shrinkage of sasoned wood occurring with changes In ~t.ure coote1Tt C3Used I1y ch3n~es In rei3tNe humtdlty of the surrounding air. J.CC{jmatae To s~re wood products. as mlllwori: and f'oorlng,1n an Interior space until the :n4~1s ~pt to the motsture ccntent ~nJ temper;rture of the new environment. l10ard foot A unit ofquantity for lumper equal to the volume of apiece whose nominal dlmenslons are 12 In. (304.8 mm) square and lin. (25.4 mm) thick. l10ard me3sure Lumber measurement In board feet. t1 e f . j 1 ;f.--- shrinkage ~1'~1 i .'-:" The dimensional corrtractlon of 3 wood I ., piece occurring when Its moisture content falls Pelow the flffl.saturatloo point. Shrlnl:age Is very slight a!ong the grain, but slgnlflcarrt across the grain. -----...--------. ta"gentialshrinbge Wood shrlrn:3!]e In adlrectlon ta"4ent to the ~rowth rings. about clouu~ that of radial shrlnbge. -- ----. ~i31 shrinbge Wood shrlnk3!]e perpendicular to the grain. iiCross the growth rings. Iongltuc::linzl ~hrinlc.1ge Wood shrlrbge parallel to the grain. auout 21 of racf1al shrin~ nominal dimension :--- ---.. -- -- -----. The dimension of lum!1erbefore d~ng and • surfacl"4. useafor convenienceIn defining size and computing, quantity. Nominal dimensions are always written I 1 wlthootlnch """',. Alsocalled nominal slu. L- , dressed size I' . -.--...... Thedlmenslonoflum!1eraftersalsonlng I ~ • • I ~#i~;~I~;¥';S~;~ dimension. 277
  • 274.
    WOOD gr2in The dlrectlon. size,alTllngement. and appearance ofthe fibers In a piece of dressed wood. ~g,...in Wood grain resulting from quartersawlng, hav/n4 ~ annual rings forming an angle of 45°Of' more wiUI the In'oad faces ofapiece. Also called v~1 grain. ltUrUrsaw To ~w ~rtered logsapproxllt13tefy at ~ht angles to the annual rings. warp Any kvlatlon from aplane ortrue surface ofa bo4rdorpanel usua/lyc3used Uy uneven dryi/14 durl~ the se.asonlng process or by ~ cha~e In moisturecorrtent. cup •. -....._._...................•..-..-....._.... ACUM~re 3C1'OS5 the width orface of a wood p~, rne3surea atthe pointof flat grain Wood grain resulting from plaln·sawlng. having the annual rings forming an angle of less th.an45°wtth the In-oadfaus of apiece. plaln-saw r0 53W asquarealog Into !loards with evenly spaced parallel cuts. A!:c C4f1ed pasbra-saw. greatest deviation from a straight fine '-'" drawn from edge to edge of the piece. -....... . ..~ Pow _......_..__..........-..-..........._.....................,. . .~ A~ ;/Iong the length ofawood pleu. ~surtJat the point ofgreatest ~ devbtlon from astraight hne drawn from end to endofthe plece. =~~~;~~,~:!~~;;~ -C-:=:=+-- aevbtlon from astraight fine drawn from end to end ofthe piece. twi5t --..---....- ..................- .....................-/ .. warp resulting from the turning of the ~es ofawood pleee In opposite JlrectIons. :;hake ~....- ..........- ......- ..........." .. septiratlon along the grain ofawood ". pleu. uSlUllly betwten the annual rings. caused ~ stresses on atree while standing ordul"fn4fe/bng. pitch pocket ......_ .......-......._.._ ....,..... ,J.., weft-defined opening ~een the annual - ~ngs ofasoftwood, containing or having ;"U contained solid or liquid pttch. ;heck ~.-...- ...................................... mIudgr.in Arry coml?!natlon of edge'gralned and ftat·gralne.::l luml>er. end 9r2in Wood gr;;ln resulting from actIt across the graIn. crosscut Acut made across the grain of'r'lood. --------'i~111 > di.1gon.a1 gr2in Wood grain having the annual rings at .an angle to the length ofa plec6. resultlng from sawing at an angle to the axJs of aog. era" grain Wood grain havlng the cells and fibers running transversely ord13gonafly to the length of ap~ as aresult of sawfng. orlrregulJrly as aresult of a growth ch3r3Cterlstlc. c~91'J1n Wooa grain characterized l1y 1t31T'C'r', Inconspicuous annual rings with ~ dlffmnce In pore size Petween sprlngwood alld summer wood. €> cc.ar'Se grain np •___u _ n _ _ _ ~ ~_~.~. . . . . :;;~~~~~rl~.9Sw~wlde. To S3W IYOOd In the ..•-,..... "'~~ - COr~ ..VJ(:; contrast In pore slze direction of~ grain. . '~ . l7etween sprlngwood and sumlTlCrWo:.i Also ca~ ripsaw. . cc.a~ texture ~ --...... WooJ grain havi"4l;uge pores. Also knot called open graIn. The meof awoody mnch fine Uxture tIlcloseJ b-j asubsequent Wood grain having small, close~' s=-r~..I growth of wood In the stem' '1 r-"""" from wl1k:h It rises. In the portS. struct.ur;;1 gr;;dlng ofawood ral~ grain piece.knots are restricted Adressed wood surface having the Dy sfu arJ location.....; denser sum~rwood rising aDove t!;e softer sprl~wood. live knot A~not having annual rlngslntergrown with those ofthe surroundlr.g wood. live knots are allcwal7le In 5tructvral tlm~r within CUbln size "mlts. Also called inta-gl"OWl1 knot. SCUM knot Aknot th3t Is solid across Its face. at least as hard as the surrounding wood. and unJecayeJ. ttghtknot Aknot held firmly In pI.xe l1ygrowth or position. ~'i'H+-I+-l'fiH-- deaa knot Aknot having ~nnual rings not Intergr'OWn with those of the surrounJln; wood. ~merrt TI12Y ~ pal11alorcomp~. rut adead knot Is consI&ere<J to be .3 defeasinceItC3!1 easily loosen or Pc knocked out. }Jsc cafk:d ~s&f Icnct, ~ knot. ~ Thekcomposltlon of wood l1y fungI ~nd other microorganisms, resu/tlng In soft.enl/14. iossof strength and w~ht. anti often 2 ch;!rl~ of~wn:: iiid color. tengthwl~ separation of wooaacross the lflnual rings, caused Iry uneven or rapId ;i1rlnkage dUrl/14 the seasoning process. Jo/it ~......-.. ~................................... ..!;-.. ,kip _ :::~):i? An area on t~ surface of aroard or panel i~~~ missed Dy aplaning machIne. L_._... dry rot Adec3yofseaso~ tlm!lercaustd Dy fungi t~t conSume the cellulose leavIng asoft. ~ttIe skeleton readily re.::luced ta powder. ,'cncd; th3t ~nd5 completely throu~h a "Jard Or wood veneer. Also called through h(!ck. '~ne - .......-.........-. -..................- .h(! presenu of ~art or a!7sence of wood at corner or along an eaqe of apleee. 78". m.3chiM ~urn . Asurface charring caused Dy overheating of the cuttl~ !1lades or abr;;slve lleIts during shapl~g or flnlshlng of amaterial. peeky Having Isolated spots of IncIpient decay from fungi, 3S pcdy cypress or pecky cedar. l L u L L L L L
  • 275.
    I, I I board, Yard lumber lessthan 21n. (51 mm) thld and 21n. or more Wide. yard lumber - - - -___-+-_" dimension lumffl - - - - - i Softwood wmw In~nded for generaI Yard lumperfrom 2to41n. bulldlng purposes. Including roards. (51 to 102 mm) thick and 21n. dimension lumber. and timbers. or more wide. fa~r:t lumber -------j lumber S4wn or selected primarilyfor further Il13nufacture. graJecl accordlng to the amount of usable wood that will produce clIttlngs of aspecH'led size and quality. AI$O called shop lumver. structural lumber Dimension lumber and tlmWs graded e~her Pyvlsuallnspectlon ormechanlc4l11yon the basis of strength and IIrtenJed use. Also called framln§ lumpeI". timbers Yard lumper 51n. (127 mm) or more In the least dimension. nutched lumber lumper having edqes dressed and shaped to form atongue-and- groovejoint when bid edge to edge or end toend. patterned lumber lumberdressed ana shaped to a pattern or molded form. appearance lumber lumber sawn or selected prltn3rily for useas afinish mater131 ratherth3n for strel19th. graded according to natural characteristics and manufacturing Imperfections. joist5 and planks Structural lumberof rectangularcross section. from 2 to 4 In. (51 to 102mm) thick and more than 41n. wide. gradecl prImarily w~h respect to I7endlng strength when Ioaaea e~her on the narrowface as ajoist or on the wide face as aplank. I~ht framing Dimension IUl)1per 2to 4 In. (51 to 102 mm) thick and 2 to 41n. wlde.lntendecl for use where high strength V3lues are not reqUired. decki"9 Dimension luinper 2 to4ln. (51 to 102 mm) thick and 41n. or more Wide. graded primarily with respect to pending strength when loaded on the wide face. be4lms and stringers strocturallumberofrectangularcross section. at least5 In. (127 mm) thick and a wk:Ith morethan 2 In. (51 mm) greater tn:m the thickneSs. graded prlmarlly with respect to bending strength when loaded " on the narrow face. posts and timbers Structural lumberofsquare or approxlmate/y sq~ar:e cross section, 5x5ln.or I3rgerand awidth not more than 2In. (51 mm) greaterthan the thickness, graded primarily for use as columns carrying an axial load. WOOD 11 ·_··facewiath The width of the face ofapiece of dressed and matched or shlpupped " lumber. excluding the tongue or bp. .~:~~ 279
  • 276.
    WOOD vi$ual gnding The visualc:xamlnatlon arJ grading of structural lumber bytrained Inspectors accordI"4 to ,U3l1ty-reduclng ch3mt:m;t1cs ~hat affect strength, appe3raru, aural7l1lty. orutliity. nuchine rating The 9~ ofstructural lumber by a machine that flexes atest specimen. measures Its resls14na to l7endlng. calculates Its modulusofelasticity. and eIectronbI1ycomputts the approprt;te stress ~ tal:lng Into lICCOUnt such bctors as the effectsof knots. slope of graIn. growth rate, density,ana molstllre content. Alsocalled machine stress- rat./n4. 9rademari: Astampayptteato each pieceoftumDel- Indlcatl~ the asslgned stress grade. mill oforIgIn,l1OIsture content at time of manubaure. species or species group. and the ~ authority. $ lopeofgrain 1Mangle ofgrain relative to aline parallef to ~ length ofawood piece. ~wocd Wood that hasl:oeen coated or impregnated wlUI chemlc4ls to Improve Its resIstance to decay. Insect infestation. orfire. ~$are-~ wood Wood Imp~~ted with chemicals appl~ unaer ~re to reduu Its reslstanu to &eczy aM InsectInfestation. non-pre$surt-~ wood Wood coated. dlppea. or Impregnated with a presavative underatmospheric pressure. fire-retartbnt wood WOO<J tm~ wlUl minerai salts Impregna~ unkr" pressure to reduce fummablllty orcaml1ustll7llity. The salts react chemically at temperaturesl7elow the '9n~ point of wood. causlng the coml7ustlp./e vapors normally generated In the wood to ~k &own Into water and C3Mn aloxIM. 280 stress grade Arry ofthe grades ofstructural lumberfor which aset of l7ase values andcorresponalng modulus ofelasticity Is estal7l1shed for aspecieS or group of species by agrading ~ency. design value Any of the allowable unit stresses for aspecies and grade ofstructural lumberol7talned by moatfylng the base value by factors related to size and conditions of use. MACHINE RATED rW) 12 ~ ~®·S·-OR,( ~ 1650 Fb 1.SE r: 11 full-cell pr~s = Aprocessfor pressure-treating wood In which avacuum Is first drawn to remove air from the wood firersand allow the preservative to be a~ bythe cell walls. after which pressure Isapplied to force additional preservative Intothe cell cavities.1Mfull-cell process leaves the maximum amount of preservatlve In the wood. empty-cell proc~9 Aprocess for pressure-treatIng I'IO<:ld In which the pressure oftheeitterlng preservative tntr.psairIn the wood ft!1ers. which e:xpanas when the prc5sure 15 released to expel excess preservativefrom theullcavities. The empty-uO process yields adrier product wh~ ensuring deep. uniform penetration ofthe preservative. vacuum prou" Anon-pressure treatmentIn which a vacuum orpartlaIvacuum exhausts air from the cells 3nd pores ofthe wood while atmospheric pressure forces preservative Into the wood. o size-adjustedvalue AInse valuefor aspecIes or group of speciesofstructural lumber. adjusted for cr05s-sectlonalsize. base value . Any ofthe allowable unit stresses for rending. compression perpendicularand parallel to grain. tension parallel to grain. horizontal she;ar. arJcorresporJlng modulus of e/3stlclty,established bya grading agencyfor various Species and gradesofstructuralluml7er. 6a.sevalues must be adJustedfirst for sizearJ then for conditions of use. I If- x siufactor Acoefficient for modffylng the base values of aspecies and graMof lumber accardlng to the cross-sectlonalslz.e of the pIece. repetitive meml;ter factor AcM1lclent for InCre<lslng the slze- adjusted values of repetitive meml7ers. since the sharln~ ofthe load bythe pieces enhances the strength of the entire assem!1iy. repetitive member Any ofa.series of three Of mOre light framing members. asJoists or rafters. spaced not more than 24 In. (6lO·mm) on center3ndjoined by sheathing. deckl~. or other load-alstrIMI/19 members. durJtWn of load Deter AcM1lclentfor Increasing the size- adjust&! values ofawood membersul1ject to ashort-term load. since wood hasthe propertyofcarrying su!?stantlally greater maximum loadsfor short durations than for long durations of Ioadl"4 Iwrlzontal5hearfactor Acoefflclent for Incre<lslng the slze- adJu~ horizontal she.ir value ofa wood mem!ler h3v1ng shal:es. checls. or splits when their length Is ~nown and any Increase in length Is not anticipated. fln U5e factor Acoefficient for Increasing the 5Ize- adjust&! pendlng value for plankIng h3v1n~ aface ~th of4In. (102 mm) ormore. wet U~ factor Acoefficient for decre3slng the slze- adjusted values for wood mempers when their moisture content will hkelyexceed 191m use. waur-porne pre~rvatNe An Inorg.anlc. w3Ur-solu!1e compound, as ammoniacal copperarsentte (.AtA) or chromatedcopperarsentte (CCA). used as awood preservative. ACA and CCA 3fftx chtmlcally tothe wood ull wans ana Is resistant to leaching. The copper acts as a fungicide while the arsenate Is toxic to wood-destroying Insects. Wood tre4ted with ACA andCCA Is odorless and p3lntaPie. olt-bort14!: pr~rvative An organic chemlc3'dlssolvea In a petroleum 011 c3rr1er. ~ pentachlorophenol orcoppernaphthenate. tI~ as ~ wood prescrr.rt.'vc. ren~chloropheool. the Ii"105t commonly used oil-Dome preservattve. h3s a persistentodor,ls In50IuPieIn water. arid Is highlytoxic not only to fungi and Jnsects Putalso to humans aM pbnts. creo~ An oily liquidofaromatic hydm:;arWns obtained ~ the distillation ofcool tar. u~ as awood preservatlYe for marine Installatlonsodor severe exposures to wood-des~lng fungIand Insects. Creosote and creosote solutions have a penetratlng odor and render wood unpalnta!7le. l l l L L L l L L
  • 277.
    · ;. ~ femie --_._.pracket load ~oxcolumn A~~I ring or C4p plxed around ~ end ofawooden post or h3nd1e to preve:nt $~-7 j I I sefid coIu.mn Awood column ~ng of• ~Ie pI«.eof soII&-~WII Of" ~ luecI-bmin3ted tlmw.I.'SU311y squareor rect3i1<jular In cross sectlon. ~ilt-up~m Avmlcally I3mirutd wood Pe3m rtt3ae by t.a~1n!! together two or II'lCre smaller Jne#1~ wtth bolts. ~ screws. or ~ equal In strength to th.e: sum of the strengths of the Jnd1vldu41 pieces If none cfthe 13rnIrt;rt:lons are spIlc&L An eccentric load apple.d at some point below the upperend ofatimber column. the static effect ~ which Is assumed to be equlv3lent to the same load applied axially plus an addltlonal side load 3ppl1edat mld~ht_ "'-'--t--------j.--/'l "~-- polster Abuilt-up column having a hollow. square or rectangul3r cross section. --"'"'.... Ahorizon"tal timber on a postforenlarging the rearing area and reducing the free span ofabeam. tapered column Awood column having across section that diminishes alongIts length. In determining the slenderness r.rtlo fora"tapered column. the leastdlmenslon Is taken as the sum of the minimum dlaineterorleast dimension and one-third the difference ~ the minimum and ITt3Xlmum diameters or lesser 3na greaterdimensions. pox beam Abeam having ahollow. rec"tangul3r cross section. ln3aeby glUI"9 two or more plywood or oriented str.lnc:lPoard we17s to 5Jwn orI3mlnated veneer lumber flanges. puilt-up column Awood column formed Pyfastening or gluing ceverpl3tes to two or more parallel pianics. or ooxlng planksaround asoIld core. APullt-up column 15 never equal In strength to asolkl column ofcomparable material and overall dimensions. Heam Abeam made by gluing sawn or laminated veneer /umuerfbnges along the top and Pottom edges ofaSI"9le plywood ororiented strandooard wel7. Alsocalled I-~Ist. WOOD II r~ - 'H ~-- r- 5paced column Awood column consisting of twoor more parallel members separated at their ends and midpoints 17yPlocklng. andJolned at the ends by tlml?er connectors capaUle of developing the reqUired shearresistance. flitchplite Asteel plate for reinforcing aflitch ueam./ ' flitch ~e.am Avertically I1i'nlnated beam consisting of tlmuers set on ~ and rotted slk Py side to steel plates or sections. Also called fUtch tl~. 5.1ndwfch l1eam. glued-Iamln.tted timl1er Astructuralluml?er product made 17y laminating strtss-gr.ade lumuer with adhesive undercentro/led conditions. usually with the gr.aln ofanpiles being parallel. The advantages ofglued- laminated timberoverdimension lumber are generally hIgherallowable unit . stres5es.lmproveJ appear.ance. ana 3Val1auillty of various sectional shapes. Glue-1amlnated tlml1ers may l?eend-joined with scarf or flnger.JoInts to any desired length. oredge-glueJ for greater width or depth. Also called glulam. appearanu grac:k One of three grades of glue·lamlnated timber - premium. architectural. and Industrlal- based on surface appearance as affected I7y growth enaracterlstlGs, wooa fillers, ana aresslng operations. 281
  • 278.
    WOOD exterior~ Aplywood F~ con~of C·grade vt:1UrS or ~~. ron«4with afully l'r.lterprooft.Jellnefor ~nen~ expo'".xJre to ~th(;(orll'lOlsture. interior pf:Jwcod Ap~ood p;.-.d lnade with D-grade, vt:1UrS or ~~. ron«4 wfth an exterbr. ~~te. orln~rior ~ hig~MNy ......-; All exterior.ood ~ 1tM~ aresln~Per overlayOft k7t:J, sldes provIdl~ asmooth. lura. abrasIcn-resIst4nt surbce. used for concre-t.e fur:-.s. C31r1nru. artd countertops. Auk:~ ~-~overby lv,extuior ....xJ pand having a~oHc or meb~ resln oreNy011 one or both sides ~ asnxth lr.lsefOr Fiintl"4. AUbr.:MDO 'pecblty pJMi AnyofV2MouS I'I'CIOd panelproducts. as groovedor ro~41-S4wn l*Jwood.ln~nded for use as $ldir"! or ~ Uxture1--1<J ..........._..._........................- Iv1 exUrfor ~~ pand havl"4 grooves 'I,.In. (6.41rt1T1) ~paM% In. (9.5mm) wide. spaced 4 IX 8 In. (102 or 203 mrrt) on unter. 282 r.-·...·-·. group number .-l Anumber identifying one of flve groups cf ~;~~~~~~~~t-:;~S~~~ species used for the face ana Uac~ vene,..,--s ®0~~~~11._.' "!i_'~_ of a plywood panel. the species ~ng ~~~ ~:':':~"~ classified on the I7asls of rending s~..h ~~~~~~~'S.~"¥&~ and stiffness. with Group 1contalnlf1 tr.e . / : stiffest species artd Group 5 the least stff. L..._.._.....j span rating - ....--.---..-..-.--........--- Anumber specifying ~he maxImum recommenclea center-to-centerspacing In Inches of the supports fora structural wood panel spanning with Its long dimension ;!Cross three 01' more supports. ,_.., , ..",";. exposure duralrility --_.,. Aclassiflcatlon of al'OOci panel product e according to Itsabilityto wlthstar.a exposure toweatherormoisture without weakenIng or warping. extericr An exposure dural7i11tyclassification for s'tnJctural wood panels manufacturea with awaterproofgluehne for use as siding or other continuously exposed apphcatlor:ts. exposure 1 An exposure durabilityclassification for structural wood panels rrt4f1ufactured with an exterior9luelJne for use In protected construction sul7ject to repeated wetting. exposure 2 An exposure durabilltyclassification for structural wood panels ITUnufacturea with an In~rrned1ate glue/lne for use In fully protectedconstruction subject toa minimum of wettl~. "M'" RATED·:SH!ATHfHG-- 2/'16· 15/32 INCH SIZED FOR SPACING ..,~ EXPOSURE 1 1 - - - - - OOO-~ NRB· foa grade~mp ~...__..I Atr3atman: ofthe American Plywood Assoc~tlon (APA). stamped on the bac~ of astructural wooJ panel productto identifythe panel grade. thicl:nes5. span rating. exposure duraUitltyclassIfICation. mill numf,er. and NatIonal Research Board (NRB) report number. ('. I . ! ..• panel grade The graae of awood panel product identified by the face and back veneer grades or l1yIts Intended use. engineered grade The grade of astructural wood panel based on Its I~ded use as shtathl~. su!7flooring. or In the fa~rIcatlon ofI:1ox l7eams lind stressed-skin panels. I I I l l L
  • 279.
    premium grade The highest~rade of hardwood veneer. pennlttlng only afew small burls. pin knots. and Inconspicuous patches. good grade Agnde of hardwood veneer similar to premium ~rade except that matching of vencerfaces Is not requlreJ. 5-Ound grade Asound. smooth hardwood veneer free of opal defects but containing strea(s. dlscolontlon. patches. and small sound tlght knots. utility grade Ahardwood vencerpennltting dlSGclol'3tlon. strt3ks. patches. tight knots. sma" knotholes and splits. ~acking grade Agrade of hardwood veneer similar to utliity gl'3de but permitting larger defects notaffecting the strength or durability of the panel. mauhlng Arranging shuts of veours so as to emphasize the wlor and figure of the wood. book matching •............................ Arran~lng veneers from the same ft~h alternately face up and face down to produce symmetric4l mirror IlT13ges about the.JoInts Petl'ieen adjacent sheets. herringloone ITt3tching ,...................... Book matching In which the figures In adjacent shuts slope In opposlte dlrectluns. ,lip matching •............... - .............. Arranging adjacent sheets of veneer from the same fl1tch side by side without turning so as to re~t the flgure. di41mond m.rtchfng - ...................... Arranging four dl3gonally cut sh~ts of aveneer to form ~ diamond pattem about acenter. random matching ......................... Arranging veneers to Intentionally create acasual, unmatched appearance WOOD decarative plywood Hardwood-f3ced plywood manufactured for use as paneling or In cabinetry and fumlture. -:;;~~~~~~ ..-..• veneer Athin shectofwood rotary cut. sliced. or s~wn from alog or flitchand used as a superlar facing to Inferior wood or bonded ~ether to form plywood. fi9ure The natural p3ttem on asawed wood surfaceproduced ~ the Intersectlon of annU31 rings. knots. ~ur!s. rays. and othergrowth characteristics. ) I r cro"uand A~er of veneer Immediately adJacent to and at ~ht angles to the face piles Ip a plyNood paneL core The centerofaplywood panel conslstl"!) of veneers. sawn lumber. or composition board.. bandi~ The solid wood stock extending around the sides of aveneered pane!. concealln!l the COf'e and faclflt3tln9 the shaping of the p3nel edges. rotary cutting The rotatl"!) ofalog against the cuttl"!l ed:1eof aknife In alathe. producing a continuous veneer with abold. variegated ripple figure. fbt slicing The longitudinal slicing ofahalf-log parallel to afine through Its center, producing a veneer having avariegated wavy flgure. Also called plain slicing. ~u.1rter &licing The Iongltudlll3l slicing ofaquarter log ~ndlcufar to the annU31 rings. producing aseries of stra19ht orval'leJ stripes In theveneer. half-round ,Ilcl~ The slicing ofaflitch mounted off-center In the lathe. sl19ht~ across the annU3( rings. proauclng characteristics of both rotary ctMlng and flat sllcln~ flitch Alongitudinal section of alog to becutInto veneers. rift cutting The sllcln9 ofoak ana similar species perpendicular to the conspicUOUS. ndlatlng rays SO as to minImize their appearance. 283
  • 280.
    WOOD oriented strandPo.1ra OP---'-'---'--"--'---',_ AnonYe~wood panel product " co:nmonly tl:Sedfor ~thlng and as scbf1ooring. maae ~ bonding thru odlve ~ of ~ thin wood stranas under kzt3napressure using 3 waterproof ~Jve. n-~ surface strands are aligned pmlllel ta the long axis oHIle panel. making the panel stro~er along Its length. Am-~OS6 w.fe~rd .--.---._.--...._- ..----.-...----'-', A~nveneered panel product composed of '. b'¥. thin WOO<:Ifla~ Ponded under heat ar.apressure wtth aw;;!;erproof adhesive. The planes ofthe W6fers are generally ~ted pmllel to the plane ofthe panel Put thelr~nin directions are random. INking the p-anelapproxlmatefy equal In strength anastiffness In all directions In ::;=~;:~~.--.-----------.--------."-.- ~:~~~~~~~il~i~~ Awooc:l par.el productconsisting oftwo '-- face v~ Ponded ta a reconstituted wooJw-e. partlcle!1oo.ua ~- ...-----.-.--.-- .-----.--- ....'.. Arcnven~..d wood panel product IT13M ..... by Ponding $ln3n wood particles under heat '. and pres~, commonly used 35 3 core m1teri3f for ~ratlve panels and w~wort. 3na 3S uMer!ayment for floors. Also c;; neacbipboard. parallel stnInd lum~ .-----.----- Astructunlluml1er product made I1y Pondlng ~ ~rrowMXld strands ~r ur~ hrn;ldpressure using a l'r7terproof~t5Ive. Pa,..llel strand lumDer 15 aproprle'" ...ry product m3rketed under the tf3~ri::. Par.abm. used as :Ieams and columns in post-ana-Pea", constructlcn 3nd for ~ms. headers, and Iltr"..ds In IIgh~ fl'3~ construction. Alrbr~ PSt ur.;in.aua ~neer wml1er _.-....-.-- ...--.- '--'. A stru~!4i1 lumDer product made I1y ronding Iaye:-s of wood veneers together ~ he3t ....apressure using awaterproof ~e. H..-'il'~ the!r2ln of311 veneers run lsi the S41ne ~dNl direction results In a~M 15 s~ when~ loaded as J beam or00 Ioadedasa plank. umblaW~ lumber15 marteted under V4 rloIIS mnd rg meso 3S MIQ'Olam.and used as heade:rs and ~ms Of' as flanges for prtf;aln-bt.ed wood I-joists. ADbr.: LYL fiP,em,ard A~ng m...~' Irtac:ieofwood orother pl.ant ftf,ers ~ with alnnder Into ~ldsheets. h.1rdPoard Avery dense, compresse.d wood flPerWard. -umpered Iurdl10ara ~ ..---- --- ----- --.,. --. -.-- ...... . A Jurlhoard tmpregnated with 3 drying oil orotherc.da'lzlng resin 3na Daked to Impt"Ol'e Its hardness and moisture res1st.1nce.. M.1""nite Tr-akm3rk for. Dranaof tempered ~rdr03rd. Pt.9-~ard T~rk for 4 Drand of tempered h4r~rd havir~ regul3rly spaced .~oratlons W..o which I-rooI::s may Pe In~r'"..ed for t.!-~ st0r3~ or display of arrcles. 284 L I , J 1 J I J J 1 I I I ! , I .. I l. I l.
  • 281.
    ~ f ,'ll,:,,':,.' ::... ,.(- i o I> I I I Aa A3ron's rod185 aliacus 180 Amm'slaw 44 amslon resistance 165 ams1cn-reslstance Index 165 a~1ssa 108 al>solute humkllty 120 a~ute scale 117 a~ute temperature 117 a~ute zero 117 a!7scrt>er 124 absortnng well 223 al?sorptance 143 aDsorption 18,160,165.231 absorptlan Ded 201 absorptlon coefflclent 231 a!7s0rptlan fleld 201 aDsorptlon refrl¥ratlan 124 absorptlan trench 201 al>sorpt1cn untt 231 al>stract 52. 59 al>stra:t expressionism 135 ADulb 144 abutment 13,206 Ab:isslnian well 221 acanthus 181 accelerated agIng 165 accelerated weathering 165 acceleratlan ofgravity 167 acceterator 43 ClccerTt tIghtlng 148 access 57 accessfloorl~ system 93 accklerTt 59 accnmatlu m accommodatlon 264- accordlon door 62 accouplement 179 achromatIc 39 acorn nut 84 acoostlcalana(ysIs 230 aCOlJstlcal cellI~ 31 acoostlcal cloud 230 aC01Jstlcal design 230 acoustlcal door 65 aC01Jstlcal plaster 188 ac01JStical tile 3I aC01Jstlcal treatment 230 acoostlc clecklng 93 INDEX acoustic mass 232 acoustIcs 230 acre 166 f_~250 acroterlum 250 acroterlon 250 acrylic resIn 192 0 acrylonttrlle-(;utadlene-styre~ 192 act curtain 257 actdrop 257 actlnk; ray 187 action 58 active earth pressure 100 active leaf 62 active 5Olar-heatlng system 226 acute 109 acute angle 108 adaptation 148 additive 43,52 additive calor 38 address 59 adhered veneer 156 adiabatic cooling 120 adIabatic heatlng 120 adjacent spaces 218 adjustable doorfra me 65 adJustable tie 156 admixture 43 adobe 34 3d50rptkln 165 advancing color 39 aerator 197 aerial perspective 72 aerodynamk; damplng 245 aerodynamIc oscillatlon ,154 aesthetics 10 A-frame 104 aggregate 43 agitator truck 46 agora 250 A-grade 282 agreement 54 alrrome sound 230 air cha"'!.Der 198 air change 127 air conditioner 124 air condltlanlng 124 air curtain 62 air cushion 198 air-dried 2Tl 285
  • 282.
    INDEX alrdua 122 Americanstandard channel 172 anti-scald faucet 197 alr-em;c,lnl~ agent 43 Americans with Dlsal>ilitles Act 51 anvil 102 alr-~lnll4 portland UlTlef1t 42 amorpnous 161 apartment vulld1ng 139 alrgap 198 amortizement 262 apartment house 139 alr-h4nd11114 unit 125 amperage 74 apophyge 181 alr-lnflattd structure 168 ampere 74 apophysis 181 alrmile 166 amphlprostyk: 251 apothem 109 air-supported structure 168 amphitheater 256 appearancegr.lde 281 air swftch 79 amplitude 152, m appearance lumber 279 alrtermlnal n anaglyph 182 appentlce 208 alrtrap 198 analogous wlor 39 appl13nceclrcult 77 air-watersystem 126 analogy 59 appliedforce 97 airway 119 analysls 58 applique 182 aisle 35.257 ana/ytlc3/ dr.lwing 66 apron 257. 271 alalr.Jster 1M ana/yttqlU! 67 apron plec8 235 al~arlum 189 anamorphosis T3 apse 35 al~ronze 175 Anato/la 128 apsis 35 al~rnum 'lJ6 anchor 65.206.269 aptml251 alclaa 175 anchor.lge 202.206.242 aquifer 196 a-Icove 216 anchor 1lO1t 267 i_;~ ~de 247 anchored veneer 156 ~nlng punch 86 ancon 186 arror27 alignment 54 ang 254 arc 00.110 at~nI11CITt valve 199 angel Ilght 275 al'C<lae 36 alkyd paint 187 angle 108. m arcature 36 I alkyd resin 187 angle !?ead ·190 arc-Poutant 262 l aI/-air system 126 angle cleat 174 arc douUleau 263 allee Zl angle clip 174 arch 12 Allen he3d 83 angle Iron 172 arch 3ct:On 13 l allowaPie PearIng capacity 100 anglejoint 140 arch axis 13 anow.l1Ie bearing pressure 100 angle ofIncidence 143 archmce 210 almblehld 240 angle of mtectlon 143 arch corner bead 190 allowable pile load 102 angle of refraction 143 archetype 59 l allowable soli pressure 100 angle ofrepose 210 arching 100 allow3!71e stress 164 angle ofsflde VO architect 48 allowable stress des~ n 240 angle t1le 214 architectonics 11 allowable unitstress 164- angle valve 199 archlt«turallmmzt 175 L alloy 170 Anglo-Saxon architecture 131 archltectural concrete 47 alloy stu! 170 angstrom 142 architectural hardware 114 anure 37 anhydrous 188' archlU.ctura/.terra cotta 34 an-water system 126 anlm3tea 217 architecture 9 L .Imem.ar 250 anion 161 archttrave 179. 186 alph.1-~ mss 175 anIsotropic 162 archlvolt 12 ~ 35.250 anneal 169 arch ordu 251 alternating c~nt 75 annealed ~1aS5 112 arclQte 36.106 l ~e58 annual rl~ 276 arcwelalng 00 .1tern3tor 75· annular vault 263 are 166 almude 109.226 annulet 180 area 166 afto..reIIevo 182 annuncl2tor 81 ~- 'iC•• .- ~ • alumll1.3 175 anode 74 3~or L afumlnum 175 anodize 171 area pbn 69 aluminum Vms 175 anomaly 54 area source 147 aluminum Pronu 175 anse de panier 14 a~23 alumlnum.ox!de 175 arlta 251 arel13 thm:er 257 L alure 37 antei'lx 2...1iO arecstyle 179 3malaka 253 anteroom 216 3rt ofthe CO(enant 250 aml7iance 217 anthemlon 1M armature 75 aml1lent sound 231 anthropology 11 armored C3~1e 78 l aml>lgulty 59 anthropomlltry 57 anis 185 amro 35 anthropomorphize 57 arris flliet 214 amron 35 antic 183 arris gutter 209 am~latolj' 35.37 antlclasttc 219 amstlle 214 L amenity 58 antltorroslve paint 187 art 10 American rona 20 antlcum 250 'MD/lc({:G~ , . - .-.-,:.:::..-::.,;~... .! Amerfc.1n standard !:Ieam 172 antlmony 175 artesi3n well 196 L 286 L
  • 283.
    .' -: INDEX artlcula~ 141 bacHlowvalve 198 base anchor 65 artrflc131 horizon 247 background 265 baseboard 186 artifk;laIsky 150 background noise 231 ba~ard hea~r 123 articulation 52 background noise level 231 basecoat 187.188 Art Nouveau 134- bad hearth 87 base flashing m Arts and Crafts Movement 134- backing 95.156.211. 267 base lsolatlo~ 245 NS8~ul~ 144 backing board 191 baseline 72.246.247 ashlar 158 backing grade 283 basement 23 ashplt 87 backlight 148 basement wall 266 ashptt door 87 back plaster 156 base metal 86.170 aspect 59.264- ~ackset 116 Inse molding 186 aspect ratio 109 ~H!P basepla~ 174 asphalt 215 ' ,""; splash 198"'" Inse screed 190 asphalt mastk:: 176 backstage 258 base shear 153 asphalt shingle 212 backup rod 178 Inseshearcoeff'.clent 153 Assyrl3n architecture 129 backupwall 269 basesheet 215 astr3gal 62. 185 back vent 200 baseshoe 186 asym~ 110 backwatervalve 198 uase value 280 atlas 250 baff1el46 basic wind speed 154 atmosphere, 167 baguette 185 basmca 35.251 atmospheric pressure 167 ualley 98 basket-handle arch 14 atom 161 Bal:e!l~ 193 ins-relief 182 atomic num~r 161 balance 55 basso-rellevo lf12 atomic weight 161 balanced door 62 bastard pointing 155 atrium 26.35.137 balanced sash 272 bastard-saw V8 at~nuatlon 230 balanCed section 202 bastlon 98 At~rberg hmlts 225 baIaneed step 234- bat 19 attic 23 batconet 273 bathtuu 198 Attlc base' 181 Uatcony 24.258 Uatted surface 237 attle ventilator 127 Uakf3chln 35 Ua~n 214. 2fJ7. 268 audio frequency 229 ualdaquln 35 ba~"door 64- auditorium 258 Uallast 145 Uatten seam 214 audltoryfatigue 229 173II-rearing hinge 115 ba~r 270 aureole 183 ball cocI: 198 Va~r roard 221 t1~~a'~ Ualtfiower 183 ba~rplle 102 automatic door 62 Ualloon frame 267 Uat~ry 74.200 :wtomatlc door 110tt0m 114 baluster 235 !:>at't l"su~tlon 119 automatic flre,extlngulshlng system 90 u<llustrade 235 Uattlement 99 autumnal equinox 226 Uand 228 Bauhaus 135 auxll13ry rafter 210" Uandage 61 bauxite 175 avant-garde 135 banderole 1M bay 24.239 average t,ransmlsslon loss 232 Uandlng 283 Bayer process 175 award 49 Uandrole 184 baywndow 274 awning 274 banister 235 B~ulu 144 awning window m Uank W bead 86. V8. 185. 214 axial force 162 baptlsm 35 ~ <lnd reel, 185 axlalload 162 Uaptlstery 35 read molding 28 axlalstress 162 Uar 172 Peak 185 axis 55 UarUacan 99 be<lm 15.149 axis ofausclss3S 108 Uargeroard 211 ~m-a~lrder slau 204 axis ofordinates 108 Uai~e couple 211 ~m ce!l!n~ :;0 axis of symmetry 55 lr.lrge course 214 ~mflll93 axonometrlc 71 UarJoist 173 ~mpocket 93 axonometr(; projection 71 UarX V6 reams and stringers 279 azimuth 246 Uarometer 167 Peam seat 85 'r~~re.;]$~ Uarometrlc pressure 167 beam spread 149 Baroque architecture 133 i1earl"9 241.246 6t? Uarrel roof 208 i1earlng stiffener 173 bad,271 ~~ bearl"9 stratum 102 17acl:band 271 Uarrel vault 263 i1earln9 sUess 241 backbend 65 barrler-free 57 bearing wall 266 17ackched 114 Uarrow 248 be3r1ng wan sys~m 244 uadflll 222 ~artlzan 99 beauty 10 bacHlap hinge 115 uartracery 275 Beaux Arts architecture 132 17adflow 198 base 109.153.179 ~d 155 287
  • 284.
    ,-- :t INDEX bedding 113 bleeder123 rottcrn carclearanee 80 Deadlng plane 2:37 bleedervalve 123 !1ottom rad 64 Peajolnt 155 !?!eedlll9 46 !?oulder 224 Pea molding 179- blind 24 round3ry calk 29 PearOO: 224 bllndarcacle 36 routel 185 lleehlve tomb 248 bltnd C3slng Zl2 row 7]8 b-ehavloral scIence 11 blind door 64 rower 99 Belfast tnJS5 261 blind floor 92 Bow's notation 260 Belgian 261 blinding glare 148 rowstring truss 261 ~11 103,181.199 blind mortlse 141 bowtel 185 befl-and-splgot 199 bllnd-na" 82 rowwlndow 274 l>ell arch 14 blind row 257 box~m 281 - Pell bucl::et 103 Inlndstory 24 roxcolumn 174,281 l>elow grak 222 Inlnd wall 266 Poxcornice 213 Peltcoorse 159 block 26 Pox culvert 223 l>e~ Zl block flooring 94 boxedframe 7J2 I b-enta 35,250 Inocklng 2fil box gIrder 173 J. Pench mart 247 !?Ioom 169 boxgutter 209 b-ench terrace 222 11100mlng 171111 169 !?ox-head wlnclow 272 bending 163 plow 221 boxrull 82 Pending rnem!?er 238 plower 125 !?ox office 258 Pending moment 15 I7low molding 192 PoxslU 267 Pending stress 15 pluela~1 213 boxstalr 235 l>entl05 Inuestone 236 box strike 116 Pent approach 255 boara and Patten 268 6oyIe'slaw 167 ~ntPar 203 boardfoot m In-ace 243 b-entonlte-224 boarding 268 In'aced core 245 Penn 98,22:1 board measure _ m PraceQ frame 104, 107.243 ~mouillequatlon 154- boards 7]9 mcedtul>e 245 Btrnoullrs theorem 154- boas~ surface 237 Prace mold1~ 185 ~tcn 3rtr.e 202 BOCA ~tIonal Bulk:llng Code 51 bracket 210,235 Deton!mzt 47 body 32,111 bracket load 281 Pevef 116,141 roR 221 Prad 82 bevc:l51di~ 268 poiler 123 In-anch 197 B-gl'3de 282 bolectlon 268 mnch clrcu~ n ~lng 49 bolster 12.45.281 mnch drain 200 ~ 198 bolt 84.116 In-anch Interval 2QO ::~~~~ roltel 185 mnch yen t 200 rond 2fJ, 157, 161. 202 Pr3SS 175 bilateral symmetry 55 bondl:>eam 160 - mttlce 99 bi~tlon 268 rond-Peam blOCK 160 I1rau 86 ~levef 138 bond breaker 178 lrn1kdown volta~ 78 ~ bondcoat 33 '~-. .' Pim" rona course 20 ~ fits 212 i:1imeta11Jc element 121 Ponded 4a break hM 68 Il ~. 107,158.187 t?onded posttenslonlng 207 ~tl7eam 107 tindlng!:>eam 107 ronaea temzzo 94 lrn1stsummer 107 binding rafter 210 t?ondertze 171 breast tlml>er 45 binocularvlslon 264 bonaface 178 breast w.an 7]0 &in wan ZlO bondlng a£!tnt 94. 190 ~.t38 I bird's-l:>e4k 185 t?ondlng layer 204 1nict18 Dirc::l's-mouth 211 rona plaster 188 Inict,rade 18 l ~ult 32 !?ondstone 158 I1rId: moIcIl~ 271 ;;S<ue 32 rond stress 202 Inicttype18 l ~ue-flred 32 bonnet 87,122. 199 brlctwort 20 ::t 116 bonnet tile 214 ~257 ~ 113 Pool: matching 283 ~lamp 147 ~rren 215 Poot 122 ~1~92 b 7bcl: label 213 border 257 ~joInt 141 ~d:plate 172 borrowed light 274 Imghtness 38.142 :-30: 169 borrow pit 222 Imghtnessratio 148 ~~~~H~ boss 159,263 lnillbnt 38 I :>lankJamp 63 Boston hlp 213 Brine" numper 165 ~ ::'ast furnace 170 Boston rk:Ige 213 lnise-solell 27J ;ust-fumace slag 170 rottom Par 203 British thermal unit 117 I U 88 I i i 2
  • 285.
    ~ O.'Y> -:t ·t .-. INDEX :;- lnit't!eness 164~utterfty weJge 140 cantilever wail 270 In-tXen ped1ment 186 ~tt hinge 115 canton 266 ~n rangewOlt 158 ~ttjoint 140 cant strlp lTl ~nze 175 ~tt-lolnt gl3zlng 113 cap 199 Bronze ~e 128 ~uttonnead 83 cap~ead 113 Vroom flnish 47 ~tt plate 174 cap ~Iocl: 160 ~wncoat 188 ~ttress 262 cap flashing 177 ~ttress pier 262 CapeCod 138 ~utts and Pounds 246 capillarity m ~tt s~lce 203 capillary action 177 ~ttwekJ 86 capillary attractlan lTl l:J.Jck 63 Butyl 193 capillary ureal: 177 Ducket trap 123 ~utyf ruul?er 193 capital 179 Ductllng 40 BXcaDle 78 cap nut 84 l>uckllng load 40 By.z.antlne architecture 130 cap plate 1{4 Bu.1dh. 253 cap receiver lTl Bu.1dhlsm 253 Cc cap screw 83 Buffab!1ox 196 caulnet drawing 71 cap sealant 113 ~.rffer 80 ca!1le 28.78 cap sheet 215 l>um 46 ca1le loop 168 capstone 159 l:J.J~!e he3d 83 caD~ molding 185 caravansary 252 ~Ji1dlng 21 calXe-restralned pneumatlc structure 168 carl1lde 175 l>uildin.gmcl: 18 caPle-stayed structure 29 carron 170 l>uikil~code 51 ca~1e structure 28 carbon ~I 170 ~Jildlng drain 200 cable support 242 carframe 81 l>uIWlng afflclal .49 cal>(etray 78 cam 248 l>uikilng paper 268 CA bulp 144 Carolingian architecture 131 ~iWlng permit 49 c.uiastral survey 246 CarpenterGothic 134 l>uikllng separation 153 cadmium 175 carpet 95 l>utld1~ sewer 200 calm 248 carpet cushion 95 l>ulkilng stone 237 cals50n :30.103 carpet pad 95 D-Jlkilng storm drain 223 calcine 42 carpet tlle 95 ~Ikilng sUlrm sewer 223 C3lclnea gypsum 188 carriage 235 l:J.JilJ1ng trap 200 calch.:m hydroxide 157 carriage l70It 84 ~ild1ng typefactor 153 calcium oxide 157 carriage porch 25 Duilt-up ream 281 calendering 192 Cartesian coordinate 108 ~ilt-up column 174.281 calfs tongue 184 Cartesian space 217 ~Itt-up rooflng 215 call1>utton 81 cartoon 67 . l:J.JID 103.144 calorie 117 cartoUGhe 183 DuI1:-actlve structure 238 calx 157 cartriJqe fu~ 76 t<J!(head 23.45,80 cam 116 carved work 237 P,JiXlng 165 camber 15 caryatid 250 l>ul:: modulus 162 camber bar 87 cased openlnf! 63 l>ullflo41t 47 camber piece 12 cased pl~ 103 l>u"~ 185 camrersllp 12 case-h4lrden 169 l>uI1nose Plock 100 cambium 2:76 casemate 98 l>unnose comer Dead 190 C3melDack truss 261 casement 2J3 l>ulrs nose 185 C3m hand~ 273 casement door 64 l>un stretcher 19 c3mouf1afJe 265 casement stay m l:>umper 114 C4mpanl!e 36 casement wIndow m l>unkd tures 245 C4mpcellln~ 30 casln~ 63.103 l>u"43low 138 cancela 35 ca~ln~ l1eati 190 l>un~lowcourt 138 candela 142 caslnf! nail 82 l:>ur~n 221 c3na!e 142 cas~ll3ted beam 173 ... canatepower 142 cas~ll3tec:f nut 84 c-us b3r 76 canalepower distribution curve 146 castlnf! 169.192 l:J.JS duct 7PJ C3nephora 250 castlng Pea 206 DushhammereJ flnlsh 47 C3rrt 109 cast-ln-pl3ce concrete 46 l>ushlnf! 78 carrt bay wlnaow 274 cast-In-place concrete pile 103 PtJsway 78 carrtharus 35 cast-In-sltu concrete 46 ~tsu 255 cantilever 17 cast Iron 170 ~. cantllever ream 17 castle 99 cantilevered step 235 castle nut 84 Pt;tterfly 140 carrtilever footln~ 101 cast stone 2:37 P,J twfly roof 208 cantilever mhod 105 Catal Hiiyuk 128 289
  • 286.
    INDEX CJtaiyst 192 C-grade282 chromertat.t 171 CJtcn ~sin 223 chain 247 chromium m CJten2ry28 chair 45 chuda 255 C<ithe.dral 37 chalrr.all 1e6 chuman 255 C3therir.e wheel 36 chaltya 253 chut.t 46 C3thews 181 cham!?ergrave 243 clrortum 35 cathode 74 chamfer t~ CIE 150 c3thotk ~n rn chamfer strip 45 cinder 170 C<itlon 161 chancel '37 Clnquecento.rchltecture 133 CJulak 81 chandelier 147 cinquefoil t:l5 CJullculus 181 ch,lntry '37 circle 110 caulk 173 chaos 54 circuit 74 C<iusew;y 249 chapel '37.99 circuit ~ket 76 c;au5tlc I!rcs 157 chapter '37 circuit vent 200 C<iV311erdr.iwlng 71 chapter house '37 clrcular mH 166 C4Vetto 85.249 charret'te 58 clrcular stair 2'34 I. cavetto comlce 249 cha~ 122 circulation 213 cavity w.. 156 chase mortlse 141 Circumference 110 ~132 chat-sawn 237 clrcuII'IV311.ite 98 C~f!,. 144 chattrl 253 cistern 196 t. cei~ 30 Chavln 129 citadel 99 ceinn~ C3'I'tti 149 check 7:13 city plannln§ 10 cei~Jc*st 211 cheaer 1M clvUlutlon 128 ull74 checkered ~te 172 c!addlng m l ~ 250 check rail 7:12 ct.lm 'l7 ~r 23 check thr'03t 'l71 ct.pboard 268 ~wbr~lng 93 check valve 199 ct.ssA 89 u{lular M 101 chee!c 209 class Aflre 90 l celtular w.1 ZlO cheek cut 211 ct.55689 cdhJlose Zl6 chemlQl bond 161 cbss6flre 90 Cdslus sale 117 chemln-de-ronk 99 ct.ssC 89 Wft:lc cross 183 chevet '37 ct.ssCflre 90 cement ~2 chevron 1M classD 89 l ctmelTt~ 44 Chicago School 1'35 ct.ssDflre 90 caT1tnt-~ II1OI"t3r 157 chlgl 255 class E 89 cement InOI'br 157 chlllec:f water plant 125 C1asslc 130 ~~43 chiller 125 C1assblarchJtuture 130 l ~ tt:nper 188 chimney 87 ct.sslclsm 133 ~ph 251 chimney arch 8~ ClassIc ~I 133 u:tter no. 111.217 chimney l:oar 37 ctay224 u:rteri~ 12 chimney Preast 87 clay loam 224 l, ~ri"'4shlrn 113 chimney C3p 37 c~nout 157.200 ~ 63.1'0 chimney cheel: 87 c~rsky 150 ~ofplty 96 chimney comer 87 c~span 15 ~ofN55 96 chimney eff~ 127 c~1'StoI)t 'l74 !o center orresls~nu 244 chimney pot 87 ek:Jt 214 l ~ofr'.31d1ty 244 ~ C~V3ge plane 237 center of risbn 72 cleres~ 'Zl4 ~~2E7 china 32 cb1s 84 f ~sa~ 117 china clay '32 c!!:;1P!rifonn 45 L ~166 Chinese archlt«ture 128 eM 82 CCIW3l *c.on&tlonJ"4 125 Chinese ~uer 187 cllnUr 18.42 cen1"nIzd5 rivision n chino/serio 133 cllpjol'" 155 untnI~ t21 chlplmrd 284 cllthral 251 L centnllud ~anIzAtlon 218 Chl-~ 18'3 clolsttr 37 ~~n 127 chisel point 82 cloister9~ '37 ~96 choir 37 c~vau" 263 l ceramic 32 chord 110.259 close 37 cer.mlc~ '32 chorten 25'3 closedcornice 213 cer.mlc JI'lOSalc tIfe 33 chorus 256 clostd pbn 216 ..42;'_ Chou 129 closed strill9 2.35 cenmlcware 32 chrismon 183 clostdvalley 212 l cercls256 Christianity 35 close §raln 'l78 ~teofoccupancy 49 chroma 33 closa- 20. 155 GeS5pOOf 20t chrome 171 closet bend 199 L 290 r
  • 287.
    closure 20.265 cloudy sky150 clustered organlz3tion 218 cluster housing 139 cooch screw 83 cool tar 215 coarse aggregate 43 coarse grain 278 coa~ texture 278 coaxial ca~le 78 coVble 224 cob~lestone 224 cock bead 268 cocking piece' 213 Code ofH3mmurabi 129 coeffiGlent ofelastlcity 164 coeffiGlentofexpanslon 165 coefficient ofheat transfer 118 coefficient ofutilization 149 coffer 30 cofferdam 221 coherent 54 coheslonfess soil 225 cohesive soli 225 coil 75.126 coln.ck:lent 109 coI:e 170 cold-air return 122 cold-cathode lamp 145 cold-draw 169 cold-process roofing 215 cold-roll 169 cold-won:lng 169 coI!3ge 54 collapse mechanism 243 collar m col~r~m 211 collarJOint 155 collar t1e 211 collector 226 collegiate Gothic 134- collimate 146 coIllnearfo1Us 96 COOnlalarchltutJ.;re 133 colonial skiing 268 coIonn3de 25 color M color circle 39 colorfast 187 coloring ~ent 43 color rendering InJex 145 colorscheme 39 color temperature 145 color triangle 39 color wheel 39 column 40.179 column tr.1se 85 column cap 85 column capital 205 coIumn-cover-and-spandrelsystem 269 calumniation 179 column strip 204 coIymbethra 28 combed flnlsh 189 combinatIOn door 64 comblnatlcn window '2:14 combined footing 101 combined ~er 22.3 combined st..esses 41.163 combplate 81 combustl~ 88 combustiblt construction 51 combustlo., .Ir 121 comfort e:1'~'elope 120 comfort zor.e 120 commerciJIbronze 175 commcJrty 10 coml11OT1 alley 175 common rona 20 common brlsS 175 commonm 18 common dovetail 141 coml11OT1tap 212 common ~rithm 229 coml11OT1 iU~ 82 common~ 210 commons 139 common vent 200 communlc.Ju 58 communion t3ble 35 compact fluorescent lamp 145 comp<lCtlon 225 comp~nt3r'j color 39 comp!exlty 54 complwlum 137 compontrrt5 of afexu 96 composite column 203 compost".e decl:lng 93 Composite Ct"aer 181 composite p-anel 2M composite pile 102 composite trJSS 261 composlte;;-zIT 156 composition 53 compourJ column· 203 ccmpressiWrty 162 ccmp~{1 162 compression g3sket 113 compressicn rralPer 238 compresslo11ll1Ok1Jng 192 compression reinforcement 202 compresslon sp!lce 203 compression test 44.162 comprtS$lv~ forc;e 162 compresSNe refrlgeratlon 124 compress.Y~ strain 162 compresslve stress 162 compres:.or 124 CO!C.3tenzt:on 55 concave 110 concaveprot 155 concealed gr.d 31 concealed r.i~ 115 concdYe 58 concentra';.tJ load 151 concentric 110 concentric te~don 2fJ7 concept 59 conception 67 cor.crete 42 INDEX concrete Plod: 160 concrete Prick 160 concrete masonry unit 160 concrete mixer 4t3 concrete na~ 82 concurrent forces 96 condensate 176 condensatlon 176 condense 161 condenser 124 condominium 139 conduction 118 COMlJCtIvtty 74 conductor 78 condutt 78 cone 45 conePolt 45 cone of ,islan 72 corrftguratlonlsm 265 Confucl3nfsm 129 conge 185 congruent 109 contQl vault 263 conic sectlon 111 conifer '2:16 connected bad 77 con~ 59 connector 79 conok:l 220 conslstency 44 conso~ 186 con501WtIon 46. 100 constancy 265 COItstant-alr-volume system 126 constrJCtlan 48. 49. 50 constructlon class 51 constructlon docunnents 50 constructlon drawings 68 construct.lonJolnt 178 constroctlo11load 151 constrJCtlo11 managemer 48 const~ type 51 ConstructMsm 135 consultant 48 corrtactpre:ssurelOO content 5:3 contl~~1 sating 257 contlnutty 54.265 contlnutty of outline 72 continuous ~m 17 continuous footing 101 contlnuous hinge 115 contlnuous plate 194 contlnuous slav 204 contlnuousvent 200 contour 66 contourar.awing 66 contour Interval 69 contour flne 69 contract 49 contract documents 50 Wltract drawings 68 contractlonjoint 178 contract nmtt 221 contractor 48 291
  • 288.
    INDEX contrad1ctlon 54 corrosion171 critlcal ~d:hn9 stress 40 contr.;st 54 corrugatea fastener 82 critlcal density 225 contrast ratio 148 comJg3tea metal 172 crttlcal helght 210 cent:r!l1utory area 241 corrugated rooflng 214 crttlcal section 202 Contrive 58 cortlle 26 critical void ratio 225 centro/joint 178.190 ~nt 109 crocket '37 control-joint ukxk 160 cosine 109 cromlech 248 controned flll 222 cosine law 142 cr'OOk V8 control panel 00 cotJngelrt 109 cross 183. 199 convectlon 118 coulomD 2b crossbana 65.28'3 convector 123 counterbore 84 cross !?raGIng 243 conven1enu outlet 79 countMn-ace 259 crossl7lidglng 92 I convergence 73.264 cOJnterfushln~ 177 cross-corrtcurarawlng 66 converslon!1umer 121 counterfort 270 crosscut 218 t conversion taDkl 166 cou~ht 150 cross fortnee 183 convex 110 counterpoInt 54 cross-~met 115 l cool :39 coonterpolse 55 cross grain 218 coolant 124 countersc3rp 98 cr0ssh2tch,lng 66 cooling degree-day 124 countersink 83 crossing 36 cooling lo3J 124 counterwelght 00 cross-lapjoint 141 coo/IItg medium 124 couple 96,211 Cr05S!~ht 150 l cooIlng tower 125 couple-clo~ 211 crossover 199 co-op 1:39 coupUng 199 cross sectlon 70 coo~lve 1:39 course 155. 2M3 cross tee 31 cooperative apartment 139 coursed ashlAr 158 cross V2U~ 263 L coordinate 100 coursed ruuble 153 cross ventlbtlon 121 coordln4t« 116 court 26 crowfoot 68 copal 187 courty.Ira 26 crown 12.216 copedFlirt 140 CMlent rona 161 crown gbss 112 L copestone 159 CCJ.te 30. 1<55 crown molding 186 ~266 UNe ceiling 30 crown post 261 coping DIod 160 core ~htlng 147 crown tile 214 coybnar folUS 96 corer 202 crowstep 159 L copo~ 192 COru3ge 187.212 crud: 210 copper 175 corerlng pcwer 187 crushed gnvel 224 copper roofing 214 corer plate 173 crushed rock 224 ~1155 cowl 87 crushed stone 224 L COfi,eI arch 14 C-plu~ea 9~ 282 crypt 37 ~!l.ig 155 Cf').l49 crystai 161 COft,eI V3 u~ 262 crnW~lon '202 cube 111 carine ga!7le 159 Cr3cklng load 202 culnc me3sure 166' L ~159 cradle V3utt 263 cuPl$ll1 1:35 . cord 79 cr3mp Iron 158 cul-de-four 61 cordon 98. 159 crawi space 23 cuU l8 core 65.75,100.225,283 cml~ 47 cult temple 249 corWo.rd 191 creative ~In4tJon 59 cultu~ t2a l coreUst 44 c~1vfty 59 culve~ 2ZS Corinthian order 181 creep 165 cup 218 cmUIe 95 cre~DoIt m cupob 61 corner~ 190 crene! 99 curb 208 , comer~ 160 crtne~~ 99 crirox 196 L comer roard 263 crenelle 99 curbcod: 196 cornermce 267 creosote 280 curbcut 221 COI"1'Ierbth 00 crepldoma 250 curb roof 208 L coc-ner post 267 crescent 139 curb stop 196 comer reinforcement 190 crescent truss 261 cu~ 47 cornice 179.100 CriD 210 current 74 cornice ~htfng 147 crl!7i:llng 270 curtan 235 L cornice return 213 cri1r.otOfi: 2:10 curt.lIs1:ep 235 corona 179 cricket 209 curt.1n 98 COfOf1et 186 cripp~ 267 curt.ln wan 269 corporation cocI: 196 Cripplepcl: 211 CUM 110 L corporatlon stop 196 criterion 58 CurvlUnear style 132 correctlon hne 24t; critlcal angle 233 curvlhne.r t:r3cery 275 corrkIor 216 critlc.1l ~cknng load 40 cushion 102 L 29} L
  • 289.
  • 290.
    INDEX diversion rox 201dovetail hl~e 115 dropW 199 diversity~r 77 dovetaliJoint 141 drop wiMJW 272 Jok~heJron 111 dowel 85. 178 drum 6~ 180- doJec3style 179 dowefpln 85 drummp 198 Qog-~ sbir 234 downdraft 87 drumw.U 22J dogtooth 1M downfeed dlstrllnltlon system 197 dry-lnlrb temperature 120 dogtrot 138 downllght 147 dry glnj~.g 113 dolly 00 downspout 209 drying oil 187 I Doity Varden sidi"4 26a draft 58.67.87.237 dryin9 shrinkage 47 I ! dolmen 248 drafted margin 237 drym!x 44- j dolomite 236 drafting 68 dry-paa 174- acme 60.205 draft stop 89 dry-pipe system 90 aonJon 99 dragged ftnlsh 189 dry-press process 18 ·door 62 dragon ~m 211 dryret.lJm 123 doorl;tevel 63 dragon p~ 211 dry rot 218 Qoorbuct 63 dragon tle 211 dry-~~ finish 47 aoorc;haln 114 drain 200 dry Sbnaplpe 90 Qoorc;hecl: 114 drainage mzt 176 dlj'W4" ~1 ~c;le3l'3nce 63 drainage system 200 dlj'W4U frame 65 doorcontact 81 drainage Uie 201 drywe!l 2Z3 doorframe 63 draInfield 201 du.l-duct system 126 doorInteriocl: 81 dralnspout 209 dUJi sys"'..en1 244 dootpmb 63 drain Ule 201 dual vt1Tt 200 dooltnob 116 draped tenaon 207 duct 78.122 dooropener 62 Dravidian 130 ductllltJ' 164- tfoorplate 114 drawrore 141 ductl~ 122 doorpuU 114 drawrore pi" 141 ductlr.erl22 doorsl:ln 28 dra~ 99 ductwort: 122 doorstep 63.114 drawdown 196 dumm~ 00 Dopplereff~ 228 drawl~ 66 d~99 Doric;~ 185 drawn flnlsh 169 d~~ 179 Done order 180 drawn glass 112 duomo 132 donner 209 dress circle 258 duplex 133.139 donner window 'lJ4 dressed dImension 277 duplex .~rtment 139 dosing wmw 201 dressea lumPer m duplex hc~ 138 Oos~ 36 dressed size ZJ7 durawmiil 175 00tt&l1lM 68 dressed s~ "87 dUl'3rr.en ?:J6 dou 2!).4. dresslng 271 dura~ ofload factor 200 doutne-~ door 62 dresslng room 258 Dutch ~ond 20 , dou~actl~ hinge 115 drift 13. e;6. 152- Dutch Colonbl. 138 dOlJ~ angle 172 driftrolt 82 Dutch@ 64- dou~~elweld B6 drift Index 153 Dutch I.p 212 doul7le-cal7le structure 29 drift lImltatbn 153 dwarf .....a 2El l doulMc;om~ry 39 driftpl" 82, 00 ~ 1.57 doubte-COI'TIeI"~Iccl: 160 drip Z71 ~en(;ft; 51 doub4e-G~ stnlcture 29 dripcap Z71 ~mIc~ 151 I doul7fe doors 62 dripedge 212 dynllma: pi1eformula 102 l doulk-egress n.ilne 65 drip molding 271 dynarnlcs ~. 97 dou~ plpc 172 dripstoM 159 dynarnlc win.:! pres$Ure 154 doul1le-mmea roof 210 drive ;lana 102 I doubte~ 113 drtvescrew 82 U l doul1fe grid Z39 drive shoe 102 urlyChri5tbn Archttecture 130 c:IoulM-hul1§ window 272 driving sheave eo urly English s~ 132 doubtejack raft« 211 drolt'105 246 urlyF~styIe 132 l doul7le-l stair 234 drop 122, 100.263 urly Renaissance 132 doulM overil2nglng ~m 17 drop.arch 14- early wood 216 doul?fe-rtturn Sblr 2M dropcelling 31 e;arthen.....re 32 doulM roof 210 dropchu~ 46 earth prtssure 151 L doubfe-s~ glass 112 dropllght 147 e;artho,lQl:e 152 douWc Ut; 206 drop panel 205 earthqu.~ load 152 dou"~-vee weld 86 dropped celbng 31 e;arth ~ck wall 270 doul?llng course 212 dropped girt 1m earthM:ri: 221 L dougo"4 254 drop-point slating 213 easea~ 140 dovetail 141 drop siding 2GB easement 140.221 dovetail halving 141 drop stage 257 e;aves 209 I I U 294 I L
  • 291.
    INDEX eaves course 214electric motor 75 enthalpy 120 eaves fbshlng 212 electrode 74 entrained air 42 tJves trough 209 electrolysIs .171 envlronmental design 10 E~ul~ 145 electrolyte 74 envision 59 eccentric 110 electrolytic protectron 171 EroM 215 eccentric ~racl~ 244 electromotive force 74 ep1center 152 eccentric force 162 electron 161 eplnaos 250 eccentricity 41 electroplate 171 epoxy mortar 157 ecutTtrIc load 162 electrovalent rond 161 epoxy resin 193 eccentric tendon 207 element 161 epuro 67 echlnus 100.181 elevation 70.247 equal leg angle 172 echo 230 elevator 00 equal loudness contour 229 eclectic 134 elevatorcar 81 equiangular 109 eclecticism 134 elevatorcarsafety 00 eqUilateral 109 ecanomy 58 elevatorpit 00 equl~tel'3l arch 14 economy ~ricl: 19 elevator shaft 80 equInlncint 97 ecanomy wan 156 ell 26.199 equlll!mum 55.97 ectyPC 59 elhpse 110.111 equIlIPrlum diagram 97 ~ 111.218 elnpsold 111 equIlI!mum moisture content m ~Plocl: 113 elllptlcalstaJr 234 equinox 226 ~cle3r3nu 113 elllptlcalsurface 220 equipoise 55 ~ distance 84 enIptic p.rarolold 219 equivalent load 151 edge gr41ln Va elong3tlon 162 equivalent round 172 ed¥joint 140 emUattlement 99 equivalent thickness 160 ec!gu 47 em!1edded space 218 ER ~ul~ 144 earflce 22 emPedment length 202 erect 49 effectlve a~ of concrete 202 emPoss 182 erection ~raclng 151 effective area of reinforcement 202 emUrasure 99, 159 emtlon stress 151 effective ~ 202 emergencygenerator 75 ergonomics 57 effw-lve ler.gth 17.41 emergency hghtlng 91 escalator 81 effectlve ler.gth factor 41 emissivity 112. 119 escarp 98 effective prestress 206 emphasis 54 e$C011 son 63 effectlve span 15 Empire style 133 esclItcheon 116 effective tem~ture 120 emp~cdlprocess 280 esortarthex 35 efflcacy 144 enamel 32. 187 esqulS5e 67 efficiency a~rtment 139 encased knot 278 esthetlcs 10 efflorescence 18 enceinte 99 Et~an architecture 129 effl~1Tt 201 encl'03chmtmt 221 Eucfkk3n geometry 108 ~andd3rt 101. end-P0e3rlng pile 102 Euctlkan space 217 ~ and tongue 181 end distance 84' Euler Utic1:Jlng load 40 ~crate 146 end grain 278 eurythmy 56 ~sheR 187 endJolnt 140 eustyle 179 ~storte 236 endlap 212 ev3luate 58 ~gn arch~re 128 end-lapjoint 141 evalmlon 58 EgyptIan~ 249 end-nail 82 ev3por41U 161 ~ntpenny rtla 82 endur.ance r41tio 165 M poratlve coohng 120 el 26.199 enawall 223 evaporator 124 elastic dd~1on 164 energy 167 evugreen 276 elastic des~n 240 energy ccd6 51 evolute 110 elasticity 164 energy effk:ltncy rating 124 excavation 221 elastlc limit 164 enfllade 216 exulslor 119 elastic modulus 164 engage 59 txe<b :35 elastic r.nge 164 er.gaged column 266 exfol13t1on 43 elastomer 193 engawa 137 exhaust air 125 elastomerlc 215 engineer 48 exhaust fan 127 elasto~rIc rocflr.g 215 engineered ~rlck 19 exhedra :35 el~ 199 er.gl~ grade 282 existing grade 222 electrical metallic tubing 78 er.glneerlng 11 exit 91 electric arc 86 englneer's chain 247 exit access 91 electric cd! 74 English rona 20 exit corridor 91 electric charge 74 English cross rona 20 exit court 91 electric eMtor W engrave 182 exit discharge 91 electric furnace 121 enneastyfe 179 exltdoor 91 electric heat 123 entablature 179 exit light 91 electricity 74 elTtasls 180 exit passageway 91 295
  • 292.
    INDEX exit st31rw3)' 91face putty 113 flllgree 182 ~113~35 face shell 160 flll 222 ~arldea cby 43 face string 235 filler 192 exparldea IT'Ie't.1I 172 face width 2:79 fillermetal 00 expanJed-~rbth 190 facing 156 fillerpbte 174 expanded pl.15tlc 119 faclng~k 18 fillet 181.185 expanded $h.;lle 43 factore.d load 240 flllet1ng m expanded slJte 43 factored load de$lgn 240 flliet wekl 00 expankd view 71 factor of safety 240 flllister heaa 83 expansion ~ 197 facto!)' lumPer V9 fllm 192 expansion ~ 84- Fahrenheit scale 117 fllter 125 expansionjo/lTt 178 faIf 200 fllterfa!nic 176 expanstonJoln~cover 173 fafsefront 24 final prestress 206 expansion loop 197 fa lsewer.: 49 fine aggregm 43 L ~anslon screed 190 fan 127 flnegl'3ti1ng 222 ~anslon s.h~ 84- fan-cell unit 126 fine text.u~ V8 I ~anslon sleeve 84-.173 fancy 59 fingerjoint 140 expansion v;;~e- 124 fanlight 63 finial 37 J expanslvtty 165 fan trus5 261 finish w.rt 187.188 exp!od~~ 71 fa nvault 263 finish floor 92 J explosive ~ 86 fascia 181. 213 flnlsh flooring 94 ex~ a~~te finish 47 fascia Poara 213 finish gratle 222 ex~gr'J 31 fastening 82 finish h3rdW3~ 114 exposure 212 fastes~-mlle wind speed 154 finishing 47 j exposure I 2.82 fast-pin hinge 115 finishing nail 82 exposure 2 232 fast-trn;i: 49 finish string 2:35 exposure canditlon 154 fa~ue 165 Ank truss 261 exposure dIra~Ilty 282 ~uenmlt 165 flntu~ 12.3 expression t2.8 fatlgue rat!c 165 flre-alann system 90 ~ ~ plalum system 122 fat mix 157 flrearea 89 roende.:l-5eT'Vce lamp 144 faucet 197 flre assem~ 89 extensl~11ty 178 fault 76.152 firebox 87 extenSion PoIt 116 fe-3Sllntlty study 49 flrei1reak 89 J extension C4ser.'1ent hlnqe m fe3ther 140 flrel1rick 18 exten$OFne"..er 162 Federal style 133 fireclay 18 exteror 2.82 fu,dlr.;cl: 58 flreaorbln 257 exterora:o.sle 109 fuJer 75 flrecut 93 I I ~.¢ior exit 91 feint 177 flie d3mper 89 exterbr I:XIt racorrJ 91 ferT'...1e 199 flrc:-ktectlon systtm 90 • exterbr p:ar.d 205 fenestration 24 flredoor 89 t:xtaior plywood 2.82 fe rrocemerrt 2fY2. fI~escape 91 ext.eror ~ n266 ferroconcrete 202 fire h3zara 88 ~I ~ component 150 ferrous ~I 170 firehose 90 oo:enul waR 266 femJle 281 fire hydrant 90 extn-st~ plpe 172 FeitJle Cresurrt l28 flrebU 58 extnJos 12 festoon 184- flreplace 87 extruded pofystyrene 119 fi~r 2:76 flreplug 90 roruslon 169 fI~rb03rd 119.284 fireproofing 88 eye 2.64 fl~rb03rd sheathing 119 flropump 90 ~Dolt 34 F1~g!as 119 ftrc-r.ua Be r/'ftm:,..., 209 flPoergbss 119 flre-rcsisbnce rating 88 eyelet 99 fI~gbss ~Jnforced ccncrete 202 flre-reslstIvIJ 88 fi~rglass-relnforced plastic 193 flre-~rdant p2lnt 187 Ff fl~g!ass shingle 212 flre-~rdant wood 28Q faDrlc 53 fI~r-sa~ratlon point m flresaftty M faDrlc3te 50 APonaccl series 56 fire scrttn 87 facade 24 fleld 155 flre se~ratlon 89 face 98 ~Ikd panel 268 flrestop 20T face urick 18 fleld of vlslon 264 firewall 89 face clearance 113 fieldstone 237 fire wln&ow 89 faced Dba 160 field tile 214 flrezone 89 faceJ wall 156 ~ure 109.265,283 firing 32 fau glazl~ 113 ~ured glass 112 flrmness 11 fac~-nall 82 ~ure-ground 265 first floor 23 f3Uplate 79,116 filament 144 fishjoint 140 I 296 r "'
  • 293.
    :*.. ~ INDEX flshpl3te 140 floorcoverfng 95 form 45.52. 53 fued arch 13 floorframlng 92 form-actlve structure 238 fued connection 242 flooring nail 82 form deckll'19 93 fixed-enJ Pe3m 17 floor pl3n 69 formeret 263 fixed-end connection 242 FIorentlne mosaic 182 Formica 193 flxed frame 104 flowing tracery m form liner 45 fixedjoint 242 flow pressure 197 form nail 82 fixed~ht m flow rate 198 form tie 45 fixedsash m flue 87 formula weight 161 fixture drain 200 flue lining 87 formworX 45 flxture unit 197 fluid 161 fortification 98 Fl3mPoy.int style 132 fluid-applied roofing 215 forum 251 /' fume finish 2:!J7 fluid ounce 166 foundation 100 flame retardant 88 fluorescence 145 foundation drain 176 fume-spread ratlng 88 fluorescent I3mp 145 foundation Investigation 225 fbnge T73 flush read 268 foundation walt 101 funge al'.gle 173 flush bolt 116 Four Nol?leTruths 253 funk 9B flush door 65 four-pipe system 126 flanking path 232 flush frame 65 four-way switch 79 fuph~e 115 flush girt 107 fox!lalt 84 flarot header 20 flush glazing 113 foxtail wedge 141 flashing 18.177 flushjoint 140. 155 fox wedge 141 fush pelnt 88 flushometervalve 198 foyer 258 flat 139.187.257 flush panel 268 fractal7le 159 fut arch 14 flute 100 fracture 164 flatgraln 278 flutlng 100 frame 104 flat~ 83 flutter 154. 2:!JO framed connection 174 flat-jolrrt polntlng 155 flux 86 framed tube 245 flat pQte 205 flux-cored arc welding 86 frame house 267 futroof 208 flyash 42 frame system 244 flat slap 205 flying Mtress 262 framewori: 106 flat sllclng 283 flying form 45 framl"9 106 flat truss 261 flying shore 221 framing anchCr 85 flat use ~ctcr 280 fly left 257 framing pUn 69 melle'S! fly rafter 211 FranklIn stove 121 Flemish rond 20 foamed pl3stlc 119 free-!lady diagram 97 Flemish cross !land 20 foamed-In-place Insulation 119 freefal! 46 Flemish dlagonal band 20 foam glass 119 freehand drawing 60 fleur-de-Bs i84 foam (UpPer 193 freestone Z1J7 fbllTe 238 focus 217 freight elevator 00 fbll7le duct 122 focusing 2:!JO French arch 14 fbl~ metal conduit 78 foil Zl5 French door 64 fbure formula 16 foll-17acW ~psum Paard 191 French drain 223 filer 234 folded plate 194 French wn~ 273 files 257 folding casement m frequency 228 flight Zj3 fotdlng &ocr 62 fresco 132 flitch 283 foliated 184- fresh air 125 flltch pe4m 281 foliation 275 fresh-air Inlet 200 flitch ~Irder 281 folly 'Zl Fresnellens 146 flitch plate 281 font 35 fret 1M float 47 foot 166 frictional ~mplng 245 float ftnlsh 47. 139 foot-candle 142 friction pile 102 float stass 112 footcut 211 frieze T79.186 floatl~ ca.t 138 footing 100 frlt 32 fuatlng foundatlon 101 foot-Iamrert 142 front 'Zl float switch 79 footlights 257 front ~rth 87 float ~lve 198 footpace 234 frontlspleu 24 fucW carpet 95 foot-pound 167 front of ~ house 258 flood tamp 147 force 96 frost Pan 100 flood level 198 forcearm 96 frost heave 100 flood~ht 147 forced warm-aIr heatIng 122 frostllne 100 floor 23.92 forecourt 25 frustum 111 floor anchor 85 foregrouna 265 fuel-contrll1utlon ra tlng 88 floor C3vlty 149 foreshortenIng 73 fulcrum 97 fuorc~ 114 forge 169 full-celiprocess 200 297
  • 294.
    INDEX fun fr3 me107 general diffuse I~htlng 14S grau~r 198 full·penetnt.loa weld [;6 generalllghting 148 gradation 55 fu/l-surfau hln4e 115 general purpose circuit n grade 222 functlon 58 generator 75.111,124 grade ueam 101 functloo2l ~1on 57 generatrlx 111 gradedaggregate 4:3 functlolUl ~rouping 216 geodesic dome 60 grade line 222 Functionalism 135 geometric 52 graaemart 200 fund3~1 m geometrical stair 234 GradeN 160 fund3menbl~ m Geometric style 132 grade stake 222 funda:renbIperiodofvfpratloa 152 geometrlc tracery 275 gradestamp 282 funicular arch t3 geometry 108 grade strip 45 funlcu~ curve 2fJ Georgian archltuture 133 GraaeS 160 funlcut.rpotygcn 23 geotechnical 225 gradln 2.56 funlcu~ shape 2fJ ge.otextlle 176 gradlne 2.56 J funlcul.1r ~ 28 gestalt 265 grading plan 69 funicular truss 259 Gestalt psychology 265 graffiti 182 furnace 121 gesture 66 graffito 182 furring 190 gesture drawing 66 grain 2:51.278 J fuse 76 gfrc 202 gram 167 fus/ple alloy 76 gludoor 64 gram calorie 117 fus/~Ie nnk 89 gingerbread 134- grandtler 258 fusll71e metal 76 girder 106 ~ranlte 236 fuslon~C3rpet 95 girt 107.269 granular material 225 glacis 98 graphic T3 Gg glare 148 graphic scale 69 gatnon 270 glass 112 gravel 224 gal71e 20a glass Plock 112 gravel drain 176 ~aPle &onrc 209 glass PrIcI: 112 gravel stop 215 93PIe roof 200 glass door 64 gravity 167 ~Plew.~ 266 glassea surface 7:37 gravity hinge 115 ~~ wlrubw Zl4 glass mullion system 113 gravity wall 270 ~roon 135 glass Size 113 gravity water system 197 gage 172 glass wool 119 gray 39 ~hI 115.141 glaze 32 gray scale 38 gal:k.e 37 glaze coat 187 grease Inte:uptor 201 93/1er1a Zl glazed wall tile 33 greaS<l ttap 201 ~11ery 36.216. 253 glaze-flred 32 greatclrcle 60 galla 158 glazIer's point 113 greathan 99 ~1Ion 166 glazing 113 GreatWall ofChina 129 g4lvanlc cell 74 gl3zlng uar 271 Gl'ubrchltecture 129 9 Ivanle C()rrO$~ 171 gl3z1ng l7ead 113 GruI: cross 183 ~lvanle saies T71 glazing urad 113 Greek temple 250 l ~lvanl:ze 171 glazing compound 113 GruI: theater 256 ~Ivanlzed Iron T71 glazing size 113 green 157 i3mUrtl roof 208 glazlng step 113 GreenfteId conduit 78 ~rJen~~ 139 glazing tape 113 green room 25a l !prden-wa! ron& 20 . gloP" valve 199 grid 68.101. 257 ~rde~ 99 gloss 187 gridiron 257 prP.J'le 37 glory 183 grid organization 218 J2rret 158 glued·lamlnated tlmw 281 grid structure 195 • ;;rt."t 37 glu~m 201 griffe ~ l ~s 161 gneiss 236 griffin 183 f35 furruce 121 goaroon 185 grillage 101 f3s1:et 199 gold In'onze 175 grille 122 L i-3S weldl"4 [;6 gokfen mean 56 grisaille 66 .ltecontJct 81 golden section 56 groin 263 3te vaIve 199 gong 254 groin riP 263 3th~ 122 good grade 283 groin vault 263 L auge 19.95. T72. 212 ~neck lamp 147 grommet 78 auged ~5ter 183 gopuram 253 groore weld 00 auglng pU~ 1.M gorge 98 gl"O$s cross-sectional area 160 autama Buddha 253 Gothic arch 14 grotesque 183 nero ?:l Gothic architecture 132 ground 76.190.265 L Pulp 144 GothIc Revival 134 ground acceleration 152 ~l1tral CO(!tr.1ctor 48 government system 246 ground be3m 101 r U }8 r c
  • 295.
    grouncJ~kl~ 221 grouncJ coot137 grouna War tb7 grour~ conductor 76 grourJ t.ult 76 grour.J.-hult Interrupter 76 grourJ roor 2.3 ground"u"1g electrode 76 grolmding outlet 79 grour.ding plug 79 grour.a ~ht 150 grourJ nne 72 grouna pbne 72 grour.a $bu 101 groUM-Hater 22.3 grour.a wire 76 group numPer 2.b2 grout 157 grotMdframe 65 grotMd masonry 157 grout ~ 157 g~pour 157 grow-;h ri~ Zl6 grypi'.on 183 gud¥on 115 gulde~n 246 guide rag EX> gul/cd-.e 1M gub 1.85 gu~ 254- Gur.r~ 46 GurTt.e:r's chain 247 Gur..4 00 gus~ 261 gust. mtar 154 gutt. 180 gut~nnd 180 gUt"".a' 209 9utt¢" h4"¥r 2q9 guyC4~ 29 gypsum 188 gYpS~1f1 roard 191 gyps~!I1 14th 190 gyp$'Jm-perIlte ~5W 188 gyp$m pbster 1M ~!!1 she3thfng 191 gyp$i::H'ermlcullte plaster 188 Hh halde:1 255 h3lf-~ dov~U 141 half-byjoint 141 haff-C"«tlse hinge 115 h..ffpu tandl~ Z34 halfr~ 182 halfrwnd 185 haff-rotJt1d slicing 2.b3 halfspa bndlr.g 2.34- haff"SIJrfau hlr.g~ 115 haff-tlml>er 107 haff-tlJm stair 234 hall 216 hall·"'"j 216 hala 183 hala~ lamp l44 halvedjcint 141 ham1M'" ~m 210 hammer-~.m roof 210 ham1M'" UT'3U 210 hal!1li"o¢( post 210- ha~d 1:4 . handr.;;1 233 hands?S"t-and-resawn shake 213 han~~ 85 Har.glr~ Gardens of 6a!7ylon 129 hanging gutter 209 han~i:>g step 235 hangii14 stIle 64. 2:12. Zl3 haptic 57 HmFP 128 h3rd'mrd 284 hard-~med 32 hard f.,l:sh 188 hard r~ht 148 hardr.eso 165 hards-~ 170 h4rd"t'f"4H 1M hard"Ir"4r"e 114 hard"Ir"3r"e cloth 172 hard jlijJter 197 hard"...ocd Zl6 hanrcr:'c 228 h4r.r.x:1c motion 152 Iwnrcr.1c progresslon 56 h3nr... ~~ series 56 h3nr.:~ 54 harpeJ teno011 207 h4$hir;l 255 h...-Uhi~g 66 Hat·her 249 Hau-c:--reaaed 249 HatJ-:or'G 249 h3ur~" 12. 17 haur0.eJ tenon 141 head 63.197.2T3 ke3~ 19.92 hadab'lccl: 160 had f'.lShing 271 ~dir~ COU~ 20 ~djd1T"t 155 ~? 212 r.e3arocm 233 headw3g 22.3 ke31~ 113 ke3rir~ 229 hari~~ loss 229 harP! 87 har-....ood 276 heat 1f7 heat-.;.soruing glass 112 hat C4racity 117 he; t ccr.tent 120 hat ~h4nger 124 he3U~~ ugree-dJ)' 121 hat!~~ 'cad t21 he3t.'~~ medium 121 h~3t cf C011dens.aClon 161 h~~ ;of fus!cr. 161 h~: cf hydration 47 he3~ cf scfldrflcatlon 161 INDEX heatofvaportz.ation 161 heat pump 124 heat-reslsbnt paint lb7 he3t sink 124 heat-strengtheneJ glass 112 heat-treat3U1e alloy 175 heat treatment 169 heavy-timberconstruction 51 hectare 166 heel 259 Heial1 131 height 109 height factor 154 hellcllne 233 hel10d0n 150 hellx 110,181 Hellenic 129 Hellenistic 129 hept3style 179 hermetic 112 herringrone 184- herrlngrone matching 283 hertz 228 hex,ogon 109 heX3!:ram 183 hexahedron 111 heX3style 179 hexhead e4J hiding power 187 HlDbmp 145 hleT'3rchy 54 high altJr 57 high chair 45 high-densityoverl3y 282 high glass 187 high-Intensity dl~arge lamp 145 high key 66 hlgh-Ilft grouelng 157 high~ht 70,148 high-output lamp 145 high polymer 192 high-pressure laminate 193 high-pressure sodIum lamp 145 high-range~lant 178 high relief 182 High Retulssance 133 high-rise 22 high-strength bolt 174 high-stre~th low-ailoy $teel 170 high-tech 135 high-~sIon I10It 174 high-velocity duct 126 hlgh-voltage 75 Hinduism 253 hinge 115 hinged frame 104 hingejolnt 242 hInge stile 64 hip 209 hipJack 211 hipped g3U1e 208 hipped roof 208 hlp rafter 211 hlp roof 208 hlp tile 214 299
  • 296.
    I INDEX hl$~ t2a house.djoint140 lm~tlon 134.212 HIUlteaniltecture 129 hou~ anIn 200 Imp~ fictor 151 ~.0g311 G6 house.:! string 235 Imput Insu~lon class 232 hols~ C3PIe 00 ho~hts 251 Impw.~d 151 hols~ NChlnel)' 80 ho~ sewer 200 Im~ noise 232 holstw.y fJO house stonn drain 223 Im~us soil 225 hols~.wr 80 house stenn sewer 223 Implt:nent 58 hok:l<JoM e5 house tnp 200 lmplwkJm 137 hotdt.brl dp 214 ho~unlt 139 lm~nufactor 154 honow-b:t.ed 94 Howe 261 Im~ 12 hoRow-c;oredoor 65 H-p~ 102 ImpostL>lccl: 36 hollow-coresla11 206 HP-sh3pc 172 1113~1eaf 62 hollow NSClnI}' unit 160 HPS bmp 145 In-~r.::!-out ror.::! 158 hollow-~ door 65 Hsb 12a InC4 ~rchtt:ecture 132 hol~lfr.ame 65 hue M lnc~nksc.ence 144 hollow~ M hum;;n englneerln~ 57 IIIC4n.:.!escent lamp 144 hollow unitmSOl1ry 157 hum;;n scale 56 Inch 166 HoIyArt 250 humidH'ler 125 Inch-pctJr.::! 167 noIyof holes 250 humidity ratio 120 Inclkr.ce 143 ho~s54 hU~S3sh 7:12 IncnntJ lift 81 1 roOnaen 255 hu~-sFan rJ IncreoaStr 199 hondo 255 hurr'G.lne anchor 85 I~rmlli.te 105 honed fWsII Z5l hurrlc3ne tie 85 IndlJn ;rchltectu~ 129 ho~47 hut 136 Indla r.;pPer 193 ho~ slating 213 HVAC 125 Indirect gbre 148 l !-.oneyc.cri wort 252 hyanm 90 Indlrect ¥tJng 148 ho~omamerTt 1M hydrned lime 157 Indlrect W4Ste pipe 200 rood 87 hydrrtlon 47 Individualclrcutt n rood.-.oY 274 hyarn!lc cement 42 Individualvent 200 l hoct 202 hydn.ullc elevator 81 Induct1.:x1 unit 126 Hoob'slaw 164 hydrcgen rond 161 lnertps 161 roOOf' force 60 hyarooic heating 123 Inert~sconfl..3uratlGn 161 hooplne 60 hygT'01l"eter 120 lnert·~s shle~ arc welding 86 b hopper Z!3 hyp3~hral 251 lnert~ 97 hopper~ 273 Hypa()n 215 inertiJ Plock 232 hopperMIdow 273 hyf73r 219 Infllt.mlon 118 horizoa 224 c hyperPcl3 110.111 Infb;t'.on 58. 110 L horl:z&.m _ 72 hyperrolC pm;,olola 219 Inflec'".,i:;-n poln~ 17 r.ortwnt.i 108 ~22q Inform 59 horiz.on~ cIrcle 247 E: hypcthral 251 Infrared 142' horizonblalaphragm 243 hypocenter 152 fnfrartJ t.mp 144 L horiz.onbIextt 91 hypostyle hall 2~9 IngIenoc1: 87 ~forcefacter 153 hypote:1use 109 Ingot l69 hortz.ont.1lfumace 121 ~fs58 Initial pc-estrtss 206 ~slldl~wfndow 2:12 hypot:xhe/lum 100 In~53 L hortz.or;~snearl~ stress 15 hystere:slsd3mpfng 245 InJ~ 1I'1CI4n9 192 horlz.on~ torsion 153 Inlay 182 hont Z71 Ii Innerm ZJG ~ 189,235 l-p~C'1 TT.3.281 Inner I.earth 87 "-'rseJ niJ 1a9 lceaz!!'i 212 II15~n~..art l.mp 145 " ~ ~167 Icon 35 Il15tnJlI'Ient stztloo 247 ~mhJ4 Iconostasls 35 Insu~ conum 43 ~~t97 fcosJr.earon 111 Insu~ ibss 112 hosecoctl97 ~ 59 Insu~ !iJ"Sum bth 190 L ~¥tm Idle sr~ve 80 Insulnor 78 t-cs~ stop 65 IES 150 Insurance 48 hospfbI window 273 19100 1..'7,6 Int~fIo 1.82 hot 76 I9neous rod; 236 IntegraWcelhng 31 L hot-"'P¢nnlzlng rJ1 I9nitlon point Be Intensity :38 hot-roW 169 I-Joist 281 Interctptlng dr.1ln 22.3 hot-roIIeJflnlsh 169 illuminance 142 fnterroiumnlatlon 179 not-waterheating 123 iIIuminatlon 142 fnterOome 61 b rJJt-~ 169 Image 59,66 Interfe~nce 231 house G6 Imagination 59 Intergl"Ol'ln knot '1]8 houSe ~in 257 ImPm: 214 fn~·3ngle 109 L r·~· 300 . - i..-
  • 297.
    '- Ii.~ Ii INDEX Interiordesign 10jamltltlock 160 kick p13te 114,235 Interiorpanel 205 jaml1stone 159 kiln 18 Interior plywood 282 Japanese architecture 131 klln-dr.ea m Interior wall 266 Japanese lacq~ 187 klloulorle 117 Interlacing arcade 36 J-~It 84 _ kilo!Jr.om 167 Interlocl:lngjolnt 158 jerl:inhe:.ld 208 kllogrJ" caIorie 117 Interlocking spaces 218 Jerusalem Cross 183 kllome~ 166 Interlocking tile 214 jlltdoor 64 kilowatt 74 Intermediate column 40 joggle 140,210 kllowrtt-hotJr 74 Intermediate rilt 263 ./O!1gle piece 210 klnest~la 57 Intermediate stiffener 173 ./O!1gle post 210 kinetic theory of neat 165 Internal damping 245 Joinery 140 klngb«; 261 Internal dormer 274 jolntcompound 191 king closer 2D Internal reflected component 150 Joint filler 178 king fOSt 210 International style 135 Joint mC'lemet1t 178 king rod 261 International System of Units 166 joIntrelnforc.ement 157 king trt.:ss 210 Intersecting arcade 36 Joint sealant 178 kip 167 Interstice 218 jolnttape 191 kite wlnaer 234- Interstlt131 239 jolst 92 kiva 136 Intertrlglyph 100 jolst anchor 85 kn~ 105 Interval 55 jolstl1ancl 204 kn~mu 243 Intonaco 189 joist girder 173 kn~1er 159 Intrados 12 jolsts and planks 279 knee w:ail 211 Intuition 59 Joist slalt 204 knrfe-!*lclefuse 76 Intumescent paint 88 joule 167 knife s·...ttGh 79 Inverse-square law 142 Joule'slaw 74 ~nltW eJrpet 95 InverteJ tee 206 judas 114 knOO-.nd-tuPe wfring 79 Invlslltle hinge 115 judas hole 114 knockdown frame 65 Involute 110 Jucl9ment 58 knock~ 114 Ion 161 Jugenclstll 134 knock::vt 78 ionic rond 161 jumro urick 19 knotZJ8 Ionic order 181 junctJG.n I10x 78 knock'.e 115 IRlamp 144 Jutty 107 kodo 255 Iron 170 Juxtaposition 54 I:ondo 255 Irregular grid 239 Kor3~ 252 Irregular mass 244 Kk krrlt paper 18 Irregular structure 244 ~ !:.a'aDa 252 kung 254- Islam 131 kalro 255 Isf3mlG architecture 131 kakemono 137 LI Isobar 102 k.lameln door 65- label 159 lsocephallc 73 bolln 32 IabeW 89 Isochart 146 Kasug:a-zukurl 255 labyr."t-h 37 Isolated footing 101 katsuogl 255 !ac 187 isolationjoint 178 K-Prace 243 1aud.,..11et 212 isolation mount 232 ~ 185 !acIng 174 lsolux line 146 I::..eene'scement 188 bcquer W7 Isometric 71 keep· 99 !acurtJr :?O Isometric projection 71 kelVin 117 ladder 233 Isosceles 109 Kelvin scale 117 Wych3pd 37 IsostatlG plate 194 ken 137 lag 12 lsostatlcs 194 kerf 31 lag btj-; 83 lsotroplG 162 kerfl"~ 186 Iaggl~ 221 Italian Renaissance architecture 132 kern 41 lag screw 83 Ivan 252 kern 3rea 41 1a1t3r.u 46 Iwan 252 kern point 41 131lycolumn 174 key 66.116.141.189,263 13massu 248 Jj keycou~ 262 lam~ 142 Jack 206,211 keyedjoint 141 13m~'slaw 142 Jackarch 14 k~ole 116 lamell... 195 Jacking force 206 key pattern 134 lamella roof 195 Jack rafter 211 keyston~ 12 laminate 193 jalousie Zl3 key swttch 79 Iamln3ud block 94 jalousie Window 273 keyway 45.116 f3mir...'M:/ glass 112 Jamb 63 Khmer 253 Iamlna'M:/ veneer lumber 284 Jamb anchor 65 klbla 252 13mp W4 301
  • 299.
    INDEX low-lift grouting 157mansard 208 menhir 248 low-key 66 mansard roof 208 mercury lamp 145 low-pressure laminate 193 mantel 87 mercury switch 79 low-pressure sodltJm lamp 145 lI'.3ntelplece 87 mercury-vapor lamp 145 low relief 182 manteltree 87 merge 27 low-rise 22 marole 236 meridian 226 Iowslde wlnaow 274 margin 212 meridional force 60 low-voltage 71 lI'.3rlqold window 36 meridional line 60 LPS lamp 145 marlnevamlsh 187 merion 99 lsill 267 marquee 258 mesa 1:36 Lstalr 234- ruscaron 183 mesh 172 lucarne 61. 274 mashrereeyeh 274 meshr~eyeh 274 I luclte ·192 lI'.3sjld 252 Mesoamerica 130 lug 5111 271 mask 183 Mesopotamia 128 luml1er 271 Masonite 284 metal 169 I lumen 142 masonry 155 metal decking 93 l lumen method 149 masonry arch 12 metal lath 190 lumll13lre 146 masonrycement 157 meta",c!7and 161 lumll13lre dlrt depreciation 149 masonry nail 82 metal pan 31 lumll13lre efficiency 146 mass 67,167.217 metamorphic rock: 236 luminance 142 massing 52 metaphor 59 luminous ceiling 31 mast 29 meter 166 lumInous flux 142 mJstaUa 249 metes ana PoUl1ds 246 luminous intensity 142 Masterforrnat 50 metes-ana-rounds SUNey 246 lunette 61 mastic 95,176 method ofjoints 260 luthern 274 lI'.at 101 method of sections 260 lux 142 matched lumber 279 metope 100 Iychnosco~ 274 matching 283 metric sarnn 231 matulal 161 metric system I~ I Mm matter 161 rnetIt ton 167 machlcolatton 99 M3urj3 129 mew 139 machine beam 00 maximum demand 77 meyd3n 252 machine role 84 rr.axlmum overall length 144 mezunlne 23,258 I machine Dum 278 MaX"Nell diagram 260 mez:w-rellevo 182 machine raUng zeo M3y3n architecture 130 Mlcrolam 284- machine room 81 meander 184 micrometer 166 machine screw e3 IT'.t3n radl4nt temperature 120 micron 166 machine stress-~t!ng 200 ~ ns ofegress 91 mlcropascal 229 made ground 222 mea~re 166 MWteAgesl30 maarasah 252 IT'.t3suring point 73 middle strip 204- Magen David 28 Mt.CC3 252 mkklle-thlrd rule 41 magnesium 175 ~hanlcal Dond 190 mid-rise 22 magnetlc north 246 IT'~hanlcal drawing 68 mlhraD 252 maldan 252 mechanical equlplMlt room 125 mil 166 mall slot 114 mechanical equlvale11t of heat 167 mildew 176 main 122. 197 rneGhan!ca1 property 162 mllds~ 170 main member 241 me:;han!cal sc.ale 56 mile 166 maIn runner 31 mechanical system 121 mill CCf1structlon 51 malntenancef.ictor 149 rr.uhanlcal ventilation 127 mlllflnish 169 majoraxis 110 IT'.uh3nlcs 97 milliliter 166 maksoo~ h 252 rr~111on le3 millimeter 166 mal3chlte 236 med13tlng space 218 mlllscale 169 male 199 Mea~1 architecture 130 mlml>ar 252 malleap[e 170 medium-density overlay 282 minaret 252 malle3ule cast Iron 170 med1um-range sealant 178 mlneral-Insula~ caple 78 Malt~ cross 183 rr.ed1um steel 170 minerai spirits 187 manaapa 253 meeting rail 272 mineraI wool 119 manaJr.a 253 mutl"4 sUIe 64.273 Minoan architecture 128 mandorla 183 ~hth 248 mlnoraxls 110 mandrel 103 1T1e931"011 250 minster 132 manganese 175 rr.ekian 252 minute 108 manganese pronze 175 IT'~bmlne resin 193 miscellaneous channel 172 manhole 223 IT'd:." dome 252 MlsslO11 Style 134 manifold 122 rr.errbrane 168 mlss~n tile 214 Mannerism 133 rt'.t:T"brane stresses 219 mist coat 187 303
  • 300.
    INDEX miter 140 mopbC3rd186 113vaI"ra5s 175 miterdaretall 141 mortar 157 Il3ve 35 mitered ~lvlng 141 morti~ 141 neat plaster 188 miterjolnt 140 morti~-and-tenon joint 141 necessarium 99 mix design 44 mo~ hinge 115 neck 84 mlxea grain V8 morti~Joint 141 necking 100 J mixer 197 mortise locI: 116 neGropojls 249 mlxln~ Pox 126 mortuary temple 249 needle 222 mixing bucet 197 mos.;ic 182 needier mixing I'lltb 120 Moslem 252 need!epu carpet 95 ~ mixing ~Ivc 199 mosqu~ 252 negative frictlon 102 mixing w.W 43 motif W4 Meg3tWe Ion 161 I MIxUG architecture 131 motte 98 Meg3tlve moment fl I moat 99 motte aM "al~ 913 negaUve shear 17 1 Moche 129 mouefrlt.e Z15 Neo-6.byIonlan architecture 129 Mochlc2 129 moulding 185 Neoclassicism 133 mock-up 58 movablt partltlon 266 Neolithic 128 mo<JeI 58.59 movement 55.66 necn lamp 145 model code 51 moving load 151 neoprene 193 modeling 66 moving skiew3i1: 81 netcross-sectloll3l area 160 mMmllsm 135 movfng stalrca~ 81 net structure 168 Modernlsmo 134 moving stall'W3Y 81 Mettracery 275 modify 58 Mozar;;?lc s~ 131 Meuml76 moJIJlIon 181 MRbulb 144 neutnl axis 15 modul4lr~ 19 M-shape 172 neutron 161 modul4lrcoordlnatlon 50 MudeJar 132 newel 61..2.34.235 modulardes~n 50 Mudejar architecture 132 newelQP 235 module SO. 56 mudsln 267 newel drop 235 modulus ofeb5tlc1ty 164 Mu~mmad 131 newel post 235 modulus of ~ldlty 163 Muhamm.1danlsm 131 New ~gdom 249 modulus of torsion 163 mlllllon 62. 268. 27J newtonlfi7 ~David 183 mulUlr.3yframe 105 newton-metu lfi7 Mogul architecture 133 multif:3mily 139 Newton'sflrst law of motion 97 ~11'IIneJ 131. 252 muftifon 275 Newton's second law of motion 97 Mohs'SC41e 165 multi-OIJUet assembly 78 Newt...on's third law of motion 97 molsttn'tcontent m multistoryframe 105 N-graae 282 moisture exp3nslon 165 multlzone system 126 nlckef 175 moisture protection 176 Munsell System 38 nimbus 183 mold 169. 185 muntln 64. 271 nipple 199 I molde4lnsulatlon 199 Muntz rr.etJ1 175 noP!e gas 161 . molded polystyrene 119 muqarna 252 naVle metal 171 moldll14 U)5 mural 182 node 259 I , moldln9 plaster 189 mushroom constructlon 205 nogl07 / .. ~ 161 mU!:l1d 252 nogg~m molecular weight 161 Mushm 252 no~ 231 molecule 161 Musnmarchltecture 131 noiseCl'&1ia curve 231 I Molty 64 mutule 1M noise reduction 231 k moment 96 Mycenuan architecture 129 !IOIsereduction coefflclent 231 ~.nn 96 Mylar 193 nominaldimension 19. m mo~center 96 nominal slze '07 I ~ connectlon 174 Nn non~rInf partition 266 mo~~m U Nagarc-zul:url 255 norWearl~ w.U 266 l. momentc:IIstril7utJon method 105 1l3i1 82 I'IOfICOInl,ustlP!econstruction 51 Il1Oft1entof lnertla 16 nailing strip 82 nonconcurrentfolUs 96 L II1Oment-reslstln~frame 104.244 Il3naalmon 255 nonconforming 51 Monellletal 214 Il3nometer 142 nonferrous metal 175 monochrONtlc 39 Il30S 250 non-hQt-trc.t3u!e alloy 175 monolith 248 Nara 131 non-Ioaa-l1e3ring partltbn 266 L monolithic ttrmzo 94 narthex 35 non-loaJ-pearing wan 266 monomer 192 Il3tul'lll cement 42 nonmetallic sheathed cable 78 monopteron 251 Il3tural grade 222 nonobjectNe 52 monotony54 natural period ofvl~r;;tion 152 nonparallel system 244 L Moor 131 natural rubDer 193 non-prcssure-treated wood WO Moorish .rch 14 Il3tural ventilation 127 nonrec.overaVle light loss factor 149 Moorlsh arcl1~ture 131 .nautlcal mIle 1% nonrepresent3tlonal 52 J li 304 f L.::
  • 301.
    n01lstalnlng mort3r 157 nonvltreou552 nortrl3/ force method 154 normal str~s 162 Norman architecture 151 Norman brlc~ 19 Norman Conquest 131 north arrOW 69 Norwegian Iniy~ 19 nosing 233,262 notice to proceed 49 novelty siding 268 nut 84 nylon 192 00 obell~ 249 object line 68 oblate 111 oPIate spheroid 111 ob~ue 71. 108 ol7llque projection 71 oblique section 70 obscure glass 112 obsidian 236 obtuse 109 obtuseangle 108 occupancy load 151 occupancy separation 89 occupant load 91 octagon 109 octahedron 111 octastyle 179 octave 228 oculus 61 oell-&e-boeuf 274 off-center 110 offset l1end 203 ogee 185 ogee.rch 14 ogive 263 ohm 74 Ohm'slaw 74 ell-borne preservative 280 oll-c.nnlng 214 ollfurn.u 121 oUIet 99 011 of turpentine 187 oilpalnt 187 oilstaln 187 oi/v;arnlsh 187 olfactot:i 57 olive hinge 115 olive knuckle hinge 115 Olmec architecture 129 on center 267 one-point perspective 73 one-sheet hyperoolold 220 one-way 238 one-way slab 204 onion dome 36 oolite 236 opaque 143 opaque stain 187 open boarding 213 open cornice 213 open eav~ 213 open-end I1locl: 160 open grain V8 openl~ Ie;;f 62 open mortise 141 open plan 216 open riser 235 open-riserstair 235 open slatl~ 213 open 5tr1~ 235 open-5trln~ stair 235 open-timbered 107 open valley 212 open-wet? steelJOist 173 openwort 182 opera house 258 operal11e Window· 273 oplsthodomos 250 opposition 54 optical illuSion 264 optical mlxlng 58 optical plummet 247 optlmum moisture content 225 opus Alexandrlnum 182 opus StGtile 182 opusvermlculatum 182 orchestra 256,258 orch~tr;J pit 257 orch~tra shell 257 order 12. 54 ordinary co"structlon 51 ordinate 108 organic 52 Organic architecture 135 o:-ganlc soil 224 organlz3tlon 53 orfel Z14 orient~1on 2J. 264- oriented strand!1oard 284 orlgl~nty 59 ornament 182 orthogonal projection 69 orthD9r3phlc prpjectlon 69 oscIllate 152 osclttatlon 152 OsIrtin column 249 Ottoman ;Jrchltecture 132 Ottan13n archttecture 131 oul7l~ 99 outerIlearth 87 outlet 79 outlet rox 79 olltnne 66 outlool: 217 outrigger 211 outside air 125 outwort 98 0'131 head 83 oven-dry m overourden 221 overcast sky 150 overc103k 214 overdoor 63 overflow 198 INDEX overhanging beam 17 overhead concealed closer 114 overhead door 62 overrelnforced section 202 overturning moment 153 ovalo 185 owner 48 oxeye 274 oxidation 171 oxIde 171 oyelet 99 .Pp pace 234 pacbged airconditioner 124 pagoda 254- pal-Iou 254 paint 187 paint system 187 palazzo 26 pale 38,98 palisade 98 Palladlana 94 Palladian motH' 274 Pallava 130 palm capital 249 palmette 184 pan 204 pan-and-roll tilIng 214 pane 271 panel SO, 64, 76.204,259,268 panelboard 76 panel cflp 212 panel grade 282 paneled door 64- panel l!e3tlng 123 paneling 268 panel length 259 panel load 259 panel point 259 panel strip 204- panel system 269 panel waH 156 panhead 85 panic Ir.tr 116 panic bolt 116 panic hardware 116 pantheon 251. 255 pantlle 214 pan tre3d 255 paper-backed lath 190 pal'2Pola 110,111 parabolic reflector 146 parabolic surface 220 paraboloid 219 paradise 37 parallne drawIng 71 Parallam 284- parallax 264 parallel 74,108 parallel-chord truss 261 parallel forces 96 parallelogram 109 parallelogram law 96 parallel strand lumPer 284 305
  • 302.
    INDEX p'l'2pet 98.266 penetrationtest 225 picture window 274 parapet stIrtlng tTl penny 82 plend 185 parascenlum 256 pent Z08 pier 105.266 f'AR l1ul11 144 pentagon 109 pig 170 ?,rga 87.176. tag pentastyle 179 pig Iron 170 :argetlng 87.189 penthou56 00. 139. Z08 pigment 187 ;;;3rgl14 176 0 pentlce 208 pigmented stain 187 ;7arli3menthinge 115 people mover 81 pigtail 79 ..3rodos 256 percentage relnforument 202 pilaster 266 ~rquet 94 perceptlon 265 pilaster ~ 160 "rquet circle 258 perched waterta~1e 223 pile 95.102 .arquetry 94 percolatlon test ZOl pilecap 103 :3rterre ZI.258 perforated gypsum lath 190 piledensity 95 "'.rthbn architecture 129 perforated shell tube 245 piledriver 102 ~rtI 53 perforated tracery 275 pileeccentrlclty 102 r'a~l-penetr.ttlon weld e6 pertormance spuiflcatlon 50 pilefoundatlon 102 partialprestressing 206 pergehsol 224 pile ring 102 particleboard 2M pergola 27 pile tolerance 102 parUcle-size d1str1Putlon 43 perimeter heating 122 pile weight 95 partlng Pe3d m. perimeter loop system 122 pillar 40 parttng compound 45 perimeter radial system 122 pilot hole 83 parting strip m. period 152 pllotl 26 paM.,n 266 periodic motion 152 pin 242 partltton bIod: 160 periodlc table 161 plnjolnt 242 party wan 266 perlpteral 251 pinned connection 242 pascal 167 ptr!style 137· pint 166 passage 67 ~Ite 43 pinnacle 262 p~gnve 248 penn 176 pintle 115 p~eb-atar 00 pernufrost 224 pipe 199 pa$5Jng m permanent set 164 pipe 1r.rtten 257 passive e3rtn pres5UI'C 100 ptrmeal1l1lty 225 pipecolumn 174 passlw: sobr-h~ng 'lZl ~ance 176 plpeflttlng 199 P ass-through 274 perpend 158 pipe pile 102 , pastlcile 183 Perpendicularstyle 132 pl53Y 34 P~185 perpendicular tracery 275 plse 34 path 21a Persbn 129 plse de terre 34- pattna f75 Persian architecture 129 pitch 83.95.208.228.276 patio 26 personal distance 57 pitched roof 208 l patWn 53.265 personal space 57 pitched truss 261 p-atterne.Jgbss 112 perspective 59.72.73 pitch-faced 237 . patternedlum!1e-r 279 perspective projection 72 pitching piece 235 ~umelte 115 pervious soil 225 pitch pocket 278 1 pavement SOIW 47 petcock 123 pitdwelling 136 pzverUIe 33 phantom 71 plthZi6 pavlf10n 24. 27 phantom line 71 pivoteddoor 62 p;NiIIon roof 208 pharaoh 249 pIvot&:fwindow m l P-delta effect 41 ph356 58.76.228 pI.ace 217 ~91'2vef 224 phenolic resin 193 placement 46 ~nut pllery 258 phenopl3st 193 piauofbeginning 246 ?e3rIIte -43 PhillIps head 83 p!o:fond :30 L ~rf JnOIdInf 185 phloem 276 plain lap 141 pebO{e 224 phon 229 pblnra" Zl2 ~dash 189 phosphor 145 plaln-S;iw 278 rectY Zi8 phosphorpronze 175 plain shc~ 283 L ~bl179 photochemical 187 plan 69 ~lpIle 103 pi 110 plane 109 ~ment 250 plano hinge 115 pl3negeometry 109 Peg-603rd 2M plano nolnle 26 pbne surv~ 246 L ~cbnt 147.263 plazzOl Zl plane truss 259 ~cbnt post 210 plcl:le 171 pl3nk-ancHeam construction 106 xnaentlve 61 plcUlgraph 182 pl3nk flooring 94 ;-entknUVe ma:etmg 252 pictorial space 12 plank house 136 6 ~UVe&ome 61 picture mold 186 pbnt 186 ;-enetl'2t1ng stain 187 picture plane 72 planted stop 63 :>eI'Ietratlon re~nce 225 . picture rail 186 plan view 69 L U 06
  • 303.
    INDEX pt.ster 1t;8 polarized79 preactlon system 90 plasturoara 191 pok: 100 precast concrete 206 plaster bond 190 pote construction 106 precast concrete pile 102 plasterer's putty 188 pote house 100 PreclassIc .128 plasterofParls 1t;8 pole plate 210 Pre-Columl1lan 130 plastic 192 ponshed work 237 prefabricate 50 plastic deform3tlon 164- po~carbonate 192 prefabricated flue 87 plastic flow 164- potychromatlc 39 preferred angIe 233 plastic foam 119 polyester 193 preflnlshed gypsum board 191 plastic hinge 104 potyethylene 192 preheat lamp 145 plasticity lnaex 225 polygon 109 preheater 125 plastIcizer 157,192 potygon method 96 prehistoric 128 plastic lamlM3te 193 potyhedron 111 prehung door 65 plastic nmlt 225 potymer 192 premium grade 283 plastic mix 44 potymerlzatlon 192 preparation 58 plastic ra"¥ 164- potipropylene 192 pre-posttenslon 207 plastic soil 225 potystyrene 192 presbytery 37 plat 2~ potythene 192 presentation drawing 67 plate 152. 02. 194, 267 potyurethane 193 preservative 200 plate action 194 potyuretnanefoam 119 pressure 167 plate cut 211 potyuretnanevarnlsh 187 pressure bult? 102 plate gIrder 173 po~lnyl butyral 192 pressure coefficient 154 plate glass 112 po~lnyt chloride 192 pressure drop 197 plate rail 186 po~lnyt resin 192 pressure-equalized design lTl plate tracel)' Zl5 pony wall 26"1 pressure forming 192 plate trt3d 235 porcelain 32 pressure head 197 platform frame 267 porcelain enamel 32 pressure-tre3ted wood 280 P13tonJc solid 111 porch 25 prestress 206 plaza 'Zl pore 276 prestressed concrete 206 plenum 31,122 portal 25, 105 pretension 200 plenum lr.lrrier 232 portal method 105 primary air 126 plenum chaml1er 127 portculliS 99 primaI)' ream 106 plenum ventilation 127 porte-cochere 25 primal)' cable 29 Plexiglas 192 portico 25 primal)' color 39 plinth 159,179, 100 portland cement 42 primary compreSSion 100 pllnth I7Iock 1(;6 portland cement mortar 33 primary consolidation 100 plinth course 159 portland cement-lime stucco 189 primal)' meml>cr 241 plot ~n 69 portland cement stucco 189 prime coat 187 plug 79.199 posltlve Ion 161 primer 178.187 p{ug fuse 76 posItIve momen't '0 principal 210 plump 211 posltlve shear 17 principal peam 106 plumlnng 1% post 40 principal merk:I1an 246 plumbing fixture 198 post-and-l1eam construction 106 prinCipal rafter 210 plumbing waD 199 post-,lMd-lIntel construction 100 principal reinforcement 204 plywood 282 po5tlr.l~ 85 princlpalstres5es 16 pneumatic pl3cement 46 postcap 85 ' principle 59 pneumatic riVeter 86 P05tclasslc 132 prism 111 poeumatlc strocture 168 postern 25.99 prismatic lens 146 pneumatic water supply 197 postformlng 193 process 5t; pqche 69 postlche 183 profile 66.185. 247 pocke~ door 62 postlcum 250 program 58 podet piece 2:12 post-modernism 135 pro%t 59 podlum 250,256 postoccupancy evaluation 49 proJeG"ted area method 154 point 54, lOO.155 posts ana timbers 279 projected window m polnt-~earing pile 102 posttenslon 207 projection 69.265 poInted arch 14 potable water 196 proJet 59 point Mnoa 149 potential 74 prolate 111 point of refusal 102 pountlal difference 74 prolate spheroid 111 point of resistance 102 pouna 167 promenade 27 polnt of support 242 power 74.167 promenade tile 33 point source 147 power trowel 47 pronaos 250 Poisson's ratio 162 ponolan 42 proof stress 164 potar angle 108 practice 59 property 162 potar axis 108 Prairie School 138 property line 221 polar coordinate system 108 Pratt 261 proportion 56 307
  • 304.
    INDEX proport:onal hmlt 164queen post 210 ravenn 9b prop0s41 58 queen truss 210 r.lW~ter 1% propriet4ry speclflc3t1on 50 quench 169 r.l'j 216 pro~ 249 QuetzalcMl 13t R;yonru~ st)Joe: 132 proscenium 256 qulcldlme 157 R~lp 144 proscenium arch 256 qUIri: 140.268 react1ve force 97 prospect 2fl quoin 158 ready-mb:t.d concrete 46 prostye 251 re3dy-lnlxtd pl3ster 188 protected mem~ne roof 215 Rr real 59 protected noncomPustlVle constructlon 51 r.l7tlet 140 re350n59 protected openl"4 89 ra*aeastep 63 re~r202 protected ordinal)' constructlon 51 ra7tletjol~ 140 re~te 140 protected right mmeconstruction 51 racew7j 78 reu.din~ cob- 39 prothes15 35 rac~!ng 243 receptor 198 proton 1-61 radial dome 60 recessed grid 31 proton num~r 161 radialorgini:z3Uon 213 rech3rge 223 prototype 59 rad131 shrinbge m recotm~ Ilght loss factor 149 proxemlcs 57 radial symmry 55 rect.; r~~ 109 proximity 54.265 radlan 108 rectJr.gubr 109 PS pulp 144 radla ITt rat 120 rect.;r~ubr coordinate system 108 pseudodlr ..eral 251 radIant ~t1~ t23 rect3r~ubr system 2% pseu~pteral 251 radlatlon 113 rectllirar 109 psychrorr.ettr 120 radIator lZ3 Rtctmnar~ 132 psychl'O"lT"oe:trlc ch3rt 120 radius 110 rectJnr.e.tr;nc.ery 275 ptef'OlT3 251 radius of gyration 40 red Pr:3SS fl5 pteron 251 radius vector' 108 red ~Pe! 213 I puUl1c WZ'j 91 raft 101 reducu 199 puckfle wda 86 rafter 211 reducU?!l 175 puc!7lo 130 rafW tail 213 reductk:xl of.~ 162 I I puR u;;r 1'4 rail 64- redurWrGy X)5 I p(;lley stl~ 2J2 ralflng 235 ru&ng 185 pump 125 rainbow roof ~ runtnnt109 pun~hlng srar 205 ralnSCree:l lTl runtnnt corr.er 244 I purfte 184 ralnscreen principle m reevalu.rcn 58 I puriln 210 rai~-chord truss 261 reference ~1fIc3tlon 50 purpose 5.3 rai~ ~ system 93 referen~1 dr.lwing 67 push Ft.te 114 ral~glrt m rtflne 50 L putty 113 raised grain 2:78 r:flectJnee 143 P'1'nost:l~ 179 ralsed par.a 268_ refb;t.e.d c.ein~ pl3n 69 pybn 2Ag ralslng plate 267 ~cclx·38 py~mld 111.249.252 rake 209.26a reflected s!are 148 b f'ytnagor-=:;;n theorem 109 rakedJoi~ 155 .' refoecW pbn 69 raker 221 reflecUd sovrJ 230 G£l ra~e tile 214 ~SlIrface 230 ql!7la 252 ra~l"4 riser 233 ~143 ~ Qln 129 rak1"4 shore 22T ~§bss 112 qUJdrangle 27 ramu~ 138 ~ In$u~lol'i 119 qUJd1"3nt 110 ramrr.eJe~ 34- rtftect.or ~ qu.ad~1109 ramp 233, Z35 refractloll 143 ,uadtipan:~ va~ 263 rampa~ ardl 14 refrW,uy ~ ~ q~~Z37 rampa~ rau/t 263 ~124 qU3rry~ 33 rampart 98 refuge 2f7 'l~rt 166 random ashbr 158 ~ency style 133 ,,R~ce bndl~ 234 rant..lom maunl"4 283 reglstert22 ~ quarter l"01.lnJ tb5 random row':: 158 registered 48 1U3rtersaW 2Jf) random shingles 213 reglet m Q,qrter~ 283 rarubn sla~ 213 regula 100 a,u3rtersp1Celanding 234 range 155,246 regular 54,109, III ~~ 'F3rter-t.um st3lr 234 range I1ne 246 regular Pe't'cl 116 :l.u3rtZ heater 123 ra"¥, 45 regular !rid 239 Q,:':3rtzlte Z36 rapld-st4rt I3mp 145 reguIar stroct<Jre 244 J.~rtz lamp 144 ra~ life 144 ~ulat1~ nne 66 Ir q:J3tref0l1 Z75 rath 253 rehat coli 126 Q~3ttroc.et1to architecture 132 ratio 56 reinfOtUJ conert'U 202 a.u'een ctosa- 20 Rationalism 134 reinfOtUJ concrete ~m 203 ~- 308 r . i
  • 305.
    f INDEX I reinforcedconcrete column 203 rhythm 55 roller support 242 reinforced concrete sb1:J 204 riP 263 roln~door 62 reinforced grouted maSOl1fj1 157 ril+.ind 261 rollocl: 19 I reinforced '!allow-untt 1T135Oflfjl 157 ri~amat 101 roll roofing 215 reinforument 202 ri~sla~ 204 roll se<am 214 reinforcing par 202 ri~V3ult 263 Roman arch 14 reinforcing edge ca~ 168 ricwn 267 Roman architecture 130 relative humidity 120 rI~nstrip 267 Roman~lck 19 release agent 45 rimncou~ 212 Romanesque architecture 131 relief 70. 182 r.~winaow ZJ4 Roman theater 256 reliefvalve 123 r,g~th too Rome 130 reliefvent 200 ri~V'3ult 263 Romex caule 78 relieving arch 266 rich mix 157 rood 37 Renaissance 132 Ricft3rdsonlan Rom3nesque 134 rood screen 37 Renaissanc.-. architecture 132 r~ 209 roof 208 I rendering 67 rid¥ ream 211 roof drain 209 rendering coat 189 r.:l.Jeboard 211 roofflange m repetttlon 55 ~p212 roofframing 211 repetltlve mem~er 280 r~course 212 roofl~ 212 I repetitive memuer factor 280 r'~ I73ff!e 140 roofJ~ rond 215 repose 54.217 ~plece 211 roofl~ felt 215 reproductNe imagination 59 rid¥pole 211 roofl~ nail 82 reservoir 196 ~rlb263 roofl~ paper 215 residual stress 169 ~roIl 214 roofI~ tile 214 resilient channel 232 ~t11e 214 roofplan 69 resilient clip 232 ~ cutting 2b3 room 216 resilient flooring 95 right angle 108 room acoustics 230 resilient IT1OlnU~ 232 ro:1htclrcularroM 111 room cavity 149 resin 192.'lJ6 rig~clrcularC)11rJer 111 room cavity ratio 149 resin canal ZJ6 r~'Hand 114 room surface dirt depreclatlon 149 resin duct 'lJ6 r'-3~t-h.and reverse 114 root 86.141 resinous IT13trlx 94 r~ht!ng morr.e:rt 153 ~ 116.184 resistance 74 r+~t triangle 109 rose wlnaow 37 resistance weldIng 86 r'..:l'J 238 rosette 184 resisting moment 15 r'~'J arch 13 rotafjl CtIttl~ 283 resistivity 74 r~ mrd Insu~tlan 119 rotation 97 resonance 152. 2.30 r# connectlcn 242 rotational surface 220 respond 36 r'~:.afr;;me 104- rota operator 273 restoring moment 15;3 r-!JJoint 242 rotunda 26 restrlct1v~ covenant 51 r,!?J rnetatcondurt 78 rough !rod: 63 resultant 96 rtmjc1st 92 roughcast 189 retaining wall 'lJ0 r.m~ 116 rough coat 189 retlrder 43 rtr.;-shank nail (';2 rough floor 92 reticulate l34 rip 'Zle rough grading 222 retlcubteJ ~ Zl5 ~p 'lJ0 rough hardware 114 retrocholr 37 ri~w 'lJ8 roughing-In 199 return 186 ~ 12.80.200.233 roughluml:Jer m return air 125 ~ 197.233 rough ~nlng 63 return ~rJ 199 rise;--tread ratio 233 rough 5tr1~er 235 retUrM-COfMr plock 160 ~~hfnge 115 round arch 14 return grille 122 ~86 round head 83 return pipe 126 ~set 86 round point 82 return wan 266 ri~ 252 rout 140 reveal 63 roc!: 236 row house 139 revent 200 rca caisson 103 rowlocl: 19 revem:ratlon 230 rca-cut tomb 249 row spacing 84 revem:ratlon Clme 230 rca-faceJ 237 rul7Ver 193 reverse :level 116 rca ~th 190 ru~~se paint 187 reverse return 123 Rc.dwell numb>er 165 ruul1er tile 95 reverse-trap 198 rca wool 119 rubule 158 reversll1te uk 116 Roccco 133 rulea surface 220 revet VO rcJ 166.247 run 208.233 revetment 270 rr-...Jdinq 46 Rundrogenstll 134- revolving door 62 r;;;'~ gL-Jss 112 rung 2.33 rheostat 79 r.;-:·ujoint 242 running Mnd 2J) 309
  • 306.
    --1 INDEX runnl~ J10kj 109sash fast 272 secondary stresses 259 runoff 223 sash fastener 712 secret dovet.1I I4l runW2Y 253 sash line 272 sectlon 70,246 rustle 158 sash ribPon 2J2 section hne 70 rust:btlon 158 sash stop m sectlon modulus 16 rustbtlon ~p 45 sash we~ht 272 sector 110 rustlcJoint 158 5aS53nian architecture 130 secular 243 rustic slJl~ 268 satIn flnlsh 187 security glass 112 rustic slates 213 satur3tea air 176 sed1ment.ry rock 236 rustic temzzo 94- satur3tlon 3a see 264- rusVln~ paint 187 satUr3tlon coefflclent 18 seepage pit 201 R-valut 118 saucerdome 60 ~met1t.1 arch 14 I sawtooth roof 208 ~~tlon 46 i 55 Shrfb 144- seismic 152 S3!:r1n 231 saffold 49 seismic coefficient 153 sack +4 saffold nail 82 seismic fOfU 152 sac~ 248 scagliola 189 seismicjoint 244 sacrtfd3l;mode m scale 56.69.166.169 seismic zone factor 153 j sacristy 35 scalene 109 select 58 s~ 63.a?9 scan~ 47 selectlYe aPsorytIon 38 S3aa~coplng 266 scallop 184 setf-centQIng lath 190 sadk copInt 266 sca!'Cement 159 se!f""iosIng fire assemPty 89 sada'1ejoint 159 scarfjoint 140 self-furrh'9 lath 100 S3dde sW"fxe 219 scarp 00 self-t3pplng screw 83 safety ~rbin 251 scheme 59 SellUK archlttcture 132 s.fe-ty~ 240 5chl¥ed1tr dome 60 seIva~ 116.215 s.fay§lass n2 science 11 semicircular Glome 60 s.fe-ty ~ 235 sds.sors truss 261 semlJetachea dwe!!lng 133 ~ety~ 235 sconce 147 semld1~ Ilgh~ 143 s.fetyvm 123 sccncheon 63 semldome 61 s..~269 scored 17'.od 160 semigloss 187 S34 28 scotb 181 seml-lnJ1rect lighting 143 sahli 252 SCR PrIck 19 semlvltreous 32 sailor 19 senteh coat 188 sensl~1e h~ 117 salient 54.109 sc~ 47.190 septle t3nk 201 sally port 96 scrun 266.714 serda~ 249 saltbox t:3a screen block 160 serendipity 59 sanctu3ry ~ scrt.en door 64 serial dlstr!~tlon 201 sanctJ..m ~m 250 screw 83 series 74 sand 224 scrtIt' eye 83 Ser!lan~·Z/4 sanJ clay 224 5CrewnaU 82 ~tlne 236 I sand--cushlon temzzo 94- scrWPbng 66 sm-u75 s.nd ftIt.er 201 saWedjoint 140 service conductor 75 ~t ftnlsn 189 scrim 190 ser«.Adrop 75 sand-lime ~ 160 scroI 184 seMce entrance conductor 75 I sanJ pI~ 103 scum 201 service~ulp~ 75 sandstone Z36 scum clear sp~ce 201 service Iatml 75 sand-strud: IIttl 18 scuncheon 63 service Ioa.:l 240 S3ndw1ch!:om 28t scupper 209 servIu pipe 196 l s.;~pand 50 scutc~ 116 service rac,ew3'J 78 S3"~ry I7Jss :33 se.168 service sink 100 S31I~ry cross 199 se31er 187 servlceswfUh 76 sanitary sewer 200 se350neaW 5m'Ice ttnlpmture 193 S3n~ry stop 65 se3t 199 set 47.82 l S31I~ ry tt.c 199 seat angle 174 ~22t san~ry WlIr'e 198 seatcut 211 setscrew 83 sap Zl6 se3te.aconnutlon 174 setting Plod: 113 sapwood Zl6 se.tlng 257 ~ shrinkage 47 L sarcophagus :;s secant 109 settlement 100 sash 271 second 108 settlementload 151 sash !:talance z/2 secondarybeam 106 set-up 247 sash !:tar Zl1 secor.darycaMe 29 S¢lery 262 L 5.sh~ 160 St:COndarycolor :39 sewage 200 sash chain 'Elf. St:COndaryconsolllitlon 100 5eW2~ treatment plant 201 s3sh cord m secondary member 241 se;;er 200 L 310
  • 307.
    r- I INDEX sexpartite vault 263sr,ae 221 site coeffl<;lent 153 Sezesslon 134- sh«ing 221 site drainage 2Z3 sgrafflto 182 shcro 2.55 site plan 69 shade 39.70 shcrl 76 sitewon: 221 shades and shadows 70 shcrl circuit 76 51 unit 166 sh~d1ng 66 shcrt column 40 slxteenpenny nail 82 shading coefficient 112 shcrt ton 167 stze-adJusted value 200 shaclow 70 shatcrete 46 sized slates 213 shaclow plock 160 shct-S3wn 231 size factor 21)0 shaft 179.262 shctJkler 98.141 size puspectlve 72 shaft grave 248 shc1Jlder miter 140· skeleton constructlon 106 shake 213.278 shcvedJoint 155 SkeM 256 shallowfounaatlon 100 shcwer 198 sketch 67 Shang 128 shre:3dhead 208 skew 159 shank 82 shrino¥ 7J7 ske'.... arch 12 shape 52 shrfnbge hmtt 225 skewi?ad 14 shear 163 shr!nbge relnfcrcement 204- skew corbel 159 shearcenter 16 shrink-mixed concrete 46 skewgrk:l 195 shear dlagram 17 shiP'.offvaIve 196 skew lines 108 shearforce 163 sh~~nd m skim coat 188 shear Mad 205 sh ~ter paroe! m skin friction 102 sh~g force 163 sh~lng stlle 64- skip 218 shearing resistance 225 ~:rese 90 $l:lp sheathing 213 shearing strain 163 s:k cut 211 skirt 186.271 sheari~ strength 225 s~p 212 sl:y component 150 shearing stress 163 siddlght 63.148 sl:yltght 150.209 shear modulus 163 sldesway104 s(yscraper 22 shear pl3"te 85.173 sta:r.g 268 sla~ 26 shdr stratn 163 ~htline 72. 258 sla~ongr;lde 101 shear stress 163 s~,' 52 slag 170 shear stud 93 s1(hm 253 slaWlime 157 shearwall 243 S~r3 253 slat ~lcd 94 sheath 207 siraous 42 slate 236 sheathing 212. 268 siliCOl'l 175 siatlng nail 213 e sheath pile 221 S:rlC....,,~;TU 175 sleeper 94 shel101t 45 siilc.cne 1.93 slendemess ratlo 40 shed &ormer 209 slrCCfle ru~r 193 sr01ng 154- shed roof 208 sin 63.267 sndl~g door 62 sheet Slass 112 silt ,ncnor 85 sndlng S3sr 272 sheetlng 192 sm~~ 160 snp 37 sheet metal 172 siroe.cd 197 snp form 45 sheet-metal screw 83 siR pl.4te 267 sOp rT13tchlng 283 sheet pile 221 sift :a!er 267 sap mortlse 141 Sheetrock 191 silt 224 shp~ grid 239 shdl 21. 161. 219 s.~r 109 snp slll 211 shellac W7 s;1!'liUrtty 54. 265 slope of gratn 2W shellac V<imlsh 187 sln-.pl,e Peam 17 slopslnl: 198 shelter 136 sl:r:u13t.e 58 slot dIffuser 31 shielded cable 78 s}rro..;!t3r.wJS Wltra5~ 265 slot mortlse 141 shielded metalarc wekllng 86 sir~ 109 slot~ head 83 shlekll~ a"91e 146.273 slr~~.ctlng doo!- 62 slud¥ 201 Shlmmel-zukurl 255 sin.g~paymrr.e 105 skJ~ clear space 201 shiner 19 sir.;~l1evel weld 86 slump 44 shingle 212 slr.g~urv1turt structure 29 slump bloc!: 160 Shingle style 134- slr.gl¢-dllCt system 126 slump cone 44 I shingle ~ 214 s!r.g~hul1g window 272 slumpkst 44 I Shinto 255 sing~ph3se 76 slurry wall 221 I shiplap 268 sln.g~strength glass 112 slype 37 shlp's ladder 233 sir.ge~ 206 srT13I1c.alorie 117 shoc~ 76 si~~-vu ~kl 86 smafta 182 shoe 102. 186. 209. 259. 267 sir-: 198 smelt 170 I shain 137 s;r.i:~g 115 srr.ol:e chamber 87 sholn-zul:url 137 sIF"cn-Jet 198 srr«e detector 90 shOJI 137 sIF~cr)-vor-.a 198 smol::e-developed rating 88 shop lumber 279 si~ 221 smc.l:dome 87 I I 311
  • 308.
    INDEX· smokeprodenclosure 91 sollar107 sphinx 249 smoke sid 1)7 solvent 187 sp~ot 197. 199 smokesta2 1)7 sone 229 spike 1)2 ~~1)9 Sonotul1e 45 splke-and-ferru1e 209 snaptle 45 sorln 255 splke grid 1)5 snowloa-l 151 sound m splll 147 S03p 19 sound-al1sorDlng masonry unit 160 spill hght 147 S03pstce 236 sound grade 283 spindle 116 society tW sound-Insulating door 65 splral 110 sociology n sound Insulation 232 spiral column 203 socket 79 sound Intensity 229 spiral reinforcement 203 SOCketedC4lsson 103 sound-Intensity level 229 spiral stair 234 l sodhousc 00 sound Isolation 232 splre :36 sodium bItp 145' sound knot 271) splrlt level 247 sodlum-GpOr t.lmp 145 sound level meter 229 spirits ofturpent1M 187 soffit leO sound power 229 spirit stain 187 l soft;-UurItA 32 sound-power level 229 spiritvamIsh 187 softenl", point 193 sound pressult 229 splash ~k 209 soft;JoI'" 156 sound-pressult level 229 splay 63.185 soft; hgItt 148 soundproof 230 splayed coping 266 l soft;-mudprocess 18 sound transmission class 232 spl1ce plate 174 soft; sted 170 sound wave 22b sp"ne 31.140 soft stofy 244 space 217 spilt V8 soft;wood V6 spaced column 281 spilt complement~1)' 39 soil 224 spaced sheathing 213 spllt-face!rlock 160 l soil./lalysis 224 spaced slatlng 213 spllt-facecJ 237 soU PinJa VO space frame 195 spilt-level 138 sail class 224 space heater 123 spilt-ring e5 sdf~1cs 225 space heating 121 spot 147.257 L sdtpl~ 2CO space planning 10 spot elMtlon 247 soli pressure 100 spacer 45.113 spotl~ht 147.257 soil profIe 224 spaCtl truss 195 spray-on flreprooflng 88 soli stMzer VO spacing crlterl3 149 spre3d 122 L soil stact 200 spading 46 spreader 45 sOil str.;:t.ure 225 spailing 47 spread foot!ng 101 soiIytg 200 span 15 sprig 113 sob.. m spandrel 12.269 spring 12 L sobrcoht.or 226 spandrel !?eam 269 spring ~alance V2 solarCOIIStJnt 226 spandrel glass 112. 269 spring equinox 226 I soIa..~ 226 spandril 12.269 springer 12 . solar-hating system 226 Spanish tHe 214 spring hinge 115 . l sobr~ 226 span rating 282 springing 12 solar ~tIon 226 span:: arrester 87 spring steel 170 sobr~d13gram 226 span::gap 77 springwood V6 sobr sc;n:en 2Zl s~r vamlsh 187 sprinkler he3d 90 saYer e6 spat 65 sprinkler system 90 L soldier 19 spatial edge 72 sprink1ered 90 soCdIerD1 221 spatteraash 11)9 sprocket 213 soYIc:rcorse 20 specialty panel 282 spur 183 soYIc:rpie 221 specifications 50 sqU2re 109. 212 , sole 2JU specific conductance 74 squared ru~ 158 1. ~267 specific 91'3vIty 167 square~ f)4 soCepfate 267 specific heat 117 square measure 166 soY tt1.161 specific humicllty 120 square splice 140 L sana•• 142 specific resistance 74 squinch 61 soIt.d Woct flooring 94 specific volume 167 . $-shape 172 so(kl~l~ 92 spectral dlstriPutlon curve 145 stalnhty 243 soIld coImn 281 spectrum 38 staPil1zer 192 L sona-an000r 65 specular 143 staPillzlng moment 153 soIld flg sIa!1 206 speculation 59 stack 122,200 soIld~ 111 speculative builder 48 stack rond 20 solidify 161 speed of sound 228 stack partltlon 199 L soIld masonry 156 sphere 111 stack vent 200 solid masonry unit 160 spherical surface 220 stadia 247 soIld-tDp PIocl: 160 spheroicl 111 stadia rod 247 I 1.J 0 312 , r f
  • 309.
    r I I INDEX staff Pead271 stepping off 211 stress relieving 169 stage 2!57 step-up transformer 75 stress reversal 259 stagehouse 2!57 steradian 142 stress-strain diagram 164 staggtred COtJI'Se 212 stereo~te 250 stress trajectories 16 staggeredjoints 212 Stk;k style 1:34 stretcher 19 staggered-stud partition 232 stick system 269 stretcher block 160 staging 49 stlffVack 45 stretcher bond 20 stain 187 stiffener 173 stretching course 20 stained gl3ss 37 stfffmlx 44 stria 180 stainless steel t70 sttff-mud process 18 strike 116 stair 233 stiffness 164 strike plate 116 staircase 235 stile 64 string 235 stalrhead 233 Stile Uberty 1:34 stringboard 235 stair headroom stilt 106 string course 159 stair lift 81 stilted arch 14 stringer 92. 235 I stair rod 235 stilted vault 263 strip 83 stairway 233 stipple-troweled flnish 189 strip flooring 94 stairwell 233 stippling 66 strip footing 101 stalactite wo~ 2!52· stirrup 203 strip lath 190 stam~ 253 stoa 250 strongl7ack 45 starIChlon 235 stone 236 struckJoint 155 standlng leaf 62 Stone~e 128 structural analysis 240 standard atmosphere ·167 Stonehenge 248 structural clay tile 34- Standard BUilding Code 51 stoneware 32 structural design 240 standard candle 142 stool 271 structural dimension 57 standard hook ·202 stoop 25 structural facing tlle :34- standard pipe 172 stop 63, 186, 272 structural failure 240 standard terrazzo 94 stop bead 272 structural gria 239 standby generator 75 stop clurnfer 140 structurallnsulatlng roof decI: 215 standing seam 214 stopped dado 140 structural lightweight concrete 43 standing wave 231 stopped mortise 141 structural lumber Zl9 standpipe 90 storm cellar 23 structural member 238 staple 82 storm door 64 structural pattern 239 star 183 storm drain 223 structural rating 240 Star of David 183 storm sewer 223 structural sealant 113 starter 145 storm window 274 structural sheathing 268 starter tile 214 story 22.24 structural steel 173 startlr.g course 2i2 story drift 153 structural tee 172 star vault 263 story shear 153 structural tul7ing 172 stat~11y equivalent· 97 stov~ 84 structural unit 239 statlc fit 57 stovepipe 121 structure 53,238 statk; load 151 Str.llght flight 234 structure-rome sound transmission 232 static load test 102 straight-run stair 234- strut 238 statk;s 97 stralghtspflt ~hake 213 stub tenon 141 I statlon 247 strain 162 stucco 189 station polrrt 72 str;lin g3~e 162 stud 267 statute mile 166 strain-hardening range 164 studiO apartment 139 stave church 36 straining veam 210 stud partition 267 Steaml70atGothic 1:34- straining piece 210 stud wall 267 steam heaUng 123 straining 5111 210 study 67 steam trap 123 strain-rateeffect 165 StUp3 253 Ste.llttte 236 strand 206 styfe 128 I steel 170 strap footing 101 Style Modeme 135 sted~m 173 strap hinge 115 5tylolr.ite 250 steel column 174 strapwon: 184 Styrofoam 119 steeple 36 strattflcatlon 46 sul7uasement 23 Steiner tunnel test 88 stratum 224 5uDc3slng 63 stele 250 strength 162 sul7contractor 48 stellar vault 263 strength of materials 162 sul7dlagonal 261 step 233 stress 162 suDfloor 92 step-down transformer 75 stress concentration 163 sUDgrade 222 step flashing 177 stress design 240 submerged arc welding 86 stepped flashing 177 stressea-skln panel 50 subpurlin 210 stepfW footing 101 stress grade 280 sUDs'" 271 step~ ramp 233 stress relaxation 165 subsoil 224 313
  • 310.
    INDEX sut?sbtlon 75 switch79 tempmtureeffect 165 sut?stractlve color M swltch~o3rd 75 temper3ture relnforcement 204 sul1str.lte 101. r78 swltchge3r 75 temperedglass 112 sul1strnum t)1 switchgear room 75 tempmJ h2rdPoard 284- su~structure 21 symbol 52 temp13te 266 su~surhu dr.linage 223 symmetry 55 templ1te hinge 115 sul1surface investlgatlon 225 SJ'I13gogue 250 temple 24a sul7surface s.na filter 201 syncl3stic 220 Temple ofSolomon 250 sul7tmtlve 52 SJl1ectlcs 59 templet 266 suction 18. 190 S)'Tlthesls 58 tendon 206 suite 216 S)'Tlthetlc rul?Der 193 ten14 100 sulfate 3Ctlon 42 syrinx 249 tenon 141 Sumerian architecture 128 system 21 tensile fofU 162 summer 'tCJl systems building 50 tensrle strain 162 summersolstice 226 systyle 179 tensile strength 162 summ~ '{J] tensile stress 162 sumll'lel"WOOd 216 Tt tensile test 162 sump 200 taremacle 36.250 tel$lo!1 54,162 sump pump 200 taremacIe fr3me 186 tension-control Dolt 174 sun control 227 table 159.183 tens1o!1 member 238 sun ded: ZZl ta:1lero 252 tenslo:l reinforcement 202 0 sunkdraft Z!J7 tal7let 183 tens~ ring 60 sunk panel 268 tactile texture 52 tent str.Jcture168 sunk relief 182 taenia 100 teree 136 sunlight 150 tag In termin41 79 sun parlor 2ZJ tall 213 termin3J ~t system 126 , sun porch 2ZJ tal1cut 213 term!n41 unit 126 SUTlI'OOll'l 2Zl tail!n 159 termin41velocity 122 sunsfWe 2ZI tall!ng 159 termIt.e shield 267 supercolumnlatlon 256 ta~p1ece 92.211 te~ Mal 175 l. superpbstlclzer 43 talud 252 temepbte 175 supet"Structure 21 tamrour 61 terra cotta 34 supply:.Ilr 125 tana 137 terrace 25.139 supply pIpe 126 Tang 254 terrace house 139 support condition 242 tange11t 109.110 terrazzo 94 Ii surbaStd:.lrcl1 14 ta"¥ntlal shrln~ 2n terrepldn 98 surch3rge 210 tangentlalstre5s 163 terrltc:xi3!1ty 57 surface 111 T:.Io 129 tert13ry Deal!! 100 surface-actlve agent 43 Ta.:lism 129 tertJ4rycolor 39 Li surface-active structure 238 .tap 83.197 ter1!..ory memkr 241 surface I10ndlng 160 tapered column 2.81 tessm 182 sumce conaensatlon 176 tapered end form 204 test 53 surf.lctc:Jr.Ilnage 223 taperspllt shake 213 test cylinder 44 U surbc&:f dry m tapplng screw 83 test~221 surfaced ~reen m bract 247 tetra~ron 111 surf.lctstructure 238 b5l; lightIng 148 ~t79 surface tension 177 taste 10 texture 52.53 U surfactarrt 43 tataml 137 texture l-M 282 surround '0. 268 T-Uar 172 texture perspective 72 sum:rur.d thtoiteo 257 T8 lnJlP 144 thM m survey 246 T-Peam 203 the4ter 256 U SUl"'t'eyOr"schaln 247 TUuII1 145 the4ter-ln-the-rouna 257 survr;yplat 246 te3ser 257 theodolite 247 sU5pendedcelllng 31 technics 11 ~59 I suspended-span r7 technique 66 tMrm 117 ~ suspension bridge 29 technology 11 thertT14lllr.lnier 118 suspension stl"1JCtUre 29 tectonIcs 11 therm31 brt3t 118 5W31c223 tee 172. 199.253 thermalccmfort 120 L swan's neck pedlmtnt 186 tupu 136 thernul conductance 118 sway In-ace 243 tegula 214 thernul conductivity 118 sweatln~ 176 telaman 250 therm31 contraction 165 sw~p 62 ~" 128 thernul expansion 165 L sw~p fitting 199 temenos 250 thernul finish 237 Swlng~ door 62 temper 169 therm.;llnsulatlon 119 swirl finish 47 ~mperature 117 thtrtnal resistance 118 I U 314
  • 311.
    I INDEX thermalshock 165 tinroofing 214 transformer 75 thermal stress 165 tint 39 transformer vault 75 thermal transmittance 118 tln~d glass 112 tr;lnslt 247 thermocouple 121 to 255 transltlon 218 thermoformIng 192 toe 86.270 transltlcnal structure 239 thermometer 117 tc-enall 82 transit-mixed concrete 46 thermoplastIc 192 togg!ebolt M translation 97 thermoset 193 toggle swltGh 79 translational surface 219 thermosettlng plastic 193 toilet 198 translucent 143 thermostat 121 toilet partition 198 transmission loss 232 thick-set process 33 tcl:mshlra 137 transmIttance 143 thlmtne 121 tc-l:011orna 137 transom 63 thln-~ed process 33 Toltec archItecture 131 transom light 63 thin-coat plaster 188 to11 167 transcm window 63 T-hlnge 115 tone 39 transparent 143 thinner 187 tongue-ana-gl'OOle 140 transverse arch 262 thln-set terrazzo 94 tongued miter 140 transverse force 163 thin shell 219 tonne 167 transverse load 163 tholo~te 61 ton of refrigeraUon 124 transverse rib 263 tholos 248 tooledjolnt 155 transverse section 70 thre3d 83 t..."Oled surface 237 transverse shear 15 three-coat plaster 188 toothed pl3te 85 trap 198 three-hinged arch 13 tcp~r 203 trapezIum 109 three-hinged frame 104 top carclearanu 50 trapezoid 109 three-phase 76 tcpcoat 187 trave 107 three-point perspective T3 topcut 211 travel 00 three-'luarter-tum staIr 234- tope 253 travehng C3Ule 00 three-way lamp 144 topiary ZI traverse 246 three-way switch 79 topup 212 travert1ne 2.36 threshold 63.218 topout 49 tread 233 threshold of hearl"9 m toppl"9 94.204.206 tl"e3d retum 235 threshokJ ofpain 229 top plate 267 tre3tea wood 200 throat 65.00.87 top rail 64 tl"efoll Z75 th rough check 278 topsail 224 tl-efoll arch 14 through stone 158 torana 253 trelliS Z7 through tenon 141 t.crchlere 147 tremle 221 through-wall flashing m toril 255 triad 39 throw 122.149 t...~ntor 257 tn41"gle 109 thrust 13 torque 163 tri3ngle method 96 thrustst3ge 257 - torsion 163 tNngular arch 14 thuml:mut 84 torsloll3llrregularJty 244 triangulation 247 thumbscrew 83 torus W1.220 triDunal 251 Tlanuan3co 130 totem 136 triDuM 35.251 tie 156.238 totem pole 136 triMary 241 tlelncl: 221 tou 254 tributary are;! 241 tie ~In 103,210 toughness 164 triWtary leW 241 t1e.:J column 203 tou-kung 254 tricalclum aluminate 42 tier 258 toure!1e 99 tricalclum slnc.te 42 tlerceron 263 t..."'Wer 26 trtforlum 37 tie rod 13 Tower of63Del 248 triglyph 100 tlghtflt 216 toWTI planning 10 tri4Or.orr.etrlc function 109 ~htknot 278 township 246 tri4Onometry 109 tlle acussory 33 tra~ate 106 tri!atentlon 247 tlle grout 33 trace 66 triflth 248 tlletle 214 traetry Zl5 trlflthan 248 tilting fillet 214 tracheld ZIG trim 186 1 tllt-up construction 50 tracheflum 180 trlmetric projectlon 71 J timber 277 tracl lighting 147 trimmer 33.92 timber connector 85 tr3<:t house 138 trimmer arch 87 I tlm!1er pIle 102 tnctlon elevator 00 tripartlte vault 263 I tlmbers Zl9 tnnsept 36 trlphasphor 145 tlme-klay fuse 76 tl":lnsfercolumn 105 triple point 117 time of haul 46 transfer glrkr 105 triplex 138 tin 171 tnnsfer molding 192 tristyle 09 tinplate 171 transformation 58 triumphal arch 251 ! 315
  • 312.
    NDEX 1 t rllngwd 240 ,- rllng stress164- l )f':lng 5tressdesl9n 240 )f': pbne 149 f' 7t'enC3~ 95 )len valley 212 L l'r'en-wire f.iUr!c 202 -eathe 184.234 I -eathe piece 234 "Ought Iron flO L -sha~ f72 Ie 199 I' {the 55 L ( axis 108 I mclng 243 coordinate 108 L i 12a !em 2:76 I y Ing-shao 128 lJ ra 166 , I rdlum~ Z79 axis 107 r :;.ooralll3te 107 11 ~ point 102, 164 I ~kJ Sf'.rell§th 164- , 128 I:e 45.Z72 U u~'s modulus 162 ngang 254- I ~t:36 U z: po~ architecture 130 ~lkl 137 Ixis 108 i i.J ~r 172 i :oordlnate 10~ i : T72 i 11th 150 b 'O-foru mem~r 259 ~Iou 2S4 I )U 129 ~ur;Jt 248 ~17l U ilda 252 IaIC3Vfty r.ethod 149 L ~ 126 ln9 or&ntaru 51 horus 100 ~ 133 , l. I U II I I li l
  • 313.
    I Architecture Is anartfor.h to learn pecause all are concerned with It. -John Ruskin • Architecture depenas on Order. Arrangement. Eurythmy. Symmetry. Propriety. ana Economy. All of these must l:>e pullt with due reference to duraplhty. convenience. and Peauty. Duraplhty wllll>e assured when four.datlons are c.rrled down to the solid ground and materials wisely and liberally selected: COfwenlence. when the arrangement of the apartments Is faultless and presents no hindrance to use. andwhen each classofbuilding Is assigned toItssultableandapproprl3teexposure: and beauty. when the appearance of the wort Is pleasing artd In good taste, and when Its meml:>ers are In due proportion according tocorrectprinciplesofsymmetry.-VItruvlus • Archtucture is themasterly.correctand m~ntflcentplay ofmasses !7roughttogetherIn light.-leCorilusler • Arryoneentering an the studyofarchlUcture must und~rstand that even though aplan mdy have abstract beauty on paper. the four f3C3deS may seem wel~ balanced and the total volume well proportioned. the pulldlng Itselfmay tum out to l:>e poorarchttecture.1rrtemalspace. that space which cannot ;Ie completely represented In'any form. which c.n De grasped ana felt only through direct experience. Is the protagonistofarchitecture.rograsp space.toknow howtoseeIt.Is thekeytotheunderstandingofpulldlng. -Bruno levi • Architecture. painting. and sculptureareC3l!edtheflne arts.They ap'peal to theeye as music doesto the ear. Butarchitecture Is notjudged byvisuaf appeal alone. Buildings affect.1I ofthe hult13n senses - sound. smeR. touch. taste.•ndvlslon. -Forrest WIlson • It b¢::ame apparent to us thatarchructure Isgenerally3S5umedto~ ahighly speclal1:zed system with aset of prescribed technical goals ratherth3n asensual sccl3lart responsive toreal human deslres.ndf~ngs.This hmltatlon IsmastfrlghtenlnglyIt13nlfested In the relianceon two-dlmenslonaldl3granns that laymarestressonthequantlfulDiefeatures ofIrolldingorganization run on thepolychromatlcandthree-dimensional quahtlesofthe whole architectural.experience. -Kent Bloomer&Charles Moore • The only wayyoucan pulld. theonfy way you can get th~ buUdlng Into being. Is through the rneasural7le. You must follow the laws of natu~ ana use quantftlesofPrick. methods ofconstruction.andengineering. But In the e:'1d. when the Dulldl"9 ~mes p3rtof living. tt ~ unmeasura!11e qualltles. and the spirit of Its existence takes or'er. -louis Kahn • Built environments hlYe various p1Jrposes: to sher-..er peaple ana their 0ICt1v1tles and possesslor.s from the elements. from human and animal enemies. and from supematural powers; to estaDllsh place; to cr~ ;; humantzed. s3fe area In a profane and potenttillfydangerous world; to stresssocialk:lentltyandIndlc.testatJJs; and soan.Thus thearlglnsofardIlUcture a~ ;lest un.derstood Ifone t31:~ awlde~view.nd considers sociocultural factors. In the In-oaQest sense. to !;Ie rr.ore Important th3n climate. technolcgy. materials. and economy. In arry stt.uatIon. It Is the Interplay of all these f.Jctors thatl>est ~lalns thefonn of buildings. Nosingle explanatlon willsufflc.e. M:3useDulldlng.s - even apparerrtly huml:>le dwelhngs - artrno~than material09jectsorstructu~s.They.rtInstttutk:>ns.pasJc cultural phenomena.Peoplethink envil'O!'lmerTts !lefore they l7ultd them. Thought orders space. tlme. actMty. status. roles. and Pdl3V1or. But gMng physicalexpression toIdeas Isva1U3Die.Encoding ideas ma~s them usefuImnemanlcs; Ideashelp behavlarbyreminding peopleofhowto act. how to ~ave. and what Isexpectedofthem. ItIs 1mportant tostress thataD builtenvironments -i:lulldings. settlements. and landscapes - are one way ofordering the world I:Iy making ordering systems vIsIi:lle. The essentbl step. therefort.1s the ordering or organizing of the envlronment.-Arnos Rapaport • Ruskin sald:'~ nations writetheir.uto!1lographlesIn three manuscripts. the l7ookofthelraeeas.the 0001.:aftheirwords and the Pock of their .rt. Not one of these Pocks C3n pe understood unless we read the two others. Put of the th~ the only trustworthy one Is the last.'On the whale Ithink this Is true. If Ihad to say which was telling the truth about society. aspeech by aministerofhousingortheactualbUildingsputup In his time. Ishould Pellev~ the I7ultdlngs. -KennethClart • We requlr~ of any building. chat It act well. and do the things It was IntertJed to do In the Pest way: that It speak well. and say the thl~gs It waslnte1'lded to sayIn the best words; that It lool: well. and please us I1y Its presence. wnatevu It has to do or say. -John Ruskin' Architecture also exists without r.ue5sary assistance from an architect; and architects sometimes cre-a~ buildings which are nat architecture. -Norval White' Architecture Is produced by ordinary people. for ordinary people: therefore It should be easily comprehensible to all. -Steen Eller R3smussen 319