ARCHITECTURE
PRACTICUM
NISHAN KARKI-ARCH 020-250
NEPAL ENGINEERING COLLEGE
7th Semester Practicum 2
“the idea is not to live forever,
but to create something that will”
ANDY WARHOL
7th Semester Practicum 3
ACKNOWLEDGEMENT
The practicum period has been an immensely fulfilling and transformative chapter in my journey as an architecture student. It has
allowed me to bridge the gap between theoretical knowledge and its practical application in the real world. I am truly thankful for this
invaluable experience.
First and foremost, I extend my heartfelt gratitude to the Department of Architecture at Nepal Engineering College for granting me the
opportunity to undertake this practicum. The wisdom imparted by my professors, coupled with the unwavering support of my friends, has
played a pivotal role in my growth and development.
I am equally grateful to Principal Architect Ar. Sarosh Pradhan and Principal Interior Designer Rajshree Sahu Pradhan for welcoming me
as a trainee architect at Sarosh Pradhan & Associates. Their esteemed firm provided a nurturing environment for learning and deepened my
understanding of both architecture and interior design. I am particularly indebted to my supervisor, Ar. Krishna Prashad Bhandari, whose
constant guidance, encouragement, and mentorship have been invaluable throughout this experience. I would also like to express my
sincere appreciation to Ar. Utsabi Thapa, Ar. Manisha Shrestha, and IA Tshering Sherpa, whose technical expertise and kind support
greatly enhanced my learning journey.Lastly, I would like to thank my dear friends, Kritika Gurung and Srizan KC, whose collaboration,
camaraderie, and unwavering support were instrumental in our collective success.This practicum has undoubtedly been a pivotal moment
in my academic and professional development, and I am deeply grateful to everyone who contributed to making it such a memorable and
enriching experience.
Thank you.
7th Semester Practicum 4
ABSTRACT
This report is prepared as the final assignment for the practicum course, which is part of the seventh semester of the Bachelor’s in
Architecture program at Nepal Engineering College. The primary aim of this course is to provide students with a comprehensive
understanding of professional architectural practice, enabling them to experience the real-world challenges and complexities of the field.
Through this internship, students are exposed to the practical aspects of architecture, bridging the gap between academic learning and
professional application. It allows us to witness firsthand how design concepts, technical knowledge, and client interactions come
together in a professional setting. This experience has not only enhanced my technical skills and design thinking but has also deepened
my understanding of the discrepancies that may exist between academic theory and real-world practice.
Ultimately, the goal of the practicum is to prepare students for the realities of the architectural profession, equipping them with the tools to
navigate its challenges and responsibilities. This report reflects the insights and lessons gained throughout the internship, highlighting
both the growth and learning achieved during this experience..
7th Semester Practicum 5
TABLE
OF
CONTENT
Acknowledgement
Abstract
INTRODUCTION
Introduction to the Practicum..................................................................................................................... 9
Objectives of Practicum .............................................................................................................................10
Office Profile ............................................................................................................................................ 11
Works performed during the Internship Period ........................................................................................ 12
Why SPA ? ................................................................................................................................................ 13
Work Methedology of the Office .............................................................................................................. 14
Self Reflection Essay ................................................................................................................................ 15-16
BODY
Sulokris……………………………………………………………………………………………………17-22
Potter Accommodation………………………………………………………………………………….....23- 27
Brakka Village……………………………………………………………………………………………. 28-31
Khatri Residence…………………………………………………………………………………………. 32-36
World Bank……………………………………………………………………………………………….. 37-39
Memorial Park…………………………………………………………………………………………...40-45
Design Competition………………………………………………………………………………………. 46-50
Mixed Used Residence…………………………………………………………………………………….51- 54
Rimpoche Residence……………………………………………………………………………………… 55- 56
Working Drawing………………………………………………………………………………………… 57-62
7th Semester Practicum 6
TABLE
OF
CONTENT
Construction site visit……………………………………………………………………………………….63-65
Miscellaneous …………………………………………………………………………………………..66-69
SPA Presentations & Dialouges................................................................................................................66-68
Heritage Walk to Basantapur Durbar Square……………………………………………………………69
CONCLUSION …………………………………………………………………………………….......70
References……………………………………………………………………………………………….71
7th Semester Practicum 7
TABLE OF CONTENTS
9"
1. Sulokris 2. Potter
Accommodation
3. Brakka
Village
4. Khatri
Residence
5. World Bank 6. Memorial
Park
7. Design
Competition
11. Working
Drawing
8. Mixed Used
Residence
• Tenzing Memorial
Park
• Bhrakka village
• Proter’s
accomodation
• Sulokris
• Khatri residence
• Mixed Used
Residence
• Rinpoche Residence
• Nunnery
• Baha-I temple
• Shikar Insurance
• World bank
Mountain Architecture Design competition
Residential Building Working Drawing and presentation
Office
TYPES OF WORK
• Interior detail
• Presentaion
• Working drawing of
residence
9. Rinpoche
residence
7th Semester Practicum 8
PROJECTS
•SULOKRIS
•PORTER'S ACCOMODATION
•BHRAKKA VILLAGE
•KHATRI RESIDENCE
•WORLD BANK CENTER
•TENZING HERITAGE PARK
•NUNNERY
•BAHA-I WORSHIP HOUSE
•SHIKHAR INSURANCE
•MIXED USED RESIDENCE
•RINPOCHE NIWAS
CONCEPT ARCHITECTURAL
DRAWING
3D
MODELLING
ANIMATION
AND
RENDRING
MUNICIPAL
DRAWING
INTERIOR SITE VISIT
NATURE OF WORK
NO INVOLVEMENT BASIC INVOLVEMENT MAJOR INVOLVEMENT
7th Semester Practicum 9
INTRODUCTION
A practicum in architecture is an important opportunity for students to gain practical experience and apply what they have learned in the
classroom to real-world architectural projects. This hands-on training is crucial for students as it helps bridge the gap between theory and
practice, preparing them for a successful career in the field of architecture. During the practicum, students work with professional architects and
engage in various aspects of architectural practice. One key area is design, where students get to create and develop architectural ideas for real
projects. This allows them to refine their creativity and design skills in a professional environment. Additionally, students gain site experience by
visiting construction sites, helping them understand how buildings are actually constructed and how to work with contractors, materials, and other
professionals.
Another important aspect of the practicum is working and structural drawings. Students learn to create detailed technical drawings, which are
essential for any architectural project. They also get experience in 3D modeling, using digital tools to visualize their designs in three dimensions.
This skill is becoming increasingly important in modern architecture and design.
In addition to these technical skills, students are introduced to building laws and regulations. They learn how architectural designs must comply
with local building codes and legal requirements, a crucial part of ensuring safety and sustainability in the built environment. Students also gain
an understanding of contract documentation, learning about the legal and administrative side of architecture, including contracts, project
paperwork, and the approval process.Overall, the practicum provides students with invaluable real-world experience. It allows them to develop
practical skills, learn how to navigate professional environments, and build the confidence they need to succeed in their future careers. By
working alongside experienced professionals, students gain a deeper understanding of the architectural profession and are better prepared to face
the challenges and opportunities of the field
7th Semester Practicum 10
OBJECTIVES FOR ARCHITECTURAL
INTERNSHIP:
• 🌟 Gain Practical Experience
Engage in architectural design and project execution through hands-on involvement in diverse projects.
• 📚 Apply Academic Knowledge
Contribute to projects by applying theoretical insights and creative problem-solving skills.
• 💻 Enhance Technical Expertise
Improve proficiency in architectural software and tools to deepen technical understanding.
• 🏗 Develop Practical Skills
Learn key aspects of project management, budgeting, and client interaction.
• 🌱 Embrace Sustainable Design
Understand and integrate environmentally responsible design principles in every project.
• 🤝 Collaborate and Learn
Work with experienced professionals to broaden your architectural perspective and skills.
• 🚀 Prepare for Career Success
Build a strong foundation for a future career as a proficient and innovative architect.
7th Semester Practicum 11
OFFICE PROFILE
Sarosh Pradhan & Associates (SPA) is an esteemed architectural firm that has been shaping the skyline of Nepal since 1996. Founded by the
visionary duo Sarosh and Rajshree Pradhan, SPA stands at the crossroads of innovation, cultural preservation, and environmental responsibility.
Over the years, the firm has earned a reputation for its bold, thoughtful designs and an unwavering commitment to sustainability, capturing the
essence of Nepal’s natural beauty and heritage in every project.
SPA’s portfolio is a testament to its creative and technical progess. The firm has triumphed in several prestigious National Design Competitions,
including the Tewa building, the Sainbu Community Centre, and the iconic Sculptural Memorial at the U.S. Embassy in Nepal. Each project
reflects a deep respect for the site, the community, and the unique cultural context.Notable among SPA’s works are the interiors of the World Bank
and Asian Development Bank (ADB) offices in Kathmandu, which showcase the firm’s ability to blend global sophistication with local
craftsmanship.
Currently, SPA is immersed in the Brakka Village and Poter’s Accommodation project , a groundbreaking initiative that blends sustainable
architecture with the rugged beauty of the Himalayas. Each of these projects showcases SPA’s dedication to creating spaces that are not only
visually striking but also deeply connected to the environment and the people who inhabit them.
From contemporary urban spaces to remote Himalayan retreats, Sarosh Pradhan & Associates continues to push the boundaries of design, crafting
architectural works that resonate with beauty, innovation, and sustainability.
Address : Sulokris complex, Jyatha Marg, Kathmandu
Established: 1996
Contact: 01-4260553
Email: spa.ktm@gmail.com
Website : spaktm.wixsite.com
7th Semester Practicum 12
WORKS PERFORMED DURING
THE INTERNSHIP PERIOD
Planning and Elevation Treatments: Contributed to the development of building layouts and elevation designs, ensuring both aesthetic appeal
and functional efficiency.
Architectural Visualization: Created detailed 3D models and rendered visuals using tools like SketchUp, Lumion, Enscape, Photoshop, and
Illustrator to bring design concepts to life.
Landscape Design: Assisted in designing outdoor spaces, blending natural elements with architectural structures for a harmonious environment.
Interior Design: Played a role in shaping interior spaces, selecting materials, furnishings, and layouts to enhance functionality and aesthetics.
Municipal Drawings (Nagarpalika): Developed precise and compliant drawings for local municipal standards, ensuring adherence to regulations
and guidelines. ( Had workshop)
Designing Auxiliary Building Services: Worked on the design of elements such as furniture, partitions, and lighting, contributing to the overall
comfort and usability of spaces.
Planning, Design Alterations & Revisions: Actively participated in making revisions to design plans, improving functionality, and
accommodating client feedback.
Site Supervision: Gained hands-on experience by overseeing construction sites, ensuring that work was executed according to plans and quality
standards.
Presentations & Client Dialogues: Engaged in preparing compelling presentations and facilitated communication with clients to understand their
needs and deliver design solutions.
Architectural Competitions: Took part in architectural competitions, demonstrating creativity, innovation, and problem-solving skills under
pressure.
7th Semester Practicum 13
WHY SPA?
From the moment I began my journey in architecture, I have been
fascinated by the intricate reasons behind how and why things work the
way they do. This curiosity has driven me to constantly seek a deeper
understanding of the built environment and the elements that shape it. I
realized early on that to truly refine my perspective and develop my design
skills, I needed to expose myself to a variety of experiences and learn from
the best in the field.
When the time came to apply for internships, I focused on finding a firm
that would not only challenge me but also provide a diverse range of
opportunities for growth. I wanted to work in an environment where I
could explore different aspects of architecture and design, and, more
importantly, where I could truly discover my strengths and passions.
That’s when Sarosh Pradhan & Associates caught my attention. With over
25 years of excellence in architectural practice, the firm stood out as a
beacon of innovation, creativity, and experience. It offered a rich learning
environment where I knew I would be encouraged to think critically,
explore new ideas, and contribute meaningfully to the projects at hand.
The opportunity to work alongside a talented team of professionals in such
a collaborative atmosphere was exactly what I was looking for.
The firm's reputation for exceptional design, paired with its culture of
mentorship and teamwork, made it the ideal place to foster my growth as
an architect. I was drawn to the idea of not only learning from seasoned
experts but also contributing my own perspective to the collective effort.
Sarosh Pradhan & Associates wasn’t just a firm—it felt like a community
where each individual’s unique skills and ideas were valued. This sense of
belonging and mutual respect fueled my enthusiasm to join the team and
immerse myself in the hands-on, dynamic experiences the firm offered.
7th Semester Practicum 14
WORK METHODOLOGY
• Handover
•Site Visit and Report •Design development
•Final Plan
•Construction
•Client meeting
•Service and Structural Drawing
•Working Drawing
•Literature Review
•Brainstorming
•Program Formulation
•Zoning
•Schematic Plan
7th Semester Practicum 15
My name is Nishan Karki, and I come from the stunning and culturally diverse country of Nepal. A land known for its breathtaking landscapes,
rich traditions, and vibrant religious heritage. But for me, it is the sight of my father, working tirelessly and sacrificing so much, that defines my
story and inspires my purpose.
Growing up, I watched my father dedicate his entire income to build a simple, one-story house. Every brick he laid was a symbol of his hopes and
dreams for our family. It wasn’t just about putting a roof over our heads—it was about creating a place we could call our own, a safe haven that
held the promise of a better future. Seeing the weight of that responsibility on his shoulders, I realized how much a home truly means. It’s not just a
structure; it’s the manifestation of years of hard work, love, and sacrifice. That moment planted a seed in my heart, and from then on, I knew that I
wanted to be an architect. It wasn’t just about designing buildings for me. It was about helping people like my father, who dream of giving their
families a secure home, even if it’s just a small one-story house. That dream stayed with me, fueled by the desire to make a difference in the lives of
others who share that same hope. I wanted to be the person who could turn those dreams into reality, someone who understood the emotional
weight behind every blueprint, every wall, and every corner of a house.
The road to becoming an architect was not easy. There were moments of doubt, times when the challenges felt too great, and the path ahead seemed
unclear. But through it all, I held onto the image of my father, working late into the night to make our house a reality. That image kept me going,
and I knew that if he could persevere for his family, then I, too, could overcome whatever stood in my way. Today, I am living the dream that once
seemed so distant. But it’s not just my dream. It’s the dream of countless fathers and families who long to build a home of their own. A home that
represents stability, love, and a future filled with possibilities. I feel a deep sense of responsibility to honor their dreams and to help make them
come true.
Looking back, I realize that my journey was never just about me. It was about something far bigger—helping others achieve what my father worked
so hard for. In a country as beautiful and diverse as Nepal, where culture and tradition meet modernity, I know that I am part of something special. I
am proud to contribute to the dreams of so many, knowing that, in some small way, I am helping to build not just homes but legacies.
SELF-REFLECTION ESSAY
7th Semester Practicum 16
Architecture, for me, is deeply emotional. It isn’t just about the technical skills, the blueprints, or the aesthetics—it’s about the stories
that are embedded within the walls of every home. Each house tells the story of a family, their hardships, their triumphs, and their dreams
for the future. Watching my father build our home taught me that even a modest one-story house can carry immense emotional weight.
It’s not about grandeur but about the personal significance that a space holds for the people who live in it.
As I pursued my education in architecture, my interest only deepened. I became fascinated with how architecture shapes not just physical
spaces, but the lives and emotions of the people who inhabit them. In Nepal, with its rich history of intricate temples, traditional homes,
and centuries-old designs, I found endless inspiration. The way Nepali architecture blends culture, spirituality, and practicality fascinated
me. I saw how even the smallest details in a structure could tell stories, preserve heritage, and create a sense of belonging.But I also
realized that modern architecture could be a powerful tool for change. I wanted to design homes that were not only functional but deeply
meaningful to the people who would live in them. I wanted to contribute to something bigger—helping families, like my own, achieve
their dreams of having a place they could truly call home. Each blueprint, each design I create now carries the weight of this
responsibility and the deep personal connection I have with my craft.
Architecture, for me, is a way to give back, to honor the sacrifices of people like my father, and to help others achieve what he worked so
hard for. My journey is more than a professional pursuit—it is a personal mission. Every house I design isn’t just a structure, it’s a dream
realized, a future secured, and a space where lives will grow and flourish.
I now live the dream that was once planted in my heart, but I carry with me the dreams of so many others—fathers, mothers, and families
who long for the security and comfort of a home. And through architecture, I have the privilege of helping to bring those dreams to life.
17
SULOKRIS
COMPLEX
01Owner: Sarosh Pradhan
Area:
Location: Jyatha Marg, Thamel
Project Type: Apartment Renovation
MY INVOLVEMENTS
• Site visit
• Design development
• 3d rendering
• Puja room
• Foyer space designing
• Working drawing
RENOVATING FLOORS
(5TH
AND 6TH
)
The project involves the interior
renovation of an apartment, with the client’s
request for a modern and luxurious
makeover. The renovation includes
transforming key areas to reflect this
modern theme while maintaining
functionality and comfort. The 5th and 6th
floor of the building was to be redesigned.
7th Semester Practicum 18
FIG:EXISTING PLAN
FIG:DISMENTAL PLAN
The initial assessment of the 5th-floor apartment revealed
significant circulation issues, primarily caused by congested rooms
and poorly positioned doors. These factors obstructed easy
movement throughout the space, affecting the overall functionality of
the layout. To address these issues, it was determined that changes to
the door placement would be necessary. These adjustments aim to
improve the flow between rooms and enhance the overall spatial
experience, making the apartment more accessible and comfortable
for its occupants during the renovation process.
Following a comprehensive assessment and design development,
several key changes were implemented to enhance the apartment's
layout and functionality. These changes included:
Dismantling Walls Leading to the Balcony:
•The walls connecting the living room to the balcony area were
removed.
•This created a more open and expansive living space, allowing for
better natural light and improved ventilation.
•The removal of these walls also enhanced the visual connection
between the interior and exterior, making the space feel larger and
more inviting.
Concealing the Partition Wall Between the Kitchen and Living
Area:
The partition wall separating the kitchen and living area was
concealed to create a more unified and cohesive design.
This modification improved the spatial flow, ensuring smoother
transitions between the two areas.
By opening up the layout, the kitchen and living areas became
more functional and better suited for modern living.
These strategic changes were carefully planned and executed to
maximize the apartment's usability, comfort, and aesthetic appeal.
(PLEASE REFER TO ANNEX FOR MORE DRAWING)
7th Semester Practicum 19
FIG:NEW LAYOUT PLAN
• removal of puja space and shifting it
to the 6th
floor
• decreased of TV wall making more
spacious with storage of 7’ length
FOYER
TV WALL
Before construction commenced, a site visit was conducted to gain
practical insights into modifying the space to align with the modern
design theme. During this visit:
Hands-On Space Assessment:
•The visit provided an opportunity to analyze how the existing layout
could be adapted to meet the project's requirements.
•The goal was to ensure that the design enhancements would
seamlessly integrate with the modern aesthetic.
Design Research for Sara’s Bedroom:
•I was assigned the responsibility of researching and developing
design concepts specifically for Sara’s bedroom.
•The focus was on creating a functional and visually appealing space
that aligned with the overall design theme.
Client Input and Vanity Area Expansion:
•The client expressed a desire to expand the vanity area during the
visit.
•This feedback was promptly incorporated into the design plan to
meet their expectations and enhance the functionality of the space.
The site visit played a crucial role in aligning the design vision with
practical requirements while addressing the client’s preferences
effectively.
FIG:CHANGE PLAN DURING CONSTRUCTION
SITE VISIT
(PLEASE REFER TO ANNEX FOR MORE DRAWING)
7th Semester Practicum 20
MY MAJOR INVOLVEMENT
Asmall puja room in Hindu house architecture is a dedicated space for prayer,
meditation, and worship, designed to foster serenity and spirituality. It typically
features an altar adorned with images or idols of deities, often complemented by
symbolic items such as lamps, bells, and sacred texts. The room's layout is
deliberately simple and uncluttered, emphasizing a tranquil and sacred atmosphere
conducive to devotion.
Natural materials like wood, stone, or marble are commonly used for the altar and
other elements to maintain a connection with nature and enhance the purity of the
space. Soft lighting, often from diyas or candles, adds to the calming environment,
creating a warm and inviting glow during rituals or personal reflection. Offerings
such as incense, flowers, fruits, and water are central to the space, symbolizing
respect and devotion to the divine.
This sacred area is not just a physical space but also a representation of the
family’s spiritual connection, mindfulness, and commitment to their faith. It
provides a peaceful retreat within the home, encouraging moments of quiet
reflection, gratitude, and prayer, making it an integral part of Hindu house
architecture.
PUJA ROOM DESIGN
FOYER DESIGN
The client, fascinated by the beauty of mountains and stone, wanted the foyer
design to reflect these natural elements. To achieve this, stone flushes were
incorporated into the wall, creating a sleek, textured feature. The addition of flush
lighting further enhances the stone’s appeal, highlighting its natural texture and
depth, and adding warmth to the space. This combination not only makes the
entrance visually striking but also creates a welcoming atmosphere, aligning
perfectly with the client’s appreciation for the beauty of stone while ensuring the
foyer feels inviting and elegant.
FIG:PUJA ROOM DESIGN OPTION
FIG:FOYER DESIGN OPTION
(PLEASE REFER TO ANNEX FOR MORE DRAWING)
7th Semester Practicum 21
CHANNELING AND FRAME WORKING
WITH GYPSUM BOARD PLACING
SITE OBSERVATIONS
WATER PROOFING
NOT TO BE DONE ON SHARP EDGES ,
MIGHT TEAR OR CRACK
During my site observation, I had the opportunity to deepen my understanding of various aspects of construction
and design, which proved to be an enriching learning experience. One of the most significant lessons I learned was
about waterproofing. I observed firsthand how waterproofing is applied on smooth cove surfaces. This step is crucial
in preventing water damage and ensuring the longevity of the structure, especially in areas exposed to moisture. The
process, while technical, plays a vital role in maintaining the integrity of the space, and it was interesting to see how
every layer of waterproofing contributes to the overall protection of the building.
Another aspect I found particularly fascinating was the use of cove false ceiling lighting. I had previously read about
its benefits, but seeing it implemented on site truly brought its impact to life. The indirect, soft glow created by the
lighting added a unique warmth to the space, making it feel both welcoming and comfortable. This lighting
technique not only serves a functional purpose by providing ambient light but also enhances the aesthetic appeal of
the room, creating a cozy atmosphere that is both modern and timeless. It was inspiring to see how such a simple
design element could drastically change the mood of a room.
Additionally, I had the chance to observe wardrobe designs incorporating strip lighting fixtures. These lighting
elements are integrated into the wardrobe structure, not only to illuminate its contents but also to add a sleek,
contemporary touch to the design. The strip lighting, which is often subtle, enhances the overall visual appeal of the
room, making the wardrobe an elegant and functional feature. It was enlightening to see how lighting can elevate
both the functionality and beauty of a space, making it more than just a storage solution but also a design focal point.
Perhaps one of the most valuable aspects of my site observation was learning how to properly observe a construction
site. It’s one thing to study design and construction techniques in theory, but being on site allowed me to see how
everything is brought together. I learned to pay close attention to the details and how each decision, whether it’s a
material choice or construction method, affects the overall project. It was a great experience to sit down with the
workers and ask them about their processes. I gained a deeper understanding of the challenges they face, how they
approach their work, and the steps they take to ensure everything is done correctly. This interaction allowed me to
appreciate the complexity of the construction process and the collaborative effort involved.
Overall, this site observation not only helped me connect theoretical knowledge with practical experience but also
gave me a greater appreciation for the craft of construction. It was a valuable opportunity to witness the integration
of design elements and construction techniques, and it enhanced my understanding of how every detail matters in
creating a well-designed space. This experience has inspired me to continue learning and growing in the field of
architecture, and it has reinforced my passion for the design and construction process.
7th Semester Practicum 22
One of the most significant challenges we encountered during the design process was when the
client changed the layout midway through construction. This unexpected alteration required us to
revisit much of the work and redesign certain aspects, leading to a complete overhaul of the plans.
Unfortunately, this also resulted in additional costs for the client, as the workers had to be
compensated for the extra labor, adding financial strain to the project.
Another hurdle we faced was subpar workmanship, which affected the quality and precision of our
design. The poor craftsmanship hindered our ability to bring the vision to life as intended. In
response, we had to replace some of the workers, which caused further delays and disrupted the
project's timeline. This setback prevented us from delivering the final design on schedule.
However, despite these challenges, we remained determined to deliver a beautiful, well-crafted final
product. Through perseverance, strategic adjustments, and collaboration, we were able to overcome
the obstacles and complete the project to the client's satisfaction, turning the difficulties into
opportunities for growth and improvement. The final design not only met but exceeded expectations,
proving that challenges, though difficult, can ultimately enhance the outcome when approached with
dedication and resilience
CHALLENGES AND DISCUSSION
• To design by acknowledging the essence of the given space.
• Improved my renderings and 3d software skills.
• Enhancement in detail drawings.
• Gained insights in choosing and creating material palate and mood boards.
ATTAINMENTS
(PLEASE REFER TO ANNEX FOR MORE DRAWING)
FIG:SITE VISIT
FIG: LIVING ROOM RENDER
23
PORTERS
ACCOMMODATION
“Nims dai Foundation”
02
Owner: Nims Dai Foundation
Area:
Location: Lobuche, khumbu
Project Type: Hospitality Mountain
Status: Under Construction
MY INVOLVEMENTS
• Working drawings
• Furniture details
The Nims Dai Foundation's project in
Lobuche provides much-needed
accommodation for porters, who carry
heavy loads for long hours with limited
shelter. The facility will offer a resting
place for 100 porters during the climbing
season, with essential amenities for their
comfort. This initiative not only meets a
practical need but also honors the crucial
role porters play in mountaineering,
showing respect for their hard work and
dedication.
7th Semester Practicum 24
Lobuche is a small yet strategically important Sherpa settlement located on
the trekking route to Everest Base Camp in Nepal’s Khumbu region, at an
elevation of 4,940 meters (16,210 feet). It serves as one of the last major
overnight stops for trekkers and climbers before reaching Base Camp. This
modest village holds significant value, particularly during the spring climbing
season, when it becomes a vital rest stop for porters. These porters, who carry
heavy loads of supplies, climbing gear, and luggage for mountaineers, pass
through Lobuche on their way to Everest Base Camp and other higher-altitude
locations, making the village an essential part of their journey.
In addition to supporting trekkers and climbers, Lobuche plays a crucial role in
the local economy, especially during the peak climbing season. The settlement
provides a resting point for porters and trekkers who need to acclimatize to the
high altitude before continuing their journey. It offers basic amenities and
shelter, which are critical for those traveling in the harsh conditions of the
Himalayas. The village’s strategic location and its role in the acclimatization
process make it indispensable for the success of mountaineering expeditions.
Lobuche is also a cultural hub for the local Sherpa community, who are
renowned for their mountaineering expertise and hospitality. It offers a unique
opportunity for trekkers to connect with Sherpa culture and traditions, while
also supporting the livelihoods of the community. The Sherpas' role in Everest
expeditions is invaluable, and Lobuche serves as a key point where trekkers,
climbers, and porters interact with the local culture.
Despite its modest size, Lobuche is a critical point in the trekking and
mountaineering network of the Khumbu region. It provides not only logistical
support for those traveling to Everest but also contributes to the broader cultural
and economic fabric of the area. The settlement continues to play an essential
role in the success of mountaineering expeditions, offering shelter, rest, and
resources to those on their journey to the world’s highest peak.
EXISTING SITE CONDITIONS:
FIG: ELEVATION
25
7th Semester Practicum 26
MY MAJOR INVOVLEMENT
FURNITURE DETAIL
I was assigned the task of creating the furniture details for the dining room and the
bedroom, two spaces that require a balance of form and function. In the dining room, I
had to ensure that the furniture not only fit perfectly within the space but also allowed
for the comfort and convenience of its users. Similarly, for the bedroom, the challenge
was to design furniture that was both functional for storage and visually appealing to
create a relaxing, comfortable atmosphere.
WORKING DRAWING
During my internship, I had the opportunity to be involved in one of the most
significant projects that was in the construction phase, which greatly enhanced my
practical experience and knowledge. My primary responsibility in this project was
to work on the working drawings for the floor plans and room details, including all
the essential specifications that would be implemented during construction. This
allowed me to have a deeper understanding of the project’s layout, functionality, and
the intricacies of how each element fits together.
(PLEASE REFER TO ANNEX FOR MORE DRAWING)
(PLEASE REFER TO ANNEX FOR MORE DRAWING)
7th Semester Practicum 27
While it was initially difficult and overwhelming, the
experience turned out to be incredibly rewarding. The
guidance and mentorship from my supervisor played a
key role in my growth throughout this process. They
provided constructive feedback, helped me refine my
work, and encouraged me to think critically about every
detail. This support allowed me to overcome challenges
and develop my skills in furniture design and drafting.
By the end of the project, I was proud of the furniture
details I had created, knowing that they would be integral
parts of the spaces I had worked on. This experience was
not only an invaluable learning opportunity but also a
reminder of the importance of attention to detail,
problem-solving, and creativity in design. It gave me a
much deeper understanding of the design process and
reinforced my passion for pursuing a career in
architecture and interior design.
One of the most exciting yet challenging tasks I
faced during this project was preparing the furniture
details. This was an entirely new area for me, as our
academic curriculum had not focused much on the
technical aspects of designing and detailing furniture. It
was a steep learning curve because I had to
meticulously work out every detail for various pieces
of furniture, ensuring they aligned with the overall
interior design vision. From measurements to materials
and construction techniques, every aspect required
precision and careful consideration to meet both
aesthetic and functional requirements.
CHALLENGES AND GUIDANCE
(PLEASE REFER TO ANNEX FOR MORE DRAWING)
FIG:INTERIOR
LAYOUT
7th Semester Practicum 28
•Integrating local architectural styles and
traditions to align with the community's identity.
•Understanding the importance of creating
resilient, functional spaces for individuals in
demanding professions like porters.
•Ensured the development of working drawings
and detailed furniture designs using CAD and
3D modeling tools.
ATTAINMENTS
(PLEASE REFER TO ANNEX FOR MORE DRAWING)
FIG:INTERIOR
LAYOUT
29
BRAKKA
VILLAGE
03Owner:
Area:
Location: Bhraka, Manang
Project Type: Residential/ Hospitality
Location: Bhraka, Manang
Status: 2013-Ongoing
MY INVOLVEMENTS
• Site plan render
• Design of various interior spaces
• Focused on detailing for construction.
• Working drawings, Sections,
Elevations, and Other necessary
documentation
Located in the heart of Bhrakka Village,
Manang, Bhrakka Village Resort serves as
a key check- point for trekkers visiting
nearby attractions such as Ice Lake,
Milarepa Cave, and Tilicho Lake. After a
period of hiatus, the project has resumed
with a focus on interior design and various
renovations to enhance the resort’s facilities.
7th Semester Practicum 30
After resuming from a hiatus, the project required several tasks to be completed to
bring it back on track. I had the opportunity to actively contribute across various
phases of the work, beginning with the creation of site plan renders. My
involvement extended to the design of diverse interior spaces, ensuring they aligned
with the project’s vision and functionality. Once the designs were finalized, I shifted
my focus to the crucial phase of construction detailing. This included preparing
comprehensive working drawings, sections, elevations, and other necessary
documentation to facilitate smooth execution on site.
During a detailed site visit, we observed significant discrepancies between the
original plans and the existing conditions of the building. To address these issues, I
conducted precise measurements and was tasked with drafting updated plans. These
revisions accurately reflected the current state of the structure while incorporating
essential layout modifications to meet the project's requirements.
FIG:ROUGH PLAN
FIG:MEASURED PLAN
(PLEASE REFER TO ANNEX FOR MORE DRAWING)
(PLEASE REFER TO ANNEX FOR MORE DRAWING)
7th Semester Practicum 31
The site plan render was completed using Photoshop, with a focus on depicting the
site context and emphasizing approaches based on the provided site plan and images.
This task allowed me to explore various tools and techniques within Photoshop,
enhancing my ability to create detailed and accurate visual representations.
SITE PLAN RENDER
Next, I worked on the corridor design. The site appeared gloomy and dark, so the
goal was to brighten the space using diffused lighting and appropriate colors while
maintaining the rustic essence and character of Manang. To enhance the space, we
incorporated customized room signage, wooden door handles, and white colors.
Hanging unfinished wood was used to diffuse light effectively, and additional cove
lighting was installed to provide more diffused light from the sides, highlighting the
overall design
CORRIDOR DESIGN
MY MAJOR INVOLVEMENT
FIG:SITE PLAN RENDER
After completing the corridor design, I took on the task of creating detailed
drawings that captured every element with precision, including exact dimensions and
specifications for the signage to ensure both clarity and cohesion.
Next, my attention turned to the bedroom on Level 4, where I prepared meticulous
drawings highlighting key features such as the false ceiling height, furniture layout,
and intricate finishing details. These detailed plans were essential for achieving a
polished and harmonious final look, aligning perfectly with the design vision.
WORKING DRAWING
(PLEASE REFER TO ANNEX FOR MORE DRAWING)
FIG:MAIN GATE DETAIL
7th Semester Practicum 32
• Most significant project at SPA, offering invaluable lessons about the
sense of place and its importance.
• Learned to design buildings on steep slopes and renovate nearly
abandoned structures.
• Gained extensive knowledge in interior design, detailing, creating
working drawings, and understanding Bills of Quantities (BOQ).
• Acquired knowledge about load-bearing structures.
• Enhanced drafting, 3D modeling, and rendering skills
ATTAINMENTS
FIG: FINAL ELEVATION
33
KHATRI
RESIDENCE
04Owner:
Area: 8306.7 sq. ft
Location: Bhaisepati, Lalitpur
Project Type: Residence
Status: Under Construction
MY INVOLVEMENTS
• Site visit/Site visit report
• 3d render roof (as per client)
• Studying and Recreating
Municipal Drawing
This project is focused on crafting a
luxurious home for a client based in Kenya,
combining elegance with cultural richness.
The design vision seamlessly weaves
traditional Kenyan aesthetics with modern
contemporary elements, creating a
harmonious balance between heritage and
innovation. Every detail is thoughtfully
considered, from the choice of materials
and textures to the spatial layout, ensuring
the home embodies both cultural
significance and modern sophistication.
The result is a residence that celebrates
Kenya’s unique identity while embracing
contemporary luxury.
7th Semester Practicum 34
MY MAJOR INVOLVEMENT
(PLEASE REFER TO ANNEX FOR MORE DRAWING)
MUNCIPAL DRAWING
I was tasked with preparing municipal drawings to address
significant changes made to the proposed design in order to comply
with local regulations. One of the key challenges involved the
cantilever design. According to the municipal byelaws, a maximum
cantilever of 5 feet was permitted, while our initial design included
an 8-foot cantilever. This discrepancy necessitated revisions to align
the design with the stipulated regulations.
Following consultations with the municipal authorities, I worked on
modifying the plans to reflect the allowable dimensions without
compromising the design intent. This involved not only adjusting the
cantilever but also ensuring that all related elements of the structure
adhered to the updated specifications.
Once the revisions were finalized, I prepared a comprehensive set of
updated drawings, including plans, sections, and other necessary
documents required for the municipality’s review process. These
changes ensured compliance with byelaws while maintaining the
overall functionality and aesthetics of the design.
Recreating Municipal Drawing
7th Semester Practicum 35
FIG:ROOF DESIGNS
FIG:STUDIO
APARTMENT
CHANGE IN ROOF PLAN AS PER THE CLIENT
During the construction phase, the client
requested a revision to the roof plan,
motivated by two key factors: enhancing
the site’s views and creating space for the
installation of solar panels. This presented
a unique opportunity to reimaging the roof
design.
I carefully developed several design
options that would not only meet the
client’s practical needs but also elevate the
overall aesthetic of the building. These
options were presented to the client,
helping them visualize the impact of the
new roof volume on the structure. Through
this collaborative process, the client was
able to gain a clear understanding of the
changes, allowing them to make an
informed decision that perfectly balanced
beauty, functionality, and sustainability.
FIG:REVISED 3D
(PLEASE REFER TO ANNEX FOR MORE DRAWING)
7th Semester Practicum 36
SITE VISIT
During the review of the floor level differences at the bathroom entrance, we carefully
considered various methods to achieve a seamless transition between spaces, ensuring they
would be on the same level. This adjustment was essential not only for aesthetic harmony but
also for the functionality of the space. After thorough discussion, we determined that
modifying the slab depth to align flush with the beam at 15 inches would be the ideal solution.
This adjustment not only ensured a smooth, even transition but also allowed for the hidden
integration of pipelines beneath the slab, contributing to a cleaner and more uniform
environment. The result was a space that felt cohesive, with a thoughtful balance of form and
function.
Later, we conducted another detailed site visit alongside structural engineer Er. Ram Sthapit.
This visit provided an opportunity to review the structural drawings in depth and discuss
potential issues that could arise from even the smallest discrepancies in the design. As we
toured the site, Er. Sthapit pointed out specific areas where minor errors in the structural plans
could lead to complications, advising us on necessary adjustments to ensure the building’s
integrity. His expertise and keen eye for detail were invaluable in identifying and addressing
potential issues before they could impact the project. A comprehensive report of these
observations, along with the recommended solutions, is included in the annex for further
review and action, ensuring that every aspect of the project remains on track for successful
completion.
(PLEASE REFER TO ANNEX FOR MORE DRAWING)
FIG:BRICK PLACEMENT
FIG:WOOD PLACEMENT
7th Semester Practicum 37
CHALLENGHES AND OVERCOME:
•During the site visit we saw the bad workmanship by the contractor which could have
effected the building structure.
•Main problem was seen in beam design as it wasn’t properly done.
•After the discussion with client we made sure the contractor do proper work.
•We also did frequent site survey and prepared report.
FIG: REPORT WRITING
(PLEASE REFER TO ANNEX FOR MORE DRAWING)
•Earned about how a design should meet client’s requirements
•Gained knowledge on designing buildings on contour land
•Understood the use of shear walls to retain land
•Learned the importance of small details in structural design.
•Learned post production using photoshop.
ATTAINMENTS
38
WORLD
BANK
05
Owner:
Area:1615 sq.f
Location: Hotel Yak and Yeti, Kathmandu
Project Type: Office Renovation
Status:On Going
MY INVOLVEMENTS
• Site visit
• Study of plan
The renovation project focused on the
Country Management Unit supporting
office on the first floor of the World Bank
Office. Initially, the office appeared
disorganized with printers and documents
scattered, highlighting the need for
renovation. The project began with a site
visit where the team observed the current
state of the office and discussed potential
improvements to enhance the space
7th Semester Practicum 39
FIG:GROUND FLOOR PLAN
FIG:FIRST FLOOR PLAN
During my internship, I had the opportunity to participate in a site visit to the
World Bank Office, where we were tasked with supervising a fire safety inspection in
response to concerns about contractor negligence. The primary aim of the visit was to
ensure that the safety protocols were strictly followed and to identify any
discrepancies that could potentially compromise the building's safety during
emergencies.
Upon arriving at the site, we conducted a thorough review of the fire safety
measures. One of the first notable improvements was the installation of new fire exit
signage's, which had been strategically placed to ensure maximum visibility and
clarity. The previous signs, which had been incorrectly placed, were replaced with
accurate directional indicators, effectively guiding occupants toward the nearest
exits. This adjustment was crucial in ensuring a swift and orderly evacuation in the
event of an emergency.
Additionally, we observed that the locks on the emergency exit doors had been
removed, allowing for immediate and unrestricted access. This was a significant
safety enhancement, as it ensured that the emergency exits could be opened easily
without delay, thus reducing potential hazards during an evacuation. Furthermore, we
noted that plants and other obstructions that had previously blocked the fire
extinguisher were cleared away. This action made the fire extinguishers fully
accessible and ensured that vital safety equipment would be available for use when
needed most.
The adjustments made during the inspection were not only necessary but also
demonstrated a strong commitment to ensuring the highest standards of safety for
everyone in the building. This experience underscored the importance of diligent site
supervision and adherence to fire safety regulations, reminding us how crucial it is to
continuously assess and improve safety measures to create a secure environment for
all.
SITE OBSERVATION
(PLEASE REFER TO ANNEX FOR MORE DRAWING)
7th Semester Practicum 40
•Improved site assessment and planning for safety compliance.
•Developed technical detailing expertise for floor and ceiling plans.
•Strengthened project coordination and stakeholder communication.
•Gained adaptability in handling design changes and challenges.
ATTAINMENTS
FIG: SITE VISIT
(PLEASE REFER TO ANNEX FOR MORE DRAWING)
41
TENZING
MEMORIAL
PARK
06 Location: Namche Bazaar,
Solukhumbu
Project Type: Landscape Project
Project Status: Conceptual
MY INVOLVEMENTS
• Extensive research
• Conceptual planning
• Design development
The Tenzing Heritage Center, a Sherpa
museum was renovated under the
guidance of Sarosh Pradhan and
Associates. As a part of this project, a
memorial garden was proposed to
honour 5000 mountaineers who have
summited Mount Everest, including
tribute to 150 mountaineers who were
unable to complete the ascent..
7th Semester Practicum 42
For our project, we were provided with a Google Maps location and site
images, which allowed us to understand the area’s layout and its
relationship to surrounding landmarks. The site was surrounded by
notable features, including the Sherpa Climber Celebration Wall,
Mountain Auditorium, Welcome Center, Exhibit Digitization area, and
Rewa Café.
Our task was to design an extension to the Sherpa Climber Celebration
Wall, ensuring it blended seamlessly with the existing elements of the site.
The extension needed to enhance the overall visitor experience while
maintaining the wall’s cultural and historical significance. By integrating
the extension with nearby landmarks, we aimed to create a harmonious
flow that enriched the space and offered visitors a more engaging and
meaningful experience
SITE IMAGE
7th Semester Practicum 43
For this project, the main focus was on the statue, making it an
experiential centerpiece. The design had to be subtle, cost-effective, and
without raised platforms. To accommodate 1,500 names while
maintaining economic efficiency, we brainstormed BRAINSTORMING
various ideas for the surrounding spaces. The result was a design that
complemented the statue, ensuring that the surrounding environment did
not overshadow the main attractant while still honoring all the
individuals in an organized and budget-friendly manner.
MY MAJOR INVOLVEMENT
Brainstorming
The project aimed to honor mountaineers by creating a
landscape that reflects their enduring presence, blending
seamlessly with the natural surroundings. The main concept for
the design focused on an axis of vision, making spaces visually
accessible but not physically so. Initially, walls were arranged
linearly, but as the design evolved, the walls were organically
extended to align with the elliptical shapes of existing structures,
creating sitting areas in between. A void space was created
between the walls, paired with a water feature that represents
presence in absence—the water collected from snowmelt. Finally,
similar walls were placed around the chorten to honor the
departed souls.
Design Development
FIG:REFRENCES IMAGES
FIG:CONCEPT SKETCH
(PLEASE REFER TO ANNEX FOR MORE DRAWING)
7th Semester Practicum 44
7th Semester Practicum 45
• Learned the role of memorials as spaces of remembrance, designed
to evoke emotion
•Gained insight into how architecture evokes feelings through light,
scale, and movement
•Understood the importance of memorials connecting with and
blending into their surroundings
•Enhanced skills in 3D visualization and rendering to effectively
communicate design intent
•Developed the ability to bring memorial designs to life visually
ATTAINMENTS
FIG:RENDER POST PRODUCTION
FIG:RENDER POST PRODUCTION
7th Semester Practicum 46
DESIGN
COMPETITION
07
Type: Nunnery Design competition)
Location: Chovar
Status: Completed
MY INVOLVEMENTS
• RENDER AND SHEET
DEVELOPMENT
Tsoknyi Gechak Ling Nunnery is a
Buddhist temple that also serves as a
school, blending modern education with
Buddhist spiritual teachings to foster
compassion and wisdom in its students.
The school follows the Nepali government
curriculum and offers supplementary
activities like field trips, art, mindfulness,
and creative learning methods.
7th Semester Practicum 47
FIG: SHEET RENDERS
7th Semester Practicum 48
FIG: SHEET RENDERS
49
MIX USE
RESIDENCE
08 Location:Baluwater, Kathmandu
Area :300.5 sq m
Project Type: Apartment
Project Status: Conceptual
MY INVOLVEMENTS
• Site visit
• Volume Development
The project is planned in two phases
with a masterplan designed to create a
modern mixed-use residential space.
Inspired by living abroad, the client
envisions a development that blends
residential, commercial, and recreational
spaces to meet today’s lifestyle needs.
7th Semester Practicum 50
.
Our Thoughts on the ProjectWe’ve carefully
considered the site and the project requirements, and
here’s how we propose approaching the
design:
Understanding the Site and Context
The site in Baluwatar is surrounded by residential buildings, and a
portion of it is dedicated to Phase 1 at this stage. However, since the
pre−built area is also part of your land, we can take a broader perspective,
planning the design to allow for future transformation and development
of the entire site.
Design Vision
Our aim is to create a unique and timeless design that
aligns with your vision. We propose a mixed−use
residential building that blends traditional Nepalese
architecture with modern elements. The main façade
will feature brickwork complemented by black
accents, evoking a rustic yet contemporary character
inspired by
Nepalese homes and even the prime minister’s
residence.
Functional Layout
We envision the design to integrate several functions,
including:
 Residential Spaces: These could include
standard apartments, duplex units, penthouses,
and flexible housing options.
 Corporate Spaces: Office spaces to enhance
functionality.
 Public Amenities: A café, green areas, and
shared courtyards to create lively community
zones.
The site will be organized into public, semi−private,
and private zones to ensure smooth transitions and
maintain privacy where needed.
CLIENT DISCUSSIONS
7th Semester Practicum 51
Design Features
1.Our approach will focus on creating a functional,
energy−efficient, and visually appealing design
through:Energy Efficiency: Incorporating passive
cooling strategies such as cross−ventilation, green
spaces, and buffer zones to enhance comfort and
minimize energy usage.
2. Brick Screening: Using brick screening as a key
element of the façade design. These screens will not
only enhance the aesthetic with intricate patterns but
will also improve functionality by providing natural
ventilation, filtered light, and privacy while reducing
heat gain.
3. Courtyard and Connections: A shared courtyard will
form the central connecting space, tying the project
together. Vertical elements like balconies with brick
screens will create dynamic façades while
promoting privacy and interaction.
4. Unified Access: A shared basement and courtyard will
seamlessly connect all areas of the site.
Phase 1 Plan
In the first phase, we’ll focus on a 300 sqm area with 60% ground coverage and a
FAR of 3.2 (six stories). This phase will include service apartments, access
lobbies, and vertical zoning to create a cohesive and adaptable structure.
Future Scope
Although we are starting with Phase 1, the overall design will be developed with
future growth in mind. This will ensure that the project can evolve over time while
maintaining consistency and coherence
We believe this approach will deliver a project that is
functional, energy−efficient, and visually distinct. The
addition of brick screening will further enhance its
identity while seamlessly fitting into the character of
the surrounding neighborhood. We look forward to
hearing your thoughts and refining the concept further
together.
7th Semester Practicum 52
FIG:CONCEPTUAL VOLUMETRIC ANALYSIS
VOLUMETRIC ANALYSIS
ATTAINMENTS
•Learned about survey map and its detail.
•Got chance to have meeting with clients.
•Learned about the volume development.
53
RINPOCHE
NIWAS
09Location:Bodhgaya, India
Area :2070 sq ft
Project Type: Residence
Project Status: Conceptual
MY INVOLVEMENTS
• Client meeting
• Small plan development
This project is residential project for the
monk residing in the bodhgaya ,India. Client
wanna have the tibet style architecture with
different function in co-operating.
7th Semester Practicum 54
This is the initial development of the plan made after the discussion with the client.
This plan isn’t the final draft plan but the concept plan where the function is placed as
per accordingly.
Above fig is the list of function
and program that client mentioned
us about.
Client even demanded of putting
the bridge in between building to
connect with old building.
FIG: CONCEPTMASTER PLAN
FUNCTION:
•Ground floor: Prayer Hall,
Lobby, office, toilet.
•First floor: Master bed room
with attach toilet.
•Second floor: servant and
kitchen room
55
WORKING
DRAWING
10
MY INVOLVEMENTS
• Detail drawing of furniture , wall
and elevation
Detailed technical drawings used
during construction, providing precise
information on dimensions, materials,
and installation methods to guide
contractors and ensure the design is built
as intended.
7th Semester Practicum 56
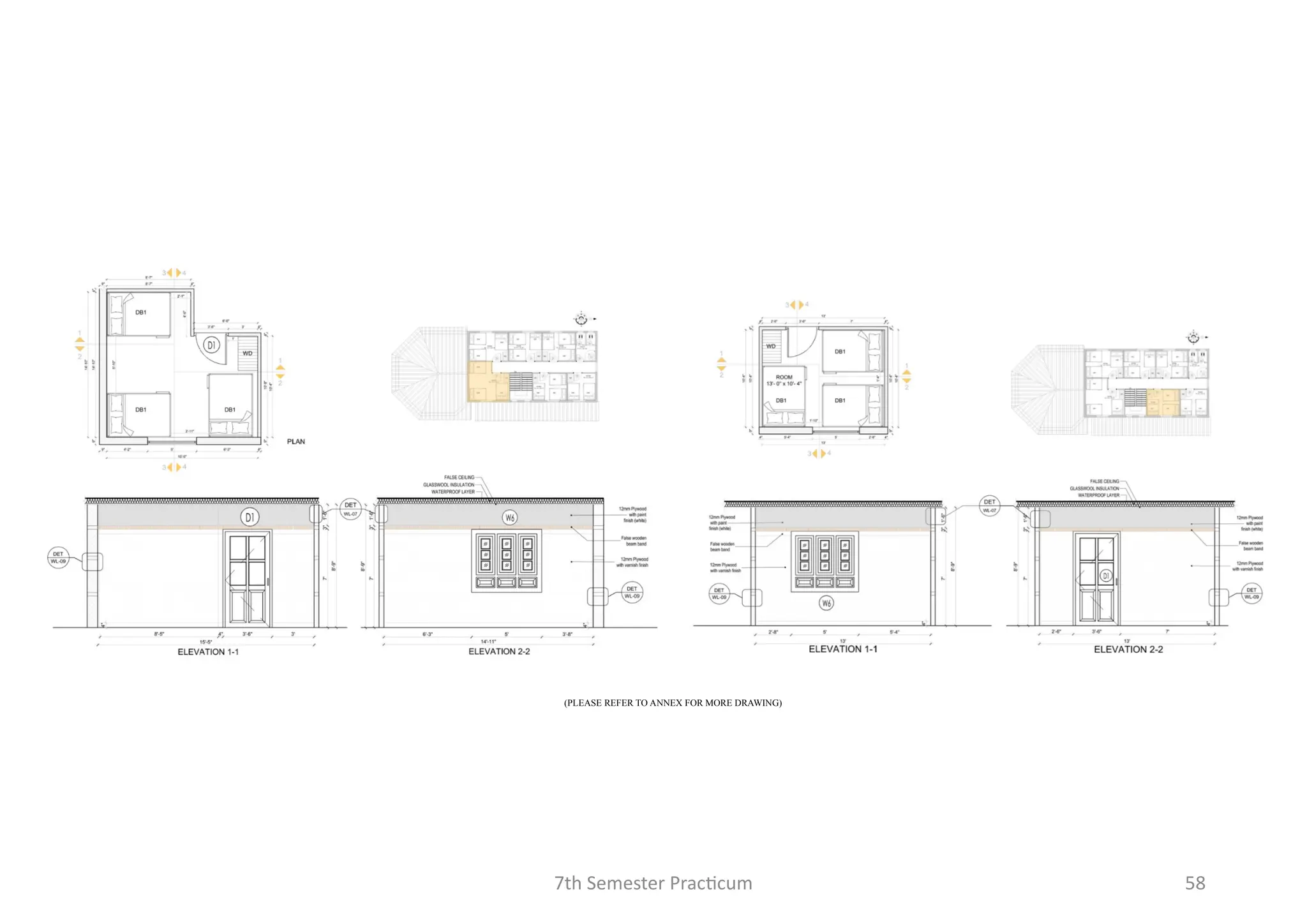
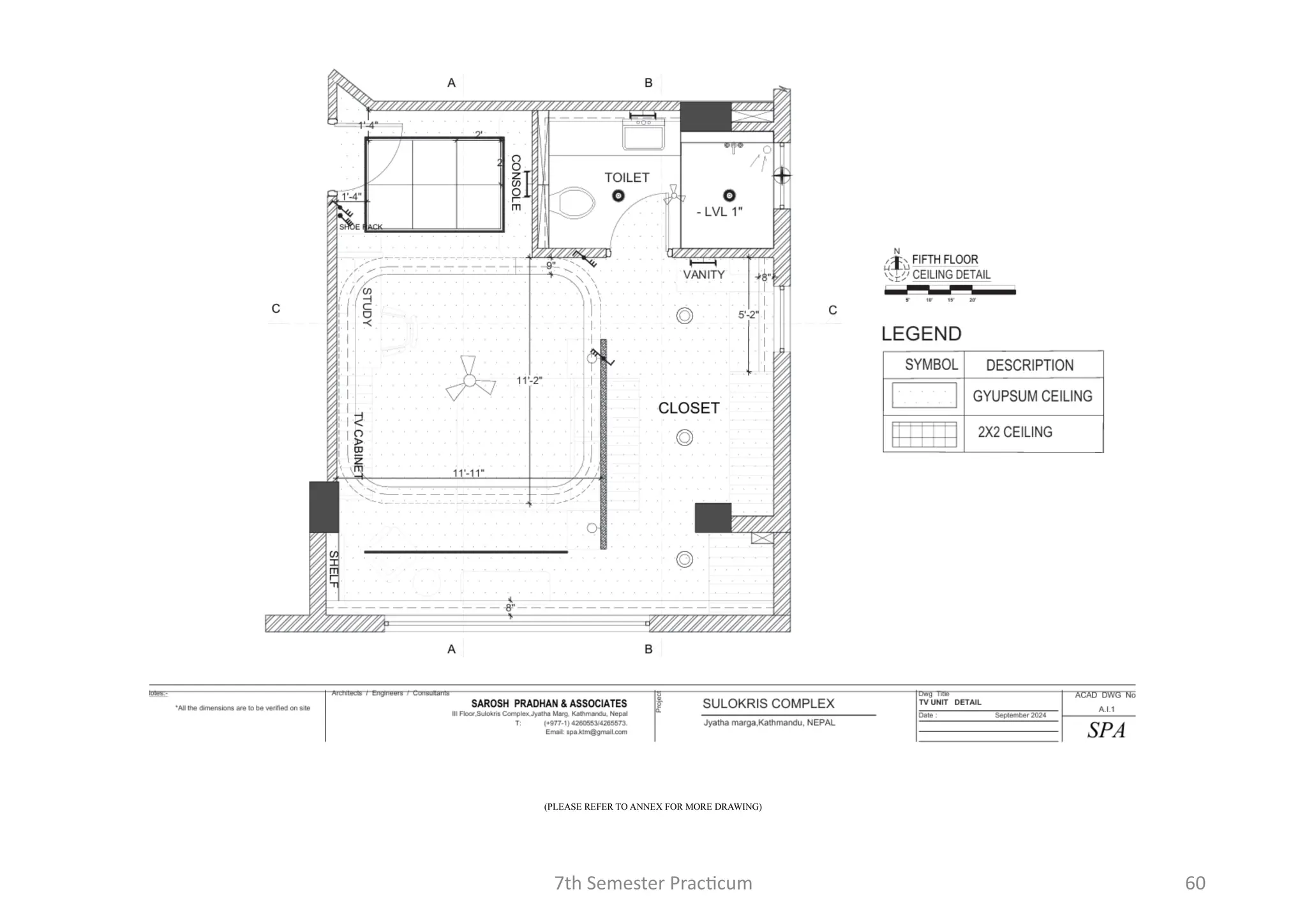
(PLEASE REFER TO ANNEX FOR MORE DRAWING)
7th Semester Practicum 57
(PLEASE REFER TO ANNEX FOR MORE DRAWING)
7th Semester Practicum 58
(PLEASE REFER TO ANNEX FOR MORE DRAWING)
7th Semester Practicum 59
(PLEASE REFER TO ANNEX FOR MORE DRAWING)
7th Semester Practicum 60
(PLEASE REFER TO ANNEX FOR MORE DRAWING)
61
CONSTRUCTION
SITE VISIT
11
MY INVOLVEMENTS
• Report
During my internship, I had the
opportunity to visit the construction site of
Khatri Niwas/Residence. Accompanied by
Er. Ram Sir, the visit provided a valuable
chance to observe and understand the
construction process in detail.
We closely studied the structural
framework of the building, which gave us a
clearer picture of how the "bones" of the
structure are formed and how different
elements come together to create a solid
foundation. This hands-on experience not
only enhanced my understanding of
construction techniques but also provided
practical insights into how structural
designs are implemented on-site. It was an
enriching learning opportunity that
deepened my appreciation of the
construction process
7th Semester Practicum 62
SITE SUPERVISION AND OBSERVATIONS:
FIG: BAR SET FOR RCC PUNNING FIG: BAR SET FOR RCC PUNNING
7th Semester Practicum 63
FIG:STAIRCASE DETAIL
FIG:RCC PUNNING
FIG: STAIRCASE DETAIL
ATTAINMENTS
•LEARNED ABOUT THE SITE OBSERVATION AND
HOW RCC IS DONE.
•LEARNED ABOUT THE HOW BAR ARE SET AND
HOW IT NEEDE TO BE DONE.
64
MISCELLANEOUS
12•SPA Presentations & Dialouges
•Heritage Walk to Basantapur Durbar Square.
During my internship, I was given the
opportunity to deliver a presentation based on
my experiences and insights gained during the
program. For this, I chose the topic "The Art
of Letting Go," where I explored the concept
of releasing attachments, embracing change,
and finding growth through challenges, both
personally and professionally.
Preparing for the presentation was an enriching
process, as it allowed me to reflect deeply on
my journey and organize my thoughts
creatively. While presenting, I shared stories
and perspectives that resonated with the
audience, sparking meaningful discussions
about overcoming obstacles and adapting to
new opportunities.
This experience not only improved my ability
to communicate effectively but also boosted
my confidence in presenting ideas to a group.
It was a valuable moment in my internship,
enabling me to connect with others while
sharing lessons that had impacted me
profoundly.
7th Semester Practicum 65
7th Semester Practicum 66
LEARNING FROM A FELLOW INTERN'S PRESENTATION:
During my internship, I had the privilege of listening to a
presentation by one of my fellow intern mates. Her presentation, titled
"Sounder," was deeply thought-provoking and offered a fresh
perspective on life and emotions.
As she shared her insights, I found myself reflecting on my own
feelings and how I engage with everything around me. Her words
made me question how I emotionally connect with my work, my
actions, and even the people I interact with. It was a moment of
realization that we often overlook the deeper emotional aspects of
what we do.
Her presentation not only inspired me to be more mindful of my
emotional responses but also encouraged me to approach life with
more awareness and intention. It reminded me of the power of
different perspectives and how they can help us grow, understand
ourselves better, and find more meaning in our everyday experiences.
7th Semester Practicum 67
One of the most memorable days during my internship was when our team took a
walk through the historic Basantapur Durbar Square. This excursion was not only a
chance to explore a cultural landmark but also a deeply enriching experience that
allowed us to learn more about the architectural beauty and heritage of Nepal. As
we walked through the square, we were able to observe the seamless harmony
between the buildings, understanding how Nepalese architecture has been carefully
designed to reflect the country’s rich cultural history while remaining balanced with
its core essence.
We had the opportunity to discuss the unique architectural features of the buildings,
and it was fascinating to see how the traditional elements were integrated into the
structures, preserving the historical significance while meeting contemporary needs.
This walk gave us a deep appreciation for the cultural value embedded in the
architecture and how it continues to shape the identity of the place.
In addition to the architectural exploration, we had a memorable talk session with
visitors from the United States who were visiting Nepal. This interaction added an
international perspective to our experience, as we shared our thoughts on Nepalese
culture and architecture, and they shared their experiences of visiting the country. It
was a beautiful exchange of ideas, and it made us realize how architecture can
bridge cultural divides and bring people together.
While learning about architecture and culture, the day also turned into an
opportunity for self-reflection. As we spent time together as a team, walking
through the historic space and engaging in discussions, we realized the importance
of being present with ourselves and the team. The experience allowed us to reflect
on our personal journeys, our values, and how we contribute to the work we do. It
reminded us that reflection, both individually and as a team, is key to understanding
our purpose and strengthening our bond as professionals.
This day was a perfect blend of learning, cultural exchange, and personal growth. It
was an experience that not only enriched our knowledge of Nepalese architecture
but also encouraged us to reflect on our own paths, shaping how we approach both
our personal and professional lives.
HERITAGE WALK
7th Semester Practicum 68
CONCLUSION
My experience at Sarosh Pradhan and Associates (SPA) has truly been an enriching journey, one that has allowed me to explore my interests,
gain self-awareness, and grow in ways I had never imagined, both personally and professionally. From the very beginning, I felt welcomed by the
team, whose guidance and support played a pivotal role in shaping my skills and deepening my understanding of architecture.
Working at SPA exposed me to a wide range of architectural practices and gave me the opportunity to observe the real-world application of
design principles, which I had only previously encountered in theory. Throughout my internship, I was fortunate to be involved in various stages
of design and planning, and this hands-on experience enabled me to gain practical insights into how architecture is conceptualized, refined, and
executed.
One of the most valuable aspects of my time at SPA was the exposure I had to numerous presentations and discussions. These sessions were a
treasure trove of knowledge, where I was able to learn from professionals who have years of experience in the field. Each discussion, whether it
focused on design concepts, project management, or client relations, expanded my understanding of the multifaceted nature of architecture. I was
able to witness firsthand how architects approach complex challenges, make informed decisions, and find creative solutions.
Having the opportunity to communicate my own ideas during these sessions significantly boosted my confidence. Presenting my thoughts and
designs, both to the team and clients, helped me refine my communication skills and taught me how to express my ideas clearly and effectively.
The constructive feedback I received was invaluable, allowing me to grow as a designer and presenter.
Beyond the technical and design insights, I also had the chance to immerse myself in a broader architectural culture. I was encouraged to read a
variety of architectural books, which opened my eyes to different architectural styles, philosophies, and global trends. These readings, coupled
with visits to numerous construction sites and historical buildings, broadened my perspective and enhanced my ability to see architecture from
different viewpoints. I began to appreciate not only the technical elements of architecture but also its cultural, historical, and emotional
significance. The sites I visited allowed me to witness how architecture influences and interacts with the environment and people, further
deepening my understanding of its role in shaping our world.
My time at SPA has been an incredibly productive and enjoyable learning experience. I have gained more than just technical skills; I have gained
a deeper understanding of myself and my passion for architecture. The exposure to diverse architectural practices, coupled with the mentorship
and encouragement from the SPA team, has been instrumental in shaping my approach to design and my future career path. The lessons learned,
both in design and personal development, will undoubtedly play a crucial role in the progression of my architectural career.
As I move forward in my journey, I am confident that the experiences I had during my time at SPA will serve as a solid foundation for my
professional growth. The opportunity to work alongside talented professionals, engage in meaningful discussions, and experience architecture in
its many forms has enriched my knowledge and prepared me for the challenges and opportunities that lie ahead. I am truly grateful for the chance
to learn and grow with SPA, and I will carry the lessons I have learned with me throughout my career.
7th Semester Practicum 69
REFRENCE
https://www.goodreads.com/book/show/45150317-paths-uncharted https://www.nasisbooks.com/wp-content/uploads/2020/02/THE-GREEN-
HOUSE-New-Directions-in-Sustainable-Architecture.jpg
Please refer to annex for more detailed drawings , rendered images , site pictures etc.

INTERN PPT [Autosaved] INTERNSHIP PRESENTATION_1_3.pptx

  • 1.
  • 2.
    7th Semester Practicum2 “the idea is not to live forever, but to create something that will” ANDY WARHOL
  • 3.
    7th Semester Practicum3 ACKNOWLEDGEMENT The practicum period has been an immensely fulfilling and transformative chapter in my journey as an architecture student. It has allowed me to bridge the gap between theoretical knowledge and its practical application in the real world. I am truly thankful for this invaluable experience. First and foremost, I extend my heartfelt gratitude to the Department of Architecture at Nepal Engineering College for granting me the opportunity to undertake this practicum. The wisdom imparted by my professors, coupled with the unwavering support of my friends, has played a pivotal role in my growth and development. I am equally grateful to Principal Architect Ar. Sarosh Pradhan and Principal Interior Designer Rajshree Sahu Pradhan for welcoming me as a trainee architect at Sarosh Pradhan & Associates. Their esteemed firm provided a nurturing environment for learning and deepened my understanding of both architecture and interior design. I am particularly indebted to my supervisor, Ar. Krishna Prashad Bhandari, whose constant guidance, encouragement, and mentorship have been invaluable throughout this experience. I would also like to express my sincere appreciation to Ar. Utsabi Thapa, Ar. Manisha Shrestha, and IA Tshering Sherpa, whose technical expertise and kind support greatly enhanced my learning journey.Lastly, I would like to thank my dear friends, Kritika Gurung and Srizan KC, whose collaboration, camaraderie, and unwavering support were instrumental in our collective success.This practicum has undoubtedly been a pivotal moment in my academic and professional development, and I am deeply grateful to everyone who contributed to making it such a memorable and enriching experience. Thank you.
  • 4.
    7th Semester Practicum4 ABSTRACT This report is prepared as the final assignment for the practicum course, which is part of the seventh semester of the Bachelor’s in Architecture program at Nepal Engineering College. The primary aim of this course is to provide students with a comprehensive understanding of professional architectural practice, enabling them to experience the real-world challenges and complexities of the field. Through this internship, students are exposed to the practical aspects of architecture, bridging the gap between academic learning and professional application. It allows us to witness firsthand how design concepts, technical knowledge, and client interactions come together in a professional setting. This experience has not only enhanced my technical skills and design thinking but has also deepened my understanding of the discrepancies that may exist between academic theory and real-world practice. Ultimately, the goal of the practicum is to prepare students for the realities of the architectural profession, equipping them with the tools to navigate its challenges and responsibilities. This report reflects the insights and lessons gained throughout the internship, highlighting both the growth and learning achieved during this experience..
  • 5.
    7th Semester Practicum5 TABLE OF CONTENT Acknowledgement Abstract INTRODUCTION Introduction to the Practicum..................................................................................................................... 9 Objectives of Practicum .............................................................................................................................10 Office Profile ............................................................................................................................................ 11 Works performed during the Internship Period ........................................................................................ 12 Why SPA ? ................................................................................................................................................ 13 Work Methedology of the Office .............................................................................................................. 14 Self Reflection Essay ................................................................................................................................ 15-16 BODY Sulokris……………………………………………………………………………………………………17-22 Potter Accommodation………………………………………………………………………………….....23- 27 Brakka Village……………………………………………………………………………………………. 28-31 Khatri Residence…………………………………………………………………………………………. 32-36 World Bank……………………………………………………………………………………………….. 37-39 Memorial Park…………………………………………………………………………………………...40-45 Design Competition………………………………………………………………………………………. 46-50 Mixed Used Residence…………………………………………………………………………………….51- 54 Rimpoche Residence……………………………………………………………………………………… 55- 56 Working Drawing………………………………………………………………………………………… 57-62
  • 6.
    7th Semester Practicum6 TABLE OF CONTENT Construction site visit……………………………………………………………………………………….63-65 Miscellaneous …………………………………………………………………………………………..66-69 SPA Presentations & Dialouges................................................................................................................66-68 Heritage Walk to Basantapur Durbar Square……………………………………………………………69 CONCLUSION …………………………………………………………………………………….......70 References……………………………………………………………………………………………….71
  • 7.
    7th Semester Practicum7 TABLE OF CONTENTS 9" 1. Sulokris 2. Potter Accommodation 3. Brakka Village 4. Khatri Residence 5. World Bank 6. Memorial Park 7. Design Competition 11. Working Drawing 8. Mixed Used Residence • Tenzing Memorial Park • Bhrakka village • Proter’s accomodation • Sulokris • Khatri residence • Mixed Used Residence • Rinpoche Residence • Nunnery • Baha-I temple • Shikar Insurance • World bank Mountain Architecture Design competition Residential Building Working Drawing and presentation Office TYPES OF WORK • Interior detail • Presentaion • Working drawing of residence 9. Rinpoche residence
  • 8.
    7th Semester Practicum8 PROJECTS •SULOKRIS •PORTER'S ACCOMODATION •BHRAKKA VILLAGE •KHATRI RESIDENCE •WORLD BANK CENTER •TENZING HERITAGE PARK •NUNNERY •BAHA-I WORSHIP HOUSE •SHIKHAR INSURANCE •MIXED USED RESIDENCE •RINPOCHE NIWAS CONCEPT ARCHITECTURAL DRAWING 3D MODELLING ANIMATION AND RENDRING MUNICIPAL DRAWING INTERIOR SITE VISIT NATURE OF WORK NO INVOLVEMENT BASIC INVOLVEMENT MAJOR INVOLVEMENT
  • 9.
    7th Semester Practicum9 INTRODUCTION A practicum in architecture is an important opportunity for students to gain practical experience and apply what they have learned in the classroom to real-world architectural projects. This hands-on training is crucial for students as it helps bridge the gap between theory and practice, preparing them for a successful career in the field of architecture. During the practicum, students work with professional architects and engage in various aspects of architectural practice. One key area is design, where students get to create and develop architectural ideas for real projects. This allows them to refine their creativity and design skills in a professional environment. Additionally, students gain site experience by visiting construction sites, helping them understand how buildings are actually constructed and how to work with contractors, materials, and other professionals. Another important aspect of the practicum is working and structural drawings. Students learn to create detailed technical drawings, which are essential for any architectural project. They also get experience in 3D modeling, using digital tools to visualize their designs in three dimensions. This skill is becoming increasingly important in modern architecture and design. In addition to these technical skills, students are introduced to building laws and regulations. They learn how architectural designs must comply with local building codes and legal requirements, a crucial part of ensuring safety and sustainability in the built environment. Students also gain an understanding of contract documentation, learning about the legal and administrative side of architecture, including contracts, project paperwork, and the approval process.Overall, the practicum provides students with invaluable real-world experience. It allows them to develop practical skills, learn how to navigate professional environments, and build the confidence they need to succeed in their future careers. By working alongside experienced professionals, students gain a deeper understanding of the architectural profession and are better prepared to face the challenges and opportunities of the field
  • 10.
    7th Semester Practicum10 OBJECTIVES FOR ARCHITECTURAL INTERNSHIP: • 🌟 Gain Practical Experience Engage in architectural design and project execution through hands-on involvement in diverse projects. • 📚 Apply Academic Knowledge Contribute to projects by applying theoretical insights and creative problem-solving skills. • 💻 Enhance Technical Expertise Improve proficiency in architectural software and tools to deepen technical understanding. • 🏗 Develop Practical Skills Learn key aspects of project management, budgeting, and client interaction. • 🌱 Embrace Sustainable Design Understand and integrate environmentally responsible design principles in every project. • 🤝 Collaborate and Learn Work with experienced professionals to broaden your architectural perspective and skills. • 🚀 Prepare for Career Success Build a strong foundation for a future career as a proficient and innovative architect.
  • 11.
    7th Semester Practicum11 OFFICE PROFILE Sarosh Pradhan & Associates (SPA) is an esteemed architectural firm that has been shaping the skyline of Nepal since 1996. Founded by the visionary duo Sarosh and Rajshree Pradhan, SPA stands at the crossroads of innovation, cultural preservation, and environmental responsibility. Over the years, the firm has earned a reputation for its bold, thoughtful designs and an unwavering commitment to sustainability, capturing the essence of Nepal’s natural beauty and heritage in every project. SPA’s portfolio is a testament to its creative and technical progess. The firm has triumphed in several prestigious National Design Competitions, including the Tewa building, the Sainbu Community Centre, and the iconic Sculptural Memorial at the U.S. Embassy in Nepal. Each project reflects a deep respect for the site, the community, and the unique cultural context.Notable among SPA’s works are the interiors of the World Bank and Asian Development Bank (ADB) offices in Kathmandu, which showcase the firm’s ability to blend global sophistication with local craftsmanship. Currently, SPA is immersed in the Brakka Village and Poter’s Accommodation project , a groundbreaking initiative that blends sustainable architecture with the rugged beauty of the Himalayas. Each of these projects showcases SPA’s dedication to creating spaces that are not only visually striking but also deeply connected to the environment and the people who inhabit them. From contemporary urban spaces to remote Himalayan retreats, Sarosh Pradhan & Associates continues to push the boundaries of design, crafting architectural works that resonate with beauty, innovation, and sustainability. Address : Sulokris complex, Jyatha Marg, Kathmandu Established: 1996 Contact: 01-4260553 Email: spa.ktm@gmail.com Website : spaktm.wixsite.com
  • 12.
    7th Semester Practicum12 WORKS PERFORMED DURING THE INTERNSHIP PERIOD Planning and Elevation Treatments: Contributed to the development of building layouts and elevation designs, ensuring both aesthetic appeal and functional efficiency. Architectural Visualization: Created detailed 3D models and rendered visuals using tools like SketchUp, Lumion, Enscape, Photoshop, and Illustrator to bring design concepts to life. Landscape Design: Assisted in designing outdoor spaces, blending natural elements with architectural structures for a harmonious environment. Interior Design: Played a role in shaping interior spaces, selecting materials, furnishings, and layouts to enhance functionality and aesthetics. Municipal Drawings (Nagarpalika): Developed precise and compliant drawings for local municipal standards, ensuring adherence to regulations and guidelines. ( Had workshop) Designing Auxiliary Building Services: Worked on the design of elements such as furniture, partitions, and lighting, contributing to the overall comfort and usability of spaces. Planning, Design Alterations & Revisions: Actively participated in making revisions to design plans, improving functionality, and accommodating client feedback. Site Supervision: Gained hands-on experience by overseeing construction sites, ensuring that work was executed according to plans and quality standards. Presentations & Client Dialogues: Engaged in preparing compelling presentations and facilitated communication with clients to understand their needs and deliver design solutions. Architectural Competitions: Took part in architectural competitions, demonstrating creativity, innovation, and problem-solving skills under pressure.
  • 13.
    7th Semester Practicum13 WHY SPA? From the moment I began my journey in architecture, I have been fascinated by the intricate reasons behind how and why things work the way they do. This curiosity has driven me to constantly seek a deeper understanding of the built environment and the elements that shape it. I realized early on that to truly refine my perspective and develop my design skills, I needed to expose myself to a variety of experiences and learn from the best in the field. When the time came to apply for internships, I focused on finding a firm that would not only challenge me but also provide a diverse range of opportunities for growth. I wanted to work in an environment where I could explore different aspects of architecture and design, and, more importantly, where I could truly discover my strengths and passions. That’s when Sarosh Pradhan & Associates caught my attention. With over 25 years of excellence in architectural practice, the firm stood out as a beacon of innovation, creativity, and experience. It offered a rich learning environment where I knew I would be encouraged to think critically, explore new ideas, and contribute meaningfully to the projects at hand. The opportunity to work alongside a talented team of professionals in such a collaborative atmosphere was exactly what I was looking for. The firm's reputation for exceptional design, paired with its culture of mentorship and teamwork, made it the ideal place to foster my growth as an architect. I was drawn to the idea of not only learning from seasoned experts but also contributing my own perspective to the collective effort. Sarosh Pradhan & Associates wasn’t just a firm—it felt like a community where each individual’s unique skills and ideas were valued. This sense of belonging and mutual respect fueled my enthusiasm to join the team and immerse myself in the hands-on, dynamic experiences the firm offered.
  • 14.
    7th Semester Practicum14 WORK METHODOLOGY • Handover •Site Visit and Report •Design development •Final Plan •Construction •Client meeting •Service and Structural Drawing •Working Drawing •Literature Review •Brainstorming •Program Formulation •Zoning •Schematic Plan
  • 15.
    7th Semester Practicum15 My name is Nishan Karki, and I come from the stunning and culturally diverse country of Nepal. A land known for its breathtaking landscapes, rich traditions, and vibrant religious heritage. But for me, it is the sight of my father, working tirelessly and sacrificing so much, that defines my story and inspires my purpose. Growing up, I watched my father dedicate his entire income to build a simple, one-story house. Every brick he laid was a symbol of his hopes and dreams for our family. It wasn’t just about putting a roof over our heads—it was about creating a place we could call our own, a safe haven that held the promise of a better future. Seeing the weight of that responsibility on his shoulders, I realized how much a home truly means. It’s not just a structure; it’s the manifestation of years of hard work, love, and sacrifice. That moment planted a seed in my heart, and from then on, I knew that I wanted to be an architect. It wasn’t just about designing buildings for me. It was about helping people like my father, who dream of giving their families a secure home, even if it’s just a small one-story house. That dream stayed with me, fueled by the desire to make a difference in the lives of others who share that same hope. I wanted to be the person who could turn those dreams into reality, someone who understood the emotional weight behind every blueprint, every wall, and every corner of a house. The road to becoming an architect was not easy. There were moments of doubt, times when the challenges felt too great, and the path ahead seemed unclear. But through it all, I held onto the image of my father, working late into the night to make our house a reality. That image kept me going, and I knew that if he could persevere for his family, then I, too, could overcome whatever stood in my way. Today, I am living the dream that once seemed so distant. But it’s not just my dream. It’s the dream of countless fathers and families who long to build a home of their own. A home that represents stability, love, and a future filled with possibilities. I feel a deep sense of responsibility to honor their dreams and to help make them come true. Looking back, I realize that my journey was never just about me. It was about something far bigger—helping others achieve what my father worked so hard for. In a country as beautiful and diverse as Nepal, where culture and tradition meet modernity, I know that I am part of something special. I am proud to contribute to the dreams of so many, knowing that, in some small way, I am helping to build not just homes but legacies. SELF-REFLECTION ESSAY
  • 16.
    7th Semester Practicum16 Architecture, for me, is deeply emotional. It isn’t just about the technical skills, the blueprints, or the aesthetics—it’s about the stories that are embedded within the walls of every home. Each house tells the story of a family, their hardships, their triumphs, and their dreams for the future. Watching my father build our home taught me that even a modest one-story house can carry immense emotional weight. It’s not about grandeur but about the personal significance that a space holds for the people who live in it. As I pursued my education in architecture, my interest only deepened. I became fascinated with how architecture shapes not just physical spaces, but the lives and emotions of the people who inhabit them. In Nepal, with its rich history of intricate temples, traditional homes, and centuries-old designs, I found endless inspiration. The way Nepali architecture blends culture, spirituality, and practicality fascinated me. I saw how even the smallest details in a structure could tell stories, preserve heritage, and create a sense of belonging.But I also realized that modern architecture could be a powerful tool for change. I wanted to design homes that were not only functional but deeply meaningful to the people who would live in them. I wanted to contribute to something bigger—helping families, like my own, achieve their dreams of having a place they could truly call home. Each blueprint, each design I create now carries the weight of this responsibility and the deep personal connection I have with my craft. Architecture, for me, is a way to give back, to honor the sacrifices of people like my father, and to help others achieve what he worked so hard for. My journey is more than a professional pursuit—it is a personal mission. Every house I design isn’t just a structure, it’s a dream realized, a future secured, and a space where lives will grow and flourish. I now live the dream that was once planted in my heart, but I carry with me the dreams of so many others—fathers, mothers, and families who long for the security and comfort of a home. And through architecture, I have the privilege of helping to bring those dreams to life.
  • 17.
    17 SULOKRIS COMPLEX 01Owner: Sarosh Pradhan Area: Location:Jyatha Marg, Thamel Project Type: Apartment Renovation MY INVOLVEMENTS • Site visit • Design development • 3d rendering • Puja room • Foyer space designing • Working drawing RENOVATING FLOORS (5TH AND 6TH ) The project involves the interior renovation of an apartment, with the client’s request for a modern and luxurious makeover. The renovation includes transforming key areas to reflect this modern theme while maintaining functionality and comfort. The 5th and 6th floor of the building was to be redesigned.
  • 18.
    7th Semester Practicum18 FIG:EXISTING PLAN FIG:DISMENTAL PLAN The initial assessment of the 5th-floor apartment revealed significant circulation issues, primarily caused by congested rooms and poorly positioned doors. These factors obstructed easy movement throughout the space, affecting the overall functionality of the layout. To address these issues, it was determined that changes to the door placement would be necessary. These adjustments aim to improve the flow between rooms and enhance the overall spatial experience, making the apartment more accessible and comfortable for its occupants during the renovation process. Following a comprehensive assessment and design development, several key changes were implemented to enhance the apartment's layout and functionality. These changes included: Dismantling Walls Leading to the Balcony: •The walls connecting the living room to the balcony area were removed. •This created a more open and expansive living space, allowing for better natural light and improved ventilation. •The removal of these walls also enhanced the visual connection between the interior and exterior, making the space feel larger and more inviting. Concealing the Partition Wall Between the Kitchen and Living Area: The partition wall separating the kitchen and living area was concealed to create a more unified and cohesive design. This modification improved the spatial flow, ensuring smoother transitions between the two areas. By opening up the layout, the kitchen and living areas became more functional and better suited for modern living. These strategic changes were carefully planned and executed to maximize the apartment's usability, comfort, and aesthetic appeal. (PLEASE REFER TO ANNEX FOR MORE DRAWING)
  • 19.
    7th Semester Practicum19 FIG:NEW LAYOUT PLAN • removal of puja space and shifting it to the 6th floor • decreased of TV wall making more spacious with storage of 7’ length FOYER TV WALL Before construction commenced, a site visit was conducted to gain practical insights into modifying the space to align with the modern design theme. During this visit: Hands-On Space Assessment: •The visit provided an opportunity to analyze how the existing layout could be adapted to meet the project's requirements. •The goal was to ensure that the design enhancements would seamlessly integrate with the modern aesthetic. Design Research for Sara’s Bedroom: •I was assigned the responsibility of researching and developing design concepts specifically for Sara’s bedroom. •The focus was on creating a functional and visually appealing space that aligned with the overall design theme. Client Input and Vanity Area Expansion: •The client expressed a desire to expand the vanity area during the visit. •This feedback was promptly incorporated into the design plan to meet their expectations and enhance the functionality of the space. The site visit played a crucial role in aligning the design vision with practical requirements while addressing the client’s preferences effectively. FIG:CHANGE PLAN DURING CONSTRUCTION SITE VISIT (PLEASE REFER TO ANNEX FOR MORE DRAWING)
  • 20.
    7th Semester Practicum20 MY MAJOR INVOLVEMENT Asmall puja room in Hindu house architecture is a dedicated space for prayer, meditation, and worship, designed to foster serenity and spirituality. It typically features an altar adorned with images or idols of deities, often complemented by symbolic items such as lamps, bells, and sacred texts. The room's layout is deliberately simple and uncluttered, emphasizing a tranquil and sacred atmosphere conducive to devotion. Natural materials like wood, stone, or marble are commonly used for the altar and other elements to maintain a connection with nature and enhance the purity of the space. Soft lighting, often from diyas or candles, adds to the calming environment, creating a warm and inviting glow during rituals or personal reflection. Offerings such as incense, flowers, fruits, and water are central to the space, symbolizing respect and devotion to the divine. This sacred area is not just a physical space but also a representation of the family’s spiritual connection, mindfulness, and commitment to their faith. It provides a peaceful retreat within the home, encouraging moments of quiet reflection, gratitude, and prayer, making it an integral part of Hindu house architecture. PUJA ROOM DESIGN FOYER DESIGN The client, fascinated by the beauty of mountains and stone, wanted the foyer design to reflect these natural elements. To achieve this, stone flushes were incorporated into the wall, creating a sleek, textured feature. The addition of flush lighting further enhances the stone’s appeal, highlighting its natural texture and depth, and adding warmth to the space. This combination not only makes the entrance visually striking but also creates a welcoming atmosphere, aligning perfectly with the client’s appreciation for the beauty of stone while ensuring the foyer feels inviting and elegant. FIG:PUJA ROOM DESIGN OPTION FIG:FOYER DESIGN OPTION (PLEASE REFER TO ANNEX FOR MORE DRAWING)
  • 21.
    7th Semester Practicum21 CHANNELING AND FRAME WORKING WITH GYPSUM BOARD PLACING SITE OBSERVATIONS WATER PROOFING NOT TO BE DONE ON SHARP EDGES , MIGHT TEAR OR CRACK During my site observation, I had the opportunity to deepen my understanding of various aspects of construction and design, which proved to be an enriching learning experience. One of the most significant lessons I learned was about waterproofing. I observed firsthand how waterproofing is applied on smooth cove surfaces. This step is crucial in preventing water damage and ensuring the longevity of the structure, especially in areas exposed to moisture. The process, while technical, plays a vital role in maintaining the integrity of the space, and it was interesting to see how every layer of waterproofing contributes to the overall protection of the building. Another aspect I found particularly fascinating was the use of cove false ceiling lighting. I had previously read about its benefits, but seeing it implemented on site truly brought its impact to life. The indirect, soft glow created by the lighting added a unique warmth to the space, making it feel both welcoming and comfortable. This lighting technique not only serves a functional purpose by providing ambient light but also enhances the aesthetic appeal of the room, creating a cozy atmosphere that is both modern and timeless. It was inspiring to see how such a simple design element could drastically change the mood of a room. Additionally, I had the chance to observe wardrobe designs incorporating strip lighting fixtures. These lighting elements are integrated into the wardrobe structure, not only to illuminate its contents but also to add a sleek, contemporary touch to the design. The strip lighting, which is often subtle, enhances the overall visual appeal of the room, making the wardrobe an elegant and functional feature. It was enlightening to see how lighting can elevate both the functionality and beauty of a space, making it more than just a storage solution but also a design focal point. Perhaps one of the most valuable aspects of my site observation was learning how to properly observe a construction site. It’s one thing to study design and construction techniques in theory, but being on site allowed me to see how everything is brought together. I learned to pay close attention to the details and how each decision, whether it’s a material choice or construction method, affects the overall project. It was a great experience to sit down with the workers and ask them about their processes. I gained a deeper understanding of the challenges they face, how they approach their work, and the steps they take to ensure everything is done correctly. This interaction allowed me to appreciate the complexity of the construction process and the collaborative effort involved. Overall, this site observation not only helped me connect theoretical knowledge with practical experience but also gave me a greater appreciation for the craft of construction. It was a valuable opportunity to witness the integration of design elements and construction techniques, and it enhanced my understanding of how every detail matters in creating a well-designed space. This experience has inspired me to continue learning and growing in the field of architecture, and it has reinforced my passion for the design and construction process.
  • 22.
    7th Semester Practicum22 One of the most significant challenges we encountered during the design process was when the client changed the layout midway through construction. This unexpected alteration required us to revisit much of the work and redesign certain aspects, leading to a complete overhaul of the plans. Unfortunately, this also resulted in additional costs for the client, as the workers had to be compensated for the extra labor, adding financial strain to the project. Another hurdle we faced was subpar workmanship, which affected the quality and precision of our design. The poor craftsmanship hindered our ability to bring the vision to life as intended. In response, we had to replace some of the workers, which caused further delays and disrupted the project's timeline. This setback prevented us from delivering the final design on schedule. However, despite these challenges, we remained determined to deliver a beautiful, well-crafted final product. Through perseverance, strategic adjustments, and collaboration, we were able to overcome the obstacles and complete the project to the client's satisfaction, turning the difficulties into opportunities for growth and improvement. The final design not only met but exceeded expectations, proving that challenges, though difficult, can ultimately enhance the outcome when approached with dedication and resilience CHALLENGES AND DISCUSSION • To design by acknowledging the essence of the given space. • Improved my renderings and 3d software skills. • Enhancement in detail drawings. • Gained insights in choosing and creating material palate and mood boards. ATTAINMENTS (PLEASE REFER TO ANNEX FOR MORE DRAWING) FIG:SITE VISIT FIG: LIVING ROOM RENDER
  • 23.
    23 PORTERS ACCOMMODATION “Nims dai Foundation” 02 Owner:Nims Dai Foundation Area: Location: Lobuche, khumbu Project Type: Hospitality Mountain Status: Under Construction MY INVOLVEMENTS • Working drawings • Furniture details The Nims Dai Foundation's project in Lobuche provides much-needed accommodation for porters, who carry heavy loads for long hours with limited shelter. The facility will offer a resting place for 100 porters during the climbing season, with essential amenities for their comfort. This initiative not only meets a practical need but also honors the crucial role porters play in mountaineering, showing respect for their hard work and dedication.
  • 24.
    7th Semester Practicum24 Lobuche is a small yet strategically important Sherpa settlement located on the trekking route to Everest Base Camp in Nepal’s Khumbu region, at an elevation of 4,940 meters (16,210 feet). It serves as one of the last major overnight stops for trekkers and climbers before reaching Base Camp. This modest village holds significant value, particularly during the spring climbing season, when it becomes a vital rest stop for porters. These porters, who carry heavy loads of supplies, climbing gear, and luggage for mountaineers, pass through Lobuche on their way to Everest Base Camp and other higher-altitude locations, making the village an essential part of their journey. In addition to supporting trekkers and climbers, Lobuche plays a crucial role in the local economy, especially during the peak climbing season. The settlement provides a resting point for porters and trekkers who need to acclimatize to the high altitude before continuing their journey. It offers basic amenities and shelter, which are critical for those traveling in the harsh conditions of the Himalayas. The village’s strategic location and its role in the acclimatization process make it indispensable for the success of mountaineering expeditions. Lobuche is also a cultural hub for the local Sherpa community, who are renowned for their mountaineering expertise and hospitality. It offers a unique opportunity for trekkers to connect with Sherpa culture and traditions, while also supporting the livelihoods of the community. The Sherpas' role in Everest expeditions is invaluable, and Lobuche serves as a key point where trekkers, climbers, and porters interact with the local culture. Despite its modest size, Lobuche is a critical point in the trekking and mountaineering network of the Khumbu region. It provides not only logistical support for those traveling to Everest but also contributes to the broader cultural and economic fabric of the area. The settlement continues to play an essential role in the success of mountaineering expeditions, offering shelter, rest, and resources to those on their journey to the world’s highest peak. EXISTING SITE CONDITIONS: FIG: ELEVATION
  • 25.
  • 26.
    7th Semester Practicum26 MY MAJOR INVOVLEMENT FURNITURE DETAIL I was assigned the task of creating the furniture details for the dining room and the bedroom, two spaces that require a balance of form and function. In the dining room, I had to ensure that the furniture not only fit perfectly within the space but also allowed for the comfort and convenience of its users. Similarly, for the bedroom, the challenge was to design furniture that was both functional for storage and visually appealing to create a relaxing, comfortable atmosphere. WORKING DRAWING During my internship, I had the opportunity to be involved in one of the most significant projects that was in the construction phase, which greatly enhanced my practical experience and knowledge. My primary responsibility in this project was to work on the working drawings for the floor plans and room details, including all the essential specifications that would be implemented during construction. This allowed me to have a deeper understanding of the project’s layout, functionality, and the intricacies of how each element fits together. (PLEASE REFER TO ANNEX FOR MORE DRAWING) (PLEASE REFER TO ANNEX FOR MORE DRAWING)
  • 27.
    7th Semester Practicum27 While it was initially difficult and overwhelming, the experience turned out to be incredibly rewarding. The guidance and mentorship from my supervisor played a key role in my growth throughout this process. They provided constructive feedback, helped me refine my work, and encouraged me to think critically about every detail. This support allowed me to overcome challenges and develop my skills in furniture design and drafting. By the end of the project, I was proud of the furniture details I had created, knowing that they would be integral parts of the spaces I had worked on. This experience was not only an invaluable learning opportunity but also a reminder of the importance of attention to detail, problem-solving, and creativity in design. It gave me a much deeper understanding of the design process and reinforced my passion for pursuing a career in architecture and interior design. One of the most exciting yet challenging tasks I faced during this project was preparing the furniture details. This was an entirely new area for me, as our academic curriculum had not focused much on the technical aspects of designing and detailing furniture. It was a steep learning curve because I had to meticulously work out every detail for various pieces of furniture, ensuring they aligned with the overall interior design vision. From measurements to materials and construction techniques, every aspect required precision and careful consideration to meet both aesthetic and functional requirements. CHALLENGES AND GUIDANCE (PLEASE REFER TO ANNEX FOR MORE DRAWING) FIG:INTERIOR LAYOUT
  • 28.
    7th Semester Practicum28 •Integrating local architectural styles and traditions to align with the community's identity. •Understanding the importance of creating resilient, functional spaces for individuals in demanding professions like porters. •Ensured the development of working drawings and detailed furniture designs using CAD and 3D modeling tools. ATTAINMENTS (PLEASE REFER TO ANNEX FOR MORE DRAWING) FIG:INTERIOR LAYOUT
  • 29.
    29 BRAKKA VILLAGE 03Owner: Area: Location: Bhraka, Manang ProjectType: Residential/ Hospitality Location: Bhraka, Manang Status: 2013-Ongoing MY INVOLVEMENTS • Site plan render • Design of various interior spaces • Focused on detailing for construction. • Working drawings, Sections, Elevations, and Other necessary documentation Located in the heart of Bhrakka Village, Manang, Bhrakka Village Resort serves as a key check- point for trekkers visiting nearby attractions such as Ice Lake, Milarepa Cave, and Tilicho Lake. After a period of hiatus, the project has resumed with a focus on interior design and various renovations to enhance the resort’s facilities.
  • 30.
    7th Semester Practicum30 After resuming from a hiatus, the project required several tasks to be completed to bring it back on track. I had the opportunity to actively contribute across various phases of the work, beginning with the creation of site plan renders. My involvement extended to the design of diverse interior spaces, ensuring they aligned with the project’s vision and functionality. Once the designs were finalized, I shifted my focus to the crucial phase of construction detailing. This included preparing comprehensive working drawings, sections, elevations, and other necessary documentation to facilitate smooth execution on site. During a detailed site visit, we observed significant discrepancies between the original plans and the existing conditions of the building. To address these issues, I conducted precise measurements and was tasked with drafting updated plans. These revisions accurately reflected the current state of the structure while incorporating essential layout modifications to meet the project's requirements. FIG:ROUGH PLAN FIG:MEASURED PLAN (PLEASE REFER TO ANNEX FOR MORE DRAWING) (PLEASE REFER TO ANNEX FOR MORE DRAWING)
  • 31.
    7th Semester Practicum31 The site plan render was completed using Photoshop, with a focus on depicting the site context and emphasizing approaches based on the provided site plan and images. This task allowed me to explore various tools and techniques within Photoshop, enhancing my ability to create detailed and accurate visual representations. SITE PLAN RENDER Next, I worked on the corridor design. The site appeared gloomy and dark, so the goal was to brighten the space using diffused lighting and appropriate colors while maintaining the rustic essence and character of Manang. To enhance the space, we incorporated customized room signage, wooden door handles, and white colors. Hanging unfinished wood was used to diffuse light effectively, and additional cove lighting was installed to provide more diffused light from the sides, highlighting the overall design CORRIDOR DESIGN MY MAJOR INVOLVEMENT FIG:SITE PLAN RENDER After completing the corridor design, I took on the task of creating detailed drawings that captured every element with precision, including exact dimensions and specifications for the signage to ensure both clarity and cohesion. Next, my attention turned to the bedroom on Level 4, where I prepared meticulous drawings highlighting key features such as the false ceiling height, furniture layout, and intricate finishing details. These detailed plans were essential for achieving a polished and harmonious final look, aligning perfectly with the design vision. WORKING DRAWING (PLEASE REFER TO ANNEX FOR MORE DRAWING) FIG:MAIN GATE DETAIL
  • 32.
    7th Semester Practicum32 • Most significant project at SPA, offering invaluable lessons about the sense of place and its importance. • Learned to design buildings on steep slopes and renovate nearly abandoned structures. • Gained extensive knowledge in interior design, detailing, creating working drawings, and understanding Bills of Quantities (BOQ). • Acquired knowledge about load-bearing structures. • Enhanced drafting, 3D modeling, and rendering skills ATTAINMENTS FIG: FINAL ELEVATION
  • 33.
    33 KHATRI RESIDENCE 04Owner: Area: 8306.7 sq.ft Location: Bhaisepati, Lalitpur Project Type: Residence Status: Under Construction MY INVOLVEMENTS • Site visit/Site visit report • 3d render roof (as per client) • Studying and Recreating Municipal Drawing This project is focused on crafting a luxurious home for a client based in Kenya, combining elegance with cultural richness. The design vision seamlessly weaves traditional Kenyan aesthetics with modern contemporary elements, creating a harmonious balance between heritage and innovation. Every detail is thoughtfully considered, from the choice of materials and textures to the spatial layout, ensuring the home embodies both cultural significance and modern sophistication. The result is a residence that celebrates Kenya’s unique identity while embracing contemporary luxury.
  • 34.
    7th Semester Practicum34 MY MAJOR INVOLVEMENT (PLEASE REFER TO ANNEX FOR MORE DRAWING) MUNCIPAL DRAWING I was tasked with preparing municipal drawings to address significant changes made to the proposed design in order to comply with local regulations. One of the key challenges involved the cantilever design. According to the municipal byelaws, a maximum cantilever of 5 feet was permitted, while our initial design included an 8-foot cantilever. This discrepancy necessitated revisions to align the design with the stipulated regulations. Following consultations with the municipal authorities, I worked on modifying the plans to reflect the allowable dimensions without compromising the design intent. This involved not only adjusting the cantilever but also ensuring that all related elements of the structure adhered to the updated specifications. Once the revisions were finalized, I prepared a comprehensive set of updated drawings, including plans, sections, and other necessary documents required for the municipality’s review process. These changes ensured compliance with byelaws while maintaining the overall functionality and aesthetics of the design. Recreating Municipal Drawing
  • 35.
    7th Semester Practicum35 FIG:ROOF DESIGNS FIG:STUDIO APARTMENT CHANGE IN ROOF PLAN AS PER THE CLIENT During the construction phase, the client requested a revision to the roof plan, motivated by two key factors: enhancing the site’s views and creating space for the installation of solar panels. This presented a unique opportunity to reimaging the roof design. I carefully developed several design options that would not only meet the client’s practical needs but also elevate the overall aesthetic of the building. These options were presented to the client, helping them visualize the impact of the new roof volume on the structure. Through this collaborative process, the client was able to gain a clear understanding of the changes, allowing them to make an informed decision that perfectly balanced beauty, functionality, and sustainability. FIG:REVISED 3D (PLEASE REFER TO ANNEX FOR MORE DRAWING)
  • 36.
    7th Semester Practicum36 SITE VISIT During the review of the floor level differences at the bathroom entrance, we carefully considered various methods to achieve a seamless transition between spaces, ensuring they would be on the same level. This adjustment was essential not only for aesthetic harmony but also for the functionality of the space. After thorough discussion, we determined that modifying the slab depth to align flush with the beam at 15 inches would be the ideal solution. This adjustment not only ensured a smooth, even transition but also allowed for the hidden integration of pipelines beneath the slab, contributing to a cleaner and more uniform environment. The result was a space that felt cohesive, with a thoughtful balance of form and function. Later, we conducted another detailed site visit alongside structural engineer Er. Ram Sthapit. This visit provided an opportunity to review the structural drawings in depth and discuss potential issues that could arise from even the smallest discrepancies in the design. As we toured the site, Er. Sthapit pointed out specific areas where minor errors in the structural plans could lead to complications, advising us on necessary adjustments to ensure the building’s integrity. His expertise and keen eye for detail were invaluable in identifying and addressing potential issues before they could impact the project. A comprehensive report of these observations, along with the recommended solutions, is included in the annex for further review and action, ensuring that every aspect of the project remains on track for successful completion. (PLEASE REFER TO ANNEX FOR MORE DRAWING) FIG:BRICK PLACEMENT FIG:WOOD PLACEMENT
  • 37.
    7th Semester Practicum37 CHALLENGHES AND OVERCOME: •During the site visit we saw the bad workmanship by the contractor which could have effected the building structure. •Main problem was seen in beam design as it wasn’t properly done. •After the discussion with client we made sure the contractor do proper work. •We also did frequent site survey and prepared report. FIG: REPORT WRITING (PLEASE REFER TO ANNEX FOR MORE DRAWING) •Earned about how a design should meet client’s requirements •Gained knowledge on designing buildings on contour land •Understood the use of shear walls to retain land •Learned the importance of small details in structural design. •Learned post production using photoshop. ATTAINMENTS
  • 38.
    38 WORLD BANK 05 Owner: Area:1615 sq.f Location: HotelYak and Yeti, Kathmandu Project Type: Office Renovation Status:On Going MY INVOLVEMENTS • Site visit • Study of plan The renovation project focused on the Country Management Unit supporting office on the first floor of the World Bank Office. Initially, the office appeared disorganized with printers and documents scattered, highlighting the need for renovation. The project began with a site visit where the team observed the current state of the office and discussed potential improvements to enhance the space
  • 39.
    7th Semester Practicum39 FIG:GROUND FLOOR PLAN FIG:FIRST FLOOR PLAN During my internship, I had the opportunity to participate in a site visit to the World Bank Office, where we were tasked with supervising a fire safety inspection in response to concerns about contractor negligence. The primary aim of the visit was to ensure that the safety protocols were strictly followed and to identify any discrepancies that could potentially compromise the building's safety during emergencies. Upon arriving at the site, we conducted a thorough review of the fire safety measures. One of the first notable improvements was the installation of new fire exit signage's, which had been strategically placed to ensure maximum visibility and clarity. The previous signs, which had been incorrectly placed, were replaced with accurate directional indicators, effectively guiding occupants toward the nearest exits. This adjustment was crucial in ensuring a swift and orderly evacuation in the event of an emergency. Additionally, we observed that the locks on the emergency exit doors had been removed, allowing for immediate and unrestricted access. This was a significant safety enhancement, as it ensured that the emergency exits could be opened easily without delay, thus reducing potential hazards during an evacuation. Furthermore, we noted that plants and other obstructions that had previously blocked the fire extinguisher were cleared away. This action made the fire extinguishers fully accessible and ensured that vital safety equipment would be available for use when needed most. The adjustments made during the inspection were not only necessary but also demonstrated a strong commitment to ensuring the highest standards of safety for everyone in the building. This experience underscored the importance of diligent site supervision and adherence to fire safety regulations, reminding us how crucial it is to continuously assess and improve safety measures to create a secure environment for all. SITE OBSERVATION (PLEASE REFER TO ANNEX FOR MORE DRAWING)
  • 40.
    7th Semester Practicum40 •Improved site assessment and planning for safety compliance. •Developed technical detailing expertise for floor and ceiling plans. •Strengthened project coordination and stakeholder communication. •Gained adaptability in handling design changes and challenges. ATTAINMENTS FIG: SITE VISIT (PLEASE REFER TO ANNEX FOR MORE DRAWING)
  • 41.
    41 TENZING MEMORIAL PARK 06 Location: NamcheBazaar, Solukhumbu Project Type: Landscape Project Project Status: Conceptual MY INVOLVEMENTS • Extensive research • Conceptual planning • Design development The Tenzing Heritage Center, a Sherpa museum was renovated under the guidance of Sarosh Pradhan and Associates. As a part of this project, a memorial garden was proposed to honour 5000 mountaineers who have summited Mount Everest, including tribute to 150 mountaineers who were unable to complete the ascent..
  • 42.
    7th Semester Practicum42 For our project, we were provided with a Google Maps location and site images, which allowed us to understand the area’s layout and its relationship to surrounding landmarks. The site was surrounded by notable features, including the Sherpa Climber Celebration Wall, Mountain Auditorium, Welcome Center, Exhibit Digitization area, and Rewa Café. Our task was to design an extension to the Sherpa Climber Celebration Wall, ensuring it blended seamlessly with the existing elements of the site. The extension needed to enhance the overall visitor experience while maintaining the wall’s cultural and historical significance. By integrating the extension with nearby landmarks, we aimed to create a harmonious flow that enriched the space and offered visitors a more engaging and meaningful experience SITE IMAGE
  • 43.
    7th Semester Practicum43 For this project, the main focus was on the statue, making it an experiential centerpiece. The design had to be subtle, cost-effective, and without raised platforms. To accommodate 1,500 names while maintaining economic efficiency, we brainstormed BRAINSTORMING various ideas for the surrounding spaces. The result was a design that complemented the statue, ensuring that the surrounding environment did not overshadow the main attractant while still honoring all the individuals in an organized and budget-friendly manner. MY MAJOR INVOLVEMENT Brainstorming The project aimed to honor mountaineers by creating a landscape that reflects their enduring presence, blending seamlessly with the natural surroundings. The main concept for the design focused on an axis of vision, making spaces visually accessible but not physically so. Initially, walls were arranged linearly, but as the design evolved, the walls were organically extended to align with the elliptical shapes of existing structures, creating sitting areas in between. A void space was created between the walls, paired with a water feature that represents presence in absence—the water collected from snowmelt. Finally, similar walls were placed around the chorten to honor the departed souls. Design Development FIG:REFRENCES IMAGES FIG:CONCEPT SKETCH (PLEASE REFER TO ANNEX FOR MORE DRAWING)
  • 44.
  • 45.
    7th Semester Practicum45 • Learned the role of memorials as spaces of remembrance, designed to evoke emotion •Gained insight into how architecture evokes feelings through light, scale, and movement •Understood the importance of memorials connecting with and blending into their surroundings •Enhanced skills in 3D visualization and rendering to effectively communicate design intent •Developed the ability to bring memorial designs to life visually ATTAINMENTS FIG:RENDER POST PRODUCTION FIG:RENDER POST PRODUCTION
  • 46.
    7th Semester Practicum46 DESIGN COMPETITION 07 Type: Nunnery Design competition) Location: Chovar Status: Completed MY INVOLVEMENTS • RENDER AND SHEET DEVELOPMENT Tsoknyi Gechak Ling Nunnery is a Buddhist temple that also serves as a school, blending modern education with Buddhist spiritual teachings to foster compassion and wisdom in its students. The school follows the Nepali government curriculum and offers supplementary activities like field trips, art, mindfulness, and creative learning methods.
  • 47.
    7th Semester Practicum47 FIG: SHEET RENDERS
  • 48.
    7th Semester Practicum48 FIG: SHEET RENDERS
  • 49.
    49 MIX USE RESIDENCE 08 Location:Baluwater,Kathmandu Area :300.5 sq m Project Type: Apartment Project Status: Conceptual MY INVOLVEMENTS • Site visit • Volume Development The project is planned in two phases with a masterplan designed to create a modern mixed-use residential space. Inspired by living abroad, the client envisions a development that blends residential, commercial, and recreational spaces to meet today’s lifestyle needs.
  • 50.
    7th Semester Practicum50 . Our Thoughts on the ProjectWe’ve carefully considered the site and the project requirements, and here’s how we propose approaching the design: Understanding the Site and Context The site in Baluwatar is surrounded by residential buildings, and a portion of it is dedicated to Phase 1 at this stage. However, since the pre−built area is also part of your land, we can take a broader perspective, planning the design to allow for future transformation and development of the entire site. Design Vision Our aim is to create a unique and timeless design that aligns with your vision. We propose a mixed−use residential building that blends traditional Nepalese architecture with modern elements. The main façade will feature brickwork complemented by black accents, evoking a rustic yet contemporary character inspired by Nepalese homes and even the prime minister’s residence. Functional Layout We envision the design to integrate several functions, including:  Residential Spaces: These could include standard apartments, duplex units, penthouses, and flexible housing options.  Corporate Spaces: Office spaces to enhance functionality.  Public Amenities: A café, green areas, and shared courtyards to create lively community zones. The site will be organized into public, semi−private, and private zones to ensure smooth transitions and maintain privacy where needed. CLIENT DISCUSSIONS
  • 51.
    7th Semester Practicum51 Design Features 1.Our approach will focus on creating a functional, energy−efficient, and visually appealing design through:Energy Efficiency: Incorporating passive cooling strategies such as cross−ventilation, green spaces, and buffer zones to enhance comfort and minimize energy usage. 2. Brick Screening: Using brick screening as a key element of the façade design. These screens will not only enhance the aesthetic with intricate patterns but will also improve functionality by providing natural ventilation, filtered light, and privacy while reducing heat gain. 3. Courtyard and Connections: A shared courtyard will form the central connecting space, tying the project together. Vertical elements like balconies with brick screens will create dynamic façades while promoting privacy and interaction. 4. Unified Access: A shared basement and courtyard will seamlessly connect all areas of the site. Phase 1 Plan In the first phase, we’ll focus on a 300 sqm area with 60% ground coverage and a FAR of 3.2 (six stories). This phase will include service apartments, access lobbies, and vertical zoning to create a cohesive and adaptable structure. Future Scope Although we are starting with Phase 1, the overall design will be developed with future growth in mind. This will ensure that the project can evolve over time while maintaining consistency and coherence We believe this approach will deliver a project that is functional, energy−efficient, and visually distinct. The addition of brick screening will further enhance its identity while seamlessly fitting into the character of the surrounding neighborhood. We look forward to hearing your thoughts and refining the concept further together.
  • 52.
    7th Semester Practicum52 FIG:CONCEPTUAL VOLUMETRIC ANALYSIS VOLUMETRIC ANALYSIS ATTAINMENTS •Learned about survey map and its detail. •Got chance to have meeting with clients. •Learned about the volume development.
  • 53.
    53 RINPOCHE NIWAS 09Location:Bodhgaya, India Area :2070sq ft Project Type: Residence Project Status: Conceptual MY INVOLVEMENTS • Client meeting • Small plan development This project is residential project for the monk residing in the bodhgaya ,India. Client wanna have the tibet style architecture with different function in co-operating.
  • 54.
    7th Semester Practicum54 This is the initial development of the plan made after the discussion with the client. This plan isn’t the final draft plan but the concept plan where the function is placed as per accordingly. Above fig is the list of function and program that client mentioned us about. Client even demanded of putting the bridge in between building to connect with old building. FIG: CONCEPTMASTER PLAN FUNCTION: •Ground floor: Prayer Hall, Lobby, office, toilet. •First floor: Master bed room with attach toilet. •Second floor: servant and kitchen room
  • 55.
    55 WORKING DRAWING 10 MY INVOLVEMENTS • Detaildrawing of furniture , wall and elevation Detailed technical drawings used during construction, providing precise information on dimensions, materials, and installation methods to guide contractors and ensure the design is built as intended.
  • 56.
    7th Semester Practicum56 (PLEASE REFER TO ANNEX FOR MORE DRAWING)
  • 57.
    7th Semester Practicum57 (PLEASE REFER TO ANNEX FOR MORE DRAWING)
  • 58.
    7th Semester Practicum58 (PLEASE REFER TO ANNEX FOR MORE DRAWING)
  • 59.
    7th Semester Practicum59 (PLEASE REFER TO ANNEX FOR MORE DRAWING)
  • 60.
    7th Semester Practicum60 (PLEASE REFER TO ANNEX FOR MORE DRAWING)
  • 61.
    61 CONSTRUCTION SITE VISIT 11 MY INVOLVEMENTS •Report During my internship, I had the opportunity to visit the construction site of Khatri Niwas/Residence. Accompanied by Er. Ram Sir, the visit provided a valuable chance to observe and understand the construction process in detail. We closely studied the structural framework of the building, which gave us a clearer picture of how the "bones" of the structure are formed and how different elements come together to create a solid foundation. This hands-on experience not only enhanced my understanding of construction techniques but also provided practical insights into how structural designs are implemented on-site. It was an enriching learning opportunity that deepened my appreciation of the construction process
  • 62.
    7th Semester Practicum62 SITE SUPERVISION AND OBSERVATIONS: FIG: BAR SET FOR RCC PUNNING FIG: BAR SET FOR RCC PUNNING
  • 63.
    7th Semester Practicum63 FIG:STAIRCASE DETAIL FIG:RCC PUNNING FIG: STAIRCASE DETAIL ATTAINMENTS •LEARNED ABOUT THE SITE OBSERVATION AND HOW RCC IS DONE. •LEARNED ABOUT THE HOW BAR ARE SET AND HOW IT NEEDE TO BE DONE.
  • 64.
    64 MISCELLANEOUS 12•SPA Presentations &Dialouges •Heritage Walk to Basantapur Durbar Square. During my internship, I was given the opportunity to deliver a presentation based on my experiences and insights gained during the program. For this, I chose the topic "The Art of Letting Go," where I explored the concept of releasing attachments, embracing change, and finding growth through challenges, both personally and professionally. Preparing for the presentation was an enriching process, as it allowed me to reflect deeply on my journey and organize my thoughts creatively. While presenting, I shared stories and perspectives that resonated with the audience, sparking meaningful discussions about overcoming obstacles and adapting to new opportunities. This experience not only improved my ability to communicate effectively but also boosted my confidence in presenting ideas to a group. It was a valuable moment in my internship, enabling me to connect with others while sharing lessons that had impacted me profoundly.
  • 65.
  • 66.
    7th Semester Practicum66 LEARNING FROM A FELLOW INTERN'S PRESENTATION: During my internship, I had the privilege of listening to a presentation by one of my fellow intern mates. Her presentation, titled "Sounder," was deeply thought-provoking and offered a fresh perspective on life and emotions. As she shared her insights, I found myself reflecting on my own feelings and how I engage with everything around me. Her words made me question how I emotionally connect with my work, my actions, and even the people I interact with. It was a moment of realization that we often overlook the deeper emotional aspects of what we do. Her presentation not only inspired me to be more mindful of my emotional responses but also encouraged me to approach life with more awareness and intention. It reminded me of the power of different perspectives and how they can help us grow, understand ourselves better, and find more meaning in our everyday experiences.
  • 67.
    7th Semester Practicum67 One of the most memorable days during my internship was when our team took a walk through the historic Basantapur Durbar Square. This excursion was not only a chance to explore a cultural landmark but also a deeply enriching experience that allowed us to learn more about the architectural beauty and heritage of Nepal. As we walked through the square, we were able to observe the seamless harmony between the buildings, understanding how Nepalese architecture has been carefully designed to reflect the country’s rich cultural history while remaining balanced with its core essence. We had the opportunity to discuss the unique architectural features of the buildings, and it was fascinating to see how the traditional elements were integrated into the structures, preserving the historical significance while meeting contemporary needs. This walk gave us a deep appreciation for the cultural value embedded in the architecture and how it continues to shape the identity of the place. In addition to the architectural exploration, we had a memorable talk session with visitors from the United States who were visiting Nepal. This interaction added an international perspective to our experience, as we shared our thoughts on Nepalese culture and architecture, and they shared their experiences of visiting the country. It was a beautiful exchange of ideas, and it made us realize how architecture can bridge cultural divides and bring people together. While learning about architecture and culture, the day also turned into an opportunity for self-reflection. As we spent time together as a team, walking through the historic space and engaging in discussions, we realized the importance of being present with ourselves and the team. The experience allowed us to reflect on our personal journeys, our values, and how we contribute to the work we do. It reminded us that reflection, both individually and as a team, is key to understanding our purpose and strengthening our bond as professionals. This day was a perfect blend of learning, cultural exchange, and personal growth. It was an experience that not only enriched our knowledge of Nepalese architecture but also encouraged us to reflect on our own paths, shaping how we approach both our personal and professional lives. HERITAGE WALK
  • 68.
    7th Semester Practicum68 CONCLUSION My experience at Sarosh Pradhan and Associates (SPA) has truly been an enriching journey, one that has allowed me to explore my interests, gain self-awareness, and grow in ways I had never imagined, both personally and professionally. From the very beginning, I felt welcomed by the team, whose guidance and support played a pivotal role in shaping my skills and deepening my understanding of architecture. Working at SPA exposed me to a wide range of architectural practices and gave me the opportunity to observe the real-world application of design principles, which I had only previously encountered in theory. Throughout my internship, I was fortunate to be involved in various stages of design and planning, and this hands-on experience enabled me to gain practical insights into how architecture is conceptualized, refined, and executed. One of the most valuable aspects of my time at SPA was the exposure I had to numerous presentations and discussions. These sessions were a treasure trove of knowledge, where I was able to learn from professionals who have years of experience in the field. Each discussion, whether it focused on design concepts, project management, or client relations, expanded my understanding of the multifaceted nature of architecture. I was able to witness firsthand how architects approach complex challenges, make informed decisions, and find creative solutions. Having the opportunity to communicate my own ideas during these sessions significantly boosted my confidence. Presenting my thoughts and designs, both to the team and clients, helped me refine my communication skills and taught me how to express my ideas clearly and effectively. The constructive feedback I received was invaluable, allowing me to grow as a designer and presenter. Beyond the technical and design insights, I also had the chance to immerse myself in a broader architectural culture. I was encouraged to read a variety of architectural books, which opened my eyes to different architectural styles, philosophies, and global trends. These readings, coupled with visits to numerous construction sites and historical buildings, broadened my perspective and enhanced my ability to see architecture from different viewpoints. I began to appreciate not only the technical elements of architecture but also its cultural, historical, and emotional significance. The sites I visited allowed me to witness how architecture influences and interacts with the environment and people, further deepening my understanding of its role in shaping our world. My time at SPA has been an incredibly productive and enjoyable learning experience. I have gained more than just technical skills; I have gained a deeper understanding of myself and my passion for architecture. The exposure to diverse architectural practices, coupled with the mentorship and encouragement from the SPA team, has been instrumental in shaping my approach to design and my future career path. The lessons learned, both in design and personal development, will undoubtedly play a crucial role in the progression of my architectural career. As I move forward in my journey, I am confident that the experiences I had during my time at SPA will serve as a solid foundation for my professional growth. The opportunity to work alongside talented professionals, engage in meaningful discussions, and experience architecture in its many forms has enriched my knowledge and prepared me for the challenges and opportunities that lie ahead. I am truly grateful for the chance to learn and grow with SPA, and I will carry the lessons I have learned with me throughout my career.
  • 69.
    7th Semester Practicum69 REFRENCE https://www.goodreads.com/book/show/45150317-paths-uncharted https://www.nasisbooks.com/wp-content/uploads/2020/02/THE-GREEN- HOUSE-New-Directions-in-Sustainable-Architecture.jpg Please refer to annex for more detailed drawings , rendered images , site pictures etc.